On the Applicability of Transfer Function Models for SSI Embedment Effects
Abstract
:1. Introduction
2. Case Study Building, Soil Properties and Seismic Input
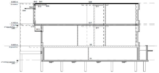
2.1. Case Study Building with Basement
2.2. Soil Properties
2.3. Seismic Input
3. Numerical Model of Soil and Structure
3.1. 3D Nonlinear Numerical Model of Layered Soil
3.2. 3D Numerical Model of Building with Basement
4. Transfer Functions for Embedment Effects
4.1. Investigated Transfer Function Models
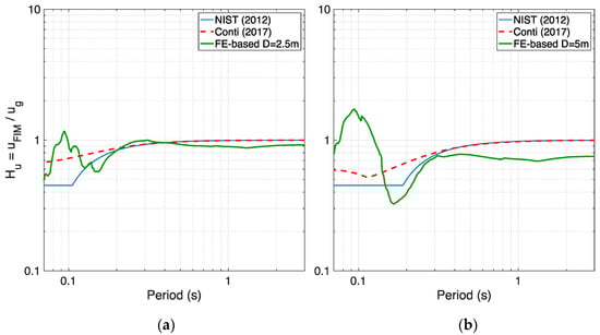
4.2. FE-Based Transfer Functions and Comparison with Analytical Ones
5. Conclusions
Author Contributions
Funding
Acknowledgments
Conflicts of Interest
References
- Cavalieri, F.; Correia, A.A.; Pinho, R. Variations between foundation-level recordings and free-field earthquake ground mo-tions: Numerical study at soft-soil sites. Soil Dyn. Earthq. Eng. 2021, 141, 106511. [Google Scholar] [CrossRef]
- Mylonakis, G.; Nikolaou, S.; Gazetas, G. Footings under seismic loading: Analysis and design issues with emphasis on bridge foundations. Soil Dyn. Earthq. Eng. 2006, 26, 824–853. [Google Scholar] [CrossRef]
- Varghese, R.; Boominathan, A.; Banerjee, S. Investigation of pile-induced filtering of seismic ground motion considering em-bedment effect. Earthq. Eng. Struct. Dyn. 2021, 50, 3201–3219. [Google Scholar] [CrossRef]
- Sotiriadis, D.; Klimis, N.; Margaris, B.; Sextos, A. Analytical expressions relating free-field and foundation ground motions in buildings with basement, considering soil-structure interaction. Eng. Struct. 2020, 216, 110757. [Google Scholar] [CrossRef]
- Cavalieri, F.; Correia, A.A.; Pinho, R. Comparative nonlinear SSI analyses using macro-element and soil-block modelling ap-proaches. Submitted for publication. Bull. Earthq. Eng. 2021. [Google Scholar]
- Echebba, E.; Boubel, H.; El Omari, A.; Rougui, M.; Chourak, M.; Chehade, F. Analysis of the Second Order Effect of the SSI on the Building during a Seismic Load. Infrastructures 2021, 6, 20. [Google Scholar] [CrossRef]
- Karatzetzou, A.; Pitilakis, D. Modification of Dynamic Foundation Response Due to Soil-Structure Interaction. J. Earthq. Eng. 2018, 22, 861–880. [Google Scholar] [CrossRef]
- Karatzetzou, A.; Pitilakis, D. Reduction factors to evaluate acceleration demand of soil-foundation-structure systems. Soil Dyn. Earthq. Eng. 2018, 109, 199–208. [Google Scholar] [CrossRef]
- Conti, R.; Morigi, M.; Viggiani, G.M.B. Filtering effect induced by rigid massless embedded foundations. Bull. Earthq. Eng. 2017, 15, 1019–1035. [Google Scholar] [CrossRef] [Green Version]
- NIST. Soil-Structure Interaction for Building Structures; Report No. 12-917-21; National Institute of Standards and Technology: Gaithersburg, MD, USA, 2012. [Google Scholar]
- Elsabee, F.; Morray, J.P. Dynamic Behavior of Embedded Foundations; Report No. R77-33; Massachusetts Institute of Technology: Cambridge, MA, USA, 1977. [Google Scholar]
- McKenna, F.; Fenves, G.L.; Scott, M.H. OpenSees: Open System for Earthquake Engineering Simulation; University of California: Berkeley, CA, USA, 2000; Available online: http://opensees.berkeley.edu (accessed on 10 September 2021).
- Arup. External RVS Inspection Full Report Hoofdstraat-West 1, Uithuizen—Groningen Earthquakes—Structural Upgrading; Report no 9981AA_001_000_BE_REP_001; Version 6.3; Arup: London, UK, 2015. [Google Scholar]
- Witteveen+Bos. Dynamic Amplification Effects for B-Stations Due to Building Response; Report 113982/19–1009.783; Witteveen+Bos: Deventer, The Netherlands, 2019. [Google Scholar]
- Darendeli, M.B. Development of a New Family of Normalized Modulus Reduction and Material Damping Curves. Ph.D. Thesis, University of Texas, Austin, TX, USA, 2001. [Google Scholar]
- Kruiver, P.P.; Van Dedem, E.; Romijn, R.; De Lange, G.; Korff, M.; Stafleu, J.; Gunnink, J.L.; Rodriguez-Marek, A.; Bommer, J.; Van Elk, J.; et al. An integrated shear-wave velocity model for the Groningen gas field, The Netherlands. Bull. Earthq. Eng. 2017, 15, 3555–3580. [Google Scholar] [CrossRef] [Green Version]
- Rodriguez-Marek, A.; Kruiver, P.P.; Meijers, P.; Bommer, J.; Dost, B.; Van Elk, J.; Doornhof, D. A Regional Site-Response Model for the Groningen Gas Field. Bull. Seism. Soc. Am. 2017, 107, 2067–2077. [Google Scholar] [CrossRef]
- Mosayk. Soil-Structure-Interaction Analysis in Support of Groningen B-Stations Verification Efforts; Report No. D16; Mosayk: Pavia, Italy, 2020; Available online: http://www.nam.nl/feiten-en-cijfers/onderzoeksrapporten.html (accessed on 10 September 2021).
- D’Amico, M.; Felicetta, C.; Russo, E.; Sgobba, S.; Lanzano, G.; Pacor, F.; Luzi, L. Italian Accelerometric Archive v3.1; Istituto Nazionale di Geofisica e Vulcanologia, Dipartimento della Protezione Civile Nazionale: Rome, Italy, 2020; Available online: http://itaca.mi.ingv.it/ItacaNet_31/#/home (accessed on 10 September 2021).
- NTC18. Aggiornamento delle “Norme tecniche per le costruzioni”. In Decreto Ministeriale del 17/01/2018. Suppl. ord. n. 8 alla G.U. n. 42 del 20/02/2018 (in Italian); Ministero delle Infrastrutture e dei Trasporti: Rome, Italy, 2018. [Google Scholar]
- Hashash, Y.M.A.; Musgrove, M.I.; Harmon, J.A.; Ilhan, O.; Xing, G.; Numanoglu, O.; Groholski, D.R.; Phillips, C.A.; Park, D. DEEPSOIL 7.0, User Manual; Board of Trustees of University of Illinois at Urbana-Champaign: Urbana, IL, USA, 2020. [Google Scholar]
- Kottke, A.R.; Rathje, E.M. Technical Manual for Strata; Report No. 2008/10; Pacific Earthquake Engineering Research Center, University of California: Berkeley, CA, USA, 2008. [Google Scholar]
- Lysmer, J.; Kuhlemeyer, R.L. Finite Dynamic Model for Infinite Media. J. Eng. Mech. Div. 1969, 95, 859–878. [Google Scholar] [CrossRef]
- Joyner, W.B.; Chen, A.T. Calculation of nonlinear ground response in earthquakes. Bull. Seismol. Soc. Am. 1975, 65, 1315–1336. [Google Scholar]
- Mikami, A.; Stewart, J.P.; Kamiyama, M. Effect of time series analysis protocols on transfer functions calculated from earth-quake accelerograms. Soil Dyn. Earthq. Eng. 2008, 28, 695–706. [Google Scholar] [CrossRef]
- Sotiriadis, D.; Klimis, N.; Margaris, B.; Sextos, A. Influence of structure–foundation–soil interaction on ground motions rec-orded within buildings. Bull. Earthq. Eng. 2019, 17, 5867–5895. [Google Scholar] [CrossRef]
- Zogh, P.; Motamed, R.; Ryan, K. Empirical evaluation of kinematic soil-structure interaction effects in structures with large footprints and embedment depths. Soil Dyn. Earthq. Eng. 2021, 149, 106893. [Google Scholar] [CrossRef]
- Conti, R.; Morigi, M.; Rovithis, E.; Theodoulidis, N.; Karakostas, C. Filtering action of embedded massive foundations: New analytical expressions and evidence from 2 instrumented buildings. Earthq. Eng. Struct. Dyn. 2018, 47, 1229–1249. [Google Scholar] [CrossRef]
- Kausel, E.; Whitman, A.; Murray, J.; Elsabee, F. The spring method for embedded foundations. Nucl. Eng. Des. 1978, 48, 377–392. [Google Scholar] [CrossRef]
- Day, S.M. Seismic response of embedded foundations. In Proceedings of the ASCE Convention and Exposition, Chicago, IL, USA, 18–21 June 1978; American Society of Civil Engineers: New York, NY, USA, 1978. [Google Scholar]
- Kim, S.; Stewart, J.P. Kinematic Soil-Structure Interaction from Strong Motion Recordings. J. Geotech. Geoenviron. Eng. 2003, 129, 323–335. [Google Scholar] [CrossRef]


















| Base dimens. (m) | Height of superstr. (m) | Depth of basement (m) | Ec (kPa) | νc | Thickn. of base slab (m) | Em (kPa) | νm |
| 16.0 × 16.0 | 8.0 | 2.5 m or 5.0 m | 3.0 × 107 | 0.3 | 0.25 | 9.0 × 106 | 0.2 |
| Thickness of walls (m) | Et (kPa) | νt | Thickn. of floor slabs/roof (m) | Pile diameter (m) | Pile length (m) | Pile spacing along x (m) | Pile spacing along z (m) |
| 0.22 | 1.1 × 107 | 0.2 | 0.2 | 0.35 | 16.0 | 4.0 | 4.0 |
Publisher’s Note: MDPI stays neutral with regard to jurisdictional claims in published maps and institutional affiliations. |
© 2021 by the authors. Licensee MDPI, Basel, Switzerland. This article is an open access article distributed under the terms and conditions of the Creative Commons Attribution (CC BY) license (https://creativecommons.org/licenses/by/4.0/).
Share and Cite
Cavalieri, F.; Correia, A.A.; Pinho, R. On the Applicability of Transfer Function Models for SSI Embedment Effects. Infrastructures 2021, 6, 137. https://doi.org/10.3390/infrastructures6100137
Cavalieri F, Correia AA, Pinho R. On the Applicability of Transfer Function Models for SSI Embedment Effects. Infrastructures. 2021; 6(10):137. https://doi.org/10.3390/infrastructures6100137
Chicago/Turabian StyleCavalieri, Francesco, António A. Correia, and Rui Pinho. 2021. "On the Applicability of Transfer Function Models for SSI Embedment Effects" Infrastructures 6, no. 10: 137. https://doi.org/10.3390/infrastructures6100137
APA StyleCavalieri, F., Correia, A. A., & Pinho, R. (2021). On the Applicability of Transfer Function Models for SSI Embedment Effects. Infrastructures, 6(10), 137. https://doi.org/10.3390/infrastructures6100137

