Possibilities of Using Kalman Filters in Indoor Localization
Abstract
1. Introduction
1.1. Related Work
1.1.1. Fingerprinting
1.1.2. Motivation for Using Kalman Filters
2. Materials and Methods
2.1. Introduction to Kalman Filters
2.1.1. The Kalman Filter Algorithm
2.1.2. The Extended Kalman Filter
2.2. Kalman Filters and Indoor Localization
2.2.1. Static Localization
Algorithm 1
Algorithm 2
Algorithm 3
2.2.2. Dynamic Localization
Algorithm 4
3. Results and Discussion
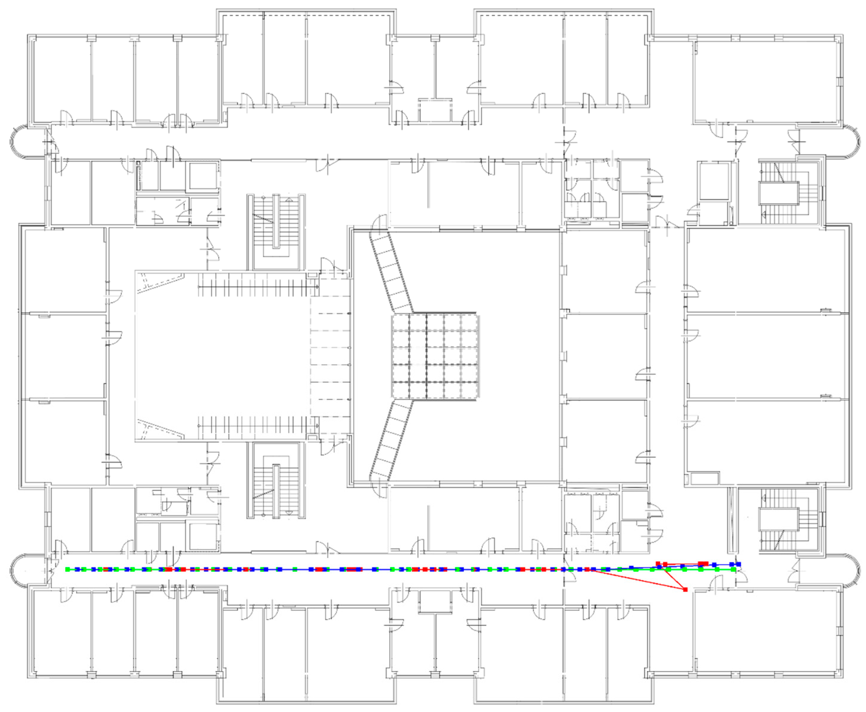
3.1. Implementation and Testing of the Algorithms
3.2. Results and Discussion
3.2.1. Static Localization
3.2.2. Dynamic Localization
4. Conclusions
Supplementary Materials
Author Contributions
Funding
Conflicts of Interest
References
- Kalman, R.E. A new approach to linear filtering and prediction problems. J. Basic Eng. 1960, 82, 35–45. [Google Scholar] [CrossRef]
- Ryschka, S.; Murawski, M.; Bick, M. Location-based services. Bus. Inf. Syst. Eng. 2016, 58, 233–237. [Google Scholar] [CrossRef]
- Bentley, F.; Cramer, H.; Müller, J. Beyond the bar: The places where location-based services are used in the city. Pers. Ubiquitous Comput. 2015, 19, 217–223. [Google Scholar] [CrossRef]
- Lin, Y.B.; Lin, Y.W.; Hsiao, C.Y.; Wang, S.Y. Location-based IoT applications on campus: The IoTtalk approach. Pervasive Mob. Comput. 2017, 40, 660–673. [Google Scholar] [CrossRef]
- Werner, M. Indoor Location-Based Services: Prerequisites and Foundations, 1st ed.; Springer International Publishing: Cham, Switzerland, 2014. [Google Scholar]
- Lee, S.H.; Lim, I.K.; Lee, J.K. Method for improving indoor positioning accuracy using extended Kalman filter. Mob. Inf. Syst. 2016, 2016, 1–15. [Google Scholar] [CrossRef]
- Bahl, P.; Padmanabhan, V.N. RADAR: An in-building RF-based user location and tracking system. In Proceedings of the Nineteenth Annual Joint Conference of the IEEE Computer and Communications Societies (INFOCOM), Tel Aviv, Israel, 26–30 March 2000; IEEE Computer Society Press: Los Alamitos, CA, USA, 2000; pp. 775–784. [Google Scholar]
- Kotanen, A.; Hännikäinen, M.; Leppäkoski, H.; Hämäläinen, T.D. Experiments on local positioning with Bluetooth. In Proceedings of the International Conference on Information Technology: Coding and Computing, Las Vegas, NV, USA, 28–30 April 2003; IEEE Computer Society Press: Los Alamitos, CA, USA, 2003; pp. 297–303. [Google Scholar]
- Yim, J.; Park, C.; Joo, J.; Jeong, S. Extended Kalman filter for wireless LAN based indoor positioning. Decis. Support Syst. 2008, 45, 960–971. [Google Scholar] [CrossRef]
- Kwon, J.; Dundar, B.; Varaiya, P. Hybrid algorithm for indoor positioning using wireless LAN. In Proceedings of the IEEE 60th Vehicular Technology Conference, Los Angeles, NV, USA, 26–29 September 2004; IEEE Computer Society Press: Los Alamitos, CA, USA, 2004; pp. 4625–4629. [Google Scholar]
- Ali-Löytty, S.; Sirola, N.; Piché, R. Consistency of three Kalman filter extensions in hybrid navigation. In Proceedings of the European Navigation Conference GNSS 2005, Munich, Germany, 19–22 July 2005. [Google Scholar]
- Ali-Löytty, S.; Perala, T.; Honkavirta, V.; Piché, R. Fingerprint Kalman filter in indoor positioning applications. In Proceedings of the 2009 IEEE Control Applications, (CCA) & Intelligent Control, (ISIC), St. Petersburg, Russia, 8–10 July 2009; IEEE Computer Society Press: Los Alamitos, CA, USA, 2009; pp. 1678–1683. [Google Scholar]
- Fang, X.; Nan, L.; Jiang, Z.; Chen, L. Noise-aware fingerprint localization algorithm for wireless sensor network based on adaptive fingerprint Kalman filter. Comput. Netw. 2017, 124, 97–107. [Google Scholar] [CrossRef]
- Coronel, P.; Furrer, S.; Schott, W.; Weiss, B. Indoor location tracking using inertial navigation sensors and radio beacons. In The Internet of Things; Floerkemeier, C., Langheinrich, M., Fleisch, E., Mattern, F., Sarma, S.E., Eds.; Springer: Berlin/Heidelberg, Germany, 2008; pp. 325–340. [Google Scholar]
- Lee, S.; Cho, B.; Koo, B.; Ryu, S.; Choi, J.; Kim, S. Kalman filter-based indoor position tracking with self-calibration for RSS variation mitigation. Int. J. Distrib. Sens. Netw. 2015, 11, 1–10. [Google Scholar] [CrossRef]
- Chen, Z.; Zou, H.; Jiang, H.; Zhu, Q.; Soh, Y.; Xie, L. Fusion of WiFi, smartphone sensors and landmarks using the Kalman filter for indoor localization. Sensors 2015, 15, 715–732. [Google Scholar] [CrossRef] [PubMed]
- Chen, Z.; Zhu, Q.; Soh, Y. Smartphone inertial sensor-based indoor localization and tracking with iBeacon corrections. IEEE Trans. Ind. Inform. 2016, 12, 1540–1549. [Google Scholar] [CrossRef]
- Yu, Y.; Chen, R.Z.; Chen, L.; Guo, G.Y.; Ye, F.; Liu, Z.Y. A robust dead reckoning algorithm based on Wi-Fi FTM and multiple sensors. Remote Sens. 2019, 11, 504. [Google Scholar] [CrossRef]
- Liu, L.; Li, B.F.; Yang, L.; Liu, T.X. Real-Time Indoor Positioning Approach Using iBeacons and Smartphone Sensors. Appl. Sci. 2020, 10, 2003. [Google Scholar] [CrossRef]
- Nurminen, H.; Ristimäki, A.; Ali-Löytty, S.; Piché, R. Particle filter and smoother for indoor localization. In Proceedings of the International Conference on Indoor Positioning and Indoor Navigation, Montbeliard-Belfort, France, 28–31 October 2013; IEEE Computer Society Press: Los Alamitos, CA, USA, 2013; pp. 1–10. [Google Scholar]
- Wu, Z.; Jedari, E.; Muscedere, R.; Rashidzadeh, R. Improved particle filter based on WLAN RSSI fingerprinting and smart sensors for indoor localization. Comput. Commun. 2016, 83, 64–71. [Google Scholar] [CrossRef]
- Sung, K.; Lee, D.K.; Kim, H. Indoor pedestrian localization using iBeacon and improved Kalman filter. Sensors 2018, 18, 1722. [Google Scholar] [CrossRef] [PubMed]
- Mackey, A.; Spachos, P.; Song, L.; Plataniotis, K.N. Improving BLE Beacon Proximity Estimation Accuracy Through Bayesian Filtering. IEEE Internet Things J. 2020, 7, 3160–3169. [Google Scholar] [CrossRef]
- Maybeck, P.S. Stochastic Models, Estimation and Control, 1st ed.; Academic Press: New York, NY, USA, 1979. [Google Scholar]
- Grewal, M.S.; Andrews, A.P. Kalman Filtering: Theory and Practice Using MATLAB, 4th ed.; Wiley: Hoboken, NJ, USA, 2015. [Google Scholar]
- Simon, D. Optimal State Estimation: Kalman, H [Infinity] and Nonlinear Approaches, 1st ed.; Wiley: Hoboken, NJ, USA, 2006. [Google Scholar]
- Krawiec, P. Measured Power Values. Estimote, Inc. Available online: http://forums.estimote.com/t/measured-power-values/2977 (accessed on 17 July 2020).








| ME | RMSE | MDN E | MAX E | |
|---|---|---|---|---|
| Fingerprinting | 3.03 | 3.77 | 3.01 | 8.70 |
| Algorithm 1 | 7.85 | 8.73 | 8.35 | 14.60 |
| Algorithm 2 | 2.94 | 3.46 | 2.97 | 6.10 |
| Algorithm 3 | 2.06 | 2.64 | 1.88 | 6.00 |
| Path 1 | ME | RMSE | MDN E | MAX E |
| Fingerprinting | 3.01 | 4.48 | 2.13 | 21.33 |
| Algorithm 4 | 2.09 | 2.56 | 1.82 | 6.85 |
| Path 2 | ME | RMSE | MDNE | MAXE |
| Fingerprinting | 1.63 | 2.09 | 1.37 | 4.68 |
| Algorithm 4 | 0.51 | 0.57 | 0.55 | 0.99 |
© 2020 by the authors. Licensee MDPI, Basel, Switzerland. This article is an open access article distributed under the terms and conditions of the Creative Commons Attribution (CC BY) license (http://creativecommons.org/licenses/by/4.0/).
Share and Cite
Fronckova, K.; Prazak, P. Possibilities of Using Kalman Filters in Indoor Localization. Mathematics 2020, 8, 1564. https://doi.org/10.3390/math8091564
Fronckova K, Prazak P. Possibilities of Using Kalman Filters in Indoor Localization. Mathematics. 2020; 8(9):1564. https://doi.org/10.3390/math8091564
Chicago/Turabian StyleFronckova, Katerina, and Pavel Prazak. 2020. "Possibilities of Using Kalman Filters in Indoor Localization" Mathematics 8, no. 9: 1564. https://doi.org/10.3390/math8091564
APA StyleFronckova, K., & Prazak, P. (2020). Possibilities of Using Kalman Filters in Indoor Localization. Mathematics, 8(9), 1564. https://doi.org/10.3390/math8091564

