Thermal Stress Analysis of Process Piping System Installed on LNG Vessel Subject to Hull Design Loads
Abstract
1. Introduction
2. Load and Stress of the Piping System
2.1. Categorization of Pipe Stresses
2.2. Minimum Thickness of Pipe
- = Minimum pipe wall thickness required (m);
- = Internal design pressure (MPa);
- = Outside diameter of pipe (mm);
- = Corrosion and wear erosion allowance (mm);
- = Allowable stress due to pressure and joint efficiency at the design temperature (MPa);
- ≤ 1, Quality Factors [3];
- = Weld joint strength reduction factor;
- = Temperature correction factor from ASME B31.1 Table 104.1.2 [4].
2.3. Loads to be Consider in the LNG Pipe System
- (a) Sustained loads and stresses (primary loads and stress)
- (b) Occasional loads
- = 1.15 for occasional loads acting less than 10% of operating period;
- = 1.20 for occasional loads acting less than 1% of operating period.
- (c) Thermal expansion loads and stress (secondary loads and stress)
- = Material allowable stress at minimum (cold) temperature expected during the displacement cycle under analysis (MPa) (ASME Table K-1);
- = Material allowable stress at maximum metal temperature expected during the displacement cycle under analysis (MPa) (ASME Table K-1);
- = Stress range factor.
2.4. Stress Intensification Factor (SIF) and Flexibility Factor
2.5. Bending Moment Generated by Thermal Expansion
3. Components of Piping System
- X axis: Longitudinal axis, positive forwards.
- Y axis: Transverse axis, positive towards portside.
- Z axis: Vertical axis, positive upwards.
3.1. Material Properties
3.2. Loading Condition
- (1) Acceleration load
- = Length of ship for determination of scantlings (mm);
- = Block coefficient;
- = Moulded breadth of the ship (mm);
- = 1 in general. For particular loading conditions and hull forms = 13GM/;
- GM = The metacentric height (m);
- = Longitudinal distance (m) from amidships to the center of gravity of the LNG tank with contents ( is positive forward of amidships, negative aft of amidships);
- = Vertical distance (m) from the ship’s actual waterline to the centre of gravity of LNG tank with contents;
- ( is positive above and negative below the waterline);
- = Service speed of ship (knots).
- (2) Forced displacement of hull deformation
3.3. Load Cases: Combination of Loads
4. Stress Evaluation
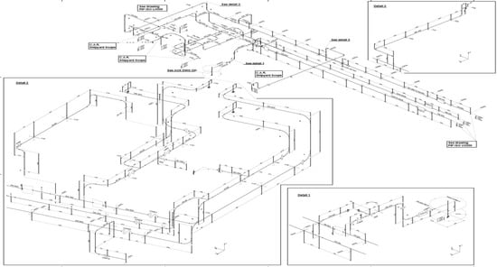
4.1. Geometry of Piping System
4.2. Load Cases
4.3. Deformation and Stresses
5. Conclusions
- The structural safety of the piping system installed on the LNG carriers was evaluated by reflecting the thermal deformation of the hull and inertial effects caused by hull motion.
- Pipe stresses were analyzed to reflect the attributes of valves, expansion joints and flanges in the piping system of the LNG carrier.
- Sustained, occasional, and secondary load conditions were defined as a combination of load boundary conditions.
- The stresses were analyzed for each load condition and load combination and the stresses were evaluated in accordance with the criteria of the ASME code.
Author Contributions
Funding
Acknowledgments
Conflicts of Interest
References
- Lu, H.; Ma, G.; Li, X.; Wu, S. Stress Analysis of LNG Storage Tank Outlet Pipes and Flanges. Energies 2018, 11, 877. [Google Scholar] [CrossRef]
- Yu, G.P.; Zhao, G.M.; Zhang, Y.X. Stress analysis of cryogenic LNG pipeline. Petrochemistry 2015, 32, 22–25. [Google Scholar]
- American Society of Mechanical Engineers. ASME, B31.3—Process Piping—ASME Code for Pressure Piping; American Society of Mechanical Engineers: New York, NY, USA, 2014. [Google Scholar]
- American Society of Mechanical Engineers. ASME. B31.1. in Power Piping—ASME Code for Pressure Piping; American Society of Mechanical Engineers: New York, NY, USA, 2012. [Google Scholar]
- Wang, C.Z. Analysis for Cargo Handling Pipeline of LNG Carrier. Master’s Thesis, Shanghai Jiao Tong University, Shanghai, China, 2011. [Google Scholar]
- Wang, W.; Peng, Y.; Zhou, Y.; Zhang, Q. Liquid sloshing in partly-filled laterally-excited cylindrical tanks equipped with multi baffles. Appl. Ocean. Res. 2016, 59, 543–563. [Google Scholar] [CrossRef]
- Ito, H.; Suh, Y.S.; Chun, S.E.; Satish Kumar, Y.V.; Ha, M.K.; Park, J.J.; Yu, H.C.; Wang, B. A direct assessment approach for structural strength evaluation of cargo containment system under sloshing enside LNGC tanks based on fluid structure interaction. In Proceedings of the ASME 2008 27th International Conference on Offshore Mechanics and Arctic Engineering, Estoril, Portugal, 15–20 June 2008; Volume 5, pp. 835–845. [Google Scholar]
- Jeong, S.Y.; Yoon, K.B.; Dytet, P.V.; Yu, J.M.; Kim, J.Y. Structural integrity evaluation by system stress analysis for fuel piping in a process plant. KOSOS 2013, 28, 44–50. [Google Scholar]
- Sharma, P.; Tiwari, M.; Sharma, K. Design and analysis of a process plant piping system. IJCET 2014, 3, 31–39. [Google Scholar]
- Lu, H.; Huang, K.; Wu, S. Vibration and stress analyses of positive displacement pump pipeline systems in oil transportation stations. JPSEM 2015, 7, 501–502. [Google Scholar] [CrossRef]
- Miranda, J.L.H.; López, L.A.A. Piping Design: The Fundamentals. In Proceedings of the Short Course on Geothermal Drilling, Resource Development and Power Plant, Santa Tecla, El Salvador, 16–22 January 2011. [Google Scholar]
- Shang, B.; Li, C.; Lu, H. Stress analysis of suspended gas pipeline segment. JPSEM 2017, 8. [Google Scholar] [CrossRef]
- Sohail, M.; Venukumar, S.; Reddy, M.V. An outline of piping design using CAESER II-Case Study. MTP 2017, 4, 8269–8278. [Google Scholar] [CrossRef]
- Intergraph CAS Inc. CAESAR II (Version 8); Intergraph CAS Inc.: Madison, AL, USA, 2016. [Google Scholar]
- Wu, X.; Lu, H.; Wu, S. Stress analysis of parallel oil and gas steel pipelines in inclined tunnels. SpringerPlus 2015, 4, 659. [Google Scholar] [CrossRef] [PubMed]
- Brown, T.S.; Jukes, P.; Sun, J. SS: Cryogenic Pipeline-Mechanical Design of Subsea and Buried LNG Pipelines; Offshore Technology Conference: Houston, TX, USA, 2009. [Google Scholar]
- Ju, X.; Fang, W.; Yin, H.; Jiang, Y. Stress analysis of the subsea dynamic riser base process piping. JMSA 2014, 13, 327–332. [Google Scholar] [CrossRef]
- DNV GL. DNVGL-RP-D101 Structural Analysis of Piping Systems; DNV GL: Oslo, Norway, 2017. [Google Scholar]
- Rani, M.J.; Ramanathan, K. Design and analysis of piping system with supports using Caesar-II. World Acad. Sci. Int. J. Mech. Aerosp. Ind. Mechatron. Manuf. Eng. 2016, 10, 919–923. [Google Scholar]
- Tambe, P.N.; Dhande, K.K.; Jamadar, N.I. Flexibility and stress analysis of piping system using Caesar-II-case study. IJERT 2014, 3, 370–374. [Google Scholar]
- American Society of Mechanical Engineers. ASME. B16.5—Pipe Flanges and Flanged Fittings: NPS 1/2 through NPS 24 Metric/Inch Standard; American Society of Mechanical Engineers: New York, NY, USA, 2013. [Google Scholar]
- International Maritime Organization. IGC Code 2016 Amendments. In Code for the Construction and Equipment of Ships Carrying Liquefied Gases in Bulk; International Maritime Organization: London, UK, 2016. [Google Scholar]
- Bhave, S.U. Calculation methodologies for the design of piping systems. IJERGS 2014, 2, 596–603. [Google Scholar]
- Xu, Z.Y.; Hui, H. Finite element analysis of top inlet pipe for LNG storage tanks. JCIEC 2015, 66, 354–359. [Google Scholar]











| Temperature (°C) | Elastic Modulus | Thermal Expansion α (mm/mm/°C) | Allowable Stress , (MPa) |
|---|---|---|---|
| 80 | 191,118 | 16.73 | 115.14 |
| 40 | 193,600 | 16.50 | 115.14 |
| 21 | 195,122 | 16.40 | 115.14 |
| −140 | 205,430 | 15.15 | 115.14 |
| −160 | 206,622 | 14.99 | 115.14 |
| −163 | 206,801 | 14.96 | 115.14 |
| −196 | 208,766 | 14.69 | 115.14 |
| Nominal Diameter of Pipe | Insulation Thickness (mm) | Insulation Density (Kg/) | ||
|---|---|---|---|---|
| Liquid Line | Gaseous Line | Fuel Gas | ||
| DN 25 and below | 30 | 30 | 30 | 40 |
| DN 32 to DN 100 | 50 | 40 | 30 | 40 |
| DN 125 and above | 80 | 60 | 30 | 40 |
| Material | Density (Kg/) | CAESAR-II Input (kg/) |
|---|---|---|
| Vapor natural gas | Insignificant | 0.00 |
| Liquid natural gas | 470 | 0.47 |
| Return components | 470 | 0.47 |
| Direction | Longitudinal Direction () | Transverse Direction () | Vertical Direction () | |
|---|---|---|---|---|
| Area | ||||
| Deck | 0.19 g | 0.72 g | 0.55 g | |
| Deformation | Loading | Deformation Ratio (mm/m) |
|---|---|---|
| Deck expansion | Hogging deformation | 0.81 on longitudinal direction |
| Solar radiation heating | 0.29 on transverse and longitudinal direction | |
| Deck Shrinkage | Sagging deformation | 0.70 on longitudinal direction |
| Solar radiation heating | 0.47 on transverse and longitudinal direction |
| Load Case | Loads |
|---|---|
| Sustained case | Acceleration (U), weight (WNC), pipe pressure (P) |
| Expansion case | Thermal deformation Forced displacement by hull bending and thermal deformation |
| Load Case | Loads |
|---|---|
| Operation case | Linear superposition of sustained cases and expansion cases Operation temperature (T1), max/min temperature cases (T2) |
| Load Case | Combined Loads | Stress Type | Code Stress (MPa) | Allowable Stress (MPa) | Ratio (%) | Node |
|---|---|---|---|---|---|---|
| L31 | WNC+P1 | SUS | 109.3 | 115.1 | 94.9 | 30 |
| L32 | WNC+P2 | SUS | 109.3 | 115.1 | 94.9 | 30 |
| L33 | WNC+P3 | SUS | 109.3 | 115.1 | 94.9 | 30 |
| L34 | WNC+P4 | SUS | 109.3 | 115.1 | 94.9 | 30 |
| L35 | WNC+P5 | SUS | 109.3 | 115.1 | 94.9 | 30 |
| L36 | WNC+P6 | SUS | 76.9 | 115.1 | 66.8 | 5760 |
| L37 | WNC+P7 | SUS | 76.9 | 115.1 | 66.8 | 5760 |
| L38 | WNC+P8 | SUS | 109.3 | 115.1 | 94.9 | 30 |
| L42 | L39+L40+L41 | SUS | 16.7 | 115.1 | 14.5 | 6330 |
| L43 | L31~33, L36~38 | SUS | 109.3 | 115.1 | 94.9 | 30 |
| L44 | L29+L43 | SUS | 109.3 | 115.1 | 94.9 | 30 |
| L45 | L30+L43 | SUS | 109.3 | 115.1 | 94.9 | 30 |
| L46 | L42+L43 | SUS | 111.2 | 115.1 | 96.6 | 30 |
| L47 | L1-L31 | EXP | 164.6 | 270.3 | 60.9 | 5259 |
| L48 | L2-L32 | EXP | 79.6 | 285 | 27.9 | 7869 |
| L49 | L3-L33 | EXP | 149.3 | 283.7 | 52.6 | 200 |
| L50 | L4-L34 | EXP | 176.5 | 283.7 | 62.2 | 200 |
| L51 | L5-L35 | EXP | 86.2 | 280.1 | 30.8 | 7259 |
| L52 | L6-L36 | EXP | 0.2 | 281.2 | 0.1 | 6580 |
| L53 | L7-L37 | EXP | 104.5 | 283.7 | 36.8 | 200 |
| L54 | L8-L38 | EXP | 164.6 | 270.3 | 60.9 | 5259 |
Publisher’s Note: MDPI stays neutral with regard to jurisdictional claims in published maps and institutional affiliations. |
© 2020 by the authors. Licensee MDPI, Basel, Switzerland. This article is an open access article distributed under the terms and conditions of the Creative Commons Attribution (CC BY) license (http://creativecommons.org/licenses/by/4.0/).
Share and Cite
Hwang, S.-Y.; Kim, M.-S.; Lee, J.-H. Thermal Stress Analysis of Process Piping System Installed on LNG Vessel Subject to Hull Design Loads. J. Mar. Sci. Eng. 2020, 8, 926. https://doi.org/10.3390/jmse8110926
Hwang S-Y, Kim M-S, Lee J-H. Thermal Stress Analysis of Process Piping System Installed on LNG Vessel Subject to Hull Design Loads. Journal of Marine Science and Engineering. 2020; 8(11):926. https://doi.org/10.3390/jmse8110926
Chicago/Turabian StyleHwang, Se-Yun, Min-Seok Kim, and Jang-Hyun Lee. 2020. "Thermal Stress Analysis of Process Piping System Installed on LNG Vessel Subject to Hull Design Loads" Journal of Marine Science and Engineering 8, no. 11: 926. https://doi.org/10.3390/jmse8110926
APA StyleHwang, S.-Y., Kim, M.-S., & Lee, J.-H. (2020). Thermal Stress Analysis of Process Piping System Installed on LNG Vessel Subject to Hull Design Loads. Journal of Marine Science and Engineering, 8(11), 926. https://doi.org/10.3390/jmse8110926

