Research on Collapse Testing of Nuclear Icebreaker Reactor Hull Structure Based on Distortion Similarity Theory
Abstract
1. Introduction
2. Distortion Similarity Theory
- (1)
- The determination of the concrete object for the dimensional extension is based on the results of a dimensional analysis of the physical quantities involved in the studied physical phenomena. Therefore, the extended dimension must meet this criterion: it should be expressible by the dimension of one or more physical quantities in the phenomenon.
- (2)
- The newly expanded dimension must be physically independent from the other fundamental dimensions.
- (3)
- Based on the fundamental characteristics of the physical parameters, the exponents of the extended dimension can be reasonably assigned and determined without destroying its homogeneity.
3. Test Model Design
3.1. Linear Similarity Principle
3.2. Nonlinear Similarity Method
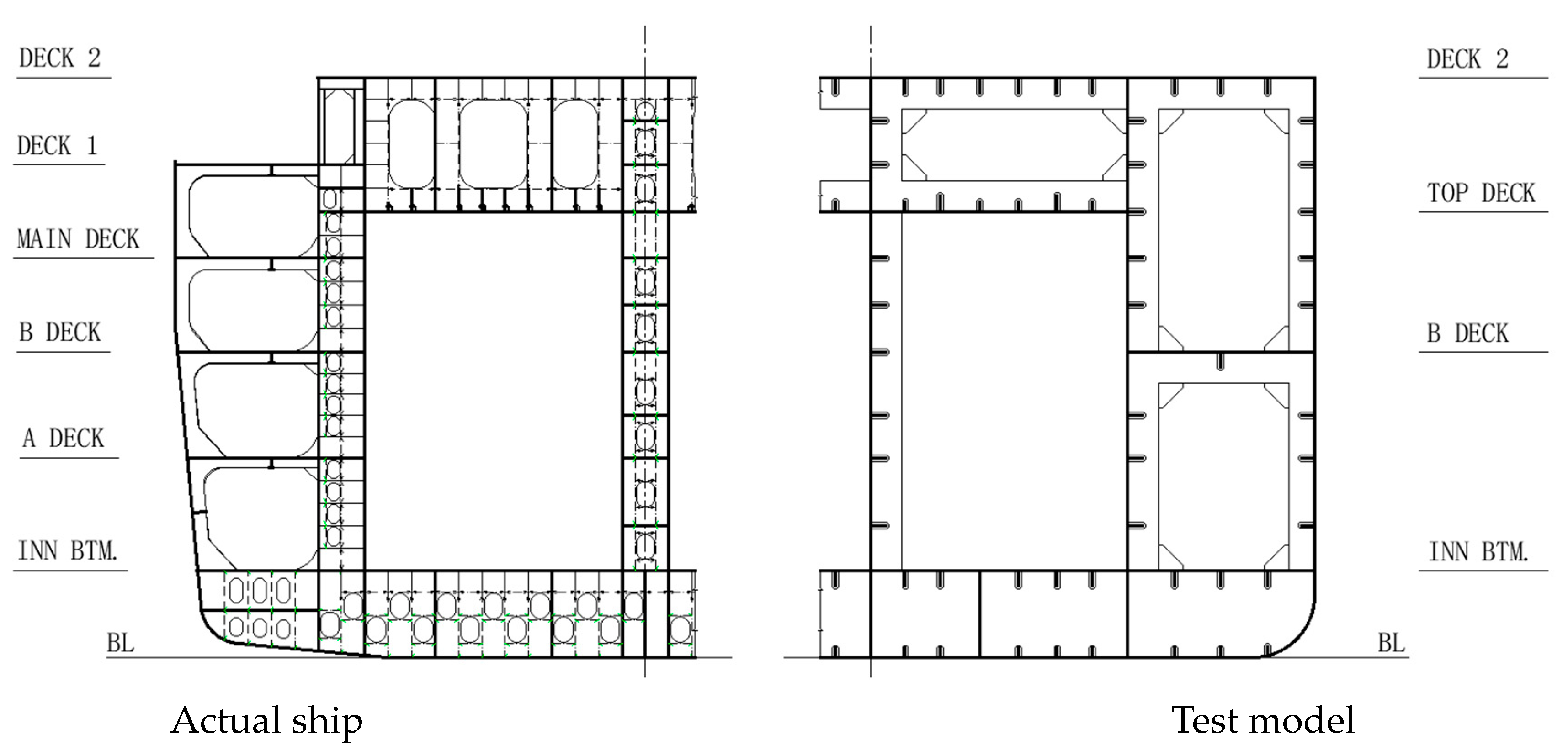
3.3. Design of Test Model
4. Collapse Model Test
4.1. Test Plan
4.2. Test Result
5. Ultimate Bending Moment of the Actual Ship
5.1. Result Predicted from the Model Test
5.2. Result Calculated by Nonlinear Finite Element Analysis
6. Conclusions
- (1)
- The distortion similarity theory and improved nonlinear similarity method are used to design the test model of the actual ship reactor hull structure. The cross-section properties of the test model and actual structure satisfy the similar ratio, which indicates that the test model is similar to the actual structure. The model design method adopted in this study is reasonable and reliable.
- (2)
- The collapse position, collapse situation and ultimate bending moment of the model test and test model finite element analysis are consistent. This verifies the accuracy of the finite element analysis results.
- (3)
- The collapse position and collapse situation of the model test and actual ship structure finite element analysis are consistent. The ultimate bending moment obtained by the model test is 1.10 × 1010 N·mm and transformed to the actual ship structure it is 6.59 × 1012 N·mm through the similarity transformation relationship. The ultimate bending moment of the actual ship obtained by finite element analysis is 7.45 × 1012 N·mm. The error between them is 11.5%. It is proved that the test model designed based on the distortion similarity theory and nonlinear similarity method can better predict the ultimate strength of the actual ship.
Author Contributions
Funding
Institutional Review Board Statement
Informed Consent Statement
Data Availability Statement
Conflicts of Interest
References
- Wang, D. Study on Structural Strength Evaluation Method of Containment Compartment of Nuclear Powered Icebreaker. Master’s Thesis, Dalian Maritime University, Dalian, China, 2022. (In Chinese). [Google Scholar]
- Wang, Q. Study on the Physical and Mechanical Engineering Parameters of Sea Ice during Melt Season for Arctic Passage. Ph.D. Thesis, Dalian University of Technology, Dalian, China, 2019. (In Chinese). [Google Scholar]
- Wu, S. Prospects for the Development of Nuclear Powered Icebreakers. Energy Environ. 2019, 4, 97–98. (In Chinese) [Google Scholar]
- Xu, J.; Qiu, J.; Song, F. Research on Conceptual Design of Nuclear-powered Icebreaker. Prog. Rep. China Nucl. Sci. Technol. 2009, 1, 72–76. (In Chinese) [Google Scholar]
- Cheng, R. Research on Nonlinear Similarity Method under Torsion Moment for Hull Structure. Master’s Thesis, Wuhan University of Technology, Wuhan, China, 2019. (In Chinese). [Google Scholar]
- Endo, H.; Tanaka, Y.; Aoki, G.; Inoue, H.; Yamamoto, Y. Longitudinal strength of the fore body of ships suffering from slamming. J. Soc. Nav. Archit. Jpn. 1988, 163, 322–333. [Google Scholar] [CrossRef]
- Yao, T.; Fujikubo, M.; Yanagihara, D.; Fujii, I.; Matsui, R.; Furui, N.; Kuwamura, Y. Buckling collapse strength of ship carrier under longitudinal bending (1st Report). J. Soc. Nav. Archit. Jpn. 2002, 191, 191–220. [Google Scholar]
- Yang, P. Research on Ultimate Strength of Ship Hulls and Residual Strength of Damaged Ships. Ph.D. Thesis, Wuhan University of Technology, Wuhan, China, 2005. (In Chinese). [Google Scholar]
- Gordo, J.; Soares, C. Experimental evaluation of the behavior of a mild steel box girder under bending moment. Ships Offshore Struct. 2008, 3, 347–358. [Google Scholar] [CrossRef]
- Gordo, J.; Soares, C. Tests on ultimate strength of hull box girders made of high tensile steel. Mar. Struct. 2009, 22, 770–790. [Google Scholar] [CrossRef]
- Shi, G.; Wang, D. Analysis of the Similar Model for Ultimate Strength Subjected to Combined Action of Bending and Torsion of a Container Ship. J. Shanghai Jiaotong Univ. 2010, 44, 782–786. (In Chinese) [Google Scholar]
- Xie, Z. Study on Design of Ultimate Strength Testing Cabin Model. Master’s Thesis, Shanghai Jiao Tong University, Shanghai, China, 2010. (In Chinese). [Google Scholar]
- Zhang, H. The Research of the Ultimate Strength Test Technology of Ship Structures. Master’s Thesis, Harbin Engineering University, Harbin, China, 2015. (In Chinese). [Google Scholar]
- Wang, Q.; Wang, D. Scaling characteristics of hull girder’s ultimate strength and failure behaviors: An empirically modified scaling criterion. Ocean. Eng. 2020, 212, 107595. [Google Scholar] [CrossRef]
- Zhang, S.; Khan, I. Buckling and ultimate capability of plates and stiffened panels in axial compression. Mar. Struct. 2009, 22, 791–808. [Google Scholar] [CrossRef]
- Zhou, F. Research on the Design Method of Hull Scaled Model in Ultimate Strength Test. Master’s Thesis, Wuhan University of Technology, Wuhan, China, 2014. (In Chinese). [Google Scholar]
- Pei, Z.; Wu, W. Ultimate strength research on river-sea-going ship with large hatch opening. In Proceedings of the International Offshore and Polar Engineering Conference, Busan, Republic of Korea, 15–20 June 2014; pp. 685–692. [Google Scholar]
- Garbatov, Y.; Saad-Eldeen, S.; Soares, C.G. Hull girder ultimate strength assessment based on experimental results and the dimensional theory. Eng. Struct. 2015, 100, 742–750. [Google Scholar] [CrossRef]
- Zhu, Z. Research on Nonlinear Similarity Criterion for Model Test of Ultimate Strength. Master’s Thesis, Wuhan University of Technology, Wuhan, China, 2017. (In Chinese). [Google Scholar]
- Cheng, R.; Pei, Z. Research on Nonlinear Similarity Method for Ultimate Strength Model Test. J. Wuhan Univ. Technol. Transp. Eng. 2020, 44, 195–200. (In Chinese) [Google Scholar]
- Araneda, J. Dimensional-directional analysis by a quaternionic representation of physical quantities. J. Frankl. Inst. 1996, 333, 113–126. [Google Scholar] [CrossRef]
- Pei, Z.; Yuan, Q.; Ao, L.; Wu, W. Research on the nonlinear similarity law on model collapse test of ship structures under combined bending and torsional moments. Ships Offshore Struct. 2023, 1–12. [Google Scholar] [CrossRef]












| Item | Actual Ship | Similar Transformation | Test Model | Error |
|---|---|---|---|---|
| Height of neutral axis (mm) | 8788.0 | 878.8 | 875.5 | 0.3% |
| Section area (mm2) | 7.60 × 106 | 1.27 × 105 | 1.24 × 105 | 2.2% |
| Moment of inertia (mm4) | 2.77 × 1014 | 4.62 × 1010 | 4.77 × 1010 | 3.2% |
| Position | Ux | Uy | Uz | θx | θy | θz |
|---|---|---|---|---|---|---|
| Bottom of the fore transverse bulkhead | 0 | 0 | 0 | 0 | - | 0 |
| Bottom of the end transverse bulkhead | - | 0 | 0 | 0 | - | 0 |
| Ultimate Strength | Predicted Result | Calculated Result | Error |
|---|---|---|---|
| Ultimate bending moment (N·mm) | 6.59 × 1012 | 7.45 × 1012 | 11.5% |
Disclaimer/Publisher’s Note: The statements, opinions and data contained in all publications are solely those of the individual author(s) and contributor(s) and not of MDPI and/or the editor(s). MDPI and/or the editor(s) disclaim responsibility for any injury to people or property resulting from any ideas, methods, instructions or products referred to in the content. |
© 2024 by the authors. Licensee MDPI, Basel, Switzerland. This article is an open access article distributed under the terms and conditions of the Creative Commons Attribution (CC BY) license (https://creativecommons.org/licenses/by/4.0/).
Share and Cite
Lin, Y.; Cheng, R.; Chen, L.; Kong, X.; Pei, Z. Research on Collapse Testing of Nuclear Icebreaker Reactor Hull Structure Based on Distortion Similarity Theory. J. Mar. Sci. Eng. 2024, 12, 1184. https://doi.org/10.3390/jmse12071184
Lin Y, Cheng R, Chen L, Kong X, Pei Z. Research on Collapse Testing of Nuclear Icebreaker Reactor Hull Structure Based on Distortion Similarity Theory. Journal of Marine Science and Engineering. 2024; 12(7):1184. https://doi.org/10.3390/jmse12071184
Chicago/Turabian StyleLin, Yi, Ruiqi Cheng, Lizhi Chen, Xiangshao Kong, and Zhiyong Pei. 2024. "Research on Collapse Testing of Nuclear Icebreaker Reactor Hull Structure Based on Distortion Similarity Theory" Journal of Marine Science and Engineering 12, no. 7: 1184. https://doi.org/10.3390/jmse12071184
APA StyleLin, Y., Cheng, R., Chen, L., Kong, X., & Pei, Z. (2024). Research on Collapse Testing of Nuclear Icebreaker Reactor Hull Structure Based on Distortion Similarity Theory. Journal of Marine Science and Engineering, 12(7), 1184. https://doi.org/10.3390/jmse12071184

