Robust Device-Free Intrusion Detection Using Physical Layer Information of WiFi Signals
Abstract
:Featured Application
Abstract
1. Introduction
- We propose RDFID, a novel device-free WiFi-based intrusion detection approach, which can detect intruders with different moving patterns at a high accuracy, and needs no re-calibration in different scenarios. It can be deployed in smart home scenarios to ensure security.
- We extract real-time features from CSIs in frequency domain, which is more sensitive to human motion of various moving patterns.
- We use the Gaussian Mixture Model (GMM) as the classifier based on the observation that the feature values under different moving patterns and different environments can be seen to be generated by different Gaussian Models.
2. Related Work
3. Preliminary
4. System Design
4.1. System Overview
4.2. Pre-Processing
4.3. Feature Extraction
4.4. Training and Classification
5. Evaluation
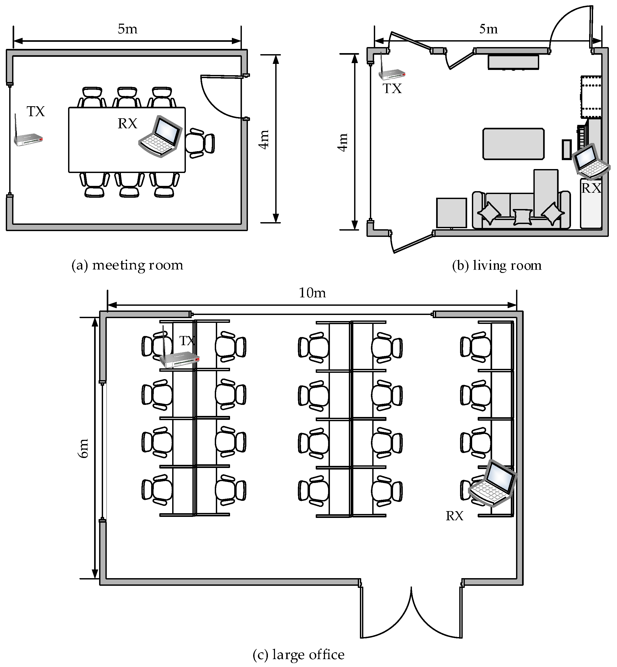
5.1. Experiment Setup
5.2. Performance Evaluation
5.2.1. Intrusion Detection in Different Scenarios
5.2.2. Intrusion Detection among Different People
5.2.3. Intrusion Detection with Different Window Sizes
5.2.4. Intrusion Detection with Different Moving Patterns
5.2.5. Intrusion Detection under Different Moving Speeds
6. Discussion
7. Conclusions
Author Contributions
Funding
Conflicts of Interest
References
- Youssef, M.; Mah, M.; Agrawala, A. Challenges: Device-free passive localization for wireless environments. In Proceedings of the 13th annual ACM international conference on Mobile computing and networking, Montreal, QC, Canada, 9–14 September 2007; pp. 222–229. [Google Scholar]
- Du, X.; Chen, H. Security in wireless sensor networks. IEEE Wirel. Commun. 2008, 15, 60–66. [Google Scholar]
- Du, X.; Guizani, M.; Xiao, Y.; Chen, H. A routing-driven elliptic curve cryptography based key management scheme for heterogeneous sensor networks. IEEE Trans. Wirel. Commun. 2009, 8, 1223–1229. [Google Scholar] [CrossRef]
- Du, X.; Xiao, Y.; Guizani, M.; Chen, H.-H. An effective key management scheme for heterogeneous sensor networks. Ad Hoc Netw. 2007, 5, 24–34. [Google Scholar] [CrossRef]
- Lv, J.; Yang, W.; Gong, L.; Man, D.; Du, X. Robust wlan-based indoor fine-grained intrusion detection. In Proceedings of the 2016 IEEE Global Communications Conference (GLOBECOM), Washington, DC, USA, 4–8 December 2016; pp. 1–6. [Google Scholar]
- Gong, L.; Yang, W.; Man, D.; Lv, J. Ipil: Improving passive indoor localisation via link-based csi features. Int. J. Ad Hoc Ubiquitous Comput. 2016, 23, 36–45. [Google Scholar] [CrossRef]
- Lv, J.; Yang, W.; Man, D. Device-free passive identity identification via wifi signals. Sensors 2017, 17, 2520. [Google Scholar] [CrossRef] [PubMed]
- Xiao, Y.; Rayi, V.K.; Sun, B.; Du, X.; Hu, F.; Galloway, M. A survey of key management schemes in wireless sensor networks. Comput. Commun. 2007, 30, 2314–2341. [Google Scholar] [CrossRef]
- Guan, Z.; Li, J.; Wu, L.; Zhang, Y.; Wu, J.; Du, X. Achieving efficient and secure data acquisition for cloud-supported internet of things in smart grid. IEEE Internet Things J. 2017, 4, 1934–1944. [Google Scholar] [CrossRef]
- Moussa, M.; Youssef, M. Smart devices for smart environments: Device-free passive detection in real environments. In Proceedings of the IEEE International Conference on Pervasive Computing and Communications, PerCom 2009, Galveston, TX, USA, 9–13 March 2009; pp. 1–6. [Google Scholar]
- Liu, W.; Gao, X.; Wang, L.; Wang, D. Bfp: Behavior-free passive motion detection using phy information. Wirel. Pers. Commun. 2015, 83, 1035–1055. [Google Scholar] [CrossRef]
- Al-qaness, M.A.A.; Li, F.; Ma, X.; Liu, G. Device-free home intruder detection and alarm system using wi-fi channel state information. Int. J. Future Comput. Commun. 2016, 5, 180. [Google Scholar] [CrossRef]
- Li, S.; Li, X.; Niu, K.; Wang, H.; Zhang, Y.; Zhang, D. Ar-alarm: An adaptive and robust intrusion detection system leveraging csi from commodity wi-fi. In Enhanced quality of life and smart living: Proceedings of the 15th international conference, icost 2017, Paris, France, 29–31 August 2017; Mokhtari, M., Abdulrazak, B., Aloulou, H., Eds.; Springer International Publishing: Cham, Germany, 2017; pp. 211–223. [Google Scholar]
- Halperin, D.; Hu, W.; Sheth, A.; Wetherall, D. Tool release: Gathering 802.11n traces with channel state information. ACM SIGCOMM Comput. Commun. Rev. 2011, 41, 53. [Google Scholar] [CrossRef]
- Seifeldin, M.; Saeed, A.; Kosba, A.E.; El-Keyi, A.; Youssef, M. Nuzzer: A large-scale device-free passive localization system for wireless environments. IEEE. Trans. Mob. Comput. 2013, 12, 1321–1334. [Google Scholar] [CrossRef]
- Zheng, X.; Yang, J.; Chen, Y.; Xiong, H. An adaptive framework coping with dynamic target speed for device-free passive localization. IEEE. Trans. Mob. Comput. 2015, 14, 1138–1150. [Google Scholar] [CrossRef]
- Wilson, J.; Patwari, N. Radio tomographic imaging with wireless networks. IEEE. Trans. Mob. Comput. 2010, 9, 621–632. [Google Scholar] [CrossRef]
- Zhao, Y.; Patwari, N.; Phillips, J.M.; Venkatasubramanian, S. Radio tomographic imaging and tracking of stationary and moving people via kernel distance. In Proceedings of the 12th International Conference on Information Processing in Sensor Networks, Philadelphia, PA, USA, 8–11 April 2013; pp. 229–240. [Google Scholar]
- Wei, B.; Varshney, A.; Patwari, N.; Hu, W.; Voigt, T.; Chou, C.T. Drti: Directional radio tomographic imaging. In Proceedings of the 14th International Conference on Information Processing in Sensor Networks, Seattle, WA, USA, 14–16 April 2015; pp. 166–177. [Google Scholar]
- Yang, Z.; Zhou, Z.; Liu, Y. From rssi to csi: Indoor localization via channel response. ACM Comput. Surv. 2013, 46, 1–32. [Google Scholar] [CrossRef]
- Jiang, X.; Kaishun, W.; Youwen, Y.; Lu, W.; Ni, L.M. Fimd: Fine-grained device-free motion detection. In Proceedings of the 2012 IEEE 18th International Conference on Parallel and Distributed Systems, Singapore, 17–19 December 2012; pp. 229–235. [Google Scholar]
- Kaishun, W.; Jiang, X.; Youwen, Y.; Dihu, C.; Xiaonan, L.; Ni, L.M. Csi-based indoor localization. IEEE Trans. Parallel Distrib. Syst. 2013, 24, 1300–1309. [Google Scholar]
- Kaishun, W.; Xiao, J.; Youwen, Y.; Min, G.; Ni, L.M. Fila: Fine-grained indoor localization. In Proceedings of the 2012 Proceedings IEEE INFOCOM, Orlando, FL, USA, 25–30 March 2012; pp. 2210–2218. [Google Scholar]
- Qian, K.; Wu, C.; Yang, Z.; Liu, Y.; Zhou, Z. Pads: Passive detection of moving targets with dynamic speed using phy layer information. In Proceedings of the 2014 20th IEEE International Conference on Parallel and Distributed Systems (ICPADS), Hsinchu, Taiwan, 16–19 December 2014; pp. 1–8. [Google Scholar]
- Gong, L.; Man, D.; Lv, J.; Shen, G.; Yang, W. Frid: Indoor fine-grained real-time passive human motion detection. In Proceedings of the 2015 IEEE 12th International Conference on Ubiquitous Intelligence and Computing and 2015 IEEE 12th International Conference on Autonomic and Trusted Computing and 2015 IEEE 15th International Conference on Scalable Computing and Communications and Its Associated Workshops (UIC-ATC-ScalCom), 10–14 August 2015; pp. 308–311. [Google Scholar]
- Gong, L.; Yang, W.; Man, D.; Dong, G.; Yu, M.; Lv, J. Wifi-based real-time calibration-free passive human motion detection. Sensors 2015, 15, 32213–32229. [Google Scholar] [CrossRef] [PubMed]
- Zimu, Z.; Zheng, Y.; Chenshu, W.; Longfei, S.; Yunhao, L. Omnidirectional coverage for device-free passive human detection. IEEE Trans. Parallel Distrib. Syst. 2014, 25, 1819–1829. [Google Scholar]
- Abdel-Nasser, H.; Samir, R.; Sabek, I.; Youssef, M. Monophy: Mono-stream-based device-free wlan localization via physical layer information. In Proceedings of the 2013 IEEE Wireless Communications and Networking Conference (WCNC), Shanghai, China, 7–10 April 2013; pp. 4546–4551. [Google Scholar]
- Chapre, Y.; Ignjatovic, A.; Seneviratne, A.; Jha, S. Csi-mimo: An efficient wi–fi fingerprinting using channel state information with mimo. Pervasive Mob. Comput. 2015, 23, 89–103. [Google Scholar] [CrossRef]
- Kotaru, M.; Joshi, K.; Bharadia, D.; Katti, S. Spotfi: Decimeter level localization using wifi. In Proceedings of the SIGCOMM 2015, London, UK, 17–21 August 2015; pp. 269–282. [Google Scholar]
- Yang, W.; Gong, L.; Man, D.; Lv, J.; Cai, H.; Zhou, X.; Yang, Z. Enhancing the performance of indoor device-free passive localization. Int. J. Distrib. Sens. Netw. 2015, 11, 256162. [Google Scholar] [CrossRef]
- Wang, X.; Gao, L.; Mao, S. Csi phase fingerprinting for indoor localization with a deep learning approach. IEEE Internet Things J. 2016, 3, 1113–1123. [Google Scholar] [CrossRef]
- Zhou, R.; Lu, X.; Zhao, P.; Chen, J. Device-free presence detection and localization with svm and csi fingerprinting. IEEE Sens. J. 2017, 17, 7990–7999. [Google Scholar] [CrossRef]
- Wang, W.; Liu, A.X.; Shahzad, M.; Ling, K.; Lu, S. Understanding and modeling of wifi signal based human activity recognition. In Proceedings of the 21st Annual International Conference on Mobile Computing and Networking, Paris, France, 7–11 September 2015; pp. 65–76. [Google Scholar]
- Cao, X.; Chen, B.; Zhao, Y. Wi-play: Robust human activity recognition for somatosensory game using wi-fi signals. In Cloud Computing and Security: Second International Conference, ICCCS 2016, Nanjing, China, 29–31 July 2016; Sun, X., Liu, A., Chao, H.-C., Bertino, E., Eds.; Springer International Publishing: Cham, Germany, 2016; pp. 205–216. [Google Scholar]
- Al-qaness, M.A.A.; Li, F. Wiger: Wifi-based gesture recognition system. ISPRS Int. Geo-Inf. 2016, 5, 92. [Google Scholar] [CrossRef]
- Zheng, X.; Wang, J.; Shangguan, L.; Zhou, Z.; Liu, Y. Smokey: Ubiquitous smoking detection with commercial wifi infrastructures. In Proceedings of the IEEE INFOCOM 2016—The 35th Annual IEEE International Conference on Computer Communications, San Francisco, CA, USA, 10–14 April 2016; pp. 1–9. [Google Scholar]
- Arshad, S.; Feng, C.; Liu, Y.; Hu, Y.; Yu, R.; Zhou, S.; Li, H. Wi-chase: A wifi based human activity recognition system for sensorless environments. In Proceedings of the 2017 IEEE 18th International Symposium on A World of Wireless, Mobile and Multimedia Networks (WoWMoM), Macau, China, 12–15 June 2017; pp. 1–6. [Google Scholar]
- Wang, W.; Liu, A.X.; Shahzad, M. Gait recognition using wifi signals. In Proceedings of the 2016 ACM International Joint Conference on Pervasive and Ubiquitous Computing, Heidelberg, Germany, 12–16 September 2016; pp. 363–373. [Google Scholar]
- Zeng, Y.; Pathak, P.H.; Mohapatra, P. Wiwho: Wifi-based person identification in smart spaces. In Proceedings of the 15th International Conference on Information Processing in Sensor Networks, Vienna, Austria, 11–14 April 2016; pp. 1–12. [Google Scholar]
- Xin, T.; Guo, B.; Wang, Z.; Li, M.; Yu, Z.; Zhou, X. Freesense: Indoor human identification with wi-fi signals. In Proceedings of the 2016 IEEE Global Communications Conference (GLOBECOM), Washington, DC, USA, 4–8 December 2016; pp. 1–7. [Google Scholar]
- Daubechies, I. Ten Lectures on Wavelets; SIAM: Philadelphia, PA, USA, 1992. [Google Scholar]












| Volunteers | Gender | Height (cm) | Weight (kg) | Age |
|---|---|---|---|---|
| 1 | male | 174 | 63 | 30 |
| 2 | male | 175 | 70 | 27 |
| 3 | male | 170 | 62 | 27 |
| 4 | female | 163 | 51 | 26 |
| FN | FP | |||||||||||
|---|---|---|---|---|---|---|---|---|---|---|---|---|
| Training Set | a | b | c | ab | ac | bc | a | b | c | ab | ac | bc |
| RDFID | 2.5 | 2.3 | 2.4 | 2.4 | 2.6 | 2.5 | 1.7 | 2.2 | 2.1 | 2.2 | 2.1 | 1.9 |
| FRID | 4.8 | 5.8 | 4.4 | 4.3 | 5.7 | 5.2 | 8.5 | 8.2 | 8.7 | 8.7 | 8.2 | 8.6 |
| PADS | 6.0 | 6.7 | 6.2 | 6.1 | 6.8 | 5.8 | 10.8 | 10.2 | 10.5 | 11.8 | 11.0 | 10.6 |
| FN | FP | |||||||
|---|---|---|---|---|---|---|---|---|
| Volunteer | 1 | 2 | 3 | 4 | 1 | 2 | 3 | 4 |
| RDFID | 2.1 | 2.9 | 3.3 | 2.8 | 1.7 | 1.8 | 1.8 | 2 |
| PADS | 1.9 | 7.3 | 9.1 | 7.4 | 2.4 | 8.8 | 8.5 | 9.8 |
| FN | FP | |||||||||
|---|---|---|---|---|---|---|---|---|---|---|
| Window Size (s) | 1 | 2 | 3 | 4 | 5 | 1 | 2 | 3 | 4 | 5 |
| RDFID | 11.7 | 5.2 | 4.6 | 3 | 2.1 | 2.1 | 2.3 | 1.7 | 1.8 | 1.7 |
| FRID | 9.8 | 7.4 | 5.6 | 4.9 | 4.4 | 7 | 7.6 | 6.8 | 7.2 | 7.3 |
| PADS | 6.3 | 4.6 | 4.6 | 3.8 | 3.2 | 3.5 | 3.8 | 3.5 | 4 | 3.3 |
| FN | FP | |||||
|---|---|---|---|---|---|---|
| Moving Pattern | Regular Walking | Bending Down | Creeping | Regular Walking | Bending Down | Creeping |
| RDFID | 2.3 | 2.5 | 2.6 | 1.7 | 1.7 | 1.5 |
| FRID | 4.8 | 5.2 | 9.8 | 7.8 | 6.2 | 3.6 |
| PADS | 4.3 | 4.8 | 6.4 | 4.3 | 4.1 | 2.8 |
| FIMD | 5.4 | 5.7 | 12.5 | 6.8 | 6.4 | 4.8 |
| FN | FP | |||||
|---|---|---|---|---|---|---|
| Moving Speed (m/s) | 1.5 | 0.7 | 0.2 | 1.5 | 0.7 | 0.2 |
| RDFID | 1.2 | 1.8 | 3.4 | 1.2 | 1.2 | 0.9 |
| FRID | 2.1 | 3 | 4.2 | 2.1 | 2.3 | 1.8 |
| PADS | 2.2 | 3.3 | 5.7 | 3.3 | 2.3 | 1.2 |
© 2019 by the authors. Licensee MDPI, Basel, Switzerland. This article is an open access article distributed under the terms and conditions of the Creative Commons Attribution (CC BY) license (http://creativecommons.org/licenses/by/4.0/).
Share and Cite
Lv, J.; Man, D.; Yang, W.; Gong, L.; Du, X.; Yu, M. Robust Device-Free Intrusion Detection Using Physical Layer Information of WiFi Signals. Appl. Sci. 2019, 9, 175. https://doi.org/10.3390/app9010175
Lv J, Man D, Yang W, Gong L, Du X, Yu M. Robust Device-Free Intrusion Detection Using Physical Layer Information of WiFi Signals. Applied Sciences. 2019; 9(1):175. https://doi.org/10.3390/app9010175
Chicago/Turabian StyleLv, Jiguang, Dapeng Man, Wu Yang, Liangyi Gong, Xiaojiang Du, and Miao Yu. 2019. "Robust Device-Free Intrusion Detection Using Physical Layer Information of WiFi Signals" Applied Sciences 9, no. 1: 175. https://doi.org/10.3390/app9010175
APA StyleLv, J., Man, D., Yang, W., Gong, L., Du, X., & Yu, M. (2019). Robust Device-Free Intrusion Detection Using Physical Layer Information of WiFi Signals. Applied Sciences, 9(1), 175. https://doi.org/10.3390/app9010175

