Field Monitoring and Analysis of Factors Influencing Existing Tunnels Laterally Adjacent to Foundation Pit Excavations
Abstract
1. Introduction
2. Project Profile
2.1. Introduction
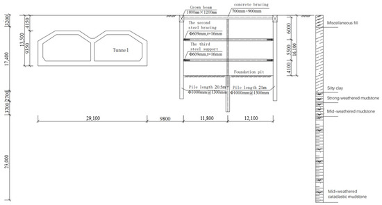
2.2. Tunnel Monitoring Information
2.3. Engineering Measured Data
3. Numerical Simulation
3.1. Modeling
3.2. Selection of Calculation Parameters
3.3. Simulation of the Foundation Pit Excavation Process
3.4. Model Verification
4. Analysis of Influencing Factors
4.1. Influence of the Excavation Depth of the Foundation Pit
4.1.1. Tunnel Horizontal Displacement
4.1.2. Tunnel Vertical Displacement
4.1.3. Tunnel Structural Stress
4.2. Influence of the Horizontal Spacing Between the Foundation Pit and Tunnel
4.2.1. Tunnel Horizontal Displacement
4.2.2. Tunnel Vertical Displacement
4.2.3. Tunnel Structural Stress
4.3. Influence of the Supporting Pile Wall Size
4.3.1. Tunnel Horizontal Displacement
4.3.2. Tunnel Vertical Displacement
4.3.3. Tunnel Structural Stress
4.4. Effect of the Support Structure Insertion Ratio
4.4.1. Tunnel Horizontal Displacement
4.4.2. Tunnel Vertical Displacement
4.4.3. Tunnel Structural Stress
4.5. Influence of the Horizontal Bearing Stiffness
4.5.1. Tunnel Horizontal Displacement
4.5.2. Tunnel Vertical Displacement
4.5.3. Tunnel Structural Stress
4.6. The Influence of Different Formation Conditions
4.6.1. Tunnel Horizontal Displacement
4.6.2. Tunnel Vertical Displacement
4.6.3. Tunnel Structural Stress
5. Conclusions
- Concerning the impact of excavation depth on the tunnel structure, the greatest influence is observed on the vertical displacement, followed by horizontal displacement, with the smallest impact seen on structural stress. There is an obvious linear relationship between the stress and deformation of the tunnel structure and the excavation depth. Greater excavation depth corresponds to increased stress and deformation of the tunnel. In the case of a tunnel situated in a silty clay stratum, the excavation depth of the laterally adjacent foundation pit should be limited to within 20 m to ensure that tunnel deformation resulting from excavation adheres to the deformation control standard outlined in the existing specifications.
- Stress and deformation of the tunnel structure decrease exponentially with increasing horizontal spacing. The variation in horizontal spacing of the tunnel exerts the most important influence on vertical displacement, followed by horizontal displacement, with structural stress being least affected. If the distance is less than 1.5 H, the tunnel is significantly impacted by the excavation of the laterally adjacent foundation pit.
- The degree of influence of the support system’s stiffness on the tunnel’s horizontal displacement follow the order of insertion ratio > horizontal bearing stiffness > support pile wall size. The degree of influence of the factors influencing the tunnel’s vertical displacement follow the order of horizontal bearing stiffness > support pile wall size > insertion ratio. The degree of influence of the factors influencing the tunnel structure stress follow the order of horizontal bearing stiffness > insertion ratio > support pile wall size. In summary, the change in the horizontal bearing stiffness has the greatest influence on the tunnel, followed by the change in the insertion ratio, and the change in the supporting pile wall size has the least influence. Therefore, in future similar projects, priority should be placed on enhancing the stiffness of horizontal supports, potentially through augmenting their number.
- Among the effects of ground types on the deformation and stress of the tunnel structure during foundation excavation, muddy-silty clay and silty soils have the greatest degree of influence on the tunnel in question. The results can be used as a reference for strata with similar soil parameters.
Author Contributions
Funding
Institutional Review Board Statement
Informed Consent Statement
Data Availability Statement
Conflicts of Interest
References
- Zhao, Y.; Li, B.; Gu, X.; Pan, J. Development history, present situation, and future conception of urban underground space in Shenzhen. Tunn. Constr. 2024, 44, 433. [Google Scholar]
- Gao, A.; Liu, Y.; Lu, C. Current status and development of urban underground space standards at home and abroad. Geol. Explor. 2024, 60, 0001–0008. [Google Scholar]
- Hou, Z. The influence and safety analysis of foundation pit unloading at the bottom of high-speed bridge. Guangdong Civ. Archit. 2023, 30, 87–91. [Google Scholar]
- Wu, Z.; Zou, S. A static risk assessment model for underwater shield tunnel construction. Sādhanā 2020, 45, 91–96. [Google Scholar] [CrossRef]
- Wang, S.; You, G.; Liu, N.; Zhang, Y.; Yu, C. Analysis of Influence on the Super-Large-Diameter Shield Tunnel by Stockpile Unloading. IOP Conf. Ser. Earth Environ. Sci. 2021, 791, 012028. [Google Scholar] [CrossRef]
- Jiang, L.; Hao, S. Resilience Evaluation of the Existing Shield Tunnel Lining Induced by the Symmetrical Excavation of Adjacent Foundation Pit Based on Numerical Simulations. Symmetry 2022, 14, 229. [Google Scholar] [CrossRef]
- Yi, S.; Ke, W.; Huang, X.; Xiao, M.; Chen, J.; Huang, J. Simulating the effects of braced excavation on the adjacent tunnel using numerical method. J. Phys. Conf. Ser. 2020, 1654, 012121. [Google Scholar] [CrossRef]
- Mu, L.; Zhang, P.; Shi, Z.; Zhu, M.; Gu, Z. Predicting longitudinal tunnel deformation due to deep excavation-induced ground movement. Tunn. Undergr. Space Technol. 2023, 131, 104793. [Google Scholar] [CrossRef]
- Zhao, Y.; Chen, X.; Hu, B.; Huang, L.; Li, W.; Fan, J. Evolution of tunnel uplift and deformation induced by an upper and collinear excavation: A case study from Shenzhen metro. Transp. Geotech. 2023, 39, 100953. [Google Scholar] [CrossRef]
- Ye, Z.; Ye, Y.; Zhang, C.; Zhang, Z.; Li, W.; Wang, X.; Wang, L.; Wang, L. A digital twin approach for tunnel construction safety early warning and management. Comput. Ind. 2023, 144, 103783. [Google Scholar] [CrossRef]
- Halabian, M.A.; Niknam, K. Numerical Simulation of Tieback Excavations with Soldier Piles Using a New Unified Soil Model Considering at Rest Condition. Geotech. Geol. Eng. Int. J. 2020, 38, 109–136. [Google Scholar] [CrossRef]
- Tao, H.; Ye, S.; Zhang, S. Monitoring and numerical simulation analysis of a pit-in-pit excavation of the first branch line of Lanzhou Metro. Appl. Rheol. 2023, 33, 20230111. [Google Scholar] [CrossRef]
- Zhang, Y.; Yi, L.; Zhang, L.; Yang, Y.; Hao, X.; Li, H.; Ma, H. Causation Identification and Control Measures of Deformation by Integrated Dewatering-Excavation Process Simulation of a T-Shaped Deep Foundation Pit. Water 2022, 14, 535. [Google Scholar] [CrossRef]
- Zhuang, Y.; Cui, X.; Hu, S. Numerical simulation and simplified analytical method to evaluate the displacement of adjacent tunnels caused by excavation. Tunn. Undergr. Space Technol. Inc. Trenchless Technol. Res. 2023, 132, 104879. [Google Scholar] [CrossRef]
- Wang, T.; Deng, T.; Deng, Y.; Yu, X.; Zou, P.; Deng, Z. Numerical Simulation of Deep Excavation Considering Strain-Dependent Behavior of Soil: A Case Study of Tangluo Street Station of Nanjing Metro. Int. J. Civ. Eng. 2022, 21, 541–550. [Google Scholar] [CrossRef]
- Song, Z.; Wu, Y.; Zhang, Y.; Wang, K.; Tian, J.; Tian, X. Deformation Response of a Pipeline to Nearby Deep Foundation Pit Excavation: Numerical Simulations and Field Tests. Appl. Sci. 2023, 13, 6597. [Google Scholar] [CrossRef]
- Halicka, A.; Zięba, J. Influence of the subsoil model on the safety and eco-efficiency of reinforced concrete structure of rectangular liquid tank founded beneath the terrain surface. Eng. Struct. 2024, 303, 117571. [Google Scholar] [CrossRef]
- Wang, M.; Ye, X.-W.; Jia, J.-D.; Ying, X.-H.; Ding, Y.; Zhang, D.; Sun, F. Confining Pressure Forecasting of Shield Tunnel Lining Based on GRU Model and RNN Model. Sensors 2024, 24, 866. [Google Scholar] [CrossRef] [PubMed]
- Zhang, L.; Zhou, X.; Zhu, J. Statistical correlation between HSS model parameters and the method of parameter valuation. IOP Conf. Ser. Earth Environ. Sci. 2024, 1330, 012023. [Google Scholar] [CrossRef]
- Wei, G.; Zhang, X.; Lin, X.; Hua, X. Research on lateral force change of side shield tunnel caused by foundation pit excavation. Geotech. Mech. 2020, 41, 635–644+654. [Google Scholar]
- Bai, X.; Zhang, H.; Wang, Q.; Zhao, K.; Lu, Q.; Zhuang, H.; Chen, G. A nonlinear cyclic constitutive model for soils considering pore-water-soil-skeleton coupling effects and its numerical realization in 3D stress space. Chin. J. Geotech. Eng. 2023, 45, 2634–2640. [Google Scholar]
- Zhong, J.; Gong, C.; Xiong, J.; Liao, H.; Liao, L.; Zhang, W.; Chang, P. Three-dimensional stability of excavation face of water rich shield tunnel considering seepage effect and nonlinear failure criterion. J. Cent. South Univ. 2023, 54, 1033–1043. [Google Scholar]
- Zhang, Z.; Jiang, K.; Wang, Z.; Xing, L.; Wei, G.; Ding, Z. Theoretical analysis of longitudinal deformation of existing tunnels induced by foundation pit excavation considering Pasternak foundation model. Tunn. Constr. 2020, 40, 57–67. [Google Scholar]
- Qiu, Y.; Wang, J.; Zhang, C.; Hua, L.; Zhou, Z. Numerical Simulation Study on the Impact of Excavation on Existing Subway Stations Based on BIM-FEM Framework. Buildings 2024, 14, 1444. [Google Scholar] [CrossRef]
- Chen, T.; Xu, G.; Cong, Y. Surface Settlement of Shallow Shield Tunneling: Face Pressure, Tail-Void Grouting Pressure, and Grout Volume. Int. J. Geomech. 2024, 24. [Google Scholar] [CrossRef]
- Zhang, K.; Zhang, Z.; Chen, H.; Hu, Z. Experimental investigation on rheological properties and diffusion-related performance of clay shock slurry for excavation gap filling during shield tunnelling. Tunn. Undergr. Space Technol. Inc. Trenchless Technol. Res. 2024, 146, 105660. [Google Scholar] [CrossRef]
- Cao, L.; Chen, X.; Lu, D.; Zhang, D.; Su, D. Theoretical prediction of ground settlements due to shield tunneling in multi-layered soils considering process parameters. Undergr. Space 2024, 16, 29–43. [Google Scholar] [CrossRef]
- Liu, W.; Liang, J.; Xu, T. Tunnelling-induced ground deformation subjected to the behavior of tail grouting materials. Tunn. Undergr. Space Technol. 2023, 140, 105253. [Google Scholar] [CrossRef]
- Xie, X.; Yang, Y.; Ji, M. Analysis of ground surface settlement induced by the construction of a large-diameter shield-driven tunnel in Shanghai, China. Tunn. Undergr. Space Technol. 2016, 51, 120–132. [Google Scholar] [CrossRef]
- Zhang, C.; Zhang, X.; Fang, Q. Behaviors of existing twin subway tunnels due to new subway station excavation below in close vicinity. Tunn. Undergr. Space Technol. 2018, 81, 121–128. [Google Scholar] [CrossRef]
- Zhang, X.; Luo, B.; Xu, Y.; Zhao, C. Case study of performance assessment of overlapping shield tunnels with a small curve radius. Deep. Undergr. Sci. Eng. 2024, 3, 481–496. [Google Scholar] [CrossRef]
- Feng, L. Study on the Influence of Foundation Pit Excavation on the Deformation of Lateral Subway Shield Tunnel and Its Control Measures. Master’s Thesis, South China University of Technology, Guangzhou, China, 2014. [Google Scholar]
- Yang, C. Study on the Influence of Foundation Pit Excavation on Adjacent Existing Subway Tunnels. Master’s Thesis, Southeast University, Nanjing, China, 2017. [Google Scholar]
- Fan, J. Research on the Influence of Deep Foundation Pit Excavation on Adjacent Subway Tunnels and Stations. Master’s Thesis, Guangzhou University, Guangzhou, China, 2019. [Google Scholar]
- Li, F. Study on the Impact of Subway Construction on the Surrounding Environment Under Complex and Sensitive Geological Conditions in Jiangmantan; Institute of Engineering Mechanics, China Earthquake Administration: Harbin, China, 2018. [Google Scholar]
- Xu, H.; Cui, W.; Hu, W. Analysis of deformation characteristics of deep foundation pit of subway station in Nanjing area. J. Disaster Prev. Mitig. Eng. 2018, 38, 599–607. [Google Scholar]
- Chen, R.; Meng, F.; Li, Z.; Ye, Y.; Hu, Q. Excessive displacement and protection measures of subway tunnel adjacent to deep foundation pit. J. Zhejiang Univ. 2016, 50, 856–863. [Google Scholar]
- Wei, S. Numerical and Centrifugal Experimental Study on the Influence of Foundation Pit Excavation on the Existing Tunnel at the Bottom of the Pit. Ph.D. Thesis, Tianjin University, Tianjin, China, 2010. [Google Scholar]






















| Monitoring Projects | Warning Value | Control Value |
|---|---|---|
| horizontal displacement | Accumulated deformation up to 4 mm or deformation rate over 1.0 mm/day | 5 mm |
| vertical displacement | Accumulated deformation up to 4 mm or deformation rate over 1.0 mm/day | 5 mm |
| differential settlement of structural joints | Accumulated deformation up to 3 mm or deformation rate over 1.0 mm/day | 4 mm |
| fissures | 2 mm | / |
| Name | Gravity | Poisson’s Ratio | Compressive Modulus | Elastic Modulus | Cohesion | Internal Friction Angle |
|---|---|---|---|---|---|---|
| γ/(KN/m3) | μ | ES0.1–0.2/(MPa) | E/MPa | C/kPa | φ/° | |
| Miscellaneous fill | 18.5 | 0.2 | 4.8 | 10 | 7.8 | 15 |
| Silty clay | 19.4 | 0.28 | 7.8 | 19.5 | 26 | 19.1 |
| Strong weathered mudstone | 21 | 0.26 | - | 70 | 40 | 28 |
| Mid-weathered mudstone | 25.2 | 0.12 | - | 6400 | 170 | 36 |
| Mid-weathered cataclastic mudstone | 24.5 | 0.15 | - | 3500 | 90 | 35 |
| Name | Gravity γ (kN/m3) | Elastic Modulus E (MPa) | Poisson’s Ratio μ |
|---|---|---|---|
| Equivalent ground wall | 25 | 31,500 | 0.2 |
| Concrete bracing | 25 | 31,500 | 0.2 |
| Steel bracing | 78.5 | 206,000 | 0.3 |
| Lattice column | 78.5 | 206,000 | 0.3 |
| Erect column pile | 25 | 31,500 | 0.2 |
Disclaimer/Publisher’s Note: The statements, opinions and data contained in all publications are solely those of the individual author(s) and contributor(s) and not of MDPI and/or the editor(s). MDPI and/or the editor(s) disclaim responsibility for any injury to people or property resulting from any ideas, methods, instructions or products referred to in the content. |
© 2025 by the authors. Licensee MDPI, Basel, Switzerland. This article is an open access article distributed under the terms and conditions of the Creative Commons Attribution (CC BY) license (https://creativecommons.org/licenses/by/4.0/).
Share and Cite
Chen, H.; Wang, Z.; Zhang, J.; Wang, Z.; Peng, P.; Feng, T. Field Monitoring and Analysis of Factors Influencing Existing Tunnels Laterally Adjacent to Foundation Pit Excavations. Appl. Sci. 2025, 15, 1074. https://doi.org/10.3390/app15031074
Chen H, Wang Z, Zhang J, Wang Z, Peng P, Feng T. Field Monitoring and Analysis of Factors Influencing Existing Tunnels Laterally Adjacent to Foundation Pit Excavations. Applied Sciences. 2025; 15(3):1074. https://doi.org/10.3390/app15031074
Chicago/Turabian StyleChen, Huan, Zhanming Wang, Jian Zhang, Zuocai Wang, Peng Peng, and Tugen Feng. 2025. "Field Monitoring and Analysis of Factors Influencing Existing Tunnels Laterally Adjacent to Foundation Pit Excavations" Applied Sciences 15, no. 3: 1074. https://doi.org/10.3390/app15031074
APA StyleChen, H., Wang, Z., Zhang, J., Wang, Z., Peng, P., & Feng, T. (2025). Field Monitoring and Analysis of Factors Influencing Existing Tunnels Laterally Adjacent to Foundation Pit Excavations. Applied Sciences, 15(3), 1074. https://doi.org/10.3390/app15031074

