Research on Optimization of an Open-Bench Deep-Hole Blasting Parameter Using an Improved Gray Wolf Algorithm
Abstract
1. Introduction
2. Optimization Model of Bench Drilling and Blasting Parameters in Open-Pit Mine
3. Solving Algorithm of Blasting Parameter Optimization Model
3.1. Gray Wolf Optimization Algorithm
3.1.1. Initializing Population
3.1.2. Determine the Location
3.2. Improved Gray Wolf Optimization Algorithm
3.2.1. Tent Chaotic Mapping
3.2.2. Convergence Factor a
3.2.3. Population Location Renewal and Variation
4. Optimization of Blasting Parameters
4.1. The Optimization of Engineering Cases
4.2. Algorithm Comparison Verification
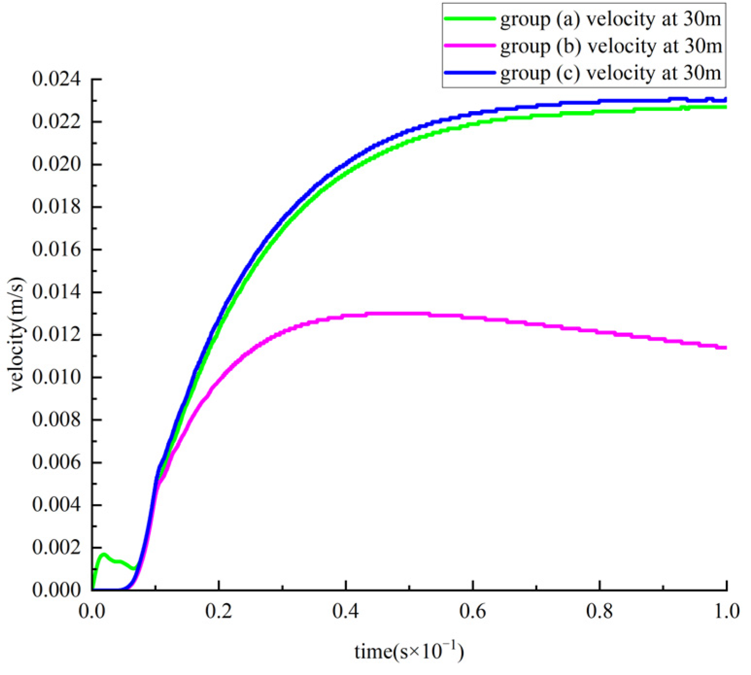
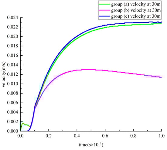
4.3. Numerical Simulation Verification
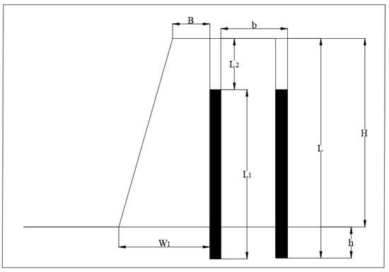
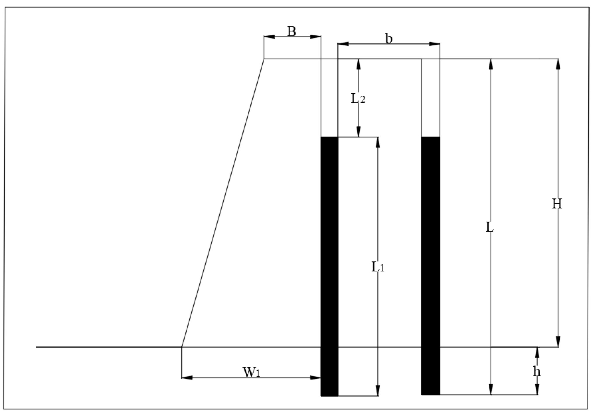
4.3.1. Establishing the Model for Blasting Steps
4.3.2. Applying Dynamic Loading
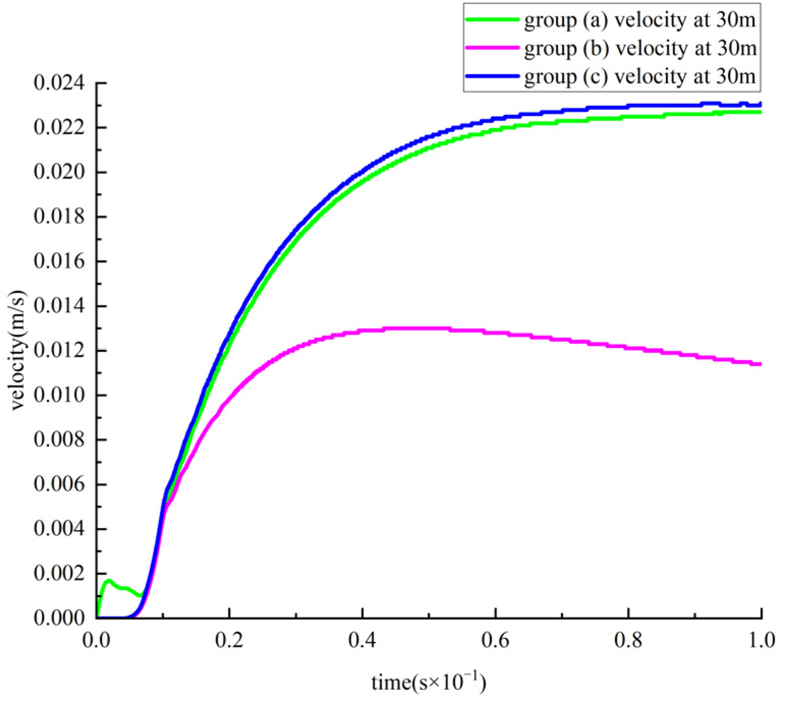
4.3.3. Conducting Comparative Analysis on Model Failure
5. Conclusions
Author Contributions
Funding
Institutional Review Board Statement
Informed Consent Statement
Data Availability Statement
Conflicts of Interest
References
- Sun, Z. Optimization of deep hole blasting parameters in Anjialing open pit Mine. Open Pit Min. Technol. 2022, 37, 32–34. [Google Scholar]
- Liu, G.; Yu, D. Grey correlation analysis of influencing factors of block size in medium-deep hole step blasting. Blasting 2008, 39–41+46. [Google Scholar] [CrossRef]
- Guo, M. Grey Correlation analysis of main influencing factors of blasting block degree. Min. Res. Dev. 2000, 20, 41–43. [Google Scholar] [CrossRef]
- Tan, Z.; Li, G.; Li, C.; Huang, Y. Grey correlation analysis of blasting parameters’ influence on blasting block effect. Min. Eng. 2003, 1, 41–43. [Google Scholar]
- Yin, Y.; Zhu, Z.; Chen, M. Experimental Study on Mining Blasting of Chang-jiu Limestone Mine. Blasting 2020, 37, 43–47+88. [Google Scholar] [CrossRef]
- Wu, Y.; Zhao, M.; Wang, J.; Du, L.; He, T.; Qian, Z. Optimization test and application of blasting hole network parameters on slope surface of different mines. Blasting 2022, 39, 75–80+99. [Google Scholar]
- Wen, X.; Zhao, L.; Zhu, Q.; Li, P. Research on optimization of mine drilling and blasting parameters based on blasting funnel test. Min. Res. Dev. 2021, 41, 28–31. [Google Scholar]
- Peng, J.; Fu, Y.; Chen, Y.; Zhang, K.; Luo, D. Optimization and application of tunnel blasting parameters based on blasting funnel test. Min. Res. Dev. 2020, 40, 23–26. [Google Scholar]
- Xu, D.; Li, W.; Zhang, K.; Peng, X.; Qian, X. Experimental study on a bench blasting funnel with different lithology in an open pit. Nonferrous Met. Eng. 2023, 13, 129–140. [Google Scholar]
- Lan, Q.; Wang, Z.; Deng, Q.; Yuan, C.; Gao, Z. Research on parameter optimization of open-pit deep hole step blasting in superhard rock. Nonferrous Met. (Mine Sect.) 2024, 76, 84–91. [Google Scholar]
- Liu, F.; Lu, G.; Jiang, K. Research on Optimization of high-speed train operation scheme for Intercity corridor based on Supply and demand coordination. Railw. Transp. Econ. 2024, 1–16. Available online: https://link.cnki.net/urlid/11.1949.u.20240313.1541.002 (accessed on 18 April 2024).
- Luo, Z.; Li, T. Data-driven Forecast of emergency medical supplies demand and logistics site-distribution optimization. Control Decis. 2024, 1–9. [Google Scholar] [CrossRef]
- Xu, X.; Zhang, M.; Pan, J.; Xu, C.; Zhang, H. Particle swarm Optimization Algorithm for Energy Scheduling of Multi-port energy router “Source Load and Storage”. J. Nav. Univ. Eng. 2024, 1–6. Available online: https://link.cnki.net/urlid/42.1106.E.20240314.1935.010 (accessed on 18 April 2024).
- Huang, L.; Song, S.; Liu, C.; Wang, J.; Hu, D.; He, Q.; Lu, Y. Ice Cover Prediction Model for Transmission lines based on IHHO-HKELM. J. Electr. Power Sci. Technol. 2024, 1–10. Available online: https://link.cnki.net/urlid/43.1475.TM.20240314.1605.002 (accessed on 18 April 2024).
- Cao, K.; Tan, C.; Liu, H.; Zheng, M. Data fusion algorithm of wireless sensor networks based on improved Grey Wolf algorithm and Optimized BP neural network. J. Univ. Chin. Acad. Sci. 2022, 39, 232–239. [Google Scholar]
- Lu, C.; Yu, J.; Yu, Z.; Ding, S.; Zhang, Z.; Qiu, K. Detection method of steel bar diameter in concrete based on improved Grey Wolf algorithm optimization SVR. Comput. Sci. 2022, 49, 228–233. [Google Scholar]
- Hu, Z. Comprehensive Optimization of Open Pit Blasting to Crushing. Ph.D. Thesis, Wuhan University of Technology, Wuhan, China, 2012. [Google Scholar]
- Zhou, Y.; Li, K.; Xiao, S.; Zhang, G. Optimization of dump stacking parameters in open pit. Metal Mine 2014, 48–51. [Google Scholar]
- Yan, Y.; Xu, Z.; Liu, X.; Wang, X.; Zhang, Y. Blasting parameter optimization based on improved sparrow search algorithm. Min. Metall. Eng. 2023, 43, 11–14+19. [Google Scholar]
- Chen, M.; Zhang, J.; Zhou, C. SOC Estimation of Li Ion Battery Based on IGWO BP Neural Network. J. Hubei Univ. Technol. 2024, 39, 46–51. [Google Scholar]
- Yan, F.; Shi, Z.; Wang, L. Dynamic energy-saving batch scheduling problem of flexible job shop based on improved Gray Wolf Algorithm. Mod. Manuf. Eng. 2024, 24–32+161. [Google Scholar] [CrossRef]
- Chen, P.; Zhou, J.; Wu, M. Research on On-line Metering Error prediction Method of DC Charging pile based on improved GGO-GM (1,1) model. Mod. Electron. Technol. 2024, 47, 112–117. [Google Scholar]
- Dai, W.; Wang, J.; Cheng, Z.; Zhang, P. Research on Improvement of Real Genetic Algorithm for Constrained Optimization Problems. Control Decis. 2019, 34, 937–946. [Google Scholar]
- Liu, Z.; He, L.; Yuan, L.; Zhang, H. Path planning of mobile robot using improved Gray Wolf algorithm. J. Xi’an Jiaotong Univ. 2022, 56, 49–60. [Google Scholar]
- Zhang, J.; Gu, X. Zinc consumption prediction by support vector machine based on improved Grey Wolf algorithm. J. East China Univ. Sci. Technol. (Nat. Sci. Ed.) 2022, 48, 343–351. (In Chinese) [Google Scholar]
- Shang, L.; Li, H.; Hou, Y.; Huang, C.; Zhang, J. Short-term power load forecasting based on feature selection and optimized Extreme Learning Machine. J. Xi’an Jiaotong Univ. 2022, 56, 165–175. [Google Scholar]
- Zhang, Z.; Rao, S.; Zhang, S. Grey Wolf optimization algorithm based on adaptive normal cloud model. Control Decis. 2021, 36, 2562–2568. [Google Scholar]
- Xu, C.; Li, C.; Yu, X.; Huang, Q. Improved Grey Wolf optimization Algorithm based on Cat Chaos and Gaussian variation. Comput. Eng. Appl. 2017, 53, 1–9+50. (In Chinese) [Google Scholar]
- Dang, X.; Wang, M. Function optimization of Grey Wolf algorithm improved by hybrid strategy. Comput. Digit. Eng. 2021, 49, 1747–1752. (In Chinese) [Google Scholar]
- Guo, P.; Chen, K.; Xian, S. Adaptive temperature simulated annealing algorithm for Traveling Salesman Problem. Control Theory Appl. 2021, 38, 245–254. [Google Scholar]
- Sun, Y.; Zhang, K.; Shi, Y.; Guo, H. Research on Optimization decision of emergency materials dispatch based on truck-UAV coordination in mountainous areas. Chin. J. Manag. Sci. 2023, 1–14. [Google Scholar] [CrossRef]
- Huang, Z.; Chen, X. Drone cluster forest fire detection method based on PSO-GA algorithm. Comput. Eng. Appl. 2023, 59, 289–294. (In Chinese) [Google Scholar]
- Feng, W.; Song, K. An enhanced whale optimization algorithm. Comput. Simul. 2020, 37, 275–279+357. [Google Scholar]

















| σcm (MPa) | σt (MPa) | c (MPa) | φ (°) | Erm (GPa) | μ | K (GPa) | G (GPa) |
|---|---|---|---|---|---|---|---|
| 7.5922 | 0.1543 | 1.0324 | 35.14 | 2.1520 | 0.22 | 1.2810 | 0.8820 |
Disclaimer/Publisher’s Note: The statements, opinions and data contained in all publications are solely those of the individual author(s) and contributor(s) and not of MDPI and/or the editor(s). MDPI and/or the editor(s) disclaim responsibility for any injury to people or property resulting from any ideas, methods, instructions or products referred to in the content. |
© 2024 by the authors. Licensee MDPI, Basel, Switzerland. This article is an open access article distributed under the terms and conditions of the Creative Commons Attribution (CC BY) license (https://creativecommons.org/licenses/by/4.0/).
Share and Cite
Zhao, L.; Su, D.; Li, Z.; Chen, B.; Wang, R.; Chen, R. Research on Optimization of an Open-Bench Deep-Hole Blasting Parameter Using an Improved Gray Wolf Algorithm. Appl. Sci. 2024, 14, 3514. https://doi.org/10.3390/app14083514
Zhao L, Su D, Li Z, Chen B, Wang R, Chen R. Research on Optimization of an Open-Bench Deep-Hole Blasting Parameter Using an Improved Gray Wolf Algorithm. Applied Sciences. 2024; 14(8):3514. https://doi.org/10.3390/app14083514
Chicago/Turabian StyleZhao, Li, Dengfeng Su, Zhengguo Li, Banghong Chen, Rui Wang, and Rongkai Chen. 2024. "Research on Optimization of an Open-Bench Deep-Hole Blasting Parameter Using an Improved Gray Wolf Algorithm" Applied Sciences 14, no. 8: 3514. https://doi.org/10.3390/app14083514
APA StyleZhao, L., Su, D., Li, Z., Chen, B., Wang, R., & Chen, R. (2024). Research on Optimization of an Open-Bench Deep-Hole Blasting Parameter Using an Improved Gray Wolf Algorithm. Applied Sciences, 14(8), 3514. https://doi.org/10.3390/app14083514

