Next Article in Journal
A Study on a Scenario-Based Security Incident Prediction System for Cybersecurity
Next Article in Special Issue
FedSeq: Personalized Federated Learning via Sequential Layer Expansion in Representation Learning
Previous Article in Journal
Exploring the Impact of Thermal Environment on Student Well-Being in Sustainable Campus Settings
Previous Article in Special Issue
Review of Monitoring and Control Systems Based on Internet of Things
 
 
Font Type:
Arial Georgia Verdana
Font Size:
Aa Aa Aa
Line Spacing:
Column Width:
Background:
Article

A Scalable and User-Friendly Framework Integrating IoT and Digital Twins for Home Energy Management Systems

by
Myrto Stogia
1,
Vasilis Naserentin
2,3,
Asimina Dimara
1,4,
Orfeas Eleftheriou
2,5,
Ioannis Tzitzios
4,
Christoforos Papaioannou
6,
Mariya Pantusheva
7,
Alexios Papaioannou
4,*,
George Spaias
2,3,
Christos-Nikolaos Anagnostopoulos
1,
Anders Logg
2 and
Stelios Krinidis
4,6,*
1
Intelligent Systems Lab, Department of Cultural Technology and Communication, University of the Aegean, 81100 Mytilene, Greece
2
Department of Mathematical Sciences, Chalmers University of Technology, 412 96 Göteborg, Sweden
3
Department of Electrical & Computer Engineering, Aristotle University of Thessaloniki, 54124 Thessaloniki, Greece
4
Management Science and Technology Department, Democritus University of Thrace, 65404 Kavala, Greece
5
Code-Flow, 81100 Mytilene, Greece
6
Management Science and Technology Department, International Hellenic University, 57400 Thessaloniki, Greece
7
“Big Data for Smart Society” (GATE) Institute, Sofia University “St. Kliment Ohridski”, 1164 Sofia, Bulgaria
*
Authors to whom correspondence should be addressed.
Appl. Sci. 2024, 14(24), 11834; https://doi.org/10.3390/app142411834
Submission received: 19 November 2024 / Revised: 12 December 2024 / Accepted: 15 December 2024 / Published: 18 December 2024
(This article belongs to the Special Issue The Internet of Things (IoT) and Its Application in Monitoring)

Abstract

The rise in electricity costs for households over the past year has driven significant changes in energy usage patterns, with many residents adopting smarter energy-efficient practices, such as improved indoor insulation and advanced home energy management systems powered by IoT and Digital Twin technologies. These measures not only mitigate rising bills but also ensure optimized thermal comfort and sustainability in typical residential settings. This paper proposes an innovative framework to facilitate the adoption of energy-efficient practices in households by leveraging the integration of Internet of Things technologies with Digital Twins. It introduces a novel approach that exploits standardized parametric 3D models, enabling the efficient simulation and optimization of home energy systems. This design significantly reduces deployment complexity, enhances scalability, and empowers users with real-time insights into energy consumption, indoor conditions, and actionable strategies for sustainable energy management. The results showcase that the proposed method significantly outperforms traditional approaches, achieving a 94% reduction in deployment time and a 98% decrease in memory usage through the use of standardized parametric models and plug-and-play IoT integration.

1. Introduction

Approximately 40% of worldwide energy use and 36% of worldwide emissions are generated by buildings and cities, which renders them significant contributors of both global energy consumption and CO2 emissions [1]. This significant environmental footprint has underscored the need for innovative approaches and cutting-edge technologies in managing and optimizing energy consumption within the residential sector. As a result, various digital technologies like the Internet of Things (IoT) and Digital Twins (DTs) have developed as promising solutions to address the challenges associated with energy management and sustainability while regulating thermal comfort in home environments [2]. These technologies will be more effective when integrated in real-life and real-time scenarios, allowing for immediate data-driven adjustments and optimizations that align with user preferences and environmental goals. Overall, the seamless, real-time integration of IoT and DTs into Home Energy Management Systems (HEMSs) is critical for maximizing energy efficiency, improving user comfort, and supporting the sustainability goals of modern smart cities.
The IoT allows seamless connectivity and real-time data collection from various smart devices, providing granular insights into the energy usage of specific appliances and overall household consumption [3]. Moreover, the continuous data streams generated by IoT networks are pivotal for applications in HEMSs, such as error analysis and prescriptive maintenance [4]. By analyzing these data flows and created patterns within HEMSs, specific applications can predict and address potential system faults or inefficiencies, ensuring uninterrupted operation and reducing energy waste, while extending the lifespan of household devices. In an even broader sense, IoT data can also enhance security within the IoT ecosystem itself through self-healing techniques that autonomously detect and resolve vulnerabilities [5]. This capability to ensure reliable, secure, and efficient operation underlines the critical role of IoT data in modern HEMS applications. Overall, these capabilities make IoT data indispensable for advancing intelligent, resilient, and sustainable HEMSs that adapt dynamically to both user needs and environmental demands.
In parallel, DT technology offers a virtual replica of physical assets while enabling dynamic simulation, predictive analysis, and optimization of systems such as HEMSs. By integrating IoT within these DTs, it is possible to create an advanced, real-time model of the residential environment that can monitor, control, and optimize energy use and other parameters autonomously [6,7,8]. Visualization of IoT data within DT applications plays a crucial role in enhancing user-centered experiences while providing clear, interactive representations of energy usage and device performance. Such visualizations help users better understand their energy consumption patterns and enable them to make informed decisions about optimizing household energy. Furthermore, visualization tools aid in quickly identifying issues within the IoT network per se, making it easier for users to detect and address problems, such as connectivity issues or device malfunctions, through intuitive graphical insights. This enhanced transparency fosters user engagement and empowers individuals to actively participate in managing their home energy environment more effectively [9].
Nonetheless, one of the primary challenges in integrating IoT with DTs for real-life applications is ensuring that IoT setups are non-intrusive and quick to deploy [10]. Especially in home environments, IoT devices must be easy to install without requiring significant modifications to existing infrastructure, as intrusive setups can discourage adoption and increase complexity while adding inconvenience to the tenants. Furthermore, achieving real-time visualization outcomes from DTs presents scalability and replicability issues [11]. Creating a personalized DT model for each user can be both time-consuming and memory-intensive, as each DT requires dedicated storage and processing resources to maintain an accurate and responsive virtual replica [11]. Moreover, designing and creating these models also demands considerable effort, especially when using custom techniques like 3D scanning to capture unique environments, which further complicates scaling DT applications across many users. This personalized modeling approach can lead to significant resource consumption, particularly when managing high volumes of IoT data, making it a potential bottleneck in effectively scaling DT applications. Additionally, ensuring that DTs are continuously updated in response to real-time IoT data requires efficient data synchronization, which can strain computational resources if not optimized [12]. Addressing these challenges is crucial for making IoT-integrated DT solutions feasible, efficient, and user-friendly in real-world settings.
Overall, HEMSs are increasingly adopting IoT technologies to enable smarter energy management. However, traditional HEMSs face several limitations, including lack of real-time feedback and actionable insights to help users make informed decisions; limited scalability in adapting to diverse residential setups and IoT ecosystems; and challenges in providing predictive capabilities for energy optimization and occupancy trends. These limitations hinder the ability of HEMSs to fully support user engagement, energy efficiency, and sustainability practices. DT technology seems to be a promising solution. While DT technology has shown promise in industrial and commercial applications, its integration with IoT for residential HEMS remains largely unexplored. Existing studies focus predominantly on either DT frameworks for large-scale systems or basic IoT implementations for energy management, without addressing the potential of combining these technologies to enhance scalability, usability, and efficiency in residential settings.
This research aims to fill this gap by proposing a novel DT-enabled HEMS framework that bridges the physical and digital domains, empowering users with real-time insights and predictive analytics for sustainable energy management. The primary scientific goal is to address challenges related to deployment complexity, scalability, and resource efficiency by introducing a standardized parametric model for Digital Twins. This framework emphasizes seamless integration, real-time monitoring, and intuitive visualization to empower users with actionable insights into their energy consumption patterns. By utilizing a pre-defined Digital Twin framework, the solution bypasses the need for extensive customization, such as complex 3D scanning or unique modeling, thereby enabling efficient scalability across multiple users while maintaining resource efficiency. This setup facilitates seamless integration between IoT and Digital Twin systems, allowing users to benefit from the insights and advantages of a Digital Twin without the complexity and effort typically associated with creating and maintaining personalized models. Consequently, this approach makes advanced home energy management more accessible, user-friendly, and effective, even for large-scale deployments. The main novelties of this paper area as follows:
  • Non-intrusive, user-friendly plug-and-play IoT setup. The proposed framework simplifies the installation process by leveraging pre-configured IoT devices and standardized interfaces. This approach was empirically validated during the case study implementation, where IoT devices were installed with minimal modifications to existing infrastructure, as detailed in Section 5.
  • Pre-designed, scalable Digital Twin model. The proposed standardized DT framework significantly reduces computational demands by avoiding resource-intensive custom modeling. This claim is substantiated by the results in Section 5.4, which demonstrate a 98% reduction in memory usage compared to traditional approaches.
  • Enhanced accessibility and usability: The proposed system combines pre-defined DT models with plug-and-play IoT devices, providing users with Digital Twin insights and energy management capabilities through a streamlined setup process requiring minimal maintenance effort.
The remainder of this paper is structured as follows: Section 2 presents a review of related works, highlighting recent advancements in IoT and Digital Twins for home energy management systems. Section 3 defines the proposed Digital Twin framework and its functional objectives within the HEMS context. Section 4 details the IoT integration methodology and middleware framework for real-time data synchronization and device interaction. Section 5 provides a case study demonstrating the practical implementation and validation of the proposed system. Finally, Section 6 concludes the paper by summarizing the findings and discussing future research directions.

2. Literature Review

HEMSs are rapidly evolving as essential technologies for optimizing residential energy use, improving sustainability, and enhancing user comfort. As energy demands grow and renewable sources become more prevalent, integrating IoT technologies and DTs appears to be a promising strategy in advancing these systems. IoT-based HEMSs allow for granular monitoring and control, enabling homeowners to make real-time adjustments, while DTs leverage virtual replicas of physical systems to simulate and optimize energy use. This section reviews recent advancements in IoT and DT architectures within HEMSs, analyzing a range of solutions that highlight both the strengths and challenges of these emerging approaches. Through these technologies, HEMSs are moving closer to achieving smart, self-regulating, and sustainable residential environments.

2.1. IoT for Home Energy Management

IoT-based HEMSs empower homeowners with precise control over energy consumption, fostering smarter and more responsive home environments. This subsection examines current IoT technologies for energy monitoring and device control, highlighting different architectures and approaches in processing, usability, and scalability. Al-Ali et al. [13] and Machorro-Cano et al. [14] introduce IoT-based HEMSs that leverage Big Data collection and analytics. Both collect data from a network of ambient and energy consumption sensors to a centralized server. Al-Ali et al.’s system uses the shelf Business Intelligence software (Hitachi Vantara V2016) for visualization and energy use monitoring, while Machorro-Cano et al. utilizes the J48 classification Machine Learning (ML) algorithm for analyzing consumption and user behaviors to optimize energy efficiency and comfort. In the second case, real-time visualization comes via a mobile app. Gupta et al. [15] propose a Big Data and IoT-driven Energy Management System (EMS) for residential areas that utilizes distributed processing to monitor, visualize, and analyze large-scale energy consumption data for optimizing household and community-level energy use. These approaches enable data-driven insights and predictive analytics but they face challenges with scalability, latency, and security vulnerabilities due to volume, as well as the centralized collection of generated data and high computational demands [16]. Ilieva et al. [17] raise another important question in the context of IoT for HEMSs, which is the connectivity and interoperability of smart home devices. The authors propose a smartFW framework to address the challenges associated with integrating various commonly used communication protocols such as Zigbee, EnOcean, KNX, X10, and Z-Wave.
The challenges that arise from Big Data approaches are partially mitigated with the adoption of cloud-based processing. Condon et al. [18] and P. & S. [19] introduce Cloud-IoT-based HEMSs that use layered architectures for real-time energy monitoring and appliance or socket control. Beyond the sensor network, the communication layer uses the lightweight MQTT protocol while data storage, APIs (middleware layer), analytics, visualization, and user interaction (application layer) are delegated to cloud services. These approaches initially scale easily but can be costly as the number of installations and computational intensity grows. Latency issues and the demand for reliable connection can hinder the real-time aspect of these approaches. Finally, storing sensitive energy consumption data in the cloud raises concerns about data security and user privacy.
The introduction of edge computing with IoT-driven HEMSs utilizes local data processing to enhance real-time decision-making, reduce latency, and improve security. Ferreira et al. [20] propose a low-cost, edge-computing middleware for HEMSs, utilizing microservices to enhance scalability and minimize latency. The middleware is designed with a hybrid approach where basic data collection, processing, and control tasks are handled locally at the edge, while more complex analyses are offloaded to the cloud. Javed et al. [12] propose a resilient, edge-based demand response (DR) optimization system for Smart Energy Systems that uses a local cloud architecture and ML to improve energy efficiency and ensure user comfort. The introduction of additional local cloud nodes allows this scheme to scale to large facilities while keeping data processing local to each node. Iqbal et al. [21] presents an edge-computing-based system that integrates IoT devices with a blockchain to create a secure and decentralized framework for real-time monitoring and prediction of energy usage, using ARIMA for forecasting and smart contracts to facilitate automated transactions for energy trading and DR. Finally, edge computing in IoT-driven HEMSs reduces latency, improves scalability and privacy, and mitigates security risks by limiting data transmission, though it requires managing computational constraints and increased system complexity [22].

2.2. Digital Twins in Residential Energy Management

DTs in residential energy applications represent a transformative approach to energy management, enabling enhanced efficiency and sustainability. These models focus on the complexities of modern systems, extending the integration of IoT schemas for home energy management. The creation of dynamic, virtual replicas of physical assets enables real-time monitoring, predictive maintenance, and data-driven decision-making, leading to optimized energy consumption and improved system efficiency [23]. Recent advancements in Machine Learning (ML) and Artificial Intelligence (AI) further enhance DT capabilities, allowing for intelligent decision-making that adjusts to user behaviors and external factors [24]. This section explores the role of DTs in residential energy management systems, focusing on their potential to create energy-efficient, self-regulating home environments that are aligned with the goals of smart and sustainable living.
Fathy et al. [25] propose a multi-layered DT framework that integrates both household-specific Home Digital Twins (HDTs) and a centralized Energy Digital Twin (EDT) to enhance energy management systems. In this framework, each HDT reflects household energy use patterns and user preferences, enabling local appliance scheduling optimization through edge-deployed reinforcement learning (RL). The EDT, in turn, aggregates energy demand data across households, allowing for dynamic adjustment of dual tariff rates based on real-time demand trends. Complementing this approach, Testasecca et al. [26] introduce a DT framework that leverages Building Information Modeling (BIM), IoT, and ML services to optimize energy usage and sustainability within various case studies, including smart grids, microgrids, and district heating networks. Their findings highlight the benefits and challenges of DT applications in HEMSs, noting key limitations in scalability, data quality, and stakeholder engagement.
De Lope et al. [27] extend the application of AI-driven DTs in HEMSs to optimize hybrid renewable hydrogen systems for self-sufficiency and efficiency. The effectiveness in real-time energy optimization is evident by the implementation in a housing project in Spain but the complexity of the system creates challenges in adaptability and scalability, while the centralized processing and demanding ML algorithms raise concerns regarding security and computational demands on larger scales. Cotti et al. [28] focus on user empowerment by introducing an ML-powered digital twin for smart homes. The system uses an unsupervised machine learning approach to simulate the impact of different appliance modes on energy consumption. Through a user-friendly web-based interface, users can create trigger–action rules and receive recommendations for optimizing energy consumption.
Table 1 presents a detailed comparison of key features and methods across various related works in the domain of IoT-enabled DT systems for energy management. The comparison highlights significant gaps in prior research and underscores the comprehensive capabilities of this paper. The features compared were selected to address the key challenges in deploying IoT-enabled DT systems for HEM. These include scalability, usability, and resource efficiency, critical factors for real-world adoption. ‘Non-intrusive IoT Setup’ ensures minimal structural modifications for seamless integration in diverse environments, while ‘Pre-designed DT Framework’ highlights the scalability and efficiency of standardized models, eliminating the need for resource-intensive customizations. The term ‘Non-intrusive IoT Setup’ focuses on minimizing the impact on existing infrastructure, such as avoiding structural modifications or rewiring, whereas ‘Ease of Installation’ highlights the simplicity and user-friendliness of the process, such as plug-and-play functionality. While related, these terms address different aspects of deployment. Other features, such as real-time IoT-DT integration and cost-effectiveness, were included to provide a comprehensive comparison with existing solutions. These criteria reflect the essential capabilities needed to advance the usability and accessibility of DT systems. This selection not only benchmarks our framework against current approaches but also underscores its ability to address practical deployment challenges.

3. Digital Twin for HEMS

DTs have emerged as a transformative technology for advancing EMSs in residential settings while offering precise, real-time simulations and optimizations. In the context of HEMSs, DTs enable the creation of dynamic virtual replicas of physical homes, integrating spatial and environmental data with IoT-driven insights. This section introduces the DT framework tailored for HEMSs, outlining its key components, functional objectives, and the standardized parametric 3D modeling approach. By bridging physical and digital domains, the proposed DT empowers users with actionable insights and supports sustainable energy practices. The following subsections delve into the development, features, and capabilities of this innovative framework.

3.1. Research Methodology

As discussed, the primary aim of this research is to propose and validate an innovative framework that integrates DT technology into HEMSs. The framework is designed to address key challenges in residential energy management, ensuring the system can adapt to diverse home configurations and varying IoT deployments. Providing intuitive user interfaces with actionable insights for energy optimization. Reducing computational and operational demands through standardized DT models. By bridging the physical and digital domains, the proposed framework enables real-time simulations, predictive analytics, and precise energy monitoring, empowering users to adopt sustainable energy practices while optimizing energy consumption.
To achieve the outlined scientific aim, this study adopts a systematic methodology comprising the following steps:
  • Literature Review: Conducted a comprehensive review of existing HEMS and DT frameworks to identify gaps, establish the novelty of the proposed framework, and define objectives for its development.
  • Framework Design and Development: Developed a DT-enabled HEMS framework, focusing on objectives such as real-time visualization, spatial segmentation, energy tracking, and predictive analytics.
  • Case Study Implementation: Applied the framework to a real-world scenario, simulating a residential building project. The case study incorporates IoT data and spatial modeling to validate the practical functionality of the framework.
  • Simulation and Performance Testing: Conducted simulations to assess the framework’s performance in achieving scalability, usability, and resource efficiency. Metrics such as energy consumption patterns, environmental monitoring accuracy, and system responsiveness were evaluated.
  • Validation and Comparison: Benchmarked the results against traditional HEMS approaches to demonstrate the added value of the DT integration in terms of enhanced user experience, energy optimization, and scalability.
This structured methodology ensures a systematic approach to validating the framework’s scientific and practical contributions to the field of residential energy management.

3.2. Defining the Digital Twin Framework in HEMSs

A DT serves as a dynamic digital replica of physical systems, offering real-time monitoring, analysis, and control. Within HEMSs, DTs enable the integration of IoT data with spatial and environmental models, bridging the physical and digital domains. This transformation is crucial for optimizing energy management and providing actionable insights into household energy use. The DT framework integrates IoT-driven data collection with virtual modeling to dynamically represent and manage the home environment, enhancing system efficiency and user engagement. Figure 1 depicts the transition from a classical HEMS architecture to an extended system integrating DT capabilities. The classical HEMS structure consists of three primary components:
  • Physical Layer: Includes the actual rooms, IoT sensors, and appliances.
  • Data Collection and Processing: Handles data streams, middleware communication, and database storage for managing and analyzing energy usage.
  • Applications: Offers basic monitoring and control through user-facing applications.
The proposed system builds upon this by introducing a DT Layer, which mirrors the physical environment in a virtual space. This DT Layer enables real-time visualization, advanced simulations, and enhanced interaction. Digital rooms, IoT sensors, and appliances within the DT Layer are synchronized with their physical counterparts, offering users actionable insights and predictive analytics. This architecture bridges the gap between monitoring and actionable control, significantly enhancing the scalability, usability, and efficiency of HEMS.
In contrast to traditional HEMS architectures, which rely on static configurations and limited real-time capabilities, the integration of Digital Twins introduces dynamic simulation and predictive analysis. This enables real-time adjustments and optimization based on live IoT data streams, reducing latency and improving user engagement. The proposed DT framework uses standardized models, ensuring scalability and efficient resource usage while allowing for customized interactions with the home environment. By bridging IoT data with spatial models, the system provides granular insights into energy consumption and thermal conditions, leading to enhanced sustainability and user comfort. This research focuses on transforming traditional HEMSs into dynamic, user-centric systems through the integration of IoT and Digital Twins. By enabling real-time simulation, predictive analytics, and enhanced user interactions, this study aims to address scalability and usability challenges in energy management.
Specifically, Figure 2 depicts the transition from a classical HEMS architecture to an extended system with integrated DT capabilities. The diagram compares the two architectures, emphasizing the added value of the DT Layer. A Classical HEMS is limited to the Physical Layer, Data Collection and Processing, and Applications. It primarily focuses on IoT-based data collection and basic user interactions, offering limited insights and lacking predictive capabilities. Meanwhile, in the extended HEMS with DT, the DT Layer transforms the system into a dynamic, interactive platform. This layer provides real-time visualization of household energy use, advanced simulations, and predictive analytics. By mirroring physical rooms, IoT sensors, and appliances in a virtual environment, the DT Layer bridges the gap between monitoring and actionable control, empowering users with enhanced engagement and decision-making tools.

3.3. Functional Objectives and Modeling Priorities

The development of a DT for an HEMS requires a strategic approach to modeling that should emphasize both functionality and precision. This section outlines the primary objectives and priorities guiding the creation of the DT model tailored for HEMS applications. The focus is on enhancing user experience and spatial realism while supporting granular data segmentation, and enabling data analytics. By integrating detailed environmental and energy-related data, the DT model can provide users with an immersive and interactive experience while facilitating real-time insights and energy management. Each objective contributes to the overall aim of achieving a 3D model that is technically robust and adaptable to user needs, environmental conditions, and energy optimization goals within different areas of the home. The functional objectives and modeling priorities (Obj) are listed bellow:
  • Obj. 1: Enhance realism and user experience by creating a visually and tactilely accurate 3D model that fosters immersion and ease of navigation within the Digital Twin environment.
  • Obj. 2: Support functional segmentation for energy and environmental data by spatially segmenting the 3D model based on material and functional variations, enabling targeted data integration.
  • Obj. 3: Capture space-specific energy consumption patterns by enabling the Digital Twin to track and analyze energy use unique to each space (e.g., living room vs. kitchen).
  • Obj. 4: Improve environmental monitoring and thermal comfort by using spatial and material segmentation to monitor conditions like temperature and humidity, ensuring each zone meets optimal comfort levels.
  • Obj. 5: Facilitate predictive analytics for occupancy and usage patterns, allowing the Digital Twin to predict and adapt to occupancy and behavior trends across different rooms.
  • Obj. 6: Enable precision in smart home automation by integrating automation features that adapt to the unique material and spatial characteristics of each room.

3.4. Parametric Standardized 3D Model

DTs have evolved into transformative tools in the Architecture, Engineering, Construction and Operations (AECOs) fields, providing real-time and data-driven digital replicas of physical building structures. These virtual models bridge the gap between physical structures and digital environments, enabling improved monitoring, simulation, and management throughout the overall building’s lifecycle. The transition from traditional two-dimensional (2D) design to dynamic Digital Twins represents the evolution of how data from each Digital Twin informs and influences building performance and decision-making. Initially, architectural design was mostly based on 2D drawings, physical or digital, which provided only static representations of structures, detailing spatial layouts, structural elements, and key mechanical systems [29]. The development in three-dimensional (3D) modeling has added a new dimension to architectural design, and the creation of BIM has allowed the creation of parametric models that enclose rich, interconnected data on material properties, spatial relationships, and building systems [30].
As stated in Section 1, this paper aims to minimize the design-processing time and reduce the size of the data associated with each DT model by assembling a standardized, parametric, pre-designed DT framework. This approach eliminates the need for customized per user modeling, therefore facilitating scalability and significantly reducing computational requirements. By standardizing DT fundamentals, the model can be efficiently adapted for different users without extensive customization, ensuring efficient deployment and resource development. The separation and standardization of the design can be categorized according to the basic characteristics of an apartment, which are the number of rooms, the type of common areas (i.e., whether it is a main living and kitchen area or a separate layout of the respective rooms), and the number of toilets. Therefore, the standard design for a studio apartment, a one-room apartment, a two-room apartment, etc., may come up.
To achieve the conversion of this 2D data into a 3D model, architects and engineers use BIM software, which allows the creation of a parametric model that represents both the physical and functional aspects of the building [31]. This process involves first digitizing the spatial layouts and structural elements from the 2D plan, which are then rendered in 3D geometry. Using BIM, engineers can render material properties, simulate structural elements and incorporate electromechanical systems such as Heating, Ventilation, and Air Conditioning (HVAC), plumbing, and electrical infrastructure. This transformation enhances spatial understanding while allowing for the incorporation of feature data, which is essential for the development of the Digital Twin.
Regarding the structural characteristics of each dwelling, there is a clear distinction between the characteristics of the external walls, which define the outline of the dwelling, and the internal walls, which mainly concern the separation of the individual rooms. This differentiation mainly concerns the thickness and composition of the walls and reflects functional and thermal insulation characteristics, as external walls are usually designed to provide necessary insulation, structural stability, and climate resistance. In contrast, internal walls are mainly used for internal layout purposes, which requires a lower density and material composition. This variation in wall specifications is typical and integral to achieving optimal energy efficiency and structural integrity within the compartment, always adapted to best practices in building design. At the same time, a key specification is the provision of natural light and ventilation in each space. It is worth noting that this specification tends to influence the interactions of the DT model with the HEMS and the external environment.
At the same time, by applying different materials to each surface and space, the realistic experience of the user is enhanced during their navigation in the digital environment of the DT. This differentiation of materials not only provides visual and tactile fidelity within the model, but also aids in distinguishing spaces for a more realistic browsing experience. Additionally, the separation of spaces based on material transitions serves as a fundamental preparatory step for transitioning the three-dimensional model into a DT. By aligning specific materials with distinct spatial functions, this approach supports the precise integration of data and functional segmentation, which are critical for DT applications. Each defined area, living room, kitchen, bedrooms, bathroom, hallway, etc. can then be mapped to capture distinct patterns of energy consumption, environmental parameters, and occupancy behaviors, and in this paper’s chosen scenario, thermal comfort.
In order to achieve the optimal spatial navigation experience for the user, the 3D model is structured according to a ’dollhouse’ concept [32]. These types of views involve creating an open, segmented view of the compartment, enabling users to seamlessly explore the layout and spatial relationships within the model. By presenting internal elements in a clear, unobstructed way, the dollhouse approach enhances spatial understanding and user engagement, making it particularly effective for immersive experiences in Digital Twin applications. Through this systematic design and preparation, the optimal user experience is achieved in terms of navigating the digital space and gathering the desired information provided. Starting from the initial floor plan, continuing with the construction of the 3D model with the applied finishing materials and finally selecting the appropriate perspective, the 3D model fulfills the appropriate prerequisites to be transformed into a digital twin. This step-by-step approach ensures that every layer, from spatial layout to visual fidelity to navigation perspective, helps to create a cohesive and immersive digital environment, aligning the model with the requirements for effective integration of the Digital Twin.
As depicted in Figure 3, the overall workflow consists of six sequential steps designed to develop and integrate a 3D model for DT applications in HEMSs. Each step is closely associated, directly or indirectly, with the Functional Objectives and Modeling Priorities (Obj. 1–6), ensuring that the methodology aligns with key goals such as realism, functional segmentation, energy tracking, environmental monitoring, predictive analytics, and smart home automation. Overall, this methodology is ideal for creating a highly functional and adaptable DT, addressing critical aspects of home energy management with precision and scalability. Each step builds upon the previous one, leading to a robust 3D model that meets the objectives for energy optimization, user comfort, and seamless interaction in a smart home environment.

3.5. Parametric Standardized Digital Twin

Based on the developed comprehensive standardized 3D model within the HEMS framework, a parametric standardized digital twin is created to dynamically simulate the indoor environment and related energy flow. Relevant 3D model data, such as the architectural, structural, and interior building parameters are used as operational parameters also in the DT. There, these are complemented with data about HVAC systems, appliances in the premises (e.g., type, location, power consumption profiles and usage patterns), energy related data (e.g., energy source type, usage patterns and historical data, historical and real-time energy prices), occupancy (e.g., number of occupants and demographics, routines and activities, etc.), and indoor environmental data, such as temperature, humidity, lighting levels, CO2 levels, air quality, and thermal comfort. Thermal comfort is commonly estimated using the Predicted Mean Vote (PMV) index, a scientifically validated metric that predicts the average thermal sensation of occupants on a scale ranging from cold (−3) to hot (+3) [2]. It refers to state n in which individuals feel satisfied with the indoor conditions and is estimated by temperature, humidity, and personal factors (clothing, activity level) [2]. By leveraging the PMV index, HEMSs dynamically adjust heating, ventilation, and air conditioning while ensuring a balance between comfort and energy efficiency. Outdoor environmental data may also be relevant, as in almost all cases, they affect the inside of the premises as well. In this regard, local climate conditions, air pollution, or external obstacles such as shading from trees or buildings can be reflected and added to the DT.
Once all this data is captured and integrated into a coherent system, it can be used for real-time monitoring. This is not only an informative feature, but also helps in identifying anomalies or deviation from normal patterns. Such data are key for predictive maintenance and addressing potential issues before they escalate, leading to reduced maintenance costs, improved system reliability, and enhanced overall home comfort and safety. Within the digital twin, the aggregated data are cleaned and pre-processed to remove any noise and inconsistencies. More than that, the captured data and their patterns and interactions can be analyzed and optimized. For example, analyzing occupancy patterns can help optimize heating and cooling schedules, while monitoring appliance usage can identify opportunities for energy-efficient alternatives. At the same time, using ML, deep learning, or other artificial intelligence techniques allows DTs to continuously reflect and learn from new changes in the system and thus improve their predictive accuracy over time.
By altering different parameters in the system and running simulations, different what-if scenarios can be simulated virtually, and based on the results, energy-saving strategies can be identified and implemented. Similarly, DTs can be used to predict future energy consumption based on historical data and current conditions. This feature allows for more efficient and proactive energy management. Actions can include, for example, scheduling appliances to work during off-peak hours or adjusting thermostat settings and can be either issued automatically by the system, or prompted by the user. In this regard, the DT can be imported and manipulated by any rendering engine. The model can be further enriched with data and user interactions offered by the capabilities of mainstream game engines. Homeowners can then interact with the DT through a user-friendly interface to monitor room conditions, energy consumption, receive personalized recommendations, and make adjustments as needed. Information relevant to the user is structured and presented in a comprehensive way. The 3D model room visualization is enhanced with prompts and visual clues regarding sensors’ status, indoor environmental conditions, and thermal comfort. The latter is only enabled by the IoT integration with the Digital Twin.

4. IoT Integration with Digital Twin

The integration of IoT devices with DTs is a critical step in realizing advanced HEMSs. IoT provides real-time data collection and device control, while DTs leverage these data to create dynamic, virtual representations of home environments. This seamless connectivity allows for real-time monitoring, predictive analytics, and autonomous energy optimizations, bridging the physical and digital realms. This section details the IoT architecture and its integration with the DT framework, including the roles of IoT devices, communication protocols, and middleware for efficient data flow. Emphasis is placed on how IoT facilitates a bi-directional interaction between physical devices and their digital counterparts, enabling intelligent, responsive, and scalable energy management solutions. The described methodology ensures a robust and user-friendly approach to integrating IoT with DTs for effective HEMSs.

4.1. IoT Devices and Data Collection

The Internet of Things Connectivity Node (ICON) is the central entity in an HEMS. The ICON will basically work as a main gateway in a home, coordinating and managing all IoT devices. It may be a personal computer (PC), mini PC, or Raspberry Pi that makes it easy to integrate diverse smart sensors and actuators for smooth connectivity at both local network and cloud-based services. The ICON is an IoT hub that allows devices to communicate with each other and interact effectively, interfacing the immediate environment with larger structures in the network. Such IoT devices are allowed to connect with the ICON through special communication modules and protocols. Additionally, it plays an important role in translating various standards of communication, hence allowing for smooth interaction.
The ICON may be connected with many kinds of IoT devices, which in return provide specific data and functions as detailed in Table 2. These include environmental sensors that track temperature, humidity, and CO2 levels, wall plugs that monitor the energy consumption of small devices, motion sensors that detect luminance and movement, and heavy-duty smart switches that control high-consumption devices, such as air conditioners (ACs) using an IR AC extender. Additionally, a three-phase energy meter is utilized to monitor energy consumption in households equipped with a three-phase system. In homes without a three-phase setup, one of the existing phases will be used for energy monitoring and management purposes. These IoT devices are designed for low-power operation to extend battery life and reduce the frequency of maintenance. In fact, this is important for devices installed in far-flung areas or those which are intended to run for an extended period, independent of manual interference. It is such protocols that enable continuous communication and energy management, required by both smart home installations and industries.
The ICON has a mesh network topology, with every device connecting to each other wirelessly in multiple ways. This layout provides the network with better communication reliability as well as increased resilience—data can traverse several paths. Even if one link or device is lost, communication among the rest of the nodes can, by virtue of rerouting them, remain unbroken. Typical of Z-Wave devices in this kind of setup, messages can be passed between devices in a hops manner and thus, the mesh network topology can reach out beyond the communication range of a central controller. In most cases, up to four intermediate nodes are used and this makes communication possible even in distant areas through direct lines. However, a potential drawback of mesh networks is their intricacy; developing a smoothly running system with effective data flow usually requires high-level techniques. Nevertheless, its strength and adaptability are the main factors of the technology that make it most suitable in the fields where communication between the devices is very high. In contrast, a star network topology, employed in solutions like Z-Wave Long Distance (LR), has a central hub that communicates directly to each device without any intermediary nodes. This design has the benefit of clear communication paths and less latency, which is especially beneficial for devices further from the hub. The star topology is simple and it is a good solution in situations where the only requirement is short-distance communication with no delays. In order to ensure an easy process for the users, the ICON interface is designed as a Docker container. This containerized architecture creates an environment where services can run independently, so changes and maintenance can happen without affecting other functions. In addition, users can also easily add, configure, and manage connected sensors on the ICON device. Thanks to the reliability of mesh networks, the operational simplicity provided by Docker makes the ICON communication system remain strong and flexible.
The data collected by these IoT devices is sent, using the MQTT protocol, to a MQTT broker such as Mosquitto. The efficiency of this lightweight messaging system ensures the real-time transfer of data. The sensor information formatted in JSON format has a unique identifier for each sensor. This standardized format ensures easy integration and accurate handling of various types of data, such as temperature, humidity, and energy consumption. For a detailed representation of this data flow and integration process, the data collected might be locally stored or transmitted to a cloud server for further analysis. Edge computing performs preliminary data processing effectively at the source. In general, data analysis on the edge optimizes resources, improves transmission speed, and accelerates decision-making. This approach further supports sophisticated data management with accurate analytics.
The flow of the IoT system, as illustrated in Figure 4, begins with the ICON, which serves as the central controller for connections and interactions throughout the system. From this node, it connects to specific modules for a reliable exchange of information. These modules, sensors, and appliance controllers communicate with each other using low-power protocols designed for energy conservation and scalability. The proposed network has a mesh topology, together with a star network topology. The mesh network allows for improved redundancy because there are more paths that data can travel to ensure that communication is good in case something like a device or a link goes down. The star network simplifies routing by connecting directly with the ICON hub, thereby reducing latency, especially for those devices that are further away. This will ensure robust and efficient communication across the network.

4.2. Middleware Framework

Middleware is an essential software layer that facilitates communication and service integration between operating systems, applications, and DTs, while providing critical services (i.e., communication, authentication, API management, processing). By managing data flow and interaction in real-time, middleware enables seamless coordination between physical devices and their virtual counterparts in DT frameworks. This capability is particularly critical in complex environments such as IoT systems, where reliable and scalable distributed operations are required to maintain an accurate and responsive Digital Twin. Middleware thus supports the development of efficient, scalable applications that continuously synchronize real data with digital replicas, enabling real-time analysis, predictive insights, and system optimization.
As depicted in Figure 5, the MQTT middleware framework in an IoT setup where various constrained devices (e.g., temperature sensors) generate data for applications or other devices is presenteds. MQTT clients act as publishers and subscribers, while managing this data exchange. In distributed IoT systems, middleware manages protocols and data flows and abstracts hardware complexities to provide a unified interface. MQTT, a widely used middleware solution, uses a publish/subscribe model for efficient data distribution [33]. In this architecture, a sensor can publish data to an MQTT broker, which then distributes it to subscribed clients on specific topics (e.g., topics A, B, or C). Compared to protocols like HTTP or CoAP, MQTT’s lightweight design optimizes it for IoT applications by minimizing bandwidth and power consumption, making it ideal for low-resource IoT devices [34].
MQTT stands out as an effective protocol for real-time, low-latency communication in IoT systems, providing an efficient publish/subscribe mechanism tailored to devices with limited power and bandwidth resources. Unlike HTTP and CoAP, MQTT’s lightweight design is optimized for minimal resource consumption, making it particularly suitable for IoT environments [35]. Middleware frameworks that integrate MQTT also facilitate cross-platform communication, particularly in edge computing environments, by enabling local data processing and reducing reliance on centralized networks. As shown, MQTT brokers deployed on edge devices support continuous data exchange even in offline scenarios, improving the reliability and responsiveness of local IoT systems and ensuring that critical functions function regardless of external network conditions.
In Figure 6, an IoT application architecture in which middleware plays a critical role in ensuring seamless data flow between physical devices, applications, and digital twins is represented. In IoT systems integrated with DTs, middleware not only synchronizes real data with virtual models, but also ensures that these digital replicas remain accurate and up-to-date. This allows DTs to simulate, analyze, and predict behaviors in systems such as home energy management, where real-time energy consumption data from sensors can serve as the basis for optimization and control decisions. By connecting various IoT devices and supporting edge processing, middleware improves both scalability and responsiveness, enabling digital twins to operate effectively in real-time and even offline, making them powerful tools for proactive management in complex environments such as Smart Homes and Smart Cities.

5. Case Study: Practical Implementation of DT for HEMS

The case study and simulation presented in this section aim to validate the proposed framework’s effectiveness in addressing the primary scientific objectives of this research. Specifically, in this section, the proposed framework is validated by addressing the objectives outlined in Section 3.3 and their corresponding use cases. The following objectives are validated:
  • Realism and Immersion (Obj. 1). Use Case: Navigation and Interaction in a Digital Twin Environment. The simulation includes a visually and spatially accurate 3D model, allowing users to navigate and interact with the Digital Twin environment, improving realism and user experience.
  • Functional Segmentation and Data Integration (Obj. 2 & 5): Use Case: Zone-Specific Energy Monitoring. The Digital Twin uses spatial segmentation of the 3D model to integrate energy and environmental data for targeted monitoring, improving precision and usability.
  • Space-Specific Energy Tracking (Obj. 3):Use Case: Energy Analysis Across Zones. The framework tracks patterns unique to specific spaces (e.g., living room vs. kitchen), providing actionable insights tailored to individual zones.
  • Environmental Monitoring and Thermal Comfort (Obj. 4): Use Case: Monitoring and Adjusting Comfort Levels. By leveraging material and spatial segmentation, the simulation monitors temperature and humidity across different zones, ensuring thermal comfort and energy efficiency.
  • Precision in Smart Home Automation (Obj. 6): Use Case: Automated Room-Specific Adjustments. Automation features are tailored to the unique material and spatial characteristics of each room, enabling precise control over smart home devices.
Overall, the case study and simulation demonstrate the successful validation of the proposed DT framework in fulfilling the key scientific objectives of this research. These include enhancing realism and user engagement through immersive 3D modeling, enabling precise energy and environmental monitoring with spatial and functional segmentation, and facilitating predictive analytics and automation for efficient and user-centric energy management. These outcomes highlight the framework’s ability to bridge physical and digital domains, optimize energy consumption, and support sustainable practices in residential energy systems, thereby addressing the scalability, usability, and efficiency challenges outlined in this study.

5.1. Experiment Setup

The ICON was applied on a Raspberry Pi 5 (Rpi5) (Cambridge, UK) [36]. The Z-Wave was selected as this protocol is reliable and low power; hence, it can offer flawless communication between devices in a smart home. Sensors and devices were connected to a central hub or gateway through the use of a Z-Wave dongle [37], which efficiently enabled integration and management while keeping the communication stable and reliable. These components were utilized to enable communication with various smart home sensors, functioning as the main gateway that interfaced the Raspberry Pi with a network of devices via the Z-Wave protocol. This controller translated between the Z-Wave communication standard and the Raspberry Pi, facilitating interaction with compatible sensors, such as the MCO Home (Tokyo, Japan) Z-Wave CO2 sensor [38] for air quality monitoring, the Aeotec Heavy Duty Smart Switch Gen5 (Hamburg, Germany) [39] for managing high-power appliances, the Three-phase Energy Meter [40] for real-time energy consumption data, the Smart Plug Fibaro v2 (Wysogotowo, Poland) [41] for remote control of standard appliances, the FIBARO Motion Sensor [42] for motion detection, and the ZXT-600 AC Master (Remotec, Hong Kong, China) [43] for HVAC control. Table 3 below contains a list of all the devices that were used.
The visualization of IoT integration identifies the interconnected network of devices, data flows, and systems that facilitate the exchange of data across the IoT platform. The following graphic shows the main elements of the IoT architecture such as sensors, interconnectivity protocols, cloud infrastructure, and data analytics modules, which make it possible to form real-time insights. Through visualization, these individual components and their complex interactions become clear and enhance efficiency in the data-based decision-making process.
Figure 7 illustrates the data on an IoT platform, giving real-time information, as well as information about the pattern of events and in-depth information obtained from the data. Therefore, these graphical items helpfully depict the entire project’s data flow.

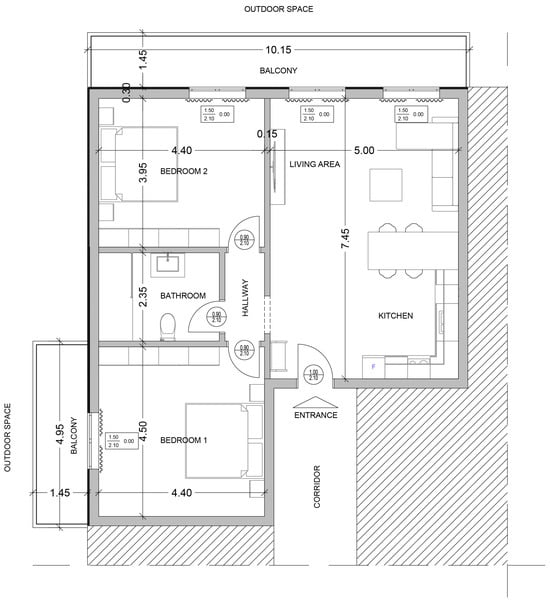
5.2. Parametric Standardized 3D House Model

For the implementation of the HEMS, a residential apartment design was selected as the basis for the DT model. The two-dimensional floor plan of this apartment includes two bedrooms, an open-plan living and kitchen area, a bathroom, and a central hallway connecting all spaces. The layout also features exterior balcony openings, allowing natural light and ventilation (Figure 8). During the 3D modeling phase, key structural elements were incorporated to closely reflect realistic building characteristics. Exterior walls were constructed with a thickness of 30 cm, integrating both masonry and external thermal insulation to enhance energy efficiency. Interior partition walls, primarily for space delineation, were assigned a thickness of 15 cm. Following the structural setup, openings for external windows, balcony doors, and the main entrance were positioned according to the floor plan, facilitating natural light entry and cross-ventilation. Interior doors were strategically placed to support room connectivity and privacy where needed.
Once the structural layout was completed, materials were applied to the model to reflect a realistic home environment. Wood flooring was implemented throughout the apartment, except in the bathroom, where tiles were used to resist moisture. Additionally, walls in each space were painted with unique colors to visually differentiate rooms, which supports usability and enhances the Digital Twin model’s data segmentation for energy management. Bedrooms, the hallway, and the open-plan area all have distinct hues that improve the user’s spatial awareness within the Digital Twin interface.
To improve immersion, essential furnishings were incorporated. Bedrooms were furnished with beds, wardrobes, and curtains for shading. In the open-plan living and kitchen area, a complete kitchen setup with a dining table and appliances was modeled, alongside a living area with a sofa, coffee table, and TV. The bathroom was equipped with standard sanitary fixtures, including a washbasin, toilet, and shower. Following the application of all materials and furnishings, the model was prepared for transformation into a fully interactive Digital Twin. This model provides users with an immersive experience, mirroring the apartment’s layout and aesthetics while allowing for advanced energy management, environmental monitoring, and data-driven insights within the Digital Twin framework. Figure 9 presents the parametric standardized 3D house mode.

5.3. Digital Twin for HEMS

This section presents the implementation and functionality of the DT framework for an HEMS, focusing on its real-world application. Initially, it discusses the integration of IoT sensors within the DT environment, enabling real-time operational monitoring and fault detection. Furthermore, the system’s capability to track and visualize indoor environmental parameters is explored, such as temperature and humidity, providing users with actionable insights. Finally, it highlights the use of thermal comfort metrics, including the PMV index, to optimize indoor conditions while ensuring energy efficiency. These components collectively validate the DT’s role in enhancing energy management, user engagement, and system reliability.

5.3.1. Status of Sensors in DT

One critical aspect of monitoring indoor conditions in an HEMS is ensuring the operational status of all connected sensors. Often, alerts and logs generated by such systems remain unnoticed or unread by end-users, leading to delayed responses to sensor malfunctions. This can undermine the accuracy and reliability of the HEMS, as sensor data are fundamental to maintaining optimal indoor conditions. In this paper, a user-friendly framework is proposed to visualize sensor statuses in real-time within the DT environment. The process begins with each sensor in the IoT network continuously collecting data and transmitting it to the ICON. This transmission includes not only environmental measurement but also the sensor’s operational status (i.e., active, non-active). Once the data are received by the ICON, they are processed and stored in the database. The database serves as a reliable repository, where the operational status of each sensor is recorded along with historical and real-time data. This ensures that the system has a robust record of sensor activity, which can be referenced at any time.
Using the generated 3D house model as a basis, virtual sensors corresponding to real ones can be overlaid on top of the model to match the real sensors’ positions (Figure 10). The Unreal Engine 5 software used in the DT framework communicates with each sensor via API calls [44]. These API interactions allow the Digital Twin to retrieve the real-time operational status of the sensors and visually update their status within the 3D environment. The retrieved data are visualized within the DT using an intuitive and user-friendly interface. Each sensor is represented in the virtual model with a simple color-coded scheme to indicate its status. Green indicates that the sensor is functioning correctly (i.e., active), while red highlights sensors that are malfunctioning or offline (i.e., non-active). This straightforward visualization enables users to quickly identify and address any issues.
In addition to visualization, the system is also capable of generating alerts for malfunctioning sensors. These alerts can be sent via email, SMS, or app notifications, ensuring that users are promptly informed of any issues, reducing the likelihood of unnoticed malfunctions. The alerts complement the visual status indicators, making the monitoring process both proactive and accessible. This approach enhances the usability and reliability of the HEMS. By providing immediate feedback through the DT, users can address sensor issues in a timely manner. The integration of IoT devices, centralized data storage, API communication, and real-time visualization ensures that the Digital Twin remains an accurate and interactive representation of the physical system. This proactive monitoring framework improves system performance, enhances user engagement, and ensures optimal energy management and environmental comfort.

5.3.2. Indoor Monitoring in DT

The DT environment is not only designed for monitoring the operational status of sensors but also for taking actionable steps to interact with their physical counterparts. By integrating real-time sensor data into the 3D house model, the DT enables a more comprehensive understanding of indoor conditions such as temperature and humidity as depicted in Figure 11. In the DT, the virtual sensors corresponding to real ones are placed in their physical locations within the house layout. These sensors actively track key parameters (e.g., temperature, humidity). The DT retrieves real-time data from IoT sensors through API calls, ensuring continuous synchronization with the physical environment. For instance, in Figure 11, a green indicator signifies that the corresponding sensor is functioning properly and provides data on the current indoor conditions, such as 28 °C temperature and 75% humidity.
Beyond monitoring, the DT enables users to take direct actions based on the displayed sensor data. For example, if indoor conditions deviate from optimal comfort levels, users can trigger changes, such as adjusting the thermostat or activating ventilation systems, directly through the DT interface. These actions are communicated back to the physical devices via the IoT network, ensuring that the desired changes are implemented seamlessly. This bidirectional communication and interaction make the DT a powerful tool for proactive indoor environment management. By combining real-time monitoring, intuitive visualization, and actionable controls, the DT enhances user engagement and ensures that indoor conditions are maintained effectively. The figure illustrates this functionality, showing how real-time data and user-triggered actions are visually and operationally integrated into the system.

5.3.3. Thermal Comfort in the DT

The system is designed to seamlessly integrate with other services and applications (Section 4.2), enabling enhanced functionalities such as estimating thermal comfort using the PMV index [45]. The PMV index provides a scientifically validated measure of thermal comfort; this index is estimated in real time based on environmental parameters such as temperature, humidity, and personal factors, and the results are stored in the system’s database. Figure 12 showcases the PMV data as calculated in real time. The thermal comfort conditions are visualized for the three different rooms within the house. As seen, the PMV values for the living room and bedrooms exhibit slight variations throughout the day, reflecting different usage patterns and environmental influences. Despite these differences, the overall fluctuations remain within a moderate range, indicating stable comfort levels across the rooms.
To represent thermal comfort visually within the Digital Twin, a color map is implemented based on the PMV scale as shown in Figure 13.
Each wall and room area is dynamically updated to reflect its thermal comfort level, with colors ranging from blue (cooler) to green (neutral) and red (warmer). This visualization allows users to intuitively assess the thermal conditions of their home and make informed adjustments if necessary, such as modifying HVAC settings to maintain optimal comfort Figure 14. The integration of real-time PMV estimation, visualization, and actionable controls within the Digital Twin enhances the user experience and ensures energy-efficient home management while maintaining thermal comfort.
The integration of real-time PMV estimation, visualization, and actionable controls within the Digital Twin enhances the user experience and ensures energy-efficient home management while maintaining thermal comfort. The results of the case study are illustrated on the GitHub repository [46].

5.4. Evaluation of Key Performance Metrics

The scientific aim of this research was validated through a set of carefully defined Key Performance Indicators (KPIs) that measure the framework’s effectiveness in achieving its objectives. These KPIs included real-time system performance, predictive accuracy, scalability, usability, and energy efficiency. Specifically, the real-time system performance was assessed by measuring data synchronization latency, ensuring seamless integration of IoT data into the Digital Twin environment. Scalability was demonstrated through system response times under varying loads, maintaining robust performance even with increased IoT device connections. Usability was estimated through user experience based on ease of navigation and actionable insights.
In Table 4, the KPIs for evaluating the suggested framework for IoT-integrated HEMSs are outlined. The table highlights essential aspects such as the setup time required for plug-and-play IoT integration and DT framework installation, emphasizing non-intrusiveness with minimal structural modifications. Real-time monitoring is measured by latency and memory efficiency, ensuring the synchronization of IoT data within the DT environment. Metrics for system performance include the ability to minimize storage requirements by using reusable 3D models and maintaining RAM utilization during high-load operations. Additionally, scalability and seamless integration are evaluated through metrics like data reflection time, model build time, and resource efficiency, ensuring the system’s readiness for real-world applications.
This comprehensive approach ensures the proposed framework not only meets technical and operational standards but also aligns with user expectations for non-intrusiveness and intuitive interaction. The integration of IoT and DT technologies, evaluated through these performance indicators, demonstrates the potential to optimize energy efficiency, enhance real-time monitoring, and provide actionable insights for sustainable energy management in modern households. As such, the study contributes significantly to the advancement of scalable and user-friendly solutions for smart energy management, paving the way for future research and practical implementations in the HEMS domain.
A comparative analysis with traditional HEMS systems highlights the transformative potential of integrating Digital Twin technology. The comparison evaluates improvements in real-time data synchronization, predictive capabilities, and overall system scalability, demonstrating how the proposed framework addresses limitations in conventional systems. This dual approach ensures a comprehensive assessment of the framework’s performance and its practical implications for users and HEMS. As a result, the importance of the standardized DT model, where users still enjoy the full benefits of a DT-enabled HEMS, in a scenario involving 50 new users is considered. Comparing the suggested framework to traditional methods of both IoT and DT integration, the results are summarized in Table 5. The proposed framework demonstrates significant efficiency and scalability advantages. By utilizing a single, standardized DT model and plug-and-play IoT devices, the framework reduces the time and resource burdens typically associated with traditional systems.
Specifically, based on the results, a 94% reduction in overall deployment time was achieved, minimizing the effort required to set up IoT systems and build the DT. Moreover, the use of a single standardized DT model resulted in a 98% reduction in memory usage compared to the traditional approach, which involves creating individual DT models for each household. With plug-and-play capabilities, the framework reduced IoT setup time per user by 50%, providing a more streamlined and efficient process. The non-intrusive nature of the proposed framework resulted in 75% fewer installations requiring structural modifications, ensuring easier adoption and implementation in diverse home environments. These results clearly demonstrate the superiority of the proposed framework in terms of time, scalability, and user convenience while maintaining the high-quality experience and energy management capabilities enabled by Digital Twin integration. In addition to these operational efficiencies, the cost analysis highlights the economic benefits of the proposed framework. In terms of cost for a 50-household deployment, the proposed framework is significantly more economical, with an estimated total cost of approximately EUR 9050 (EUR 180 hardware per household + negligible setup costs and EUR 1–2 for the standardized model). In contrast, traditional systems require an estimated EUR 15,000–EUR 20,000 (EUR 300–EUR 400 per household due to higher hardware, setup, and custom modeling expenses). This translates to a cost reduction of 40–55% for the proposed framework, making it a highly cost-effective solution for large-scale adoption in smart home technologies.

5.5. Limitations, Challenges, and Extensions

The proposed framework offers significant advancements in enhancing HEMSs through the integration of DT technology. However, certain limitations and challenges remain to be addressed. Scalability is a key consideration, as the framework has been evaluated within specific IoT configurations, and its application across diverse and larger-scale residential setups with more complex IoT ecosystems requires further validation. Additionally, while the framework demonstrates robust predictive capabilities, ensuring consistent accuracy under dynamic and unpredictable user behaviors in real-world environments presents an important area for further exploration. User engagement and usability assessments have primarily been based on predefined use cases. Broader validation across varied demographics and user preferences is essential to refine the framework’s design and functionality. Another important consideration is the adaptability and generalizability of the DTs. While effective for specific scenarios, ensuring these models can accommodate diverse home layouts and IoT device capabilities remains a challenge.
In terms of implementation, deploying the framework across heterogeneous residential infrastructures and ensuring seamless compatibility with varying IoT configurations presents practical complexities. Additionally, the lack of standardized DT models tailored for residential environments highlights the need for collaborative efforts to establish universal standards. Data privacy and security also emerge as critical concerns, requiring robust measures to safeguard user information and foster trust. Lastly, integrating advanced technologies such as artificial intelligence, machine learning, and renewable energy systems introduces new opportunities but also challenges in ensuring interoperability and optimizing system performance. Despite these limitations, the framework establishes a strong foundation for advancing residential energy management, providing clear pathways for addressing these challenges and guiding future research.
Moreover, while the current study validates the proposed framework using a two-bedroom residential layout, this choice was intentional to demonstrate the feasibility and benefits of utilizing a predefined framework. Future work could explore adapting this framework to larger and more complex environments, such as multi-storied buildings. Future iterations should also consider incorporating predefined room types and leveraging modular grid-based designs to dynamically construct more complex structures. This enhancement would significantly improve the framework’s adaptability and scalability, broadening its applicability while maintaining its inherent advantages.
The proposed framework was designed with scalability and flexibility in mind, allowing for future extensions to address additional factors and scenarios. For instance, the framework can be augmented to include mechanisms for handling network disconnections, sensor failures, and high data loads to improve robustness in real-world applications. Moreover, while the current implementation focuses on thermal comfort using PMV indices, it can be extended to incorporate additional environmental factors such as noise levels and air quality. These enhancements would provide a more holistic approach to home energy management, ensuring a comprehensive understanding of occupant comfort and environmental sustainability. By building on the existing modular and adaptable design, such extensions can be seamlessly integrated without compromising the framework’s simplicity and usability.
The most critical achievement of the proposed framework is the seamless integration of IoT devices with the Digital Twin environment, which forms the foundation for various advanced visualizations. By leveraging real-time data collected from IoT sensors, the framework enables a wide range of interactive and informative visual representations, including energy consumption patterns, thermal comfort levels, and occupancy trends. These visualizations can be further tailored to incorporate other environmental factors, such as noise levels, air quality, or even predictive analytics for device performance and energy optimization. The flexibility and modularity of this IoT integration ensure that users can gain actionable insights through intuitive dashboards or immersive 3D interfaces, enhancing their understanding and control over home energy management systems.

6. Conclusions

This study presents an innovative framework for integrating IoT technologies with Digital Twins in Home Energy Management Systems. By leveraging a standardized parametric 3D modeling approach, the proposed solution addresses key challenges such as scalability, deployment complexity, and resource optimization. The framework demonstrates significant advancements over traditional methods, achieving a 94% reduction in deployment time and a 98% decrease in memory usage, while ensuring non-intrusive installation and seamless integration of diverse IoT protocols.
The integration of real-time monitoring, predictive analytics, and user-friendly visualizations empowers households to optimize energy consumption and maintain thermal comfort effectively. Additionally, the incorporation of metrics like the PMV index enhances the precision of environmental adjustments, ensuring a balance between energy efficiency and user comfort. The scalability and interoperability of the framework make it a robust solution for large-scale deployments, contributing to the development of sustainable and intelligent residential environments.
Future research will focus on creating a user-friendly system that enables residents to construct their Digital Twin homes by selecting and customizing pre-designed rooms. Users will be able to adjust parameters such as dimensions, layouts, and furnishings to build a virtual representation closely resembling their actual house. This approach will combine the efficiency of standardized models with the flexibility of user customization, streamlining the adoption process and providing precise energy management tailored to individual household configurations.

Author Contributions

Conceptualization, M.S., A.D. and V.N.; methodology, A.D. and S.K.; software, A.D., A.P., O.E. and G.S.; validation, A.D., M.S., I.T. and A.P.; formal analysis, C.P.; investigation, A.D. and M.P.; resources, I.T. and V.N.; data curation, G.S. and A.P.; writing—original draft preparation, M.S. and O.E.; writing—review and editing, A.L., C.-N.A. and S.K.; visualization, C.P.; supervision, C.-N.A., S.K. and A.L.; project administration, S.K.; funding acquisition, C.-N.A., V.N. and A.L. All authors have read and agreed to the published version of the manuscript.

Funding

This research received no external funding.

Institutional Review Board Statement

Not applicable.

Informed Consent Statement

Not applicable.

Data Availability Statement

The data presented in this study are available on request from the corresponding author. The data are not publicly available due to privacy.

Acknowledgments

This work was partially supported by the FLEdge project F-DUT-2022-0337. The FLEdge project is funded by the General Secretariat of Research & Innovation goals (GSRI) under the Driving Urban Transitions (DUT) Partnership by the Bulgarian National Science Fund (BNSF) under agreement no. KP-06-D002/5 (GATE) and by the European Union. This work was also supported by the SEED4AI project under programme 16880—KE83201 implemented in the framework of the National Recovery and Resilience Plan ’Greece 2.0’, with funding from the European Union—NextGenerationEU (Implementing Agency: EL.ID.E.K). Finally, this work was supported by the GATE project funded by the H2020 WIDESPREAD-2018-2020 TEAMING Phase 2 programme under grant agreement no. 857155.

Conflicts of Interest

Author Orfeas Eleftheriou was employed by the company Code-Flow. The remaining authors declare that the research was conducted in the absence of any commercial or financial relationships that could be construed as a potential conflict of interest.

References

  1. Energy Performance of Buildings Directive—energy.ec.europa.eu. Available online: https://energy.ec.europa.eu/topics/energy-efficiency/energy-efficient-buildings/energy-performance-buildings-directive_en (accessed on 19 November 2024).
  2. Dimara, A.; Timplalexis, C.; Krinidis, S.; Schneider, C.; Bertocchi, M.; Tzovaras, D. Optimal comfort conditions in residential houses. In Proceedings of the 2020 5th International Conference on Smart and Sustainable Technologies (SpliTech), Bol, Croatia, 2–4 July 2020; pp. 1–6. [Google Scholar]
  3. Syamala, M.; Komala, C.; Pramila, P.; Dash, S.; Meenakshi, S.; Boopathi, S. Machine learning-integrated IoT-based smart home energy management system. In Handbook of Research on Deep Learning Techniques for Cloud-Based Industrial IoT; IGI Global: Hershey, PA, USA, 2023; pp. 219–235. [Google Scholar]
  4. Papaioannou, A.; Dimara, A.; Krinidis, S.; Anagnostopoulos, C.N.; Ioannidis, D.; Tzovaras, D. Advanced proactive anomaly detection in multi-pattern home appliances for energy optimization. Internet Things 2024, 26, 101175. [Google Scholar] [CrossRef]
  5. Papaioannou, A.; Dimara, A.; Kouzinopoulos, C.S.; Krinidis, S.; Anagnostopoulos, C.N.; Ioannidis, D.; Tzovaras, D. LP-OPTIMA: A Framework for Prescriptive Maintenance and Optimization of IoT Resources for Low-Power Embedded Systems. Sensors 2024, 24, 2125. [Google Scholar] [CrossRef]
  6. Lamagna, M.; Groppi, D.; Nezhad, M.M.; Piras, G. A comprehensive review on digital twins for smart energy management system. Int. J. Energy Prod. Manag. 2021, 6, 323–334. [Google Scholar] [CrossRef]
  7. Donchev, D.; Petrova-Antonova, D.; Hristov, P.O. An efficient hybrid regression model for energy and water consumption in a municipal kindergarten. In Proceedings of the 2022 7th International Conference on Smart and Sustainable Technologies (SpliTech), Split/Bol, Croatia, 5–8 July 2022; pp. 1–6. [Google Scholar]
  8. Mitkov, R.; Petrova-Antonova, D.; Hristov, P.O. Predictive Modeling of Indoor Environmental Parameters for Assessing Comfort Conditions in a Kindergarten Setting. Toxics 2023, 11, 709. [Google Scholar] [CrossRef] [PubMed]
  9. Ye, X.; Du, J.; Han, Y.; Newman, G.; Retchless, D.; Zou, L.; Ham, Y.; Cai, Z. Developing human-centered urban digital twins for community infrastructure resilience: A research agenda. J. Plan. Lit. 2023, 38, 187–199. [Google Scholar] [CrossRef] [PubMed]
  10. Malik, I.; Bhardwaj, A.; Bhardwaj, H.; Sakalle, A. IoT-enabled smart homes: Architecture, challenges, and issues. In Revolutionizing Industrial Automation Through the Convergence of Artificial Intelligence and the Internet of Things; IGI Global: Hershey, PA, USA, 2023; pp. 160–176. [Google Scholar]
  11. Tahmasebinia, F.; Lin, L.; Wu, S.; Kang, Y.; Sepasgozar, S. Exploring the benefits and limitations of digital twin technology in building energy. Appl. Sci. 2023, 13, 8814. [Google Scholar] [CrossRef]
  12. Javaid, M.; Haleem, A.; Suman, R. Digital twin applications toward industry 4.0: A review. Cogn. Robot. 2023, 3, 71–92. [Google Scholar] [CrossRef]
  13. Al-Ali, A.; Zualkernan, I.A.; Rashid, M.; Gupta, R.; Alikarar, M. A smart home energy management system using IoT and big data analytics approach. IEEE Trans. Consum. Electron. 2017, 63, 426–434. [Google Scholar] [CrossRef]
  14. Machorro-Cano, I.; Alor-Hernández, G.; Paredes-Valverde, M.A.; Rodríguez-Mazahua, L.; Sánchez-Cervantes, J.L.; Olmedo-Aguirre, J.O. HEMS-IoT: A Big Data and Machine Learning-Based Smart Home System for Energy Saving. Energies 2020, 13, 1097. [Google Scholar] [CrossRef]
  15. Gupta, R.; Al-Ali, A.R.; Zualkernan, I.A.; Das, S.K. Big Data Energy Management, Analytics and Visualization for Residential Areas. IEEE Access 2020, 8, 156153–156164. [Google Scholar] [CrossRef]
  16. Hossain, E.; Khan, I.; Un-Noor, F.; Sikander, S.S.; Sunny, M.S.H. Application of Big Data and Machine Learning in Smart Grid, and Associated Security Concerns: A Review. IEEE Access 2019, 7, 13960–13988. [Google Scholar] [CrossRef]
  17. Ilieva, S.; Penchev, A.; Petrova-Antonova, D. Internet of Things Framework for Smart Home Building. In Proceedings of the Digital Transformation and Global Society, St. Petersburg, Russia, 22–24 June 2016; pp. 450–462. [Google Scholar]
  18. Condon, F.; Martínez, J.M.; Eltamaly, A.M.; Kim, Y.C.; Ahmed, M.A. Design and Implementation of a Cloud-IoT-Based Home Energy Management System. Sensors 2023, 23, 176. [Google Scholar] [CrossRef]
  19. Sundaramoorthi, P.; Albert Alexander, S. Cloud-based mqtt protocol for power monitoring and socket control system. Int. J. Adv. Signal Image Sci. 2023, 9, 10–19. [Google Scholar]
  20. Ferreira, L.C.B.C.; Borchardt, A.D.R.; Cardoso, G.D.S.; Mendes Lemes, D.A.; Sousa, G.R.D.R.d.; Neto, F.B.; de Lima, E.R.; Fraidenraich, G.; Cardieri, P.; Meloni, L.G.P. Edge Computing and Microservices Middleware for Home Energy Management Systems. IEEE Access 2022, 10, 109663–109676. [Google Scholar] [CrossRef]
  21. Iqbal, F.; Altaf, A.; Waris, Z.; Aray, D.G.; Flores, M.A.L.; Díez, I.d.l.T.; Ashraf, I. Blockchain-Modeled Edge-Computing-Based Smart Home Monitoring System with Energy Usage Prediction. Sensors 2023, 23, 5263. [Google Scholar] [CrossRef]
  22. Fazeldehkordi, E.; Grønli, T.M. A Survey of Security Architectures for Edge Computing-Based IoT. IoT 2022, 3, 332–365. [Google Scholar] [CrossRef]
  23. Arsecularatne, B.; Rodrigo, N.; Chang, R. Digital Twins for Reducing Energy Consumption in Buildings: A Review. Sustainability 2024, 16, 9275. [Google Scholar] [CrossRef]
  24. Das, H.P.; Lin, Y.W.; Agwan, U.; Spangher, L.; Devonport, A.; Yang, Y.; Drgoňa, J.; Chong, A.; Schiavon, S.; Spanos, C.J. Machine Learning for Smart and Energy-Efficient Buildings. Environ. Data Sci. 2024, 3, e1. [Google Scholar] [CrossRef]
  25. Fathy, Y.; Jaber, M.; Nadeem, Z. Digital Twin-Driven Decision Making and Planning for Energy Consumption. J. Sens. Actuator Networks 2021, 10, 37. [Google Scholar] [CrossRef]
  26. Testasecca, T.; Stamatopoulos, S.; Natalini, A.; Lazzaro, M.; Capizzi, C.M.; Sarmas, E.; Arnone, D. Implementing Digital Twins for Enhanced Energy Management in Three Case Studies. In Proceedings of the 2024 IEEE International Workshop on Metrology for Living Environment (MetroLivEnv), Chania, Greece, 12–14 June 2024; pp. 343–348. [Google Scholar]
  27. De Lope, L.R.; Maestre, V.M.; Diez, L.; Ortiz, A.; Agüero, R.; Ortiz, I. Modeling a digital twin for the optimization of a self-supply energy system for residential use. In Proceedings of the 2024 IEEE International Systems Conference (SysCon), Montreal, QC, Canada, 15–18 April 2024; pp. 1–8. [Google Scholar]
  28. Cotti, L.; Guizzardi, D.; Barricelli, B.R.; Fogli, D. Enabling End-User Development in Smart Homes: A Machine Learning-Powered Digital Twin for Energy Efficient Management. Future Internet 2024, 16, 208. [Google Scholar] [CrossRef]
  29. Wen, T.; Liang, C.; Fu, Y.M.; Xiao, C.X.; Xiang, H.M. Floor plan analysis and vectorization with multimodal information. In Proceedings of the International Conference on Multimedia Modeling, Bergen, Norway, 9–12 January 2023; pp. 282–293. [Google Scholar]
  30. Cline, L.S. Sketchup for Interior Design: 3D Visualizing, Designing, and Space Planning; John Wiley & Sons: Hoboken, NJ, USA, 2023. [Google Scholar]
  31. Leony, A.; Latief, Y.; Wardahni, N.I. The Development of Maintenance and Care System for Public Railway Facility Infrastructure Integrated with Building Information Modeling (BIM) Software Based on Work Breakdown Structure (WBS). Int. Res. J. Eng. IT Sci. Res. 2024, 10, 49–57. [Google Scholar] [CrossRef]
  32. Saint-Amour, P.K. To Detail a Dollhouse. Mod. Lang. Q. 2023, 84, 261–272. [Google Scholar] [CrossRef]
  33. MQTT-The Standard for IoT Messaging. Available online: https://mqtt.org (accessed on 18 November 2024).
  34. Seoane, V.; Garcia-Rubio, C.; Almenares, F.; Campo, C. Performance evaluation of CoAP and MQTT with security support for IoT environments. Comput. Networks 2021, 197, 108338. [Google Scholar] [CrossRef]
  35. Jang, W.; Choi, J.; Seo, K. Comparative Analysis of IoT Communication Protocols. In Proceedings of the 2018 International Symposium on Networks, Computers and Communications (ISNCC), Rome, Italy, 19–21 June 2018. [Google Scholar]
  36. Raspberry Pi 5. Available online: https://www.raspberrypi.com/products/raspberry-pi-5/ (accessed on 19 November 2024).
  37. Aeotec Z-Stick 7. Available online: https://aeotec.com/products/aeotec-z-stick-7/ (accessed on 19 November 2024).
  38. MCO Home-Z-Wave CO2 Sensor. Available online: https://www.z-wavelab.com/image/catalog/PDF/20160531160808.pdf (accessed on 19 November 2024).
  39. Aeotec Heavy Duty Smart Switch Gen5. Available online: https://aeotec.com/products/aeoteo-heavy-duty-switch/ (accessed on 19 November 2024).
  40. Qubino 3-Phase Smart Meter. Available online: https://qubino.com/products/3-phase-smart-meter/ (accessed on 19 November 2024).
  41. Smart Plug Fibaro. Available online: https://www.fibaro.com/gr/products/wall-plug/ (accessed on 19 November 2024).
  42. FIBARO Motion Sensor. Available online: https://www.fibaro.com/gr/products/motion-sensor/ (accessed on 19 November 2024).
  43. ZXT-600 AC MASTER. Available online: http://manuals-backend.z-wave.info/make.php?lang=en&sku=ZXT-600US&cert=ZC10-17055619. (accessed on 19 November 2024).
  44. Sun, Y.; Wang, H.; Zhang, Z.; Diels, C.; Asadipour, A. Executing realistic earthquake simulations in unreal engine with material calibration. Comput. Graph. 2024, 124, 104091. [Google Scholar] [CrossRef]
  45. Tzitziou, G.; Dimara, A.; Papaioannou, A.; Tzouvaras, C.; Krinidis, S.; Anagnostopoulos, C.N.; Ioannidis, D.; Tzovaras, D. Realtime Multi-factor Dynamic Thermal Comfort Estimation for Indoor Environments. In Proceedings of the IFIP International Conference on Artificial Intelligence Applications and Innovations, León, Spain, 14–17 June 2023; pp. 219–230. [Google Scholar]
  46. Stogia, M.; Naserentin, V.; Krinidis, S. Integrating IoT in Digital Twins for Home Energy Management. Available online: https://github.com/iTechLab2024/A-Scalable-and-User-Friendly-Framework-Integrating-IoT-and-Digital-Twins-for-Home-Energy-Management (accessed on 18 November 2024).
  47. Verykokou, S.; Ioannidis, C. An overview on image-based and scanner-based 3D modeling technologies. Sensors 2023, 23, 596. [Google Scholar] [CrossRef]
Figure 1. Extended HEMS architecture incorporating DT Layer.
Figure 1. Extended HEMS architecture incorporating DT Layer.
Applsci 14 11834 g001
Figure 2. Comparison of HEMS with and without Digital Twin, illustrating system architecture, data flows, and differentiated purposes.
Figure 2. Comparison of HEMS with and without Digital Twin, illustrating system architecture, data flows, and differentiated purposes.
Applsci 14 11834 g002
Figure 3. Workflow for 3D model development and DT integration in HEMS.
Figure 3. Workflow for 3D model development and DT integration in HEMS.
Applsci 14 11834 g003
Figure 4. Data flow and integration process of HEMS.
Figure 4. Data flow and integration process of HEMS.
Applsci 14 11834 g004
Figure 5. Gateway Middleware Framework.
Figure 5. Gateway Middleware Framework.
Applsci 14 11834 g005
Figure 6. Architecture of IoT-enabled middleware and applications.
Figure 6. Architecture of IoT-enabled middleware and applications.
Applsci 14 11834 g006
Figure 7. Time series data from sensors.
Figure 7. Time series data from sensors.
Applsci 14 11834 g007
Figure 8. 2D model for HEMS.
Figure 8. 2D model for HEMS.
Applsci 14 11834 g008
Figure 9. Parametric standardized 3D house model. 3D models illustrating the development stages of a standardized parametric house model for DT integration in an HEMS. (a,c): Bare 3D structural layouts emphasizing spatial relationships, furnished with essential furniture and appliances, shown from different perspectives. (b,d): Models enriched with applied materials and distinct room-specific color coding to enhance realism, spatial differentiation, and data segmentation, supporting immersive visualization and energy management within the DT framework.
Figure 9. Parametric standardized 3D house model. 3D models illustrating the development stages of a standardized parametric house model for DT integration in an HEMS. (a,c): Bare 3D structural layouts emphasizing spatial relationships, furnished with essential furniture and appliances, shown from different perspectives. (b,d): Models enriched with applied materials and distinct room-specific color coding to enhance realism, spatial differentiation, and data segmentation, supporting immersive visualization and energy management within the DT framework.
Applsci 14 11834 g009
Figure 10. DT visualization of HEMS with virtual sensors: green indicates functional sensors, and red indicates malfunctions.
Figure 10. DT visualization of HEMS with virtual sensors: green indicates functional sensors, and red indicates malfunctions.
Applsci 14 11834 g010
Figure 11. Indoor conditions monitoring in DT.
Figure 11. Indoor conditions monitoring in DT.
Applsci 14 11834 g011
Figure 12. Thermal comfort conditions.
Figure 12. Thermal comfort conditions.
Applsci 14 11834 g012
Figure 13. PMV scale color map.
Figure 13. PMV scale color map.
Applsci 14 11834 g013
Figure 14. Thermal comfort in DT.
Figure 14. Thermal comfort in DT.
Applsci 14 11834 g014
Table 1. Comparison of features and methods across related works.
Table 1. Comparison of features and methods across related works.
Feature/
Method
Non-Intrusive
IoT Setup
Pre-Designed
DT Framework
Real-Time
IoT-DT
Integration
ScalabilityEase of
Installation
Cost-
Effectiveness
Interoperability
Al-Ali et al. (2017) [13] 🗸🗸
Machorro-Cano et al. (2020) [14] 🗸🗸
Gupta et al. (2020) [15] 🗸🗸🗸 🗸
Condon et al. (2023) [18] 🗸🗸🗸 🗸
Ferreira et al. (2022)   [20] 🗸🗸🗸
Iqbal et al. (2023)   [21] 🗸🗸🗸 🗸
Testasecca et al. (2024) [26] 🗸🗸🗸 🗸
This Paper🗸🗸🗸🗸🗸🗸🗸
Table 2. Devices and sensors in an IoT system.
Table 2. Devices and sensors in an IoT system.
Device TypeFunctionData Collected
ICONManages connectionsAggregated sensor data
Communication ModuleFacilitates data exchangeSignal communication
Device Management InterfaceConfigures and controls devicesDevice status and configuration
SensorsMeasure various conditionsTemperature, humidity, CO2,
motion, light levels, energy
consumption
Appliance ControllerManages appliance operationAppliance status
MQTT BrokerManages data flowReal-time data handling
Table 3. Devices and sensors in Z-Wave IoT system.
Table 3. Devices and sensors in Z-Wave IoT system.
Device NameBrandType / Description
Raspberry Pi 5 [36]RaspberryLightweight desktop computing
Aeotec Z-Stick 7 [37]AeotecZ-Wave controller for home automation
MCO Home - Z-Wave CO2 [38]MCO HomeCO2 Sensor with Z-Wave compatibility
Aeotec Heavy Duty Smart Switch Gen5 [39]AeotecHigh-power smart switch for appliances (Z-Wave)
3-Phase Smart Meter [40]QubinoEnergy monitoring for three-phase systems
Smart Plug Fibaro Z-Wave Plus v2 [41]FibaroSmart plug with energy monitoring (Z-Wave Plus)
FIBARO Motion Sensor Z-Wave Plus White [42]FibaroMotion and temperature sensor (Z-Wave Plus)
ZXT-600 AC MASTER [43]RemotecZ-Wave-to-IR bridge for air conditioner control
Table 4. Key performance metrics for evaluating IoT-integrated DT framework in HEMS.
Table 4. Key performance metrics for evaluating IoT-integrated DT framework in HEMS.
MetricProposed FrameworkTraditional IoT Systems ([13,14,15,47])
Setup Time
for IoT Deployment
Average
15 min per user
Average 30–45
min per user
Intrusiveness
in Installation

<5% requiring
structural modifications

20–30% requiring structural
modifications,
including rewiring and new fixtures
Time to Build
DT for All 50
Households
1 h total
(standardized model)

200–300 h
total (4–6 h per house for
customized modeling)
Overall Time
for 50 Users
(IoT + DT)
∼13.5 h

∼225–275 h

Setup Time
for IoT Deployment
Average
15 min per user
Average 30–45
min per user
Memory Usage
for DT

<500 MB
(single model for all users)

∼25 GB total
(500 MB per model
×50 models)
Scalability


Highly scalable with
standardized DT models

Limited scalability
due to custom modeling
and extensive resource
requirements
Interoperability


Seamless integration with
diverse IoT protocols
(Zigbee, Wi-Fi, Z-Wave)

Often protocol-specific,
requiring additional
middleware for
compatibility
User Experience

Intuitive 3D visualizations,
satisfaction score ≥ 4.7/5

Often lacking in real-time
visualization,
satisfaction score ∼3.5–4/5
Table 5. Comparison of proposed IoT-integrated DT framework and traditional IoT systems in deployment time, intrusiveness, and scalability for 50 users.
Table 5. Comparison of proposed IoT-integrated DT framework and traditional IoT systems in deployment time, intrusiveness, and scalability for 50 users.
MetricProposed FrameworkTraditional IoT Systems
([13,14,15,17])
Setup Time
for IoT Deployment
Average 15
min per user
Average 30–45
min per user
Intrusiveness
in Installation

<5% requiring
structural modifications

20–30% requiring structural
modifications,
including rewiring
and new fixtures
Time to Build
DT for All 50
Households
1 h total
(standardized model)

200–300 h total
(4–6 h
per house for customized
modeling)
Overall
Time for 50
Users (IoT + DT)
∼13.5 h

∼225–275 h

Memory
Usage for
DT
<500 MB
(single model
for all users)
∼25 GB total
(500 MB per model ×
50 models)
Scalability


Highly scalable
with standardized
DT models

Limited scalability
due to custom modeling
and extensive resource
requirements
Interoperability


Seamless integration
with diverse IoT
protocols
(Zigbee, Wi-Fi, Z-Wave)
Often protocol-specific,
requiring additional
middleware for compatibility

User Experience

Intuitive 3D visualizations,
satisfaction score 4.7/5

Often lacking in real-time
visualization,
satisfaction score ∼3.5–4/5
Cost
(Approximate)

EUR 180 hardware per
household plus negligible
setup costs;
EUR 1–2 for one model
EUR 300 hardware per
household plus
EUR 20–30 setup costs plus
EUR 40–50 per model
(EUR 2000–EUR 2500 )
Disclaimer/Publisher’s Note: The statements, opinions and data contained in all publications are solely those of the individual author(s) and contributor(s) and not of MDPI and/or the editor(s). MDPI and/or the editor(s) disclaim responsibility for any injury to people or property resulting from any ideas, methods, instructions or products referred to in the content.

Share and Cite

MDPI and ACS Style

Stogia, M.; Naserentin, V.; Dimara, A.; Eleftheriou, O.; Tzitzios, I.; Papaioannou, C.; Pantusheva, M.; Papaioannou, A.; Spaias, G.; Anagnostopoulos, C.-N.; et al. A Scalable and User-Friendly Framework Integrating IoT and Digital Twins for Home Energy Management Systems. Appl. Sci. 2024, 14, 11834. https://doi.org/10.3390/app142411834

AMA Style

Stogia M, Naserentin V, Dimara A, Eleftheriou O, Tzitzios I, Papaioannou C, Pantusheva M, Papaioannou A, Spaias G, Anagnostopoulos C-N, et al. A Scalable and User-Friendly Framework Integrating IoT and Digital Twins for Home Energy Management Systems. Applied Sciences. 2024; 14(24):11834. https://doi.org/10.3390/app142411834

Chicago/Turabian Style

Stogia, Myrto, Vasilis Naserentin, Asimina Dimara, Orfeas Eleftheriou, Ioannis Tzitzios, Christoforos Papaioannou, Mariya Pantusheva, Alexios Papaioannou, George Spaias, Christos-Nikolaos Anagnostopoulos, and et al. 2024. "A Scalable and User-Friendly Framework Integrating IoT and Digital Twins for Home Energy Management Systems" Applied Sciences 14, no. 24: 11834. https://doi.org/10.3390/app142411834

APA Style

Stogia, M., Naserentin, V., Dimara, A., Eleftheriou, O., Tzitzios, I., Papaioannou, C., Pantusheva, M., Papaioannou, A., Spaias, G., Anagnostopoulos, C.-N., Logg, A., & Krinidis, S. (2024). A Scalable and User-Friendly Framework Integrating IoT and Digital Twins for Home Energy Management Systems. Applied Sciences, 14(24), 11834. https://doi.org/10.3390/app142411834

Note that from the first issue of 2016, this journal uses article numbers instead of page numbers. See further details here.

Article Metrics

Back to TopTop