Experimental Analysis of Thermal Performance and Evaluation of Vibration and Utility Function for the Readaptation of a Residential Building in an Experimental Housing Complex
Abstract
1. Introduction
2. Materials and Methods
2.1. Methodology for Measuring Thermal Comfort
2.1.1. Operational Internal Temperature
- hr—heat transfer coefficient by radiation;
- hc—heat transfer coefficient by convection;
- ta—ambient temperature, °C;
- tr—average temperature of radiation from the partitions in the room, °C.
2.1.2. Air Tightness of the Building Envelope
- Buildings with gravity ventilation: n50 ≤ 3.0 [1/h].
- Buildings with mechanical ventilation: n50 ≤ 1.5 [1/h].
2.2. Calculation of the Non-Renewable Primary Energy Indicator EP[kWh/(m2year)]
2.3. Vibrational Comfort Methodology
- Acceleration (velocity) of vibration corrected across the whole frequency range.
- Spectrum (frequency structure) of the effective value (RMS) of acceleration (velocity) of vibration in 1/3 octave band.
- Vibration dose value (VDV).
- Maximum transient vibration value (MTVV).
- aRMS—acceleration RMS value obtained from the analysis;
- aw—acceleration RMS value equivalent to the threshold for the perception of vibration in in the same 1/3 octave band as in aRMS.
3. Results
3.1. Thermal Comfort
3.1.1. Internal Operational Temperature
3.1.2. Air Tightness Test of the Building Envelope
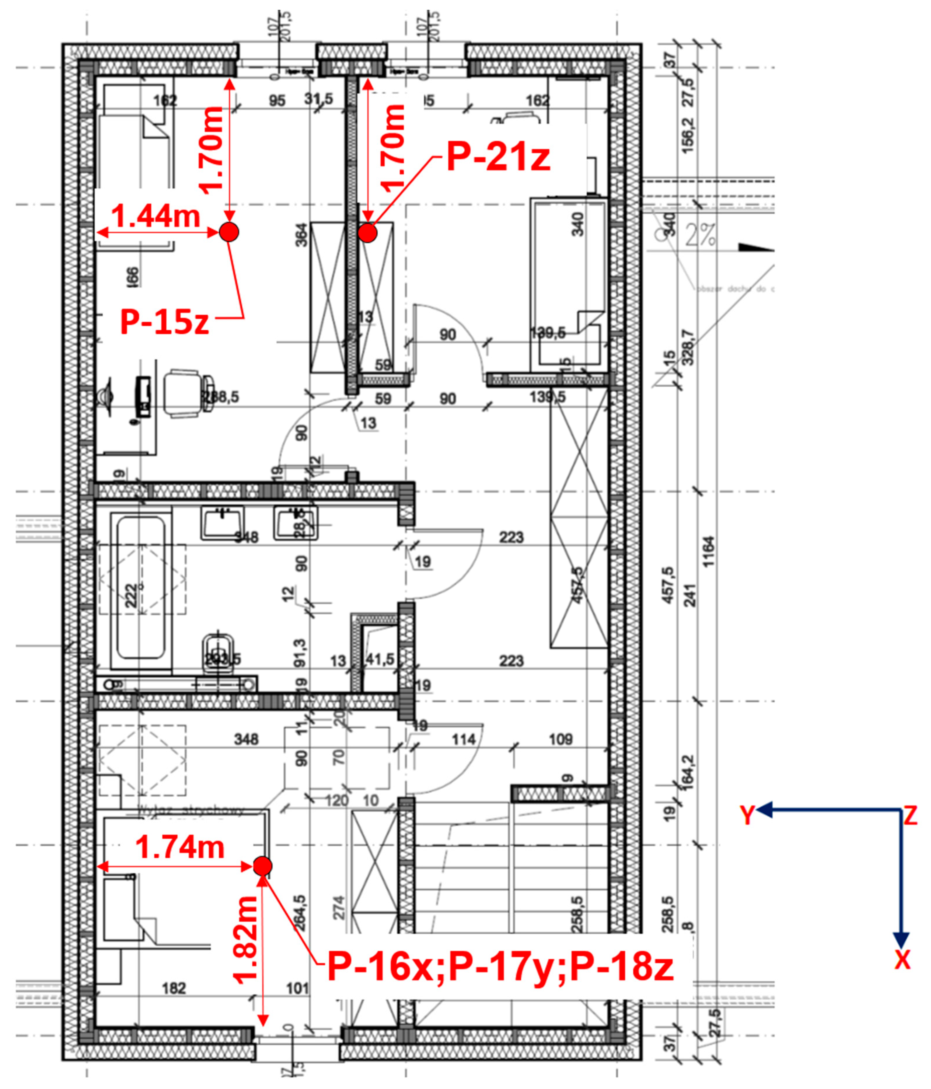
3.2. Vibrational Measurement Description and Results
3.3. The Non-Renewable Primary Energy Indicator EP [kWh/(m2year)]
4. Evaluation of the Cost Prospects of the Implementation of Utility Functions
- Variant V1—nursery and kindergarten;
- Variant V2—shop;
- Variant V3—office.
- F1: Thermal comfort expressed in terms of operative temperature in winter (class A (20 < to ≤ 21), class B (19 < to ≤ 20), and class C (18 < to ≤ 19))
- F2: Percentage reduction in building airtightness envelope n50 (increase in building envelope airtightness) [1/h] (class A (0 ≤ n50 ≤ 0.6), class B (0.6 < n50 ≤ 1.5), and class C (1.5 < n50 ≤ 3.0))
- F3: Non-renewable primary energy indicator EP [kWh/(m2year)] (class A (0 ≤ EP ≤ 42), class B (42 < EP ≤ 56), and class C (56 < EP ≤ 70))
- F4: Vibrations in HPVR (class A, class B, and class C).
- The class required by the standards is higher than the current class (indicated in bold).
- The class required by the standards matches the current class (marked with a pink background).
- The current class exceeds the requirements of the standards (indicated by a blue background).
- Variant V0—base residence: Requires improving criterion F4 by one point (from C to B) and criterion F2 by two points (from C to A):
- Variant V1—nursery and kindergarten: requires improving criterion F4 by two points (from C to A), criterion F2 by two points (from C to A), and criterion F3 by two points (from C to A):
- Variant V2—shop: requires improving criterion F3 by one point (from C to B):
- Variant V3—office: requires improving criterion F3 by one point (from C to B) and criterion F2 by one point (from C to B):
5. Discussion
6. Conclusions
- The proposed utility functions for the building include a nursery and kindergarten (Variant V1), shop (Variant V2), and office (Variant V3), in addition to the base residential function (Variant V0). These functions were chosen based on social and economic justifications within the housing estate.
- The suitability of the building for each utility function was assessed based on four criteria: thermal comfort (F1), building airtightness (F2), non-renewable primary energy indicator EP (F3), and vibrations (F4).
- The current state of the building was compared with the standards specified for each utility function across the four criteria. This comparison revealed variations in compliance, with some criteria meeting the required class, while others needing improvement.
- The level of capital investment needed to improve the building’s condition for each utility function was estimated based on the assumption of increasing the class of each criterion by one point. The calculated costs varied for each variant, with Variant V2—shop requiring the least investment and Variant V1—nursery and kindergarten requiring the highest.
- The economic attractiveness of each utility function was assessed based on the relative level of capital investments required for building renovation. Variant V2—shop emerged as the economically beneficial option, while Variant V1—nursery and kindergarten required the highest investment, exceeding the costs of Variant V2 by six times.
Author Contributions
Funding
Institutional Review Board Statement
Informed Consent Statement
Data Availability Statement
Conflicts of Interest
References
- Polskie Domy Drewniane SA. Available online: https://pddsa.com.pl/ (accessed on 4 September 2022).
- Cabral, M.R.; Blanchet, P. A State of the Art of the Overall Energy Efficiency of Wood Buildings—An Overview and Future Possibilities. Materials 2021, 14, 1848. [Google Scholar] [CrossRef] [PubMed]
- Salonvaara, M.; Desjarlais, A. Impact of Insulation Strategies of Cross-Laminated Timber Assemblies on Energy Use, Peak Demand, and Carbon Emissions. Buildings 2024, 14, 1089. [Google Scholar] [CrossRef]
- Zmijewki, T.; Wojtowicz-Jankowska, D. Timber—Material of the Future—Examples of Small Wooden Architectural Structures. IOP Conf. Ser. Mater. Sci. Eng. 2017, 245, 082019. [Google Scholar] [CrossRef]
- Sulik, P. Budynki o Konstrukcji Drewnianej We Współczesnym Budownictwie Mieszkaniowym. Mater. Bud. 2019, 1, 42–44. [Google Scholar] [CrossRef]
- Rizzo, F.; Caracoglia, L.; Piccardo, G. Examining wind-induced floor accelerations in an unconventionally shaped, high-rise building for the design of “smart” screen walls. J. Build. Eng. 2021, 43, 103115. [Google Scholar] [CrossRef]
- Rozporządzenie Ministra Rozwoju z Dnia 16 Września 2020 r. Zmieniające Rozporządzenie w Sprawie Warunków Technicznych, Jakim Powinny Odpowiadać Budynki i Ich Usytuowanie. Available online: https://isap.sejm.gov.pl/isap.nsf/DocDetails.xsp?id=WDU20200001608 (accessed on 26 August 2024).
- Passivhaus Institut. Available online: https://Passivehouse.Com/ (accessed on 26 August 2024).
- Kisilewicz, T.; Fedorczak-Cisak, M.; Barkanyi, T. Active Thermal Insulation as an Element Limiting Heat Loss through External Walls. Energy Build. 2019, 205, 109541. [Google Scholar] [CrossRef]
- Nowak, K.; Rojewska-Warchał, M. The Type and Size of Glazing versus Thermal Comfort in Office Spaces; Cracow University of Technology: Kraków, Poland, 2021; ISBN 978-83-66531-70-3. Available online: https://cris.pk.edu.pl/info/article/CUT738fc3dcf14841a3a7d258a683803bcc/ (accessed on 26 August 2024).
- Kisilewicz, T. Passive Control of Indoor Climate Conditions in Low Energy Buildings. Energy Procedia 2015, 78, 49–54. [Google Scholar] [CrossRef][Green Version]
- Kisilewicz, T. Wpływ Izolacyjnych, Dynamicznych i Spektralnych Właściwości Przegród Na Bilans Cieplny Budynków Energooszczędnych. 2008. Available online: https://repozytorium.biblos.pk.edu.pl/resources/25806 (accessed on 26 August 2024).
- Kovrova, V.; Volkova, V.; Pakrastins, L. The impact of vibration on buildings: Problems and solutions. E3S Web Conf. 2024, 534, 1010. [Google Scholar] [CrossRef]
- Khamporn, N.; Chaiaypinunt, S. An Investigation on the Human Thermal Comfort from a Glass Window. Eng. J. 2014, 18, 25–43. [Google Scholar] [CrossRef]
- Abdeljaber, O.; Younis, A.; Avci, O.; Catbas, N.; Gul, M.; Celik, O.; Zhang, H. Dynamic Testing of a Laboratory Stadium Structure. In Geotechnical and Structural Engineering Congress 2016, Proceedings of the Joint Geotechnical and Structural Engineering Congress, Phoenix, AZ, USA, 14–17 February 2016; ASCE: Reston, VA, USA, 2016; pp. 1719–1728. [Google Scholar] [CrossRef]
- Kowalska-Koczwara, A. Influence of Location of Measurement Point on Evaluation of Human Perception of Vibration. J. Meas. Eng. 2019, 7, 147–154. [Google Scholar] [CrossRef]
- ISO 2631-2; Evaluation of Human Exposure to Whole-Body Vibration Part 2: Human Exposure to Continuous and Shock-Induced Vibrations in Buildings (1 to 80 Hz). ISO: Geneva, Switzerland, 1989.
- Wu, W.; Divigalpitiya, P. Availability and Adequacy of Facilities in 15 Minute Community Life Circle Located in Old and New Communities. Smart Cities 2023, 6, 2176–2195. [Google Scholar] [CrossRef]
- Rodríguez-Hernández, K.L.; Narezo-Balzaretti, J.; Gaxiola-Beltrán, A.L.; Ramírez-Moreno, M.A.; Pérez-Henríquez, B.L.; Ramírez-Mendoza, R.A.; Krajzewicz, D.; Lozoya-Santos, J.d.-J. The Importance of Robust Datasets to Assess Urban Accessibility: A Comparable Study in the Distrito Tec, Monterrey, Mexico, and the Stanford District, San Francisco Bay Area, USA. Appl. Sci. 2022, 12, 12267. [Google Scholar] [CrossRef]
- Pozoukidou, G.; Angelidou, M. Urban Planning in the 15-Minute City: Revisited under Sustainable and Smart City Developments until 2030. Smart Cities 2022, 5, 1356–1375. [Google Scholar] [CrossRef]
- Fedorczak-Cisak, M.; Górszczyk, J.; Kwiecień, A.; Zając, B.; Kozik, T. Impact of the Use of Flexible Joints to Improve the Energy of Nearly Zero Energy Buildings. In Proceedings of the International Conference on Sustainable Materials, Systems and Structures—SMSS 2019, Rovinj, Croatia, 20–22 March 2019; Energy Efficient Building Design and Legislation 2019; Volume 2, pp. 75–82. [Google Scholar]
- Fedorczak-Cisak, M.; Kotowicz, A.; Radziszewska-Zielina, E.; Sroka, B.; Tatara, T.; Barnaś, K. Multi-Criteria Optimisation of an Experimental Complex of Single-Family Nearly Zero-Energy Buildings. Energies 2020, 13, 1541. [Google Scholar] [CrossRef]
- PN-EN 16798-1:2019-06; Energy Performance of Buildings—Ventilation for Buildings—Part 1: Indoor Environmental Input Parameters for Design and Assessment of Energy Performance of Buildings Addressing Indoor Air Quality, Thermal Environment, Lighting and Acoustics—Module M1-6. Polish Committee for Standardization: Warszawa, Poland, 2019.
- PN-EN ISO 7726:2002; Ergonomics of the Thermal Environment—Instruments for Measuring Physical Quantities (ISO 7726:1998). Polish Committee for Standardization: Warszawa, Poland, 2022.
- ISO 9972:2015; Thermal Performance of Buildings—Determination of Air Permeability of Buildings—Fan Pressurization Method. ISO: Geneva, Switzerland, 2015.
- Fedorczak-Cisak, M.; Radziszewska-Zielina, E.; Nowak-Ocłoń, M.; Biskupski, J.; Jastrzębski, P.; Kotowicz, A.; Varbanov, P.S.; Klemeš, J.J. A Concept to Maximise Energy Self-Sufficiency of the Housing Stock in Central Europe Based on Renewable Resources and Efficiency Improvement. Energy 2023, 278, 127812. [Google Scholar] [CrossRef]
- Ustawa z Dnia 29 Sierpnia 2014 r. o Charakterystyce Energetycznej Budynków (Dz.U. 2014 Poz. 1200). Available online: https://isap.sejm.gov.pl/isap.nsf/DocDetails.xsp?id=WDU20140001200 (accessed on 26 August 2024).
- Ustawa z Dnia 7 Października 2022 r.o Zmianie Ustawy o Charakterystyce Energetycznej Budynków Oraz Ustawy—Prawo Budowlane. Available online: https://isap.sejm.gov.pl/isap.nsf/DocDetails.xsp?id=WDU20220002206 (accessed on 14 April 2024).
- Boggs, D.W.; Petersen, P. Acceleration Indexes for Human Comfort in Tall Buildings-Peak or RMS? CTBUH Monogr. 1997, 13, 1–21. [Google Scholar]
- PN-B-02171: 2017-06; Evaluation of Human Exposure to Vibration in Buildings. Polish Standardization Committee: Warsaw, Poland, 2017.
- ISO 7730:2005; Ergonomics of the Thermal Environment—Analytical Determination and Interpretation of Thermal Comfort Using Calculation of the PMV and PPD Indices and Local Thermal Comfort Criteria. ISO: Geneva, Switzerland, 2005.
- Martin-Goñi, P.; Avellaneda, J.; González, J.M. Energetic and Functional Rehabilitation of Residential Buildings in Europe: Analysis and Cataloguing of the Strategies Used. Buildings 2024, 14, 525. [Google Scholar] [CrossRef]
- Raslanas, S.; Alchimovienė, J.; Banaitienė, N. Residential areas with apartment houses: Analysis of the condition of buildings, planning issues, retrofit strategies and scenarios. Int. J. Strateg. Prop. Manag. 2011, 15, 152–172. [Google Scholar] [CrossRef]
- Shymanska, A.; Kowalska-Koczwara, A.; Fedorczak-Cisak, M. Selection of the Utility Function of the Historic Building, Taking into Account Energy Efficiency. Energies 2023, 16, 7956. [Google Scholar] [CrossRef]
- Fedorczak-Cisak, M.; Kowalska-Koczwara, A.; Pachla, F.; Radziszewska-Zielina, E.; Szewczyk, B.; Śladowski, G.; Tatara, T. Fuzzy Model for Selecting a Form of Use Alternative for a Historic Building to be Subjected to Adaptive Reuse. Energies 2020, 13, 2809. [Google Scholar] [CrossRef]












| No | Country EU | Uc [W/m2 K] |
|---|---|---|
| 1 | Poland | 0.20 |
| 2 | Germany | 0.28 |
| 3 | Slovakia | 0.15 |
| 4 | Passive buildings | 0.15 |
| Type of Building/Space | Category | Minimum Operating Temperature [°C] (1.0 clo) | Maximum Operating Temperature [°C] (Summer Season) 0.5 clo |
|---|---|---|---|
| Residential buildings (bedrooms, living rooms, kitchens), seating position, 1.2 m | I | 21.0 | 25.5 |
| II | 20.0 | 26.0 | |
| III | 18.0 | 27.0 | |
| IV | 16.0 | 28.0 | |
| Offices and spaces with similar user activity (individual offices, meeting rooms, classrooms, shops, and restaurants) | I | 21.0 | 25.5 |
| II | 20.0 | 26.0 | |
| III | 19.0 | 27.0 | |
| IV | 18.0 | 28.0 |
| Sensor Type | Measuring Range | Scale | Accuracy |
|---|---|---|---|
| Temperature | −20 °C ÷ +50 °C (wet-bulb thermometer 0 °C to +5 °C) | 0.01 °C | ±0.4 °C |
| Type of Sensor | Measurement Range | Scale | Accuracy |
|---|---|---|---|
| Temperature | –20 °C + 50 °C (wet thermometer 0 °C + 5 °C) | 0.01 °C | ±0.4 °C |
| Humidity | 0–100% | 0.1 RH (relative humidity) | ±2% RH (relative humidity) |
| Air flow velocity | 0–5 m/s | 0.01 m/s | For 0–1 m/s: ±0.05 + 0.05xVa m/s For 1–5 m/s: ± 5% |
| Test Number | Data | V50 [m3 /h] | n50 [1/h] |
|---|---|---|---|
| 1 | 28 February 2020 | 793.0 | 2.27 |
| 2 | 26 April 2020 | 598.0 | 1.71 |
| 3 | 5 June 2020 | 331.5 | 0.95 |
| Building C—110/2 | ||||||
|---|---|---|---|---|---|---|
| Measurement/Sensor | Disc 5 | Disc 4 | Disc 6 | |||
| P-18z | P-15z | P-21z | ||||
| f[Hz] | HPVR | f[Hz] | HPVR | f[Hz] | HPVR | |
| M 14 passage of car 25 km/h | 25 | 1.08 | 80 | 0.60 | 63 | 2.33 |
| M 15 passage of car 25 km/h | 25 | 0.89 | 16 | 0.60 | 16 | 0.67 |
| M 16 passage of loaded tip-card—above the building | 80 | 0.22 | 12.5 | 0.19 | 16 | 0.40 |
| M 17 passage of loaded tip-card—above the building | 25 | 0.86 | 63 | 0.83 | 63 | 2.75 |
| M 18 passage of loaded tip-card—above the building | 25 | 1.26 | 31.5 | 0.99 | 63 | 2.33 |
| M 19 passage of loaded tip-card—above the building | 25 | 0.46 | 16 | 0.22 | 50 | 0.22 |
| M 20 passage of loaded tip-card—beneath the building | 25 | 0.33 | 16 | 0.77 | 16 | 1.22 |
| M 21 passage of loaded tip-card—beneath the building | 31.5 | 0.81 | 16 | 0.74 | 16 | 0.98 |
| M 22 passage of loaded tip-card—beneath the building | 25 | 0.40 | 16 | 0.90 | 16 | 1.11 |
| Maximum Value | 1.26 | 0.99 | 2.75 | |||
| Criteria | Measurement Data | Compliance Class |
|---|---|---|
| F1 Thermal comfort | 21.03 °C | A |
| F2 Airtightness of the building envelope | 574.16 m3/h 1.64 1/h | C |
| F3 Non-renewable primary energy indicator EP | 68.65 kWh/(m2rok) | C |
| F4 Vibrations in HPVR | WODL-factor 2.75 | C |
| Variant V0—Base Residention | Variant V1—Nursery and Kindergarten | Variant V2—Shop | Variant V3—Office | |
|---|---|---|---|---|
| F1 | 21—class A | 21—class A | 20—class B | 20—class B |
| F2 | 0.6—class A | 0.6—class A | 3.0—class C | 1.5—class B |
| F3 | 70—class C | 42—class A | 56—class B | 56—class B |
| F4 | 2.0—class B | 0.9—class A | 4.0—class C | 4.0—class C |
| F1 | F2 | F3 | F4 | |
|---|---|---|---|---|
| V0 | A/A | A/C | C/C | A/C |
| V1 | A/A | A/C | A/C | A/C |
| V2 | A/A | C/C | A/C | C/C |
| V3 | A/A | A/C | A/C | C/C |
Disclaimer/Publisher’s Note: The statements, opinions and data contained in all publications are solely those of the individual author(s) and contributor(s) and not of MDPI and/or the editor(s). MDPI and/or the editor(s) disclaim responsibility for any injury to people or property resulting from any ideas, methods, instructions or products referred to in the content. |
© 2024 by the authors. Licensee MDPI, Basel, Switzerland. This article is an open access article distributed under the terms and conditions of the Creative Commons Attribution (CC BY) license (https://creativecommons.org/licenses/by/4.0/).
Share and Cite
Fedorczak-Cisak, M.; Kowalska-Koczwara, A.; Stecz, P.; Shymanska, A.; Palmieri, D.O. Experimental Analysis of Thermal Performance and Evaluation of Vibration and Utility Function for the Readaptation of a Residential Building in an Experimental Housing Complex. Appl. Sci. 2024, 14, 8727. https://doi.org/10.3390/app14198727
Fedorczak-Cisak M, Kowalska-Koczwara A, Stecz P, Shymanska A, Palmieri DO. Experimental Analysis of Thermal Performance and Evaluation of Vibration and Utility Function for the Readaptation of a Residential Building in an Experimental Housing Complex. Applied Sciences. 2024; 14(19):8727. https://doi.org/10.3390/app14198727
Chicago/Turabian StyleFedorczak-Cisak, Małgorzata, Alicja Kowalska-Koczwara, Piotr Stecz, Anna Shymanska, and Davide Ottaviano Palmieri. 2024. "Experimental Analysis of Thermal Performance and Evaluation of Vibration and Utility Function for the Readaptation of a Residential Building in an Experimental Housing Complex" Applied Sciences 14, no. 19: 8727. https://doi.org/10.3390/app14198727
APA StyleFedorczak-Cisak, M., Kowalska-Koczwara, A., Stecz, P., Shymanska, A., & Palmieri, D. O. (2024). Experimental Analysis of Thermal Performance and Evaluation of Vibration and Utility Function for the Readaptation of a Residential Building in an Experimental Housing Complex. Applied Sciences, 14(19), 8727. https://doi.org/10.3390/app14198727

