Next Article in Journal
Toward Smart SCADA Systems in the Hydropower Plants through Integrating Data Mining-Based Knowledge Discovery Modules
Next Article in Special Issue
Analysis of Granite Deformation and Rupture Law and Evolution of Grain-Based Model Force Chain Network under Anchor Reinforcement
Previous Article in Journal
Combining Eye-Tracking Technology and Subjective Evaluation to Determine Building Facade Color Combinations and Visual Quality
Previous Article in Special Issue
Dynamic Response and Rock Damage of Different Shapes of Cavities under Blasting Loads
 
 
Font Type:
Arial Georgia Verdana
Font Size:
Aa Aa Aa
Line Spacing:
Column Width:
Background:
Article

Numerical Simulation and Engineering Application of Synergistic Support Effect of Bolt–Mesh–Cable Support in Gob-Side Entry of Deep Soft Coal Seam

School of Mining Engineering, Anhui University of Science and Technology, Huainan 232001, China
*
Author to whom correspondence should be addressed.
Appl. Sci. 2024, 14(18), 8226; https://doi.org/10.3390/app14188226
Submission received: 17 August 2024 / Revised: 7 September 2024 / Accepted: 10 September 2024 / Published: 12 September 2024

Abstract

Aiming at solving the problem of support failure caused by a large deformation of roadway surrounding rock in a deep soft coal seam, and taking the surrounding rock control of the roadway in the 11-2 coal seam in Zhujidong Coal Mine as the research background, numerical simulation and field industrial test and inspection methods were used to study the support effect of a supporting system of gob-side entry in deep soft coal seam. The deformation characteristics of various supporting systems of metal mesh, diamond mesh, metal mesh with anchor rod, steel ladder beam, M-shaped steel belt, 14#b channel steel, and 11# I-steel in the goaf supporting body of deep soft coal seam were studied under vertical load. The supporting effect of effective compressive stress zone generated by bolt and cable under different row spacings and lengths was analyzed, and the law of variation in the compressive stress field generated by supporting members with supporting parameters was explored. The length and interrow distance of bolt and cable were compared, respectively, and reasonable supporting parameters were selected. Based on the abovementioned research results and the geological conditions of the 1331 (1) track roadway, the support scheme of the 1331 (1) track roadway was designed, and the industrial test was carried out. The results show that the surrounding rock of the roadway is within the effective anchorage range of the supporting body, the active support function of the supporting components has been fully brought into play, and the overall control effect of the surrounding rock of the roadway is good, which can ensure the safety and stability of the goaf roadway. The maximum displacement of the roof and floor of the roadway is 86 mm, the maximum displacement of the solid coal side is 50 mm, the maximum displacement of the coal pillar side is 70 mm, and the maximum separation of layers is 22 mm. There is no failure phenomenon in relation to the anchor bolt and cable, and the overall deformation of the roadway surrounding the rock is good, which can provide some references for roadway-surrounding-rock control under similar conditions in deep coal seams.

1. Introduction

Coal plays an important role in China’s economic development. For a long time in the future, China’s primary energy consumption will be dominated by coal. With the increase in mining depth, the geo-stress will also increase. Due to the combined effect of various factors, the deformation of both sides of the roadway is large, the bottom bulge is serious also, and it will be difficult to meet the requirements of transportation and ventilation, even causing accidents such as spalling, caving, and collapse. The application of large-section gob-side roadways in deep coal seams will cause excessive deformation of the surrounding rock of the roadway due to the excessive ground stress and roadway section, causing a series of support problems. The support technology of gob-side roadway in deep soft coal seams has always been one of the main research focuses in the field of coal mining.
Scholars at home and abroad have put forward many classical theories on the control of the surrounding rock of roadway and achieved a lot of research results. Gao and Wang [1,2] conducted a statistical analysis on the diversity of dangerous sources of deep-coal-mining accidents, established a comprehensive safety index system for deep-well roadway rock accidents, and evaluated the stability of deep-roadway surrounding rock. Plastic deformation and failure first appear on the side of the roadway and then expand to other parts to explore the stability of the surrounding rock during deep mining. A control scheme for the surrounding rock of deep roadways is proposed and verified through on-site industrial tests [3]. The stress concentration area of the surrounding rock of deep roadways is far away from the surrounding area and has a larger size. The maximum concentration coefficient is slightly smaller than that of shallow roadways. There is a large range of broken zones in the surrounding rock of deep soft rock roadways [4]. Aiming to solve the support problem of rock burst in the deep roadway of the 401,111 fully mechanized caving working face, a control scheme for the surrounding rock of the return air roadway is proposed with large-diameter pressure relief and deep hole blasting as the main pressure-relief means [5].
A comprehensive surrounding-rock management method of anchor–grit–cable-grouting coupled support to address the difficulties in supporting deep-well high-stress broken soft rock roadways is proposed, and the interaction mechanism between coupled support and surrounding rock is analyzed [6]. The composite support mode of ‘shotcrete + grouting bolt + anchor bolt + grouting cable + anchor cable’ is put forward, and the rationality of the co-reinforcement technology of layer and double arch is verified [7]. Based on the instability mechanism of roadway, the control technology of high preload bolt + deep and shallow-hole crack filling is put forward, and this technology ensures the stability of the roadway surrounding rock by inhibiting the expansion of deep and shallow cracks and reinforcing the surrounding rock [8]. The composite failure mechanism of the surrounding rock of coal roadway based on the stress difference between deep and shallow anchor cables is revealed, and an anchoring and unloading coupled control technology is put forward [9]. Based on the aging characteristics of plastic zone expansion and the control effect of bolt support on plastic zone of surrounding rock, the control technology of surrounding rock stability is put forward [10].
A mechanical model of the lateral roof structure of the gob-side roadway is established, the mechanical state of the roadway support body at different mining stages is analyzed, and the dynamic instability mechanism of the support body caused by the fracture and sinking of the lateral basic roof is revealed [11]. The impact-damage mechanism of roadways in extra-thick coal seams is studied, the main influencing factors of top coal damage are revealed, and the anti-impact support technology of roadways in extra-thick coal seams is determined [12]. Taking the common problems of surrounding rock strength deterioration, stress environment deterioration, and structural instability and large deformation of surrounding rock in deep roadways as the starting point, the response mechanism of the crack evolution scale in the macroscopic surrounding rock damage process is discussed [13,14]. The key concerns of experts and scholars on the butterfly failure theory are carried out in research, and the applicability of butterfly failure theory under different roadway cross-sectional shapes and layered surrounding rock conditions is analyzed [15].
The deformation and failure characteristics of the surrounding rock of rock-burst roadways and the main influencing factors are analyzed, and the selection principle of the support form of rock-burst roadways is proposed [16]. A mechanical model of full-length anchor bolt is established, and the stability of the mechanical bearing structure of the surrounding rock of high-stress soft rock roadways after full-length anchor bolts were anchored is studied [17]. The differential spatiotemporal evolution law of the number of cracks and development inflection points at different depths in the surrounding rocks of the two roadways is clarified, and the differential deformation mechanism of the surrounding rocks of the two roadways caused by the differences in stress state and crack development is revealed [18]. Uniaxial compression and true triaxial tests to address the problem of surrounding rock stability are conducted, the method of energy characterization and significance of rocks under uniaxial compression conditions is studied, and the temperature effect of granite cavern rock burst under true triaxial test conditions is explored [19,20].
A new type of large deformation resistance-enhancing anchor cable is developed, and the developed new anchor cable to the actual roadway is applied successfully [21]. The maximum convergence deformation of the two sides is about 300 mm, and a good support effect is achieved. The local instability problem caused by anchor fracture failure in deep roadways under impact dynamic loads is revealed, and the reinforcement support technology to reduce anchor fracture and improve the stability of roadway support body is explored [22]. Combining anchor support with grouting technology, an effective solution for deep soft rock and broken roadway surrounding rock control is provided [23,24]. An intelligent real-time detection and positioning method for coal mine roadway support steel belt anchor hole based on deep learning model and depth camera is proposed, and the feasibility of this method in the unstructured environment of coal mine underground is verified [25].
Based on structural mechanics theory, the constraint stress in the plastic extrusion deformation zone of the anchor is regarded as a rectangular distribution mode, and the rationality of the model is verified by comparing the model calculation results with experimental data [26]. Taking the roadway of 10,607 gas extraction as the research object, the large deformation and damage phenomenon of roadways under dynamic pressure is studied, active and passive support technologies are proposed, the engineering application is carried out, and a good control effect of roadway surrounding rock is obtained [27]. The results of the tensile and shear tests of anchor cables are discussed. By establishing a mechanical model of the interaction between anchor cables and jointed rock mass, the failure mechanism of anchored jointed rock mass under tension and shear was revealed, providing a practical and convenient method for improving the shear strength of the anchor beam anchor cable system and enhancing the stability of the roadway [28]. The changing trends of the physical and mechanical properties of coal rock mass in the strong wind oxidation zone are revealed, the deformation and failure mechanism are analyzed, and a coupling support scheme of ‘pre-grouting + anchor mesh shotcrete + inverted arch structure + U-shaped steel + high and low pressure, deep and shallow hole reinforcement grouting’ based on the deformation and failure characteristics of the wind-oxidized surrounding rock roadway is proposed [29]. The failure mode of a steel tube–concrete structure is studied, and the elastic center method to obtain the internal force of the steel tube–concrete structure with cable is used. The results show that the cable can ensure that it has a high bearing capacity [30].
In view of the harsh environment of deep mechanized mining face and the seriously unbalanced distribution of driving, supporting, and anchoring time, a new type of highly adaptable advanced support of the mechanized mining roadway with strong adaptability, a large support strength, and a large working space is designed [31]. The problem of stability control of surrounding rock in deep soft rock roadways is explored, the mineral composition and microstructure of the surrounding rock is analyzed, the microscopic mechanism of roadway damage and the deformation and damage mechanism of soft rock cross-cutting roadways are obtained, and a high prestressed compensating support countermeasure based on constant resistance large deformation anchor bolts is proposed [32]. The problems of poor support effect and serious deformation and damage of surrounding rock in mining roadways under deep-mining stress are analyzed. Taking the upper roadway 2424 of Suncun Coal Mine as the background, the stress, deformation, and damage laws of surrounding rock in mining roadways under single support and multi-level support were compared and analyzed. It was found that multi-level support technology has obvious advantages. The key parameters of multi-level support were determined, and field industrial tests were carried out. The results show that the overall deformation of surrounding rock is significantly reduced after multi-level support [33]. The difficulty of stability control in deep roadways is explored, and the coupled support technology of a high prestressed constant resistance and large deformation anchor cable is put forward [34]. It is discussed how the joint distributed in the rock stratum is often affected by complex stress and interlayer dislocation in the roadway with a high ground stress or large buried depth. The anchor bolts and anchor cables anchored in the rock strata are subject to tension and shear forces [35].
The stability and control of the surrounding rock of deep broken soft rock roadways, which are located in the underground mine of Jinfeng Gold Mine in Guizhou Province, China, are studied. A combined support system of high-strength ‘cable anchor fiber shotcrete + steel mesh split sleeve resin anchor rod cement grouting’ was proposed, which significantly improved the integrity and bearing capacity of the effective bearing structure [36]. The problems of complex advance support technology for roadways in super-kilometer deep mines, the impact on rapid advancement of the working face, and the damage of roof anchors (cables) by advance single hydraulic props are explored, and the deformation characteristics of surrounding rock are analyzed. An active advanced support technology scheme of replacing existing single hydraulic props with grouting anchors within the advance influence range of the working face in super-kilometer deep mines was proposed, which solved the problem of safe and efficient production faced by super-kilometer-deep mines [37].
The stability of mining roadways in deep mines is studied, and the coordinated control effect of long anchor support for deep roadways under strong mining disturbance of adjacent working faces in Wenjiapo Coal Mine in West China is analyzed. The results show that extending the anchor length can reduce the consumption of roof anchors while ensuring the support effect, and it can reduce the bottom heave of the roadway by 5.5% [38]. Aiming at addressing the influence of mining stress on the stability of the surrounding rock of deep inclined-roof mining roadways, full-length anchor bolt support technology based on the mining roadway of the 17,102 (3) working face of Pansan Coal Mine was studied, and it achieved good control effect [39]. Three different support technologies according to the surrounding rock deformation and engineering technology characteristics are adopted [40]. The monitoring results showed that the fully enclosed U-shaped steel ring support technology had the best support effect, the roadway deformation met the production requirements, the roadway renovation time was longer, and it could meet the surrounding rock requirements of roadways with a burial depth of 1000 m.
The stress evolution, displacement field, local deformation, overall distribution, and failure characteristics of the surrounding rock anchoring structure with different anchor spacing were studied [41]. The influence of anchor preload and spacing on the support strength of the surrounding rock anchoring structure was analyzed. A support scheme for the excavated roadway was designed, and the effectiveness of the support scheme was verified by roadway displacement measurement [42]. A design method for roof anchoring support using the anchor potential design method based on the analysis of roadway roof bending failure is proposed. The support problem of deep soft rock roadways in Chaohu Coal Mine is analyzed, and the main reasons for the instability of the original U-shaped steel support roadways in Chaohu Coal Mine are analyzed [43]. The instability of the original support is the result of the passive support of deep high-stress soft rock roadways being unable to adapt to the deformation of the surrounding rock. The failure of the original support is mainly caused by unreasonable support parameters. In response to the problem of surrounding rock deformation in deep soft rock roadways, a high-strength and high-stability secondary anchor net support technology was proposed. Due to the tensile force generated by the deformation and movement of the roof surrounding rock, the axial force of the anchor cable first increases at a decreasing rate as the calculation time increases, and then it reaches an almost-constant value [44].
Many scholars and experts have carried out a lot of research on the surrounding rock control of roadways in coal mine, and many research results were achieved, which promoted the research progress of stability control of the roadway effectively. However, there are certain differences in the geological environment, stress environment, and other factors where the roadway is located in different coal mines, and even great differences. To ensure the stability of the roadway, it is necessary to determine it based on the specific geological conditions of the roadway, the mining disturbance of the adjacent working face, etc. Numerical simulations, industrial tests, and other methods are used to study the stability of gob-side roadways in deep soft coal in order to provide reference for the reasonable support design of deep mine roadways.
With the background of surrounding rock control of goaf roadway of 11-2 coal seam in Zhujidong Coal Mine, the deformation characteristics of various supporting systems, such as metal mesh, diamond mesh, metal mesh with anchor rod, and M-shaped steel belt in goaf roadway supporting body of deep soft coal seam under vertical load are studied by using numerical simulation and on-site industrial test and inspection methods. The supporting effect of effective compressive stress zone of bolt and cable under different spacings and lengths is analyzed, and reasonable supporting parameters are selected. The research results can provide reference values for the stability control of goaf roadway surrounding rock in deep soft coal seams.

2. Engineering Background

2.1. Relationship between the Roadway and the Working Face

Zhujidong Mine is located in Panji District, Huainan City, China. The 1321 (1) working face is located in Dongsanpan District in Zhujidong coal mine, which is the first mining face of Dongsanpan District. It reaches the boundary of the mine field in the east and the main root roadway in Dongsanpan District in the west. The mining strike length of the 1321 (1) working face is 1734 m, the inclination length is 200 m, the elevation of the floor of the roadway ranges from −932 to −983.6 m, and the average buried depth is about 950 m. The 1331 (1) working face extends to the boundary of the mine field in the east, to the west to the root roadway of Dongsanpan District, and to the north to the 1321 (1) working face; there is no mining activity in the corresponding overlying 13-1 coal seam.
The mining strike length of the 1331 (1) working face is 1707.9 m, the inclination length is 220 m, the elevation of the floor of the roadway ranges from −981.8 to −894.1 m, and the average buried depth is about 950 m. After the completion of mining of 1321 (1) working face, the 1331 (1) track roadway is driven along the gob, and the width of coal pillar is 6 m between the 1331 (1) track roadway and the 1321 (1) haulage roadway.
The position relationship between the 1331 (1) track roadway and the 1321 (1) working face is shown in Figure 1. The design length of the 1331 (1) track roadway is 1776 m, rectangular section, using anchor–beam–mesh–cable support; the dimensions of the section are 5.4 m wide and 3.6 m high, and the width of the small coal pillar along the adjacent goaf is 6 m. The driving mode of the 1331 (1) track roadway is to use a comprehensive excavator for full section, and the roadway is driving along the 11-2 coal seam during excavation.

2.2. Occurrence Condition of Coal Seam and Roof and Floor

The overall structural shape of this working face is monoclinic structure, which is high in the west and low in the east. The dip angle of most of the coal seam is from 0° to 5°, with an average of 3°. The color of 11-2 coal seam is black, mainly massive, a small amount of granular, powdered, containing dark coal and vitritic coal strips, belongs to semi-dark~semi-bright briquette, mainly bright coal.
(1)
State of coal seam
The coal seam is generally monoclinal structure, the general trend is high in the west and low in the east, the occurrence of the normal coal (rock) layer is from 80° to 160°, the dip angle is from 0° to 5°, the average is 2°, and the Platts coefficient is from about 0.6 to 0.65. The coal seam is mainly black and massive, with a small amount of granular and powdery, containing dark coal and vitritic coal strips, belonging to semi-dark~semi-bright briquette, mainly bright coal.
(2)
Condition of roof and floor
The upper roof is fine sandstone, gray, fine texture structure, dense, massive, the main components are feldspar, quartz, argillaceous cement.
The direct roof is mudstone, gray, muddy structure, dense, massive, containing silty and fossil fragments, developed 1-to-2 layers of unstable coal line.
The direct bottom is mudstone, gray, muddy structure, locally intercalated with thin layer of fine sand.
The bottom is fine sandstone, light gray to gray, fine-grained structure, with a few coarse grains at the bottom, dense, massive, mainly composed of feldspar, quartz.
The lithological characteristics of the top and bottom plates of the coal seam are shown in Table 1.

2.3. Geology of the Working Face

According to the analysis of the actual field data of the working face, the roof sandstone is relatively rich in water, which belongs to the static storage type. There may be a small amount of dripping water in the structural or fracture development block section, but it has no effect on the mining of the working face. The original gas content of coal seam face is from 3.48 to 5.40 5.40 m3/t, the maximum original gas pressure is 0.91 MPa, and the absolute gas emission in mining process is 55 m3/min. Coal dust has an explosion risk. The spontaneous combustion tendency of coal seam is from not easy to spontaneous combustion, which belongs to class II spontaneous combustion. The ground temperature is greater than 37 °C, which is in the state of secondary heat damage. The working face is located in deep depth and has a large ground stress.
The geological structure of 1321 (1) working face is as follows:
(1)
The overall structure of the working face is monoclinal, high in the west and low in the east, and the rock dip angle is from 1° to 6°, with an average of 2°.
(2)
According to the surrounding roadway disclosure data and three-dimensional seismic interpretation analysis, there are 19 faults developed in this working face, with the middle fall, there are two faults whose fall is greater than or equal to 5 m, there are 5 faults with a drop of 2-to-5 m, and 12 faults with a drop of less than 2 m. According to the design of the roadway, it is expected that the 1321 (1) haulage roadway will pass through 16 faults, and the 1321 (1) track roadway will pass through 7 faults.
The specific parameters are shown in Table 2.

3. Analysis of Deformation and Failure Characteristics of Deep Gob-Side Entry

The reasons for the deformation of deep roadway are diverse, involving geological conditions, local structures, the design and construction of the tunnel itself, etc. The on-site investigation of the deformation of the roadway along goaf in deep soft coal seam in Zhujidong Coal Mine and the roadway in Dongtan Mine under similar conditions found that, due to the large depth of the working face and the low strength of the raw coal, the roof and side of the roadway have deformed to different degrees, and the phenomena of steel strip collapse and anchor bolt failure have appeared in some sections of the roadway. As shown in Figure 2.
According to the on-site investigation of the roadway along the goaf in Zhujidong Coal Mine, the following reasons are the main causes.
(1)
The roadway section is large, the roof strength is low, and it is difficult to set up top coal support.
The excavation cross-sectional area of the roadway along the goaf is close to 20 square meters, the roadway span is large, the roof is prone to flexural deformation, and the probability of roof rock separation, sinking, and collapse increases. The overall strength of the direct roof is low, mainly due to the complex rock properties of the direct roof and the development of cracks, thus greatly reducing the stability of the roadway surrounding rock, and part of the roof has netted phenomenon, which is difficult to support.
(2)
The size of the coal pillar is small, the coal quality is relatively soft, and it contains interlayers.
The size of the coal pillar left is small, with a width of 7 m, and the coal quality is weak, soft and broken. The asymmetric deformation of the two sides is obvious, especially the side squeezing of the small coal pillar is serious. The coal seam contains interlayers, and the roadway excavation causes the interlayers to be exposed, and the weak surface is easily disturbed.
(3)
The depth of the working face is large, the geo-stress is high, the existing support control effect is poor, and the deformation of the roadway is large.
The average buried depth of the roadway is 950 m. The long-term rheology of the roadway under high stress will increase the deformation rate of the roadway and affect the stability of the roadway surrounding rock. Under the existing support scheme, the support components have collapsed and failed, losing the surface protection ability, and the investment and loss of support materials are serious.
Deep rock formations usually have high ground stress, and the rock strength and integrity are relatively poor, which is easy to deform. For example, weak rock formations such as mudstone and shale have weak bearing capacity and are prone to large deformation under the influence of mining.
In summary, this type of roadway deformation is serious, and roof control is difficult. The existing roadway support means do not match the support needs, which seriously affects the daily safety production of the mine. Therefore, the impact of mining on the coal pillar should be analyzed, and a reasonable support scheme should be designed to achieve the stability of the roadway surrounding rock, thereby achieving safe and efficient production.

4. Simulation of Combined Components of Anchor Bolt and Anchor Cable Support

4.1. Establishment of Combined Components of Anchor Bolt and Anchor Cable Support Model

The displacement and deformation of steel mesh support system is a complex three-dimensional problem, and the displacement deformation of each part is difficult to be continuously tested by laboratory monitoring. In this paper, the anti-deformation ability of six kinds of support systems is numerically simulated and analyzed by finite element analysis software Ansys Workbench 2020. By extracting the displacement deformation of different nodes and fitting the overall displacement deformation curve of the steel mesh support system, the displacement constraint effect of the bolt support composite components on the steel mesh is further analyzed.
The simulation model is established by using SolidWorks modeling software 2020, in which the row distance between anchors is set to 800 mm, the mesh size of metal mesh is 100 mm × 100 mm, and the diameter of wire is 6 mm. The size of diamond mesh is 40 mm × 40 mm, and the diameter of wire is 3.25 mm. The thickness of M5 section steel strip is 5 mm and the width is 173 mm. The diameter of the reinforced ladder beam is 12 mm, 14 mm, and 16 mm. The material parameters of 14#b channel steel and 11# I-beam are shown in Table 3. The numerical model is imported into Ansys workbench for calculation, metal mesh and diamond mesh, the material is set to Q235 structural steel, the elastic modulus is set to 200 GPa, the yield strength is set to 235 MPa, the ultimate tensile strength is 400 MPa, and the Poisson’s ratio is 0.3. The channel and strip materials are set to Q345 structural steel, the elastic modulus of the material is set to 200 GPa, the yield strength is set to 380 MPa, the ultimate tensile strength is 550 MPa, and the Poisson’s ratio is 0.3. The I-beam is 20 MnK structural steel, the elastic modulus of the material is set to 200 GPa, the yield strength is set to 400 MPa, the ultimate tensile strength is 550 MPa, and the Poisson’s ratio is 0.3. Among them, the numerical model is meshed by solid elements, and the contacts between the models are treated as ‘binding’; that is, it is considered that the mesh wire located in the combined component of bolt support and the lower part of the pallet will not produce horizontal slip phenomenon. The boundary fixing method is the cross section of metal mesh wire and the fixed constraint at the anchor hole of the tray, which simulates the boundary binding wire fixation and anchor constraint of the underground steel mesh, respectively. The constitutive model is selected as the equal strength hardening multilinear elastic–plastic model, and the analysis method is the nonlinear large deformation static analysis method. The displacement and deformation of 6 supporting systems of metal mesh, diamond mesh, steel ladder beam, M-shaped steel belt, 14#b channel steel and 11# I-beam under 15,000 newtons (15 KN) vertical load is simulated.
The material parameters of 14#b channel steel and 11# I-beam used in the numerical simulation were provided by the Technical Department of Zhujidong Coal Mine. The material parameters used in the numerical simulation are shown in Table 3.
In ANSYS model, the translational and rotational degrees of freedom are constrained by the nodes at the holes fixed by the anchor bolt.
The convergence criterion of ANSYS simulation is used to control the convergence, and the 2-norm of residual force is used to control the convergence. The convergence accuracy is 0.1% by default, but it can be relaxed to 5% in general to improve the convergence speed.
The supporting component model is shown in Figure 3.

4.2. Simulation Results and Analysis

(1)
Deformation analysis of M5 steel strip structure under load
Figure 4 shows the deformation diagram of M5 steel strip under load. The thickness of M5 steel strip is 5 mm, the width is 173 mm, the material of the steel strip is set as Q345 structural steel, the elastic modulus of the material is set as 200 GPa, the yield strength is set as 350 MPa, the ultimate tensile strength is 550 MPa, and the Poisson’s ratio is 0.3.
In M-shaped steel strip support system, there is a great difference between longitudinal wire deformation and transverse wire deformation. Compared with the longitudinal wire, the arch width of the deformation curve of the transverse wire is narrower and the arch curve is more convex. As a result, it can be concluded that with the addition of bolt support composite components, the deformation of steel mesh shows asymmetry in longitudinal and transverse direction, and the restraint effect on the deformation of transverse mesh wire is obviously higher than that of longitudinal mesh wire. Compared with the reinforcement joist, the asymmetric characteristic of M-shaped steel belt is more obvious. The displacement cloud diagram of M-shaped steel strip under vertical load shows that there is a large deformation in the middle of the span, which gradually decreases during the diffusion process from the middle of the span to both sides, and there is basically no displacement deformation at the long hole due to the constraint of the anchor, and with the gradual increase in the thickness of the steel strip, the deformation area decreases gradually. Under the action of fixed load, the stress value of M-shaped steel strip is higher in the installation position of anchor tray and the loading position in the middle of span, in which the stress concentration in the position of pallet makes it easier for the steel strip to tear and break down there. The stress value of the loading part in the middle of the span is higher, indicating that the vertical displacement of the steel strip is mainly caused by the plastic deformation in the middle of the span.
(2)
Deformation analysis of reinforced ladder beam under load
Figure 5 shows the deformation diagram of the reinforced ladder beam under load. The diameters of the reinforced ladder beam are, respectively, 12 mm and 14 mm.
In the steel ladder beam combination system, the arch width of the longitudinal wire deformation curve is narrower than that of the transverse wire deformation curve. In the reinforced ladder beam support system, the longitudinal mesh of measuring point No. 2 has a displacement increase of 18 mm compared with measuring point No. 1, the displacement of measuring point No. 3 increased by 18 mm compared with measuring point No. 2, while the transverse mesh wire corresponding to the measurement point displacement increase is 15 mm and 14 mm, the displacement increase compared to the longitudinal mesh wire is reduced by 3 mm and 4 mm, respectively.
When the tension of the steel ladder beam on the fixed position of the anchor is greater than the maximum static friction, the steel ladder beam gradually produces the phenomenon of horizontal slip in the lower part of the pallet, the rising speed of the load curve is slow, and the initial support stiffness is low. When the lateral transverse bar of the steel ladder beam is in direct contact with the anchor, and there is no slip space, the model of the steel ladder beam under load becomes a three-point bending model with both sides fixed and loaded in the middle of the span. In this stage, the rising speed of the load–displacement curve is constant, the double longitudinal bars of the reinforced ladder beam are stretched at the same time under the vertical load, and the components produce a lot of elastic–plastic deformation. With the thickening of the diameter of round steel, the ultimate load carrying capacity of the reinforced ladder beam is gradually increased, in which the two adjacent models with 14 mm diameter are 32.15 mm more resistant to deformation than the 12 mm diameter reinforced ladder beam. The bearing capacity of reinforced ladder beam shows a nonlinear increasing trend, and the increasing range decreases gradually, in which the ultimate bearing capacity of steel ladder beam with round steel diameter of 12 mm and 14 mm has a small difference. With the increase in round steel diameter, the supporting stiffness of reinforced ladder beam shows a nonlinear increasing trend, and the increasing range decreases gradually.
(3)
Deformation analysis of 14#b channel steel structure under load
Figure 6 shows the deformation diagram of 14#b channel steel structure under load. The material of channel 14#b is set as Q345 structural steel, the elastic modulus of the material is set as 200 GPa, the yield strength is set as 380 MPa, the ultimate tensile strength is 550 MPa, and the Poisson’s ratio is 0.3.
In the 14#b channel steel support system, the deformation of longitudinal mesh wire is different from that of transverse mesh wire. Compared with the longitudinal wire, the arch width of the deformation curve of the transverse wire is narrower and the arch curve is more convex. As a result, the addition of support composite components of bolt makes the deformation of steel mesh show an asymmetry in vertical and transverse direction, and the restraint effect on the deformation of transverse mesh wire is obviously higher than that of longitudinal mesh wire.
According to the displacement cloud diagram of channel 14#b steel under vertical load, it can be seen that the 14#b steel has a large amount of deformation in the mid-span position, and the deformation gradually decreases in the process of diffusion from the mid-span position to both sides. There is basically no displacement deformation at the long hole due to the constraint of the anchor rod, and the 14#b channel steel has its own displacement distribution rule under the action of vertical load. An ‘elliptical’ displacement distribution area is formed in contact with the pallet, and a higher stress value is produced at the inner edge of the anchor pallet, but the displacement deformation is small, and the displacement increases gradually in the process of expanding to the center. The mid-span displacement of 14#b channel steel is the largest and has a wide distribution range, which is the main plastic deformation area. In the 14#b channel steel, the bottoms of the two pressure slots are subjected to greater load in the installation position of the bolt tray and the middle part of the channel steel span, and the displacement and deformation are also the largest.
(4)
Deformation analysis of 11# I-steel structure under load
Figure 7 shows the deformation diagram of 11# I-beam structure under load. 11# I-beam is 20 MnK structural steel. The elastic modulus of the material is set at 200 GPa, the yield strength is set at 400 MPa, the ultimate tensile strength is 550 MPa, and the Poisson’s ratio is 0.3.
In the 11# I-beam support system, the deformation curve of longitudinal mesh wire is different from that of transverse mesh wire, which is similar to that of 14#b channel steel. Compared with the longitudinal mesh wire, the arch width of the transverse mesh deformation curve is narrower, and the arch curve is more convex. With the addition of support composite components of bolt, the deformation of steel mesh shows an asymmetry in longitudinal and transverse direction, and the restraint effect on the deformation of transverse mesh is obviously higher than that of longitudinal mesh. The deformation of the 11# I-steel belt directly in contact with the bolt tray is in the surrounding area, and in the process of spreading to the surrounding area, the deformation gradually increases, showing an ‘elliptical’ displacement distribution state. The displacement of 11# I-steel appears at the sharp corner of the bolt tray, and the displacement gradually increases during the diffusion process along the edge of the tray to the center. During the loading process of 11# I-steel, the stress value of the mid-span part is large, and the distribution range is wide, and the metal material in this area enters the plastic yield stage, and the material causes a lot of plastic deformation.
To sum up, under the action of vertical fixed load, the 11# I-steel is subjected to higher stress values and the largest displacement at the installation position and mid-span loading position of the anchor bolt tray, respectively. The stress concentration phenomenon at the position of the tray makes the 11# I-steel more likely to tear and crush damage there, resulting in the largest displacement. The results show that the vertical displacement of 11# I-steel is mainly caused by the plastic deformation in the middle span.

5. Simulation of Synergistic Support Effect of Bolt–Cable Support

5.1. Numerical Simulation Scheme of Bolt–Cable Support Parameters Model

By using the FLAC three-dimensional finite element difference method, the support effects of different support parameters are numerically simulated and compared to find the optimal support solution. During the simulation, due to the large, buried depth of the roadway, the surrounding rock stress is much greater than the additional stress field generated by the anchor bolt (anchor cable) support, resulting in the formation of additional stress field diffusion is not obvious, so in the support simulation process, the original rock stress will be cancelled to study the additional stress field formed by the support construction. In order to obtain the best support solution, the support simulation parameters are shown in Table 4.
The convergence standard of the numerical simulation model is that the maximum unbalance force reaches 1 × 10−5, and the default convergence value of this model is also 1 × 10−5. The rule of grid division is that the boundary grid of the model is relatively sparse, and the closer the coal pillar and the two sides of the working face, the denser the grid. The grid size of the sparse boundary part is 3 m, and the grid size is gradually reduced, and the grid near the coal pillar and on the two sides of the working face is compressed to 0.5 m. The purpose of this division is to better observe the stress, strain, and plastic zone. The left and right borders and the bottom are fixed, and the top vertical direction is applied with self-weight stress.

5.2. Supporting Effect Simulation Results and Analysis

(1)
Optimization of bolt spacing and length in the roof of the roadway
When the length of bolt in the roof of the roadway is 2700 mm, the distribution of the vertical stress field of the surrounding rock with different spacings is shown in Figure 8.
When the length of bolt in the roof of the roadway is 2800 mm, the distribution of the vertical stress field of the surrounding rock with different spacings is shown in Figure 9.
When the length of bolt in the roof of the roadway is 2900 mm, the distribution of the vertical stress field of the surrounding rock with different spacings is shown in Figure 10.
As can be seen from the above figures, when the roof of the roadway is supported only, the maximum vertical stress appears at the tail of the anchor, and the stress is transmitted to the surrounding rock of the roadway. The area supported by the anchor bolt in the roof is affected by the stress superposition between the anchor bolts, and the mutual influence during diffusion forms an effective rectangular stress field. The compressive stress gradually decreases during the diffusion process, forming an ear-shaped compressive stress area in the horizontal direction, and the stress is reduced to zero when approaching the top of the anchor in the vertical direction, thus converting into tensile stress. A circular tensile stress area appears at the top of each anchor bolt.
When the length of the anchor bolt is the same and the spacing between the anchor bolts is small, the compressive stress area and continuity effect formed by the stress superposition of the anchor bolts are better. As the spacing between the anchors gradually increases, the range of action and diffusion trend of the additional stress field formed by the support components through stress diffusion basically do not change, but the stress-field area formed by the anchor bolts tends to be independent, and the area of stress superposition gradually decreases.
When the spacings between the anchor bolts in the roof are 700 mm and 800 mm, an effective compressive stress range of no less than 0.1 MPa is basically formed in the action area of the anchor bolts at the bottom of the top plate, and the stress is fully exerted in the diffusion and superposition process. When the spacings between the anchor bolts in the roof are 900 mm and 1000 mm, the effective compressive stress range of no less than 0.1 MPa in the action area of the anchor bolts in the roof gradually decreases. The compressive stress between two adjacent anchor bolts cannot be superimposed into a continuous piece due to the large spacing. The compressive stress between the two anchor bolts is too small, which will cause a significant decrease in the active support effect of the anchor bolts, and the compressive stress area and the bearing structure range will also decrease. Therefore, the most effective support effect of the anchor bolts can be exerted by selecting a reasonable spacing of anchor bolts. According to the simulation results of the spacing of anchor bolts in the roof, it can be concluded that the reasonable spacing of anchor bolts should be 800 mm.
Under the condition of the same spacing of anchor bolts, within a certain range, as the anchor length increases, the area of compressive stress will increase, and the range of the bearing structure will also increase accordingly. When the length of the anchor bolt increases further outside this range, the compressive stress value between the anchor bolts will gradually decrease due to the increase in the prestress diffusion distance, resulting in the stress field-segmentation phenomenon of the two parts of the stress of a single anchor bolt. When the length of the anchor bolt is 2700 mm and 2800 mm, the effective compressive stress range of the anchor bolts continues to expand, increasing the effective bearing area of the roof, but when the length increases to 2900 mm, the compressive stress formed by the two parts of the single anchor bolt gradually separates, which will lead to a decrease in the stability of the bearing structure, uneven stress on the surrounding rock of the roof of the working face, and thus the stability cannot be effectively guaranteed. Therefore, when selecting the length of anchor bolt, a compressive stress between the two ends of the anchor bolt should be selected that does not cause separation and can increase the effective bearing area of the anchor bolt. It can be concluded that the length of anchor bolt should be selected as 2800 mm.
In summary, through numerical simulation analysis, it can be concluded that the optimal spacing of anchor bolts in the roof of 1331 (1) track roadway in Zhujidong Mine should be 800 mm and the length should be 2800 mm.
(2)
Optimization of bolt spacing and length on both sides of the roadway
When the length of bolt on both sides of the roadway is 2400 mm, the distribution of the horizontal stress field of the surrounding rock with different spacings is shown in Figure 11.
When the length of bolt on both sides of the roadway is 2500 mm, the distribution of the horizontal stress field of the surrounding rock with different spacings is shown in Figure 12.
When the length of bolt on both sides of the roadway is 2600 mm, the distribution of the horizontal stress field of the surrounding rock with different spacings is shown in Figure 13.
As can be seen from the above figures, when both sides of the roadway are supported only, without the influence of ground stress, the distribution characteristics of stress field formed by the anchor bolt on both sides of the roadway are similar to those of anchor bolt in the roof. The prestress diffuses from both sides of the roadway to the surrounding rock, forming a crescent-shaped stress zone. As the stress on both sides of the crescent gradually decreases until it approaches zero, a stress superposition zone is formed at the side of the anchor bolt, providing effective support for the surrounding rock of the roadway.
Under the same length of anchor bolts, the effective compressive stress area formed by the superposition of anchor bolts decreases as the spacing of the anchor bolts increases. The reduced position of the superimposed stress area starts from the heads of adjacent anchor rods and diffuses to both sides, resulting in the anchor bolts being unable to form an effective support compressive stress field when the spacing of the anchor bolts is too large. When the spacing is expanded to 900 mm, the compressive stress between two adjacent anchor bolts is small, and an effective stress bearing area cannot be formed, resulting in a significant reduction in the active support effect of the anchor bolts. It can be concluded that the spacing of the anchor bolts on both sides of the roadway should be less than 900 mm. When the spacing is 800 mm, the number of anchor bolts is less than that of 700 mm, but the difference in effective compressive stress formed by the spacing of 700 mm is not large. Based on the above analysis, the reasonable spacing of anchor bolts on both sides of the roadway is 800 mm.
Under the same spacing of anchor bolts, as the length of the anchor bolts increases, the area of the bearing compressive stress area formed by the anchor bolts will also increase, but the degree of stress diffusion will decrease with the increase in the diffusion distance. When the length of the anchor bolt is too large, the compressive stress at the head of the anchor bolts is too small, and the stress distribution is discontinuous, which affects the support effect. The stress distribution characteristics of the roof and both sides of the roadway are similar. In order to ensure that the stress can be fully diffused and that the compressive stress distribution will not separate at the head of the anchor rod, the length of anchor bolts is 2500 mm. Effective stress superposition can form a greater bearing effect, so that a larger area of surrounding rock in the sides can be actively supported. Therefore, the reasonable length of the anchor bolts on both sides of the roadway is 2500 mm.
In summary, as the length of the anchor bolts increases, the additional stress-field area will also increase, and the stress diffusion effect will decrease with the increase in the diffusion distance. Therefore, it can be determined that the optimal length of anchor bolts in the roof is 2800 mm, and the optimal length of anchor bolts in both sides of the roadway is 2500 mm. As the spacing of anchor bolts increases, the compressive stress area range and continuity formed by stress superposition will gradually decrease, but considering the integrity of the rock formation and economy, the optimal spacing of the anchor bolts in the roof is determined to be 800 mm, and the optimal spacing of the anchor bolts on both sides of the roadway is 800 mm.
(3)
Optimization of row spacing of anchor bolts
On the basis of the above numerical simulation of reasonable spacing of anchor bolts, the distribution law of effective stress formed when the row spacing of anchor bolts is 800 mm, 900 mm, and 1000 mm is studied, aiming to obtain reasonable row spacing of anchor bolts. The compressive stress effect formed by numerical simulation of roof bolt support is shown in Figure 14.
As can be seen from the figures above, the compressive stress field formed by the anchor bolts diffuses from the center of the anchor bolt to the surrounding area and gradually decreases, and the stress diffusion rate is the same. When the row spacing is 800 mm and 900 mm, the stress field formed by the anchor bolts is superimposed and connected together to form a relatively continuous bearing structure. The maximum compressive stress is at the center of a single anchor bolt, and the maximum compressive stress is 0.037 MPa. When the row spacing is 800 mm, the minimum compressive stress in the middle between two adjacent anchor bolts is 0.075 MPa. When the row spacing is 900 mm, the minimum compressive stress in the middle between two adjacent anchor bolts reaches 0.05 MPa, which is not much different from the row spacing of 800 mm. As the row spacing of the anchor bolts increases to 1000 mm, the maximum compressive stress at the middle of a single anchor bolt undergoes no significant alteration, but the area of compressive stress close to 0 appeared in the middle of the two anchor bolts. In this case, the anchor bolts cannot provide effective active support to this area, affecting the continuity of the bearing structure. Therefore, in order to ensure effective support of the surrounding rock of the roadway and reduce support costs, the reasonable row spacing of anchor bolts is 900 mm.

6. Stability Control and Assessment of Gob-Side Entry

6.1. Stability Control of Gob-Side Entry

(1)
Roof support
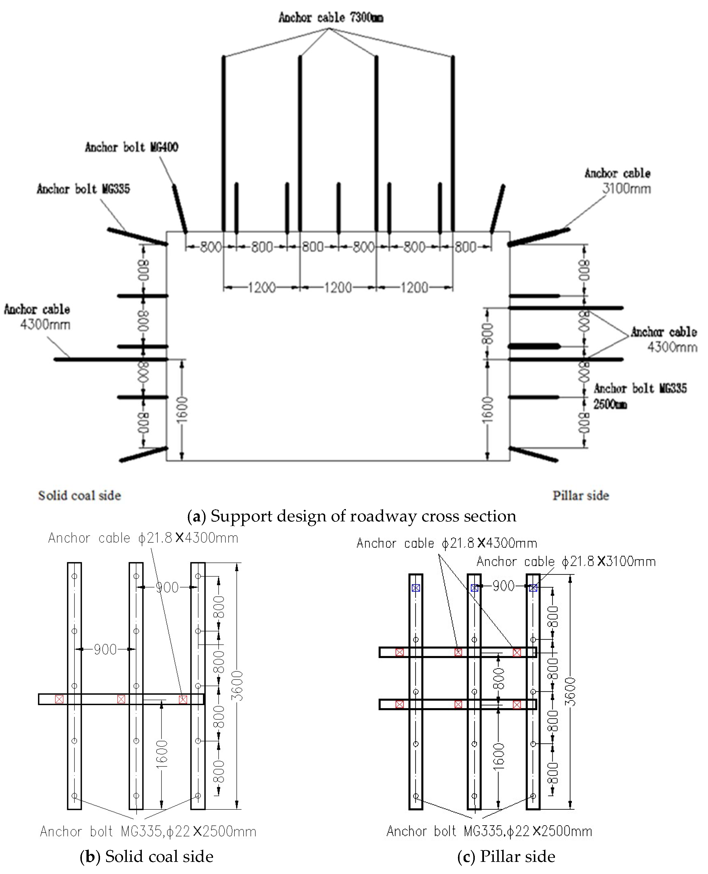
The combined support of grade IV rebar prestressed anchor bolt (MG400) and M5 steel strip and 10# rhombic metal mesh was applied in the roof. The anchor bolts in the form of a ‘7-7’ arrangement were applied to the roof, the length of the M5 steel strip was 5.1 m, the diameter of the bolt was 22 mm, the length was 2800 mm, and the spacing between the bolts was 800 mm and the row spacing was 900 mm. The full length of the bolt was anchored with one roll k2860 and two roll z2860 resin roll, the angle between the anchor bolts on both sides of the roof and the vertical direction was 15°, the torque of the bolt nut should not be less than 200 Newton-meters, and the anchoring force should not be less than 150,000 newtons. The lap connection of the metal mesh should be no less than 200 mm, the connection between the networks should not be greater than 200 mm, the stubble should not be pressed under the steel strip, and the double strands and double rows of diamond iron wires of not less than 1 inch should be used for binding.
The anchor cable and W5 steel belt (4 m in length) in the ‘4-4’ configuration was adopted, with two rows of 11# I-beams (2.4 m in length) and anchor cables along the strike. The diameter of the anchor cable, which matching the butterfly-shaped large tray (280 mm in length, 280 mm in width, and 16 mm in thickness), on the W5 steel belt was 21.8 mm, the length was 7300 mm, and the spacing between the anchor cables was 1200 mm and the row spacing was 900 mm. The diameter of the anchor cable on the 11# I-steel beam was 21.8 mm, the length was 6300 mm, and the spacing was 900 mm. Each hole was anchored with one roll of k2860 and two rolls of z2860 resin drug rolls. The preload of anchor cable should be no less than 180,000 newtons and the anchoring force should be no less than 350,000 newtons. The support design of the anchor bolt and anchor cable on the roof is shown in Figure 15.
A group of anchor cable clusters was constructed in the middle of the roadway roof every 15 m, and the preload of the anchor cable was no less than 180,000 newtons, and the anchoring force was no less than 350,000 newtons.
(2)
Support of both side of the roadway
① A combined support consisting of five full-threaded anchor bolts (MG335); two M3 steel strips, each 1.8 m in length with vertical lap arrangement; 10# rhomboid metal mesh; and one row of 11# I-steel (with a length of 2.4 m) in strike arrangement-reinforced anchor cables was applied to the solid coal side. The diameter of the anchor bolt was 22 mm, the length was 2500 mm, the spacing between the bolts was 800 mm, and the row spacing was 900 mm. The diameter of the anchor cable was 21.8 mm, the length was 4300 mm, and the row spacing was 900 mm.
The angle between the upper anchor bolt and the horizontal plane was 15°, and the angle between the lower anchor bolt and the horizontal plane was negative 15°, and the other anchor bolts were arranged vertically. The drill bit with a diameter of 28 mm was used in the drilling of the hole of the anchor bolt, and two rolls of Z2350 resin cartridge were applied to each anchor bolt. The torque of anchor bolt nut was not less than 180 Newton-meters, and the pre-tightening force of anchor bolt was not less than 125,000 newtons. The lap connection of the metal mesh should be no less than 200 mm, and the connection between the networks should not be greater than 200 mm. The distance between the anchor cable and the floor was 1.6 m, and the cable was arranged along the roadway. Two rolls of Z2860 resin cartridge were used for each hole, and the pre-tightening force of the anchor cable was not less than 150,000 newtons.
② A combined support consisting of four full-threaded anchor bolts (MG335), one replacement anchor bolt at the shoulder joint of the roadway, two M3 steel strips each 1.8 m in length with vertical lap arrangement, 10# rhomboid metal mesh, and two rows of 11# I-steel (with a length of 2.4 m) in strike arrangement reinforced anchor cables was applied to the coal pillar side. The diameter of the bolt was 22 mm, and the length was 2500 mm; the diameter of the anchor cable was 21.8 mm, and the length was 4300 mm; and the diameter of the alternative anchor cable was 21.8 mm, and the length was 3100 mm. The spacing between the bolts (anchor cables) was 800 mm and the row spacing was 900 mm.
The drill bit with the diameter of 28 mm was used in the drilling of the hole of the anchor bolt on the coal pillar side, and two rolls of Z2350 resin cartridge were applied to each anchor bolt. The diameter of the anchor cable at the upper corner of the roadway was 21.8 mm, and the length was 3100 mm. The angle between the anchor cable at the upper corner and the horizontal plane was 15°, and the ball lock matched the anchor cable at the upper corner. The diameter of the other anchor cables was 21.8 mm, and the length was 4300 mm, the distance between the two rows of anchor cables arranged along the roadway was 1.6 m and 2.4 m, respectively, and the pre-tightening force of the anchor cable should not be less than 150,000 newtons. The angle between the anchor bolt at the lower corner of the roadway and the horizontal plane was 15°, and the other anchor bolts were arranged vertically. The torque of the bolt nut was not less than 180 Newton-meters, and the anchoring force of the side anchor bolts were not less than 125,000 newtons.
The supporting design diagram of the roadway is shown in Figure 15.
(3)
Support of special sections
During the period when the roadway passes through the fault or in the section where the roadway deformation is large, the roof support should be strengthened. In order to strengthen the roof support strength, three rows of 11# I-beams (2.4 m in length) with anchor cables were arranged along the strike; the diameter of the anchor cables on the 11# I-beam on both sides of the roadway roof was 21.8 mm, and the length is 6300 mm. The diameter of the anchor cables on the 11# I-beam near the middle of the roadway roof was 21.8 mm, and the length was 8300 mm. The anchor cable preload force is not less than 180,000 newtons, and the anchoring force is not less than 350,000 newtons.
A group of anchor cable clusters were constructed every 10 m on the top plate of the roadway near the middle of the roadway.
In the case of broken top plate of the roadway or serious deformation of the roadway, 36 U type shed was used for support, and five groups of 11# I-beams and 8.3 m anchor cables were reinforced and excavated row by row. When shed support was used, the spacing of the sheds was 700 mm.

6.2. Mine-Pressure Observation Scheme of Gob-Side Entry

In order to obtain the mine-pressure condition of the 1331 (1) track roadway during the trial excavation, the observation scheme of mine pressure was set up. The arrangement of the measuring stations is shown in the Figure 16. Observation station 1 is arranged 10 m inside the stoppage line of the 1321 (1) working face, and observation station 2 and observation station 3 are arranged 30 m and 60 m back, respectively, as shown in Figure 16. The main contents of the mine pressure monitoring of the track roadway are the surface displacement of the roadway, the deep displacement of the surrounding rock, the roof separation, and the working load of the anchor and cable.

6.3. Stability Assessment of Gob-Side Entry

1.
Displacement change in surrounding rock on roadway surface
The displacement data obtained from the observation station arranged on site are collated, and the displacement changes in the surrounding rock on roadway surface are shown in Figure 17. After the monitoring, the site survey was carried out on 1331 (1) track roadway in Zhujidong Mine, and the on-site condition of surrounding rock on the roadway surface was shown in Figure 18.
As can be seen from the figure, the deformation rate of the surrounding rock on the surface of the track roadway is the largest within about 10 days of the formation of the roadway. At this stage, it is mainly due to the fact that the mining stress generated by the formation of the roadway has not reached equilibrium. Within 10 to 15 days of the formation of the roadway, the displacement growth rate of the surrounding rock on the surface of the roadway gradually decreases until it tends to be stable, and the disturbance effect of roadway excavation on the observation point is becoming less and less; About 20 days after the formation of the roadway, the displacement of the surrounding rock on the surface of the roadway tends to be stable and basically does not change. During the monitoring period, the maximum displacement of the top and bottom plates is 86 mm, the maximum displacement of the solid coal side of the roadway is 50 mm, and the maximum displacement of the coal pillar side is 70 mm. The displacement of the coal pillar side of the roadway is greater than the displacement of the solid coal side. It can be seen from the on-site conditions of the track roadway in the later stage that the overall control effect of the roadway surrounding rock is good.
2.
Separation of the roof of the roadway
The roof separation of 1331 (1) track roadway was monitored by a 4-point separation meter, and the depths of observation points 1#~4# were 2.7 m, 4.0 m, 7.3 m, and 8.0 m, respectively. The separation of the roof of the track roadway was shown in Figure 19.
According to the data of the separation meter at the on-site measuring station, the data of the roof separation meter at each observation station are 0 mm at the deep measuring point. A small separation occurred at the shallow measuring point within about 12 days after the track roadway was completed. After that, the separation amount tended to be stable and basically did not change. The maximum separation amounts of observation point 1# and 2# at the observation station 1# were 14 mm and 22 mm, respectively, and the roof separation amount at the observation station 1# was small. The maximum separation amounts of observation point 1# and 2# at the observation station 2# were 10 mm and 18 mm, respectively, and the roof separation amount at the observation station 2# was small. The maximum separation amounts of observation point 1# and 2# at the observation station 3# were 8 mm and 12 mm, respectively, and the roof separation amount at the observation station 3# was small.
The monitoring data of the roof of 1331 (1) track roadway show that the roof separation amount is small, and the surrounding rock of the roof is relatively stable.
3.
Analysis of load on anchor bolt and cable
During the excavation of 1331 (1) track roadway, the load conditions of some anchor bolts and cables on the coal pillar side, solid coal side and the roof of the roadway is monitored, and the data are summarized and sorted to obtain the stress changes in the anchor bolts and cables, as shown in Figure 20.
As can be seen from the above figures, in the early stage after driving the track roadway, due to the influence of driving disturbance and residual stress of the adjacent gob area on the surrounding rock of the roadway, the load on anchor bolts and cables gradually increased within about 12 days, and then the load tended to be stable and basically did not change. The initial load on the anchor bolt on the left side of the observation station 1# was 43,000 newtons (43 KN), and then the load on the anchor bolt gradually increased. After about 13 days, the load on the anchor bolt tended to be stable and stabilized at 55,000 newtons (55 KN). The initial load on the anchor bolt on the right side was 29,000 newtons (29 KN), and the initial load on the anchor bolt on the roof was 25,000 newtons (25 KN). During the observation period, the load on the anchor bolt on the right side and the roof basically did not change. The initial load on the anchor cable on the roof was 123,000 newtons (123 KN), and then the load on the anchor cable gradually increased. After about 13 days, the load on the anchor cable tended to be stable and stabilized at 129,000 newtons (129 KN).
The initial load on the anchor bolt on the left side of observation station 2# was 31,000 newtons (31 KN), and then the load on the anchor bolt gradually increased. After about 10 days, the load on the anchor bolt tended to be stable and stabilized at 39,000 newtons (39 KN). The initial load on the anchor bolt on the right side was 22,000 newtons (22 KN), and then the load on the anchor bolt gradually increased. After about 10 days, the load on the anchor bolt tended to be stable and stabilized at 30,000 newtons (30 KN). The initial load on the anchor bolt on the roof was 37,000 newtons (37 KN), and then the load on the anchor bolt gradually increased; after about 9 days, the load on the anchor bolt tended to be stable and stabilized at 43,000 newtons (43 KN). The initial load on the anchor cable on the roof was 132,000 newtons (132 KN), and then the load on the anchor cable gradually increased; after about 15 days, the load on the anchor cable tended to be stable and stabilized at 155,000 newtons (155 KN).
The initial load on the anchor bolt on the left side of observation station 3# was 62,000 newtons (62 KN), and then the load on the anchor bolt gradually increased. After about 9 days, the load on the anchor bolt tended to be stable and stabilized at 86,000 newtons (86 KN). The initial load on the anchor bolt on the right side was 51,000 newtons (51 KN), and then the load on the anchor bolt gradually increased. After about 9 days, the load on the anchor bolt tended to be stable and stabilized at 70,000 newtons (70 KN). The initial load on the anchor bolt on the roof was 38,000 newtons (38 KN), and then the load on the anchor bolt gradually increased; after about 8 days, the load on the anchor bolt tended to be stable and stabilized at 45,000 newtons (45 KN). The initial load on the anchor cable on the roof was 139,000 newtons (139 KN), and then the load on the anchor cable gradually increased; after about 15 days, the load on the anchor cable tended to be stable and stabilized at 168,000 newtons (168 KN).
During the monitoring period after the excavation of the track roadway, there was no failure phenomenon of anchor bolt and cable. The load of the anchor bolt and anchor cable was less than the critical warning value stipulated by the coal industry company. The support resistance of the roadway support components increased and stabilized at a stress value higher than the initial value, indicating that the roadway’s surrounding rock was in a stable state, which was beneficial to the stability control of the surrounding rock of the roadway and played an active role in controlling the deformation of the surrounding rock of the roadway.

6.4. Deformation Characteristics of Gob-Side Entry

In order to obtain the deformation characteristics of the surrounding rock of the track roadway during excavation along the goaf, a simulation calculation model was established by using the simulation software Fast Lagrangian Analysis of Continua (FLAC 3 D 6.0) according to the geological conditions of 1321 (1) working face and 1331 (1) track roadway. The size of the model is 343 m long, 300 m wide, and 172 m high, with a total of 825,346 units. The bottom boundary of the model is fixed, the left and right boundary limits the horizontal displacement, and the top boundary imposes self-weight stress. The simulated coal-seam mining height is 2 m, and the simulated roadway size is 5.4 m wide and 3.6 m high. Coal and rock mass can be regarded as elastic–plastic material, which is simplified to elastic–plastic model in numerical calculation, and Molar–Coulomb failure criterion is selected. The working face was simulated by advancing 10 m each time, and the roadway was simulated by excavating 10 m each time. The numerical calculation model is shown in Figure 21, and the physical and mechanical parameters of coal and rock are shown in Table 5.
Simulation process: initial ground stress balance → 1321 (1) waking face →1331 (1) track roadway → output result.
The equilibrium condition is reached when the geo-stress is calculated to 8430 steps, and the maximum unbalance force is less than 1 × 10−5. The average geo-stress of coal seam and roadway is 21.3 MPa, and the geo-stress is generally distributed horizontally.
After the mining of 1321 (1) waking face, 1331 (1) track roadway was excavated. The displacement changes in roadway surrounding rock of track roadway under different excavation distance conditions were shown in Figure 22.
According to the analysis of the above figure, under the influence of residual mining stress of adjacent working face and disturbance during roadway excavation, the displacement of surrounding rock is mainly concentrated on both sides and the roof and floor of the roadway during roadway excavation. With the increase in excavation distance, the displacement of overlying rock gradually increases and tends to be stable, while the floor-heave phenomenon occurs in the underlying rock in a small range.
When the roadway is driven to 50 m, the maximum displacement variation in the roof and floor of the roadway is about 81 mm. When the roadway is driven to 100 m, the maximum displacement change in the roof and floor is 88 mm. When the roadway is driven to 150 m, the maximum displacement change in the roof and floor is 95 mm, and when the roadway is driven to 200 m, the maximum displacement change in the roof and floor is 97 mm.
In the direction of inclination, with the excavation of the roadway, the displacement changes in the stratification phenomenon appear on both sides of the roadway. However, since one side of the roadway is close to the goaf of the upper section, and the other side is a solid wall, the displacement changes on both sides are obviously asymmetric. With the continuous excavation of the roadway, the displacement asymmetry deformation difference of surrounding rock on both sides of the roadway gradually decreases. With the gob roadway driving, the maximum displacement change in the strike direction occurs closer and closer to the roadway roof, and the displacement change becomes larger and larger and becomes stable. In the direction of the dip, the displacement range of the top strata gradually increases and becomes stable.
The numerical simulation results of the deformation of the roof and floor of the roadway show that the deformation of the roof and floor of the roadway is consistent with the field monitoring results.

7. Conclusions

Aiming at solving the problem of support failure caused by large deformation of roadway surrounding rock in deep soft coal seam, the support effect of the supporting system of gob-side entry in a deep soft coal seam was studied by using a numerical simulation and field industrial test and inspection. The deformation characteristics of various supporting systems of metal mesh, diamond mesh, metal mesh with anchor rod, steel ladder beam, and M-shaped steel belt in the goaf supporting body of deep soft coal seam were studied under vertical load. The supporting effect of the effective compressive stress zone generated by bolt and cable under different row spacings and lengths was analyzed, the law of variation in compressive stress field generated by supporting members with supporting parameters was explored, and the reasonable supporting parameters were optimized. The main conclusions are as follows:
(1)
Based on the effective compressive stress zone generated by the anchor bolt and cable support components, the supporting effect of the support components was analyzed, and the law of the compressive stress field generated by the support components that varied with the supporting parameters was obtained. The supporting effect of bolt and cable under different length, spacing, and preload was simulated and analyzed, respectively. The turning point of compressive stress-zone change under different supporting parameters was determined, and the critical supporting parameters of effective compressive stress zone continuous and good supporting effect were selected.
(2)
When different support systems were under the same fixed load, the maximum deformation of the metal mesh was 239.61 mm, the maximum deformation of the diamond mesh was 578.86 mm, the maximum deformation of the 12# steel ladder beam was 193.77 mm, the maximum deformation of the 14# steel ladder beam was 161.62 mm, the maximum deformation of the M-shaped steel strip was 78.066 mm, and the maximum deformation of 14#b channel steel was 110.87 mm, while that of 11# I-steel was 135.57 mm. The strongest resistance to deformation was observed in the M-shaped steel strip, and the worst resistance to deformation was observed in the diamond mesh.
(3)
The support scheme of the 1331 (1) track roadway was designed, and the industrial test was carried out. The investigation results of the stability of the surrounding rock of the 1331 (1) track roadway showed that the maximum displacement of the roof and floor of the roadway was 86 mm, the maximum displacement of the solid coal side was 50 mm, the maximum displacement of the coal pillar side was 70 mm, and the maximum separation of strata was 22 mm. The load of the anchor bolt and anchor cable was less than the critical warning value stipulated by the coal industry company, there was no failure phenomenon of anchor bolt and cable, and the overall deformation of the roadway surrounding rock was small.
The results of the stability investigation of the surrounding rock of the 1331 (1) track roadway show that the overall deformation of the surrounding rock of the roadway was small, which indicated that the roadway support scheme in this study was reasonable, and the research results can provide a reference for other roadway-surrounding-rock control under similar conditions in the 11-2 coal seam of Zhujidong Coal Mine.

Author Contributions

Methodology, H.M. and Z.L.; software, C.J. and H.Z.; validation, S.Z.; investigation, S.Z., H.Z., C.J. and H.M.; data curation, H.Z. and C.J.; writing—original draft preparation, H.M. and C.J.; writing—review and editing, Z.L. and S.Z.; visualization, S.Z. and Z.L.; supervision, Z.L. All authors have read and agreed to the published version of the manuscript.

Funding

This research was funded by the National Natural Science Foundation of China Youth Program (52304074, 51974007), the Anhui University of Science and Technology 2022 Graduate Core (first-class) Course Construction Project (2022HX002), and the 2023 New Era Education Quality Project (2023zyxwjxalk070).

Institutional Review Board Statement

Not applicable.

Informed Consent Statement

Not applicable.

Data Availability Statement

The raw data supporting the conclusions of this article will be made available by the authors upon request.

Conflicts of Interest

The authors declare no conflicts of interest.

References

  1. Gao, C.J.; Huang, D.M.; Chang, X.K.; Xi, H. Risk Analysis and Extension Assessment for The Stability of Surrounding Rock In Deep Coal Roadway. Int. J. Environ. Res. Public Health 2019, 16, 4752. [Google Scholar] [CrossRef] [PubMed]
  2. Wang, X.F.; Zhang, Y.Y.; Zhang, Q.; Wei, Y.Y.; Liu, W.G.; Jiang, T. Space-Time Evolution Characteristics of Deformation and Failure of Surrounding Rock in Deep Soft Rock Roadway. Sustainability 2022, 14, 12587. [Google Scholar] [CrossRef]
  3. Wu, C.; Qin, T.; Wang, L.; Liu, Z. Research on Surrounding Rock Control Technology of Dongbaowei Deep Mining Roadway. Adv. Civ. Eng. 2021, 1, 6660989. [Google Scholar] [CrossRef]
  4. Li, S.Q.; Sun, X.F.; Ye, Z.Y.; Tan, Y.L. Analysis of Bearing Structures around Deep Soft Rock Roadway. Disaster Adv. 2014, 1, 250–255. [Google Scholar]
  5. Liu, W.J.; Qian, D.Y.; Yang, X.G.; Wang, S.J.; Deng, J.P.; Cui, Q.; Li, Z.X. Stress Relief and Support for Stability of Deep Mining Roadway with Thick Top Coal in Hujiahe Coal Mine with the Risk of Rock Burst. Shock. Vib. 2021, 9, 3822336. [Google Scholar] [CrossRef]
  6. Yuan, W.H.; Hong, K.; Liu, R.; Ji, L.J.; Meng, L. Numerical Simulation of Coupling Support for High-Stress Fractured Soft Rock Roadway in Deep Mine. Adv. Civ. Eng. 2022, 6, 7221168. [Google Scholar] [CrossRef]
  7. Zhao, C.X.; Li, Y.M.; Liu, G.; Meng, X.R. Mechanism Analysis and Control Technology of Surrounding Rock Failure in Deep Soft Rock Roadway. Eng. Fail. Anal. 2020, 115, 104611. [Google Scholar] [CrossRef]
  8. Wu, B.W.; Chang, J.C.; Li, C.M.; Wang, T.; Shi, W.B.; Wang, X.Y. Mechanism of Time-Dependent Instability of Deep Soft-Rock Roadway and Crack-Filling Reinforcement Technology. Appl. Sci. 2023, 13, 4641. [Google Scholar] [CrossRef]
  9. Wang, E.; Yin, S.F.; Kang, Q.T.; Zhao, X.B.; Lan, Q.K.; Sheng, H.Y.; Liang, H.Y. Coupling control technology of anchoring and unloading in deep intense-mining and large-deformation roadway: A case study. Sci. Rep. 2024, 14, 12075. [Google Scholar] [CrossRef]
  10. Wang, W.J.; Fan, L.; Zhao, Z.Q. Research progress of support theory and technology of the roadway surrounding rock based on the plastic zone control. J. China Coal Soc. 2024, 49, 320–336. [Google Scholar]
  11. Liu, X.S.; Li, X.B.; Tan, Y.L. Instability Mechanism and Control Method of Energy-Reducing for Roadside Support in Deep Gob-Side Roadway. J. China Coal Soc. 2023, 48, 485–500. [Google Scholar]
  12. Gao, M.S.; Xu, D.; Wang, H.C. Shock Failure Mechanism of Roadway in Extra Thick Coal Seam and Full Anchor Cable Support Technology. J. China Coal Soc. 2023, 48, 1943–1956. [Google Scholar]
  13. Hou, C.J.; Wang, X.Y.; BAI, J.B. Basic theory and technology study of stability control for surrounding rock in deep roadway. J. China Univ. Min. Technol. 2021, 50, 1–12. [Google Scholar]
  14. Wang, F.T.; Shang, J.J.; Zhao, B. Strengthened Anchor Cable Support Mechanism and Its Parameter Optimization Design for Roadway’s Dynamic Pressure Section. J. China Univ. Min. Technol. 2022, 51, 56–66. [Google Scholar]
  15. Guo, X.F.; Guo, L.F.; Ma, N.J. Applicability Analysis of The Roadway Butterfly Failure Theory. J. China Univ. Min. Technol. 2020, 49, 646–653. [Google Scholar]
  16. Kang, H.P.; Wu, Y.Z.; He, J. Rock Bolting Performance and Field Practice in Deep Roadway with Rock Burst. J. China Coal Soc. 2015, 40, 2225–2233. [Google Scholar]
  17. Wang, X.J.; Li, Y.M.; Zhao, G.M. Mechanical Response Analysis of Surrounding Rock Bearing Structure of Soft Rock Roadway Based on Full-Length Anchorage. Coal Sci. Technol. 2023, 51, 24–34. [Google Scholar]
  18. Cao, C.; Xie, Z.; Zhang, N.; Han, C.; Yan, G.; Mu, F.; Zhang, W. Differential roof cutting for roadway support in dual gob-side entry retention on a single working face-Multilevel continuous anchor-grouting control technology: A case study. Eng. Fail. Anal. 2024, 163, 108475. [Google Scholar] [CrossRef]
  19. Luo, Y.; Huang, J.C.; Si, X.F.; Lin, F.; Wu, W.X. An energy-based method for uniaxially compressed rocks and its implication. J. Rock Mech. Geotech. Eng. 2024, 12, 353–365. [Google Scholar] [CrossRef]
  20. Si, X.F.; Luo, Y.; Gong, F.Q.; Huang, J.C.; Han, K.F. Temperature effect of rockburst in granite caverns: Insights from reduced-scale model true-triaxial test. Geomech. Geophys. Geo-Energ. Geo-Resour. 2024, 10, 26. [Google Scholar] [CrossRef]
  21. Meng, B.; Yin, Q.; Jing, H.W.; Liu, S.D.; Jia, B.G. Stability Control of Deep-Buried Roadways Using Large Deformation and Increasing Resistance Anchor Cables. J. Cent. South Univ. 2024, 31, 558–575. [Google Scholar] [CrossRef]
  22. Wu, Y.; Liu, X.; Tan, Y.; Wang, W.; Li, X.; Wang, X. Mechanism of Bolt Breakage in Deep Mining Roadway Under Dynamic Load and Advanced Strengthening Support Technology. Eng. Fail. Anal. 2024, 161, 108255. [Google Scholar] [CrossRef]
  23. Kang, H.P.; Yang, J.W.; Jiang, P.F.; Gao, F.Q.; Li, W.Z.; Li, J.F.; Chen, H.Y. Theory, Technology and Application of Grouted Bolting in Soft Rock Roadways of Deep Coal Mines. Int. J. Miner. Metall. Mater. 2024, 31, 1463–1479. [Google Scholar] [CrossRef]
  24. Wang, J.; Liu, P.; He, M.C.; Tian, H.Z.; Gong, W.L. Mechanical Behaviour of a Deep Soft Rock Large Deformation Roadway Supported by NPR Bolts: A Case Study. Rock Mech. Rock Eng. 2023, 56, 8851–8867. [Google Scholar] [CrossRef]
  25. Wang, H.W.; Zhang, F.J.; Wang, H.R.; Li, Z.L.; Wang, Y.H. Real-Time Detection and Location of Reserved Anchor Hole in Coal Mine Roadway Support Steel Belt. J. Real-Time Image Process. 2023, 20, 6563–6581. [Google Scholar] [CrossRef]
  26. Wang, H.P.; Song, Y.; Zhou, J.H.; Mao, J.H.; Zhang, W.D. Research On the Mechanical Model of Anchorage Resistance in Deeply Filled Jointed Rock Masses. Eng. Fail. Anal. 2024, 163, 108565. [Google Scholar] [CrossRef]
  27. Shan, R.; Wei, Y.; Wang, C.; Li, Z.; Li, Y.; Liu, D.; Zhao, X. Research on the Failure Mechanism of Surrounding Rock in a Dynamic Pressure Roadway and Active and Passive Coordinated Support Technology. Appl. Sci. 2024, 14, 2352–2368. [Google Scholar] [CrossRef]
  28. Feng, C.; Liu, S.; Fu, M.; Yao, B.; Jia, H.; He, D. Failure Mechanism and Strengthening Countermeasures of End-Anchored Cable Free Section Under Combined Tension and Shear. Eng. Fail. Anal. 2024, 157, 107949. [Google Scholar] [CrossRef]
  29. Tian, M.L.; Gao, X.X.; Zhang, A.F.; Han, L.J.; Xiao, H.T. Study on The Deformation Failure Mechanism and Coupling Support Technology of Soft Rock Roadways in Strong Wind Oxidation Zones. Eng. Fail. Anal. 2024, 156, 107840. [Google Scholar] [CrossRef]
  30. Zuo, J.P.; Liu, H.Y.; Liu, D.J.; Zhu, F.; Zhao, W.P.; Zhang, Q.; Li, J.H. Theoretical Analysis and Numerical Simulation on The Coupled Support Technology of Concrete-Filled Steel Tube and Bolt-Cable in Deep Roadway. J. Cent. South Univ. 2023, 30, 257–275. [Google Scholar] [CrossRef]
  31. Ding, K.; Wang, L.G.; Tian, J.S.; Ren, B.; Jiang, C.Y.; Wang, S. Design of a Highly Adaptable Advance Support for a Deep, Fully Mechanized Roadway and Analysis of Its Support Performance. Appl. Sci. 2022, 12, 12728. [Google Scholar] [CrossRef]
  32. Sun, X.M.; Zhao, W.C.; Shen, F.X.; Zhang, Y.; Jiang, M. Study on Failure Mechanism of Deep Soft Rock Roadway and High Prestress Compensation Support Countermeasure. Eng. Fail. Anal. 2023, 143, 865–878. [Google Scholar] [CrossRef]
  33. Chu, H.B.; Li, G.Q.; Liu, Z.J.; Liu, X.S.; Wu, Y.H.; Yang, S.L. Multi-Level Support Technology and Application of Deep Roadway Surrounding Rock in the Suncun Coal Mine, China. Materials 2022, 15, 8665. [Google Scholar] [CrossRef] [PubMed]
  34. Sun, X.M.; Zhu, M.Q.; Zhang, Y.; Zhao, C.W.; Miao, C.Y.; Zhang, S.K. Highly Prestressed Npr Cable Coupling Support Technology and Its Application in The Deep Roadway. Eng. Fail. Anal. 2022, 142, 457–463. [Google Scholar] [CrossRef]
  35. Shan, R.L.; Zhang, S.P.; Xiao, S.C.; Liang, J.Q. Research on Anchor Cable and C-Shaped Tube Support Method in Deep Layers Roadway, Experimental Study and Numerical Simulation. Shock. Vib. 2021, 2021, 7537979. [Google Scholar] [CrossRef]
  36. Zheng, L.J.; Zuo, Y.J.; Hu, Y.F.; Wu, W. Deformation Mechanism and Support Technology of Deep and High-Stress Soft Rock Roadway. Adv. Civ. Eng. 2021, 4, 1–14. [Google Scholar] [CrossRef]
  37. Su, W.P.; Zheng, B.Y.; Jiang, P.F. Study on Anchor Cable instead of Single Hydraulic Prop Support in Advance Support of Deep Roadway. Adv. Civ. Eng. 2021, 2021, 6644832. [Google Scholar] [CrossRef]
  38. Wang, S.; Xiang, Z.; Deng, J.; Yang, H.; Yang, X.; Jin, S. Analysis of Cooperative Control Effect of Pressure Relief and Long Bolt Support for Deep Roadway Under Strong Mining Disturbance of Adjacent Working Face. Geotech. Geol. Eng. 2020, 4, 2259–2268. [Google Scholar] [CrossRef]
  39. Chang, J.C.; He, K.; Yin, Z.Q.; Li, W.F.; Li, S.H.; Pang, D.D. Study on the Instability Characteristics and Bolt Support in Deep Mining Roadways Based on the Surrounding Rock Stability Index: Example of Pansan Coal Mine. Adv. Civ. Eng. 2020, 5, 1–16. [Google Scholar] [CrossRef]
  40. Shi, J.; Feng, J.; Peng, R. Study on Support Technology of Deep Mine Roadway in Xingdong Coal Mine. Geotech. Geol. Eng. 2020, 39, 1683–1688. [Google Scholar] [CrossRef]
  41. Jing, H.; Wu, J.; Yin, Q.; Wang, K. Deformation and Failure Characteristics of Anchorage Structure of Surrounding Rock in Deep Roadway. Int. J. Min. Sci. Technol. 2020, 30, 593–604. [Google Scholar] [CrossRef]
  42. Li, H.; Zhao, W.; Zhou, K.; Liu, Y.; An, X.; Gao, G. Study on the Effect of Bolt Anchorage in Deep Roadway Roof Based on Anchorage Potential Design Method. Geotech. Geol. Eng. 2019, 37, 4043–4055. [Google Scholar] [CrossRef]
  43. Fan, Z.X. The Secondary Anchor-Cable Network Support Technology in Deep Soft-rock Roadway in Chaohua Coal Mine. IOP Conf. Ser. Earth Environ. Sci. 2018, 189, 062055. [Google Scholar]
  44. Li, J.B. Analysis of stability in pedestrian downhill roadway at Yindonggou 11th coal mine area: The impact of anchor cable support density. Front. Energy Res. 2024, 12, 326–342. [Google Scholar]
  45. Yao, B. Master of Engineering. Research on Reasonable Width of Coal Pillar and Surrounding Rock Control Technology of Deep Large Section Gob-Side Entry. Master’s Thesis, China University of Mining and Technology, Xuzhou, China, 2022. [Google Scholar]
Figure 1. Layout of working face and roadway.
Figure 1. Layout of working face and roadway.
Applsci 14 08226 g001
Figure 2. In situ deformation of roadway [45].
Figure 2. In situ deformation of roadway [45].
Applsci 14 08226 g002
Figure 3. Model of supporting component.
Figure 3. Model of supporting component.
Applsci 14 08226 g003aApplsci 14 08226 g003b
Figure 4. Deformation diagram of M5 steel strip under load (unit: mm).
Figure 4. Deformation diagram of M5 steel strip under load (unit: mm).
Applsci 14 08226 g004
Figure 5. Deformation diagram of reinforced ladder beam under load (unit: mm).
Figure 5. Deformation diagram of reinforced ladder beam under load (unit: mm).
Applsci 14 08226 g005
Figure 6. Deformation diagram of 14#b channel steel structure under load (unit: mm).
Figure 6. Deformation diagram of 14#b channel steel structure under load (unit: mm).
Applsci 14 08226 g006
Figure 7. Deformation diagram of 11# I-beam structure under load (Unit: mm).
Figure 7. Deformation diagram of 11# I-beam structure under load (Unit: mm).
Applsci 14 08226 g007
Figure 8. Stress-field diagram of roof bolt at 2700 mm.
Figure 8. Stress-field diagram of roof bolt at 2700 mm.
Applsci 14 08226 g008
Figure 9. Stress-field diagram of roof bolt at 2800 mm.
Figure 9. Stress-field diagram of roof bolt at 2800 mm.
Applsci 14 08226 g009
Figure 10. Stress-field diagram of roof bolt at 2900 mm.
Figure 10. Stress-field diagram of roof bolt at 2900 mm.
Applsci 14 08226 g010
Figure 11. Stress-field diagram of side bolt at 2400 mm.
Figure 11. Stress-field diagram of side bolt at 2400 mm.
Applsci 14 08226 g011aApplsci 14 08226 g011b
Figure 12. Stress-field diagram of side bolt at 2500 mm.
Figure 12. Stress-field diagram of side bolt at 2500 mm.
Applsci 14 08226 g012
Figure 13. Stress-field diagram of side bolt at 2600 mm.
Figure 13. Stress-field diagram of side bolt at 2600 mm.
Applsci 14 08226 g013
Figure 14. Cloud diagram of vertical stress under different row spacings of anchor bolts.
Figure 14. Cloud diagram of vertical stress under different row spacings of anchor bolts.
Applsci 14 08226 g014
Figure 15. Support design drawing of roadway.
Figure 15. Support design drawing of roadway.
Applsci 14 08226 g015aApplsci 14 08226 g015b
Figure 16. Layout map of stations.
Figure 16. Layout map of stations.
Applsci 14 08226 g016
Figure 17. Change in displacement of surrounding rock on the roadway surface.
Figure 17. Change in displacement of surrounding rock on the roadway surface.
Applsci 14 08226 g017aApplsci 14 08226 g017b
Figure 18. The on-site condition of the roadway.
Figure 18. The on-site condition of the roadway.
Applsci 14 08226 g018
Figure 19. Roof separation curve.
Figure 19. Roof separation curve.
Applsci 14 08226 g019aApplsci 14 08226 g019b
Figure 20. Monitoring curves of the load on the anchor bolt and cable.
Figure 20. Monitoring curves of the load on the anchor bolt and cable.
Applsci 14 08226 g020aApplsci 14 08226 g020b
Figure 21. Stress-balance cloud map of primary rock.
Figure 21. Stress-balance cloud map of primary rock.
Applsci 14 08226 g021
Figure 22. Distribution characteristics of vertical displacement under different excavation-distance conditions.
Figure 22. Distribution characteristics of vertical displacement under different excavation-distance conditions.
Applsci 14 08226 g022aApplsci 14 08226 g022b
Table 1. Lithologic characteristics of coal seam roof and floor.
Table 1. Lithologic characteristics of coal seam roof and floor.
Name of Roof and FloorLithologyThickness (m)Lithologic Character
Upper roofFine sandstone3.4~11.9
6.0
Gray, fine-grained structure, dense, massive, the main components of feldspar, quartz, argillaceous cement.
Direct roofMudstone and coal line interlayer1.6~4.5
4.2
Gray, muddy structure, dense, massive, containing silty and fossil fragments, developed 1 to 2 layers of unstable coal line.
Direct bottomMudstone0.4~3.6
1.7
Gray, muddy structure, locally intercalated with thin layer of fine sand.
BottomFine sandstone15.3~48.7
27.2
Light gray to gray, fine-grained structure, with a few coarse grains at the bottom, dense, massive, mainly composed of feldspar, quartz.
Table 2. Fault parameters of 1321 (1) working face.
Table 2. Fault parameters of 1321 (1) working face.
Construction NameTrend (°)Tendency (°)Dip Angle (°)Falling Head (°)
DF326-44331344~641.2
DF32613~37283~30730~602.2
DF326-111~25101~11557~652~3.5
DF326-220110420.7
DF327-119~42109~13237~651.1~6.0
DF32724~47114~137455.0
DF327-441~72131~16243~631.0~3.0
DF319-140310651.3
DF319-24613659~701.3
DF319-511101571.0
DF3191~25271~295452~2.5
DF322-11510545~801.7
DF326-380170751.2
DF327-315105801.5
DF327-54213247~592.0
DF322-1-1162252411.6
DF322-219109403.0
DF322-2-185175802.0
DF322-318108751.0
Table 3. Material parameters of 14#b channel steel and 11# mine I-beam.
Table 3. Material parameters of 14#b channel steel and 11# mine I-beam.
Parameter Number14#b Channel SteelT3 Steel Strip11# MiningI-Beam
Material16 Mn (Q345)Q235
(Q345)
20 MnK
Sectional area (cm2)21.318.333.2
Theoretical weight (kg/m)16.71426.1
Mechanical propertySection coefficient, W y (cm3)14.18.128.4
Moment of inertia, I y (cm4)61.113.8127.7
Yield strength, σs (MPa)≥325≥345≥355
Tensile strength, σb (MPa)≥490≥490≥510
Allowable bending moment M ( k N m )4.232.6310.1
Carrying capacity, P
( k N )
16.910.5240.4
Table 4. Support parameters of numerical simulation.
Table 4. Support parameters of numerical simulation.
Anchor Bolt on Roof Anchor Cable
Roof BoltSide BoltArray Pitch/mmRoof Cable/RootSide Cable/Root
Length/mmSpacing/mmLength/mmSpacing /mm20
2700700~10002400700~1000800~100031
2800250042
2900260053
Table 5. Physical and mechanical parameters of coal and rock.
Table 5. Physical and mechanical parameters of coal and rock.
Rock StratumDensity
d/kg·m−3
Bulk Modulus
K/GPa
Shear Elasticity
G/GPa
Frictional Angle
φ/°
Adhesion Stress
C/MPa
Strength of Extension
t/MPa
Fine sandstone26509.55.6385.25.5
Mudstone24304.62.5333.51.5
Coal13503.51.2281.20.5
Mudstone24004.52.5333.51.4
Siltstone27509.85.6365.55.6
Disclaimer/Publisher’s Note: The statements, opinions and data contained in all publications are solely those of the individual author(s) and contributor(s) and not of MDPI and/or the editor(s). MDPI and/or the editor(s) disclaim responsibility for any injury to people or property resulting from any ideas, methods, instructions or products referred to in the content.

Share and Cite

MDPI and ACS Style

Ma, H.; Zhang, S.; Zhai, H.; Liu, Z.; Jie, C. Numerical Simulation and Engineering Application of Synergistic Support Effect of Bolt–Mesh–Cable Support in Gob-Side Entry of Deep Soft Coal Seam. Appl. Sci. 2024, 14, 8226. https://doi.org/10.3390/app14188226

AMA Style

Ma H, Zhang S, Zhai H, Liu Z, Jie C. Numerical Simulation and Engineering Application of Synergistic Support Effect of Bolt–Mesh–Cable Support in Gob-Side Entry of Deep Soft Coal Seam. Applied Sciences. 2024; 14(18):8226. https://doi.org/10.3390/app14188226

Chicago/Turabian Style

Ma, Haifeng, Shuo Zhang, Huaiyi Zhai, Zenghui Liu, and Chuang Jie. 2024. "Numerical Simulation and Engineering Application of Synergistic Support Effect of Bolt–Mesh–Cable Support in Gob-Side Entry of Deep Soft Coal Seam" Applied Sciences 14, no. 18: 8226. https://doi.org/10.3390/app14188226

APA Style

Ma, H., Zhang, S., Zhai, H., Liu, Z., & Jie, C. (2024). Numerical Simulation and Engineering Application of Synergistic Support Effect of Bolt–Mesh–Cable Support in Gob-Side Entry of Deep Soft Coal Seam. Applied Sciences, 14(18), 8226. https://doi.org/10.3390/app14188226

Note that from the first issue of 2016, this journal uses article numbers instead of page numbers. See further details here.

Article Metrics

Back to TopTop