Congruence Mapping of the Activity Flows Allocated in Built Environments: A Pilot Application of Under-Development Software in an Emergency-Care Service
Featured Application
Abstract
1. Introduction
1.1. Challenges and Complexities of Emergency Departments
1.2. Pre-Design Evaluation (PDE), Models, and Performance Simulations
1.3. Hypothesis, Main Objective, and Findings
2. Materials and Methods
- Environment—facilities that are spatially distinct in the building where an actor engages in a healthcare or support activity;
- Stakeholders—people or groups who play a role as demanders of services (patients) or as service providers (health and support professionals);
- Activities—actions performed to obtain an expected result;
- Process—an action chain or steps taken by stakeholders with a well-defined purpose;
- Organization—a structure of rules and available resources to enable processes (roles, environments, and materials resources).
2.1. Analytical Modeling MC-MD System Methodology
- eP – Potential environment relationships matrix;
- aP – Potential activity relationships matrix;
- E – Environment matrix;
- A – Activities matrix;
- R – Relationship matrix between environment and activities.
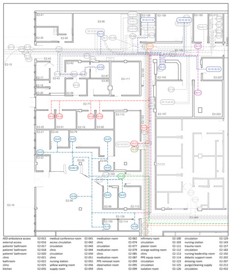
2.2. Data Collection in the Case Study
Activity Flow and Allocation Mapping
2.3. Data Curation, Processing, and Visualization
2.4. Research Datasets, Ethical Approval, and Use Permissions for Materials and Information
3. Results
3.1. Situation Record Matrices
3.2. Congruence Matrices
4. Discussion
- The Ann matrix points out the cyclical activities in the analyzed service, that is, cases in which the execution is repeated without a defined order. In order to reduce travel activity—which does not add value—and thus increase efficiency, the allocation of these activities must be combined and eventually integrated visually. This information is interesting mainly when an environmental arrangement has not yet been defined. When an environmental allocation exists, matrix aCnn allows the same reading to be obtained and adds a congruence indication;
- In the Rmn matrix, it is possible to identify mandatory passages (value one, yellow, in Table 1) in order to test the impact of restricting circulation through determined passageways. For example, when simulating the segregation of the flow of contagious inpatients or cleaning activities, the manager can verify that the existing environmental arrangement is not adequate, which demonstrates the need for a reformed design of the ED access spaces;
- The eCmm matrix indicates a congruent relationship between environments, depending on the allocated activities. Thus, it is possible to identify a room for which the allocated activity is not congruent with the others and replace it with an activity that requires an adjacency relationship in order to gain efficiency. For example, one can test the alternative location of a local warehouse for cleaning materials and linen in order to reduce the travel distances for supplies. In the case that has been presented here, a situation of non-congruence was not identified (value one, red, Table 2) because it was a real case. In the case of a design process that has not been executed, the lack of some relationship will be pointed out when an interface is identified between the environments whose activities demand a relationship. This is a particularly interesting resource in regard to design requirements and the validation of new proposals;
- The aCnn matrix allows the mapping of the relationships between the activities that were not indicated as inputs, but which were mapped with potential relationships. This map can be used to investigate the reasons for pointed non-congruence, whether it is because of lack of input relationships, because the activities cross each other and coexist in the same environment, or because they require an environmental or procedural rearrangement.
4.1. Conclusions and Future Research Directions
4.2. Research Limitations
4.3. Patents
Supplementary Materials
Author Contributions
Funding
Institutional Review Board Statement
Informed Consent Statement
Data Availability Statement
Acknowledgments
Conflicts of Interest
References
- Brambilla, A.; Mangili, S.; Das, M.; Lal, S.; Capolongo, S. Analysis of Functional Layout in Emergency Departments (ED). Shedding Light on the Free Standing Emergency Department (FSED) Model. Appl. Sci. 2022, 12, 5099. [Google Scholar] [CrossRef]
- Morgareidge, D.; CAI, H.; JIA, J. Performance-Driven Design with the Support of Digital Tools: Applying Discrete Event Simulation and Space Syntax on the Design of the Emergency Department. Front. Archit. Res. 2014, 3, 250–264. [Google Scholar] [CrossRef]
- Elf, M.; Anåker, A.; Marcheschi, E.; Sigurjónsson, Á.; Ulrich, R.S. The Built Environment and Its Impact on Health Outcomes and Experiences of Patients, Significant Others and Staff—A Protocol for a Systematic Review. Nurs. Open 2020, 7, 895–899. [Google Scholar] [CrossRef] [PubMed]
- Sasanfar, S.; Bagherpour, M.; Moatari-Kazerouni, A. Improving Emergency Departments: Simulation-Based Optimization of Patients Waiting Time and Staff Allocation in an Iranian Hospital. Int. J. Healthc. Manag. 2021, 14, 1449–1456. [Google Scholar] [CrossRef]
- Lesan, M.; Khozaei, F.; Kim, M.J.; Shahidi Nejad, M. Identifying Health Care Environment Contradictions in Terms of Infection Control during a Pandemic with a Focus on Health Workers’ Experience. Sustainability 2021, 13, 9964. [Google Scholar] [CrossRef]
- Chavane, L.; Merialdi, M.; Betran, A.P.; Requejo-Harris, J.; Bergel, E.; Aleman, A.; Colomar, M.; Cafferata, M.L.; Carbonell, A.; Crahay, B.; et al. Implementation of Evidence-Based Antenatal Care in Mozambique: A Cluster Randomized Controlled Trial: Study Protocol. BMC Health Serv. Res. 2014, 14, 228. [Google Scholar] [CrossRef]
- Günal, M.M.; Pidd, M. Discrete Event Simulation for Performance Modelling in Health Care: A Review of the Literature. J. Simul. 2010, 4, 42–51. [Google Scholar] [CrossRef]
- Ghamari, H.; Sharifi, A. Mapping the Evolutions and Trends of Literature on Wayfinding in Indoor Environments. Eur. J. Investig. Heal. Psychol. Educ. 2021, 11, 585–606. [Google Scholar] [CrossRef]
- Arsan, T.; Kepez, O. Early Steps in Automated Behavior Mapping via Indoor Sensors. Sensors 2017, 17, 2925. [Google Scholar] [CrossRef]
- Demirdöğen, G.; Işık, Z.; Arayici, Y. Determination of Business Intelligence and Analytics-Based Healthcare Facility Management Key Performance Indicators. Appl. Sci. 2022, 12, 651. [Google Scholar] [CrossRef]
- Gayer, B.D.; Marcon, É.; Bueno, W.P.; Wachs, P.; Saurin, T.A.; Ghinato, P. Analysis of Hospital Flow Management: The 3 R’s Approach. Production 2020, 30, 1–13. [Google Scholar] [CrossRef]
- Grzywinski, M.; Carlisle, S.; Coleman, J.; Cook, C.; Hayden, G.; Pugliese, R.; Faircloth, B.; Ku, B. Development of a Novel Emergency Department Mapping Tool. Heal. Environ. Res. Des. J. 2020, 13, 81–93. [Google Scholar] [CrossRef]
- Yu, L.; Iravani, S.; Perry, O. A Fluid-Diffusion-Hybrid Limiting Approximation for Priority Systems with Fast and Slow Customers. Oper. Res. 2022, 70, 2579–2596. [Google Scholar] [CrossRef]
- Dorrah, D.H.; Marzouk, M. Integrated Multi-Objective Optimization and Agent-Based Building Occupancy Modeling for Space Layout Planning. J. Build. Eng. 2021, 34, 101902. [Google Scholar] [CrossRef]
- Chraibi, A.; Kharraja, S.; Osman, I.H.; Elbeqqali, O. A Mixed Integer Programming Formulation for Solving Operating Theatre Layout Problem: A Multi-Goal Approach. In Proceedings of the 2013 International Conference on Industrial Engineering and Systems Management (IESM), Agdal, Morocco, 28–30 October 2013. [Google Scholar]
- Cubukcuoglu, C.; Nourian, P.; Tasgetiren, M.F.; Sariyildiz, I.S.; Azadi, S. Hospital Layout Design Renovation as a Quadratic Assignment Problem with Geodesic Distances. J. Build. Eng. 2021, 44, 102952. [Google Scholar] [CrossRef]
- Zhang, Y.; Tzortzopoulos, P.; Kagioglou, M. Healing Built-Environment Effects on Health Outcomes: Environment–Occupant–Health Framework. Build. Res. Inf. 2019, 47, 747–766. [Google Scholar] [CrossRef]
- Morley, C.; Unwin, M.; Peterson, G.M.; Stankovich, J.; Kinsman, L. Emergency Department Crowding: A Systematic Review of Causes, Consequences and Solutions. PLoS ONE 2018, 13, e0203316. [Google Scholar] [CrossRef]
- Soares, V.S.L.; Ornstein, S.W.; França, A.J.G.L. Current Approaches for Preventing Environment-Associated Contamination in Healthcare Facilities: A Systematic Literature Review by Open Access Database. Archit. Struct. Constr. 2022, 2, 439–453. [Google Scholar] [CrossRef]
- Angelo, A.D.; Thomazoni, L.; Ornstein, S.W.; Ono, R. Post-Occupancy Evaluation Applied to the Design of a Complex Hospital by Means of the Flow Analysis; The Architectural Science Association and The University of Adelaide: Adelaide, Australia, 2016; pp. 537–546. [Google Scholar]
- Jiang, S.; Verderber, S. On the Planning and Design of Hospital Circulation Zones: A Review of the Evidence-Based Literature. Heal. Environ. Res. Des. J. 2017, 10, 124–146. [Google Scholar] [CrossRef]
- Capolongo, S.; Gola, M.; Brambilla, A.; Morganti, A.; Mosca, E.I.; Barach, P. COVID-19 and Healthcare Facilities: A Decalogue of Design Strategies for Resilient Hospitals. Acta Biomed. 2020, 91, 50–60. [Google Scholar] [CrossRef]
- Hall, R.; Belson, D.; Murali, P.; Dessouky, M. Modeling Patient Flows through the Health Care System. In Patient Flow; Hall, R., Ed.; Springer: New York, NY, USA; pp. 3–42. [CrossRef]
- Diwas Singh, K.C.; Terwiesch, C. Benefits of Surgical Smoothing and Spare Capacity: An Econometric Analysis of Patient Flow. Prod. Oper. Manag. 2017, 26, 1663–1684. [Google Scholar] [CrossRef]
- Dzeng, R.J.; Wang, W.C.; Hsiao, F.Y. Function-Space Assignment and Movement Simulation Model for Building Renovation. J. Civ. Eng. Manag. 2015, 21, 578–590. [Google Scholar] [CrossRef]
- Welch, S.J. Using Data to Drive Emergency Department Design: A Metasynthesis. HERD Heal. Environ. Res. Des. J. 2012, 5, 26–45. [Google Scholar] [CrossRef] [PubMed]
- Saha, N.; Haymaker, J.; Shelden, D. Space Allocation Techniques (SAT). Computable Design Problems and Integrated Framework of Solvers. In Proceedings of the 40th Annual Conference of the Association for Computer Aided Design in Architecture: Distributed Proximities, ACADIA 2020, Online, 24–30 October 2020; Volume 1, pp. 248–257. [Google Scholar]
- Vanbrabant, L.; Braekers, K.; Ramaekers, K.; Van Nieuwenhuyse, I. Simulation of Emergency Department Operations: A Comprehensive Review of KPIs and Operational Improvements. Comput. Ind. Eng. 2019, 131, 356–381. [Google Scholar] [CrossRef]
- Bhattacharjee, P.; Ray, P.K. Patient Flow Modelling and Performance Analysis of Healthcare Delivery Processes in Hospitals: A Review and Reflections. Comput. Ind. Eng. 2014, 78, 299–312. [Google Scholar] [CrossRef]
- Mohiuddin, S.; Busby, J.; Savović, J.; Richards, A.; Northstone, K.; Hollingworth, W.; Donovan, J.L.; Vasilakis, C. Patient Flow within UK Emergency Departments: A Systematic Review of the Use of Computer Simulation Modelling Methods. BMJ Open 2017, 7, e015007. [Google Scholar] [CrossRef]
- Vanbrabant, L.; Martin, N.; Ramaekers, K.; Braekers, K. Quality of Input Data in Emergency Department Simulations: Framework and Assessment Techniques. Simul. Model. Pract. Theory 2019, 91, 83–101. [Google Scholar] [CrossRef]
- Rahbar, M.; Mahdavinejad, M.; Markazi, A.H.D.; Bemanian, M. Architectural Layout Design through Deep Learning and Agent-Based Modeling: A Hybrid Approach. J. Build. Eng. 2022, 47, 103822. [Google Scholar] [CrossRef]
- Rodrigues, E.; Gaspar, A.R.; Gomes, Á. An Evolutionary Strategy Enhanced with a Local Search Technique for the Space Allocation Problem in Architecture, Part 1: Methodology. CAD Comput. Aided Des. 2013, 45, 887–897. [Google Scholar] [CrossRef]
- Bisht, S.; Shekhawat, K.; Upasani, N.; Jain, R.N.; Tiwaskar, R.J.; Hebbar, C. Transforming an Adjacency Graph into Dimensioned Floorplan Layouts. Comput. Graph. Forum 2022, 41, 5–22. [Google Scholar] [CrossRef]
- Weber, R.E.; Mueller, C.; Reinhart, C. Automated Floorplan Generation in Architectural Design: A Review of Methods and Applications. Autom. Constr. 2022, 140, 104385. [Google Scholar] [CrossRef]
- Davoodi, A.; Johansson, P.; Aries, M. The Implementation of Visual Comfort Evaluation in the Evidence-Based Design Process Using Lighting Simulation. Appl. Sci. 2021, 11, 4982. [Google Scholar] [CrossRef]
- Liu, S.; Ning, X. A Two-Stage Building Information Modeling Based Building Design Method to Improve Lighting Environment and Increase Energy Efficiency. Appl. Sci. 2019, 9, 4076. [Google Scholar] [CrossRef]
- Zanon, S.; Callegaro, N.; Albatici, R. A Novel Approach for the Definition of an Integrated Visual Quality Index for Residential Buildings. Appl. Sci. 2019, 9, 1579. [Google Scholar] [CrossRef]
- Shin, S.; Jeong, S.; Lee, J.; Hong, S.W.; Jung, S. Pre-Occupancy Evaluation Based on User Behavior Prediction in 3D Virtual Simulation. Autom. Constr. 2017, 74, 55–65. [Google Scholar] [CrossRef]
- Sun, C.; Liu, Q.; Han, Y. Many-Objective Optimization Design of a Public Building for Energy, Daylighting and Cost Performance Improvement. Appl. Sci. 2020, 10, 2435. [Google Scholar] [CrossRef]
- Elnahrawy, E.; Martin, R.P. Studying the Utility of Tracking Systems in Improving Healthcare Workflow. In Proceedings of the 2010 8th IEEE International Conference on Pervasive Computing and Communications Workshops, PERCOM Workshops 2010, Mannheim, Germany, 29 March 2010–2 April 2010; pp. 310–315. [Google Scholar] [CrossRef]
- Sinha, K.; James, D.; De Weck, O. Interplay between Product Architecture and Organizational Structure. In Gain Competitive Advantage by Managing Complexity, Proceedings of the 14th International DSM Conference, DSM 2012, Kyoto, Japan, 13–14 September 2012; 2012; pp. 275–288. [Google Scholar]
- Browning, T.R. Design Structure Matrix Extensions and Innovations: A Survey and New Opportunities. IEEE Trans. Eng. Manag. 2016, 63, 27–52. [Google Scholar] [CrossRef]
- Pektaş, Ş.T.; Pultar, M. Modelling Detailed Information Flows in Building Design with the Parameter-Based Design Structure Matrix. Des. Stud. 2006, 27, 99–122. [Google Scholar] [CrossRef]
- Iii, R.S.; Vibaek, K.S.; Austin, S. Evaluating the Adaptability of an Industrialized Building Using Dependency Structure Matrices. Constr. Manag. Econ. 2014, 32, 160–182. [Google Scholar] [CrossRef]
- Cao, X.; Li, X.; Yan, Y.; Yuan, X. Skeleton and Infill Housing Construction Delivery Process Optimization Based on the Design Structure Matrix. Sustain. 2018, 10, 4570. [Google Scholar] [CrossRef]
- Unger, D.; Eppinger, S. Improving Product Development Process Design: A Method for Managing Information Flows, Risks, and Iterations. J. Eng. Des. 2011, 22, 689–699. [Google Scholar] [CrossRef]
- Ślusarczyk, G. Graph-Based Representation of Design Properties in Creating Building Floorplans. CAD Comput. Aided Des. 2018, 95, 24–39. [Google Scholar] [CrossRef]
- Sosa, M.E. Aligning Process, Product, and Organizational Architectures in Software Development. In Proceedings of the ICED 2007, the 16th International Conference on Engineering Design, Paris, France, 28–31 August 2007; Volume DS 42, pp. 1–12. [Google Scholar]
- Elezi, F.; Graebsch, M.; Hellenbrand, D.; Lindemann, U. Application of Multi-Domain Matrix Waste Reduction Methodology in Mechatronic Product Development. In ICORD 11: Proceedings of the 3rd International Conference on Research into Design Engineering; Chakrabarti, A., Ed.; Research Publishing: Bangalore, India, 2011; pp. 514–522. [Google Scholar]
- Knippenberg, S.C.M.; Etman, L.F.P.; Wilschut, T.; van de Mortel-Fronczak, J.A. Specifying Process Activities for Multi-Domain Matrix Analysis Using a Structured Textual Format. In Proceedings of the Design Society: International Conference on Engineering Design; 2019; Volume 1, pp. 1613–1622. [Google Scholar] [CrossRef]
- Pereira, L.M. A Influência Organizacional Sobre a Qualidade Do Projeto Do Ambiente Construído. Doctoral Thesis, Universidade de São Paulo, São Carlos, São Carlos, Brazil, 2019. [Google Scholar] [CrossRef]
- Yassine, A.; Braha, D. Complex Concurrent Engineering and the Design Structure Matrix Method. Concurr. Eng. Res. Appl. 2003, 11, 165–176. [Google Scholar] [CrossRef]
- Nonsiri, S.; Christophe, F.; Coataneéa, E.; Mokammel, F. A Combined Design Structure Matrix (DSM) and Discrete Differential Evolution (DDE) Approach for Scheduling and Organizing System Development Tasks Modelled Using SysML. J. Integr. Des. Process Sci. 2014, 18, 19–40. [Google Scholar] [CrossRef]
- Alkhaldi, F.; Alouani, A. Development of a Generic Model for Large-Scale Healthcare Organizations. In Proceedings of the 2019 IEEE 19th International Symposium on High Assurance Systems Engineering, Hangzhou, China, 3–5 January 2019; pp. 200–207. [Google Scholar] [CrossRef]
- Konrad, R.; Desotto, K.; Grocela, A.; Mcauley, P.; Wang, J.; Lyons, J.; Bruin, M. Modeling the Impact of Changing Patient Flow Processes in an Emergency Department: Insights from a Computer Simulation Study. Oper. Res. Heal. Care 2013, 2, 66–74. [Google Scholar] [CrossRef]
- Purohit, S.; Madni, A.M. A Model-Based Systems Architecting and Integration Approach Using Interlevel and Intralevel Dependency Matrix. IEEE Syst. J. 2022, 16, 747–754. [Google Scholar] [CrossRef]
- Marconi, M.d.A.; Lakatos, E.M. Fundamentos de Metodologia Científica, 8th ed.; Atlas: São Paulo, Brazil, 2017. [Google Scholar]
- Opensource.org. The MIT License. Available online: https://opensource.org/licenses/MIT (accessed on 15 November 2022).









| No | Processes/Activities | |
|---|---|---|
| 1 | when an actor circulates in the environment j to perform the activity i | |
| 2 | when an intermediary activity i occurs in the environment j | |
| 3 | when the end activity i occurs in the environment j |
| No | Comparative Relationship | |
|---|---|---|
| 1 | i and j relationship not predicted or detected | |
| 2 | i and j relationship predicted and unconfirmed | |
| 3 | i and j relationship predicted and confirmed |
| No | Processes/Activities | |
|---|---|---|
| 1 | Emergency | nursing—AED |
| 2 | medicine—AED | |
| 3 | replacement of consumables | |
| 4 | Pharmacy | analysis of prescriptions and drug interactions |
| 5 | prescription analysis and drug distribution | |
| 6 | Patient host | reception services |
| 7 | clinical record services | |
| 8 | Hospitality | laundry services |
| 9 | cleaning services | |
| 10 | nutrition and food | |
| 11 | security service | |
| 12 | Maintenance | building maintenance |
| 13 | equipment maintenance |
| Lists | Syntax Notation | Notation Example |
|---|---|---|
| Organization Roles | [SECTOR NAME, in Caps] ↵ [role number] <=> [role naming] | USERS 0001 <=> unclassified patient NURSING SECTOR 1003 <=> nursing technician CLINICAL SECTOR 2001 <=> attending physician |
| Activities/ Process | [PROCESS NAME, in Caps] ↵ [activity number] <=> [activity description] ↵ → [involved role number 1] ↵ → [involved role number n] ↵ → → [previous activity number 1] ↵ → → [previous activity number n] ↵ | ADULT EMERGENCY SERVICE (AES) 1014 <=> adult-emergency spontaneous demand → 0001 1015 <=> spontaneous demand screening → 0001 → 1003 → → 1014 1016 <=> clinical evaluation of the patient admitted → 0001 → 2001 → → 1015 |
| Environments | [SECTOR NAME, in Caps] ↵ [environment. number] <=> [env. description] ↵ → [interfaced environment number 1] ↵ → [interfaced environment number n] ↵ | ADULT EMERGENCE DEPARTAMENT (AED) 2015 <=> ambulance stop - direct access → 2001*1 → 2042 2042 <=> AED access circulation → 2015 → 2043*1 → 2095 2095 <=> Observation room → 2042 → 2182*1 2182 <=> prescription circulation → 2095 → 2125*1 |
| Relationships | [activity number] ↵ → [environment number], [relationships value*2] ↵ | 1014 → 2001,1 → 2015,3 1015 → 2015,1 → 2042,3 |
Disclaimer/Publisher’s Note: The statements, opinions and data contained in all publications are solely those of the individual author(s) and contributor(s) and not of MDPI and/or the editor(s). MDPI and/or the editor(s) disclaim responsibility for any injury to people or property resulting from any ideas, methods, instructions or products referred to in the content. |
© 2023 by the authors. Licensee MDPI, Basel, Switzerland. This article is an open access article distributed under the terms and conditions of the Creative Commons Attribution (CC BY) license (https://creativecommons.org/licenses/by/4.0/).
Share and Cite
Pereira, L.M.; Ornstein, S.W.; Soares, V.S.L.; Amaro, J.; França, A.J.G.L. Congruence Mapping of the Activity Flows Allocated in Built Environments: A Pilot Application of Under-Development Software in an Emergency-Care Service. Appl. Sci. 2023, 13, 1599. https://doi.org/10.3390/app13031599
Pereira LM, Ornstein SW, Soares VSL, Amaro J, França AJGL. Congruence Mapping of the Activity Flows Allocated in Built Environments: A Pilot Application of Under-Development Software in an Emergency-Care Service. Applied Sciences. 2023; 13(3):1599. https://doi.org/10.3390/app13031599
Chicago/Turabian StylePereira, Lucas Melchiori, Sheila Walbe Ornstein, Vitória Sanches Lemes Soares, Jean Amaro, and Ana Judite Galbiatti Limongi França. 2023. "Congruence Mapping of the Activity Flows Allocated in Built Environments: A Pilot Application of Under-Development Software in an Emergency-Care Service" Applied Sciences 13, no. 3: 1599. https://doi.org/10.3390/app13031599
APA StylePereira, L. M., Ornstein, S. W., Soares, V. S. L., Amaro, J., & França, A. J. G. L. (2023). Congruence Mapping of the Activity Flows Allocated in Built Environments: A Pilot Application of Under-Development Software in an Emergency-Care Service. Applied Sciences, 13(3), 1599. https://doi.org/10.3390/app13031599

