Hydraulic Prototype Observation Tests on Reconstructed Energy Dissipation Facilities
Abstract
Featured Application
Abstract
1. Introduction
- The article presents the results of HPO tests conducted to assess the effectiveness of reconstructed EDFs in open channels at hydropower stations;
- The article provides detailed information on the methodology used for conducting HPO tests, including observing and measuring flow patterns, free water surface fluctuations, and pulsating pressure changes in open channels under varying flood discharge conditions;
- The article presents several suggestions for improving the flood discharge mode at hydropower stations based on the results of the HPO tests.
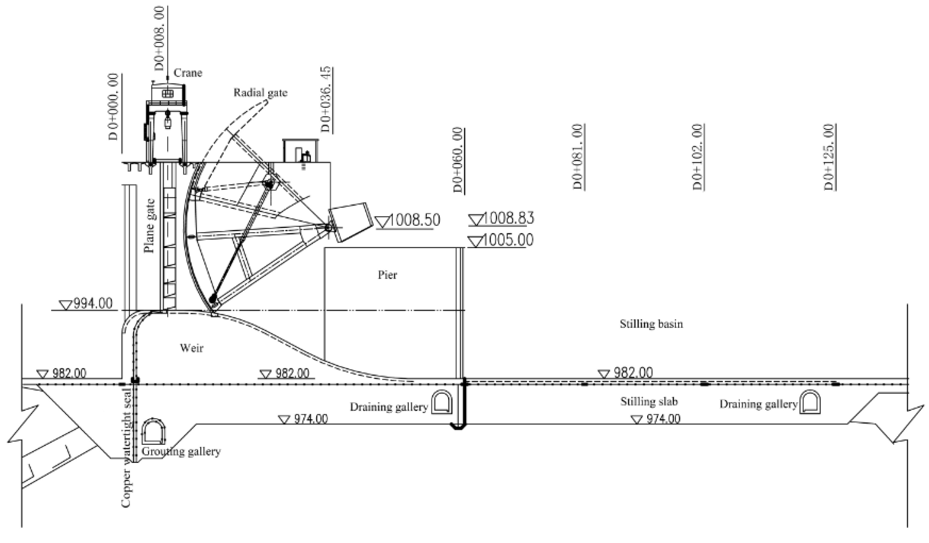
2. Project Background
3. Hydraulic Prototype Observation and Measuring Point Arrangement
3.1. Hydraulic Prototype Observation
- (1)
- Observation of the water flow state in the open channel
- (2)
- Measurement of the free water surface elevation in the open channel
- (3)
- Measurement of the pulsating pressure within the continuous sill and reinforcement base slab in the open channel
3.2. Observation Method and Measuring Point Arrangement
- (1)
- Flow state observation
- (2)
- Free water surface observation
- (3)
- Pulsating pressure observation
3.3. Flood Discharge Condition for Observation
4. Observation Results
4.1. Water Flow State
4.2. Water Surface Change
4.3. Pulsating Pressure
5. Suggestions on Flood Discharge Mode and Discussion
- (1)
- From the results of the HPO test, it was found that the flow state in the open channel is closely related to the opening mode of the sluice gate and the discharge rate in the open channel. When the discharge rate of any single sluice gate reaches 500 m3/s, the impact on the continuous sill by the discharging water is more severe than in other FDCs. Therefore, the discharge rate of a single sluice gate should be reduced to 250 m3/s. On the contrary, when the discharge rate in the open channel exceeds 2000 m3/s, the discharge of water into the stilling basin starts to tumble violently, and the fluctuation of the free water surface at the end of the open channel is significantly intensified, leading to worse downstream river flow conditions. Consequently, a discharge rate in the open channel of more than 2000 m3/s should be avoided.
- (2)
- When the opening mode of sluice gates No.5#~7# is not symmetrical, an asymmetrical flow of discharging water in the open channel may occur, and the transverse backflow phenomenon may occur in some areas of the stilling basin. Therefore, if sluice gates No.5#~7# at the head of the open channel must be opened for flood release, it is strongly recommended that they be opened evenly and symmetrically.
6. Conclusions
- (1)
- HPO tests provide a more accurate and reliable assessment of the effectiveness of reconstructed EDFs in open channels at hydropower stations;
- (2)
- The results of HPO tests can be used to improve the design and operation of EDFs by providing detailed information on the characteristics of discharge flow and the dynamic response of hydraulic structures during sluice opening periods;
- (3)
- Several suggestions are provided for improving the flood discharge mode at hydropower stations based on the results of the HPO tests to ensure safe operation of open channels during flood discharge;
- (4)
- The importance of studying HPO tests on reconstructed EDFs is highlighted to ensure their safe and efficient operation in open channels at hydropower stations and to advance our understanding of complex hydraulic phenomena.
Author Contributions
Funding
Institutional Review Board Statement
Informed Consent Statement
Data Availability Statement
Conflicts of Interest
Nomenclature
| Symbol | Units | Definition of the Symbols |
| B | L | Width of the continuous sill |
| b | L | Width of a single gate chamber |
| c | L | Height of the continuous sill |
| E0 | L | Total upstream water head above the base level of the downstream riverbed |
| E2 | L | Total water head above the base level of the downstream riverbed at the continuous ridge |
| Frc | - | Froude number |
| g | LT−2 | Acceleration of gravity |
| h2 | L | Water depth behind the hydraulic jump |
| hc | L | Water depth in the front of the hydraulic jump |
| ht | L | Downstream water depth |
| K | Rate of energy dissipation | |
| Q | L3T−1 | Flow rate |
| Re | - | Reynolds number |
| S | L2 | Vertical area of the continuous sill |
| vc | LT−1 | Flow velocity in the front of the hydraulic jump |
| v2 | LT−1 | Flow velocity behind the hydraulic jump |
References
- Nouri, M.; Sihag, P.; Salmasi, F.; Kisi, O. Energy loss in skimming flow over cascade spillways: Comparison of artificial intelligence-based and regression methods. Appl. Sci. 2020, 10, 6903. [Google Scholar] [CrossRef]
- Chanson, H. Energy Dissipation in Hydraulic Structures; CRC Press: Boca Raton, FL, USA, 2015. [Google Scholar]
- Parsaiea, A.; Haghiabi, A.H. The hydraulic investigation of circular crested stepped spillway. Flow Meas. Instrum. 2019, 70, 101624. [Google Scholar] [CrossRef]
- AlTalib, A.N.; Mohammed, A.Y.; Hayawi, H.A. Hydraulic jump and energy dissipation downstream stepped weir. Flow Meas. Instrum. 2019, 69, 101616. [Google Scholar] [CrossRef]
- Wu, J.; Yao, L.; Ma, F. Hydraulics of a multiple slit-type energy dissipater. J. Hydrodyn. 2014, 26, 86–93. [Google Scholar] [CrossRef]
- Abdelmonem, Y.K.; Shabayek, S.; Khairy, A.O. Energy dissipation downstream sluice gate using a pendulum sill. Alex. Eng. J. 2018, 57, 3977–3983. [Google Scholar] [CrossRef]
- Idrees, A.K.; Al-Ameri, R. Investigation of flow characteristics and energy dissipation over new shape of the trapezoidal labyrinth weirs. Flow Meas. Instrum. 2023, 89, 102276. [Google Scholar] [CrossRef]
- Dong, Z.; Wang, J.; Vetsch, D.F.; Boes, R.M.; Tan, G. Numerical simulation of air–water two-phase flow on stepped spillways behind x-shaped flaring gate piers under very high unit discharge. Water 2019, 11, 1956. [Google Scholar] [CrossRef]
- James, C.S. Hydraulic Structures; Springer: Berlin/Heidelberg, Germany, 2020. [Google Scholar]
- Itoh, T.; Ikeda, A.; Nagayama, T.; Mizuyama, T. Hydraulic model tests for propagation of flow and sediment in floods due to breaking of a natural landslide dam during a mountainous torrent. Int. J. Sediment Res. 2018, 33, 107–116. [Google Scholar] [CrossRef]
- Džafo, H.; Metović, S.; Kasamović, E. Using Hydraulic Model Tests for Water Intake Structure Redesign of Hydro Power Plant. In Advanced Technologies, Systems, and Applications VI: Proceedings of the International Symposium on Innovative and Interdisciplinary Applications of Advanced Technologies (IAT) 2021, Sarajevo, Bosnia and Herzegovina, 23–26 June 2021; Springer: Berlin/Heidelberg, Germany, 2022; pp. 329–336. [Google Scholar]
- Mokashi, A.A.; Hirpurkar, P.S. Hydraulic scaling and similitude from model to prototype. Int. J. Recent Technol. Eng. 2019, 8, 390–392. [Google Scholar] [CrossRef]
- Zhou, Z.; Wang, J.; Zhu, D.Z. Energy dissipation in a deep tailwater stilling basin with partial flaring gate piers. Can. J. Civ. Eng. 2020, 47, 523–533. [Google Scholar] [CrossRef]
- Ren, H.; Zhang, D.; Gong, S.; Zhou, K.; Xi, C.; He, M.; Li, T. Dynamic impact experiment and response characteristics analysis for 1: 2 reduced-scale model of hydraulic support. Int. J. Min. Sci. Technol. 2021, 31, 347–356. [Google Scholar] [CrossRef]
- Espinosa-Paredes, G.; Alvarez-Ramirez, J. Scope and limitations of the structural and dynamic analysis of a thermal–hydraulic model. Ann. Nucl. Energy 2003, 30, 931–942. [Google Scholar] [CrossRef]
- Chanson, H. Hydraulic jumps: Turbulence and air bubble entrainment. Houille Blanche 2011, 97, 5–16. [Google Scholar] [CrossRef]
- Guo, T.; Wang, Q.; Li, D.; Zhuang, J.; Wu, L. Flow hydraulic characteristic effect on sediment and solute transport on slope erosion. CATENA 2013, 107, 145–153. [Google Scholar] [CrossRef]
- Escaler, X.; Dupont, P.; Avellan, F. Experimental investigation on forces due to vortex cavitation collapse for different materials. Wear 1999, 233, 65–74. [Google Scholar] [CrossRef]
- Liu, M.; Zeng, L.; Wu, L.; Chen, G.; Shen, L.; Abi, E. In-Situ Test Method for Hydrodynamic Characteristics of Water Flowing Around Piles. Front. Environ. Sci. 2022, 96, 855334. [Google Scholar] [CrossRef]
- Han, M.; Liu, Y.; Zheng, K.; Ding, Y.; Wu, D. Investigation on the modeling and dynamic characteristics of a fast-response and large-flow water hydraulic proportional cartridge valve. Proc. Inst. Mech. Eng. Part C J. Mech. Eng. Sci. 2020, 234, 4415–4432. [Google Scholar] [CrossRef]
- Wang, H.; Tang, R.; Bai, Z.; Liu, S.; Sang, W.; Bai, R. Prototype air–water flow measurements in D-type hydraulic jumps. J. Hydraul. Res. 2023, 61, 145–161. [Google Scholar] [CrossRef]
- Bai, Z.; Bai, R.; Tang, R.; Wang, H.; Liu, S. Case Study of Prototype Hydraulic Jump on Slope: Air Entrainment and Free-Surface Measurement. J. Hydraul. Eng. 2021, 149, 05021007. [Google Scholar] [CrossRef]
- Li, W. Hydraulic Calculation Manual; China Water Power Press: Beijing, China, 2006. [Google Scholar]
- Wu, C. Hydraulics; Higher Education Press: Beijing, China, 2008. [Google Scholar]
- Lian, J.; Cui, G.; Huang, J. Study on flow induced vibration of spillway guide wall. J. Hydraul. Eng. 1998, 11, 34–38. [Google Scholar]
- Peng, X.; Guo, H.; Zhang, R. Wavelet analysis on flow fluctuating pressure acting on plunge pool slope. J. Hydraul. Eng. 2003, 34, 26–31. [Google Scholar]
- Bellin, A.; Fiorotto, V. Direct dynamic force measurement on slabs in spillway stilling basins. J. Hydraul. Eng. 1995, 121, 686–693. [Google Scholar] [CrossRef]










| FDC No. | Total Water Discharge Rate (m3/s) | Water Discharge Rate by the Open Channel (m3/s) | Upstream Water Level (m) | Downstream Water Level (m) | Opening Mode of Sluice Gates at the Head of the Open Channel | ||
|---|---|---|---|---|---|---|---|
| 5# | 6# | 7# | |||||
| 1 | 5810 | 500 | 1012.35 | 996.58 | Close | Partial open 2.3 m | Close |
| 3 | 5940 | 1000 | 1012.67 | 995.94 | Partial open 2.3 m | Close | Partial open 2.3 m |
| 5 | 6000 | 2000 | 1013.21 | 995.55 | Partial open 3.2 m | Partial open 3.2 m | Partial open 3.2 m |
| 9 | 5960 | 3000 | 1013.27 | 995.78 | Partial open 5.2 m | Partial open 5.2 m | Partial open 5.2 m |
| 10 | 5960 | 3000 | 1013.33 | 995.35 | Partial open 5.7 m | Partial open 5.2 m | Partial open 4.7 m |
| 11 | 6580 | 500 | 1013.65 | 996.69 | Close | Close | Partial open 2.3 m |
| 12 | 2660 | 2000 | 1013.86 | 991.33 | Partial open 3.7 m | Partial open 3.2 m | Partial open 2.7 m |
| 14 | 2580 | 1500 | 1013.96 | 991.15 | Partial open 2.3 m | Partial open 2.3 m | Partial open 2.3 m |
| 16 | 2540 | 250 | 1014.04 | 991.56 | Close | Partial open 1.1 m | Close |
| FDC No. | Q (m3/s) | E0 (m) | vc (m/s) | v2 (m/s) | b (m) | hc (m) | h2 (m) | Frc | Re | h2 Error (m) | K (%) |
|---|---|---|---|---|---|---|---|---|---|---|---|
| 1 | 500 | 30.35 | 19.75 | 1.29 | 9.0 | 2.813 | 3.878 | 3.76 | 5.5 × 107 | −1.99 | 80.4 |
| 9 | 3000 | 31.27 | 18.97 | 5.09 | 9.0 | 5.857 | 8.752 | 2.50 | 1.1 × 108 | −0.18 | 67.2 |
| 16 | 250 | 32.04 | 20.85 | 2.16 | 9.0 | 1.332 | 2.448 | 5.77 | 2.75 × 107 | 0.70 | 93.8 |
Disclaimer/Publisher’s Note: The statements, opinions and data contained in all publications are solely those of the individual author(s) and contributor(s) and not of MDPI and/or the editor(s). MDPI and/or the editor(s) disclaim responsibility for any injury to people or property resulting from any ideas, methods, instructions or products referred to in the content. |
© 2023 by the authors. Licensee MDPI, Basel, Switzerland. This article is an open access article distributed under the terms and conditions of the Creative Commons Attribution (CC BY) license (https://creativecommons.org/licenses/by/4.0/).
Share and Cite
Wei, H.; Tao, K.; Luo, Y.; Song, B.; Wang, M.; Xu, J. Hydraulic Prototype Observation Tests on Reconstructed Energy Dissipation Facilities. Appl. Sci. 2023, 13, 6216. https://doi.org/10.3390/app13106216
Wei H, Tao K, Luo Y, Song B, Wang M, Xu J. Hydraulic Prototype Observation Tests on Reconstructed Energy Dissipation Facilities. Applied Sciences. 2023; 13(10):6216. https://doi.org/10.3390/app13106216
Chicago/Turabian StyleWei, Hai, Kaiyun Tao, Yongqin Luo, Bingyue Song, Mingming Wang, and Juncai Xu. 2023. "Hydraulic Prototype Observation Tests on Reconstructed Energy Dissipation Facilities" Applied Sciences 13, no. 10: 6216. https://doi.org/10.3390/app13106216
APA StyleWei, H., Tao, K., Luo, Y., Song, B., Wang, M., & Xu, J. (2023). Hydraulic Prototype Observation Tests on Reconstructed Energy Dissipation Facilities. Applied Sciences, 13(10), 6216. https://doi.org/10.3390/app13106216

