Modal Analysis of a Steel Truss Girder Cable-Stayed Bridge with Single Tower and Single Cable Plane
Abstract
:1. Introduction
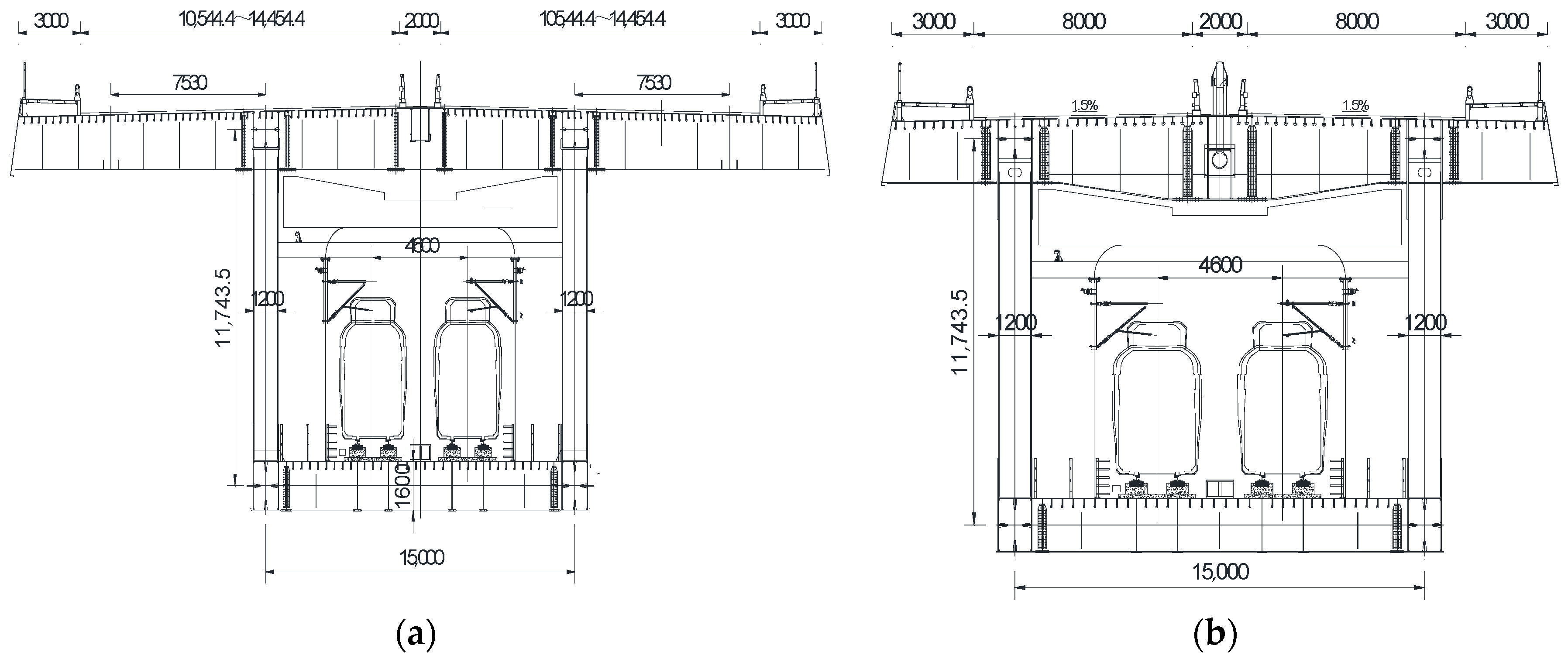
2. Bridge Description
3. Finite Element Simulation
4. Dynamic Characteristic Analysis of the Special Cable-Stayed Bridge
- (1)
- The vibration modes mainly include six kinds of vibration modes, namely lateral vibration, vertical vibration, torsional vibration, vertical bending vibration, lateral bending vibration, and coupled vibration. Among them, the torsion of the main girder appeared in the third order and sixth order. The reason for the torsion of the main beam is that the single cable plane does not provide enough ability to resist torsion, and therefore the torsional rigidity and the torsional frequencies are decreased. Therefore, special attention should be paid to the anti-wind capacity of bridge structures when they are being constructed. Because bridge members have different stiffnesses, the first eight orders are all the vibration modes of the main girder, and the latter two modes are the vibration modes of the auxiliary piers.
- (2)
- A long-span cable-stayed bridge is very flexible, and therefore, its natural vibration periods are usually longer.Besides, the natural vibration frequency of the bridge is large because the second phase deadload of this bridge is large. The first vibration mode is lateral vibration of the main girder, which is the basic vibration mode of the bridge. Lateral vibration can indicate that the transverse stiffness of the main girder in cantilever stage is less than the longitudinal stiffness. The frequency is greater than 1 Hz when the whole bridge is in the seventh order, which shows that the overall stiffness of the structure is smaller.
- (3)
- It can be seen from Table 2 that the modes of vibration at the cantilever stage are intense. In the narrow frequency range from 0.174 Hz to 1.254 Hz, 10 vibration modes are distributed, therefore, it is suggested that more vibration modes should be adopted when the dynamic characteristics of this type of cable-stayed bridges are analyzed.
- (4)
- Compared with the maximum cantilever state, the vibration modes of the completed bridge mainly include lateral bending, vertical bending, and torsion coupling. The steel truss girder cable-stayed bridge with single cable plane in the semi-floating system has relatively large rigidity and a short natural vibration period of 0.049 s. The first-order vibration mode is the longitudinal torsion of the left side beam of the upper deck system, which is the basic vibration mode of the completed bridge. It shows that the rigidity of the left side longitudinal beam is low and it conforms to the maximum force of the side longitudinal beam. The lateral bending vibration mode of the main girder appears earlier than the vertical bending vibration modes, which is consistent with small width span ratio. The bridge adopts the form of a single cable plane cable-stayed bridge, which has the characteristics of poor torsional resistance and low torsional rigidity, therefore, it conforms to the torsional vibration mode of structure in the 5th, 6th, and 10th order modes. The main beam is a steel truss with large structural size; the tower is a concrete tower with relatively small size. Therefore, the stiffness of the main girder of the cable-stayed bridge is smaller than those of the pylon.
5. Influence Analysis of the Main Structural Parameters on Dynamic Characteristics
5.1. Structural Stiffness
- (1)
- The stiffness variations of bridge tower and stayed cables have little influence on the frequency changes of the first-order torsion.
- (2)
- The changes in the stiffness of the bridge tower make the frequency change rate of the first-order vertical bending negative. When the scaling ratio is 1.2 times, the frequency change rate reaches the minimum, approximately −17%. Therefore, the overall stiffness of the bridge can be increased by adding auxiliary piers or auxiliary cables during the construction stage.
- (3)
- Changes in the stiffness of the main girder can induce, accordingly, the frequency change rate of the first-order torsion, the coupling of the first vertical bending and the lateral bending torsion can change basically linearly, and gradually increase.
- (4)
- The frequency change rates of the lateral bending torsion coupling are approximately linear, but the frequency variation rate of the pylon stiffness is the maximum. When the scaling ratio is 1.6, the frequency change rate is close to 90%.
5.2. Inclination Angle Changes of Stayed Cables
Illustrate: 1th Order Means 1th Vibration Mode
5.3. Position Change of Auxiliary Piers
6. Conclusions
- (1)
- Increasing the stiffness of the main girder is helpful to raise the torsional stiffness of the bridge and to enhance the wind resistance stability of the bridge. Increased rigidity of cables, pylons, and girders is helpful to improve the lateral flexural stiffness of structures, but the vertical bending stiffness of structures decreases accordingly with increases in bridge stiffness. However, when the stiffness of the pylon and main beam is 0.8 times that of the original structure, the vibration mode of the structure changes significantly. Slightly reducing the stiffness of the tower and main beam may have a significant impact on the wind resistance and seismic stability design of the bridge.
- (2)
- An adjustment in the inclination of stayed cables significantly reduces the vertical stiffness and lateral stiffness, and has little influence on the torsional vibration modes. Therefore, the inclination of stayed cables should be treated with great caution.
- (3)
- As the auxiliary piers moves one segment to the left, the natural frequency increases significantly, Moving one segment to the right, the increase in natural frequency is small. The reason is that when moving to the left of the auxiliary pier, P3 auxiliary pier is already under the stayed cables, reducing the tension of the cable, while the P1 pier is far away from the cable, increasing the tension of the cables. Therefore, the force on the bridge tower is unbalanced, resulting in an increase in the natural frequency of the bridge tower and the main beam, which affects the wind resistance stability of the bridge. Therefore, the location and quantity of auxiliary piers need to be carefully considered according to the actual situation.
Author Contributions
Funding
Institutional Review Board Statement
Informed Consent Statement
Data Availability Statement
Conflicts of Interest
References
- Briseghella, B.; Fa, G.; Aloisio, A.; Pasca, D.; He, L.; Fenu, L.; Gentile, C. Dynamic characteristics of a curved steel–concrete composite cable-stayed bridge and effects of different design choices. Structures. 2021, 34, 4669–4681. [Google Scholar] [CrossRef]
- Xie, X.; Huang, Y.; Qin, X. A New Composite Truss Bridge and a Study on Its Dynamic Characteristics with FE and Experimental Methods. KSCE J. Civ. Eng. 2021, 25, 931–947. [Google Scholar] [CrossRef]
- Xie, X.-L.; Huang, Y.; Qin, X. Conceptual design of a new type of single-tower cable-stayed arch bridge and study of its mechanical properties. Adv. Struct. Eng. 2021, 24, 2500–2511. [Google Scholar] [CrossRef]
- Cui, C.; Xu, Y.-L.; Zhang, Q.-H.; Wang, F.-Y. Vehicle-induced dynamic stress analysis of orthotropic steel decks of cable-stayed bridges. Struct. Infrastruct. Eng. 2019, 16, 1067–1081. [Google Scholar] [CrossRef]
- Siringoringo, D.M.; Fujino, Y. Dynamic characteristics of a curved cable-stayed bridge identified from strong motion record. Eng. Struct. 2007, 29, 2001–2017. [Google Scholar] [CrossRef]
- Li, Y.L.; Zhu, S.Y.; Cai, C.S.; Yang, C.; Qiang, S. Dynamic response of railway vehicles running on long-span cable-stayed bridge under uniform seismic excitations. Int. J. Struct. Stab. Dyn. 2016, 16, 1550005. [Google Scholar] [CrossRef]
- Bayraktar, A.; Altunisik, A.C.; Sevim, B.; Türker, T. Vibration characteristics of komurhan highway bridge constructed with balanced cantilever method. J. Perform. Constr. Facil. 2009, 23, 90–99. [Google Scholar] [CrossRef] [Green Version]
- He, X.H.; Wei, B.; Zou, Y.P. Dynamic characteristics and seismic response analysis of a long-span steel-box basket-handle railway arch bridge. J. Vibroeng. 2015, 17, 2422–2432. [Google Scholar]
- Wang, D.; Deng, Y.; Liu, Y. Influence of central buckle on suspension bridge dynamic characteristics and driving comfort. J. Cent. South Univ. 2015, 22, 3108–3115. [Google Scholar] [CrossRef]
- Wang, H.; Zou, K.G.; Li, A.Q.; Jiao, C.K. Parameter effects on the dynamic characteristics of a super-long-span triple-pylon suspension bridge. J. Zhejiang Univ. Sci. A 2010, 11, 305–316. [Google Scholar] [CrossRef]
- Jiang, L.; Feng, Y.; Zhou, W.; He, B. Vibration characteristic analysis of high-speed railway simply supported beam bridge-track structure system. Steel Compos. Struct. 2019, 31, 591–600. [Google Scholar]
- Plotnikova, A.; Wotherspoon, L.; Beskhyroun, S.; Yang, Z.H. Influence of seasonal freezing on dynamic bridge characteristics using in-situ monitoring data. Cold Reg. Sci. Technol. 2019, 160, 184–193. [Google Scholar] [CrossRef]
- Zhu, Z.-h.; Gong, W.; Wang, K.; Liu, Y.; Davidson, M.T.; Jiang, L.-Z. Dynamic effect of heavy-haul train on seismic response of railway cable-stayed bridge. J. Cent. South Univ. 2020, 27, 1939–1955. [Google Scholar] [CrossRef]
- Geng, F.F.; Ding, Y.L.; Xie, H.G.; Song, J.; Li, W. Influence of structural system measures on the dynamic characteristics of a multi-span cable-stayed bridge. Struct. Eng. Mech. 2014, 52, 51–73. [Google Scholar] [CrossRef]
- Zhou, G.; Li, A.; Li, J.; Duan, M.-J. Test and numerical investigations on static and dynamic characteristics of extra-wide concrete self-anchored suspension bridge under vehicle loads. J. Cent. South Univ. 2017, 24, 2382–2395. [Google Scholar] [CrossRef]
- Ventura, C.E.; Felber, A.J.; Stiemer, S.F. Determination of the dynamic characteristics of the Colquitz River Bridge by full-scale testing. Can. J. Civ. Eng. 1996, 23, 536–568. [Google Scholar] [CrossRef]
- Roy, S.S.; Dash, S.R. Dynamic behavior of the multi span continuous girder bridge with isolation bearings. Int. J. Bridge Eng. IJBE 2018, 6, 1–23. [Google Scholar]
- Xie, X.; Li, X.Z.; Shen, Y.G. Static and Dynamic Characteristics of a Long-Span Cable-Stayed Bridge with CFRP Cables. Materials 2014, 7, 4854–4877. [Google Scholar] [CrossRef] [Green Version]
- Casalegno, C.; Russo, S. Dynamic characterization of an all-FRP bridge. Mech. Compos. Mater. 2014, 53, 17–30. [Google Scholar] [CrossRef]
- Chen, E.L.; Zhang, X.; Wang, G.L. Rigid-Flexible Coupled Dynamic Response of Steel-Concrete Bridges on Expressways Considering Vehicle-Road-Bridge Interaction. Adv. Struct. Eng. 2020, 23, 160–173. [Google Scholar] [CrossRef]
- Che, X.J. Simulation Modeling of Dynamic Characteristics of Sea Crossing Bridge under Wind Invasion. J. Coast. Res. 2020, 83, 93–97. [Google Scholar] [CrossRef]
- Paeglite, I.; Smirnovs, J.; Paeglitis, A. Evaluation of The Increased Dynamic Effects on the Highway Bridge Superstructure. Balt. J. Road Bridge Eng. 2018, 13, 301–312. [Google Scholar] [CrossRef]
- Vospernig, M.; Reiterer, M. Evaluation of the Dynamic System Characteristics for Single Span Concrete Railway Bridges—Determination of Dynamic Parameters Due to Measurements on Two Test Bridges in Cracked and Uncracked State with Variations of the Dead Load. Beton Stahlbetonbau 2020, 115, 424–437. [Google Scholar] [CrossRef]
- Park, J.H.; Huynh, T.C.; Lee, K.S.; Kim, J.-T. Wind and Traffic-Induced Variation of Dynamic Characteristics of a Cable-Stayed Bridge—Benchmark Study. Smart Struct. Syst. 2016, 17, 491–522. [Google Scholar] [CrossRef]
- Gou, H.Y.; Yang, B.; Guo, W.; Bao, Y. Static and dynamic responses of a tied-arch railway bridge under train load. Struct. Eng. Mech. 2019, 71, 13–22. [Google Scholar]
- Gou, H.Y.; Liu, C.; Zhou, W.; Bao, Y.; Pu, Q. Dynamic responses of a high-speed train passing a deformed bridge using a vehicle-track-bridge coupled model. Proc. Inst. Mech. Eng. Part F J. Rail Rapid Transit 2020, 235, 463–477. [Google Scholar] [CrossRef]
- Li, Y.; Dong, S.; Bao, Y.; Chen, K.; Qiang, S. Impact Coefficient Analysis of Long-Span Railway Cable-Stayed Bridge Based on Coupled Vehicle-Bridge Vibration. Shock. Vib. 2016, 2016, 641731. [Google Scholar] [CrossRef]
- Min, G.; Liu, X.; Wu, C.; Yang, S.; Cai, M. Influences of Two Calculation Methods about Dynamic Tension on Vibration Characteristics of Cable-Bridge Coupling Model. Discret. Dyn. Nat. Soc. 2021, 2021, 6681954. [Google Scholar]
- Gorski, P.; Napieraj, M.; Konopka, E. Variability Evaluation of Dynamic Characteristics of Highway Steel Bridge Based on Daily Traffic-Induced Vibrations. Measurement 2020, 164, 108074. [Google Scholar] [CrossRef]
- Han, F.; Dan, D.-h.; Wang, H. A Study on Dynamic Amplification Factor and Structure Parameter of Bridge Deck Pavement Based on Bridge Deck Pavement Roughness. Adv. Civ. Eng. 2018, 2018, 9810461. [Google Scholar] [CrossRef] [Green Version]
- Bayraktar, A.; Altunisik, A.C.; Sevim, B.; Ozsahin, T.S. Environmental effects on the dynamic characteristics of the Gulburnu Highway Bridge. Civ. Eng. Environ. Syst. 2014, 31, 347–366. [Google Scholar] [CrossRef]
- Huang, B.; Seresh, R.F.; Zhu, L.P. Statistical analysis of basic dynamic characteristics of large span cable-stayed bridge based on high order perturbation stochastic fem. Adv. Struct. Eng. 2013, 19, 1499–1512. [Google Scholar] [CrossRef]
- Londono, N.A.; Lau, D.T.; Rahman, M. Characteristics of dynamic monitoring data and observed behavior of the Confederation Bridge due to operational load variations. Can. J. Civ. Eng. 2013, 40, 393–409. [Google Scholar] [CrossRef]
- Cai, H.; Lu, H. Dynamic response of long-span continuous curved box girder bridge under seismic excitation. J. Vibroeng. 2019, 21, 696–709. [Google Scholar]










| Component Names | Poisson Ratio | Elastic Modulus (GPa) | Mass Density (kg/m3) | Linear Expansion Coefficient (10−5 °C) |
|---|---|---|---|---|
| Pylon (C50 concrete) | 0.2 | 34.5 | 2.549 | 1.0 |
| Stayed cables | 0.3 | 195 | 8.005 | 1.2 |
| Q370 Steel | 0.3 | 206 | 7.85 | 1.2 |
| Rigid arms | 0.3 | 206,000 | 0.00 | 1.2 |
| Construction brackets | 0.3 | 206 | 7.85 | 1.2 |
| Supports | 0.3 | 100,000 | 0.00 | 1.2 |
| Longitudinal connection of beams | 0.3 | 54 | 7.85 | 1.2 |
| Orders | Natural Vibration Frequencies (Hz) | Cycle (s) | Vibration Modes | |
|---|---|---|---|---|
| 1 | Cantilever stage | 0.174 | 5.760 | The 1st order lateral runout |
| Completion stage | 20.255 | 0.049 | The 1st order torsion of longitudinal beam | |
| 2 | Cantilever stage | 0.316 | 3.164 | The 1st order vertical runout |
| Completion stage | 22.777 | 0.044 | The 1st order transverse bending | |
| 3 | Cantilever stage | 0.598 | 1.672 | The 1st order Lateral torsion |
| Completion stage | 25.600 | 0.039 | The 1st order vertical bending | |
| 4 | Cantilever stage | 0.611 | 1.638 | The 1st order vertical bending |
| Completion stage | 30.269 | 0.033 | The 2nd order vertical bending | |
| 5 | Cantilever stage | 0.723 | 1.383 | The 2nd order reverse bending |
| Completion stage | 32.326 | 0.031 | The 2nd torsion of longitudinal beam | |
| 6 | Cantilever stage | 0.856 | 1.168 | The torsion of the girder |
| Completion stage | 33.933 | 0.029 | bending-torsional coupling | |
| 7 | Cantilever stage | 1.013 | 0.987 | The 1st order vertical bending |
| Completion stage | 45.683 | 0.022 | Symmetrical vertical bending | |
| 8 | Cantilever stage | 1.021 | 0.979 | Lateral bending torsion coupling |
| Completion stage | 47.841 | 0.021 | Lateral swing of bridge tower | |
| 9 | Cantilever stage | 1.210 | 0.826 | Auxiliary pier swing |
| Completion stage | 51.992 | 0.019 | Vertical bending | |
| 10 | Cantilever stage | 1.255 | 0.797 | Auxiliary pier reverse bending |
| Completion stage | 52.083 | 0.0192 | Bending torsion coupling | |
Publisher’s Note: MDPI stays neutral with regard to jurisdictional claims in published maps and institutional affiliations. |
© 2022 by the authors. Licensee MDPI, Basel, Switzerland. This article is an open access article distributed under the terms and conditions of the Creative Commons Attribution (CC BY) license (https://creativecommons.org/licenses/by/4.0/).
Share and Cite
Zeng, Y.; Zheng, H.; Jiang, Y.; Ran, J.; He, X. Modal Analysis of a Steel Truss Girder Cable-Stayed Bridge with Single Tower and Single Cable Plane. Appl. Sci. 2022, 12, 7627. https://doi.org/10.3390/app12157627
Zeng Y, Zheng H, Jiang Y, Ran J, He X. Modal Analysis of a Steel Truss Girder Cable-Stayed Bridge with Single Tower and Single Cable Plane. Applied Sciences. 2022; 12(15):7627. https://doi.org/10.3390/app12157627
Chicago/Turabian StyleZeng, Yong, Huijun Zheng, Yuhang Jiang, Jiuhong Ran, and Xuan He. 2022. "Modal Analysis of a Steel Truss Girder Cable-Stayed Bridge with Single Tower and Single Cable Plane" Applied Sciences 12, no. 15: 7627. https://doi.org/10.3390/app12157627
APA StyleZeng, Y., Zheng, H., Jiang, Y., Ran, J., & He, X. (2022). Modal Analysis of a Steel Truss Girder Cable-Stayed Bridge with Single Tower and Single Cable Plane. Applied Sciences, 12(15), 7627. https://doi.org/10.3390/app12157627

