A New Affinely Adjustable Robust Model for Security Constrained Unit Commitment under Uncertainty
Abstract
1. Introduction
2. Theorical Background
2.1. Affine Arithmetic
2.2. Affinely Adjustable Robust Optimization (AARO)
3. Deterministic Model for Security Constrained Unit Commitment
4. AARO Model for Security Constrained Unit Commitment (SCUC)
4.1. AARO Formulation to Solve the SCUC Problem
| Algorithm 1: Method for Adding N − 1 Security Constraints as user cuts |
![]() |
4.2. Uncertainty Sets
5. Tests and Results
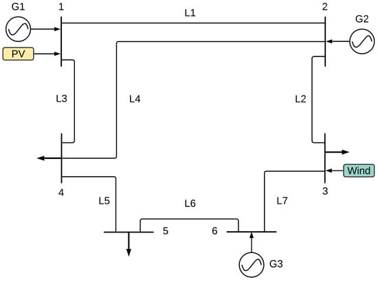
5.1. 6-Bus System
5.2. IEEE RTS 24-Bus Power System
6. Conclusions
Author Contributions
Funding
Institutional Review Board Statement
Informed Consent Statement
Data Availability Statement
Acknowledgments
Conflicts of Interest
Abbreviations
| AA | Affine arithmetic |
| AARO | Affinely adjustable robust optimization |
| AAROUC | Affinely adjustable robust optimization unit commitment |
| AGC | Automatic generation control |
| BD | Benders decomposition |
| DRO | Distributionally robust optimization |
| LODF | Line outage distribution factor |
| LR | Lagrangian relaxation |
| LSF | Linear sensitivity factors |
| MCS | Monte Carlo Simulations |
| MILP | Mixed-integer linear programming |
| OF | Objective function |
| OTDF | Outage transfer distribution factors |
| PTDF | Power transfer distribution factor |
| SCUC | Security constrained unit commitment |
| ROUC | Robust optimization of the UC |
| SOUC | Stochastic optimization for the unit commitment |
| SSCUC | Stochastic security constraint unit commitment |
| UC | Unit commitment |
Appendix A. Nomenclature
Appendix A.1. Indexes and Notations
| i | Index of conventional generators, 1 to I |
| w | Index of Wind generators, 1 to W |
| p | Index of PV generators, 1 to P |
| l, k | Index of lines and contingencies, respectively, 1 to L |
| s, ss | Index of buses, 1 to S |
| t, tt, | Index of time periods, 1 to T |
Appendix A.2. Parameters
| Generation map for conventional generators | |
| Generation map for wind generators | |
| Generation map for PV generators | |
| Fixed production cost of thermal generator [USD] | |
| Operating variable cost of generator [USD] | |
| Startup cost of conventional generator [USD] | |
| Shut down cost of thermal generator [USD] | |
| Demand in bus s at time t [MW] | |
| Minimum down time of thermal generator i [h] | |
| Minimum up time of thermal generator i [h] | |
| Time that thermal generator i has been down before [h] | |
| Time that thermal generator i has been up before [h] | |
| Rated capacity of thermal generator i [MW] | |
| Minimum output of thermal generator i [MW] | |
| On-Off status of generator i at (equal to 1 if | |
| and 0 otherwise) | |
| Power Forecast of wind generator w, at time t | |
| Power Forecast of PV generator p, at time t | |
| Load Forecast of demand at bus s, at time t | |
| Maximum Capacity of the line l [MW] | |
| Transmission capacity factor of the line l | |
| Length of time the thermal generator i has to be off at the start | |
| time of the planning horizon [h] | |
| Length of time the thermal generator i has to be on at the start | |
| time of the planning horizon [h] | |
| Ramp-down limit of thermal generator i [MW/h] | |
| Ramp-up limit of thermal generator i [MW/h] | |
| Matrix of Power transfer distribution factors | |
| Matrix of Line Outage distribution factors | |
| Matrix of Outage transfer distribution factors | |
| Materialized forecast error of the wind generator w, at time t [MW] | |
| Materialized forecast error of the PV generator p, at time t [MW] | |
| Materialized forecast error of the the demand located at bus s, | |
| at time t [MW] | |
| Maximum forecast error of the wind generator w, at time t [MW] | |
| Maximum forecast error of the PV generator p, at time t [MW] | |
| Maximum forecast error of the demand located at bus s, at time | |
| t [MW] |
Appendix A.3. Variables
| Conventional generator power output, of the generator i at time t [MW] | |
| Binary variable equal to 1 if the thermal generator i is producing at time | |
| t, and 0 otherwise | |
| Binary variable equal to 1 if the thermal generator i is started at the | |
| beginning of time t and 0 otherwise | |
| Binary variable equal to 1 if the thermal generator i is shutdown at the | |
| beginning of time t and 0 otherwise | |
| Net power injection in bus s, at time t [MW] | |
| Power flow of the line l, at time t, under normal operation [MW] | |
| Power flow of line l under the contingency k, at time t [MW] | |
| Central value of power output, of the generator i at time t [MW] | |
| Central value for net power injection in bus s, at time t [MW] | |
| Upper bound of the highest cost for the dispatch problem [USD] | |
| Adjustment of the generator i at time t given by the deviation of forecast | |
| error of the wind generator w in the past periods [p.u.] | |
| Adjustment of the generator i at time t given by the deviation of forecast | |
| error of the PV generator p in the past periods [p.u.] | |
| Adjustment of the generator i at time t given by the deviation | |
| of forecast error of total demand in the past periods [p.u.] | |
| Adjust variable for the objective function given by the deviation of | |
| forecast error of the wind generator w at time t [USD/MW] | |
| Adjust variable for the objective function given by | |
| the deviation of forecast error of the PV generator p at time t | |
| Adjust variable for the objective function given by | |
| the deviation of forecast error of the total demand at time t [USD/MW]. | |
| Adjust variable for power limits of the generator i at time t given by | |
| the deviation of forecast error of the wind generator w in the past | |
| periods [p.u.] | |
| Adjust variable for power limits of the generator i at time t given by | |
| the deviation of forecast error of the PV generator p in the past | |
| periods [p.u.] | |
| Adjust variable for power limits of the generator i at time t given by | |
| the deviation of forecast error of total demand in the past periods [p.u.] | |
| Adjust variable for ramping limits of the generator i at time t given by | |
| the deviation of forecast error of the wind generator w in the past | |
| periods [p.u.] | |
| Adjust variable for ramping limits of the generator i at time t given by | |
| the deviation of forecast error of PV generator p in the past | |
| periods [p.u.] | |
| Adjust variable for ramping limits of the generator i at time t given by | |
| the deviation of forecast error of the total demand in the past | |
| periods [p.u.] | |
| Adjust variable for power flow limits of the line l at time t given by the | |
| deviation of forecast error of the wind generator w in the past | |
| periods [p.u.] | |
| Adjust variable for power flow limits of the line l at time t given by the | |
| deviation of forecast error of the PV generator p in the past | |
| periods [p.u.] |
| Adjust variable for power flow limits of the line l at time t given by | |
| deviation of forecast the demand at bus s in the past periods [p.u.] | |
| Adjust variable for power flow limits of the line l under contingency of | |
| the line k at time t given by the deviation of forecast error of the wind | |
| generator w in the past periods [p.u.] | |
| Adjust variable for power flow limits of the line l under contingency of | |
| line k at time t given by the deviation of forecast error of the PV generator | |
| p in the past periods [p.u.] | |
| Adjust variable for power flow limits of the line l under contingency of | |
| line k at time t given by the deviation of forecast error of the demand | |
| at bus s in the past periods [p.u.] |
References
- Anjos, M.F.; Conejo, A.J. Unit Commitment in Electric Energy Systems. Found. Trends Electr. Energy Syst. 2017, 1, 220–310. [Google Scholar] [CrossRef]
- Knueven, B.; Ostrowski, J.; Watson, J.P. On mixed-integer programming formulations for the unit commitment problem. INFORMS J. Comput. 2020, 32, 857–876. [Google Scholar] [CrossRef]
- Huang, Y.; Pardalos, P.M.; Zheng, Q.P. Electrical Power Unit Commitment—Deterministic and Two-Stage Stochastic Programming Models and Algorithms; Springer: New York, NY, USA, 2017. [Google Scholar] [CrossRef]
- Quan, H.; Srinivasan, D.; Khambadkone, A.; Khosravi, A. A computational framework for uncertainty integration in stochastic unit commitment with intermittent renewable energy sources. Appl. Energy 2015, 152, 71–82. [Google Scholar] [CrossRef]
- Zheng, Q.P.; Wang, J.; Liu, A.L. Stochastic Optimization for Unit Commitment: A Review. IEEE Trans. Power Syst. 2015, 30, 1913–1924. [Google Scholar] [CrossRef]
- Tahanan, M.; Ackooij, W.v.; Frangioni, A.; Lacalandra, F. Large-scale Unit Commitment under uncertainty. 4OR 2015, 13, 115–171. [Google Scholar] [CrossRef]
- Restrepo, J.F.; Galiana, F.D. Assessing the Yearly Impact of Wind Power Through a New Hybrid Deterministic/Stochastic Unit Commitment. IEEE Trans. Power Syst. 2011, 26. [Google Scholar] [CrossRef]
- Aminifar, F.; Fotuhi-Firuzabad, M.; Shahidehpour, M. Unit Commitment With Probabilistic Spinning Reserve and Interruptible Load Considerations. IEEE Trans. Power Syst. 2009, 24. [Google Scholar] [CrossRef]
- Dyer, M.; Stougie, L. Computational complexity of stochastic programming problems. Math. Program. 2006, 106, 423–432. [Google Scholar] [CrossRef]
- Wang, C.; Fu, Y. Fully Parallel Stochastic Security-Constrained Unit Commitment. IEEE Trans. Power Syst. 2016, 31, 3561–3571. [Google Scholar] [CrossRef]
- Tuohy, A.; Meibom, P.; Denny, E.; O’Malley, M. Unit Commitment for Systems With Significant Wind Penetration. IEEE Trans. Power Syst. 2009, 24, 592–601. [Google Scholar] [CrossRef]
- Cerisola, S.; Baíllo, A.; Ramos, A.; Gollmer, R. Stochastic Power Generation Unit Commitment in Electricity Markets: A Novel Formulation and a Comparison of Solution Methods. Oper. Res. 2009, 57, 32–46. [Google Scholar] [CrossRef]
- Carpentier, P.; Gohen, G.; Culioli, J.C.; Renaud, A. Stochastic optimization of unit commitment: A new decomposition framework. IEEE Trans. Power Syst. 1996, 11, 1067–1073. [Google Scholar] [CrossRef]
- Huang, Y.; Zheng, Q.P.; Wang, J. Two-stage stochastic unit commitment model including non-generation resources with conditional value-at-risk constraints. Electr. Power Syst. Res. 2014, 116, 427–438. [Google Scholar] [CrossRef]
- Ningyu, Z.; Jiankun, L.; Qian, Z. Two-stage stochastic model of unit commitment with wind farm. In Proceedings of the 2014 China International Conference on Electricity Distribution (CICED), Shenzhen, China, 23–26 September 2014; pp. 1080–1084. [Google Scholar] [CrossRef]
- Wang, J.; Wang, J.; Liu, C.; Ruiz, J.P. Stochastic unit commitment with sub-hourly dispatch constraints. Appl. Energy 2013, 105, 418–422. [Google Scholar] [CrossRef]
- Wang, J.; Shahidehpour, M.; Li, Z. Security-Constrained Unit Commitment With Volatile Wind Power Generation. IEEE Trans. Power Syst. 2008, 23. [Google Scholar] [CrossRef]
- Pan, K.; Guan, Y. Strong Formulations for Multistage Stochastic Self-Scheduling Unit Commitment. Oper. Res. 2016, 64, 1482–1498. [Google Scholar] [CrossRef]
- Jiang, R.; Guan, Y.; Watson, J.P. Cutting planes for the multistage stochastic unit commitment problem. Math. Program. 2016, 157, 121–151. [Google Scholar] [CrossRef]
- Papavasiliou, A.; Oren, S.S. Multiarea Stochastic Unit Commitment for High Wind Penetration in a Transmission Constrained Network. Oper. Res. 2013, 61. [Google Scholar] [CrossRef]
- Shiina, T.; Birge, J.R. Stochastic unit commitment problem. Int. Trans. Oper. Res. 2004, 11, 19–32. [Google Scholar] [CrossRef]
- Gade, D.; Hackebeil, G.; Ryan, S.M.; Watson, J.P.; Wets, R.J.B.; Woodruff, D.L. Obtaining lower bounds from the progressive hedging algorithm for stochastic mixed-integer programs. Math. Program. 2016, 157, 47–67. [Google Scholar] [CrossRef]
- Ordoudis, C.; Pinson, P.; Zugno, M.; Morales, J.M. Stochastic unit commitment via Progressive Hedging—Extensive analysis of solution methods. In Proceedings of the 2015 IEEE Eindhoven PowerTech, Eindhoven, The Netherlands, 29 June–2 July 2015; pp. 1–6. [Google Scholar] [CrossRef]
- Guo, G.; Hackebeil, G.; Ryan, S.M.; Watson, J.P.; Woodruff, D.L. Integration of progressive hedging and dual decomposition in stochastic integer programs. Oper. Res. Lett. 2015, 43, 311–316. [Google Scholar] [CrossRef]
- Li, C.; Zhang, M.; Hedman, K.W. N-1 Reliable Unit Commitment via Progressive Hedging. J. Energy Eng. 2015, 141, B4014004. [Google Scholar] [CrossRef]
- Ryan, S.M.; Wets, R.J.; Woodruff, D.L.; Silva-Monroy, C.; Watson, J. Toward scalable, parallel progressive hedging for stochastic unit commitment. In Proceedings of the 2013 IEEE Power Energy Society General Meeting, Vancouver, BC, Canada, 21–25 July 2013; pp. 1–5. [Google Scholar] [CrossRef]
- Gonçalves, R.E.C.; Finardi, E.C.; Silva, E.L.D. Applying different decomposition schemes using the progressive hedging algorithm to the operation planning problem of a hydrothermal system. Electr. Power Syst. Res. 2012, 83, 19–27. [Google Scholar] [CrossRef]
- Watson, J.P.; Woodruff, D.L. Progressive hedging innovations for a class of stochastic mixed-integer resource allocation problems. Comput. Manag. Sci. 2011, 8, 355–370. [Google Scholar] [CrossRef]
- Takriti, S.; Birge, J.R.; Long, E. A stochastic model for the unit commitment problem. IEEE Trans. Power Syst. 1996, 11. [Google Scholar] [CrossRef]
- Rockafellar, R.T.; Wets, R.J.B. Scenarios and Policy Aggregation in Optimization Under Uncertainty. Math. Oper. Res. 1991, 16. [Google Scholar] [CrossRef]
- Papavasiliou, A.; Oren, S.S. A comparative study of stochastic unit commitment and security-constrained unit commitment using high performance computing. In Proceedings of the 2013 European Control Conference (ECC), Zurich, Switzerland, 17–19 July 2013; pp. 2507–2512. Available online: https://perso.uclouvain.be/anthony.papavasiliou/public_html/ECC.pdf (accessed on 12 December 2018).
- Wang, C.; Liu, F.; Wang, J.; Qiu, F.; Wei, W.; Mei, S.; Lei, S. Robust Risk-Constrained Unit Commitment With Large-Scale Wind Generation: An Adjustable Uncertainty Set Approach. IEEE Trans. Power Syst. 2017, 32, 723–733. [Google Scholar] [CrossRef]
- Kory, W.H.; Akshay, S.K.; Zhang, M.; Gregory, T.; Alejandro, D.-G.; Jiang, X. The Application of Robust Optimization in Power Systems; Final Report (Project S-51); The Power Systems Engineering Research Center (PSERC): Tempe, AZ, USA, 2014. [Google Scholar]
- Guan, Y.; Wang, J. Uncertainty Sets for Robust Unit Commitment. IEEE Trans. Power Syst. 2014, 29. [Google Scholar] [CrossRef]
- Jiang, H.; Zhang, S.; Hu, Z.; Song, Y.; Chiwei, Y. Robust optimization method for unit commitment with network losses considering wind uncertainties. In Proceedings of the 2012 IEEE Power and Energy Society General Meeting, San Diego, CA, USA, 22–26 July 2012; pp. 1–5. [Google Scholar] [CrossRef]
- Zhang, S.; Song, Y.; Hu, Z.; Yao, L. Robust optimization method based on scenario analysis for unit commitment considering wind uncertainties. In Proceedings of the 2011 IEEE Power and Energy Society General Meeting, Detroit, MI, USA, 24–28 July 2011; pp. 1–7. [Google Scholar] [CrossRef]
- Morales, G.A. Unit Commitment Computational Performance, System Representation and Wind Uncertainty Management. Ph.D. Thesis, Universidad Pontificia Comillas ICAI-ICADE, Madrid, Spain, 2014. [Google Scholar]
- Jiang, R.; Wang, J.; Zhang, M.; Guan, Y. Two-Stage Minimax Regret Robust Unit Commitment. IEEE Trans. Power Syst. 2013, 28. [Google Scholar] [CrossRef]
- Zhao, C.; Guan, Y. Unified Stochastic and Robust Unit Commitment. IEEE Trans. Power Syst. 2013, 28, 3353–3361. [Google Scholar] [CrossRef]
- Yorino, N.; Abdillah, M.; Sasaki, Y.; Zoka, Y. Robust Power System Security Assessment Under Uncertainties Using Bi-Level Optimization. IEEE Trans. Power Syst. 2018, 33, 352–362. [Google Scholar] [CrossRef]
- Li, Y.Z. Discussion of “Adaptive Robust Optimization for the Security Constrained Unit Commitment Problem”. IEEE Trans. Power Syst. 2014, 29, 996. [Google Scholar] [CrossRef]
- Lorca, A.; Sun, X.A.; Litvinov, E.; Zheng, T. Multistage Adaptive Robust Optimization for the Unit Commitment Problem. Oper. Res. 2016, 64, 32–51. [Google Scholar] [CrossRef]
- Bertsimas, D.; Litvinov, E.; Sun, X.A.; Zhao, J.; Zheng, T. Adaptive Robust Optimization for the Security Constrained Unit Commitment Problem. IEEE Trans. Power Syst. 2013, 28, 52–63. [Google Scholar] [CrossRef]
- Gorissen, B.L.; Yanıkoğlu, I.; Hertog, D.D. A Practical Guide to Robust Optimization. Omega 2015, 53, 124–137. [Google Scholar] [CrossRef]
- Ben-Tal, A.; Goryashko, A.; Guslitzer, E.; Nemirovski, A. Adjustable robust solutions of uncertain linear programs. Math. Program. 2004, 99. [Google Scholar] [CrossRef]
- Xiong, P.; Jirutitijaroen, P. A linear decision rule approach for robust unit commitment considering wind power generation. In Proceedings of the 2014 Power Systems Computation Conference, Wrocław, Poland, 18–22 August 2014; pp. 1–7. [Google Scholar] [CrossRef]
- Vaccaro, A.; Petrelli, M.; Berizzi, A. Robust Optimization and Affine Arithmetic for Microgrid Scheduling under Uncertainty. In Proceedings of the 2019 IEEE International Conference on Environment and Electrical Engineering and 2019 IEEE Industrial and Commercial Power Systems Europe (EEEIC/I CPS Europe), Genova, Italy, 11–14 June 2019; pp. 1–6. [Google Scholar] [CrossRef]
- Romero-Quete, D.; Garcia, J.R. An affine arithmetic-model predictive control approach for optimal economic dispatch of combined heat and power microgrids. Appl. Energy 2019, 242, 1436–1447. [Google Scholar] [CrossRef]
- Luo, L.; Gu, W.; Wang, Y.; Chen, C. An Affine Arithmetic-Based Power Flow Algorithm Considering the Regional Control of Unscheduled Power Fluctuation. Energies 2017, 10, 1794. [Google Scholar] [CrossRef]
- Zhang, C.; Chen, H.; Guo, M.; Lei, J.; Ge, H.; Wan, C. A mixed interval power flow analysis based on affine arithmetic. In Proceedings of the 2016 IEEE PES Asia-Pacific Power and Energy Engineering Conference (APPEEC), Xi’an, China, 25–28 October 2016; pp. 758–762. [Google Scholar] [CrossRef]
- Pirnia, M.; Canizares, C.A.; Bhattacharya, K.; Vaccaro, A. A Novel Affine Arithmetic Method to Solve Optimal Power Flow Problems With Uncertainties. IEEE Trans. Power Syst. 2014, 29, 2775–2783. [Google Scholar] [CrossRef]
- Warrington, J.; Hohl, C.; Goulart, P.J.; Morari, M. Optimal unit commitment accounting for robust affine reserve policies. In Proceedings of the 2014 American Control Conference, Portland, OR, USA, 4–6 June 2014; pp. 5049–5055. [Google Scholar] [CrossRef]
- Pirnia, M.; Canizares, C.A.; Bhattacharya, K.; Vaccaro, A. An Affine Arithmetic method to solve the stochastic power flow problem based on a mixed complementarity formulation. In Proceedings of the 2012 IEEE Power and Energy Society General Meeting, San Diego, CA, USA, 22–26 July 2012; pp. 1–7. [Google Scholar] [CrossRef]
- Romero-Quete, D.F.; Canizares, C. Affine Arithmetic Formulation of the Unit Commitment Problem Under Uncertainty. In Proceedings of the IREP’2017 Symposium, Espinho, Portugal, 28 August 2017; p. 9. [Google Scholar]
- Romero-Quete, D.; Canizares, C.A. An Affine Arithmetic-Based Energy Management System for Isolated Microgrids. IEEE Trans. Smart Grid 2018. [Google Scholar] [CrossRef]
- Shahidehpour, M.; Zhou, Y.; Wei, Z.; Sun, G.; Chen, S.; Li, Z. Distributionally Robust Unit Commitment in Coordinated Electricity and District Heating Networks. IEEE Trans. Power Syst. 2019. [Google Scholar] [CrossRef]
- Zugno, M.; Morales, J.M.; Madsen, H. Commitment and dispatch of heat and power units via affinely adjustable robust optimization. Comput. Oper. Res. 2016, 75, 191–201. [Google Scholar] [CrossRef]
- Xiong, P.; Jirutitijaroen, P.; Singh, C. A Distributionally Robust Optimization Model for Unit Commitment Considering Uncertain Wind Power Generation. IEEE Trans. Power Syst. 2017, 32, 39–49. [Google Scholar] [CrossRef]
- Ben-Tal, A.; Nemirovski, A. Selected topics in robust convex optimization. Math. Program. 2008, 112, 125–158. [Google Scholar] [CrossRef]
- Marín-Cano, C.C.; Sierra-Aguilar, J.E.; López-Lezama, J.M.; Jaramillo-Duque, A.; Villegas, J.G. A Novel Strategy to Reduce Computational Burden of the Stochastic Security Constrained Unit Commitment Problem. Energies 2020, 13, 3777. [Google Scholar] [CrossRef]
- Marín-Cano, C.C.; Sierra-Aguilar, J.E.; López-Lezama, J.M.; Jaramillo-Duque, A.; Villa-Acevedo, W.M. Implementation of User Cuts and Linear Sensitivity Factors to Improve the Computational Performance of the Security-Constrained Unit Commitment Problem. Energies 2019, 12, 1399. [Google Scholar] [CrossRef]
- De Figueiredo, L.H.; Stolfi, J. Affine Arithmetic: Concepts and Applications. Numer. Algor. 2004, 37, 147–158. [Google Scholar] [CrossRef]
- Zhai, Q.; Guan, X.; Cheng, J.; Wu, H. Fast Identification of Inactive Security Constraints in SCUC Problems. IEEE Trans. Power Syst. 2010, 25, 1946–1954. [Google Scholar] [CrossRef]
- Wu, H.; Guan, X.; Zhai, Q.; Ye, H. A Systematic Method for Constructing Feasible Solution to SCUC Problem With Analytical Feasibility Conditions. IEEE Trans. Power Syst. 2012, 27. [Google Scholar] [CrossRef]
- Ardakani, A.J.; Bouffard, F. Identification of umbrella constraints in DC-based security-constrained optimal power flow. In Proceedings of the 2014 IEEE PES General Meeting|Conference & Exposition, National Harbor, MD, USA, 27–31 July 2014. [Google Scholar] [CrossRef]
- Tejada-Arango, D.A.; Sánchez-Martın, P.; Ramos, A. Security Constrained Unit Commitment Using Line Outage Distribution Factors. IEEE Trans. Power Syst. 2018, 33, 329–337. [Google Scholar] [CrossRef]
- IBM®-IBM Knowledge Center. Differences between User Cuts and Lazy Constraints. 2014. Available online: https://www.ibm.com/support/knowledgecenter/SSSA5P12.7.0/ilog.odms.cplex.help/CPLEX/UsrMan/topics/progradv/usrcutlazyconstr/02defn.html (accessed on 3 April 2019).
- Tian, Y.; Wu, W.; Wang, K.; Fu, Y.; Li, G. Robust transmission constrained unit commitment under wind power uncertainty with adjustable conservatism. Trans. Distrib. IET Gener. 2020, 14, 824–832. [Google Scholar] [CrossRef]
- Wu, L.; Shahidehpour, M.; Li, T. Stochastic Security-Constrained Unit Commitment. IEEE Trans. Power Syst. 2007, 22, 800–811. [Google Scholar] [CrossRef]
- DEMIERI-Project. A New Affinely Adjustable Robust Model for Security Constrained Unit Commitment under Uncertainty. Available online: https://github.com/IceMerman/AARC-6bus (accessed on 17 February 2021).








Publisher’s Note: MDPI stays neutral with regard to jurisdictional claims in published maps and institutional affiliations. |
© 2021 by the authors. Licensee MDPI, Basel, Switzerland. This article is an open access article distributed under the terms and conditions of the Creative Commons Attribution (CC BY) license (https://creativecommons.org/licenses/by/4.0/).
Share and Cite
Sierra-Aguilar, J.E.; Marín-Cano, C.C.; López-Lezama, J.M.; Jaramillo-Duque, Á.; Villegas, J.G. A New Affinely Adjustable Robust Model for Security Constrained Unit Commitment under Uncertainty. Appl. Sci. 2021, 11, 3987. https://doi.org/10.3390/app11093987
Sierra-Aguilar JE, Marín-Cano CC, López-Lezama JM, Jaramillo-Duque Á, Villegas JG. A New Affinely Adjustable Robust Model for Security Constrained Unit Commitment under Uncertainty. Applied Sciences. 2021; 11(9):3987. https://doi.org/10.3390/app11093987
Chicago/Turabian StyleSierra-Aguilar, Juan Esteban, Cristian Camilo Marín-Cano, Jesús M. López-Lezama, Álvaro Jaramillo-Duque, and Juan G. Villegas. 2021. "A New Affinely Adjustable Robust Model for Security Constrained Unit Commitment under Uncertainty" Applied Sciences 11, no. 9: 3987. https://doi.org/10.3390/app11093987
APA StyleSierra-Aguilar, J. E., Marín-Cano, C. C., López-Lezama, J. M., Jaramillo-Duque, Á., & Villegas, J. G. (2021). A New Affinely Adjustable Robust Model for Security Constrained Unit Commitment under Uncertainty. Applied Sciences, 11(9), 3987. https://doi.org/10.3390/app11093987


