Advanced Modelling and Risk Analysis of RC Buildings with Sliding Isolation Systems Designed by the Italian Seismic Code
Abstract
1. Introduction
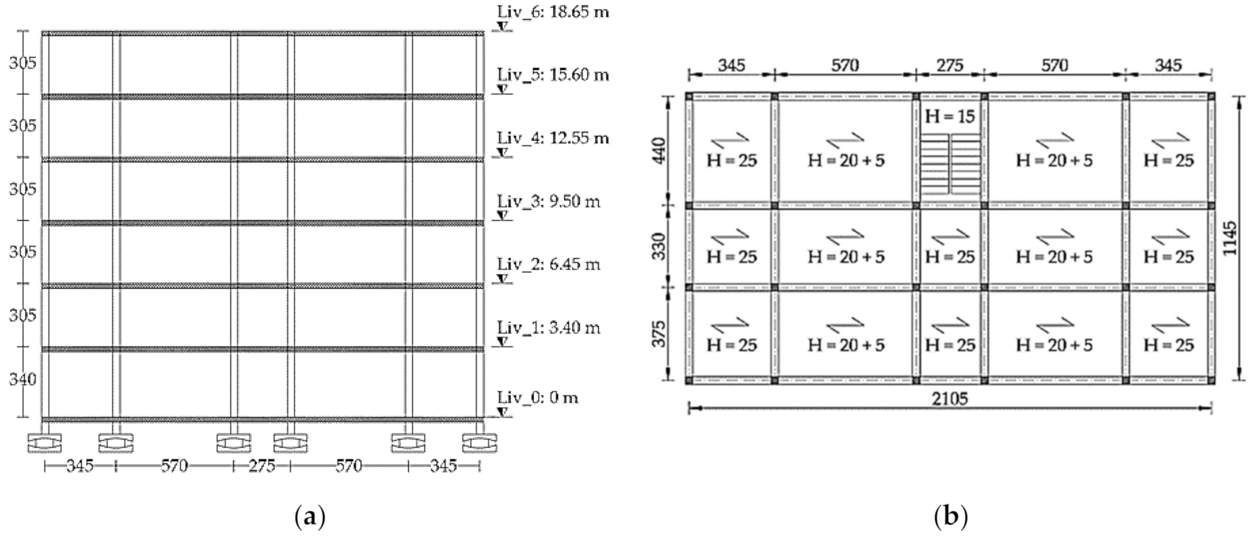
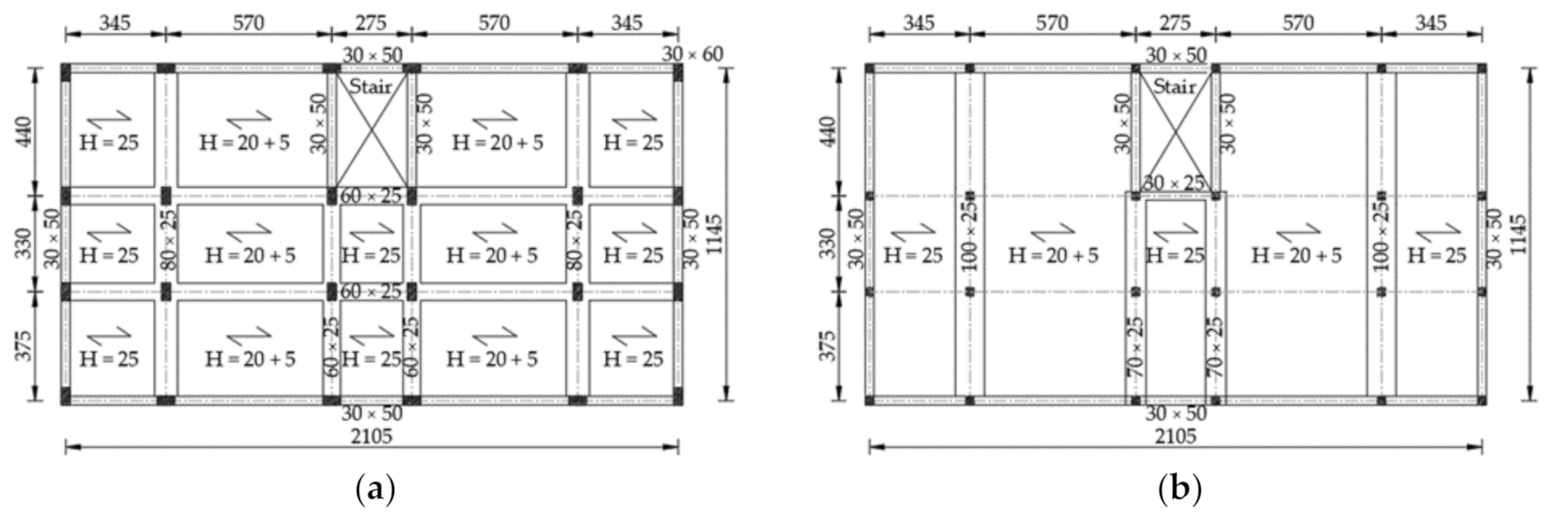
2. Case studies
2.1. Archetype Buildings
2.2. Seismic Input
2.3. Design of Isolation Systems
3. Numerical Modelling
4. Definition of Performance Levels
5. NTHA Results
6. Risk Assessment
7. Conclusions
Author Contributions
Funding
Institutional Review Board Statement
Informed Consent Statement
Data Availability Statement
Acknowledgments
Conflicts of Interest
References
- Di Cesare, A.; Ponzo, F.C.; Vona, M.; Dolce, M.; Masi, A.; Gallipoli, M.R.; Mucciarelli, M. Identification of the Structural Model and Analysis of the Global Seismic Behaviour of a RC Damaged Building. SDEE 2014, 65, 131–141. [Google Scholar] [CrossRef]
- Kawamura, S.; Sugisaki, R.; Ogura, K.; Maezawa, S.; Tanaka, S.; Yajima, A. Seismic isolation retrofit in Japan. In Proceedings of the 12th WCEE, Auckland, New Zealand, 30 January–4 February 2000. [Google Scholar]
- Mokha, A.S.; Amin, N.; Constantinou, M.C.; Zayas, V. Seismic isolation retrofit of large historic building. JSE 1996, 122, 298–308. [Google Scholar] [CrossRef]
- Pant, D.R.; Wijeyewickrema, A.C. Performance of base-isolated reinforced concrete buildings under bidirectional seismic excitation considering pounding with retaining walls including friction effects. EESD 2014, 43, 1521–1541. [Google Scholar] [CrossRef]
- Morita, K.; Takayama, M. Behavior of seismically isolated buildings during the 2016 Kumamoto earthquakes. In Proceedings of the NZSEE Conference 2017, Wellington, New Zealand, 27–29 April 2017. [Google Scholar]
- Kazantzi, A.K.; Vamvatsikos, D. Practical performance-based design of friction pendulum bearings for a seismically isolated steel top story spanning two RC towers. Bull. Earthq. Eng. 2020, 19, 1231–1248. [Google Scholar] [CrossRef]
- Takaoka, E.; Takenaka, Y.; Nimura, A. Shaking table test and analysis method on ultimate behavior of slender base-isolated structure supported by laminated rubber bearings. EESD 2011, 40, 551–570. [Google Scholar] [CrossRef]
- De Domenico, D.; Gandelli, E.; Quaglini, V. Effective base isolation combining low-friction curved surface sliders and hysteretic gap dampers. SDEE 2020, 130, 105989. [Google Scholar] [CrossRef]
- Fujita, K.; Yasuda, K.; Kanno, Y.; Takewaki, I. Robustness evaluation of elastoplastic base-isolated high-rise buildings subjected to critical double impulse. Front. Built Environ. 2017, 3, 31. [Google Scholar] [CrossRef]
- Anajafi, H.; Poursadr, K.; Roohi, M.; Santini-Bell, E. Effectiveness of seismic isolation for long-period structures subject to far-field and near-field excitations. Front. Built Environ. 2020, 6. [Google Scholar] [CrossRef]
- Ponzo, F.C.; Di Cesare, A.; Leccese, G.; Nigro, D. Shaking table tests of a base isolated structure with double concave friction pendulums. Bull. N. Z. Soc. Earthq. Eng. 2015, 48, 136–144. [Google Scholar] [CrossRef]
- Quaglini, V.; Dubini, P.; Furinghetti, M.; Pavese, A. Assessment of Scale Effects in the Experimental Evaluation of the Coefficient of Friction of Sliding Isolators. JEE 2019. [Google Scholar] [CrossRef]
- Ponzo, F.C.; Di Cesare, A.; Leccese, G.; Nigro, D. Shake table testing on restoring capability of double concave friction pendulum seismic isolation systems. EESD 2017, 46, 2337–2353. [Google Scholar] [CrossRef]
- Furinghetti, M.; Pavese, A.; Quaglini, V.; Dubini, P. Experimental Investigation Of The Cyclic Response Of Double Curved Surface Sliders Subjected To Radial And Bidirectional Sliding Motions. SDEE 2019. [Google Scholar] [CrossRef]
- Pavese, A.; Furinghetti, M.; Casarotti, C. Investigation of the consequences of mounting laying defects for curved surface slider devices under general seismic input. JEE 2019. [Google Scholar] [CrossRef]
- Zayas, V.; Mahin, S.; Constantinou, M.C. Safe and Unsafe Seismically Isolated Structures; PEER Report No. 20016-01; Pacific Earthquake Engineering Research Center: Berkeley, CA, USA, 2016. [Google Scholar]
- Ragni, L.; Cardone, D.; Conte, N.; Dall’Asta, A.; Di Cesare, A.; Flora, A.; Leccese, G.; Micozzi, F.; Ponzo, C. Modelling and seismic response analysis of Italian code-conforming base-isolated buildings. JEE 2018, 22 (Suppl. 2), 198–230. [Google Scholar] [CrossRef]
- Cardone, D.; Conte, N.; Dall’Asta, A.; Di Cesare, A.; Flora, A.; Lamarucciola, N.; Micozzi, F.; Ponzo, F.C.; Ragni, L. RiNTC-e project: The seismic risk of existing italian rc buildings retrofitted with seismic isolation. In Proceedings of the COMPDYN 2019—7th ECCOMAS Thematic Conference on Computational Methods in SDEE, Crete, Greece, 24–26 June 2019. [Google Scholar]
- Flora, A.; Perrone, G.; Cardone, D. Evaluating Collapse Fragility Curves for Existing Buildings Retrofitted Using Seismic Isolation. Appl. Sci. 2020, 10, 2844. [Google Scholar] [CrossRef]
- Iervolino, I.; Spillatura, A.; Bazzurro, P. Seismic Reliability of Code-Conforming Italian Buildings. JEE 2018, 22 (Suppl. 2), 5–7. [Google Scholar] [CrossRef]
- Ricci, P.; Manfredi, V.; Noto, F.; Terrenzi, M.; Petrone, C.; Celano, F.; De Risi, M.T.; Camata, G.; Franchin, P.; Magliulo, G.; et al. Modeling and Seismic Response Analysis of Italian Code-Conforming Reinforced Concrete Buildings. JEE 2018, 22 (Suppl. 2), 105–139. [Google Scholar] [CrossRef]
- Ricci, P.; Manfredi, V.; Noto, F.; Terrenzi, M.; De Risi, M.T.; Di Domenico, M.; Camata, G.; Franchin, P.; Masi, A.; Mollaioli, F.; et al. RINTC-e: Towards seismic risk assessment of existing residential reinforced concrete buildings in Italy. In Proceedings of the COMPDYN 2019—7th ECCOMAS Thematic Conference on Computational Methods in SDEE, Crete, Greece, 24–26 June 2019. [Google Scholar]
- Ponzo, F.C.; Di Cesare, A.; Telesca, A.; Nigro, D.; Castellano, M.G.; Infanti, S. Influence of DCCSS Bearings Over-Stroke and breakaway on the seismic response of isolated buildings. In Proceedings of the 17th WCEE, Sendai, Japan, 13–18 September 2020. [Google Scholar]
- Di Cesare, A.; Ponzo, F.C.; Telesca, A. Improving the earthquake resilience of isolated buildings with double concave curved surface sliders. Eng. Struct. 2020, 111498. [Google Scholar] [CrossRef]
- Furinghetti, M.; Yang, T.; Calvi, P.M.; Pavese, A. Dynamic response of curved surface slider devices under severe input motion. In Proceedings of the 17WCEE, Sendai, Japan, 13–18 September 2020. [Google Scholar]
- Furinghetti, M.; Yang, T.; Calvi, P.M.; Pavese, A. Experimental evaluation of extra-design displacement capacity for curved surface slider devices. SDEE. Under review.
- Bao, Y.; Becker, T.C.; Sone, T.; Hamaguchi, H. Experimental study of the effect of restraining rim design on the extreme behavior of pendulum sliding bearings. EESD 2017. [Google Scholar] [CrossRef]
- NTC 2018. Norme Tecniche per le Costruzioni; Decreto Ministeriale del 17 Gennaio 2018; Ministero delle Infrastrutture e dei Trasporti: Rome, Italy, 2018.
- DM 74. Norme Tecniche per la Esecuzione delle opere in Cemento Armato Normale e Precompresso e per le Strutture Metalliche; Decreto Ministeriale del 30 Maggio 1974; Ministero delle Infrastrutture e dei Trasporti: Rome, Italy, 1974.
- DM 86. Norme Tecniche Relative alle Costruzioni Sismiche; Decreto Ministeriale del 24 Gennaio 1986; Ministero delle Infrastrutture e dei Trasporti: Rome, Italy, 1986.
- Baraschino, R.; Baltzopoulos, G.; Iervolino, I. R2R-EU: Software for Fragility Fitting and Evaluation of Estimation Uncertainty in Seismic Risk Analysis. SDEE 2020, 132, 106093. [Google Scholar] [CrossRef]
- Cornell, C.A.; Krawinkler, H. Progress and Challenges in Seismic Performance Assessment; PEER Center News 3; Pacific Earthquake Engineering Research Center: Berkeley, CA, USA, 2000. [Google Scholar]
- Akkar, S.; Bommer, J.J. Empirical Equations for the Prediction of PGA, PGV, and Spectral Accelerations in Europe, the Mediterranean Region, and the Middle East. Seismol. Res. Lett. 2010, 81, 195–206. [Google Scholar] [CrossRef]
- Mckenna, F.; Fenves, G.L.; Scott, M.H.; Jeremic, B. Open System for Earthquake Engineering Simulation (OpenSEES); PEER Center, University of California: Berkeley, CA, USA, 2000. [Google Scholar]
- Ibarra, L.F.; Medina, R.A.; Krawinkler, H. Hysteretic models that incorporate strength and stiffness deterioration. EESD 2005, 34, 1489–1511. [Google Scholar] [CrossRef]
- Decanini, L.D.; Liberatore, L.; Mollaioli, F. Strength and stiffness reduction factors for infilled frames with openings. Earthq. Eng. Eng. Vib. 2014, 13, 437–454. [Google Scholar] [CrossRef]
- Kitayama, S.; Constantinou, M.C. Effect of superstructure modeling assumptions on the seismic performance of seismically isolated buildings. EESD 2021. [Google Scholar] [CrossRef]
- Ryan, K.L.; Polanco, J. Problems with Rayleigh damping in base-isolated buildings. JSE 2008, 134, 1780–1784. [Google Scholar] [CrossRef]
- Anajafi, H.; Medina, R.A.; Santini-Bell, E. Effects of the improper modeling of viscous damping on the first-mode and higher-mode dominated responses of base-isolated buildings. EESD 2020, 49, 51–73. [Google Scholar] [CrossRef]
- Constantinou, M.C.; Mokha, A.; Reinhorn, A. Teflon bearings in base isolation. II: Modeling. JSE (ASCE) 1990, 116, 455–474. [Google Scholar] [CrossRef]
- Di Cesare, A.; Ponzo, F.C.; Telesca, A.; Nigro, D.; Castellano, M.G.; Infanti, S.; Fichera, S.; Biondi, B. Modelling of the over stroke displacement of curved surface sliders using OpenSEES. In Proceedings of the First Eurasian Conference on OpenSEES, Hong Kong, 20–21 June 2019. [Google Scholar]
- ReLUIS-RINTC Workgroup. Results of the 2015–2017 RINTC Project; ReLUIS-RINTC Report; ReLUIS: Naples, Italy, 2018. [Google Scholar]
- Ruggieri, S.; Uva, G. Accounting for the Spatial Variability of Seismic Motion in the Pushover Analysis of Regular and Irregular RC Buildings in the New Italian Building Code. Buildings 2020, 10, 177. [Google Scholar] [CrossRef]

















| Case Study | M | W | NSd |
|---|---|---|---|
| [ton] | [kN] | [kN] | |
| New Construction | 2178 | 22,330 | 890 |
| Existing LSD | 1582 | 18,568 | 647 |
| Existing GLD | 1546 | 18,040 | 683 |
| IM | 1 | 2 | 3 | 4 | 5 | 6 | 7 | 8 | 9 | 10 |
|---|---|---|---|---|---|---|---|---|---|---|
| TR (Years) | 10 | 50 | 100 | 250 | 500 | 1000 | 2500 | 5000 | 10,000 | 100,000 |
| L’Aquila, Sa (T = 3 s) | 0.0002 | 0.011 | 0.031 | 0.062 | 0.11 | 0.177 | 0.271 | 0.384 | 0.576 | 1.053 |
| Naples, Sa (T = 3 s) | 0.001 | 0.009 | 0.026 | 0.044 | 0.067 | 0.093 | 0.126 | 0.162 | 0.216 | 0.348 |
| Case Study | Re | μ | Ke | Te | ξe | dEd | Φ | dmax |
|---|---|---|---|---|---|---|---|---|
| [mm] | [%] | [kN/mm] | [sec] | [%] | [mm] | [mm] | [mm] | |
| AQ_New | 3700 | 2.5 | 0.357 | 3.17 | 21 | 237 | 200 | ±300 |
| NA_New | 2500 | 2.5 | 0.560 | 2.53 | 23 | 134 | 250 | ±150 |
| AQ_LSD | 3700 | 2.5 | 0.296 | 2.97 | 26 | 216 | 200 | ±300 |
| NA_GLD | 4500 | 2.5 | 0.303 | 3.01 | 28 | 125 | 165 | ±250 |
| Case_ID | dc | du | Kp | K2 | Δμ |
|---|---|---|---|---|---|
| [mm] | [mm] | [kN/mm] | [kN/mm] | - | |
| AQ_New | ±330 | 430 | 0.240 | 2.50 | 0.02 |
| NA_New | ±165 | 290 | 0.172 | 2.50 | 0.02 |
| AQ_LSD | ±330 | 430 | 0.174 | 2.50 | 0.02 |
| NA_GLD | ±275 | 355 | 0.372 | 2.50 | 0.02 |
| Limit State | EDP | Failure Conditions | Case ID | Limit Value |
|---|---|---|---|---|
| UPD | End of the elastic branch on pushover curves for directions X and Y | AQ_New | 0.32%; 0.31% | |
| NA_New | 0.32%; 0.31% | |||
| AQ_LSD | 0.27%; 0.34% | |||
| NA_GLD | 0.20%; 0.26% | |||
| GC | Vertical instability or contact pressure of the sliding material | AQ_New | 414 mm | |
| NA_New | 290 mm | |||
| AQ_LSD | 420 mm | |||
| NA_GLD | 342 mm |
| Case_ID | Limit State | Annual Rate of Failure λf |
|---|---|---|
| AQ_New | UPD | 8.7 × 10−4 |
| GC | 7.0 × 10−4 | |
| NA_New | UPD | 1.1 × 10−4 |
| GC | 1.1 × 10−4 | |
| AQ_LSD | UPD | 9.8 × 10−4 |
| GC | 6.6 × 10−4 | |
| NA_GLD | UPD | 5.4 × 10−4 |
| GC | 1.5 × 10−4 |
Publisher’s Note: MDPI stays neutral with regard to jurisdictional claims in published maps and institutional affiliations. |
© 2021 by the authors. Licensee MDPI, Basel, Switzerland. This article is an open access article distributed under the terms and conditions of the Creative Commons Attribution (CC BY) license (http://creativecommons.org/licenses/by/4.0/).
Share and Cite
Ponzo, F.C.; Di Cesare, A.; Telesca, A.; Pavese, A.; Furinghetti, M. Advanced Modelling and Risk Analysis of RC Buildings with Sliding Isolation Systems Designed by the Italian Seismic Code. Appl. Sci. 2021, 11, 1938. https://doi.org/10.3390/app11041938
Ponzo FC, Di Cesare A, Telesca A, Pavese A, Furinghetti M. Advanced Modelling and Risk Analysis of RC Buildings with Sliding Isolation Systems Designed by the Italian Seismic Code. Applied Sciences. 2021; 11(4):1938. https://doi.org/10.3390/app11041938
Chicago/Turabian StylePonzo, Felice Carlo, Antonio Di Cesare, Alessio Telesca, Alberto Pavese, and Marco Furinghetti. 2021. "Advanced Modelling and Risk Analysis of RC Buildings with Sliding Isolation Systems Designed by the Italian Seismic Code" Applied Sciences 11, no. 4: 1938. https://doi.org/10.3390/app11041938
APA StylePonzo, F. C., Di Cesare, A., Telesca, A., Pavese, A., & Furinghetti, M. (2021). Advanced Modelling and Risk Analysis of RC Buildings with Sliding Isolation Systems Designed by the Italian Seismic Code. Applied Sciences, 11(4), 1938. https://doi.org/10.3390/app11041938
