Behaviour of the Steel Welded Grid during a Simplified Pullout Test in Fine Sand
Abstract
:Featured Application
Abstract
1. Introduction
2. Materials and Methods
2.1. Fine Sand
2.2. Welded Steel Grid
- -
- type 1: thick zinc coating,
- -
- type 2: zinc–aluminium alloy layer up to 350 g/m2,
- -
- type 3: a coating consisting of a pure zinc layer and an additional polymer layer, usually PVC.
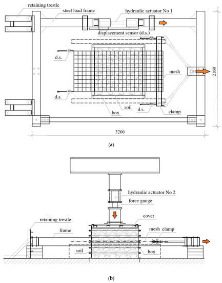
3. Test Procedure
- fill the steel box with soil in layers of approximately 100 mm,
- add an appropriate amount of water to the soil and mix evenly if it is necessary to obtain a water content close to the optimum water content (OWC),
- compact the soil using an electric plate compactor,
- the box should be filled according to points 1–3 until the height at which the slot in the box is reached Figure 4
- insert the steel mesh and the mounting flat into the clamping jaw and screw the two parts of the jaw gently together,
- remove the gap in the clamping jaws manually by pulling the mesh towards the steel box,
- make sure that the welded mesh does not touch any part of the steel box,
- screw the two parts of the mounting jaws tightly together,
- continue filling the steel box according to points 1–3, until a height of approximately 45 mm below the top edge of the steel box is reached,
- level the upper soil surface and install the cover, the force gauge, and hydraulic actuator No 2,
- apply a vertical load,
- place the hydraulic actuator No 1 in the load frame,
- check the correct position of the welded mesh in the box slot,
- install the electronic dial displacement sensors and reset them,
- apply the horizontal load gradually every 3.1 kN and after each load is applied and the reading stabilizes on the jaw displacement sensors, note indications of these sensors,
- conduct the test until the damage of the welded mesh or until the moment at which the indication on the hydraulic actuator No 1 stops increasing despite the mesh continuing to move out of the ground (reaching the maximum anchoring force) or the maximum extension of this hydraulic actuator is reached,
- recoil the hydraulic actuator, disassemble all elements of the stand, pull the two parts of the loading frame towards each other using a lashing strap to the original position, and start another test from point 1 of this procedure.
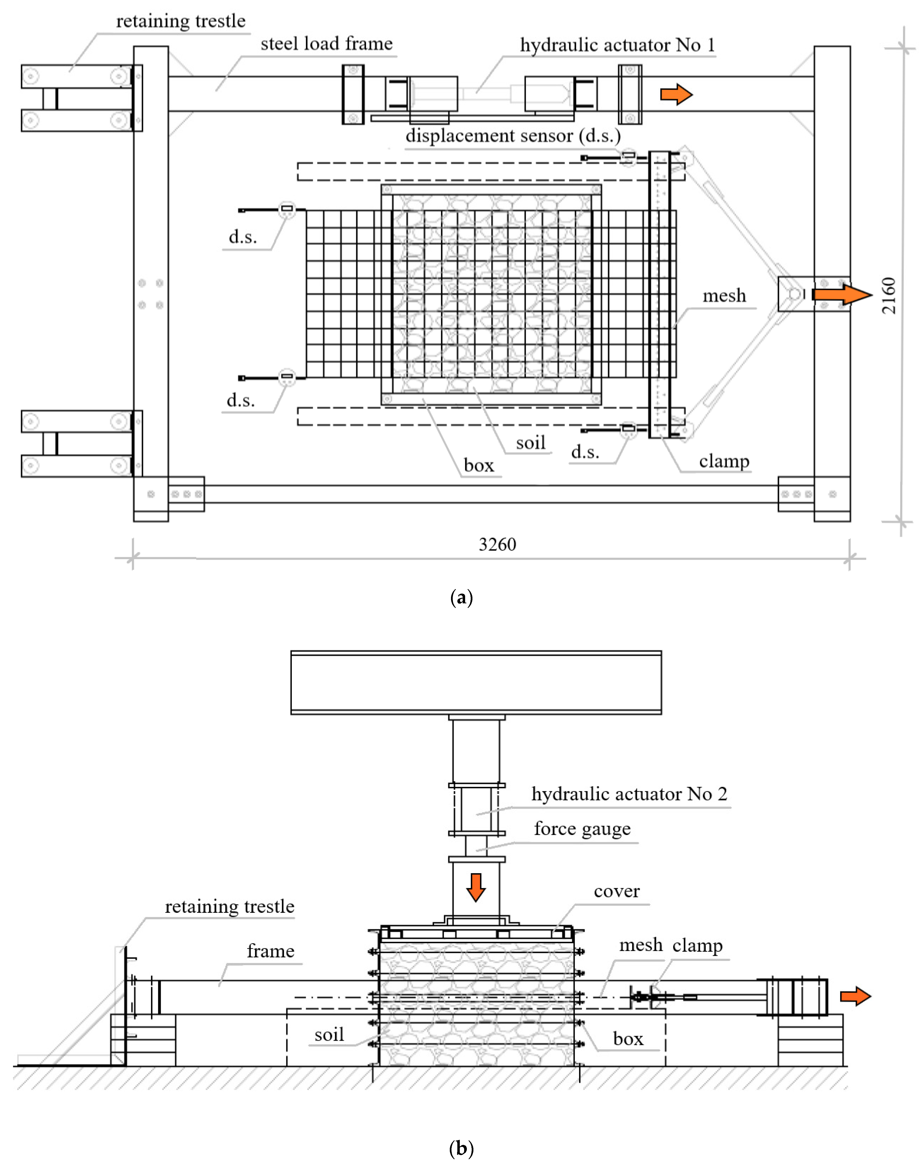
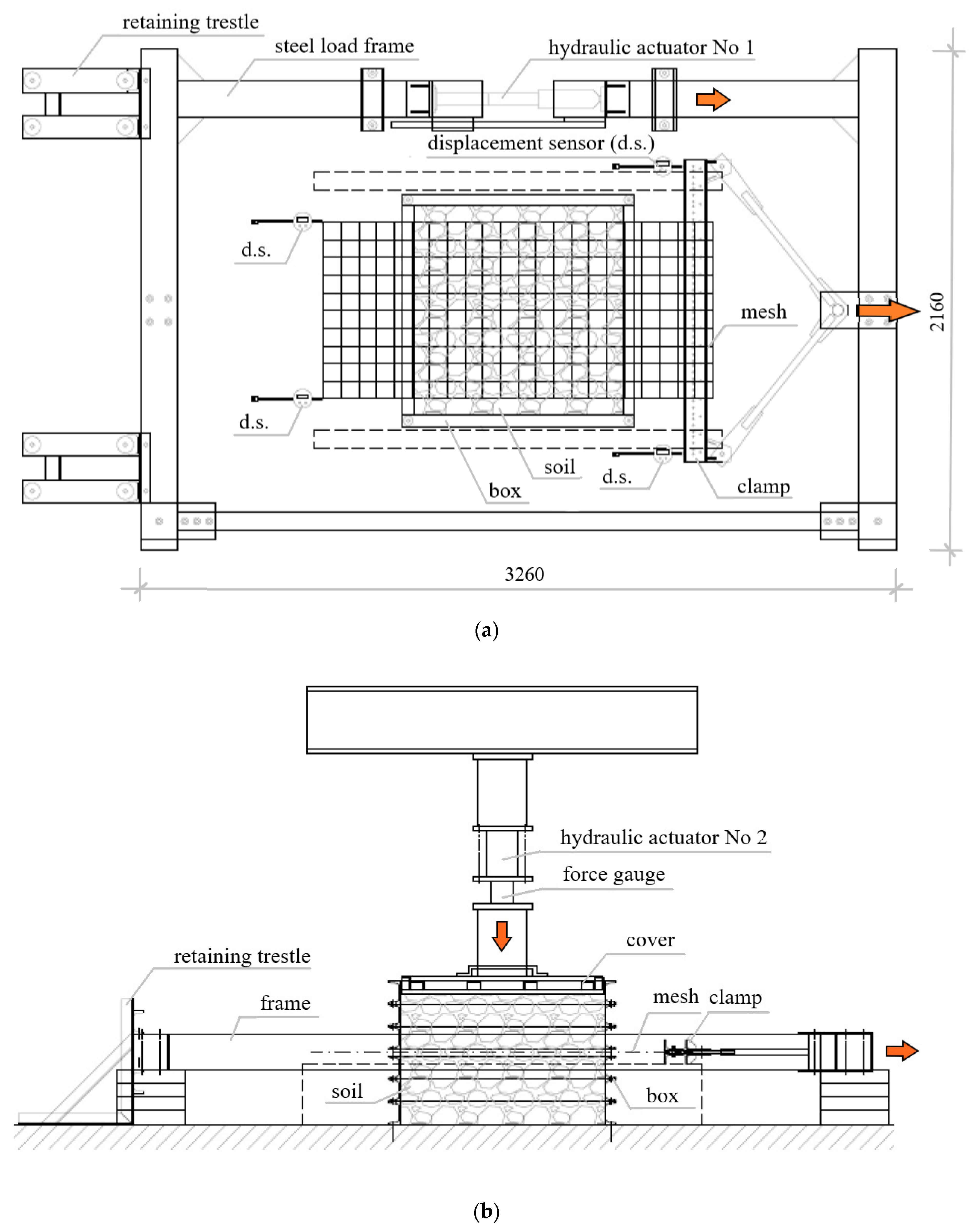
3.1. Test Stand
3.2. Test Conditions
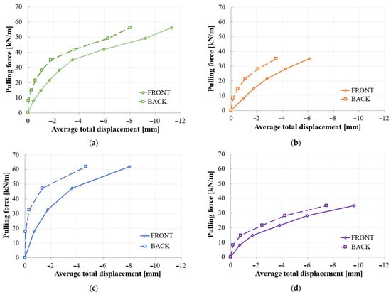
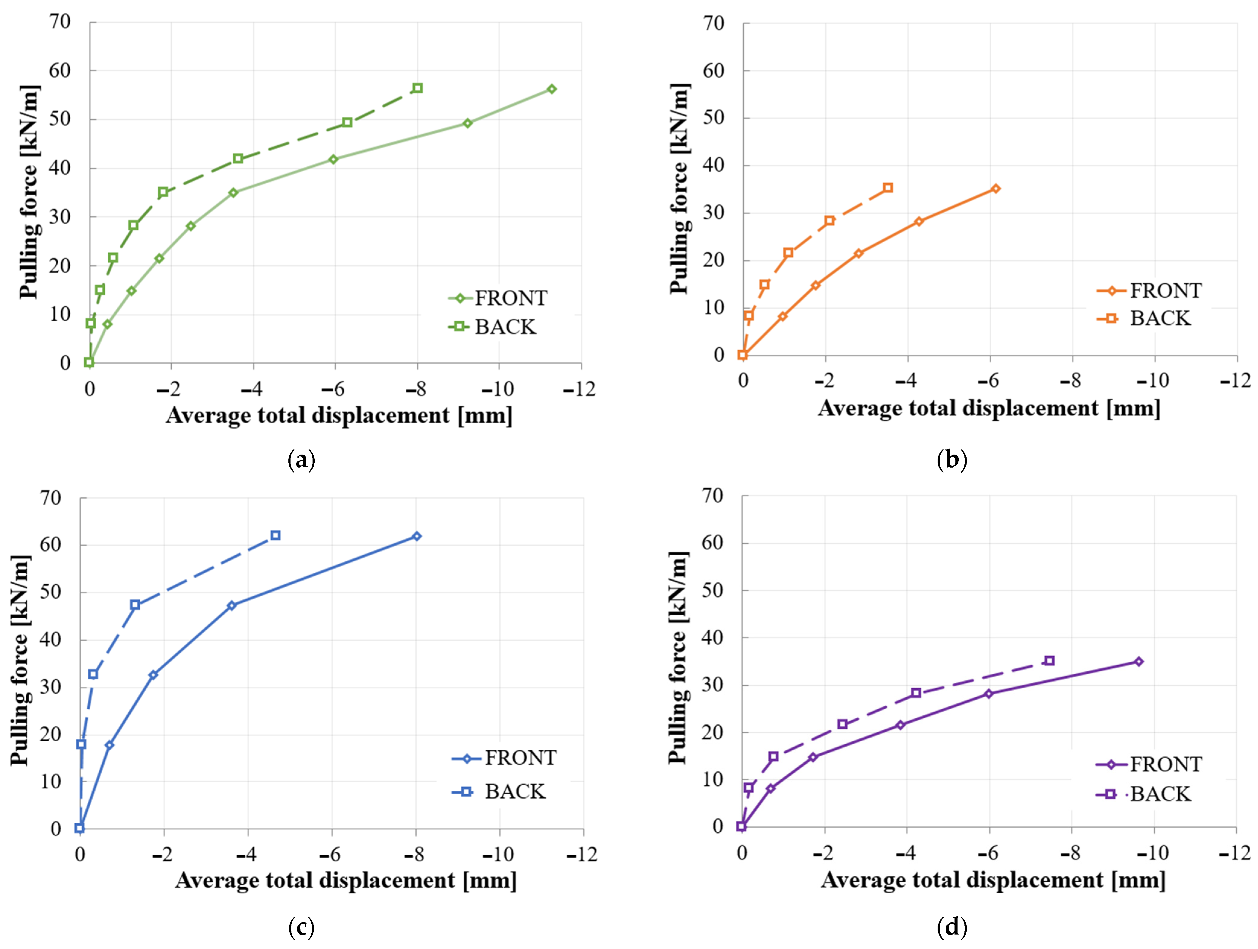
4. Results and Discussion
5. Conclusions
Author Contributions
Funding
Institutional Review Board Statement
Informed Consent Statement
Data Availability Statement
Acknowledgments
Conflicts of Interest
References
- Conti, L.; Barbari, M.; Monti, M. Design of sustainable agricultural buildings. A case study of a wine cellar in Tuscany, Italy. Buildings 2016, 6, 17. [Google Scholar] [CrossRef] [Green Version]
- Kania, M. Safe escarpment and slopes. Geoinżynieria Drog. Mosty Tunele 2013, 42, 28–33. Available online: https://inzynieria.com/geoinzynieria/artykuly/33008,bezpieczne-skarpy-i-zbocza (accessed on 20 February 2013). (In Polish).
- Nevečerel, H.; Pavešić, K.; Murgić, I.; Papa, I.; Landekić, M.; Lepoglavec, K. Possibilities of gabion application. Nova Meh. Sumar. 2016, 37, 59–68. Available online: https://hrcak.srce.hr/index.php?show=clanak&id_clanak_jezik=256570 (accessed on 1 September 2021). (In Croatian).
- Bouafia, A. Conception et Calcul des Ouvrages Géotechniques; Editions Pages Bleues Internationales: Bab Ezzouar, Algeria, 2011. (In French) [Google Scholar]
- Surowiecki, A. About the designing of gabion structures in communication construction. Drogownictwo 2001, 3, 81–86. Available online: http://drogownictwo.sitkrp.org.pl/index.php?option=com_content&view=article&id=136:streszczenia-abstract-do-numeru-3-2001-r&catid=10&Itemid=105&lang=pl (accessed on 1 September 2021). (In Polish).
- Toprak, B.; Sevim, Ö.; Kalkan, İ. Gabion walls and their use. Int. J. Adv. Mech. Civ. Eng. 2016, 3, 56–58. Available online: http://ijamce.iraj.in/paper_detail.php?paper_id=5392&name=Gabion_Walls_and_Their_Use (accessed on 1 September 2021).
- Surowiecki, A.; Kozłowski, W. Gabion retaining walls stabilizing road embankments in the light of model studies. Geoinżynieria Drog. Mosty Tunele 2011, 5, 34–38. Available online: https://inzynieria.com/geoinzynieria/artykuly/27232,gabionowe-sciany-oporowe-jako-stabilizacja-nasypow-komunikacyjnych-w-swietle-badan-modelowych (accessed on 1 September 2021). (In Polish).
- Craswell, T.; Akib, S. Reducing bridge pier scour using gabion mattresses filled with recycled and alternative materials. Eng 2020, 1, 188–210. [Google Scholar] [CrossRef]
- Jarominiak, A. Lightweight Retaining Structures, 3rd ed.; WKiŁ: Warsaw, Poland, 2000; Available online: https://www.naukowa.pl/Ksiazki/lekkie-konstrukcje-oporowe-173495 (accessed on 1 September 2021). (In Polish)
- Kosiński, T. Maccaferri solutions in the stabilization and reconstruction of landslides. Geoinżynieria Drog. Mosty Tunele 2013, 42, 34–38. Available online: https://inzynieria.com/geoinzynieria/artykuly/33009,rozwiazania-maccaferri-w-stabilizacji-i-rekonstrukcji-osuwisk (accessed on 1 September 2021). (In Polish).
- Najder, T.; Najder, A. Gabions and gabion mattresses as elements of environmentally friendly construction. Mater. Bud. 2005, 1, 87–91. Available online: https://www.sigma-not.pl/publikacja-10410-gabiony-i-materace-gabionowe-jako-elementy-budownictwa-przyjaznego-%C5%9Brodowisku-materialy-budowlane-2005-1.html (accessed on 1 September 2021). (In Polish).
- Balawejder, A.; Surowiecki, A.; Kozłowski, W. The embankment with gabion wall slope built-slope, damming up water. Drog. Lądowe Powietrzne Wodne 2011, 6, 36–43. (In Polish) [Google Scholar]
- Kosiński, T.; Michalski, T.; Bosak, J. Terramesh as a source of savings in the reconstruction of road embankments. Górnictwo i Geoinżynieria 2010, 34, 405–413. Available online: https://journals.bg.agh.edu.pl/GORNICTWO/index.php?vol=2010-02 (accessed on 1 September 2021). (In Polish).
- Kuc, M. Properties of gabions made of woven or welded mesh. Mag. Autostrady 2012, 7, 18–20. Available online: https://autostrady.elamed.pl/uploads/mau/articles/autostrady_artykul_2012_07_36125.pdf (accessed on 1 September 2021). (In Polish).
- Kuc, M.; Mika, A. Gabion retaining wall in the area of mining damage. Mater. Bud. 2004, 10, 85–86. Available online: https://www.sigma-not.pl/publikacja-2767-gabionowy-mur-oporowy-na-terenie-szk%C3%B3d-g%C3%B3rniczych-materialy-budowlane-2004-10.html (accessed on 1 September 2021). (In Polish).
- Pisarczyk, S. Geoengineering-Methods of Soil Modification, 3rd ed.; Oficyna Wydawnicza Politechniki Warszawskiej (OWPW): Warsaw, Poland, 2020; Available online: https://www.ibuk.pl/fiszka/221801/geoinzynieria-metody-modyfikacji-podloza-gruntowego.html (accessed on 1 September 2021). (In Polish)
- Sobala, D.; Rybak, J. Role to be played by independent geotechnical supervision in the foundation for bridge construction. IOP Conf. Ser. Mater. Sci. Eng. 2017, 245, 022073. [Google Scholar] [CrossRef]
- Campelo, N.; Filho, M.; Valadares, O.; Paes, M.; Aragao, A. Georeferenced monitoring of displacements of gabion walls. Geotech. Eng. 2018, 171, 64–77. [Google Scholar] [CrossRef]
- Construction Report 2014: Gabion Retaining Structure, A4 Motorway Ruda Śląska, Poland; Maccaferri Company Poland: Warsaw, Poland, 2014; Available online: https://www.maccaferri.com/pl/produkty/gabiony-2/. (accessed on 1 September 2021). (In Polish)
- Koussa, F.; Defrance, J.; Jean, P.; Blanc-Benon, P. Acoustic performance of gabions noise barriers: Numerical and experimental approaches. Appl. Acoust. 2013, 74, 189–197. [Google Scholar] [CrossRef]
- Tang, V.T.; Fu, D.; Ngoc Binh, T.; Rene, E.R.; Sang, T.T.T.; Singh, R.P. An investigation on performance and structure of ecological revetment in a sub-tropical area: A case study on Cuatien River, Vinh City, Vietnam. Water 2018, 10, 636. [Google Scholar] [CrossRef] [Green Version]
- Fan, Y.; Yang, Z.; Li, M.; Zhang, Z.; Li, D. Comparative analysis on environmental adaptability of two types of bank stabilization structures along the middle and lower reaches of the Yangtze River. Sustainability 2020, 12, 7991. [Google Scholar] [CrossRef]
- Lin, Y.L.; Yang, G.L.; Li, Y.; Zhao, L.H. Engineering behaviors of reinforced gabion retaining wall based on laboratory test. J. Cent. South Univ. 2010, 17, 1351–1356. [Google Scholar] [CrossRef]
- Kosiński, T. Retaining Structures and Embankments Made of Soil Reinforced with Steel Elements. In seminar materials of IBDiM and PZWFS on Steel Structures in Geotechnics; unpublished. (In Polish)
- Ciomcia, B. Bridgeheads of the engineering structures made of a reinforced soil. Mag. Autostrady 2014, 8-9, 64–67. Available online: https://autostrady.elamed.pl/uploads/mau/articles/20956/64-67.pdf. (accessed on 1 September 2021).
- Jayasree, P.K. Performance of Gabion Faced Reinforced Earth Retaining Walls. Ph.D. Thesis, Cochin University of Science and Technology, Kochi, India, 2008. Available online: http://dyuthi.cusat.ac.in/purl/2821 (accessed on 1 April 2008).
- Koerner, R.M. Designing with Geosynthetics, 5th ed.; Pearson College Div: Prentice-Hall, NJ, USA, 18 April 2005; Available online: https://www.slideshare.net/AgungNoorsamsi/designing-with-geosynthetics-by-koerner-5th-edition-2005. (accessed on 1 September 2021).
- Koerner, R.M.; Soong, T.Y. Geosynthetic reinforced segmental retaining walls. Geotext. Geomembr. 2001, 19, 359–386. [Google Scholar] [CrossRef]
- Ćwirko, M. The Analysis of the Cooperation of Steel Welded Meshes with Soil in Retaining Structures of Gabion Walls Technology. Ph.D. Thesis, Silesian University of Technology, Gliwice, Poland, 1 September 2019. Available online: https://www.researchgate.net/publication/336141586_Analiza_wspolpracy_stalowych_siatek_zgrzewanych_z_gruntem_w_konstrukcjach_oporowych_wykonanych_w_technologii_murow_gabionowych (accessed on 1 September 2021). (In Polish).
- Bilgin, Ö. Failure mechanisms governing reinforcement length of geogrid reinforced soil retaining walls. Eng. Struct. 2009, 31, 1967–1975. [Google Scholar] [CrossRef]
- Sułkowska, A. The Model Tensil Tests Analysis of the Welded Meshes in the ZincAlu Coating or Coated with PVC, Embedded in a Fine Sand. M.Sc. Thesis, Silesian University of Technology, Gliwice, Poland, 2018. (In Polish). [Google Scholar]
- PN-EN 10223-8:2014-03. Steel Wire and Wire Products for Fencing and Netting. In Welded Mesh Gabion Products; PKN: Warszawa, Poland, 2014. (In Polish) [Google Scholar]
- PN-EN 10244-2:2010. Steel Wire and Wire Products. Non-ferrous Metallic Coatings on Steel Wire. In Zinc or Zinc Alloy Coatings; PKN: Warszawa, Poland, 2010. (In Polish) [Google Scholar]
- PN-EN 10245-2:2011. Steel Wire and Wire Products. Organic Coatings on Steel Wire. In PVC Finished Wire; PKN: Warszawa, Poland, 2011. (In Polish) [Google Scholar]
- Sampaco, C.L. Behavior of Welded Wire Mesh Reinforced Soil Walls from Field Evaluation and Finite Element Simulation. Ph.D. Thesis, Utah State University, Logan, UT, USA, 1996. Available online: http://rizal.library.ateneo.edu/index.php/node/9734. (accessed on 1 September 2021).
- PN-EN 13738:2006. Geotextiles and Geotextile-Related Products. In Determination of Pullout Resistance in Soil; PKN: Warszawa, Poland, 2006. (In Polish) [Google Scholar]
- Bolt, A.; Duszyńska, A. Pullout testing of geosynthetics embedded in soil in large scale pullout apparatus. Zesz. Nauk. Politech. Śląskiej 2003, 1573, 387–394. Available online: http://delibra.bg.polsl.pl/Content/40386/BCPS_44148_2003_Badania-oporu-geosyn.pdf. (accessed on 1 September 2021). (In Polish).
- Ezzein, F.M.; Bathurst, R.J. A new approach to evaluate soil-geosynthetic interaction using a novel pullout test apparatus and transparent granular soil. Geotext. Geomembr. 2014, 42, 246–255. [Google Scholar] [CrossRef]
- Prashanth, V.; Murali Krishna, A.; Dash, S.K. Pullout tests using modified direct shear test setup for measuring soil–geosynthetic interaction parameters. Int. J. Geosynth. Ground Eng. 2016, 2, 10. [Google Scholar] [CrossRef] [Green Version]
- Park, J.B.; Kim, D.K.; Yang, S.B.; Kim, J.H. Pullout characteristics of geosynthetics reinforced earth using multilayer spreading pullout test. Adv. Mater. Sci. Eng. 2017, 2017, 9485826. [Google Scholar] [CrossRef] [Green Version]
- Rahmaninezhad, S.; Han, J.; Kakrasul, J.; Weldu, M. Stress distributions and pullout responses of extensible and inextensible reinforcement in soil using different normal loading methods. Geotech. Test. J. 2019, 42, 1606–1623. [Google Scholar] [CrossRef]
- Kawalec, J. Aggregate–Geogrid Interaction in Stabilisation Applications. How far Standard Laboratory Index Test Results are from Reality. In In Proceedings of the 11th International Conference on Geosynthetics 2018 (11ICG), Seoul, Korea, 16–21 September 2018; Korean Geosynthetics Society: Seoul, Korea, 2018; Volume 4, pp. 3142–3149. Available online: https://www.researchgate.net/publication/328289757_Aggregate-geogrid_interaction_in_stabilisation_applications_How_far_standard_laboratory_index_test_results_are_from_reality (accessed on 1 September 2021).
- Kim, J. Development and Applicability of Multi-layer Pullout Apparatus System. Ph.D. Thesis, Sunchon National University, Suncheon, Korea, 2008. [Google Scholar]
- Yuan, Z.; Chua, K.M. Numerical evaluation the pullout box method for studying soil-reinforcement interaction. Transp. Res. Rec. 1990, 1278, 116–124. Available online: http://onlinepubs.trb.org/Onlinepubs/trr/1990/1278/1278-015.pdf. (accessed on 1 September 2021).
- Lajevardi, S.H.; Dias, D.; Racinais, J. Analysis of soil-welded steel mesh reinforcement interface interaction by pull-out tests. Geotext. Geomembr. 2013, 40, 48–57. [Google Scholar] [CrossRef]
- Bergado, D.T.; Macatol, K.C.; Amin, N.U.; Chai, J.C.; Alfaro, M.C.; Anderson, L.R. Interaction of lateritic soil and steel grid reinforcement. Can. Geotech. J. 2011, 30, 376–384. [Google Scholar] [CrossRef]
- Bergado, D.T.; Teerawattanasuk, C. Analytical models for predicting the pullout capacity and interaction between hexagonal wire mesh and silty sand backfill. J. Appl. Sci. Eng. 2001, 4, 227–238. [Google Scholar] [CrossRef]
- Teerawattanasuk, C.; Bergado, D.T.; Kongkitkul, W. Analytical and numerical modeling of pullout capacity and interaction between hexagonal wire mesh and silty sand backfill under an in-soil pullout test. Can. Geotech. J. 2003, 40, 886–899. [Google Scholar] [CrossRef]
- Woźniak, L. A Retaining Wall Made of Reinforced Soil in the Technology of a Gabion Wall Reinforced with a Steel Welded Mesh. M.Sc. Thesis, Silesian University of Technology, Gliwice, Poland, 2019. (In Polish). [Google Scholar]









| Designation | Wire Diameter | Mesh Opening | Coating |
|---|---|---|---|
| Zn + PVC 4.30 mm | 4.30 mm (ext.)/3.80 mm (int.) | 76.2 × 76.2 mm | Type 3 |
| Zn + PVC 3.20 mm | 3.20 mm (ext.)/2.70 mm (int.) | 76.2 × 76.2 mm | Type 3 |
| ZnAl 4.50 mm | 4.50 mm | 76.2 × 76.2 mm | Type 2 |
| ZnAl 3.00 mm | 3.00 mm | 76.2 × 76.2 mm | Type 2 |
| Mesh Type | Pullout Force Tmax [kN/m] |
|---|---|
| Zn + PVC 4.30 mm | 55 |
| Zn + PVC 3.20 mm | 35 |
| ZnAl 4.50 mm | 60 |
| ZnAl 3.00 mm | 35 |
| Researchers | Type of Soil | Normal Pressure Box Dimensions | Reinforcement |
|---|---|---|---|
| Yuan & Chua [44] | fine to medium sand (FSa–MSa) ø = 42° c = 0 kPa | σn = 5–35 kPa 760 mm × 710 mm × 610 mm | Geolon 200 (woven geotextile) Tensar SR2 (geogrid) |
| Lajevardi, Dias & Racinais [45] | medium sand (MSa) ø = 36.5° c = 2 kPa | σn = 20–140 kPa 2000 mm × 1100 mm × 800 mm | Welded steel mesh (wire diameter from 8 to 12 mm, opening from 125 to 185 mm) |
| Bergado et al. [46] | lateric soil ø = 15–66° c = 11–80 kPa | σn = 2–130 kPa 1300 mm × 800 mm × 500 mm | Welded steel mesh (wire diameter from 6.3 to 12.7 mm, opening from 152 to 225 mm) |
| Bergado & Teerawattanasuk [47] | silty sand (siSa) ø = 30° c = 10 kPa | σn = 55–105 kPa 1270 mm × 760 mm × 508 mm | Woven steel mesh PVC coated (wire diameter 2.7 mm, opening size 80 × 100 mm) |
| Ćwirko & Jastrzębska (this study) | fine sand (FSa) ø = 24° c = 0.9 kPa | σn = 60 kPa 900 mm × 900 mm × 630 mm | Welded steel mesh PVC or ZnAl coated (wire diameter from 2.7 to 4.5 mm, opening 76.2 × 76.2 mm) |
| Mesh Type | Friction Coefficients between the Reinforcement and the Soil μk [-] |
|---|---|
| Zn + PVC 4.30 mm | 0.61 |
| Zn + PVC 3.20 mm | 0.39 |
| ZnAl 4.50 mm | 1.47 |
| ZnAl 3.00 mm | 0.39 |
Publisher’s Note: MDPI stays neutral with regard to jurisdictional claims in published maps and institutional affiliations. |
© 2021 by the authors. Licensee MDPI, Basel, Switzerland. This article is an open access article distributed under the terms and conditions of the Creative Commons Attribution (CC BY) license (https://creativecommons.org/licenses/by/4.0/).
Share and Cite
Ćwirko, M.; Jastrzębska, M. Behaviour of the Steel Welded Grid during a Simplified Pullout Test in Fine Sand. Appl. Sci. 2021, 11, 9147. https://doi.org/10.3390/app11199147
Ćwirko M, Jastrzębska M. Behaviour of the Steel Welded Grid during a Simplified Pullout Test in Fine Sand. Applied Sciences. 2021; 11(19):9147. https://doi.org/10.3390/app11199147
Chicago/Turabian StyleĆwirko, Marcin, and Małgorzata Jastrzębska. 2021. "Behaviour of the Steel Welded Grid during a Simplified Pullout Test in Fine Sand" Applied Sciences 11, no. 19: 9147. https://doi.org/10.3390/app11199147
APA StyleĆwirko, M., & Jastrzębska, M. (2021). Behaviour of the Steel Welded Grid during a Simplified Pullout Test in Fine Sand. Applied Sciences, 11(19), 9147. https://doi.org/10.3390/app11199147
