Analysis of the Effect of Nano-SiO2 and Waterproofing Agent on the Water Transportation Process in Mortar Using NMR
Abstract
1. Introduction
2. Materials and Methods
2.1. Materials and Samples
2.2. Experimental Methods
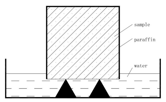
2.2.1. Capillary Water Absorption Test
2.2.2. NMR-Based Stratification Saturation Test
2.3. Calculation Process
2.3.1. Capillary Water Absorption Coefficient
2.3.2. Expression and Empirical Formula of Water Diffusion Coefficient
2.3.3. Relationship between Capillary Water Absorption Coefficient and Water Diffusion Coefficient
3. Results and Discussion
3.1. Capillary Water Absorption Test Analysis
3.2. NMR Saturation Test Analysis
4. Conclusions
Author Contributions
Funding
Conflicts of Interest
Abbreviations
| NS | Nano-SiO2 |
| NMR | Nuclear magnetic resonance |
| KIM | Krystol internal membrane |
| PC | Polycarboxylic acid superplasticizer |
References
- Van Hees, R.P.J.; Binda, L.; Papayianni, I.; Toumbakari, E. Characterisation and damage analysis of old mortars. Mater. Struct. 2004, 37, 644–648. [Google Scholar] [CrossRef]
- Cerny, R.; Rovnanikova, P. Transport Processes in Concrete; Spon Press: London, UK; New York, NY, USA, 2002. [Google Scholar]
- Glanville, W.H. The Permeability of Portland Cement Concrete; Building Research Station: Watford, UK, 1931. [Google Scholar]
- Feldman, R.F.R.; Sereda, P.S.P. A new model for hydrated Portland cement and its practical implications. Eng. J. Can. 1970, 53, 53–59. [Google Scholar]
- Hall, C. Water sorptivity of mortars and concretes: A review. Mag. Concr. Res. 1989, 41, 51–61. [Google Scholar] [CrossRef]
- Zhou, C. General solution of hydraulic diffusivity from sorptivity test. Cem. Concr. Res. 2014, 58, 152–160. [Google Scholar] [CrossRef]
- Bear, J. Dynamics of Fluids in Porous Media. Soil Sci. 1975, 120, 162–163. [Google Scholar] [CrossRef]
- Carpenter, T.A.; Davies, E.S.; Hall, C.; Hall, L.D.; Hoff, W.D.; Wilson, M.A. Capillary water migration in rock: Process and material properties examined by NMR imaging. Mater. Struct. 1993, 26, 286–292. [Google Scholar] [CrossRef]
- Wormald, R.; Britch, A. Methods of measuring moisture content applicable to building materials. Build. Sci. 1969, 3, 135–145. [Google Scholar] [CrossRef]
- Cui, Y.J.; Tang, A.M.; Loiseau, C.; Delage, P. Determining the unsaturated hydraulic conductivity of a compacted sand–bentonite mixture under constant-volume and free-swell conditions. Phys. Chem. Earth 2008, 33, S462–S471. [Google Scholar] [CrossRef]
- Ohdaira, E.; Masuzawa, N. Water content and its effect on ultrasound propagation in concrete—The possibility of NDE. Ultrasonics 2000, 38, 546–552. [Google Scholar] [CrossRef]
- Soutsos, M.; Bungey, J.; Millard, S.; Shaw, M.; Patterson, A. Dielectric properties of concrete and their influence on radar testing. NDT E Int. 2001, 34, 419–425. [Google Scholar] [CrossRef]
- Sbartai, Z.M.S.; Laurens, S.L.; Balayssac, J.P.; Ballivy, G.; Arliguie, G. Effect of concrete moisture on radar signal amplitude. ACI Mater. J. 2006, 103, 419–426. [Google Scholar]
- Stuckes, A.D.; Simpson, A. The effect of moisture on the thermal conductivity of aerated concrete. Build. Serv. Eng. Res. Technol. 1985, 6, 49–53. [Google Scholar] [CrossRef]
- Khan, M.I. Factors affecting the thermal properties of concrete and applicability of its prediction models. Build. Environ. 2002, 37, 607–614. [Google Scholar] [CrossRef]
- Craig, C. Infrared thermography a tool for locating moisture infiltration in masonry walls. Concr. Int. 2005, 8, 45–48. [Google Scholar]
- Hundt, J.; Buschmann, J. Moisture measurement in concrete. Mater. Struct. 1971, 4, 253–256. [Google Scholar] [CrossRef]
- Fabbri, A.; Fen-Chong, T.; Coussy, O. Dielectric capacity, liquid water content, and pore structure of thawing–freezing materials. Cold Reg. Sci. Technol. 2006, 44, 52–66. [Google Scholar] [CrossRef]
- Gummerson, R.J.; Hall, C.; Hoff, W.D.; Hawkes, R.; Holland, G.N.; Moore, W.S. Unsaturated water flow within porous materials observed by NMR imaging. Nat. Cell Biol. 1979, 281, 56–57. [Google Scholar] [CrossRef]
- Matzkanin, G.A.; Gardner, C.G. Nuclear magnetic resonance sensors for moisture measurement in roadways. Transp. Res. Rec. 1975, 532, 77–86. [Google Scholar]
- Pel, L.; Kopinga, K.; Brocken, H. Moisture Transport in Porous Building Materials. Heron 1996, 41, 95–105. [Google Scholar]
- Kissel, K.; KillS, M. Experimental determination of building materials properties for moisture calculation. In Proceedings of the International Workshop: Mass-Energy Transfer and Deterioration of Building, Components-Models and Characterisation of Transfer Properties, Paris, France, 9–11 January 1995; pp. 322–342. [Google Scholar]
- Valckenborg, R.R.; Pel, L.L.; Hazrati, K.; Kopinga, K.K.; Marchand, J. Pore water distribution in mortar during drying as determined by NMR. Mater. Struct. 2001, 34, 599–604. [Google Scholar] [CrossRef]
- Nunes, C.; Pel, L.L.; Kunecký, J.; Slížková, Z. The influence of the pore structure on the moisture transport in lime plaster-brick systems as studied by NMR. Constr. Build. Mater. 2017, 142, 395–409. [Google Scholar] [CrossRef]
- Stelzner, L.; Powierza, B.; Oesch, T.; Dlugosch, R.; Weise, F. Thermally-induced moisture transport in high-performance concrete studied by X-ray-CT and 1H-NMR. Constr. Build. Mater. 2019, 224, 600–609. [Google Scholar] [CrossRef]
- Muhammad, N.Z.; Keyvanfar, A.; Majid, M.Z.A.; Shafaghat, A.; Mirza, J. Waterproof performance of concrete: A critical review on implemented approaches. Constr. Build. Mater. 2015, 101, 80–90. [Google Scholar] [CrossRef]
- Vipulanandan, C.; Liu, J. Performance of Coated Concrete in Wastewater Environment. Pipeline Eng. Constr. 2004, 713, 1–11. [Google Scholar]
- Gerdes, A.; Zhishan, H. Applicationof water repellent treatment systemsforthe protectionof offshore constructions. In Concrete for Transportation Infrastructure; Thomas Telford: London, UK, 2005. [Google Scholar]
- Selvaraj, R.; Iyer, S. Studies on the evaluation of the performance of organic coatings used for the prevention of corrosion of steel rebars in concrete structures. Prog. Org. Coat. 2009, 64, 454–459. [Google Scholar] [CrossRef]
- Toutanji, H.; Choi, H.; Wong, D.; Gilbert, J.; Alldredge, D. Applying a polyurea coating to high-performance organic cementitious materials. Constr. Build. Mater. 2013, 38, 1170–1179. [Google Scholar] [CrossRef]
- Lindgreen, H.; Geiker, M.R.; Krøyer, H.; Springer, N.; Skibsted, J. Microstructure engineering of Portland cement pastes and mortars through addition of ultrafine layer silicates. Cem. Concr. Compos. 2008, 30, 686–699. [Google Scholar] [CrossRef]
- Jon Belkowitz, D.A. An investigation of nano silica (SiO2) in the cement hydration process. In Concrete Sustainability Conference 2010; National Ready Mixed Concrete Association: Silver Spring, MA, USA, 2010. [Google Scholar]
- Ghafari, E.; Costa, H.; Júlio, E.; Portugal, A.; Durães, L. The effect of nanosilica addition on flowability, strength and transport properties of ultra high performance concrete. Mater. Des. 2014, 59, 1–9. [Google Scholar] [CrossRef]
- Quercia, G.G.; Hüsken, G.G.; Brouwers, H.J. Water demand of amorphous nano silica and its impact on the workability of cement paste. Cem. Concr. Res. 2012, 42, 344–357. [Google Scholar] [CrossRef]
- Kim, T.; Hong, S.; Seo, K.Y.; Kang, C. Characteristics of Ordinary Portland Cement Using the New Colloidal Nano-Silica Mixing Method. Appl. Sci. 2019, 9, 4358. [Google Scholar] [CrossRef]
- Faizal, M.J.M.; Hamidah, M.S.; Norhasri, M.S.M.; Noorli, I.; Hafez, M.P.M.E. Chloride Permeability of Nanoclayed Ultra-High Performance Concrete; Springer: Berlin/Heidelberg, Germany, 2015; pp. 613–623. [Google Scholar]
- Al-Salami, A.E.; Shoukry, H.; Morsy, M.S. Thermo-Mechanical Characteristics of Blended White Cement Pastes Containing Ultrafine Nano Clays. Int. J. Green Nanotechnol. 2012, 4, 516–527. [Google Scholar] [CrossRef]
- Heikal, M.; Ali, A.; Ismail, M.; Ibrahim, S.A.N. Behavior of composite cement pastes containing silica nano-particles at elevated temperature. Constr. Build. Mater. 2014, 70, 339–350. [Google Scholar] [CrossRef]
- Morsy, M.; Alsayed, A.; Aqel, M. Effect of nano-clay on mechanical properties and microstructures of ordinary Portland cement mortar. Int. J. Civ. Environ. Eng. 2010, 10, 21–25. [Google Scholar]
- Li, H.; Xiao, H.-G.; Yuan, J.; Ou, J. Microstructure of cement mortar with nano-particles. Compos. Part B Eng. 2004, 35, 185–189. [Google Scholar] [CrossRef]
- Rosenqvist, J. Surface Chemistry of Al and Si (Hydr)Oxides, With Emphasis on Nano-Sized Gibbsite (A-Al (OH)3). Ph.D. Thesis, Umeå University, Umeå, Sweden, 2002. [Google Scholar]
- Richardson, I. The nature of C-S-H in hardened cements. Cem. Concr. Res. 1999, 29, 1131–1147. [Google Scholar] [CrossRef]
- Lian, S.; Meng, T.; Wang, M.; Yu, H. Effect of Nano-SiO2 on the Mechanical Properties, Microstructure, and Hydration Process of Cementitious Materials Incorporating Hydrophobic Admixture. J. Mater. Civ. Eng. 2020, 32, 04020018. [Google Scholar] [CrossRef]
- Hall, C.; Kalimeris, A.N. Water movement in porous building materials-V.Absorpstion and shedding of rain by building surfaces. Build. Environ. 1982, 17, 257–262. [Google Scholar] [CrossRef]
- Hall, C.; Hoff, W.D.; Skeldon, M. The sorptivity of brick: Dependence on the initial water content. J. Phys. D Appl. Phys. 1983, 16, 1875–1880. [Google Scholar] [CrossRef]
- Richards, L.A. Capillary conduction of liquids through porous mediums. Physics 1931, 1, 318–333. [Google Scholar] [CrossRef]
- Kutilek, M.; Valentova, J. Sorptivity approximations. Transp. Porous Media 1986, 1, 57–62. [Google Scholar] [CrossRef]
- Campbell, G.S. A simple method for determining unsaturated conductivity from moisture retention data. Soil Sci. 1974, 117, 311–314. [Google Scholar] [CrossRef]
- Leech, C.; Lockington, D.; Dux, P. Unsaturated diffusivity functions for concrete derived from NMR images. Mater. Struct. 2003, 36, 413–418. [Google Scholar] [CrossRef]
- Parlance, M.B.; Prasad, S.N.; Parlange, M.; Römkens, M.J.M. Extension of the Heaslet-Alksne Technique to arbitrary soil water diffusivities. Water Resour. Res. 1992, 28, 2793–2797. [Google Scholar] [CrossRef]
- Lockington, D.; Parlange, J.-Y.; Dux, P. Sorptivity and the estimation of water penetration into unsaturated concrete. Mater. Struct. 1999, 32, 342–347. [Google Scholar] [CrossRef]













| CaO/SiO2 | C3S + C2S (%) | SO3 (%) | MgO (%) | Chloride (%) | Active Mixed Materials (%) |
|---|---|---|---|---|---|
| ≥2.2 | ≥75 | ≤3.5 | ≤5.0 | ≤0.06 | >5 and ≤20 |
| Type | Exterior | Average Particle Size (nm) | Content (%) | Solvent | pH |
|---|---|---|---|---|---|
| VK-S01B | Translucent liquid | 13 | 30.1 | Water | 10.2 |
| Color | Texture | Particle Size (μm) | Relative Bulk Density (g/cm3) | Specific Gravity |
|---|---|---|---|---|
| Gray | Powder | 40–150 | ≈1.4 | ≈2.8 |
| Group | Cement | Water | Sand | KIM | NS | PC |
|---|---|---|---|---|---|---|
| J | 450 | 225 | 1350 | 0 | 0 | 0 |
| K | 450 | 225 | 1350 | 9 | 0 | 0.2 |
| KS | 450 | 225 | 1350 | 9 | 6.75 | 0.8 |
| Group | Capillary Water Absorption Coefficient | Saturated Water Content | Exponential | Power |
|---|---|---|---|---|
| J | 1.02454 | 10.22809899 | 8.15 × 10−5 | 0.037460 |
| K | 1.02159 | 9.692812897 | 9.02 × 10−5 | 0.041472 |
| KS | 0.76777 | 12.742302 | 2.95 × 10−5 | 0.013554 |
Publisher’s Note: MDPI stays neutral with regard to jurisdictional claims in published maps and institutional affiliations. |
© 2020 by the authors. Licensee MDPI, Basel, Switzerland. This article is an open access article distributed under the terms and conditions of the Creative Commons Attribution (CC BY) license (http://creativecommons.org/licenses/by/4.0/).
Share and Cite
Meng, T.; Wei, H.; Ying, K.; Wang, M. Analysis of the Effect of Nano-SiO2 and Waterproofing Agent on the Water Transportation Process in Mortar Using NMR. Appl. Sci. 2020, 10, 7867. https://doi.org/10.3390/app10217867
Meng T, Wei H, Ying K, Wang M. Analysis of the Effect of Nano-SiO2 and Waterproofing Agent on the Water Transportation Process in Mortar Using NMR. Applied Sciences. 2020; 10(21):7867. https://doi.org/10.3390/app10217867
Chicago/Turabian StyleMeng, Tao, Huadong Wei, Kanjun Ying, and Menghua Wang. 2020. "Analysis of the Effect of Nano-SiO2 and Waterproofing Agent on the Water Transportation Process in Mortar Using NMR" Applied Sciences 10, no. 21: 7867. https://doi.org/10.3390/app10217867
APA StyleMeng, T., Wei, H., Ying, K., & Wang, M. (2020). Analysis of the Effect of Nano-SiO2 and Waterproofing Agent on the Water Transportation Process in Mortar Using NMR. Applied Sciences, 10(21), 7867. https://doi.org/10.3390/app10217867
