The Indoor Environment at the University Equestrian Facility in the Autumn Semester: A Case Study
Simple Summary
Abstract
1. Introduction
2. Materials and Methods
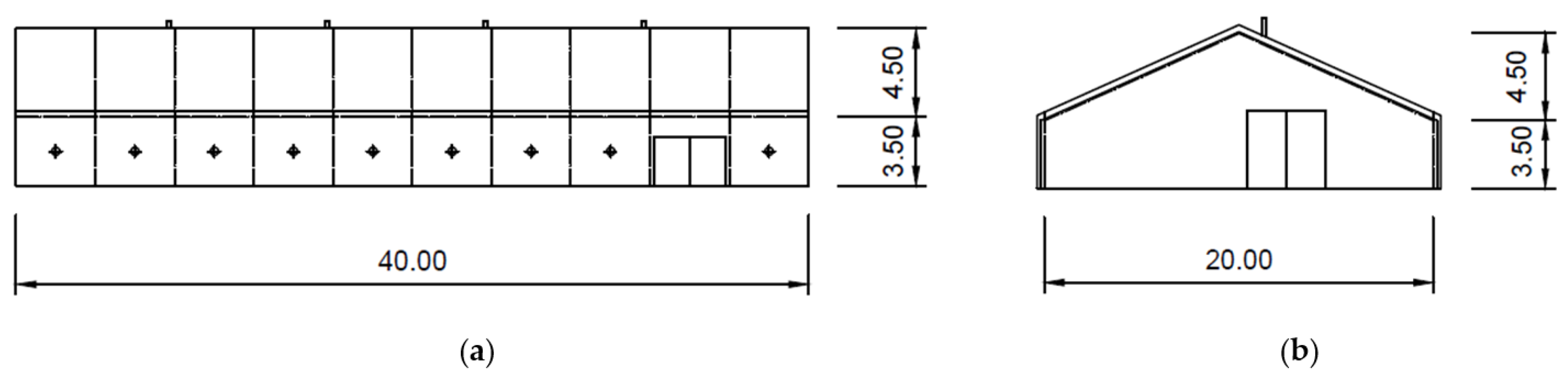
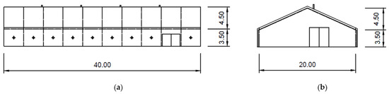
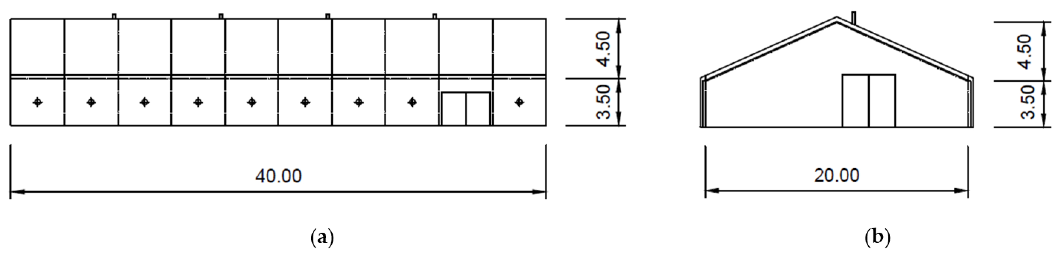
2.1. Description of the Farm
- Horse Breeding and Riding,
- Ethics and Welfare of Horse Breeding,
- Equine-assisted Therapy/activities,
- Buildings for Horse Husbandry,
- Equestrian Sport and Horse Riding,
- Training of Horse and Rider.
2.2. Data Acquisition
- Cleaning and removal of manure from boxes.
- Bedding the boxes with straw.
- Bedding the boxes with sawdust and wood shavings.
- Sweeping and cleaning of the central corridor.
- Empty indoor arena without horses, slightly wet surface covered by sand and a mixture with a small quantity of geotextile; summer conditions.
- Horses in external riding paddock–arena (trotting horses around).
- Age;
- Gender;
- How many hours a week do you usually spend in the stables/riding hall (less than 1 h per week, 1–5 h per week, 5–10 h per week, more than 10 h per week);
- Have you felt repeatedly (more than 3 times a year) any of the following difficulties over the past 2 years (you can mark more possibilities: dry/irritating cough, moist/productive cough, (allergic) rhinitis, shortness of breath/difficulty breathing, none of the above);
- Smoking (non-smoker, former smoker, smoker-up to 10 cigarettes a day, heavy smoker—10 or more cigarettes a day); and
- Previous medical history (more possibilities: asthma, allergies, chronic obstructive pulmonary disease, none of the above).
2.3. Analysis of Basic Properties of Bedding Materials
2.4. Data Processing
3. Results
3.1. Long-Term Registration Measurement of the Basic Parameters of the Indoor Environment
3.1.1. Results of Measurements of the Indoor Environment in the Stable
3.1.2. Analysis of the Indoor Environment in the Stable During a Working Day
3.1.3. Analysis of the Indoor Environment in the Stable During a Non-Working Day
3.2. Measurement of Airborne Dust
3.2.1. Results of Measurements of Bulk Density and Moisture of Bedding Materials
3.2.2. Results of the Questionnaire Survey
3.2.3. Results of Airborne Dust Measurement
3.3. Measurement of the Noise Level in the Stable
4. Discussion
5. Conclusions
Author Contributions
Funding
Institutional Review Board Statement
Informed Consent Statement
Data Availability Statement
Acknowledgments
Conflicts of Interest
References
- Statistika Chovu Koní v ČR v Letech 2021–2024. (Statistics of Horse Breeding in the Czech Republic from 1921 to 2024). Available online: https://www.mze.gov.cz/public/portal/mze/zemedelstvi/zivocisna-vyroba/zivocisne-komodity/kone (accessed on 12 July 2025). (In Czech)
- Bakalářské Studijní Programy FAPPZ ČZU—Chov Koní. (Bachelor’s Degree Programs at FAPPZ CULS—Horse Breeding). Available online: https://www.af.czu.cz/cs/r-6780-studium/r-6793-studijni-programy/r-7841-bakalarske-programy/r-7786-chov-koni-petibh (accessed on 22 May 2025). (In Czech).
- Štohlová Putnová, L.; Štohl, R. The assignment success for 22 horse breeds registered in the Czech Republic: The machine learning perspective. Czech J. Anim. Sci. 2021, 66, 1–12. [Google Scholar] [CrossRef]
- Ruet, A.; Biau, S.; Arnould, C.; Galloux, P.; Destrez, A.; Pycik, E.; Boichot, L.; Lansade, L. Horses could perceive riding differently depending on the way they express poor welfare in the stable. J. Equine Vet. Sci. 2020, 94, 103206. [Google Scholar] [CrossRef] [PubMed]
- Popescu, S.; Diugan, E.A. The relationship between the welfare quality and stress index in working and breeding horses. Res. Vet. Sci. 2017, 115, 442–450. [Google Scholar] [CrossRef]
- Mikroklima v Prostorech pro Koně. (Microclimate in Areas for Horses). Available online: https://www.agropress.cz/mikroklima-v-prostorech-pro-kone/ (accessed on 25 July 2025). (In Czech).
- Checchi, A.; Casazza, S. Safety in the housing of horses. J. Agric. Eng. 2013, 44, 750–751. [Google Scholar] [CrossRef]
- Dai, F.; Dalla Costa, E.; Minero, M.; Briant, C. Does housing system affect horse welfare? The AWIN welfare assessment protocol applied to horses kept in an outdoor group-housing system: The ‘parcours’. Anim. Welf. 2023, 32, 1–11. [Google Scholar] [CrossRef]
- Minero, M.; Dalla Costa, E.; Dai, F.; Scholz, P.; Lebelt, D. AWIN 2015 AWIN Welfare Assessment Protocol for Horses. Available online: https://www.cambridge.org/core/journals/animal-welfare/article/abs/welfare-assessment-of-horses-the-awin-approach/BA78F31B691F683AD0043354D58F3A1D (accessed on 25 July 2025).
- Harewood, E.J.; McGowan, C.M. Behavioral and Physiological Responses to Stabling in Naive Horses. J. Equine Vet. Sci. 2005, 25, 164–170. [Google Scholar] [CrossRef]
- Alia, A.B.A.; El Sayed, M.A.; Matoock, M.Y.; Fouad, M.A.; Heleski, C.R. A welfare assessment scoring system for working equids—A method for identifying at risk populations and for monitoring progress of welfare enhancement strategies (trialed in Egypt). Appl. Anim. Behav. Sci. 2016, 176, 52–62. [Google Scholar] [CrossRef]
- McGill, S.; Hayes, M.; Tumlin, K.; Coleman, R. Characterization of indoor arenas through an anonymous survey. Transl. Anim. Sci. 2021, 5, 1–12. [Google Scholar] [CrossRef]
- McGill, S.; Coleman, R.; Jackson, J.; Tumlin, K.; Stanton, V.; Hayes, M. Environmental spatial mapping within equine indoor arenas. Front. Anim. Sci. 2023, 4, 1083332. [Google Scholar] [CrossRef]
- Tumlin, K.; Liu, S.; Park, J.H. Framing future of work considerations through climate and built environment assessment of volunteer work practices in the United States equine assisted services. Int. J. Environ. Res. Public Health 2021, 18, 10385. [Google Scholar] [CrossRef]
- Angrecka, S.; Herbut, P.; Godyń, D.; Vieira, F.M.C.; Zwolenik, M. Dynamics of microclimate conditions in freestall barns during winter—A case study from Poland. J. Ecol. Eng. 2020, 21, 129–136. [Google Scholar] [CrossRef]
- Angrecka, S.; Herbut, P.; Nawalny, G.; Sokolowski, P. The impact of localization and barn type on insolation of sidewall stalls during summer. J. Ecol. Eng. 2017, 18, 60–66. [Google Scholar] [CrossRef]
- Angrecka, S.; Herbut, P. Impact of Barn Orientation on Insolation and Temperature of Stalls Surface. Annals of Animal Science 2016, 16, 887–896. [Google Scholar] [CrossRef]
- Williams, C.A.; Kenny, L.B.; Weinert, J.R.; Sullivan, K.; Meyer, W.; Robson, M.G. Effects of 27 mo of rotational vs. continuous grazing on horse and pasture condition. Transl. Anim. Sci. 2020, 4, 1–17. [Google Scholar] [CrossRef]
- Heffner, R.S.; Heffner, H.E. Hearing in large mammals: Horses (Equus caballus) and cattle (Bos taurus). Behav. Neurosci. 1983, 97, 299–309. [Google Scholar] [CrossRef]
- Broucek, J. Effect of noise on performance, stress, and behaviour of animals. Slovak J. Anim. Sci. 2014, 47, 111–123. [Google Scholar]
- Stomp, M.; Leroux, M.; Cellier, M.; Henry, S.; Lemasson, A.; Hausberger, M. An unexpected acoustic indicator of positive emotions in horses. PLoS ONE 2018, 13, e0197898. [Google Scholar] [CrossRef]
- Adamczyk, K.; Górecka-Bruzda, A.; Nowicki, J.; Gumułka, M.; Molik, E.; Schwarz, T.; Earley, B.; Klocek, C. Perception of environment in farm animals—A review. Ann. Anim. Sci. 2015, 15, 565–589. [Google Scholar] [CrossRef]
- Council of the European Union: Council Directive 2008/120/EC of 18 December 2008 Laying down Minimum Standards for the Protection of Pigs. 18.12.2008. Available online: http://data.europa.eu/eli/dir/2008/120/oj (accessed on 12 June 2024).
- Olczak, K.; Penar, W.; Nowicki, J.; Magiera, A.; Klocek, C. The Role of Sound in Livestock Farming—Selected Aspects. Animals 2023, 13, 2307. [Google Scholar] [CrossRef] [PubMed]
- Dusek, J.; Misar, D.; Muller, Z.; Navratil, J.; Rajman, J.; Tluchor, V.; Zlumov, P. Chov Koní. (Horse-Breeding); Brázda, s.r.o.: Praha, Czech Republic, 2011; 400p, ISBN 978-80-209-0388-4. (In Czech) [Google Scholar]
- Thomas, S.J.; De Solis, C.N.; Coleman, M.C. Case-control study of risk factors for equine asthma in Texas. J. Equine Vet. Sci. 2021, 103, 103644. [Google Scholar] [CrossRef]
- Couetil, L.L.; Hoffman, A.M.; Hodgson, J.; Buechner-Maxwell, V.; Viel, L.; Wood, J.L.N.; Lavoie, J.P. Inflammatory Airway Disease of Horses. J. Vet. Intern. Med. 2007, 21, 356–361. [Google Scholar] [CrossRef]
- ČSN 730543-2; Vnitřní Prostředí Stájových Objektů. Část 2: Větrání a vytápění. Internal Environment in Buildings for Animals. Part 2: Ventilation and Heating. Český Normalizační Institut: Praha, Czech Republic, 1997; 36p. (In Czech)
- Stupka, R.; Čítek, J.; Fantová, M.; Ledvinka, Z.; Navrátil, J.; Nohejlová, L.; Stádník, L.; Šprysl, M.; Štolc, L.; Vacek, M.; et al. Chov Zvířat (Animal Husbandry), 2nd ed.; Česká Zemědělská Univerzita: Praha, Czech Republic, 2013; 289p, ISBN 978-80-87415-66-5. (In Czech) [Google Scholar]
- Janczarek, I.; Wilk, I.; Zalewska, E.; Bocian, K. Correlations between the behavior of recreational horses, the physiological parameters and summer atmospheric conditions. Anim. Sci. J. 2015, 86, 721–728. [Google Scholar] [CrossRef]
- Aragona, F.; Rizzo, M.; Arrigo, F.; Arfuso, F.; Fazio, F.; Giudice, E.; Pugliatti, P.; Piccione, G.; Giannetto, C. Pilot Study: Simultaneous Daily Recording of Total Locomotor Activity and Heart Rate in Horses for Application in Precision Livestock Farming. Animals 2025, 15, 1189. [Google Scholar] [CrossRef]
- Giannetto, C.; Aragona, F.; Fazio, F.; Piccione, G.; Giudice, E.; Arfuso, F.; Zumbo, A. Investigation of the impact of seasonal climate conditions on feed intake and body weight in horses. Int. J. Biometeorol. 2025, 69, 1101–1110. [Google Scholar] [CrossRef]
- Hartmann, E.; Hopkins, R.J.; Blomgren, E.; Ventorp, M.; von Brömssen, C.; Dahlborn, K. Daytime shelter use of individually kept horses during Swedish summer. J. Anim. Sci. 2015, 93, 802–810. [Google Scholar] [CrossRef]
- Arfuso, F.; Rizzo, M.; Arrigo, F.; Francaviglia, F.; Perillo, L.; Schembri, P.; Zumbo, L.E.M.; Disclafani, R.; Piccione, G.; Monteverde, V. Welfare and stress assessment of tourism carriage horses under real working conditions in Sicily. J. Equine Vet. Sci. 2024, 139, 105136. [Google Scholar] [CrossRef] [PubMed]
- Aragona, F.; Giannetto, C.; Piccione, G.; Arfuso, F.; Arrigo, F.; Costa, A.; De Caro, S.; Cannuli, A.; Fazio, F. Effect of time of day and physical exercise on inflammatory biomarkers in athletic horses. Front. Vet. Sci. 2025, 12, 1608770. [Google Scholar] [CrossRef] [PubMed]
- Aragona, F.; Arfuso, F.; Fazio, F.; De Caro, S.; Giudice, E.; Monteverde, V.; Piccione, G.; Giannetto, C. Circadian Variation of Peripheral Blood Cells in Horses Maintained in Different Environmental and Management Conditions. Animals 2023, 13, 1865. [Google Scholar] [CrossRef]
- Friend, T.H. Stress: What is it and how can it be quantified? Int. J. Stud. Anim. Prob. 1980, 1, 366–374. [Google Scholar]
- Seid, M.; Feki, E. Review on the effect of stress on animal productivity and response of animal to stressors. J. Anim. Vet. Adv. 2021, 1, 1–14. [Google Scholar]
- Manuja, B.K.; Manuja, A.; Aich, P. Stress and its impact on farm animals. Front. Biosci. 2012, E4, 1759–1767. [Google Scholar] [CrossRef]
- Budzynska, M. Stress reactivity and coping in horse adaptation to environment. J. Equine Vet. Sci. 2014, 34, 935–941. [Google Scholar] [CrossRef]
- Mazan, M.R.; Svatek, J.; Maranda, L.; Christiani, D.; Ghio, A.; Nadeau, J.; Hoffman, A.M. Questionnaire assessment of airway disease symptoms in equine barn personnel. Occup. Med. 2009, 59, 220–225. [Google Scholar] [CrossRef]
- Jahn, P.; Tůmová, P. COPD or RAO? Could be the new term helpful in the solution of the old problem? Veterinářství 2003, 53, 160–166. [Google Scholar]
- Auger, E.J.; Moore-Colyer, M.J.S. The effect of management regime on airborne respirable dust concentrations in two different types of horse stable design. J. Equine Vet. Sci. 2017, 51, 105–109. [Google Scholar] [CrossRef]
- Takai, H.; Pedersen, S.; Johnsen, J.O.; Metz, J.H.M.; Groot Koerkamp, P.W.G.; Uenk, G.H.; Phillips, V.R.; Holden, M.R.; Sneath, R.W.; Short, J.L.; et al. Concentrations and emissions of airborne dust in livestock buildings in Northern Europe. J. Agric. Eng. Res. 1998, 70, 59–77. [Google Scholar] [CrossRef]
- Cambra-Lopez, M.; Aarnink, A.J.A.; Zhao, Y.; Calvet, S.; Torres, A.G. Airborne particulate matter from livestock production systems: A review of an air pollution problem. Environ. Pollut. 2010, 158, 1–17. [Google Scholar] [CrossRef] [PubMed]
- Cambra-Lopez, M.; Torres, A.G.; Aarnink, A.J.A.; Ogink, N.W.M. Source analysis of fine and coarse particulate matter from livestock houses. Atmos. Environ. 2011, 45, 694–707. [Google Scholar] [CrossRef]
- Górny, R.L.; Ławniczek-Wałczyk, A.; Stobnicka, A.; Gołofit-Szymczak, M.; Cyprowski, M. Włókna jako nośniki cząstek mikrobiologicznych (Fibers as carriers of microbial particles). Med. Pr. 2015, 66, 511–523. (In Polish) [Google Scholar] [CrossRef]
- Dutkiewicz, J.; Pomorski, Z.J.H.; Sitkowska, J.; Krysińska-Traczyk, E.; Skórska, C.; Prażmo, Z.; Cholewa, G.; Wójtowicz, H. Airborne microorganisms and endotoxin in animal houses. Grana 1994, 33, 85–90. [Google Scholar] [CrossRef]
- Vandenput, S.; Istasse, L.; Nicks, B.; Lekeux, P. Airborne dust and aeroallergen concentrations in different sources of feed and bedding for horse. Vet. Q. 1997, 19, 154–158. [Google Scholar] [CrossRef]
- Grzyb, J.; Podstawski, Z.; Bulski, K. Bacterial aerosol, particulate matter, and microclimatic parameters in the horse stables in Poland. Environ. Sci. Pollut. Res. 2022, 29, 26992–27006. [Google Scholar] [CrossRef] [PubMed]
- Tanner, M.K.; Swinker, A.M.; Beard, M.L.; Cosma, G.N.; Traub-Dargatz, J.L.; Martinez, A.B.; Olenchock, S.A. Effect of phone book paper versus sawdust and straw bedding on the presence of airborne gram-negative bacteria, fungi and endotoxin in horse stalls. J. Equine Vet. Sci. 1998, 18, 457–461. [Google Scholar] [CrossRef]
- McGorum, B.C.; Ellison, J.; Cullen, R.T. Total and respirable airborne dust endotoxin concentrations in three equine management systems. Equine Vet. J. 1998, 30, 430–434. [Google Scholar] [CrossRef] [PubMed]
- Muscatello, G.; Gerbaud, S.; Kennedy, C.; Gilkerson, J.R.; Buckley, T.; Klay, M.; Leadon, D.P.; Browning, G.F. Comparison of concentrations of Rhodococcus equi and virulent R. equi in air of stables and paddocks on horse breeding farms in a temperate climate. Equine Vet. J. 2006, 38, 263–265. [Google Scholar] [CrossRef]
- Pirie, R.S.; Dixon, P.M.; Collie, D.D.S.; McGorum, B.C. Pulmonary and systemic effects of inhaled endotoxin in control and heaves horses. Equine Vet. J. 2001, 33, 311–318. [Google Scholar] [CrossRef]
- Nardoni, S.; Mancianti, F.; Sgorbini, M.; Corazza, M. Evaluation of seasonal presence of fungal spores in three stables. Ippologia 2003, 14, 61–66. [Google Scholar]
- Samadi1, S.; Wouters, I.M.; Houben, R.; Jamshidifard, A.R.; Van Eerdenburg, F.; Heederik, D.J.J. Exposure to inhalable dust, endotoxins, β(1→3)- glucans, and airborne microorganisms in horse stables. Ann. Occup. Hyg. 2009, 53, 595–603. [Google Scholar]
- Lenart-Boro, A.; Drab, D.; Chrobak, J. Microbiological aerosol, particulate matter concentrations and antibiotic resistant Staphylococcus spp. in the premises of Poland’s oldest agricultural school. Atmosphere 2021, 12, 934. [Google Scholar] [CrossRef]
- Kirschvink, N.; Di Silvestro, F.; Sbai, I.; Vandenput, S.; Art, T.; Roberts, C.; Lekeux, P. The use of cardboard bedding material as part of an environmental control regime for heaves-affected horses: In vitro assessment of airborne dust and aeroallergen concentration and in vivo effects on lung function. Vet. J. 2002, 163, 319–325. [Google Scholar] [CrossRef]
- Nowakowicz-Dębek, B.; Pawlak, H.; Wlazło, Ł.; Kuna-Broniowska, I.; Bis-Wencel, H.; Buczaj, A.; Maksym, P. Evaluation of working conditions of workers engaged in tending horses. Ann. Agric. Environ. Med. 2014, 21, 718–722. [Google Scholar] [CrossRef]
- Mackiewicz, B.; Skorska, C.; Dutkiewicz, J. Relationship between concentrations of microbiological agents in the air of agricultural settings and occurrence of work-related symptoms in exposed persons. Ann. Agric. Environ. Med. 2015, 22, 473–477. [Google Scholar] [CrossRef]
- Hollerová, J. Prašnost a její hodnocení. (Dustiness and its Evaluation). Vytápění Větrání Instal. 2006, 2, 90–92. (In Czech) [Google Scholar]
- Kollar, J.L.; Swinker, A.M.; Swinker, M.L.; Irlbeck, N. Dust Exposure and Respiratory Disorders in Equine Instructors. Prof. Anim. Sci. 2005, 21, 128–132. [Google Scholar] [CrossRef]
- Sheats, M.K.; Davis, U.K.; Poole, A.J. Comparative Review of Asthma in Farmers and Horses. Curr. Allergy Asthma Rep. 2019, 19, 50. [Google Scholar] [CrossRef]
- Kim, K.W.; Lee, S.G.; Hwang, G.S. The mental Health and Occupational Characteristic of Horse Stable Hand Workers in Korea. Saf. Health Work 2019, 10, 384–388. [Google Scholar] [CrossRef]
- Stres Může Zhoršit Alergické Reakce. (Stress Can Make Allergic Reactions Worse). Available online: https://www.ordinace.cz/clanek/stres-muze-zhorsit-alergicke-reakce/ (accessed on 25 July 2025). (In Czech).
- Garey, S.M.; Friend, T.H.; Sigler, D.H.; Berghman, L.R. The effects of loose group versus individual stall transport on Glucocorticosteriods and Dehydroepiandrosterone in yearling horses. J. Equine Vet. Sci. 2010, 30, 696–700. [Google Scholar] [CrossRef]
- Calabrese, R.; Friend, T.H. Effects of density and rest stops on movement rates of unrestrained horses during transport. J. Equine Vet. Sci. 2009, 29, 482–785. [Google Scholar] [CrossRef]
- Iacono, C.M.; Friend, T.H.; Johnson, R.D.; Krawczel, P.D.; Archer, G.S. A preliminary study on the utilization of an onboard watering system by horses during commercial transport. Appl. Anim. Behav. Sci. 2007, 105, 227–231. [Google Scholar] [CrossRef]
- Friend, T.H.; Keen, H.A.; Iacono, C. Activity of unrestrained horses during on-truck rest stops. J. Equine Vet. Sci. 2006, 26, 573–577. [Google Scholar] [CrossRef]
- Depecker, M.; Richard, E.A.; Pitel, P.H.; Fortier, G.; Leleu, C.; Couroucé-Malblanc, A. Bronchoalveolar lavage fluid in Standardbred racehorses: Influence of unilateral/bilateral profiles and cut-off values on lower airway disease diagnosis. Vet. J. 2014, 199, 150–156. [Google Scholar] [CrossRef]
- Holcombe, S.J.; Jackson, C.; Gerber, J.; Jefcoat, A.; Berney, C.; Eberhardt, S.; Robinson, N.E. Stabling is associated with airway inflammation in young Arabian horses. Equine Vet. J. 2001, 33, 244–249. [Google Scholar] [CrossRef]
- Robinson, N.E.; Karmaus, W.; Holcombe, S.J.; Carr, E.A.; Derksen, F.J. Airway inflammation in Michigan pleasure horses: Prevalence and risk factors. Equine Vet. J. 2006, 38, 293–299. [Google Scholar] [CrossRef]
- Millerick-May, M.L.; Karmaus, W.; Derksen, F.J.; Berthold, B.; Holcombe, S.J.; Robinson, N.E. Local airborne particulate concentration is associated with visible tracheal mucus in Thoroughbred racehorses. Equine Vet. J. 2013, 45, 85–90. [Google Scholar] [CrossRef] [PubMed]
- Millerick-May, M.L.; Karmaus, W.; Derksen, F.J.; Berthold, B.; Robinson, N.E. Airborne particulates (PM10) and tracheal mucus: A case–control study at an American Thoroughbred racetrack. Equine Vet. J. 2015, 47, 410–414. [Google Scholar] [CrossRef]
- Bullone, M.; Murcia, R.Y.; Lavoie, J.-P. Environmental heat and airborne pollen concentration are associated with increased asthma severity in horses. Equine Vet. J. 2016, 48, 479–484. [Google Scholar] [CrossRef] [PubMed]
- Sprayberry, K.A.; Barrett, E.J. Thoracic trauma in horses. Vet Clin Equine 2015, 31, 199–219. [Google Scholar] [CrossRef]
- Hetényi, N.; Korbacska-Kutasi, O. Az alomanyag és a takarmány hatása a lovak asztmás megbetegedéseire. (Effect of bedding and feeding on equine asthma). Magy. Állatorvosok Lapja 2019, 141, 515–521. (In Hungarian) [Google Scholar]
- Venable, E.; Kraemer, J.; Sparks, S.; Goyer, C. Effect of crumb rubber made from recycled tires on air quality in an indoor riding arena: A pilot study. J. Equine Vet. Sci. 2016, 36, 97–100. [Google Scholar] [CrossRef]
- Seedorf, J.; Schröder, M.; Köhler, I.; Hartung, J. Suitability of biocompost as a bedding material for stabled horses: Respiratory hygiene and management practicalities. Equine Vet. J. 2007, 39, 129–135. [Google Scholar] [CrossRef]
- Fleming, K.; Hessel, E.F.; Van den Weghe, H.F.A. Gas and particle concentrations in horse stables with individual boxes as a function of the bedding material and the mucking regimen. J. Anim. Sci. 2009, 87, 3805–3816. [Google Scholar] [CrossRef] [PubMed]
- Fleming, K.; Hessel, E.F.; Van den Weghe, H.F.A. Generation of airborne particles from different bedding materials used for horse keeping. J. Equine Vet. Sci. 2008, 28, 408–418. [Google Scholar] [CrossRef]
- Mostafa, E.; Szabo, E.; Gates, R.S.; Buescher, W. Identification of airborne particles and fungus spores concentrations within horses stables. Atmos. Pollut. Res. 2021, 12, 93–103. [Google Scholar] [CrossRef]
- Claußen, G.; Hessel, E.F. Particulate matter in equestrian stables and riding arenas. J. Equine Vet. Sci. 2017, 55, 60–70. [Google Scholar] [CrossRef]
- Garlipp, F.; Hessel, E.F.; Van den Hurk, M.; Timmerman, M.F.; Van den Weghe, H.F.A. The influence of a particle separation technology on the generation of airborne particles from different roughages and bedding materials used for horses. Vet. J. 2002, 163, 319–325. [Google Scholar] [CrossRef]
- Siegers, E.W.; Anthonisse, M.; van Eerdenburg, F.J.C.M.; van den Broek, J.; Wouters, I.M.; Westermann, C.M. Effect of ionization, bedding, and feeding on air quality in a horse stable. J. Vet. Intern. Med. 2018, 32, 1234–1240. [Google Scholar] [CrossRef]
- Whittaker, A.G.; Hughes, K.J.; Parkin, T.D.H.; Love, S. Concentrations of dust and endotoxin in equine stabling. Vet. Rec. 2009, 165, 293–295. [Google Scholar] [CrossRef] [PubMed]
- Ferro, E.; Ferrucci, F.; Salimei, E.; Antonin, M.; Codazza, D.; Caniatti, M. Relationship between the conditions of lower airways in healthy horses, environmental factors and air quality in stables. Pferdeheilkunde 2000, 16, 579–586. [Google Scholar] [CrossRef][Green Version]
- Clements, J.M.; Pirie, R.S. Respirable dust concentrations in equine stables. Part 1: Validation of equipment and effect of various management systems. Res. Vet. Sci. 2007, 83, 256–262. [Google Scholar] [CrossRef]
- Podestýlka, na Které Záleží. 1.díl. (Bedding That Matters—Part 1). Available online: https://www.eqsmagazin.cz/podestylka-na-ktere-zalezi-1-dil/ (accessed on 22 June 2025). (In Czech).
- Podestýlka. (Bedding). Available online: https://equos.cz/index.php/pece-o-kone/podestylka (accessed on 23 June 2025). (In Czech).
- Stable Management and Bedding. Available online: https://www.bhs.org.uk/horse-care-and-welfare/health-care-management/stable-management-and-bedding/bedding-types/ (accessed on 25 June 2025).
- Bedding Types. Available online: https://www.bhs.org.uk/horse-care-and-welfare/health-care-management/stable-management-and-bedding/bedding-types/#flax-and-hemp (accessed on 25 June 2025).
- Chiumenti, A.; Owono, B.; da Borso, F. Biomethane potential of fresh horse manure and straw-based litter. In Proceedings of the 2023 ASABE Annual International Meeting, Omaha, NE, USA, 9–12 July 2023. [Google Scholar] [CrossRef]
- Nitsche, M.; Hengsen, F.; Wachendorf, M. Energy Generation from Horse Husbandry Residues by Anaerobic Digestion, Combustion, and an Integrated Approach. Sustainability 2017, 9, 358. [Google Scholar] [CrossRef]
- Zailani, N.I.M.; Hanis, F.; Anuar, M.A.M. Assessing the cost efficiency and benefits of sawdust, pinewood, and rubber wood shavings as bedding materials. J. Equine Vet. Sci. 2024, 134, 105018. [Google Scholar] [CrossRef]
- Podestýlka, na Které Záleží. 2.díl. (Bedding That Matters—Part 2). Available online: https://www.eqsmagazin.cz/podestylka-na-ktere-zalezi-2-dil/ (accessed on 22 June 2025). (In Czech).
- Garlipp, F.; Hessel, E.F.; Van den Weghe, H.F.A. Effects of three different liquid additives mixed with whole oats or rolled oats on the generation of airborne particles from an experimental simulating horse feeding. J. Equine Vet. Sci. 2011, 31, 630–639. [Google Scholar] [CrossRef]
- Clements, J.M.; Pirie, R.S. Respirable dust concentrations in equine stables. Part 2: The benefits of soaking hay and optimising the environment in a neighbouring stable. Res. Vet. Sci. 2007, 83, 263–268. [Google Scholar] [CrossRef]
- Olave, C.J.; Ivester, K.M.; Couetil, L.L.; Burgess, J.; Park, J.H.; Mukhopadhyay, A. Effects of low-dust forages on dust exposure, airway cytology, and plasma omega-3 concentrations in Thoroughbred racehorses: A randomized clinical trial. J. Vet. Intern. Med. 2023, 37, 338–348. [Google Scholar] [CrossRef]
- Carter, M.J.; Friend, T.H.; Coverdale, J.; Garey, S.M.; Adams, A.L.; Terrill, C.L. A comparison of three conventional horse feeders with the pre-vent feeder. J. Equine Vet. Sci. 2012, 32, 252–255. [Google Scholar] [CrossRef]
- Herholz, C.; Kocher, J.; Küng, P.; Burren, A. Fallstudie zur digitalen Aufzeichnung der Staubentwicklung in Abhängigkeit von der Lüftungsöffnung und der Einstreu in einem Pferdestall. (Digital monitoring of dust release in a horse stable, depending on ventilation opening area and bedding type). Pferdeheilkunde–Equine Med. 2020, 36, 316–324. (In German) [Google Scholar] [CrossRef]
- Hansen, S.; Klintoe, K.; Austevoll, M.; Baptiste, K.E.; Fjeldborg, J. Equine airway inflammation in loose housing management compared with pasture and conventional stabling. Vet. Rec. 2019, 184, 590. [Google Scholar] [CrossRef] [PubMed]
- Millerick-May, M.L.; Karmaus, W.; Derksen, F.J.; Berthold, B.; Holcombe, S.J.; Robinson, N.E. Particle mapping in stables at an American Thoroughbred racetrack. Equine Vet. J. 2011, 43, 599–607. [Google Scholar] [CrossRef] [PubMed][Green Version]
- Lühe, T.; Volkmann, N.; Probst, J.; Dreyer-Rendelsmann, C.; Schulz, J.; Kemper, N. Bacterial Burden in the Air of Indoor Riding Arenas. Agriculture 2022, 12, 2111. [Google Scholar] [CrossRef]
- Lühe, T.; Mielenz, N.; Schulz, J.; Dreyer-Rendelsmann, C.; Kemper, N. Factors associated with dust dispersed in the air of indoor riding arenas. Equine Vet. J. 2017, 49, 73–78. [Google Scholar] [CrossRef]
- Ivester, K.M.; Smith, K.; Moore, G.E.; Zimmerman, N.J.; Couetil, L.L. Variability in particulate concentrations in a horse training barn over time. Equine Vet. J. 2012, 44, 51–56. [Google Scholar] [CrossRef] [PubMed]
- Lendelová, J.; Karandušovská, I.; Žitňák, M.; Boďo, Š.; Miniha, Š. Effect of Climatic Conditions on Differences in Thermo-Technical Properties of Organic Bedding in Laboratory Testing. Acta Technol. Agric. 2017, 20, 1–6. [Google Scholar] [CrossRef][Green Version]
- Lendelova, J.; Miniha, S.; Zitnak, M.; Nemehova, M.; Botto, L. Thermo-technical parameters of the different bedding surfaces in cubicles for dairy cows as a factor of their well-being in winter and summer. In Proceedings of the ASABE 2019 Annual International Meeting, Boston, MA, USA, 7–10 July 2019. Paper Number: 1900268. [Google Scholar] [CrossRef]
- Kic, P.; Wohlmuthová, M.; Starostová, L. Effects on the indoor environment in a stable for horses in winter: A case study. Agriculture 2024, 14, 1287. [Google Scholar] [CrossRef]
- Zákon č. 201/2012 Sb. Zákon o Ochraně Ovzduší. Aktuální Znění od 01.05.2025 (Act No. 201/2012 Coll. Air Protection Act. Current Wording from 01.05.2025). Available online: https://www.e-sbirka.cz/sb/2012/201?zalozka=text (accessed on 25 July 2025). (In Czech).
- Sixteen. Available online: https://cs.wikipedia.org/wiki/Sixteen (accessed on 25 August 2025). (In Czech).
- Velká Pardubická (Grand Pardubice Steeplechase). Available online: https://en.wikipedia.org/wiki/Velk%C3%A1_pardubick%C3%A1 (accessed on 25 August 2025).
- Ahlborn Přesná Německá Měřicí Technika (Ahlborn Precise German Measuring Technology). Available online: https://www.ahlborn.cz/ (accessed on 25 July 2025).
- Anonymous Survey Questionnaire: Dust in Stables/Equestrian Facilities—Impact on Health. Available online: https://docs.google.com/forms/d/1gaz48xrsODCFzsUXnpRJ7bFAsNTJ7r2NOeT8pm0XOZA/prefill (accessed on 29 July 2025).
- Kic, P.; Aboltins, A. Convective drying of poultry manure by different air speeds. In Proceedings of the International Scientific Conference “Engineering for Rural Development”, Jelgava, Latvia, 23–24 May 2013; Latvia University of Agriculture: Jelgava, Latvia, 2013; pp. 121–125. [Google Scholar]
- Aboltins, A.; Kic, P. Research of some medical plants drying process. In Proceedings of International Scientific Conference “Engineering for Rural Development”, Latvia, Jelgava, 25–27 May 2016; Latvia University of Agriculture: Latvia, Jelgava, 2016; pp. 1145–1150. [Google Scholar]
- Claußen, G.; Grau, D.; Hessel, E.F. Determination of the moisture content and the generation of airborne particulate matter from various types of footing from indoor riding arenas considered to have optimal rideability. J. Equine Vet. Sci. 2019, 79, 113–120. [Google Scholar] [CrossRef]
- Directive (EU) 2024/2881 of the European Parliament and of the Council of 23 October 2024 on Ambient Air Quality and Cleaner Air for Europe (Recast). Available online: https://eur-lex.europa.eu/legal-content/EN/TXT/PDF/?uri=OJ:L_202402881 (accessed on 5 November 2025).
- Strategické Hlukové Mapování. (Strategic Noise Mapping). Available online: https://geoportal.mzcr.cz/portal/apps/storymaps/stories/e51bc98c0bc841d0b17e244c67659be7 (accessed on 25 July 2025). (In Czech).
- Noise Maps 2022 EN. Available online: https://geoportal.mzcr.cz/shm_en/?locale=en (accessed on 25 July 2025).
—position of long-term measurement devices,
—position of airborne dust measurement in the box with straw bedding,
—position of airborne dust measurement in the box with a mixture of sawdust and shavings,
—position of airborne dust measurement in the central corridor.
—position of long-term measurement devices,
—position of airborne dust measurement in the box with straw bedding,
—position of airborne dust measurement in the box with a mixture of sawdust and shavings,
—position of airborne dust measurement in the central corridor.





















| Activity | Time [from–to] | Duration [min] |
|---|---|---|
| Feeding (hay, oats, mown grass) | 8:00–8:30 | 30 |
| Taking the horses to paddocks | 8:30–9:00 | 30 |
| Boxes cleaning, bedding | 9:00–11:00 | 120 |
| Washing troughs and waterers | 11:00–11:30 | 30 |
| Dispensing oats into the troughs | 11:30–12:00 | 30 |
| Returning the horses to the stable | 12:30–13:00 | 30 |
| Feeding the horses | 13:00–13:15 | 15 |
| Students’ activities (more noise) | 13:00–15:45 | 165 |
| Equestrian club activities | 15:45–18:00 | 135 |
| Feeding (hay, oats) | 18:00–18:30 | 30 |
| Locking up, staff leaving | 18:30–18:45 | 15 |
| Activity | Time [from–to] | Duration [min] |
|---|---|---|
| Feeding (hay, oats, mown grass) | 8:00–8:30 | 30 |
| Taking the horses to paddocks | 8:30–9:00 | 30 |
| Boxes cleaning, bedding | 9:00–11:00 | 120 |
| Washing troughs and waterers | 11:00–11:30 | 30 |
| Dispensing oats into the troughs | 11:30–12:00 | 30 |
| Returning the horses to the stable | 14:00–14:15 | 15 |
| Feeding the horses | 14:15–14:30 | 15 |
| Equestrian activities (as agreed) | 14:30–18:00 | 210 |
| Feeding (hay, oats) | 18:00–18:30 | 30 |
| Locking up, staff leaving | 18:30–18:45 | 15 |
| Instrument | Measured Parameter | Range | Sensitivity | Accuracy |
|---|---|---|---|---|
| ZTH 65 | Air temperature | −30 to +70 °C | 0.1 °C | ±0.4 °C |
| ZTH 65 | Air relative humidity | 5 to 95% | 0.1% | ±2.5% |
| Almemo 2590-9 | Data logger | 9 inputs for sensors | - | - |
| Almemo 2690 | Data logger | 5 inputs for sensors | - | - |
| FHA 646 | Air temperature | −20 to +80 °C | 0.01 | ±0.4 °C |
| FHA 646 | Air relative humidity | 5 to 98% | 0.1% | ±2% |
| FYA 600 | CO2 | 0 to 0.5% | 0.001% | ±0.01% |
| BEHA Unitest 93411 D | Sound level | 30 to 135 dB | 0.1 dB | ±2 dB |
| Dust-Track™ II Aerosol Monitor 8530 | Airborne dust concentrations | 0.001 to 150 mg·m−3 | 0.001 mg·m−3 | ±0.1% |
| KERN-440-35N | Material mass | 0 to 400 g | 0.01 g | ±0.01 g |
| te ± SD | RHe ± SD | we ± SD | ti ± SD | RHi ± SD | CO2i ± SD | LpAi ± SD |
|---|---|---|---|---|---|---|
| °C | % | m·s−1 | °C | % | ppm | dB |
| 10.0 ± 4.9 | 71.7 ± 13.7 | 2.2 ± 1.3 | 15.3 ± 2 | 65.4 ± 5.1 | 921.5 ± 374.5 | 47.0 ± 8.7 |
| te ± SD | RHe ± SD | we ± SD | ti ± SD | RHi ± SD | CO2i ± SD | LpAi ± SD |
|---|---|---|---|---|---|---|
| °C | % | m·s−1 | °C | % | ppm | dB |
| 7.5 ± 3.5 | 74.8 ± 13.4 | 1.7 ± 0.8 | 14.0 ± 1.0 | 65.4 ± 4.3 | 966.4 ± 490.7 | 46.1 ± 8.5 |
| te ± SD | RHe ± SD | we ± SD | ti ± SD | RHi ± SD | CO2i ± SD | LpAi ± SD |
|---|---|---|---|---|---|---|
| °C | % | m·s−1 | °C | % | ppm | dB |
| 9.1 ± 1.0 | 81.7 ± 12.0 | 2.1 ± 0.9 | 15.8 ± 1.5 | 66.9 ± 2.8 | 836.2 ± 303.3 | 47.1 ± 8.8 |
| Properties of Materials | Straw | Mixture of Sawdust and Shavings 1:1 |
|---|---|---|
| Bulk density, kg·m−3 | 27.06 ± 1.36 | 150.66 ± 11.13 |
| Stem length, mm | 130.4 ± 59.3 | - |
| Water content, wet basis, % | 7.83 ± 0.14 | 9.70 ± 0.15 |
| Smoking | NoEx (46 People) <1 h/Week | LoEx (20 People) 1–5 h/Week | MedEx (8 People) 5–10 h/Week | HiEx (20 People) >10 h/Week |
|---|---|---|---|---|
| Smokers | 3 | 4 | 1 | 2 |
| Former smokers | 6 | 4 | 0 | 1 |
| Non-smokers | 37 | 12 | 7 | 17 |
| Smokers (%) | 7 | 20 | 13 | 10 |
| Former smokers (%) | 13 | 20 | 0 | 5 |
| Non-smokers (%) | 80 | 60 | 87 | 85 |
| Previous Medical History (in Numbers) | NoEx (46 People) <1 h/Week | LoEx (20 People) 1–5 h/Week | MedEx (8 People) 5–10 h/Week | HiEx (20 People) >10 h/Week |
|---|---|---|---|---|
| No disease | 31 | 14 | 5 | 14 |
| One disease | 13 | 3 | 2 | 5 |
| Two-or-more diseases | 2 | 3 | 1 | 1 |
| No disease (%) | 68 | 70 | 62 | 70 |
| One disease (%) | 28 | 15 | 25 | 25 |
| Two-or-more diseases (%) | 4 | 15 | 13 | 5 |
| Previous Medical History (Type of Disease) | NoEx (46 People) <1 h/Week | LoEx (20 People) 1–5 h/Week | MedEx (8 People) 5–10 h/Week | HiEx (20 People) >10 h/Week |
|---|---|---|---|---|
| Asthma | 2 | 4 | 1 | 1 |
| Allergies | 15 | 4 | 3 | 6 |
| COPD | 0 | 2 | 0 | 0 |
| Asthma (%) | 4 | 20 | 13 | 5 |
| Allergies (%) | 33 | 20 | 38 | 30 |
| COPD (%) | 0 | 10 | 0 | 0 |
| Number of Reported Subjective Respiratory Problems | NoEx (46 People) <1 h/Week | LoEx (20 People) 1–5 h/Week | MedEx (8 People) 5–10 h/Week | HiEx (20 People) >10 h/Week |
|---|---|---|---|---|
| No problem | 9 | 3 | 1 | 3 |
| One problem | 12 | 7 | 1 | 3 |
| Two problems | 13 | 2 | 4 | 8 |
| Three problems | 10 | 4 | 2 | 5 |
| Four problems | 2 | 4 | 0 | 1 |
| Type of Reported Subjective Respiratory Problems | NoEx (46 People) <1 h/Week | LoEx (20 People) 1–5 h/Week | Medex (8 People) 5–10 h/Week | HiEx (20 People) >10 h/Week |
|---|---|---|---|---|
| (Allergic) rhinitis | 27 | 8 | 5 | 12 |
| Dry cough | 24 | 13 | 4 | 15 |
| Moist cough | 9 | 5 | 2 | 5 |
| Difficulty breathing | 15 | 11 | 4 | 6 |
| None of the above | 9 | 3 | 1 | 3 |
| Measured Object | TDC ± SD | PM10 ± SD | PM4 ± SD | PM2.5 ± SD | PM1 ± SD |
|---|---|---|---|---|---|
| A. Stable: cleaning dirt in boxes | 111.8 ± 35.5 a | 45.9 ± 13.1 a | 31.3 ± 6.2 a | 24.9 ± 1.6 a | 17.6 ± 0.9 a |
| B. Stable: straw bedding | 3786.7 ± 2271.6 b | 877.2 ± 468.9 b | 416.0 ± 212.0 b | 54.4 ± 34.9 b | 22.6 ± 4.3 b |
| C. Stable: bedding sawdust, shavings | 2663.5 ± 1990.0 c,d | 877.5 ± 314.2 b | 236.8 ± 50.5 c | 69.2 ± 22.1 b | 21.6 ± 2.0 b |
| D. Stable: cleaning center corridor | 3186.2 ± 2306.8 b,d | 185.9 ± 105.4 c | 182.8 ± 61.1 d | 173.1 ± 50.3 c | 45.2 ± 12.2 c |
| E. Indoor Arena: empty | 20.3 ± 1.6 a | 20.1 ± 1.0 a | 18.7 ± 1.0 a | 17.8 ± 0.4 a | 14.5 ± 0.8 d |
| F. Outdoor Arena: horses | 476.0 ± 475.0 a | 44.6 ± 22.9 a | 25.2 ± 0.9 a | 25.1 ± 0.9 a | 19.6 ± 0.6 a,b |
| Operational Activity | Average LpA ± SD dB | Minimum LpA dB | Maximum LpA dB |
|---|---|---|---|
| Horses resting | 42.7 ± 6.3 | 33.3 | 59.9 |
| Feeding | 52.4 ± 7.9 | 36.9 | 62.0 |
| Moving horses to paddock and back | 63.0 ± 9.8 | 50.4 | 74.5 |
| Cleaning the stable | 52.3 ± 6.7 | 44.1 | 68.3 |
| Teaching students | 45.3 ± 7.7 | 35.7 | 60.9 |
| Equestrian club | 49.1 ± 8.2 | 37.9 | 61.2 |
| Closing stable and staff departure | 50.9 ± 5.6 | 45.3 | 56.5 |
| All day 24 h | 46.1 ± 8.5 | 33.3 | 74.5 |
| Operational Activity | Average LpA ± SD dB | Minimum LpA dB | Maximum LpA dB |
|---|---|---|---|
| Horses resting | 41.9 ± 4.1 | 35.6 | 56.9 |
| Feeding | 52.2 ± 6.3 | 45.6 | 63.4 |
| Moving horses to the paddock and back | 53.9 ± 1.0 | 52.9 | 55.3 |
| Cleaning the stable | 43.5 ± 4.6 | 37.4 | 53.6 |
| Equestrian club | 52.5 ± 11.4 | 41.8 | 86.0 |
| Closing stable and staff departure | 45.2 ± 1.0 | 44.2 | 46.1 |
| All day 24 h | 47.1 ± 8.8 | 35.6 | 86.0 |
| PM | Averaging Period | Limit Value (μg·m−3) | Note | Year |
|---|---|---|---|---|
| PM2.5 | 1 day | 25 | not to be exceeded more than 18 times per calendar year | 2030 |
| Calendar year | 10 | - | ||
| PM10 | 1 day | 45 | not to be exceeded more than 18 times per calendar year | 2030 |
| Calendar year | 20 | - | ||
| PM2.5 | Calendar year | 25 | - | 2026 |
| PM10 | 1 day | 50 | not to be exceeded more than 35 times per calendar year | 2026 |
| Calendar year | 40 | - |
Disclaimer/Publisher’s Note: The statements, opinions and data contained in all publications are solely those of the individual author(s) and contributor(s) and not of MDPI and/or the editor(s). MDPI and/or the editor(s) disclaim responsibility for any injury to people or property resulting from any ideas, methods, instructions or products referred to in the content. |
© 2025 by the authors. Licensee MDPI, Basel, Switzerland. This article is an open access article distributed under the terms and conditions of the Creative Commons Attribution (CC BY) license (https://creativecommons.org/licenses/by/4.0/).
Share and Cite
Kic, P.; Wohlmuthová, M. The Indoor Environment at the University Equestrian Facility in the Autumn Semester: A Case Study. Animals 2025, 15, 3322. https://doi.org/10.3390/ani15223322
Kic P, Wohlmuthová M. The Indoor Environment at the University Equestrian Facility in the Autumn Semester: A Case Study. Animals. 2025; 15(22):3322. https://doi.org/10.3390/ani15223322
Chicago/Turabian StyleKic, Pavel, and Marie Wohlmuthová. 2025. "The Indoor Environment at the University Equestrian Facility in the Autumn Semester: A Case Study" Animals 15, no. 22: 3322. https://doi.org/10.3390/ani15223322
APA StyleKic, P., & Wohlmuthová, M. (2025). The Indoor Environment at the University Equestrian Facility in the Autumn Semester: A Case Study. Animals, 15(22), 3322. https://doi.org/10.3390/ani15223322

