Whole Life-Cycle Ecological Footprint of Rural Existing Houses in Northern China
Abstract
1. Introduction
2. The Theory of Ecological Footprint
2.1. Contents of Ecological Footprint
2.2. Basis of Ecological Footprint Evaluation
3. Ecological Footprint Calculation Methods on a Rural House
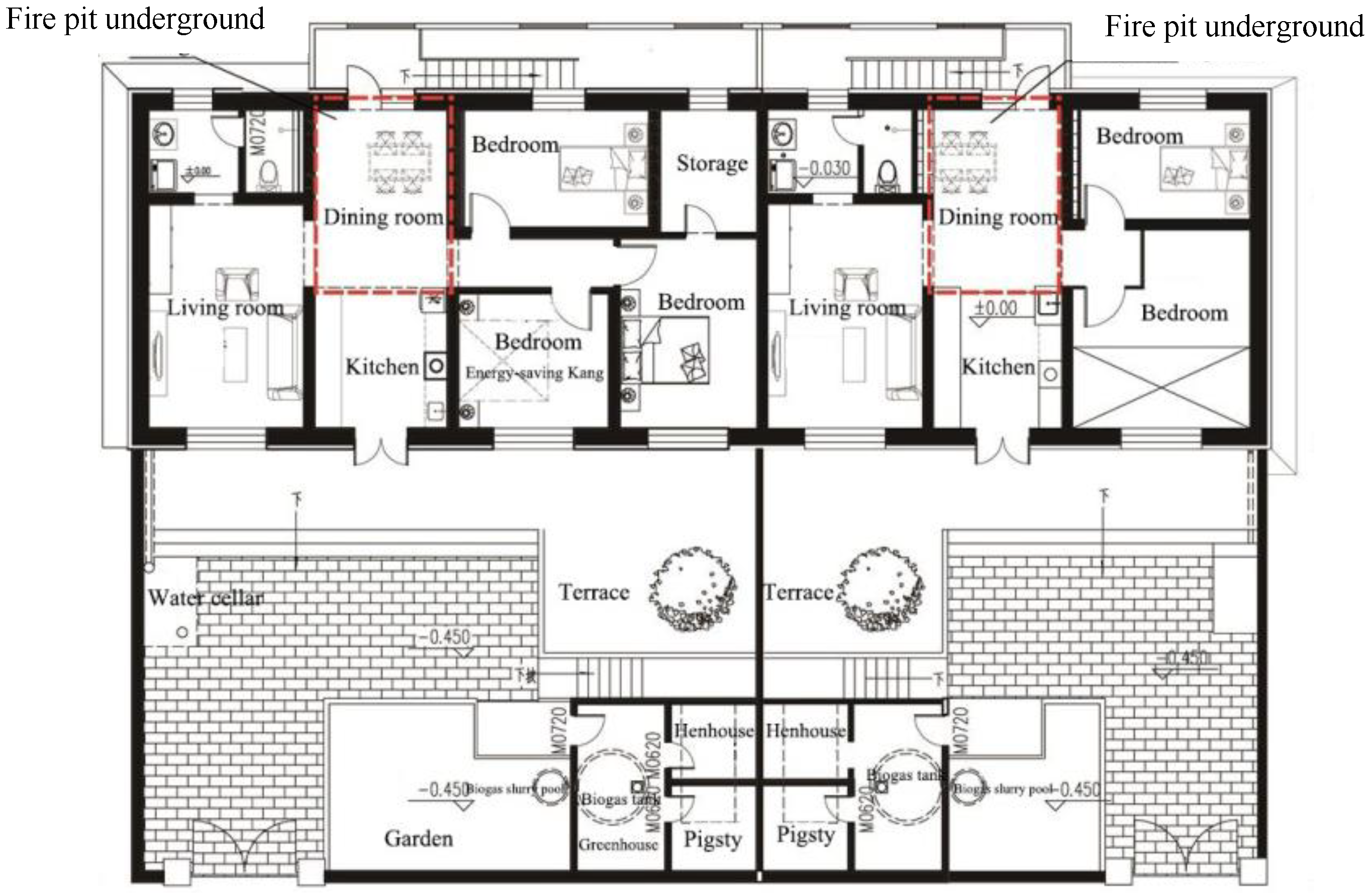
3.1. Rural House Introduction
3.2. Ecological Footprint Model
- (1)
- Estimating the consumption items in each stage of building for the whole life-cycle (including building materials, labor, machinery, and other energy consumptions).
- (2)
- Making uniform the dimensions of the various consumption items in this building and converting the consumption items into the corresponding solar energy value by using an energy conversion rate. Then summarize the various consumption items.
- (3)
- Collecting solar energy value to weight, then the total solar energy value of the rural house of 2.04 × 1018 sej can be drawn, with the result that the solar density of the rural house is: pj = total solar energy value/total building land areas = 4.3 × 1019 sej·hm−2.
- (4)
- Using solar density to convert the whole life-cycle consumption items into the corresponding ecological productive areas and make a summation. The calculation formula is:
4. Analysis and Discussion
4.1. Calculation Results
4.2. Assessment of Sustainable Development
4.3. Analysis on Rural House in Whole Life-Cycle
4.4. Selection of Building Materials on a Rural House
5. Comparison with Multi-Level Residence
5.1. Calculation of Ecological Footprint of Multi-Level Residence
5.2. Comparison of Sustainability Assessment on Two Residences
5.3. Whole Life-Cycle Comparison on Two Residences
5.4. Comparison of Main Consumption Items on the Two Residences
5.5. Analysis of Comparative Results
6. Conclusions
- (1)
- The Wafangdian ecological footprint is 0.091 ghm2, which is significantly lower than its ecological capacity, making the ecological surplus within the ecological footprint index 53%. Compared to the rural house, the multi-layer residence has a higher sustainable level, with an ecological footprint index 60%.
- (2)
- The rural house ecological footprint of the construction stage is the largest at approximately 87%, the proportion in the operation stage is roughly 11%, and in the design and demolition stage nearly 1%. Thus, the reduction of the ecological footprint during the construction stage and operation stage can reduce the total ecological footprint of the whole life-cycle effectively. In addition, although the multi-layer residence only added external wall thermal-insulation and a few necessary energy-saving measures, the sustainability of the multi-layer residence was obviously superior to the rural house and the load on the environment caused by the multi-layer residence was far less than the rural house (The per capita ecological footprint of the multi-layer residence was 0.004 ghm2/cap, the rural house was 0.010 ghm2/cap). Thus, the rural house designer should draw on the strategies of the multi-layer residential design and construction methods, while operation modes should be centralized, planned, and constructed. The heating demand of residents should be settled centrally, which could reduce the unnecessary waste of energy and resources.
- (3)
- The ecological footprint of the demolition is mainly caused by the direct burial of construction waste, which occupies a large amount of farmland. Thus, the reduction and recycling of construction waste can effectively reduce the ecological footprint during the demolition stage.
- (4)
- Electricity and other maintenance take up a large proportion in the total ecological footprint during the operation stage. Therefore, the ventilating and passive cooling measures should be considered for the design in northern Chinese villages.
- (5)
- The consumption of building material is the principal aspect of the ecological footprint. Thicker building envelopes can improve the thermal performance of the building. However, a thicker building construction consumes greater building materials and increases the ecological footprint. Thus, when choosing building materials, architects should consider using building materials with a low-energy conversion rate and higher thermal performance indexes to reduce the energy conversion and the ecological footprint. The most important thing is to use local materials.
- (6)
- It can be drawn from the value of energy density (the radio of total energy value to residential land area), improving the intensification of construction land can effectively reduce the ecological footprint. The important measures to save the land area are to have reasonable overall planning, reduce the residential courtyard area appropriately, increase the house depth, and use the multi-layer residential forms as much as possible. There are many resources available in village areas, so one should give full consideration to the recycling of resources, which is also an effective way to increase the Earth’s ecological carrying capacity, making it conducive to human sustainable development.
Author Contributions
Funding
Acknowledgments
Conflicts of Interest
References
- Li, B.; Du, C.; Yao, R.; Yu, W.; Costanzo, V. Indoor thermal environments in Chinese residential buildings responding to the diversity of climates. Appl. Therm. Eng. 2018, 129, 693–708. [Google Scholar] [CrossRef]
- Loveday, D.L.; Parsons, K.C.; Taki, A.H.; Hodder, S.G. Displacement ventilation environments with chilled ceilings: Thermal comfort design within the context of the BS EN ISO7730 versus adaptive debate. Energy Build. 2002, 34, 573–579. [Google Scholar] [CrossRef]
- Wackernagel, M.; Rees, W. Our Ecological Footprint: Reducing Human Impact on the Earth; New Society Publishers: Gabriola, BC, Canada, 1998; ISBN 9780865713123. [Google Scholar]
- Zhou, G. Research progress of ecological footprint at home and abroad. J. Zhejiang Univ. 2010, 6, 167–171. [Google Scholar]
- McDonald, G.W.; Patterson, M.G. Ecological Footprint sand interdependencies of New Zealand regions. Ecol. Econ. 2004, 50, 49–67. [Google Scholar] [CrossRef]
- Zhao, Y.; Liu, X.; Zhao, Y. Estimation of sustainable development of residential projects based on ecological footprint. J. Northwest Univ. 2010, 8, 703–707. [Google Scholar]
- Zhe, Y.; Ying, Y. Green Building Assessment Based on Ecological Footprint. Build. Econ. 2011, 3, 96–100. [Google Scholar]
- Wu, S. Green Building Ecological Footprint Calculation and Evaluation; Xi’an University of Architecture and Technology: Xi’an, China, 2011. [Google Scholar]
- Xu, Y.; Wu, S.; Wang, J. Ecological footprint analysis of engineering construction projects. Resour. Ind. 2010, 12, 150–153. [Google Scholar]
- WWF. Living Planet Report 2014 Summary. Available online: https://www.footprintnetwork.org/content/images/article_uploads/LPR2014_summary_low_res.pdf (accessed on 30 September 2014).
- China Ecological Footprint Report 2012; WWF Beijing Office: Beijing, China; Institute of Geographic Sciences and Natural Resources Research of Chinese Academy of Sciences: Beijing, China; Global Footprint Network: Oakland, CA, USA; Institute of Zoology: Beijing, China; Zoological Society of London: London, UK, 2012; Available online: https://www.footprintnetwork.org/content/images/article_uploads/China_Ecological_Footprint_2012.pdf (accessed on 19 December 2012).
- Van Vuuren, D.P.; Smeets, E.M.W. Ecological footprints of Benin, Bhutan, Costa Rica and the Netherlands. Ecol. Econ. 2003, 34, 115–130. [Google Scholar] [CrossRef]
- Gao, J.; Cheng, H. Analysis of Sustainable Development of Beijing Based on Ecological Footprint Method. Resour. Ind. 2010, 12, 101–108. [Google Scholar]
- Wang, X.; Zhang, Z.; Xiong, Y. Metrological Analysis of Literature on International Ecological Footprint. Adv. Earth Sci. 2007, 8, 872–877. [Google Scholar]
- Zhang, Z. An Understanding and Analysis of Ecological Footprint Methods. Resour. Environ. 2006, 16, 69–78. [Google Scholar]
- Yang, K.; Yang, Y.; Chen, J. Theory and method of ecological footprint analysis. Prog. Earth Sci. 2000, 12, 630–635. [Google Scholar]
- Wackernagel, M.; Kitzes, J.; Dan, M.; Goldfinger, S.; Thomas, M. The Ecological Footprint of cities and regions: comparing resource availability with resource demand. Environ. Urban. 2006, 18, 103–112. [Google Scholar] [CrossRef]
- Warrenr, K.; Koenig, A. Ecosystem appropriation by Hong Kong and its implications for sustainable development. Ecol. Econ. 2001, 39, 347–359. [Google Scholar] [CrossRef]
- Zhu, J.; Chen, B. Analysis of System Construction of Low-carbon Residence Based on Ecological Footprint. Archit. Sci. 2012, 28, 64–68. [Google Scholar]
- Li, J. Research on Eco-City Evaluation Method Based on Energy-Ecological Footprint Model; Tianjin University: Tianjin, China, 2010. [Google Scholar]
- Zhang, F.; Pu, L.; Zhang, J. Estimated Footprint Model Based on Energy Analysis Theory and Its Application: A Case Study of Jiangsu Province. J. Nat. Resour. 2006, 21, 653–660. [Google Scholar]
- Qian, F.; Wang, W. Energy Value Analysis and Evaluation of Building Environmental Efficiency—A Case Study of Peking University Gymnasium. Act. Archit. 2007, 7, 39–42. [Google Scholar]
- Wackernagel, M.; Onisto, L.; Bello, P.; Linares, A.C.; Falfán, I.S.L.; Garcıa, J.M.; Guerrero, A.I.S.; Guerrero, M.G.S. National natural capital accounting with the ecological footprint concept. Ecol. Econ. 1999, 29, 375–390. [Google Scholar] [CrossRef]


















| Project stage | Consumption Items | Original Data | Energy Conversion Rate/(sej/unit) | Solar Energy Value/sej | Per Capita Energy Value/sej | Per Capita Ecological Footprint/hm2 | Corresponding Land Type | Equilibrium Factor | Ecological Footprint/hm2 |
|---|---|---|---|---|---|---|---|---|---|
| Design stage | Labor costs/$ | 2568 | 5.20 × 1012 | 1.33536 × 1016 | 1.6692 × 1015 | 3.8805 × 10−5 | Construction land | 2.8 | 9.78 × 10−4 |
| Construction stage | Wood/g | 874,606 | 4.40 × 108 | 3.84827 × 1014 | 4.81033 × 1013 | 1.11829 × 10−6 | Woodland | 1.1 | 1.10711 × 10−5 |
| Brick | 1.8 × 108 | 2.60 × 109 | 4.79213 × 1017 | 5.99017 × 1016 | 0.001392573 | Construction land | 2.8 | 0.035092838 | |
| Sand/g | 7.7 × 107 | 1.00 × 109 | 7.6636 × 1016 | 9.5795 × 1015 | 0.000222701 | Fossil energy land | 1.1 | 0.002204739 | |
| Stone/g | 7.3 × 107 | 1.00 × 109 | 7.2594 × 1016 | 9.07425 × 1015 | 0.000210955 | Fossil energy land | 1.1 | 0.002088455 | |
| Cement/g | 2.9 × 107 | 2.30 × 109 | 6.7829 × 1016 | 8.47862 × 1015 | 0.000197108 | Fossil energy land | 1.1 | 0.00195137 | |
| Cement/g | 9,520,000 | 2.30 × 109 | 2.1896 × 1016 | 2.737 × 1015 | 6.36288 × 10−5 | Fossil energy land | 1.1 | 0.000629925 | |
| Cement/g | 3.9 × 107 | 2.80 × 1010 | 1.10264 × 1018 | 1.3783 × 1017 | 0.003204224 | Fossil energy land | 1.1 | 0.031721817 | |
| Cement/g | 90 | 5.20 × 1012 | 4.68 × 1014 | 5.85 × 1013 | 1.35999 × 10−6 | Construction land | 2.8 | 3.42717 × 10−5 | |
| XPS/$ | 886 | 5.20 × 1012 | 4.6072 × 1015 | 5.759 × 1014 | 1.33883 × 10−5 | Construction land | 2.8 | 0.000337386 | |
| Asphalt/$ | 954 | 5.2 × 1012 | 4.9608 × 1015 | 6.201 × 1014 | 1.44159 × 10−5 | Construction land | 2.8 | 0.00036328 | |
| Steel/g | 4,243,458 | 4.20 × 109 | 1.78225 × 1016 | 2.22782 × 1015 | 5.17915 × 10−5 | Construction land | 2.8 | 0.001305145 | |
| Glass/g | 295,000 | 7.90 × 109 | 2.3305 × 1015 | 2.91313 × 1014 | 6.77233 × 10−6 | Construction land | 2.8 | 0.000170663 | |
| Water/g | 7.7 × 107 | 6.60 × 105 | 5.08134 × 1013 | 6.35168 × 1012 | 1.47662 × 10−7 | Waters | 0.2 | 2.65791 × 10−7 | |
| Electricity/J | 1.6 × 109 | 1.60 × 105 | 2.59557 × 1014 | 3.24446 × 1013 | 7.54262 × 10−7 | Construction land | 2.8 | 1.90074 × 10−5 | |
| Labor costs/$ | 5198 | 5.20 × 1012 | 2.70296 × 1016 | 3.3787 × 1015 | 7.85468 × 10−5 | Construction land | 2.8 | 0.00197938 | |
| Finished doors/$ | 110 | 5.2 × 1012 | 5.72 × 1014 | 7.15 × 1013 | 1.66221 × 10−6 | Construction land | 2.8 | 4.18876 × 10−5 | |
| Other coasts/$ | 1000 | 5.20 × 1012 | 5.2 × 1015 | 6.5 × 1014 | 1.5111 × 10−5 | Construction land | 2.8 | 0.000380797 | |
| Building wastes | - | - | - | - | - | - | - | 0.000260014 | |
| Operation stage | Water/g | 1.9 × 109 | 6.60 × 105 | 1.26852 × 1015 | 1.58565 × 1014 | 3.68626 × 10−6 | Waters | 0.2 | 6.63528 × 10−6 |
| Electricity/J | 7.8 × 1011 | 1.60 × 105 | 1.25019 × 1017 | 1.56274 × 1016 | 0.0003633 | Construction land | 2.8 | 0.009155157 | |
| Coal/g | 8.8 × 107 | 3.93 × 104 | 3.4584 × 1012 | 4.323 × 1011 | 1.005 × 10−8 | Fossil energy land | 1.1 | 9.94946 × 10−8 | |
| Straw/g | 1.4 × 108 | 1.70 × 105 | 2.448 × 1013 | 3.06 × 1012 | 7.11378 × 10−8 | Arable land | 2.8 | 1.79267 × 10−6 | |
| Other maintenance/$ | 2837 | 5.20 × 1012 | 1.47524 × 1016 | 1.84405 × 1015 | 4.28698 × 10−5 | Construction land | 2.8 | 0.00108032 | |
| Demolition stage | Building wastes | - | - | - | - | - | - | - | 0.000772799 |
| Total ecological footprint | - | - | - | - | - | - | - | - | 0.090518681 |
| Project Stage | Consumption Items | Original Data | Energy Conversion Rate/(sej/unit) | Solar Energy Value/sej | Per Capita Energy Value/sej | Per Capita Ecological Footprint/hm2 | Corresponding Land Type | Equilibrium Factor | Ecological Footprint/hm2 |
|---|---|---|---|---|---|---|---|---|---|
| Design stage | Labor costs/$ | 8622.4 | 5.20 × 1012 | 4.48365 × 1016 | 2.13507 × 1014 | 6.14827 × 10−7 | Construction land | 2.8 | 0.00036 |
| Construction stage | Wood/g | 41,524,525 | 4.40 × 108 | 1.82708 × 1016 | 8.70038 × 1013 | 2.50541 × 10−7 | Woodland | 1.1 | 5.7875 × 10−5 |
| Red brick/g | 97,364,027 | 2.60 × 109 | 2.53146 × 1017 | 1.20546 × 1015 | 3.47131 × 10−6 | Arable land | 2.8 | 0.00204 | |
| Hollow block/g | 898,493,730 | 2.80 × 1010 | 2.51578 × 1019 | 1.19799 × 1017 | 0.000344981 | Construction land | 2.8 | 0.20284 | |
| Gravel/g | 903,291,280 | 1.00 × 109 | 9.03291 × 1017 | 4.30139 × 1015 | 1.23865 × 10−5 | Fossil energy land | 1.1 | 0.00286 | |
| Cement/g | 162,189,614 | 2.30 × 109 | 3.73036 × 1017 | 1.77636 × 1015 | 5.11532 × 10−6 | Fossil energy land | 1.1 | 0.00118 | |
| Cement tile/g | 6,043,805 | 2.30 × 109 | 1.39008 × 1016 | 6.61941 × 1013 | 1.90616 × 10−7 | Fossil energy land | 1.1 | 0.00004403 | |
| Concrete/g | 5,156,518,149 | 2.80 × 1010 | 1.44383 × 1020 | 6.87536 × 1017 | 0.001979868 | Fossil energy land | 1.1 | 0.45734 | |
| Lime/$ | 1863 | 5.20 × 1012 | 9.6876 × 1015 | 4.61314 × 1013 | 1.32843 × 10−7 | Construction land | 2.8 | 0.0000781 | |
| Asphalt/$ | 7718 | 5.20 × 1012 | 4.01336 × 1016 | 1.91112 × 1014 | 5.50338 × 10−7 | Construction land | 2.8 | 0.00032 | |
| Steel/g | 11,903,783 | 4.20 × 109 | 4.99959 × 1016 | 2.38076 × 1014 | 6.85576 × 10−7 | Construction land | 2.8 | 0.00040 | |
| Insulation mortar/$ | 4216 | 5.20 × 1012 | 2.19232 × 1016 | 1.04396 × 1014 | 3.00625 × 10−7 | Fossil energy land | 1.1 | 6.94444 × 10−5 | |
| Coating/$ | 14,162 | 5.20 × 1012 | 7.36424 × 1016 | 3.50678 × 1014 | 1.00983 × 10−6 | Construction land | 2.8 | 0.00059 | |
| Plastic pipe/$ | 13,482 | 5.20 × 1012 | 7.01064 × 1016 | 3.3384 × 1014 | 9.61345 × 10−7 | Construction land | 2.8 | 0.00056 | |
| Glass cloth/$ | 3223 | 5.20 × 1012 | 1.67596 × 1016 | 7.98076 × 1013 | 2.29819 × 10−7 | Construction land | 2.8 | 0.00013 | |
| Glass/g | 137,415,600 | 7.90 × 109 | 1.08558 × 1018 | 5.16944 × 1015 | 1.48862 × 10−5 | Construction land | 2.8 | 0.00875 | |
| Water/g | 769,900,000 | 6.60 × 105 | 5.08134 × 1014 | 2.41969 × 1012 | 6.96787 × 10−9 | Waters | 0.2 | 2.9265 × 10−7 | |
| Electricity/J | 1,622,232,000 | 1.60 × 105 | 2.59557 × 1015 | 1.23599 × 1013 | 3.55922 × 10−8 | Construction land | 2.8 | 0.000020 | |
| Cylindrical cast-iron radiators /$ | 14,363 | 5.20 × 1012 | 7.46876 × 1016 | 3.55655 × 1014 | 1.02417 × 10−6 | Construction land | 2.8 | 0.00060 | |
| Labor costs/$ | 138,929 | 5.20 × 1012 | 7.22431 × 1017 | 3.44015 × 1015 | 9.90645 × 10−6 | Construction land | 2.8 | 0.00582 | |
| Machinery costs/$ | 49,035 | 5.20 × 1012 | 2.54982 × 1017 | 1.2142 × 1015 | 3.49648 × 10−6 | Construction land | 2.8 | 0.00205 | |
| Finished doors/$ | 16,973 | 5.20 × 1012 | 8.82596 × 1016 | 4.20284 × 1014 | 1.21027 × 10−6 | Construction land | 2.8 | 0.00071 | |
| Other costs/$ | 11,766 | 5.20 × 1012 | 6.11832 × 1016 | 2.91349 × 1014 | 8.38984 × 10−7 | Construction land | 2.8 | 0.00049 | |
| Building wastes | - | - | - | - | 3.00857 × 10−5 | Construction land | 2.8 | 0.00631 | |
| Operation stage | Water/g | 6,078,240,000 | 6.60 × 105 | 4.01164 × 1016 | 1.9103 × 1014 | 5.50102 × 10−7 | Water | 0.2 | 0.0000231 |
| Electricity/J | 5.95728 × 1012 | 1.60 × 105 | 9.53165 × 1017 | 4.53888 × 1015 | 1.30704 × 10−5 | Construction land | 2.8 | 0.00768 | |
| Heating costs/$ | 900,886.5 | 5.20 × 1012 | 4.68461 × 1018 | 2.23077 × 1016 | 6.42384 × 10−5 | Construction land | 2.8 | 0.03777 | |
| Gas/$ | 80,892 | 3.93 × 104 | 3,179,055,600 | 15,138,360 | 4.35933 × 10−14 | Fossil energy land | 1.1 | 1.00701 × 10−11 | |
| Other costs/$ | 560,795.52 | 5.20 × 1012 | 2.91614 × 1018 | 1.38864 × 1016 | 3.9988 × 10−5 | Construction land | 2.8 | 0.02351 | |
| Demolition stage | Building wastes | - | - | - | - | 0.000460649 | Construction land | 2.8 | 0.09673 |
| Total ecological footprint | 0.85942 | ||||||||
© 2018 by the authors. Licensee MDPI, Basel, Switzerland. This article is an open access article distributed under the terms and conditions of the Creative Commons Attribution (CC BY) license (http://creativecommons.org/licenses/by/4.0/).
Share and Cite
Liu, M.; Zhang, B.; Ren, J.; Lian, C.; Yuan, J.; Hao, Q. Whole Life-Cycle Ecological Footprint of Rural Existing Houses in Northern China. Buildings 2018, 8, 92. https://doi.org/10.3390/buildings8070092
Liu M, Zhang B, Ren J, Lian C, Yuan J, Hao Q. Whole Life-Cycle Ecological Footprint of Rural Existing Houses in Northern China. Buildings. 2018; 8(7):92. https://doi.org/10.3390/buildings8070092
Chicago/Turabian StyleLiu, Ming, Baogang Zhang, Jingwei Ren, Chaoli Lian, Jie Yuan, and Qingli Hao. 2018. "Whole Life-Cycle Ecological Footprint of Rural Existing Houses in Northern China" Buildings 8, no. 7: 92. https://doi.org/10.3390/buildings8070092
APA StyleLiu, M., Zhang, B., Ren, J., Lian, C., Yuan, J., & Hao, Q. (2018). Whole Life-Cycle Ecological Footprint of Rural Existing Houses in Northern China. Buildings, 8(7), 92. https://doi.org/10.3390/buildings8070092
