Experimental Research on the Seismic Behavior of Reinforced Concrete Column–Beam Joints Connected by Π-Shaped Steel Plates
Abstract
1. Introduction
2. Designing and Testing
2.1. Designing the Specimens
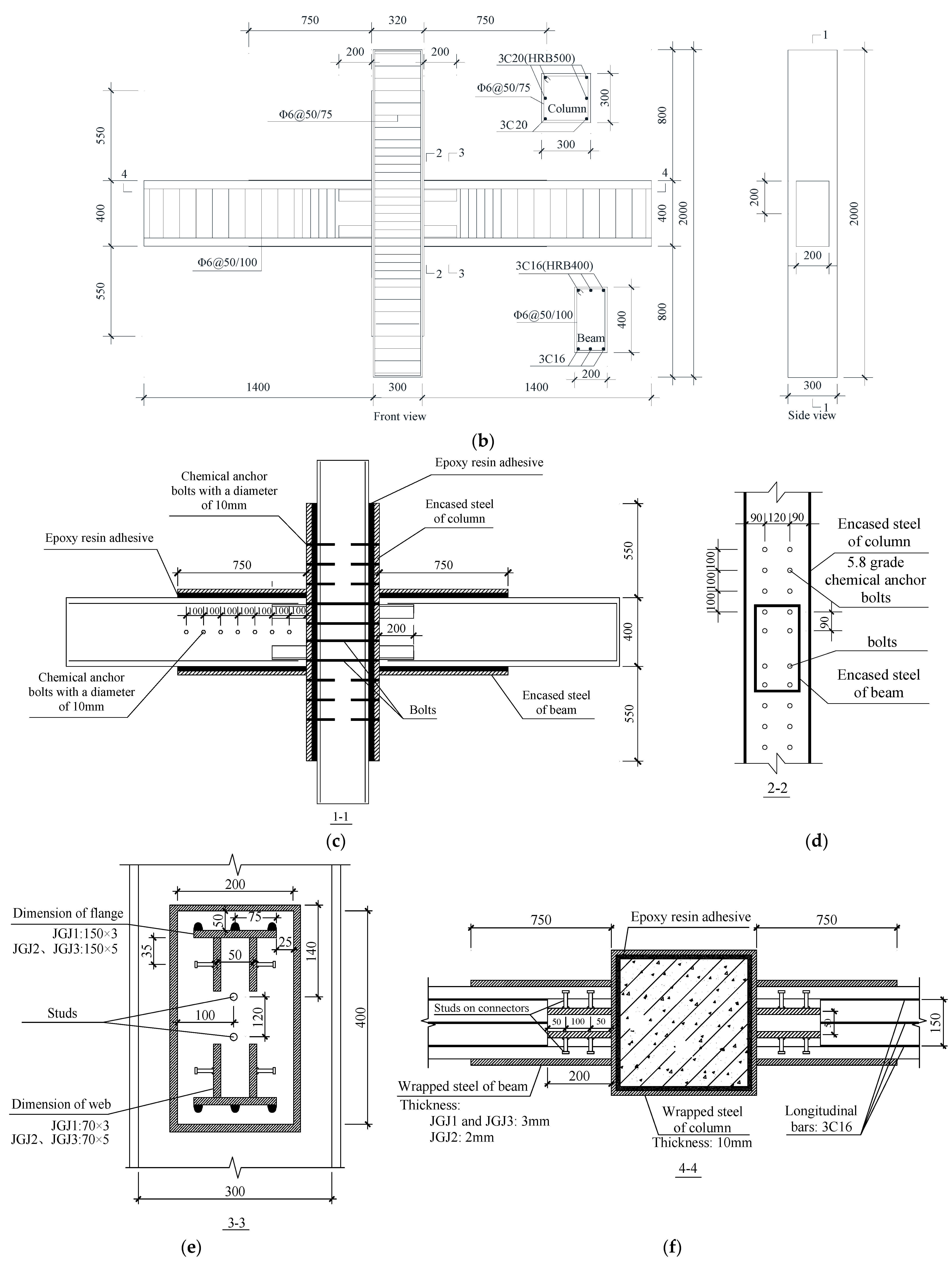
- Treatment of wrapped steel. In the fabrication process of the new types of joints, the epoxy resin adhesive is first applied on the surface of the concrete before the wrapping of steel to ensure the bonding effect between steel and concrete. Then, chemical anchor bolts are placed on the outer side of the joint, as shown in Figure 1c. The chemical anchor bolts used for the wrapped steel of the beam are grade 5.8, with a diameter of 8 mm and a spacing of 100 mm. The chemical anchor bolts used in the encased steel of the column are grade 5.8, with a diameter of 10 mm and a spacing of 100 mm. The chemical anchor bolts used in this paper are produced by Daze Fastener Manufacturing Co., Ltd. in Handan City, Hebei Province, China. Based on the finite element analysis results, the chemical anchor bolts used in the beams and columns ensure that there is no slip or vertical separation between the steel plate and the concrete. At the same time, considering the complexity of the force at the intersection of the beam and the column, four rows of bolts are arranged on the side of the column, two bolts for each row, as shown in Figure 1d. The quantity and arrangement of the bolts are determined based on the specifications of Chinese standard GB 50205-2001 [28] and the influence of the location of the connector, which ultimately inform the layout chosen for this paper.
- Design points for the Π-shaped steel plates (connectors). The connector consists of a flange and two webs. The width of the flange is 150 mm and the length along the length direction of the beam is 200 mm. The dimensions of the web are 70 mm × 200 mm. The thicknesses of the flange and the web differ across different specimens. The thickness of the flange and web of JGJ1 and JGJ2/3 are 3 mm and 5 mm, respectively. The design condition of the steel plate is given in Table 1. The center spacing of the web is 50 mm, the length of the upper edge of the flange from the lower edge of the wrapped steel of the beam is 50 mm, and the outer edge of the flange is 25 mm from the encased steel of the beam on both sides. The steel bars of the beam are welded onto the outer side of the flange, and there are no stirrups in the range of the connector. The construction of the connector is given in Figure 1e,f.
- 3.
- The connection treatment between the concrete and steel plate. Two studs are arranged on the wrapped steel around the column with a spacing of 120 mm and 100 mm from the outer edge of the beam (Figure 1e). Two studs are arranged on each of the two webs of the connector with a spacing of 100 mm, as shown in Figure 2.
2.2. Properties of the Materials
2.2.1. Concrete
2.2.2. Steel Bar
2.2.3. Steel Plate
2.3. Manufacturing of the Specimens
- Pasting of the strain gauges. According to the stress characteristics of the joint, strain gauges are pasted on the longitudinal reinforcement, stirrups, and steel plates near the core area (Figure 6).
- 2.
- Pouring the column concrete and wrapping the steel plate. For specimens JGJ1–JGJ3, after pouring and curing the column concrete (Figure 7a), the epoxy resin adhesive is applied on the concrete surface and the steel is wrapped. Then, the Π-shaped steel is welded onto the wrapped steel of the column. Finally, the longitudinal reinforcement of the beam is welded onto the flange of the connector, as shown in Figure 7b. The wrapped steel used for the column and the beam is formed by welding four steel plates together. All welding mentioned in this paper is carried out using arc welding, including the following two types of welding: welding between steel plates and steel bars. For the first type of welding, the calculated thickness of the weld seam is the thickness of the thinner plate at the welding site. For the second type of welding, the welding thickness cannot be less than 0.3 times the diameter of the steel bar, and the weld width cannot be less than 0.8 times the diameter of the steel bar [31].
- 3.
2.4. Loading of the Specimen
3. Failure Phenomenon and Analysis
3.1. Failure Phenomenon
- BZJ
- 2.
- JGJ-1
- 3.
- JGJ-2
- 4.
- JGJ-3
- 5.
- Failure of the core area of JGJ1–JGJ3
3.2. Failure Process Analysis
- (1)
- The cracks of BZJ mainly appear in the core area. When the joint is damaged, the deformation of the beam is large, and the longitudinal reinforcement of the beam is exposed after the spalling off of the concrete. While the cracks of JGJ1–JGJ3 mainly appear in the wrapped steel welds of the beam and the column near the core area, the concrete is basically intact due to the restraint effect of the wrapped steel. These phenomena indicate that after the specimen has been treated with wrapped steel, the main stress components of the joint specimen change. The bearing capacity of BZJ mainly relies on the stress of the steel reinforcement and compression of the concrete, and when these two materials are damaged or reach the yield state, the component is damaged. Meanwhile the new type of joint specimen mainly relies on the stress of the wrapped steel; thus, the bearing capacity is higher before the welds of the wrapped steel fail.
- (2)
- Compared with JGJ2, JGJ3 has a larger loading displacement when the weld cracks of wrapped steel appear, indicating that increasing the thickness of the wrapped steel of the beam can delay the time the cracks take to appear and enhance the integrity of the joint.
- (3)
- Compared with JGJ3, JGJ1 has a larger cracking displacement before the weld seam cracks, showing that the deformation capacity is stronger when the connector thickness is smaller.
4. Result Analysis of Testing
4.1. Hysteretic Curve
- (1)
- At the early stage of the test, hysteretic curves are basically straight, indicating that the specimen has sustained no damage.
- (2)
- As the loading displacement increases, the hysteretic curve gradually becomes fuller, and the slope gradually becomes smaller, indicating that the specimen is damaged during the loading process, resulting in a gradual increase in its energy dissipation capacity and a decrease in its stiffness.
- (3)
- The hysteretic curve of BZJ is Z-shaped, while those of JGJ1–JGJ3 are inverted S-shaped. This is because the damage to the cast-in-place specimen is more serious during the loading process, which leads to the hysteretic curve showing a larger slip section and a poorer energy dissipation capacity. Meanwhile, the main stressing parts of the new types of joints are the wrapped steel and weld seam, which also show certain slip characteristics, though the shape of curve is still full.
- (4)
- The curves of the new types of joints have the same shape. Compared with JGJ3, the hysteretic curve of JGJ2 exhibits a more pronounced pinching phenomenon, which indicates that increasing the thickness of the wrapped steel and Π-shape steel can enhance the mechanical performance of the component and can consume more energy in the loading process.
- (5)
- From the hysteresis curves of the four specimens, it can be seen that the loading displacements corresponding to the maximum bearing capacity of BZJ, JGJ1, JGJ2, and JGJ3 are 84 mm, 39 mm, 39 mm, and 39 mm, respectively. This indicates that the stiffness of the specimens increases significantly with the reinforcement of wrapped steel, and significant damage occurs at smaller loading displacements. After reaching the maximum bearing capacity, BZJ meets the failure criteria after two cycles of loading, while JGJ1–JGJ3 fail after seven cycles of loading, indicating that wrapped steel reinforcement is effective in increasing the deformation and energy dissipation capacity of the specimen.
4.2. Skeleton Curve
- (1)
- The skeleton curve of BZJ is basically straight in the preloading phase, and the specimen sustains no serious damage, although some cracks have appeared on the concrete of the beam. With gradual accumulation of damage, the growth trend of the curve begins to slow down and decline after reaching the maximum bearing capacity.
- (2)
- The skeleton curves of JGJ1–JGJ3 are also basically straight in the early stage of the experiment, and at this time, the cracks of the specimen mainly appear on the concrete of the beam without wrapped steel, indicating that the joint has sustained little damage. Then, the weld seam of the wrapped steel begins to crack, decreasing the rate at which the curve increases. After reaching the maximum bearing capacity, the curve begins to decrease, but the decreasing trend is slower than that of BZJ, which indicates that the wrapped steel treatment improves the stress properties of the specimen.
- (3)
- Comparing the skeleton curves of JGJ1 and JGJ3, it can be obtained that the stiffness of the two specimens is basically the same at the beginning of the test, and the maximum load is 106.4 kN and 122.9 kN, respectively. Then, the carrying capacity decreases slowly. Through the strain gauges arranged on the connectors, it can be found that the strain values of the connectors of all the new type of joints are very small, indicating that the influence of the connectors on the bearing capacity is very small, and the difference in bearing capacity is perhaps due to the poor quality of the weld seam.
- (4)
- Through the comparison of JGJ2 and JGJ3, it is concluded that the stiffness remains basically unchanged when no damage or less damage occurs. The skeleton curves increase linearly, and the carrying capacity decreases slowly when the specimen has reached the maximum bearing capacity. The bearing capacities of JGJ2 and JGJ3 are 104.8 kN and 122.9 kN, respectively, which indicates that the influence of the thickness of the wrapped steel on the bearing capacity is significant.
- (5)
- Comparing the characteristic load of the joint, it can be found that the characteristic load values of the specimens treated with a steel plate are higher than those of the standard joint. By comparing and analyzing the test results of the new types of specimens, it can be found that JGJ3 has the highest characteristic load values, indicating that the influence of the thickness of the wrapped steel is relatively significant. At the same time, it can also be demonstrated that the greater the amount of steel used, the more obvious the effect of improving the seismic performance becomes.
4.3. Ductility Analysis
- (1)
- Compared with BZJ, the ductility coefficients of JGJ1–JGJ3 increase by 36.3%, 94.5%, and 63.4%, respectively, indicating that the wrapped steel plates restrain the formation and development of cracks in the internal reinforced concrete part, and the good mechanical properties of the steel plates themselves ensure that the specimens have a good elasticity-plasticity deformation capacity. After reaching the maximum bearing capacity, the specimen can still maintain a certain load capacity.
- (2)
- Compared with JGJ1, the ductility coefficient of JGJ3 increases by 19.9%, which indicates that increasing the connector thickness could significantly enhance the integrality of the specimen and maintain the effectiveness of the connection after the destruction of the wrapped steel weld, thus enhancing ductility.
- (3)
- The coefficient of JGJ2 increases by 19.0% compared to that of JGJ3, which indicates that the wrapped steel thickness of the beam has an adverse effect on the ductility. This may be due to the fact that as the thickness of the steel plate increases, it shares more load at the beginning of the experiment and its bearing capacity decreases faster after the weld cracks. At the same time, the greater the wrapped steel thickness, the stronger the restraining effect on the RC part, resulting in the smaller plastic deformation of the concrete when it reaches the limit state, which leads to a reduction in ductility.
4.4. Rigidity Degeneration
- (1)
- By comparing the rigidity degeneration curves of BZJ and JGJ1–JGJ3, it can be seen that the initial stiffness of the standard joint is smaller than that of the new types of joints. As the experiment progresses, the stiffness of both specimens starts to decrease after the damage of the specimens occurs. For BZJ, stiffness decreases, mainly due to the failure of the concrete, increasing the stress in the steel bars; while for JGJ1–JGJ3, the stiffness decreases mainly due to the cracking of the steel plate welds. The stiffness degeneration of the new types of joints is relatively fast because the welds are mainly damaged under tension. The stiffness degeneration rates of the two types of specimens are basically the same when the specimens are close to damage.
- (2)
- The rigidity of the new types of joints at the time of failure is basically the same as that of the cast-in-place specimen, indicating that the wrapped steel treatment can maintain a certain stiffness during failure while significantly enhancing the initial stiffness of the specimen. This is beneficial for the structure, helping with maintaining integrity after experiencing external loads.
- (3)
- Compared with JGJ3, the initial stiffness of JGJ1 is smaller, but the stiffness decreases at a slower rate, which is mainly due to the existence of certain defects in the welds of JGJ1. After the cracks of the wrapped steel welds appear at the early stage of loading, the main force part becomes the wrapped steel of the column, ultimately leading to the cracking of the wrapped steel welds. Considering that the stresses in the Π-shaped steel plate are small throughout the test, the effects of the thickness of the connector is not significant.
- (4)
- The initial stiffnesses of JGJ2 and JGJ3 are basically the same, and both drop rapidly at the beginning of loading. Compared with JGJ3, the drop of JGJ2 is larger, but the drop rate of the two specimens is consistent when the displacement is 25 mm. This is mainly due to the fact that an increase in the wrapped steel thickness of the beam increases the constraint effect on the concrete, which can effectively improve the initial stiffness. However, the effect of the thickness of the wrapped steel gradually decreases with the development of cracks in the weld seam.
4.5. Energy Dissipation Capacity
- (1)
- Compared with JGJ1–JGJ3, the energy dissipation capacity of BZJ is obviously weaker, which is due to the fact that the main bearing materials of the cast-in-place specimen are steel reinforcement and concrete, and the concrete is subjected to tensile and compressive effects under cyclic loads, which results in rapid destruction, leading to the lower energy dissipation capacity. The load of JGJ1–JGJ3 is mainly borne by the wrapped steel, and due to the good mechanical properties of the steel plate, a large amount of energy is consumed during the deformation process, so the new type of joint has a better energy dissipation capacity.
- (2)
- Compared with JGJ3, the energy dissipation capacities of JGJ1 and JGJ2 are relatively poor, and the gap between the cumulative energy dissipation curves of JGJ1 and JGJ2 and those of JGJ3 gradually becomes bigger with the increase in loading displacement. This shows that increasing the amount of steel can effectively improve the energy dissipation capacity but has little effect on the damage deformation.
- (3)
- The cumulative energy dissipation curves of JGJ1 and JGJ2 are basically the same. During the gradual increase in elastic-plastic deformation, the cumulative energy dissipation curve of JGJ1 is slightly larger than that of JGJ2, but the value of the two specimens is basically the same when they reach the destructive load. This may be due to the fact that the wrapped steel thickness of the beam of JGJ1 is larger than that of JGJ2, which results in more energy being consumed before the specimen is damaged. However, when the specimen is damaged, there is not much difference in the energy dissipation capacity of JGJ1 and JGJ2 because the connecting parts begin to experience stress.
5. Conclusions
- (1)
- The failure of BZJ mainly appears in the core area of the joint. With the increase in loading displacement, the concrete is gradually destroyed, and the longitudinal reinforcement yields. The damage of JGJ1–JGJ3 firstly appears in the connection welds of the beam and column cladding steel. Then, cracks appear in the weld of the column cladding steel. When the joint fails, the wrapped steel weld seam of the column within the range of the beam height cracks. This shows that the force transfer mechanism of the specimen after steel cladding treatment has changed, and there is a change from reinforced concrete force to wrapped steel force.
- (2)
- Compared with BZJ, the carrying capacity of JGJ1–JGJ3 increases by −5.0%, −6.4%, and 9.8%, respectively, indicating that the effectiveness of the new type of joint in bearing capacity enhancement needs to be further investigated. Through the analysis of the failure phenomenon, the bearing capacity of JGJ1–JGJ3 is primarily affected by the quality of the weld seam. All loading displacements of the new type of joint when reaching the damage criterion are larger than the corresponding values of the standard specimens, indicating that the good deformation capacity of wrapped steel enhances the deformation capacity of the joint.
- (3)
- The stiffness of all the joints gradually decreases as loading progresses. Considering that the cracking of JGJ1–JGJ3 is mainly due to the fracture of the weld seam, their stiffness decreases faster than that of the standard specimens, and the larger the amount of steel plate used, the faster the stiffness degeneration. When the specimens reached the damage state, the stressed parts of all specimens become reinforced concrete, so the stiffness values are basically the same.
- (4)
- Following the wrapping steel treatment, the energy dissipation capacity increases significantly, and the cumulative energy dissipation of JGJ3 with the best mechanical properties is three times that of BZJ, indicating that the seismic properties of the joint are effectively enhanced through the wrapping steel treatment.
- (5)
- By analyzing the seismic performance of JGJ1–JGJ3, it can be found that the thickness of the wrapped steel of the beam enhances the mechanical performance of the specimen more obviously, while the role of the Π-shaped steel plate is not obvious. This is due to the fact that the wrapped steel is the main force part. The specimen has already reached the damage state after the connecting weld has penetrated through the wrapped steel, and the effect of the connector is not obvious.
Author Contributions
Funding
Data Availability Statement
Acknowledgments
Conflicts of Interest
References
- Aycardi, L.E.; Mander, J.B.; Reinhorn, A.M. Seismic resistance of reinforced-concrete frame structures designed only for gravity loads-experimental performance of subassemblages. ACI Struct. J. 1994, 91, 552–563. [Google Scholar]
- Kalogeropoulos, G.I.; Tsonos, A.D.G.; Konstandinidis, D.; Tsetines, S. Pre-earthquake and post-earthquake retrofitting of poorly detailed exterior, RC beam-to-column joints. Eng. Struct. 2016, 109, 1–15. [Google Scholar] [CrossRef]
- Yavari, S.; Elwood, K.J.; Wu, C.L.; Lin, S.H.; Hwang, S.J.; Moehle, J.P. Shaking table tests on reinforced concrete frames without seismic detailing. ACI Struct. J. 2013, 110, 1001–1011. [Google Scholar]
- ACT-40; Seismic Evaluation and Retrofit of Concrete Buildings. Applied Technology Council: Redwood City, CA, USA, 1996.
- Chen, H.; Xie, Q.C.; Dai, B.Y.; Zhang, H.Y.; Chen, H.F. Seismic damage to structures in the, Ms 6.5 Ludian earthquake. Earthq. Eng. Eng. Vib. 2016, 15, 173–186. [Google Scholar] [CrossRef]
- Huang, C.C.; Hsiao, H.J.; Shao, Y.; Yen, C.H. A comparative study on the seismic performance of, RC beam-column joints retrofitted by, ECC, FRP, and concrete jacketing methods. J. Build. Eng. 2023, 64, 105691. [Google Scholar] [CrossRef]
- Tong, L.W.; Wang, T.T.; Xu, X.M.; Gao, F.; Shi, W.Z.; Zhou, F. Experimental study on, CFRP reinforcement and static performance of, CHS KT-joints. J. Constr. Steel Res. 2024, 216, 108618. [Google Scholar] [CrossRef]
- Biddah, A.; Ghobarah, A.; Aziz, T.S. Upgrading of, Nonductile, Reinforced, Concrete, Frame, Connections. J. Struct. Eng. ASCE 1997, 123, 1001. [Google Scholar] [CrossRef]
- Li, W.; Xu, L.F.; Qian, W.W. Seismic performance of 3-D steel beam to concrete-encased, CFST column joints: Tests. Eng. Struct. 2021, 232, 111793. [Google Scholar] [CrossRef]
- Zhou, J.; Chen, Z.P.; Xu, W.S.; Liao, H.Y.; Wang, N. Seismic behavior of 3-D beam to, L-shaped concrete encased steel composite column joint: An experimental study. J. Build. Eng. 2022, 52, 104437. [Google Scholar] [CrossRef]
- Lee, H.J.; Park, H.G. Seismic behavior of precast concrete beam-column joints with encased steel tube. J. Build. Eng. 2022, 61, 105296. [Google Scholar] [CrossRef]
- Derakhshesh, P.; Mirghaderi, S.R.; Nouri, G.; Farzam, M. Behavior of new hybrid connection between steel beam and concrete-encased composite column. J. Constr. Steel Res. 2023, 210, 108043. [Google Scholar] [CrossRef]
- Liu, X.C.; Meng, K.; Chen, X.S.; Zhang, J.; Cui, Y. Axial compression behavior of prefabricated, L-section thin concrete encased steel short columns. J. Constr. Steel Res. 2023, 208, 107989. [Google Scholar] [CrossRef]
- Fang, J.P.; Zhou, L.Y.; Liu, J.H. Axial and eccentric compressive behavior of partially encased channel–concrete composite columns with bolted connections in modular buildings. J. Build. Eng. 2024, 98, 111173. [Google Scholar] [CrossRef]
- Chen, G.X.; Gan, T.; Gao, X.L. Flexural behavior of, UHPC encased steel composite beams: Experiment and numerical simulation. J. Constr. Steel Res. 2025, 226, 109233. [Google Scholar] [CrossRef]
- Cai, Z.W.; Liu, X.; Li, L.Z.; Lu, Z.D.; Chen, Y. Seismic performance of, RC beam-column-slab joints strengthened with steel haunch system. J. Build. Eng. 2021, 44, 103250. [Google Scholar] [CrossRef]
- Zhang, X.G.; Yang, K.Y.; Hu, Q.M.; Wang, C.; Zhuang, L.D. Study of, U-shape steel-encased composite beams with variable sections under negative bending moments. Structures 2023, 57, 105098. [Google Scholar] [CrossRef]
- Nguyen, V.P.; Nguyen, Q.H.; Couchaux, M.; Aribert, H.M.; Hjiaj, M. Hybrid steel beam to exterior, RC column joints with encased steel profile. Eng. Struct. 2024, 306, 117624. [Google Scholar] [CrossRef]
- Ertas, O.; Ozden, S.; Özturan, T. Ductile connections in precast concrete moment resisting frames. PCI J. 2006, 51, 66–76. [Google Scholar] [CrossRef]
- Choi, H.K.; Choi, Y.C.; Choi, C.S. Development and testing of precast concrete beam-to-column connections. Eng. Struct. 2013, 56, 1820–1835. [Google Scholar] [CrossRef]
- Ali, A.Y.; AI-Rammahi, A.A. Flexural behavior of hybrid-reinforced concrete exterior beam-column joints under static and cyclic loads. Fibers 2019, 7, 94. [Google Scholar] [CrossRef]
- Kurosawa, R.; Sakata, H.; Qu, Z.; Suyama, T. Precast prestressed concrete frames for seismically retrofitting existing, RC frames. Eng. Struct. 2019, 184, 345–354. [Google Scholar] [CrossRef]
- Zhang, A.L.; Qiu, P.; Guo, K.; Jiang, Z.Q.; Wu, L.; Liu, S.C. Experimental study of earthquake-resilient end-plate type prefabricated steel frame beam-column joint. Eng. Struct. 2020, 166, 105927. [Google Scholar] [CrossRef]
- Cao, W.L.; Yang, Z.Y.; Wang, X.J.; Dong, H.Y. Seismic behavior of prefabricated beam-column joint with π-shaped connector. Structures 2023, 58, 105553. [Google Scholar] [CrossRef]
- Jannesari, Z.; Tasnimi, A.A. Investigating seismic behavior of a modified widened flange beam-column connection in, SMRF utilizing experimental, numerical and hybrid simulation. J. Constr. Steel. Res. 2023, 207, 107971. [Google Scholar] [CrossRef]
- Joshi, M.K.; Murty, C.V.R.; Jaisingh, M.P. Cyclic behaviour of precast, RC connections. Indian Concrete J. 2005, 79, 43–50. [Google Scholar]
- Huang, H.; Zhao, M.; Yang, B.X.; Huang, M.; Li, M. Research on seismic performance of replaceable prefabricated, RC beam-column joints. Structures 2024, 65, 106742. [Google Scholar] [CrossRef]
- GB 50205-2001; Code for Acceptance of Construction Quality of Steel Structures. China Construction Industry Press: Beijing, China, 2001.
- GB/T 50081-2019; Standard for Test Methods of Concrete Physical and Mechanical Properties. China Construction Industry Press: Beijing, China, 2019.
- GB/T 228.1-2010; Metallic, Materials-Tensile testing-Part 1: Method of Test at Room Temperature. China Construction Industry Press: Beijing, China, 2010.
- GB 50661-2011; Code for Welding of Steel Structures. China Construction Industry Press: Beijing, China, 2011.
- JGJ/T 101-2015; Specification for Seismic Test of Buildings. China Construction Industry Press: Beijing, China, 2015.





















| Number | Length of Wrapped Steel of Column (mm) | Thickness of Wrapped Steel of Column (mm) | Length of Wrapped Steel of Beam (mm) | Thickness of Wrapped Steel of Beam (mm) | Thickness of the Connector (mm) | Types of Steel |
|---|---|---|---|---|---|---|
| BZJ | - | - | - | - | - | - |
| JGJ-1 | 1500 | 10 | 750 | 3 | 3 | Q345 |
| JGJ-2 | 1500 | 10 | 750 | 2 | 5 | Q345 |
| JGJ-3 | 1500 | 10 | 750 | 3 | 5 | Q345 |
| Concrete Type | C50-1 | C40-1 | C40-2 |
|---|---|---|---|
| Compressive strength (MPa) | 56.10 | 48.30 | 46.60 |
| Steel Types | Diameter (mm) | Yield Strength (MPa) | Ultimate Strength (MPa) | Elongation Percentage (%) | Elastic Modulus (GPa) |
|---|---|---|---|---|---|
| HPB300 | 6 | 382 | 534 | 16.2 | 210 |
| HRB400 | 16 | 464 | 634 | 32.9 | 206 |
| HRB500 | 20 | 574 | 736 | 28.9 | 206 |
| Steel Type | Thickness (mm) | Yield Strength (MPa) | Ultimate Strength (MPa) | Elastic Modulus/GPa |
|---|---|---|---|---|
| Q345 | 2 | 346 | 459 | 206 |
| Q345 | 3 | 420 | 503 | 206 |
| Q345 | 5 | 333 | 444 | 206 |
| Q345 | 10 | 359 | 425 | 206 |
| Displacement | Experimental Phenomenon |
|---|---|
| 6 mm | Small deformations of the beam near the core area could be observed, and a vertical crack, 100 mm in length, was observed at the column ends. |
| 9 mm | Two vertical cracks with lengths of 40 mm and 200 mm appeared at the beam end of the joint core area. |
| 15 mm | Three new vertical cracks appeared at the end of the left beam of the joint core, while a vertical crack with a length of 200 mm and an oblique crack with a length of 220 mm appeared at the end of the right beam. |
| 18 mm | Existing cracks increased in width and no new cracks appeared. |
| 21 mm | One vertical crack with a length of 110 mm and one oblique crack with a length of 170 mm appeared at the right beam near the core area. The existing cracks at the column near the core area extended into an oblique crack, 50 mm in length. |
| The specimen was yielded. | |
| 42 mm | One vertical crack, 100 mm in length, could be observed at the right beam end and one oblique crack, 180 mm in length, was observed at the left beam end. |
| 63 mm | One vertical crack, 120 mm in length, could be observed at the left beam, which then developed obliquely to the right, extending up to the bottom of the beam. The concrete at the right beam end peeled off. |
| 84 mm | The deformation of the right beam end further increased and the concrete on the upper surface spalled off. A penetrating crack formed at the left beam end and two straight oblique cracks at the top of the beam developed. |
| 105 mm | The concrete cracks at the left beam end widened and the concrete spalled off on the lower surface. The stirrups, longitudinal bars, and strain gauge wires could be seen at the right beam due to the spalling off of the concrete. |
| 126 mm | Two inclined cracks, two vertical cracks, and one horizontal crack were formed in the core area. The stirrups, longitudinal reinforcement, and strain gauge wires were exposed. |
| 147 mm | The number of cracks on the beam continued to increase, and the spalling of the concrete became more severe. At this point, the bearing capacity was reduced to 85% of ultimate load, and it was determined that the specimen had been damaged. |
| Displacement | Experimental Phenomenon |
|---|---|
| 3–18 mm | There was no phenomenon that could be observed during this loading process. |
| 21 mm | Smaller deformations were observed in the chemical anchor bolts attached to the core area. |
| 24 mm | The sound of concrete deformation could be heard. One diagonal crack of 50 mm was observed in the concrete of beams. |
| The specimen was yielded. | |
| 39 mm | New cracks appeared in the concrete of the left beam and existing cracks in the concrete of the right beam developed obliquely. |
| 54 mm | Squeezing sounds of the steel plate deforming could be heard, accompanied by the sound of concrete deformation. |
| 69 mm | The concrete of the right beam showed oblique and vertical cracks. Cracks in the concrete of the left beam developed at the top of the beam. The weld seam of the wrapped steel of the beam and column cracked along the height direction of the beams, with a length of 30 mm. The upper and lower surfaces of the left beam, as well as the lower surface of the right beam, exhibited bulging, caused by the deformation of the internal concrete. |
| 84 mm | The cracks in the wrapped steel of the beams and columns continued to develop in the direction of the height and width of the beam. The chemical anchor bolts arranged on both sides of the column were squeezed to produce a small deformation. |
| 99 mm | The length of the crack in the weld seam in the position of the beam–column connection was 75 mm along the height direction of the beam. The length of the cracks along the width direction of the beam was 100 mm. The crack length of the weld seam of the wrapped steel of the beam and column was 70 mm. |
| 114 mm | Cracks appeared at the weld seam of the wrapped steel of the column, and the lengths of the cracks on the right and left sides were 130 mm and 100 mm, respectively. |
| 129 mm | The concrete wrapped in steel was crushed. The wrapped steel of the upper surface of the beam and the column were completely disconnected, and the length of the weld cracks on the lower surface of the beam continued to increase. |
| 144 mm | On the left side, the crack length of the weld seam of the steel plate wrapping the beam and column along the height direction of the beam was 90 mm, while the crack length of the weld on the right side was 80 mm. The crack length of the weld of the wrapped steel of the column was 310 mm, and the wrapped steel on both sides of the core area was detached from the concrete. At this point, the bearing capacity was reduced to 85% of the ultimate load, and it was determined that the specimen had been damaged. |
| Displacement | Experimental Phenomenon |
|---|---|
| 6–9 mm | The concrete inside the wrapped steel could be heard being squeezed, and no cracks appeared in the untreated concrete. |
| 12 mm | The wrapped steel was squeezed and minor deformations of the chemical anchor bolts arranged on the columns could be observed. |
| 15–18 mm | One crack in the weld seam in the position of the beam–column connection appeared in the height direction of the beam. |
| 21 mm | One oblique crack, 120 mm in length, was observed in the concrete of the left beam. One oblique crack, 30 mm in length, was observed in the concrete of the right beam and developed toward the lower right side. |
| 24 mm | Minor cracks appeared in the weld seam in the position of the beam–column connection. |
| 39 mm | The wrapped steel on the upper surface of the beam appeared to be bulging and there were visible cracks at the welds of the encased steel of the column. One oblique crack with a length of 100 mm could be observed in the concrete of the left beam and developed to the upper left. |
| The specimen was yielded. | |
| 54 mm | Weld seam cracks with a length of 10 mm appeared in the position of the beam–column connection along the height and width direction of the beam. Vertical cracks, 200 mm and 250 mm in length, appeared in the concrete of the beams. |
| 69 mm | The wrapped steel of the beam was continuously squeezed, visibly increasing in height to about 10 mm. |
| 84 mm | The weld seam of the wrapped steel made a large cracking sound, and the crack length of the weld between the wrapped steel of the beam and column was 20 mm. |
| 99–114 mm | The concrete of the left beam showed one oblique crack developing downward to the left, with a length of 100 mm. |
| 129 mm | One crack with a length of 500 mm appeared in the weld seam of the steel plate wrapping the column. |
| 144 mm | The bolts used for fixing the encased steel of the column broke. |
| 159 mm | The weld seam on the right side in the position of the beam–column connection cracked in the height direction of the beam by 120 mm, at which time the bearing capacity was reduced to 85% of the ultimate load, and it was determined that the specimen had been damaged. |
| Displacement | Experimental Phenomenon |
|---|---|
| 3–9 mm | There was no experimental phenomenon that could be observed during this loading stage. |
| 12 mm | Minor deformation of the chemical anchor bolts arranged on the columns could be observed. |
| 15 mm | One oblique crack, 250 mm in length, developed toward the lower left side of the concrete of the left beam. Two vertical cracks appeared on the concrete of the right beam. |
| 18–24 mm | The sound of concrete and steel plates deforming by compression could be heard. |
| 39 mm | The concrete of the left beam showed two oblique cracks with lengths of 200 mm and 50 mm, respectively. The existing crack in the concrete of the right beam extended to the bottom. Vertical cracks, 10 mm in length, were observed in the weld seam in the position of the beam–column connection. |
| The specimen was yielded. | |
| 54–69 mm | The chemical anchor bolts arranged on the columns near the core area were squeezed by the steel plates and deformed severely. Cracks in the weld seam in the position of the beam–column connection continued to develop. |
| 84 mm | The bulging of the wrapped steel of the specimen could be observed. |
| 99 mm | The chemical anchor bolts attached to the column on the core area had failed. |
| 114 mm | One crack with a length of 160 mm appeared at the weld seam of the wrapped steel of the column. |
| 129 mm | The weld seam in the position of the beam–column connection was completely cracked on the upper and lower parts of the beam, and the length of the cracks was 140 mm. The length of the cracks in the welds of the wrapped steel of the column was 500 mm. |
| 144 mm | The weld seam of the wrapped steel of the column was severely deformed and the bolts used to fix the steel plate of the column were broken. At this point, the bearing capacity was reduced to 85% of the maximum load, and it was determined that the specimen had been damaged. |
| Number | Direction | Yield Load (kN) | Maximum Load (kN) | Ultimate Load (kN) |
|---|---|---|---|---|
| BZJ | Push | 86.49 | 111.95 | 91.31 |
| Pull | 63.73 | 75.29 | 64.07 | |
| JGJ1 | Push | 88.30 | 106.38 | 77.13 |
| Pull | 100.56 | 118.02 | 100.32 | |
| JGJ2 | Push | 93.25 | 104.80 | 89.08 |
| Pull | 79.54 | 92.30 | 78.46 | |
| JGJ3 | Push | 106.78 | 122.90 | 104.47 |
| Pull | 90.90 | 111.30 | 94.61 |
Disclaimer/Publisher’s Note: The statements, opinions and data contained in all publications are solely those of the individual author(s) and contributor(s) and not of MDPI and/or the editor(s). MDPI and/or the editor(s) disclaim responsibility for any injury to people or property resulting from any ideas, methods, instructions or products referred to in the content. |
© 2025 by the authors. Licensee MDPI, Basel, Switzerland. This article is an open access article distributed under the terms and conditions of the Creative Commons Attribution (CC BY) license (https://creativecommons.org/licenses/by/4.0/).
Share and Cite
Wu, J.; Jiang, Y.; Zhou, J.; Hu, L.; Wang, J.; Ding, W. Experimental Research on the Seismic Behavior of Reinforced Concrete Column–Beam Joints Connected by Π-Shaped Steel Plates. Buildings 2025, 15, 349. https://doi.org/10.3390/buildings15030349
Wu J, Jiang Y, Zhou J, Hu L, Wang J, Ding W. Experimental Research on the Seismic Behavior of Reinforced Concrete Column–Beam Joints Connected by Π-Shaped Steel Plates. Buildings. 2025; 15(3):349. https://doi.org/10.3390/buildings15030349
Chicago/Turabian StyleWu, Jian, Ying Jiang, Jian Zhou, Liangjie Hu, Jianhui Wang, and Weigao Ding. 2025. "Experimental Research on the Seismic Behavior of Reinforced Concrete Column–Beam Joints Connected by Π-Shaped Steel Plates" Buildings 15, no. 3: 349. https://doi.org/10.3390/buildings15030349
APA StyleWu, J., Jiang, Y., Zhou, J., Hu, L., Wang, J., & Ding, W. (2025). Experimental Research on the Seismic Behavior of Reinforced Concrete Column–Beam Joints Connected by Π-Shaped Steel Plates. Buildings, 15(3), 349. https://doi.org/10.3390/buildings15030349
