Next Article in Journal
A Generative AI Framework for Adaptive Residential Layout Design Responding to Family Lifecycle Changes
Previous Article in Journal
Stability and Design Charts for 3D Rectangular Cavity Crowns with Limited Buried Depth in Rock Masses
 
 
Font Type:
Arial Georgia Verdana
Font Size:
Aa Aa Aa
Line Spacing:
Column Width:
Background:
Article

Impact of Grouping Behavior Among School-Aged Children on Evacuation Efficiency Under Ordered and Disordered Evacuation Forms

1
Architecture College, Inner Mongolia University of Technology (IMUT), Hohhot 010051, China
2
Key Laboratory of Green Building at Universities of Inner Mongolia Autonomous Region, Hohhot 010051, China
3
School of Geomatics and Urban Spatial Informatics, Beijing University of Civil Engineering and Architecture, Beijing 100044, China
4
School of Architecture and Planning, Hunan University, Changsha 410082, China
*
Author to whom correspondence should be addressed.
Buildings 2025, 15(22), 4154; https://doi.org/10.3390/buildings15224154
Submission received: 31 October 2025 / Revised: 13 November 2025 / Accepted: 17 November 2025 / Published: 18 November 2025
(This article belongs to the Section Architectural Design, Urban Science, and Real Estate)

Abstract

School-aged children are a vulnerable group in emergencies, showing distinct grouping behaviors under ordered and disordered evacuations. This study investigated how these behaviors affect evacuation efficiency and how spatial conditions shape outcomes. Two drills were conducted on 216 children aged 6–12. Indicators including movement speed, crowd density, and grouping type were analyzed from video data. Disordered evacuation featured unstable group structures, variable speeds, and faster but less consistent movement. In contrast, ordered evacuation improved group stability and coordination, with only slight speed reductions (16% in corridors and 12% in stairways). Spatial conditions also affected grouping behavior. Wider corridors encouraged lateral dispersion and required stronger guidance, whereas stairways benefited from reduced control to alleviate congestion. These findings highlight how grouping behavior affects evacuation efficiency across evacuation forms and spatial settings, and underscore the importance of coordinating evacuation management strategies with building circulation design. The results provide empirical evidence for enhancing the safety of school-aged children during evacuations and offer practical guidance for optimizing school evacuation strategies and educational building design.

1. Introduction

In China, more than 125 million school-aged children account for over 8.9% of the national population. As a vulnerable group in emergency evacuations, their safety has drawn increasing attention [1]. Owing to immature physiological and cognitive development, they are more susceptible than adults to movement speed, environmental perception, and risk response, placing them at greater safety risk during emergencies [2,3].
In emergency evacuations, architectural design alone cannot guarantee rapid and safe egress. Therefore, adopting appropriate evacuation forms is essential to enhance efficiency and reduce risks. Evacuation forms refer to the organizational methods and flow patterns adopted by crowds in emergency conditions [4]. Based on factors such as population size, building layout, and event characteristics, common forms include ordered, disordered, phased, guided, and reverse evacuations [5,6,7]. Among these, ordered and disordered evacuations are the most widely applied owing to their structural simplicity and broad applicability. Ordered evacuation is a planned process guided by unified commands and predetermined routes, whereas disordered evacuation lacks centralized control and relies on individual judgment and autonomous action [5]. The differences between these two forms are illustrated in Figure 1, and the comparison of different evacuation forms can be found in Table S1.
Primary school buildings are typical high-density public facilities occupied by vulnerable children and are particularly sensitive to external evacuation forms [8]. In group-based evacuations organized by class units, appropriate organizational strategies influence children’s movement patterns and can significantly enhance overall evacuation efficiency [9]. Recent studies have primarily focused on the individual-level evacuation behaviors of school-aged children, encompassing aspects such as movement characteristics, perceptual responses, and environmental influences. Experimental findings have demonstrated that children’s movement speed and coordination vary according to age, crowd density, and building configuration, thereby affecting overall evacuation efficiency [10,11]. Beyond physical ability, perceptual and cognitive factors also play a crucial role. For instance, variations in alarm sounds can alter children’s physiological responses and risk perception, subsequently influencing the initiation of evacuation [12]. Studies based on field observations and video-based analyses have further revealed that, under stressful or spatially constrained conditions, children often display hesitation, peer-following, and local clustering behaviors [13,14]. Although these studies have substantially advanced the understanding of children’s individual evacuation behaviors, systematic investigations into how grouping behaviors influence evacuation efficiency under ordered and disordered evacuation forms remain limited.
School-aged children, defined as those aged 6–12, typically show strong dependence on and responsiveness to external guidance [15]. In evacuation scenarios, their movement rhythms and route choices often exhibit collective tendencies, known as “grouping behavior”. This involves forming stable or temporary units in which individuals travel in close proximity, follow the same direction, and maintain similar paces [16]. Analyses of real-world disasters indicate that such behavior is often driven by social ties, such as family, friendship, or class affiliation, and shaped by both individual decision-making and environmental constraints [17,18,19]. Studies of adult pedestrians by Moussaïd et al. showed that socially bonded groups adjusted their spatial structures to reduce interference in dense environments, reflecting strong social motivations [20]. Similarly, Ding and Sun found that students often formed small, unstable groups of two or three, typically following peers or leaders rather than relying on fixed social relationships. This highlights the complexity and fluidity of grouping behavior across age groups [21].
As evacuation forms and environmental conditions vary, the scale, stability, and dynamics of grouping behavior also change, thereby affecting overall evacuation efficiency. Ren et al. reported that variations in group proportions can significantly alter crowd flow. At moderate proportions, walking speed decreases, crowding intensifies, and group structures become more disordered. However, at higher proportions, coordinated actions are strengthened, thereby improving evacuation efficiency [22]. Haghani and Sarvi further observed that disordered evacuations involved more autonomous and uncertain individual behaviors, with group structures frequently disrupted by environmental factors, reflecting considerable instability [23]. In contrast, Li showed that when school-aged children evacuated under teacher supervision in class units, they typically moved in one or more orderly lines, exhibiting highly coordinated behavior. This queuing pattern differs significantly from the free movement observed in disordered evacuations, indicating greater organization and efficiency [24].
Evacuation drills are widely recognized as practical methods for studying children’s evacuation behaviors. Compared with survivor interviews, video analysis, or simulation modeling, evacuation drills more accurately reflect the real-world performance of school-aged children [13,25]. Consequently, drills have been increasingly adopted in related studies. Drills provide basic data such as evacuation speed and route selection and enable analyses of grouping behavior under emergency conditions [14,26]. However, most current studies focus on individual-level parameters, with limited exploration of collective-level dynamics and their influence on evacuation processes. In schools, where evacuations usually occur under teacher guidance during routine drills, children show strong dependence and organization, resulting in ordered evacuations and queue-based grouping [24]. In contrast, with unclear guidance or minimal supervision, children often display disordered evacuation behaviors, forming loosely organized and mobile groups with some autonomy. These behavioral patterns also affect evacuation efficiency [24,25]. Therefore, relying solely on individual-level data such as speed is insufficient to fully capture the actual characteristics of children’s evacuation behavior.
Overall, existing research has not sufficiently examined the grouping behavior of school-aged children, particularly its influence on evacuation efficiency in ordered and disordered forms. Owing to incomplete physical development and strong psychological dependence, children often form small groups during evacuations, leading to more disordered behavior. To address this issue, schools conduct orderly evacuation drills to guide students toward regulated actions, thereby enhancing overall efficiency and reducing safety risks. Concurrently, national building codes typically specify design standards for corridors, staircases, ramps, and other structural elements in primary school buildings; however, these codes have not fully accounted for children’s grouping behavior during evacuations. Therefore, this study aimed to examine how grouping behaviors influence evacuation efficiency in both ordered and disordered forms among school-aged children in different circulation spaces (i.e., corridors and staircases). The specific research questions are as follows:
  • RQ1: What are the differences in group types and structures of school-aged children under ordered and disordered evacuation forms?
  • RQ2: How does grouping behavior affect children’s movement speed under the two evacuation forms?
  • RQ3: How does grouping behavior affect crowd density under the two evacuation forms?
To address these questions, behavioral data from two evacuation drills were collected and subjected to systematic statistical analysis. The findings enhance the understanding of children’s evacuation behavior and provide theoretical and practical support for educational building design, evacuation simulation and modeling, and development of design standards for this specific group.

2. Materials and Methods

This section outlines the site conditions and participant characteristics, details the design and implementation of the two evacuation drills, and introduces the equipment configuration, as well as the data collection and analysis methods. Section 2.1 presents basic information on the school and participants. Section 2.2 and Section 2.3 describe the preparation and implementation of the evacuation experiments. Section 2.4 explains the data collection procedures and analytical approaches, which provide the foundation for subsequent analysis.

2.1. Overview of School and Participants

This study was conducted at a public primary school in Shenyang, China, involving students aged 6–12. The main teaching building selected was a three-story structure with six classrooms on each floor. The building is primarily used by students and teachers. Its internal layout was simple, with teachers’ offices and other functional rooms located on the north side and classrooms and activity rooms concentrated on the south side. Three staircases were situated in the middle and at both ends with clearly marked evacuation routes. The spatial configuration complied with the GB 50099-2011 “Primary and Secondary School Design Code” [27], adopting a standard double-sided corridor layout and a simple structural design. This building is representative of typical primary schools and provides an ideal setting for field observations in this study.
The investigation was based on observations of the evacuation process across the entire teaching building. To reduce the influence of floor-level differences in path length and physical exertion, as well as age-related differences in physical ability, the main behavioral data were collected from second-floor students (aged 8–10) [11,28]. This approach minimized bias from vertical movement and age-related factors in speed measurements, allowing a more accurate reflection of grouping behavior characteristics among school-aged children during an evacuation. Meanwhile, evacuation behavior was observed throughout the entire building to ensure a comprehensive understanding of group characteristics across different grades.
Prior to the experiment, this study used G*Power 3.1.9.7 to conduct a priori power analysis to determine the minimum required sample size [29]. Because previous research did not provide a clear estimate of effect size, a medium effect size (dz = 0.5) recommended by Cohen was adopted. Using a paired-sample t-test with a significance level of α = 0.05 and statistical power of 1 − β = 0.80, the calculation indicated that at least 34 participants were required to compare the two evacuation drills [30]. Because subsequent analyses were also grouped by gender and location, the actual required sample size was larger. Ultimately, 216 children participated in the experiment, far exceeding the minimum requirement. Therefore, the two evacuation drills were sufficient to support the analysis while maintaining adequate statistical power for smaller effect sizes (dz ≥ 0.25). Table 1 presents basic information on the second-floor classes included in the experiment.

2.2. Experimental Site and Camera Setup

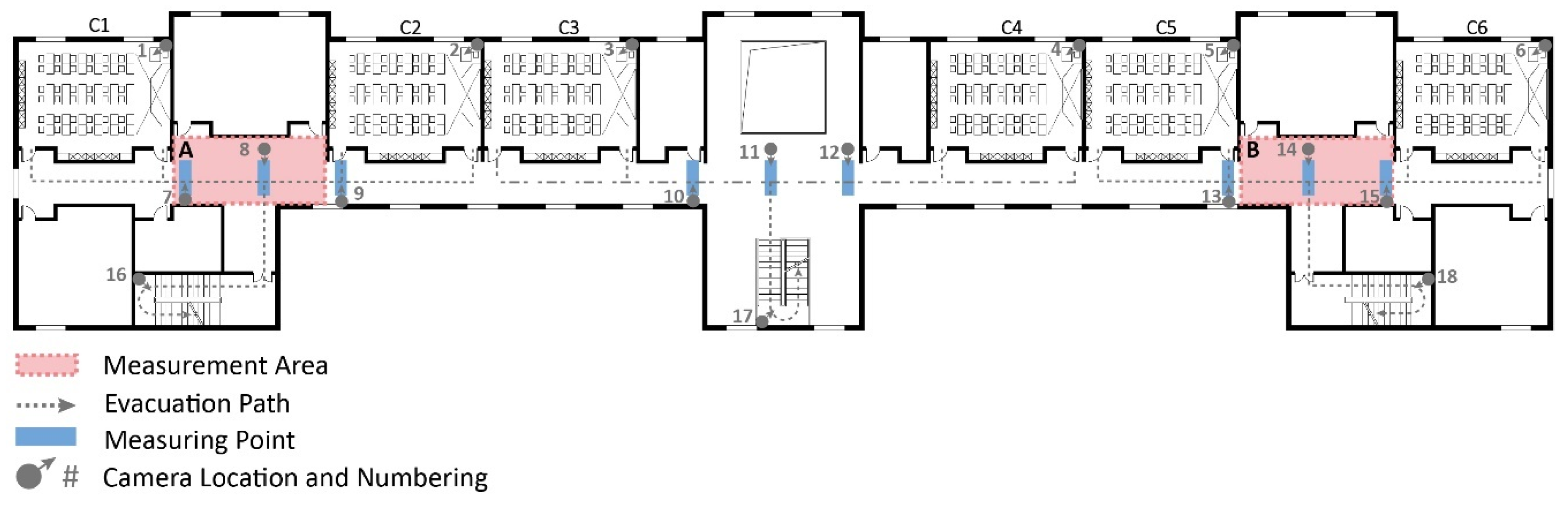
To comprehensively record the behavior of school-aged children during emergency evacuations, 18 small closed-circuit television cameras were installed at the experimental site. Each camera had a resolution of 720p and a frame rate of 30 frames per second, covering key evacuation areas such as classrooms, corridors, and staircases. This configuration enabled multi-angle observation and provided a complete record of the evacuation process within the teaching building. Owing to their small size and unobtrusiveness, the cameras ensured that children exhibited natural responses during evacuation without being influenced by observers [13]. To account for the cameras’ fields of view, speed-measurement sections were established within the evacuation passages. The centerline of the stairwell doorway was designated as a common endpoint, and the starting point was set 10 m back from that line, forming a uniform 10 m measurement zone. This zone allowed the quantification of students’ movement speed along the segment, thereby improving the precision of the statistics (the blue bar in Figure 2). Speed measurements were captured synchronously from multiple camera angles to ensure complete records of each student’s entry and exit from the measurement zone, enabling calculation of individual average movement speeds.
In addition, the experimental environment was considered when selecting density observation areas. The middle staircase, unlike the side staircases, was connected only by internal corridors and did not open directly to the outside, serving primarily as an auxiliary passage. Therefore, crowd density observation zones were established at the entrances of the side staircases (the pink areas in Figure 2). The number of students and their spatial distribution within these zones were recorded by cameras to reflect crowd density. The cameras were strategically positioned to cover classrooms, corridors, stairwells, and other critical locations. These placements were selected to ensure that the evacuation behavior could be captured from multiple angles and perspectives. Installation was completed the night before the experiment and thoroughly tested in advance. During the drills, all staff members remained off-site to minimize interference and ensure that children’s behavior was recorded naturally. Figure 2 illustrates the camera locations, classroom layouts, and planned evacuation routes for each class.

2.3. Experimental Procedure

The study was conducted in March and April 2025 (at 2:00 p.m.) at a primary school through two on-site drills simulating ordered and disordered evacuation scenarios. Since the school conducts monthly evacuation drills, students were already familiar with such procedures; thus, the experiments, spaced approximately one month apart, aligned with routine drill schedules and maintained natural evacuation behavior. Prior to the drills, approval was obtained from the principal, and to preserve natural behavior, only the principal and staff responsible for triggering the alarms were informed, while other students and teachers were not notified.
Data on evacuation behaviors and movement speed were collected using a combination of video recording and manual annotation. Following recording, the research team conducted frame-by-frame analyses, documenting each child’s behaviors—including leaving the classroom, movement trajectories, pauses, following peers, and group formation—according to predefined categories and annotating the timing of each behavior. Annotation was performed collaboratively by four researchers, with two conducting initial coding and two cross-checking to ensure consistency and accuracy, yielding data suitable for analysis.
The first drill, conducted in March, involved no prior notice to teachers or students and emphasized no specific organizational structure. It was presented as a routine drill simulating a disorderly evacuation with minimal guidance. During the drill, some students hesitated, remained stationary, or followed their peers in the initial stage, and brief congestion was observed in certain corridor segments. These behaviors reflected the typical features of a disorderly evacuation, in which students relied primarily on individual judgment and autonomous actions in the absence of centralized guidance or path constraints [31].
The second drill, conducted in April, leveraged the order established through routine physical exercises and stair movement training without interrupting normal school operations. By reinforcing queue formation practices, the drill simulated a structured evacuation scenario. Prior to the drill, teachers and students were informed that an evacuation exercise would occur during the month but were not told the specific date, thereby preserving spontaneity. During the drill, teachers guided students to evacuate in class-based sequences along designated routes. Students exhibited consistent queuing and spatial order in corridors and stairwells and moved in a coordinated and orderly manner. These behaviors reflected the typical characteristics of an organized evacuation, in which students followed predetermined routes under unified instructions and structured arrangements [24].

2.4. Data Collection and Analysis Methods

2.4.1. Classification of Evacuation Phases

According to the SFPE Handbook of Fire Protection Engineering, the evacuation process is generally divided into two phases: the pre-evacuation period and the movement period [32]. To capture the influence of grouping behavior on pre-movement time, this study defined the endpoint of the pre-evacuation period as the moment when the last child left the classroom. This time point marks the completion of key activities within the response time, including standing up, moving to the front of the classroom to seek teacher instructions, queuing according to teacher commands, and moving in groups toward the classroom door under peer aggregation [33,34]. Therefore, when calculated at the class-group level, the response time may exceed the end of the pre-evacuation period [3]. Unlike the common approach in previous studies, which measured pre-movement time from alarm activation to the first child exiting the classroom, the present method more comprehensively reflects the overall effect of grouping behavior on class-level pre-movement time. It better represents collective behavior and organizational coordination while also reducing interference from factors such as seating arrangements and walking distances. This approach improves consistency when handling large sample sizes [35]. The calculation formula is as follows:
T P E T = T A C T T A L
where TPET represents the class-level pre-movement time, TACT is the time when the alarm was triggered, and TAL denotes the time when the last student exited the classroom.
The movement period was still defined as beginning when the first child exited the classroom, ensuring a complete record of movement time with no overlap between the two periods. The transition between the pre-evacuation and movement periods, as shown in Figure 3, marks the time point at which the entire class completes the pre-evacuation period and enters the movement period.

2.4.2. Data Collection Methods for the Evacuation Movement Period

Evacuation speed and crowd density distribution are key factors influencing evacuation efficiency [36,37]. This study measured horizontal speed in corridors and vertical speed on stairs following the same method used in previous studies [14,26], with the calculation formulas referenced from established approaches [38]. Figure 4 shows the layout and measurement points.
Horizontal movement speed was calculated as the ratio of a preset horizontal distanced to the time required for an individual to travel that distance. The time was determined by the difference in video frames between the start and end points and the camera’s frame rate [14,26]. Vertical movement speed was calculated based on the number of stair steps, hypotenuse length of each step, turning length of the landing, and straight length of the landing, combined with the corresponding time interval and frame rate [14,26]. The specific formulas are as follows:
V t = d F B i F A i 1 F r
V h = n s l i n c l i n a t i o n + l t u r n i n g F B i F A i 1 F r
l t u r n i n g = Π 2 l l a n d i n g l s t e p
where Vt represents the horizontal movement speed; FBi is the frame number at the end point; FAi is the frame number at the start point; Fr is the camera frame rate; Vh denotes the vertical evacuation speed; ns is the number of stair steps; linclination is the hypotenuse length of each step; lturning is the turning length of the landing; llanding is the straight length of the landing; and lstep is the step width.
To further capture grouping behavior during evacuation, this study also measured crowd density in two key areas: the corridor in front of the stairwell and interior of the stairwell. Crowd density, defined as the number of individuals per unit area within a given space, reflects the degree of crowd aggregation and flow efficiency during an evacuation [28]. This method has been widely utilized in evacuation research and plays a critical role in the analytical framework of this study [39,40,41]. The specific formula is as follows:
ρ = N A
where ρ represents the crowd density, N denotes the total number of individuals within the area, and A is the area size.
During the evacuation process, the corridor in front of the stairwell functions as a transitional node, where flows from different classes converge and intersect, making it one of the areas most prone to congestion [31,37]. The stairwell, constrained by a fixed spatial structure, directly influences the overall evacuation performance through passage efficiency [2]. By quantitatively analyzing crowd density in these two areas, this study systematically revealed how the grouping behavior of school-aged children under ordered and disordered evacuation forms affected localized congestion and overall evacuation efficiency.

2.4.3. Types and Classification Methods of Grouping Behavior

In evacuation contexts, individual behaviors are often influenced by factors such as social relationships, environmental constraints, and external instructions, which can potentially lead to the formation of collective behavioral units [42]. These units may emerge as spontaneously formed small groups or as structured queues organized under external commands [23]. In this study, grouping behavior was identified based on dynamic features, including spatial proximity between individuals (typically less than 1.0–1.5 m) and consistency in movement paths. Video tracking data were further used to support annotation and judgment.
To quantify the influence of grouping behavior on evacuation efficiency, groups were classified into three categories according to size: small (2–3 individuals), medium (4–6 individuals), and large (≥6 individuals) [16,43]. This classification provides a clearer understanding of grouping behavior characteristics during evacuation and offers a data foundation for subsequent analyses, revealing how grouping patterns can influence overall evacuation performance. Figure 5 illustrates the classification of grouping behavior types.

2.4.4. Statistical Analysis

SPSS 27.0 was used to conduct statistical analyses of experimental data. Normality tests were first performed on each variable to determine whether the data followed a normal distribution. For variables meeting the normality assumption, parametric tests were applied; otherwise, non-parametric tests were used, or a natural logarithmic transformation was applied to meet the assumption (e.g., for variables such as crowd density) [44]. Considering the presence of social connections and bonds within the school environment, which may result in non-independent observations, individual data were aggregated at the class level. These aggregated data were then analyzed using non-parametric methods in addition to conventional analyses to assess whether the results were affected [45,46].
To evaluate the impact of grouping behavior on evacuation efficiency under ordered and disordered conditions, independent-samples t-tests were conducted separately for horizontal and vertical movement speeds. These tests assessed whether differences in grouping had statistically significant effects on movement speed.
For the statistical analysis of crowd density, test methods were selected according to the independence of comparison targets. When comparing crowd density at different locations (e.g., left vs. right stairwells) within the same evacuation drill, independent-samples t-tests were used because of the independence of measurement areas and the unpaired nature of the data. Conversely, when comparing crowd density at the same location across different evacuation drills, paired-samples t-tests were applied, given the consistency of measurement points and participant composition. This pairing controlled for location-based variability and enhanced the statistical validity of our analysis.

2.5. Data Collection and Definitions

To systematically analyze the impact of school-aged children’s grouping behavior on evacuation efficiency during the two drills, this study collected relevant data on movement speed and crowd density and conducted a quantitative comparison of the experimental results. Table 2 presents the indicators used in this study along with their definitions.

3. Results

Data collection and analysis methods employed in the evacuation experiments were described in the previous sections. Section 3.1 and Section 3.2 analyze the test statistics of pre-movement time and movement speed in the two evacuation drills. Section 3.4, Section 3.5, Section 3.6 and Section 3.7 present the types of grouping behavior and crowd density and further explore the impact of grouping behavior characteristics on crowd density.

3.1. Pre-Movement Time

The pre-movement time data are presented in Table 3, which summarizes the results of two evacuation drills involving six classes. Video analysis showed that the queue-like grouping observed during ordered evacuation was not pre-formed inside classrooms but was gradually established under teacher guidance after students began to evacuate. Consequently, procedural differences between the two drills at this stage were minimal. Significance tests further indicated no statistically significant difference in pre-movement time between the two experiments (p > 0.05). These results suggest that pre-movement time is not strongly related to grouping behavior (ordered or disordered) itself but is more likely influenced by students’ response speed to emergency signals and their choice of exit [47,48].

3.2. Movement Speed

The movement speed statistics and test results are presented in Table 4, with more detailed results provided in Supplementary Materials Tables S2 and S3, and the data distribution is illustrated in Figure 6. The dataset consisted of evacuation speed data from 214 school-aged children. To maintain objectivity, two samples were excluded because of stationary waiting or turning back within the measurement zone. Given developmental differences among children aged 6–12 years, gender was treated as an independent variable to examine its influence on evacuation speed.
In corridors, boys’ average speed was 1.55 ± 0.04 m/s (SD = 0.36 m/s) under disordered evacuation and 1.28 ± 0.02 m/s (SD = 0.09 m/s) under ordered evacuation, whereas girls’ average speed was 1.51 ± 0.06 m/s (SD = 0.31 m/s) and 1.29 ± 0.03 m/s (SD = 0.18 m/s), respectively. A similar trend was observed in stairwell areas. Boys’ average speed decreased from 0.79 ± 0.05 m/s (SD = 0.24 m/s) to 0.70 ± 0.06 m/s (SD = 0.20 m/s) and girls’ from 0.76 ± 0.04 m/s (SD = 0.20 m/s) to 0.68 ± 0.03 m/s (SD = 0.16 m/s). These results indicate that in both corridors and stairwells, children moved faster and accelerated more frequently under disordered evacuation, whereas ordered evacuation resulted in lower but more stable average speeds [26]. Statistical tests showed that changes in grouping behavior under ordered versus disordered evacuations had a statistically significant effect on horizontal movement speed, with vertical movement speed being less affected (p < 0.05). When gender was included as a factor, all group p-values were greater than 0.05, indicating that the effect of evacuation form was consistent across boys and girls, with no statistically significant gender differences observed.

3.3. Crowd Density

The statistical results for crowd density are presented in Table 5, with more detailed results provided in Supplementary Materials Tables S4 and S5, and the corresponding data distributions are illustrated in Figure 7. As a key node along the evacuation route, where congestion is most likely to occur, the corridor area in front of the stairwell exhibited relatively significant fluctuations in crowd density. At measurement points A and B, crowd densities during disordered evacuation were approximately 0.52 and 0.51 persons/m2, respectively, compared with 0.47 and 0.49 persons/m2 during ordered evacuation. Statistical tests indicated that changes in grouping behavior under ordered versus disordered evacuations had a statistically significant effect on crowd density in this area (p < 0.05), demonstrating clear differences in congestion levels between the two drills [26]. In contrast, within the same evacuation drill, differences in crowd density between the two stairwell entrances were not significant (p > 0.05), indicating that under consistent building layout and crowd size, spatial location had a relatively limited impact on local crowd density.
Further tests in the stairwell areas confirmed this trend. Grouping behavior significantly affected crowd density at Stair B (p < 0.05), whereas the effect at Stair A was marginally significant (p < 0.1). Similar to the corridor results, density difference between Stair A and Stair B within the same drill was not statistically significant (p > 0.05), further suggesting that, under consistent structural and crowd conditions, stairwell space itself exerted minimal influence on density variation.

3.4. Types of Grouping Behavior

Through a frame-by-frame analysis of video footage, this study quantified the distribution of group types in corridor and stairwell areas during two evacuation drills. Chi-square tests were used to compare grouping behavior patterns between drills (Table 6). The results indicated that group type distributions in both corridor and stairwell spaces differed significantly between ordered and disordered evacuation forms (both p < 0.001). In the ordered evacuation drill, the proportion of large-sized groups was markedly higher, particularly in stairwells, where such groups accounted for up to 89.1%. In contrast, the disordered evacuation drill was dominated by small- and medium-sized groups with more dispersed group structures. These findings demonstrate that evacuation form significantly affects the distribution of group types among school-aged children during emergencies.

3.5. Crowd Density, Group Size, and Group Speed

Figure 8 illustrates the temporal variations in crowd density, group size, and group speed in the corridor and stairwell areas during the two evacuation drills. In the corridor area, disordered evacuation behavior led to larger fluctuations in crowd density, with repeated oscillations and weak correlations between group size and crowd density. Although group speed remained relatively high, it exhibited substantial variability, resulting in a passage time of 43 s. Conversely, under ordered evacuation, changes in crowd density were more stable, and a clear positive correlation emerged between group size and crowd density. Although the average speed was slower, it was more consistent, producing a slightly shorter passage time of 40 s.
In stairwells, the group speed was substantially lower than that in corridors owing to spatial constraints. Under disordered evacuation, passage time was 47 s, whereas ordered evacuation extended this to 53 s. This difference was primarily attributed to teachers’ regulation of queues, which slowed children’s movement and created larger and more crowded groups in the stairwells. Video analysis further showed that excessive teacher intervention, aimed at avoiding conflicts between queues, caused student accumulation on the stairs, thereby further prolonging evacuation time.

3.6. Correlations Among Crowd Density, Group Size, and Group Speed

Group size and group speed partially influenced fluctuations in crowd density, which is a key factor affecting evacuation efficiency. Therefore, investigating the relationship between grouping behavior and crowd density is essential for understanding grouping characteristics and movement patterns among school-aged children. Figure 9 shows the correlation test results for crowd density, average group size, and average group speed in the corridor and stairwell areas during both evacuation drills.
Under disordered evacuation, crowd density in both corridor and stairwell areas showed significant positive correlations with the average group size (p < 0.01), indicating that a higher local density was associated with larger group sizes. Additionally, crowd density was negatively correlated with average group speed, which reached significance in stairwells (p < 0.05) but not in corridors (p > 0.05). Under ordered evacuation, the positive correlation between crowd density and average group size remained significant in both areas (p < 0.01). In contrast, the negative correlation between crowd density and average group speed was statistically significant (p < 0.01). Compared with disordered evacuation, ordered grouping behavior yielded more consistent and statistically significant correlations among variables, particularly in clarifying the negative relationship between speed and density.

3.7. Regression Analysis of Crowd Density with Group Size and Group Speed

Given the significant correlations between grouping behavior and crowd density under ordered and disordered evacuations, simple linear regression analyses were conducted to further examine the independent effects of each variable on crowd density and to compare their influence across evacuation forms and circulation spaces. The analyses evaluated the explanatory power of average group size and average group speed on variations in crowd density (Figure 10). The linearity and basic assumptions of each model were verified through scatter plots and residual analyses, confirming their validity.
The results indicated that in the corridor environment under disordered conditions, average group size exhibited extremely high explanatory power (R2 = 0.98), whereas group speed made a negligible and non-significant contribution (R2 = 0.01). In ordered evacuation, group size remained the dominant factor (R2 = 0.98), whereas speed demonstrated moderate explanatory power (R2 = 0.34). In the stairwell environment, the explanatory power of group size was relatively low (R2 = 0.32) under disordered evacuation, whereas group speed exhibited a substantial increase in its explanatory power (R2 = 0.79). Under ordered conditions, group size and speed explained 0.49 and 0.31 of the variance, respectively, both contributing meaningful explanatory value.
Scatterplot distributions further supported these findings. Under disordered evacuation, data points were more dispersed, indicating greater uncertainty in individual behavior and substantial variability in group responses. In contrast, ordered evacuation produced tighter clustering of points, suggesting that structured guidance enhanced behavioral consistency and predictability.
Regression trends further revealed that average group size consistently maintained a stable and positive correlation with crowd density across both evacuation forms, with a steep regression slope underscoring its dominant role. In contrast, group speed generally exhibited a negative correlation with a shallower slope, particularly in the corridor under disordered conditions, where its association with density was nearly negligible and statistically insignificant. These results suggest that the regulatory role of speed is limited under disordered conditions. Overall, group size played a more prominent role in explaining the density variation in corridor areas, whereas group speed exerted a greater influence in stairwell environments, highlighting the spatial differences in grouping behavior impacts on crowd density across distinct architectural layouts.

4. Discussion

This study examined the differences in school-aged children’s grouping behavior under ordered and disordered evacuations and their effects on indicators such as speed, group size, and crowd density. In the following discussion, the findings were compared with previous research. Section 4.1 analyzes types of grouping behavior observed in this study, focusing on structural differences. Section 4.2 explores how grouping behavior affects children’s movement speed through factors such as individual behavior, leader variation, and gender composition while also considering the effects of different building circulation spaces. Section 4.3 examines the impact of grouping behavior on crowd density in relation to group size and speed under ordered and disordered evacuations. Section 4.4 further summarizes the overall influence of grouping behavior on evacuation efficiency. Finally, Section 4.5 discusses the study’s limitations and directions for future research.

4.1. Analysis of Grouping Behavior Types

Based on video observations and chi-square test results, distinctly different grouping behavior patterns were observed among school-aged children during the two evacuation drills. Figure 11 illustrates the proportions and transitions of the grouping behaviors under the two evacuation scenarios.
Under disordered evacuation, the absence of clear organizational guidance led children to move with familiar peers, forming small (2–3 persons) or medium-sized (4–5 persons) groups. In corridor areas, these groups accounted for 90.8%, and in stairwells, 73.1%. This behavior was evident not only from video and statistical data but also from post-experiment interviews, in which approximately 52% of students reported a preference for evacuating with friends or waiting for familiar companions. These findings align with Ding and Sun, who emphasized the role of social relationships in shaping grouping behavior and creating complex formations during evacuation [21]. Similar patterns have been reported in real disaster events, where spontaneous groups based on family, friendship, and class affiliation are commonly observed [17,18,19].
By combining statistical analysis with video records, grouping behavior under disordered conditions was further characterized by frequent changes in size and structure. Variations in individual walking speeds often led to group separation and reformation, indicating relatively low group cohesion, particularly at corridor intersections and stairwell entrances. From the perspective of crowd dynamics, in constrained and high-density environments, individuals’ autonomous movements and mutual interactions can lead to self-organized adjustments and temporary structural changes, resulting in dynamic fluctuations [42]. Faster children advanced quickly, whereas others were temporarily delayed by crowding, producing high flexibility and diversity in group movements. These findings are consistent with those of Moussaïd et al., who reported that pedestrians frequently adjusted group structures in high-density environments to reduce interference [20]. However, such adjustments, along with larger group sizes, often reduce walking speed. Among school-aged children, this effect was more pronounced, leading to constant shifts in configuration and repeated regrouping [26].
In contrast, ordered evacuation exhibited more stable group structures. With prior organization and real-time teacher guidance, large groups (≥6 individuals) were prevalent, accounting for 46.7% in corridors and 89.1% in stairwells. Teachers instructed students to form compact lines by class, using commands such as “each class passes in sequence” or “walk in pairs side by side”, thereby regulating pace and minimizing overtaking. This strategy substantially enhanced structural stability throughout the evacuation, with minimal separation or regrouping, forming a sharp contrast with the structural variability observed under disordered conditions [23].
Supporting evidence from Li also highlighted that under teacher direction, students evacuate in single or multiple rows according to predetermined sequences, producing highly structured and stable group formations [24]. Similarly, Ren et al. noted that when group proportions were high, coordination among individuals improved, fostering persistent formation and reducing separation, interference, and conflict [22]. Overall, grouping behavior among school-aged children in ordered evacuations was more stable and coordinated, whereas in disordered evacuations, it was highly variable and discrete, forming a distinct behavioral contrast.

4.2. Impact of Grouping Behavior on Movement Speed

The analysis revealed significant differences in children’s movement speeds between the two evacuation drills, which primarily stemmed from two aspects. First, at the individual level, the urgency effect prompted children without organizational instructions or collective norms to act autonomously, frequently accelerating, overtaking, or detouring to escape the hazardous environment as quickly as possible, reflecting a strong motivation for individual mobility [49,50]. Second, within certain spontaneously formed groups, temporary leaders produced a learning effect, as members adjusted their movements by observing the leaders, significantly affecting individual speed and overall group velocity, consistent with the findings of Ding and Sun [21]. Such leaders often encourage group members to accelerate or overtake, thereby further increasing overall speed [21]. However, this effect was dual in nature. In many cases, leaders facilitated faster passage through corridors and improved local efficiency (Figure 12A), whereas in others, misguided route choices caused groups to deviate from intended paths or merge into the mainstream flow, thereby intensifying speed fluctuations and disrupting overall order (Figure 12B). These results suggest that movement speed among school-aged children is influenced not only by individual autonomy but also by group-level interactions [51].
In contrast, under orderly evacuation, teachers served as leaders and constrained children’s behavior within groups through organizational instructions, thereby suppressing tendencies to accelerate or overtake and reducing overall speed (Figure 12C). Meanwhile, teachers guided children to form queue-like groups and maintain a unified pace, which minimized mutual interference and conflicts, thus enhancing evacuation safety (Figure 12D). This finding is consistent with Helbing et al., who argued that unorganized evacuation environments promoted aggressive movement intentions that can trigger local congestion and reduce overall efficiency [52]. Still similarly emphasized that individuals in orderly queues are constrained by the queue structure, resulting in more uniform speeds and easier maintenance of order. These observations align with the evacuation behavior of children under teacher guidance, highlighting the critical role of organizational instructions and queue structures in ensuring smooth and safe evacuations [53].
Although grouping behavior significantly affected overall movement speed and stability, its effect on gender differences was minimal. In both evacuation forms, boys exhibited slightly higher average speeds than girls, but the differences were not statistically significant. Given the flexible composition of groups under disordered evacuations, this study further examined the relationship between the proportion of boys in a group (i.e., gender composition) and group speed. The results again showed no significant correlation (p > 0.05; Table 7), consistent with Najmanová et al., who found that under the same spatial and evacuation conditions, gender was not a primary factor influencing children’s movement speed, whereas age and individual behavioral differences played more critical roles [26].
From the perspective of circulation spaces, evacuation form had a stronger impact on group speed in corridors than in stairs. This difference is attributed to the extent to which spatial limitations affect children’s walking behavior. In corridors, stride and frequency were unrestricted, enabling evacuation forms to significantly alter group speed. In contrast, in stairwells, stride and frequency were constrained by step height and depth, and the number of children walking side by side was further limited by stair width, making group movement less sensitive to evacuation form [54,55]. Similarly, Ono et al. pointed out that the pace of children descending stairs was mainly determined by step geometry (e.g., riser height and tread depth) rather than individual stride length or body size, further confirming the dominant role of physical structure in stair movement behavior [56].
Further analysis of crowd density variations also revealed spatial differences. In corridors, density varied smoothly over time, and groups maintained relatively stable flows. However, in staircases, density continuously increased as groups concentrated until local congestion occurred, followed by a gradual decline. This variation was not solely determined by spatial constraints. Video observations indicated that teacher organization also played a crucial role in stairs. In the experiment, the staircase width was 1.40 m, equivalent to accommodating about three children walking abreast with an average shoulder breadth of 31–33 cm (Figure 13) [57]. Under orderly evacuation, teachers guided children to minimize potential confusion or collisions on the stairs, which consequently decreased the effective evacuation width of the staircase (Figure 13A). In contrast, under disordered evacuation, the same staircase allowed three children to walk side by side with spare room (Figure 13B). This difference directly resulted in an additional 6 s (≈12.8%) of evacuation time in the orderly drill, indicating that teacher guidance on space-constrained vertical routes can reduce group passage efficiency.

4.3. Mechanism of Grouping Behavior Affecting Crowd Density

During evacuation, local crowd density in a specific area is influenced by both group size and movement speed [43]. Larger groups occupy more space, increasing local density, whereas faster group speeds improve passage efficiency and help mitigate congestion [37]. Therefore, the interaction between group size and speed largely determines the formation and evolution of localized crowd density.
Correlation analyses showed that average group size was significantly and positively correlated with crowd density in both corridor and stairwell areas, and regression models confirmed the strong explanatory power of group size for crowd density variation. In contrast, the relationship between average group speed and crow density was more complex. Under disordered evacuation, correlations between speed and density in both corridors and stairwells were not significant, suggesting that autonomously formed groups exhibited high speed variability, which weakened the influence of speed on crowd density. In corridor areas, spacious layouts and unobstructed pathways provided groups with greater freedom of movement, resulting in a minimal influence of speed on local density [58].
Regression analyses revealed a different pattern under ordered evacuation. The relationship between group speed and crowd density became significantly stronger, and the explanatory power of regression models was markedly improved. Unlike the weak correlations observed under disordered conditions, teacher guidance and queuing organization constrained movement and reduced speed variability [59]. Consequently, changes in group speed had a more direct effect on crowd density, with relatively steep regression slopes, indicating its dominant role in local density variation. This finding aligns with that of von Krüchten et al., who reported that larger social groups generated higher local densities, thereby influencing evacuation efficiency [60]. Additional studies have noted that in ordered evacuation scenarios, grouping behavior is regulated, and individual freedom of movement is restricted [61]. Under these conditions, changes in group speed exert a stronger and more direct effect on crowd density, highlighting the dominant role of speed in density variation.
Further analysis of the relationship between group size and average group speed revealed that under ordered evacuation, the two variables were significantly negatively correlated. Larger groups were associated with slower speeds. However, under disordered evacuation, this relationship varied by space type. In corridors, the correlation was weak and non-significant, likely due to sufficient space and unobstructed passageways, which allowed greater movement freedom and reduced the constraining effect of group size on speed. In contrast, in stairwells, a moderate and significant negative correlation was observed, indicating that vertical circulation constraints amplified the inhibitory effect of group size on speed. This observation is consistent with Zhang et al., who found that in spatially constrained environments such as intersections and staircases, the inhibitory impact of density on speed was more pronounced, and structural constraints magnified the influence of group size on speed [37].

4.4. Impact of Grouping Behavior on Evacuation Efficiency

As shown in the above analysis, grouping behavior among school-aged children under ordered and disordered evacuation forms significantly influenced evacuation efficiency. Specifically, in corridor areas, spontaneously formed groups in disordered evacuation exhibited greater freedom of movement, and average speeds were markedly higher than those of queuing groups in ordered evacuation. Boys and girls increased their speed by approximately 21% and 17%, respectively. This difference arose primarily because, in the absence of organizational constraints, children were more likely to accelerate autonomously, overtake, and detour. Temporary leaders further reinforced these behaviors, while the spacious corridor allowed longer strides and higher step frequencies, enabling faster movement. However, this freedom was accompanied by substantial speed fluctuations, which weakened the role of speed in alleviating congestion and made group size more influential for local density. Overall, autonomous acceleration still significantly increases average movement speed in corridor areas.
Furthermore, compared with disordered evacuation, ordered evacuation reduced crowd density in the corridor by approximately 9.6%, as teachers guided children to form queue-like groups and maintain a uniform pace, thereby lowering congestion and mutual interference. In this process, children were required to follow their peers closely and maintain consistent steps, which reduced speed fluctuations. As a result, changes in group speed had a more direct influence on local crowd density and played a dominant role in its variation. This combination of moderately decreased density and lower speed ultimately shortened the total evacuation time in the corridor area from 43 s under disordered evacuation to 40 s under ordered evacuation, representing a 7% reduction and reflecting a minor improvement in evacuation efficiency in spacious areas owing to orderly organization.
In stairwell areas, ordered evacuation led to an overall reduction in movement speed compared with disordered evacuation, with both boys and girls experiencing speed reductions of approximately 11%. Meanwhile, crowd density increased by approximately 14%, indicating that in confined vertical spaces, teacher-led organization hindered overall movement. This combination of reduced speed and increased density prolonged evacuation time from 47 s in the disordered drill to 53 s in the ordered drill, an increase of approximately 13%, highlighting the negative impact of ordered organization on evacuation efficiency in stairwell environments.
Overall, these findings demonstrate that grouping behavior under ordered and disordered evacuations produced substantial differences in efficiency across architectural circulation spaces. In corridors, a moderately ordered organization helped reduce speed fluctuations and congestion, thereby improving efficiency. However, in stairwells, excessive organization constrained movement and prolonged evacuation. These results suggest that evacuation management strategies should be flexibly adapted to spatial characteristics to avoid negative effects of over-organization and to ensure optimal evacuation outcomes.

4.5. Limitations and Future Work

Although this study systematically investigated the impact of grouping behavior under ordered and disordered evacuation forms on evacuation efficiency among school-aged children, several limitations remain.
Sample limitations: This study involved 216 students under strictly controlled conditions, providing a reliable basis for analysis. However, all participants were from the same primary school, within a relatively narrow age range. Only a limited number of experimental trials were conducted, with repeated measurements being absent. In addition, students’ evacuation behavior may have been influenced by specific school practices and cultural factors. These factors may to some extent affect the generalizability and robustness of the results.
Temporal and environmental limitations: Both evacuation experiments were conducted in spring under favorable weather and comfortable temperatures, which may limit their applicability in other seasons. For example, in winter, heavier clothing or adverse weather conditions can affect children’s movement speed and their grouping behavior.
Fixed conditions of architectural circulation spaces: The teaching building used in the experiments had pre-existing architectural features, including corridor width, stair dimensions, and door placement, which could not be adjusted. These spatial constraints may significantly affect grouping behavior and the manifestation of evacuation forms. Accordingly, the uniformity of spatial parameters could restrict a systematic evaluation of how variations in spatial configuration could affect grouping behavior, thereby limiting deeper insights into the role of architectural design in evacuation mechanisms.
Internal heterogeneity of grouping behavior: This study primarily examined grouping behavior under different evacuation forms from a macro perspective. Observations revealed certain heterogeneity within groups, including the presence of leaders, gender composition, and familiarity among members. These factors may influence group movement speed and evacuation efficiency; however, because this study focused on macro-level patterns, it was not possible to systematically analyze such internal differences within the current experimental design.
Future work: Two main directions should be pursued. First, future research should integrate empirical data with computer simulations to model the influence of architectural parameters on grouping behavior and evacuation efficiency. This approach can help overcome the spatial constraints of physical experiments and reveal the mechanisms underlying spatial design. Second, incorporating micro-level variables such as leadership, gender composition, and familiarity among group members into macro-level analyses would allow for more fine-grained behavioral insights. In addition, conducting experiments across different schools, times, and environmental conditions would further validate the findings and enhance the generalizability and robustness of results. By expanding the spatial and behavioral dimensions, future studies are expected to improve the external validity and practical applicability of evacuation research.

5. Conclusions

This study systematically examined the impact of grouping behavior on evacuation efficiency among school-aged children under both ordered and disordered conditions. Two rounds of on-site evacuation drills were conducted in a primary school building, during which the entire evacuation process was documented and analyzed. Key behavioral metrics, including individual walking speed, crowd density at stairway entry points and within staircases, group size, and group movement speed, were extracted, categorized, statistically processed, and comparatively assessed. The main findings are summarized as follows:
  • The forms of evacuation significantly influenced the types and structures of children’s groups. Under disordered evacuation, groups were mainly small- and medium-sized, with dispersed structures and frequent fluctuations, accounting for 90.8% in corridor areas and 73.1% in stair areas. In contrast, ordered evacuation was dominated by large groups with highly stable and coordinated structures, accounting for 46.7% and 89.1% in corridor and stair areas, respectively.
  • Grouping behavior under ordered and disordered evacuations exerted a significant influence on the movement speed of school-aged children. In corridor areas, the average individual speed within groups under disordered evacuation was approximately 19% higher than that under ordered evacuation. On stairways, the average speed within groups remained higher in the disordered form, with a difference of approximately 12%.
  • Grouping behavior under ordered and disordered evacuations also significantly affected crowd density among school-aged children. In corridor areas, ordered evacuation reduced crowd density by approximately 9.6%, whereas in stairways, it led to an increase of approximately 14%.
  • Grouping behavior under ordered and disordered evacuations significantly affected evacuation efficiency among school-aged children. In corridor areas, a moderately ordered organization reduced speed fluctuations and congestion, resulting in an overall reduction in the evacuation time by approximately 7%. In contrast, in stairways, ordered organization decreased speed and increased density, prolonging overall evacuation time by approximately 13%.
  • Grouping behavior and architectural circulation jointly influenced evacuation efficiency. In spacious corridors, ordered group organization reduced speed fluctuations and congestion, thereby improving overall evacuation efficiency. In contrast, in narrow stairways, ordered groups were constrained by limited space, resulting in movement obstruction and increased density, which in turn reduced evacuation efficiency.
These findings highlight the importance of combining appropriate guidance with moderate restrictions in evacuation organization strategies, reveal the regulating role of organizational approaches across different building circulation spaces, and provide practical references for optimizing the evacuation of school-aged children, and empirically enriches the research foundation on children’s group evacuation behavior. Based on this, several recommendations can be made for school evacuation planning. In corridors, moderately ordered queue guidance should be implemented to reduce speed fluctuations and congestion while allowing some flexibility for children to autonomously adjust. In staircases, relaxing queue constraints or adopting phased evacuation can help to mitigate speed reduction and excessive density. Teachers should provide flexible guidance and strengthen children’s safety awareness through drills. By aligning organizational strategies with spatial conditions, schools can optimize group behavior management and improve overall evacuation efficiency.

Supplementary Materials

The following supporting information can be downloaded at: https://www.mdpi.com/article/10.3390/buildings15224154/s1, Table S1. Comparison of Common Evacuation Forms. Table S2. Statistical results of movement speed under different evacuation forms. Table S3. Statistical results of movement speed under different genders. Table S4. Statistical results of crowd density under different locations. Table S5. Statistical results of crowd density under evacuation forms.

Author Contributions

Y.Z.: Conceptualization, Data curation, Formal analysis, Investigation, Software, Visualization, Writing—original draft; C.X.: Methodology, Supervision, Validation; X.Z.: Methodology, Project administration, Supervision; X.J.: Funding acquisition, Resources, Writing—review and editing. All authors have read and agreed to the published version of the manuscript.

Funding

This work was supported by the Natural Science Foundation of China (grant number 52078255) and the Natural Science Foundation of Inner Mongolia, China (NSFC) (grant number 2020MS05007). Additional support was provided by the First-Class Discipline Research Special College Team Project titled “Grassland Human Settlements Construction System and Key Technologies” (Project No. YLXKZX-NGD-004).

Institutional Review Board Statement

This study was approved by the ethics review board of the Ethics Committee of the Architecture College at Inner Mongolia University of Technology (No. 20250225-MS-E06) in accordance with the Declaration of Helsinki, date of approval: 12 March 2025.

Informed Consent Statement

Written informed consent was obtained from all individual patients included in the study.

Data Availability Statement

Data will be made available on request.

Conflicts of Interest

The authors declare that they have no known competing financial interests or personal relationships that could have appeared to influence the work reported in this paper.

References

  1. UNICEF China. What the 2020 Census Can Tell Us About Children in China: Facts and Figures. 2023. Available online: https://www.unicef.cn/en/media/24511/file/What%20the%202020%20Census%20Can%20Tell%20Us%20About%20Children%20in%20China%20Facts%20and%20Figures.pdf (accessed on 17 May 2025).
  2. Hashempour, J.; Bahrani, B.; Hoskins, B.; Abujayyab, S. Assessing School Evacuation Movement Characteristics: Children and Adolescents Speed and Flow over Stairs and through Exit Doorways. Fire Mater. 2024, 48, 617–631. [Google Scholar] [CrossRef]
  3. Yildiz, A.; Dickinson, J.; Priego-Hernández, J.; Teeuw, R. Children’s Disaster Knowledge, Risk Perceptions, and Preparedness: A Cross-Country Comparison in Nepal and Turkey. Risk Anal. 2023, 43, 747–761. [Google Scholar] [CrossRef]
  4. Kuligowski, E. Predicting Human Behavior during Fires. Fire Technol. 2013, 49, 101–120. [Google Scholar] [CrossRef]
  5. Barański, M.; Haznar-Barańska, A. Evacuation and Its Types–Revision of the Definition and Classification. Saf. Fire Technol. 2021, 58, 204–222. [Google Scholar] [CrossRef]
  6. Kobes, M.; Helsloot, I.; De Vries, B.; Post, J.G. Building Safety and Human Behaviour in Fire: A Literature Review. Fire Saf. J. 2010, 45, 1–11. [Google Scholar] [CrossRef]
  7. Wang, F.; Zhang, Y.; Ding, S.; Huang, X. Optimizing Phased-Evacuation Strategy for High-Rise Buildings in Fire. J. Build. Eng. 2024, 95, 110084. [Google Scholar] [CrossRef]
  8. Kholshevnikov, V.; Samoshin, D.; Parfenenko, A. Pre-School and School Children Building Evacuation. In Proceedings of the Fourth International Symposium on Human Behaviour in Fire, Cambridge, UK, 13 July 2009; pp. 243–254. [Google Scholar]
  9. Hamilton, G.N.; Lennon, P.F.; O’Raw, J. Toward Fire Safe Schools: Analysis of Modelling Speed and Specific Flow of Children during Evacuation Drills. Fire Technol. 2020, 56, 605–638. [Google Scholar] [CrossRef]
  10. Yao, Y.; Lu, W.; Wang, L. Experimental Study on Evacuation Behaviour of Children in a Three-Storey Kindergarten. Heliyon 2023, 9, e16533. [Google Scholar] [CrossRef]
  11. Kholshchevnikov, V.; Samoshin, D.; Parfyonenko, A.; Belosokhov, I. Study of Children Evacuation from Pre-School Education Institutions. Fire Mater. 2012, 36, 349–366. [Google Scholar] [CrossRef]
  12. Zhou, J.; Jia, X.; Xu, G.; Jia, J.; Hai, R.; Gao, C.; Zhang, S. The Relationship between Different Types of Alarm Sounds and Children’s Perceived Risk Based on Their Physiological Responses. Int. J. Environ. Res. Public Health 2019, 16, 5091. [Google Scholar] [CrossRef]
  13. Gu, Z.; Liu, Z.; Shiwakoti, N.; Yang, M. Video-Based Analysis of School Students’ Emergency Evacuation Behavior in Earthquakes. Int. J. Disaster Risk Reduct. 2016, 18, 1–11. [Google Scholar] [CrossRef]
  14. Hamilton, G.N.; Lennon, P.F.; O’Raw, J. Human Behaviour during Evacuation of Primary Schools: Investigations on Pre-Evacuation Times, Movement on Stairways and Movement on the Horizontal Plane. Fire Saf. J. 2017, 91, 937–946. [Google Scholar] [CrossRef]
  15. Chen, L.; Tang, T.-Q.; Song, Z.; Guo, R.-Y.; Huang, H.-J. Empirical Investigation of Child Evacuation under Non-Emergency and Emergency Situations. J. Transp. Saf. Secur. 2022, 14, 585–606. [Google Scholar] [CrossRef]
  16. Haghani, M.; Yazdani, M. How Behavioural Changes in Social Groups Affect Evacuation Efficiency of Crowds. Saf. Sci. 2025, 181, 106679. [Google Scholar] [CrossRef]
  17. Ronchi, E.; Nilsson, D. Fire Evacuation in High-Rise Buildings: A Review of Human Behaviour and Modelling Research. Fire Sci. Rev. 2013, 2, 7. [Google Scholar] [CrossRef]
  18. Lu, X.; Bengtsson, L.; Holme, P. Predictability of Population Displacement after the 2010 Haiti Earthquake. Proc. Natl. Acad. Sci. USA 2012, 109, 11576–11581. [Google Scholar] [CrossRef]
  19. Yang, L.; Zhao, D.; Li, J.; Fang, T. Simulation of the Kin Behavior in Building Occupant Evacuation Based on Cellular Automaton. Build. Environ. 2005, 40, 411–415. [Google Scholar] [CrossRef]
  20. Moussaïd, M.; Perozo, N.; Garnier, S.; Helbing, D.; Theraulaz, G. The Walking Behaviour of Pedestrian Social Groups and Its Impact on Crowd Dynamics. PLoS ONE 2010, 5, e10047. [Google Scholar] [CrossRef]
  21. Ding, N.; Sun, C. Experimental Study of Leader-and-Follower Behaviours during Emergency Evacuation. Fire Saf. J. 2020, 117, 103189. [Google Scholar] [CrossRef]
  22. Ren, J.; Mao, Z.; Zhang, D.; Gong, M.; Zuo, S. Experimental Study of Crowd Evacuation Dynamics Considering Small Group Behavioral Patterns. Int. J. Disaster Risk Reduct. 2022, 80, 103228. [Google Scholar] [CrossRef]
  23. Haghani, M.; Sarvi, M. Following the Crowd or Avoiding It? Empirical Investigation of Imitative Behaviour in Emergency Escape of Human Crowds. Anim. Behav. 2017, 124, 47–56. [Google Scholar] [CrossRef]
  24. Li, W.; Li, Y.; Yu, P.; Gong, J.; Huang, L.; Ma, H. A Queuing Evacuation Model with Yielding Behavior. Simul. Model. Pract. Theory 2024, 130, 102847. [Google Scholar] [CrossRef]
  25. Chaney, P.L.; Weaver, G.S.; Youngblood, S.A.; Pitts, K. Household Preparedness for Tornado Hazards: The 2011 Disaster in DeKalb County, Alabama. Weather Clim. Soc. 2013, 5, 345–358. [Google Scholar] [CrossRef]
  26. Najmanová, H.; Ronchi, E. Experimental Data about the Evacuation of Preschool Children from Nursery Schools, Part II: Movement Characteristics and Behaviour. Fire Saf. J. 2023, 139, 103797. [Google Scholar] [CrossRef]
  27. GB 50099-2011; Code for Design of Primary and Secondary Schools. Ministry of Housing and Urban-Rural Development of the People’s Republic of China China Architecture & Building Press: Beijing, China, 2011.
  28. Helbing, D.; Johansson, A. Pedestrian, Crowd, and Evacuation Dynamics. arXiv 2013, arXiv:1309.1609. [Google Scholar] [CrossRef]
  29. Faul, F.; Erdfelder, E.; Buchner, A.; Lang, A.-G. Statistical Power Analyses Using G* Power 3.1: Tests for Correlation and Regression Analyses. Behav. Res. Methods 2009, 41, 1149–1160. [Google Scholar] [CrossRef]
  30. Cohen, J. Statistical Power Analysis for the Behavioral Sciences; Routledge: London, UK, 2013. [Google Scholar]
  31. Bahmani, H.; Ao, Y.; Yang, D.; Wang, D.; Li, M.; Long, Y.; Peng, P. Implications for Improving Evacuation Safety in Primary School Corridors: A Video-Based Analysis on Evacuees’ Speed and Density. Eng. Constr. Archit. Manag. 2024; ahead-of-print. [Google Scholar] [CrossRef]
  32. Hurley, M.J.; Gottuk, D.T.; Hall, J.R., Jr.; Harada, K.; Kuligowski, E.D.; Puchovsky, M.; Watts, J.M., Jr.; Wieczorek, C.J. Others SFPE Handbook of Fire Protection Engineering; Springer: Berlin/Heidelberg, Germany, 2015. [Google Scholar]
  33. Liu, Y.; Zhang, Z.; Mao, Z. Analysis of Influencing Factors in Pre-Evacuation Time Using Interpretive Structural Modeling. Saf. Sci. 2020, 128, 104785. [Google Scholar] [CrossRef]
  34. Purser, D.A.; Bensilum, M. Quantification of Behaviour for Engineering Design Standards and Escape Time Calculations. Saf. Sci. 2001, 38, 157–182. [Google Scholar] [CrossRef]
  35. Yaman, M. Effect of Classroom Arrangement on Fire Evacuation Scenarios in Educational Buildings. J. Archit. Plan. Res. Stud. (JARS) 2025, 22, 271286. [Google Scholar]
  36. Fruin, J.J. Pedestrian Planning and Design; Metropolitan Association of Urban Designers and Environmental Planners: New York, NY, USA, 1971. [Google Scholar]
  37. Zhang, J.; Klingsch, W.; Schadschneider, A.; Seyfried, A. Transitions in Pedestrian Fundamental Diagrams of Straight Corridors and T-Junctions. J. Stat. Mech. Theory Exp. 2011, 2011, P06004. [Google Scholar] [CrossRef]
  38. Zhao, X.; Jia, X.; Xuan, C.; Qin, J.; Zhang, B.; Chang, L.; Xu, Z. Factors Affecting Evacuation in Intellectually Disabled Children: An Experimental Study. J. Build. Eng. 2024, 94, 109947. [Google Scholar] [CrossRef]
  39. Liu, C.; Liu, S.; Zhang, J.; Wang, L.; Guo, X.; Li, G.; Wang, W. An Optimal Design Method of Emergency Evacuation Space in the High-Density Community after Earthquake Based on Evacuation Simulation. Nat. Hazards 2023, 116, 2889–2915. [Google Scholar] [CrossRef]
  40. Haworth, B.; Usman, M.; Berseth, G.; Kapadia, M.; Faloutsos, P. On Density–Flow Relationships during Crowd Evacuation. Comput. Animat. Virtual Worlds 2017, 28, e1783. [Google Scholar] [CrossRef]
  41. Wang, J.; Lo, S.; Wang, Q.; Sun, J.; Mu, H. Risk of Large-Scale Evacuation Based on the Effectiveness of Rescue Strategies Under Different Crowd Densities. Risk Anal. 2013, 33, 1553–1563. [Google Scholar] [CrossRef]
  42. Ma, Y.; Li, L.; Zhang, H.; Chen, T. Experimental Study on Small Group Behavior and Crowd Dynamics in a Tall Office Building Evacuation. Phys. A Stat. Mech. Its Appl. 2017, 473, 488–500. [Google Scholar] [CrossRef]
  43. Xie, W.; Lee, E.W.M.; Li, T.; Shi, M.; Cao, R.; Zhang, Y. A Study of Group Effects in Pedestrian Crowd Evacuation: Experiments, Modelling and Simulation. Saf. Sci. 2021, 133, 105029. [Google Scholar] [CrossRef]
  44. Zhou, Y.; Zhao, X.; Feng, Y.; Xuan, C.; Yang, C.; Jia, X. Effects of Visual Perception of Building Materials on Human Emotional States and Cognitive Functioning in a Physical Learning Environment. Buildings 2025, 15, 1163. [Google Scholar] [CrossRef]
  45. Treister, R.; Nielsen, C.S.; Stubhaug, A.; Farrar, J.T.; Pud, D.; Sawilowsky, S.; Oaklander, A.L. Experimental Comparison of Parametric versus Nonparametric Analyses of Data from the Cold Pressor Test. J. Pain 2015, 16, 537–548. [Google Scholar] [CrossRef]
  46. Mahachie John, J.M.; Van Lishout, F.; Gusareva, E.S.; Van Steen, K. A Robustness Study of Parametric and Non-Parametric Tests in Model-Based Multifactor Dimensionality Reduction for Epistasis Detection. BioData Min. 2013, 6, 9. [Google Scholar] [CrossRef] [PubMed]
  47. Bahmani, H.; Ao, Y.; Yang, D.; Wang, D. Students’ Evacuation Behavior during an Emergency at Schools: A Systematic Literature Review. Int. J. Disaster Risk Reduct. 2023, 87, 103584. [Google Scholar] [CrossRef]
  48. Kinateder, M.; Warren, W.H. Exit Choice during Evacuation Is Influenced by Both the Size and Proportion of the Egressing Crowd. Phys. A Stat. Mech. Its Appl. 2021, 569, 125746. [Google Scholar]
  49. Li, H.; Zhang, J.; Yang, L.; Song, W.; Yuen, K.K.R. A Comparative Study on the Bottleneck Flow between Preschool Children and Adults under Different Movement Motivations. Saf. Sci. 2020, 121, 30–41. [Google Scholar] [CrossRef]
  50. Bode, N.W.; Holl, S.; Mehner, W.; Seyfried, A. Disentangling the Impact of Social Groups on Response Times and Movement Dynamics in Evacuations. PLoS ONE 2015, 10, e0121227. [Google Scholar] [CrossRef] [PubMed]
  51. Chen, L.; Tang, T.-Q.; Huang, H.-J.; Song, Z. Elementary Students’ Evacuation Route Choice in a Classroom: A Questionnaire-Based Method. Phys. A Stat. Mech. Its Appl. 2018, 492, 1066–1074. [Google Scholar] [CrossRef]
  52. Helbing, D.; Farkas, I.; Vicsek, T. Simulating Dynamical Features of Escape Panic. Nature 2000, 407, 487–490. [Google Scholar] [CrossRef]
  53. Still, G.K. Crowd Dynamics. Ph.D. Thesis, University of Warwick UK, Coventry, UK, 2000. [Google Scholar]
  54. Pan, X.; Han, C.S.; Dauber, K.; Law, K.H. A Multi-Agent Based Framework for the Simulation of Human and Social Behaviors during Emergency Evacuations. Ai Soc. 2007, 22, 113–132. [Google Scholar] [CrossRef]
  55. Daamen, W.; Hoogendoorn, S.P. Experimental Research of Pedestrian Walking Behavior. Transp. Res. Rec. 2003, 1828, 20–30. [Google Scholar] [CrossRef]
  56. Ono, R.; Valentim, M.V.; Vittorino, F. Analysis of Walking Speeds of Brazilian Primary School Children Descending Stairs Freely. Fire Saf. J. 2024, 142, 104050. [Google Scholar] [CrossRef]
  57. Mououdi, M.A.; Akbari, J.; Mousavinasab, S.N. Ergonomic Design of School Backpack by Using Anthropometric Measurements for Primary School Students (6–12 Years). Int. J. Ind. Ergon. 2018, 67, 98–103. [Google Scholar] [CrossRef]
  58. Helbing, D.; Buzna, L.; Johansson, A.; Werner, T. Self-Organized Pedestrian Crowd Dynamics: Experiments, Simulations, and Design Solutions. Transp. Sci. 2005, 39, 1–24. [Google Scholar] [CrossRef]
  59. Xiao, M.-L.; Zhang, Y.; Liu, B. Simulation of Primary School-Aged Children’s Earthquake Evacuation in Rural Town. Nat. Hazards 2017, 87, 1783–1806. [Google Scholar] [CrossRef]
  60. von Krüchten, C.; Müller, F.; Svachiy, A.; Wohak, O.; Schadschneider, A. Empirical Study of the Influence of Social Groups in Evacuation Scenarios. In Proceedings of the Traffic and Granular Flow’15; Springer: Berlin/Heidelberg, Germany, 2016; pp. 65–72. [Google Scholar]
  61. Von Krüchten, C.; Schadschneider, A. Empirical Study on Social Groups in Pedestrian Evacuation Dynamics. Phys. A Stat. Mech. Its Appl. 2017, 475, 129–141. [Google Scholar] [CrossRef]
Figure 1. Schematic Illustration of Ordered and Disordered Evacuations.
Figure 1. Schematic Illustration of Ordered and Disordered Evacuations.
Buildings 15 04154 g001
Figure 2. Diagram of the building layout, evacuation routes, camera placement, measurement areas, and data collection points.
Figure 2. Diagram of the building layout, evacuation routes, camera placement, measurement areas, and data collection points.
Buildings 15 04154 g002
Figure 3. Evacuation Phase Classification.
Figure 3. Evacuation Phase Classification.
Buildings 15 04154 g003
Figure 4. Schematic illustration of video recorder positions, spatial calibration, and methods for measuring horizontal and vertical movement speeds. Panels (A) elevation view, (B) plan view of horizontal speed measurement, and (C) plan view of vertical speed measurement.
Figure 4. Schematic illustration of video recorder positions, spatial calibration, and methods for measuring horizontal and vertical movement speeds. Panels (A) elevation view, (B) plan view of horizontal speed measurement, and (C) plan view of vertical speed measurement.
Buildings 15 04154 g004
Figure 5. Grouping Behavior Classification.
Figure 5. Grouping Behavior Classification.
Buildings 15 04154 g005
Figure 6. Movement speed of school-aged children during evacuation under disordered (DE) and ordered (OE) conditions. Panels (A) DE and (B) OE.
Figure 6. Movement speed of school-aged children during evacuation under disordered (DE) and ordered (OE) conditions. Panels (A) DE and (B) OE.
Buildings 15 04154 g006
Figure 7. Crowd density of school-aged children during evacuation under disordered (DE) and ordered (OE) conditions. Panels (A) DE and (B) OE.
Figure 7. Crowd density of school-aged children during evacuation under disordered (DE) and ordered (OE) conditions. Panels (A) DE and (B) OE.
Buildings 15 04154 g007
Figure 8. Temporal trends of crowd density, group size, and group speed of school-aged children during evacuation under disordered (DE) and ordered (OE) conditions. Panels (A) DE in the corridor, (B) OE in the corridor, (C) DE in the stairwell, and (D) OE in the stairwell.
Figure 8. Temporal trends of crowd density, group size, and group speed of school-aged children during evacuation under disordered (DE) and ordered (OE) conditions. Panels (A) DE in the corridor, (B) OE in the corridor, (C) DE in the stairwell, and (D) OE in the stairwell.
Buildings 15 04154 g008
Figure 9. Correlations among crowd density, group size, and group speed of school-aged children during evacuation under disordered (DE) and ordered (OE) conditions. Panels (A) DE in corridor, (B) OE in corridor, (C) DE in staircase, and (D) OE in staircase.
Figure 9. Correlations among crowd density, group size, and group speed of school-aged children during evacuation under disordered (DE) and ordered (OE) conditions. Panels (A) DE in corridor, (B) OE in corridor, (C) DE in staircase, and (D) OE in staircase.
Buildings 15 04154 g009
Figure 10. Relationships among crowd density, group size, and group speed of school-aged children during evacuation under disordered (DE) and ordered (OE) conditions. Panels (A) DE in corridor, (B) OE in corridor, (C) DE on staircase, and (D) OE on staircase.
Figure 10. Relationships among crowd density, group size, and group speed of school-aged children during evacuation under disordered (DE) and ordered (OE) conditions. Panels (A) DE in corridor, (B) OE in corridor, (C) DE on staircase, and (D) OE on staircase.
Buildings 15 04154 g010
Figure 11. Distribution of group types during the evacuation of school-aged children under disordered (DE) and ordered (OE) conditions. Panels (A) DE and (B) OE.
Figure 11. Distribution of group types during the evacuation of school-aged children under disordered (DE) and ordered (OE) conditions. Panels (A) DE and (B) OE.
Buildings 15 04154 g011
Figure 12. Influence of Group Leaders on School-Aged Children’s Evacuation. Panels: (A) Faster movement; (B) Route deviation and order disruption; (C) Teacher-led constraints; (D) Reduced disruption under teacher guidance.
Figure 12. Influence of Group Leaders on School-Aged Children’s Evacuation. Panels: (A) Faster movement; (B) Route deviation and order disruption; (C) Teacher-led constraints; (D) Reduced disruption under teacher guidance.
Buildings 15 04154 g012
Figure 13. Effect of teacher guidance on group passage. Panels: (A) DE; (B) OE.
Figure 13. Effect of teacher guidance on group passage. Panels: (A) DE; (B) OE.
Buildings 15 04154 g013
Table 1. Basic Information about the Classes Participating in the Experiment.
Table 1. Basic Information about the Classes Participating in the Experiment.
GradeClassTotal Students (M/F)Age/Average AgeNumber of Teachers
3C-1 (1)37 (19/18)8–9/8.321
3C-2 (1)36 (19/17)8–10/8.171
3C-3 (1)36 (19/17)8–9/8.171
4C-4 (1)37 (20/17)8–10/9.081
4C-5 (1)36 (19/17)9–10/9.251
4C-6 (1)34 (17/17)9–10/9.121
(1) Class-X (C-X).
Table 2. Collected Data and Definitions.
Table 2. Collected Data and Definitions.
IndicatorDescriptionImpact on Evacuation Efficiency
Pre-movement TimeInterval between alarm activation and the moment the last student exits the classroomReflects the initiation stage of evacuation
Movement TimeTotal duration of the movement period experienced by students from classroom exit to reaching a designated safe locationReflects overall evacuation duration
Horizontal/Vertical speedStudent movement speed in corridors or stairwellsDetermines the efficiency of evacuation movements
Speed VariabilityDegree of fluctuation in individual or group movement speedIndicates potential collision and instability risk
Stair entrance/within stairways densityNumber of students per unit area at stair entrances or within stairwellsIndicates level of congestion and flow restriction
Group TypeOrganizational pattern of groups formed during evacuation (e.g., small, medium, or large groups)Reflects organizational mode and its effect on coordination
Group SizeNumber of students moving in close proximity and synchronyIndicates clustering level and crowd compactness
Group SpeedAverage movement speed of the entire groupReflects efficiency of group movement
Table 3. Results of Statistical Testing on Evacuation Pre-movement time.
Table 3. Results of Statistical Testing on Evacuation Pre-movement time.
ClassEvacuation FormNPre-Movement Timep-Value
C-1 (1)DE (2)3725.930.62
OE (3)24.71
C-2 (1)DE (2)3622.38
OE (3)23.55
C-3 (1)DE (2)3623.26
OE (3)25.42
C-4 (1)DE (2)3723.57
OE (3)23.61
C-5 (1)DE (2)3624.80
OE (3)23.65
C-6 (1)DE (2)3422.36
OE (3)23.41
(1) Class-X, C-X; (2) Disordered Evacuation, DE; (3) Ordered Evacuation, OE.
Table 4. Statistical and Test Results of Movement Speed Data.
Table 4. Statistical and Test Results of Movement Speed Data.
GenderEvacuation FormNM (s)SDMin (s)Max (s)DE vs. OE (p-Value)Male vs. Female (p-Value)
Horizontal movement speed (m/s)MaleDE (1)1121.550.361.012.48<0.001 ***(DE)0.39;
(OE)0.41
OE (2)1121.280.091.011.43
FemaleDE (1)1021.510.310.832.49<0.001 ***
OE (2)1021.290.180.831.65
Vertical movement speed (m/s)MaleDE (1)1120.790.240.331.470.001 **(DE)0.29;
(OE)0.60
OE (2)1120.700.200.290.95
FemaleDE (1)1020.760.200.291.140.003 **
OE (2)1020.680.160.300.93
(1) Disordered Evacuation, DE; (2) Ordered Evacuation, OE. ** p < 0.01, and *** p < 0.001.
Table 5. Statistical and Test Results for Crowd Density Data.
Table 5. Statistical and Test Results for Crowd Density Data.
Area/StairwellEvacuation FormTimeM (m2)SDMin (s)Max (s)DE vs. OE (p-Value)Area/Stairwell (p-Value, A vs. B)
Crowd Density (p/m2)Area ADE (1)430.520.240.131.000.01 *(DE)0.93; (OE)0.76
OE (2)400.470.230.170.88
Area BDE (1)450.510.200.040.920.046 *
OE (2)430.490.200.080.92
Stairwell ADE (1)480.850.350.071.460.09(DE)0.74; (OE)0.52
OE (2)500.950.390.071.36
Stairwell BDE (1)460.830.450.031.420.02 *
OE (2)540.930.410.071.36
(1) Disordered Evacuation, DE; (2) Ordered Evacuation, OE. * p < 0.05.
Table 6. Summary and Test Statistics of Grouping Behavior Data.
Table 6. Summary and Test Statistics of Grouping Behavior Data.
Group TypeEvacuation Drillsp-Value
DE (1)OE (2)
Grouping behavior in the corridorsmall-sized group46.2%25.3%<0.001 ***
medium-sized group44.6%28.0%
large-sized group9.2%46.7%
Grouping behavior on the stairwellsmall-sized group48.1%3.6%<0.001 ***
medium-sized group25.0%7.3%
large-sized group26.9%89.1%
(1) Disordered Evacuation, DE; (2) Ordered Evacuation, OE. *** p < 0.001.
Table 7. Correlation between gender composition and group speed.
Table 7. Correlation between gender composition and group speed.
AreaNrp-Value
Corridor area32−0.160.32
Stair area380.070.65
Disclaimer/Publisher’s Note: The statements, opinions and data contained in all publications are solely those of the individual author(s) and contributor(s) and not of MDPI and/or the editor(s). MDPI and/or the editor(s) disclaim responsibility for any injury to people or property resulting from any ideas, methods, instructions or products referred to in the content.

Share and Cite

MDPI and ACS Style

Zhou, Y.; Xuan, C.; Zhao, X.; Jia, X. Impact of Grouping Behavior Among School-Aged Children on Evacuation Efficiency Under Ordered and Disordered Evacuation Forms. Buildings 2025, 15, 4154. https://doi.org/10.3390/buildings15224154

AMA Style

Zhou Y, Xuan C, Zhao X, Jia X. Impact of Grouping Behavior Among School-Aged Children on Evacuation Efficiency Under Ordered and Disordered Evacuation Forms. Buildings. 2025; 15(22):4154. https://doi.org/10.3390/buildings15224154

Chicago/Turabian Style

Zhou, Yufeng, Changzheng Xuan, Xiaochen Zhao, and Xiaohu Jia. 2025. "Impact of Grouping Behavior Among School-Aged Children on Evacuation Efficiency Under Ordered and Disordered Evacuation Forms" Buildings 15, no. 22: 4154. https://doi.org/10.3390/buildings15224154

APA Style

Zhou, Y., Xuan, C., Zhao, X., & Jia, X. (2025). Impact of Grouping Behavior Among School-Aged Children on Evacuation Efficiency Under Ordered and Disordered Evacuation Forms. Buildings, 15(22), 4154. https://doi.org/10.3390/buildings15224154

Note that from the first issue of 2016, this journal uses article numbers instead of page numbers. See further details here.

Article Metrics

Article metric data becomes available approximately 24 hours after publication online.
Back to TopTop