Next Article in Journal
Study on Piping Layout Optimization for Chiller-Plant Rooms Using an Improved A* Algorithm and Building Information Modeling: A Case Study of a Shopping Mall in Qingdao
Previous Article in Journal
How ChatGPT Is Shaping Next-Generation Patent Solutions
 
 
Font Type:
Arial Georgia Verdana
Font Size:
Aa Aa Aa
Line Spacing:
Column Width:
Background:
Article

Impact of Heat Waves on the Well-Being and Risks of Elderly People Living Alone: Case Study in Urban and Peri-Urban Dwellings in the Atlantic Climate of Spain

by
Urtza Uriarte-Otazua
1,
Zaloa Azkorra-Larrinaga
2,*,
Miriam Varela-Alonso
1,
Iñaki Gomez-Arriaran
3 and
Olatz Irulegi-Garmendia
1
1
CAVIAR—Quality of Life in Architecture and Urbanism Group, Department of Architecture, University of the Basque Country UPV/EHU, Plaza Oñate 2, 20018 San Sebastian, Spain
2
ENEDI—Energy in Buildings, Department of Energy Engineering, University of the Basque Country UPV/EHU, Torres Quevedo 1, 48013 Bilbao, Spain
3
ENEDI—Energy in Buildings, Department of Energy Engineering, University of the Basque Country UPV/EHU, Plaza Europa 1, 20018 San Sebastian, Spain
*
Author to whom correspondence should be addressed.
Buildings 2025, 15(13), 2274; https://doi.org/10.3390/buildings15132274
Submission received: 8 May 2025 / Revised: 13 June 2025 / Accepted: 23 June 2025 / Published: 28 June 2025
(This article belongs to the Section Architectural Design, Urban Science, and Real Estate)

Abstract

This study investigates the impact of heatwaves on the thermal comfort and well-being of elderly individuals living alone during heatwaves, focusing on two contrasting residential typologies in the Atlantic climate of Spain: a dense urban area and low-density peri-urban setting. A mixed-methods approach was used, combining in situ environmental monitoring, adaptive comfort modelling, and user-centred data from surveys and interviews based on the De Jong-Gierveld Loneliness Scale. The results show that both dwellings exceeded recommended indoor temperature thresholds during heatwaves, especially at night, contributing to sleep disturbance, cardiovascular stress, and emotional discomfort. Despite 85% of participants indicating that outdoor activities help them to mitigate not-wanted loneliness, architectural barriers often hinder such engagement. Over half reported having no balcony or terrace, which may have further intensified social isolation. Field data collected during 2022 summer heatwaves recorded maximum daytime temperatures of 30 °C and night-time peaks of 28.7 °C, exceeding the 25 °C threshold. The adaptive comfort evaluation classified both cases as Class 4 (severe discomfort). The urban dwelling showed consistent moderate discomfort (Category 3), likely due to poor ventilation and urban heat island effects. The peri-urban case, despite lacking the heat island influence, showed worse thermal conditions, especially during the day. Architectural barriers, poor thermal performance, and the lack of semi-outdoor spaces may exacerbate isolation among elderly people during extreme heat events.

1. Introduction

Heat waves—periods of abnormally high temperatures lasting several consecutive days [1]—have become more frequent, intense, and prolonged in many parts of the world, including southern Europe and the Iberian Peninsula [2,3]. According to the sixth assessment report of the Intergovernmental Panel on Climate Change (IPCC) over the course of the 21st century, changes in the climate will occur, including, at the European regional level: temperatures continuing to rise at a faster rate than the global rate and extreme warm events increasing in frequency. In Spain, the number of heat waves per decade has more than doubled since the 1980s, with urban areas particularly affected due to the urban heat island effect [4,5]. This intensification of heat stress poses severe risks to public health, especially for vulnerable groups such as the elderly [1,6,7].
The heading identified as a direct cause of death due to excessive environmental temperature in the International Classification of Diseases and Causes of Death, 10th Revision, is ‘X-30: Exposure to excessive natural heat’ (ICD10—X30 Exposure to excessive natural heat). Some of the risks factors are: persons living alone; inhabiting dwellings with excessive indoor temperatures; highly urbanized environment; and continuous exposure for several days to high temperatures that remain at night.
Therefore, older adults, and in particular those living alone, are among the most affected by extreme heat events [8]. Age-related physiological decline, reduced mobility, chronic illnesses, and social isolation can compromise their ability to cope with elevated temperatures [9,10]. In the Basque Country of Northern Spain, demographic trends point to a growing elderly population, with a significant proportion living alone in older housing stock that often lacks adequate thermal insulation, shading, or mechanical cooling systems (Eustat, 2023).
The built environment design plays a critical role in modulating indoor thermal conditions during heat waves. From J.A. López-Bueno et al., the demographic structure (population over 65 years of age) and the percentage of older homes play key roles in modulating the impact of heat waves [11]. However, many urban and peri-urban dwellings were constructed before 1980, without energy efficiency standards. In addition, in the Basque region, approximately 30% of residential buildings lack elevator access, creating barriers for elderly residents, particularly those living on upper floors, and limiting their ability to access cooler spaces or evacuate during extreme heat events. The region has a population of 486,738 individuals aged 65 and over, representing 22.2% of the total population.
At the same time, new buildings—even those classified as nearly zero-energy buildings (nZEBs) (nearly zero-energy buildings)—may suffer from indoor overheating due to excessive airtightness and solar gains when passive cooling strategies are inadequately implemented. As heat waves become more frequent and prolonged, the thermal resilience of housing becomes critical to safeguarding the well-being of elderly residents.
Given this framework, there is an urgent need to develop integrated strategies that address the interplay between housing, health, and social vulnerability—particularly in ageing societies. While indicators such as heat wave frequency, duration, and peak temperature have been widely studied, less attention has been paid to how specific built environment factors mediate heat risk in elderly populations, especially in real-world residential contexts.
Traditional methods for assessing thermal comfort often overlook the complexities of ageing, daily routines, and reduced mobility. Standard environmental monitoring tools may fail to capture the nuances of lived experience during extreme heat. There is, therefore, a need for context-sensitive and non-intrusive approaches that reflect both the physical and emotional dimensions of thermal discomfort in older adults.
This study addresses these gaps by exploring the thermal comfort and vulnerability of elderly individuals living alone during the 2022 heatwaves in the Basque Country, Spain. It focuses on two representative housing typologies—one located in a dense urban setting and the other in a peri-urban environment—selected to reflect different spatial, social, and architectural conditions. This research adopts a mixed-methods approach that combines in situ environmental monitoring, user surveys, and semi-structured interviews, allowing for a comprehensive analysis of lived experiences and objective thermal conditions.
This study explores how building characteristics—such as accessibility, adaptability, and passive cooling capacity—influence the vulnerability and resilience of ageing individuals in the face of extreme heat. By integrating environmental, architectural, and social perspectives, this research highlights the multifactorial nature of heat-related risks and the importance of context-sensitive strategies to improve thermal comfort and well-being among older adults living alone.
The main contributions of this work are:
(1)
The interrelation between heatwaves, ageing, and housing conditions was examined, with special attention to older adults living alone;
(2)
This study identifies specific architectural and social risk factors—such as a lack of elevator access, inadequate passive cooling, and social isolation—that amplify heat vulnerability among elderly individuals living alone during heatwaves;
(3)
Different housing typologies were compared in terms of thermal resilience and accessibility, highlighting the influence of the built environment on older adults’ well-being during extreme heat events.
The structure of this paper is as follows: Section 2 presents the state of the art, reviewing existing research on ageing, urban housing, and vulnerability to heatwaves, particularly for elderly people living alone. Section 3 describes the materials and methods used in this study. Section 4 introduces the thermal comfort assessment model. Section 5 presents the results, organized by user perceptions, environmental monitoring, and adaptive comfort analysis. Finally, Section 5 concludes the paper by summarizing the key findings and offering recommendations for future research directions.

2. State of Art

In recent years, the intensification of extreme heat events has become one of the most concerning manifestations of climate change. As a direct consequence of anthropogenic global warming, heatwaves are increasing in severity, duration, and frequency worldwide (IPCC. (2021). Climate Change 2021: The Physical Science Basis) [12,13,14]. Notably, the period from 2015 to 2022 has marked the highest global temperatures ever recorded, with 2022 ranking among the five hottest years on record [14,15] Among climate-related hazards, heatwaves are particularly lethal due to their ability to cause widespread health impacts while remaining largely invisible compared with other natural disasters [16,17]. Prolonged exposure to elevated temperatures increases the risk of heat-related illnesses and mortality, especially among vulnerable groups such as older adults, individuals living alone, those with chronic health conditions, or those with limited socioeconomic resources [18,19,20,21].
Historical events such as the 1995 Chicago heatwave and the 2003 European crisis underscore the devastating consequences of inadequate adaptation strategies and social vulnerability [22,23,24,25]. Nearly two decades later, the 2022 European heatwave once again resulted in thousands of excess deaths attributable to extreme heat [26]. These events highlight the urgent need for effective mitigation and adaptation measures, as heat-related impacts are expected to intensify in the coming decades.
Demographic trends reveal a rapidly ageing global population. According to the United Nations, by 2050, individuals aged 65 and older will constitute 16% of the world’s population [27]. This demographic shift brings significant challenges regarding health, autonomy, and quality of life, as older adults are more susceptible to relational, cognitive, and physical decline. In Europe, 24% of elderly individuals live alone and in regions such as the Basque Country, demographic projections show a continuous increase in the elderly population. According to data from the Basque Statistical Institute, within the framework of the “Statistical Overview of the Elderly 2020” programme, 486,738 individuals (22.2%) are currently aged 65 or older. This figure is expected to rise to 729,000 by 2041 and 735,500 by 2061 [28].
Housing plays a crucial role in supporting older adults. In terms of accessibility, it is essential that key living spaces are well-connected, movement is facilitated, and equipment is easy to use and comfortable. Additionally, dwellings must incorporate strategies to mitigate heatwave impacts. For example, the possibility to ventilate spaces at night, access outdoor areas such as balconies, or relocate to cooler zones within or outside the home can be vital during extreme heat episodes [6,29].
Spain has a National Plan of preventive actions against the effects of excess temperature for the months between June and September. It defines the maximum and minimum threshold temperatures per region for determining a heat wave. If, in 10% of the weather observatories in the region, the monitored threshold temperature is exceeded for 3 days, it is considered a heat wave [1].
The adaptive comfort theory assumes that indoor thermal comfort levels are influenced by outdoor temperatures [30]. The European Standard EN 16798-1 defines four different thermal comfort categories for the indoor environments depending on the running mean outdoor temperature [31]. It also provides recommended values for relative humidity and CO2 concentration, addressing indoor air quality and ventilation with four corresponding categories. The recommended level is category II, although a higher category is advised for individuals with specific needs, such as children, the elderly, and persons with disabilities.
Field studies in naturally ventilated apartments suggest that adaptive occupancy patterns can improve thermal comfort by up to 10% in summer, while effective fenestration use can enhance it by 13%. Night ventilation alone can yield improvements of up to 28%, and when combined with adaptive behaviour, total improvements may reach 26% [31]. These findings highlight the dual benefit of ensuring adequate indoor air quality and energy efficiency through occupant-responsive strategies [32,33,34,35,36].
Extreme heat is already influencing comfort standards [37,38,39], including those related to air conditioning use in countries like Australia [40]. Accordingly, various strategies are being explored for both new and existing homes to improve thermal comfort during heatwaves. In these scenarios, behavioural adaptations, shifting comfort expectations, and increased energy demand significantly influence the feasibility of proposed solutions [41]. Some studies even show that cooling systems in nearly zero-energy buildings may fail under prolonged heat stress, raising concerns about their resilience (e.g., during the 2022 European heatwave) [42].
A study in Japan examining overheating in multi-family dwellings reported 0.015 °C and 0.007 °C increases in body temperature for every 1 °C increase in the day and nighttime effective temperatures, respectively. The findings emphasized that solar radiation is the primary factor in summer overheating, especially in buildings designed for elderly residents [43].
According to the study titled Analysis of the Impact of Heat Waves on Daily Mortality in Urban and Rural Areas in Madrid [44], rural areas or peri-urban areas in terms of temperatures alone are less vulnerable to heat impacts. Consequently, urban residents are generally more exposed to heat due to the urban heat island effect, whereas peri-urban residents face distinct challenges. While peri-urban areas can offer better natural mitigation, those living alone in unadapted buildings often face greater mobility constraints, service access limitations, and increased social isolation [28,45,46,47].
In Spain, much of the peri-urban housing stock predates 1980 and lacks adequate thermal insulation or passive cooling measures. As a result, these dwellings may amplify heatwave-related health risks [48]. Their poor thermal performance—due to inadequate design and outdated construction—makes them particularly vulnerable during extreme heat events. This risk is further exacerbated when such dwellings are occupied by elderly individuals with limited resources to improve comfort conditions or access active cooling solutions.
While the urban heat island effect is well documented, the literature often overlooks the specific challenges faced in peri-urban areas: less access to healthcare, infrequent public transport, and housing stock that frequently predates thermal regulations. This can exacerbate vulnerabilities among older adults living alone, who are less able to respond to or recover from heat stress due to both spatial and social constraints.
Many existing studies rely on either modelling or survey data alone. There is a lack of integrative approaches that combine objective environmental measurements with subjective user experiences—particularly in relation to the psychological and social dimensions of thermal comfort and isolation.
This study addresses these gaps by deploying an integrated mixed-methods approach. It seeks to quantify environmental risk, evaluate the thermal resilience of urban and peri-urban housing, and capture the lived experiences of elderly residents during extreme heat events.

3. Material and Methods

This study employed, in a case study, a mixed-methods approach combining environmental monitoring and qualitative research to assess the thermal comfort and vulnerability of elderly individuals living alone during heatwave events. The methodology was structured around four key components: (1) the selection and continuous monitoring of two representative dwellings located in contrasting urban (Pasaia) and peri-urban (Bidania-Goiatz) settings; (2) the contextual analysis of the regional Atlantic climate, with particular attention to the heatwaves recorded in 2022; (3) the design and implementation of a monitoring strategy integrating environmental sensors; and (4) user-centred tools, such as interviews and surveys.

3.1. Case Study Selection

To understand the thermal conditions and vulnerability of elderly individuals living alone during heatwaves, two representative case studies were selected: one in the urban context of Pasaia and the other in the peri-urban/rural context of Bidania-Goiatz, both located in the Basque Country with a temperate oceanic climate (Cfb, according to Köppen–Geiger) in Spain. People inhabiting both dwellings were over 65 years, lived alone, had autonomy, and received periodic assistance. Both dwellings are situated on the upper floors of residential buildings without elevators— a condition that increases the vulnerability of older residents in the face of extreme heat and reduced mobility.

3.1.1. Urban Dwelling in Pasaia

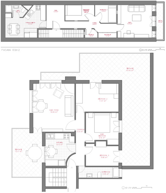
This home is located in the coastal municipality of Pasaia at sea level. However, its geographic setting, surrounded by mountainous terrain, limits the marine influence, resulting in reduced air circulation and stagnant heat during heatwaves. The dwelling is situated in a square facing the Bay of Pasaia, the social and commercial centre of the municipality (Figure 1). It is within a 10 min walk of essential services, such as a health centre, pharmacy, supermarket, retirement home, leisure centre, and library. However, emergency health care is a 30 min public transport journey away, and the nearest hospital is 40 min away. Pasaia’s population is 16,506, with 22.90% of residents over 65 years of age (Eustat 2022). This is a dense urban setting (1619.4 inhabitants/km2), typical of old town centres.
The dwelling is on the second floor besides the ground floor, accessed via a steep narrow staircase; only the living room connects directly with outside through two windows and a balcony, facing southwest towards the bay. On the north-east side, there is the kitchen, which is attached to a mountain, and between the living room and the kitchen, there are two alcove bedrooms. The buildings date back to before the 20th century, with structural stone façades, and with very elongated plots of flats with little façade. Although a deep renovation was conducted 20 years ago due to termite problems, the home suffers from poor insulation, low ventilation, and high thermal inertia. These types of dwellings are rather common in coastal locations in the region.

3.1.2. Peri-Urban Dwelling in Bidania-Goiatz

The second case study is located in a mountainous area in the peri-urban municipality of Bidania-Goiatz (Figure 2), approximately 1000 m above sea level. The elevated terrain and open exposure result in greater thermal amplitude, with more pronounced fluctuations between day and night temperatures. Consequently, while high temperatures are still experienced during heat waves, the impact is somewhat attenuated due to the natural ventilation and cooler nighttime conditions typical of this microclimate.
The dwelling is part of an isolated semi-detached building, 240 m (5 minutes’ walk) from the centre of Bidania-Goiatz, a small municipality with a population of 530, 17.7% of whom are over 65 years old (Eustat 2022). The small, low-density municipality (148 inhabitants/km2), typical of a rural environment, has some minimal services, such as a primary school, occasional medical visits, and a small grocery store. For more comprehensive healthcare, residents must travel 30 min by public transport to the nearest larger town.
The house was built in the 1960s with a reinforced concrete structure and is surrounded by large outdoor spaces with unobstructed views of the mountainous landscape. It has three facades: north-east, south-east, and south-west. The single-storey property is located on the first floor, without an elevator. The kitchen and living room face north-east, while the bedrooms face south-west. This home is characterized by abundant windows that connect all rooms to the exterior, good ventilation, low thermal inertia, and limited insulation.

3.2. Climate

Both case study locations are classified under the warm oceanic or Atlantic climate (Cfb) according to the Köppen–Geiger system [49]. This climatic zone, characteristic of the Cantabrian coast and situated around 43° latitude north, is defined by moderate temperatures, relatively weak winds, and rainfall distributed throughout the year. However, recent data from the Basque Meteorology Agency indicate a shift in this historical pattern. Summers are becoming increasingly dry, and the frequency of extreme temperature events is on the rise. The summer of 2022 was the hottest on record, with three distinct heat waves occurring during 13–20 June, 10–25 July, and 1–14 August, while October was the driest month in history.
In the Spanish national plan of preventive actions against the effects of overheating, the maximum threshold temperature for the region located dwellings under the Atlantic climate is 31.2 °C [1]. In addition, for the minimum threshold temperature, 20 °C is used, just as tropical nights defined by the Spanish State Meteorological Agency. Those threshold temperatures are obtained above the 95th percentile of the daily maximum temperature series for the months of 1 June and 30 September in the period of 2009–2019. Furthermore, those threshold temperatures for health impact due to high temperatures were calculated by analysing the association between time series of mortality and temperature at the regional level [50]. Therefore, this epidemiological analysis of the mortality–temperature association was carried out as advised by the World Health Organisation.

3.3. Monitoring

The two dwellings were monitored between March and October 2022, a period marked by prolonged high temperatures and three notable heatwaves. Measurements included indoor temperature, relative humidity, CO2 concentration, light levels, power consumption, and occupancy presence, recorded at 10 min intervals in three representative rooms: the living room, kitchen, and bedroom. The dwellings remained occupied under normal use patterns during this period. Outdoor conditions were also measured through onsite sensors and official data from Euskalmet stations in Pasaia and Bidania-Goiatz. These measurements enabled the calculation of the heat index [51,52] and application of adaptive thermal comfort models according to EN 16798-1 standards.
The sensors (see Figure 3 and Figure 4) were strategically located to study the indoor environment of each home during heatwave conditions. They were selected for their high accuracy and stability under free-running conditions, with CMOSens® technology employed for temperature and humidity monitoring, and passive infrared (PIR) sensors for occupancy detection. The selected spaces correspond to the rooms most used by the elderly residents specifically the living room, bedroom, and kitchen—identified through surveys and interviews as key areas of daily activity. This selection enabled the comparison of hygrothermal variations within and between dwellings. Sensors were mounted at approximately 1.10–1.20 m above floor level to reflect the typical height of seated occupants, and positioned at least 50 cm away from walls or windows to avoid direct radiation and thermal bridging effects. Table 1 summarizes the technical specifications and locations of the sensors deployed.

3.4. Surveys and Interviews

The survey was conducted with environmental monitoring in order to capture subjective perceptions of thermal comfort, dwelling adaptability, and emotional well-being during heatwave periods. A total of 26 surveys were administered between June and August 2022 across ten municipalities in the Basque Country. The target population comprised individuals aged 65 and over who resided alone and demonstrated no cognitive impairment. Participants were selected using intentional non-probabilistic sampling, in collaboration with local health and social services. Surveys were conducted in person, within the respondents’ homes, to ensure contextual accuracy and comfort. The instrument under scrutiny comprised a total of 75 questions, which were meticulously organized into six distinct dimensions. These dimensions encompassed dwelling characteristics, spatial adaptability, thermal comfort perception, utilization of domestic spaces, and social interaction. The survey includes varied formats—Likert scales, dichotomous, categorical, ordinal, and open-ended questions—to provide a comprehensive understanding of the environmental, emotional, and functional challenges faced by elderly individuals in their homes. It also includes the De Jong-Gierveld Loneliness Scale to assess social isolation and UCLA Loneliness Scale [53,54].
Additionally, semi-structured interviews were conducted with the two case study participants. The selection of the participants was carried out through intentional non-probabilistic sampling.

3.5. Thermal Comfort Assessment Model

Thermal comfort was assessed using the Adaptive Model of Thermal Comfort, as defined by the EN 16798-1:2020 [31] and ASHRAE 55-2013 [55] standard, particularly suitable for naturally ventilated dwellings without active cooling systems, where occupants adapt to indoor conditions through behavioural and physiological changes—a typical situation in the homes of elderly individuals living alone.
The adaptive hypothesis assumes that thermal perception is influenced by recent outdoor conditions and contextual factors, leading individuals to adjust their expectations. For instance, in warmer climates, people may tolerate or even prefer higher indoor temperatures. This contrasts with static models, which are based on fixed thermal thresholds.
The summer regime for analysis spans from the last Sunday in March to the last Saturday in October, corresponding to the period with the greatest thermal stress, especially under heatwave conditions.
The model relates indoor thermal comfort to the running mean outdoor temperature θ_rm calculated using the following Equation (1):
θ_rm = (1 − α)·{θ_(ed − 1) + α·θ_(ed − 2) + α^2·θ_(ed − 3)…}
where θ_(ed − n) is the daily mean outdoor temperature n days before the current day and α is the weighting coefficient (0.8, as recommended by the standard).
Based on θ_rm, the optimal indoor comfort temperature is calculated as Equation (2):
θ_OCT = 0.33·θ_rm + 18.8
The model defines three comfort categories (I, II, and III) based on the deviation from θ_OCT, with Category I recommended for sensitive users like the elderly and Category II for general use. The comfort limits are provided in Table 2:
These categories allow for evaluating the thermal acceptability of indoor environments. Although originally developed for office buildings, the standard can be adapted to residential settings with sedentary occupants.
When outdoor temperatures exceed 30 °C, mechanical cooling may be required. However, if indoor air movement is enhanced—e.g., through fans—upper comfort thresholds can be adjusted as shown in Table 3:
To complement this assessment, the TAIL index is referenced, originally developed under the ALDREN project [56] and adapted to residential settings by the ARCAS Project [57]. While the index includes aspects such as acoustics, lighting, and air quality, this study focuses exclusively on its thermal comfort component.
To evaluate comfort over time, each room is classified according to the percentage of hours it remains within the defined categories. The classification criteria are as follows in Table 4:
This classification enables a nuanced understanding of thermal comfort performance in residential settings under prolonged heatwave conditions, taking into account the adaptive capacity of elderly residents and their continuous exposure to thermal stress.

4. Results

This section presents the main results of the study, structured in three subsections: (1) user perception based on surveys and semi-structured interviews, (2) environmental monitoring, and (3) adaptive comfort analysis. The aim is to identify the interplay between architectural features, social vulnerability, and thermal stress during heatwaves

4.1. Surveys and Semi Structure Interviews Results

A total of 26 surveys were conducted, covering 75 questions aimed at understanding living conditions, comfort perception, and social interaction among elderly residents. Key results from selected questions are highlighted below in Table 5.
When asked whether their homes were adapted to their needs (Q25), the balcony (9%) and terrace (4%) emerged as the least suitable spaces, while bedroom (18%), kitchen (18%), living room (17%), and bathroom (16%) received similar scores. Despite this apparent balance, the relatively low rating of the bathroom is notable given its relevance to daily activities.
Regarding the most appreciated room (Q26), 62% selected the living room. Other spaces received significantly lower preferences: bathroom (4%), balcony (7%), bedroom (11%), and kitchen (17%). The unexpectedly low appreciation of balconies, despite their potential for ventilation and visual contact during heatwaves, warrants further exploration.
Regarding social interaction (Q49), windows (46.15%) and balconies (42.31%) were perceived as the main architectural enablers. In contrast, courtyards (19.23%) and light wells (11.54%) were less effective in this regard.
In terms of thermal comfort, the majority felt severely affected by high summer temperatures. Tropical nights were described as particularly uncomfortable, with many reporting a lack of effective means of cooling or adapting their homes accordingly.
To explore correlations, a Spearman’s rank correlation was applied between selected variables (mobility and thermal comfort perception), revealing a moderate negative correlation (ρ = –0.47): users with reduced mobility tended to report lower levels of thermal comfort.
Although loneliness was only subtly reflected in the surveys, it became more apparent during the interviews, particularly in emotional (30%) and social (21%) dimensions. These results suggest a link between spatial constraints and perceived discomfort, reinforcing the importance of accessibility in mitigating vulnerability during heat extremes.
These results suggest a link between spatial constraints and perceived discomfort, reinforcing the importance of accessibility in mitigating vulnerability during heat extremes. Table 5. Summary of selected survey results (abridged version; full dataset in Appendix A).
To complement and contextualise the survey data, two users and their homes were selected for semi-structured interviews. These are briefly synthesized below (full verbatims in Appendix B), focusing on aspects relevant to autonomy, comfort, and socialization.
  • Interviewee 1—(Pasaia, urban apartment without lift):
Interviewee 1 is a 78-year-old individual, single and childless, residing alone in a second-floor apartment without elevator access in the historic centre of Pasaia. Since the death of a close companion 11 years ago, the user has maintained a considerable level of autonomy, although a leg injury has significantly limited mobility, restricting outings to once a week. Challenges such as the difficulty of using a private car, the inability to access an electric bicycle, and the restrictive internal layout of the dwelling further diminish independence. While the balcony provides a vital visual and social connection to the adjacent square’s community life, overall social interactions remain limited. The user, who scored 4/6 on the De Jong Gierveld Loneliness Scale (indicating social loneliness), reported experiencing “very suffocating nights” during heatwaves, with oppressive indoor temperatures that impeded sleep and exacerbated the sense of confinement associated with the absence of a lift.
  • Interviewee 2—(Bidania-Goiatz, peri-urban apartment without lift):
Interviewee 2 is a 72-year-old of Dutch origin living alone for 40 years in a bright, well-ventilated semi-detached house with mountain views in Bidania-Goiatz. Despite the lack of local services and a bathroom needing age-appropriate adaptation, the user maintains a highly active lifestyle, attending a day centre daily and completing 4 km walks, reporting no signs of loneliness (score: 0/6 on the De Jong Gierveld Scale). Support from family, particularly their son who assists with shopping and cleaning, contributes to emotional stability, although previous episodes of depression highlight the importance of positive environmental stimuli. While currently autonomous and socially engaged, the user’s reliance on outdoor activity and the absence of a lift could present future risks for well-being as their mobility declines.
Figure 5 illustrates contrasting occupancy and mobility patterns, derived from interviews and environmental data. The results illustrate clear differences between the two users’ daily routines and space usage. Interviewee 1, living in Pasaia’s historic centre, spends most of their time indoors due to mobility issues and no lift access. In contrast, Interviewee 2, in a semi-detached house in Bidania-Goiatz, leads an active lifestyle with frequent outdoor activities. The figure highlights how spatial and architectural barriers—like stairs or poor accessibility—affect thermal comfort and well-being, particularly during heatwaves. Conversely, greater autonomy and outdoor connection, as seen in Interviewee 2, support balanced indoor–outdoor use and improved thermal adaptability.

4.2. Monitoring Results

The monitoring campaign was conducted in summer 2022, characterized by extreme and prolonged heat episodes in the Basque Country, with record-breaking temperatures in June, July, and October.
In Pasaia, the indoor temperatures in June and July approached 30 °C, with humidity exceeding 65%. For 14 consecutive days in August, all rooms remained above the 25 °C comfort threshold [58]. The living room, with direct solar exposure, was the warmest, while the kitchen, adjacent to a mountain, remained cooler. The bedroom, without windows, maintained nighttime temperatures above 20 °C during all heatwaves, leading to nearly continuous “tropical nights” unsuitable for rest (Figure 6) [29].
In Bidania-Goiatz, indoor temperatures were generally higher due to greater solar exposure. The kitchen reached 30 °C during the July heatwave, while humidity remained slightly lower than that in Pasaia. Although bedroom temperatures above 25 °C were less frequent, all nights recorded values above 20 °C (Figure 7). The mountain microclimate showed larger diurnal variations, delaying and shortening peak heat exposure.
On 18 July, Bidania reached 36.3 °C and 100% humidity outdoors, triggering a red alert. In Pasaia, the orange alert corresponded to 31.6 °C and 87% humidity, with an apparent temperature of 49 °C. Indoor temperatures peaked at 30 °C in the kitchen in Bidania-Goiatz, with 67% humidity, producing a heat index of 34 °C—classified as “extreme caution” for heat-related effects such as cramps, sunstroke, or heat exhaustion. Nighttime conditions were similarly concerning: between 23:00 and 05:00, the temperature in the Bidania-Goiatz kitchen reached 28.8 °C with 64% humidity, yielding a nighttime thermal sensation of approximately 30 °C. Table 6 provides a detailed breakdown of temperature and humidity values for the main rooms in both dwellings during this critical day. In addition, regarding outdoor temperature, according to the research of M.T. Baquero, 80% of older people would be satisfied with temperatures between 23.89 and 28.31 °C, and we see that there were many temperatures above these values [59].
Despite the slightly higher peak temperatures in Bidania-Goiatz, the persistence of high nighttime temperatures in Pasaia, especially during the red-alert period (15–18 July), posed a significant risk. In the Pasaia bedroom, temperatures did not fall below 25 °C during those four days, and humidity consistently remained above 70%. Although Bidania-Goiatz experienced somewhat faster thermal relief during nights, both dwellings faced environmental conditions that are particularly dangerous to elderly residents, particularly regarding sleep and nighttime recovery (see Figure 8).
Figure 6 shows the evolution of temperature and humidity in bedrooms and outdoor areas from 15 to 19 July, capturing the full extent of the heatwave alert period. The data highlight the persistence of elevated nighttime temperatures and humidity in Pasaia, with minimal nocturnal cooling, indicating sustained thermal stress. In contrast, Bidania-Goiatz exhibited greater daily variation, allowing for partial relief during the night. These differences reflect the contrasting thermal behaviour of the two dwellings and underscore the heightened vulnerability of occupants—particularly older adults—in settings where indoor conditions remain consistently above comfort thresholds.

4.3. Results of Adaptive Comfort Analysis

The adaptive comfort analysis for 18 July, the hottest day, indicates marked thermal discomfort in both dwellings (Figure 9). In Pasaia, the living room frequently reaches Category 3 of discomfort, remaining outside the comfort zone for the majority of the day The bedroom also exhibits persistent discomfort, with conditions worsening notably at night, making it difficult for occupants—especially elderly individuals—to fall asleep.
In Bidania-Goiatz, although the situation is slightly better, the kitchen approaches Category 2 of discomfort, indicating unsuitability for vulnerable populations. The bedroom also experiences a state of discomfort, with nighttime conditions likely to hinder adequate rest and recovery.
Extended analysis of the first heatwave reveals broader discomfort patterns (Table 7). In Pasaia, the living room spends 20.4% of recorded hours in Category 4, the highest level of discomfort, nearly half of the time (49.6%), into intermediate discomfort ranges—17.3% in Category 2 and 32.3% in Category 3. The bedroom also shows significant thermal stress, with 13.1% in Category 4 and 56.2% in Categories 2 and 3 combined. The kitchen with the lowest Category 4 percentage (6.2%) shows 79.8% in intermediate ranges.
In Bidania-Goiatz, the bedroom is most affected, with 34.8% of hours in Category 4, despite peak temperatures occurring in the kitchen. The kitchen itself shows signs of relief (58.6% in Category 1), possibly due to thermal inertia or ventilation. The living room has a more balanced profile, with over half of the hours in Category 1 and 12.4% in Category 4.
Despite the variation among rooms, all spaces in both dwellings fall under Class 4, indicating a strong reliance on active cooling systems. These findings highlight the unhealthy indoor thermal conditions during heatwaves, with special concern for bedrooms, where discomfort during night hours significantly impacts the well-being and rest of elderly occupants.
Figure 10 illustrates the temporal progression of thermal discomfort across the three main heatwaves recorded during the monitoring period, comparing both dwellings. In Pasaia (left), discomfort intensifies from June to August, especially during the second heatwave in July, with more hours in Categories 3 and 4, notably in the living room and bedroom. In contrast, Bidania-Goiatz (right) shows a slightly different trend: while discomfort levels also rise during heatwaves, the overall distribution includes more hours in Category 1, particularly in the kitchen and living room. However, the bedroom deteriorates during the second and third heatwaves, accumulating time in Category 4. The observation that all rooms fell into Class 4 serves to emphasize the inherent structural limitations of these dwellings with respect to maintaining acceptable thermal conditions without recourse to mechanical assistance. This consideration assumes particular significance in the context of elderly occupants, who may encounter difficulties in both evacuating the premises and adapting to new circumstances in a timely manner.
This comparative analysis underscores how architectural and environmental differences between urban and rural contexts influence the evolution and intensity of discomfort during extreme heat events.

4.4. Discussion

This study adds to the growing literature on thermal comfort, aging, and housing vulnerability in the context of climate change, focusing on elderly individuals living alone during heatwaves in the Basque Country. The results are consistent with those of prior research indicating that older adults—particularly those with reduced mobility, low income, or limited social support—are disproportionately affected by extreme heat [60,61].

4.4.1. Urban vs. Peri-Urban Vulnerabilities

The comparison between the urban dwelling in Pasaia and the peri-urban one in Bidania-Goiatz revealed important differences in thermal performance and social vulnerability. The urban case, embedded in a dense built environment, was characterized by persistent nighttime overheating and limited natural ventilation—likely amplified by the urban heat island effect [62]. In contrast, the peri-urban home showed higher daily temperature oscillations and more frequent relief at night, but this was offset by its geographic isolation, which increased dependence on external services and support. According to T. Cuerdo-Vilches et al., the association in inland cities, such as Bidania-Goiatz, regarding morbidity and mortality is with maximum temperature, and the association in coastal cities, such as Pasaia, regarding morbidity and mortality is with minimum temperature [63].
Both settings presented significant barriers to adaptation. In Pasaia, the absence of an elevator confined the occupant to the apartment during heat events, increasing health risks associated with prolonged indoor exposure. In Bidania-Goiatz, although the microclimate was more favourable, the resident’s autonomy was similarly compromised by limited mobility and the need for external assistance.

4.4.2. Emotional and Social Vulnerability

Survey and interview data highlighted the inadequacy of standard instruments in capturing emotional distress. While only a minority of respondents reported feelings of abandonment, qualitative interviews revealed a deeper and more widespread sense of loneliness and emotional dependence. Conversations with family members further confirmed this underreporting. This aligns with the findings of van Chen et al. (2023) [64], who advocated for mixed-methods approaches to fully understand the multifaceted nature of vulnerability.
The phenomenon of thermal discomfort was described in a number of ways. Firstly, it was described in physiological terms. Secondly, it was described as being emotionally distressing, particularly when linked to the impossibility of leaving overheated homes. The aforementioned factors serve to exacerbate the emotional burden of isolation.
Emotional well-being was intimately tied to the spatial and thermal experience of the home. The living room—identified as the most used and appreciated space—was often inadequately adapted, compounding physical discomfort with emotional stress. This intersection of thermal, spatial, and emotional factors underscores the need to integrate psychosocial variables into housing and climate resilience strategies.

4.4.3. Thermal Performance and Adaptability

Indoor temperatures in both dwellings consistently exceeded recommended thresholds during the monitored heatwave. Nighttime bedroom temperatures reached peaks above 28 °C, with average nighttime values remaining over 25 °C for extended periods, increasing the risk of sleep disruption and cardiovascular stress.
The adaptive comfort analysis revealed that, while the urban dwelling experienced prolonged moderate overheating (categories 2–3), the peri-urban dwelling faced more extreme but shorter peaks (category 4). Notably, the Bidania-Goiatz bedroom—though significantly overheated—was unoccupied during peak hours. However, in Pasaia, the bedroom’s continuous use during high nighttime temperatures posed a severe risk to health.
The employment of a mixed-methods approach in this study facilitated a multidimensional comprehension of heatwave risk, integrating environmental measurements with users’ subjective perceptions and behavioural patterns. The objective data revealed that indoor conditions frequently exceeded comfort thresholds, particularly during tropical nights. Furthermore, the survey and interviews highlighted that residents had limited ability to mitigate thermal stress. It is important to note that perceived discomfort was not always directly proportional to the measured temperatures. For instance, despite higher indoor temperatures in the peri-urban dwelling, the occupant reported lower levels of distress due to greater autonomy, ventilation opportunities, and psychological resilience. In contrast, the urban resident experienced significant discomfort and emotional strain, even under less extreme thermal conditions, due to architectural constraints, limited mobility, and social isolation. The findings demonstrate that thermal vulnerability in older adults is not solely a function of heat exposure, but is shaped by the interplay of physiological, spatial, and psychosocial factors. Consequently, future resilience strategies must integrate environmental, architectural, and emotional dimensions to adequately address the complex risks faced by ageing populations during heatwaves.
These findings challenge the sufficiency of current thermal comfort standards, which often neglect the cumulative effects of prolonged moderate discomfort, particularly during rest periods. More specifically, the used adaptive comfort methods do not detect extreme conditions prolonged at nighttime accurately, as the average daytime temperature is mostly used. This means that extreme situations, especially with elderly people, are not detected in a prudent way. However, in monitoring, extreme prolonged temperatures are detected. Moreover, both dwellings showed high reliance on active cooling (cooling dependency category 4), revealing the structural inadequacy of the housing stock to ensure thermal safety without mechanical intervention.
In terms of the subjective study with surveys and interviews, it should be mentioned that the sample of interviews has its limitations. The sample size was small because the priority was the stipulated period of time. A larger sample size would increase the reliability of the results, and it is appropriate to consider this, together with other methods, to make the subjective study more meaningful, showing the true feelings of the subjects. In addition, the particular case of elderly people would be even more evident and prominent if a statistical control group were to be incorporated.
Finally, although the evidence is not very deep, the main purpose of this study was to analyse and assess heat waves in these specific case studies under considered non-extreme warm, but humid, Atlantic climate and the two microclimates selected.

4.4.4. Study Limitations

While the present study provides valuable insights into the thermal and emotional vulnerability of elderly individuals during heatwaves, it is subject to several limitations. Firstly, the sample size is limited to two case studies, which restricts the generalizability of the results to broader populations or other geographic contexts. Secondly, the measurement of indoor temperature was confined to specific rooms and periods, which may not have fully captured the full range of thermal variability experienced by occupants. Thirdly, the reliance on self-reported survey data introduces potential bias, particularly regarding emotional well-being, which may be underreported due to social desirability or personal reticence. Furthermore, the adaptive comfort analysis was based on standardized models that may not fully reflect the physiological or behavioural responses of older adults. Future research should expand the sample, include year-round monitoring, and integrate physiological data to complement subjective assessments.

5. Conclusions

To conclude, this study provides novel insight into the lived experience of elderly individuals living alone during heatwaves, highlighting the multifactorial nature of their vulnerability. By integrating environmental data with qualitative and survey-based methods, we demonstrated that thermal stress is only one dimension of a broader set of risks shaped by social isolation, mobility limitations, and under-adapted housing.
The findings underscore the urgency of aligning housing and urban planning policies with principles of environmental justice, social inclusion, and ageing-in-place. Just as energy systems are increasingly evaluated through multi-dimensional frameworks, the response to climate-induced thermal risk in vulnerable populations must also incorporate both physical and emotional well-being. In this regard, elderly residents living alone function as a “critical case,” exposing the limits of current housing standards and social care models in the face of escalating climate extremes.
In order to address the aforementioned challenges, the implementation of specific and actionable policy measures is recommended, including: (1) the mandatory retrofitting of residential buildings constructed prior to 1980 with passive cooling solutions, such as night ventilation, cross-ventilation, and external shading systems; (2) the subsidisation of the installation of elevators in multi-storey dwellings inhabited by elderly individuals without mobility alternatives; (3) the establishment of municipal-level programmes that provide transportation and access to local cooling shelters during heatwaves; and (4) the incorporation of psychosocial indicators, such as validated loneliness scales, into housing and health vulnerability assessments. These strategies have the potential to directly enhance thermal safety and social resilience for at-risk elderly populations.
While this study focuses on two representative dwellings, the methodology and insights are transferable to broader contexts. Future work should extend this research to larger samples to evaluate how housing adaptation strategies can better support well-being and autonomy under climate stress. Ultimately, policies that support holistic and user-cantered adaptation will be essential to protect those most at risk in increasingly hostile urban climates

Author Contributions

Conceptualization, O.I.-G. and I.G.-A.; methodology, Z.A.-L. and U.U.-O.; software, I.G.-A. and Z.A.-L.; validation, O.I.-G., I.G.-A., U.U.-O., and Z.A.-L.; formal analysis, U.U.-O. and Z.A.-L.; investigation, O.I.-G., I.G.-A., U.U.-O., Z.A.-L., and M.V.-A.; resources, O.I.-G.; data curation, U.U.-O., Z.A.-L., and M.V.-A.; writing—original draft preparation, U.U.-O.; writing—review and editing, Z.A.-L. and U.U.-O.; visualization, U.U.-O.; supervision, Z.A.-L. and U.U.-O.; project administration, O.I.-G.; funding acquisition, O.I.-G. and Z.A.-L. All authors have read and agreed to the published version of the manuscript.

Funding

This work was financed and supported by ADINBERRI and Gipuzkoa Provincial Council. Research project ETXELAGUN: Housing transformation model to mitigate loneliness and increase the autonomy of elderly people (NºAZ.-12/2021). Call: “Challenges of Active and Healthy Aging. Adinberri” (2021–2022). It has also received founding by the Educational Innovation Projects Call HPB/PIE i3lab (2024–2025).

Data Availability Statement

The original contributions presented in this study are included in the article. Further inquiries can be directed to the corresponding author.

Acknowledgments

During the preparation of this manuscript/study, the authors used Chat GPT4 for the purposes of language editing and translation support, specifically to improve the clarity, grammar, and fluency of the English text.

Conflicts of Interest

The authors declare no conflicts of interest.

Appendix A. Overview of the Survey Instrument

Table A1. This is a table caption.
Table A1. This is a table caption.
Q n°Selected Questions of the Survey
1Street
2Sex
3Age
4Employment status
5What is your economic situation?
6Is the dwelling owned or rented?
7How many hours a day do you spend OUTSIDE the house?
8And how many times a week do you go outside?
9How many hours do you spend INSIDE the house?
10How many years have you lived in this house?
11How long have you been living alone?
12What are the walls in your home like?
13Would you like to change the colour of any room?
14Are there any problems with the walls?
15Are there any uneven floors in your home?
16Are there any risks related to rugs?
17Are there any risks related to curtains?
18Are there any risks related to wardrobes or cabinets?
19Are there any risks when you clean?
20Are the light switches at an appropriate height?
21Are the beds adapted to your needs?
22What do not you like about your home?
23Are you satisfied with your home?
24Do you move around comfortably in the different areas of your home?
25Are the rooms in your home adapted to your needs?
26Which space do you like the most?
27What is the space where you spend time?
28If you would like to comment on any aspect of the spaces in your home, please do so here:
29What do you think is missing in your home?
30Do you have heating?
31Do you use the heating in winter?
32Do you ventilate your home?
33What do you see from your window?
34What is your favourite view in your home?
35What do your views provide you with?
36Do you have plants at home?
37Do you have pets?
38What do they provide you with?
39Are you satisfied with your neighbours?
40And with your building entrance?
41And with your street?
42And with your neighbourhood?
43Do you have trouble going grocery shopping?
44Do you have trouble going to social and cultural services?
45Outside the vestibule you have
46Do you have a lift?
47Would you like to add anything else about how your home makes you feel, and how it could help you feel better?
48What technological devices do you use?
49Which of these elements allow you to relate more to other people?
50Which of these elements of the outside allow you to be more connected to other people?
51There is always someone I can talk to about my daily problems
52I miss having a true close friend
53I feel a sense of emptiness around me
54There are enough people I can turn to in times of need
55I miss the company of others
56I think my circle of friends is too limited
57I have many people I can fully trust
58There are enough people with whom I have a very close friendship
59I miss having people around me
60I often fell abandoned
61I can count on my friends whenever I need to
62Who is the person you interact with/visit/call the most during the day?
63Is there anyone who helps you?
64How would you describe your state of health?
65Do you feel cared for by your relatives?
66Do you feel cared for by social workers?
67You can add anything you want in this space.
68I am very aware of which aspects of my health care I am not satisfied with
69Being healthy makes me feel better
70I can cope with stress from my health issues in a positive way
71I can request help to take care of and maintain my health when I need it
72I recognize what motivates me to take care of my health
73I know myself well enough to choose what is best for my health
74I am able to achieve my health goals through concrete action plans
75I have different ways to overcome obstacles in achieving my health goals

Appendix B. Complete Verbatim Transcriptions of the Conducted Semi-Structured

Appendix B.1. Interviewee 1—Pasaia

The first interview was conducted with a 78-year-old user who lives alone in a third-floor apartment without a lift in the old town of Pasaia. The user has been living alone for approximately 11 years following the death of a close companion. Although the user remains highly autonomous, mobility is limited due to a leg injury. “The only difficulty I have is walking... I get tired, and if I don’t sit down, I fall down.” As a result, outings are rare—limited to one trip per week for groceries and other basic tasks.
Daily life largely unfolds indoors, but the internal layout of the dwelling is also a barrier to comfortable movement. Despite owning a car, the user rarely drives due to poor visibility and a lack of confidence, and although an electric bicycle is available, it is not used because it cannot be brought downstairs. “A lift or minibus would change everything… the services are outside the old town.”
The balcony plays an important role in the user’s social life. It overlooks a square that hosts many of the town’s public events, providing a visual connection to the community: “This is richness. This is what I have as a balcony… here, everything takes place in the square.” The sea view also evokes positive memories, particularly of the user’s mother.
While the user describes the neighbourhood relationships as harmonious, actual interactions are limited. “I don’t know if I like it, but I’ve had to live with it,” they say, describing past emergencies where neighbours played a key role.
The user enjoys peace and quiet, but lacks the infrastructure to fully benefit from their surroundings. During heat waves, thermal comfort is a major issue: “Very suffocating nights… unable to sleep, and unable to leave the flat…” The lack of a lift limits the ability to find relief, making the situation particularly distressing during tropical nights.

Appendix B.2. Interviewee 2—Bidania-Goiatz

The second interviewee is a 72-year-old user of Dutch origin, living in a semi-detached house in Bidania-Goiatz. The dwelling is well-lit, with panoramic views of the mountains, and the user has been living there for 52 years—40 of them alone. Unlike Interviewee 1, this user is very active and spends most of the day outdoors. “I go for my three walks, 4 km every day, Saturdays and Sundays included.”
The home is generally appreciated: “Yes, because it has many windows. Who has one, two, three, four, five… windows in a living-room?” However, the bathroom needs to be adapted to age-related needs: “I have to renovate the bathroom because it is very low and now I need a shower.”
Each morning begins with the support of a carer who helps with personal care and breakfast. Afterwards, the user attends a day centre until 16:30, where meals and a range of activities are provided. The user no longer cooks or shops—these tasks are taken care of by their son, who visits several times a week. Due to the town’s limited services, shopping takes place 10 km away, in Tolosa: “There’s no pharmacy here... but there is one in Tolosa.”
Previously affected by depression, the user now demonstrates emotional resilience. The son played a key role in this recovery, even helping to remove emotionally triggering items from the home. Only a photo of the user surfing remains, as it brings positive energy. “No, no, I don’t need company at home, not at all, because I go out every day and I’m with people, why would I need more?... Locked up at home, that’s another thing.”
Although currently independent, future concerns are linked to mobility limitations (lack of a lift) and the strong emotional connection to outdoor activity. If going out becomes difficult, the user’s well-being may be at risk.

References

  1. SM of Health. Plan Nacional de Actuaciones Preventivas de los Efectos del Exceso de Temperatura Sobre la Salud; Ministerio de Sanidad: Madrid, Spain, 2024.
  2. De Wilde, P.; Coley, D. The implications of a changing climate for buildings. Build. Environ. 2012, 55, 1–7. [Google Scholar] [CrossRef]
  3. van Hooff, T.; Blocken, B.; Hensen, J.L.M.; Timmermans, H.J.P. On the predicted effectiveness of climate adaptation measures for residential buildings. Build. Environ. 2014, 82, 300–316. [Google Scholar] [CrossRef]
  4. Bakhsh, K.; Rauf, S.; Zulfiqar, F. Adaptation strategies for minimizing heat wave induced morbidity and its determinants. Sustain. Cities Soc. 2018, 41, 95–103. [Google Scholar] [CrossRef]
  5. Amaripadath, D.; Rahif, R.; Zuo, W.; Velickovic, M.; Voglaire, C.; Attia, S. Climate change sensitive sizing and design for nearly zero-energy office building systems in Brussels. Energy Build. 2023, 286, 112971. [Google Scholar] [CrossRef]
  6. White-Newsome, J.L.; Sanchez, B.N.; Parker, E.A.; Dvonch, J.T.; Zhang, Z.Z.; O’Neill, M.S. Assessing heat-adaptive behaviors among older, urban-dwelling adults. Maturitas 2011, 70, 85–91. [Google Scholar] [CrossRef]
  7. Lomas, K.J.; Watson, S.; Allinson, D.; Fateh, A.; Beaumont, A.; Allen, J.; Foster, H.; Garrett, H. Dwelling and household characteristics’ influence on reported and measured summertime overheating: A glimpse of a mild climate in the 2050’s. Build. Environ. 2021, 201, 107986. [Google Scholar] [CrossRef]
  8. Hughes, C.; Natarajan, S. Summer thermal comfort and overheating in the elderly. Build. Serv. Eng. Res. Technol. 2019, 40, 426–445. [Google Scholar] [CrossRef]
  9. Pani-Harreman, K.E.; Bours, G.J.J.W.; Zander, I.; Kempen, G.I.J.M.; van Duren, J.M.A. Definitions, key themes and aspects of ‘ageing in place’: A scoping review. Ageing Soc. 2021, 41, 2026–2059. [Google Scholar] [CrossRef]
  10. Ma, C.; Guerra-Santin, O.; Mohammadi, M. Smart home modification design strategies for ageing in place: A systematic review. J. Hous. Built Environ. 2022, 37, 625–651. [Google Scholar] [CrossRef]
  11. López-Bueno, J.A.; Díaz, J.; Linares, C. Differences in the impact of heat waves according to urban and peri-urban factors in Madrid. Int. J. Biometeorol. 2019, 63, 371–380. [Google Scholar] [CrossRef]
  12. IPCC Sixth Assessment Report. Available online: https://www.ipcc.ch/report/ar6/wg1/ (accessed on 3 May 2025).
  13. Perkins-Kirkpatrick, S.E.; Lewis, S.C. Increasing trends in regional heatwaves. Nat. Commun. 2020, 11, 3357. [Google Scholar] [CrossRef] [PubMed]
  14. Ballester, J.; Quijal-Zamorano, M.; Turrubiates, R.F.M.; Pegenaute, F.; Herrmann, F.R.; Robine, J.M.; Basagaña, X.; Tonne, C.; Antó, J.M.; Achebak, H. Heat-related mortality in Europe during the summer of 2022. Nat. Med. 2023, 29, 1857–1866. [Google Scholar] [CrossRef] [PubMed]
  15. European State of the Climate 2022. Available online: https://climate.copernicus.eu/esotc/2022 (accessed on 3 May 2025).
  16. Johnson, D.P.; Wilson, J.S.; Luber, G.C. Socioeconomic indicators of heat-related health risk supplemented with remotely sensed data. Int. J. Health Geogr. 2009, 8, 57. [Google Scholar] [CrossRef] [PubMed]
  17. Kotharkar, R.; Ghosh, A. Progress in extreme heat management and warning systems: A systematic review of heat-health action plans (1995–2020). Sustain. Cities Soc. 2022, 76, 103487. [Google Scholar] [CrossRef]
  18. World Health Organization. Addressing Climate Change: Supplement to the WHO Water, Sanitation and Hygiene Strategy 2018–2025; World Health Organization: Geneva, Switzerland, 2023. [Google Scholar]
  19. Climate Change. Available online: https://www.who.int/news-room/fact-sheets/detail/climate-change-and-health (accessed on 3 May 2025).
  20. Martínez-Solanas, È.; Quijal-Zamorano, M.; Achebak, H.; Petrova, D.; Robine, J.-M.; Herrmann, F.R.; Rodó, X.; Ballester, J. Projections of temperature-attributable mortality in Europe: A time series analysis of 147 contiguous regions in 16 countries. Lancet Planet. Health 2021, 5, e446–e454. [Google Scholar] [CrossRef]
  21. Quijal-Zamorano, M.; Martinez-Solanas, E.; Achebak, H.; Petrova, D.; Robine, J.-M.; Herrmann, F.R.; Rodo, X.; Ballester, J. Seasonality reversal of temperature attributable mortality projections due to previously unobserved extreme heat in Europe. Lancet Planet. Health 2021, 5, e573–e575. [Google Scholar] [CrossRef]
  22. Narayanan, A.; Rezaali, M.; Bunting, E.; Keellings, D. It’s Getting Hot in Here: Spatial Impact of Humidity on Heat Wave Severity in the United States. Sci. Total Environ. 2025, 963, 178397. [Google Scholar] [CrossRef]
  23. Naughton, M.P.; Henderson, A.; Mirabelli, M.C.; Kaiser, R.; Wilhelm, J.L.; Kieszak, S.M.; Rubin, C.H.; McGeehin, M.A. Heat-related mortality during a 1999 heat wave in Chicago. Am. J. Prev. Med. 2002, 22, 221–227. [Google Scholar] [CrossRef]
  24. Robine, J.-M.; Cheung, S.L.K.; Le Roy, S.; Van Oyen, H.; Griffiths, C.; Michel, J.-P.; Herrmann, F.R. Death toll exceeded 70,000 in Europe during the summer of 2003. Comptes Rendus. Biol. 2008, 331, 171–178. [Google Scholar] [CrossRef]
  25. Lobo, A.; Maisongrande, P.; Coret, L. The impact of the heat wave of summer 2003 in SW Europe as observed from satellite imagery. Phys. Chem. Earth Parts A/B/C 2010, 35, 19–24. [Google Scholar] [CrossRef]
  26. Kim, J.-H.; Nam, S.-H.; Kim, M.-K.; Serrano-Notivoli, R.; Tejedor, E. The 2022 record-high heat waves over southwestern Europe and their underlying mechanism. Weather Clim. Extrem. 2024, 46, 100729. [Google Scholar] [CrossRef]
  27. United Nations Population Fund. State of World Population 2023: 8 Billion Lives, Infinite Possibilities: The Case for Rights and Choices; United Nations Population Fund: New York, NY, USA, 2023. [Google Scholar]
  28. Orlando, S.; Mosconi, C.; De Santo, C.; Gialloreti, L.E.; Inzerilli, M.C.; Madaro, O.; Mancinelli, S.; Ciccacci, F.; Marazzi, M.C.; Palombi, L. The effectiveness of intervening on social isolation to reduce mortality during heat waves in aged population: A retrospective ecological study. Int. J. Environ. Res. Public Health 2021, 18, 11587. [Google Scholar] [CrossRef]
  29. Schünemann, C.; Schiela, D.; Ortlepp, R. How window ventilation behaviour affects the heat resilience in multi-residential buildings. Build. Environ. 2021, 202, 107987. [Google Scholar] [CrossRef]
  30. Zhao, Q.; Lian, Z.; Lai, D. Thermal comfort models and their developments: A review. Energy Built Environ. 2021, 2, 21–33. [Google Scholar] [CrossRef]
  31. EN 16798-1; CEN/TC. Energy Performance of Buildings–Part 1: Indoor Environmental Input Parameters for Design and Assessment of Energy Performance of Buildings Addressing Indoor Air Quality, Thermal Environment, Lighting and Acoustics–Module M1–6. CEN/TC. European Committee for Standardization (CEN): Brussels, Belgium, 2020.
  32. Rajasekar, E.; Anupama, U.; Venkateswaran, R. Thermal comfort beyond building design—An investigation in naturally ventilated residential apartments in a hot–dry climate. Adv. Build. Energy Res. 2014, 8, 196–215. [Google Scholar] [CrossRef]
  33. Becker, R.; Goldberger, I.; Paciuk, M. Improving energy performance of school buildings while ensuring indoor air quality ventilation. Build. Environ. 2007, 42, 3261–3276. [Google Scholar] [CrossRef]
  34. Heracleous, C.; Michael, A. Assessment of overheating risk and the impact of natural ventilation in educational buildings of Southern Europe under current and future climatic conditions. Energy 2018, 165, 1228–1239. [Google Scholar] [CrossRef]
  35. De Grussa, Z.; Andrews, D.; Lowry, G.; Newton, E.J.; Yiakoumetti, K.; Chalk, A.; Bush, D. A London residential retrofit case study: Evaluating passive mitigation methods of reducing risk to overheating through the use of solar shading combined with night-time ventilation. Build. Serv. Eng. Res. Technol. 2019, 40, 389–408. [Google Scholar] [CrossRef]
  36. Baba, F.M.; Ge, H.; Wang, L.L.; Zmeureanu, R. Do high energy-efficient buildings increase overheating risk in cold climates? Causes and mitigation measures required under recent and future climates. Build. Environ. 2022, 219, 109230. [Google Scholar] [CrossRef]
  37. Attia, S.; Levinson, R.; Ndongo, E.; Holzer, P.; Kazanci, O.B.; Homaei, S.; Zhang, C.; Olesen, B.W.; Qi, D.; Hamdy, M. Resilient cooling of buildings to protect against heat waves and power outages: Key concepts and definition. Energy Build. 2021, 239, 110869. [Google Scholar] [CrossRef]
  38. Laouadi, A.; Bartko, M.; Lacasse, M.A. A new methodology of evaluation of overheating in buildings. Energy Build. 2020, 226, 110360. [Google Scholar] [CrossRef]
  39. Armstrong, B.G.; Chalabi, Z.; Fenn, B.; Hajat, S.; Kovats, S.; Milojevic, A.; Wilkinson, P. Association of mortality with high temperatures in a temperate climate: England and Wales. J. Epidemiol. Community Health 2011, 65, 340–345. [Google Scholar] [CrossRef] [PubMed]
  40. Miller, W. What does built environment research have to do with risk mitigation, resilience and disaster recovery? Sustain. Cities Soc. 2015, 19, 91–97. [Google Scholar] [CrossRef]
  41. Bennetts, H.; Pullen, S.; Zillante, G. Design Strategies For Houses Subject To Heatwaves. Open House Int. 2012, 37, 29–38. [Google Scholar] [CrossRef]
  42. Sengupta, A.; Al Assaad, D.; Bastero, J.B.; Steeman, M.; Breesch, H. Impact of heatwaves and system shocks on a nearly zero energy educational building: Is it resilient to overheating? Build. Environ. 2023, 234, 110152. [Google Scholar] [CrossRef]
  43. Quezada, J.T.; Toshiharu, I.; Roura, H.C.; Buxeda, A.I. Predominant factors on multi-housing overheating interior conditions and body temperature: A field study in Japan. In Proceedings of the International Conference on Smart, Sustainable and Sensuous Settlements Transformation, Technische Universität München, München, Germany, 7–8 March 2018; pp. 163–168. [Google Scholar]
  44. López-Bueno, J.A.; Navas-Martín, M.A.; Linares, C.; Mirón, I.J.; Luna, M.Y.; Sánchez-Martínez, G.; Culqui, D.; Díaz, J. Analysis of the impact of heat waves on daily mortality in urban and rural areas in Madrid. Environ. Res. 2021, 195, 110892. [Google Scholar] [CrossRef]
  45. Zinzi, M.; Agnoli, S.; Burattini, C.; Mattoni, B. On the thermal response of buildings under the synergic effect of heat waves and urban heat island. Sol. Energy. 2020, 211, 1270–1282. [Google Scholar] [CrossRef]
  46. Hamdy, M.; Carlucci, S.; Hoes, P.-J.; Hensen, J.L.M. The impact of climate change on the overheating risk in dwellings—A Dutch case study. Build. Environ. 2017, 122, 307–323. [Google Scholar] [CrossRef]
  47. Mirzaei, P.A.; Haghighat, F.; Nakhaie, A.A.; Yagouti, A.; Giguère, M.; Keusseyan, R.; Coman, A. Indoor thermal condition in urban heat Island–Development of a predictive tool. Build. Environ. 2012, 57, 7–17. [Google Scholar] [CrossRef]
  48. Mukhopadhyay, B.; Weitz, C.A.; Das, K. Indoor heat conditions measured in urban slum and rural village housing in West Bengal, India. Build. Environ. 2021, 191, 107567. [Google Scholar] [CrossRef]
  49. Kottek, M.; Grieser, J.; Beck, C.; Rudolf, B.; Rubel, F. World Map of the Köppen-Geiger Climate Classification Updated. Meteorol. Z. 2006, 15, 259–263. [Google Scholar] [CrossRef] [PubMed]
  50. Diaz-Jimenez, J.; Carmona-Alferez, R.; Linares-Gil, C. Temperaturas Umbrales de Disparo de la Mortalidad Atribuible al Calor en España en el Periodo 2000–2009; Escuela Nacional de Sanidad: Madrid, Spain, 2015. [Google Scholar]
  51. Sheng, M.; Reiner, M.; Sun, K.; Hong, T. Assessing thermal resilience of an assisted living facility during heat waves and cold snaps with power outages. Build. Environ. 2023, 230, 110001. [Google Scholar] [CrossRef]
  52. Basque Meteorological Agency, (n.d.). Available online: https://www.euskalmet.euskadi.eus/observacion/datos-de-estaciones/ (accessed on 31 December 2022).
  53. van Tilburg, T.G.; de Jong Gierveld, J. Reference standards for the loneliness scale. Tijdschr. Gerontol. Geriatr. 1999, 30, 158–163. [Google Scholar]
  54. De Jong-Gierveld, J.; Van Tilburg, T.G. Manual of the Loneliness Scale; Methoden en Technieken: Amsterdam, The Netherlands, 1999. [Google Scholar]
  55. Standard 55-2013; Thermal Environmental Conditions for Human Occupancy. American Society of Heating, Refrigerating, and Air Conditioning Engineers (ASHRAE): Atlanta, GA, USA, 2013.
  56. ALDREN Project, (n.d.). Available online: https://aldren.eu/ (accessed on 9 January 2023).
  57. ARCAS Project, (n.d.). Available online: http://www.arcassudoe.eu/ (accessed on 9 January 2023).
  58. Larriva, B.; Teresa, M. Confort Térmico y Acústico para la Tercera edad en Espacios Públicos de la Ciudad Consolidada del Clima Mediterráneo Continental caso de Estudio Barrio Arapiles, Madrid. Doctoral’s Thesis, Universidad Politécnica de Madrid, Madrid, Spain, 2021. [Google Scholar] [CrossRef]
  59. Real Decreto 1027/2007; Reglamento de Instalaciones Térmicas en Edificios (Rite). Ministerio de la Presidencia: Madrid, Spain, 2007.
  60. Serrano, P.Y.; Gómez, D.T.; Bieńkowska, Z. Energy vulnerability and self-imposed austerity: An ethnographic approach to adaptation strategies to extreme heat among older adults in Madrid. Energy Res. Soc. Sci. 2023, 103, 103207. [Google Scholar] [CrossRef]
  61. Vaňo, S.; Duchková, H.; Bašta, P.; Jančovič, M.; Geletič, J.; Lorencová, E.K.; Suchá, L. From scenarios to strategies: Integrated methodology for addressing urban heat vulnerability in an uncertain future. Sustain. Cities Soc. 2025, 121, 106202. [Google Scholar] [CrossRef]
  62. Tehrani, A.A.; Veisi, O.; Delavar, Y.; Bahrami, S.; Sobhaninia, S.; Mehan, A. Predicting urban Heat Island in European cities: A comparative study of GRU, DNN, and ANN models using urban morphological variables. Urban Clim. 2024, 56, 102061. [Google Scholar] [CrossRef]
  63. Cuerdo-Vilches, T.; Díaz, J.; López-Bueno, J.A.; Luna, M.Y.; Navas, M.A.; Mirón, I.J.; Linares, C. Impact of urban heat islands on morbidity and mortality in heat waves: Observational time series analysis of Spain’s five cities. Sci. Total Environ. 2023, 890, 164412. [Google Scholar] [CrossRef]
  64. Chen, M.; Farahani, A.V.; Kilpeläinen, S.; Kosonen, R.; Younes, J.; Ghaddar, N.; Ghali, K.; Melikov, A.K. Thermal comfort chamber study of Nordic elderly people with local cooling devices in warm conditions. Build. Environ. 2023, 235, 110213. [Google Scholar] [CrossRef]
Figure 1. Description of the urban dwelling in Pasaia.
Figure 1. Description of the urban dwelling in Pasaia.
Buildings 15 02274 g001
Figure 2. Description of the peri-urban dwelling in Bidania-Goiatz. Description of the peri-urban dwelling in Bidania-Goiatz.
Figure 2. Description of the peri-urban dwelling in Bidania-Goiatz. Description of the peri-urban dwelling in Bidania-Goiatz.
Buildings 15 02274 g002
Figure 3. Vertical section of the 2 dwellings: top, Pasaia (urban context); bottom, Bidania-Goiatz (peri-urban context).
Figure 3. Vertical section of the 2 dwellings: top, Pasaia (urban context); bottom, Bidania-Goiatz (peri-urban context).
Buildings 15 02274 g003
Figure 4. Vertical section of the 2 dwellings: top, Pasaia (urban context); bottom, Bidania-Goiatz (peri-urban context).
Figure 4. Vertical section of the 2 dwellings: top, Pasaia (urban context); bottom, Bidania-Goiatz (peri-urban context).
Buildings 15 02274 g004
Figure 5. Occupancy results through interviews and monitoring.
Figure 5. Occupancy results through interviews and monitoring.
Buildings 15 02274 g005
Figure 6. Pasaia outdoor temperature and bedroom temperatures in heat waves: June (a); July (b); and August (c).
Figure 6. Pasaia outdoor temperature and bedroom temperatures in heat waves: June (a); July (b); and August (c).
Buildings 15 02274 g006
Figure 7. Bidania-Goiatz outdoor temperature and bedroom temperatures in heat waves: June (a); July (b); and August (c).
Figure 7. Bidania-Goiatz outdoor temperature and bedroom temperatures in heat waves: June (a); July (b); and August (c).
Buildings 15 02274 g007
Figure 8. Temperatures and humidities of bedrooms and outdoors on the hottest day, 15 to 19 July: (a) Pasaia; and (b) Bidania-Goiatz.
Figure 8. Temperatures and humidities of bedrooms and outdoors on the hottest day, 15 to 19 July: (a) Pasaia; and (b) Bidania-Goiatz.
Buildings 15 02274 g008
Figure 9. Comfort analysis: left Pasaia; right, Bidania-Goiatz. (a) First heatwave: 13–20 June. (b) Second heatwave: 10–25 July. (c) Third heatwave: 1–14 August.
Figure 9. Comfort analysis: left Pasaia; right, Bidania-Goiatz. (a) First heatwave: 13–20 June. (b) Second heatwave: 10–25 July. (c) Third heatwave: 1–14 August.
Buildings 15 02274 g009
Figure 10. Discomfort development of adaptive comfort analysis of 3 heat waves: left, Pasaia; and right, Bidania-Goiatz. (a) First heatwave: 13–20 June. (b) Second heatwave: 10–25 July. (c) Third heatwave: 1–14 August.
Figure 10. Discomfort development of adaptive comfort analysis of 3 heat waves: left, Pasaia; and right, Bidania-Goiatz. (a) First heatwave: 13–20 June. (b) Second heatwave: 10–25 July. (c) Third heatwave: 1–14 August.
Buildings 15 02274 g010
Table 1. Monitoring equipment and locations:.
Table 1. Monitoring equipment and locations:.
ParameterTechnology/ModelMeasurement RangeAccuracyLocation
TemperatureCMOSens®−40 °C to +125 °C±0.015 °CKitchen, living room, bedroom
Relative
humidity
CMOSens®0 to 100% RH± typical toleranceKitchen, living room, bedroom
OccupancyPassive Infrared (PIR)Max detection: 5 mHorizontal: 94°
Vertical: 82°
Near entrances and main circulation areas
Door contactSIGFOX/LoRaWANDetection distance 30 mm10 detections/dayEntry doors
Outdoor Tª & RHData obtained from official meteorological stations of Euskalmet (Basque Meteorology Agency) in the municipalities of Pasaia and Bidania [34]
Additional environmental parametersVariousPower, lighting, noise, CO2, etc.According to manufacturerComplementary environmental measurements
Note: Manufacturer: Sensirion AG; City: Staefa; Country: Switzerland
Table 2. Adaptive thermal comfort categories and acceptable temperature ranges.
Table 2. Adaptive thermal comfort categories and acceptable temperature ranges.
CategoryUpper Limit (°C)Lower Limit (°C)
I θ O C T + 2 θ O C T 3
II θ O C T + 3 θ O C T 4
III θ O C T + 4 θ O C T 5
Table 3. Increase in upper comfort temperature limits based on indoor air velocity.
Table 3. Increase in upper comfort temperature limits based on indoor air velocity.
Air Velocity (m/s)Allowable Temperature Increase
0.6+1.2 °C
0.9+1.8 °C
1.2+2.2 °C
Table 4. Criteria for assigning thermal comfort classes in indoor environments:.
Table 4. Criteria for assigning thermal comfort classes in indoor environments:.
Comfort ClassCategory I
<br>(tc, I)
Category II
<br>(tc, II)
Category III
<br>(tc, III)
Category IV
<br>(tc, IV)
Class 1≥94% of the total time≤5%≤1%0%
Class 2Cat. I + II ≥ 94%≤5%-≤1%
Class 3Cat. I + II + III ≥ 94%--≤6%
Class 4--->6%
Table 5. Significant questions and answers from the survey carried out.
Table 5. Significant questions and answers from the survey carried out.
Q NoSurvey QuestionsResponses (%)
25Are the rooms in your home adapted to your needs?Living room
Bathroom
Balcony
17.00
16.00
09.00
26Which spaces do you like the most?Living room
Bathroom
Balcony
62.00
04.00
07.00
27What is the space where you spend time?Living room
Balcony
72.41
00.00
29What is missing in your home?Terrace
Balcony
42.69
27.00
45Outside the vestibule you haveSlopes
Stairs
44.83
10.34
46Do you have a lift?No31.03
49Which elements facilitate relationships?Window
Balcony
46.15
42.31
Table 6. Temperatures on the hottest day, 18 July.
Table 6. Temperatures on the hottest day, 18 July.
PERIODPARAMETERBEDROOMLIVING-ROOMKITCHENOUTDOOR
PASAIA0–24 h T ¯ (°C)26.1 (73,3)26.2 (68,9)25.1 (74.3)24.6 (69.3)
T m a c (°C)28.2 (78)29.9 (74)26.6 (81)31.6 (87)
T m i n (°C)25 (63)25.1 (55)24 (68)20.1 (35)
5–23 h T ¯ (°C)26.2 (73.5)26.3 (68.8)25.1 (76.2)24.9 (69.2)
T m a c (°C)28.2 (78)29.9 (74)26.6 (81)31.6 (87)
T m i n (°C)25.1 (63)25.1 (55)24 (68)20.1 (35)
23–5 h T ¯ (°C)25.9 (69.2)25.5 (73.8)25.7 (72.5)23.9 (69.4)
T m a c (°C)27.3 (71)26.8 (81)26.8 (77)29.4 (83)
T m i n (°C)25.2 (67)24 (68)25 (68)20.6 (48)
BIDANIA0–24 h T ¯ (°C)26 (65.8)26.5 (62.7)27.9 (58.8)26.3 (46.8)
T m a c (°C)28.7 (73)29.6 (68)30 (67)36.3 (100)
T m i n (°C)24.2 (59)25.3 (52)26.7 (52)16 (13.3)
5–23 h T ¯ (°C)25.8 (66)26.5 (61.9)28 (57.8)27.4 (44.6)
T m a c (°C)28.7 (73)29.6 (68)30 (67)36.3 (100)
T m i n (°C)24.2 (59)25.3 (52)26.7 (52)13.3 (16)
23–5 h T ¯ (°C)26.6 (64.7)26.5 (64.3)27.7 (61.6)22.8 (53.7)
T m a c (°C)28.7 (70)28.2 (67)28.8 (64)28.4 (100)
T m i n (°C)25.5 (61)25.6 (61)26.7 (56)18.3 (29)
Caution
Extreme Caution
Danger
Extreme danger
HEAT INDEX [33]
Table 7. Adaptive comfort analysis during the first heat wave:.
Table 7. Adaptive comfort analysis during the first heat wave:.
TownRoomCat 1
(%)
Cat 2
(%)
Cat 3
(%)
Cat 4
(%)
Class of the RoomClass of Dwelling
PasaiaLiving room30.017.332.320.444
Bedroom30.722.034.213.14
Kitchen14.044.235.66.24
Bidania-GoiatzLiving room56.515.815.312.444
Bedroom29.421.314.534.84
Kitchen58.618.19.713.64
Disclaimer/Publisher’s Note: The statements, opinions and data contained in all publications are solely those of the individual author(s) and contributor(s) and not of MDPI and/or the editor(s). MDPI and/or the editor(s) disclaim responsibility for any injury to people or property resulting from any ideas, methods, instructions or products referred to in the content.

Share and Cite

MDPI and ACS Style

Uriarte-Otazua, U.; Azkorra-Larrinaga, Z.; Varela-Alonso, M.; Gomez-Arriaran, I.; Irulegi-Garmendia, O. Impact of Heat Waves on the Well-Being and Risks of Elderly People Living Alone: Case Study in Urban and Peri-Urban Dwellings in the Atlantic Climate of Spain. Buildings 2025, 15, 2274. https://doi.org/10.3390/buildings15132274

AMA Style

Uriarte-Otazua U, Azkorra-Larrinaga Z, Varela-Alonso M, Gomez-Arriaran I, Irulegi-Garmendia O. Impact of Heat Waves on the Well-Being and Risks of Elderly People Living Alone: Case Study in Urban and Peri-Urban Dwellings in the Atlantic Climate of Spain. Buildings. 2025; 15(13):2274. https://doi.org/10.3390/buildings15132274

Chicago/Turabian Style

Uriarte-Otazua, Urtza, Zaloa Azkorra-Larrinaga, Miriam Varela-Alonso, Iñaki Gomez-Arriaran, and Olatz Irulegi-Garmendia. 2025. "Impact of Heat Waves on the Well-Being and Risks of Elderly People Living Alone: Case Study in Urban and Peri-Urban Dwellings in the Atlantic Climate of Spain" Buildings 15, no. 13: 2274. https://doi.org/10.3390/buildings15132274

APA Style

Uriarte-Otazua, U., Azkorra-Larrinaga, Z., Varela-Alonso, M., Gomez-Arriaran, I., & Irulegi-Garmendia, O. (2025). Impact of Heat Waves on the Well-Being and Risks of Elderly People Living Alone: Case Study in Urban and Peri-Urban Dwellings in the Atlantic Climate of Spain. Buildings, 15(13), 2274. https://doi.org/10.3390/buildings15132274

Note that from the first issue of 2016, this journal uses article numbers instead of page numbers. See further details here.

Article Metrics

Back to TopTop