Research on Loosening Identification of High-Strength Bolts Based on Relaxor Piezoelectric Sensor
Abstract
1. Introduction
2. PMN-PT Sensing Mechanism of Piezoelectric Materials
3. Design and Performance Analysis of PMN-PT Sensor
3.1. PMN-PT Sensor
3.2. Performance Test
3.2.1. Test Preparation
3.2.2. Response to Sinusoidal Excitations
3.3. Frequency Response Characteristics Test
4. Bolt Loosening Damage Identification Based on Vibration Signals
4.1. Bolt Loosening Damage Identification Test Based on PMN-PT Sensor
4.1.1. Experimental Design
4.1.2. Vibration Test of the Exciter
4.2. Finite Element Simulation
4.2.1. Model Establishment
4.2.2. Finite Element Analysis Results
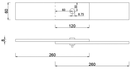
4.3. Piezoelectric Smart Washer Sensor
4.3.1. Design and Preparation of Piezoelectric Smart Washer Sensor
4.3.2. Testing of Piezoelectric Smart Gasket Sensor
4.3.3. Establishment of Bolt Loosening Damage Index
5. Conclusions
- (1)
- The PMN-PT sensor was compared with the PVDF sensor. The test showed that the sensitivity of the PMN-PT sensor was 21 times that of the PVDF sensor, and its response to structural vibration changes was more reliable.
- (2)
- Through the bolt loosening damage identification test and simulation based on PMN-PT piezoelectric sensor, it is proved that the correlation between the stress peak and the bolt preload is weak (the stress peak increase on the steel plate is 0.025%, and the stress peak increase on the upper surface of the nut is only 0.014%), so the stress peak index is not suitable for the identification of the bolt tightening degree. Through experiments and simulations, it was found that with the increase of bolt preload, the structure’s natural frequency increased significantly, proving the effectiveness of natural frequency in bolt loosening damage identification.
- (3)
- The experimental results of the piezoelectric smart gasket sensor and the traditional adhesive sensor were compared through the exciter vibration test, showing that the maximum error between the two was 4.5%, indicating that the smart gasket sensor had almost no effect on the measured structural natural frequency. Then, based on the change law of the structural natural frequency, a bolt loosening index was proposed to evaluate the degree of bolt loosening damage. The test data were substituted into the bolt loosening index calculated by the actual preload for fitting, and it was found that the two had a good correlation and satisfied the exponential decay model. The goodness of fit was 0.97, which proved the availability of the bolt loosening index.
Author Contributions
Funding
Data Availability Statement
Conflicts of Interest
References
- Dai, D.; He, Q. Structure damage localization with ultrasonic guided waves based on a time–frequency method. Signal Process. 2014, 96 Pt A, 21–28. [Google Scholar] [CrossRef]
- Cawley, P.; Adams, R.D. The mechanics of the coin-tap method of non-destructive testing. J. Sound Vib. 1988, 122, 299–316. [Google Scholar] [CrossRef]
- Garcia, M.; Jairo, A. A Novel Ultrasonic Method to Quantify Bolt Tension. Master’s Thesis, University of South Florda, Tampa, FL, USA, 2012. [Google Scholar]
- Liang, C.; Sun, F.P.; Rogers, C.A. Coupled electro-mechanical analysis of adaptive material system: Determination of the actuator power consumption and system energy transfer. J. Intell. Mater. Syst. Struct. 1994, 5, 12–20. [Google Scholar] [CrossRef]
- Ritdumrongkul, S.; Abe, M.; Fujino, Y.; Miyashita, T. Quantitative health monitoring of bolted joints using a piezoceramic actuator sensor. Smart Mater. Struct. 2003, 13, 20. [Google Scholar] [CrossRef]
- Song, G.; Gu, H.; Mo, Y.L.; Hsu, T.T.; Dhonde, H. Concrete structural health monitoring using embedded piezoceramic transducers. Smart Mater. Struct. 2007, 16, 959. [Google Scholar] [CrossRef]
- Liu, Y.F.; Fan, J.S.; Nie, J.G.; Kong, S.Y.; Qi, Y. Review and prospect of digital-image-based crack detection of structure surface. China Civ. Eng. J. 2021, 54, 79–98. [Google Scholar]
- Zhao, Y.; Liu, Y.; Li, Y.; Hao, Q. Development and application of resistance strain force sensors. Sensors 2020, 20, 5826. [Google Scholar] [CrossRef]
- Oh, B.K.; Lee, J.H.; Choi, S.W.; Park, H.S.; Kim, Y.S. Estimation method of strain distribution for safety monitoring of multi-span steel beam using FBG sensor. J. Korea Inst. Struct. Maint. Insp. 2014, 18, 138–1349. [Google Scholar]
- Mishra, M.; Lourenço, P.B.; Ramana, G.V. Structural health monitoring of civil engineering structures by using the internet of things: A review. J. Build. Eng. 2022, 48, 103954. [Google Scholar] [CrossRef]
- Wang, C.S.; Wu, F.; Chang, F.K. Structural health monitoring from fiber-reinforced composites to steel-reinforced concrete. Smart Mater. Struct. 2001, 10, 548. [Google Scholar] [CrossRef]
- Park, G.; Cudney, H.; Inman, D. Feasibility of using impedance-based damage assessment for pipeline structures. Earthq. Eng. Struct. Dyn. 2001, 30, 1463–1474. [Google Scholar] [CrossRef]
- Sivasuriyan, A.; Vijayan, D.S.; Górski, W.; Wodzyński, Ł.; Vaverková, M.D.; Koda, E. Practical Implementation of Structural Health Monitoring in Multi-Story Buildings. Buildings 2021, 11, 263. [Google Scholar] [CrossRef]
- He, Z.; Li, W.; Salehi, H.; Zhang, H.; Zhou, H.; Jiao, P. Integrated structural health monitoring in bridge engineering. Autom. Constr. 2022, 136, 104168. [Google Scholar] [CrossRef]
- Bernard, J. Piezoelectric Transducers Using Lead Titanate and Lead Zirconate. U.S. Patent 2,708,244, 10 May 1955. [Google Scholar]
- Dai, X.; DiGiovanni, A.; Viehland, D. Dielectric properties of tetragonal lanthanum modified lead zirconate titanate ceramics. J. Appl. Phys. 1993, 74, 3399–3405. [Google Scholar] [CrossRef]
- Bratschun, W.R.; Cook, R.L. Dielectric Properties of Solid Solutions of Sodium Niobate-Lead Zirconate and Sodium Niobate-Lead Titanate. J. Am. Ceram. Soc. 1961, 44, 136–140. [Google Scholar] [CrossRef]
- Baxter, P.; Hellicar, N.J. Electrical Properties of Lead-Barium Niobates and Associated Materials. J. Am. Ceram. Soc. 1960, 43, 578–583. [Google Scholar] [CrossRef]
- Zhang, X.L.; Chen, Z.X.; Cross, L.E.; Schulze, W.A. Dielectric and piezoelectric properties of modified lead titanate zirconate ceramics from 4.2 to 300 K. J. Mater. Sci. 1983, 18, 968–972. [Google Scholar] [CrossRef]
- Kawai, H. The piezoelectricity of poly (vinylidene fluoride). Jpn. J. Appl. Phys. 1969, 8, 975. [Google Scholar] [CrossRef]
- Smolenskii, G.A.; Agranovskaya, A.I. Dielectric polarization of complicated composites. Sov. Phys.-Solid State 1960, 1, 1429–1432. [Google Scholar]
- Bokov, V.A.; Mylnikova, I.E. Ferroelectric properties of monocrystals of new perovskite compounds. Sov. Phys.-Solid State 1961, 2, 2428–2432. [Google Scholar]
- Cornwell, P.; Doebling, S.W.; Farrar, C.R. Application of the strain energy damage detection method to plate-like structures. J. Sound Vib. 1999, 224, 359–374. [Google Scholar] [CrossRef]
- Shi, Z.Y.; Law, S.S.; Zhang, L.M. Structural damage localization from modal strain energy change. J. Sound Vib. 1998, 218, 825–844. [Google Scholar] [CrossRef]
- Seyedpoor, S.M. A two stage method for structural damage detection using a modal strain energy based index and particle swarm optimization. Int. J. Non-Linear Mech. 2012, 47, 1–8. [Google Scholar] [CrossRef]
- Pandey, A.K.; Biswas, M.; Samman, M.M. Damage detection from changes in curvature mode shapes. J. Sound Vib. 1991, 145, 321–332. [Google Scholar] [CrossRef]
- West, W.M. Illustration of the Use of Modal Assurance Criterion to Detect Structural Changes in an Orbiter Test Specimen; NASA Technical Reports Server (NTRS): Hampton, VA, USA, 1986. [Google Scholar]
- Salawu, O.S. Detection of structural damage through changes in frequency: A review. Eng. Struct. 1997, 19, 718–723. [Google Scholar] [CrossRef]
- Wang, X.; Hu, N.; Fukunaga, H.; Yao, Z.H. Structural damage identification using static test data and changes in frequencies. Eng. Struct. 2001, 23, 610–621. [Google Scholar] [CrossRef]
- Eraliev, O.; Lee, K.H.; Lee, C.H. Vibration-based loosening detection of a multi-bolt structure using machine learning algorithms. Sensors 2022, 22, 1210. [Google Scholar] [CrossRef]
- Zhu, W.D.; He, K. Detection of damage in space frame structures with L-shaped beams and bolted joints using changes in natural frequencies. J. Vib. Acoust. 2013, 135, 051001. [Google Scholar] [CrossRef]
- Curie, J.; Curie, P. Développement par compression de l’électricité polaire dans les cristaux hémièdres à faces inclinées. Bull. Minéral. 1880, 3, 90–93. [Google Scholar] [CrossRef]
- Mason, W.P. Piezoelectricity, its history and applications. J. Acoust. Soc. Am. 1981, 70, 1561–1566. [Google Scholar] [CrossRef]
- Zhao, X.; Li, H. Health monitoring of reinforced concrete frame-shear wall using piezoceramic transducer. J. Vib. Shock 2006, 25, 82–84. [Google Scholar]
- Holterman, J.; Groen, W.A. An Introduction to Piezoelectric Materials and Applications; Stichting Applied Piezo: Apeldoorn, The Netherlands, 2013. [Google Scholar]
- JGJ82-2011; Code for Design, Construction and Acceptance of High-Strength Bolt Connections in Steel Structures. Architecture & Building Press: Beijing, China, 2011.




















| Material Type | Thickness/mm. | Flexibility Coefficient/Nm−2. | Piezoelectric Coefficient/(pC/N). | Dielectric Coefficient/Fm−1. | Young’s Modulus/GPa. |
|---|---|---|---|---|---|
| PVDF | 0.2 | 3.0 × 10−10 | −23 | 1.2 × 10−10 | 3 |
| PMN-PT | 0.5 | 1.64 × 10−11 | −920 | 5.0 × 10−8 | 18 |
| Preload/N | 1-Order/Hz | 2-Order/Hz | 3-Order/Hz | 4-Order/Hz | 5-Order/Hz | 6-Order/Hz |
|---|---|---|---|---|---|---|
| 100 | 136.640 | 630.100 | 662.300 | 721.760 | 766.490 | 1208.390 |
| 200 | 155.020 | 640.260 | 667.830 | 769.020 | 799.470 | 1418.250 |
| 300 | 163.280 | 648.020 | 673.160 | 770.020 | 858.420 | 1455.430 |
| 400 | 169.150 | 656.840 | 678.780 | 770.030 | 906.050 | 1474.140 |
| 500 | 173.270 | 663.500 | 683.400 | 770.490 | 943.720 | 1485.220 |
| 600 | 176.390 | 669.750 | 689.950 | 770.770 | 976.600 | 1494.940 |
| 700 | 178.320 | 675.570 | 692.820 | 771.210 | 1001.220 | 1501.660 |
| 800 | 179.270 | 680.270 | 698.640 | 771.520 | 1023.820 | 1506.310 |
| 900 | 180.780 | 687.010 | 703.700 | 771.620 | 1042.560 | 1511.680 |
| 1000 | 183.240 | 691.340 | 708.120 | 771.810 | 1058.380 | 1515.310 |
| 2000 | 188.390 | 721.140 | 743.400 | 772.140 | 1146.300 | 1537.850 |
| 3000 | 189.640 | 737.350 | 766.750 | 777.410 | 1180.640 | 1549.980 |
| 4000 | 192.190 | 746.750 | 770.470 | 794.370 | 1198.970 | 1558.430 |
| 5000 | 191.820 | 752.880 | 771.300 | 810.090 | 1209.720 | 1562.850 |
| 6000 | 191.930 | 757.470 | 771.310 | 821.770 | 1215.370 | 1565.140 |
| 7000 | 192.320 | 761.890 | 772.030 | 830.850 | 1220.020 | 1569.040 |
| 8000 | 192.400 | 762.430 | 772.610 | 837.950 | 1223.630 | 1569.610 |
| 9000 | 192.820 | 764.620 | 772.740 | 842.610 | 1226.410 | 1572.200 |
| 10000 | 193.890 | 766.490 | 772.890 | 845.820 | 1226.640 | 1572.700 |
| Preload/N | 1-Order/Hz | 2-Order/Hz | 3-Order/Hz | 4-Order/Hz | 5-Order/Hz | 6-Order/Hz |
|---|---|---|---|---|---|---|
| 100 | 136.740 | 629.100 | 662.200 | 721.160 | 766.790 | 1208.890 |
| 200 | 154.120 | 639.460 | 668.030 | 769.320 | 798.770 | 1417.250 |
| 300 | 163.480 | 648.520 | 673.560 | 770.120 | 858.720 | 1454.830 |
| 400 | 169.350 | 656.540 | 678.880 | 770.530 | 906.150 | 1474.040 |
| 500 | 173.370 | 663.700 | 684.000 | 770.790 | 944.420 | 1486.220 |
| 600 | 176.290 | 670.150 | 688.950 | 770.970 | 975.800 | 1494.940 |
| 700 | 178.520 | 675.970 | 693.720 | 771.110 | 1001.920 | 1501.660 |
| 800 | 180.270 | 681.270 | 698.340 | 771.220 | 1023.920 | 1507.110 |
| 900 | 181.680 | 686.110 | 702.800 | 771.320 | 1042.660 | 1511.680 |
| 1000 | 182.840 | 690.540 | 707.120 | 771.410 | 1058.780 | 1515.610 |
| 2000 | 188.490 | 720.540 | 743.400 | 772.240 | 1145.600 | 1538.750 |
| 3000 | 190.540 | 736.750 | 766.750 | 776.610 | 1180.040 | 1550.380 |
| 4000 | 191.590 | 746.750 | 770.570 | 793.970 | 1198.070 | 1557.630 |
| 5000 | 192.220 | 753.380 | 771.100 | 809.790 | 1208.920 | 1562.550 |
| 6000 | 192.630 | 757.970 | 771.310 | 822.170 | 1215.970 | 1566.040 |
| 7000 | 192.910 | 761.190 | 771.430 | 831.650 | 1220.720 | 1568.540 |
| 8000 | 193.100 | 763.430 | 771.510 | 838.650 | 1223.930 | 1570.310 |
| 9000 | 193.220 | 764.920 | 771.560 | 843.510 | 1226.030 | 1571.500 |
| 10000 | 193.290 | 765.790 | 771.590 | 846.420 | 1227.240 | 1572.200 |
| Preload/N | 1-Order/Hz | 2-Order/Hz | 3-Order/Hz |
|---|---|---|---|
| 100 | 140.940 | 626.4 | 659.3 |
| 200 | 156.620 | 636.76 | 670.93 |
| 300 | 162.280 | 639.92 | 677.96 |
| 400 | 162.850 | 657.24 | 672.98 |
| 500 | 175.370 | 655.10 | 687.40 |
| 600 | 184.290 | 675.850 | 698.250 |
| 700 | 178.720 | 679.170 | 701.920 |
| 800 | 175.970 | 683.470 | 697.440 |
| 900 | 180.680 | 690.810 | 709.40 |
| 1000 | 175.040 | 691.840 | 712.520 |
| 2000 | 188.590 | 720.840 | 751.60 |
| 3000 | 184.740 | 729.350 | 766.150 |
| 4000 | 183.790 | 747.550 | 762.170 |
| 5000 | 183.620 | 748.180 | 769.10 |
| 6000 | 183.330 | 762.070 | 762.910 |
| 7000 | 201.310 | 757.490 | 774.530 |
| 8000 | 198.10 | 759.830 | 764.810 |
| 9000 | 185.220 | 772.120 | 771.060 |
| 10,000 | 201.490 | 767.690 | 768.490 |
| Preload α/N | Looseness Index K |
|---|---|
| 10,000 | 0.000 |
| 9000 | 0.360 |
| 8000 | 1.144 |
| 7000 | 1.616 |
| 6000 | 2.928 |
| 5000 | 4.169 |
| 4000 | 6.225 |
| 3000 | 10.029 |
| 2000 | 16.308 |
| 1000 | 30.591 |
| 900 | 33.169 |
| 800 | 36.347 |
| 700 | 39.579 |
| 600 | 43.419 |
| 500 | 48.524 |
| 400 | 54.371 |
| 300 | 62.331 |
| 200 | 73.347 |
| 100 | 100.000 |
Disclaimer/Publisher’s Note: The statements, opinions and data contained in all publications are solely those of the individual author(s) and contributor(s) and not of MDPI and/or the editor(s). MDPI and/or the editor(s) disclaim responsibility for any injury to people or property resulting from any ideas, methods, instructions or products referred to in the content. |
© 2025 by the authors. Licensee MDPI, Basel, Switzerland. This article is an open access article distributed under the terms and conditions of the Creative Commons Attribution (CC BY) license (https://creativecommons.org/licenses/by/4.0/).
Share and Cite
Feng, R.; Wu, C.; Zhang, Y.; Pan, Z.; Liu, H. Research on Loosening Identification of High-Strength Bolts Based on Relaxor Piezoelectric Sensor. Buildings 2025, 15, 1867. https://doi.org/10.3390/buildings15111867
Feng R, Wu C, Zhang Y, Pan Z, Liu H. Research on Loosening Identification of High-Strength Bolts Based on Relaxor Piezoelectric Sensor. Buildings. 2025; 15(11):1867. https://doi.org/10.3390/buildings15111867
Chicago/Turabian StyleFeng, Ruisheng, Chao Wu, Youjia Zhang, Zijian Pan, and Haiming Liu. 2025. "Research on Loosening Identification of High-Strength Bolts Based on Relaxor Piezoelectric Sensor" Buildings 15, no. 11: 1867. https://doi.org/10.3390/buildings15111867
APA StyleFeng, R., Wu, C., Zhang, Y., Pan, Z., & Liu, H. (2025). Research on Loosening Identification of High-Strength Bolts Based on Relaxor Piezoelectric Sensor. Buildings, 15(11), 1867. https://doi.org/10.3390/buildings15111867
