Reimagining Kyokai: Layered Permeability in Yoshiji Takehara’s Modern Residences
Abstract
1. Introduction
1.1. Research Background
1.2. Yoshiji Takehara and His Perspective on Residential Design
1.3. Review of Previous Research
2. Research Methods
2.1. Review and Analysis
- (1)
- Functional connectivity between indoor programs and outdoor spaces;
- (2)
- Interfacial relationships between adjacent interior–exterior zones;
- Extraction and analysis of interior–exterior boundary configurations;
- Examination of interior functions connected to exterior spaces;
- Study of opening method in main interior spaces facing outward;
- Cross-sectional analysis of boundaries between main interior and exterior spaces.
2.2. About the Interview
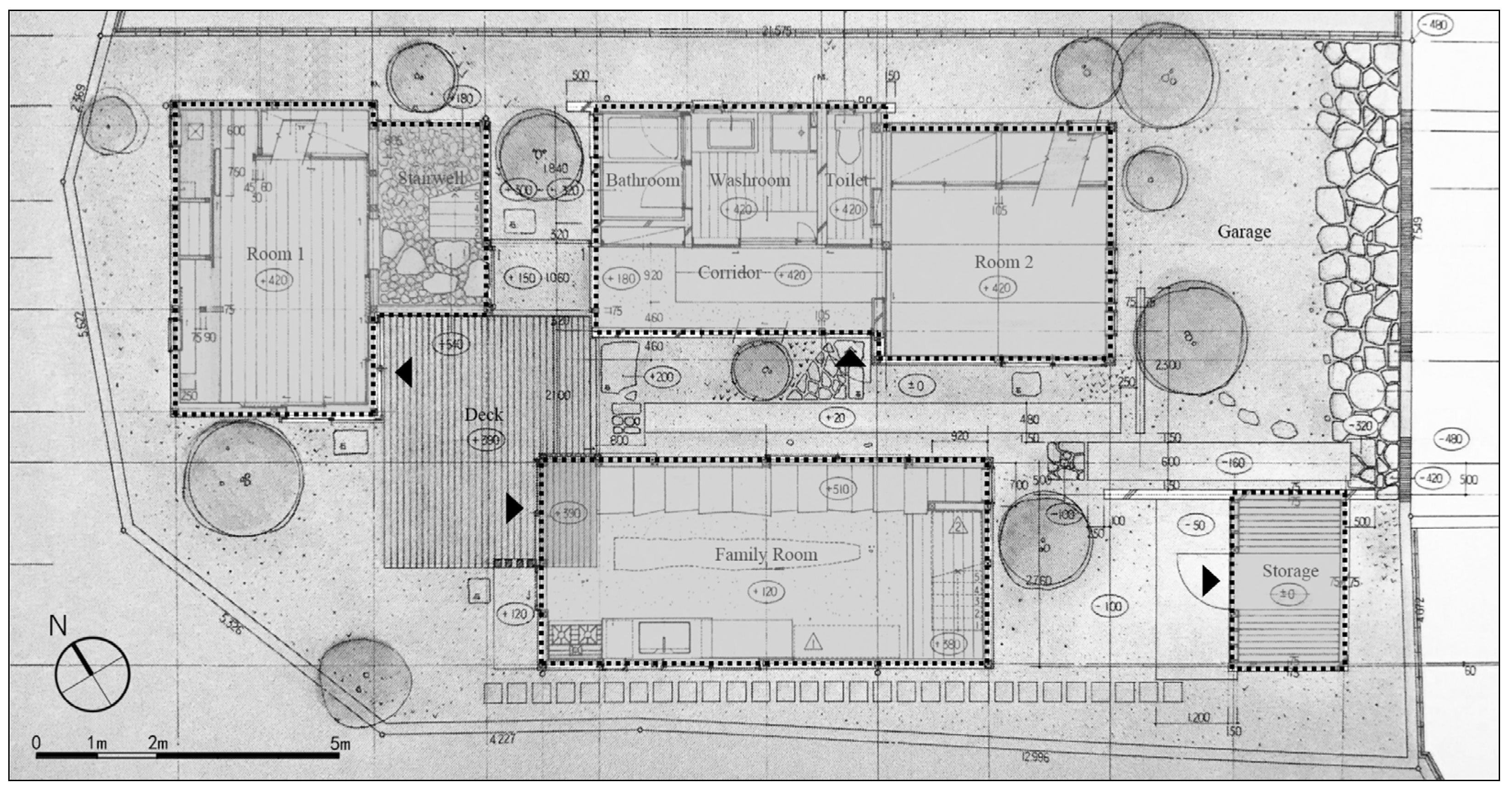
3. Basic Information of Cases
4. The Boundary Morphology of Interior–Exterior Spaces
4.1. Extraction of the “Boundary Form”
4.2. Classification and Analysis of Boundary Form
5. The Boundary Configuration of Interior–Exterior Spaces
5.1. The Connectivity Between Interior Functions and Exterior Spaces
5.2. The Design of Openings Toward the Exterior in the Primary Living Space
- -
- In the “perpendicular” type, primary openings were placed on two adjacent, perpendicular walls, enabling panoramic views in two directions.
- -
- In the “opposing” type, primary openings were positioned on opposite walls, visually integrating the interior space with the external environments on both sides, forming a continuous “outside–inside–outside” spatial sequence.
- (1)
- Without exception, all floor-level windows were positioned on the wall opposite to the circulation opening (Cases No. 18, 22, 33, 52).
- (2)
- All high windows were located on walls perpendicular to the circulation opening (Cases No. 04, 08, 24, 34, 55, 58, 59).
- (3)
- Most of these cases belonged to the “single-direction” category.
- (1)
- Portions of the main room’s ceiling were hollowed out.
- (2)
- Skylights were installed in the upper level.
- (3)
- Light entering through these skylights was then reflected by the upper-level walls down into the main room below (Figure 9).
5.3. The Connection Method Between the Main Room and External Space
5.4. The Outdoor Ground Extending into the Interior
6. Discussion
6.1. Divergent Approaches to Traditional Translation Praxis
6.2. Multi-Dimensional Explorations of In-Between Space
7. Conclusions
7.1. Research Findings
- (1)
- Expansion of interior–exterior connectivity.
- Enlarging boundary surfaces between interior and exterior spaces by incorporating projecting corners or dividing the building into multiple volumes.
- Creating openings toward the exterior in multiple directions within interior spaces.
- Connecting the main courtyard not only to communal family areas but also to private functional spaces like bathrooms.
- (2)
- Ambiguation of interior–exterior boundaries.
7.2. Recommendations
- (1)
- Multi-directional openings to enhance visual connectivity without sacrificing privacy. Multi-directional openings in primary living spaces (e.g., living rooms) enhance visual connectivity, while special openings (e.g., floor-level windows, skylights) balance privacy and daylight needs.
- (2)
- Buffer typologies (e.g., elevated doma) to mediate climate and cultural transitions in high-density contexts. Buffer space typologies, inspired by transitional logic of doma and engawa, can mediate climatic and cultural transitions through stepped level differences or semi-outdoor zones. In high-density contexts, dynamic boundary configurations (e.g., split volumes, nested courtyards) maximize interface interactions to avoid spatial monotony.
7.3. Future Research
Author Contributions
Funding
Data Availability Statement
Conflicts of Interest
Appendix A
| No. | Project Name | Date of Completion | Publication | No. | Project Name | Date of Completion | Publication |
|---|---|---|---|---|---|---|---|
| 1 | House of Nishi-akashi | March 1983 | Jutaku Tokushu, Summer 1985 | 40 | House of Rokuban-cho | April 2000 | Jutaku Kenchiku, June 2006 |
| 2 | House of Kohama2 | February 1985 | Jutaku Tokushu, June 1986 | 41 | House of Jurin-ji Minami-cho | June 2000 | Jutaku Tokushu, September 2000 |
| 3 | House of Fukai naka-cho | December 1985 | Jutaku Tokushu, January 1987 | 42 | House of Higashitoyonaka | February 2001 | Jutaku Tokushu, September 2001 |
| 4 | House of ami | December 1986 | Jutaku Tokushu, August 1987 | 43 | House of Hakostukuri | April 2001 | Jutaku Tokushu, September 2001 |
| 5 | House of Ila-dori | September 1987 | Jutaku Kenchiku, May 1993 | 44 | House of Kamori-cho | August 2001 | Jutaku Kenchiku, March 2005 |
| 6 | House of Ishimaru | May 1988 | Jutaku Tokushu, July 1989 | 45 | House of Akashi | August 2001 | Jutaku Tokushu, May 2002 |
| 7 | House of Ninakashima | September 1988 | Jutaku Kenchiku, May 1993 | 46 | House of Takayanagi | September 2001 | Jutaku Kenchiku, March 2005 |
| 8 | House of kusunoki-cho | December 1988 | Jutaku Tokushu, April 1989 | 47 | House of Taisha-cho | December 2001 | Jutaku Kenchiku, March 2005 |
| 9 | House of Senriyama | March 1989 | Jutaku Tokushu, February 1990 | 48 | House of 101st | May 2002 | Jutaku Tokushu, December 2002 |
| 10 | House of kotobuki-cho | April 1989 | Jutaku Tokushu, February 1990 | 49 | House of Iwakura | July 2002 | Jutaku Kenchiku, March 2005 |
| 11 | House of Honjocho | July 1989 | Jutaku Tokushu, February 1990 | 50 | House of Miyakojima | December 2002 | Jutaku Kenchiku, June 2006 |
| 12 | House of Yoshiminosato | November 1990 | Jutaku Tokushu, November 1991 | 51 | House of Kawauchi yamamoto | January 2003 | Jutaku Kenchiku, June 2006 |
| 13 | House of Misaki1 | November 1991 | Jutaku Kenchiku, June 1993 | 52 | House of Ashiya | December 2003 | Jutaku Kenchiku, June 2006 |
| 14 | House of Misono | December 1991 | Jutaku Tokushu, September 1992 | 53 | House of Nukata | April 2004 | Jutaku Tokushu, August 2004 |
| 15 | House of Shinboin-cho | May 1992 | Jutaku Tokushu, November 1992 | 54 | House of Onjuku | November 2004 | Jutaku Tokushu, February 2005 |
| 16 | House of Yamasaka | June 1992 | Jutaku Tokushu, November 1992 | 55 | House of Kohama4 | March 2005 | Jutaku Tokushu, January 2006 |
| 17 | House of Tamakushigawa | October 1992 | Jutaku Tokushu, February 1993 | 56 | House of Kishiwada5 | May 2005 | Jutaku Tokushu, May 2006 |
| 18 | House of Inda | March 1993 | Jutaku Tokushu, November 1993 | 57 | House of Kitaonkajima | June 2005 | Jutaku Kenchiku, June 2006 |
| 19 | House of Senrien | May 1993 | Jutaku Tokushu, September 1993 | 58 | House of Miyanotani | December 2005 | Jutaku Tokushu, May 2007 |
| 20 | House of Kouji | August 1993 | Jutaku Tokushu, November 1994 | 59 | House of Kitabatake | September. 2006 | Jutaku Tokushu, September 2007 |
| 21 | House of Kumiyama | December 1993 | Jutaku Tokushu, May 1994 | 60 | House of Fukaya | January 2007 | Jutaku Tokushu, September 2007 |
| 22 | House of Misaki2 | April 1994 | Jutaku Tokushu, November 1994 | 61 | House of Suwamori-cho | April 2007 | Jutaku Kenchiku, August 2008 |
| 23 | House of Suzaku | November 1994 | Jutaku Tokushu, May 1995 | 62 | House of Suwamori-cho | June 2007 | Jutaku Kenchiku, February 2013 |
| 24 | House of Takarayama-cho | May 1995 | Jutaku Tokushu, February 1996 | 63 | House of Norikura | November 2007 | Jutaku Tokushu, September 2008 |
| 25 | House of Tezukayama | May 1995 | Jutaku Tokushu, February 1996 | 64 | House of Ogura-cho | March 2008 | Jutaku Tokushu, April 2009 |
| 26 | House of koryo naka-cho | January 1996 | Jutaku Tokushu, May 1996 | 65 | House of Nagayamaen | May 2008 | Jutaku Kenchiku, August 2008 |
| 27 | House of Uozaki kita-cho | October 1996 | Jutaku Tokushu, February 1997 | 66 | House of Fujigaoka | March 2009 | Jutaku Tokushu, August 2010 |
| 28 | House of ila-Yamasaka2 | November 1996 | Jutaku Tokushu, February 1997 | 67 | House of Okawa | August 2009 | Jutaku Tokushu, October 2011 |
| 29 | House of Hamamatsu | January 1997 | kenchiku Bunka, March 2000 | 68 | House of Yamamoto-cho | November 2009 | Jutaku Tokushu, February 2013 |
| 30 | House of Minamikawachi | January 1997 | Jutaku Tokushu, August 1997 | 69 | House of Nishiharu | February 2010 | Jutaku Kenchiku, February 2013 |
| 31 | House of Megamiyama | February 1997 | Kenchiku Bunka, March 2000 | 70 | House of Higashi-yodogawa | February 2011 | Jutaku Kenchiku, February 2013 |
| 32 | House of Higashihiroshima | March 1997 | Jutaku Tokushu, October 1997 | 71 | House of Midorimachi | March 2011 | Jutaku Tokushu, February 2013 |
| 33 | House of Koryo-cho | June 1997 | Jutaku Tokushu, August 1997 | 72 | House of Shinsenri minami-cho | October 2011 | Jutaku Kenchiku, February2015 |
| 34 | House of Kinosaki | December 1997 | kenchiku Bunka, March 2000 | 73 | House of Higashimatsuyama | January 2013 | Jutaku Tokushu, July 2013 |
| 35 | House of Senrioka | April 1998 | Jutaku Tokushu, April 1999 | 74 | House of Toyonaka | May 2013 | Jutaku Kenchiku, February 2015 |
| 36 | Shinsenri Minami-cho | December 1998 | Kenchiku Bunka, March 2000 | 75 | House of Goriita | May 2013 | Jutaku Kenchiku, February 2015 |
| 37 | House of Shukugawa | January 1999 | Jutaku Tokushu, October 1999 | 76 | House of Sumiyoshihonmachi | May 2013 | Jutaku Tokushu, April 2015 |
| 38 | House of Musashi-koganei | January 1999 | Jutaku Tokushu, April 1999 | 77 | House of Kanaoka | December 2013 | Jutaku Kenchiku, February 2015 |
| 39 | House of Hieidaira | January 2000 | Jutaku Tokushu, May 2000 | 78 | House of Juno tsubo | February 2015 | Jutaku Tokushu, April 2015 |
References
- Kuma, K. Kyokai; Tankosha: Tokyo, Japan, 2010; pp. 1–139. [Google Scholar]
- Nakamura, Y.; Takehara, Y.; Irei, S. Three Residential Architects, Three Different Approaches; X-Knowledge Co., Ltd.: Tokyo, Japan, 2016; pp. 1–175. [Google Scholar]
- Ishii, O.; Takehara, Y.; Taira, K. The Continuity of Conceptual Power in Two Self-Designed Residences. Jutaku Tokushu 2006, 6, 16–26. [Google Scholar]
- Takehara, Y. Yoshiji Takehara’s Residential Architecture; TOTO Publishing: Tokyo, Japan, 2010; pp. 1–318. [Google Scholar]
- Takehara, Y. The Charm of Small House Design. Jutaku Kenchiku 2005, 3, 74–77. [Google Scholar]
- Takehara, Y. Interpreting Spatial Context. Jutaku Kenchiku 2013, 2, 4–5. [Google Scholar]
- Takehara, Y. Nature, Materials, Architecture. Jutaku Tokushu 1990, 2, 84–85. [Google Scholar]
- Takehara, Y. How to Address Compact Housing. Jutaku Tokushu 2006, 8, 124–129. [Google Scholar]
- Kawakita, T. The Arrangement of the Exterior Space and the Interior Space in the Houses Published in 1990 Designed by Japanese Architects. J. Archit. Inst. Jpn. Plan. 1997, 497, 103–110. [Google Scholar]
- Matsumoto, M.; Hattori, M.; Taniguchi, M. The Characteristic Analysis and Spatial Typology of Urban Court-Houses: A Study on Spatial Composition of Japanese Contemporary Houses. J. Archit. Inst. Jpn. Plan. 2001, 547, 135–142. [Google Scholar]
- Nosaku, F.; Tsukamoto, Y. Reference Between Windows of Contemporary Houses. J. Archit. Inst. Jpn. Plan. 2008, 629, 1643–1649. [Google Scholar] [CrossRef]
- Murata, R.; Negayama, A.; Yasuda, K. Furnishing of Courtyards and Connection with Living Rooms in Contemporary Japanese Courtyard Houses. J. Archit. Inst. Jpn. Plan. 2012, 676, 1365–1371. [Google Scholar]
- Kobayashi, T.; Suzuki, T.; Matsubara, S.; Kitata, M. Design of Darkness in Architectural Space Case Study of Takehara Yoshiji’s Houses. In Proceedings of the Kinki Branch Research Presentation Meeting, Kinki, Japan, 31 May 2013; pp. 101–104. [Google Scholar]
- Norman, K.; James, E. Residential Landscape Architecture Design; Beijing Science and Technology Publishing: Beijing, China, 2020; pp. 1–788. [Google Scholar]
- Bryan, R. The Language of Space; China Architecture and Building Press: Beijing, China, 2003; pp. 1–264. [Google Scholar]
- Bruno, Z. Architecture as Space: How to Look at Architecture; China Architecture and Building Press: Beijing, China, 2006; pp. 1–236. [Google Scholar]
- Colin, R.; Robert, S. Transparence; China Architecture and Building Press: Beijing, China, 2008; pp. 1–118. [Google Scholar]
- Takehara, Y. Enjoying In-between Spaces. Nikkei Archit. 2002, 9, 106–107. [Google Scholar]
- Takehara, Y. Non-Being; Gakugei Publishing: Kyoto, Japan, 2007; pp. 1–239. [Google Scholar]
- Takehara, Y. How Living Spaces Transform When Embracing Japanese Harmony. Jutaku Tokushu 2004, 8, 78–79. [Google Scholar]
- Hara, H. Space: From Function to Phenomenon; Iwanami Shoten: Tokyo, Japan, 2007; pp. 1–334. [Google Scholar]
- Isozaki, A. Japan-Ness in Architecture; MIT Press: Cambridge, MA, USA, 2006; pp. 1–372. [Google Scholar]
- Kuma, K. Defeated Architecture; Iwanami Shoten: Tokyo, Japan, 2019; pp. 1–278. [Google Scholar]
- Ban, S. Paper Architecture: Taking Action; Iwanami Shoten: Tokyo, Japan, 2016; pp. 1–220. [Google Scholar]
- Kengo Kuma & Associates Great (Bamboo) Wall. Available online: https://kkaa.co.jp/project/great-bamboo-wall/ (accessed on 25 April 2025).
- SHIGERU BAN ARCHITECTS Cardboard Cathedral. Available online: https://shigerubanarchitects.com/works/cultural/cardboard-cathedral/ (accessed on 25 April 2025).












| Question | Answer |
|---|---|
| Regarding residential zoning, what criteria are used to determine the building volume, shape, and placement? | The starting point is understanding the family’s vision for their home. Do they have children? Do grandparents live with them? How will the family evolve in 10 or 20 years? All of these factors influence the design of the house. A home meant to stand for hundreds of years is built differently from one intended as a temporary residence before the family moves elsewhere. There is no single “correct” way to design a home—it depends on the relationship between the house and the family. That is why every project is unique, just as every family is unique. |
| In your residential projects, many intermediate spaces can be seen between the interior and exterior. What effects does this method achieve? | Japanese rooms are designed for flexibility and adaptability. In modern housing, spaces are rigidly defined—dining rooms, bedrooms, and living rooms each serve fixed functions. Yet, rather than enforcing strict divisions, allowing for ambiguity in spatial use fosters new connections and added value. For example, intermediate spaces act as transitional zones between indoors and outdoors. In winter, they may be enclosed, but when spring arrives and windows are opened, the entire atmosphere of the space transforms. These fluid connections allow the house to adapt to the seasons, letting residents experience and respond to natural changes. By embracing this flexibility, each room and space comes to life in its own unique way. |
Disclaimer/Publisher’s Note: The statements, opinions and data contained in all publications are solely those of the individual author(s) and contributor(s) and not of MDPI and/or the editor(s). MDPI and/or the editor(s) disclaim responsibility for any injury to people or property resulting from any ideas, methods, instructions or products referred to in the content. |
© 2025 by the authors. Licensee MDPI, Basel, Switzerland. This article is an open access article distributed under the terms and conditions of the Creative Commons Attribution (CC BY) license (https://creativecommons.org/licenses/by/4.0/).
Share and Cite
Li, L.; Chen, Y.; Li, H. Reimagining Kyokai: Layered Permeability in Yoshiji Takehara’s Modern Residences. Buildings 2025, 15, 1591. https://doi.org/10.3390/buildings15101591
Li L, Chen Y, Li H. Reimagining Kyokai: Layered Permeability in Yoshiji Takehara’s Modern Residences. Buildings. 2025; 15(10):1591. https://doi.org/10.3390/buildings15101591
Chicago/Turabian StyleLi, Luyang, Yan Chen, and Houjun Li. 2025. "Reimagining Kyokai: Layered Permeability in Yoshiji Takehara’s Modern Residences" Buildings 15, no. 10: 1591. https://doi.org/10.3390/buildings15101591
APA StyleLi, L., Chen, Y., & Li, H. (2025). Reimagining Kyokai: Layered Permeability in Yoshiji Takehara’s Modern Residences. Buildings, 15(10), 1591. https://doi.org/10.3390/buildings15101591
