Next Article in Journal
Study of the Mechanical Behavior of High-Strength Lightweight Concrete and Its Application to Bridge Pavements
Previous Article in Journal
Study on Mechanical Properties of Steel Fiber-Reinforced Geopolymer Concrete under Multi-Axial Loads
 
 
Font Type:
Arial Georgia Verdana
Font Size:
Aa Aa Aa
Line Spacing:
Column Width:
Background:
Article

Evaluation of Existing Reinforced Concrete Buildings for Seismic Retrofit through External Stiffening: Limit Displacement Method

by
Moab Maidi
1,2 and
Igor Shufrin
3,*
1
Department of Civil and Environmental Engineering, Faculty of Engineering Sciences, Ben-Gurion University of the Negev, P.O. Box 653, Beer-Sheva 84105, Israel
2
Department of Civil Engineering, Sami Shamoon College of Engineering, 84 Jabotinski St, Ashdod 7724505, Israel
3
Engineering Institute of Technology, 8 Thelma St, West Perth, WA 6005, Australia
*
Author to whom correspondence should be addressed.
Buildings 2024, 14(9), 2781; https://doi.org/10.3390/buildings14092781
Submission received: 24 June 2024 / Revised: 11 August 2024 / Accepted: 22 August 2024 / Published: 4 September 2024
(This article belongs to the Section Building Structures)

Abstract

This study introduces an alternative approach to the assessment of the earthquake resistance of existing buildings and the evaluation of the requirements for seismic retrofit through external stiffening. Instead of assessing individual structural components, we evaluate the entire building using a nonlinear static pushover analysis. Earthquake resistance of the building is defined as a ratio between the total energy that the existing structure can absorb and the energy at its ideal (upgraded) state estimated using the capacity curves obtained from the pushover analysis. The required retrofitting can then be assessed as the stiffness needed to be added to achieve the desired resistance. The study establishes the definition for the ideal capacity of an existing structure, safe displacement limits, and a procedure for deriving the target capacity curves and earthquake-resistance factors. The proposed procedure is applied to a benchmark example, demonstrating that upgrading sub-standard RC structures can be achieved by adding external stiffening members without strengthening individual components. The study also shows that traditional assessment procedures have limited capability to evaluate earthquake resistance in existing buildings with low ductility. The developed procedure provides an essential tool for comparative assessments of retrofitting scenarios and profitability evaluations.

1. Introduction

The importance of this research stems from the need to reevaluate the level of protection of existing structures against seismic actions and to determine the seismic requirement for the retrofitting process. The current approach to the assessment of existing buildings is based on an evaluation of the strength of structural elements and performance ratios. First, the critical elements are identified by an expert, based on engineering standards, and then, they are checked against the prescribed performance criteria. Finally, these critical elements are treated in the proposed seismic upgrade. As these local measures can only marginally affect the capacity and stiffness of the whole building [1], this approach often leads to disproportionate levels of retrofit demand that greatly exceed the requirements of the current seismic provisions. In general, the assessment of individual components is more time-intensive and it does not provide the quantified assessment of retrofit needs.
In this paper, we propose a displacement-based model that treats the structure as a whole object without evaluating its components. This approach allows for the quantitative assessments of the earthquake resistance of existing buildings and a level of the required seismic retrofit.
Nowadays, the legal provisions in many countries require a reassessment of the earthquake resistance of existing structures that were designed for gravity loads only or to substandard design codes. The deficiency of seismic resistance in these buildings is due to the lack of ductility rather than the lack of strength, which is a result of poor reinforcement detailing and inadequate design methods [2]. Moreover, these sub-standard buildings suffer from the corrosion of reinforcement, lack of concrete cover, joint problems [3], and poor design of weak and flexible stories [4]. The identification of sufficient levels of seismic upgrade for these buildings is complicated by high uncertainties in the evaluation of real existing conditions, which in turn limits the possibility of the quantitative assessment of required retrofit levels.
The procedures for the assessment of the earthquake resistance of existing buildings can be broadly classified into two categories: force-based and displacement-based methods. The force-based assessment approaches start from the assessment of member and joint-strength capacities, which define the elastic period and a class of the building frame. The base shear demands are then calculated and used to evaluate the members’ strength demands [2]. The displacement-based approaches are the performance-based methods defining the ultimate response of a structure in terms of the displacement parameters, such as roof displacements, inter-story drift ratios, rotations at joints, and ductility ratios. These parameters are assessed against the ones associated with the specific levels of the seismic hazard. The main advantage of the displacement methods is that it accounts for the ductility of the system [2,5,6,7]. The displacement-based methods assume definitions of the target displacements for each assessment case (building) independently. The most common method that defines the target displacement is the Capacity Spectrum Method (CSM), which predicts the maximum response of the structures based on the corresponding earthquake design spectrum [6,7,8,9,10]. Another common approach is the Displacement Coefficient Method (DCM), which estimates the peak displacement based on the spectral response of an elastic system and defines it using a series of coefficients depending on the effective fundamental period of the structure [10]. Lately, a simplified Direct Displacement-Based Assessment (DDBA) has been proposed for the seismic design of concrete buildings [2]. This method was originally developed by Priestley and colleagues [2,5,11]. It was demonstrated that the Nonlinear Static Pushover Analysis (NSPA) can be applied to the seismic assessment of RC buildings and evaluations of the limit displacements under various structural conditions. It was also shown that DDBA can be used to evaluate the effectiveness of various retrofit scenarios. The assessment of integrated solutions for combined energy efficiency improvement and the seismic strengthening of existing buildings was also discussed in [12]. The rapid seismic damage assessment of RC frames via a performance-based approach was presented in [13].
Few studies are dedicated to the development of various specific assessment models. Binda and colleagues suggested applying the NSPA to assess the capacity of masonry structures [14]. Zamppieri et al. used the nonlinear time–history analysis to examine the safety ratios for arch bridges subjected to different earthquake scenarios [15]. Mendes et al. reviewed assessment approaches to the rehabilitation of historic buildings, which focus on damage evaluation in the components of the main stability system [16]. The displacement-based criteria for possible seismic retrofitting scenarios were discussed in [17,18]. The dissipation energy-based method for the seismic retrofit of existing frames was presented in [19,20]. A seismic retrofit approach based on general stiffening of the building and displacement-based evaluation was proposed in [21,22,23]. Another approach to reducing the cumulative damage in existing sub-standard buildings by introducing viscous dampers was presented in [24].
The current provisions of various international standards for assessing the seismic performance of existing structures are diverse. The New Zealand Standard [25] utilizes classical methods for evaluating the resistance of existing buildings. It includes displacement-based methods and performance models and recommends the use of a time–history analysis. Japanese provisions [26,27] focus on changing the properties of the structure to increase ductility and stiffness. It emphasizes the use of base isolation devices for low-energy absorption and an improved seismic response. The US standards are based on the performance theory. ASCE provisions [28] require examining the structure as a collection of components rather than a whole object. It provides guidelines for evaluating the seismic performance of existing structures. FEMA-27 [29] emphasizes improving ductility by restoring capacity in various connectors of the structure. It also considers changes in damping levels as the structure moves between different positions.
In general, the developed methodologies for the earthquake-resistance assessment of the existing buildings are summarized in Table 1. One can see a variety of methods involving different underlying principles that have been proposed in the literature. However, most of these methods do not provide a quantitative measure for the lack of resistance and cannot be used for the evaluation of the efficiency of retrofit procedures.
The retrofit procedures for upgrading RC buildings that have been developed in recent decades can be classified into two main groups. The first group includes the methods that upgrade the structure at local levels of individual elements, while the approaches from the second group deal with the structure as a whole object by introducing so-called global measures [46]. The most popular local treatment is the jacketing of existing RC members, which can be performed using concrete, steel, or composite materials [10,23,47,48]. This local reinforcement improves the load-bearing capacity and ductility of critical structural elements. The global measures, on the other hand, aim at enhancing the lateral resistance of the building or decreasing the seismic demand. Bracing systems, cables, steel exoskeletons, and shear and infill walls are among the structural systems used to improve lateral resistance [23]. The seismic demand can be decreased by using base isolation [43] and various energy dissipation systems [41].
In this study, we assess the global earthquake resistance of buildings through the displacement-based approach. The proposed procedure will allow for an evaluation of the seismic demand of the tested building. Here, we translate this demand into the amount of lateral stiffening required to provide the sub-standard building with sufficient earthquake resistance. In the verification case study, this additional stiffening is supplied using the external shear walls, which are proportioned based on the estimated demand. A similar retrofitting solution for RC sub-standard buildings was discussed in [23,38,49,50]. It was shown that the shear walls were very efficient in controlling lateral drifts and reducing damage to frame members. The main drawback of this method is that the existing foundation system needs to be strengthened to resist the increased overturning moment and the larger weight of the structure. The advantages of applying this external upgrade included lower installation costs when compared to local repairs, no need to shut down the building, and the use of conventional construction materials. The efficient application of retrofitting through external stiffening requires reliable estimates of the amount of shear wall that is needed to achieve the desired level of resistance. To the best of the author’s knowledge, none of the existing assessment methods can provide this evaluation. The current study aims to address this research gap. It is expected that the same procedure can also be applied when additional stiffness is provided externally through exoskeletons or external braces. In the case of internal braces or infill walls, the necessary stiffening can be similarly estimated using standard methods of structural analysis.
The method we propose here capitalizes on several ideas explored in the previous studies. Firstly, we utilize the idea of the displacement limit by introducing a safety target displacement for the existing building. Then, we employ the fact that the yield displacements vary little with respect to the structural stiffness. Since the yield displacement is essentially defined by the geometry of the structure and material it is built of, it can be assumed that it is independent of the stiffness of the structure [1,23,38,51]. As a result, we can reasonably assume that the yield displacement of the existing building is not significantly affected by the stiffness added to the structure during the retrofitting process. Finally, we use the energy balance to define the resistance factor for the building as reviewed in [42,52]. The main challenge of the proposed procedure is the definition of the safety target displacement for existing buildings that is not presently available in the literature. The ability to evaluate the displacement limits will allow us to determine the seismic demand for a specific structure and thus assess the retrofitting efficiency.
To determine the displacement limits, the building structure is described as a whole object, while the overall resistance is assessed using equilibrium force-displacement curves. The ability of the structure to resist seismic loads is examined using the Nonlinear Static Pushover Analysis (NSPA). The seismic loads are defined based on the requirements and recommendations of the relevant standards. The additional seismic demand is determined in terms of the additional stiffness required to maintain the displacement limits.
The paper is structured as follows. Section 2 deals with the characterization of typical sub-standard buildings that require seismic upgrades. Section 3 discusses the applicability of available procedures to provide the safety displacement limits for typical structures. Section 4 presents the derivations of the proposed method and discusses the assessment of the seismic demands for sub-standard existing buildings. Section 5 is devoted to the definition of the resistance factor, which is based on the safety displacement limits and the energy balance. Section 6 presents a case study that demonstrates the ability of the developed method to evaluate the earthquake capacity of existing buildings and predict the efficiency of retrofitting procedures.

2. Characterization of Typical Sub-Standard Structures

To define a benchmark structure for the evaluation of the applicability limits of various assessment procedures for the earthquake resistance of existing buildings, we start with a review of typical sub-standard reinforced concrete (RC) buildings. We surveyed 18 seismically sub-standard buildings with similar structural systems built in Israel between 1960 and 1980. The survey included the geometry, inspection of the structural system, and a series of non-destructive tests to measure the material properties of concrete and reinforcement steel and the reinforcement ratios of all structural components. The seismic deficiency of these buildings was broadly recognized, but the actual level of seismic resistance had never been assessed [53]. All of these buildings are conventional RC structures with three to four stories and an open floor. The structural arrangements consist of two to four RC load-bearing frames and non-bearing infill walls. The RC frames are made of drop edge beams and small section columns that were originally designed for gravity loads only. The connectors between beams and columns exhibit limited resistance to bending moments and interstory drifts. The structural features of the surveyed RC frames are summarized as follows:
  • Cross-sections of the columns and beams range from 20/30 to 20/50 cm;
  • The concrete strength is 18 MPa;
  • Concrete sections are not confined and have very few links;
  • The reinforcement ratio (RR) in the cross-sections of the beams and columns ranges from 0.3% to 1.25%;
  • The frames are on pinned supports due to the very limited resistance to bending. Connecting beams between the columns are provided at the ground level, but these beams do not contribute to the connection between the columns and the foundation;
  • The strength of the reinforcement steel is 200 MPa;
  • The infill walls add weight, but do not serve as a part of the stability system.
The detailed characteristics of the surveyed buildings can be found in [53].
Based on this survey, we define three typical benchmark frames that will be used in the following sections for the evaluation of various assessment models. These frames are two-, three-, and four-bay RC frames that represent a four-story building; see Figure 1. The structural parameters of these frames only differ in the number of spans, which leads to different levels of lateral stiffness. The ductility in these frames depends upon the available level of reinforcement. In the following numerical simulations, three values of the reinforcement ratios in the beams and the columns are considered as 0.3, 0.8, and 1.25%. Note that for the sake of simplicity, the infill walls are not included in the structural analysis, and the connections between the beams and columns are assumed to be rigid.
As a first step toward the development of the proposed procedure, three benchmark structures are analyzed using the mode-superposition method using the commercial computational package ATIR [54]. Note that this procedure is recommended by the Israeli standard [55]. The compliance of the structures with the resistance criteria prescribed by [56] is checked by examining the story drifts and stability factors. The interstory drifts are assessed based on the maximum obtained value (Δ) and maximum Interstory Drift Ratio (IDRmax). These indicators are commonly used for seismic performance assessments (e.g. [57,58]). The detailed building specifications and seismic loads are presented in Appendix A, while the results of this analysis are given in Appendix B and are summarized below as follows.
The interstory drifts are greater than what is allowed by Israeli standards [56]. The first floor is particularly vulnerable, as indicated by its high stability coefficient (see Table A3, Table A4 and Table A5). When compared to FEMA-356 guidelines [59], the IDRmax of the 1st floor exceeded the acceptable limit for buildings to remain occupied immediately after an earthquake (Immediate Occupancy Performance Level [59]). Due to the uniform rigidity of all stories and the absence of infill walls, which leads to equal story shear strength, no weak or soft stories appear in these cases. This outcome is not surprising as it is commonly accepted that these buildings would not withstand any strong ground motion. Yet, this evaluation does not provide a quantitative measure for the lack of their earthquake resistance and the degree of vulnerability of these buildings. In the next section, we discuss the ways for such assessments.

3. Assessment of the Earthquake Resistance

We start the discussion of the quantitative assessment of earthquake resistance by investigating of applicability of the existing models, such as the CSM and the DCM. We apply both methods to the benchmark frames 1, 2, and 3 and determine the ranges where these models can be applied. We evaluate the capacity of the frames using the Nonlinear Static Pushover Analysis (NSPA) implemented in the commercially available computation package SAP2000 [60] (see Appendix C for details).

3.1. Capacity Spectrum Method (CSM)

The CSM is based on the interaction between two spectrum curves: a demand curve (DC) and a capacity spectrum curve (CSC). The intersection of these curves defines a performance point (PP), the point that designates the peak capacity of the examined structure. This PP provides a base for the assessment of critical components of the structure and their required upgrade. Here, we apply the CSM to Frames 1, 2, and 3 using the seismic parameters used in the previous example; see Table A2. CSC is derived by converting the load-displacement curve calculated using NSPA into Sa (Spectral Acceleration) vs. Sd (Spectral displacement), (e.g., see Ref [6]). The results obtained for Frame 3 are presented in Figure 2 for various reinforcement ratios. It is seen that a low RR of 0.3% produces a high ductility ratio of 3.11 and no apparent PP; see Figure 2a. The apparent PP appears when the RR reaches 1.25%, whereas the ductility ratio is 1.25; see Figure 2c. The results obtained for Frames 1 and 2 are summarized in Table 2. It can be observed that in Frame 2, the ductility decreases with the increase in the reinforcement ratio, while the degree of this decrease is less than in Frame 3. Furthermore, in the case of a more flexible Frame 1, this trend is reversing and a slight increase in the ductility is observed for higher reinforcement ratios. The influence of the frame lateral stiffness on the ductility levels also depends on the reinforcement ratios. In the case of the low RR of 0.3%, the ductility ratio is increasing from 1.86 for Frame 1 to 3.11 for Frame 3. While for higher reinforcement ratios the ductility ratios decreased from 2.09 to 1.5 and from 2.67 to 1.31 for RR = 0.8% and 1.25%, respectively. This complex behavior can be ascribed to the low strength of concrete and relatively small cross-sections of all flexural members. In a multi-degree-of-freedom frame structure, ductility is achieved through the gradual formation of plastic hinges at the connection between the columns and beams. In the case of a low RR = 0.3%, the plastic hinge development is slower for stiffer frames, which results in increasing ductility. For RR of 0.8% and 1.25%, the low strength of concrete of only 18 MPa (Section 2) in conjunction with the higher RR increases the concrete stress block and reduces the ductility levels.
It can be observed for all tested frames that the CSM is valid in a certain range of ductility ratios and that the capacity of more brittle structures cannot be assessed directly using this model. If the CSM assessment of a structure does not provide a PP, it signifies a deficiency in earthquake resistance. The degree to which the structure fails to reach the PP gives valuable information about the specific improvements needed, such as increased strength, deformation capacity (ductility), or damping, to enable the structure to withstand the imposed demands.

3.2. Displacement Coefficient Method (DCM)

The DCM is a displacement-based method, which provides the target displacement (TD) for the examined structure calculated using an empirical formula [59]. In this method, the load-displacement capacity curve (CC) does not need to be transformed into the spectral domain [6]. Figure 3 shows the curves obtained via NSPA for Frame 3 with various reinforcement ratios together with the TD calculated using the DCM. It is seen that in the cases with the low reinforcement ratios of 0.3% and 0.8%, the failure occurs before it reaches the target displacement limit; see Figure 3a,b. The increase in the RR decreases the ductility and provides the target displacement within the plastic range of the CC; see Figure 3c. Similar results are also obtained for Frames 1 and 2 in which the DCM can only be applied in the cases with the highest RR of 1.25%; see Table 2. To further investigate the applicability of the DCM, we define the critical ductility ratio, μcr—the minimal ratio ensuring that TD is within the range of the corresponding capacity curves. The critical ductility presented in Table 2 also defines the minimum ductility value that ensures the formation of a performance point. These values are obtained via interpolation, and they demonstrate that at the low reinforcement levels, the DCM can only be applicable at very high ductility levels. It can be observed that the critical ductility increases with a decrease in the reinforcement ratios, and it varies in each case.
Considering that the stiffness of a structure dictates the elastic displacement limit, the DCM can offer a meaningful displacement target at high ductility levels and provide insights into the extent to which the structure deviates from meeting the target displacement for less ductile ones.
Another important observation for the development of the proposed procedure can be found in Table 2. It can be observed that for a given reinforcement ratio, the displacement at the elastic limit varies little with respect to the stiffness of the frame. For example, for RR = 1.25%, ue changes from 0.1422 m for K = 330.5 kN/m to 0.138 m for K = 562.3 kN/m and 0.136 m for K = 959.9 kN/m. This result validates the assumption that the yield displacement can be considered independent of the structural stiffness of the frame.

3.3. Safety Target Displacement

The safety target displacement is a concept used in this study, which defines the maximum displacement that the structure can attain during an earthquake without reaching the point of failure. As shown in Section 3.2, the DCM has limited ability to provide the safety displacement limits and thus cannot be employed for the assessment of the frames with low ductility. Alternatively, we propose to use the energy balance [41] to define the safety target displacement (STD). This displacement limit will be unique for each specific existing structure and will lead to a quantifiable measure of its earthquake resistance. We define earthquake resistance as a ratio between the energy the structure can absorb at its current state and the energy it will be able to absorb at the ideal upgraded state. These energies can be estimated using the capacity curves that are calculated through the NSPA. The procedure establishing the seismic demand at the ideal state is developed in the following section.
It should be noted that in the case of high-ductility structures, the DCM can be used to define the peak target displacement. This, however, will still require the definition of the ideal capacity curve.

4. Seismic Demand in Existing Buildings

To define the seismic demand for an existing structure without descending to an examination of individual members and joints, there is a need to determine the target ductility curve (TDC) for an existing structure. The TDC represents the ideal capacity curve for the assessed structure (test structure) that ensures sufficient resistance and defines the target displacement (TD). To the best of our knowledge, no current approach for the assessment of existing buildings can provide this evaluation; thus, this section is dedicated to the development of such a method. The seismic retrofit then will constitute an addition of an appropriate amount of stiffness to the structure without any treatment of individual components. The main feature of this approach is that the building is retrofitted through global stiffening in the two main directions rather than strengthening of specific joints and members. Consequently, the seismic demand is defined as the additional stiffness to be provided to ensure the TD limits.

4.1. Target Ductility Curve (TDC)

The target ductility curve (TDC) describes the seismic demand for perfect elastic–plastic behavior, which is defined in terms of the base shear force and top story displacement; see Figure 4. The location of TDC is bound between two limit states: from below by the capacity curve (CC) obtained for the assessed structure and from above via an elastic equilibrium curve describing the non-ductile structure (NDS), as shown in Figure 4a. To define the TDC for the test structure, we need to establish two points: the yield point (Point A) and the safety target displacement (Point B). Point A defines the elastic limit, which corresponds to the development of the first plastic hinge and designates the peak base shear force. The displacement at this point does not change after the retrofitting through global stiffening since the additional stiffness does not alter the existing joints [1,51], which is illustrated in Figure 4a and reads as
U e m a x = U e c a p = U e d e m a n d
where U e m a x is the maximum displacement for the non-ductile structure (NDS curve), U e c a p is the elastic displacement obtained via NSPA for the tested structure (CC), and U e d e m a n d is the elastic displacement in the TDC.
Point B defines the ductility demand for the tested structure and its maximum TD. The positions of Points A and B can be estimated using the energy balance [42], which is illustrated in Figure 4b and is derived as follows.
The elastic energy of the corresponding non-ductile structure (NDS), Ee, is defined as [42]
E e = 0 U e m a x C e ( U ) d U
where C e ( U ) is the linear function of the displacement. The energy at the NDS state is then defined using Figure 4b as follows:
E e = U e m a x · V e m a x 2
where V e m a x is the maximum base shear force for the NDS, which is given as follows:
V e m a x = W i S a
where S a is the design spectral acceleration, Wi is the weight of the ith story, and W i is the total weight. The total energy to be dissipated by the retrofitted structure, E t , is defined as follows:
E t = 0 U S T D d e m a n d C e p d e m a n d ( U ) d U
where C e p d e m a n d ( U ) is the function describing the TDC.
Using the definitions in Figure 4b we obtain the following:
E t = U e d e m a n d · V e d e m a n d 2 + U T D d e m a n d U e d e m a n d · V e d e m a n d
where V e d e m a n d is the maximum shear force defined by the TDC. According to the energy balance principle [42], the amount of dissipated energy in the NDS equals the total dissipated energy with the ductile behavior. This balance is expressed using Equation (3) and (6) as follows:
U e m a x · V e m a x 2 = U e d e m a n d · V e d e m a n d 2 + U T D d e m a n d U e d e m a n d · V e d e m a n d
There are two unknown parameters, V e d e m a n d and U T D d e m a n d , in Equation (7). As discussed in Section 3.2, the target displacements for existing structures with ductility levels higher than the critical ductility can be estimated using the DCM (see Table 2). In general, we have three different scenarios that are illustrated in Figure 5. In the case shown in Figure 5a, the ductility of the tested structure is greater than the critical ductility, μ > μ c r , which allows the use of the DCM to define U T D d e m a n d . Figure 5b presents a case of a non-ductile structure, μ ~ 0 . In this case, U T D d e m a n d cannot be greater than the elastic capacity and should be taken as U T D d e m a n d = U p c a p . Once U T D d e m a n d is determined in both these cases, V e d e m a n d can be found using the energy balcance, Equation (7).The third case shown in Figure 5c, represents the structure with ductility levels less than the critical one, μ < μ c r . The DCM cannot be used in this case as its target displacement is greater than the total displacement, and U T D d e m a n d will be determined as follows.
Using Figure 4a, we define the following ratios:
V e d e m a n d U e d e m a n d = V C U 1
We assume the safety margin as U p c a p U p d e m a n d and obtain
U e d e m a n d U 1 = U p c a p U p d e m a n d
Then, following Equations (1), (3) and (6)–(9), we determine the ratio (8) as follows:
V e d e m a n d U e d e m a n d = V c U e d e m a n d + U T D d e m a n d U p c a p
where Vc is the maximum shear load obtained from the capacity curve. By solving Equations (7) and (10) with the equality (1), V e d e m a n d and U T D d e m a n d can be calculated for the specific test structure. Finally, using (4) we define Points A and B and build the TDC curve; see Figure 4a.
As a final step, we need to check that the obtained U T D d e m a n d is smaller than U p c a p and U e c a p U 1 U p c a p U T D d e m a n d . The later condition is required to ensure the safety margin. If the obtained U T D d e m a n d is greater than U p c a p , U T D d e m a n d should be offset by U e c a p U 1 obtained from the previous step and the calculations for V e d e m a n d repeated using Equation (7) alone.
The key steps of this procedure are illustrated in Figure 4a and can be summarized as follows:
Step 1: Calculate the capacity curve (CC) of the existing structure based on available structural data using the NSPA.
Step 2: Create the non-ductile capacity curve (NDS) based on Equation (4) using design spectral accelerations at the given location.
Step 3: Develop the target ductility curve (TDC) by computing the coordinates of Points A and B (see Figure 4a) using Equations (7) and (10).

4.2. Seismic Demand—Conversion to Stiffness

The TDC curve defined in Section 4.1 is used to determine the seismic demand for the test structure. Following the approach proposed here, we treat the structure as a whole object and need to define the amount of stiffness required to satisfy the seismic demand. In the displacement-based design, the performance of existing components is ensured by limiting the horizontal displacements to the TD. To constrain the displacements within the TDC range, the additional stiffness should be provided to the existing structure, as generally illustrated in Figure 6. This additional stiffness can be calculated based on the difference between the existing capacity curve (CC) and the seismic demand (TDC); see Figure 4a.
Following the definitions of Figure 4a, the additional stiffness, K , can be calculated as follows:
Δ K = V e d e m a n d V c U e d e m a n d

4.3. Seismic Demand—Conversion to Stability Members

Following the idea of retrofitting through global stiffening, the additional stiffness defined in Equation (11) is added to the test structure in the form of an external additional member. The retrofit objective is to limit the top floor displacement to the TD value without dealing with individual structural components. For example, an option for the stiffening retrofit applied to Frame 3 is presented in Figure 7. Although Figure 7 shows a shear member attached to the exterior of the building, it is important to note that it can be placed at various locations and realized using different shear elements. To estimate the additional stiffness, we assume that the stiffening components at each story level have a similar design and define the seismic load using the 1st mode distribution as provisioned by the equivalent static analysis [38]. The additional stiffness is defined as the base shear due to a unit top story displacement that can be estimated using common methods of structural mechanics. For example, taking the heights and masses of each story as equal and using structural dynamic textbook formulas [52], the top floor displacement can be expressed as
D t o p = 64 · H q 4 + 40.5 · H q 3 + 20 · H q 2 + 5.5 · H q 1 · h 3 3 · E · I
or more generally as
D t o p = h 3 3 E I i = 1 N C i · H q i
where C i is the contribution of a seismic force H q i to the top floor displacement, N is the number of stories, E is Young’s modulus of the material used for the stiffening, and I is the moment of inertia of the stiffening member. Thus, the additional stiffness demand is determined as
K = 3 · E · I h 3 · i = 1 N H q i i = 1 N C i · H q i
Assuming that a shear member is to be used for stiffening, the required additional cross-section can be calculated as follows:
I = K · h 3 3 · E · i = 1 N C i H q i i = 1 N H q i
Note that Equation (15) is valid for different materials and structural arrangements that can be used for the seismic retrofit.

5. Resistance Factor for the Assessment of Existing Buildings

Assessment of the earthquake resistance of existing structures in different geophysical locations requires a quantitative factor that can help a decision-maker to determine retrofitting and demolition policies and recommendations that will improve the safety status of the buildings in the given area. As discussed in Section 3, the CSM and DCM models that are widely accepted as the methods of choice in the literature are unable to describe the earthquake resistance of low ductility structures, nor are they able to derive the resistance factor from the true properties of the structure. Several attempts have been made to define the resistance factor as a ratio between the original capacity of a structure and the required capacity [7,61]. However, the definition of a target structure and the assessment of the capacity demands were not given in these studies. On the other hand, the methodology proposed in the current study allows for the qualitative assessment of the resistance through a comparison of the capacity curves of an existing structure with a corresponding ideal TDC of the same structure. This comparison can be expressed as a ratio between the energy the existing structure is capable of dissipating to the amount of energy the ideal target structure would be able to dissipate, whereas both energies can be calculated using the curves established in Section 3 and Section 4 as follows. The amount of energy the ideal target structure should be able to dissipate, E d e m a n d , is defined as the integral of TDC, which is graphically represented in Figure 8 as the shaded area below the curve. The amount of energy the actual structure dissipates under the earthquake loading is obtained using its capacity curve (CC); see Figure 4a. However, in practice, we suggest limiting this value by using a safety target displacement (STD) defined at the right integration boundary, as shown in Figure 8, where this reduced energy amount is illustrated by a cross-hatched area. This energy reduction will provide a margin of safety and account for joints’ detailing, which is not considered in the analysis. Thus, the resistance factor, RF, will be defined as the ratio between the reduced energy, Ered and Edemand, as
R F = E r e d E d e m a n d
It can be seen from Equation (16) that the RF varies as 0 < RF < 1.0. RF→0 defines an engineering structure with a very low level of earthquake resistance. This type of structure with no actual stability system was discussed in [39]. At the upper limit of RF = 1.0, we see the upgraded structure that is retrofitted using the methodology developed in the current study. This resistance factor can be used to compare the seismic performance of similar structures located in different seismic regions, to assess the retrofit costs and to define the amount of retrofitting required. It can also be an inductive factor for decision-making, such as upgrading or demolition when it is implemented along with cost estimates.

6. Case Study

The main feature of the proposed assessment procedure is that it capitalizes on the structural properties of the tested structure and the geo-seismic conditions of its location. The proposed model is not limited to specific types of structures or seismic conditions. However, the assessment outcome is test dependent. For example, for a structure located in a seismic active area, one can expect it to have a lower resistance ratio than an identical structure located in an area with a lower probability of an earthquake. The lower resistance factor indicates higher seismic requirements and higher retrofitting costs. To demonstrate the implementation of the proposed methodology and verify its ability to evaluate the earthquake resistance of an existing building, we apply it to an existing building of a Frame 3 type, calculate the resistance factor, and evaluate the potential retrofit scenario. We also assess the applicability of the CSM and DCM models, as models of choice that are accepted in the scientific and engineering literature.

6.1. Description of the Tested Structure

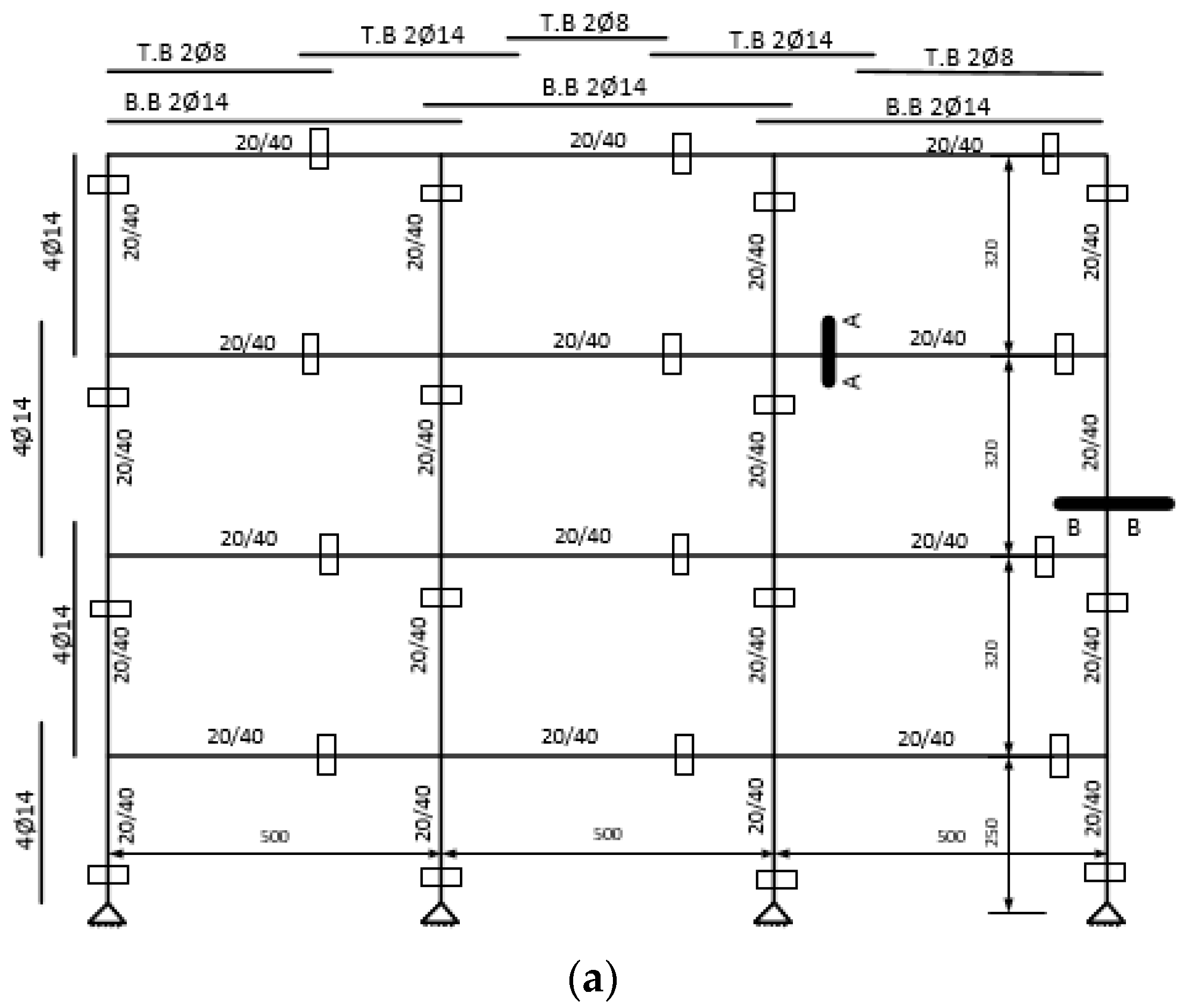
The tested structure represents an existing four-story building, which is located in the City of Beit She’an, North Israeli district. The structural arrangement of this building is similar to the benchmark Frame 3. The building was built in 1973, and it represents a typical concrete frame structure built in Israel before 1980. The stability system consists of concrete frames that were designed for gravity loads without the consideration of the horizontal (seismic) loads. The beams are continuous beams with a negative reinforcement over the supports and an overlap for the column reinforcement at the joints. This system of beams and columns creates joints with a limited capacity to transfer bending moments and can only provide a partial stability system. There are four frames in every direction with spans of 5 m. The total plan size is 15 m × 15 m, and the total height is 12.1 m; see Figure 9. The material properties and seismic loads are given in Appendix A.
First, we analyze the tested structure using a commonly accepted procedure and evaluate the ability of the stability system to resist earthquake loads. To this end, the Israeli standard [56] for earthquake-resistant structures was adopted. SI-413 is based on elastic performance with ductility-reduction factors, which follows the philosophy of Eurocode [62] According to this procedure, the tested structure was examined using the mode superposition method using ATIR software, STRAP 2022 [54]. The seismic performance attained by the building is summarized in Table 3. It observes that (1) the maximum story drifts at the first three levels exceeded the allowable limits, (2) the vertical elements at the 1st and 2nd stories are not stable, and (3) the 1st story exceeded FEMA-356 requirements for the Immediate Occupancy (IO) performance level.
The obtained results reveal that the structure cannot withstand the earthquake loads prescribed by the standard. It is evident that the structure is deficient in seismic resistance and requires a retrofit. However, these results do not allow for the quantitative assessment of this deficiency, nor do they provide an estimate for the required seismic upgrade. The limit displacement method (LDM) developed in this study is applied next.

6.2. Assessment of the Tested Structure Using the Limit Displacement Method

The procedure developed in Section 3, Section 4 and Section 5 is applied next for an evaluation of the capacity curve (CC) under the existing structural conditions and calculations of the target displacement curve (TDC) defining the ideal conditions for the structure at hand. Then, these parameters are used to calculate the resistance factor (RF) and to assess the additional stiffness (ΔK) required for the seismic retrofit.

6.2.1. Capacity Curve (CC)

The CC of the structure is defined as the base shear–top floor displacement curve and it is calculated through the NSPA using the commercial software SAP2000, Version 10.07 [60]. The model of the structure included the control point and the joint properties, which we used in 2D modal analysis, along with all the relevant features of the existing structure. The obtained CC is presented in Figure 10. The curve describes the elastic–plastic behavior of the structure subjected to the horizontal seismic load. It shows the maximum elastic displacement, U e = 0.0766   m , the total displacement, and U p = 0.1517   m , the peak shear force capacity, V c = 280.0   k N . The detailed results of the analysis are also presented in Table A3, Appendix D. The obtained curve indicates a low-capacity structure with a relatively low ductility.
In order to compare the developed limit displacement method with the existing procedures, we examine the applicability of the DCM and CSM procedures. The application of the DCM procedure yields a limit displacement of 0.153 m. As seen in the NSPA results (Figure 10), the frame fails at the total displacement of 0.1517 m, which is below the DCM limits. Thus, the DCM approach cannot be used for the assessment of this structure.
According to the CSM procedure, the CC obtained via NSPA (Figure 10) needs to be transformed into the capacity spectrum curve (CSC) as described in Section 3.3. In this case, the interaction between the CSC and DC shows no performance point, as illustrated in Figure 2a, which also indicates that the tested structure is not earthquake resistant. It is seen that none of these methods provides a reliable estimate for the target performance point to which the structure should be retrofitted. The detailed results of both assessments are given in Appendix D.

6.2.2. Target Ductility Curve (TDC)

The TDC curve for the tested structure is built using the procedure described in Section 4.2, through the following steps:
  • The maximum base shear force is calculated using Equation (4) as Vemax = 1187.0 [kN], where the total weight of the tested structure, W, and the spectral ground acceleration, Sa, are as given in Appendix D.
  • The NDS curve is derived using the elastic displacement of 0.07720 [m] and the base shear Vemax = 1187.0 [kN]; see Figure 11.
  • The elastic energy is calculated using Equation (3) as Ee = 45.46 [kN·m]. × m].
  • Substituting these values in Equations (6) and (7), we obtain the following system:
45.46 = 0.0766 · V e d e m a n d 2 + U S T D d e m a n d 0.0766 · V e d e m a n d
V e d e m a n d 0.0766 = 280.0 0.0766 + U S T D d e m a n d 0.1517
By solving system (15), Vedemand and USTDdemand are obtained as 651.91 [kN] and 0.108 [m], respectively. These values define Points A and B required for the TDC, which are plotted in Figure 11 as well.

6.2.3. Ideal Performance Point (IPP)

The created ideal TDC is mapped into the spectrum acceleration–displacement curve and plotted in Figure 12 together with the CSC of the CSM and the demand curve (DC). The intersection of the TDC and the spectrum demand (DC) indicates the ideal performance point (IPP). It is seen that the IPP (A = 793.50; D = 76.22) is within the elastic region and indicates safer performance of the existing elements without the development of plastic joints.
The change in the location of the performance point proves the advantage of improving the resistance by adding global stiffness to the whole structure. The new position of the performance point ensures that no failure will occur to the structure’s elements during an earthquake. The additional stiffness limits the displacements in general and provides an increase in the loading capacity. The existing structural elements reach the plastic regime at the higher load levels, while the ductility does not change.

6.2.4. Resistance Factor

As described in Section 5, the resistance factor is the ratio between the total energy dissipated by the tested structure and the energy that the ideal structure would be able to dissipate. These values can be calculated using the CC and TDC plotted in Figure 11 as follows:
R F = E r e d E d e m a n d   = 1 2 0.0766 280.0 + 0.1517 0.0766 280.0 1 2 0.0766 651.91 + 0.108 0.0766 651.91   = 31.75 45.44   = 0.698
The obtained value 0.698 indicates that the tested structure requires an additional 20% of the energy absorption capacity.

6.3. Stiffening and Seismic Demand

The seismic demand of the tested structure is expressed in terms of the additional stiffness that should be added to the structure externally. Following the procedure described in Section 4, this additional stiffness is calculated using Equation (14) as
K = 651.91 280.0 0.108   = 3443.61   k N / m
If the stiffening is provided by external shear members, the additional cross-section can be calculated using Equation (15) as
I = L 3 K 3 E ( P ) = 0.043 m 4
where I is the moment of inertia of a section that should be added, and E is Young’s modulus of concrete suggested for the stiffening of the building. The additional stiffness can be supplied by providing two external members in each direction, as shown in Figure 13, which can be dimensioned using Equation (20) as follows. The thickness of the member is defined as b = 0.3 [m], and then, the length in the action direction, a, is calculated as
a = 1 4 · I 12 b 1 / 3 = 0.75 [ m ]

6.4. The Stability Check after the Proposed Retrofit

To check the efficiency of the proposed retrofit, the stability coefficients are calculated following [56] as
θ i = W t o t a l . e l , i . k V i . h i 0.10
where θi is the stability factor of the ith story, Wtotal is the total weight of the tested structure, e l , i is the drifts of ith story, k is the reduction factor (k = 1.5), V i is the shear load at ith story, and hi is the story heights.
The results of the seismic performance check are presented in Table 4. It is seen that all stability coefficients are within the allowed range 0.1, the interstory drifts do not exceed the values provisioned by the standard [56], and IDRmax values are all under the 1% required by FEMA-365 [59]. This check verifies the proposed retrofit scenario.

6.5. Verification of TDC Procedure

To validate the basic assumptions used to develop the proposed model, the capacity curve is calculated for the retrofitted structure (RCC) and presented in Figure 14. It can be observed that the RCC yield displacement and CC yield displacement are within a reasonable margin and differ by 3%. It is also seen that the shear capacity at RCC (566.33 kN) is greater than the demand shear capacity of (651.91 kN, Figure 11) by 13.0%, which indicates that the retrofitted structure has sufficient seismic resistance. The performance level of the retrofitted structure is examined in Figure 15 by comparing the spectrum acceleration–displacement curves. The CSM performance point indicates that the retrofitted structure is at a reliable performance level.
These results demonstrate that the proposed model provides a reliable estimate for the amount of additional stiffening required to achieve sufficient seismic capacity in a retrofitted structure.

6.6. Case Study Summary

The tested structure is located in a seismically active area and cannot satisfy the current earthquake resistance provisions. It has been shown that the DCM and CSM models are not able to provide an adequate assessment of the structure. The proposed limit displacement model has provided a resistance ratio of 0.797, which indicates a severe lack of seismic resistance. Using the energy balance, the target ductility demand curve has been established, which is used to calculate the seismic demand. The proposed retrofit scenario included four shearing members of 0.30/0.75 m sections in each direction. It has been shown that the performance point defined through the CSM for the upgraded structure is significantly improved.

7. Conclusions

In a range of the methods used for the assessment of existing buildings, the displacement-based methods are among the most reliable ones. However, the commonly used CSM and DCM models for the evaluation of earthquake resistance have limited ability to provide a quantitative measure for the lack of such resistance. Moreover, it has been shown that these methods are not suitable for the assessment of low-ductility structures. In such cases, these methods might only be able to provide the seismic demand estimate for higher damping levels.
The outcomes of the current study can be summarized as follows:
  • An alternative approach to the identification of the seismic demands and corresponding resistance factors has been developed. The building is considered as a whole object and the structural capacity is evaluated in terms of the base shear force–top floor displacement equilibrium curve.
  • The seismic retrofit is achieved through global stiffening of the existing structure without the treatment of individual components.
  • The ideal target structure is obtained by defining the limit target displacement, which is determined through the energy balance.
  • The seismic resistance factor is expressed as a ratio between the amounts of energy the existing structure is able to dissipate to those an ideal (upgraded) structure would be able to dissipate.
  • The amount of stiffening required to achieve the ideal energy-absorbing capacity defines the seismic demand. Both seismic demand and resistance factors depend on the structural properties of the existing structure and the seismic conditions of the location.
  • The minimum ductility in the existing structures that ensures the formation of a performance point depends on the available level of reinforcement. Underenforced structures or those with heavily corroded steel reinforcements will have high levels of critical ductility and thus cannot be assessed using the CSM or DCM methods, as the performance point cannot be determined.
  • The ability of the developed procedure to assess an existing building is demonstrated through a case study by applying the method to a real RC building.
  • The case study has been carried out for a low-ductility structure, which cannot be analyzed using the commonly accepted DCM and CSM models. First, it is shown, using the mode-superposition method, that the structure lacks adequate earthquake resistance. Then, the non-linear pushover analysis is used to determine the resistance factor and seismic demand for the target structure. The retrofit scenario has been proposed based on the obtained results. The upgraded structure has been checked and deemed to satisfy the seismic requirements.
It has been demonstrated that the developed limit displacement model provides a reliable approach for the quantitative assessment of existing buildings. This method can be used for evaluations of a wide range of existing buildings and the comparative assessment of sub-standard structures. The resistance factor derived here provides a quantitative measure of the amount of required retrofit for any structure regardless of the geophysical location or specific site conditions. Since this factor is independent of a particular retrofit scenario, it allows for the grading of existing buildings for the profitability of potential upgrades. This grading system would assist policymakers in creating tiered incentive programs where buildings with high profitability scores receive large grants or tax breaks for retrofit. This would also encourage building owners to undertake retrofits when they might otherwise hesitate due to uncertainties in upfront costs.
The case study presented in this paper validates that the seismic upgrade of subs-standard low-rise RC buildings can be performed by upgrading the global stiffness of the building rather than improving the capacity and ductility of individual structural members. To allow for the use of the method by design engineers, it is recommended to include, in future studies, the effects of the infill walls and bracing systems, to investigate the effects of different types of foundations, and to verify the method for medium-rise buildings.

Author Contributions

Conceptualization, methodology, and investigation, M.M. and I.S.; data curation, M.M.; writing, review and editing, M.M. and I.S. Both authors have read and agreed to the published version of the manuscript. All authors have read and agreed to the published version of the manuscript.

Funding

This research received no external funding. The APC was funded by the Engineering Institute of Technology.

Data Availability Statement

Data are contained within the article.

Conflicts of Interest

The authors declare no conflicts of interest.

Appendix A. Benchmark Frames’ Specification and Seismic Loads

The following building specification is based on the survey of 18 typical buildings built in Israel between 1960 and 1980. Frame 3 is taken as a base structure, while Frame 1 and Frame 2 replicate the design of Frame 3 with different numbers of bays; see Figure 1. The full description of Frame 3 specifications is given next.
The structure consists of four RC frames in each direction. The plane dimensions are 15/15 m, and the total height is 12.10 m. The foundation is a deep pile foundation. The piles are of a 0.5 m diameter and about 8.0 m depth. The building’s slabs are supported by drop edge beams that are designed as a ribbed slab of 20.0 cm in height. These slabs are also set to provide the floor diaphragm. There are no slabs on the ground floors, but the connecting beams are provided. The connections between the frames and foundation are pinned supports. The height of the building measured from the ground level to the roof slab is 12.1 m. The detailed specification of structural parameters is presented in Table A1 and Figure A1 and Figure A2.
Table A1. Structural data of the benchmark structures.
Table A1. Structural data of the benchmark structures.
Parameter/ElementValue/DimensionsUnits
Column cross-sections200/400mm
Beam cross-sections200/400mm
Typical concrete strength18.0MPa
Elastic modulus of concrete for the existing structure23,280MPa
Unconfined concrete sections (very few links)Columns: 5Ø@300
Beams: 5Ø@300
mm
Reinforcement ratio of the beams and column sections0.3–1.25%
Piles (diameter/length)500/8000mm
Strength of the steel reinforcement.200MPa
Elastic modulus of reinforcement steel200,000MPa
Strength of concrete used for the upgrade (B-30)30MPa
Elastic modulus of the concrete used for the upgrade28,200MPa
Design strength of the steel in the upgraded sections (F-400W)350MPa
Elastic modulus of the steel for the strengthening elements200,000MPa
Weight of hollow concrete block walls (non-structural)10,000N/m × 3
Connecting beams at the ground level200/400mm
Figure A1. Typical slab plan of the benchmark structure (Frame 3).
Figure A1. Typical slab plan of the benchmark structure (Frame 3).
Buildings 14 02781 g0a1
Figure A2. Reinforcement layout of the typical frame in the benchmark structure (Frame 3), (a) rebar sizes used at different frame sections and (b) typical cross-sections, including the reinforcement arrangement (Frame 1–3).
Figure A2. Reinforcement layout of the typical frame in the benchmark structure (Frame 3), (a) rebar sizes used at different frame sections and (b) typical cross-sections, including the reinforcement arrangement (Frame 1–3).
Buildings 14 02781 g0a2aBuildings 14 02781 g0a2b
We assumed that all benchmarked structures are located in Beit She’an City, North Israeli district. The seismic load parameters are defined following the provision of [56] and summarized in Table A2.
Table A2. Seismic load specification—applied for all examples.
Table A2. Seismic load specification—applied for all examples.
ParameterDescriptionValueUnits
TFundamental period2.07s
ZExpected horizontal ground acceleration coefficient0.23m/s × 2
SaHorizontal spectral acceleration factor0.13m/s × 2
IImportance factor1-
CdDesign response spectrum factor0.08-
KLoad reduction coefficient1.5-
SSite infrastructure coefficientD-
SsSpectral acceleration at short time periods0.58m/s × 2
S1Spectral acceleration in periods of 1 s0.11m/s × 2
FvSite coefficient at long time periods2.38-
FaSite coefficient at short time periods1.38-
SD1Spectral design acceleration in short time periods0.2618-
SDSSpectral design acceleration in periods of 1 s0.80-
T0Is the lower limit of the period of the constant spectral acceleration branch0.065s
TsIs the upper limit of the period of the constant spectral acceleration branch0.327s
TLIs the value defining the beginning of the constant displacement response range of the spectrum4s

Appendix B. Analysis of the Benchmark Structures Using the Mode-Superposition Method

The benchmark structures are analyzed using the mode-superposition method, which is the procedure recommended by many seismic standards. The analysis is performed using the commercial computational package ATIR (ATIR, 2018). The computational model included all the required parameters, geometry of the structure, supports, and the real strength of the concrete additional reinforcement ratio. Note that the selected model is a 2D model, and therefore, the analysis is a 2D Modal Analysis (2D-MA). In the first step, the static check of the gravity capacity was performed, followed by the check of the lateral capacity of the frame against earthquake loads. The results for the lateral seismic response are presented in Table A3, Table A4 and Table A5. The Maximum Interstory Drift (Δ), Maximum Interstory Drift Ratio (IDRmax), and Stability Coefficient (θ) are selected as the performance indicators featuring the seismic response of the frames. It is seen that the interstory drifts exceed the limits prescribed by the Israeli standard [56]. The stability coefficients, θ for the 1st level describing the P-Δ effect, are larger than 0.1, which indicates that the vertical elements at this level are not stable. The IDRmax can be assessed against FEMA-356 [59] limits for different structural performance levels. It can be observed that the IDRmax for the 1st levels exceeded the 1% value required for immediate occupancy performance level in vertical elements of concrete frames [59].
Table A3. Mode-superposition analysis results for Frame 1.
Table A3. Mode-superposition analysis results for Frame 1.
StoryStory Height [m]Level [m]Interstory Drift, Δmax [mm]IDRmax, %Allowable Drift [60, mm]θComments
12.5 2.50 44.50 1.78%12.50.1533Δ and θ exceeded [56] limits
23.2 5.70 30.60 0.95%160.0721Δ exceeded [56] limits
33.2 8.90 22.50 0.70%160.0430Δ exceeded [56] limits]
43.2 12.10 14.20 0.44%160.0190Within limits [56]
Table A4. Mode-superposition analysis results for Frame 2.
Table A4. Mode-superposition analysis results for Frame 2.
StoryStory Height [m]Level [m]Interstory Drift, Δmax [mm]IDRmax, %Allowable Drift [60, mm]θComments
12.5 2.50 50.32.01%12.50.1790Δ and θ exceeded [56] limits
23.2 5.70 32.91.03%160.0808Δ exceeded [56] limits
33.2 8.90 23.90.75%160.0490Δ exceeded [56] limits]
43.2 12.10 14.90.47%160.0240Within limits [56]
Table A5. Mode-superposition analysis results for Frame 3.
Table A5. Mode-superposition analysis results for Frame 3.
StoryStory Height [m]Level [m]Interstory Drift, Δmax [mm]IDRmax, %Allowable Drift [60, mm]θComments
12.5 2.50 431.72%12.50.192Δ and θ exceeded [56] limits
23.2 5.70 27.40.86%160.085Δ exceeded [56] limits]
33.2 8.90 19.90.62%160.052Δ exceeded [56] limits]
43.2 12.10 12.30.38%160.025Within limits [56]

Appendix C. Pushover Analysis

The Nonlinear Static Pushover Analysis (NSPA) is used to compute the capacity curves for the tested structures using SAP-2000, Ver 10.07, the commercially available software [60]. The model of the tested frame included all relevant features of the existing structure and the properties of members and joints previously used in the modal analysis. The NSPA is carried out as follows. First, the structural model of the building was created in SAP-2000. This included defining the geometry, member and material properties, and support conditions without considering the pushover data. Then, the properties and acceptance criteria for pushover hinges were set. The yield strength of RC sections was taken as Fy = 172.322 MPa, which was calculated using the structural data in Table A1. In the absence of concentrated loads, it was assumed that the plastic hinges could only develop at the joints of the frame.
Gravity loads were used at the first load case, and then, lateral loads were applied at the subsequent pushover loading, which started from the final conditions of the gravity case. The lateral loads were distributed according to the 1st free vibration mode and increased monotonically pushing the frame step-by-step in one direction [29]. The maximum and minimum load steps, the incremental event loads, and the deformation tolerance required for NSPA were also selected following [39] guidance. The model included failure criteria for all joints and the moment and shear capacity for all structural members. Due to the incrementally increased lateral load, a sequential yielding of elements occurs and, thus, the stiffness of the frame changes when a new plastic hinge is formed. The displacement at the roof was selected as the control point of the NSPA, and the capacity curves as the base shear vs. the roof displacement are generated.

Appendix D. Analysis of the Case Study Building

This section presents the detailed outcomes of the case study analysis. The following models have been used for the analysis of the building: the mode superposition method using ATIR [54] and the NSPA via SAP-2000 [60]. The resulting capacity curves have been applied for the CSM and DCM.
Table A6 presents the summary of the result of the pushover analyses of the chosen structure. The target displacement is calculated using the DCM model and presented together with the CC curve in Figure A3. It is seen that the curves do not intersect, which indicates no target point, and therefore, the limit displacement cannot be determined using this model. It is not possible then to assess the seismic demand for the tested structure either.
Figure A4 demonstrates the application of the CSM procedure. One can see that no performance point or seismic demand can be determined using this method for the tested structure. Table A7 presents the compatibility test of the existing structure to the CSM and DCM models.
Table A6. Analysis results for the existing structure testing.
Table A6. Analysis results for the existing structure testing.
Parameter Value Units Comments
Maximum displacement in the capacity curve 0.1505(m)In the plastic zone
Elastic displacement in the capacity curve 0.0688(m)
Maximum base shear in the capacity curve 280.0(kN)Low capacity
Ductility ratio2.188 -Low ductility
The elastic stiffness4069.77(kN/m)Low stiffness
Elastic bendingL/201.66(m)Top story displacement
Plastic bendingL/108.04(m)Top story displacement
Figure A3. Interaction of CC curve and the DCM target displacement for the case study structure: DCM is not applicable in this case.
Figure A3. Interaction of CC curve and the DCM target displacement for the case study structure: DCM is not applicable in this case.
Buildings 14 02781 g0a3
Figure A4. Curve interaction between the CSC capacity curve and the spectrum demand curve according to the CSM model; it shows that there is no intersection between the required spectrum curve and the capacity curve.
Figure A4. Curve interaction between the CSC capacity curve and the spectrum demand curve according to the CSM model; it shows that there is no intersection between the required spectrum curve and the capacity curve.
Buildings 14 02781 g0a4
Table A7. Summary of results for the CSM and DCM application.
Table A7. Summary of results for the CSM and DCM application.
ParameterValueUnits
Maximum displacement in the capacity curve 0.1505(m)
Elastic displacement in the capacity curve 0.0688(m)
Maximum shear force in the capacity curve 280.0(kN)
Performance Point (CSM)-(kN, m)
Target Displacement according to the DCM0.167(m)
Ductility ratio of the examined structure 2.188 -

References

  1. Tsiavos, A.; Bender, N.; Stojadinovic, B. Collapse-Probability-Based Compliance Factors for. In Proceedings of the 16th European Conference on Eatrquake Thessaloniki Engineering, Zurich, Switzerland, 18–21 June 2018; pp. 1–9. [Google Scholar]
  2. Priestley, M.J.N. Displacement-based seismic assessment of reinforced concrete buildings. J. Earthq. Eng. 1997, 1, 157–192. [Google Scholar] [CrossRef]
  3. Zampieri, P.; Tecchio, G.; da Porto, F.; Modena, C. Limit analysis of transverse seismic capacity of multi-span masonry arch bridges. Bull. Earthq. Eng. 2015, 13, 1557–1579. [Google Scholar] [CrossRef]
  4. Modena, C.; Casarin, F.; Valluzzi, M.; da Porto, F.; Munari, M. Codes of practice for architectural heritage in seismic zones. In Proceedings of the 5th International Conference on Structural Analysis of Historical Constructions (SAHC); Macmillan: New York, NY, USA, 2007; Volume 1986, p. 14. [Google Scholar]
  5. Sullivan, T.J.; Calvi, G.M.; Priestley, M.J.N.; Kowalsky, M.J. The limitations and performances of different displacement based design methods. J. Earthq. Eng. 2003, 7, 201–241. [Google Scholar] [CrossRef]
  6. Zameeruddin, M.; Sangle, K.K. Review on Recent developments in the performance-based seismic design of reinforced concrete structures. Structures 2016, 6, 119–133. [Google Scholar] [CrossRef]
  7. Loss, C.; Tannert, T.; Tesfamariam, S. State-of-the-art review of displacement-based seismic design of timber buildings. Constr. Build. Mater. 2018, 191, 481–497. [Google Scholar] [CrossRef]
  8. Lago, B.D.; Molina, F.J. Assessment of a capacity spectrum seismic design approach against cyclic and seismic experiments on full-scale precast RC structures. Earthq. Eng. Struct. Dyn. 2018, 47, 1591–1609. [Google Scholar] [CrossRef]
  9. Bracci, J.M.; Kunnath, S.K.; Reinhorn, A.M. Seismic performance and retrofit evaluation of reinforced concrete structures. J. Struct. Eng. 1997, 123, 3–10. [Google Scholar] [CrossRef]
  10. ATC-40; Seismic Evalution and Retrofit of Concret Buildings. Seismic Safety Commission: Sacramento, CA, USA, 1996; p. 334.
  11. Priestley, M.J.; Kowalsky, M.J.N. Concrete Buildings. Earthq. Eng. Struct. Dyn. 2004, 33, 349–442. [Google Scholar] [CrossRef]
  12. Requena-Garcia-Cruz, M.-V.; Díaz-Borrego, J.; Romero-Sánchez, E.; Morales-Esteban, A.; Campano, M.-A. Assessment of Integrated Solutions for the Combined Energy Efficiency Improvement and Seismic Strengthening of Existing URM Buildings. Buildings 2022, 12, 1276. [Google Scholar] [CrossRef]
  13. Zhang, H.; Cheng, X.; Li, Y.; He, D.; Du, X. Rapid seismic damage state assessment of RC frames using machine learning methods. J. Build. Eng. 2023, 65, 105797. [Google Scholar] [CrossRef]
  14. Binda, L.; Gambarotta, L.; Lagomarsino, S.; Modena, C. A multilevel approach to the damage assessment and the seismic improvement of masonry buildings in Italy. Seism. Damage Mason. Build. 2019, 15, 179–194. [Google Scholar] [CrossRef]
  15. Zampieri, P.; Zanini, M.A.; Modena, C. Simplified seismic assessment of multi-span masonry arch bridges. Bull. Earthq. Eng. 2015, 13, 2629–2646. [Google Scholar] [CrossRef]
  16. Mendes, N.; Costa, A.A.; Lourenço, P.B.; Bento, R.; Beyer, K.; De Felice, G.; Gams, M.; Griffith, M.; Ingham, J.; Lagomarsino, S.; et al. Methods and Approaches for Blind Test Predictions of Out-of-Plane Behavior of Masonry Walls: A Numerical Comparative Study. Int. J. Archit. Herit. 2007, 11, 59–71. [Google Scholar] [CrossRef]
  17. Calvi, G.M. Choices and criteria for seismic strengthening. J. Earthq. Eng. 2013, 17, 769–802. [Google Scholar] [CrossRef]
  18. Silva, V.; Crowley, H.; Varum, H.; Pinho, R.; Sousa, R. Evaluation of Analytical Methodologies to Derive Vulnerability Functions. Earthq. Eng. Struct. Dyn. 2008, 24, 1–24. [Google Scholar] [CrossRef]
  19. Benavent-Climent, A. An energy-based method for seismic retrofit of existing frames using hysteretic dampers. Soil Dyn. Earthq. Eng. 2011, 31, 1385–1396. [Google Scholar] [CrossRef]
  20. Guerrero, H.; Ji, T.; Teran-Gilmore, A.; Escobar, J.A. A method for preliminary seismic design and assessment of low-rise structures protected with buckling-restrained braces. Eng. Struct. 2016, 123, 141–154. [Google Scholar] [CrossRef]
  21. Velasco, L.; Hospitaler, A.; Guerrero, H. Optimal design of the seismic retrofitting of reinforced concrete framed structures using BRBs. Bull. Earthq. Eng. 2022, 20, 5135–5160. [Google Scholar] [CrossRef]
  22. Teran-Gilmore, A.; Virto-Cambray, N. Preliminary design of low-rise buildings stiffened with buckling-restrained braces by a displacement-based approach. Earthq. Spectra 2009, 25, 185–211. [Google Scholar] [CrossRef]
  23. Valente, M.; Milani, G. Alternative retrofitting strategies to prevent the failure of an under-designed reinforced concrete frame. Eng. Fail. Anal. 2018, 89, 271–285. [Google Scholar] [CrossRef]
  24. Santos-Santiago, M.A.; Ruiz, S.E.; Cruz-Reyes, L. Optimal design of buildings under wind and earthquake, considering cumulative damage. J. Build. Eng. 2022, 56, 104760. [Google Scholar] [CrossRef]
  25. NZSEE. The Seismic Assessment of Existing Buildings: Technical Guidelines for Engineering Assessments (Parts A and B); New Zealand Society for Earthquake Engineering (NZSEE): Christchurch, New Zealand; The Structural Engineering Society (SESOC): Wellington, New Zealand; NZ Geotechnical Society (NZGS): Wellington, New Zealand; The Ministry of Business, Innovation and Employment (MBIE): Wellington, New Zealand; The Earthquake Commission (EQC): Wellington, New Zealand, 2017. [Google Scholar]
  26. JBDPA. Standard for Seismic Evaluation and Guidelines for Seismic Retrofit of Existing Buildings; JBDPA: Minato, Japan, 1977. [Google Scholar]
  27. OKada, T. Review Development and present status of seismic evaluation and seismic retrofit of existing reinforced concrete buildings in Japan Pre-Seismic Code Period: Structural Damage of Nonengineered Buildings and/or Nonearthquake Engineered Buildings First. Proc. Jpn. Acad. Ser. B 2021, 97, 402–422. [Google Scholar] [CrossRef]
  28. ASCE/SEI 41-17; Seismic Evaluation and Rehabilitation of Existing Buildings. American Society of Civil Engineers: Reston, VA, USA, 2016; pp. 493–620. [CrossRef]
  29. FEMA-273. NEHRP Guidelines and Commentary for the Seismic Rehabilitation of Buildings. Earthq. Spectra 1997, 435, 1–435. [Google Scholar] [CrossRef]
  30. Shin, J.; JunHee, K.; Ihak, L. Seismic assessment of damaged piloti-type RC building subjected to successive earthquakes. Earthq. Eng. Struct. Dyn. 2014, 43, 1603–1619. [Google Scholar] [CrossRef]
  31. Cosgun, T.; Sayin, B.; Gunes, B.; Mangir, A. Retrofitting technique effectiveness and seismic performance of multi-rise RC buildings: A case study. Case Stud. Constr. Mater. 2022, 16, e00931. [Google Scholar] [CrossRef]
  32. Nafeh, A.M.B.; O’Reilly, G.J. Simplified Pushover-Based Seismic Risk Assessment Methodology for Existing Infilled Frame Structures; Springer: Dordrecht, The Netherlands, 2023; Volume 21. [Google Scholar] [CrossRef]
  33. Talledo, D.A.; Federico, R.; Rocca, I.; Pozza, L.; Savoia, M.; Saetta, A. Seismic risk assessment of a new RC-framed skin technology for integrated retrofitting interventions on existing buildings. Procedia Struct. Integr. 2022, 44, 918–925. [Google Scholar] [CrossRef]
  34. Chopra, A.K.; Goel, R.K. A modal pushover analysis procedure to estimate seismic demands for unsymmetric-plan buildings. Earthq. Eng. Struct. Dyn. 2004, 33, 903–927. [Google Scholar] [CrossRef]
  35. Ibrahim, A.R.; Makhloof, D.A.; Ren, X. Seismic performance and collapse analysis of RC framed-wall structure excited with Turkey/Syria destructive earthquake. Structures 2024, 59, 105774. [Google Scholar] [CrossRef]
  36. D’Amore, S.; Pedone, L.; Pampanin, S. Comparative analysis of code-compliant seismic assessment methods through nonlinear static analyses and demand spectrum: N2 Method vs. Capacity Spectrum Method. Procedia Struct. Integr. 2022, 44, 378–385. [Google Scholar] [CrossRef]
  37. Fajfar, P.; Krawinkler, H. Nonlinear Seismic Analysis and Design of Buildings; Rouledge: New York, NY, USA, 2005. [Google Scholar]
  38. Tsiavos, A.; Stojadinović, B. Constant yield displacement procedure for seismic evaluation of existing structures. Bull. Earthq. Eng. 2018, 17, 2137–2164. [Google Scholar] [CrossRef]
  39. Hakim, R.A.; Alama, M.S.; Ashour, S.A. Seismic Assessment of RC Building According to ATC 40, FEMA 356 and FEMA 440. Arab. J. Sci. Eng. 2014, 39, 7691–7699. [Google Scholar] [CrossRef]
  40. Beneldjouzi, M.; Remki, M.; Kehila, F. Displacement-Based Methodology for Seismic Analysis of a Retrofitted Substandard Low-Rise RC Building Using Conditional Mean Spectra. Iran. J. Sci. Technol.—Trans. Civ. Eng. 2024, 48, 2847–2873. [Google Scholar] [CrossRef]
  41. Lestuzzi, P.; Belmouden, Y.; Trueb, M. Non-linear seismic behavior of structures with limited hysteretic energy dissipation capacity. Bull. Earthq. Eng. 2007, 5, 549–569. [Google Scholar] [CrossRef][Green Version]
  42. Aktaş, Y.D.; Akyüz, U.; Türer, A.; Erdil, B.; Güçhan, N. Seismic resistance evaluation of traditional ottoman TimberFrame Himiş houses: Frame loadings and material tests. Earthq. Spectra 2014, 30, 1711–1732. [Google Scholar] [CrossRef]
  43. Cardone, D.; Viggiani, L.; Perrone, G.; Telesca, A.; Di Cesare, A.; Ponzo, F.; Ragni, L.; Micozzi, F.; Dall’asta, A.; Furinghetti, M.; et al. Modelling and Seismic Response Analysis of Existing Italian Residential RC Buildings Retrofitted by Seismic Isolation. J. Earthq. Eng. 2023, 27, 1069–1093. [Google Scholar] [CrossRef]
  44. Nassar, A.; Osteraas, J.D.; Krawinkler, H. Seismic design based on strength and ductility demands. In Proceedings of the Earthquake Engineering and Tenth Word Conferance, Rotterdam, The Netherlands, 19–24 July 1992; p. 6. [Google Scholar]
  45. Aydogdu, H.H.; Demir, C.; Kahraman, T.; Ilki, A. Evaluation of rapid seismic safety assessment methods on a substandard reinforced concrete building stock in Istanbul. Structures 2023, 56, 104962. [Google Scholar] [CrossRef]
  46. Gkournelos, P.; Triantafillou, T.; Bournas, D. Seismic upgrading of existing reinforced concrete buildings: A state-of-the-art review. Eng. Struct. 2021, 240, 112273. [Google Scholar] [CrossRef]
  47. Kiakojouri, F.; De Biagi, V.; Chiaia, B.; Sheidaii, M.R. Strengthening and retrofitting techniques to mitigate progressive collapse: A critical review and future research agenda. Eng. Struct. 2022, 262, 114274. [Google Scholar] [CrossRef]
  48. Wang, C.; Sarhosis, V.; Nikitas, N. Strengthening/Retrofitting Techniques on Unreinforced Masonry Structure/Element Subjected to Seismic Loads: A Literature Review. Open Constr. Build. Technol. J. 2018, 12, 251–268. [Google Scholar] [CrossRef]
  49. Sayar, S.; Sayin, B. Systematic strengthening scenarios for determination of most suitable retrofitting approach in a low-rise RC building. Case Stud. Constr. Mater. 2021, 15, e00782. [Google Scholar] [CrossRef]
  50. Yang, W.; Tian, M.; Xu, W.; Ju, J. Seismic Retrofitting of Low-Rise RC Frame Structures with Wing Walls. KSCE J. Civ. Eng. 2021, 25, 4359–4373. [Google Scholar] [CrossRef]
  51. Aschheim, M.; Black, E. Aschheim-2000-Yield Point Spectra for Seismic. Earthq. Spectra 2000, 19, 19. [Google Scholar]
  52. Chopra, A.K. Dynamics of Structures: Theory and Applications to Earthquake Engineering, 4/E; Pearson Education: Upper Saddle River, NJ, USA, 2012. [Google Scholar]
  53. Maidi, M. Structural Assessment Model of Existing Buildings for Earthquake Resistance; Ben Gurion University of the Negev: Beersheba, Israel, 2020. [Google Scholar]
  54. ATIR. ATIR-STRAP 2018-Structural Analysis and Design Software, Engineering Software Development. 2018. Available online: https://atirsoft.com/ (accessed on 21 August 2024).
  55. SI-413-2; SI 413-2 Guidelines for Seismic Resistance Assessment and Strengthening of Existing Structures. The Standard Institution of Israel: Tel Aviv, Israel, 2017; pp. 1–203.
  56. SI-413; Design Provisions for Earthquake Resisitance of Structures. The Standard Institution of Israel: Tel Aviv, Israel, 2013; pp. 1–167.
  57. Kazemi, F.; Asgarkhani, N.; Jankowski, R. Machine learning-based seismic fragility and seismic vulnerability assessment of reinforced concrete structures. Soil Dyn. Earthq. Eng. 2023, 166, 107761. [Google Scholar] [CrossRef]
  58. Kazemi, F.; Asgarkhani, N.; Jankowski, R. Machine learning-based seismic response and performance assessment of reinforced concrete buildings. Arch. Civ. Mech. Eng. 2023, 23, 94. [Google Scholar] [CrossRef]
  59. FEMA-356; Prestandard and Commentary for the Seismic Rehabilitation of Buildings. Federal Emergency Management Agency: Washington, DC, USA, 2000; p. 518.
  60. SAP-2000; SAP2000 Three Dimensional Static and Dynamic Finite Element Analysis and Design of Structures, Analysis Reference, Version 17. Computer and Structures, Inc.: Berkeley, CA, USA, 2017.
  61. Postelnicu, T.; Popa, V.; Cotofana, D.; Chesca, B.; Ionescu, R.; Vacareanu, R. Study on Seismic Performance of Existing Buildings in Romania; IISEE: Bucahrest, Romania, 2005; p. 220. [Google Scholar]
  62. Eurocode 8; Eurocode 8: Design of Structures for Earthquake Resistance—Part 1: General Rules, Seismic Actions and Rules for Buildings Eurocode. The Standard Institution of Israel: Tel Aviv, Israel, 2004; Volume 240, pp. 1–240.
Figure 1. Reinforced concrete frames representing the typical sub-standard building built in Israel around 60 years ago.
Figure 1. Reinforced concrete frames representing the typical sub-standard building built in Israel around 60 years ago.
Buildings 14 02781 g001
Figure 2. Application of the CSM: interaction between CSC and DC curves for Frame 3, (a) reinforcement ratio 0.30%, ductility ratio 3.11—no apparent PP, (b) reinforcement ratio 0.80% ductility ratio 2.0—limited PP in the plasticity range, and (c) reinforcement ratio 1.25%, ductility ratio 1.25—apparent PP. CSC—Capacity Spectrum Curve (brown), DC—Demand Curve (magenta) and PP—Performance Point.
Figure 2. Application of the CSM: interaction between CSC and DC curves for Frame 3, (a) reinforcement ratio 0.30%, ductility ratio 3.11—no apparent PP, (b) reinforcement ratio 0.80% ductility ratio 2.0—limited PP in the plasticity range, and (c) reinforcement ratio 1.25%, ductility ratio 1.25—apparent PP. CSC—Capacity Spectrum Curve (brown), DC—Demand Curve (magenta) and PP—Performance Point.
Buildings 14 02781 g002
Figure 3. Application of the DCM: capacity curves (CC) and the target displacements (TDs) calculated using the DCM for Frame 3; (a) reinforcement ratio 0.30%—fails before the target displacement is reached, (b) reinforcement ratio 0.80%—fails before the target displacement is reached, and (c) reinforcement ratio 1.25%—the target displacement is within the CC range. TD (DCM)—Target displacement calculated by the DCM.
Figure 3. Application of the DCM: capacity curves (CC) and the target displacements (TDs) calculated using the DCM for Frame 3; (a) reinforcement ratio 0.30%—fails before the target displacement is reached, (b) reinforcement ratio 0.80%—fails before the target displacement is reached, and (c) reinforcement ratio 1.25%—the target displacement is within the CC range. TD (DCM)—Target displacement calculated by the DCM.
Buildings 14 02781 g003
Figure 4. Target ductility curve derivation, (a) derivation steps, (b) Energy balance definition. CC—Capacity Curve of an existing structure (blue), TDC—Target Ductility Curve for the ideal (upgraded) structure (magenta), and NDS—Non-Ductile Structure capacity curve (red).
Figure 4. Target ductility curve derivation, (a) derivation steps, (b) Energy balance definition. CC—Capacity Curve of an existing structure (blue), TDC—Target Ductility Curve for the ideal (upgraded) structure (magenta), and NDS—Non-Ductile Structure capacity curve (red).
Buildings 14 02781 g004
Figure 5. Definition of target displacement (a) μ > μ c r , (b) μ ~ 0 , and (c) μ < μ c r , CC is the capacity curve. CC—Capacity Curve (blue).
Figure 5. Definition of target displacement (a) μ > μ c r , (b) μ ~ 0 , and (c) μ < μ c r , CC is the capacity curve. CC—Capacity Curve (blue).
Buildings 14 02781 g005
Figure 6. Scheme of connection between the stability systems of the existing structure and schematic representation of the additional stiffness described as the stability member.
Figure 6. Scheme of connection between the stability systems of the existing structure and schematic representation of the additional stiffness described as the stability member.
Buildings 14 02781 g006
Figure 7. Seismic retrofitting through global stiffening of Frame 3: the existing test structure with the additional shear components. The red line schematically represents the additional stiffness components.
Figure 7. Seismic retrofitting through global stiffening of Frame 3: the existing test structure with the additional shear components. The red line schematically represents the additional stiffness components.
Buildings 14 02781 g007
Figure 8. Energy definitions for the calculation of the resistance factor. E d e m a n d is the mmagenta-shaded area under the TDC curve, E r e d is the cross-hatched area under the CC curve (blue).
Figure 8. Energy definitions for the calculation of the resistance factor. E d e m a n d is the mmagenta-shaded area under the TDC curve, E r e d is the cross-hatched area under the CC curve (blue).
Buildings 14 02781 g008
Figure 9. Geometry of the frame representing the selected structure. All dimensions are in cm, and the rebars’ diameters are in mm.
Figure 9. Geometry of the frame representing the selected structure. All dimensions are in cm, and the rebars’ diameters are in mm.
Buildings 14 02781 g009
Figure 10. Capacity curve for the tested structure: base shear (kN) vs. top story displacement (m); the calculate ductility is μ =1.98. The blue markers designate the NPSPA solution steps.
Figure 10. Capacity curve for the tested structure: base shear (kN) vs. top story displacement (m); the calculate ductility is μ =1.98. The blue markers designate the NPSPA solution steps.
Buildings 14 02781 g010
Figure 11. Capacity curves for the tested structure: the CC, the ideal elastic curve NDS, and the target ductility curve TDC. CC—Capacity Curve of an existing structure, TDC—Target Ductility Curve for the ideal (upgraded) structure, and NDS—Non-Ductile Structure capacity curve.
Figure 11. Capacity curves for the tested structure: the CC, the ideal elastic curve NDS, and the target ductility curve TDC. CC—Capacity Curve of an existing structure, TDC—Target Ductility Curve for the ideal (upgraded) structure, and NDS—Non-Ductile Structure capacity curve.
Buildings 14 02781 g011
Figure 12. Spectrum acceleration–displacement curves indicating the ideal performance point (IPP).
Figure 12. Spectrum acceleration–displacement curves indicating the ideal performance point (IPP).
Buildings 14 02781 g012
Figure 13. The slab plan with the additional stiffening members dimensioned to satisfy the seismic demand; all dimensions are in [cm].
Figure 13. The slab plan with the additional stiffening members dimensioned to satisfy the seismic demand; all dimensions are in [cm].
Buildings 14 02781 g013
Figure 14. Capacity curves for the tested structure: CC is the capacity curve before retrofit and RCC is the retrofitted capacity curve.
Figure 14. Capacity curves for the tested structure: CC is the capacity curve before retrofit and RCC is the retrofitted capacity curve.
Buildings 14 02781 g014
Figure 15. Spectrum acceleration–displacement curves indicating the performance point of a retrofitted structure (RPP). DC—Demand Curve, CSC—Capacity Spectrum Curve and RCSC– Retrofitted Capacity Spectrum Curve.
Figure 15. Spectrum acceleration–displacement curves indicating the performance point of a retrofitted structure (RPP). DC—Demand Curve, CSC—Capacity Spectrum Curve and RCSC– Retrofitted Capacity Spectrum Curve.
Buildings 14 02781 g015
Table 1. Assessment methods for the earthquake resistance of existing buildings.
Table 1. Assessment methods for the earthquake resistance of existing buildings.
The Underlying Principle of the Assessment MethodReferences
Strength assessment of critical joints 1[1]
Identification of damage/survival levels using performance points 2. [30]
A statistical approach is based on the risk ratio 2 [30,31,32,33]
Based on the performance ratio (CSM) 3 [31,34]
Strength assessment of critical joints 1 [31,33,35,36]
Assessment based on the ductility ratio 3[37,38]
Based on the analog or approximation modeling like the cantilever structure 3.
Elastic–plastic behavior 3.
[1]
Assessment based on lateral displacement limitation 4.[23,39,40]
Elastic–plastic assessment based on the energy balance 3.[41,42,43]
A combination of approaches.[44,45]
1 Force-based method, 2 damage and risk assessment of the structure, 3 elastic–plastic analysis, 4 displacement-based method.
Table 2. Summary of the analysis results for the benchmark frames obtained via NSPA.
Table 2. Summary of the analysis results for the benchmark frames obtained via NSPA.
Frame 1Frame 2Frame 3
RR, %1.25 0.80.31.250.80.31.250.80.3
μ2.672.091.861.271.652.411.311.503.11
ue, [m]0.1422 0.09700.0333 0.13800.08500.03090.13600.08400.0282
umax [m] 0.38000.20290.06180.17650.14000.07440.17830.12610.0877
δt, [m]0.16200.15700.17400.15300.15000.15700.14600.14300.1510
μcr1.161.694.931.111.804.961.081.755.20
VC, kN4730.910.977.653.418.3130.5570.70520.556
Κ, kN/m330.5318.6330.3562.3628.2592.2959.9841.7728.9
μ—the ductility ratio, ue—the elastic limit, umax—the maximal displacement, δt—the DCM target displacement, μcr—the critical ductility ratio, VC is the shear force at the elastic limit, and K is the stiffness to the elastic limit computed as the slope at the linear section of CC.
Table 3. Seismic performance check for the non-retrofitted structure.
Table 3. Seismic performance check for the non-retrofitted structure.
Story 1Story 2Story 3Story 4Comments
Vi (kN)39.6047.8062.60114.70
Δel,i (mm)47.530.322.113.91st, 2nd, and 3rd stories exceeded [56] drift limits
θ0.35960.15820.09750.04751st and 2nd storeys are not stable [56]
IDRmax1.90%0.947%0.656%0.434%1st storey exceeded FEMA IO level [59]
Table 4. Stability check results for the retrofitted structure.
Table 4. Stability check results for the retrofitted structure.
Story 1Story 2Story 3Story 4Comments
Vi (kN)55.6053.3041.60124.30
Δel,i (mm)0.320.3633.851.89Not exceeded
θ0.00230.00270.01040.0262P-Δ effects are insignificant [56]
IDRmax, %0.0128%0.0113%0.120%0.059%Not exceeded [56]
Disclaimer/Publisher’s Note: The statements, opinions and data contained in all publications are solely those of the individual author(s) and contributor(s) and not of MDPI and/or the editor(s). MDPI and/or the editor(s) disclaim responsibility for any injury to people or property resulting from any ideas, methods, instructions or products referred to in the content.

Share and Cite

MDPI and ACS Style

Maidi, M.; Shufrin, I. Evaluation of Existing Reinforced Concrete Buildings for Seismic Retrofit through External Stiffening: Limit Displacement Method. Buildings 2024, 14, 2781. https://doi.org/10.3390/buildings14092781

AMA Style

Maidi M, Shufrin I. Evaluation of Existing Reinforced Concrete Buildings for Seismic Retrofit through External Stiffening: Limit Displacement Method. Buildings. 2024; 14(9):2781. https://doi.org/10.3390/buildings14092781

Chicago/Turabian Style

Maidi, Moab, and Igor Shufrin. 2024. "Evaluation of Existing Reinforced Concrete Buildings for Seismic Retrofit through External Stiffening: Limit Displacement Method" Buildings 14, no. 9: 2781. https://doi.org/10.3390/buildings14092781

APA Style

Maidi, M., & Shufrin, I. (2024). Evaluation of Existing Reinforced Concrete Buildings for Seismic Retrofit through External Stiffening: Limit Displacement Method. Buildings, 14(9), 2781. https://doi.org/10.3390/buildings14092781

Note that from the first issue of 2016, this journal uses article numbers instead of page numbers. See further details here.

Article Metrics

Back to TopTop