Experimental and Analytical Study on Non-Damaged Reinforcement Method for Pipe Rack Steel Structures
Abstract
1. Introduction
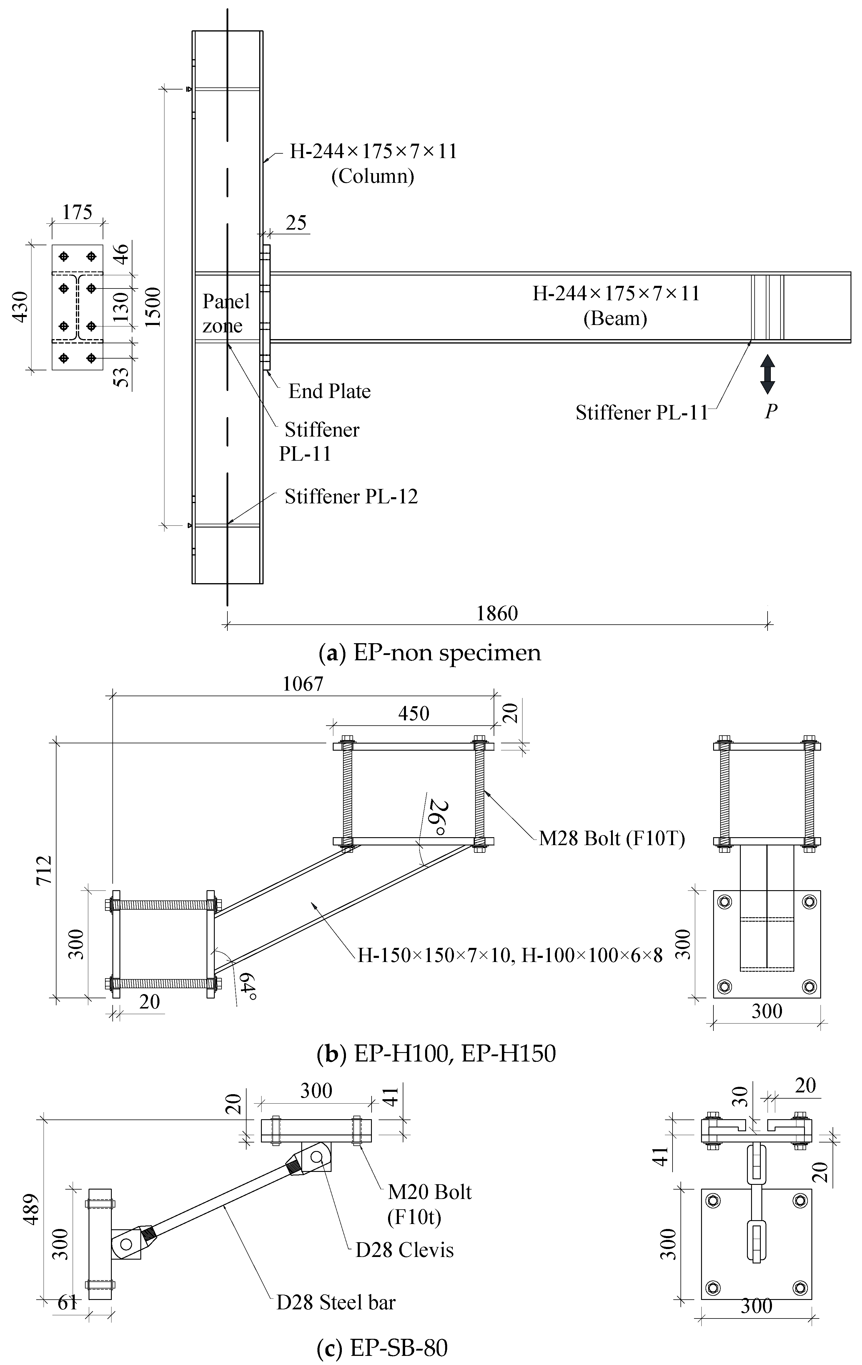
2. Experimental Research Plan
3. Experimental Results
4. FEA Model Presentation
5. Variable Analysis
6. Conclusions
- Experiments were conducted on specimens representing the actual size of beam–column joints used in industrial complexes. Five specimens were tested: one unreinforced specimen, three specimens reinforced with H-beams, and one specimen reinforced with steel bars. The H-beam specimens were tested with varying axial forces and H-beam sizes. The results showed that larger H-beams and higher axial forces led to a maximum strength enhancement of 1.78 times. The reinforcement using steel bars achieved a maximum strength enhancement of 1.22 times, but it was less effective compared with the H-beam reinforcement method.
- The experiment confirmed that the reinforcement method using H-beams had the best performance. Consequently, a computational analysis was conducted to evaluate this method further. The analysis was performed using the general-purpose finite element analysis software Abaqus 2022. The first step was to validate the reliability of the finite element model based on experimental results. For the unreinforced specimen, the finite element analysis results were highly consistent with the experimental data. However, for the reinforced specimens, the results varied significantly depending on the contact elements. Since the contact between surfaces in the actual experiments was not purely frictional, the friction coefficient was adjusted to increase the similarity to the experimental results. Ultimately, it was found that a friction coefficient of 0.2 yielded results similar to those observed in the experiments.
- Additional parametric analyses were conducted on the tension and member size using the validated finite element model of the reinforcement method. The results indicated that while the stiffness and strength increased with tension, the increases were negligible beyond a certain level of tension. Additionally, the yielding of the reinforcement plate due to increased tension suggested that a tension of 80 kN is safe for this reinforcement method. As the size of the members increased, the internal forces on the reinforcement members also increased, leading to greater stiffness and strength.
- This reinforcement method is considered highly suitable for strengthening structures in industrial complexes. In such environments, even minor displacements can lead to significant accidents. Traditional reinforcement methods, such as welding or drilling, can increase the risk of accidents. However, using this reinforcement method can reduce the likelihood of such incidents while ensuring sufficient strength enhancement. It is important to note, however, that the effectiveness of this method is highly sensitive to the bolt axial force, and this factor must be carefully considered.
- This study describes the reinforcement effect of the proposed method. Further research is needed to investigate various factors such as the size of existing members and reinforcement components. Ultimately, in future research, we aim to propose design methods utilizing this reinforcement method.
Author Contributions
Funding
Data Availability Statement
Conflicts of Interest
Abbreviations
| In critical slip connections, a multiplier that reflects the ratio of the mean installed bolt pre-tension to the specified minimum bolt pre-tension. | |
| The tensile stress of the coupon. | |
| The yield stress of the coupon. | |
| The horizontal force separated from the axial force (=). | |
| The column flange’s flexural strength. | |
| The beam’s plastic bending moment. | |
| The end plate’s flexural strength. | |
| The panel zone’s flexural strength. | |
| No-prying moment for the bolt strength. | |
| The maximum strength of the specimen. | |
| The axial force applied to the reinforcement. | |
| The nominal slip resistance. | |
| The minimum fastener tension. | |
| The vertical force separated from the axial force (=). | |
| The factor for fillers. | |
| The number of slip planes required to permit the connection to slip. | |
| The thickness of the coupon. | |
| The slip coefficient. | |
| The true plastic strain. | |
| The nominal strain. | |
| The nominal stress. | |
| The true strain. |
References
- Xiong, Z.; Zhu, H.; Li, W.; Zhang, A.; Xin, H. Seismic Risk Assessment of a Novel Bridge-Aqueduct Cobuilt Structure. ASCE-ASME J. Risk Uncertain. Eng. Syst. Part A Civ. Eng. 2022, 8, 4–10. [Google Scholar] [CrossRef]
- Uckan, E.; Akbas, B.; Shen, J.; Wen, R.; Turandar, K.; Erdik, M. Seismic Performance of Elevated Steel Silos during Van Earthquake, October 23, 2011. Nat. Hazards 2015, 75, 265–287. [Google Scholar] [CrossRef]
- Solhmirzaei, A.; Tahamouli Roudsari, M.; Hosseini Hashemi, B. A New Detail for the Panel Zone of Beam-to-Wide Flange Column Connections with Endplate. Structures 2021, 34, 1108–1123. [Google Scholar] [CrossRef]
- Krawinkler, H.; Mohasseb, S. Effects of Panel Zone Deformations on Seismic Response. J. Constr. Steel Res. 1987, 8, 233–250. [Google Scholar] [CrossRef]
- Ghobarah, A.; Osman, A.; Korol, R.M. Behaviour of Extended End-Plate Connections under Cyclic Loading. Eng. Struct. 1990, 12, 15–27. [Google Scholar] [CrossRef]
- Ghobarah, B.A.; Korol, R.M.; Osman, A.; Member, A. Cyclic Behavior of Extended End-Plate Joints. J. Struct. Eng. 1992, 118, 1333–1353. [Google Scholar] [CrossRef]
- Özkılıç, Y.O. Cyclic and Monotonic Performance of Unstiffened Extended End-Plate Connections Having Thin End-Plates and Large-Bolts. Eng. Struct. 2023, 281, 115794. [Google Scholar] [CrossRef]
- Francavilla, A.B.; Latour, M.; Piluso, V.; Rizzano, G. Design of Full-Strength Full-Ductility Extended End-Plate Beam-to-Column Joints. J. Constr. Steel Res. 2018, 148, 77–96. [Google Scholar] [CrossRef]
- Sumner, E.A.; Murray, T.M. Behavior of Extended End-Plate Moment Connections Subject to Cyclic Loading. J. Struct. Eng. 2002, 128, 501–508. [Google Scholar] [CrossRef]
- Murray, T.M.; Sumner, E.A. Extended End-Plate Moment Connections Seismic and Wind Applications, 2nd ed.; American Institute of Steel Construction: Chicago, IL, USA, 2003; pp. 1–166. [Google Scholar]
- Shi, G.; Shi, Y.; Wang, Y. Behaviour of End-Plate Moment Connections under Earthquake Loading. Eng. Struct. 2007, 29, 703–716. [Google Scholar] [CrossRef]
- Saberi, V.; Gerami, M.; Kheyroddin, A. Seismic Rehabilitation of Bolted End Plate Connections Using Post-Tensioned Tendons. Eng. Struct. 2016, 129, 18–30. [Google Scholar] [CrossRef]
- Ding, F.X.; Chen, Y.B.; Wang, L.; Pan, Z.C.; Li, C.Y.; Yuan, T.; Deng, C.; Luo, C.; Yan, Q.W.; Liao, C.B. Hysteretic Behavior of CFST Column-Steel Beam Bolted Joints with External Reinforcing Diaphragm. J. Constr. Steel Res. 2021, 183, 106729. [Google Scholar] [CrossRef]
- Cao, J.; Du, J.; Fan, Q.; Yang, J.; Bao, C.; Liu, Y. Reinforcement for Earthquake-Damaged Glued-Laminated Timber Knee-Braced Frames with Self-Tapping Screws and CFRP Fabric. Eng. Struct. 2024, 306, 117787. [Google Scholar] [CrossRef]
- He, M.; Luo, J.; Tao, D.; Li, Z.; Sun, Y.; He, G. Rotational Behavior of Bolted Glulam Beam-to-Column Connections with Knee Brace. Eng. Struct. 2020, 207, 110251. [Google Scholar] [CrossRef]
- Junda, E.; Leelataviwat, S.; Doung, P. Cyclic Testing and Performance Evaluation of Buckling-Restrained Knee-Braced Frames. J. Constr. Steel Res. 2018, 148, 154–164. [Google Scholar] [CrossRef]
- Kang, S.H.; Woo, J.H.; Lee, H.D.; Lee, W.G.; Shin, K.J. An Experimental Study on Seismic Performance of Pipe-Rack Using Extended End-Plate Connection. J. Korean Soc. Steel Constr. 2022, 34, 269–277. [Google Scholar] [CrossRef]
- Park, H.I.; Kang, S.H.; Lee, H.D.; Lee, Y.J. Strength Evaluation of Flush Type End Plate Connection According to Haunch Shape. J. Korean Soc. Steel Constr. 2023, 35, 199–208. [Google Scholar] [CrossRef]
- Nie, S.; Li, J.; Wang, H.; Deng, Y.; Chen, Z.; Elchalakani, M.; Liu, M. Seismic Behavior of Welded High-Performance Steel Beam-to-Column Joints with Different Reinforced Configurations. J. Constr. Steel Res. 2023, 210, 108113. [Google Scholar] [CrossRef]
- Ong, C.B.; Chin, C.L.; Ma, C.K.; Tan, J.Y.; Awang, A.Z.; Omar, W. Retrofit of Exterior Reinforced Concrete Beam-Column Joint Using Pre-Tensioned Stiffened Steel Angles. Structures 2022, 46, 1293–1312. [Google Scholar] [CrossRef]
- Liu, X.; Gernay, T.; Li, L.Z.; Lu, Z. dao Seismic Performance of Post-Fire Reinforced Concrete Beam-Column Joints Strengthened with Steel Haunch System. Eng. Struct. 2021, 234, 111978. [Google Scholar] [CrossRef]
- Sheikh, S.A. Performance of Concrete Structures Retrofitted with Fibre Reinforced Polymers. Eng. Struct. 2002, 24, 869–879. [Google Scholar] [CrossRef]
- Manikandan, R.K.; Shunmugapriya, K.; Arunprasad, J.; Sugumar, S.; Manikandan, D. Retrofitting of Reinforced Concrete Beams Using CFRP with Various Adhesive. Mater. Today Proc. 2022, 68, 1635–1640. [Google Scholar] [CrossRef]
- Lee, S.H.; Lee, H. Du Shear Strengthening Effect by External Post-Tensioning Steel Rods in Damaged Reinforced Concrete Beams. Structures 2024, 62, 106327. [Google Scholar] [CrossRef]
- American Institute of Steel Construction. Specification for Structural Steel Buildings. 2010, pp. 1–612. Available online: https://www.aisc.org/globalassets/aisc/publications/standards/a360-16-spec-and-commentary.pdf (accessed on 30 July 2024).
- FEMA 350—Recommended Seismic Design Criteria for New Steel Moment-Frame Buildings. Available online: https://nehrpsearch.nist.gov/static/files/FEMA/PB2007111285.pdf (accessed on 30 July 2024).
- ASTMA370-22; Standard Test Methods and Definitions for Mechanical Testing of Steel Products. ASTM International: West Conshohocken, PA, USA, 2017.
- ABAQUS. AbaqusUser’s Manual Version 2021; Dassault Systèmes Simulia Corp.: Providence, RI, USA, 2021. [Google Scholar]





















| No. | Specimens * | End Plate Thickness (mm) | H-Beam Size (mm) | Reinforcement Member Size | Bolt Pre-Tension (kN) | Note |
|---|---|---|---|---|---|---|
| 1 | EP-non | 25 | H-244 × 175 × 7 × 11 | - | - | - |
| 2 | EP-H150-40 | H-150 × 150 × 7 × 10 | 40 | Fixed–Fixed Reinforcement Method | ||
| 3 | EP-H150-80 | 80 | ||||
| 4 | EP-H100-80 | H-100 × 100 × 6 × 8 | ||||
| 5 | EP-SB-80 | D28 Steel bar | Pinned–Pinned Reinforcement Method |
| Specimens | (kN) | (kN) | (kN) |
|---|---|---|---|
| EP-H150-40 | 393.93 | 337.79 | 202.68 |
| EP-H150-80 | |||
| EP-H100-80 | 390.34 | 334.72 | 200.83 |
| EP-SB-80 | 274.28 | 235.20 | 141.12 |
| No. | Steel Grade | t (mm) | Fy (MPa) | Fu (MPa) | Elongation (%) |
|---|---|---|---|---|---|
| 1 | A36 | 6 | 326.40 | 465.20 | 36.86 |
| 2 | 7 | 318.67 | 470.33 | 39.03 | |
| 3 | 8 | 330.20 | 475.20 | 35.61 | |
| 4 | 10 | 318.70 | 461.80 | 34.41 | |
| 5 | 11 | 307.78 | 466.94 | 39.89 | |
| 6 | 20 | 284.40 | 445.90 | 33.70 | |
| 7 | A572 | 25 | 400.97 | 540.81 | 38.74 |
| 8 | S45C | D = 28 | 630.43 | 765.52 | 23.61 |
| Mp (kN·m) | Mpz (kN·m) | Mpl (kN·m) | Mcf (kN·m) | Mrup (kN·m) |
|---|---|---|---|---|
| 171.49 | 103.82 | 176.40 | 104.73 | 171.99 |
| No. | Specimens | Maximum Load (kN) | Displacement (mm) | Rotation Angle (rad) | Failure Mode | ||||
|---|---|---|---|---|---|---|---|---|---|
| Positive (+) | Negative (−) | Positive (+) | Negative (−) | Positive (+) | Negative (−) | ||||
| 1 | EP-non | 99.03 | 96.08 | 117.38 | 96.07 | 0.063 | 0.053 | 1.00 | Bolt failure |
| 2 | EP-H150-40 | 146.92 | 128.85 | 101.15 | 86.52 | 0.054 | 0.047 | 1.48 | Weld failure |
| 3 | EP-H150-80 | 175.93 | 132.21 | 97.88 | 88.26 | 0.053 | 0.047 | 1.78 | Weld failure |
| 4 | EP-H100-80 | 133.02 | 118.89 | 54.73 | 54.81 | 0.029 | 0.029 | 1.34 | Weld failure |
| 5 | EP-SB-80 | 120.74 | 98.62 | 120.74 | 98.62 | 0.045 | 0.056 | 1.22 | Weld failure Steel bar buckling |
| No. | Specimens | Reinforcement Member Size | Bolt Tension (kN) |
|---|---|---|---|
| 1 | EP-H175-20 | H-175 × 175 × 7.5 × 11 | 20 |
| 2 | EP-H175-40 | 40 | |
| 3 | EP-H175-60 | 60 | |
| 4 | EP-H175-80 | 80 | |
| 5 | EP-H175-100 | 100 | |
| 6 | EP-H150-20 | H-150 × 150 × 7 × 10 | 20 |
| 7 | EP-H150-40 | 40 | |
| 8 | EP-H150-60 | 60 | |
| 9 | EP-H150-80 | 80 | |
| 10 | EP-H150-100 | 100 | |
| 11 | EP-H150-120 | 120 | |
| 12 | EP-H150-140 | 140 | |
| 13 | EP-H150-Welding | Welding | |
| 14 | EP-H125-20 | H-125 × 125 × 6.5 × 9 | 20 |
| 15 | EP-H125-40 | 40 | |
| 16 | EP-H125-60 | 60 | |
| 17 | EP-H125-80 | 80 | |
| 18 | EP-H125-100 | 100 | |
| 19 | EP-H125-120 | 120 | |
| 20 | EP-H125-140 | 140 | |
| 21 | EP-H125-160 | 160 | |
| 22 | EP-H100-20 | H-100 × 100 × 6 × 8 | 20 |
| 23 | EP-H100-40 | 40 | |
| 24 | EP-H100-60 | 60 | |
| 25 | EP-H100-80 | 80 | |
| 26 | EP-H100-100 | 100 | |
| 27 | EP-H100-120 | 120 | |
| 28 | EP-H100-140 | 140 | |
| 29 | EP-H100-160 | 160 | |
| 30 | EP-H100-180 | 180 |
Disclaimer/Publisher’s Note: The statements, opinions and data contained in all publications are solely those of the individual author(s) and contributor(s) and not of MDPI and/or the editor(s). MDPI and/or the editor(s) disclaim responsibility for any injury to people or property resulting from any ideas, methods, instructions or products referred to in the content. |
© 2024 by the authors. Licensee MDPI, Basel, Switzerland. This article is an open access article distributed under the terms and conditions of the Creative Commons Attribution (CC BY) license (https://creativecommons.org/licenses/by/4.0/).
Share and Cite
Lee, J.-S.; Shin, K.-J.; Woo, J.-H. Experimental and Analytical Study on Non-Damaged Reinforcement Method for Pipe Rack Steel Structures. Buildings 2024, 14, 2637. https://doi.org/10.3390/buildings14092637
Lee J-S, Shin K-J, Woo J-H. Experimental and Analytical Study on Non-Damaged Reinforcement Method for Pipe Rack Steel Structures. Buildings. 2024; 14(9):2637. https://doi.org/10.3390/buildings14092637
Chicago/Turabian StyleLee, Jun-Seop, Kyung-Jae Shin, and Jong-Hun Woo. 2024. "Experimental and Analytical Study on Non-Damaged Reinforcement Method for Pipe Rack Steel Structures" Buildings 14, no. 9: 2637. https://doi.org/10.3390/buildings14092637
APA StyleLee, J.-S., Shin, K.-J., & Woo, J.-H. (2024). Experimental and Analytical Study on Non-Damaged Reinforcement Method for Pipe Rack Steel Structures. Buildings, 14(9), 2637. https://doi.org/10.3390/buildings14092637

