Next Article in Journal
Predictive Control Modeling of Regional Cooling Systems Incorporating Ice Storage Technology
Next Article in Special Issue
Seismic Performance Analysis of RC Frame Structure Beam–Column Joints Based on Strong Column and Weak Beam Method
Previous Article in Journal
Circular Economy-Related Strategies to Minimise Construction and Demolition Waste Generation in Australian Construction Projects
 
 
Font Type:
Arial Georgia Verdana
Font Size:
Aa Aa Aa
Line Spacing:
Column Width:
Background:
Article

Experimental and Theoretical Study on the Interface Mechanical Performance of Aluminum–Timber Composite Connections

1
The Key Laboratory of Concrete and Prestressed Concrete Structures of the Ministry of Education, Southeast University, Nanjing 211189, China
2
Faculty of Engineering, The University of Hong Kong, Hong Kong 999077, China
*
Authors to whom correspondence should be addressed.
Buildings 2024, 14(8), 2486; https://doi.org/10.3390/buildings14082486
Submission received: 21 June 2024 / Revised: 6 August 2024 / Accepted: 8 August 2024 / Published: 12 August 2024
(This article belongs to the Special Issue Study on Shear Performance of Structure under Concentrated Load)

Abstract

The interface mechanical performance between aluminum alloy and timber is the key to ensure that the two work together. In this study, 11 group connection performance tests were carried out to investigate the influence of connection type (shear bolt connection, epoxy resin adhesive connection, and mixed connection), number and spacing of bolts, thickness, and length (the area of incidence of the adhesive in the structure) of epoxy resin adhesive on the interface shear-resistant capacity of aluminum–timber composite connections. The shear performance of the three kinds of connections were studied via finite element analysis, and the calculation formula for interface shear-resistant capacity of the aluminum–timber composite connection was proposed based on the bond-slip mechanism of adhesive. The analysis results indicate that the mixed connection can avoid the brittle failure characteristics of the shear bolt connection and the epoxy resin adhesive connection, and the shear-resistant capacity is increased by 45.6% and 14.7%, respectively. The results of the calculation formula for interface shear-resistant capacity are in good agreement with the experimental results, indicating that it is suitable for the aluminum–timber composite connection.

1. Introduction

As a natural building material, timber is characterized by a high strength-to-weight ratio, easy processing and good seismic performance [1,2]. In addition, timber structure also meets the requirements of green construction and harmony between people and the natural environment in terms of safety, durability and applicability [3,4,5]. However, due to the shortcomings of timber, such as easy drying shrinkage and swelling deformation, easy combustion and decay, the application of timber in some engineering structures is limited. Aluminum alloy has a lighter weight and better corrosion resistance than traditional steel, which has been widely applied in large-span spatial structures [6,7,8,9]. However, aluminum alloy rods are prone to instability under pressure, which is difficult to avoid. The combination of aluminum alloy and timber can effectively avoid the high instability of aluminum alloy members under compression and improve the initial defects and brittle failure of timber. In addition, through the combination effect, the mechanical properties of the two materials can be fully utilized to increase the overall ductility and bearing capacity of the component [10,11,12].
Compared with aluminum–timber composite connections, there are many more studies on the shear-resistant capacity of steel–timber composite connections [13,14,15]. The shear performance of the metal–timber composite element may vary depending on the material properties of the metals, even though steel and aluminum alloys exhibit some mechanical behaviors that are similar. There are very few studies on the aluminum–timber composite connection, as the existing literature is mainly focused on the aluminum–timber composite connection connected by screws and bolts [16,17,18,19]. Chybiński et al. [16,17] studied the shear performance of aluminum–timber and steel–timber composite connections with screws and bolts; the results show that the shear performance of aluminum–timber and steel–timber composite connections is similar, but the plastic deformation of aluminum alloy is more obvious. Additionally, the methods to improve the shear capacity of the aluminum–timber connection by toothed-plate connectors was also verified [18]. Zhou et al. [19] conducted 12 groups of double-shear tests and found that the connection method has a great influence on the shear-resistant capacity of the aluminum–timber connection compared with the steel–timber connection. In summary, different connection methods have an impact on the shear-resistant capacity of the aluminum–timber connection and steel–timber composite connection. Therefore, a more comprehensive experimental study of aluminum–timber composite connections with different connection types is required.
In this study, a series of connection performance tests of aluminum–timber composite connections were conducted. The influence of connection type (shear bolt connection, epoxy resin adhesive connection, and mixed connection), number and spacing of bolts, thickness, and length of epoxy resin adhesive on the shear-resistant capacity and failure modes of aluminum–timber composite connection was studied. The force transfer mechanisms and shear performance of the three kinds of connections were studied by finite element analysis, and the reliability of the finite element analysis models of aluminum–timber composite connections was verified by connection performance tests. The calculation formula for the interface shear-resistant capacity of the aluminum–timber composite connection was proposed based on the bond-slip mechanism of adhesive. The research results lay a theoretical and experimental foundation for the application of aluminum–timber composite connections in the field of construction.

2. Connection Performance Tests of Aluminum–Timber Composite Connections

2.1. Specimen Details

In this study, a total of 11 connection performance specimens composed of aluminum alloy plate, timber, shear bolt, and epoxy resin adhesive were designed. The length and width of the aluminum alloy plate are 630 mm and 150 mm, respectively, and the thickness is 5 mm. The length and width of the timber are 600 mm and 150 mm, respectively, and the thickness is 30 mm. The gap between the two timber specimens is 30 mm, which exists to observe the damage of the timber and the slip between the timber and the aluminum alloy plate. The timber was taken from SPF (Picea-Pinus-Fir) with a moisture content of 16% and was defect-free. Compared with traditional glued laminated timber, SPF has greater tensile strength [20]. When the timber (SPF) fiber is squeezed by bolts, it has a greater ability to resist deformation. The shear bolts are grade 9.9 high-strength bolts with a diameter of 10 mm and a length of 60 mm.
The details and the construction diagrams of connection performance specimens are shown in Table 1 and Figure 1, respectively. Among them, the 11 connection performance specimens include three shear bolt connection specimens with different numbers (4 and 6) and spacings of bolts (100 mm and 200 mm) [21], seven epoxy resin adhesive connection specimens with different thicknesses (0.5 mm, 1.0 mm, 1.5 mm, and 2.0 mm) and lengths of epoxy resin adhesive (100 mm, 150 mm, 200 mm, and 300 mm), and one mixed-connection specimen combining shear bolt connection (the spacing of bolts is 200 mm) and epoxy resin adhesive connection (the thickness and length of epoxy resin adhesive are 1 mm and 300 mm, respectively).
The fabrication process of epoxy resin adhesive connection (Figure 2) is as follows: firstly, the gluing area was marked on the timber, and then a circle of high-viscosity foam cotton was adhered to the outside of the gluing area to avoid excess glue flowing out after gluing. Secondly, the preset thickness of the adhesive layer was marked on the high-viscosity foam cotton to ensure the accuracy of the adhesive thickness. Thirdly, the epoxy resin adhesives A and B were mixed in a ratio of 1:1, and the adhesive was poured into the gluing area of timber with a special instrument to ensure that the surface of timber and the aluminum alloy were closely connected. Finally, the gluing area was clamped with a fixture after the epoxy resin adhesive was initially solidified and left to stand for 48 h to fully solidify the epoxy resin adhesive. The fabrication process of the shear bolt connection is as follows: firstly, the drilling position was marked on the timber and aluminum alloy plate, then the hole was drilled by the punching machine, and finally the shear bolt was used to connect the timber and aluminum alloy plate. The fabrication process of shear bolt with epoxy resin adhesive connection (mixed connection) was based on the former two.

2.2. Material Properties Test

In this study, the tensile [22], compression [23] and bending [24] tests of timber (SPF) were carried out according to the GB/T50329-2012 [25], as shown in Figure 3a–c. From the material properties test of timber (SPF), the following can be obtained: the compressive strength parallel to the grain of SPF is 35 MPa, the tensile strength parallel to the grain is 26.2 MPa, and the bending strength parallel to the grain is 65.52 MPa.
The material properties of aluminum alloy (6063-T5) were tested by mechanical testing machine (type: UTM5305) (GB/T 228.1-2010 [26]), as shown in Figure 3d. The dimensions and shape of the samples are shown in Figure 4. The material properties of aluminum alloy (6063-T5), shear bolt [20] and epoxy resin adhesive [27] are shown in Table 2.

2.3. Test Device and Loading Method

The connection performance test was carried out on the universal mechanical testing machine (type: UTM5305, SUNS Technology Co., Ltd., Shenzhen, China). The test system mainly includes three subsystems, namely the loading control system, the data acquisition system and the loading device (Figure 5). The specimen was preloaded three times before the formal loading, and the preload value was 20% of the ultimate load. The monotonic loading was carried out by displacement control according to ASTMD 1761-88 [28], and the loading speed was 1 mm/min.

2.4. Measuring Point Arrangement

In order to obtain the surface strain of the aluminum alloy plate, 11 strain gauges were arranged along the axial direction at the middle line of the surface of the aluminum alloy plate. The spacing of the strain gauges is 30 mm, and the distance from the loading end is 915 mm, 885 mm, 855 mm, 825 mm, 795 mm, 765 mm, 735 mm, 705 mm, 675 mm, 645 mm and 615 mm, respectively, as shown in Figure 6.

3. Results and Discussion of Connection Performance Test

3.1. Loading Process and Failure Modes

Figure 6 shows the failure modes of connection performance specimens with shear bolt connection, epoxy resin adhesive connection, and mixed connection.
For the shear bolt connection (Figure 7a), the deformation of the specimen was not obvious at the elastic stage. With the increased load, the timber slipped obviously along the hole of the bolt, resulting in tearing failure. The timber at the gap of the aluminum–timber was pushed out due to the strong ability of the bolts to compress the wood fibers. Shear failure of the bolt did not occur, despite the shear bolt being slightly deformed. The failure modes of shear bolt connections with different numbers and spacings of bolts are basically the same.
For the epoxy resin adhesive connection (Figure 7b), the deformation of the specimen was also not obvious at the elastic stage, which is the same as the shear bolt connection. When the ultimate load was reached, the aluminum alloy plate and the timber were suddenly completely debonded. Before the failure of the specimen, there was no obvious dislocation between the timber and the aluminum alloy plate. The failure modes of epoxy resin adhesive connections show brittle failure characteristics, and the timber was slightly torn along the bonding surface. According to the failure mechanism of the adhesive layer, it can be seen that roughness surface of the aluminum alloy is much smaller than that of the timber, resulting in the adhesive force of the adhesive not reaching the Cohesive force, and the adhesive layer is basically fully attached to the surface of timber.
For the mixed connection (Figure 7c), the timber broke along the clamping end, and there was no obvious damage at the shear bolt connection and epoxy resin adhesive connection. It can be seen that the mixed connection can provide a more reliable connection and avoid the brittle failure of the shear bolt connection and the epoxy resin adhesive connection.

3.2. Load–Displacement Curves

Figure 8 shows the load–displacement curves of connection performance specimens. Among them, the load–displacement curves of shear bolt connections with different numbers and spacings of bolts are shown in Figure 8a; the load–displacement curves of epoxy resin adhesive connections with different thicknesses and lengths of adhesive are shown in Figure 8b,c. The load–displacement curves of different connection types (shear bolt connection, epoxy resin adhesive connection, mixed connection) are shown in Figure 8d.
For the shear bolt connection, the spacing of the bolt has little effect on the shear-resistant capacity of the specimen. When the spacing of the bolt changes from 200 mm to 100 mm, the shear-resistant capacity of the specimen is reduced by 6.4%, and the failure displacement is increased by 67%. The spacing of the bolt determines the distance of the bolt sliding along the timber. The larger the spacing of the bolt, the closer it is to the end of the timber. After some bolts are pulled out, the remaining bolts continue to slide until the specimen is destroyed, which shows that the ductility of the specimen is improved. With an increase in the number of the bolts, the shear-resistant capacity of the specimens increases significantly, but the load decreases sharply after reaching the ultimate load, and the specimens show the characteristics of brittle failure. When the number of bolts increases from four to six, the shear-resistant capacity of the specimen increases by 75%, and the failure displacement increases by 16.2%. This is because the shear-resistant capacity of the shear bolt connection mainly comes from the bearing pressure of the hole wall of the bolt, which will increase with the increase in the number of bolts. However, too many holes in the timber will accelerate the development of material cracks and cause brittle failure, resulting in a decrease in the ductility of the specimen.
For the epoxy resin adhesive connection, the shear-resistant capacity of the specimen increases by 97.6% when the thickness of the adhesive increases from 0.5 mm to 1.5 mm. Particularly, the shear-resistant capacity clearly increases when the thickness of the adhesive increases from 1.0 mm to 1.5 mm, and the ultimate displacement of the specimen increases from 7 mm to 27.6 mm. However, the shear-resistant capacity decreases by 11.9% when the thickness of the adhesive increases to 2 mm, but the ultimate displacement of the specimen still increases to 29.4 mm. It can be seen that the increase in the thickness of the adhesive can effectively improve the shear-resistant capacity of the aluminum–timber composite connection. However, as the thickness of the epoxy resin adhesive continues to increase, the failure mode changes to the shear failure inside the adhesive, which leads to a decrease in the shear-resistant capacity of the specimen. When the length of the adhesive increases from 100 mm to 300 mm, the shear-resistant capacity of the specimen increases from 16.7 kN to 84.1 kN, an increase of about 4-times. It can be seen that the increase in the length of the adhesive can also improve the shear-resistant capacity of the aluminum–timber composite connection. This is because the increase in the contact surface between the adhesive layer and aluminum–timber improves the interfacial bonding performance of the specimen, thereby enhancing the shear-resistant capacity of the specimen.
For the mixed connection, its initial stiffness is higher than that of the epoxy resin adhesive connection specimen and the shear bolt connection specimen. After the elastic stage, the stiffness of the mixed-connection specimen begins to decrease slowly until the failure curve of the specimen reaches the ultimate load, and then the fracture of the clamping end causes the curve to drop sharply, but the specimen itself does not have the obvious brittle failure of the epoxy resin adhesive connection specimen. The shear-resistant capacity of the mixed-connection specimen is 96.5 kN, which is greater than the 66.3 kN and 84.1 kN of the shear bolt connection and epoxy resin adhesive connection, with an increase of 45.6% and 14.7%, respectively. It can be seen that the mixed connection can combine the advantages of shear bolt connection and epoxy resin adhesive connection to improve the shear-resistant capacity of the specimen.

3.3. Strain Analysis

In order to explore the influence of different connection types on the force transfer mechanism between the timber and aluminum alloy plate, the surface strain distributions of the aluminum alloy plate of three typical connection specimens (L-1, JC-3, FH-1) were compared, as shown in Figure 9. Pu is shear-resistant capacity, and P is the load corresponding to different displacements.
Figure 9a shows the surface strain distribution of the aluminum alloy plate for the shear bolt connection (L-1). The change trend of strain curves was not obvious during the previous loading stage. With an increase in load, the strain of the aluminum alloy plate near the shear bolt clearly increases, and the strain at 550 mm from the loading end changes the most. It can be seen that the shear bolt connection specimen is mainly subjected to the pressure of the bolt hole wall during the loading process. The interaction between the aluminum alloy plate and the bolt causes a significant strain near the shear bolt. Because of the poor transmission of the load far from the bolt hole, the surface strain of the aluminum alloy plate is decreased, and its material performance is not fully utilized. The tearing of timber prevents the load from being transferred between the bolt and the timber when the ultimate load is reached, resulting in all the loads being concentrated on the contact surface between the bolt and the aluminum alloy plate, and the strain curve suddenly increases.
Figure 9b shows the surface strain distribution of the aluminum alloy plate for the epoxy resin adhesive connection (JC-3); the strain distribution of the aluminum alloy in the bonding range is relatively uniform, and the curve showed a slight upward trend as a whole during the previous loading stage. The above results demonstrate that the aluminum alloy and timber can work together to resist load due to the effect of epoxy resin adhesive. The farther the distance from the loading end, the more sufficient the shear transfer of the adhesive layer. With an increase in the load, the interior of the structure is gradually degummed, resulting in obvious fluctuations in the stain curve of the degummed position.
Figure 9c shows the strain distribution of the mixed connection (FH-1); the curve shows a clear upward trend, and there is no mutation phenomenon. The surface strain of the aluminum alloy plate increases with the increase in the distance from the loading end, indicating that the load is partly transformed into the hole wall bearing pressure, and the other part is transformed into the shear of the adhesive interface under the action of the shear bolt and epoxy resin adhesive. Because the shear bolt and the epoxy resin adhesive bear the load together, the stress concentration phenomenon of the specimen at the end of the bolt hole and the bonding surface is effectively improved.

4. Elasto-Plastic Finite Element Analysis

4.1. Establishment of Finite Element Analysis Model

The finite element analysis models of three typical connections (L-1, JC-3, FH-1) were established by ABAQUS 2018, as shown in Figure 10. In the finite element analysis models, the C3D8R element was used for the aluminum alloy plate, timber and shear bolt, and the maximum size of the finite elements is 10 mm. The displacement load was applied to the coupling point of the loading end, and the other end of the specimen was fixed. The General contact was used in the shear bolt connection, the Cohesive contact was used in the epoxy resin adhesive connection, and the Cohesive contact + General contact was used in the mixed connection. The material performance parameters and the constitutive model of aluminum, shear bolt and epoxy resin adhesive are shown in Table 2 and Figure 11.
The constitutive relationship of the timber is defined by nine independent parameters, and the engineering constants of the timber in all directions are obtained based on the material properties test, as shown in Table 3.

4.2. Comparative Analysis of Finite Element Analysis Results and Experimental Results

The stress nephograms (finite element analysis) and the failure modes (connection performance test) of three typical connections are shown in Figure 12, and a comparison of the load–displacement curves between the connection performance test and finite element analysis of three typical connections is shown in Figure 13.
As shown in Figure 12a, the stress concentration occurred at the bolt of the shear bolt connection, and the timber was torn along the bolt hole, which is basically consistent with the experimental results. It can be seen that the shear bolt connection is subjected to external load through the bearing pressure on the hole wall, and the main reason for the failure of the shear bolt connection is that the timber reaches its compressive strength and produces tearing failure. In the elastic stage, the load–displacement curve of the connection performance specimen is above that of the finite element analysis model (Figure 13a), indicating that the initial stiffness of the connection performance specimen is larger than that of the finite element model. This is due to the uneven arrangement of the timber fibers of the specimen, which hinders the slip of the shear bolt to varying degrees, resulting in excessive stiffness of the specimen. The bearing capacity of the finite element analysis model is 66.2 kN, which is only 0.2% different from that of the connection performance specimen, which fully verifies the validity of the finite element analysis model with shear bolt connection.
From the stress nephogram of the epoxy resin adhesive connection (Figure 12b), it can be seen that, different from that of the shear bolt connection, with an increase in load, the aluminum alloy is uniformly stressed by the action of the adhesive interface, but the yield strength is still not reached when it is destroyed. The failure of the adhesive interface leads to the loss of the bearing capacity of the specimen. The initial stiffness of the finite element analysis model is larger than that of the connection performance test, which is caused by the inherent defect of the specimen gradually debonding during the connection performance test. The bearing capacity of the finite element analysis model is 82.3 kN, which is only 0.2% different from the bearing capacity of the connection performance specimen of 84.0 kN (Figure 13b). The stress distribution and bearing capacity of the finite element analysis model are basically consistent with the specimen, which proves the reliability of the finite element analysis model of the epoxy resin adhesive connection.
Figure 13c shows a comparison of the load–displacement curves between the connection performance test and finite element analysis of the mixed connection, which is similar to that of the epoxy resin adhesive connection. At the initial stage of loading, the deformation of the finite element model is not obvious, and it is more inclined to the characteristics of adhesive connection. From the stress nephogram of the finite element analysis model (Figure 12c), it can be seen that surface of the adhesive connection and the hole wall of the bolt can bear the load together before the aluminum alloy and the timer slip, which can better exert the mechanical properties of the aluminum alloy material, so that the bearing capacity of the component can be effectively improved. When the epoxy resin adhesive at the connection interface is destroyed, the failure mode of the specimen is more inclined to the characteristics of the bolt connection; that is, the timber slides relatively along the bolt hole. At this time, the bolt hole can still bear part of the load, so that the model still maintains part of the ductility and overcomes the brittle failure of the adhesive connection. The bearing capacity of the finite element analysis model is 101.7 kN, which is 5.3% different from the connection performance test, which fully verifies the validity of the finite element analysis model with the shear bolt connection.

5. Calculation Method of Shear-Resistant Capacity of the Aluminum–Timber Composite Connections

5.1. Bond-Slip Mechanism of Adhesive Connection Interface

In order to simplify the analysis model, a theoretical analysis model of the epoxy resin adhesive connection was established by intercepting the upper part of the connection [29,30] (Figure 14). The length of the bonding section of the model is L, and the width of the timber and the thin-walled aluminum plate (bonding section) is B. Among them, the bonding section with length dx was taken for analysis. F 1 and F 2 are the tensile load on the upper part of the timber and the thin-walled aluminum plate on both sides; F 1 ( x ) and F 2 ( x ) are the tensile load on the timber and the thin-walled aluminum plate in the microsegment, respectively. τ ( x ) is the shear stress at x of the connection interface. t 1 and t 2 are the thickness of the adhesive-layer thin-walled aluminum plate.
The force analysis operates under the following presumptions: (a) The normal stress distribution of the thin-walled aluminum plate in the same section is uniform. (b) The composite connection composed of a thin-walled aluminum plate and timber conforms to the plane hypothesis; that is, the deformation of the two is the same in the same plane. (c) The deformation of the thin-walled aluminum plate is consistent with that of timber. Only the deformation in the x-direction is considered, and the deformation in the y-direction is not considered.
According to the equilibrium conditions of the force, the equilibrium differential equations for the thin-walled aluminum plate and the composite structure were established as follows:
F 2 ( x ) + τ ( x ) B d x = F 2 ( x ) + d F 2 ( x )
F 1 = F 1 ( x ) + 2 F 2 ( x )
According to the assumption (a), the normal stress distribution of the thin-walled aluminum plate is uniform in the same section, so the following formula can be obtained.
d F 2 ( x ) = d σ 2 ( x ) B t 2
where σ 1 ( x ) is normal stress at x of the thin-walled aluminum plate.
According to the assumption (b), the deformation of the thin-walled aluminum plate and timber is the same in the same plane, so Equations (4) and (5) can be obtained.
F 2 ( x ) = σ 2 ( x ) B t 2 = E 2 ε 2 ( x ) B t 2
F 1 ( x ) = ε 1 ( x ) ( E 1 A 1 + E 2 A 2 )
where ε 1 ( x ) and ε 2 ( x ) are the strain of the thin-walled aluminum plate and composite structure, E 1 and E 2 are elastic modulus of timber and aluminum alloy plate, and A 1 and A 2 are the area of timber and aluminum alloy plate in the composite structure.
The shear force of the adhesive layer is shown in Equation (6).
τ ( x ) = G γ ( x )
where G is the shear modulus of the adhesive layer, and γ ( x ) is the shear deformation of the adhesive layer.
According to the assumption (c) that the deformation of the thin-walled aluminum plate and timber is consistent, the displacement of the adhesive layer on microsegment (dx) can be obtained.
u ( x ) = u 1 ( x ) u 2 ( x )
γ ( x ) = d u ( x ) d y
Combining the above formulas and conducting secondary derivation, the following formulas can be obtained.
d 2 σ 2 ( x ) d 2 x p σ 2 ( x ) + q F 1 = 0
where p = G t 1 t 2 E 2 + 2 G B t 1 ( E 1 A 1 + E 2 A 2 ) , q = G t 1 t 2 ( E 1 A 1 + E 2 A 2 ) .
According to the second-order differential equation solution formula, Equation (10) can be obtained.
σ 2 ( x ) = C 1 e p x + C 2 e p x + q p F 1
The boundary conditions are: x = 0 , σ 2 ( 0 ) = 0 . x = L , σ 1 ( L ) = F 1 2 B t 1 .
C 1 = F 1 2 B t 2 + q F 1 p ( e p l 1 ) e p l e p l
C 2 = F 1 2 B t 2 + q F 1 p ( e p l 1 ) e p l e p l
Based on the above analysis, the relationship between the shear stress of the bonding interface and the relative slip on both sides can be obtained.
τ ( x ) = G γ = G d u d y = G u ( x ) t 1
u ( x ) = t 1 t 2 G ( C 1 p e p x C 2 p e p x )
When the composite structure is subjected to ultimate load, the shear stress of the interface is the largest. The shear-resistant capacity of the bonding interface can be obtained.
F g = 2 τ A = 2 ( C 1 p e p l C 2 p p l ) × t 2 × A
where l is the maximum shear stress of the bonding interface.

5.2. Shear-Resistant Capacity of Mixed-Connection Interface

The shear-resistant capacity of the shear bolt according to the Eurocode 5 [31] is as follows.
F b = η 1 4 π d 2 f
η = n r n 0.9 a 1 13 d
where η , d, and f are the effective number, diameter, and strength standard value of the shear bolt. n r is the number of columns of shear bolts, n is the number of bolts per column, and a 1 is the spacing of the bolts.
The shear-resistant capacity of the mixed-connection interface is mainly composed of the shear-resistant capacity of the shear bolt, the bonding force of the epoxy resin adhesive and the interfacial friction resistance. Because the shear-resistant capacity of the shear bolt and the bonding force of the epoxy resin adhesive have a great influence on the shear-resistant capacity of the mixed-connection interface, and the adhesive layer has a certain thickness, the aluminum alloy and the timber do not contact directly, so the influence of the interface friction resistance on the shear-resistant capacity of the mixed-connection interface is small and negligible.
Considering the reduction factor of the composite connection interface, the shear-resistant capacity of the composite connection interface can be expressed as Equation (18).
F = λ ( F g + F b )
where F g is the bonding force of the epoxy resin adhesive, F b is the shear-resistant capacity of the shear bolt, and λ is the strength combination reduction factor.

5.3. Comparative Analysis of Theoretical Analysis and Experimental Results

According to the above formula, the shear-resistant capacity of the shear bolt connection, epoxy resin adhesive connection and composite connection was calculated and compared with that of the connection performance test. The comparison results are shown in Figure 15.
As shown in Figure 15, the experimental shear-resistant capacity of the shear bolt connection interface is less than the theoretical value, and the experimental shear-resistant capacity of the adhesive interface is greater than the theoretical value, which is caused by the inherent properties of the adhesive, the shear bolt and the processing error. The error between the theoretical shear-resistant capacity and the experimental shear-resistant capacity of the aluminum–timber composite connections is 10%, and the error is within a reasonable range. It shows that the calculation formula for interface shear-resistant capacity based on the bond-slip mechanism of the adhesive is not only practical but also reliable, which can be applied in engineering design.

6. Conclusions

In this study, a series of connection performance tests of aluminum–timber composite element was conducted. The shear performances of the three kinds of connections were studied through finite element analysis, and a calculation formula for interface shear-resistant capacity of the aluminum–timber composite connection was proposed based on the bond-slip mechanism of the adhesive. According to the results of the test and analysis, the main conclusions are as follows:
(1) The spacing of the bolt has little effect on the shear-resistant capacity, while the number of bolts has a great influence on the shear-resistant capacity of the shear bolt connection specimen. When the spacing of the bolt changes from 200 mm to 100 mm, the shear-resistant capacity of the specimen is reduced by 6.4%, and the failure displacement is increased by 67%. When the number of bolts increases from four to six, the shear-resistant capacity of the specimen increases by 75%, and the failure displacement increases by 16.2%. The shear-resistant capacity of the epoxy resin adhesive connection increases with an increase in the thickness of the adhesive in a certain range and an increase in the length of the adhesive. The shear-resistant capacity of the mixed connection is increased by 45.6% and 14.7%, respectively, compared with the shear bolt connection and epoxy resin adhesive connection, and the defects of brittle failure are overcome.
(2) The force transmission mechanism of the three kinds of connections is different. For the shear bolt connection, there is an obvious stress concentration on the aluminum alloy in the range of the bolt hole pressure, and the shear force cannot be effectively transferred. For the epoxy resin adhesive connection, the adhesive layer can effectively transfer the shear force when the load is small, and the farther away from the loading end, the more sufficient the transferred shear force is. When the load is large, the transmission efficiency of the shear force is reduced due to the partial debonding of the specimen, and the stress concentration occurs at the end of the bonding surface. For the mixed connection, the two connection types work together to make the load transfer more sufficient, and the stress concentration phenomenon is effectively alleviated.
(3) The mixed connection effectively improves the shear-resistant capacity and ductility of the aluminum–timber composite connection. The average error between the results of the finite element analysis and the connection performance test is 2.5%, and the failure mode is consistent, which fully verifies the reliability of the finite element analysis model.
(4) The calculation formula for interface shear-resistant capacity based on the bond-slip mechanism of the adhesive can be used for the aluminum–timber composite connections with a shear bolt connection, epoxy resin adhesive connection and mixed connection, and the calculation results are in good agreement with the experimental results.

Author Contributions

Conceptualization, T.Z. and C.Z.; methodology, T.Z.; software, Y.Z.; validation, T.Z., C.Z. and Y.Z.; formal analysis, T.Z. and C.Z.; investigation, T.Z.; resources, C.Z.; data curation, T.Z.; writing—original draft preparation, T.Z. and Y.Z.; writing—review and editing, T.Z. and Y.Z.; visualization, Y.Z.; supervision, C.Z.; project administration, C.Z.; funding acquisition, C.Z. All authors have read and agreed to the published version of the manuscript.

Funding

This research was funded by the National Natural Science Foundation of China, grant number 51578136 and 51875102.

Data Availability Statement

The data that support the findings of this study are available from the corresponding author upon reasonable request.

Acknowledgments

We acknowledge the support of the Key Laboratory of Concrete and Prestressed Concrete Structures of the Ministry of Education.

Conflicts of Interest

The authors declare no conflicts of interest.

References

  1. Zheng, T.T.; Yan, H.Z.; Li, S.; Cheng, Y.P.; Zou, L.X.; Hu, Y.C. Compressive Behavior and Failure Modes of the Wood-based Double X-type Lattice Sandwich Structure. J. Build. Eng. 2020, 30, 101176. [Google Scholar] [CrossRef]
  2. Zheng, T.T.; Li, S.; Wang, G.; Hu, Y.C.; Zhao, C.Q. Mechanical and Energy Absorption Properties of the Composite XX-type Lattice Sandwich Structure. Eur. J. Mech. A-Solid. 2022, 91, 104410. [Google Scholar] [CrossRef]
  3. Hoseinpour, H.; Valluzzi, M.R.; Garbin, E.; Panizza, M. Analytical Investigation of Timber beams Strengthened with Composite Materials. Constr. Build. Mater. 2018, 191, 1242–1251. [Google Scholar] [CrossRef]
  4. Gattas, J.M.; O’Dwyer, M.L.; Heitzmann, M.T.; Fernando, D.; Teng, J.G. Folded Hybrid FRP-timber Sections: Concept, Geometric Design and Experimental Behaviour. Thin-Wall. Struct. 2018, 122, 182–192. [Google Scholar] [CrossRef]
  5. Vahedian, A.; Shrestha, R.; Crews, K. Experimental and Analytical Investigation on CFRP Strengthened Glulam Laminated Timber Beams: Full-scale Experiments. Compos. Part B-Eng. 2019, 164, 377–389. [Google Scholar] [CrossRef]
  6. Formisano, A.; De Matteis, G.; Mazzolani, F.M. Experimental and Numerical Researches on Aluminium Alloy Systems for Structural Applications in Civil Engineering Fields. Key Eng. Mater. 2016, 710, 256–261. [Google Scholar] [CrossRef]
  7. Mazzolani, F.M.; Mandara, A. Modern Trends in the Use of Special Metals for the Improvement of Historical and Monumental Structures. Eng. Struct. 2002, 24, 843–856. [Google Scholar] [CrossRef]
  8. Zhao, C.Q.; Zheng, T.T.; Zhao, W.R.; Yuan, L.J.; Xu, Y. Research on Bearing Capacity of Honeycomb Plate Box-type Hollow Roof Structure. Constr. Build. Mater. 2022, 347, 128596. [Google Scholar] [CrossRef]
  9. Zhao, C.Q.; Wang, G.; Zheng, T.T. Research on the Hysteretic Performance of Flower-gusset Composite Joints for Single-layer Aluminium Alloy Lattice Shell Structures. Adv. Struct. Eng. 2022, 25, 171–187. [Google Scholar] [CrossRef]
  10. Park, H.M.; Fushitani, M. Bending Creep Property of Wood-aluminum Hybrid Laminated Material. Mokuzai Gakkaishi 2007, 53, 14–24. [Google Scholar] [CrossRef]
  11. Zhao, L.; Fei, X.D. Flexural Performance of Reinforced Aluminum-wood-plastic Composite Beam: An Experimental and NuMerical Investigation. Thin-Wall. Struct. 2022, 180, 109910. [Google Scholar] [CrossRef]
  12. Jiao, S.; Gunalan, S.; Gilbert, B.P.; Baleshan, B.; Bailleres, H. Experimental Investigation of An Innovative Composite Mullion Made of Aluminium and Timber. J. Build. Eng. 2021, 38, 101907. [Google Scholar] [CrossRef]
  13. Hassanieh, A.; Bradford, M.A.; Valipour, H.R. Experimental and Analytical Behaviour of Steel-timber Composite Connections. Constr. Build. Mater. 2016, 118, 63–75. [Google Scholar] [CrossRef]
  14. Hassanieh, A.; Valipour, H.R.; Bradford, M.A. Load-slip Behaviour of Steel-cross Laminated Timber (CLT) Composite Connections. J. Constr. Steel. Res. 2016, 122, 110–121. [Google Scholar] [CrossRef]
  15. Hassanieh, A.; Valipour, H.R.; Bradford, M.A. Composite Connections between CLT Slab and Steel Beam: Experiments and Empirical Models. J. Constr. Steel. Res. 2017, 138, 823–836. [Google Scholar] [CrossRef]
  16. Chybi’nski, M.; Polus, Ł. Theoretical, Experimental and Numerical Study of Aluminium-timber Composite Beams with Screwed Connections. Constr. Build. Mater. 2019, 226, 317–330. [Google Scholar] [CrossRef]
  17. Chybiński, M.; Polus, Ł. Experimental and Numerical Investigations of Aluminium-timber Composite Beams with Bolted ConNections. Structures 2021, 34, 1942–1960. [Google Scholar] [CrossRef]
  18. Chybiński, M.; Polus, Ł. Mechanical Behaviour of Aluminium-Timber Composite Connections with Screws and Toothed Plates. Materials 2022, 15, 68. [Google Scholar] [CrossRef] [PubMed]
  19. Zhou, Y.F.; Zhao, Y.; Wang, C.L.; Zhou, Y.Y.; Zheng, J.H. Experimental Study of the Shear Performance of H-shaped Aluminum-timber Composite Connections. Constr. Build. Mater. 2022, 334, 127421. [Google Scholar] [CrossRef]
  20. Li, G.F.; Wang, G.; Zhao, C.Q.; Chen, Q.S. Experimental Study on the Shear Resistance of Steel-wood Composite Member Based on Glue and Bolt Connection. Adv. Struct. Eng. 2023, 26, 2909–2920. [Google Scholar] [CrossRef]
  21. Chybiński, M.; Polus, Ł. Structural Behaviour of Aluminium–timber Composite Beams with Partial Shear Connections. Appl. Sci. 2023, 13, 1603. [Google Scholar] [CrossRef]
  22. GB/T 1938–2009; Method of Testing in Tensile Strength Parallel to Grain of Wood. Standardization Administration of China: Beijing, China, 2009.
  23. GB/T 1935-2009; Method of Testing in Compressive Strength Parallel to Grain of Wood. Standardization Administration of China: Beijing, China, 2009.
  24. GB/T 1936.1-2009; Method of Testing in Bending Strength of Wood. Standardization Administration of China: Beijing, China, 2009.
  25. GB/T50329–2012; Standard for Test Methods of Timer Structures. Standardization Administration of China: Beijing, China, 2012.
  26. GB/T 228.1–2010; Metallic Materials-Tensile Testing-Part 1: Method of Test at Room Temperature. Standardization Administration of China: Beijing, China, 2011.
  27. Li, S.; Zheng, T.T.; Li, Q.; Hu, Y.C.; Wang, B. Flexural and Energy Absorption Properties of Natural-fiber Reinforced Composites with a Novel Fabrication Technique. Compos. Commum. 2019, 16, 124–131. [Google Scholar] [CrossRef]
  28. ASTMD1761–88; Standard Test Methods for Mechanical Fasteners in Wood. American society of Mechanical Engineering: Washington, DC, USA, 2008.
  29. Li, Y.S.; Zhang, J.L.; Zhang, X.H.; Wen, Y.; Guo, J. Study on Bond Stress and Bond Slip of Bamboo-steel Interface Under Static Load. J. Build. Struct. 2015, 36, 114–123. (In Chinese) [Google Scholar]
  30. Liu, D.G.; Chen, K.C.; Wang, N.; Li, J.C. Experiment Study on Connect Interface Mechanical Properties of Built-in Thin-walled H-section Steel Wood Composite Beam. Build. Struct. 2021, 51, 109–116. (In Chinese) [Google Scholar]
  31. European Committee for Standardization. Eurocode 5. In Design of Timber Structures; European Committee for Standardization: Brussels, Brussels, 1995. [Google Scholar]
Figure 1. The construction diagrams of the connection performance specimens: (a) epoxy resin adhesive connection, (b) shear bolt connection and mixed connection.
Figure 1. The construction diagrams of the connection performance specimens: (a) epoxy resin adhesive connection, (b) shear bolt connection and mixed connection.
Buildings 14 02486 g001
Figure 2. The fabrication process of epoxy resin adhesive connection: (a) the preset thickness of the adhesive layer was marked on the high-viscosity foam cotton, and (b) the gluing area was clamped with a fixture after the epoxy resin adhesive was initially solidified.
Figure 2. The fabrication process of epoxy resin adhesive connection: (a) the preset thickness of the adhesive layer was marked on the high-viscosity foam cotton, and (b) the gluing area was clamped with a fixture after the epoxy resin adhesive was initially solidified.
Buildings 14 02486 g002
Figure 3. The mechanical properties tests of timber and aluminum alloy: (a) tensile test of timber, (b) compression test of timber, (c) bending test of timber and (d) tensile test of aluminum alloy.
Figure 3. The mechanical properties tests of timber and aluminum alloy: (a) tensile test of timber, (b) compression test of timber, (c) bending test of timber and (d) tensile test of aluminum alloy.
Buildings 14 02486 g003
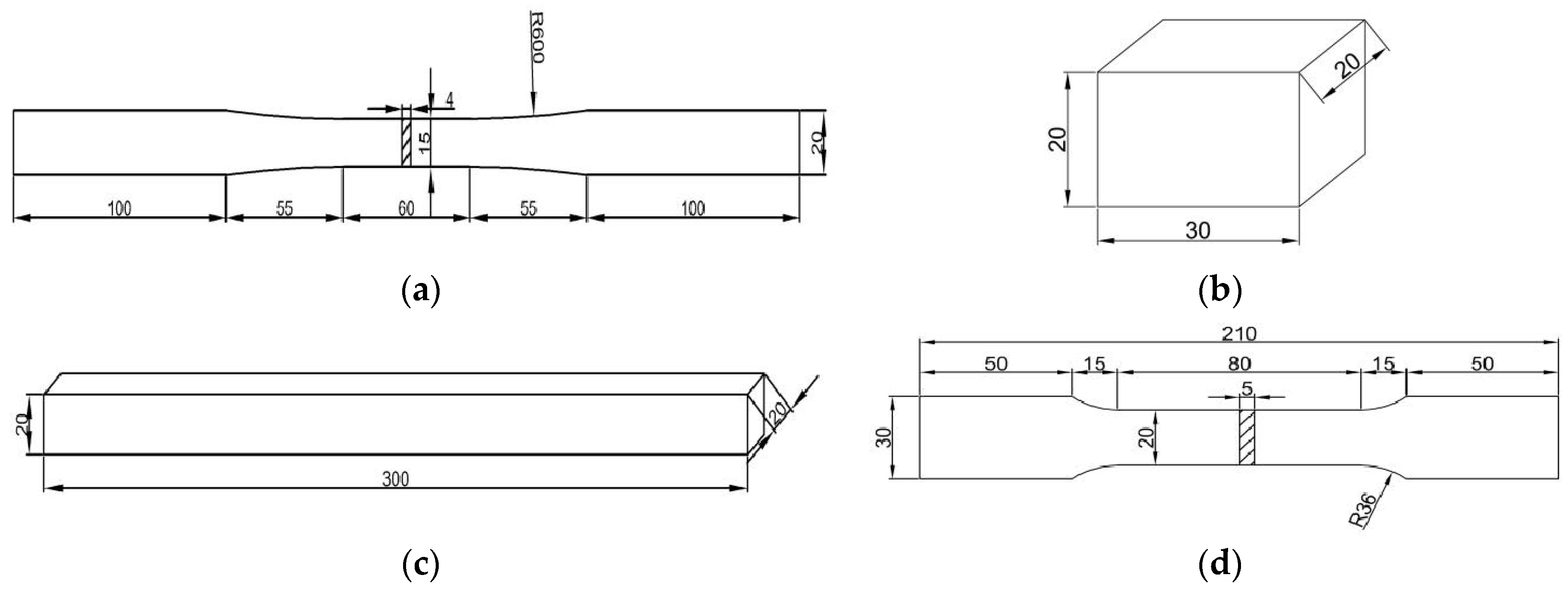
Figure 4. The dimensions and shape of the samples: (a) tensile specimen of timber, (b) compression specimen of timber, (c) bending specimen of timber and (d) tensile specimen of aluminum alloy.
Figure 4. The dimensions and shape of the samples: (a) tensile specimen of timber, (b) compression specimen of timber, (c) bending specimen of timber and (d) tensile specimen of aluminum alloy.
Buildings 14 02486 g004
Figure 5. Connection performance test site.
Figure 5. Connection performance test site.
Buildings 14 02486 g005
Figure 6. Arrangement of strain gauges.
Figure 6. Arrangement of strain gauges.
Buildings 14 02486 g006
Figure 7. The failure modes of connection performance specimens with (a) shear bolt connection, (b) epoxy resin adhesive connection and (c) mixed connection.
Figure 7. The failure modes of connection performance specimens with (a) shear bolt connection, (b) epoxy resin adhesive connection and (c) mixed connection.
Buildings 14 02486 g007
Figure 8. The load–displacement curves of connection performance specimens: (a) shear bolt connections with different numbers and spacings of bolts, epoxy resin adhesive connections with different (b) thicknesses and (c) lengths of adhesive and (d) different connection types.
Figure 8. The load–displacement curves of connection performance specimens: (a) shear bolt connections with different numbers and spacings of bolts, epoxy resin adhesive connections with different (b) thicknesses and (c) lengths of adhesive and (d) different connection types.
Buildings 14 02486 g008
Figure 9. The surface strain distribution of aluminum alloy plate of three typical connection specimens: (a) shear bolt connection (L-1), (b) epoxy resin adhesive connection (JC-3) and (c) mixed connection (FH-1).
Figure 9. The surface strain distribution of aluminum alloy plate of three typical connection specimens: (a) shear bolt connection (L-1), (b) epoxy resin adhesive connection (JC-3) and (c) mixed connection (FH-1).
Buildings 14 02486 g009
Figure 10. The finite element analysis models: (a) shear bolt connection (L-1) and mixed connection (FH-1), (b) epoxy resin adhesive connection (JC-3).
Figure 10. The finite element analysis models: (a) shear bolt connection (L-1) and mixed connection (FH-1), (b) epoxy resin adhesive connection (JC-3).
Buildings 14 02486 g010
Figure 11. Constitutive model of (a) aluminum, (b) shear bolt and (c) epoxy resin adhesive.
Figure 11. Constitutive model of (a) aluminum, (b) shear bolt and (c) epoxy resin adhesive.
Buildings 14 02486 g011
Figure 12. The failure modes of finite element analysis and connection performance test of (a) shear bolt connection, (b) the epoxy resin adhesive connection and (c) mixed connection.
Figure 12. The failure modes of finite element analysis and connection performance test of (a) shear bolt connection, (b) the epoxy resin adhesive connection and (c) mixed connection.
Buildings 14 02486 g012
Figure 13. Comparison of load–displacement curves between connection performance test and finite element analysis of three typical connections ((a) L-1, (b) JC-3 and (c) FH-1).
Figure 13. Comparison of load–displacement curves between connection performance test and finite element analysis of three typical connections ((a) L-1, (b) JC-3 and (c) FH-1).
Buildings 14 02486 g013
Figure 14. A schematic diagram of theoretical analysis.
Figure 14. A schematic diagram of theoretical analysis.
Buildings 14 02486 g014
Figure 15. Comparison of theoretical shear-resistant capacity and experimental bearing capacity of the aluminum–timber composite connections: (a) shear bolt connection with different numbers and spacings of the bolts, (b) epoxy resin adhesive connection with different thickness of epoxy resin adhesive, (c) epoxy resin adhesive connection with different length of epoxy resin adhesive and (d) different connection modes.
Figure 15. Comparison of theoretical shear-resistant capacity and experimental bearing capacity of the aluminum–timber composite connections: (a) shear bolt connection with different numbers and spacings of the bolts, (b) epoxy resin adhesive connection with different thickness of epoxy resin adhesive, (c) epoxy resin adhesive connection with different length of epoxy resin adhesive and (d) different connection modes.
Buildings 14 02486 g015aBuildings 14 02486 g015b
Table 1. The details of connection performance specimens.
Table 1. The details of connection performance specimens.
NumberTypeNumber of BoltSpacing of Bolt (S) (mm)Length of Epoxy Resin Adhesive (L) (mm)Thickness of Epoxy Resin
Adhesive (T) (mm)
L-1Shear bolt connection4200
L-2Shear bolt connection4100
L-3Shear bolt connection6100
JH-1Epoxy resin adhesive connection2000.5
JH-2Epoxy resin adhesive connection2001.0
JH-3Epoxy resin adhesive connection2001.5
JH-4Epoxy resin adhesive connection2002.0
JC-1Epoxy resin adhesive connection1001.0
JC-2Epoxy resin adhesive connection1501.0
JC-3Epoxy resin adhesive connection3001.0
FH-1Mixed connection42003001.0
Table 2. The material properties of aluminum alloy (6063-T5), shear bolt and epoxy resin adhesive.
Table 2. The material properties of aluminum alloy (6063-T5), shear bolt and epoxy resin adhesive.
MaterialsElastic Modulus (MPa)Poisson’s RatioYield Strength (MPa)
Aluminum alloy67,9690.33149
Shear bolt 210,0000.30900
Epoxy resin adhesive [27]11000.3050
Table 3. The engineering constants of the timber in all directions.
Table 3. The engineering constants of the timber in all directions.
E L (MPa) E R (MPa) E T (MPa) u L R u L T u R T G L R (MPa) G L T (MPa) G R T (MPa)
806410399350.380.470.52604.80483.84145.15
L, R and T are the longitudinal, radial and tangential directions of the timber. E, u and G are the elastic modulus, Poisson’s ratio and shear modulus of the timber.
Disclaimer/Publisher’s Note: The statements, opinions and data contained in all publications are solely those of the individual author(s) and contributor(s) and not of MDPI and/or the editor(s). MDPI and/or the editor(s) disclaim responsibility for any injury to people or property resulting from any ideas, methods, instructions or products referred to in the content.

Share and Cite

MDPI and ACS Style

Zheng, T.; Zhao, C.; Zhang, Y. Experimental and Theoretical Study on the Interface Mechanical Performance of Aluminum–Timber Composite Connections. Buildings 2024, 14, 2486. https://doi.org/10.3390/buildings14082486

AMA Style

Zheng T, Zhao C, Zhang Y. Experimental and Theoretical Study on the Interface Mechanical Performance of Aluminum–Timber Composite Connections. Buildings. 2024; 14(8):2486. https://doi.org/10.3390/buildings14082486

Chicago/Turabian Style

Zheng, Tengteng, Caiqi Zhao, and Yikang Zhang. 2024. "Experimental and Theoretical Study on the Interface Mechanical Performance of Aluminum–Timber Composite Connections" Buildings 14, no. 8: 2486. https://doi.org/10.3390/buildings14082486

APA Style

Zheng, T., Zhao, C., & Zhang, Y. (2024). Experimental and Theoretical Study on the Interface Mechanical Performance of Aluminum–Timber Composite Connections. Buildings, 14(8), 2486. https://doi.org/10.3390/buildings14082486

Note that from the first issue of 2016, this journal uses article numbers instead of page numbers. See further details here.

Article Metrics

Back to TopTop