Next Article in Journal
Study on the Influence of Wind Fairing Parameters on the Aerodynamic Performance of Long-Span Double-Deck Steel Truss Suspension Bridge
Previous Article in Journal
Study on the Bearing Capacity of the Polyethylene Pipe–Cured-In-Place Pipe Liner Composite Structure under External Pressure
 
 
Font Type:
Arial Georgia Verdana
Font Size:
Aa Aa Aa
Line Spacing:
Column Width:
Background:
Article

Seismic Strengthening of Elevated Reinforced Concrete Tanks: Analytical Framework and Validation Techniques

1
Department STS, IUSS—Scuola Universitaria Superiore Pavia, 27100 Pavia, Italy
2
RED Risk Engineering & Development, 27100 Pavia, Italy
3
Studio Calvi Pavia, 27100 Pavia, Italy
*
Author to whom correspondence should be addressed.
Buildings 2024, 14(7), 2254; https://doi.org/10.3390/buildings14072254
Submission received: 21 June 2024 / Revised: 14 July 2024 / Accepted: 19 July 2024 / Published: 22 July 2024
(This article belongs to the Section Building Structures)

Abstract

The prevalence of elevated reinforced concrete tanks is widespread across Italian water distribution networks, particularly in flat or low-relief areas. Primarily constructed by the late 1970s, these tanks often suffer from outdated hydraulic efficiency, unable to cope with the increasing urban water demands. With rising construction costs, the economic advantage has shifted toward underground tanks, leading to the decommissioning of many elevated tanks. Despite being obsolete, elevated tanks from the 1960s and 1970s still stand in densely urbanized regions. However, demolishing them may prove less cost-effective than retrofitting to restore their original structural capacity. The widespread presence of these structures, coupled with their susceptibility to decay from weathering and poor maintenance, necessitates a comprehensive assessment of their resilience against gravitational and lateral forces, including seismic activity. Consequently, there is a pressing need to develop an analysis and verification methodology, particularly focused on seismic resilience, tailored to existing elevated tanks. These structures, distinct from conventional reinforced concrete frames, are primarily designed to withstand vertical forces, emphasizing the importance of optimizing material usage in their retrofitting efforts.

1. Introduction

Elevated reinforced concrete tanks are critical infrastructure elements used for water storage, fire suppression, and other essential services. Due to their elevated structure and the dynamic nature of the stored liquid, these tanks are particularly vulnerable to seismic events [1]. Therefore, ensuring their seismic resilience [2,3,4] through strengthening techniques is crucial for safeguarding public safety and infrastructure functionality.
The significance of elevated tanks in past seismic events becomes apparent when considering the diverse range of damage they have sustained. These incidents have affected various structural types, including steel frameworks, reinforced concrete constructions, and precast materials, with the majority of issues originating from problems associated with the supporting structure. Notable instances of damage [5,6,7,8,9,10,11] encompass seismic events such as the Kern County earthquake in California on 21 July 1952, the devastating Chile earthquake of 22 May 1960, which caused widespread destruction, and the El Asnam earthquake in Algeria on 10 October 1980. Additionally, earthquakes like the Bihar–Nepal earthquake of 21 August 1988, the Jabalpur earthquake in the Indian state of Madhya Pradesh on 22 May 1997, and the Bhuj earthquake in Gujarat, India, on 26 January 2001 further illustrate the vulnerabilities of elevated tanks to seismic forces. More recent seismic events, including the Maule earthquake of 27 February 2010, the Van earthquake in Turkey on 23 October 2011, and the Emilia, Italy, earthquake of May 2012, have also contributed to our understanding of the complex dynamics at play [12,13,14].
This varied performance underscores the multifaceted behavior attributed to the interaction between two primary components: the tank containing the liquid and its supporting structure. While it is undeniable that some elevated tanks have suffered damage in past seismic events, it is crucial to note that the majority of this damage has been localized in the supporting structures. This pattern of damage underscores the urgent need for comprehensive structural assessments that thoroughly evaluate the current condition and vulnerabilities of these support systems. Furthermore, it highlights the importance of implementing targeted retrofitting measures designed to enhance seismic resilience. Such measures may include strengthening connections, upgrading materials, and improving the overall design to better absorb and dissipate seismic energy, thereby ensuring the integrity and functionality of the tanks during and after an earthquake. By addressing these critical areas, we can significantly reduce the risk of structural failure and improve the safety and reliability of elevated tanks in seismic regions.
The complexities inherent in structural design and modeling present formidable obstacles, captivating researchers within the field of structural analysis. In civil engineering, elevated tanks offer a diverse range of configurations, affording adaptability to meet various needs. These configurations broadly fall into three categories: frame-elevated tanks, axisymmetrical pedestal elevated tanks, and composite elevated tanks. In this research, we will focus on the first category of frame-elevated tanks.
Numerous studies have sought to develop simplified methods for estimating seismic hazards associated with elevated tanks. However, these studies often discuss three main idealized models, each with its own set of simplifications [15,16,17,18,19,20,21,22,23,24,25]:
  • The single lumped-mass model treats the elevated tank as a single-degree-of-freedom system. This approach is applicable primarily to closed tanks that are either fully filled with water, thus preventing vertical motion of water sloshing [26], or completely empty. It is noteworthy that this assumption holds true for long and slender tank containers with a height-to-radius ratio ( H R ) of 4 or greater, as specified in Clause 14.4.7.5.1 of FEMA 450 [15,27];
  • The two-mass uncoupled model assumes two masses operate independently, estimating earthquake forces on the support using two separate single-degree-of-freedom systems. A more satisfactory alternative to the single-mass lumped model is the two-mass model proposed by Housner [28] and incorporated into various seismic design codes, including Clause C3.11 of NZSEE-09 [29], Clause A.6 of EC8-4 [30], and Clause 4.2.2.4 of IITK-GSDMA 2007 [31]. However, a drawback of this approach is that it assumes the two masses to be uncoupled. It estimates earthquake forces on the support by treating them as two separate single-degree-of-freedom systems;
  • The two-mass coupled model explicitly considers the dynamic interaction between the masses using a spring model to establish the relationship between them. The method proposed in [32] seeks to improve upon the second approach by coupling the masses, thus addressing the limitation of the uncoupled assumption in the two-mass model.
Given the constraints of the two primary methodologies, we opt for a hybrid approach, combining the third model with response spectrum analysis and advanced nonlinear techniques. This integrated strategy allows for a more comprehensive understanding of the structural behavior under seismic loading, overcoming the limitations of individual methods and providing a more accurate assessment of the system’s response. Compared to the existing scientific literature on the topic, which we have exhaustively described above and which primarily focuses on isolated aspects of the problem, our research introduces a novel methodology. We employ a hybrid approach that combines a two-mass coupled model with both linear and advanced nonlinear time–history analyses. This approach represents a significant advancement in the scientific literature, as it allows for a more comprehensive evaluation of ductility and strength demands—key parameters in assessing the seismic vulnerability of elevated reinforced concrete tanks. By utilizing a nonlinear approach, we can more accurately capture the complex behaviors of these structures under seismic loading, thereby providing a more robust framework for their design and retrofitting.

2. Insights Into Elevated Tank Condition: Case Study Comparisons

The two case studies under consideration involve existing elevated tanks featuring a reinforced concrete supporting frame structure, notable for their considerable degradation. These tanks vary in their capacity for containment; the smaller tank (depicted in Figure 1a), situated in Northern Italy, holds 30 m3, whereas the larger tank (depicted in Figure 1b), with a capacity of 130 m3, was erected in the same municipality located in the same district but several kilometers apart from the former. These two examples serve as typical representations of the numerous tanks prevalent in the flat regions across the national landscape, owing to the robust standardization of this structural type.
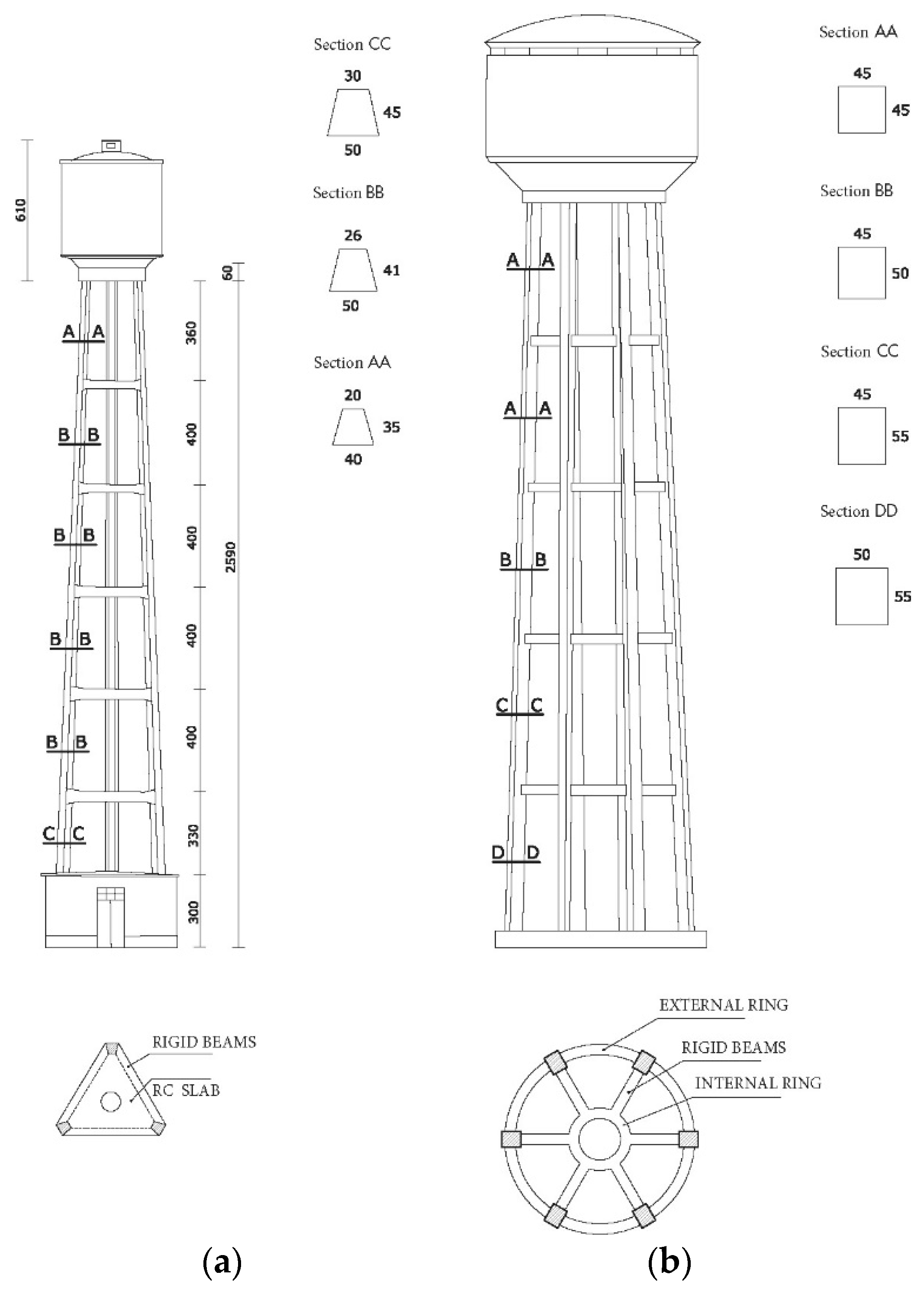
The 30 m3 tank comprises a cylindrical enclosure with an equivalent diameter, determined by the diameters of its internal and external cylindrical walls, measuring 2.7 m. Within the tank, the height of the free surface can reach approximately 4 m. This cylindrical containment is capped by a shallow spherical dome and is upheld by a reinforced concrete stiffening ring, boasting a cross-section of 35 × 60 cm and a radius of 1.1 m. Supporting the reinforced concrete cylindrical tank is a framework elevated structure sporting a triangular cross-section inscribed within a circle with a radius of 2.3 m at its base, extending 26 m above the ground. The primary load-bearing frame comprises three inclined reinforced concrete columns with a trapezoidal cross-section varying along the height, as drawn in Figure 2a. The columns are interconnected vertically by beams featuring a rectangular cross-section of 30 × 40 cm alongside reinforced concrete slabs, each with a thickness of 12 cm, positioned at an inter-axis distance of roughly 4 m. As illustrated in Figure 2a, the dimensions of the trapezoidal cross-section of the columns diminish with increasing height.
The tank, with a capacity of 130 m3, rises to a height above ground slightly greater than that of the 30 m3 tank, measuring 29.6 m. The cylindrical containment positioned at the top has an equivalent diameter of 5.76 m and is supported by a rectangular section stiffening ring with a diameter of 4.2 m and dimensions of 45 × 60 cm. The supporting reinforced concrete frame features a hexagonal base and consists of six columns connected along the height at four levels by a system of rings and stiffening beams. An outer ring connects the six columns, which are linked to a second inner ring by six diametrical stiffening beams (see Figure 2b). Both the rings and beams have a rectangular cross-section, measuring 30 × 65 cm at the first level and 30 × 50 cm at all higher levels. The columns have rectangular sections with varying dimensions along the height, as depicted in Figure 2b.
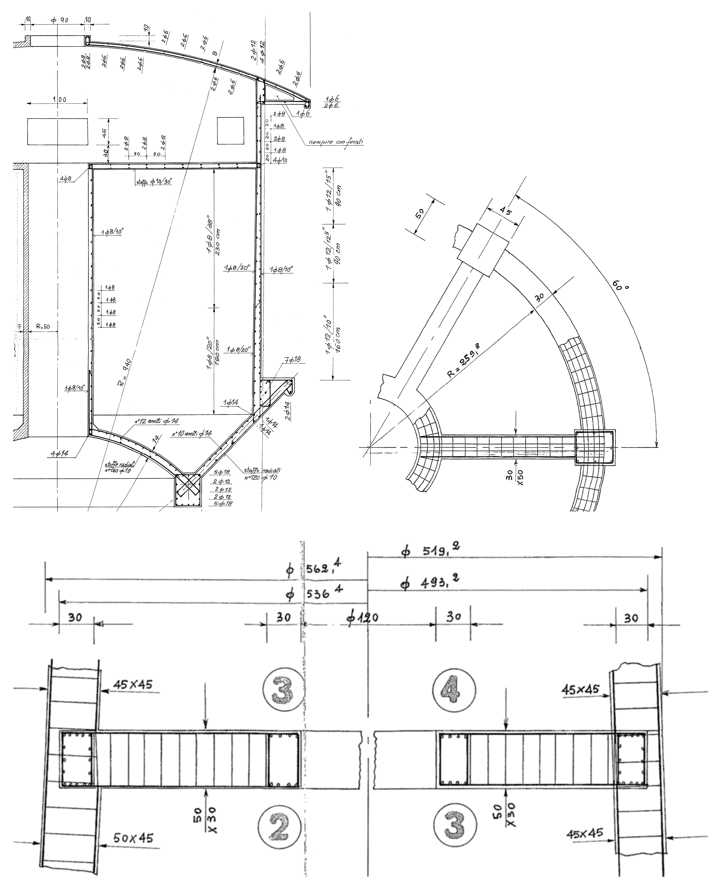
Upon examining the original drawings and project documents, it becomes apparent that the design of the two existing tanks (the 30 m3 tank from 1970 and the 130 m3 tank from 1966) focused solely on vertical gravity load and horizontal uniform wind effects, lacking specific seismic criteria while prioritizing material efficiency. A closer look at the detailed plans and drawings (refer to Figure 3) reveals intricate geometries for both the structural elements and their reinforcing network, alongside notably thinner structural components than typical for new reinforced concrete structures.
Based on the drawings and the project documents at hand, the structural weights of the containment structure alone, denoted as W c , the supporting structural frame, designated as W p , and the water volume, represented by W , have been assessed for both analyzed tanks (see Table 1).
The initial assumption regarding the mechanical properties of the materials relied on typical values consistent with construction practices of the 1970s. Subsequently, these assumptions were rigorously validated through a series of in situ tests, which included a combination of sclerometer–ultrasonic examinations for concrete integrity assessment, along with tensile testing conducted on bar samples. These comprehensive tests were carried out to ensure the accuracy and reliability of the material properties used in the analysis.
The surveys conducted on both structures have unveiled a notable degree of deterioration primarily linked to the prolonged exposure of the support frames to environmental elements. In both cases, extensive areas display concrete cover spalling, leading to the exposure of steel reinforcement bars, some of which exhibit partial corrosion. Notably, at critical nodal points, both column and beam reinforcement bars are conspicuously visible across significant areas, with instances where overlaps are compromised due to the detachment of the concrete cover, resulting in a diminished steel–concrete bond (refer to Figure 4a,d). Furthermore, the reinforced concrete slabs of the 30 m3 tank show severe damage along the lower edges, particularly near openings, attributed to environmental factors and reduced cover thicknesses (see Figure 4c). Importantly, the observed state of deterioration has facilitated the validation of reinforcement arrangements and drawings outlined in the available project documentation (see Figure 4b).
The availability of project records for both structures, especially the original detailed drawings, coupled with the experimental investigation campaign, enables compliance with the codes and guidelines outlined in the Italian Technical Standards for Construction [33]. This facilitates the assessment of structural knowledge to a designated level, denoted as LC2.
To provide a clear and comprehensive overview of the flowchart of analyses, verification processes, and comparisons involved in optimizing the assessment of two elevated reinforced concrete tanks, the following detailed procedure is presented. This method, fully reproducible with various applications and software other than those utilized in this study, encompasses the following steps:
Step 1: Real Case Studies Considered. This research begins with employing a two-mass coupled model as a simplified approach to provide preliminary hand-made design checks for two real case studies of elevated reinforced concrete tanks;
Step 2: Calculation of Key Quantities. Calculate the main quantities involved in the two-mass coupled model approach, including the slenderness ratio H R , impulsive and convective masses ( m i , m c ), impulsive and convective heights ( h i , h c ), seismic inputs such as spectra and accelerograms, periods of vibration, and bending and shear forces;
Step 3: Dynamic Analysis Using Linear Modal Response Spectra. Utilizing the quantities evaluated in Steps 1 and 2, perform a dynamic analysis on the two elevated tanks using a linear modal response spectra analysis. Introduce four seismic zones and five soil categories to compare the performance of the tanks under different conditions;
Step 4: Application of Nonlinear Time–History Analysis. In the real-world scenario of earthquake engineering, a nonlinear approach is essential. Therefore, apply a time–history analysis to the elevated tank cases to evaluate the dissipative capabilities of the designed structures;
Step 5: Comparison of Results. Compare the results obtained from Steps 2 to 4, including the outcomes from the simplified two-mass coupled model approach, to provide a comprehensive evaluation of the performance and resilience of the tanks.

3. Seismic Input

The assessment and validation of the supporting structures for the two tanks involved an analysis of four distinct levels of seismic activity. Each level considered the five stratigraphic categories specified in [33] to evaluate their vulnerability, accounting for both seismic hazard and main soil characteristics. Consequently, these structures are not only treated as specific case studies for their individual locations but also as indicative of a significant portion of the national landscape.
Seismic action was determined at the life safety limit state, considering a return period of 475 years. Unlike previous regulations that defined seismic zones, [33] defines seismic hazard based on the specific construction site. Thus, four municipalities were chosen based on their peak ground accelerations on rigid soil and in free-field conditions, aligning with the criteria established in Italian regulations for seismic zoning. Table 2 provides details of the selected municipalities and their corresponding accelerations, as per the current seismic zoning outlined in [33]. For illustration, Figure 5 presents the elastic response spectra for the highest seismicity zone considered in this study.

4. Elastic Linear Analysis: Analytical Method

The response to horizontal actions induced by seismic events was evaluated for both structures through linear analyses. Particular emphasis was placed on accurately modeling the dynamic behavior of water within the containment tanks. Initially, a simplified analytical approach was employed, treating the structure as a basic two-degrees-of-freedom coupled system. Subsequently, more detailed three-dimensional finite element modeling was employed to develop modal response spectra dynamic analyses. The dynamic behavior of both elevated and ground-level tanks containing free liquid is influenced by the phenomenon known as “sloshing” [26,34,35]. Under lateral dynamic excitation, the interaction between the fluid and the containment structure results in the vertical translation of a portion of the fluid near the free surface and the development of waves characterized by high frequencies (very long periods of vibration up to 10 sec in some cases). Depending on the ratio of the free surface height to the radius of the containment tank (slenderness ratio), H / R , it is possible to determine the mass portion of liquid that moves rigidly with the tank (impulsive component) and the portion that forms a convective wave (convective component). The portion of the mass subject to sloshing is more significant when the H / R ratio is smaller (squat tanks).
The simplified analytical method employed for elevated tanks with rigid walls, as described in [1], involves idealizing the structure using a two-degrees-of-freedom system with coupled masses (see Figure 6). The first mass, m 1 , represents the convective mass portion and is connected to the second mass, m 0 + Δ m , via a stiffness element k c 1 , determined based on the period of the first sloshing mode (first convective period). The second mass consists of the mass of the liquid that moves with the structure, m 0 (as impulsive mass), and the mass of the containment structure combined with a portion of the support frame mass, Δ m . It was reasonably assumed in the analyses that two-thirds of the support structure’s mass participated in the impulsive response, as suggested in [36].
The two-mass system of the model is positioned atop a stiffness element equal to the horizontal resistance offered by the support structure, k s , constrained at the base (see Figure 6). The stiffness of the substructure was evaluated for both tanks, adopting a model similar to a cantilever loaded transversely at the free end, aligning with the center of gravity of the impulsive liquid mass. The moment of inertia of the equivalent cantilever was determined by considering the cross-section at half the height of the reinforced concrete frame.
The distribution of impulsive m 0 and convective m 1 liquid masses was calculated according to the geometry of the containment structure, employing the formulas outlined in the American guidelines for cylindrical reinforced concrete tanks, as specified in ACI 350.3-06 [37]. The ratio of the impulsive mass is as follows:
m 0 m = tanh 3 R H 3 R H
and the ratio of the convective mass is as follows:
m 1 m = 1 4 27 8 R H t a n h 27 8 H R
The guidelines [37] also offer equations for identifying the location to concentrate both the impulsive and convective masses originating from the bottom of the tank. This information is vital for establishing the model accurately:
h 0 H = 0.5 0.094 D H         if         D H < 1.33
h 0 H = 3 8         if         D H 1.33
h 1 H = 1 c o s h 27 8 H R 1 27 8 H R s i n h 27 8 H R
The stiffness of the element, employed to reproduce the dynamic response of the fluid segment engaged in convective motion, is determined by considering the mass fraction m 1 and the period of the initial sloshing mode, T 1 , as indicated below:
k c 1 = ω c 1 2   m 1 = 4 π 2 m 1 T 1 2
where the period of the first convective T 1 vibrating mode is assessed based on the geometric characteristics of the tank, as outlined in [30]:
T 1 = 2 π R g 1.841 tanh 1.841 H R
Table 3 presents the parameters required for defining the simplified models corresponding to the two analyzed elevated tanks.
The model enables an initial estimation of the base shear on the support structure through a modal analysis, considering only two modes of vibration (see Figure 7). The natural frequencies corresponding to these two modes of oscillation can be determined using the following equation:
ω n 2 = 1 2 k s + k c 1 m 0 + Δ m + k c 1 m c 1 ± k s + k c 1 m 0 + Δ m k c 1 m c 1 2 + 4 k c 1 2 m 0 + Δ m m c 1
Considering the dynamic attributes of the equivalent mechanical and analytical system, a linear analysis with a response spectrum can be executed in the next section. To address the limited dissipative capabilities associated with fluid motion, a viscous damping of 0.5% is assumed for the mode linked to the sloshing phenomenon, characterized by a longer vibration period. Conversely, for the second mode, which corresponds to the vibration of the support structure, a damping ratio of 5% is applied, a conventional value for reinforced concrete structures [1].
Employing the simplified method facilitated the estimation of base shear values for the two elevated tanks across various levels of seismic activity. Illustrated in Figure 8 are the observed base shear values derived from the analyses, normalized relative to the weight of the structure under full-tank load conditions (as detailed in Table 1) and varying with the intensity of seismic activity and soil category. Notably, the seismic coefficients obtained for both structures exhibit minor differences across configurations. However, significant variations are notable in the highest seismicity zone (SZ 1), where the tank with greater volume demonstrates considerably higher mass multipliers compared to its smaller counterpart. The base shear estimations, derived through the simplified method, will be cross-referenced with outcomes from modal analyses employing response spectrum on finite element models. These models are capable of providing a more precise representation of the support structures’ behavior.

5. Elastic Linear Analysis: Modal Response Spectrum

The analysis and verification of the two elevated tanks were carried out using linear analyses, incorporating modal dynamic properties with a response spectrum approach adjusted by the structural factor, q , as prescribed in the national regulatory standards for existing buildings in seismic zones [33]. These analyses were conducted through finite element models created with SAP2000 [38]. These models were specifically designed to capture the dynamic response of the fluid within the tanks (sloshing component), using a simplified system of concentrated masses and springs meticulously tuned to replicate the sloshing phenomenon.
The analysis of the two structures was conducted considering two configurations: one with the tank at full capacity and the other in an empty condition, aiming to identify the most critical scenario for verifying the various components of the reinforced concrete supporting frames. Three-dimensional models of the tanks were developed to accurately represent the complex geometry of the support structures. Columns, bracing beams, and reinforced concrete rings were idealized using one-dimensional beam elements, while the curvature of the rings was replicated through a sufficient discretization of linear elements. The geometry of the models was defined to faithfully reproduce the inclination of the columns relative to the vertical axis and the correct radial orientation of the cross-sections. The secant flexural stiffness of the elements comprising the frames was reduced by 50% to represent their behavior after yielding. The state of degradation of the support structures was not considered in the development of the numerical models, as it is assumed that the parts of concrete spalled off will be restored and any steel components affected by oxidation compensated for, measures necessary to prevent further deterioration of the mechanical properties of the structural elements. The walls of the cylindrical tanks were idealized using two-dimensional shell elements, and the dynamic behavior of the water inside them was represented according to the model described for the analytical method. This involved utilizing two concentrated masses, impulsive ( m 0 ) and convective ( m c 1 ), connected to the tank walls at predetermined elevations as evaluated by Equations (3)–(5). The impulsive concentrated mass was connected to the tank walls using rigid “link” elements, while the convective mass was connected through a system of radial elastic “spring” elements, with a sufficient number to reproduce the stiffness associated with the first sloshing mode in any diametrical direction. The elastic “spring” elements connecting the convective mass to the tank walls are equipped solely with axial stiffness, which is defined so that in all radial directions, it provides a stiffness equal to that associated with the first convective mode, k c 1 , of the theoretical model. The stiffness in each diametrical direction is equal to the sum of the stiffness components of the individual elastic “spring” elements in that direction; therefore, the stiffness value assigned to the individual elements, k , is determined assuming that all link elements have the same stiffness (see Figure 9). In the analysis of the tanks, only dead loads were considered, in addition to those induced by seismic action, as outlined in [33]. These seismic loads were defined based on the tank’s filling condition under consideration.
The verification of individual elements of the support trusses was conducted in terms of forces, following the guidelines outlined in [33] for modal analyses with a reduced response spectrum factor. The assessment of structural response focused on the support structure, considering failure mechanisms such as flexure and shear for beams, and combined bending and axial compression for columns. The outcomes of the verifications conducted for the 30 m3 and 130 m3 capacity tanks are summarized in Figure 10 for both considered loading configurations (full and empty tank) concerning the seismic zone (four zones) and subsoil category (five classes). The beam verifications were performed for flexure and shear, while the column checks involved combined bending and axial compression. The results of the verifications are indicated by numerical indices (explained in Figure 10). For the smaller volume tank, all verifications were satisfied only in areas with low seismic activity and sufficiently rigid stratigraphy (A and B). Comparing the results obtained for the two assumed loading configurations. It is noteworthy that the verifications of the beams were more demanding under full load. Conversely, for the absence of water, the checks on the columns were less stringent due to the reduction or elimination of axial load, resulting in diminished or nullified flexural strength. However, the limited capacity of the 30 m3 tank led to minor variations in the verification outcomes between the two considered loading configurations.
Figure 11 shows the results of the bending and shear verification of the stiffening beams at various levels along the height of the support structure (from P1 to P6 for the 30 m3 tank structure, Figure 3a, from P1 to P4 for the 130 m3 tank structure, Figure 3b). The results are provided for different soil stratigraphic classes in the highest seismicity zone only. It can be observed that the ratios between demand and capacity obtained for the shear checks are significantly lower when compared to those for bending checks. Overall, a hierarchy was found among all elements between ductile bending mechanisms and brittle shear mechanisms, mainly attributed to material optimization sought during the design phase. The checks were generally less demanding for the larger tank compared to the 30 m3 capacity tank. The differences between the two assumed tank loading conditions appeared more pronounced due to the varying ratio between structural weights and those associated with the presence of fluid. The beams exhibit the greatest criticality when the containment tank is fully filled, whereas the bending checks of the columns are more severe in the empty configuration, consistent with previous observations. The detailed checks of the radial stiffening beams at different levels of the support structure (Figure 11b,d) demonstrate that the shear checks are always satisfied, unlike the flexural checks. However, it is noteworthy that the demand-to-capacity ratio is approximately halved compared to what was observed for the smaller capacity tank.
Figure 12 represents the ratio between the base shear observed in numerical analyses and that predicted by the simplified analytical method, assuming full-load conditions for the 30 m3 and 130 m3 tanks, respectively. It is evident that for the smaller volume tank, the observed values are in suitable agreement with each other, unlike those for the larger tank. The analytical method consistently provides conservative results compared to the analyses conducted with finite element models. The discrepancies observed for the larger tank can be attributed to the definition of the substructure stiffness. In fact, the lateral stiffness of the support frame evaluated with the numerical model, which considers a 50% reduction in the flexural stiffness (secant stiffness) of the elements, is approximately 3500 kN/m, representing a reduction of more than 50% compared to what is expected for the analytical model. This reduction in stiffness implies an elongation of the period of vibration of the impulsive mode, resulting in a decrease in the inertial forces acting on the structure and the base shear.

6. Nonlinear Analysis

The two elevated tanks were further evaluated for lateral forces using nonlinear static analyses. This was performed to validate the assumptions made in the linear analysis regarding their dissipative capacities (using a structural factor q = 1.5 ) and to determine their response in terms of displacements and forces in the nonlinear range. The pushover analyses were conducted using the Seismostruct finite element software [39], which was used to create three-dimensional models of the supporting reinforced concrete trusses only (Figure 13). The support structures were modeled using one-dimensional elements with distributed plasticity [40,41]. Force-based element formulation was preferred over displacement-based formulation to reduce the discretization of elements that have a uniform reinforcement layout along their entire length, thereby increasing the speed of the analysis [42]. Fiber modeling of the elements involves defining the nonlinear relationships of the materials composing the elements. For concrete, the model proposed in [43] by Mander et al. was chosen, while the behavior of the steel reinforcement bars was idealized using a bilinear model. Material properties were defined based on average values of strength and stiffness as specified in the national standards [33].
The definition of the gravitational loads acting on the two support structures was performed considering the two tank-filling configurations already described for the linear analyses. Given the presence of a significant concentrated mass at the top of the structures, the analyses accounted for both material and geometric nonlinearity to capture any potential second-order effects. In accordance with [33], two distributions of lateral forces were assumed for the analyses: one proportional to the product of masses and displacements associated with the first mode of vibration and one proportional solely to the masses. In defining the first distribution, the modal shape was determined by assuming that the entire liquid mass within the containment structures moves rigidly with the support frame, thereby neglecting the sloshing motion. This sloshing phenomenon would naturally require the use of multimodal formulations for the analyses. The presence of a large mass at the top of the support structures effectively results in a force distribution proportional to the first mode, which can be approximated as a single concentrated force applied at the centroid of the liquid mass. The analyses were displacement-controlled, with the control node defined at a point at the top of the support structures.
For the assessment of the seismic response of existing reinforced concrete buildings using nonlinear static analyses, the evaluations of ductile mechanisms were conducted in terms of deformations, while those of brittle mechanisms were conducted in terms of forces. The capacities associated with ductile mechanisms in bending and combined bending–compression were determined in terms of chord rotations. The empirical expression for chord rotation capacity at flexural failure is based on cycling load results and developed on the basis of statistical methods:
θ u = 1 γ e l 0.016 0.3 ν max 0.01 ; ω ' max 0.01 ; ω f c C F 0.225 L s h 0.35 25 α ρ s x f y w f c
where γ e l = 1.5 for primary seismic elements; ν = N C F / A c f c , N positive for compression; ρ s x = A s x / b w s h , Asx being the transverse steel parallel to the loading direction; α = 1 s h / 2 b 0 1 s h / 2 h 0 1 b i 2 / 6 h 0 b 0 is the confinement effectiveness factor; and CF is the so-called “Confidence Factor”.
Figure 14 shows the capacity curves observed for the support structure of the smaller capacity tank, considering the variations in load distribution and filling conditions. The points where the considered limit states are reached are marked on these curves. The curves for the full-load configuration (yellow and red curves in Figure 14) exhibit post-yield behavior characterized by greater strength degradation due to second-order effects compared to those obtained under empty conditions (gray and black curves in Figure 14). The curves from analyses with the mass-proportional force distribution show base shear resistance values 20% to 40% higher than those observed with the first-mode proportional distribution despite the significant mass concentration at the top of the support structure. However, the displacement response is similar among the four curves, both in terms of entering the nonlinear range and the identified limit states. The hierarchy of resistances observed in linear analyses between bending mechanisms and shear mechanisms was confirmed in the nonlinear analyses. The shear capacity of the elements was always reached after the bending failure of the elements. However, it is important to note that checks for unconfined nodes always fail for displacements less than the yield point, severely limiting the potential ductile response of the support frame related to the existing hierarchy between bending and shear mechanisms. This observation suggests that preventing node failures is a valid reinforcement strategy for the structures, which would result in significantly less brittle behavior.
The capacity curves obtained from the analyses for the support structure of the 130 m3 tank (Figure 15) show that due to the greater load at the top, resulting from the presence of water in the tank, the strength degradation is more significant (yellow and red curves in Figure 15) compared to the smaller tank. The increase in resistance of the reinforced concrete frame when assuming a mass-proportional force distribution in the analysis, as opposed to one proportional to the first modal shape, is also confirmed in this case and is approximately 30%. Unlike what was observed for the smaller tank, the displacement response is influenced by the analysis assumptions, particularly by the considered force distribution. In this case, as well, all elements exhibited brittle shear failures that were always preceded by flexural collapse. However, the main critical issue for the structure remains the unsatisfactory response of the nodes, whose failure significantly precedes the onset of flexural mechanisms. It is noteworthy that the nonlinear behavior of the support structure is governed by the P-Δ effect, which leads to the attainment of the ductile collapse limit state at lower global displacement levels when the tank is fully filled.
The verification of the support structures was conducted in accordance with the provisions of the national regulatory standards [33], comparing the displacement capacities associated with the life safety limit state with the demands corresponding to the various seismic action levels considered. To assess displacement demands, the procedure outlined in the regulations was followed: the pushover curves obtained from the analyses were idealized using equivalent bilinear curves, whose initial stiffnesses determined the periods required for evaluating displacement demands through elastic design spectra.
Comparisons between demand and capacity for the cases of full-tank load and force distribution proportional to the first modal deformation are presented in Figure 16a,b for the 30 m3 and 130 m3 tanks, respectively. The results confirm that the response of the support structures is potentially satisfactory, but the poor details of the beam–column joints compromise the structure’s verification. Additionally, it is observed that the verifications conducted for the nonlinear analyses are significantly less stringent than those for the previous linear analyses. This is partly due to the definition of a minimum structure factor, q = 1.5, and to the lesser accuracy of the linear analyses, which must be compensated by more stringent verification requirements. Through the equivalent bilinear curves obtained for the verifications, force reduction factors, R, related to reaching the life safety limit state for bending and node collapse were evaluated. For the smaller volume tank, values around R = 4 were observed for bending verifications, while those for the nodes were always unsatisfied in the linear branch of the curve. The reduction factor associated with ductile mechanisms for the 130 m3 tank varied depending on the analysis assumptions, ranging from 2 to 2.5, while that for node verifications was around R = 1.25. These observations confirm the overly conservative assumption of a structure factor q = 1.5 for the verification of ductile mechanisms in the linear range. However, they also highlight how node failures may occur before the structure exhibits dissipative behavior.
It is evident that targeted interventions to improve only the support frame nodes can enhance the overall structural response, resulting in compliance with regulatory verifications in most cases considered. It is also noted that the ductile behavior of the support frame of the larger volume tank remains limited by the P-Δ effect due to the significant volume of water present at the top.

7. Main Findings and Conclusions

Two existing reinforced concrete elevated tanks with capacities of 30 m3 and 130 m3, representing common types on a national scale, were evaluated against seismic actions using various analysis methodologies, both linear and nonlinear, in accordance with recent national regulatory references [33]. The verification of the support structures was conducted considering different seismic action levels and various stratigraphic configurations of the construction site, assuming two tank loading configurations: full load and empty. An analytical method for verification in the linear field was considered for a preliminary estimation of the base shear of the support structures, which allows for a simplified representation of the dynamic interaction of the fluid with the tank walls. The analytically obtained results were compared with those from more refined modal analyses with response spectra conducted on three-dimensional models of the support frames. A suitable agreement of results was observed for the smaller capacity tank, while significant discrepancies were found for the second tank, attributable to assumptions regarding the definition of substructure stiffness in the analytical method, which are unrealistic for a tank of considerable size. Nevertheless, it is worth noting that the method consistently yielded conservative estimates of the stress state in each case.
The development of nonlinear static analyses has revealed how the adoption of a minimum structure factor, q = 1.5, along with the use of linear analysis methods, has led to a substantial underestimation of the capacities of the support frames. Pushover analyses have also highlighted the potentially ductile behavior of the structures, limited by the fragility of the unconfined beam–column joints and, for the larger volume tank, by second-order effects (P-Δ). Specifically, for the smaller volume tank, a force reduction factor associated with reaching the life safety limit state for flexural mechanisms was observed to be around 4. The results obtained demonstrate how the use of nonlinear analyses allows for the identification of criticalities in the structures, such as the fragility of the beam–column joints, and the subsequent development of targeted intervention methodologies, resulting in overall cost savings for structural retrofitting.
The verification of the support structures against the life safety limit state for ductile mechanisms, conducted following nonlinear static analyses, was always satisfied for both analyzed tanks, regardless of the seismic action level and foundation soil characteristics. The verification against node collapse was only satisfied for the frame of the smaller tank in areas with lower seismicity (zone 3 and zone 4) when sufficiently rigid soils were present (Categories A and B). This verification was less stringent in the case of the larger volume tank, where it was only unsatisfied for high peak acceleration levels (zone 1 and zone 2) in the case of stratigraphic profiles with reduced stiffness (Categories B, C, and D).
Both linear and nonlinear analyses have highlighted the presence of a hierarchy between flexural and shear resistances, attributed not so much to seismic design principles but rather to material optimization during the project phase aimed at optimizing construction costs.
The use of nonlinear models has allowed for a better assessment of the seismic response of the structures under consideration. However, static analyses do not capture the dynamic interaction between the fluid and the structure. The analyses have highlighted the potential dissipative capacity of these structures, which is dependent on the tank containment volume. However, the definition of specific structural factors will require the analysis of additional case studies and the development of nonlinear dynamic field analyses.
It is also important to emphasize that the study focuses specifically on elevated reinforced concrete tanks built in Italy during the 1960s and 1970s. This scope may limit the generalizability of the findings to similar structures in other regions or those built with different design standards and materials. Indeed, that period of time can be considered a classical taxonomy for this type of structure in Italy. The findings can be used to develop detailed guidelines and best practices for retrofitting elevated reinforced concrete tanks to improve their seismic resilience, offering practical solutions for engineers and urban planners. Furthermore, municipalities and governmental bodies can use the study’s results to inform policy decisions regarding the maintenance, retrofitting, or decommissioning of outdated water storage infrastructure, ensuring safer urban environments. Future research should integrate more sophisticated dynamic analysis techniques to better capture the behavior of elevated tanks under varying seismic conditions, enhancing the accuracy of resilience predictions. Furthermore, expanding the study to include elevated tanks from different regions and construction periods would help validate the findings across a broader spectrum and refine the retrofitting methodologies for diverse structural scenarios.

Author Contributions

Conceptualization, R.N. and M.M.; methodology, R.N.; software, E.F.; validation, R.N. and M.M.; writing—original draft preparation, R.N.; writing—review and editing, E.F.; supervision, E.F. All authors have read and agreed to the published version of the manuscript.

Funding

This research received no external funding.

Conflicts of Interest

The authors declare no conflicts of interest.

References

  1. Calvi, G.M.; Nascimbene, R. Seismic Design and Analysis of Tanks, 1st ed.; Wiley: New York, NY, USA, 2023. [Google Scholar]
  2. Forcellini, D. Seismic resilience of bridges isolated with traditional and geotechnical seismic isolation (GSI). Bull. Earthq. Eng. 2023, 21, 3521–3535. [Google Scholar] [CrossRef]
  3. Shafieezadeh, A.; Ramanathan, K.; Padgett, J.; DesRoches, R. Fractional order intensity measures for probabilistic seismic demand modeling applied to highway bridges. Earthq. Eng. Struct. Dyn. 2012, 41, 391–409. [Google Scholar] [CrossRef]
  4. Zelaschi, C.; Monteiro, R.; Pinho, R. Critical Assessment of Intensity Measures for Seismic Response of Italian RC Bridge Portfolios. J. Earthq. Eng. 2017, 23, 980–1000. [Google Scholar] [CrossRef]
  5. Hirde, S.; Bajare, A.; Hedaoo, M. Seismic performance of elevated water tanks. Int. J. Adv. Eng. Res. Stud. 2011, 1, 78–87. [Google Scholar]
  6. Rai, D.C. Seismic retrofitting of R/C shaft support of elevated tanks. Earthq. Spectra 2002, 18, 745–760. [Google Scholar] [CrossRef]
  7. Rai, D.C. Review of code design forces for shaft supports of elevated water tanks. In Proceedings of the 12th Symposium on Earthquake Engineering, Roorkee, India, 16–18 December 2002; pp. 1407–1418. [Google Scholar]
  8. Rai, D.C. Performance of elevated tanks in Mw 7.7 Bhuj earthquake of January 26th, 2001. In Proceedings of the Indian Academy of Sciences—Earth and Planetary Sciences, Kanpur, India, 8 September 2003; Volume 112, pp. 421–429. [Google Scholar]
  9. Eidinger, J.M. Performance of water systems during the Maule Mw 8.8 earthquake of 27 February 2010. Earthq. Spectra 2012, 28, S605S620. [Google Scholar] [CrossRef]
  10. Uckan, E.; Akbas, B.; Shen, J.; Wen, R.; Turandar, K.; Erdik, M. Seismic performance of elevated steel silos during Van earthquake, October 23, 2011. Nat. Hazards 2015, 75, 265–287. [Google Scholar] [CrossRef]
  11. Soroushnia, S.; Tafreshi, T.; Omidinasab, F.; Beheshtian, N.; Soroushnia, S. Seismic Performance of RC Elevated Water Tanks with Frame Staging and Exhibition Damage Pattern. Procedia Eng. 2011, 14, 3076–3087. [Google Scholar] [CrossRef]
  12. Bozorgmehrnia, S.; Ranjbar, M.M.; Madandoust, R. Seismic Behavior Assessment of Concrete Elevated Water Tanks. J. Rehabil. Civ. Eng. 2013, 1, 69–79. [Google Scholar]
  13. Manwani, M.G.; Telang, D.P. Review on Seismic Analysis of Elevated Water Tank with Variations of H/D Ratio and Container Shape. Int. J. Comput. Sci. Mob. Comput. 2017, 6, 202–208. [Google Scholar]
  14. Brunesi, E.; Nascimbene, R.; Pagani, M.; Beilic, D. Seismic performance of storage steel tanks during the May 2012 Emilia, Italy, Earthquakes. J. Perf. Constr. Facil. 2015, 29, 04014137. [Google Scholar] [CrossRef]
  15. Moslemi, M. Seismic Response of Ground Cylindrical and Elevated Conical Reinforced Concrete Tanks. Ph.D. Thesis, Ryerson University, Toronto, ON, Canada, 2011. [Google Scholar]
  16. Chandrasekaran, A.R.; Krishna, J. Water towers in seismic zones. In Proceedings of the 3rd World Conference on Earthquake Engineering, Auckland, New Zealand, 22 January–1 February 1965; Volume IV, pp. 161–171. [Google Scholar]
  17. El Damatty, A.A.; Korol, R.M.; Mirza, F.A. Stability of elevated liquid-filled conical tanks under seismic loading. Part I—Theory. Earthq. Eng. Struct. Dyn. 1997, 26, 1191–1208. [Google Scholar] [CrossRef]
  18. El Damatty, A.A.; Korol, R.M.; Mirza, F.A. Stability of elevated liquid-filled conical tanks under seismic loading. Part II—Applications. Earthq. Eng. Struct. Dyn. 1997, 26, 1209–1229. [Google Scholar] [CrossRef]
  19. Garcia, S.M. Earthquake response analysis and aseismic design of cylindrical tanks. In Proceedings of the 4th World Conference on Earthquake Engineering, Santiago, Chile, 13–18 January 1969; Volume II, pp. B4-169–B4-182. [Google Scholar]
  20. Haroun, M.A.; Ellaithy, H.M. Seismically induced fluid forces on elevated tanks. J. Tech. Top. Civ. Eng. 1985, 111, 1–15. [Google Scholar] [CrossRef]
  21. Ifrim, M.; Bratu, C. The effect of seismic action on the dynamic behavior of elevated water tanks. In Proceedings of the 4th World Conference on Earthquake Engineering, Santiago, Chile, 13–18 January 1969; Volume II, pp. B4-127–B4-142. [Google Scholar]
  22. Moslemi, M.; Kianoush, M.R.; Pogorzelski, W. Seismic response of liquid filled elevated tanks. Eng. Struct. 2011, 33, 2074–2084. [Google Scholar] [CrossRef]
  23. Ramiah, B.K.; Gupta, D.S.R.M. Factors effecting seismic design of water towers. ASCE J. Struct. Div. 1966, 92, 13–30. [Google Scholar] [CrossRef]
  24. Shepherd, R. The two mass representation of a water tower structure. J. Sound. Vib. 1972, 23, 391–396. [Google Scholar] [CrossRef]
  25. Sweedan, A.M.I. Equivalent mechanical model for seismic forces in combined tanks subjected to vertical earthquake ex-citation. Thin-Walled Struct. 2009, 47, 942–952. [Google Scholar] [CrossRef]
  26. Ozsarac, V.; Brunesi, E.; Nascimbene, R. Earthquake-induced nonlinear sloshing response of above-ground steel tanks with damped or undamped floating roof. Soil Dyn. Earthq. Eng. 2021, 144, 106673. [Google Scholar] [CrossRef]
  27. McLean, R.S.; Moore, W.W. Computation of the vibration period of steel tank towers. Bull. Seismol. Soc. Am. 1936, 26, 63–67. [Google Scholar] [CrossRef]
  28. Housner, G.W. The dynamic behaviour of water tanks. Bull. Seismol. Soc. Am. 1963, 53, 381–387. [Google Scholar] [CrossRef]
  29. NZSEE-09; Seismic Design of Storage Tanks. Study Group on Seismic Design of Storage Tanks: Wellington, New Zealand, 2009.
  30. EN 1998-4:2006; Eurocode 8: Design of Structures for Earthquake Resistance—Part 4: Silos, Tanks and Pipelines. CEN: Brussels, Belgium, 2006.
  31. IITK-GSDMA. Gudelines for Seismic Design of Buried Pipelines; Provisions with Commentary and Explanatory Examples; Indian Institute of Technology Kanpur: Kanpur, India, 2007. [Google Scholar]
  32. United States Atomic Energy Commission. Nuclear Reactors and Earthquake; Reactor Technology TID-4500 (22nd Edition, August 1963, TID-7024); United States Atomic Energy Commission: Washington, DC, USA, 1963. [Google Scholar]
  33. NTC2018; Norme Tecniche per le Costruzioni—Decreto Ministeriale 17 Gennaio 2018. Editor GU: Roma, Italia, 2018.
  34. Kalemi, B.; Caputo, A.; Corritore, D.; Paolacci, F. A probabilistic framework for the estimation of resilience of process plants under Na-Tech seismic events. Bull. Earthq. Eng. 2024, 22, 75–106. [Google Scholar] [CrossRef]
  35. Kılıç, S.; Akbaş, B.; Shen, J.; Paolacci, F. Seismic behavior of liquid storage tanks with 2D and 3D base isolation systems. Struct. Eng. Mech. 2022, 83, 627–644. [Google Scholar]
  36. ACI 371R-16; Guide for the Analysis, Design, and Construction of Elevated Concrete and Composite Steel—Concrete Water Storage Tanks. Standard by American Concrete Institute: Farmington Hills, MI, USA, 2016.
  37. ACI 350.3-06; Seismic Design of Liquid-Containing Concrete Structures and Commentary. American Concrete Institute: Farmington Hills, MI, USA, 2006.
  38. CSI. SAP2000 Integrated Software for Structural Analysis and Design; Computers and Structures Inc.: Berkeley, CA, USA, 2024. [Google Scholar]
  39. Seismosoft. SeismoStruct—A Computer Program for Static and Dynamic Nonlinear Analysis of Framed Structures. 2024. Available online: www.seismosoft.com (accessed on 23 April 2024).
  40. Spacone, E.; Filippou, F.C.; Taucer, F.F. Fibre beam–column model for non-linear analysis of r/c frames: Part i. formulation. Earthq. Eng. Struct. D 1996, 25, 711–725. [Google Scholar] [CrossRef]
  41. Spacone, E.; Filippou, F.C.; Taucer, F.F. Fibre beam–column model for non-linear analysis of r/c frames: Part ii. applications. Earthq. Eng. Struct. D 1996, 25, 727–742. [Google Scholar] [CrossRef]
  42. Rajapakse, R.M.C.M.; Wijesundara, K.K.; Nascimbene, R.; Bandara, C.S.; Dissanayake, R. Accounting axial-moment-shear interaction for force-based fiber modeling of RC frames. Eng. Struct. 2019, 184, 15–36. [Google Scholar] [CrossRef]
  43. Mander, J.B.; Priestley, M.J.N.; Park, R. Theoretical Stress-Strain Model for Confined Concrete. J. Struct. Eng. 1988, 114, 1804–1826. [Google Scholar] [CrossRef]
Figure 1. The two case studies involve elevated reinforced concrete tanks: (a) the first features a three-column frame-supported structure with a tank capacity of 30 m3, while (b) the second comprises a structure supported by six inclined columns and has a tank capacity of 130 m3.
Figure 1. The two case studies involve elevated reinforced concrete tanks: (a) the first features a three-column frame-supported structure with a tank capacity of 30 m3, while (b) the second comprises a structure supported by six inclined columns and has a tank capacity of 130 m3.
Buildings 14 02254 g001
Figure 2. The tank elevations are as follows: (a) 30 m3 tank: elevation view at the top of the drawing (scale 1:250) and section view at the bottom (scale 1:100); (b) 130 m3 tank: elevation view (scale 1:250) and section view (scale 1:100).
Figure 2. The tank elevations are as follows: (a) 30 m3 tank: elevation view at the top of the drawing (scale 1:250) and section view at the bottom (scale 1:100); (b) 130 m3 tank: elevation view (scale 1:250) and section view (scale 1:100).
Buildings 14 02254 g002
Figure 3. Details of reinforcement steelwork: the cross-sectional view of the tank structure, beam details, and beam section are shown.
Figure 3. Details of reinforcement steelwork: the cross-sectional view of the tank structure, beam details, and beam section are shown.
Buildings 14 02254 g003
Figure 4. State of structural damage: (a) connection detail for 30 m3 tank; (b) beam conditions for 130 m3 tank; (c) slab overview for 30 m3 tank; (d) node detail for 130 m3 tank.
Figure 4. State of structural damage: (a) connection detail for 30 m3 tank; (b) beam conditions for 130 m3 tank; (c) slab overview for 30 m3 tank; (d) node detail for 130 m3 tank.
Buildings 14 02254 g004
Figure 5. Acceleration elastic design response spectra as a function of the soil category in zone 1 (SZ 1) as per Table 2.
Figure 5. Acceleration elastic design response spectra as a function of the soil category in zone 1 (SZ 1) as per Table 2.
Buildings 14 02254 g005
Figure 6. Equivalent mechanical model of the elevated tank using two-degrees-of-freedom system with coupled masses.
Figure 6. Equivalent mechanical model of the elevated tank using two-degrees-of-freedom system with coupled masses.
Buildings 14 02254 g006
Figure 7. Equivalent mechanical model of the elevated tank using two-degrees-of-freedom system with coupled masses and their corresponding mode of vibrations as per Table 3.
Figure 7. Equivalent mechanical model of the elevated tank using two-degrees-of-freedom system with coupled masses and their corresponding mode of vibrations as per Table 3.
Buildings 14 02254 g007
Figure 8. Analytical model of the elevated tank using two-degrees-of-freedom system: (a) shear at the base of the 30 m3 tank; (b) shear at the base of the 130 m3 tank. Four seismic zones and five soil categories.
Figure 8. Analytical model of the elevated tank using two-degrees-of-freedom system: (a) shear at the base of the 30 m3 tank; (b) shear at the base of the 130 m3 tank. Four seismic zones and five soil categories.
Buildings 14 02254 g008
Figure 9. The equivalent mechanical model of the tank, to be utilized in a finite element model, incorporates both impulsive and convective masses to accurately represent the fluid behavior. This model typically comprises concentrated masses and springs calibrated to mimic the sloshing phenomenon within the tank.
Figure 9. The equivalent mechanical model of the tank, to be utilized in a finite element model, incorporates both impulsive and convective masses to accurately represent the fluid behavior. This model typically comprises concentrated masses and springs calibrated to mimic the sloshing phenomenon within the tank.
Buildings 14 02254 g009
Figure 10. Verification results varying with seismic input and soil classification: (a,b) 30 m3 tank; (c,d) 130 m3 tank.
Figure 10. Verification results varying with seismic input and soil classification: (a,b) 30 m3 tank; (c,d) 130 m3 tank.
Buildings 14 02254 g010
Figure 11. Details of the verification of the stiffening beams for the 30 m3 tank (P1–P6, Figure 3a) about bending in (a) and shear in (b); details of the verification of the stiffening beams for the 130 m3 tank (P1–P4, Figure 3b) about bending in (c) and shear in (d).
Figure 11. Details of the verification of the stiffening beams for the 30 m3 tank (P1–P6, Figure 3a) about bending in (a) and shear in (b); details of the verification of the stiffening beams for the 130 m3 tank (P1–P4, Figure 3b) about bending in (c) and shear in (d).
Buildings 14 02254 g011
Figure 12. Details of the verification using the ratio between the base shear observed in numerical analyses and that predicted by the simplified analytical method for the 30 m3 tank in (a) and the 130 m3 tank in (b).
Figure 12. Details of the verification using the ratio between the base shear observed in numerical analyses and that predicted by the simplified analytical method for the 30 m3 tank in (a) and the 130 m3 tank in (b).
Buildings 14 02254 g012
Figure 13. Seismostruct finite element models [39] using fiber force elements for the 30 m3 tank in (a) and the 130 m3 tank in (b).
Figure 13. Seismostruct finite element models [39] using fiber force elements for the 30 m3 tank in (a) and the 130 m3 tank in (b).
Buildings 14 02254 g013
Figure 14. Capacity curves and corresponding limit rates for the 30 m3 tank.
Figure 14. Capacity curves and corresponding limit rates for the 30 m3 tank.
Buildings 14 02254 g014
Figure 15. Capacity curves and corresponding limit rates for the 130 m3 tank.
Figure 15. Capacity curves and corresponding limit rates for the 130 m3 tank.
Buildings 14 02254 g015
Figure 16. Displacement verification for the 30 m3 tank in (a) and the 130 m3 tank in (b).
Figure 16. Displacement verification for the 30 m3 tank in (a) and the 130 m3 tank in (b).
Buildings 14 02254 g016
Table 1. The structural weights of the containment structure ( W c ), the supporting frame ( W p ), and the water volume ( W ), with W tot representing the total final value.
Table 1. The structural weights of the containment structure ( W c ), the supporting frame ( W p ), and the water volume ( W ), with W tot representing the total final value.
Load30 m3130 m3
Wc286905
Wp5621620
W2941275
Wtot11423800
Table 2. Seismic input parameters utilized for the input of the model of the two tanks.
Table 2. Seismic input parameters utilized for the input of the model of the two tanks.
Seismic Zone (SZ)City a g [g]
1Norcia0.255
2Macerata0.177
3Bergamo0.110
4Pavia0.070
Table 3. Parameters of the equivalent mechanical model applied to the two-degrees-of-freedom system with coupled masses.
Table 3. Parameters of the equivalent mechanical model applied to the two-degrees-of-freedom system with coupled masses.
Parameter30 m3130 m3
D H 0.671.74
m 0 [ton]25.580
m 1 [ton]4.550
Δ m [ton]67.3202.3
k s [kN/m]25458300
T 1 [sec]1.722.55
k c 1 [kN/m]61.5310
Disclaimer/Publisher’s Note: The statements, opinions and data contained in all publications are solely those of the individual author(s) and contributor(s) and not of MDPI and/or the editor(s). MDPI and/or the editor(s) disclaim responsibility for any injury to people or property resulting from any ideas, methods, instructions or products referred to in the content.

Share and Cite

MDPI and ACS Style

Nascimbene, R.; Fagà, E.; Moratti, M. Seismic Strengthening of Elevated Reinforced Concrete Tanks: Analytical Framework and Validation Techniques. Buildings 2024, 14, 2254. https://doi.org/10.3390/buildings14072254

AMA Style

Nascimbene R, Fagà E, Moratti M. Seismic Strengthening of Elevated Reinforced Concrete Tanks: Analytical Framework and Validation Techniques. Buildings. 2024; 14(7):2254. https://doi.org/10.3390/buildings14072254

Chicago/Turabian Style

Nascimbene, Roberto, Ettore Fagà, and Matteo Moratti. 2024. "Seismic Strengthening of Elevated Reinforced Concrete Tanks: Analytical Framework and Validation Techniques" Buildings 14, no. 7: 2254. https://doi.org/10.3390/buildings14072254

APA Style

Nascimbene, R., Fagà, E., & Moratti, M. (2024). Seismic Strengthening of Elevated Reinforced Concrete Tanks: Analytical Framework and Validation Techniques. Buildings, 14(7), 2254. https://doi.org/10.3390/buildings14072254

Note that from the first issue of 2016, this journal uses article numbers instead of page numbers. See further details here.

Article Metrics

Back to TopTop