Next Article in Journal
Exploring the Impact of Urban Morphology on Building Energy Consumption and Outdoor Comfort: A Comparative Study in Hot-Humid Climates
Next Article in Special Issue
Study on the Effect of Natural Wind on the Smoke Spread Law of Extra-Long Tunnel Fires with Inclined Shafts for Air Supply and Exhaust
Previous Article in Journal
Assessing Traffic Noise and Its Impact on High-Rise Apartment Buildings Adjacent to an Urban Expressway: A Case Study in Chengdu, China
Previous Article in Special Issue
Mechanical Response and Stability Optimization of Shallow-Buried Tunnel Excavation Method Conversion Process Based on Numerical Investigation
 
 
Font Type:
Arial Georgia Verdana
Font Size:
Aa Aa Aa
Line Spacing:
Column Width:
Background:
Technical Note

Innovative Approaches and Challenges in the Demolition of Large-Span Post-Tensioned Beams: Insights from a Case Study

by
Mohammad Jonaidi
1,*,
Adam Kaplan
1 and
Ali Keyvanfar
2
1
Department of Civil and Environmental Engineering, Kennesaw State University, Marietta, GA 30060, USA
2
Department of Construction Management, Kennesaw State University, Marietta, GA 30060, USA
*
Author to whom correspondence should be addressed.
Buildings 2024, 14(5), 1380; https://doi.org/10.3390/buildings14051380
Submission received: 11 April 2024 / Revised: 5 May 2024 / Accepted: 7 May 2024 / Published: 11 May 2024

Abstract

Large-span, post-tensioned (PT) beams play a crucial role in maximizing the benefits of post-tensioning techniques. Bonded and unbonded systems are prevalent, with the latter being more widespread in the United States. While bonded systems are advantageous for creating long spans when multiple tendons are grouped in ducts, limited studies in the literature exist on their demolition. With a case study, this paper addresses the unique challenge of demolishing large-span-bonded, post-tensioned beams that occurs due to a building’s functional change. Emphasizing insights for engineers, it explores the use of cutting and dismantling methods, thereby considering the presence of prestressed cables. The demolition process is distinctive due to the presence of numerous prestressed cables along the beams, necessitating a specialized and cautious cutting approach. This is accomplished through the use of a drilling technique that selectively distresses the tendons, ensuring they are not all affected simultaneously. An intriguing observation discussed in this paper pertains to the occurrence of horizontal cracks accompanied by loud sounds following the drilling process, thereby offering insights from the design perspective of PT systems. This paper details an innovative method for safely demolishing large-span, bonded PT beams using ground-penetrating radar and computer models to navigate structural complexities and ensure nearby structures’ safety.

1. Introduction and Literature Review

The prestress technique in concrete involves applying forces to the concrete before subjecting it to loads, which enhances its load-bearing capacity and minimizes tensile stresses, thus improving structural performance and durability. The technique is widely used in large-span concrete beams and girders in bridges and buildings. The design requires advanced analysis and involves special aspects specific to prestressing, such as prestress losses, concrete creep, and heavy-traffic loadings. Although these aspects have been considered for decades, new research has advanced the understanding of these factors. Bonopera M. et al. [1] thoroughly examined the influence of prestress force on the fundamental frequency and static deflection shape of uncracked prestressed concrete (PC) beams with a parabolic bonded tendon (see Appendix A). Meng Q. et al. [2] considered the dynamic effects of loading to investigate the cyclic creep resulting from increasing heavy traffic, and they concluded that the fatigue creep from heavy trucks plays a significant role, which leads to a continuous deflection and cracking of box girders in bridges.
On the other hand, the demolition of PC beams presents an intriguing subject that demands particular scrutiny and serves as the focal point of inquiry in this paper. In a demolition project involving post-tensioned or prestressed concrete beams, engineers must prioritize several key factors. Safety is predominant, requiring the implementation of appropriate safety measures for workers and the public, including protective gear, safety barriers, and thorough training. Structural integrity poses a significant challenge due to the high-tension forces within the beams, thus necessitating careful analysis and a demolition plan to mitigate the risk of collapse. Environmental impact must also be considered, with measures taken to address hazardous materials and ensure proper waste disposal. Cost-effective planning is crucial, as special equipment and techniques may be necessary, while adherence to a realistic schedule helps minimize disruption to the local community. Additionally, engineers should prioritize sustainability, striving to reduce waste through recycling or repurposing materials. In summary, a comprehensive approach considering safety, structural integrity, environmental impact, cost, schedule, and sustainability is essential for the successful completion of such demolition projects, thereby mitigating risk and minimizing impact.
The demolition industry has two main resources available to support the safe and efficient demolition of structures: Occupational Safety and Health Administration (OSHA) 1926 Subpart T–Demolition [3] and The Demolition Manual by National Demolition Association (NDA) Safety & Health Resources [4]. By leveraging these resources, industry professionals can stay up to date on industry trends and best practices, and they can ensure that they have the knowledge and tools they need to complete demolition projects successfully. Safe Work Australia, an Australian Government statutory agency, has issued the “Demolition Work, Code of Practice” [5] to regulate the demolition of structures. This document offers only brief recommendations for the demolition of both pre- and post-tensioned concrete.
OSHA has regulations and guidelines related to the demolition of prestressed concrete structures. OSHA’s Construction Standard for Demolition [3] requires that employers develop a written demolition plan that includes the methods and procedures to be used to remove concrete, including prestressed concrete. The plan must be developed by a qualified engineer or competent person with experience in demolition. The standard also requires that prestressed concrete be identified and evaluated prior to demolition. Employers must ensure that the demolition methods used do not create hazardous conditions, such as sudden collapses due to the high-tension forces within the structure.
The Demolition Manual by the National Demolition Association (NDA) [4], which correlates with the OSHA Standard [3], provides guidance and best practices for the demolition industry. The manual covers a wide range of topics related to demolition, including safety, environmental regulations, equipment selection, project management, etc. The manual provides guidance on how to evaluate the structural integrity of prestressed concrete structures prior to demolition, as well as the appropriate methods and equipment for removing prestressed and post-tensioned concrete beams and other elements. In addition, the manual includes information on the safety considerations involved in the demolition of prestressed concrete, including the potential for sudden collapse due to the high-tension forces within the structure. In summary, engineers should pay attention to safety, structural integrity, environmental impact, cost, schedule, and sustainability in a demolition project involving post-tensioned or prestressed concrete beams. Careful planning and attention to these factors can help ensure the successful completion of the project while minimizing risk and impact.
Although the abovementioned documents provide detailed instructions, there is limited research on the study and investigation of the complex behavior of post-tensioned systems during demolition. Felstead A. E. and Lindsell P. [6] reported on the controlled demolition of a PT beam, thereby offering insights into PT beam design behavior. Notably, the beam depth in their study was 80 cm (2.6 feet), which accounts for 37% of the depth of the beams discussed in this paper. Anumba C. et al. [7] provided general information on demolition techniques, albeit without specific focus on PT concrete demolition. This paper presents a discussion of PT system design and application, which is followed by a case study description of the demolition of large PT beams. Information is provided on the concerns related to beam behavior during cutting, which will aid engineers in decision making for similar projects. Results from a computerized model are presented to analyze the stresses during beam loading, particularly for those that occur during soil removal to access the top of the beams. The demolition approach is then outlined, including the drilling technique used to carefully de-tension groups of tendons prior to the saw cutting of the beam section. The horizontal cracking in the beams during drilling is explained from a design and theoretical standpoint, thereby emphasizing the bursting effect in PT anchorage zone design.

2. Design and Application

In this specific type of concrete structure, the terms “prestressed” and “post-tensioned” are used. The distinction relates to the timing of steel tensioning prior to the application of typical external loads, such as dead load, live load, or lateral loads. The tensioned steel elements are typically high-strength steels and are commonly referred to as cables, tendons, or strands. For consistency, the term “tendon” will be used hereafter in this paper.
In prestressed concrete, the tendons are placed under tension prior to the pouring of the concrete. Typically, this is accomplished by placing steel in a mold, tensioning it, and then pouring concrete over it. Once the concrete has hardened, the tension is released, and some of the steel’s tension is transferred to the concrete in compression, which helps to counteract the tensile forces in the concrete that the beam will experience during use. The Double T beams, along with other elements of a precast parking garage, are common examples of a precast–prestressed system.
In post-tensioned concrete, tendons are placed into ducts and concrete is poured. After the concrete has hardened, hydraulic jacks are used to tension the tendons, putting the concrete into compression and the steel into tension. Therefore, the term ‘prestressed’ applies to both prestressed and post-tensioned concrete because steel tensioning occurs prior to the application of service loads in both techniques. However, in a prestressed system, the tendons are stressed prior to the casting of concrete, whereas in a post-tensioned system, the tendons are stressed after the concrete is poured. There are two distinct types of post-tensioned concrete systems: unbonded and bonded. Unbonded post-tensioning utilizes bare tendons encased in a plastic sheath, thus allowing the steel to move freely relative to the structure. To prevent corrosion and reduce friction, the steel is grease-coated. Bonded post-tensioning utilizes tendons placed within corrugated metal ducts. After stressing the tendons, cementitious grout is injected into the duct, creating a bond between the grout, tendons, and concrete.
One of the primary applications of bonded post-tensioning (PT) is found in precast and concrete girder bridges, where post-tensioning tendons are strategically positioned within the ducts embedded in the main girders. These tendons are subsequently grouted to securely bond them to the surrounding concrete, thereby enhancing the structural integrity and load-carrying capacity of the bridge. However, the demolition process for such large girders necessitates specialized considerations and techniques, which will be examined in the subsequent sections of this paper.

3. Project Description

This project was situated in the southern part of Atlanta. The objective of the demolition was to remove the below-ground, two-story building’s long-span roof while preserving the integrity of the first floor. The central plan of the building was rectangular, measuring approximately 31.7 m (104 feet) in one direction (aligned with the post-tensioned beams) and 33.5 m (110 feet) in the other direction, with four bays of 8.4 m (27.67 feet) each. Constructed in the early 1980s, the building was in relatively good condition. However, the decision to remove the roof was made to facilitate a change in the building’s function as part of a larger renovation project. A cross section of the beam is depicted in Figure 1a. The roof was covered by approximately one meter of topsoil, a layer of gravel, and a layer of grass. According to the structural drawings, the concrete strength at 28 days was 40 MPa (6000 psi). The estimated average self-weight of the roof topping was 12 kPa (250 psf). Consequently, this imposed a dead load of 97 kN/m (6667 lb/ft) on the beam. The self-weight of the T-shaped beam was approximately 52 kN/m (3560 lb/ft) when assuming a unit weight of 24 kN/m3 (150 pcf) for the reinforced concrete.
The roof system between the girders consisted of a cast-in-place concrete waffle (ribbed) system that was 71 cm (28 inches) thick, with a 11.5 cm (4.5 in) continuous slab and 46 cm-wide (18 in) ribs, thereby resulting in an average concrete thickness of 46 cm (18 inches). The distance between the edges of the adjacent T-beams was approximately 6.5 m (21.5 ft), where all were covered by the waffle slab system. The estimated average self-weight of the waffle slab was 11 kPa (225 psf), resulting in a dead load of 70.6 kN/m (4838 lb/ft) added to the self-weight of the T-beam. Therefore, the total dead load (self-weight) of concrete applied on the PT beams was 123 kN/m (8398 lb/ft). Adding the dead load from the topsoil, the total dead load became 220 kN/m (15,065 lb/ft).
A total of 160 tendons were used, and these were distributed among six ducts with a diameter of 10 cm. Figure 1b depicts the end view of the beam. The number of tendons per duct varied to ensure that the center of gravity of the tendons aligned with the centroid of the T-section. To analyze the beam’s condition at different loading stages, a computer model was created using the Ram Concept software V8i Release 5.0.1 from Bentley Systems, Inc. [8]. The primary focus was to determine the stress levels at the top and bottom of the T-beam when the dead load of the topsoil was removed. Additionally, the 61 cm (24-inch)-diameter columns were included in the modeling. It should be noted that the demolition had been conducted nearly 30 years after construction, during which all prestress losses had occurred.
The results of the analysis, presented as maximum stresses at the mid-span of the beam, are summarized in Table 1, and they were compared with the limits specified in ACI-318-11 [9], which was the applicable code at the time of demolition. The service loading included the self-weight of the concrete, the weight of topsoil, and a 4.8 kPa (100 psf) live load. Both loading conditions incorporated the PT balance loading. The bottom stress under service loading fell within the range of 0.625 f c < f t f c , ( 7.5 f c < f t 12 f c ) , and the compressive stress at the bottom when the topsoil was removed did not exceed the limit of 0.6 f c = 24.82 MPa (3600 psi). This analysis confirmed that the PT beam was adequately designed to support the heavy load of the roof and topping, and that the compressive stress when the topping was removed was within the limit and thus not of concern.

4. Demolition Approach

The demolition was carried out using a modern and well-maintained fleet of equipment, which were operated by skilled personnel. Large hydraulic and diesel-operated slab saws and cable, or wire saws, were employed to cut through the 71 cm-deep (28 in) joists of the waffle slab and the 2.1 m-deep (7 ft) concrete PT beams. Figure 2a depicts the placement of the large saw atop the slab to penetrate the thick concrete. The drilling operation conducted on the side of the beam, using a 15.2 cm-diameter (6 in) hydraulic drill, is depicted in Figure 2b. The materials slated for demolition were initially reduced in height and dimensions as was necessary to ensure safe removal. Subsequently, they were further reduced in size to facilitate efficient transport from the site.
During the saw cutting of the roof slab, initial cuts were made through the 1.8 m (6 ft)-wide top section of the girder. This pre-cut, with a depth of 71 cm (28 inches), facilitated the efficient use of a cable/wire saw once the adjoining sections of the roof were removed. Subsequently, a wire saw was employed from the top of the girder, which was wrapped around the 61 cm (24 inches) × 142 cm (56 inches) bottom section of the beam (Figure 1a), to complete the cutting of the entire beam section.
The length of the segments of the beam being cut was determined by the capacity of the crane and the distance of each piece relative to the crane’s location, which was on one side of the building. Segments were removed from front to back, with each segment decreasing in size and weight to accommodate the reach and lift capacity of the truck crane. Depending on the weight of each segment, four anchors were carefully designed with attention being paid to the impact effect, and this was then drilled on the top to be connected to the crane hook. Figure 3 illustrates the lifting of a cut segment.
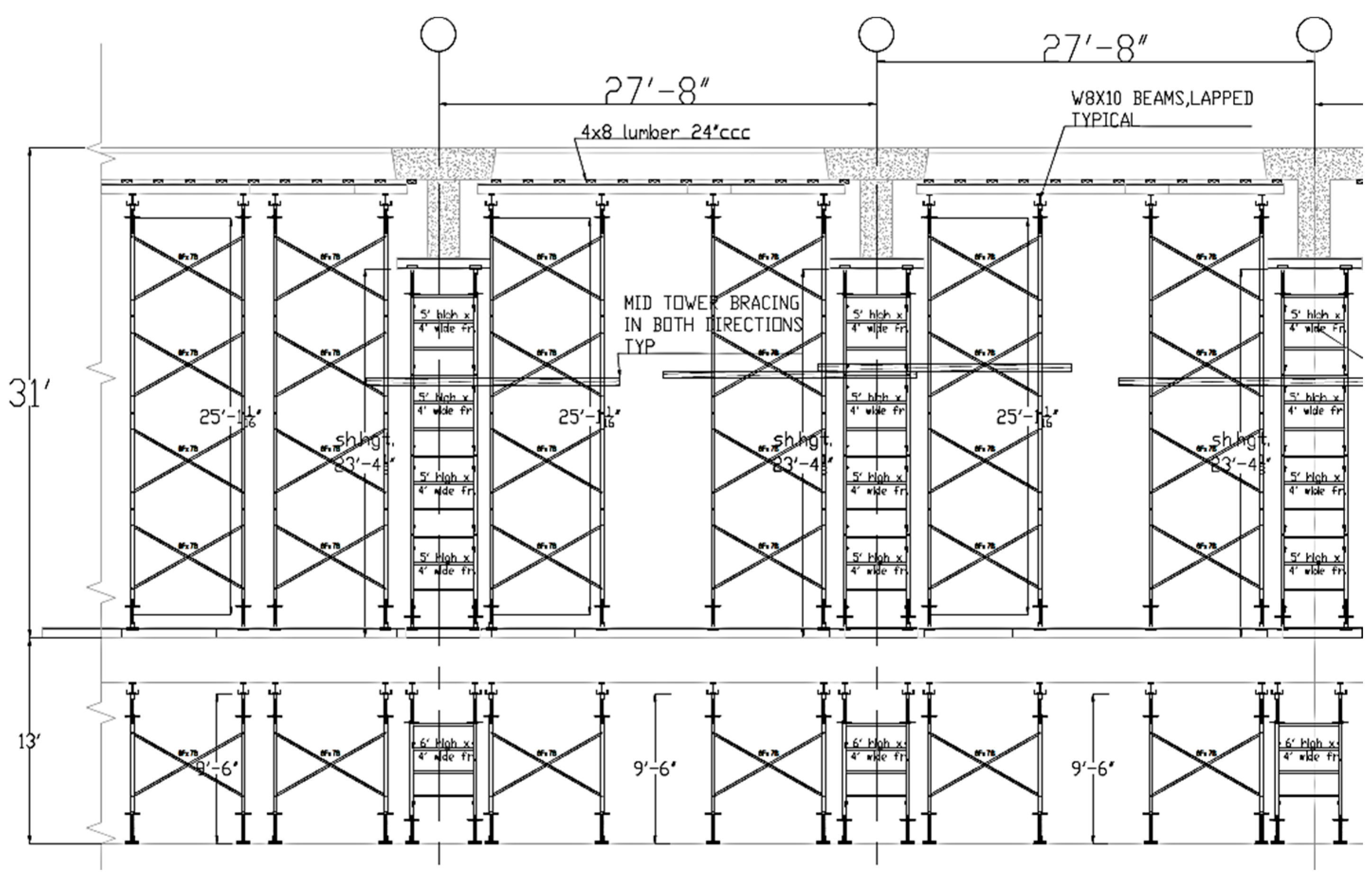
Prior to commencing the demolition, the roof structure was shored according to an approved shoring plan. The shoring calculations and plans underwent thorough review by the engineering sectors of the various involved parties. Special attention was given to the bracing of the shoring legs to ensure the stability of the entire system. This step is crucial in this type of demolition. The stability of the shoring system must be considered in terms of both the overall stability of the entire system and the local stability of the secondary elements. The latter involves the potential for a web crippling of the “I” or “W”-shaped steel beams commonly used in shoring systems. Local loads applied from either a structural element above the beam or the shoring post below the beam can cause a localized buckling of the web. This effect is sometimes overlooked in shoring design, so it is recommended that engineers take it seriously and evaluate it thoroughly. A section of a portion of the shoring system is presented in Figure 4.
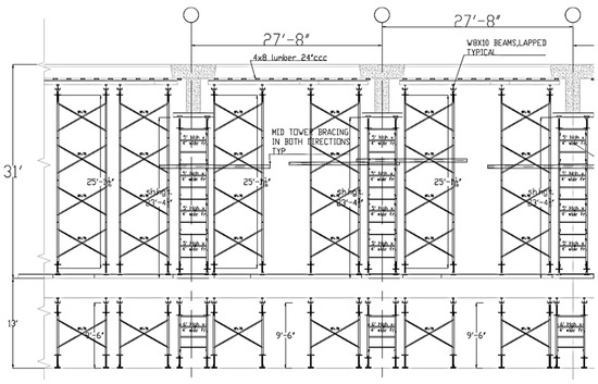
A portion of the shoring plan is presented in Figure 5. This figure also serves to depict a portion of the building plan. As shown, the distance between the beams was 8.4 m (27.67 feet) and the length of the beam was 31.7 m (104 feet), measured from the center to center of columns at each end.
The engineers involved in this project, with their expertise in PT design and construction, considered two scenarios regarding the behavior of the PT beams during the demolition process. One possibility was that the tendons were not adequately grouted in their ducts, which could lead to a sudden and dangerous popping out of the heavy anchors when a group of tendons is de-tensioned. To mitigate this risk, it was decided to drill through the concrete and cut one duct at a time. Additionally, special safety measures were implemented in the area in front of the beams to prevent any damage or injury in case an anchor popped out.
Alternatively, if the grouting was performed without imperfections, cutting an entire section of the beam using saw cutting or wire cutting could pose a significant risk of bursting the beam perpendicular to the cutting line. This bursting effect is similar to what is described in the ACI-318 and PTI standards. In this scenario also, drilling the ducts one at a time was deemed necessary to minimize risks.
To address both abovementioned scenarios, an innovative approach was adopted: cutting each duct individually, one by one, using a powerful drill. A specialized 15 cm (6-inch)-diameter drill was employed for the drilling process. This drill, being heavy, required mounting to the concrete using anchor bolts. Based on the tendon profile provided in the structural drawings, it was determined that the first drilling should be performed at the top of the beam near the end. This decision was made because three ducts were expected to be closer to the top of the beam, as depicted in Figure 1b, which shows the three anchors on the beam flange. Drilling near the end would also mitigate the risk of anchors popping out, especially if the grouting was not performed adequately. Figure 6a depicts the drill and the holes on the top of one of the beams. It is evident from this image that three holes were drilled to locate one duct. The challenge of locating the PT ducts became more pronounced, especially when drilling on the side of the beam, as seen in Figure 6b, which shows many holes that were drilled to locate tendon ducts. This is also evident in Figure 3 which shows several holes in a cut segment. Although Ground Penetrating Radar (GPR) scanning of concrete was employed to locate the rebar and tendon ducts, many ducts were not positioned close enough to the surface to be accurately located. This issue arose due to the discrepancies between the design drawings and the as-built conditions. Such discrepancies need to be carefully considered when undertaking demolition projects of this nature.
Figure 7 outlines a systematic demolition approach across seven key stages, starting with “Project Setup,” where equipment and personnel were mobilized, and where the machinery was checked for maintenance. This was followed by “Shoring and Stabilization,” which involves developing and reviewing support structures for stability. The “PT Ducts Management” stage includes locating and drilling PT ducts based on specific tendon profiles. In “PT Beam Conditions,” the integrity of PT beams is assessed, and necessary safety measures are implemented. The “Cutting Operations” stage involves using various saws and drills for precise cutting and for creating anchor points. “Material Handling” focuses on reducing and removing materials safely according to the crane’s capacity. Finally, “Demolition Completion” involves clearing the site, demobilizing equipment, and conducting a final inspection and report to ensure all standards are met. Each stage is crucial to ensure the demolition is conducted safely and efficiently.

5. Discussions: Challenges and Insights

The task of drilling, cutting, and demolishing the large PT beams in this project, with its inherent complexity, posed several challenges, but it also yielded valuable insights into the construction issues and behavior of the PT beams from both design and engineering perspectives. A review of one of the reports provided by the field operations manager shed light on some of these challenges. According to the report, coring progress had been hindered by several factors, including difficulties in locating ducts, thus leading to guesswork and inefficiencies. The actual number of cores required were two to three times higher than initially estimated; for example, in the case where three cores were needed to locate just one duct, which were each up to 66 cm (26 inches) deep. Moreover, the presence of four to six 2.54 cm (1-inch)-diameter steel rebars on top necessitated careful drilling. Extensive cord lengths, reaching several meters to the power box, also posed logistical challenges, including placing strain on the drills. Additionally, when reaching the duct and starting to cut strands, the loose pieces, 7 cm to 10 cm (3 to 4 inches) long, rotated, thereby resulting in drilling through the same strand multiple times (Figure 8a). When this occurred, the drill had to be pulled out, the hole cleaned, and the loose strands (Figure 8b) removed before starting again. This necessitated frequent drill removal, hole cleaning, and strand removal, adding to operational complexities.
During the drilling operation on the side of the beams, the technicians observed a recurring phenomenon characterized by loud booms and the development of horizontal cracks. This raised concerns among the technicians, who speculated that these booms might be caused by the sudden separation and settling of the beams, which occurred particularly after cutting a certain number of tendons. However, upon further analysis, considering the complex behavior of the beams under these conditions, it was explained that the horizontal cracks were as a result of the phenomenon known as “bursting”. In post-tensioned (PT) beams, where numerous tendons are stressed simultaneously, a significant tension force is developed perpendicular to the direction of the tendons. This phenomenon, which is well described by Lin T. Y. [10], is addressed in design manuals and standards, such as the PTI Manual [11] and ACI 318 Standard [9,12], under the term ‘anchorage zone’. Guidelines provided by Breen et al. [13] offer simplified equations to determine the bursting force in the anchorage zone. To resist this tension force, special reinforcement, as outlined in ACI 318 [9,12], should be designed and placed behind the anchors in the anchorage zone.
The act of cutting multiple tendons during drilling through a duct applies a significant force to the beam, similar to bursting. Unlike the anchorage zone, which had adequate reinforcement, the absence of substantial reinforcement in a location along the beam exacerbates the development of horizontal cracking. Once the concrete cracks, the tension is released, and, since the beam is no longer subjected to the same loading conditions, the concern regarding the cracking diminishes. This explanation aligns with theoretical principles and offers insights into the observed behavior, thereby highlighting the importance of understanding structural responses during demolition processes to ensure structural integrity and safety.
The horizontal cracking observed on the side of the beam after cutting the tendons in a duct is depicted in Figure 9a. Additionally, Figure 9b illustrates the spalling of concrete in another beam. The presence of #4 (12 mm, 0.5″) stirrups at 30 cm (12 inches) on the center along the beam had proven effective in preventing the catastrophic bursting of concrete, and it had also limited the width of the cracking.
The sketch of the side view of two beams is presented in Figure 10. The figure illustrates the elevation (profile) of the ducts that were intended to be installed according to the construction documents. However, the actual profile differed, as evidenced by the location of numerous holes drilled to cut a duct. This discrepancy highlights the challenges encountered in this project, and it offers insights to the construction industry, thereby emphasizing the importance of inspections prior to concrete casting to ensure that the as-built members conform to the construction documents. Additionally, there is a possibility that the ducts were not securely supported, which would lead to movement during the pouring of concrete.
Depending on the effectiveness of the grouting, the tendons inside the duct moved approximately up to 12.7 mm (0.5 inches) in some cases, while, in others, there was no movement, as illustrated in Figure 11.
The significance of the tension stresses (bursting) behind the anchorage zone is a function of the ratio of the size of the anchor and the depth of the beam (hanc/h), as specified in ACI 318-19 [12]. In the case of cutting one duct, this ratio is the duct diameter (10 cm) to the beam depth (213 cm (84 inches)), which is negligible. Hence, Tburst can be considered as 25% of the released force of tendons in one duct, as illustrated in Figure 12 (provided by ACI 318-19). Assuming there are 25 tendons in one duct, and when utilizing the typical force of 120 kN (27 kips) per tendon (which is commonly used in PT design), the calculated bursting force would amount to 0.25 × 25 × 120 kN (27 kips) = 750 kN (169 kips). This represents a substantial tension force capable of inducing cracking, especially upon sudden release.
It is crucial to note that the scenario of cutting one duct, as encountered in this demolition project, differs slightly from the depiction in Figure 12. When a duct is cut, the released force is transferred to the concrete over a certain length of the duct, albeit suddenly and with impact. Therefore, the concept of bursting force behind an anchor (Figure 12) is used solely to explain the phenomenon of bursting that results in horizontal cracking in the beam during demolition.

6. Conclusions

This paper describes the novel task in a real project of demolishing multiple large-span, deep post-tensioned concrete beams without causing damage to the remaining structure. The process of demolishing the PT beams in this project showcased the utilization of an innovative and successful technique, which was executed through meticulous engineering work and the implementation of thorough safety measures. Concerns regarding the effectiveness of grouting, or the potential release of significant forces if the tendons were effectively bonded, prompted the decision to drill and cut each duct’s tendons individually along the beams. Drill cutting of each duct then revealed that the grouting was relatively effective, which resulted in producing loud sounds followed by horizontal cracking along the beams’ sides, thus confirming the phenomenon known as the bursting effect in PT design. While it would have been more cost-effective and easier to cut the entire beam section using giant saws without de-tensioning tendons through drilling, the occurrence of bursting cracks indicated that cutting the entire section at once, with its 160 tendons, would have posed a significant risk of dangerous beam bursting. Such an occurrence would have severely compromised crew safety and potentially hindered or delayed the demolition process.
The following are some additional conclusions that can be drawn from the effective demolition technique process described in this paper:
(a)
It is crucial to accurately design a shoring system capable of supporting the weight of entire systems with a safety factor of at least three. Both the global stability of the entire system and the local stability of secondary elements must be considered when evaluating the stability of the shoring system.
(b)
It is necessary to evaluate the original design of the PT beams to determine the status of the beam design in terms of stresses and existing reinforcement. Beam loading and support conditions are subject to change during the demolition process, thus requiring special attention.
(c)
Following the evaluation described in the previous item, the sequence of demolition can be determined. In this project, the highly prestressed beams supported approximately one meter of depth of soil and a 6.5 m (21.5 ft) span of waffle-type concrete slab. Due to the uplift effect of prestressing, the removal of soil and slab prior to cutting the tendons would result in significant compressive stress at the bottom of the beam. Consequently, it was necessary to first shore the entire structure by considering all existing loads and then to cut the tendons. Following the removal of the soil, the concrete slab was cut, and the beams were segmented with a saw.
(d)
To cut the concrete and lift the heavy pieces, heavy machinery and high-capacity cranes were employed with care. The ground conditions and soil compaction were carefully considered in areas where cranes had to be moved and operated.
(e)
The capacity and capability of the equipment used to cut, lift, and relocate heavy pieces determined the size and shape of the demolished elements.
The successful operation described in this paper demonstrates the use of an appropriate technique, accurate analysis and calculations, and appropriate equipment. The challenges associated with the demolition of large post-tensioned (PT) beams, such as the risk of sudden tendon release and excessive bursting, will be mitigated by the technique described in this paper. This technique, which can be adopted by the demolition industry, has not been previously utilized for the demolition of such beams. This underscores its superiority—a key point that has been emphasized in this paper.

Author Contributions

Conceptualization, M.J.; methodology, M.J., A.K. (Adam Kaplan) and A.K. (Ali Keyvanfar); software, M.J.; validation, M.J., A.K. (Adam Kaplan) and A.K. (Ali Keyvanfar); formal analysis, M.J.; investigation, M.J., A.K. (Adam Kaplan) and A.K. (Ali Keyvanfar); resources, M.J. and A.K. (Adam Kaplan); data curation, M.J., A.K. (Adam Kaplan) and A.K. (Ali Keyvanfar); writing—original draft preparation, M.J.; writing—review and editing, M.J., A.K. (Adam Kaplan) and A.K. (Ali Keyvanfar); visualization, M.J., A.K. (Adam Kaplan) and A.K. (Ali Keyvanfar); supervision, M.J.; project administration, M.J. All authors have read and agreed to the published version of the manuscript.

Funding

This research received no external funding.

Data Availability Statement

The original contributions presented in the study are included in the article, further inquiries can be directed to the corresponding authors.

Acknowledgments

The authors extend their appreciation to Kyle Bontreger PE, SE; Rodmy Montero; Keith Brock; and Marty VanHorn from Tendon Systems, LLC, now part of CMC (Commercial Metals Company), for providing some information from their archive. The first author served as the Chief Engineer at Tendon Systems, LLC, when this project was undertaken. The analysis and design for this project were solely conducted by him.

Conflicts of Interest

The authors declare no conflicts of interest.

Appendix A. Acronyms and Terms

This section provides definitions of the key acronyms and terms used throughout the manuscript to ensure clarity and to enhance the reader’s understanding of the concepts discussed.
  • PT (Post-Tensioned): Refers to a method where tendons (steel cables or bars) are tensioned after the concrete has hardened, which enhances the concrete’s ability to manage tensile stresses.
  • PC (Prestressed Concrete): Concrete structures where internal stresses are induced (pre-tensioned or post-tensioned) to combat the tensile stresses anticipated during service conditions.
  • OSHA (Occupational Safety and Health Administration): A U.S. federal agency that enforces safety and health legislation in the workplace.
  • NDA (National Demolition Association): An organization that represents the demolition industry and promotes safe and efficient demolition practices through education and compliance standards.
  • ACI (American Concrete Institute): An organization dedicated to the development and dissemination of both consensus-based knowledge and technical resources on concrete construction and design.
  • PTI (Post-Tensioning Institute): Specializes in the advancement of post-tensioning applications across all fields of construction.
  • GPR (Ground Penetrating Radar): A technology used to image the subsurface, and it is commonly employed in construction to detect embedded objects such as rebars or tendons within concrete.
  • MPa (Megapascal) and psi (pounds per square inch): Units of pressure or stress. MPa is part of the International System of Units, and psi is commonly used in the United States.
  • cm (centimeter) and kPa (kiloPascal): Metric units for measuring length and pressure, respectively, where 1 cm equals 0.01 m and 1 kPa equals 1000 Pascals.
  • N (Newton): A unit of force in the International System of Units used to quantify the force exerted on objects.
  • SE (Structural Engineer) and PE (Professional Engineer): Designations for engineers specialized in structural integrity and safety, with PE indicating a licensed professional engineer.
  • LLC (Limited Liability Company): A business structure that combines the pass-through taxation of a partnership or sole proprietorship with the limited liability of a corporation.
  • PSF (pounds per square foot): A unit of pressure used to measure the load on a surface, and it is commonly used in the architectural and engineering fields in North America.
  • f’c and f’t: Symbols representing the concrete’s compressive strength and tensile strength, respectively, and they are essential parameters in structural engineering.
  • T-beam: A beam with a T-shaped cross section that is optimized for load bearing in structural engineering due to its geometric properties.
  • ducts: Channels within post-tensioned concrete structures through which tendons are threaded; these are often grouted with post-tensioning to ensure protection and adherence to the concrete.
  • CRediT taxonomy: A systematic framework for recognizing and attributing individual contributions to scholarly published work.
  • CMC (Commercial Metals Company): An international enterprise involved in metal recycling, manufacturing, fabricating, and trading.
Each term and acronym is essential for the understanding of the specialized methodologies and practices discussed in the context of the demolition of post-tensioned concrete structures. This list aids in comprehending technical aspects and ensuring the uniformity of the terminology used across the manuscript.

References

  1. Bonopera, M.; Chang, K.-C.; Lin, T.-K.; Tullini, N. Influence of prestressing on the behavior of uncracked concrete beams with a parabolic bonded tendon. Struct. Eng. Mech. 2021, 77, 1–17. [Google Scholar] [CrossRef]
  2. Meng, Q.; Zhu, J.; Wang, T. Numerical Prediction of Long-Term Deformation for Prestressed Concrete Bridges under Random Heavy Traffic Loads. J. Bridge Eng. 2019, 24, 04019107. [Google Scholar] [CrossRef]
  3. Occupational Safety and Health Administration (OSHA). Safety and Health Regulations for Construction, Demolition: 1926 Subpart T. 2013. Available online: https://www.osha.gov/laws-regs/regulations/standardnumber/1926/1926SubpartT (accessed on 5 March 2024).
  4. National Demolition Association (NDA). Safety-Health-Resources. 2023. Available online: https://www.demolitionassociation.com/Industry-Resources/Safety/Safety-Health-Resources (accessed on 5 March 2024).
  5. Safe Work Australia. Demolition Work, Code of Practice, 2012. Section 6.1. p. 32. Available online: http://creativecommons.org/licenses/by-nc/3.0/au/ (accessed on 2 May 2024).
  6. Felstead, A.E.; Lindsell, P. Controlled Demolition of a Post-Tensioned Beam. Concrete 1981, 15, 20–23. [Google Scholar]
  7. Anumba, C.; Abdullah, A.; Fesseha, T. Selection of Demolition Techniques. Struct. Surv. 2003, 21, 36–48. [Google Scholar] [CrossRef]
  8. Bentley Systems, Incorporated. RAM Concept—Structural Analysis and Design Software, V8i Release 5.0.1.; Bentley Systems: Exton, PA, USA, 2012. [Google Scholar]
  9. ACI 318-11; Building Code Requirements for Structural Concrete. American Concrete Institute: Farmington Hills, MI, USA, 2011.
  10. Lin, T.Y. Design of Prestressed Concrete Structures, 2nd ed.; John Wiley & Sons: Hoboken, NJ, USA, 1963; pp. 242–250. [Google Scholar]
  11. Post-Tensioning Institute (PTI). Post-Tensioning Manual, 6th ed.; Post-Tensioning Institute: Phoenix, AZ, USA, 2006. [Google Scholar]
  12. ACI 318-19; Building Code Requirements for Structural Concrete. American Concrete Institute: Farmington Hills, MI, USA, 2019.
  13. Breen, J.E.; Burdet, O.; Roberts, C.; Sanders, D.; Wollmann, G.; Falconer, B. Anchorage Zone Requirements for Post Tensioned Concrete Girders. In NCHRP Report 356; Transportation Research Board, National Academy Press: Washington, DC, USA, 1994. [Google Scholar]
Figure 1. (a) The cross section of the beam. (b) The end view of the beam showing the PT anchors.
Figure 1. (a) The cross section of the beam. (b) The end view of the beam showing the PT anchors.
Buildings 14 01380 g001
Figure 2. (a) A diesel-operated slab saw. (b) The drilling operation conducted on the side of the beam.
Figure 2. (a) A diesel-operated slab saw. (b) The drilling operation conducted on the side of the beam.
Buildings 14 01380 g002
Figure 3. Lifting of a cut segment of the PT beam.
Figure 3. Lifting of a cut segment of the PT beam.
Buildings 14 01380 g003
Figure 4. A section of a portion of the shoring system (27′-8″ = 8.4 m; 31′ = 9.5 m; and 13′ = 4 m).
Figure 4. A section of a portion of the shoring system (27′-8″ = 8.4 m; 31′ = 9.5 m; and 13′ = 4 m).
Buildings 14 01380 g004
Figure 5. A portion of the shoring plan (27′-8″ = 8.4 m).
Figure 5. A portion of the shoring plan (27′-8″ = 8.4 m).
Buildings 14 01380 g005
Figure 6. (a) The drill and holes on top. (b) Side view of one of the beams showing the considerable number of drillings required to locate and cut the PT ducts.
Figure 6. (a) The drill and holes on top. (b) Side view of one of the beams showing the considerable number of drillings required to locate and cut the PT ducts.
Buildings 14 01380 g006
Figure 7. Overview of the demolition process: sequential stages and key activities.
Figure 7. Overview of the demolition process: sequential stages and key activities.
Buildings 14 01380 g007
Figure 8. (a) Strands inside the duct. (b) The loose pieces of strands after cutting through the duct.
Figure 8. (a) Strands inside the duct. (b) The loose pieces of strands after cutting through the duct.
Buildings 14 01380 g008
Figure 9. Horizontal cracking (a) and spalling of concrete (b) on the side of the beams as the result of drilling and cutting tendons.
Figure 9. Horizontal cracking (a) and spalling of concrete (b) on the side of the beams as the result of drilling and cutting tendons.
Buildings 14 01380 g009
Figure 10. A sketch of the side view of two beams (104 feet = 31.7 m; 1 foot = 0.305 m).
Figure 10. A sketch of the side view of two beams (104 feet = 31.7 m; 1 foot = 0.305 m).
Buildings 14 01380 g010
Figure 11. Cracking due to the bursting effect that occurred, which depended on the tendons’ movement.
Figure 11. Cracking due to the bursting effect that occurred, which depended on the tendons’ movement.
Buildings 14 01380 g011
Figure 12. Tensile stress (bursting) zone in the PT beam after ACI 318-19 [12].
Figure 12. Tensile stress (bursting) zone in the PT beam after ACI 318-19 [12].
Buildings 14 01380 g012
Table 1. Maximum stresses at the mid-span of the beam.
Table 1. Maximum stresses at the mid-span of the beam.
Loading
Condition
Bottom Stress MPa
(psi)
Top Stress
MPa
(psi)
ACI-318-11
Reference
ACI-318-11
Computed Value MPa
(psi)
Service loading5.2 tensile
(751)
3.8 compressive
(560)
Section 18.3.3 4 < f t 6.4
( 581 < f t 929)
Self-weight only18 compressive
(2630)
8.7 tensile
(126)
Section 18.4.2 0.6 f c = 24.82
( 0.6 f c = 3600)
Disclaimer/Publisher’s Note: The statements, opinions and data contained in all publications are solely those of the individual author(s) and contributor(s) and not of MDPI and/or the editor(s). MDPI and/or the editor(s) disclaim responsibility for any injury to people or property resulting from any ideas, methods, instructions or products referred to in the content.

Share and Cite

MDPI and ACS Style

Jonaidi, M.; Kaplan, A.; Keyvanfar, A. Innovative Approaches and Challenges in the Demolition of Large-Span Post-Tensioned Beams: Insights from a Case Study. Buildings 2024, 14, 1380. https://doi.org/10.3390/buildings14051380

AMA Style

Jonaidi M, Kaplan A, Keyvanfar A. Innovative Approaches and Challenges in the Demolition of Large-Span Post-Tensioned Beams: Insights from a Case Study. Buildings. 2024; 14(5):1380. https://doi.org/10.3390/buildings14051380

Chicago/Turabian Style

Jonaidi, Mohammad, Adam Kaplan, and Ali Keyvanfar. 2024. "Innovative Approaches and Challenges in the Demolition of Large-Span Post-Tensioned Beams: Insights from a Case Study" Buildings 14, no. 5: 1380. https://doi.org/10.3390/buildings14051380

APA Style

Jonaidi, M., Kaplan, A., & Keyvanfar, A. (2024). Innovative Approaches and Challenges in the Demolition of Large-Span Post-Tensioned Beams: Insights from a Case Study. Buildings, 14(5), 1380. https://doi.org/10.3390/buildings14051380

Note that from the first issue of 2016, this journal uses article numbers instead of page numbers. See further details here.

Article Metrics

Back to TopTop