Double-Skin Facades for Thermal Comfort and Energy Efficiency in Mediterranean Climate Buildings: Rehabilitating Vulnerable Neighbourhoods
Abstract
1. Introduction
2. Case Study: San Pablo Neighbourhood (Seville)
- It is a high-rise residential estate built during the 1960s with the same construction solutions as many of the other residential areas built in southern Europe in the same period, when the mass construction of cheap housing was necessary to accommodate countryside-to-city migration [44].
- The urban fabric is high-density, with gardens and squares laid out around the geometry of the buildings themselves.
- Energy renovation in these buildings would improve the quality of life for residents, increasing the comfort of their homes, minimizing the use of active conditioning systems and reducing energy poverty situations.
Exterior Double Skin as a Passive Conditioning Strategy
3. Materials and Methods
3.1. From the AURA 1.0 Project to the Rehabilitation of the San Pablo Neighbourhood, Seville
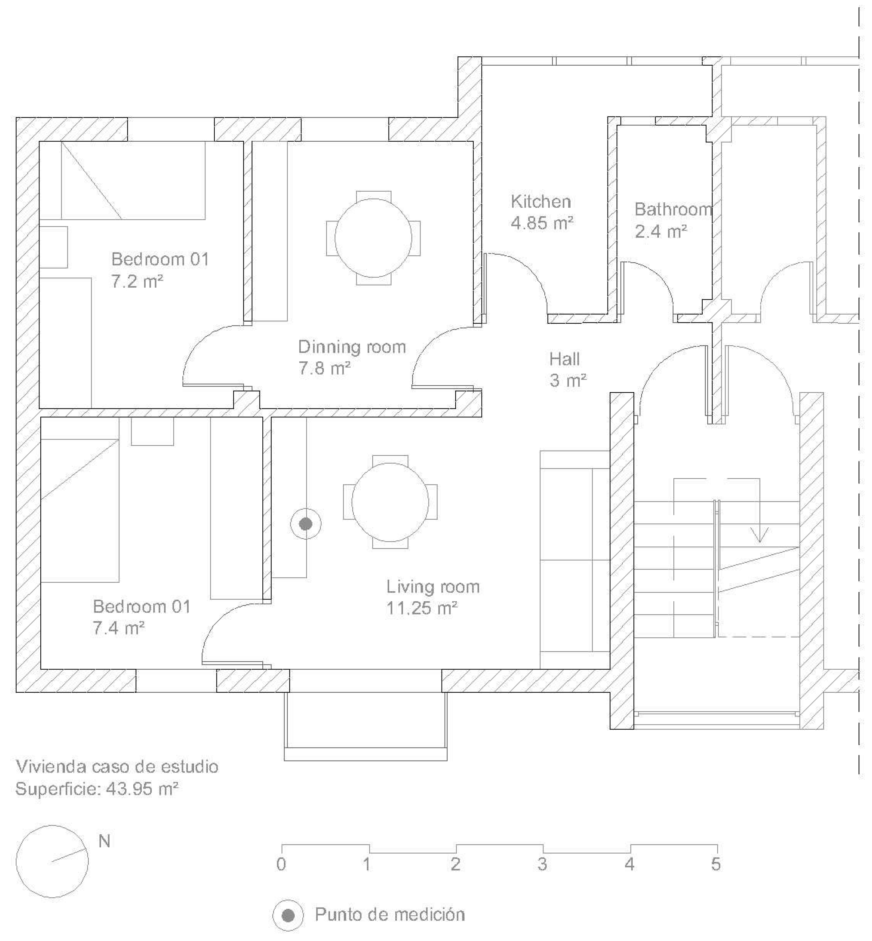
3.2. Construction of a Validated Simulation Model of the Case Study Dwelling in the Poligono San Pablo Neighbourhood, Seville, Spain
3.3. Posed Hypotheses
- Building A: northeast–southeast orientation. The monitored dwelling belongs to this building.
- Building B: southeast–northwest orientation.
3.4. Data Analysis
4. Results
4.1. Thermal Comfort
4.2. Energy Demand
5. Conclusions
Author Contributions
Funding
Data Availability Statement
Acknowledgments
Conflicts of Interest
References
- Poza-Casado, I.; Rodríguez-del-Tío, P.; Fernández-Temprano, M.; Padilla-Marcos, M.Á.; Meiss, A. An envelope airtightness predictive model for residential buildings in Spain. Build. Environ. 2022, 223, 109435. [Google Scholar] [CrossRef]
- Blázquez, T.; Suárez, R.; Sendra, J.J. Protocol for assessing energy performance to improve comfort conditions in social housing in a spanish southern city. Int. J. Energy Prod. Manag. 2017, 2, 140–152. [Google Scholar] [CrossRef]
- Suárez, R.; Fernández-Agüera, J. Passive energy strategies in the retrofitting of the residential sector: A practical case study in dry hot climate. Build. Simul. 2015, 8, 593–602. [Google Scholar] [CrossRef]
- Tabadkani, A.; Haddadi, M.; Rizi, R.A.; Tabadkani, E. A hierarchical multi-purpose roller shade controller to enhance indoor comfort and energy efficiency. Build. Simul. 2023, 16, 1239–1256. [Google Scholar] [CrossRef]
- Tsoka, S.; Tsikaloudaki, K.; Theodosiou, T.; Dugue, A. Rethinking user based innovation: Assessing public and professional perceptions of energy efficient building facades in Greece, Italy and Spain. Energy Res. Soc. Sci. 2018, 38, 165–177. [Google Scholar] [CrossRef]
- Alberto, A.; Ramos, N.M.M.; Almeida, R.M.S.F. Parametric study of double-skin facades performance in mild climate countries. J. Build. Eng. 2017, 12, 87–98. [Google Scholar] [CrossRef]
- Carretero-Ayuso, M.J.; Rodríguez-Jiménez, C.E.; Bienvenido-Huertas, D.; Moyano, J.J. Interrelations between the types of damages and their original causes in the envelope of buildings. J. Build. Eng. 2021, 39, 102235. [Google Scholar] [CrossRef]
- Sánchez, J.M.G.-C.; Meana-Fernández, A.; Ríos-Fernández, J.C.; Trashorras, A.J.G. Characterization of housing stock for energy retrofitting purposes in Spain. Build. Simul. 2023, 16, 947–962. [Google Scholar] [CrossRef]
- Ulu, M.; Arsan, Z.D. Retrofit strategies for energy efficiency of historic urban fabric in mediterranean climate. Atmosphere 2020, 11, 742. [Google Scholar] [CrossRef]
- Paiho, S.; Ketomäki, J.; Kannari, L.; Häkkinen, T.; Shemeikka, J. A new procedure for assessing the energy-efficient refurbishment of buildings on district scale. Sustain. Cities Soc. 2019, 46, 101454. [Google Scholar] [CrossRef]
- An, Y.-S.; Kim, J.; Joo, H.J.; Han, G.W.; Kim, H.; Lee, W.; Kim, M.H. Retrofit of renewable energy systems in existing community for positive energy community. Energy Rep. 2023, 9, 3733–3744. [Google Scholar] [CrossRef]
- Carnieletto, L.; Ferrando, M.; Teso, L.; Sun, K.; Zhang, W.; Causone, F.; Romagnoni, P.; Zarrella, A.; Hong, T. Italian prototype building models for urban scale building performance simulation. Build. Environ. 2021, 192, 107590. [Google Scholar] [CrossRef]
- Ozarisoy, B.; Altan, H. Significance of occupancy patterns and habitual household adaptive behaviour on home-energy performance of post-war social-housing estate in the South-eastern Mediterranean climate: Energy policy design. Energy 2022, 244, 122904. [Google Scholar] [CrossRef]
- Causone, F.; Tatti, A.; Pietrobon, M.; Zanghirella, F.; Pagliano, L. Yearly operational performance of a nZEB in the Mediterranean climate. Energy Build. 2019, 198, 243–260. [Google Scholar] [CrossRef]
- Elsharkawy, H.; Zahiri, S. The significance of occupancy profiles in determining post retrofit indoor thermal comfort, overheating risk and building energy performance. Build. Environ. 2020, 172, 106676. [Google Scholar] [CrossRef]
- Underhill, L.J.; Milando, C.W.; Levy, J.I.; Dols, W.S.; Lee, S.K.; Fabian, M.P. Simulation of indoor and outdoor air quality and health impacts following installation of energy-efficient retrofits in a multifamily housing unit. Build. Environ. 2020, 170, 106507. [Google Scholar] [CrossRef]
- Ozarisoy, B.; Altan, H. Developing an evidence-based energy-policy framework to assess robust energy-performance evaluation and certification schemes in the South-eastern Mediterranean countries. Energy Sustain. Dev. 2021, 64, 65–102. [Google Scholar] [CrossRef]
- Serrano, P.Y.; Gómez, D.T.; Bieńkowska, Z. Energy vulnerability and self-imposed austerity: An ethnographic approach to adaptation strategies to extreme heat among older adults in Madrid. Energy Res. Soc. Sci. 2023, 103, 103207. [Google Scholar] [CrossRef]
- Serrano-Jiménez, A.; Lizana, J.; Molina-Huelva, M.; Barrios-Padura, Á. Indoor environmental quality in social housing with elderly occupants in Spain: Measurement results and retrofit opportunities. J. Build. Eng. 2020, 30, 101264. [Google Scholar] [CrossRef]
- Chen, C.F.; Xu, X.; Day, J.K. Thermal comfort or money saving? Exploring intentions to conserve energy among low-income households in the United States. Energy Res. Soc. Sci. 2017, 26, 61–71. [Google Scholar] [CrossRef]
- Domínguez-Amarillo, S.; Fernández-Agüera, J.; Peacock, A.; Acosta, I. Energy related practices in Mediterranean low-income housing. Build. Res. Inf. Int. J. Res. Dev. Demonstr. 2020, 48, 34–52. [Google Scholar] [CrossRef]
- Clavijo-Núñez, S.; Herrera-Limones, R.; Rey-Pérez, J.; Torres-García, M. Energy poverty in Andalusia. An analysis through decentralised indicators. Energy Policy 2022, 167, 113083. [Google Scholar] [CrossRef]
- Ortiz, J.; Casquero-Modrego, N.; Salom, J. Health and related economic effects of residential energy retrofitting in Spain. Energy Policy 2019, 130, 375–388. [Google Scholar] [CrossRef]
- Recalde, M.; Peralta, A.; Oliveras, L.; Tirado-Herrero, S.; Borrell, C.; Palència, L.; Gotsens, M.; Artazcoz, L.; Marí-Dell’Olmo, M. Structural energy poverty vulnerability and excess winter mortality in the European Union: Exploring the association between structural determinants and health. Energy Policy 2019, 133, 110869. [Google Scholar] [CrossRef]
- Yu, C.-R.; Liu, X.; Wang, Q.-C.; Yang, D. Solving the comfort-retrofit conundrum through post-occupancy evaluation and multi-objective optimisation. Build. Serv. Eng. Res. Technol. 2023, 44, 381–403. [Google Scholar] [CrossRef]
- Calama-González, C.M.; Symonds, P.; León-Rodríguez, Á.L.; Suárez, R. Optimal retrofit solutions considering thermal comfort and intervention costs for the Mediterranean social housing stock. Energy Build. 2022, 259, 111915. [Google Scholar] [CrossRef]
- Lizana, J.; Barrios-Padura, Á.; Molina-Huelva, M.; Chacartegui, R. Multi-criteria assessment for the effective decision management in residential energy retrofitting. Energy Build. 2016, 129, 284–307. [Google Scholar] [CrossRef]
- Desogus, G.; Di Pilla, L.; Mura, S.; Pisano, G.L.; Ricciu, R. Economic efficiency of social housing thermal upgrade in Mediterranean climate. Energy Build. 2013, 57, 354–360. [Google Scholar] [CrossRef]
- Ghoreishi, K.; Fernández-Gutiérrez, A.; Fernández-Hernández, F.; Parras, L. Retrofit planning and execution of a mediterranean villa using on-site measurements and simulations. J. Build. Eng. 2021, 35, 102083. [Google Scholar] [CrossRef]
- Calama-González, C.M.; Suárez, R.; León-Rodríguez, Á.L. Thermal comfort prediction of the existing housing stock in southern Spain through calibrated and validated parameterized simulation models. Energy Build. 2022, 254, 111562. [Google Scholar] [CrossRef]
- Castaño-Rosa, R.; Solís-Guzmán, J.; Marrero, M. Energy poverty goes south? Understanding the costs of energy poverty with the index of vulnerable homes in Spain. Energy Res. Soc. Sci. 2020, 60, 101325. [Google Scholar] [CrossRef]
- Carpino, C.; Bruno, R.; Arcuri, N. Social housing refurbishment in Mediterranean climate: Cost-optimal analysis towards the n-ZEB target. Energy Build. 2018, 174, 642–656. [Google Scholar] [CrossRef]
- Belpoliti, V. Comparative analysis of simulated and monitored energy performance of a prototype house. Lesson learnt from the project KNOW HOWse for Solar Decathlon Middle East 2018 in Dubai. J. Build. Eng. 2021, 41, 102740. [Google Scholar] [CrossRef]
- Brambilla, A.; Salvalai, G.; Tonelli, C.; Imperadori, M. Comfort analysis applied to the international standard ‘Active House’: The case of RhOME, the winning prototype of Solar Decathlon 2014. J. Build. Eng. 2017, 12, 210–218. [Google Scholar] [CrossRef]
- Cornaro, C.; Rossi, S.; Cordiner, S.; Mulone, V.; Ramazzotti, L.; Rinaldi, Z. Energy performance analysis of STILE house at the Solar Decathlon 2015: Lessons learned. J. Build. Eng. 2017, 13, 11–27. [Google Scholar] [CrossRef]
- Domínguez-Torres, C.-A.; Domínguez-Torres, H.; Hernández-Valencia, M.; Roa-Fernández, J.; Herrera-Limones, R. A Feasible Proposal for Energy-Efficient Roof Retrofitting in Southern European Obsolete Residential Neighborhoods. Buildings 2023, 14, 88. [Google Scholar] [CrossRef]
- Herrera-Limones, R.; León-Rodríguez, Á.; López-Escamilla, Á. Solar Decathlon Latin America and Caribbean: Comfort and the Balance between Passive and Active Design. Sustainability 2019, 11, 3498. [Google Scholar] [CrossRef]
- Herrera-Limones, R.; Hernández-Valencia, M.; Roa-Fernández, J. Urban regeneration through retrofitting social housing: The AURA 3.1 prototype. J. Hous. Built Environ. 2022, 38, 837–859. [Google Scholar] [CrossRef]
- Rahman, N.M.A.; Haw, L.C.; Fazlizan, A.; Hussin, A.; Imran, M.S. Thermal comfort assessment of naturally ventilated public hospital wards in the tropics. Build. Environ. 2022, 207, 108480. [Google Scholar] [CrossRef]
- Alonso, A.; Calama-González, C.M.; Suárez, R.; León-Rodríguez, Á.L.; Hernández-Valencia, M. Improving comfort conditions as an energy upgrade tool for housing stock: Analysis of a house prototype. Energy Sustain. Dev. 2022, 66, 209–221. [Google Scholar] [CrossRef]
- Luo, W.; Kramer, R.; de Kort, Y.; Rense, P.; van Marken Lichtenbelt, W. The effects of a novel personal comfort system on thermal comfort, physiology and perceived indoor environmental quality, and its health implications—Stimulating human thermoregulation without compromising thermal comfort. Indoor Air 2022, 32, e12951. [Google Scholar] [CrossRef] [PubMed]
- Ahrentzen, S.; Erickson, J.; Fonseca, E. Thermal and health outcomes of energy efficiency retrofits of homes of older adults. Indoor Air 2016, 26, 582–593. [Google Scholar] [CrossRef] [PubMed]
- López-Escamilla, Á.; Herrera-Limones, R.; León-Rodríguez, Á.L.; Torres-García, M. Environmental Comfort as a Sustainable Strategy for Housing Integration: The AURA 1.0 Prototype for Social Housing. Appl. Sci. 2020, 10, 7734. [Google Scholar] [CrossRef]
- Vázquez, C.G.; Ramos, E.V. Intervención en barriadas residenciales obsoletas: Manual de buenas prácticas. In Lecturas. Historia del Arte y de la Arquitectura; Abada: Madrid, Spain, 2016. [Google Scholar]
- Aja, A.; Alonso, R.R.; Suárez, I.R.; Giménez, J.M.G.; García, I.G.; Hernández, R.C.; Gómez, J.A.; Gutiérrez, J.C.; Mateos, F.C.; Cáceres, S.J. Barrios Vulnerables de las Grandes Ciudades Españolas. 1991/2001/2011; Instituto Juan de Herrera: Madrid, Spain, 2018. [Google Scholar]
- Herna, A.; Garci, C.; Parellada, M. Atlas de Barrios Vulnerables de España: 12 Ciudades 1991-2001-2006; Instituto Juan de Herrera: Madrid, Spain, 2015; p. 346. [Google Scholar]
- Aja, A.; Suárez, I.R.; Hernández, R.C.; Giménez, J.M.G.; García, I.G.; Mateos, F.C.; Heredia, M.G.; Pérez, M.B.S. Vulnerabilidad residencial y social en las grandes ciudades españolas. 2001/2011; Instituto Juan de Herrera: Madrid, Spain, 2018. [Google Scholar]
- Instituto Juan de Herrera DuyOT; Ministerio de Fomento. Síntesis Metodológica General del Catálogo de Barrios Vulnerables e Indicadores Básicos de Vulnerabilidad Urbana; Instituto Juan de Herrera: Madrid, Spain, 2016. [Google Scholar]
- Camarena, G.M.N.; Núñez, S.C.; Pérez, J.R.; Prieto, J.M.A.; Fernández, J.R. Memory and identity: Citizen perception in the processes of heritage enhancement and regeneration in obsolete neighborhoods—The case of Polígono de San Pablo, Seville. Land 2023, 12, 1234. [Google Scholar] [CrossRef]
- Pomponi, F.; D’Amico, B. Holistic study of a timber double skin façade: Whole life carbon emissions and structural optimisation. Build. Environ. 2017, 124, 42–56. [Google Scholar] [CrossRef]
- González, V.G.; Bandera, C.F. A building energy models calibration methodology based on inverse modelling approach. Build. Simul. 2022, 15, 1883–1898. [Google Scholar] [CrossRef]
- Herrera, R.; Pineda, P.; Roa, J.; Cordero, S.; López-Escamilla, Á. Project AURA: Sustainable Social Housing. In Sustainable Development and Renovation in Architecture, Urbanism and Engineering; Springer: Berlin/Heidelberg, Germany, 2017; pp. 277–287. [Google Scholar] [CrossRef]
- López-Escamilla, Á.; Herrera-Limones, R.; León-Rodríguez, Á.L. Evaluation of environmental comfort in a social housing prototype with bioclimatic double-skin in a tropical climate. Build. Environ. 2022, 218, 109119. [Google Scholar] [CrossRef]
- Gamero-Salinas, J.C.; Monge-Barrio, A.; Sánchez-Ostiz, A. Overheating risk assessment of different dwellings during the hottest season of a warm tropical climate. Build. Environ. 2020, 171, 106664. [Google Scholar] [CrossRef]
- Crawley, D.B.; Pedersen, C.O.; Lawrie, L.K.; Winkelmann, F.C. EnergyPlus: Energy simulation program. ASHRAE J. 2000, 42, 49–56. [Google Scholar]
- Crawley, D.B.; Lawrie, L.K.; Winkelmann, F.C.; Buhl, W.F.; Huang, Y.J.; Pedersen, C.O.; Strand, R.K.; Liesen, R.J.; Fisher, D.E.; Witte, M.J.; et al. EnergyPlus: Creating a new-generation building energy simulation program. Energy Build. 2001, 33, 319–331. [Google Scholar] [CrossRef]
- Coelho, G.B.A.; Silva, H.E.; Henriques, F.M.A. Development of a three-dimensional hygrothermal model of a historic building in WUFI®Plus vs EnergyPlus. MATEC Web Conf. 2019, 282, 2079. [Google Scholar] [CrossRef]
- Cuerda, E.; Guerra-Santin, O.; Sendra, J.J.; González, F.J.N. Comparing the impact of presence patterns on energy demand in residential buildings using measured data and simulation models. Build. Simul. 2019, 12, 985–998. [Google Scholar] [CrossRef]
- ANSI/ASHRAE. ASHRAE Guideline 14-2002 Measurement of Energy and Demand Savings; ASHRAE: Peachtree Corners, GA, USA, 2002; Volume 8400, p. 170. [Google Scholar]
- Ruiz, G.R.; Bandera, C.F. Validation of calibrated energy models: Common errors. Energies 2017, 10, 1587. [Google Scholar] [CrossRef]
- Sánchez-García, D.; Rubio-Bellido, C.; Tristancho, M.; Marrero, M. A comparative study on energy demand through the adaptive thermal comfort approach considering climate change in office buildings of Spain. Build. Simul. 2020, 13, 51–63. [Google Scholar] [CrossRef]
- Schweiker, M. Combining adaptive and heat balance models for thermal sensation prediction: A new approach towards a theory and data-driven adaptive thermal heat balance model. Indoor Air 2022, 32, e13018. [Google Scholar] [CrossRef]
- Asociación Española de Normalización. Parte 1: Parámetros del Ambiente Interior a Considerar Para el Diseño y la Evaluación de la Eficiencia Energética de Edificios Incluyendo la Calidad del Aire Interior, Condiciones Térmicas, Iluminación y Ruido. Módulo 1–6; Asociación Española de Normalización: Madrid, Spain, 2019. [Google Scholar]
- Zhang, S.; Lin, Z. Adaptive-rational thermal comfort model: Adaptive predicted mean vote with variable adaptive coefficient. Indoor Air 2020, 30, 1052–1062. [Google Scholar] [CrossRef]
- Rubio-Bellido, C.; Pérez-Fargallo, A.; Pulido-Arcas, J.A.; Trebilcock, M. Application of adaptive comfort behaviors in Chilean social housing standards under the influence of climate change. Build. Simul. 2017, 10, 933–947. [Google Scholar] [CrossRef]
- MoMo. Available online: https://momo.isciii.es/panel_momo/ (accessed on 15 January 2023).















| Element | Layer | Thickness (m) | U (W/m2K) | |
|---|---|---|---|---|
| Hypothesis n°0 Current state (Validated model) | Dwelling in block A in its current state and conditions on which the model has been validated. | Perforated brick | 0.115 | 1.9 |
| Air chamber | 0.06 | |||
| Single hollow brick | 0.04 | |||
| Plaster finish | 0.015 | |||
| Hypothesis n°1 | Same operational conditions as hypothesis n°0 but installing a double skin like the one designed for the AURA 1.0 prototype. | Double skin | - | 1.623 |
| Perforated brick | 0.115 | |||
| Air chamber | 0.06 | |||
| Single hollow brick | 0.04 | |||
| Plaster finish | 0.015 | |||
| Hypothesis n°2 | Same operational conditions as hypothesis n°0 but applying a 6 cm layer of insulation injected into the chamber in the original envelope. | Perforated brick | 0.115 | 0.446 |
| Thermal insulation | 0.06 | |||
| Single hollow brick | 0.04 | |||
| Plaster finish | 0.015 | |||
| Hypothesis n°3 | Same operational conditions as hypothesis n°0 but applying a 6 cm layer of insulation injected into the chamber in the original envelope. | Double skin | - | 0.429 |
| Perforated brick | 0.115 | |||
| Thermal insulation | 0.06 | |||
| Single hollow brick | 0.04 | |||
| Plaster finish | 0.015 |
| Period | Temperature | ||
|---|---|---|---|
| HEATING | 1 January | 21 March | 20 °C |
| 21 March | 21 April | 23 °C | |
| 21 April | 21 October | Free-running | |
| 21 October | 21 December | 23 °C | |
| 21 December | 31 December | 20 °C | |
| COOLING | 1 January | 21 March | Free-running |
| 21 March | 21 April | 23 °C | |
| 21 April | 21 October | 26 °C | |
| 21 October | 21 December | 23 °C | |
| 21 December | 31 December | Free-running | |
| BUILDING A | BUILDING B | |||||||
|---|---|---|---|---|---|---|---|---|
| Hyp. 0A | Hyp. 1A | Hyp. 2A | Hyp. 3A | Hyp. 0B | Hyp. 1B | Hyp. 2B | Hyp. 3B | |
| January | 0.00 | 0.00 | 0.00 | 0.00 | 0.00 | 0.00 | 0.54 | 0.00 |
| February | 0.00 | 0.00 | 0.00 | 0.00 | 0.60 | 0.00 | 0.00 | 0.00 |
| March | 26.21 | 17.47 | 31.45 | 22.72 | 32.26 | 21.10 | 40.99 | 25.67 |
| April | 44.58 | 24.86 | 62.36 | 35.97 | 49.03 | 29.58 | 62.08 | 38.06 |
| May | 91.40 | 77.15 | 95.16 | 90.73 | 88.58 | 75.13 | 94.35 | 84.41 |
| June | 72.36 | 74.17 | 80.69 | 76.39 | 73.89 | 74.72 | 79.03 | 73.61 |
| July | 52.69 | 59.68 | 60.48 | 75.13 | 55.91 | 63.58 | 74.73 | 81.05 |
| August | 70.03 | 85.75 | 86.42 | 91.26 | 76.48 | 87.10 | 92.88 | 92.34 |
| September | 71.25 | 75.97 | 76.11 | 74.03 | 70.00 | 77.50 | 79.17 | 76.39 |
| October | 52.42 | 43.95 | 61.42 | 52.15 | 79.17 | 53.63 | 94.09 | 77.82 |
| November | 0.00 | 0.00 | 0.56 | 0.28 | 3.61 | 0.14 | 5.56 | 1.81 |
| December | 0.00 | 0.00 | 0.00 | 0.00 | 0.00 | 0.00 | 0.00 | 0.00 |
| TOTAL | 40.33 | 38.50 | 46.51 | 43.54 | 44.43 | 40.48 | 52.33 | 46.29 |
| BUILDING A | BUILDING B | |||||||
|---|---|---|---|---|---|---|---|---|
| Hyp. 0A | Hyp. 1A | Hyp. 2A | Hyp. 3A | Hyp. 0B | Hyp. 1B | Hyp. 2B | Hyp. 3B | |
| JANUARY | 638.91 | 643.62 | 409.91 | 415.37 | 540.98 | 621.05 | 325.81 | 364.74 |
| FEBRUARY | 433.43 | 449.06 | 271.75 | 282.54 | 366.31 | 421.49 | 215.53 | 247.08 |
| MARCH | 276.51 | 303.08 | 165.6 | 183.62 | 241.14 | 287.45 | 137.29 | 168.1 |
| APRIL | 170.03 | 199.08 | 98.46 | 119.63 | 165.86 | 193.66 | 98.64 | 119.97 |
| MAY | 211.14 | 124.52 | 168.62 | 102.2 | 175.81 | 121.58 | 116.82 | 79.69 |
| JUNE | 423.99 | 317.79 | 289.56 | 217.42 | 377.66 | 313.47 | 233.31 | 193.24 |
| JULY | 614.79 | 487.73 | 415.45 | 330.43 | 552.5 | 478.91 | 340.07 | 294.14 |
| AUGUST | 416.52 | 319.72 | 264.8 | 204.9 | 388.65 | 320.2 | 223.71 | 184.97 |
| SEPTEMBER | 263.01 | 209.83 | 149.23 | 121.54 | 286.48 | 222.85 | 158.45 | 126.3 |
| OCTOBER-COOLING | 85.57 | 69.05 | 60.18 | 49.42 | 120.32 | 78.06 | 89.29 | 63.67 |
| OCTOBER-HEATING | 74.05 | 76.62 | 48.71 | 50.99 | 57.63 | 69.43 | 33.49 | 41.47 |
| NOVEMBER | 653.25 | 659.95 | 428.47 | 435.7 | 571.78 | 636.89 | 354.43 | 389.25 |
| DECEMBER | 776.27 | 780.23 | 504.73 | 510.06 | 693.64 | 763.31 | 431.34 | 465.65 |
| BUILDING A | BUILDING B | |||||||
|---|---|---|---|---|---|---|---|---|
| Hyp. 0A | Hyp. 1A | Hyp. 2A | Hyp. 3A | Hyp. 0B | Hyp. 1B | Hyp. 2B | Hyp. 3B | |
| COOLING (WARM MONTHS) | ||||||||
| ANNUAL DEMAND | 2017.76 | 1529.52 | 1350.19 | 1026.74 | 1904.57 | 1536.36 | 1163.70 | 942.88 |
| ANNUAL NET SAVING | - | 488.24 | 667.57 | 991.02 | - | 368.21 | 740.87 | 961.69 |
| % SAVING | - | 24.20% | 33.08% | 49.11% | - | 19.33% | 38.90% | 50.49% |
| HEATING (COLD MONTHS) | ||||||||
| ANNUAL DEMAND | 3022.45 | 3111.64 | 1927.63 | 1997.91 | 2637.34 | 2993.28 | 1596.53 | 1796.26 |
| ANNUAL NET SAVING | - | −89.19 | 1094.82 | 1024.54 | - | −355.94 | 1040.81 | 841.08 |
| % SAVING | - | −2.95% | 36.22% | 33.90% | - | −13.50% | 39.46% | 31.89% |
| TOTAL SAVING | ||||||||
| TOTAL DEMAND | 5040.21 | 4641.16 | 3277.82 | 3024.65 | 4541.91 | 4529.64 | 2760.23 | 2739.14 |
| ANNUAL NET SAVING | - | 399.05 | 1762.39 | 2015.56 | - | 12.27 | 1781.68 | 1802.77 |
| % SAVING | - | 7.92% | 34.97% | 39.99% | - | −0.27% | 39.23% | 39.69% |
Disclaimer/Publisher’s Note: The statements, opinions and data contained in all publications are solely those of the individual author(s) and contributor(s) and not of MDPI and/or the editor(s). MDPI and/or the editor(s) disclaim responsibility for any injury to people or property resulting from any ideas, methods, instructions or products referred to in the content. |
© 2024 by the authors. Licensee MDPI, Basel, Switzerland. This article is an open access article distributed under the terms and conditions of the Creative Commons Attribution (CC BY) license (https://creativecommons.org/licenses/by/4.0/).
Share and Cite
López-Escamilla, Á.; Herrera-Limones, R.; León-Rodríguez, Á.L. Double-Skin Facades for Thermal Comfort and Energy Efficiency in Mediterranean Climate Buildings: Rehabilitating Vulnerable Neighbourhoods. Buildings 2024, 14, 326. https://doi.org/10.3390/buildings14020326
López-Escamilla Á, Herrera-Limones R, León-Rodríguez ÁL. Double-Skin Facades for Thermal Comfort and Energy Efficiency in Mediterranean Climate Buildings: Rehabilitating Vulnerable Neighbourhoods. Buildings. 2024; 14(2):326. https://doi.org/10.3390/buildings14020326
Chicago/Turabian StyleLópez-Escamilla, Álvaro, Rafael Herrera-Limones, and Ángel Luis León-Rodríguez. 2024. "Double-Skin Facades for Thermal Comfort and Energy Efficiency in Mediterranean Climate Buildings: Rehabilitating Vulnerable Neighbourhoods" Buildings 14, no. 2: 326. https://doi.org/10.3390/buildings14020326
APA StyleLópez-Escamilla, Á., Herrera-Limones, R., & León-Rodríguez, Á. L. (2024). Double-Skin Facades for Thermal Comfort and Energy Efficiency in Mediterranean Climate Buildings: Rehabilitating Vulnerable Neighbourhoods. Buildings, 14(2), 326. https://doi.org/10.3390/buildings14020326

