LCA-TOPSIS Integration for Minimizing Material Waste in the Construction Sector: A BIM-Based Decision-Making
Abstract
1. Introduction
- How can the waste rates of materials used in the construction process be evaluated and reduced using LCA-TOPSIS integration?
- Which specific material types in the construction project have the potential to minimize material waste through these methods?
- How can the materials prioritized by TOPSIS based on the “material waste” criterion be assessed in terms of environmental sustainability?
- How can the materials prioritized by TOPSIS according to environmental impact criteria be evaluated in terms of material waste and efficiency?
2. Materials and Methods
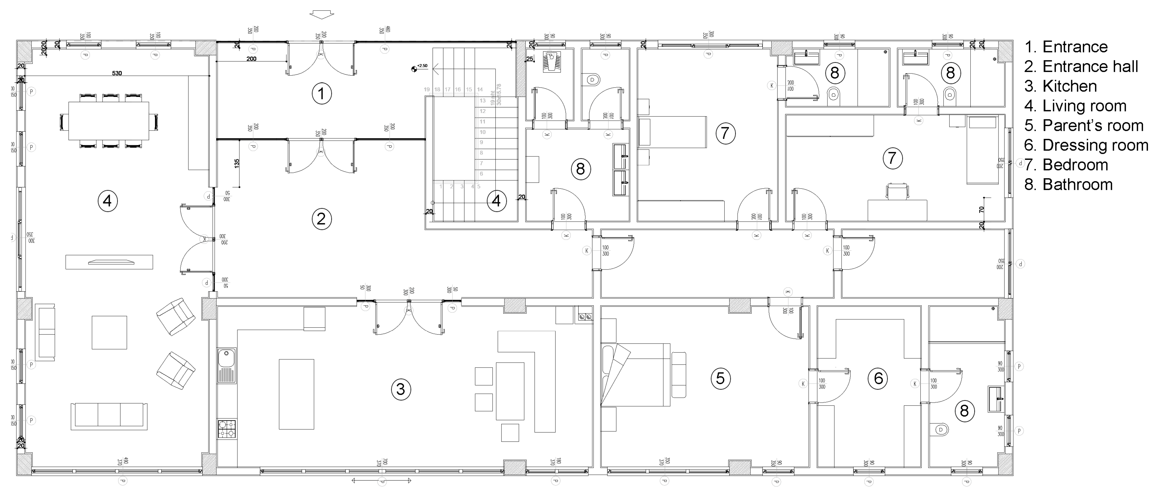
2.1. Information About the Field Study
Information Regarding the Construction Process of the Building
2.2. Methodology
2.2.1. Creation of the Decision Matrix
2.2.2. Normalization of Values in the Decision Matrix
2.2.3. Weighted Normalization of the Values in the Decision Matrix
2.2.4. Determination of Ideal and Negative Ideal Solutions
2.2.5. Calculation of Distances
2.2.6. Calculation of Relative Closeness
3. Results and Discussion
3.1. LCA Analysis
3.2. Determining Material Performance Based on Scenarios
3.2.1. Scenario 1 (Material Waste 50%, Global Warming 26%, Other 3%)
3.2.2. Scenario 2 (Material Usage 25%, Global Warming 40%, Other 5%)
3.3. Discussions
4. Conclusions
Author Contributions
Funding
Data Availability Statement
Acknowledgments
Conflicts of Interest
Appendix A
| Material | Acidification Potential (kgSO2eq) | Eutrophication Potential (kgNeq) | Global Warming Potential (kgCO2eq) | Ozone Depletion Potential (CFC-11eq) | Smog Formation Potential (kgO3eq) | Primary Energy Demand (MJ) | Non-Renewable Energy Demand (MJ) | Renewable Energy Demand (MJ) | Material Waste % | |
|---|---|---|---|---|---|---|---|---|---|---|
| Normalized Matrix | Cast-in-place concrete, 5000 psi | 0.896362059 | 0.931085439 | 0.986202121 | −0.607505631 | 0.886985357 | 0.973391707 | 0.976387108 | 0.887558065 | 0.127571715 |
| Cast-in-place concrete, 3000 psi | 0.04594123 | 0.036914799 | 0.039065094 | 4.49388 × 10−6 | 0.036931861 | 0.0322436 | 0.031966349 | 0.034950169 | 0.12877385 | |
| Cast-in-place concrete, structural concrete, 2500 psi | 0.028719954 | 0.039762825 | 0.03963958 | 4.45227 × 10−6 | 0.037242212 | 0.035893819 | 0.036098053 | 0.033481674 | 0.14116578 | |
| Stair, cast-in-place concrete | 0.001074993 | 0.001445921 | 0.001508985 | −0.000384199 | 0.001306581 | 0.001350581 | 0.001363463 | 0.001163048 | 0.14116578 | |
| Autoclaved aerated concrete block (AAC) | 0.031394065 | 0.044034864 | 0.074683267 | −0.003245578 | 0.036311157 | 0.06570394 | 0.059583534 | 0.147143147 | 0.133952076 | |
| Aluminum, angle | 4.93641 × 10−5 | 2.57418 × 10−5 | 1.11067 × 10−5 | 4.66032 × 10−9 | 1.60452 × 10−5 | 2.31181 × 10−5 | 2.09195 × 10−5 | 5.13973 × 10−5 | 0 | |
| Laminated wood panel board | 0.013370556 | 0.063861507 | 0.001267701 | −5.61735 × 10−6 | 0.007541548 | 0.017622446 | 0.004436146 | 0.195603465 | 0.662023265 | |
| Asphalt felt sheet | 0.000332125 | 0.00108225 | 0.000327457 | 8.73809 × 10−6 | 0.000356905 | 0.001492534 | 0.001413478 | 0.002493504 | 0.01439181 | |
| Self-adhering sheet waterproofing, modified bituminous sheet | 0.002989656 | 0.004020098 | 0.002872433 | 0.000171988 | 0.002845926 | 0.011619864 | 0.012090673 | 0.004934141 | 0.014653479 | |
| Clay roofing tile | 0.011284749 | 0.015116446 | 0.019149556 | 0.173374895 | 0.013220985 | 0.035488239 | 0.036098053 | 0.026814709 | 0.120511044 | |
| Mineral wool, board, generic | 0.036260947 | 0.013254275 | 0.018345274 | 0.352297786 | 0.010210573 | 0.024132003 | 0.024790229 | 0.01603596 | 0.012807241 | |
| Openings and Glazing | 0.078618868 | 0.116111831 | 0.039831076 | 0.039529476 | 0.058346133 | 0.076451807 | 0.066324737 | 0.214693893 | 0 | |
| Ceramic tile | 0.001946753 | 0.001960756 | 0.002374545 | 0.001212237 | 0.002107289 | 0.003731335 | 0.003762026 | 0.003318798 | 0.431562413 | |
| Fiberglass mat gypsum sheathing | 0.029950045 | 0.056631903 | 0.024894422 | 0.689338581 | 0.022872925 | 0.048061216 | 0.04479638 | 0.091927755 | 0.140537818 | |
| Portland cement stucco | 0.025297092 | 0.035819405 | 0.058980632 | 4.48001 × 10−6 | 0.032897288 | 0.045424946 | 0.046318587 | 0.032894276 | 0.140537818 | |
| Paint | 0.025617985 | 0.036038483 | 0.021256007 | 8.1833 × 10−6 | 0.036311157 | 0.050697485 | 0.048928084 | 0.073131025 | 0.178441946 | |
| Stone tile | 0.427322962 | 0.323141417 | 0.108960972 | 0.001373129 | 0.450010065 | 0.175413297 | 0.166572945 | 0.296635886 | 0.44538865 |
| Material | Acidification Potential (kgSO2eq) | Eutrophication Potential (kgNeq) | Global Warming Potential (kgCO2eq) | Ozone Depletion Potential (CFC-11eq) | Smog Formation Potential (kgO3eq) | Primary Energy Demand (MJ) | Non-Renewable Energy Demand (MJ) | Renewable Energy Demand (MJ) | Material Waste % | |
|---|---|---|---|---|---|---|---|---|---|---|
| Weighted Matrix S1 | Cast-in-place concrete, 5000 psi | 0.026890862 | 0.027932563 | 0.256412551 | −0.018225169 | 0.026609561 | 0.029201751 | 0.029291613 | 0.026626742 | 0.063785858 |
| Cast-in-place concrete, 3000 psi | 0.001378237 | 0.001107444 | 0.010156924 | 1.34816 × 10−7 | 0.001107956 | 0.000967308 | 0.00095899 | 0.001048505 | 0.064386925 | |
| Cast-in-place concrete, structural concrete, 2500 psi | 0.000861599 | 0.001192885 | 0.010306291 | 1.33568 × 10−7 | 0.001117266 | 0.001076815 | 0.001082942 | 0.00100445 | 0.07058289 | |
| Stair, cast-in-place concrete | 3.22498 × 10−5 | 4.33776 × 10−5 | 0.000392336 | −1.1526 × 10−5 | 3.91974 × 10−5 | 4.05174 × 10−5 | 4.09039 × 10−5 | 3.48914 × 10−5 | 0.07058289 | |
| Autoclaved aerated concrete block (AAC) | 0.000941822 | 0.001321046 | 0.01941765 | −9.73673 × 10−5 | 0.001089335 | 0.001971118 | 0.001787506 | 0.004414294 | 0.066976038 | |
| Aluminum, angle | 1.48092 × 10−6 | 7.72253 × 10−7 | 2.88775 × 10−6 | 1.3981 × 10−10 | 4.81356 × 10−7 | 6.93542 × 10−7 | 6.27584 × 10−7 | 1.54192 × 10−6 | 0 | |
| Laminated wood panel board | 0.000401117 | 0.001915845 | 0.000329602 | −1.6852 × 10−7 | 0.000226246 | 0.000528673 | 0.000133084 | 0.005868104 | 0.331011633 | |
| Asphalt felt sheet | 9.96374 × 10−6 | 3.24675 × 10−5 | 8.51389 × 10−5 | 2.62143 × 10−7 | 1.07071 × 10−5 | 4.4776 × 10−5 | 4.24043 × 10−5 | 7.48051 × 10−5 | 0.007195905 | |
| Self-adhering sheet waterproofing, | 8.96897 × 10−5 | 0.000120603 | 0.000746833 | 5.15964 × 10−6 | 8.53778 × 10-05 | 0.000348596 | 0.00036272 | 0.000148024 | 0.00732674 | |
| Clay roofing tile | 0.000338542 | 0.000453493 | 0.004978884 | 0.005201247 | 0.00039663 | 0.001064647 | 0.001082942 | 0.000804441 | 0.060255522 | |
| Mineral wool, board, generic | 0.001087828 | 0.000397628 | 0.004769771 | 0.010568934 | 0.000306317 | 0.00072396 | 0.000743707 | 0.000481079 | 0.00640362 | |
| Openings and Glazing | 0.002358566 | 0.003483355 | 0.01035608 | 0.001185884 | 0.001750384 | 0.002293554 | 0.001989742 | 0.006440817 | 0 | |
| Ceramic tile | 5.84026 × 10−5 | 5.88227 × 10−5 | 0.000617382 | 3.63671 × 10−5 | 6.32187 × 10−5 | 0.00011194 | 0.000112861 | 9.95639 × 10−5 | 0.215781206 | |
| Fiberglass mat gypsum sheathing | 0.000898501 | 0.001698957 | 0.00647255 | 0.020680157 | 0.000686188 | 0.001441836 | 0.001343891 | 0.002757833 | 0.070268909 | |
| Portland cement stucco | 0.000758913 | 0.001074582 | 0.015334964 | 1.344 × 10−7 | 0.000986919 | 0.001362748 | 0.001389558 | 0.000986828 | 0.070268909 | |
| Paint | 0.00076854 | 0.001081155 | 0.005526562 | 2.45499 × 10−7 | 0.001089335 | 0.001520925 | 0.001467843 | 0.002193931 | 0.089220973 | |
| Stone tile | 0.012819689 | 0.009694243 | 0.028329853 | 4.11939 × 10−5 | 0.013500302 | 0.005262399 | 0.004997188 | 0.008899077 | 0.222694325 |
| Material | Acidification Potential (kgSO2eq) | Eutrophication Potential (kgNeq) | Global Warming Potential (kgCO2eq) | Ozone Depletion Potential (CFC-11eq) | Smog Formation Potential (kgO3eq) | Primary Energy Demand (MJ) | Non-Renewable Energy Demand (MJ) | Renewable Energy Demand (MJ) | Material Waste % | |
|---|---|---|---|---|---|---|---|---|---|---|
| Weighted Matrix S2 | Cast-in-place concrete, 5000 psi | 0.044818103 | 0.046554272 | 0.394480848 | −0.030375282 | 0.044349268 | 0.048669585 | 0.048819355 | 0.044377903 | 0.031892929 |
| Cast-in-place concrete, 3000 psi | 0.002297061 | 0.00184574 | 0.015626037 | 2.24694 × 10−7 | 0.001846593 | 0.00161218 | 0.001598317 | 0.001747508 | 0.032193463 | |
| Cast-in-place concrete, 2500 psi | 0.001435998 | 0.001988141 | 0.015855832 | 2.22613 × 10−7 | 0.001862111 | 0.001794691 | 0.001804903 | 0.001674084 | 0.035291445 | |
| Stair, cast-in-place concrete | 5.37496 × 10−5 | 7.2296 × 10−5 | 0.000603594 | −1.92099 × 10−5 | 6.5329 × 10−5 | 6.7529 × 10−5 | 6.81731 × 10−5 | 5.81524 × 10−5 | 0.035291445 | |
| Autoclaved aerated concrete block (AAC) | 0.001569703 | 0.002201743 | 0.029873307 | −0.000162279 | 0.001815558 | 0.003285197 | 0.002979177 | 0.007357157 | 0.033488019 | |
| Aluminum, angle | 2.4682 × 10−6 | 1.28709 × 10−6 | 4.4427 × 10−6 | 2.33016 × 10−10 | 8.02259 × 10−7 | 1.1559 × 10−6 | 1.04597 × 10−6 | 2.56987 × 10−6 | 0 | |
| Laminated wood panel board | 0.000668528 | 0.003193075 | 0.00050708 | −2.80867 × 10−7 | 0.000377077 | 0.000881122 | 0.000221807 | 0.009780173 | 0.165505816 | |
| Asphalt felt sheet | 1.66062 × 10−5 | 5.41125 × 10−5 | 0.000130983 | 4.36905 × 10−7 | 1.78452 × 10−5 | 7.46267 × 10−5 | 7.06739 × 10−5 | 0.000124675 | 0.003597953 | |
| Self-adhering sheet waterproofing, | 0.000149483 | 0.000201005 | 0.001148973 | 8.59939 × 10−6 | 0.000142296 | 0.000580993 | 0.000604534 | 0.000246707 | 0.00366337 | |
| Clay roofing tile | 0.000564237 | 0.000755822 | 0.007659822 | 0.008668745 | 0.000661049 | 0.001774412 | 0.001804903 | 0.001340735 | 0.030127761 | |
| Mineral wool, board, generic | 0.001813047 | 0.000662714 | 0.00733811 | 0.017614889 | 0.000510529 | 0.0012066 | 0.001239511 | 0.000801798 | 0.00320181 | |
| Openings and Glazing | 0.003930943 | 0.005805592 | 0.01593243 | 0.001976474 | 0.002917307 | 0.00382259 | 0.003316237 | 0.010734695 | 0 | |
| Ceramic tile | 9.73376 × 10−5 | 9.80378 × 10−5 | 0.000949818 | 6.06119 × 10−5 | 0.000105364 | 0.000186567 | 0.000188101 | 0.00016594 | 0.107890603 | |
| Fiberglass mat gypsum sheathing | 0.001497502 | 0.002831595 | 0.009957769 | 0.034466929 | 0.001143646 | 0.002403061 | 0.002239819 | 0.004596388 | 0.035134455 | |
| Portland cement stucco | 0.001264855 | 0.00179097 | 0.023592253 | 2.24 × 10−7 | 0.001644864 | 0.002271247 | 0.002315929 | 0.001644714 | 0.035134455 | |
| Paint | 0.001280899 | 0.001801924 | 0.008502403 | 4.09165 × 10−7 | 0.001815558 | 0.002534874 | 0.002446404 | 0.003656551 | 0.044610486 | |
| Stone tile | 0.021366148 | 0.016157071 | 0.043584389 | 6.86565 × 10−5 | 0.022500503 | 0.008770665 | 0.008328647 | 0.014831794 | 0.111347162 |
| Material | Ideal Distance S1 | Negative Ideal Distance S1 | Relative Closeness S1 | TOPSIS Score S1 | |
|---|---|---|---|---|---|
| Scenario 1 | Cast-in-place concrete, 5000 psi | 0.270043032 | 0.272846812 | 0.502582274 | 0.502582274 |
| Cast-in-place concrete, 3000 psi | 0.369368667 | 0.067736533 | 0.154966202 | 0.154966202 | |
| Cast-in-place concrete, structural concrete, 2500 psi | 0.364835193 | 0.07366824 | 0.167999231 | 0.167999231 | |
| Stair, cast-in-place concrete | 0.372042888 | 0.0728961 | 0.163833923 | 0.163833923 | |
| Autoclaved aerated concrete block (AAC) | 0.361022531 | 0.072261336 | 0.166775967 | 0.166775967 | |
| Aluminum, angle | 0.424703564 | 0.018225169 | 0.041146956 | 0.041146956 | |
| Laminated wood panel board | 0.264922809 | 0.331571334 | 0.555866873 | 0.555866873 | |
| Asphalt felt sheet | 0.419055096 | 0.019595009 | 0.044671161 | 0.044671161 | |
| Self-adhering sheet waterproofing, modified bituminous sheet | 0.418485571 | 0.019669326 | 0.044891262 | 0.044891262 | |
| Clay roofing tile | 0.375724389 | 0.064866856 | 0.147226838 | 0.147226838 | |
| Mineral wool, board, generic | 0.416199568 | 0.029926014 | 0.067079797 | 0.067079797 | |
| Openings and Glazing | 0.417357168 | 0.023566969 | 0.053449033 | 0.053449033 | |
| Ceramic tile | 0.289375757 | 0.216553539 | 0.428031231 | 0.428031231 | |
| Fiberglass mat gypsum sheathing | 0.366897821 | 0.080677367 | 0.180254334 | 0.180254334 | |
| Portland cement stucco | 0.361669081 | 0.074245598 | 0.170321399 | 0.170321399 | |
| Paint | 0.355001648 | 0.091297701 | 0.204566064 | 0.204566064 | |
| Stone tile | 0.257605109 | 0.226497619 | 0.467870983 | 0.467870983 |
| Material | Ideal Distance | Negative Ideal Distance | Relative Closeness | TOPSIS Score S2 | |
|---|---|---|---|---|---|
| Scenario 2 | Cast-in-place concrete, 5000 psi | 0.148515709 | 0.411694322 | 0.734892806 | 0.734892806 |
| Laminated wood panel board | 0.409888658 | 0.168589044 | 0.291435683 | 0.291435683 | |
| Stone tile | 0.365103373 | 0.129668992 | 0.262078081 | 0.262078081 | |
| Ceramic tile | 0.414916775 | 0.112105954 | 0.212715596 | 0.212715596 | |
| Fiberglass mat gypsum sheathing | 0.420003067 | 0.074709083 | 0.151015259 | 0.151015259 | |
| Autoclaved aerated concrete block (AAC) | 0.403416445 | 0.054870372 | 0.119729327 | 0.119729327 | |
| Paint | 0.420032677 | 0.05494465 | 0.115678468 | 0.115678468 | |
| Portland cement stucco | 0.409400538 | 0.052289523 | 0.113256765 | 0.113256765 | |
| Cast-in-place concrete, structural concrete, 2500 psi | 0.416419471 | 0.049377683 | 0.106006837 | 0.106006837 | |
| Clay roofing tile | 0.425264091 | 0.050002327 | 0.105209046 | 0.105209046 | |
| Cast-in-place concrete, 3000 psi | 0.417571611 | 0.047152839 | 0.10146408 | 0.10146408 | |
| Mineral wool, board, generic | 0.434509885 | 0.048730811 | 0.100841695 | 0.100841695 | |
| Stair, cast-in-place concrete | 0.431408083 | 0.046554914 | 0.097402757 | 0.097402757 | |
| Openings and Glazing | 0.426625344 | 0.038713539 | 0.083194292 | 0.083194292 | |
| Self-adhering sheet waterproofing, modified bituminous sheet | 0.441331201 | 0.03063906 | 0.064917352 | 0.064917352 | |
| Asphalt felt sheet | 0.442430648 | 0.030588789 | 0.064667086 | 0.064667086 | |
| Aluminum, angle | 0.443909 | 0.030375282 | 0.064044462 | 0.064044462 |
References
- Islam, R.; Nazifa, T.H.; Yuniarto, A.; Uddin, A.S.; Salmiati, S.; Shahid, S. An empirical study of construction and demolition waste generation and implication of recycling. Waste Manag. 2019, 95, 10–21. [Google Scholar] [CrossRef] [PubMed]
- Lima, L.; Trindade, E.; Alencar, L.; Alencar, M.; Silva, L. Sustainability in the construction industry: A systematic review of the literature. J. Clean. Prod. 2021, 289, 125730. [Google Scholar] [CrossRef]
- Maqbool, R.; Saiba, M.R.; Altuwaim, A.; Rashid, Y.; Ashfaq, S. The influence of industrial attitudes and behaviours in adopting sustainable construction practices. Sustain. Dev. 2023, 31, 893–907. [Google Scholar] [CrossRef]
- Ahmed Ali, K.; Ahmad, M.I.; Yusup, Y. Issues, impacts, and mitigations of carbon dioxide emissions in the building sector. Sustainability 2020, 12, 7427. [Google Scholar] [CrossRef]
- Soust-Verdaguer, B.; Gutiérrez Moreno, J.A.; Llatas, C. Utilization of an automatic tool for building material selection by integrating life cycle sustainability assessment in the early design stages in BIM. Sustainability 2023, 15, 2274. [Google Scholar] [CrossRef]
- Khan, M.; McNally, C. A holistic review on the contribution of civil engineers for driving sustainable concrete construction in the built environment. Dev. Built Environ. 2023, 16, 100273. [Google Scholar] [CrossRef]
- Bribián, I.Z.; Capilla, A.V.; Usón, A.A. Life cycle assessment of building materials: Comparative analysis of energy and environmental impacts and evaluation of the eco-efficiency improvement potential. Build. Environ. 2011, 46, 1133–1140. [Google Scholar] [CrossRef]
- Chen, Y.; Okudan, G.E.; Riley, D.R. Sustainable performance criteria for construction method selection in concrete buildings. Autom. Constr. 2010, 19, 235–244. [Google Scholar] [CrossRef]
- Elnaggar, A. Nine principles of green heritage science: Life cycle assessment as a tool enabling green transformation. Herit. Sci. 2024, 12, 7. [Google Scholar] [CrossRef]
- Llatas, C.; Soust-Verdaguer, B.; Passer, A. implementing life cycle sustainability assessment during design stages in Building Information Modelling: From systematic literature review to a methodological approach. Build. Environ. 2020, 182, 107164. [Google Scholar] [CrossRef]
- Saade, M.; Erradhouani, B.; Pawlak, S.; Appendino, F.; Peuportier, B.; Roux, C. Combining circular and LCA indicators for the early design of urban projects. Int. J. Life Cycle Assess. 2022, 27, 1–19. [Google Scholar] [CrossRef]
- Jalaei, F.; Zoghi, M.; Khoshand, A. Life cycle environmental impact assessment to manage and optimize construction waste using Building Information Modeling (BIM). Int. J. Constr. Manag. 2021, 21, 784–801. [Google Scholar] [CrossRef]
- Abdelaal, M.A.; Seif, S.M.; El-Tafesh, M.M.; Bahnas, N.; Elserafy, M.M.; Bakhoum, E.S. Sustainable assessment of concrete structures using BIM–LCA–AHP integrated approach. Environ. Dev. Sustain. 2024, 26, 25669–25688. [Google Scholar] [CrossRef]
- Kamari, A.; Kotula, B.M.; Schultz, C.P.L. A BIM-based LCA tool for sustainable building design during the early design stage. Smart Sustain. Built Environ. 2022, 11, 217–244. [Google Scholar] [CrossRef]
- Zamagni, A.; Pesonen, H.L.; Swarr, T. From LCA to Life Cycle Sustainability Assessment: Concept, practice and future directions. Int. J. Life Cycle Assess. 2013, 18, 1637–1641. [Google Scholar] [CrossRef]
- Klöpffer, W.; Grahl, B. Life Cycle Assessment (LCA): A Guide to Best Practice; John Wiley & Sons: Hoboken, NJ, USA, 2014. [Google Scholar]
- Vieira, D.R.; Calmon, J.L.; Coelho, F.Z. Life cycle assessment (LCA) applied to the manufacturing of common and ecological concrete: A review. Constr. Build. Mater. 2016, 124, 656–666. [Google Scholar] [CrossRef]
- Cabeza, L.F.; Rincón, L.; Vilariño, V.; Pérez, G.; Castell, A. Life cycle assessment (LCA) and life cycle energy analysis (LCEA) of buildings and the building sector: A review. Renew. Sustain. Energy Rev. 2014, 29, 394–416. [Google Scholar] [CrossRef]
- Guinée, J.B.; Heijungs, R.; Huppes, G.; Zamagni, A.; Masoni, P.; Buonamici, R.; Ekvall, T.; Rydberg, T. Life cycle assessment: Past, present, and future. Environ. Sci. Technol. 2011, 45, 90–96. [Google Scholar] [CrossRef]
- Blengini, G.A.; Di Carlo, T. The changing role of life cycle phases, subsystems and materials in the LCA of low energy buildings. Energy Build. 2010, 42, 869–880. [Google Scholar] [CrossRef]
- Chen, L.; Huang, L.; Hua, J.; Chen, Z.; Wei, L.; Osman, A.I.; Fawzy, S.; Rooney, D.W.; Dong, L.; Yap, P.S. Green construction for low-carbon cities: A review. Environ. Chem. Lett. 2023, 21, 1627–1657. [Google Scholar] [CrossRef]
- Ortiz, O.; Castells, F.; Sonnemann, G. Sustainability in the construction industry: A review of recent developments based on LCA. Constr. Build. Mater. 2009, 23, 28–39. [Google Scholar] [CrossRef]
- Nwodo, M.N.; Anumba, C. A review of life cycle assessment of buildings using a systematic approach. Build. Environ. 2019, 162, 106290. [Google Scholar] [CrossRef]
- Schützenhofer, S.; Kovacic, I.; Rechberger, H.; Mack, S. Improvement of environmental sustainability and circular economy through construction waste management for material reuse. Sustainability 2022, 14, 11087. [Google Scholar] [CrossRef]
- Yeheyis, M.; Hewage, K.; Alam, M.S.; Eskicioglu, C.; Sadiq, R. An overview of construction and demolition waste management in Canada: A lifecycle analysis approach to sustainability. Clean Technol. Environ. Policy 2013, 15, 81–91. [Google Scholar] [CrossRef]
- Rasanjali, W.A.; Mendis, A.P.K.D.; Perera, B.A.K.S.; Disaratna, V. Implementing enterprise resource planning for lean waste minimisation: Challenges and proposed strategies. Smart Sustain. Built Environ. 2024, 13, 330–353. [Google Scholar] [CrossRef]
- Ajayi, S.O.; Oyedele, L.O.; Akinade, O.O.; Bilal, M.; Alaka, H.A.; Owolabi, H.A. Optimising material procurement for construction waste minimization: An exploration of success factors. Sustain. Mater. Technol. 2017, 11, 38–46. [Google Scholar] [CrossRef]
- Liu, J.; Liu, Y.; Wang, X. An environmental assessment model of construction and demolition waste based on system dynamics: A case study in Guangzhou. Environ. Sci. Pollut. Res. 2020, 27, 37237–37259. [Google Scholar] [CrossRef]
- Song, Q.; Li, J.; Zeng, X. Minimizing the increasing solid waste through zero waste strategy. J. Clean. Prod. 2015, 104, 199–210. [Google Scholar] [CrossRef]
- Anaç, M.; Gumusburun Ayalp, G.; Karabeyeser Bakan, M. A Roadmap for Reducing Construction Waste for Developing Countries. Sustainability 2024, 16, 5057. [Google Scholar] [CrossRef]
- Sakai, S.I.; Yano, J.; Hirai, Y.; Asari, M.; Yanagawa, R.; Matsuda, T.; Yoshida, H.; Yamada, T.; Kajiwara, N.; Moore, S.; et al. Waste prevention for sustainable resource and waste management. J. Mater. Cycles Waste Manag. 2017, 19, 1295–1313. [Google Scholar] [CrossRef]
- Kabirifar, K.; Mojtahedi, M.; Wang, C.; Tam, V.W. Construction and demolition waste management contributing factors coupled with reduce, reuse, and recycle strategies for effective waste management: A review. J. Clean. Prod. 2020, 263, 121265. [Google Scholar] [CrossRef]
- Cimen, Ö. Construction and built environment in circular economy: A comprehensive literature review. J. Clean. Prod. 2021, 305, 127180. [Google Scholar] [CrossRef]
- Huang, B.; Gao, X.; Xu, X.; Song, J.; Geng, Y.; Sarkis, J.; Fishman, T.; Kua, H.; Nakatani, J. A life cycle thinking framework to mitigate the environmental impact of building materials. One Earth 2020, 3, 564–573. [Google Scholar] [CrossRef]
- Wang, J.; Wei, J.; Liu, Z.; Huang, C.; Du, X. Life cycle assessment of building demolition waste based on building information modeling. Resour. Conserv. Recycl. 2022, 178, 106095. [Google Scholar] [CrossRef]
- Zorpas, A.A. Strategy development in the framework of waste management. Sci. Total Environ. 2020, 716, 137088. [Google Scholar] [CrossRef]
- Fatimah, Y.A.; Govindan, K.; Murniningsih, R.; Setiawan, A. Industry 4.0 based sustainable circular economy approach for smart waste management system to achieve sustainable development goals: A case study of Indonesia. J. Clean. Prod. 2020, 269, 122263. [Google Scholar] [CrossRef]
- Ogunmakinde, O.E.; Egbelakin, T.; Sher, W. Contributions of the circular economy to the UN sustainable development goals through sustainable construction. Resour. Conserv. Recycl. 2022, 178, 106023. [Google Scholar] [CrossRef]
- Salmenperä, H.; Pitkänen, K.; Kautto, P.; Saikku, L. Critical factors for enhancing the circular economy in waste management. J. Clean. Prod. 2021, 280, 124339. [Google Scholar] [CrossRef]
- Tang, Z.; Li, W.; Tam, V.W.; Xue, C. Advanced progress in recycling municipal and construction solid wastes for manufacturing sustainable construction materials. Resour. Conserv. Recycl. X 2020, 6, 100036. [Google Scholar] [CrossRef]
- İncekara, M. Determinants of process reengineering and waste management as resource efficiency practices and their impact on production cost performance of Small and Medium Enterprises in the manufacturing sector. J. Clean. Prod. 2022, 356, 131712. [Google Scholar] [CrossRef]
- Mohammed, A.B. Applying BIM to achieve sustainability throughout a building life cycle towards a sustainable BIM model. Int. J. Constr. Manag. 2022, 22, 148–165. [Google Scholar] [CrossRef]
- Najjar, M.; Figueiredo, K.; Palumbo, M.; Haddad, A. Integration of BIM and LCA: Evaluating the environmental impacts of building materials at an early stage of designing a typical office building. J. Build. Eng. 2017, 14, 115–126. [Google Scholar] [CrossRef]
- Serrano-Baena, M.M.; Ruiz-Díaz, C.; Boronat, P.G.; Mercader-Moyano, P. Optimising LCA in complex buildings with MLCAQ: A BIM-based methodology for automated multi-criteria materials selection. Energy Build. 2023, 294, 113219. [Google Scholar] [CrossRef]
- Soust-Verdaguer, B.; Llatas, C.; Moya, L. Comparative BIM-based Life Cycle Assessment of Uruguayan timber and concret × 10-masonry singl × 10-family houses in design stage. J. Clean. Prod. 2020, 277, 121958. [Google Scholar] [CrossRef]
- Horn, R.; Ebertshäuser, S.; Di Bari, R.; Jorgji, O.; Traunspurger, R.; Both, P.V. The BIM2LCA approach: An industry foundation classes (IFC)-based interface to integrate life cycle assessment in integral planning. Sustainability 2020, 12, 6558. [Google Scholar] [CrossRef]
- Palumbo, E.; Soust-Verdaguer, B.; Llatas, C.; Traverso, M. How to obtain accurate environmental impacts at early design stages in BIM when using environmental product declaration. A method to support decision-making. Sustainability 2020, 12, 6927. [Google Scholar] [CrossRef]
- Figueiredo, K.; Pierott, R.; Hammad, A.W.A.; Krüger, C.P. Sustainable material choice for construction projects: A Life Cycle Sustainability Assessment framework based on BIM and Fuzzy-AHP. Build. Environ. 2021, 188, 107518. [Google Scholar] [CrossRef]
- Tam, V.W.; Zhou, Y.; Illankoon, C.; Le, K.N. A critical review on BIM and LCA integration using the ISO 14040 framework. Build. Environ. 2022, 213, 108865. [Google Scholar] [CrossRef]
- Zavadskas, E.K.; Turskis, Z.; Kildienė, S. State of art surveys of overviews on MCDM/MADM methods. Technol. Econ. Dev. Econ. 2014, 20, 165–179. [Google Scholar] [CrossRef]
- Govindan, K.; Rajendran, S.; Sarkis, J.; Murugesan, P. Multi criteria decision making approaches for green supplier evaluation and selection: A literature review. J. Clean. Prod. 2015, 98, 66–83. [Google Scholar] [CrossRef]
- Siksnelyt × 10-Butkiene, I.; Zavadskas, E.K.; Streimikiene, D. Multi-criteria decision-making (MCDM) for the assessment of renewable energy technologies in a household: A review. Energies 2020, 13, 1164. [Google Scholar] [CrossRef]
- da Silva, T.R.; de Azevedo, A.R.G.; Cecchin, D.; Marvila, M.T.; Amran, M.; Fediuk, R.; Vatin, N.; Karelina, M.; Klyuev, S.; Szelag, M. Application of plastic wastes in construction materials: A review using the concept of lif × 10-cycle assessment in the context of recent research for future perspectives. Materials 2021, 14, 3549. [Google Scholar] [CrossRef] [PubMed]
- Emovon, I.; Oghenenyerovwho, O.S. Application of MCDM method in material selection for optimal design: A review. Results Mater. 2020, 7, 100115. [Google Scholar] [CrossRef]
- Sahoo, S.K.; Goswami, S.S. A comprehensive review of multiple criteria decision-making (MCDM) Methods: Advancements, applications, and future directions. Decis. Mak. Adv. 2023, 1, 25–48. [Google Scholar] [CrossRef]
- Chakraborty, S. TOPSIS and Modified TOPSIS: A comparative analysis. Decis. Anal. J. 2022, 2, 100021. [Google Scholar] [CrossRef]
- Çelikbilek, Y.; Tüysüz, F. An in-depth review of theory of the TOPSIS method: An experimental analysis. J. Manag. Anal. 2020, 7, 281–300. [Google Scholar] [CrossRef]
- Shih, H.S.; Olson, D.L. TOPSIS and Its Extensions: A Distanc × 10-Based MCDM Approach; Springer: Cham, Switzerland, 2022; Volume 447, pp. 1–215. [Google Scholar]
- Reddy, A.S.; Kumar, P.R.; Raj, P.A. Entropy-based fuzzy TOPSIS framework for selection of a sustainable building material. Int. J. Constr. Manag. 2022, 22, 1194–1205. [Google Scholar] [CrossRef]
- Fazeli, A.; Jalaei, F.; Khanzadi, M.; Banihashemi, S. BIM-integrated TOPSIS-Fuzzy framework to optimize selection of sustainable building components. Int. J. Constr. Manag. 2022, 22, 1240–1259. [Google Scholar] [CrossRef]
- Wang, K.; Ying, Z.; Goswami, S.S.; Yin, Y.; Zhao, Y. Investigating the role of artificial intelligence technologies in the construction industry using a Delphi-ANP-TOPSIS hybrid MCDM concept under a fuzzy environment. Sustainability 2023, 15, 11848. [Google Scholar] [CrossRef]
- Amorocho, J.A.P.; Hartmann, T. A multi-criteria decision-making framework for residential building renovation using pairwise comparison and TOPSIS methods. J. Build. Eng. 2022, 53, 104596. [Google Scholar] [CrossRef]
- Torkayesh, A.E.; Rajaeifar, M.A.; Rostom, M.; Malmir, B.; Yazdani, M.; Suh, S.; Heidrich, O. Integrating life cycle assessment and multi criteria decision making for sustainable waste management: Key issues and recommendations for future studies. Renew. Sustain. Energy Rev. 2022, 168, 112819. [Google Scholar] [CrossRef]
- Zolfani, S.H.; Görener, A.; Toker, K. A hybrid fuzzy MCDM approach for prioritizing the solutions of resource recovery business model adoption to overcome its barriers in emerging economies. J. Clean. Prod. 2023, 413, 137362. [Google Scholar] [CrossRef]
- Yi, Y.; Fei, X.; Fedele, A.; Lavagnolo, M.C.; Manzardo, A. Decision support model for selecting construction and demolition waste management alternatives: A life cycl × 10-based approach. Sci. Total Environ. 2024, 951, 175408. [Google Scholar] [CrossRef] [PubMed]
- Stanitsas, M.; Kirytopoulos, K.; Leopoulos, V. Integrating sustainability indicators into project management: The case of construction industry. J. Clean. Prod. 2021, 279, 123774. [Google Scholar] [CrossRef]
- Aires, R.F.D.F.; Ferreira, L. A new multi-criteria approach for sustainable material selection problem. Sustainability 2022, 14, 11191. [Google Scholar] [CrossRef]
- Yadegaridehkordi, E.; Hourmand, M.; Nilashi, M.; Alsolami, E.; Samad, S.; Mahmoud, M.; Alarood, A.A.; Zainol, A.; Majeed, H.D.; Shuib, L. Assessment of sustainability indicators for green building manufacturing using fuzzy multi-criteria decision making approach. J. Clean. Prod. 2020, 277, 122905. [Google Scholar] [CrossRef]
- Zoghi, M.; Rostami, G.; Khoshand, A.; Motalleb, F. Material selection in design for deconstruction using Kano model, fuzzy-AHP and TOPSIS methodology. Waste Manag. Res. 2022, 40, 410–419. [Google Scholar] [CrossRef]
- Zanghelini, G.M.; Cherubini, E.; Soares, S.R. How multi-criteria decision analysis (MCDA) is aiding life cycle assessment (LCA) in results interpretation. J. Clean. Prod. 2018, 172, 609–622. [Google Scholar] [CrossRef]
- Onat, N.C. Türkiye inşaat sektörünün global karbon ayak izi analizi. Sak. Univ. J. Sci. 2018, 22, 529–547. [Google Scholar]
- Arab Anvari, E.; Sadi, S.; Gholami, J.; Fayaz, R. Sustainable Material Selection in New Constructions: A Brute-Force Optimization Framework Using Parallel Computing, Cost Benefits, and Thermal Performance Analysis. Adv. Civ. Eng. 2024, 2024, 6245201. [Google Scholar] [CrossRef]
- Rane, N.; Achari, A.; Choudhary, S. Multi-Criteria Decision-Making (MCDM) as a powerful tool for sustainable development: Effective applications of AHP, FAHP, TOPSIS, ELECTRE, and VIKOR in sustainability. Int. Res. J. Mod. Eng. Technol. Sci. 2023, 5, 2654–2670. [Google Scholar]
- Alam Bhuiyan, M.M.; Hammad, A. A hybrid multi-criteria decision support system for selecting the most sustainable structural material for a multistory building construction. Sustainability 2023, 15, 3128. [Google Scholar] [CrossRef]
- AbouHamad, M.; Abu-Hamd, M. Framework for construction system selection based on life cycle cost and sustainability assessment. J. Clean. Prod. 2019, 241, 118397. [Google Scholar] [CrossRef]
- Benachio, G.L.F.; Freitas, M.D.C.D.; Tavares, S.F. Circular economy in the construction industry: A systematic literature review. J. Clean. Prod. 2020, 260, 121046. [Google Scholar] [CrossRef]
- Hossain, M.U.; Ng, S.T.; Antwi-Afari, P.; Amor, B. Circular economy and the construction industry: Existing trends, challenges and prospective framework for sustainable construction. Renew. Sustain. Energy Rev. 2020, 130, 109948. [Google Scholar] [CrossRef]
- Chen, W.; Yang, S.; Zhang, X.; Jordan, N.D.; Huang, J. Embodied energy and carbon emissions of building materials in China. Build. Environ. 2022, 207, 108434. [Google Scholar] [CrossRef]
- Ahmed, Z.; Asghar, M.M.; Malik, M.N.; Nawaz, K. Moving towards a sustainable environment: The dynamic linkage between natural resources, human capital, urbanization, economic growth, and ecological footprint in China. Resour. Policy 2020, 67, 101677. [Google Scholar] [CrossRef]
- Costa, F.N.; Ribeiro, D.V. Reduction in CO2 emissions during production of cement, with partial replacement of traditional raw materials by civil construction waste (CCW). J. Clean. Prod. 2020, 276, 123302. [Google Scholar] [CrossRef]
- Chen, Q.; Feng, H.; de Soto, B.G. Revamping construction supply chain processes with circular economy strategies: A systematic literature review. J. Clean. Prod. 2022, 335, 130240. [Google Scholar] [CrossRef]
- Talla, A.; McIlwaine, S. Industry 4.0 and the circular economy: Using design–stage digital technology to reduce construction waste. Smart Sustain. Built Environ. 2022, 13, 179–198. [Google Scholar] [CrossRef]
- Tokede, O.O.; Rodgers, G.; Waschl, B.; Salter, J.; Ashraf, M. Harmonising life cycle sustainability thinking in material substitution for buildings. Resources, Conserv. Recycl. 2022, 185, 106468. [Google Scholar] [CrossRef]
- Santos, P.; Cervantes, G.C.; Zaragoza-Benzal, A.; Byrne, A.; Karaca, F.; Ferrández, D.; Bragança, L. Circular Material Usage Strategies and Principles in Buildings: A Review. Buildings 2024, 14, 281. [Google Scholar] [CrossRef]
- Bakchan, A.; Faust, K.M.; Leite, F. Seven-dimensional automated construction waste quantification and management framework: Integration with project and site planning. Resour. Conserv. Recycl. 2019, 146, 462–474. [Google Scholar] [CrossRef]
- Ismail, Z.A. Planning the maintenance of green building materials for sustainable development: A building information modelling approach. J. Financ. Manag. Prop. Constr. 2021, 26, 141–157. [Google Scholar] [CrossRef]
- Sadeghi, S.; Abedini, F.; Rafie × 10-Dehkharghani, R.; Laknejadi, K. Covariance matrix adaptation evolution strategy for topology optimization of foundations under static and dynamic loadings. Comput. Geotech. 2021, 140, 104461. [Google Scholar] [CrossRef]
- Szigeti, C.; Major, Z.; Szabó, D.R.; Szennay, Á. The ecological footprint of construction materials—A standardized approach from hungary. Resources 2023, 12, 15. [Google Scholar] [CrossRef]
- ISO 14040; Environmental Management—Life Cycle Assessment—Principles and Framework. ISO: Geneva, Switzerland, 2006.
- ISO 14044; Environmental Management—Life Cycle Assessment—Requirements and Guidelines. ISO: Geneva, Switzerland, 2006.
- ISO 21930; Sustainability in Buildings and Civil Engineering Works, In Core Rules for Environmental Product Declarations of Construction Products and Services. ISO: Geneva, Switzerland, 2006.
- ISO 21931; Sustainability in Building Construction—Framework for Methods of Assessment of the Environmental Performance of Construction Works. ISO: Geneva, Switzerland, 2010.
- EN 15804; 2012—Sustainability of Construction Works—Environmental Product Declarations—Core Rules for the Product Category of Construction Products. CEN: Brussels, Belgium, 2019.
- EN 15978:2011; Sustainability of Construction Works–Assessment of Environmental Performance of Buildings–Calculation Method. CEN: Brussels, Belgium, 2011.
- Autodesk Tally 2024. Available online: www.choosetally.com (accessed on 4 August 2024).
- Ajayi, S.O.; Oyedele, L.O. Waste effectiveness of the construction industry: Understanding the impediments and requisites for improvements. Resour. Conserv. Recycl. 2015, 102, 101–112. [Google Scholar] [CrossRef]
- Hossain, M.U.; Wu, Z.; Poon, C.S. Comparative environmental evaluation of construction waste management through different waste sorting systems in Hong Kong. Waste Manag. 2017, 69, 325–335. [Google Scholar] [CrossRef]
- Johnsson, F.; Karlsson, I.; Rootzén, J.; Ahlbäck, A. The framing of a sustainable development goals assessment in decarbonizing the construction industry—Avoiding “Greenwashing”. Renew. Sustain. Energy Rev. 2020, 131, 110029. [Google Scholar] [CrossRef]
- Giesekam, J.; Barrett, J.R.; Taylor, P. Construction sector views on low carbon building materials. Build. Res. Inf. 2016, 44, 423–444. [Google Scholar] [CrossRef]
- Minhas, M.R.; Potdar, V. Development of an Effective System for Selecting Construction Materials for Sustainable Residential Housing in Western Australia. Appl. Math. 2020, 11, 825–844. [Google Scholar] [CrossRef]
- Mousavi-Nasab, S.H.; Sotoudeh-Anvari, A. A new multi-criteria decision making approach for sustainable material selection problem: A critical study on rank reversal problem. J. Clean. Prod. 2018, 182, 466–484. [Google Scholar] [CrossRef]
- Sánchez-Garrido, A.J.; Navarro, I.J.; Yepes, V. Multi-criteria decision-making applied to the sustainability of building structures based on Modern Methods of Construction. J. Clean. Prod. 2022, 330, 129724. [Google Scholar] [CrossRef]
- Pouraghajan, M.; Omrani, S.; Drogemuller, R. Enhancing decision-making in Australian concrete construction: A decision support model using an Entropy-TOPSIS approach. Eng. Constr. Archit. Manag. 2024. ahead-of-print. [Google Scholar] [CrossRef]
- Teng, Y.; Xu, J.; Pan, W.; Zhang, Y. A systematic review of the integration of building information modeling into life cycle assessment. Build. Environ. 2022, 221, 109260. [Google Scholar] [CrossRef]
- Hollberg, A.; Genova, G.; Habert, G. Evaluation of BIM-based LCA results for building design. Autom. Constr. 2020, 109, 102972. [Google Scholar] [CrossRef]
- Hosamo, H.; Coelho, G.B.; Buvik, E.; Drissi, S.; Kraniotis, D. Building sustainability through a novel exploration of dynamic LCA uncertainty: Overview and state of the art. Build. Environ. 2024, 264, 111922. [Google Scholar] [CrossRef]
- Morteza, A.; Ilbeigi, M.; Schwed, J. A blockchain information management framework for construction safety. Comput. Civ. Eng. 2021, 2021, 342–349. [Google Scholar]
- Rajabi, M.S.; Radzi, A.R.; Rezaeiashtiani, M.; Famili, A.; Rashidi, M.E.; Rahman, R.A. Key assessment criteria for organizational BIM capabilities: A cross-regional study. Buildings 2022, 12, 1013. [Google Scholar] [CrossRef]




| Construction Phases | Building Layers | Area (m2) | Materials Used |
|---|---|---|---|
| Gross floor area | 710 | ||
| Net internal area | 355 | ||
| Foundation phase | Foundation | 391 | Concrete, lean concrete, gravel, water proofing |
| Basement floor | Stairs | 17.82 | Concrete, masonry, plaster, marble, aluminum |
| Plumbing room | 9.90 | Concrete, masonry, plaster, paint, screed | |
| Hydrophore room | 10.37 | Concrete, masonry, plaster, paint, screed | |
| Generator room | 10.51 | Concrete, masonry, plaster, paint, screed | |
| Storage | 8.14 | Concrete, masonry, plaster, paint, screed | |
| Parking | 102.30 | Concrete, masonry, plaster, paint, screed | |
| Ground floor | Windbreak | 16.78 | Concrete, masonry, plaster, marble, paint, screed |
| Entrance hall | 36.91 | Concrete, masonry, plaster, marble, paint, screed | |
| Kitchen | 49.97 | Concrete, masonry, plaster, marble, paint, screed | |
| Living room | 63.30 | Concrete, masonry, plaster, laminated wood, marble, paint, screed | |
| Room 1 | 27.65 | Concrete, masonry, plaster, laminated wood, paint, screed | |
| Room 2 | 20.20 | Concrete, masonry, plaster, laminated wood, paint, screed | |
| Room 3 | 19.53 | Concrete, masonry, plaster, laminated wood, paint, screed | |
| Bathroom (all) | 26.18 | Concrete, masonry, ceramic tile, paint, screed | |
| Night hallway | 13.60 | Concrete, masonry, ceramic tile, paint, screed | |
| Storage | 9.39 | Concrete, masonry, ceramic tile, paint, screed | |
| Stairs | 12.12 | Concrete, masonry, marble, paint, screed | |
| Roof | 371 | Wood structure, clay tile |
| Revit Building Layer | Material | Material Quantity m2 (Autodesk Revit) | Material Quantity m3 (Autodesk Revit) | Amount of Material Used m2 or m3 (During Construction) | Material Waste % |
|---|---|---|---|---|---|
| Wall and floor | Concrete C30 | 591.26 | 618 | 4.522545073 | |
| Floor | Lean concrete | - | 39.21 | 41 | 4.565161948 |
| Floor | Gravel | - | 78.42 | 90 | 14.76664116 |
| Floor | Water-proofing material | 392 | - | 394 | 0.510204082 |
| Wall and floor | Water-proofing material | 385 | - | 387 | 0.519480519 |
| Floor | Screed | - | 44.76 | 47 | 5.004468275 |
| Wall | Masonry | 593 | - | 621.16 | 4.748735245 |
| Wall and floor | Plaster | 2248 | - | 2360 | 4.982206406 |
| Wall | Paint | 548 | - | 583 | 6.386861313 |
| Wall and floor | Ceramic tile | 147 | - | 169.49 | 15.29931973 |
| Floor | Marble | 159 | - | 162 | 1.886792453 |
| Assembled Stair | Stone tile | 38 | - | 44 | 15.78947368 |
| Floor | Laminated wood | 98 | - | 121 | 23.46938776 |
| Wall | Mineral wool | 881 | - | 885 | 0.454029512 |
| Roof | Roofing, tile | 371 | - | 386.85 | 4.272237197 |
| Equation: | |
| rij: normalized value; xij: value in the original decision matrix; m: number of alternatives | |
| Normalization of the “material waste” criteria for “cast-in-place concrete 5000 psi” material: | |
| Equation: | |
| : criterion weight | |
| Weighted normalization of the “material wastage” criteria for “cast-in-place concrete 5000 psi” according to Scenario 1: | |
| Ideal solution (A+) Equation: | |
| Negative ideal solution (A−) Equation: | |
| Normalized weights for the material wastage criteria (Scenario 1): | An example: Cast-in-place concrete, 5000 psi: 0.063785858 Ceramic tile: 0.215781206 Aluminum, angle: 0 Using three data sets, we can determine that the ideal solution would be “ceramic tile”, while the a negative ideal solution would be “aluminum angel”: |
| Distance to the ideal solution Equation: | ||
| Distance to negative ideal solution Equation: | ||
| An Example: Ideal distance calculations for “Cast-in-place concrete, 5000 psi” | Acidification potential: Ozone depletion potential: Global warming potential: Material waste: | (0.0)2 = 0.000 (0.0389 − 0.0777)2 = 0.001514 (0.0)2 = 0.000 (0.426 − 0.700)2 = 0.071410 |
| The square root of the sum of their squares: | ||
| An Example: Negative ideal distance calculations for “Cast-in-place concrete, 5000 psi” | Global warming potential: Acidification potential: Material waste: | (0.0389 − 0.245)2 = 0.065746 (0.0268− 0.0)2 = 0.000723 (0.426 − 0.300)2 = 0.004069 |
| The square root of the sum of their squares: | ||
| Equation: | |
| : Relative closeness value of the alternative; D+: Distance to the ideal solution; D−: Distance to the negative ideal solution | |
| Relative closeness value for “Cast-in-place concrete 5000 psi”: | |
| Global Warming Potential (kgCO2eq) | Acidification Potential (kgSO2eq) | Eutrophication Potential (kgNeq) | Ozone Depletion Potential (CFC-11eq) | Smog Formation Potential (kgO3eq) | Primary Energy Demand (MJ) | Non-Renewable Energy Demand (MJ) | Renewable Energy Demand (MJ) | |
|---|---|---|---|---|---|---|---|---|
| 03—Concrete | 5.57 × 105 | 1.82 × 103 | 9.21 × 101 | −4.39 × 10−4 | 3.10 × 104 | 5.14 × 106 | 4.82 × 106 | 3.25 × 105 |
| 04—Masonry | 3.90 × 104 | 5.87 × 101 | 4.02 × 100 | −2.34 × 10−6 | 1.17 × 103 | 3.24 × 105 | 2.74 × 105 | 5.01 × 104 |
| 05—Metals | 5.80 × 100 | 9.23 × 10−2 | 2.35 × 10−3 | 3.36 × 10−12 | 5.17 × 10−1 | 1.14 × 102 | 9.62 × 101 | 1.75 × 101 |
| 06—Woods | 6.62 × 102 | 2.50 × 101 | 5.83 × 100 | −4.05 × 10−9 | 2.43 × 102 | 8.69 × 104 | 2.04 × 104 | 6.66 × 104 |
| 07—Thermal and Moisture Protection | 2.08 × 104 | 9.67 × 101 | 3.72 × 100 | 3.79 × 10−4 | 8.70 × 102 | 3.66 × 105 | 3.43 × 105 | 2.26 × 104 |
| 08—Openings and Glazing | 2.08 × 104 | 1.47 × 102 | 1.06 × 101 | 2.85 × 10−5 | 1.88 × 103 | 3.77 × 105 | 3.05 × 105 | 7.31 × 104 |
| 09—Finishes | 1.13 × 105 | 9.54 × 102 | 4.14 × 101 | 4.99 × 10−4 | 1.75 × 104 | 1.60 × 106 | 1.43 × 106 | 1.69 × 105 |
| Grand Total | 7.51 × 105 | 3.10 × 103 | 1.58 × 102 | 4.66 × 10−4 | 5.27 × 104 | 7.89 × 106 | 7.19 × 106 | 7.07 × 105 |
| Global Warming Potential Total (kgCO2eq) | Acidification Potential Total (kgSO2eq) | Eutrophication Potential Total (kgNeq) | Ozone Depletion Potential Total (CFC-11eq) | Smog Formation Potential Total (kgO3eq) | Primary Energy Demand Total (MJ) | Non-Renewable Energy Demand Total (MJ) | Renewable Energy Demand Total (MJ) | |
|---|---|---|---|---|---|---|---|---|
| 03—Concrete | 5.57 × 105 | 1.82 × 103 | 9.21× 101 | −4.39 × 10−4 | 3.10 × 104 | 5.14 × 106 | 4.82 × 106 | 3.25 × 105 |
| Cast-in-place concrete, lightweight structural concrete, 3000 psi | 2.04 × 104 | 8.59 × 101 | 3.37 × 100 | 3.24 × 10−9 | 1.19 × 103 | 1.59 × 105 | 1.47 × 105 | 1.19 × 104 |
| Cast-in-place concrete, lightweight structural concrete, 5000 psi | 1.42 × 105 | 6.16 × 102 | 2.30 × 101 | −1.80 × 10−4 | 8.28 × 103 | 1.41 × 106 | 1.31 × 106 | 9.72 × 104 |
| Cast-in-place concrete, structural concrete, 2500 psi | 2.07 × 104 | 5.37 × 101 | 3.63 × 100 | 3.21 × 10−9 | 1.20 × 103 | 1.77 × 105 | 1.66 × 105 | 1.14 × 104 |
| Cast-in-place concrete, structural concrete, 5000 psi | 3.73 × 105 | 1.06 × 103 | 6.20 × 101 | −2.58 × 10−4 | 2.03 × 104 | 3.39 × 106 | 3.18 × 106 | 2.05 × 105 |
| Stair, cast-in-place concrete | 7.88 × 102 | 2.01 × 100 | 1.32 × 10−1 | −2.77 × 10−7 | 4.21 × 101 | 6.66 × 103 | 6.27 × 103 | 3.96 × 102 |
| 04—Masonry | 3.90 × 104 | 5.87 × 101 | 4.02 × 100 | −2.34 × 10−6 | 1.17 × 103 | 3.24 × 105 | 2.74 × 105 | 5.01 × 104 |
| Autoclaved aerated concrete block (AAC) | 3.90 × 104 | 5.87 × 101 | 4.02 × 100 | −2.34 × 10−6 | 1.17 × 103 | 3.24 × 105 | 2.74 × 105 | 5.01 × 104 |
| 05—Metals | 5.80 × 100 | 9.23 × 10−2 | 2.35 × 10−3 | 3.36 × 10−12 | 5.17 × 10−1 | 1.14 × 102 | 9.62 × 101 | 1.75 × 101 |
| Aluminum, angle | 5.80 × 100 | 9.23 × 10−2 | 2.35 × 10−3 | 3.36 × 10−12 | 5.17 × 10−1 | 1.14 × 102 | 9.62 × 101 | 1.75 × 101 |
| 06—Wood/Plastics/Composites | 6.62 × 102 | 2.50 × 101 | 5.83 × 100 | −4.05 × 10−9 | 2.43 × 102 | 8.69 × 104 | 2.04 × 104 | 6.66 × 104 |
| Laminated wood panel board | 6.62 × 102 | 2.50 × 101 | 5.83 × 100 | −4.05 × 10−9 | 2.43 × 102 | 8.69 × 104 | 2.04 × 104 | 6.66 × 104 |
| 07—Thermal and Moisture Protection | 2.08 × 104 | 9.67 × 101 | 3.72 × 100 | 3.79 × 10−4 | 8.70 × 102 | 3.66 × 105 | 3.43 × 105 | 2.26 × 104 |
| Asphalt felt sheet | 1.71 × 102 | 6.21 × 10−1 | 9.88 × 10−2 | 6.30 × 10−9 | 1.15 × 101 | 7.36 × 103 | 6.50 × 103 | 8.49 × 102 |
| Cellulose insulation, blown | −4.10 × 102 | 1.61 × 100 | 6.67 × 10−1 | 1.70 × 10−10 | 1.14 × 101 | 6.44 × 103 | 9.52 × 102 | 5.51 × 103 |
| Clay roofing tile | 1.00 × 104 | 2.11 × 101 | 1.38 × 100 | 1.25 × 10−4 | 4.26 × 102 | 1.75 × 105 | 1.66 × 105 | 9.13 × 103 |
| Mineral wool, board, generic | 9.58 × 103 | 6.78 × 101 | 1.21 × 100 | 2.54 × 10−4 | 3.29 × 102 | 1.19 × 105 | 1.14 × 105 | 5.46 × 103 |
| Self-adhering sheet waterproofing, modified bituminous sheet | 1.50 × 103 | 5.59 × 100 | 3.67 × 10−1 | 1.24 × 10−7 | 9.17 × 101 | 5.73 × 104 | 5.56 × 104 | 1.68 × 103 |
| 08—Openings and Glazing | 2.08 × 104 | 1.47 × 102 | 1.06 × 101 | 2.85 × 10−5 | 1.88 × 103 | 3.77 × 105 | 3.05 × 105 | 7.31 × 104 |
| Door frame, aluminum | 6.97 × 102 | 3.81 × 100 | 2.87 × 10−1 | 1.12 × 10−7 | 4.36 × 101 | 1.08 × 104 | 9.46 × 103 | 1.32 × 103 |
| Door, interior, wood, MDF core, flush | 6.31 × 102 | 1.44 × 101 | 2.93 × 100 | 2.80 × 10−5 | 1.24 × 102 | 4.42 × 104 | 2.03 × 104 | 2.40 × 104 |
| Glazing, double pane IGU | 1.31 × 104 | 1.01 × 102 | 4.38 × 100 | 5.22 × 10−9 | 1.29 × 103 | 1.88 × 105 | 1.79 × 105 | 9.39 × 103 |
| Window frame, aluminum | 2.15 × 103 | 1.15 × 101 | 8.40 × 10−1 | 3.28 × 10−7 | 1.31 × 102 | 3.36 × 104 | 2.92 × 104 | 4.27 × 103 |
| Window frame, vinyl | 1.08 × 103 | 2.76 × 100 | 3.22 × 10−1 | 2.96 × 10−8 | 4.32 × 101 | 1.97 × 104 | 1.80 × 104 | 1.76 × 103 |
| Window frame, wood | 3.19 × 103 | 1.36 × 101 | 1.87 × 100 | 7.40 × 10−9 | 2.45 × 102 | 8.07 × 104 | 4.85 × 104 | 3.24 × 104 |
| 09—Finishes | 1.13 × 105 | 9.54 × 102 | 4.14 × 101 | 4.99 × 10−4 | 1.75 × 104 | 1.60 × 106 | 1.43 × 106 | 1.69 × 105 |
| Ceramic tile | 1.24 × 103 | 3.64 × 100 | 1.79 × 10−1 | 8.74 × 10−7 | 6.79 × 101 | 1.84 × 104 | 1.73 × 104 | 1.13 × 103 |
| Gypsum plaster board | 1.30 × 1004 | 5.60 × 101 | 5.17 × 100 | 4.97 × 10−4 | 7.37 × 102 | 2.37 × 105 | 2.06 × 105 | 3.13 × 104 |
| Paint | 1.11 × 104 | 4.79 × 101 | 3.29 × 100 | 5.90 × 10−9 | 1.17 × 103 | 2.50 × 105 | 2.25 × 105 | 2.49 × 104 |
| Portland cement stucco | 3.08 × 104 | 4.73 × 101 | 3.27 × 100 | 3.23 × 10−9 | 1.06 × 103 | 2.24 × 105 | 2.13 × 105 | 1.12 × 104 |
| Stone tile | 5.69 × 104 | 7.99 × 102 | 2.95 × 101 | 9.90 × 10−7 | 1.45 × 104 | 8.65 × 105 | 7.66 × 105 | 1.01 × 105 |
| Grand Total | 7.51 × 105 | 3.10 × 103 | 1.58 × 102 | 4.66 × 10−4 | 5.27 × 104 | 7.89 × 106 | 7.19 × 106 | 7.07 × 105 |
| Material | Ideal Distance S1 | Negative Ideal Distance S1 | Relative Closeness S1 | Ranking Scenario 1 |
|---|---|---|---|---|
| Laminated wood panel board | 0.264922809 | 0.331571334 | 0.555866873 | 1 |
| Cast-in-place concrete, 5000 psi | 0.270043032 | 0.272846812 | 0.502582274 | 2 |
| Stone tile | 0.257605109 | 0.226497619 | 0.467870983 | 3 |
| Ceramic tile | 0.289375757 | 0.216553539 | 0.428031231 | 4 |
| Paint | 0.355001648 | 0.091297701 | 0.204566064 | 5 |
| Fiberglass mat gypsum sheathing | 0.366897821 | 0.080677367 | 0.180254334 | 6 |
| Portland cement stucco | 0.361669081 | 0.074245598 | 0.170321399 | 7 |
| Cast-in-place concrete, structural concrete, 2500 psi | 0.364835193 | 0.07366824 | 0.167999231 | 8 |
| Autoclaved aerated concrete block (AAC) | 0.361022531 | 0.072261336 | 0.166775967 | 9 |
| Stair, cast-in-place concrete | 0.372042888 | 0.0728961 | 0.163833923 | 10 |
| Cast-in-place concrete, 3000 psi | 0.369368667 | 0.067736533 | 0.154966202 | 11 |
| Clay roofing tile | 0.375724389 | 0.064866856 | 0.147226838 | 12 |
| Mineral wool, board, generic | 0.416199568 | 0.029926014 | 0.067079797 | 13 |
| Openings and Glazing | 0.417357168 | 0.023566969 | 0.053449033 | 14 |
| Self-adhering sheet waterproofing, modified bituminous sheet | 0.418485571 | 0.019669326 | 0.044891262 | 15 |
| Asphalt felt sheet | 0.419055096 | 0.019595009 | 0.044671161 | 16 |
| Aluminum, angle | 0.424703564 | 0.018225169 | 0.041146956 | 17 |
| Material | Ideal Distance S2 | Negative Ideal Distance S2 | Relative Closeness S2 | Ranking Scenario 2 |
|---|---|---|---|---|
| Cast-in-place concrete, 5000 psi | 0.148515709 | 0.411694322 | 0.734892806 | 1 |
| Laminated wood panel board | 0.409888658 | 0.168589044 | 0.291435683 | 2 |
| Stone tile | 0.365103373 | 0.129668992 | 0.262078081 | 3 |
| Ceramic tile | 0.414916775 | 0.112105954 | 0.212715596 | 4 |
| Fiberglass mat gypsum sheathing | 0.420003067 | 0.074709083 | 0.151015259 | 5 |
| Autoclaved aerated concrete block | 0.403416445 | 0.054870372 | 0.119729327 | 6 |
| Paint | 0.420032677 | 0.05494465 | 0.115678468 | 7 |
| Portland cement stucco | 0.409400538 | 0.052289523 | 0.113256765 | 8 |
| Cast-in-place concrete, structural concrete, 2500 psi | 0.416419471 | 0.049377683 | 0.106006837 | 9 |
| Clay roofing tile | 0.425264091 | 0.050002327 | 0.105209046 | 10 |
| Cast-in-place concrete, 3000 psi | 0.417571611 | 0.047152839 | 0.10146408 | 11 |
| Mineral wool, board, generic | 0.434509885 | 0.048730811 | 0.100841695 | 12 |
| Stair, cast-in-place concrete | 0.431408083 | 0.046554914 | 0.097402757 | 13 |
| Openings and Glazing | 0.426625344 | 0.038713539 | 0.083194292 | 14 |
| Self-adhering sheet waterproofing (basement) | 0.441331201 | 0.03063906 | 0.064917352 | 15 |
| Asphalt felt sheet (foundation) | 0.442430648 | 0.030588789 | 0.064667086 | 16 |
| Aluminum, angle | 0.443909 | 0.030375282 | 0.064044462 | 17 |
Disclaimer/Publisher’s Note: The statements, opinions and data contained in all publications are solely those of the individual author(s) and contributor(s) and not of MDPI and/or the editor(s). MDPI and/or the editor(s) disclaim responsibility for any injury to people or property resulting from any ideas, methods, instructions or products referred to in the content. |
© 2024 by the authors. Licensee MDPI, Basel, Switzerland. This article is an open access article distributed under the terms and conditions of the Creative Commons Attribution (CC BY) license (https://creativecommons.org/licenses/by/4.0/).
Share and Cite
Yardimci, Y.; Kurucay, E. LCA-TOPSIS Integration for Minimizing Material Waste in the Construction Sector: A BIM-Based Decision-Making. Buildings 2024, 14, 3919. https://doi.org/10.3390/buildings14123919
Yardimci Y, Kurucay E. LCA-TOPSIS Integration for Minimizing Material Waste in the Construction Sector: A BIM-Based Decision-Making. Buildings. 2024; 14(12):3919. https://doi.org/10.3390/buildings14123919
Chicago/Turabian StyleYardimci, Yigit, and Emre Kurucay. 2024. "LCA-TOPSIS Integration for Minimizing Material Waste in the Construction Sector: A BIM-Based Decision-Making" Buildings 14, no. 12: 3919. https://doi.org/10.3390/buildings14123919
APA StyleYardimci, Y., & Kurucay, E. (2024). LCA-TOPSIS Integration for Minimizing Material Waste in the Construction Sector: A BIM-Based Decision-Making. Buildings, 14(12), 3919. https://doi.org/10.3390/buildings14123919

