Dismissed Industrial Areas: The Urban Project of the Montedison Factory of Akgragas in Porto Empedocle Between the Past, Present, and Future
Abstract
1. Introduction
- To deepen the knowledge of the abandoned site, with reference to its origins, expansion, and decommissioning phases as well as its identity aspects (urban, architectural, environmental, and landscape-related);
- To define the guidelines for the decision-making process, which, in line with certain quality criteria, outline a methodological-operational pathway aimed at identifying a shared redevelopment proposal.
- To develop project ideas as broad scenario alternatives capable of providing directions for the re-functionalization of the site.
2. Literature Review: The Potential for Recovery and Industrial Conversion
2.1. Types of Interventions on Abandoned Industrial Buildings
- Restoration aimed at resuming original productive functions involves adaptation work if market conditions still exist to reactivate such functions.
- Recovery for productive conversion introduces new productive functions different from the original ones.
- Recovery for functional conversion repurposes buildings for new uses (Adaptive Reuse, RA)
- Demolition for building replacement or urban redevelopment may involve demolition and reconstruction or repurposing the spaces for other urban uses.
- Structural types are often designed to support high static loads and dynamic forces.
- Building envelopes are composed of load-bearing brick walls that provide good thermal inertia; frame structures offer opportunities for experimenting with energy-saving systems and technologies.
- Compact volumes with a low surface-to-volume ratio, expansive spaces with light between vertical supports, and considerable internal height, offer flexibility and adaptability for new uses.
- Glazed surfaces provide good natural lighting.
- Interstices and technical spaces are suitable for housing equipment and plant components, facilitating energy retrofit strategies [25].
2.2. Potential for Recovery and Reuse (RA)
- -
- Resource savings are useful for new constructions and for reducing land consumption, counteracting the rapid and disorderly processes of building that lead to the loss of urban environments and areas suitable for agricultural production, biodiversity, and landscape quality [28].
- -
- Ecological regeneration through the reuse of previously recovered industrial areas.
- -
- Social reappropriation of urban spaces and preservation of the collective memory of industrial past and present as well as the city’s history [29].
- -
- Integration of new functions, which act as a driver for social and economic improvement.
2.3. Studies on Conversion
- -
- Site remediation costs;
- -
- Characteristics of the property structure;
- -
- Compatibility of new uses with urban planning regulations and their distribution;
- -
- Historical and symbolic value.
2.4. Principles for a Design Approach to Functional Conversion
3. Materials and Methods
4. The Case Study, Montedison Area of Porto Empedocle: Results
4.1. The Relationship of the Plant with the Sea and the City
4.2. Italo Insolera and the Reconstruction Plan of Porto Empedocle
The Reconstruction Plans
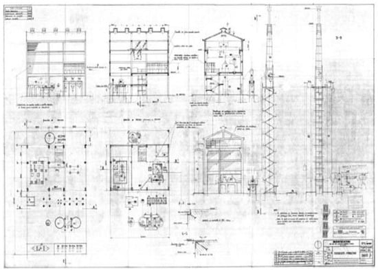
4.3. The Technical Description of the Buildings and General Works
5. Discussion
5.1. The Importance of Transforming Abandoned Industrial Areas
5.2. Conversion Policies for Former Industrial Areas
6. Conclusions
Supplementary Materials
Author Contributions
Funding
Data Availability Statement
Conflicts of Interest
References
- Foster, G.; Kreinin, H. A review of environmental impact indicators of cultural heritage buildings: A circular economy perspective. Environ. Res. Lett. 2020, 15, 043003. [Google Scholar] [CrossRef]
- Vizzareri, C.; Sangiorgio, V.; Fatiguso, F.; Calderazzi, A. A holistic approach for the adaptive reuse project selection. Land Use Policy 2021, 111, 105709. [Google Scholar] [CrossRef]
- Benito, P. Territorio, paisaje y herencia industrial: Debates y acciones en el contexto europeo. Doc. D’anàlisi Geogràfica 2012, 58, 443–457. [Google Scholar] [CrossRef]
- Añibarro, M.V.; Andrade, M.J.; Jiménez-Morales, E. A Multicriteria Approach to Adaptive Reuse of Industrial Heritage: Case Studies of Riverside Power Plants. Land 2023, 12, 314. [Google Scholar] [CrossRef]
- Fitzgerald, R. Historic building record and the Halifax Borough Market doors. Ind. Archaeol. Rev. 2007, 29, 51–74. [Google Scholar] [CrossRef]
- Palmer, M. Industrial archaeology: A thematic or a period discipline? Antiquity 2012, 64, 275–282. [Google Scholar] [CrossRef]
- Zhang, J.; Cenci, J.; Becue, V.; Koutra, S.; Ioakimidis, C.S. Recent Evolution of Research onIndustrial Heritage in Western Europe and China Based on Bibliometric Analysis. Sustainability 2020, 12, 5348. [Google Scholar] [CrossRef]
- Bottero, M.; D’Alpaos, C.; Oppio, A. Ranking of Adaptive Reuse Strategies for Abandoned Industrial Heritage in Vulnerable Contexts: A Multiple Criteria Decision Aiding Approach. Sustainability 2019, 11, 785. [Google Scholar] [CrossRef]
- Gholitabar, S.; Alipour, H.; Costa, C.M.M.d. An Empirical Investigation of Architectural Heritage Management Implications for Tourism: The Case of Portugal. Sustainability 2018, 10, 93. [Google Scholar] [CrossRef]
- Bullen, P.A.; Love, P.E.D. Adaptive reuse of heritage buildings. Struct. Surv. 2011, 29, 411–421. [Google Scholar] [CrossRef]
- Misirlisoy, D.; Gunce, K. Adaptive reuse strategies for heritage buildings: A holistic approach. Sustain. Cities Soc. 2016, 26, 91–98. [Google Scholar] [CrossRef]
- Stratton, M. (Ed.) Industrial Buildings: Conservation and Regeneration, 1st ed.; Taylor & Francis: Abingdon, UK, 2000. [Google Scholar] [CrossRef]
- UNESCO. Community Development Through World Heritage. 2011. Available online: http://unesdoc.unesco.org/ (accessed on 27 November 2024).
- Gravagnuolo, A.; Fusco Girard, L.; Ost, C.; Saleh, R. Evaluation criteria for a circular adaptive reuse of cultural heritage. BDC Boll. Del Cent. Calza Bini 2017, 17, 185–216. Available online: http://www.serena.unina.it/index.php/bdc/article/view/6040 (accessed on 27 November 2024).
- Wang, Y.; Hou, B. Development of Post-Industrial Heritage Landscape Design Based on Visual Cognitive Schema Theory: A Case Study of the Shou Gang Industrial Cultural Heritage Site. Buildings 2024, 14, 3194. [Google Scholar] [CrossRef]
- ISTAT. Census of Italian Abandoned Industrial Sites; National Institute of Statistics: Bucharest, Romania, 2012. [Google Scholar]
- Gregotti, V. Modificazione. Casabella 1984, 498–499, 2–7. [Google Scholar]
- Secchi, B. Le condizioni sono cambiate. Casabella 1984, 498–499, 48–56. [Google Scholar]
- CABERNET Network. Report Sustainable Regeneration of Disused Industrial Areas; University of Nottingham: Nottingham, UK, 2006. [Google Scholar]
- Haas, T.; Olsson, K. Transmutation and Reinvention of Public Spaces through Ideals of Urban Planning and Design. Space Cult. 2014, 17, 59–68. [Google Scholar] [CrossRef]
- Loures, L. Post-industrial landscapes as drivers for urban redevelopment: Public versus expert perspectives towards the benefits and barriers of the reuse of post-industrial sites in urban areas. Habitat Int. 2015, 45, 72–81. [Google Scholar] [CrossRef]
- Ma, P.; Li, X.; Lan, D. A Dual Strategy in the Adaptive Reuse of Industrial Heritage Buildings: The Shanghai West Bund Waterfront Refurbishment. Buildings 2023, 13, 1582. [Google Scholar] [CrossRef]
- Marshall, R. Waterfronts in Post-Industrial Cities; Spon: London, UK, 2001. [Google Scholar]
- Sposito, C. Sul Recupero Delle Aree Industriali Dismesse. Tecnologie, Materiali, Impianti Ecosostenibili e Innovativi; Santarcangelo Di Romagna (RN): Maggioli, Italy, 2012. [Google Scholar]
- Riva, G. Architettura e costruzioni industriali. Tecnologie per un recupero sostenibile. In L’architettura e le Sue Declinazioni; Labelli, F., Marini, S., Eds.; Ipertesto Edizioni: Verona, Italy, 2008; pp. 321–330. [Google Scholar]
- Yung, E.H.K.; Chan, E.H.W.; Xu, Y. Sustainable development and the rehabilitation of a historic urban district–Social sustainability in the case of Tianzifang in Shanghai. Sustain. Dev. 2014, 22, 95–112. [Google Scholar] [CrossRef]
- Conejos, S.; Langston, C.; Smith, J. (Eds.) Improving the Implementation of Adaptive Reuse Strategies for Historic Buildings. In Proceedings of the International Forum of Studies Titled SAVE HERITAGE: Safeguard Architectural, Visual, Environmental, Aversa, Italy, 9–11 June 2011; Institute of Sustainable Development and Architecture: Winnipeg, MB, Canada, 2011. [Google Scholar]
- Vitillo, P. Aree dismesse e rinascita delle città. Ecoscienza 2010, 3, 99–101. [Google Scholar]
- Fior, M. Le potenzialità del riuso per la città storica. Planum. J. Urban. 2012, 25, 1–5. [Google Scholar]
- Martelli, A. Sulle Condizioni Che Influenzano la Trasformabilità e Ostacolano la Riqualificazione Delle Aree Industriali Dismesse. Ph.D. Thesis, Università degli studi di Roma “La Sapienza”, Roma, Italy, 2005. [Google Scholar]
- Piemontese, F. La Dismissione in Europa: Sperimentazione Tecnico-Linguistica Nella Riqualificazione Delle Aree Dismesse. Ph.D. Thesis, Università degli Studi di Napoli “Federico II”, Napoli, Italy, 2007. [Google Scholar]
- Vitale, A. Luci e ombre sulla gestione del patrimonio industriale dismesso. Techne 2012, 3, 97–101. [Google Scholar]
- Piemontese, F. Aree Dismesse e Progetto Urbano: Architettura, Territorio, Trasformazione; Gangemi: Roma, Italy, 2008. [Google Scholar]
- Saunders, M.; Lewis, P.; Thornhill, A. Research Methods for Business Students, 4th ed.; Financial Times Prentice Hall: Edinburgh Gate, Harlow, UK, 2007. [Google Scholar]
- Castronovo, V.; Greco, A. Prometheus: Places and Spaces of Work 1872–1992; Electa-Sipi: Milan, Italy, 1993. [Google Scholar]
- Danserio, E.; Giaimo, C.; Spaziante, A. If the Voids Are Filled: Disused Industrial Areas; Case Studies: Milan, Italy, 2006. [Google Scholar]
- Magnaghi, A. Il Progetto Locale; Bollati Boringhieri: Turin, Italy, 2000. [Google Scholar]
- Bruttomesso, R. Waterfront: Una Nuova Frontiera Urbana, 30 Progetti di Riorganizzazione e Riuso di Area Urbane del sul Fonte d’acqua; Conzorzio Autonomo del Porto di Genova; International Centre Cities on Water: Venice, Italy, 1991. [Google Scholar]
- AA.VV. Francesco Cellini; Mondadori Electa: Milano, Italy, 2016. Available online: https://www.electa.it/prodotto/francesco-cellini/ (accessed on 27 November 2024).
- Clément, G. Le Jardin En Mouvement. (The Moving Garden); Pandora Editions: Oxfordshire, UK, 1991. [Google Scholar]
- Benz, A.; Fürst, D.; Kilper, H.; Rehfeld, D. Regionalisation: Theory, Practice and Prospects in Germany; Swedish Institute for Regional Research: Stockholm, Sweden, 2000. [Google Scholar]
- Höber, A.; Ganser, K. (Eds.) Industriekultur. Mythos und Moderne im Ruhrgebiet; Klartext: Essen, Germany, 1999. [Google Scholar]
- Manfred, S. Siebzig Kilometer Hoffnung. Die IBA Emscher Park. Erneuerung eines Industriegebiets; DVA: Stuttgart, Germany, 1999. [Google Scholar]
- Kunzmann, K.R.; Grohé, T. The International Building Exhibition Emscher Park: Another Approach to Sustainable Development. In Strategies for Sustainable Development of European Metropolitan Regions. European Metropolitan Regions Project, Proceedings of the Global Conference on the Urban Future, Berlin, Germany, 4–6 July 2000; Lutzky, N., Ed.; METREX: Orange, CA, USA, 2000. [Google Scholar]
- Kunzmann, K.R. Creative Brownfield Redevelopment: The Experience of the IBA Emscher Park Initiative in the Ruhr in Germany. Recycl. City Use Reuse Urban 2004, 3, 201–217. [Google Scholar]
- Greenstein, R.; Sungu-Eryilmaz, Y. (Eds.) Recycling the City: The Use and Reuse of Urban Land; Lincoln Institute of Land Policy: Cambridge, UK, 2004; pp. 201–217. [Google Scholar]
















| Name | Number | State | Current |
|---|---|---|---|
| Direction Technical Offices Administrative Offices Chemical Laboratory | 1 | existing building | good condition |
| Concierge, social services, refectory, changing rooms, and restrooms for workers | 1′ | existing building | good condition |
| Construction and Silos for phosphorite | 2 | existing building | good condition |
| Building—Salt and nitrogen bag storage | 3 | existing building | good condition |
| Seven (currently four) phosphate silos and phosphoric acid plant building | 4 | Part were demolished in 2007 | good condition |
| Nitrogenous fertilizer storage (superphosphate) | 5 | existing building | good condition |
| Potassium nitrate storage | 6 | demolished in 2007 | |
| Spherical tanks (two) of NH3, Ammonia | 7 | demolished in 2007 | |
| Workshops building and stock warehouse | 8 | existing building | good condition |
| Complex plant—broth M and B, grinding and kneading | 9 | existing building | ruin |
| Complex plant M. B. C., product storage | 10 | demolished in 2007 | |
| Walkway that connected the M. B. C. complex, the Product Storage, and the Double Exchange Storage (D. E.) | 11 | demolished in 2007 | |
| Double exchange storage (D. E.) | 12 | existing building | ruin |
| Walkway between the double switch plant (D. S.) and the double switch storage (D. S.) | 13 | existing building | ruin |
| Double exchange system (D. E.) | 14 | existing building | |
| Potassium nitrate plant—Building | 15 | existing building | ruin |
| Potassium nitrate plant—Double storage | 16 | existing building | ruin |
| Nitrate plant | 17 | demolished in 2007 | |
| Water tower | 17′ | demolished in 2007 |
Disclaimer/Publisher’s Note: The statements, opinions and data contained in all publications are solely those of the individual author(s) and contributor(s) and not of MDPI and/or the editor(s). MDPI and/or the editor(s) disclaim responsibility for any injury to people or property resulting from any ideas, methods, instructions or products referred to in the content. |
© 2024 by the authors. Licensee MDPI, Basel, Switzerland. This article is an open access article distributed under the terms and conditions of the Creative Commons Attribution (CC BY) license (https://creativecommons.org/licenses/by/4.0/).
Share and Cite
Syed, K.; Andrade, M.J.; Casares, L.M. Dismissed Industrial Areas: The Urban Project of the Montedison Factory of Akgragas in Porto Empedocle Between the Past, Present, and Future. Buildings 2024, 14, 3895. https://doi.org/10.3390/buildings14123895
Syed K, Andrade MJ, Casares LM. Dismissed Industrial Areas: The Urban Project of the Montedison Factory of Akgragas in Porto Empedocle Between the Past, Present, and Future. Buildings. 2024; 14(12):3895. https://doi.org/10.3390/buildings14123895
Chicago/Turabian StyleSyed, Karim, María J. Andrade, and Luis Machuca Casares. 2024. "Dismissed Industrial Areas: The Urban Project of the Montedison Factory of Akgragas in Porto Empedocle Between the Past, Present, and Future" Buildings 14, no. 12: 3895. https://doi.org/10.3390/buildings14123895
APA StyleSyed, K., Andrade, M. J., & Casares, L. M. (2024). Dismissed Industrial Areas: The Urban Project of the Montedison Factory of Akgragas in Porto Empedocle Between the Past, Present, and Future. Buildings, 14(12), 3895. https://doi.org/10.3390/buildings14123895

