Seismic Response of Prestressed Self-Centering Moment-Resisting Frames
Abstract
1. Introduction
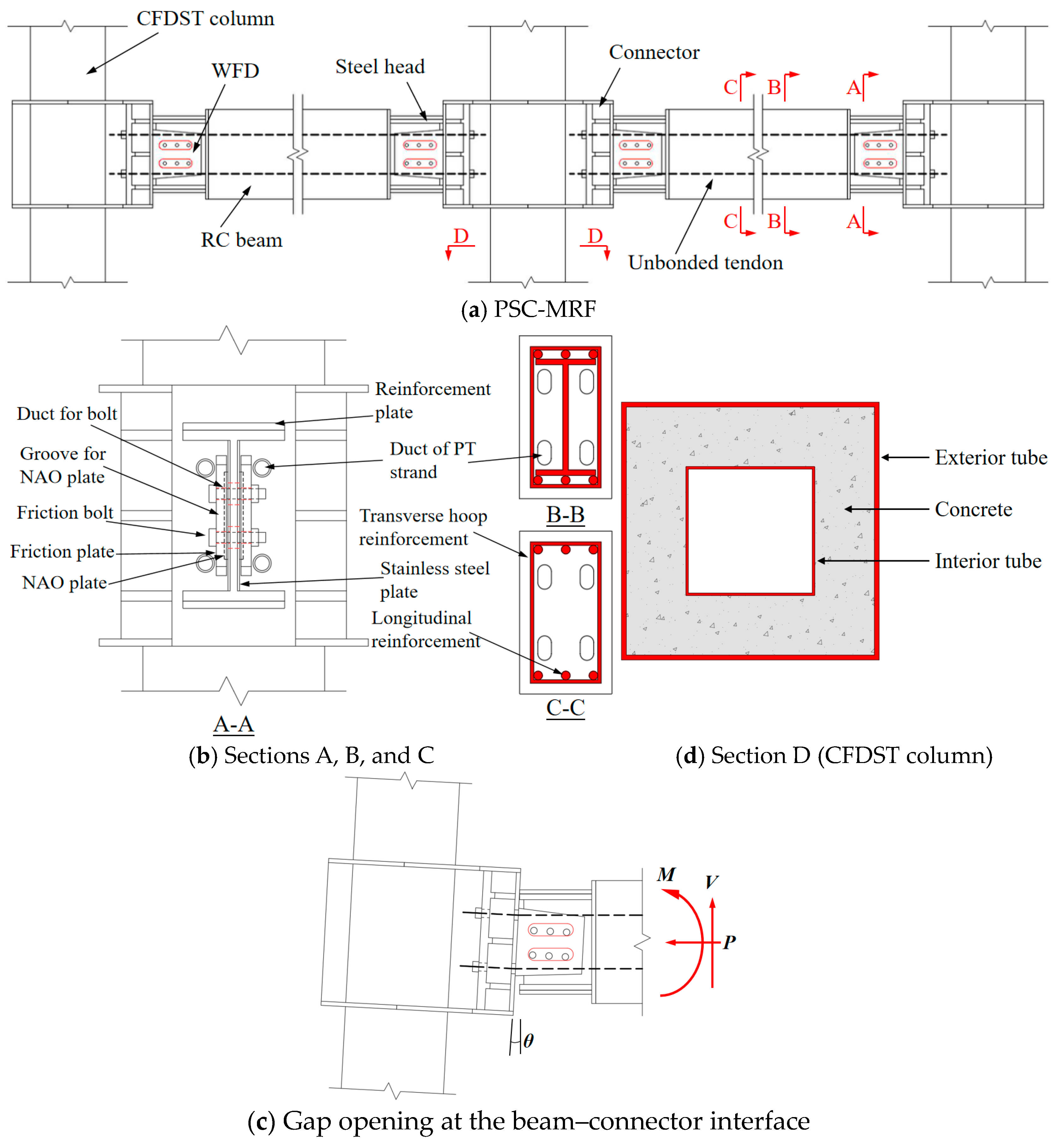
2. Configuration and Mechanical Behavior of PSC Connections
3. One-Story PSC-MRFs
3.1. Analytical Model
3.2. Analysis of Results
4. Six-Story PSC-MRFs
4.1. Analytical Model
4.2. Selection of Ground Motions
4.3. Dynamic Response
5. Consideration of Different Initial States of Adjacent Bays
5.1. Analytical Model
5.2. Analysis of Results
6. Sensitivity Analysis of βE
6.1. Static Analysis
6.2. Dynamic Analysis
7. Conclusions
Author Contributions
Funding
Data Availability Statement
Conflicts of Interest
Appendix A
| Symbol | Definition |
|---|---|
| P: | Resultant force of all tendons |
| Ff: | Friction generated by the WFD |
| Nc and Vc: | Axial force and shear force at the beam–connector interface, respectively |
| Ti: | Tension force of the tendons |
| r: | Distance from Ff to the center of rotation (COR) |
| di: | Distance from Ti to COR |
| M: | Moment at the beam–connector interface |
| MT and Mf: | Contributions of the PT tendons and the WFD to M, respectively |
| Ti0 and ΔTi: | Prestressing force and tension increment of the tendon, respectively |
| ki: | Tensile stiffness of the PT tendon |
| θ: | Angle at which the beam–connector interface is opened |
| MT0: | Moment resistance provided by the PT tendons in the initial state of the connection |
| K: | Rotational stiffness after the gap is opened |
| MIGO: | Imminent moment of gap opening |
| θTY: | Opening angle of the gap when the tendon yields |
| βE: | Hysteretic energy dissipation ratio |
| nb and nc: | Total numbers of tendons in a beam and a column, respectively |
| T0b and T0c: | Prestress forces of an individual tendon in the beams and columns respectively |
| MIGO-J and MIGO-C: | Imminent moment of gap opening at the interface between the beam and the connector and between the bottom-story column foot and the base, respectively |
| θmax: | Maximum inter-story drift |
| θr: | Residual inter-story drift |
| SCR: | Self-centering ratio |
References
- Song, L.L.; Guo, T.; Cao, Z.L. Seismic response of self-centering prestressed concrete moment resisting frames with web friction devices. Soil. Dyn. Earthq. Eng. 2015, 71, 151–162. [Google Scholar] [CrossRef]
- Tsai, K.C.; Hsiao, C.P.; Bruneau, M. Overview of building damages in 921 Chi-Chi earthquake. Earthq. Eng. Eng. Seismol. 2000, 2, 93–108. [Google Scholar]
- Zhao, B.; Taucer, F.; Rossetto, T. Field investigation on the performance of building structures during the 12 May 2008 Wenchuan earthquake in China. Eng. Struct. 2009, 31, 1707–1723. [Google Scholar] [CrossRef]
- Huang, H.; Han, L.H.; Zhao, X.L. Investigation on concrete filled double skin steel tubes (CFDSTs) under pure torsion. J. Constr. Steel Res. 2013, 90, 221–234. [Google Scholar] [CrossRef]
- Tao, Z.; Han, L.H.; Zhao, X.L. Behaviour of concrete-filled double skin (CHS inner and CHS outer) steel tubular stub columns and beam-columns. J. Constr. Steel Res. 2004, 60, 1129–1158. [Google Scholar] [CrossRef]
- Zhang, Y.; Guo, D. Structural Analysis of Concrete-Filled Double Steel Tubes; Springer: Singapore, 2021. [Google Scholar]
- Hu, Y.; Zhao, J.; Zhang, D.; Chen, C. Experimental seismic performance of CFDST-steel beam frames with different construction details. J. Constr. Steel Res. 2019, 162, 105736. [Google Scholar] [CrossRef]
- Fan, J.; Zhao, J. Experimental investigation and analytical modeling of steel beam-to-CFDST column connection. J. Constr. Steel Res. 2022, 190, 107164. [Google Scholar] [CrossRef]
- Ahmed, A.D.; Güneyisi, E. Lateral response of double skin tubular column to steel beam composite frames. Turk. J. Eng. 2022, 6, 16–25. [Google Scholar] [CrossRef]
- Fan, J.; Zhao, J.; Zhu, Q.; Ni, Z.; Liu, J. Seismic behavior and analytical model for a fully bolted joint between CFDST columns and steel beams. Structures 2022, 42, 515–530. [Google Scholar] [CrossRef]
- Yin, Y.Z.; Zhang, Y. Research on the joint of concrete-filled steel tubular column and steel beam. Appl. Mech. Mater. 2013, 351, 174–178. [Google Scholar] [CrossRef]
- Wang, J.; Wang, W.; Guo, L. Seismic tests and nonlinear model of beam-CFDST column joints with blind fasteners. J. Build Eng. 2022, 45, 103415. [Google Scholar] [CrossRef]
- Guo, L.; Wang, J.; Yang, T.Y.; Wang, W.; Zhan, B. Study and design of assembled CFDST column-beam connections considering column wall failure. Steel Compos. Struct. 2021, 39, 201–213. [Google Scholar]
- Fan, J.; Zhao, J.; Hua, L.; Sun, S.; Gao, W.; Wang, Z. Seismic performance of prefabricated joint for hollow CFDST column. J. Build. Eng. 2022, 45, 103653. [Google Scholar] [CrossRef]
- Wang, J.; Guo, L.; Guo, X.; Ding, Z. Seismic response investigation on CFDST column to steel beam blind-bolted connections. J. Constr. Steel Res. 2019, 161, 137–153. [Google Scholar] [CrossRef]
- Wang, J.; Guo, L. Experimental and analytical behavior of square CFDST column blind bolted to steel beam connections. Int. J. Steel Struct. 2020, 20, 612–635. [Google Scholar] [CrossRef]
- Guo, L.; Wang, J.; Wang, W.; Duan, M. Seismic evaluation and calculation models of CFDST column blind bolted to composite beam joints with partial shear interaction. Eng. Struct. 2019, 196, 109269. [Google Scholar] [CrossRef]
- Guo, L.; Wang, J.; Wang, W. Theoretical model and structural performance of assembled joint between circular CFDST column and composite beam. Arch. Civ. Mech. Eng. 2020, 20, 75. [Google Scholar] [CrossRef]
- Zhang, D.; Zhao, J.; He, S. Cyclic testing of concrete-filled double-skin steel tubular column to steel beam joint with RC slab. Adv. Civ. Eng. 2018, 2018, 7126393. [Google Scholar] [CrossRef]
- Zhang, Y.; Gao, J.; Li, Y.; Demoha, K. Experimental analysis of hysteretic behavior and strain field of external diaphragm joints between steel beams and CFDST columns. Adv. Struct. Eng. 2020, 23, 1129–1141. [Google Scholar] [CrossRef]
- Zhang, Y.; Jia, H.; Li, Y.; Demoha, K. Experiments on cyclic performance of external diaphragm joints between CFDST columns and steel beams. Bull. Earthq. Eng. 2020, 18, 3843–3861. [Google Scholar] [CrossRef]
- Zhang, Y.F.; Zhao, J.H.; Cai, C.S. Seismic behavior of ring beam joints between concrete-filled twin steel tubes columns and reinforced concrete beams. Eng. Struct. 2012, 39, 1–10. [Google Scholar] [CrossRef]
- Li, N.; Zhang, D.N. Numerical simulation of joint between concrete-filled square steel tubular column and steel beam on seismic behavior. Appl. Mech. Mater. 2015, 744, 207–210. [Google Scholar] [CrossRef]
- Ma, L.; Shi, Q.; Wang, B.; Tao, Y.; Wang, P. Research on design and numerical simulation of self-centering prefabricated RC beam-column joint with pre-pressed disc spring devices. Soil. Dyn. Earthq. Eng. 2023, 166, 107762. [Google Scholar] [CrossRef]
- Xie, Q.; Liu, Y.; Zhang, B.; Wu, Y.; Hu, F. Seismic performance of glulam frame with friction damper and column shoe: Experimental investigation and simplified numerical model. Eng. Struct. 2024, 298, 117036. [Google Scholar] [CrossRef]
- Song, L.; Guo, T.; Chen, C. Experimental and numerical study of a self-centering prestressed concrete moment resisting frame connection with bolted web friction devices. Earthq. Eng. Struct. D 2014, 43, 529–545. [Google Scholar] [CrossRef]
- Huang, L.; Zhou, Z.; Huang, X.; Wang, Y. Variable friction damped self-centering precast concrete beam–column connections with hidden corbels: Experimental investigation and theoretical analysis. Eng. Struct. 2020, 206, 110150. [Google Scholar] [CrossRef]
- Huang, L.; Zhou, Z.; Clayton, P.M.; Zeng, B.; Qiu, J. Experimental investigation of friction-damped self-centering prestressed concrete beam-column connections with hidden corbels. J. Struct. Eng. 2020, 146, 04019228. [Google Scholar] [CrossRef]
- Wolski, M.; Ricles, J.M.; Sause, R. Experimental study of a self-centering beam–column connection with bottom flange friction device. J. Struct. Eng. 2009, 135, 479–488. [Google Scholar] [CrossRef]
- Kurama, Y. A friction damper for post-tensioned precast concrete moment frames. PCI J. 2004, 49, 112–133. [Google Scholar]
- Koshikawa, T. Moment and energy dissipation capacities of post-tensioned precast concrete connections employing a friction device. Eng. Struct. 2017, 138, 170–180. [Google Scholar] [CrossRef]
- Guo, T.; Song, L.; Zhang, G. Numerical simulation of the seismic behavior of self-centering steel beam-column connections with bottom flange friction devices. Earthq. Eng. Eng. Vib. 2011, 10, 229–238. [Google Scholar] [CrossRef]
- Wu, Z.; Lu, X.; Li, L.; Bao, H.; Lu, Z.; Yu, K. Seismic performance of full-scale self-centering reinforced concrete beam-column joints: Experimental, numerical and theoretical analysis. J. Build. Eng. 2023, 78, 107683. [Google Scholar] [CrossRef]
- Cui, Y.; Lu, X.; Jiang, C. Experimental investigation of tri-axial self-centering reinforced concrete frame structures through shaking table tests. Eng. Struct. 2017, 132, 684–694. [Google Scholar] [CrossRef]
- Song, L.L.; Guo, T.; Gu, Y.; Cao, Z.L. Experimental study of a self-centering prestressed concrete frame subassembly. Eng. Struct. 2015, 88, 176–188. [Google Scholar] [CrossRef]
- Huang, L.; Zhou, Z.; Peng, Z.; Ma, J. Experimental investigation of a self-centering precast concrete beam-to-column connection with top and bottom friction energy dissipaters. Struct. Des. Tall Spec. Build. 2020, 29, e1707. [Google Scholar] [CrossRef]
- Yan, X.; Shi, S.; Liu, X.; Mao, H. Numerical analysis of mechanical behavior of self-centering joint between CFDST column and RC beam. Buildings 2023, 13, 135. [Google Scholar] [CrossRef]
- Yan, X.; Shi, S.; Wang, F.; Mao, H. Seismic fragility analysis of prefabricated self-centering frame structure. J. Constr. Steel Res. 2024, 220, 108843. [Google Scholar] [CrossRef]
- Yao, Y.; Huang, H.; Zhang, W.; Ye, Y.; Xin, L.; Liu, Y. Seismic performance of steel-PEC spliced frame beam. J. Constr. Steel Res. 2022, 197, 107456. [Google Scholar] [CrossRef]
- Huang, H.; Chen, Z.; Zhao, M.; Wang, B.; Ye, Y. Seismic performance of frame with middle partially encased composite brace and steel-hollow core partially encased composite spliced frame beam. J. Build. Eng. 2024, 95, 110226. [Google Scholar] [CrossRef]
- Seo, C.Y.; Sause, R. Ductility demands on self-centering systems under earthquake loading. ACI Struct. J. 2005, 102, 275–285. [Google Scholar]
- ACI Innovation Task Group. Acceptance Criteria for Moment Frames Based on Structural Testing and Commentary; American Concrete Institute: Farmington Hills, MI, USA, 2001. [Google Scholar]
- Huang, L.; Zhou, Z.; Wei, Y.; Xie, Q.; Sun, X. Seismic performance and resilience assessment of friction damped self-centering prestressed concrete frames. Eng. Struct. 2022, 263, 114346. [Google Scholar] [CrossRef]
- Eljajeh, Y.; Petkovski, M. Centralized semi-active control of post-tensioned steel frames. Earthq. Eng. Struct. D 2015, 44, 79–100. [Google Scholar] [CrossRef]
- Christopoulos, C.; Filiatrault, A.; Folz, B. Seismic response of self-centring hysteretic SDOF systems. Earthq. Eng. Struct. D 2002, 31, 1131–1150. [Google Scholar] [CrossRef]
- Filippou, F.C.; Popov, E.P.; Bertero, V.V. Effects of Bond Deterioration on Hysteretic Behavior of Reinforced Concrete Joints; National Technicallnformation Service, U.S. Departmentof Commerce: Springfield, VA, USA, 1983.
- Mohd Yassin, M.H. Nonlinear Analysis of Prestressed Concrete Structures under Monotonic and Cyclic Loads. Ph.D. Thesis, University of California, Berkeley, CA, USA, 1994. [Google Scholar]
- Priestley MJ, N.; Sritharan, S.; Conley, J.R.; Pampanin, S.S. Preliminary results and conclusions from the PRESSS five-story precast concrete test building. PCI J. 1999, 44, 42–67. [Google Scholar] [CrossRef]
- Christopoulos, C.; Tremblay, R.; Kim, H.-J.; Lacerte, M. Self-centering energy dissipative bracing system for the seismic resistance of structures: Development and validation. J. Struct. Eng. 2008, 134, 96–107. [Google Scholar] [CrossRef]
- GB 50011-2010; Code for Seismic Design of Buildings. National Standards of the People’s Republic of China: Beijing, China, 2010. (In Chinese)
- Zhang, Y.; Shi, Y.; Sun, B.; Wang, Z. Estimation of aleatory randomness by Sa (T1)-based intensity measures in fragility analysis of reinforced concrete frame structures. CMES Comput. Model. Eng. Sci. 2022, 130, 73–96. [Google Scholar] [CrossRef]
- Huang, L.; Clayton, P.M.; Zhou, Z. Seismic design and performance of self-centering precast concrete frames with variable friction dampers. Eng. Struct. 2021, 245, 112863. [Google Scholar] [CrossRef]
- Qiu, C.X.; Zhu, S. Performance-based seismic design of self-centering steel frames with SMA-based braces. Eng. Struct. 2017, 130, 67–82. [Google Scholar] [CrossRef]
- FEMA 356; Prestandard and Commentary for the Seismic Rehabilitation of Buildings. Federal Emergency Management Agency: Washington, DC, USA, 2000.
















| Frame | Bay No. | nb | nc | T0b | T0c | Ff | MIGO-J | MIGO-C | βE |
|---|---|---|---|---|---|---|---|---|---|
| kN | kN | kN | kN∙m | kN∙m | |||||
| PSC1 | 1 | 4 | 4 | 70 | 109 | 120 | 131.4 | 174.7 | 0.457 |
| PSC2 | 1 | 4 | 4 | 70 | 109 | 120 | 131.4 | 174.7 | 0.457 |
| 2 | 42 | 102.8 | 0.583 | ||||||
| PSC3 | 1 | 4 | 4 | 70 | 109 | 120 | 131.4 | 174.7 | 0.457 |
| 2 | 42 | 102.8 | 0.583 | ||||||
| 3 | 14 | 74.3 | 0.808 |
| Building Floor | Column Area | Beam Area | ρc | ρb |
|---|---|---|---|---|
| mm2 | mm2 | % | % | |
| 1 | 650 × 650 | 400 × 700 | 1.86 | 1.94 |
| 2 | 600 × 600 | 400 × 650 | 2.18 | 2.09 |
| 3 | 600 × 600 | 400 × 650 | 1.89 | 2.09 |
| 4 | 550 × 550 | 400 × 600 | 2.25 | 1.90 |
| 5 | 550 × 550 | 400 × 600 | 1.94 | 1.27 |
| 6 | 550 × 550 | 400 × 600 | 1.66 | 0.79 |
| Building Floor | Column Area | Beam Area | Ff | T0 | MIGO-J | βE | |
|---|---|---|---|---|---|---|---|
| mm2 | mm2 | kN | kN | kN∙m | |||
| Exterior Tube | Interior Tube | ||||||
| 1 | 650 × 650 × 12 | 325 × 325 × 6 | 400 × 700 | 120 | 70 | 131.4 | 0.457 |
| 2 | 600 × 600 × 10 | 300 × 300 × 6 | 400 × 650 | ||||
| 3 | 600 × 600 × 10 | 300 × 300 × 6 | 400 × 650 | ||||
| 4 | 550 × 550 × 10 | 275 × 275 × 6 | 400 × 600 | ||||
| 5 | 550 × 550 × 10 | 275 × 275 × 6 | 400 × 600 | ||||
| 6 | 550 × 550 × 8 | 250 × 250 × 6 | 400 × 600 | ||||
| Frame | Periods | ||
|---|---|---|---|
| First | Second | Third | |
| RCF | 0.895 | 0.310 | 0.175 |
| PSC_BM | 0.915 | 0.284 | 0.149 |
| Performance Objective | IO | RE | Beyond RE |
|---|---|---|---|
| [θmax] | <1% | <2% | >2% |
| [θr] | <0.2% | <0.5% | >0.5% |
| No. | Earthquake Name | Station | Component | Magnitude |
|---|---|---|---|---|
| 1 | “Veroia_ Greece” 1984 | “Veroia (bsmt)” | “C-VER-NS” | 5.3 |
| 2 | “Whittier Narrows-01” 1987 | “Pasadena—CIT Mudd Lab” | “A-MUD090” | 5.99 |
| 3 | “Northridge-01” 1994 | “LA—116th St School” | 116360 | 6.69 |
| 4 | “Chi-Chi_Taiwan-04” 1999 | “HWA026” | “HWA026N” | 6.2 |
| 5 | “Tottori_ Japan” 2000 | “MIEH01” | “MIEH01EW” | 6.61 |
| 6 | “21522424” 2006 | “Mt. Hamilton Road” | “NCCHRHNE” | 4.3 |
| 7 | “14282008” 2007 | “Rector” | “CIRCTHHN” | 4.11 |
| 8 | “30225187” 2002 | “Livermore; Fire Station 6” | “N1786HNN” | 3.9 |
| 9 | “71336726” 2010 | “Big Mountain” | “NBBGBHHN” | 4.05 |
| 10 | “21530368” 2006 | “San Leandro Hills” | “CSLHNE” | 4.5 |
| 11 | “40219463” 2008 | “Campbell; Westmont High Sch” | “1799HNE” | 3.8 |
| 12 | “21149422” 2001 | “San Leandro Hills” | “CSLHNE” | 4.4 |
| Frame | Bays 1 and 3 | Bay 2 | ||||||
|---|---|---|---|---|---|---|---|---|
| Ff | T0 | MIGO-J | βE | Ff | T0 | MIGO-J | βE | |
| kN | kN | kN∙m | kN | kN | kN∙m | |||
| PSC_T1 | 120 | 42 | 102.8 | 0.583 | 120 | 70 | 131.4 | 0.457 |
| PSC_T2 | 21 | 81.4 | 0.737 | |||||
| PSC_F1 | 200 | 70 | 171.4 | 0.583 | ||||
| PSC_F2 | 400 | 271.4 | 0.737 | |||||
| Model | A1 | A2 | A3 | A4 | A5 | A6 | A7 | A8 | A9 |
|---|---|---|---|---|---|---|---|---|---|
| MIGO-J (kN∙m) | 131.4 | ||||||||
| βE | 0.1 | 0.2 | 0.3 | 0.4 | 0.5 | 0.6 | 0.7 | 0.8 | 0.9 |
| MIGO-C (kN∙m) | 174.7 | ||||||||
| Model | B1 | B2 | B3 | B4 | B5 | B6 | B7 | B8 | B9 |
|---|---|---|---|---|---|---|---|---|---|
| MIGO-J (kN∙m) | 131.4 | ||||||||
| βE | 0.1 | 0.2 | 0.3 | 0.4 | 0.5 | 0.6 | 0.7 | 0.8 | 0.9 |
| MIGO-C (kN∙m) | 327.6 | ||||||||
Disclaimer/Publisher’s Note: The statements, opinions and data contained in all publications are solely those of the individual author(s) and contributor(s) and not of MDPI and/or the editor(s). MDPI and/or the editor(s) disclaim responsibility for any injury to people or property resulting from any ideas, methods, instructions or products referred to in the content. |
© 2024 by the authors. Licensee MDPI, Basel, Switzerland. This article is an open access article distributed under the terms and conditions of the Creative Commons Attribution (CC BY) license (https://creativecommons.org/licenses/by/4.0/).
Share and Cite
Yan, X.; Shi, S.; Mao, H.; Lin, Z. Seismic Response of Prestressed Self-Centering Moment-Resisting Frames. Buildings 2024, 14, 3811. https://doi.org/10.3390/buildings14123811
Yan X, Shi S, Mao H, Lin Z. Seismic Response of Prestressed Self-Centering Moment-Resisting Frames. Buildings. 2024; 14(12):3811. https://doi.org/10.3390/buildings14123811
Chicago/Turabian StyleYan, Xueyuan, Shen Shi, Huimin Mao, and Zhongnan Lin. 2024. "Seismic Response of Prestressed Self-Centering Moment-Resisting Frames" Buildings 14, no. 12: 3811. https://doi.org/10.3390/buildings14123811
APA StyleYan, X., Shi, S., Mao, H., & Lin, Z. (2024). Seismic Response of Prestressed Self-Centering Moment-Resisting Frames. Buildings, 14(12), 3811. https://doi.org/10.3390/buildings14123811

