You are currently viewing a new version of our website. To view the old version click .
Buildings
  • Article
  • Open Access

13 November 2024

Project Report: Thermal Performance of FIRSTLIFE House †

,
,
and
1
Faculty of Civil Engineering, Czech Technical University in Prague, Thákurova 7, 16629 Prague, Czech Republic
2
University Centre for Energy Efficient Buildings, Czech Technical University in Prague, Třinecká 1024, 27343 Buštěhrad, Czech Republic
*
Author to whom correspondence should be addressed.
This paper is a thematic continuation of our paper published in International Conference on Challenges for the Next Generation Built Environment, Bologna, Italy, 9–10 May 2024, Volume 1402.
This article belongs to the Special Issue Constructions in Europe: Current Issues and Future Challenges

Abstract

The paper deals with selected thermal properties of a small building that was built during the international student competition Solar Decathlon 2021/2022 and is now part of the Living Lab in Wuppertal. It summarizes the essential information about the overall design of this wooden building with construction and technologies corresponding to the passive building standard. Built-in sensors and other equipment enable long-term monitoring of thermal parameters. Part of the information comes from the building operation control system. The thermal transmittance value for the perimeter wall matches calculated expectation well, even from a short period of time and not at an achievable perfectly steady state boundary condition. The (positive) difference between the calculated values and the measured ones did not exceed 0.015 W/(m2K). It was proven that even for such a small building with a very small heat demand, the heat transfer coefficient can be estimated alternatively from a co-heating test (measured electricity power for a fan heater) and from energy delivered to underfloor heating (calorimeter in heating system). Differences among both measurement types and calculation matched in the range ± 10%. In the last section, the dynamic response test is briefly described. The measured indoor air temperature curves under periodic dynamic loads (use of fan heater) are compared with the simulation results. The simulation model working with lumped parameters for each element of the building envelope was able to replicate the measured situation well, while its use does not require special knowledge of the user. In the studied case, the differences between measured and simulated air temperatures were less than 1 Kelvin if the first two to three days of the test period are ignored due to large thermal inertia. Finally, the measurement campaign program for the next period is outlined.

1. Introduction

In the search for ways to achieve sustainability in the built environment, it is crucial to examine, among other things, the building energy quality of newly designed buildings and retrofit existing ones, always with a declared very low energy demand for their operation.
In general, verifying the thermal performance of buildings is rather difficult, time-consuming, and demanding. The results can be burdened with relatively large uncertainties. When measuring the heating demand, the influence of the occupants must be eliminated, the technical systems of the building must be in a defined state or switched off, and many other conditions must be met. A simple reading of the energy supplied to the building over the winter period cannot provide sufficiently accurate information. As a plausible solution, the co-heating test method has been developed [1], although it also has limitations [2]. It can be assumed that the measurement uncertainties will relatively increase with decreasing declared thermal transmittance of the building envelope, resulting in lower energy demand. It is known that there often is a significant difference between predicted (computed) energy performance and actual measured energy of buildings in use. Ways are being intensively searched for to identify and reduce this “performance gap” using mathematical methods [3].
Even the measurement of the basic characteristics (thermal transmittance [4], thermal inertia [5]) of individual envelope structures in situ is not easy and is burdened with uncertainties. Moreover, the question here is how the measurement results from a few positions can be representative for the whole respective structure. What is the effect of thermal bridges, air penetration, and other consequences of workmanship? In the practice of designing and evaluating components and buildings, values adjusted by “margins” are often used to be on the safe side with the results.
Furthermore, in situ testing of building energy performance can be beneficial in future retrofitting of today’s well-defined and low energy consuming buildings. Such tests can provide information about eventually decreasing building characteristics, separating the effects of HVAC efficiency from the envelope quality, and pointing towards the most effective retrofitting measures. This process can therefore streamline the effective maintenance of buildings towards sustainable energy use.
Obviously, the comparison of the calculated values with those measured for a well-defined object can provide new insights.
Extension of student residence from the 1960s by adding new floors while retrofitting existing buildings was a contest task in Solar Decathlon Europe 2021/2022 [6,7] of a team from Czech Technical University in Prague [8,9] (Figure 1 and Figure 2). The leading idea was to combine very low energy consumption (passive house level conform building components and technical systems) with renewable energy systems and use of recycled materials and material of wood origin. The house demonstration unit (HDU) was built in the Solar Campus in Wuppertal. It is now part of the Living Lab [10] in compliance with the conclusions of IEA Annex 74 [11] on the subsequent use of the competition objects for further targeted research [12], including in the field of building physics.
Figure 1. General view from North-East (photo Sigurd Steinprinz).
Figure 2. View from above (photo Sigurd Steinprinz).
Moreover, for the leaders of the former university team in the competition, the Living Lab offers an extraordinary opportunity to continue to work on verifying the practical impact of applied solutions, resulting in the formulation of future research tasks and teaching practices.
The design principles of passive buildings, which are an essential part of sustainable building strategies [13,14], are well known [15] and largely proven in building practice, with higher quality design and implementation being essential. This is demonstrated by some studies [16] pointing to problems in achieving the target parameters. An extensive questionnaire survey shows that among the ten most common and most significant risk factors is the use of an inappropriate method for calculating energy performance. The ten most difficult risks to detect include, for example, assemblies that do not agree with the design and leakages in the airtight layer. These facts confirm the need to compare calculated and measured values. It can be assumed that the performance gap in nominally excellent buildings can be significant if the above-mentioned risks are present. In addition, it is important to note that when declaring that a passive building level has been achieved, the airtightness is the only measured value. In the rather rare ex-post monitoring of energy performance, the effects of the actual operation of the building as well as the effect of the heating system efficiency must be carefully separated from the measured data. Therefore, these data cannot provide accurate information about the heat transfer coefficient for comparison with the calculation.
The present paper summarizes the first experiences and results of the Living Lab period, focusing on heat transfer in the external wall and space heating demand measurements expressed in the form of heat transfer coefficient and on dynamic heating tests. The findings summarized in the discussion will serve, among other things, to modify the measurements in the next period.

2. Overall Description of HDU

2.1. General Design

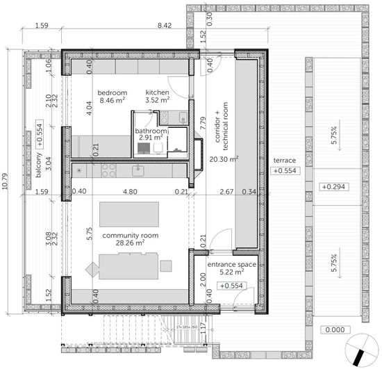
The HDU with floor plan dimensions of 8.4 m by 10.8 m (Figure A2), consists of a student room with a kitchenette and bathroom (total area 14.9 m2) and a community room (total area 28.3 m2), connected on one side by a corridor (20.3 m2) where technical equipment is located. Timber is used as a main construction material in the form of full or partly completed prefabricated elements. The air/water heat pump situated bellow the staircase structure serves as a main energy source. Efficient mechanical ventilation with heat recovery and smart control supplies the fresh air while minimizing the heat losses in heating season.

2.2. Structural Solution

HDU is a prefabricated wooden building mounted on a steel grid resting on a pre-prepared concrete slab. The wall, floor, roof, and attic panels (19 in total) are of post construction with blown cellulose infill. In addition, three CLT space modules were used (bathroom, technical systems and home equipment module, kitchen module). The joints of the elements had to be designed as demountable. The wiring in the walls was pre-wired with connections between the panels using special connectors. The external walls were mostly pre-completed on the exterior side with wood-fiber thermal insulation and cement-fiber claddings on a wooden grid. Windows, balcony doors, and entrance doors were installed before transportation. The floor panels already contained meanders of underfloor heating pipes prior to transportation. A key detail and structural composition of external constructions are visible in Appendix A.
Blown cellulose is used as a thermal insulation in cavities, supplemented with wooden fiber thermal insulation on the external side in the case of walls, and polystyrene at moisture exposed structures (roof and balcony). High performing balcony doors/windows (triple glazed) were used. Assembly of the external walls is shown in Table 1 together with thermal transmittance in ideal profile. The thermal characteristics were taken from the literature and producers’ information. The air layer at the interior side can be characterized as unventilated [4]. The air layer under the exterior cladding is considered as ventilated.
Table 1. External wall assembly.
Thermal transmittance of the building envelope components (as calculated considering the effects of repeated breaches of the integrity of thermal insulation) is summarized in Table 2. The mean Uem-value presented with a safety margin creates a good prerequisite for achieving the passive house standard in the case of a real-sized building extension.
Table 2. Basic heat transmission properties/design values.

3. Research Program

The research program was focused on building energy performance in the heating season 2023/2024. The following investigations were performed:
  • Continual measurement of temperature and heat flows in two profiles of the East external wall,
  • Repeated heating tests,
  • Dynamic response test.
The obtained results are to be used mainly for (i) determination of the thermal transmittance of the external wall U [W/(m2K)] and comparison with the calculated value, (ii) determination of the heat transfer coefficient (HTC) HT [W/K] of the whole building and comparing it with the calculated value, and (iii) the results are used to gain insight into the dynamics of thermal behavior.

4. Monitoring and Experiments

4.1. Equipment

Figure 3 shows the location of the measuring equipment. In the living rooms, the equipment (A) for measuring indoor comfort is fixed on the wall. The temperature from these is used as one of the inputs for heating control. The calorimeter (G) is installed in the underfloor heating system—placed in the technical walk-in space.
Figure 3. Scheme of measuring devices (A is wall sensors for temperature control; B, C are setup of sensors in external wall; D is electric fan heater; E is tripods for indoor air quality monitoring; F is meteorological station on roof; G is calorimeter in underfloor heating circuit).
The information from devices A and G, along with others, is logged in the building’s operation control system. Sensors in two profiles B, C (temperature and heat flows) are in the east external wall and connected to the measuring units. An electric fan heater (D) was placed in the corridor during heating tests. The electricity power is measured separately.
The device A (“tripod”) monitoring indoor air quality (temperature and humidity, air velocity, globe temperature) is placed in the community and the student’s room. A conventional air temperature sensor is placed on the exterior wall. The weather station (F) is mounted on the roof. Further details on instrumentation are provided in Appendix B.

4.2. External Wall

Data from wall sensors were recorded over several months in a time step 5 min (setup C) and 15 min (setup B). Figure 4 illustrates the obtained temperature data to which the measured indoor air temperature data are added. In quasi-steady state situations, the temperature curves are approximately parallel, as expected. There is not much difference between the values in profiles B and C, even though they come from different locations on the external wall.
Figure 4. An illustrative selection of the temperature data recorded in the external wall, setup B during the first heating tests with the fan heater.

4.3. Heat Fluxes

Figure 5 shows readings in time of the first fan heater campaign for heat flux sensors B4, B6, and B7. The sensor B6 located in the middle of the structure shows the smallest variation. It will be used for the estimation of thermal transmittance. The sensor B4 is significantly affected by the intense airflow in the room (measured value 0.6–0.7 m/s).
Figure 5. Recording of heat flow sensors during first heating tests with fan heater.

5. Evaluation

5.1. Thermal Transmittance

The thermal transmittance of the external wall is derived from selected measured data (in profiles B and C) under near steady-state conditions. The results (Table 3) are close to the expected values from the calculation using the thermal conductivities in Table 2. The value given in Table 1 includes the effect of inhomogeneities in the thermal insulation layers, i.e., the consequence of the presence of wood load-bearing elements. This is essential for the correct calculation of the heat transfer coefficient required for energy calculations.
Table 3. Thermal transmittance of external wall calculated from selected measured data.

5.2. Heating Tests

The underfloor heating system of the HDU set to full power was used for the heating test from February 23 to February 29, 2024. The continuously recorded values of the energy supplied to the heating system (calorimeter) supplemented by electricity in the stand-by mode of the house (estimated as 200 W in average) and the difference between the pair of measured interior and exterior temperatures were used to evaluate the HTC. The results for the 3 selected intervals A, B, and C are shown in Figure 6.
Figure 6. Heating test with underfloor heating (blue: interior air temperature, brown: exterior air temperature, green: delivered energy, for A, B, C see Table 4).
In another test, an electric fan heater with a maximum output of 3 kW was installed in the middle of the corridor with all doors open. The electricity supplied was metered together with the stand-by mode of the house. The average values of the interior and exterior temperatures were used for the evaluation in 3 intervals of D, E, and F.
The comparison of the results obtained by both methods with the result of the preliminary calculation (Table 2) is shown in Figure 7 and Table 4.
Figure 7. Heat transfer coefficient HT [W/K] of HDU—comparison of the results. The marked area corresponds with the majority of the value from the calculation (Table 2) extended in the range of ±10%.
Table 4. Heat transfer coefficient HT [W/K] estimated from selected measured data.

5.3. Dynamic Response

A dynamic response test presented here was conducted from 24 January to 30 January, 2024. The 3 kW fan heater was always in operation for six hours in the night and switched off during the rest of the day. This together with the stand-by consumption of the house creates an internal thermal load. The ventilation was switched off. Figure 8 shows the variation in the indoor air temperature during this period together with a mathematical simulation. A software tool [17] developed for CTU students to assess the summer comfort (risk of summer overheating working with periodic boundary conditions) was used for the simulation.
Figure 8. Dynamic response test 24 January to 30 January 2024—comparison measured and simulated interior air temperature.
This tool, based on the knowledge gained in IEA EBC Annex 58 [18], uses lumped parameters to describe the thermal properties of structures. In the case under evaluation, the model is rather simple because there is no ventilation. Only the ventilation heat loss effect due to air leakage is included in the simulation with a total airtightness value of n50 = 0.89 h−1, which was independently measured [19] during the student competition. Internal load and external temperature in one-hour steps are the boundary conditions used. The influence of the heat capacity of the indoor equipment was only tentatively estimated. The following fictitious geometric dimensions were used: the boundaries were drawn at half of the thermal resistance of the respective envelope. The second dynamic response test with the identical scenario performed from 10 February to 16 February 2024 brings very similar results, both in measured and simulated temperatures.

6. Discussion

It can be concluded that the resulting values of heat transfer coefficient based on measurements are relatively close to the expected ones according to the calculation. The evaluation is undoubtedly influenced by systematic measurement errors, such as very short time of quasi-steady state periods, especially for cases D, E, and F (Table 4), among other difficulties. Even so, the values are in the +10% range and there is undoubtedly a chance of reduction. For measurements in the next heating season, it will be necessary to obtain data for a longer period for both heating test methods used. If underfloor heating is used, attention should be paid to the detailed settings of the technical system so that higher temperatures and less fluctuation can be achieved.
In the dynamic response test, a good agreement was achieved, even under highly variable outdoor air temperatures and in the presence of a very large heat source. It will be useful to confirm this further in the next season. The difference between the measured and simulated room air temperature was less than 1 Kelvin. Due to the significant thermal inertia, we consider the values relevant only from the fourth day of simulation. The heat capacity of the wall and roof is significant as well as the interior equipment and furniture. The following are the calculated values according to [5] for the wall: time shift 9 h, decrement factor 142, for roofing structure: time shift from 9 h to 15 h due to variable thickness of thermal insulation, corresponding decrement factor from 242 to 1066. In the area with the roof garden, the respective values can be even higher, influenced by water accumulated there. If the dynamic response test can be considered as a verification of the model under different boundary conditions, it will be possible to use this simulation tool to evaluate different situations in the future.
A particular question to answer is how to work with geometry dimensions when evaluating such a small building. The standardized procedure, which is on the safety side for usual needs, uses external dimensions. With a small footprint, the thicknesses of the exterior walls account for up to about 10% of the length. Thus, the longitudinal dimensions are 10% greater than the internal dimensions, the plan dimensions approximately 20% greater, and the volumetric dimensions 30% greater compared to interior dimension. An unusual compromise might be to always place the boundaries where half of the thermal resistance is achieved. In other words, it ignores the thickness of the structures in the assessment. In the analyzed case, calculated heat transfer coefficient would drop to a value of 59 W/K. This approach was used in the dynamic simulation as well.

7. Concluding Remarks

The thermal performance of buildings with lightweight structures deserves special attention. They can be expected to react more quickly to changes in boundary conditions than massive buildings. Detailed studies are most appropriate to obtain a better idea of the actual behavior of lightweight buildings if they contain envelopes with the insulation quality needed to achieve the passive house standard. Due to the well-known difficulties in measuring the thermal properties of completed buildings, the focus tends to be on computational evaluations.
On the other hand, if the situation allows—there is a well described building without regular use available for at least two to three years—it is advisable to use this for verification measurements of the building’s physical properties. Of course, it should be noted that to some extent the uncertainties of the calculation will be “compensated” by the uncertainties arising from the nature of the measurement. Measurements on a real building are characterized by limited accuracy, reproducibility of results, and the possibility of generalization of findings. Even so, new insights can be gained. In our case, the situation is more favorable than in actual buildings in use, where the behavior of the occupants is an important obstacle. Another problem in occupied buildings compared to the situation we studied is ventilation and passive solar gains, which are difficult to limit and quantify.
During the first year of activities in the Living Lab, satisfactory results were obtained on the thermal performance of the monitored HDU. The thermal transmittance of the monitored external wall (from a different setup at two locations) approximately matches the value from the calculation. The determination of the heat transfer coefficient characterizing the heat loss of the building gave a satisfactory result using the heating test method. The heat transfer coefficient evaluated from heating tests is very close to the calculated value.
From the experience of the first year of monitoring the building and from other projects, we developed an ambitious plan for further research.
In the next period, it is planned to equip the roofing structure with temperature and heat flux sensors as well, in two positions corresponding (a) to the terrace roof and (b) the roof with substrate and greenery. In addition, sensors will be built into the roof structure to measure the moisture content of the wood and blown cellulose. Moisture calculations will be performed for both the perimeter wall and the roof structure. Measurements in the wall will continue all year round with extra focus on its real thermal capacity, where heat flux and temperature sensors will be used to a greater extent. This will certainly also be important for roof construction, with particular emphasis on the effects of the water accumulating layer and substrate for plants with a fluctuating water presence.
We anticipate repeating the heat transfer coefficient measurements with both methods previously used, preferably over longer periods of time. To refine the evaluation, it is assumed to eliminate the effect of stand-by power consumption. Several dynamic tests with heating-up and cooling down will also be performed to obtain more data for the verification of different dynamic simulations. Summer comfort issues will be part of the next investigation.
In addition, it appears appropriate to additionally measure the height stratification of the room air temperatures in winter conditions, also with the influence of the distance from large, glazed surfaces [20].
If we want to make greater use of renewable materials of natural origin, recycled materials, and lightweight prefabrication construction methods in the pursuit of sustainable construction, we need to improve the level of knowledge about the overall performance of such buildings. The aim is to provide comfort with a low environmental burden, thus verifying adequate durability of buildings and their elements and thermal performance. The activities carried out so far in the Living Lab at HDU FIRSTLIFE seek to verify the applicability of methods developed for traditional buildings of generally higher energy performance and to contribute to the discussion on the “performance gap” between measured and simulated values.

Author Contributions

J.T.: project leader, methodology, writing; K.S. (Kateřina Sojková): manager of Solar Decathlon competition team, project administration, supervision; Z.M.: leader of student team at Solar Decathlon competition, calculations; K.S. (Kamil Staněk): conceptualization, supervision. All authors have read and agreed to the published version of the manuscript.

Funding

This research received no external funding.

Data Availability Statement

The raw data supporting the conclusions of this article will be made available by the authors on request.

Acknowledgments

The authors would like to thank the management of the Czech Technical University in Prague, all partners and supporters of the FIRSTLIFE project, and the management of the Solar Decathlon Europe 2021/2022 contest. Special thanks are due to the organizing team of the Living Lab under the leadership of Katharina Simon and Karsten Voss, among others, for their crucial cooperation in the measuring campaigns. This article is part of the project “Living Lab FIRSTLIFE”, 8J24DE009, implemented with the financial contribution of the Ministry of Education, Youth and Sports of the Czech Republic, through the support of Bilateral Czech-German Research, Development and Innovation projects, within the Mobility Activity.

Conflicts of Interest

The authors declare that they have no known competing financial interests or personal relationships that could have appeared to influence the work reported in this paper.

Appendix A

Figure A1. Construction detail (East façade) and structure compositions.
Figure A2. HDU floor plan.
The building is located in Wuppertal, Juliusstrasse. Coordinates 51.2665481° N, 7.1430247° E.

Appendix B. Instrumentation

Sensor PositionMeasured ValueProduct
B1, B2Heat flux + surface temperatureALMEMO FQAD18T
B3, B8Air temperature and relative humidityALMEMO Digitalsensor FHAD462
B4, B6, B7Heat fluxALMEMO FQ A017 C
B5TemperatureALMEMO PT100
C1…C7TemperaturesThermoelements, type T
DElectricity for fan heater3 kW, 250 m3/h air flow, type Trotec
ERoom temperature (tripod)https://www.epluse.com/fileadmin/data/product/ee10/BA_EE10_analog.pdf (accessed on 15 October 2024)
FExternal air temperature and climatic valuesRadiation: Kipp & Zonen Class B SMP6
Temp/humidity: Vaisala HMS110
GEnergy delivered to underfloor heatingCalorimeter Siemens WFM 502–MBus
DAQ ALMEMO 5690-2 + ALMEMO 710
DAQ House operation system iCOOL

References

  1. Bauwens, G.; Roels, S. Co-heating test: A state-of-the art. Energy Build. 2014, 82, 163–172. [Google Scholar] [CrossRef]
  2. Ritosa, K.; Saelens, D.; Roels, S. How reliable is the co-heating test? J. Phys.Conf. Ser. 2023, 2654, 012060. [Google Scholar] [CrossRef]
  3. Wilde, P.D. The gap between predicted and measured energy performance of buildings: A framework for investigation. Autom. Constr. 2014, 41, 40–49. [Google Scholar] [CrossRef]
  4. EN ISO 6946; Building Components and Building Elements—Thermal Resistance and Thermal Transmittance—Calculation Method. CEN: Brussels, Belgium, 2018.
  5. EN ISO 13786; Thermal Performance of Building Components—Dynamic Thermal Characteristics—Calculation Methods. CEN: Brussels, Belgium, 2018.
  6. Homepage—FIRSTLIFE. Available online: http://firstlife.cz/en/homepage/ (accessed on 22 April 2024).
  7. Rizaoglu, I.K.; Voss, K. Building performance with an integrated simulation approach: Experiences in Solar Decathlon Europe 21/22 and future perspectives. Build. Environ. 2024, 253, 111261. [Google Scholar] [CrossRef]
  8. Voss, K.; Simon, K. Solar Decathlon Europe 21/22—Competition Source Book. 2023. Available online: https://elpub.bib.uni-wuppertal.de/receive/duepublico_mods_00000696 (accessed on 15 October 2024).
  9. Living Lab NRW. Available online: https://livinglabnrw.uni-wuppertal.de/de/ (accessed on 29 March 2024).
  10. IEA EBC || Annex 74 || Competition and Living Lab Platform || IEA EBC || Annex 74. Available online: https://annex74.iea-ebc.org/ (accessed on 14 April 2024).
  11. Governmental Order 264/2020 on Energy Demand of Buildings; Czech Republic, 2020. Available online: https://www.e-sbirka.cz/sb/2020/264?zalozka=text (accessed on 15 October 2024).
  12. Tywoniak, J.; Malík, Z.; Sojková, K. House FIRSTLIFE in student contest and in Living Lab. In Proceedings of the IOP Conference Series: Earth and Environmental Science, International Conference on Challenges for the Next Generation Built Environment 09/05/2024—10/05/2024, Bologna, Italy, 9–10 May 2024; IOP Publishing Ltd.: Bristol, UK, 2024; Volume 1402. [Google Scholar] [CrossRef]
  13. CIB. AGENDA 21 on Sustainable Construction; CIB Report No. 237; CIB General Secretariat: Rotterdam, The Netherlands, 1999; ISBN 90-6363-015-8. [Google Scholar]
  14. Gibberd, J. Measuring capability for sustainability: The Built Environment Sustainability Tool (BEST). Build. Res. Inf. 2014, 43, 49–61. [Google Scholar] [CrossRef]
  15. Homepage—Passivhaus Institut. Available online: https://passivehouse.com/02_informations/02_passive-house-requirements (accessed on 22 April 2024).
  16. Krechowicz, M.; Krechowicz, A. Passive Buildings—Big Opportunities or Big Risks? Quantitative Risk Assessment for Passive Buildings Projects. Sustainability 2024, 16, 4014. [Google Scholar] [CrossRef]
  17. Kopecký, P.; Staněk, K.; Sojková, K. (Czech Technical University in Prague, Czech Republic). Sw tool BILANCE. 2023; (Unpublished work). [Google Scholar]
  18. ‘IEA EBC || Annex 58 || IEA EBC Annex 58 (Reliable Building Energy Performance Characterisation Based on Full Scale Dynamic Measurements). Available online: https://www.iea-ebc.org/projects/project?AnnexID=58 (accessed on 20 August 2024).
  19. Voss, K.; Rizaoglu, I.K.; Balcerczak, A.; Hansen, H. Solar energy engineering and solar system integration—The solar decathlon Europe 21/22 student competition experiences. Energy Build. 2023, 285, 112891. [Google Scholar] [CrossRef]
  20. Tywoniak, J.; Staněk, K.; Kny, M.; Adamovský, D. Studies on internal surface heat transfer in the window area. In Proceedings of the E3S Web of Conferences: 12th Nordic Symposium on Building Physics (NSB 2020), Tallinn, Estonia, 9 June 2020. [Google Scholar] [CrossRef]
Disclaimer/Publisher’s Note: The statements, opinions and data contained in all publications are solely those of the individual author(s) and contributor(s) and not of MDPI and/or the editor(s). MDPI and/or the editor(s) disclaim responsibility for any injury to people or property resulting from any ideas, methods, instructions or products referred to in the content.

Article Metrics

Citations

Article Access Statistics

Multiple requests from the same IP address are counted as one view.