Abstract
As global energy consumption, climate change, and environmental degradation continue to escalate, the need for sustainable solutions has become more critical than ever. Passive cooling is emerging as a promising approach to improve energy efficiency in the built environment. This research investigates the potential of passive cooling in new buildings, focusing on its ability to lower indoor temperatures and utilize eco-friendly materials. By reviewing the existing literature, case studies, and technological innovations, this study explores the feasibility and effectiveness of passive cooling strategies, providing a basis for future research and practical implementation. Using quantitative methods, the research analyzes temperature variations under different ventilation scenarios to assess the impact of passive cooling. Additionally, it qualitatively examines the thermal properties of various interior finishing materials, including cement, wood, and loess bricks. Software simulations are employed to assess the temperature reduction effects of eco-friendly materials such as wood and clay bricks. The findings indicate that passive cooling effectively reduces indoor temperatures, irrespective of the interior materials used. While materials like wood, known for its thermal efficiency, or cost-effective red clay blocks may influence overall building performance, the core principles of passive cooling remain universally applicable across different material choices.
1. Introduction
Passive cooling encompasses a range of design strategies, architectural features, and technological interventions that collectively aim to harness natural cooling mechanisms and optimize thermal comfort within buildings [1,2]. Some fundamental principles underlying passive cooling include natural ventilation, thermal mass utilization, solar shading, and night purging [3,4]. Natural ventilation allows the free flow of fresh air through buildings, facilitated by the strategic placement of openings, vents, and the stack effect [5,6]. This exchange of air helps to dissipate heat, remove indoor pollutants, and maintain a comfortable indoor environment. Additionally, techniques such as cross-ventilation and windcatchers can enhance the effectiveness of natural ventilation systems [7,8]. Thermal mass refers to the ability of certain materials, such as concrete or brick, to store heat energy and release it gradually. By incorporating thermal mass elements into building design, such as exposed concrete walls or tiled floors, excess heat can be absorbed during the day and radiated back into the space during cooler periods, reducing the need for active cooling. Solar shading involves the strategic placement of shading devices, such as overhangs, louvers, or awnings, to minimize direct solar heat gain while still allowing natural daylight to penetrate the interior. These shading systems prevent excessive heat buildup and reduce the cooling load on the building [9]. Night purging takes advantage of cooler nighttime temperatures by flushing out accumulated heat within the building [10].
This research study investigates the role of passive cooling methods for efficient temperature reduction inside buildings. The purpose of this study is to understand the contribution of passive cooling methods to the temperature reduction effect inside the building through methods such as opening manual windows, investigation of the direction of windows for indoor ventilation, and simulation through the physical properties of construction materials along with three objectives for the following: (1) to explore the essential link between the application of passive cooling methods for effective indoor temperature reduction in buildings and their pivotal role in curbing energy consumption in buildings, (2) to identify the correlation and mechanism between the opening direction and size of windows for effective and rapid reduction in indoor temperature passive cooling strategies, and (3) to investigate the rate of temperature reduction for each material and the synergy effect with passive cooling through the use of environmentally friendly construction materials.
2. Previous Studies
2.1. Effectiveness of Natural Ventilation on Reducing Indoor Temperature
The overheating risk and energy effectiveness of six passive design strategies tested and implemented in an innovative terraced house located in southeast London during the long-term heatwaves experienced in both the UK and continental Europe in the summer of 2018 were examined [11]. The study employed a quantitative research methodology based on an extensive monitoring campaign conducted to measure environmental conditions, including the indoor air temperature, relative humidity, and CO₂ of each occupied space in the prototype base-case building. In the subsequent phase of the research, retrofit strategies were investigated by modeling and simulation using the Integrated Environmental Solutions (IES) 2021 software suite for data validation. The preliminary results of the modeling and simulation confirmed the survey findings of high levels of occupant discomfort and relatively high cooling loads. The internal operating temperatures of the simulated rooms remained high throughout the day and night during the long-term heatwaves, ranging from a minimum of 24.7 °C to a maximum of 32.1 °C. The results highlight significant deviations in the estimated energy consumption of the base-case building as well as in the energetic and environmental indexes of the passive cooling design strategies.
The cooling of commercial buildings in warm climates is a challenge, as cooling demands account for over half of the overall energy needs for the operation of an average office building [12]. This situation is expected to worsen due to increasing temperatures in cities worldwide. Their findings showed that the mere application of passive strategies is not enough to guarantee relevant savings. Their effectiveness was conditioned to both the harshness of a given climate and different building parameters. Specific recommendations were also discussed for the selected passive strategies considered in the evaluation [12,13].
The energy consumption in buildings has increased worldwide, which is a major concern [14]. In Nepal, there is an energy crisis, but the energy demand in buildings is barely even considered. In the southern part of Nepal, where the weather is mostly hot throughout the year, cooling in buildings is very important. This study investigates building design strategies that focus on reducing cooling energy consumption in buildings. The study shows that simple passive strategies can be applied in building design to support a decrease in cooling load. Different passive cooling strategies such as orientation, building size, thermal mass, and window design and two direct cooling strategies were investigated.
The main energy-saving strategies they investigated included optimizing the design of heating, cooling, lighting, and ventilation systems to ensure thermal and visual comfort, as well as using natural resources such as solar energy, low sky temperatures, ground inertia, and ambient air to mitigate energy demand [15]. The study also reported on the use of passive cooling strategies such as natural night ventilation, the reflective coating of roof surfaces, and thermal insulation of the ground, roof, and vertical walls to reduce energy demand for HVAC systems [16].
The indoor thermal environment was investigated in an apartment building utilizing wind-driven ventilation in summer [17]. The study aimed to provide a fundamental analysis of the indoor thermal environment and to examine the effects of wind-driven ventilation on the indoor thermal environment. The study also sought to provide insights on how to improve the indoor thermal environment in apartments during the summer months. The ultimate goal of the study was to contribute to the development of sustainable and energy-efficient building design strategies that can improve the thermal comfort of occupants and reduce energy consumption. The study found that wind-driven ventilation can effectively reduce indoor temperatures by up to 2.5 °C and increase the air velocity by up to 0.3 m/s. The study also found that the use of wind-driven ventilation can help in improving the thermal comfort of the occupants, thus reducing the need for air conditioning, which can lead to energy savings. The study concludes that wind-driven ventilation can be an effective strategy for improving the indoor thermal environment in apartments during the summer months.
2.2. Evaluation of the Impact of Window Type, Location, and Direction of Building on Indoor Temperature Reduction
The impact of window types on the natural ventilation performance of residential buildings in Hong Kong evaluated four window types: side-hung, top-hung, full-end slider windows, and half-end slider windows [18]. The side-hung windows outperformed the other three types. The study concluded that the use of side windows could improve the natural ventilation performance of residential buildings in Hong Kong, especially in cross-sectional open configurations. Overall, the study highlighted the importance of window type in improving the natural ventilation performance of residential buildings, identifying side-hung windows as a favorable choice for achieving improved ventilation efficiency. The researchers utilized CFD simulations to model and analyze the airflow behavior and ventilation performance of residential units with different window types. By simulating a variety of scenarios, including different building orientations, wind conditions, and opening configurations, the impact of different window types on natural ventilation efficiency can be assessed [19,20].
For CFD simulation, a real physical space model of 3 m × 3.35 m × 3 m was created with windows and real-world locations placed in various rectangular top vent configurations. Top vents were placed at the top of the building wall so that the warm air accumulated in the top layer of the room was discharged due to the air’s density difference, with the most important parameters to reduce indoor air temperature found to be the number of top vents and the top vents’ width and height relative to the entire wall [21].
Three scenarios based on very strict heritage protection management and limited options were discussed for natural ventilation of the building due to limited open operability. The scenarios were as follows: (A) No natural ventilation due to the openings being always closed. (B) Natural ventilation with doors and windows always open. (C) Night ventilation with doors and windows open only from 1 a.m. to 5 a.m. In spring, according to the study’s findings, the indoor temperature was maintained below 24 °C in all three scenarios, with the only exception being the area next to the main entrance where temperatures may be higher [19]. However, these hotspots were said not to be large enough to cause discomfort to the average occupant; therefore, it was assumed that all three scenarios (with slight differences) could provide a thermally comfortable environment. Night ventilation (Scenario C) was proven to be the most efficient natural ventilation method on hot summer days. However, Scenario B, with all windows and doors open, behaved similarly, with slightly higher temperatures in the afternoon (less than a 2 °C difference). It was suggested that applying Scenario C (nocturnal ventilation) could reduce cooling operation in both seasons, especially in spring.
The application of natural ventilation was tested and it was found that natural ventilation was the dominant technology in tropical buildings compared to other passive design strategies. However, the lack of temperature variation between day and night, high humidity levels, and persistent cloud cover limit the use of natural ventilation as a widely used strategy in tropical regions. Studies have shown that to achieve maximum efficiency, this technology (natural ventilation) relies on strategies to avoid heat [22]. Natural ventilation can significantly increase cooling in stairwells. The study also found that the ventilation shafts (especially active stacks), window-to-wall ratio and window-to-floor ratio, building location, and building orientation are the most important factors for effective natural ventilation. Factors affecting thermal comfort within the considered area were window size, placement, and shading. The flow field was simulated, and thermal comfort parameters were calculated using Design-Builder 2022 software. The standard k-ε turbulence model was used to simulate the turbulence effects that control the airflow patterns and temperature distribution within the study area. Both experimental and simulation investigations were carried out to evaluate the influence of window parameters on natural ventilation, and air temperature, wind speed and relative humidity were calculated using the CBE tool for thermal comfort assessment. The measurements confirmed that the indoor comfort in all cases did not comply with the thermal comfort standards for indoor environments. It said this could be due to poor air circulation within the study areas due to the design of the apartments [3].
2.3. Temperature Reduction Effect Depends on Construction Materials When Introducing a Natural Ventilation System in a Building
The heat transfer characteristics and heat capacity of three interior finishing materials: cement, Korean paulownia, and medium-density fiberboard (MDF) were investigated. The study aimed to determine the most energy-efficient material for use in buildings to reduce greenhouse gas emissions and energy consumption. The results show that Korean paulownia has the lowest heat transfer coefficient and the highest heat capacity, making it the most energy-efficient material for interior finishing. The study suggests that using Korean paulownia as an interior finishing material can significantly improve energy efficiency inside buildings [23].
Hwang-toh, a type of yellow soil, is highly valued for wall finishing in traditional Korean architecture. This ecological material has been used for centuries due to its natural properties, including breathability, humidity control, and thermal insulation [24]. Recent research underscores the significant implications of Hwang-toh for sustainable building practices, demonstrating its potential to enhance indoor environmental quality and reduce energy consumption. The study found that Hwang-toh plaster effectively regulates indoor temperature and humidity, leading to lower energy usage for heating and cooling. Furthermore, the use of ecological materials like Hwang-toh helps to reduce physical and chemical pollutants in indoor environments, which is essential for promoting sustainable building practices [24,25].
In addition to its applications in plaster, Hwangtoh—a type of red clay—is gaining significant attention as a potential eco-friendly construction material. This kaolin-based substance is found in abundant reserves worldwide and has long been regarded as a sustainable option in building practices. Recent studies highlight Hwangtoh’s pozzolanic characteristics, which enable its use as a mineral admixture in eco-friendly concrete. This property enhances the strength and durability of concrete while minimizing the environmental impact by reducing reliance on traditional cement [26,27].
Moreover, Hwangtoh contributes to improved workability and adhesion in concrete mixtures, making it an attractive alternative for sustainable construction. Its eco-friendly attributes align well with the growing demand for materials that not only perform effectively but also promote environmental sustainability [28].
Another paper has provided an overview of the factors that influence the thermal conductivity of building insulation materials. It discusses the main role of the thermal conductivity coefficient in studying heat transport in buildings and displays the values of various common building insulation materials. The effects of factors such as temperature, moisture content, density, thickness, pressure, aging, and air surface velocity on thermal conductivity are presented. The paper concludes by discussing how these factors influence thermal conductivity [29,30].
To mitigate the heatwave and high-temperature environments examined in previous studies, balconies were found to offer limited potential in terms of energy efficiency and indoor comfort. Additionally, the cooling load reduction associated with balconies was relatively low [11]. This paper addresses the knowledge gap regarding the challenges of achieving energy and cost savings through the use of natural ventilation and shading devices. Using indoor temperature data collected from windows in buildings with balconies, we analyze these findings. A study conducted in Hong Kong investigated the effect of different window types on natural ventilation performance in residential buildings, utilizing CFD simulations to evaluate four types: side windows, top windows, front slider windows, and half windows [31,32].
Another study explored the most energy-efficient materials for building applications, focusing on red clay—a commonly used finishing material. The research underscores the significance of ecological materials, such as red clay finishes, in enhancing indoor environmental quality and reducing energy consumption. By comparing eco-friendly materials like wood and red clay brick, this study identifies those most effective in lowering indoor temperatures, with the findings further validated through simulation analysis [33].
Givoni and Santamouris [34,35] also emphasize the effectiveness of night ventilation, particularly in arid regions where daytime ventilation is inadequate for maintaining thermal comfort.
3. Research Methods
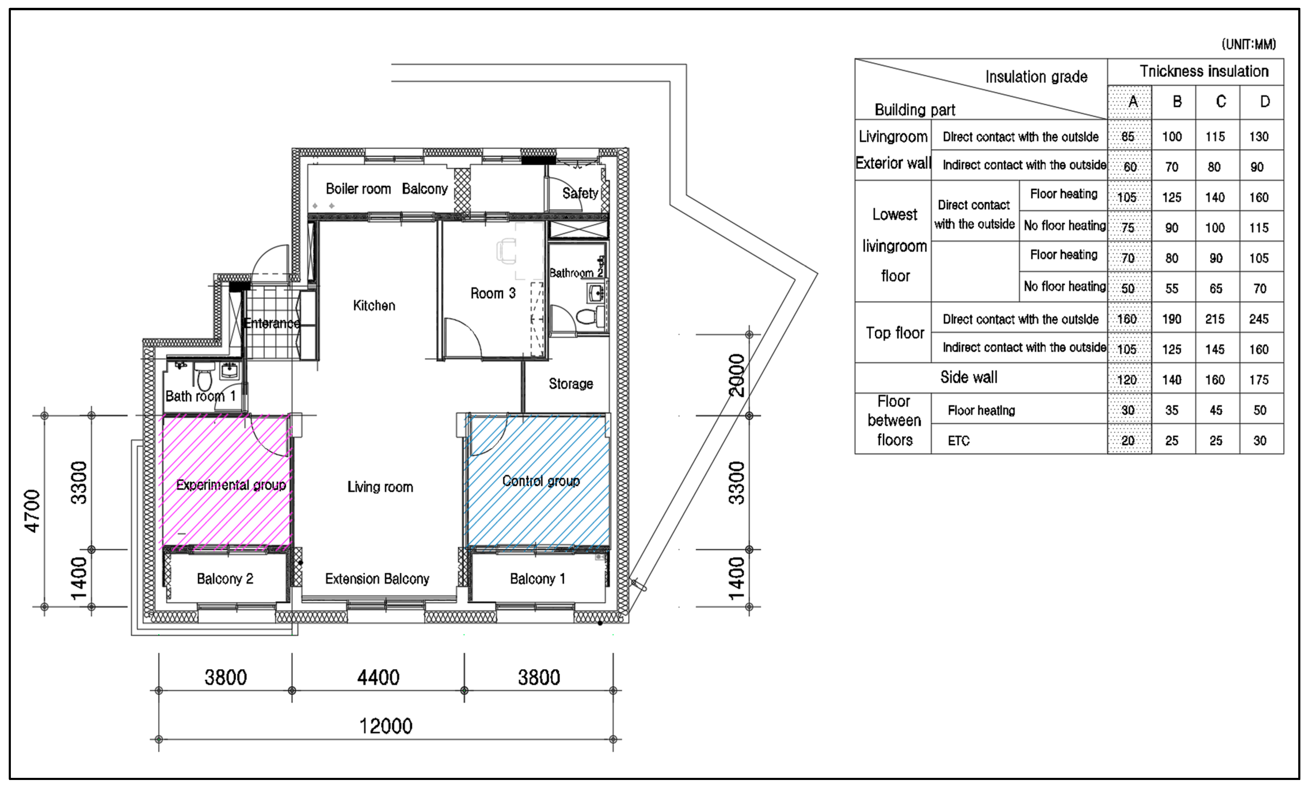
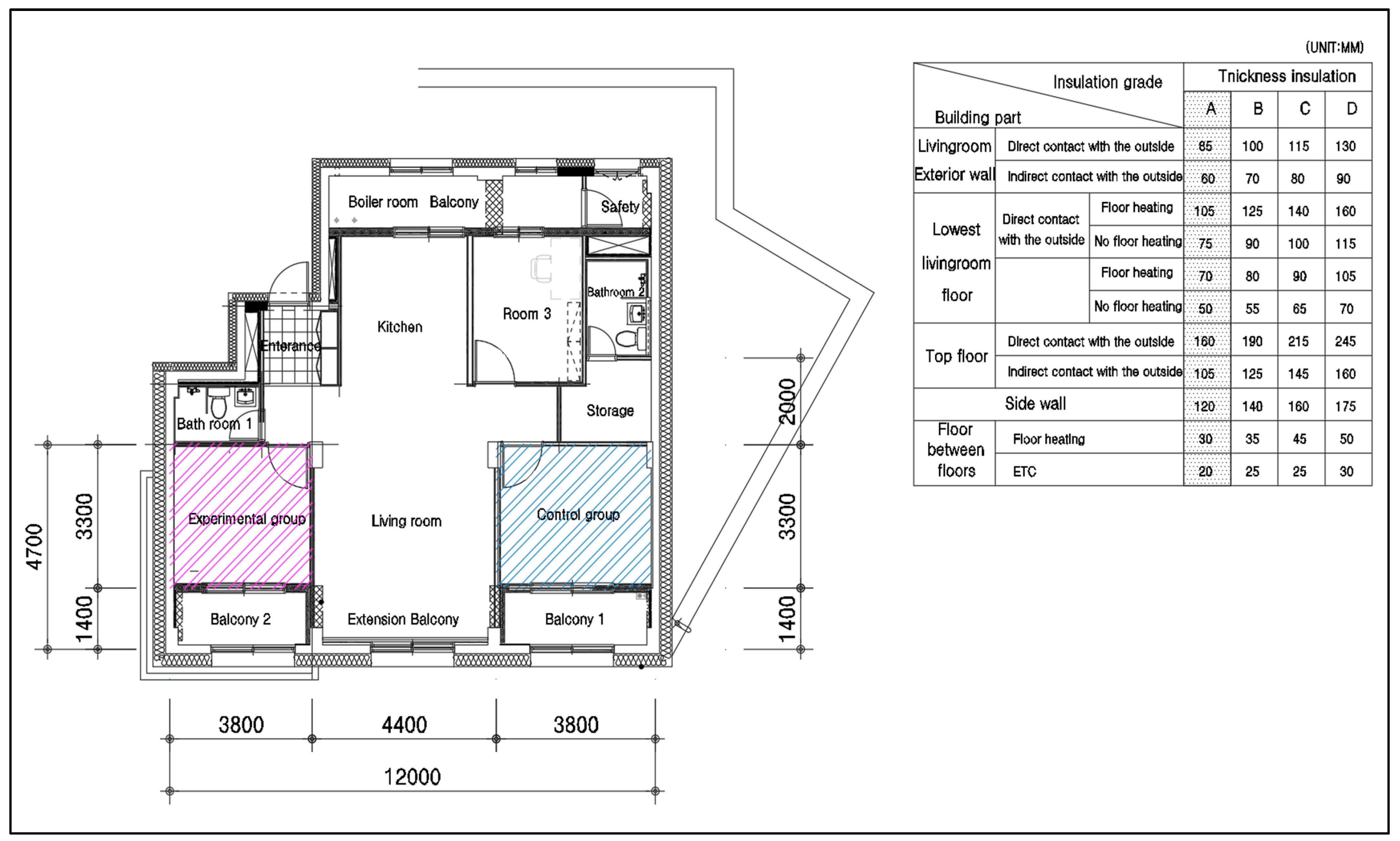
At the planning stage, an eco-friendly residential complex suitable for the actual measurement conditions was selected, and the building type is an office-residential building with traditional Korean balconies. Figure 1 shows the floor plan of the building being tested and the grade of materials used. The direction of the window was selected to face south. The reason for this is that the aim of the experiment was to determine the change in indoor temperature due to the outdoor temperature at night and to minimize the amount of direct sunlight to the building under investigation to minimize solar radiant heat.
Figure 1.
Third floor plan and material specification.
3.1. Research Procedure
This study focuses on the effect of reducing indoor temperature by natural ventilation (passive cooling). For effective analysis, a test group of independent buildings was selected, temperature and humidity sensors were installed, data were collected and analyzed, and simulations of indoor temperature changes by standard outdoor temperature and indoor temperature changes by eco-friendly materials and interior materials were conducted and analyzed. The investigation procedures for the following and the flow chart of this process are shown in Figure 2.
Figure 2.
Study procedure.
- (1)
- Collect temperature and humidity data in the test group area.
- (2)
- Analyze the local standard temperature and measurement data; the analysis period includes only the period when the outdoor temperature is lower than the indoor temperature.
- (3)
- Exclude analysis of energy load and carbon emissions.
- (4)
- Analyze only the temperature reduction caused by natural ventilation without using other mechanical ventilation devices.
- (5)
- Analyze the simulation results through the Ansys analysis program.
- (6)
- Based on the analysis results, determine the regional suitability of natural ventilation.
3.2. Empirical Experiment
3.2.1. Experimental Method Design
Since this experiment uses commuting hours to analyze the effect of daytime outdoor air on the building’s thermal comfort and cooling load and its effect on insulation performance materials, the window opening and closing time was the same as the office commuting time. Therefore, the window was opened at 6:00 p.m., the window was closed at 9:00 a.m. the next day, and collection of the data up to 6:00 p.m. was performed as one cycle. To minimize data errors, one experiment included three consecutive cycles of data. A buffer period of at least one day was allowed between each experiment to prevent data interference. Since the purpose of the buffer section is to unify the data of each experiment and the heat storage amount of the material inside the building and increase data reliability, the opening and closing of the window in the buffer section was carried out in the same manner as the next experiment Table 1 shows the time periods for opening and closing windows as well as the conditions for each method. in the experimental and control groups. Table 1 also shows the window is opened after 6:00 p.m. when the office is not in use, and the window is closed at 9:00 a.m. the next day. A relaxation period was set for Sections A, C, E, and G (a total of 4 times) to initialize data interference between the test and control groups before data collection, and a total of three natural ventilation (Sections B, F, and H) and one window closure datasets were collected. And in Section D, all windows of the experimental and control groups were closed, the temperature was measured, and it was compared with the temperature during natural ventilation.
Table 1.
Measurement period and conditions.
3.2.2. Data Collection Equipment and Installation Location
To collect accurate data, four (4) temperature and humidity devices were installed in the test and control sections and one (1) temperature and humidity device was installed in the living room. Figure 3 shows the actual installation of the sensors and the setup of the sensor (Logger) equipment. During the measurement time, entry by anyone other than the person in charge was prohibited and the entry of personnel was minimized.
Figure 3.
Locations of sensor installation on the third floor.
3.3. Simulation of Measuring Indoor Temperature Change
The second research methodology simulated a reduction in indoor temperature and temperature changes due to the building’s interior materials by changing the opening direction of the building’s windows, based on the temperature data measured in the previous method. Table 2 shows the equations used to measure the increase or decrease in indoor temperature due to the outdoor temperature by implementing natural ventilation. This equation is a formula for basic laws such as conservation of mass, momentum, energy, species, etc., and these equations (Navier–Stokes equation and the heat transfer equation) are entered in the “Model” item in Figure 4 before setting the surrounding conditions when initially setting up the program.
Table 2.
Ansys Fluent equations.
Figure 4.
Ansys Fluent outline.
4. Results: Findings and Analysis
The changes in the outdoor and indoor temperatures during the measurement period are listed in Table 3. The outdoor temperature during the measurement period ranged from the highest 34.7 °C to the lowest 21.2 °C and began to rise around July 12, and the daily temperature range can be seen gradually beginning to show a gap and then decreasing.
Table 3.
Temperature and humidity data of test and control groups.
As of 25 July, the outdoor temperature peaked at 35.1 °C and the daily highest and lowest temperature range was measured at 11.2 °C. The minimum temperature was measured in the early morning hours (after 3 a.m.) from 12 July, the start date of the experiment. The indoor temperature reached its highest temperature around 6 p.m., and the temperature decreased after that. This is believed to be because the amount of heat stored in the building increases due to solar radiation and the high outside air temperature during the day and is then released as the outside temperature decreases. The difference between the indoor and outdoor temperatures during the day was on average 3.4 °C at the highest and 0.7 °C at the lowest, and it was confirmed that there was a difference of 0.7 °C at the highest and 0.1 °C at the lowest during the early morning hours. The average sunrise and sunset times during the experimental period were 5:20 a.m. and 7:58 p.m. (Korea Astronomy and Space Science Institute data (https://astro.kasi.re.kr/, accessed on 8 March 2023) with the sun reaching its highest temperature at 1 p.m. Afterwards, the highest temperature was recorded between 3 p.m. and 5 p.m.
4.1. Comparison of Indoor Temperature Changes Using Natural Ventilation
Figure 5 shows the overall temperature change of the sensors installed on the balcony during the experiment period. There is a part where the window is open to supply outdoor air at night and a part where the window is closed. The temperature decrease was evident in the experimental area with open windows in all areas of the balcony area, which served as a temperature buffer zone. Therefore, it can be seen that the experimental area is effective in reducing the indoor temperature just by opening the window. However, the purpose of this experiment is to reduce the cooling load during the early hours of building use by introducing the outdoor air temperature during times when users are not using the building. However, the area that has the effect of reducing indoor temperature is from 2:00 a.m. to 5:00 a.m., and this time is not working hours. After 7 o’clock, when people go to work, the temperature difference is less than 0.2 degrees or no difference, and the indoor temperature can be seen rising; and from 9 o’clock, when the windows are closed, the indoor temperature exceeds 28 degrees.
Figure 5.
Balcony center temperature.
During the experimental period (12 July to 29 July), the minimum outdoor temperature ranged from 21 to 24.5 degrees, but the indoor temperature in the section where the outdoor temperature was applied showed a significant difference, from a minimum of 26.6 to a maximum of 29.9 degrees. This is believed to be the reason for the lack of smooth reduction in indoor temperature due to the amount of heat stored in the indoor finishing materials and the absence of a smooth ventilation system.
Figure 6 shows measurements of the temperature in the center of the test room (circle) and control room (square). The test room was ventilated, and the control room was a comparison room without ventilation. Although the difference is not as large as the measurement result on the balcony, it shows a temperature difference when the window is open and a temperature difference when the window is closed. Although it is not a big difference, it was confirmed that the indoor temperature was lowered just by opening the window.
Figure 6.
Room center temperature.
Figure 7 shows the relative humidity measurement result, and relative humidity is as important as temperature as an index that allows users to feel the discomfort index in summer. At the beginning of the experiment, the indoor relative humidity was low, but toward the latter half of the experiment, the outside relative humidity increased due to Korea’s climate characteristics. As a result, in the latter half of the experiment, when the window is opened, high relative humidity from outside flows into the inside, and the humidity becomes higher than when it is open outside.
Figure 7.
Room center relative humidity.
Figure 8 and Figure 9 show the overall temperature distribution during the experimental period in the room center, balcony, room floor, and living room of the experimental and control groups when the window was opened. Among Figure 8 and Figure 9, the balcony (right) is the area that directly receives the sun’s radiant heat, and the maximum temperature was confirmed to be 37 degrees. Next came the room center (35 degrees), living room (33.7 degrees), and room floor (33 degrees). Here, the reason for the high temperature on the balcony and the relatively low temperature in the room is believed to be due to the buffering role of solar heat on the balcony. Figure 9 shows the floor and living room temperatures during ventilationand also shows that the temperature at the floor location is the lowest and that the temperature increases as the measurement location moves up to the ceiling.
Figure 8.
Room center (left) and balcony (right) temperature.
Figure 9.
Floor (left) and living room (right) temperature.
In addition, Figure 10 shows the temperature distribution range when the window is opened (black part) and closed (gray part) at each temperature measurement location. Comparing the temperature in the 25–75% range of the temperature measurement range at all measurement locations shows that there is a slight temperature reduction effect when natural ventilation is performed (black) compared to when it is not performed (gray).
Figure 10.
Room center and balcony temperature.
4.2. Results of Indoor Temperature Change Due to Change in Window Opening Method
Figure 11 and Figure 12 show the indoor temperature measurement and simulation results according to the direction of six (6) types of windows and whether the door was open or closed. Other than the direct data of Type B in Case 1, the rest were simulated. When setting the initial value of the simulation, the outside temperature was set to the actual measured value of 30.7 degrees at 6:00 p.m., when the window was closed, and the result was obtained. Figure 11 shows Case 1, the window opening on the right; Case 2, the window opening on the left; and Case 3, the window opening on the bottom. They are shown as Types A and B depending on whether the room door is open, and the results of a total of six cases were analyzed.
Figure 11.
Open format of windows and doors.
Figure 12.
Temperature difference depending on the opening of windows and doors.
Figure 12 shows that with the door closed and the window open, the temperature difference between the experimental and control groups in Case 1 and Case 2 is 1.37 °C and 1.38 °C, and with the door open, the temperature is 0.32 °C in Case 1 and 0.27 °C in Case 2. The difference was minimal. These results show that there is no temperature difference in the direction in which the window is opened, confirming that the direction of the window is not very important. In Case 3, where the bottom window was open, the temperature difference from the control group was 0.64 °C, which was no different than Case 1 and Case 2. This is believed to be because the size of the window is relatively small compared to the above case, making heat exchange difficult. In all cases, regardless of where and how the window was opened, opening the door reduced the temperature difference between the control room and the test room, but the difference was minimal. As soon as the door is opened, outside air begins to come in, and heat transfer occurs due to convection between the large living room and the heat accumulated in the room.
However, the simulation results in Figure 12 show that in Case 1-B, in which the window and door are opened simultaneously, lowers the indoor temperature more than 2 h faster than Case 1-A. When only the Type B window is open, the temperature difference is 1.37 degrees (Case 1) and 1.38 degrees (Case 2) for each case. However, when the door was opened, it was confirmed that the temperature difference was more than 1 degree when the door was opened and closed at 0.32 degrees (Case 1) and 0.27 degrees (Case 2), respectively. This means that heat exchange is not easy to achieve simply by opening the window, and the role of a ventilation system that allows heat to escape is considered important. This is because the indoor temperature cannot be lowered unless the heat load inside the room is exchanged or discharged elsewhere. Looking at the results of Type B, this experiment shows that quick and smooth ventilation can be achieved more efficiently by installing an additional ventilation system or actively inducing air flow.
Figure 13 shows the temperature change in the room when air flows in depending on the direction in which the window is opened. At the beginning of the experiment, the temperature of the room is 30.7 degrees, which turns red, and when the room temperature drops below 26 degrees, it turns blue. It took 12 h to reach the lowest temperature similar to the outside temperature. Figure 13 shows that in all types of simulations, the opening positions of the upper and lower windows did not have a significant effect on the temperature difference between the control room and the test room depending on the direction or location of the window, and the minimum temperature was reached at a similar time. The temperature differences in Case 1-2, 2-2, and 3-2 when the door close were 1.37 degrees, 1.38 degrees, and 0.64 degrees, respectively. And when the lower window of Case 3-2, which was expected to have a lot of cold air flowing in, is opened, the temperature difference between the two rooms does not change but decreases compared to when the upper window is opened. This means that the area of the lower window is relatively small compared to the upper window, and the inflow of outside temperature is not smooth, and there is no ventilation hole for the hot air inside to escape, making the circulation of heat energy difficult.
Figure 13.
Changes in internal temperature due to opening windows and doors).
4.3. Indoor Temperature Changes Depending on Interior Materials
When using red clay bricks, an eco-friendly indoor interior material, the temperature change was compared with other materials through analysis of the effect of reducing indoor temperature during natural ventilation. Table 4 shows the physical properties of red clay brick, an eco-friendly material applied to buildings, and other interior materials.
Table 4.
Open format of windows and doors.
Figure 14 and Figure 15 show that the interior materials with the greatest temperature reduction effect were wood, followed by red clay brick and cement. Additionally, the temperature difference was minimal depending on the interior material when the window was opened and when the window was closed. The fact that the temperature difference was not large confirmed that the internal temperature did not change depending on the specific physical properties of the interior material and this was not the main factor. For example, higher thermal conductivity does not mean that the room temperature increases. In other words, rather than depending on the specific physical properties of the interior materials, the temperature difference in the room appears to be determined complexly by the three thermal properties of density, specific heat, and thermal conductivity, as well as ventilation and ventilation methods.
Figure 14.
Temperature change by interior material (windows open).
Figure 15.
Temperature change by interior material (windows close).
The average temperature on 14 July was 27.7 degrees, the highest temperature was 32.7 degrees, and the lowest temperature was 22.9 degrees based on the temperature record [In Figure 14 and Figure 15 at about 5 a.m., the lowest temperature for red clay was 25.38 degrees and for cement mortar was 26.56. The temperature of wood went down to 24.64 degrees. When ventilating only through windows without any other ventilation device, the lowest temperature was reached only 12 h after opening the windows.
Figure 16 shows the color change over time as the temperature of each interior material changes during natural ventilation. When the initial temperature in the room is 30.7 degrees, it is red, and as the temperature decreases, it turns blue. Case 1 is red clay brick, Case 2 and Case 3 are cement, and Case 4 is a wood finishing material. This Figure 16 shows the simulation results of internal temperature change when the window is opened (A) and closed (B). As a result of comparing and analyzing the temperature reduction time and temperature difference through natural ventilation for each interior material, wood showed the fastest temperature reduction effect during natural ventilation, but the temperature difference was 0.76 degrees, and the time to reach 26 degrees from the initial experiment temperature of 30.7 degrees was 9 h for wood, while the time for red clay bricks was 10 h, with only an hour difference. It is judged that the expected effect of temperature reduction by the interior material through pure natural ventilation in the test subject group is insufficient.
Figure 16.
Internal temperature changes depending on internal finishing materials).
5. Conclusions
Passive cooling effectively reduces indoor temperatures by utilizing natural ventilation rather than mechanical systems. This approach is a prominent method for maintaining cooler indoor environments using natural airflow. One of the key components of passive cooling is the ventilation system, which helps to expel heat from the building. For example, chimney ventilation relies on the natural rise of hot air to release heat outside, though this technique may not be practical for smaller buildings or apartments.
In this study, it was observed that ventilation through a lower window resulted in a slower air exchange rate compared to a standard side window, indicating that both the size and placement of the window play critical roles in effective ventilation. Additionally, the study faced limited environmental variables such as wind speed and direction, which could have impacted the results. Nevertheless, simulations that adjusted window orientation confirmed that variations in window design—particularly in terms of location, size, and type—significantly affect ventilation speed and temperature differences. This highlights the importance of optimizing window design for effective passive cooling.
Interestingly, the study found no significant difference in indoor temperature reduction when using passive cooling, regardless of the interior materials used. This suggests that while the choice of materials—such as wood with its high thermal efficiency or cost-effective red clay blocks—can influence the overall building performance, the core principles of passive cooling remain effective across a wide range of materials. However, the synergy between natural ventilation and materials with a high thermal efficiency can further enhance energy savings.
The research also revealed that passive cooling can be optimized by designing buildings that take into account the local climate and specific usage needs. For instance, opening a room door reduced indoor temperatures more effectively than window ventilation alone, suggesting that combining various passive cooling strategies, such as using multiple ventilation points, can enhance cooling efficiency.
Author Contributions
S.M., D.J. and J.K. conducted the data and designed the research. J.K. and H.N. drafted and revised the manuscript based on the research results. All authors have read and agreed to the published version of the manuscript.
Funding
This research was funded by a grant [20240087-001], “A Research of Architectural and Urban Technology for a Safe, Comfortable, and Sustainable Built Environment” from the Ministry of Science and ICT in the Republic of Korea.
Data Availability Statement
The data presented in this study are available on request from the corresponding author.
Conflicts of Interest
The authors declare no conflicts of interest.
References
- Díaz-López, C.; Serrano-Jiménez, A.; Verichev, K.; Barrios-Padura, A. Passive cooling strategies to optimise sustainability and environmental ergonomics in Mediterranean schools based on a critical review. Build. Environ. 2022, 221, 109297. [Google Scholar] [CrossRef]
- Al-Shamkhee, D.; Al-Aasam, A.B.; Al-Waeli, A.H.; Abusaibaa, G.Y.; Moria, H. Passive cooling techniques for ventilation: An updated review. Renew. Energy Environ. Sustain. 2022, 7, 23. [Google Scholar] [CrossRef]
- Elshafei, G.; Negm, A.; Bady, M.; Suzuki, M.; Ibrahim, M.G. Numerical and experimental investigations of the impacts of window parameters on indoor natural ventilation in a residential building. Energy Build. 2017, 141, 321–332. [Google Scholar] [CrossRef]
- Griffin, K.A. Night Flushing and Thermal Mass: Maximizing Natural Ventilation for Energy Conservation through Architectural Features. Master’s Thesis, University of Southern California, Los Angeles, LA, USA, 2010. [Google Scholar]
- Silva, R.; Eggimann, S.; Fierz, L.; Fiorentini, M.; Orehounig, K.; Baldini, L. Opportunities for passive cooling to mitigate the impact of climate change in Switzerland. Build. Environ. 2021, 208, 108574. [Google Scholar] [CrossRef]
- Santamouris, M.; Sfakianaki, A.; Pavlou, K. On the efficiency of night ventilation techniques applied to residential buildings. Energy Build. 2010, 42, 1309–1313. [Google Scholar] [CrossRef]
- Jomehzadeh, F.; Nejat, P.; Calautit, J.K.; Yusof, M.B.M.; Zaki, S.A.; Hughes, B.R.; Yazid, M.N.A.W.M. A review on windcatcher for passive cooling and natural ventilation in buildings, Part 1: Indoor air quality and thermal comfort assessment. Renew. Sustain. Energy Rev. 2017, 70, 736–756. [Google Scholar] [CrossRef]
- Zhang, H.; Yang, D.; Tam, V.W.; Tao, Y.; Zhang, G.; Setunge, S.; Shi, L. A critical review of combined natural ventilation techniques in sustainable buildings. Renew. Sustain. Energy Rev. 2021, 141, 110795. [Google Scholar] [CrossRef]
- De Toldi, T.; Craig, S.; Sushama, L. Internal thermal mass for passive cooling and ventilation: Adaptive comfort limits, ideal quantities, embodied carbon. Build. Cities 2022, 3, 42–67. [Google Scholar] [CrossRef]
- Yu, T.; Heiselberg, P.; Lei, B.; Pomianowski, M.; Zhang, C. A novel system solution for cooling and ventilation in office buildings: A review of applied technologies and a case study. Energy Build. 2015, 90, 142–155. [Google Scholar] [CrossRef]
- Ozarisoy, B. Energy effectiveness of passive cooling design strategies to reduce the impact of long-term heatwaves on occupants’ thermal comfort in Europe: Climate change and mitigation. J. Clean. Prod. 2022, 330, 129675. [Google Scholar] [CrossRef]
- Prieto, A.; Knaack, U.; Auer, T.; Klein, T. Passive cooling & climate responsive façade design: Exploring the limits of passive cooling strategies to improve the performance of commercial buildings in warm climates. Energy Build. 2018, 175, 30–47. [Google Scholar]
- Weinläder, H.; Klinker, F.; Yasin, M. PCM cooling ceilings in the Energy Efficiency Center—Passive cooling potential of two different system designs. Energy Build. 2016, 119, 93–100. [Google Scholar] [CrossRef]
- Manandhar, K.; Risal, A.; Steiner, T.J.; Holen, A.; Linde, M. The prevalence of primary headache disorders in Nepal: A nationwide population-based study. J. Headache Pain 2015, 16, 95. [Google Scholar] [CrossRef]
- Lapisa, R.; Bozonnet, E.; Salagnac, P.; Abadie, M.O. Optimized design of low-rise commercial buildings under various climates—Energy performance and passive cooling strategies. Build. Environ. 2018, 132, 83–95. [Google Scholar] [CrossRef]
- Habibi, S. Smart innovation systems for indoor environmental quality (IEQ). J. Build. Eng. 2016, 8, 1–13. [Google Scholar] [CrossRef]
- Chang, H.J. Fundamental studies on indoor thermal environment in an apartment house utilizing wind driven ventilation in summer. J. Korean Inst. Archit. Sustain. Environ. Build. Syst. 2008, 2, 22–27. [Google Scholar]
- Gao, C.F.; Lee, W.F. Influence of Window Types on Natural Ventilation of Residential Buildings in Hong Kong. In Proceedings of the International High-Performance Buildings Conference, Purdue University, West Lafayette, IN, USA, 12–15 July 2010; pp. 1–8. [Google Scholar]
- Bay, E.; Martinez-Molina, A.; Dupont, W.A. Assessment of natural ventilation strategies in historical buildings in a hot and humid climate using energy and CFD simulations. J. Build. Eng. 2022, 51, 104287. [Google Scholar] [CrossRef]
- Oh, B.; Lee, S. Study on Energy Saving Possibilities through Analysis of Environment Control Elements & Natural Ventilation Performance using the CFD & Measurement. J. Korean Sol. Energy Soc. 2014, 34, 27–37. [Google Scholar] [CrossRef][Green Version]
- Lenin, V.R.; Sivalakshmi, S.; Raja, M. Optimization of window type and vent parameters on single-sided natural ventilation buildings. J. Therm. Anal. Calorim. 2018, 136, 367–379. [Google Scholar] [CrossRef]
- Asif, A.; Zeeshan, M. Comparative analysis of indoor air quality in offices with different ventilation mechanisms and simulation of ventilation process utilizing system dynamics tool. J. Build. Eng. 2023, 72, 106687. [Google Scholar] [CrossRef]
- Yang, L.; Li, Y. Cooling load reduction by using thermal mass and night ventilation. Energy Build. 2008, 40, 2052–2058. [Google Scholar] [CrossRef]
- Go, S.-S.; Lee, H.-C.; Lee, J.-Y.; Kim, J.-H.; Chung, C.-W. Experimental investigation of mortars using activated Hwangtoh. Constr. Build. Mater. 2009, 23, 1438–1445. [Google Scholar] [CrossRef]
- Yang, K.-H.; Hwang, H.-Z.; Kim, S.-Y.; Song, J.-K. Development of a cementless mortar using hwangtoh binder. Build. Environ. 2007, 42, 3717–3725. [Google Scholar] [CrossRef]
- Kim, K.-W.; Kim, S.; Park, M.J.; Kim, H.-J.; Park, J.C. Characteristics of a Reddish Residual Soil (Hwangtoh) finishing material with water-soluble adhesive for residential building. Constr. Build. Mater. 2009, 24, 1542–1546. [Google Scholar] [CrossRef]
- Lee, K.-C.; Her, J.-H.; Kwon, S.-K. Red clay composites reinforced with polymeric binders. Constr. Build. Mater. 2007, 22, 2292–2298. [Google Scholar] [CrossRef]
- Dunster, A.M.; Parsonage, J.R.; Thomas, M.J.K. The pozzolanic reaction of metakaolinite and its effects on Portland cement hydration. J. Mater. Sci. 1993, 28, 1345–1350. [Google Scholar] [CrossRef]
- Lee, K.; Yeom, D.W.; Lee, B.G. Study on the Temperature and Humidity Control Performance of Hwang-Toh Finish. Appl. Mech. Mater. 2012, 204–208, 3652–3659. [Google Scholar] [CrossRef]
- Pásztory, Z.; Anh Le, D.H. An overview of factors influencing thermal conductivity of building insulation materials. J. Build. Eng. 2021, 44, 102604. [Google Scholar] [CrossRef]
- Aflaki, A.; Mahyuddin, N.; Al-Cheikh Mahmoud, Z.; Baharum, M.R. A review on natural ventilation applications through building façade components and ventilation openings in tropical climates. Energy Build. 2015, 101, 153–162. [Google Scholar] [CrossRef]
- Gao, C.; Lee, W. Evaluating the Influence of Window Types on the Natural Ventilation Performance of Residential Buildings in Hong Kong. Int. J. Vent. 2011, 10, 227–238. [Google Scholar] [CrossRef]
- Yang, S.M.; Lee, H.J.; Kang, S.G. Analysis of Heat Transfer Characteristics by Materials in Closed Conditions Using Acrylic Hemisphere (I): Comparison of Interior Finishing Materials. J. Korean Wood Sci. Technol. 2020, 48, 217–230. [Google Scholar] [CrossRef]
- Givoni, B. Comfort, climate analysis and building design guidelines. Energy Build. 1992, 18, 11–23. [Google Scholar] [CrossRef]
- Santamouris, M.; Kolokotsa, D. Passive cooling dissipation techniques for buildings and other structures: The state of the art. Energy Build. 2013, 57, 74–94. [Google Scholar] [CrossRef]
Disclaimer/Publisher’s Note: The statements, opinions and data contained in all publications are solely those of the individual author(s) and contributor(s) and not of MDPI and/or the editor(s). MDPI and/or the editor(s) disclaim responsibility for any injury to people or property resulting from any ideas, methods, instructions or products referred to in the content. |
© 2024 by the authors. Licensee MDPI, Basel, Switzerland. This article is an open access article distributed under the terms and conditions of the Creative Commons Attribution (CC BY) license (https://creativecommons.org/licenses/by/4.0/).















