Shaking Table Tests and Numerical Study on the Seismic Performance of Arc-Shaped Shear Keys in Highway Continuous-Girder Bridges
Abstract
1. Introduction
2. Experimental Program
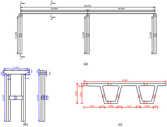
2.1. Engineering Background
2.2. Design of the Bridge Model
2.3. Design of the Shear Keys
2.4. Construction and Assembly Process
2.5. Data Collection Measures
3. Experimental Results
3.1. Experimental Phenomena
3.2. Structural Displacement Response
3.3. Acceleration Response
3.4. Strain Response
4. Numerical Simulation
4.1. Finite Element Model of Bridge
4.2. Numerical Model Validation
4.3. Comparison of Different Shear Keys
5. Conclusions
Author Contributions
Funding
Data Availability Statement
Conflicts of Interest
References
- Ministry of Transport of the People’s Republic of China. Statistical Bulletin on the Development of Transportation Industry in 2021. Available online: http://wap.china-railway.com.cn/crcwapEnglish/news_1293/202206/t20220607_121991.html (accessed on 25 May 2024).
- Su, L.; Zhang, W.; Chen, Y.; Zhang, C. Seismic Performance and Parametric Study of a Winding Rope Fluid Viscous Damper (WRFVD) for Continuous Girder Bridges. J. Earthq. Eng. 2023, 27, 4390–4414. [Google Scholar] [CrossRef]
- Xu, B.; Sun, C.; Song, S.; Zhang, X.; Zhao, B.; Zhang, W. Comparative Study on the Seismic Vulnerability of Continuous Bridges with Steel–Concrete Composite Girder and Reinforced Concrete Girder. Buildings 2024, 14, 1768. [Google Scholar] [CrossRef]
- Song, S.; Tian, Z.; Zhao, Z.; Li, X.; Zhao, J.; Xu, B. Experimental Study on Seismic Performance of CFRP-Strengthened Recycled Concrete Columns with Different Levels of Seismic Damage. Buildings 2023, 13, 1470. [Google Scholar] [CrossRef]
- Peng, S.; Xiong, Z. Experimental study on the seismic behavior of CFRP-strengthened seismic-damaged recycled aggregate concrete-filled rectangular steel tube frame columns. J. Earthq. Eng. 2022, 45, 103422. [Google Scholar] [CrossRef]
- Chen, L. Investigation of Highway Disasters in Wenchuan Earthquake-Bridge; People’s Communications Press: Beijing, China, 2012. [Google Scholar]
- Li, J.; Peng, T.; Xu, Y. Damage investigation of girder bridges under the Wenchuan earthquake and corresponding seismic design recommendations. Earthq. Eng. Eng. Vib. 2008, 7, 337–344. [Google Scholar] [CrossRef]
- Zhuang, W.; Liu, Z.; Jiang, J. Earthquake-induced damage analysis of highway bridges in wenchuan earthquake and countermeasures. Chin. J. Rock Mech. Eng. 2009, 28, 1377–1387. [Google Scholar]
- Liu, Y.; Dang, K.; Dong, J. Finite element analysis of the aseismicity of a large aqueduct. Soil Dyn. Earthq. Eng. 2017, 94, 102–108. [Google Scholar] [CrossRef]
- Meng, D.; Hu, S.; Yang, M.; Hu, R. Experimental and numerical study on the consequence of seismic-induced transversal poundings for a simply-bearinged bridge. Structures 2023, 48, 91–107. [Google Scholar] [CrossRef]
- Peng, T.; Yu, X.; Wang, Z.; Han, L. Study of the seismic performance of expansion double spherical seismic isolation bearings for continuous girder bridges. Earthq. Eng. Eng. Vib. 2012, 11, 163–172. [Google Scholar] [CrossRef]
- Barone, S.; Calvi, G.; Pavese, A. Experimental dynamic response of spherical friction-based isolation devices. J. Earthq. Eng. 2019, 23, 1465–1484. [Google Scholar] [CrossRef]
- Xiang, N.; Li, J. Experimental and numerical study on seismic sliding mechanism of laminated-rubber bearings. Eng. Struct. 2017, 141, 159–174. [Google Scholar] [CrossRef]
- Yue, K.; Xu, L.; Liu, J.; Fan, L.; Xu, L.H. Seismic performance of an energy dissipating shear key for highway bridges using butterfly-shaped steel plates. Eng. Struct. 2023, 295, 116885. [Google Scholar] [CrossRef]
- Shahbazi, P.; Taghikhany, T. Sensitivity analysis of variable curvature friction pendulum isolator under near-fault ground motions. Smart Struct. Syst. 2017, 20, 23–33. [Google Scholar]
- Liu, Y.H.; Tan, P.; Zhou, F.L.; Wenliuhan, H.; Mercan, O. Shaking table test for seismic simulation of continuous isolation girder bridge with high piers. China J. Highw. Transp. 2015, 28, 68–94. [Google Scholar]
- Chen, Y.; Sun, H.; Feng, Z. Study on seismic isolation of long span double deck steel truss continuous girder bridge. Appl. Sci. 2022, 12, 2567. [Google Scholar] [CrossRef]
- Wu, D. Research on seismic performance of new bridge pier seismic reduction isolation system based on shaking table test. J. Vib. Eng. 2022, 24, 1471–1485. [Google Scholar] [CrossRef]
- Qi, Q.; Shao, C.; Cui, H.; Huang, H.; Wei, W.; Wang, C.; Zhuang, W. Shaking table tests and numerical studies on the seismic behaviors of FPB in railway continuous girder bridges. Eng. Struct. 2023, 290, 116318. [Google Scholar] [CrossRef]
- Wei, B.; Tan, H.; Jiang, L.; Xiao, B.; Lu, A. Shaking table test of the seismic performance for railway simply-bearinged girder bridge isolated by self-centering bearing. Eng. Struct. 2024, 300, 117249. [Google Scholar] [CrossRef]
- Zhuang, P.; Zhao, W.; Zhang, G.; Yang, T. Shaking table tests on seismic behaviors of a single-layer spherical lattice shell with shape memory alloy-controlled friction pendulum bearings. J. Build. Eng. 2024, 82, 108150. [Google Scholar] [CrossRef]
- Bozorgzadeh, A.; Megally, S.; Restrepo, J.I.; Ashford, S.A. Capacity evaluation of exterior sacrificial shear keys of bridge abutments. J. Bridg. Eng. 2006, 11, 555–565. [Google Scholar] [CrossRef]
- Silva, P.F.; Megally, S.; Seible, F. Seismic performance of sacrificial exterior shear keys in bridge abutments. Earthq. Spectra 2009, 25, 643–664. [Google Scholar] [CrossRef]
- Li, J.; Tang, H. Study on transverse seismic design of small and mediumspan bridges with elastomeric bearing pads. J. China Civ. Eng. J. 2016, 49, 69–78. [Google Scholar]
- Liu, X.; Li, J.; Chen, X. Effects of X-shaped elastic-plastic steel shear keys on transverse seismic responses of a simply-bearinged girder bridge. J. Vib. Shock. 2015, 34, 143–149. [Google Scholar]
- Tang, Z. Experimental Study and Calculation Method on Bridge Seismic Shear Keys. Master’s Thesis, Chongqing Jiaotong University, Chongqing, China, 2015. [Google Scholar]
- Huang, X.G. Experimental and Theoretical Research on Anti-Falling Device of Continuous Girder Bridge. Doctoral Dissertation, Tongji University, Shanghai, China, 2009. [Google Scholar]
- Li, Z. Study on the Effect of Side Retainers on the Seismic Isolation Effect of Continuous Girder Bridge with Rubber Bearings. Master’s Thesis, Chongqing Jiaotong University, Chongqing, China, 2018. [Google Scholar]
- Wu, G.; Wang, K.; Wang, Q.; Zhang, P. Transverse seismic response analysis for bridges considering performance degradation of bearings and shear keys. J. Vib. Shock. 2018, 37, 189–196. [Google Scholar]
- Song, S.; Wang, S.; Wu, G. Study on seismic vulnerability of small and medium-span girder bridges considering bearing slip and shear key failure. Technol. Earthq. Disaster Prev. 2019, 14, 781–789. [Google Scholar]
- Deng, Y.; Ge, S.; Ge, X. Mitigating Seismic Irregularity of Continuous Girder Bridge with Unequal Height Piers Through Differential Design of Shear Key Strength. Arab. J. Sci. Eng. 2023, 48, 13749–13769. [Google Scholar] [CrossRef]
- Özşahin, E.; Pekcan, G. Inelastic seismic response of box-girder bridges due to torsional ground motions. Eng. Struct. 2020, 218, 110831. [Google Scholar] [CrossRef]
- Zhang, Y.; Shi, Y.; Liu, D. Seismic Effectiveness of Multiple Seismic Measures on a Continuous Girder Bridge. Appl. Sci. 2020, 10, 624. [Google Scholar] [CrossRef]
- Chen, W.; Bai, X.; Xu, T.; Ke, S.; Deng, K.; Xie, H. Damage control of a twin-column pier with a replaceable steel shear link in a cap beam under transverse seismic motion. Adv. Bridge Eng. 2021, 2, 11. [Google Scholar] [CrossRef]
- Long, X.; Zhou, Q.; Ma, Y.; Gui, S.; Lu, C. Displacement-based seismic design of SMA cable-restrained sliding lead rubber bearing for isolated continuous girder bridges. Eng. Struct. 2024, 300, 117179. [Google Scholar] [CrossRef]
- Li, H.; Xie, Y.; Gu, Y.; Tian, S.; Yuan, W.; DesRoches, R. Shake table tests of highway bridges installed with unbonded steel mesh reinforced rubber bearings. Eng. Struct. 2020, 206, 110124. [Google Scholar] [CrossRef]
- He, J.; Chen, J.; Ren, X.; Li, J. A shake table test study of reinforced concrete shear wall model structures exhibiting strong non-linear behaviors. Eng. Struct. 2020, 212, 1104811. [Google Scholar] [CrossRef]
- Shao, C.; Qi, Q.; Wei, W.; Hu, C.; Wang, M.; Xiao, L.; Xiao, Z. Shaking table test of seismic performance of a simply-bearinged girder bridge with single column. J. Vib. Shock. 2019, 38, 49–55. [Google Scholar]
- Zhou, Y.; Lv, X. Method and Technology for Shaking Table Model Test of Building Structures; Science Press: Beijing, China, 2016. [Google Scholar]
- Constantinou, M.; Mokha, A.; Reinhorn, A. Teflon bearing in base isolation II, Modeling. J. Struct. Eng. 1990, 116, 455–474. [Google Scholar] [CrossRef]
- Mokha, A.; Constantinou, M.; Reinhorn, A.; Zayas, V.A. Experimental study of friction-pendulum isolation system. J. Struct. Eng. 1991, 117, 1201–1217. [Google Scholar] [CrossRef]
- Tsopelas, P.; Constantinou, M.; Kim, Y. Experimental study of FPS system in bridge seismic isolation. Earthq. Eng. Struct. Dyn. 1996, 25, 65–78. [Google Scholar] [CrossRef]
- JTG/T 2231-01-2020; Specifications for Seismic Design of Highway Bridges. Ministry of Transport of the People’s Republic of China: Beijing, China, 2020.
- Yan, X.-Y.; Zhao, Z.; Cao, S.-S.; Zhang, Y.-F.; Liu, C.-H. Seismic Response of the Continuous Rigid-Framed Bridge with Super-High Piers Based on Shaking Table Tests. Buildings 2024, 14, 1527. [Google Scholar] [CrossRef]
- Guan, Z.; Li, J.; Qu, H. Shake table test and numerical study on a capable and resilient lateral seismic isolation system for long-span cable-stayed bridges. Soil. Dyn. Earthq. Eng. 2023, 164, 107629. [Google Scholar] [CrossRef]


















| Bearing Model | GYZ D450 × 114 | GYZF4 D350 × 76 |
|---|---|---|
| Dynamic shear modulus (KN/m2) | 1200 | 1200 |
| Area (m2) | 0.152 | 0.0691 |
| Total thickness of rubber layer (m) | 0.082 | 0.053 |
| Horizontal stiffness (KN/m) | 2225 | 2056 |
| Vertical stiffness (KN/m) | 1,201,590 | 1,254,334 |
| Property | Physical Quantity | Similar Indicators | Ratio | Remark |
|---|---|---|---|---|
| Geometric | Length | Sl | 1/12 | Size control |
| Displacement | Sd = Sl | 1/12 | ||
| Material | Elastic modulus | SE | 1 | Material control |
| Mass | Sm = SE Sl2/Sα | 1/288 | ||
| Density | Sρ = Sm/Sl3 | 6 | ||
| Stress | Sσ = SE | 1 | ||
| Strain | SƐ = Sσ/SE | 1 | ||
| Load | Point load | SF= SσSl2 | 1/144 | |
| Line load | Sp = SE Sl | 1/12 | ||
| Dynamic | Acceleration | Sα | 2 | Test control |
| Moment | SM = SE Sl3 | 1/1728 | ||
| Period | ST = (Sl/Sα)1/2 | 1/4.90 | ||
| Frequency | Sf = (Sl/Sα)−1/2 | 4.90 | ||
| Power velocity | Sv = (Sl Sα)1/2 | 1/4.90 | ||
| Friction | Sc = Sl1.5 Sα−1/2 | 1/58.79 |
Disclaimer/Publisher’s Note: The statements, opinions and data contained in all publications are solely those of the individual author(s) and contributor(s) and not of MDPI and/or the editor(s). MDPI and/or the editor(s) disclaim responsibility for any injury to people or property resulting from any ideas, methods, instructions or products referred to in the content. |
© 2024 by the authors. Licensee MDPI, Basel, Switzerland. This article is an open access article distributed under the terms and conditions of the Creative Commons Attribution (CC BY) license (https://creativecommons.org/licenses/by/4.0/).
Share and Cite
Huang, L.; Wang, W.; Xu, S.; Wang, B.; Li, Z. Shaking Table Tests and Numerical Study on the Seismic Performance of Arc-Shaped Shear Keys in Highway Continuous-Girder Bridges. Buildings 2024, 14, 3060. https://doi.org/10.3390/buildings14103060
Huang L, Wang W, Xu S, Wang B, Li Z. Shaking Table Tests and Numerical Study on the Seismic Performance of Arc-Shaped Shear Keys in Highway Continuous-Girder Bridges. Buildings. 2024; 14(10):3060. https://doi.org/10.3390/buildings14103060
Chicago/Turabian StyleHuang, Liang, Wenze Wang, Shizhan Xu, Bo Wang, and Zisheng Li. 2024. "Shaking Table Tests and Numerical Study on the Seismic Performance of Arc-Shaped Shear Keys in Highway Continuous-Girder Bridges" Buildings 14, no. 10: 3060. https://doi.org/10.3390/buildings14103060
APA StyleHuang, L., Wang, W., Xu, S., Wang, B., & Li, Z. (2024). Shaking Table Tests and Numerical Study on the Seismic Performance of Arc-Shaped Shear Keys in Highway Continuous-Girder Bridges. Buildings, 14(10), 3060. https://doi.org/10.3390/buildings14103060
