Seismic Behavior of Demountable Self-Lock Joint for Middle Column Connection in Modular Steel Construction
Abstract
1. Introduction
2. Mechanism of Self-Lock Joint
2.1. Self-Lock Connector and Unlocking Device
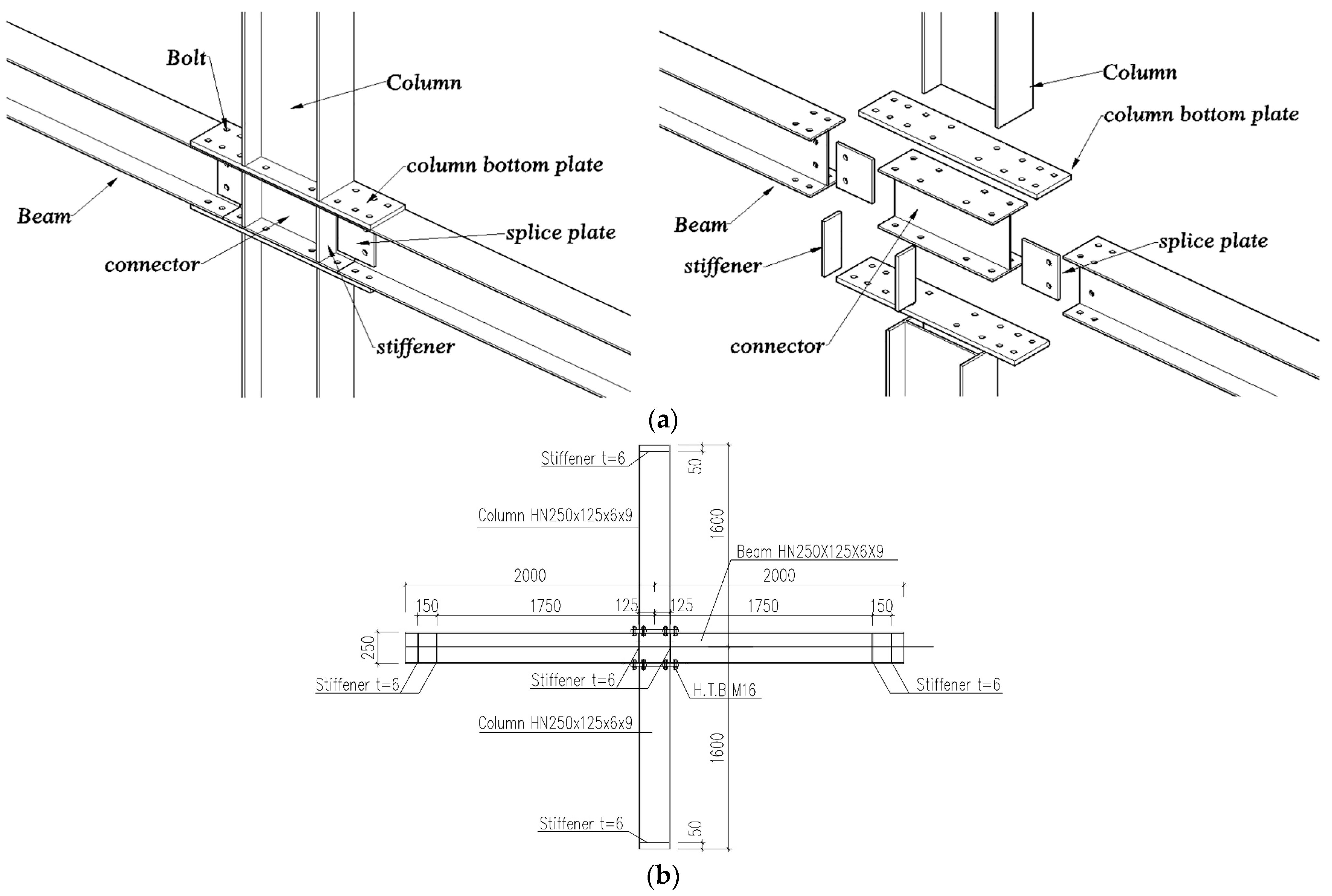
2.2. Demountable Self-Lock Joint in Modular Steel Construction
- (a)
- No extra operation spaces are needed during the construction. The connecting process is performed automatically during the piling up of the modules. The on-site work is minimized. Thus, this novel joint provides an easy solution for middle joints of modular steel construction.
- (b)
- The unlocking device of this joint provides exceptional detachability and interchangeability. Room modules can be easily detached and reused on another site. Thus, resources can be saved and the disruption to the environment can be minimized.
- (c)
- No limitations to sections of beams or columns are needed. This joint can be adapted to beams and columns with various types of sections. The choices of the beam and column sections are flexible.
3. Experimental Program
3.1. Specimen Design
3.2. Experimental Program
4. Result and Discussion
4.1. General Behavior
4.1.1. T-Shaped Demountable Specimens (TS-1 and TS-2)
4.1.2. Cross-Shaped Specimens (TS-3 and TS-4)
4.2. Strength, Stiffness and Ductility
4.3. Energy Dissipation
5. Numerical Analysis
5.1. Geometry, Material Properties, and Boundary Condition
5.2. Validation
5.3. Parameter Analysis
6. Conclusions
- (a)
- The demountable function of the self-lock joints was validated through the test program. The results show that the mechanism of the joints works well. The connecting and demounting function of the novel joints can be realized in modular steel construction.
- (b)
- The seismic behavior of the self-lock joints was investigated through experimental study. The results show that these types of novel joints exhibit exceptional seismic behavior, and they can be defined as semi-rigid full-strength joints. The strength of the joint is determined by the beam sections. Due to the maintenance opening on the joint boxes, the unlocking device decreases the stiffness of the joint by 10%, but this does not affect the yield and maximum strength. The thickness of the connecting plate does not affect the seismic behavior of cross-shaped joints.
- (c)
- Numerical analysis was conducted based on the tests. FE models were developed and validated through the test. Comparisons of the load–drift ratio curve, strength, stiffness, and deformation were made between the FE and test results. The comparisons show that the FE result fits well with the test ones. The main conclusions of the parameter analysis show that the absence of the joint box reduces the initial stiffness of the joint, and the thickness of the joint box plate and the diameter of the stud do not significantly affect the strength of the joint. Therefore, for the design of a demountable self-locking joint, it is necessary to set joint boxes. The plate size of the joint box can be considered according to the conventional plate size, that is, not less than the thickness of the beam and column.
Author Contributions
Funding
Data Availability Statement
Conflicts of Interest
References
- Deng, E.F.; Zong, L.; Ding, Y.; Dai, X.M.; Lon, N.; Chen, Y. Monotonic and cyclic response of bolted connections with welded cover plate for modular steel construction. Eng. Struct. 2018, 167, 407–419. [Google Scholar] [CrossRef]
- Lawson, R.M.; Ogden, R.; Goodier, C. Design in Modular Construction; CRC Press: Boca Raton, FL, USA, 2014. [Google Scholar]
- Chen, Z.H.; Liu, J.D.; Yu, Y.J. Experimental study on interior connections in modular steel buildings. Eng. Struct. 2017, 147, 625–638. [Google Scholar] [CrossRef]
- Chen, Z.; Liu, J.; Yu, Y.; Zhou, C.; Yan, R. Experimental study of an innovative modular steel building connection. J. Constr. Steel Res. 2017, 139, 69–82. [Google Scholar] [CrossRef]
- Lacey, A.W.; Chen, W.; Hao, H.; Bi, K. Structural response of modular buildings—An overview. J. Build. Eng. 2018, 16, 45–56. [Google Scholar] [CrossRef]
- Liu, X.C.; Pu, S.H.; Zhang, A.L.; Xu, A.X.; Ni, Z.; Sun, Y.; Ma, L. Static and seismic experiment for bolted-welded joint in modularized prefabricated steel structure. J. Constr. Steel Res. 2015, 115, 417–433. [Google Scholar] [CrossRef]
- Sanches, R.; Mercan, O.; Roberts, B. Experimental investigations of vertical post-tensioned connection for modular steel structures. Eng. Struct. 2018, 175, 776–789. [Google Scholar] [CrossRef]
- Fest, E.; Shea, K.; Domer, B.; Smith, I.F. Adjustable tensegrity structures. J. Struct. Eng. ASCE 2003, 129, 515–526. [Google Scholar] [CrossRef]
- Du, X.L.; Wang, W.; Chan, T.M. Seismic design of beam-through steel frames with self-centering modular panels. Eng. Struct. 2018, 141, 179–188. [Google Scholar] [CrossRef]
- Dai, X.M. Research on Seismic Behavior and Design Method of Self-Lock Plug-In Joints in Modular Steel Construction. Ph.D. Thesis, Tianjin University, Tianjin, China, 2021. [Google Scholar]
- Chen, Z.; Niu, X.; Liu, J.; Khan, K.; Liu, Y. Seismic study on an innovative fully bolted beam-column joint in prefabricated modular steel buildings. Eng. Struct. 2021, 234, 111875. [Google Scholar] [CrossRef]
- Du, H.; Zhao, P.; Wang, Y.; Sun, W. Seismic experimental assessment of beam through beam-column connections for modular prefabricated steel moment frames. J. Constr. Steel Res. 2022, 192, 107208. [Google Scholar] [CrossRef]
- Dai, X.M.; Zong, L.; Ding, Y.; Li, Z.X. Experimental study on seismic behavior of a novel plug-in self-lock joint for modular steel construction. Eng. Struct. 2019, 181, 143–164. [Google Scholar] [CrossRef]
- GB/T 228.1-2010; Metallic Materials-Tensile Testing-Part 1: Method of Test at Room Temperature. SAC (Standardization Administration of the People’s Republic of China): Beijing, China, 2010. (In Chinese)
- GB/T 699-2015; Quality Carbon Structure Steels. SAC (Standardization Administration of the People’s Republic of China): Beijing, China, 2015. (In Chinese)
- GB/T 1591-2018; High Strength Low Alloy Structural Steels. SAC (Standardization Administration of the People’s Republic of China): Beijing, China, 2018. (In Chinese)
- Srisangeerthanan, S.; Hashemi, M.J.; Rajeev, P.; Gad, E.; Fernando, S. Numerical study on the effects of diaphragm stiffness and strength on the seismic response of multi-story modular buildings. Eng. Struct. 2018, 163, 25–37. [Google Scholar] [CrossRef]
- ATC-24; Guidelines for Cyclic Seismic Testing of Components of Steel Structures. ATC (Applied Technology Council): Redwood City, CA, USA, 1992.
- BS EN 1993-1-8:2005; Design of Steel Structures—Part 1–8: Design of Joints. CEN (European Committee for Standardization): London, UK, 2005.


























| Specimen No. | Joint Type | Shape | Thickness of Connecting Plate (mm) | Remarks |
|---|---|---|---|---|
| TS-1 (Contrast) | Corner joint | T-shape | - | - |
| TS-2 | Corner joint | T-shape | - | Unlocking device |
| TS-3 | Side Joint | Cross-shape | 20 | - |
| TS-4 | Side Joint | Cross-shape | 30 | - |
| Parts | Steel Grade | Elastic Modulus (N/mm2) | Yield Strength (N/mm2) | Ultimate Strength (N/mm2) | Ultimate Strain | Elongation (%) |
|---|---|---|---|---|---|---|
| Connector components | U20452 (45#) | 193.3 | 441.3 | 553.7 | 0.170 | 30.6 |
| Steel plate | Q345B | 195.8 | 393.8 | 523.5 | 0.192 | 33.8 |
| Yield Strength (kN·m) | Maximum Strength (kN·m) | Yield Drift Ratio (%) | Ultimate Drift Ratio (%) | Ductility Coefficient | ||||
|---|---|---|---|---|---|---|---|---|
| Positive | Negative | Positive | Negative | |||||
| TS-1 | 269.6 | 262.4 | 283.0 | 279.4 | 2.39 | 6.75 | 2.82 | |
| TS-2 | 253.0 | 260.5 | 270.9 | 278.6 | 2.66 | 6.67 | 2.50 | |
| TS-3 | Left | 254.9 | 271.4 | 271.6 | 290.7 | 2.52 | 7.22 | 2.87 |
| Right | 261.2 | 269.6 | 285.5 | 295.8 | 2.42 | 7.44 | 3.07 | |
| TS-4 | Left | 255.6 | 270.1 | 279.3 | 294.7 | 2.22 | 7.18 | 3.23 |
| Right | 262.1 | 268.9 | 280.1 | 287.1 | 2.28 | 6.68 | 2.93 | |
| Parts | Elastic Modulus (N/mm2) | Yield Strength (N/mm2) | Ultimate Strength (N/mm2) |
|---|---|---|---|
| Connector components | 200.0 | 441.3 | 553.7 |
| Steel plate | 200.0 | 393.8 | 523.5 |
| No | Yield Strength | Maximum Strength | Initial Stiffness | ||||||
|---|---|---|---|---|---|---|---|---|---|
| FE Result (kN·m) | Test Result (kN·m) | Error (%) | FE Result (kN·m) | Test Result (kN·m) | Error (%) | FE Result (kN·m/rad) | Test Result (kN·m/rad) | Error (%) | |
| TS-1 | 271.2 | 266.0 | 2.0 | 279.4 | 281.2 | 0.6 | 13,395 | 13,543 | −1.1 |
| TS-2 | 262.7 | 256.8 | 2.3 | 274.6 | 274.8 | <0.1 | 12,262 | 11,855 | +3.4 |
| TS-3 | 273.8 | 264.2 | 3.4 | 297.9 | 285.9 | 4.2 | 13,868 | 13,596 | +2.0 |
| TS-4 | 270.7 | 265.1 | 2.1 | 301.4 | 287.6 | 5.0 | 13,997 | 14,780 | −5.3 |
| No | t1 (mm) | t2 (mm) | t3 (mm) | D (mm) | Unlocking Device | Yield Strength (kN·m) | Maximum Strength (kN·m) | Initial Stiffness (kN·m/rad) |
|---|---|---|---|---|---|---|---|---|
| M-1 | 20 | 16 | 16 | 50 | - | 269.8 | 285.0 | 13,834 |
| M-2 | 18 | 16 | 16 | 50 | 269.5 | 284.5 | 13,724 | |
| M-3 | 16 | 16 | 16 | 50 | - | 269.1 | 284.2 | 13,628 |
| M-4 | 14 | 16 | 16 | 50 | 266.4 | 281.9 | 13,430 | |
| M-5 | 12 | 16 | 16 | 50 | - | 264.9 | 280.0 | 13,265 |
| M-6 | 10 | 16 | 16 | 50 | - | 262.9 | 278.1 | 13,063 |
| M-7 | 16 | 16 | 16 | 50 | Yes | 263.8 | 282.0 | 12,288 |
| M-8 | 16 | 20 | 16 | 50 | - | 269.6 | 283.8 | 13,726 |
| M-9 | 16 | 18 | 16 | 50 | 269.4 | 284.5 | 13,695 | |
| M-10 | 16 | 14 | 16 | 50 | 268.8 | 284.1 | 13,560 | |
| M-11 | 16 | 12 | 16 | 50 | - | 267.8 | 283.7 | 13,531 |
| M-12 | 16 | 10 | 16 | 50 | - | 267.2 | 282.8 | 13,516 |
| M-13 | 16 | 16 | 20 | 50 | - | 269.4 | 284.1 | 13,683 |
| M-14 | 16 | 16 | 18 | 50 | 269.1 | 284.3 | 13,665 | |
| M-15 | 16 | 16 | 14 | 50 | 269.0 | 284.2 | 13,556 | |
| M-16 | 16 | 16 | 12 | 50 | - | 265.5 | 281.1 | 13,452 |
| M-17 | 16 | 16 | 10 | 50 | - | 265.8 | 282.4 | 13,383 |
| M-18 | No joint box | - | 235.1 | 255.6 | 12,360 | |||
| M-19 | 20 | 20 | 20 | 60 | - | 268.2 | 284.3 | 13,656 |
| M-20 | 20 | 20 | 20 | 40 | - | 267.7 | 283.9 | 13,523 |
Disclaimer/Publisher’s Note: The statements, opinions and data contained in all publications are solely those of the individual author(s) and contributor(s) and not of MDPI and/or the editor(s). MDPI and/or the editor(s) disclaim responsibility for any injury to people or property resulting from any ideas, methods, instructions or products referred to in the content. |
© 2024 by the authors. Licensee MDPI, Basel, Switzerland. This article is an open access article distributed under the terms and conditions of the Creative Commons Attribution (CC BY) license (https://creativecommons.org/licenses/by/4.0/).
Share and Cite
Dai, X.-M.; Zong, L.; Ding, Y.; Zhang, H.-W.; Shi, F.-W. Seismic Behavior of Demountable Self-Lock Joint for Middle Column Connection in Modular Steel Construction. Buildings 2024, 14, 275. https://doi.org/10.3390/buildings14010275
Dai X-M, Zong L, Ding Y, Zhang H-W, Shi F-W. Seismic Behavior of Demountable Self-Lock Joint for Middle Column Connection in Modular Steel Construction. Buildings. 2024; 14(1):275. https://doi.org/10.3390/buildings14010275
Chicago/Turabian StyleDai, Xiao-Meng, Liang Zong, Yang Ding, Hao-Wen Zhang, and Feng-Wei Shi. 2024. "Seismic Behavior of Demountable Self-Lock Joint for Middle Column Connection in Modular Steel Construction" Buildings 14, no. 1: 275. https://doi.org/10.3390/buildings14010275
APA StyleDai, X.-M., Zong, L., Ding, Y., Zhang, H.-W., & Shi, F.-W. (2024). Seismic Behavior of Demountable Self-Lock Joint for Middle Column Connection in Modular Steel Construction. Buildings, 14(1), 275. https://doi.org/10.3390/buildings14010275

