Housing Quality Assessment Model Based on the Spatial Characteristics of an Apartment
Abstract
1. Introduction
2. Materials and Methods
- For questions answered with a Likert scale (1 undesirable; 5 desirable), 1 point is awarded if the user rated a particular indicator as 4 or 5 and the rated apartment has that characteristic. If the apartment does not have this characteristic, it is awarded 0 points. If, on the other hand, the user has assigned 1 or 2 to the indicator and the apartment has the characteristic, it is awarded 0 points or 1 point if it does not have the characteristic. If the user marked the characteristic of the apartment with 3, it means that this characteristic is neither important nor unimportant for him; therefore, it does not affect the rating, and this indicator is removed from the rating system;
- In the questions about the sizes of certain rooms, users chose the interval in which they think the minimal area of a certain room should be. If the area of the room in the observed apartment is within the interval or higher, 1 point is awarded; if it is smaller, 0 points are awarded;
- Since each spatial feature of the apartment can be designed in several different ways, i.e., has several possible variants, the user must be able to evaluate the desirability and quality of each of these variants in the model. For this reason, a scoring system was developed for the spatial features of the apartment, for which there are several different solutions. Indicators with three possibilities are assigned 0, 0.5, or 1 point; indicators with four possibilities are assigned 0, 0.33, 0.67, or 1 point; and indicators with five possibilities are assigned 0, 0.25, 0.5, 0.75, or 1 point.
- Collecting general data on apartments and defining the spatial characteristics of the observed apartments based on the project documentation;
- Application of the paired comparison analysis to five categories of indicators to determine the importance of each category;
- Completing a questionnaire that identifies the importance of certain spatial features (indicators) of the apartment.
- Entering general apartment information into the model;
- Entering data on the importance of each category of indicators into the model;
- The model calculates the share of the indicator categories in the overall rating;
- Data entry on the importance of each indicator within each indicator category;
- The model awards points for each indicator;
- The model calculates a rating for each indicator category;
- The model defines the overall rating of the apartment.
- AR—overall apartment rating
- I(IC)i—the number of points achieved by the indicator within a certain indicator category
- S(IC)—share of the indicator category in the total score
- NI(IC)—number of indicators within an indicator category
- n—the number of criteria within each SCA indicator category
- (ar)—additional rooms
- (rs)—room size
- (wo)—windows orientation and ventilation
- (ci)—circulation
- (so)—spatial organization
- n and m—change and depend on the number of rooms in the evaluated apartment
3. Results
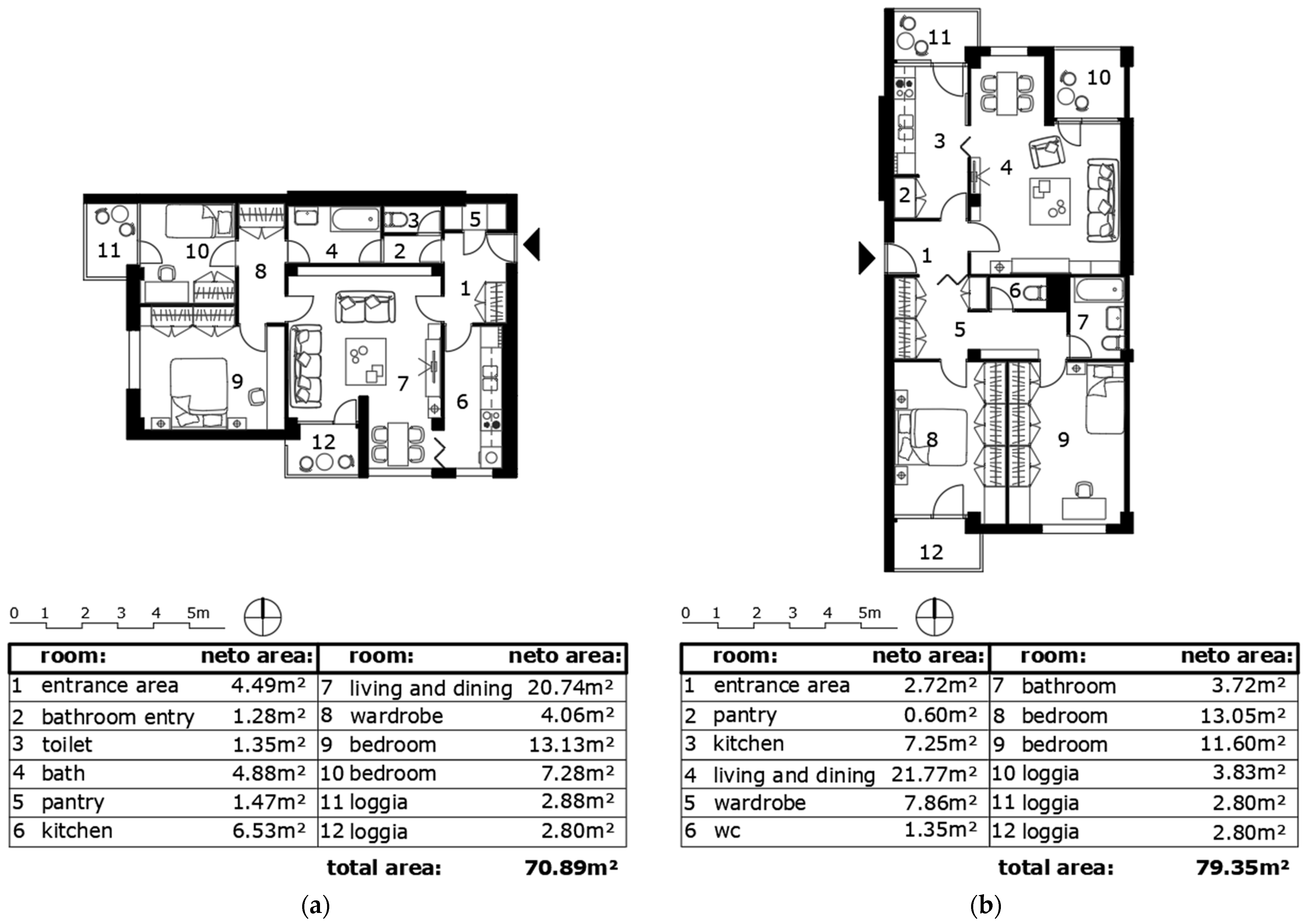
3.1. Evaluated Apartments
3.2. Assessment of the Presence of Additional Rooms (ar)
3.3. Assessment of Room Size (rs)
3.4. Assessment of Window Orientation and Ventilation (wo)
3.5. Assessment of Apartments Circulation (ci)
3.6. Assessment of Apartments Spatial Organizations (so)
3.7. Overal Apartments Ratings
4. Discussion
- (1)
- In most previous studies, all indicator categories often had the same proportion of the total score (only HQI [24] and HPEM [29] have the ability to change the weightings), which is not the reality from the perspective of the vast majority of users. In this model, each category has a different impact on the overall housing quality score, so each user defines the importance of each category for himself through the PCA method;
- (2)
- Each user uses a questionnaire to determine which housing characteristics are important to them and to what extent, and what characteristics an apartment must have to be good for them and meet their criteria.
- (1)
- how much a different distribution of points would affect the overall score if the user defined the number of points for each answer, and
- (2)
- how much more complicated the questionnaire would be if it contained such questions, and how much longer the entire assessment process would take.
5. Conclusions
Funding
Data Availability Statement
Conflicts of Interest
Appendix A
| Survey Question (Evaluation Method) | Offered Answers | User Responses | |
|---|---|---|---|
| How desirable is it for the apartment to have more than one storage room (e.g., pantry, wardrobe)? | Likert scale 1–5 (1 = least desirable; 5 = most desirable) | 4 | |
| How desirable is it for the apartment to have an outdoor space (balcony, loggia, terrace)? | 5 | ||
| How desirable is it for the apartment to have an additional WC in addition to the bathroom? | 4 | ||
| In your opinion, what should be the minimum area (m2) for you to feel comfortable in the following rooms? 1 | Living room | <10; 10–15; 15–20; 20–25; 25–30 | 15–20 |
| Living room with dining area | 10–15; 15–20; 20–25; 25–30; 30–35 | 20–25 | |
| Kitchen | <3; 3–6; 6–9; 9–12; 12–15 | 6–9 | |
| Kitchen with dining area | 4–8; 8–12; 12–16; 16–20; 20–24 | 12–16 | |
| Parents’ bedroom | 5–10; 10–15; 15–20; 20–25; 25–30 | 10–15 | |
| Bedroom for two children | 5–10; 10–15; 15–20; 20–25; 25–30 | 10–15 | |
| Bedroom for one child | <5; 5–10; 10–15; 15–20; 20–25 | 5–10 | |
| How desirable is it for the apartment to have a high ceiling (a room higher than 3.00 m)? | Likert scale 1–5 (1 = least desirable; 5 = most desirable) | 1 | |
| What is the most desirable orientation of the windows of the following rooms? | Living room | Rank from 1 to 4 from most desirable to least desirable (east, west, north, south) | 1 south; 2 east; 3 west; 4 north |
| Kitchen | 1 north; 2 east; 3 south; 4 west | ||
| Bedroom | 1 east; 2 south; 3 north; 4 west | ||
| How important is it that the kitchen has a window? | Likert scale 1–5 (1 = least desirable; 5 = most desirable) | 5 | |
| How important is it that the bathroom has a window? | 3 | ||
| How important is the two-sided orientation of the apartment? | 4 | ||
| What is the most convenient way to connect the rooms in the apartment? | Rank from 1 to 5 from most convenient to least convenient (circular connection, central living room, via corridor, zoning, direct room to room connection) | 1 zoning; 2 circular connection; 3 via corridor; 4 central living room; 5 direct room to room connection | |
| What is the desirable connection between the kitchen and the living room? | Rank from 1 to 3 from most desirable to least desirable (separate rooms, connected by a door, in the same space) | 1 connected by a door; 2 separate rooms; 3 in the same space | |
| From which room is it best to go outside (balcony, loggia, terrace)? | Rank from 1 to 3 from most desirable to least desirable (kitchen, living room, bedroom) | 1 living room; 2 kitchen; 3 bedroom | |
| How desirable is it to enter the bedroom through the living room? | Likert scale 1–5 (1 = least desirable; 5 = most desirable) | 1 | |
| What is the most desirable room for placing a dining table? | Rank from 1 to 3 from most desirable to least desirable (kitchen, living room, dining room) | 1 living room; 2 kitchen; 3 dining room | |
| How desirable is it to enter the bedroom area of the apartment from a separate corridor connected directly to the entrance area? | Likert scale 1–5 (1 = least desirable; 5 = most desirable) | 4 | |
| How desirable is it that the apartment can be reorganized with little construction work? | 4 | ||
Appendix B

| Indicator Category | Additional Rooms | Room Size | Windows Orientation and Ventilation | Circulation | Spatial Organization | Σ |
|---|---|---|---|---|---|---|
| (ar) | (rs) | (wo) | (ci) | (so) | ||
| PCA score | 4 | 9 | 1 | 2 | 5 | 21 |
| Share of the category in the final rating | 19.05 | 42.86 | 4.76 | 9.52 | 23.81 | 100% |
References
- Herbers, D.J.; Mulder, C.H. Housing and subjective well-being of older adults in Europe. J. Hous. Built Environ. 2017, 32, 533–558. [Google Scholar] [CrossRef]
- Nahtigal, D.; Grum, B. Segmentation and the Value Frame of Buyers of Residential Apartments. Geod. Vestn. 2015, 59, 71–101. [Google Scholar] [CrossRef]
- Streimikiene, D. Quality of Life and Housing. Int. J. Inf. Educ. Technol. 2015, 5, 140–145. [Google Scholar] [CrossRef]
- Ibem, E.O.; Amole, D. Residential Satisfaction in Public Core Housing in Abeokuta, Ogun State, Nigeria. Soc. Indic. Res. 2013, 113, 563–581. [Google Scholar] [CrossRef]
- Tajudeen, A.; David, T.; Basirat, M.-A.; Azeez, B. Comparative Assessment of Students’ Satisfaction with Hostel Accommodation in Selected Private Universities in Ogun State, Nigeria. Eur. Sci. J. 2016, 12, 410. [Google Scholar] [CrossRef]
- Li, L.W.; Liu, J.; Zhang, Z.; Xu, H. Late-life depression in Rural China: Do village infrastructure and availability of community resources matter? Int. J. Geriatr. Psychiatry 2015, 30, 729–736. [Google Scholar] [CrossRef]
- Natividade-Jesus, E.; Coutinho-Rodrigues, J.; Antunes, C.H. A multicriteria decision support system for housing evaluation. Decis. Support Syst. 2007, 43, 779–790. [Google Scholar] [CrossRef]
- Haddad, M.; Judeh, M.; Haddad, S.I. Factors Affecting Buying Behavior of an Apartment an Empirical Investigation in Amman, Jordan. Res. J. Appl. Sci. Eng. Technol. 2011, 3, 234–239. [Google Scholar]
- James, R.N. Multifamily Housing Characteristics and Tenant Satisfaction. J. Perform. Constr. Facil. 2007, 21, 472–480. [Google Scholar] [CrossRef]
- Chohan, A.H.; Irfan, A.; Awad, J. Development of Quality Indicators of Housing Design (QIHD), an Approach to Improve Design Quality of Affordable Housing. Open House Int. 2015, 40, 10–17. [Google Scholar] [CrossRef]
- Elsinga, M.; Hoekstra, J. Homeownership and housing satisfaction. J. Hous. Built Environ. 2005, 20, 401–424. [Google Scholar] [CrossRef]
- Tibesigwa, B.M.; Hao, L.; Karumuna, B.V. The concept of spatial quality and its challenges on exercised affordable housing design typology in Dar es Salaam—Tanzania. Habitat Int. 2017, 59, 44–59. [Google Scholar] [CrossRef]
- Acre, F.; Wyckmans, A. Spatial quality determinants for residential building renovation: A methodological approach to the development of spatial quality assessment. Int. J. Sustain. Build. Technol. Urban Dev. 2014, 5, 183–204. [Google Scholar] [CrossRef]
- Mohit, M.A.; Ibrahim, M.; Rashid, Y.R. Assessment of residential satisfaction in newly designed public low-cost housing in Kuala Lumpur, Malaysia. Habitat Int. 2010, 34, 18–27. [Google Scholar] [CrossRef]
- Kabisch, S.; Poessneck, J.; Soeding, M.; Schlink, U. Measuring residential satisfaction over time: Results from a unique long-term study of a large housing estate. Hous. Stud. 2022, 37, 1858–1876. [Google Scholar] [CrossRef]
- Milić, J.; Zhou, J. Residential satisfaction among young people in post-socialist countries: The case of Serbia. J. Hous. Built Environ. 2018, 33, 715–730. [Google Scholar] [CrossRef]
- Tanaphoom, W.; Bart, D. An Overview of Public Housing Characteristics and Living Satisfactions: Old and New Public Housing Project in Bangkok. Procedia Environ. Sci. 2015, 28, 689–697. [Google Scholar] [CrossRef]
- Li, J.; Li, D.; Ning, X.; Sun, J.; Du, H. Residential satisfaction among resettled tenants in public rental housing in Wuhan, China. J. Hous. Built Environ. 2019, 34, 1125–1148. [Google Scholar] [CrossRef]
- Choi, J.; Cho, T. Comparing Perception Concerning the Importance of Apartment Complex Components Between Consumers and Housing Providers. J. Asian Archit. Build. Eng. 2014, 13, 109–116. [Google Scholar] [CrossRef]
- Borgoni, R.; Michelangeli, A.; Pirola, F. Residential Satisfaction for a Continuum of Households: Evidence from European Countries; Global Labor Organization (GLO): Milan, Italy, 2018. [Google Scholar]
- Sinha, R.C.; Sarkar, S.; Mandal, N.R. An Overview of Key Indicators and Evaluation Tools for Assessing Housing Quality: A Literature Review. J. Inst. Eng. (India) Ser. A 2017, 98, 337–347. [Google Scholar] [CrossRef]
- Moreira da Costa, J.; Sampaio, M.F. User Information in the housing market. In Proceedings of the World Congress on Housing, Santander, Spain, 26–29 October 2010; pp. 1–8. [Google Scholar]
- Homes and Communities Agency. Housing Quality Indicators. Available online: https://www.gov.uk/guidance/housing-quality-indicators (accessed on 2 April 2023).
- The National Affordable Homes Agency. 721 Housing Quality Indicators (HQI) Form. Available online: https://assets.publishing.service.gov.uk/government/uploads/system/uploads/attachment_data/file/366634/721_hqi_form_4_apr_08_update_20080820153028.pdf (accessed on 22 March 2023).
- Harrison, A. Housing Quality Indicators. Available online: https://www.housingauthority.gov.hk/eng/events/conf/conferen/pdf/eandrew.pdf (accessed on 13 January 2023).
- Design Quality Indicator. Available online: https://www.dqi.org.uk/ (accessed on 14 January 2023).
- Rogers, P. CIC Design Quality Indicator Online. Available online: http://www.dqi.org.uk/dqi/Common/DQIOnline.pdf (accessed on 14 January 2023).
- SEL. Available online: https://www.wbs.admin.ch/fr/application/methodologie (accessed on 2 April 2023).
- Kim, S.-S.; Yang, I.; Yeo, M.; Kim, K.-w. Development of a housing performance evaluation model for multi-family residential buildings in Korea. Build. Environ. 2005, 40, 1103–1116. [Google Scholar] [CrossRef]
- Chohan, A.; Che-Ani, A.; Shar, B.; Awad, J.; Jawaid, A.; Mohd Tawil, N. A Model of Housing Quality Determinants (HQD) for Affordable Housing. J. Constr. Dev. Ctries. 2015, 20, 117–136. [Google Scholar]
- Le, L.H.; Ta, A.D.; Dang, H.Q. Building up a System of Indicators to Measure Social Housing Quality in Vietnam. Procedia Eng. 2016, 142, 116–123. [Google Scholar] [CrossRef]
- Mercader-Moyano, P.; Morat-Pérez, O.; Muñoz-González, C. Housing Evaluation Methodology in a Situation of Social Poverty to Guarantee Sustainable Cities: The Satisfaction Dimension for the Case of Mexico. Sustainability 2021, 13, 11199. [Google Scholar] [CrossRef]
- Yau, Y.; Ho, D.; Wing, C.K.; Lau, W.-y. Estimation algorithm for predicting the performance of private apartment buildings in Hong Kong. Struct. Surv. 2009, 27, 372–389. [Google Scholar] [CrossRef]
- Chohan, A.H. Matrix of Affordable Housing Assessment: A Development Process. Designs 2022, 6, 4. [Google Scholar] [CrossRef]
- BREEAM. Available online: https://bregroup.com/products/breeam/ (accessed on 2 April 2023).
- LEED. Available online: https://www.usgbc.org/leed (accessed on 3 April 2023).
- Kurian, S.M.; Thampuran, A. Assessment of Housing Quality. Inst. Town Plan. India J. 2011, 8, 74–85. [Google Scholar]
- Wimalasena, N.N.; Chang-Richards, A.; Wang, K.; Dirks, K. Housing quality indicators: A systematic review. In Proceedings of the 10th World Construction Symposium, Colombo, Sri Lanka, 24–26 June 2022; pp. 531–544. [Google Scholar]
- Brkanić, I.; Stober, D.; Mihić, M. A Comparative Analysis of the Spatial Configuration of Apartments Built in Osijek, Croatia, between 1930 and 2015. J. Asian Archit. Build. Eng. 2018, 17, 23–30. [Google Scholar] [CrossRef]
- Brkanić, I.; Atanacković-Jeličić, J. Socialist Housing in Osijek. Electron. J. Fac. Civ. Eng. Osijek e-GFOS 2018, 17, 10. [Google Scholar] [CrossRef]
- Brkanić, I. Housing Quality Assessment criteria. Electron. J. Fac. Civ. Eng. Osijek e-GFOS 2017, 8, 37–47. [Google Scholar] [CrossRef]
- Brkanić, I. Comparison of Architects’ and users’ attitudes toward spatial characteristics of apartments. In Proceedings of the 5th International Academic Conference on Places and Technologies, Belgrade, Serbia, 26–27 April 2018; pp. 445–452. [Google Scholar]
- Paired Comparison Analysis. Available online: https://www.nydi.org/images/cps-tools/focusing-tools/Paired_Comparison_Analysis.pdf (accessed on 4 April 2023).
Disclaimer/Publisher’s Note: The statements, opinions, and data contained in all publications are solely those of the individual author(s) and contributor(s) and not of MDPI and/or the editor(s). MDPI and/or the editor(s) disclaim responsibility for any injury to people or property resulting from any ideas, methods, instructions, or products referred to in the content. |




| Indicator Category | Indicator | Survey Question |
|---|---|---|
| Additional rooms (ar) | The existence of several storage rooms | How desirable is it for the apartment to have more than one storage room (e.g., pantry, wardrobe)? |
| The existence of outdoor space | How desirable is it for the apartment to have an outdoor space (balcony, loggia, terrace)? | |
| The existence of additional toilet | How desirable is it for the apartment to have an additional WC in addition to the bathroom? | |
| Room size (rs) | Living room | In your opinion, what should be the minimum area (m2) for you to feel comfortable in the following rooms? |
| Living room with dining area | ||
| Kitchen | ||
| Kitchen with dining area | ||
| Parents’ bedroom | ||
| Bedroom for two children | ||
| Bedroom for one child | ||
| High ceiling | How desirable is it for the apartment to have a high ceiling (a room higher than 3.00 m)? | |
| Window orientation and ventilation (wo) | Living room orientation | What is the most desirable orientation of the windows of the following rooms? |
| Kitchen orientation | ||
| Bedroom orientation | ||
| Kitchen with window | How important is it that the kitchen has a window? | |
| Bathroom with window | How important is it that the bathroom has a window? | |
| Two-sided orientation | How important is the two-sided orientation of the apartment? | |
| Circulation (ci) | Communication between rooms | What is the most convenient way to connect the rooms in the apartment? |
| Kitchen-living room Connection | What is the preferred connection between the kitchen and the living room? | |
| Indoor-outdoor connection | From which room is it best to go outside (balcony, loggia, terrace)? | |
| Bedroom-living room connection | How desirable is it to enter the bedroom through the living room? | |
| Spatial organization (so) | Dining table location | What is the most desirable room for placing a dining table? |
| Bedroom area-entrance area connection | How desirable is it to enter the bedroom area from a separate corridor connected directly to the entrance area? | |
| Apartment flexibility 1 | How desirable is it that the apartment can be reorganized with little construction work? |
| Indicator | The Existence of Several Storage Rooms | The Existence of Outdoor Space | The Existence of Additional Toilet |
|---|---|---|---|
| Indicator points | 0/1 | 0/1 | 0/1 |
| User preferences | 4 1 | 5 1 | 4 1 |
| Apartment 1 characteristics | yes | yes | no |
| Achieved points | 1.0 | 1.0 | 0 |
| Σ = 2 | |||
| Apartment 2 characteristic | yes | yes | yes |
| Achieved points | 1.0 | 1.0 | 1.0 |
| Σ = 3 |
| Indicator | Living Room (m2) | Kitchen (m2) | Bedroom (m2) | High Ceiling (above 3.0 m) | ||||
|---|---|---|---|---|---|---|---|---|
| Without Dining | With Dining | Without Dining | With Dining | Parents’ Bedroom | 2 Persons Bedroom | 1-Person Bedroom | ||
| Indicator points | 0/1 | 0/1 | 0/1 | 0/1 | 0/1 | 0/1 | 0/1 | 0/1 |
| User preferences | 15–20 | 20–25 | 6–9 | 12–16 | 10–15 | no | 5–10 | 1 1 |
| Apartment 1 characteristics | no | 20.74 | 6.53 | no | 13.13 | - | 7.28 | no |
| Achieved points | - | 1.0 | 1.0 | - | 1.0 | 1.0 | 1.0 | |
| Σ = 5 | ||||||||
| Apartment 2 characteristic | no | 21.77 | 7.25 | no | 13.05 | - | 11.60 | no |
| Achieved points | - | 1.0 | 1.0 | - | 1.0 | 1.0 | 1.0 | |
| Σ = 5 | ||||||||
| Indicator | Living Room | Kitchen | Bedroom 1 | Bedroom 2 | Kitchen with Window | Bathroom with Window | Two-Sided Orientation |
|---|---|---|---|---|---|---|---|
| Indicator points | 0/0.33/0.67/1 1 | 0/1 | 0/1 | 0/1 | |||
| User preferences | 1 south 2 east 3 west 4 north | 1 north 2 east 3 south 4 west | 1 east 2 south 3 north 4 west | 5 2 | 3 3 | 4 2 | |
| Apartment 1 characteristics | south | south | west | west | yes | not relevant | yes |
| Achieved points | 1.0 | 0.33 | 0 | 0 | 1.0 | for user | 1.0 |
| Σ = 3.33 | |||||||
| Apartment 2 characteristic | north | north | south | south | yes | not relevant | yes |
| Achieved points | 0 | 1.0 | 0.67 | 0.67 | 1.0 | for user | 1.0 |
| Σ = 4.34 | |||||||
| Indicator | Communication between Rooms | Kitchen-Living Room Connection | Indoor-Outdoor Connection | Bedroom-Living Room Connection |
|---|---|---|---|---|
| Indicator points | 0/0.25/0.5/0.75/1 1 | 0/0.5/1 2 | 0/0.5/1 2 | 0/1 |
| User preferences | 1 zoning 2 circular connection 3 via corridor 4 central living room 5 direct room to room connection | 1 connected by a door 2 separate rooms 3 in the same space | 1 living room 2 kitchen 3 bedroom | 1 1 |
| Apartment 1 characteristics | circular connection | connected by a door | living room | yes |
| Achieved points | 0.75 | 1.0 | 1.0 | 0 |
| Σ = 2.75 | ||||
| Apartment 2 characteristic | zoning | connected by a door | living room | no |
| Achieved points | 1.0 | 1.0 | 1.0 | 1.0 |
| Σ = 4 |
| Indicator | Dining Table Location | Bedroom Area-Entrance Area Connection | Apartment Flexibility |
|---|---|---|---|
| Indicator points | 0/0.5/1 1 | 0/1 | 0/1 |
| User preferences | 1 living room 2 kitchen 3 dining room | 4 2 | 4 2 |
| Apartment 1 characteristics | living room | no | no |
| Achieved points | 1.0 | 0 | 0 |
| Σ = 1 | |||
| Apartment 2 characteristic | living room | yes | no |
| Achieved points | 1.0 | 1.0 | 0 |
| Σ = 2 |
| Indicator Category | Additional Rooms | Room Size | Windows Orientation and Ventilation | Circulation | Spatial Organization | Σ |
|---|---|---|---|---|---|---|
| (ar) | (rs) | (wo) | (ci) | (so) | ||
| Apartment 1 | 12.70 | 42.86 | 2.64 | 6.55 | 7.94 | 72.69 |
| Apartment 2 | 19.05 | 42.86 | 3.44 | 9.52 | 15.87 | 90.74 |
Disclaimer/Publisher’s Note: The statements, opinions and data contained in all publications are solely those of the individual author(s) and contributor(s) and not of MDPI and/or the editor(s). MDPI and/or the editor(s) disclaim responsibility for any injury to people or property resulting from any ideas, methods, instructions or products referred to in the content. |
© 2023 by the author. Licensee MDPI, Basel, Switzerland. This article is an open access article distributed under the terms and conditions of the Creative Commons Attribution (CC BY) license (https://creativecommons.org/licenses/by/4.0/).
Share and Cite
Brkanić Mihić, I. Housing Quality Assessment Model Based on the Spatial Characteristics of an Apartment. Buildings 2023, 13, 2181. https://doi.org/10.3390/buildings13092181
Brkanić Mihić I. Housing Quality Assessment Model Based on the Spatial Characteristics of an Apartment. Buildings. 2023; 13(9):2181. https://doi.org/10.3390/buildings13092181
Chicago/Turabian StyleBrkanić Mihić, Ivana. 2023. "Housing Quality Assessment Model Based on the Spatial Characteristics of an Apartment" Buildings 13, no. 9: 2181. https://doi.org/10.3390/buildings13092181
APA StyleBrkanić Mihić, I. (2023). Housing Quality Assessment Model Based on the Spatial Characteristics of an Apartment. Buildings, 13(9), 2181. https://doi.org/10.3390/buildings13092181

