Aluminium Bridges under Fire Conditions: Structural Behaviour
Abstract
1. Introduction
- −
- to develop a method for testing selected structures;
- −
- to identify boundary conditions of various aluminium structures related to the losses of the bearing capacity, the integrity and the heat-insulating capacity;
- −
- to identify the relation between the fire resistance level of attachment units of mullion and transom systems with aluminium and the fire protection method;
- −
- to assess the heating level of the aluminium orthotropic deck consisting of connected hollow profiles;
- −
- to identify the relation between the fire resistance of aluminium columns of different sections and the load;
- −
- to determine the main technological solutions to improve the fire resistance of various aluminium structures.
2. Methodology
2.1. Subject of Studies
- −
- 300 mm × 150 mm × 15 mm columns, 2500 mm in height, 10 items;
- −
- 200 mm × 120 mm × 12 mm columns, 2000 mm in height, 9 items;
- −
- 160 mm × 100 mm × 8 mm columns, 2000 mm in height, 9 items.
2.2. Study Methods
2.2.1. The Method of Fire Tests on the Attachment Units of Mullion and Transom Systems
2.2.2. The Method of Fire Tests on Decks of Bridge Structures
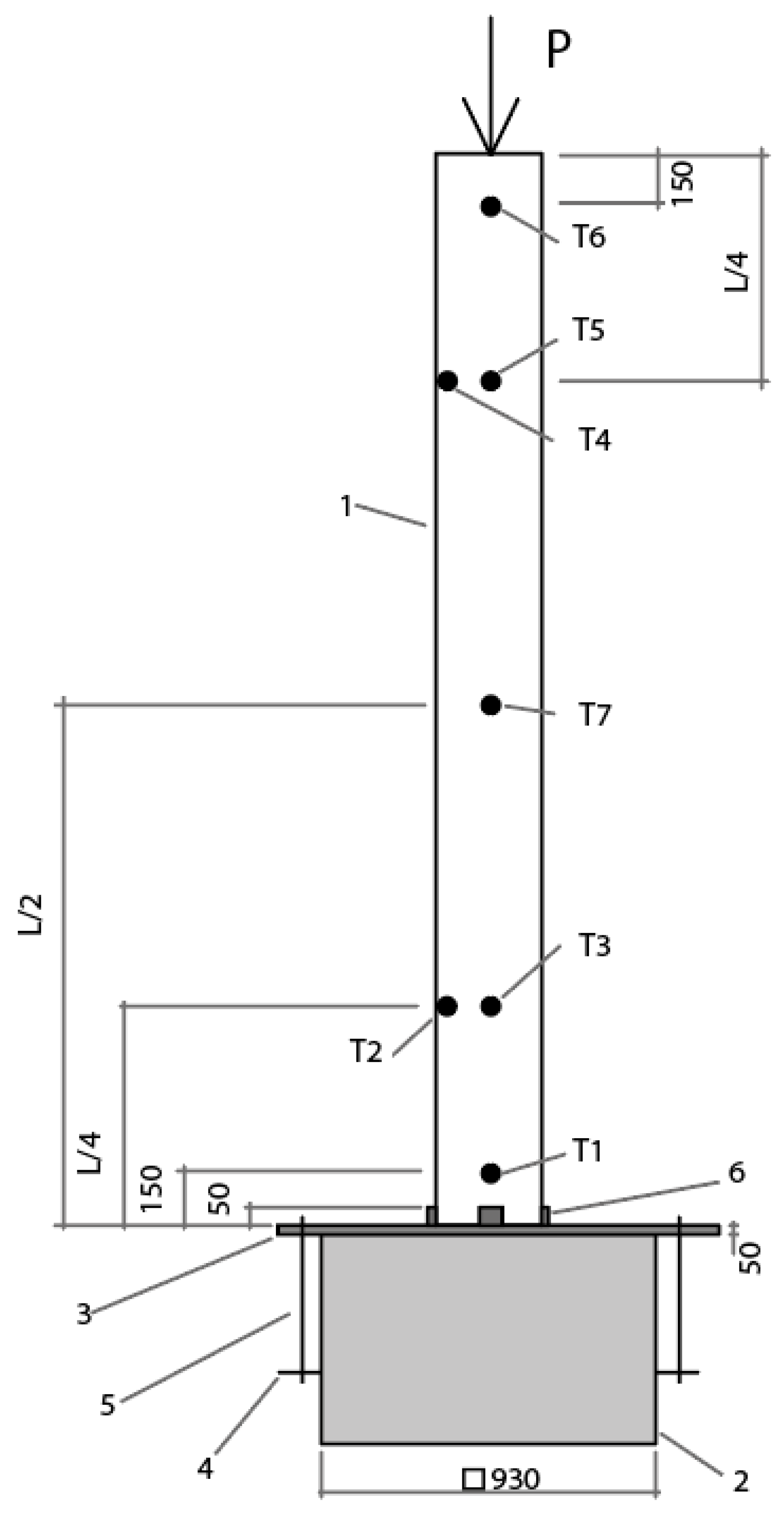
2.2.3. The Method of Fire Tests on Aluminium Columns
- −
- T1 on the wall at a 150 mm distance from the bottom;
- −
- T2 on the corner at an L/4 mm distance from the bottom;
- −
- T3 on the wall at an L/4 mm distance from the bottom;
- −
- T4 on the corner at an L/4 mm distance from the top;
- −
- T5 on the wall at an L/4 mm distance from the top;
- −
- T6 on the wall at a 150 mm distance from the top;
- −
- T7 on the wall at the centre of the height.
3. Results
3.1. Attachment Units of Translucent Panels Using Aluminium Mullion and Transom System
3.2. Aluminium Orthotropic Deck
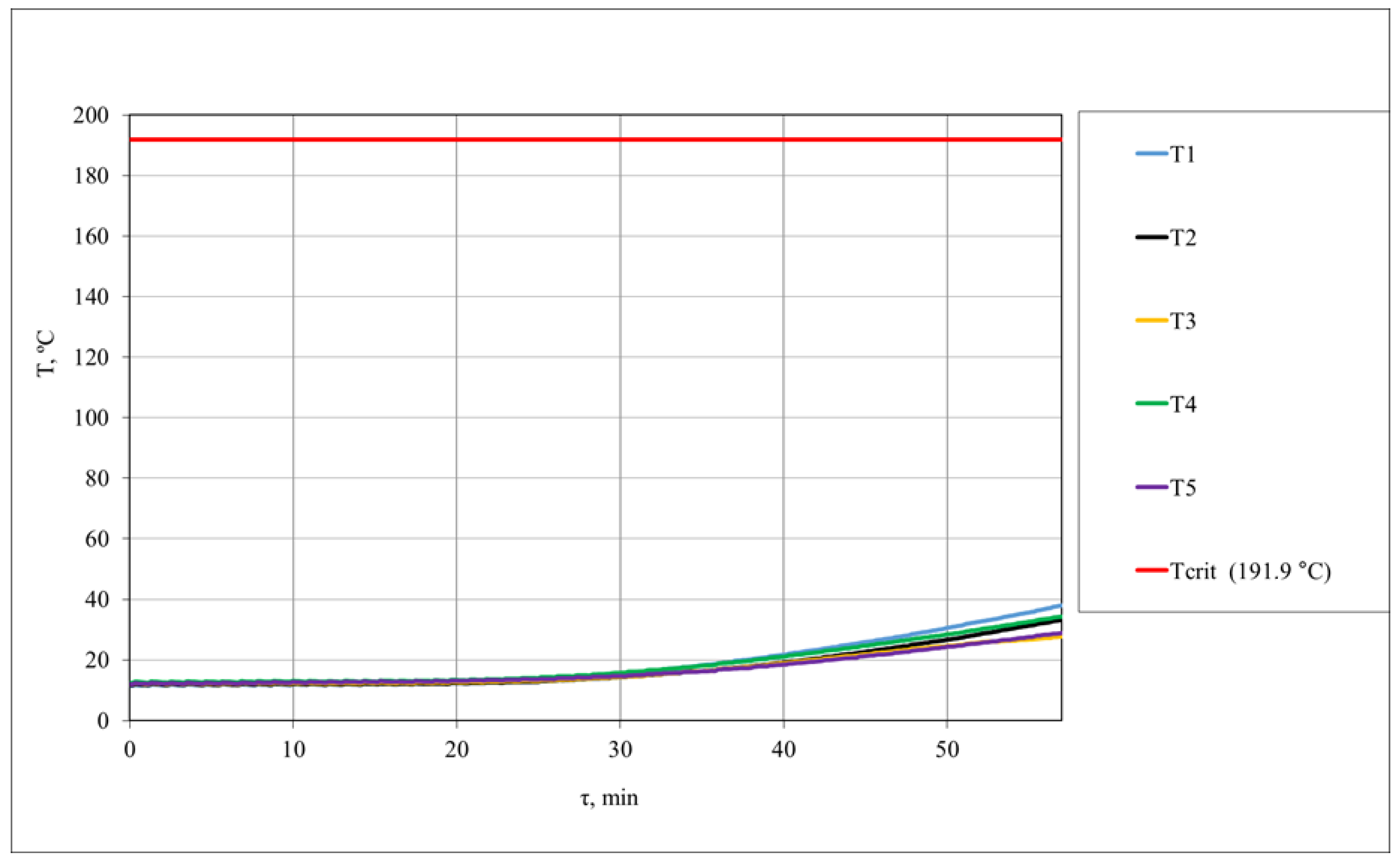
3.3. Aluminium Columns of Different Sections
4. Discussion
4.1. Attachment Units of Translucent Panels Using the Aluminium Mullion and Transom System
4.2. The Aluminium Orthotropic Deck
4.3. Aluminium Columns of Different Sections
5. Conclusions
Author Contributions
Funding
Data Availability Statement
Conflicts of Interest
References
- Aidarov, S.; Tošić, N.; Fuente, A. A limit state design approach for hybrid reinforced concrete column-supported flat slabs. Struct. Concr. 2022, 23, 3444–3464. [Google Scholar] [CrossRef]
- Aidarov, S.; Nogales, A.; Reynvart, I.; Tošić, N.; de la Fuente, A. Effects of low temperatures on flexural strength of macro-synthetic fiber reinforced concrete: Experimental and numerical investigation. Materials 2022, 15, 1153. [Google Scholar] [CrossRef]
- Goremikins, V.; Rocens, K.; Serdjuks, D. Decreasing displacements of prestressed suspension bridge. J. Civ. Eng. Manag. 2012, 18, 858–866. [Google Scholar] [CrossRef]
- Zehfuß, J.; Sander, L.; Schaumann, P.; Weisheim, W. Thermal material properties of fire protection materials for natural fire scenarios. Bautechnik 2018, 95, 535–546. [Google Scholar] [CrossRef]
- Mahmud, H.M.I.; Mandal, A.; Nag, S.; Moinuddin, K.A.M. Performance of fire protective coatings on structural steel member exposed to high temperature. J. Struct. Fire 2021, 12, 193–211. [Google Scholar]
- Jiang, S.; Wu, H. An experimental investigation on the fire resistance of the integrated envelope-fire protection material for steel buildings. Prog. Steel Build. Struct. 2021, 23, 77–84. [Google Scholar] [CrossRef]
- Gravit, M.V.; Dmitriev, I.I. Numerical modeling of basalt roll fire-protection for light steel thin-walled structures. Mag. Civ. Eng. 2022, 112, 11215. [Google Scholar] [CrossRef]
- Gravit, M.; Shabunina, D.; Antonov, S.; Danilov, A. Thermal characteristics of fireproof plaster compositions in exposure to various regimes of fire. Buildings 2022, 12, 630. [Google Scholar] [CrossRef]
- Galyamichev, A.; Gerasimova, E.; Egorov, D.; Serdjuks, D.; Grossman, A.; Lysenko, D. Bearing capacity of riveted connections of mineral wool sandwich panels. Mag. Civ. Eng. 2022, 112, 11202. [Google Scholar] [CrossRef]
- Zdanchuk, E.; Nikitina, O.; Galyamichev, A.; Serdjuks, D. Influence of protrusions on building façade on the distribution of peak wind loads. Lect. Notes Netw. Syst. 2022, 403, 1390–1398. [Google Scholar] [CrossRef]
- Hirkovskis, A.; Serdjuks, D.; Goremikins, V.; Pakrastins, L.; Vatin, N.I. Behaviour analysis of load-bearing aluminium members. Mag. Civ. Eng. 2015, 57, 86–96. [Google Scholar] [CrossRef]
- Korgin, A.V. Calculation of endurance of bridge structures and aluminium alloys. Build. Sci. Educ. 2022, 12, 31–49. [Google Scholar] [CrossRef]
- Korgin, A.V.; Yermakov, L.Z.; Kilani, Z. Including orthotropic deck plates into aluminium alloy bearing bridge structures. Newsl. Mosc. State Univ. Civ. Eng. 2022, 17, 882–896. [Google Scholar] [CrossRef]
- Golova, T.A.; Zhukov, A.D. Efficiency of using aluminium alloy window units for nuclear power plant buildings—Relevant challenges and development paths for power industry, engineering and technologies. In Proceedings of the VIII International Scientific and Practical Conference, Stockholm, Sweden, 15–18 November 2022; pp. 356–361. [Google Scholar]
- Sędłak, B.; Sulik, P.; Garbacz, A. Scale effect in the evaluation of the fire resistance of glazed partitions. J. Build. Eng. 2022, 49, 104–108. [Google Scholar] [CrossRef]
- Sędłak, B.; Sulik, P. The impact of reinforcing profiles on the fire resistance of aluminium glazed partitions Part 1. Builder 2020, 280, 25–27. [Google Scholar] [CrossRef]
- Langhelle, N.K.; Amdahl, J. Experimental and numerical analysis of aluminium columns subjected to fire. In Proceedings of the Eleventh International Offshore and Polar Engineering Conference, Stavanger, Norway, 17–22 June 2001; Volume 4, pp. 406–413. [Google Scholar]
- Maljaars, J.; Soetens, F.; Snijder, H.H. Local buckling of aluminium structures exposed to fire. Part 1: Tests. Thin-Walled Struct. 2009, 47, 1404–1417. [Google Scholar] [CrossRef]
- Faggiano, B.; Mazzolani, M.F.; Matteis, G.; Landolfo, R. On the fire resistance of aluminium alloy structures. In Improvement of Buildings’ Structural Quality by New Technologies; CRC Press: Boca Raton, FL, USA, 2005; pp. 267–275. [Google Scholar] [CrossRef]
- Zakharov, V.V.; Rostova, T.D.; Fisenko, I.A. High-strength weldable corrosion-resistant aluminum alloy for bearing building structures. Met. Sci. Heat Treat. 2005, 47, 377–382. [Google Scholar] [CrossRef]
- Pancheti, J.; Mahendran, M.; Steau, E. Fire resistance of external LSF walls with corrugated steel cladding. J. Constr. Steel Res. 2021, 188, 107008. [Google Scholar] [CrossRef]
- Zakharov, V.V.; Rostova, T.D. High-strength weldable alloy 1970 based on the Al-Zn-Mg system. Met. Sci. Heat Treat. 2005, 47, 131–138. [Google Scholar] [CrossRef]
- Luzik, S.J. Protection of aluminum overcast constructions against fire. Fire Technol. 1998, 24, 227–244. [Google Scholar] [CrossRef]
- Maljaars, J.; Soetens, F.; Katgerman, L. Constitutive model for aluminum alloys exposed to fire conditions. Metall. Mater. Trans. A 2008, 39, 778–789. [Google Scholar] [CrossRef]
- Maljaars, J.; Twilt, L.; Fellinger, J.H.H.; Snijder, H.H. Aluminium structures exposed to fire conditions—An overview. Heron 2010, 55, 85–122. [Google Scholar]
- Maljaars, J.; Matteis, G. Structural response of aluminium T-stub connections at elevated temperatures and fire. Key Eng. Mater. 2016, 710, 127–136. [Google Scholar] [CrossRef]
- Summers, P.T.; Chen, Y.; Rippe, C.M.; Allen, B.; Mouritz, A.P.; Case, S.W.; Lattimer, B.Y. Overview of aluminum alloy mechanical properties during and after fires. Fire Sci. Rev. 2015, 4, 3. [Google Scholar] [CrossRef]
- Suzuki, J.; Ohmiya, Y.; Wakamatsu, T.; Haradaz, K.; Yusa, S.; Kohno, M. Evaluation of fire resistance of aluminum alloy members. Fire Sci. Technol. 2005, 24, 237–255. [Google Scholar] [CrossRef]
- Davor, S.; Ivan, C.; Maljaars, J. Behaviour of aluminium structures in fire—A review. In Proceedings of the 4th International Conference—Applications of Structural Fire Engineering (ASFE 2015), Dubrovnik, Croatia, 15–16 October 2015. [Google Scholar] [CrossRef]
- Sun, Y.; Fu, Z.; Song, Y.; Xia, J. Cross-sectional behavior of aluminum alloy channel section stub columns after exposure to fire. J. Struct. Eng. 2023, 149, 04023085. [Google Scholar] [CrossRef]
- Gravit, M.; Golub, E.; Klementev, B.; Dmitriev, I. Fire protective glass fiber reinforced concrete plates for steel structures under different types of fire bxposure. Buildings 2021, 11, 187. [Google Scholar] [CrossRef]
- Winter, A.; Butler, F. Passive fire protection for aluminum structures. Nav. Eng. J. 2009, 87, 59–66. [Google Scholar] [CrossRef]




























| No. of Aluminium Columns | Element Section, mm | Load, Tonne | Element Length, m |
|---|---|---|---|
| 1.1.1 1.1.2 | 300 × 150 × 15 | 20.0 | 2.50 |
| 1.2.1 1.2.2 1.2.3 | 300 × 150 × 15 | 40.0 | 2.50 |
| 1.3.1 1.3.2 | 300 × 150 × 15 | 60.0 | 2.50 |
| 1.4.1 1.4.2 1.4.3 | 300 × 150 × 15 | 76.0 | 2.50 |
| 2.1.1 2.1.2 | 200 × 120 × 12 | 0.0 | 2.00 |
| 2.2.1 2.2.2 | 200 × 120 × 12 | 11.0 | 2.00 |
| 2.3.1 2.3.2 | 200 × 120 × 12 | 22.0 | 2.00 |
| 2.4.1 2.4.2 2.4.3 | 200 × 120 × 12 | 42.0 | 2.00 |
| 3.1.1 3.1.2 | 160 × 100 × 8 | 0.0 | 2.00 |
| 3.2.1 3.2.2 | 160 × 100 × 8 | 9.0 | 2.00 |
| 3.3.1 3.3.2 3.3.3 | 160 × 100 × 8 | 13.0 | 2.00 |
| 3.4.1 3.4.2 | 160 × 100 × 8 | 16.0 | 2.00 |
| No. of Aluminium Columns | Deformation Onset Time, min | Deformation Onset Temperature, °C | Time for Reaching the Ultimate Limit State Related to the Loss of the Bearing Capacity (R), min | Temperature of Aluminium Column When the Ultimate Limit State Related to the Loss of the Bearing Capacity (R) Is Reached or the Column Is Destroyed, °C | Time When T = 400 °C Is Reached, min | Time of Destruction, min |
|---|---|---|---|---|---|---|
| 1.1.1 | 18:40 | 355 | 18:50 | 370 | ||
| 1.1.2 | 16:45 | 360 | 17:20 | 370 | ||
| 1.2.1 | 16:30 | 305 | 16:40 | 310 | ||
| 1.2.2 | 16:40 | 310 | 17:05 | 315 | ||
| 1.2.3 | 16:30 | 315 | 17:00 | 320 | ||
| 1.3.1 | 15:45 | 295 | 16:05 | 305 | ||
| 1.3.2 | 15:50 | 295 | 16:10 | 305 | ||
| 1.4.1 | 16:10 | 280 | 16:35 | 295 | ||
| 1.4.2 | 14:15 | 250 | 14:40 | 255 | ||
| 1.4.3 | 15:40 | 270 | 15:50 | 280 | ||
| 2.1.1 | 600 | 16:40 | 31:00 | |||
| 2.1.2 | 600 | 16:30 | ||||
| 2.2.1 | 17:20 | 420 | 19:15 | 440 | 16:30 | |
| 2.2.2 | 17:45 | 420 | 19:50 | 450 | 16:50 | |
| 2.3.1 | 15:45 | 370 | 16:15 | 380 | ||
| 2.3.2 | 16:10 | 360 | 16:45 | 385 | ||
| 2.4.1 | 13:30 | 320 | 14:00 | 330 | ||
| 2.4.2 | 14:00 | 350 | 14:20 | 360 | ||
| 2.4.3 | 13:15 | 325 | 13:40 | 340 | ||
| 3.1.1 | 675 | 13:50 | 28:50 | |||
| 3.1.2 | 675 | 13:30 | 28:20 | |||
| 3.2.1 | 13:20 | 395 | 14:10 | 420 | 13:40 | |
| 3.2.2 | 13:10 | 395 | 14:00 | 425 | 13:20 | |
| 3.3.1 | 11:30 | 360 | 12:00 | 375 | ||
| 3.3.2 | 12:00 | 375 | 12:30 | 385 | ||
| 3.3.3 | 11:50 | 375 | 12:10 | 385 | ||
| 3.4.1 | 11:20 | 350 | 11:50 | 375 | ||
| 3.4.2 | 11:00 | 345 | 11:30 | 360 |
Disclaimer/Publisher’s Note: The statements, opinions and data contained in all publications are solely those of the individual author(s) and contributor(s) and not of MDPI and/or the editor(s). MDPI and/or the editor(s) disclaim responsibility for any injury to people or property resulting from any ideas, methods, instructions or products referred to in the content. |
© 2023 by the authors. Licensee MDPI, Basel, Switzerland. This article is an open access article distributed under the terms and conditions of the Creative Commons Attribution (CC BY) license (https://creativecommons.org/licenses/by/4.0/).
Share and Cite
Portnov, F.A.; Korolchenko, D.A. Aluminium Bridges under Fire Conditions: Structural Behaviour. Buildings 2023, 13, 1669. https://doi.org/10.3390/buildings13071669
Portnov FA, Korolchenko DA. Aluminium Bridges under Fire Conditions: Structural Behaviour. Buildings. 2023; 13(7):1669. https://doi.org/10.3390/buildings13071669
Chicago/Turabian StylePortnov, Fedor Aleksandrovich, and Dmitry Aleksandrovich Korolchenko. 2023. "Aluminium Bridges under Fire Conditions: Structural Behaviour" Buildings 13, no. 7: 1669. https://doi.org/10.3390/buildings13071669
APA StylePortnov, F. A., & Korolchenko, D. A. (2023). Aluminium Bridges under Fire Conditions: Structural Behaviour. Buildings, 13(7), 1669. https://doi.org/10.3390/buildings13071669

