Simplified Analytical Methods for Prefabricated Concrete Wall Panel Building System with Alveolar-Type Joints
Abstract
1. Introduction

2. Constitutive Model of Alveolar-Type Joints
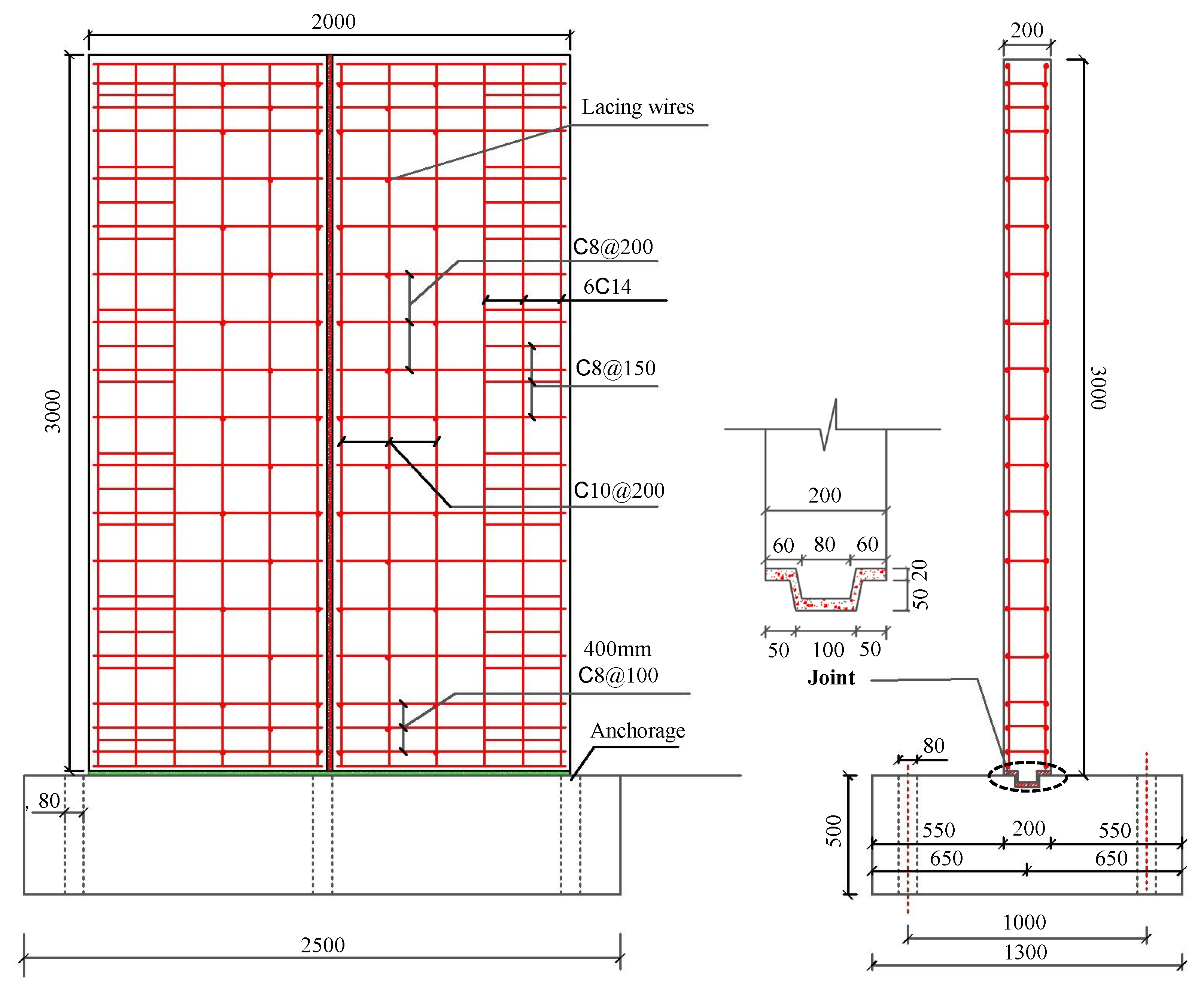
2.1. Experiment Study
2.1.1. Experimental Preparation
| Specimen No. | Depth of Alveolar-Type Joint | Interface Contact Area, | Axial Compression Ratio | Vertical Loading | Strength of Mortar |
|---|---|---|---|---|---|
| (mm) | (mm2) | / | (kN) | (MPa) | |
| CW1 | 0 | 800 × 200 | 0.1 | 228.8 | 50 |
| CW2 | 20 | 800 × 232 | 0.1 | 228.8 | 50 |
| CW3 | 50 | 800 × 282 | 0.1 | 228.8 | 50 |
| CW4 | 50 | 800 × 282 | 0.1 | 228.8 | 30 |
| CW5 | 50 | 600 × 282 | 0 | 0 | 30 |
| CW6 | 50 | 600 × 282 | 0.1 | 171.6 | 30 |
| CW7 | 50 | 600 × 282 | 0.2 | 343.2 | 30 |

2.1.2. Test Setup and Loading History
2.1.3. Failure Model and Mechanism of Typical Specimens

2.1.4. Results and Discussion

2.2. Constitutive Model
2.2.1. Comparison of Different Methods of Shear Capacity
2.2.2. Modified Shear Capacity Method

| Specimens | K | Deviation | ||||||
|---|---|---|---|---|---|---|---|---|
| / | / | MPa | MPa | mm2 | kN | kN | / | |
| CW1 | 0.03 | 1.00 | 1.43 | 2.271 | 800 × 200 | 363.4 | 382 | 4.87% |
| CW2 | 0.03 | 1.16 | 1.43 | 2.406 | 800 × 200 | 384.9 | 396 | 2.80% |
| CW3 | 0.03 | 1.41 | 1.43 | 2.616 | 800 × 200 | 418.6 | 445 | 5.94% |
| CW4 | 0.01 | 1.41 | 1.43 | 1.825 | 800 × 200 | 292.1 | 283 | 3.09% |
| CW5 | 0.01 | 1.41 | 0 | 0.395 | 600 × 200 | 47.4 | 44 | 8.07% |
| CW6 | 0.01 | 1.41 | 1.43 | 1.825 | 600 × 200 | 219.0 | 240 | 8.73% |
| CW7 | 0.01 | 1.41 | 2.86 | 3.255 | 600 × 200 | 390.6 | 385 | 1.47% |
2.2.3. Shear–Slip Constitutive Model
| Specimens | ||||||||
|---|---|---|---|---|---|---|---|---|
| kN | mm | kN | mm | kN | /mm | kN | mm | |
| CW1 | 357 | 0 | 382 | 0.31 | 270 | 2.04 | 233 | 4.80 |
| CW2 | 351 | 0 | 396 | 0.34 | 245 | 2.17 | 235 | 4.95 |
| CW3 | 386 | 0 | 445 | 0.32 | 249 | 2.20 | 224 | 4.80 |
| CW4 | 212 | 0 | 283 | 0.30 | 220 | 1.86 | 200 | 3.80 |
| CW5 | 30 | 0 | 44 | 0.25 | 7 | 2.00 | 5.00 | 3.60 |
| CW6 | 192 | 0 | 240 | 0.28 | 180 | 1.95 | 165 | 4.20 |
| CW7 | 256 | 0 | 385 | 0.27 | 335 | 2.01 | 328 | 4.15 |


3. Finite Element Analysis and Verification
3.1. Full-Scale Wall Panel Loading Test
3.2. FEA of Full-Scale Wall Panel
3.2.1. Element Types and Loading Steps
3.2.2. Material Constitutive Model
3.2.3. Contact Surface
3.3. Comparison and Verification
3.4. FEA of Integral Structure




4. Simplified Analysis Methods of Internal Force and Verification
4.1. Simplified Methods under Vertical Load
4.2. Simplified Methods under Lateral Load
4.3. Example Analysis and Verification
4.3.1. Calculation and Verification under Vertical Load
4.3.2. Calculation and Verification under Lateral Load
| Layer | |||||
|---|---|---|---|---|---|
| (kN) | (kN) | (mm) | (mm) | (mm) | |
| 6 | 186.0 | 186.0 | 0.037 | 0.518 | 0.486 |
| 5 | 164.0 | 350.0 | 0.071 | 0.481 | 0.453 |
| 4 | 131.0 | 481.0 | 0.100 | 0.409 | 0.364 |
| 3 | 98.2 | 579.2 | 0.123 | 0.310 | 0.283 |
| 2 | 65.5 | 644.7 | 0.153 | 0.187 | 0.162 |
| 1 | 32.7 | 677.0 | 0.034 | 0.034 | 0.041 |

5. Conclusions
- (1)
- The effects of the axial compression, mortar strength, and grouting contact area on the interface’s shear resistance were investigated. It should be noted that the shear strength increased with the increase in the axial compression and mortar strength. Furthermore, the alveolar-type joint (depth 50 mm) effectively increased the grouting contact area, which increased the bearing capacity of the component by 18.6%.
- (2)
- The formula for the shear resistance capacity proposed in this paper agreed well with the test results, showing deviations within 10%, which suggests a certain degree of safety. On this basis, the shear–slip constitutive model was constructed by comparing the shear resistance models of different interfaces and connection forms, which was also in good agreement with the test results.
- (3)
- A nonlinear finite element analysis was performed using the ABAQUS program to simulate the interface and verify the reliability of the aforementioned constitutive model. It was proven that nonlinear FEA is an accurate and effective way to evaluate the shear–slip of alveolar-type joints.
- (4)
- In order to facilitate internal force calculations, the simplified model under vertical and horizontal loads was established. While the axial force was approximately borne by the wall, its bending moment and shear were zero under a vertical load. However, under a horizontal load, it was equivalent to the performance of independent shear walls with weakened stiffness. The differences between the calculated results and the simulated values obtained in the example analysis were within 15%, indicating that the simplified model could approximate the internal force calculation of the system.
Author Contributions
Funding
Data Availability Statement
Conflicts of Interest
References
- Alfred, A.Y. Social and Environmental Benefits of Precast Concrete Technology. PCI J. 2001, 46, 14–19. [Google Scholar] [CrossRef]
- Cheng, J.; Luo, X.; Cheng, L.; Cheng, Q.; Chen, L. Experimental Study on Seismic Behavior of PC Walls with Alveolar-Type Horizontal Joint under Pseudo-Static Loading. Materials 2022, 15, 2301. [Google Scholar] [CrossRef] [PubMed]
- Guo, W.; Zhai, Z.; Cui, Y.; Yu, Z.; Wu, X. Seismic performance assessment of low-rise precast wall panel structure with bolt connections. Eng. Struct. 2019, 181, 562–578. [Google Scholar] [CrossRef]
- Xu, G.; Wang, Z.; Wu, B.; Bursi, O.S.; Tan, X.; Yang, Q.; Wen, L. Seismic performance of precast shear wall with sleeves connection based on experimental and numerical studies. Eng. Struct. 2017, 150, 346–358. [Google Scholar] [CrossRef]
- Mochizuki, S.; Kobayashi, T. Experiment on slip strength of horizontal joint of precast concrete multi-story shear wall. J. Struct. Constr. Eng. 1996, 194, 1–8. [Google Scholar]
- Bhatt, P. Influence of vertical joints on the behavior of precast shear walls. Build. Sci. 1973, 8, 221–224. [Google Scholar] [CrossRef]
- Ling, J.H.; Abd Rahman, A.B.; Ibrahim, I.S.; Abdul Hamid, Z. Behavior of grouted pipe splice under incremental tensile load. Constr. Build. Mater. 2012, 33, 90–98. [Google Scholar] [CrossRef]
- Belleri, A.; Riva, P. Seismic performance and retrofit of precast concrete grouted sleeve connections. PCI J. 2012, 57, 97–109. [Google Scholar] [CrossRef]
- Zhang, Z.; Zheng, G. Seismic performance of the spatial model of precast concrete shear wall structure using grouted lap splice connection and cast-in-situ concrete. Struct. Concr. 2019, 20, 1316–1327. [Google Scholar] [CrossRef]
- Zhou, Y.; Zhang, B.; Hwang, H.; Xi, S.; Fang, L.; Huang, Y.; Yi, W. Tensile and shear behavior of box connector for precast concrete shear walls. Eng. Struct. 2021, 245, 112983. [Google Scholar] [CrossRef]
- Kurama, Y.; Pessiki, S.; Sause, R.; Le-Wu, L. Seismic Behavior and Design of unboned post-tensioned precast concrete walls. PCI J. 1999, 44, 72–89. [Google Scholar] [CrossRef]
- Hutchinson, R.L.; Rizkalla, S.H.; Lau, M.; Heuvel, S. Horizontal Post-Tensioned Connections for Precast Concrete Load bearing Shear Wall Panels. PCI J. 1991, 36, 64–76. [Google Scholar] [CrossRef]
- Xiao, X.; Cao, Z.; Liu, X.; Liao, X. Experimental study on seismic performance of precast shear wall with unconnected vertical distributed reinforcement. Build. Struct. 2021, 51, 5–9. [Google Scholar] [CrossRef]
- Ying, J. Investigation on applicable and physical properties of prefabricated large panel housing. Urban Probl. 2011, 191, 37–42. [Google Scholar] [CrossRef]
- Jiang, Q.; Shen, J.; Chong, X.; Chen, M.; Wang, H.; Feng, Y.; Huang, J. Experimental and numerical studies on the seismic performance of superimposed reinforced concrete shear walls with insulation. Eng. Struct. 2021, 240, 112372. [Google Scholar] [CrossRef]
- Zhang, D.; Huang, B.; Zhang, Y.; Yu, S.; Bie, J. Theoretical Study and Nonlinear Finite Analysis of Four-Line Restoring Force Model for Double-Superimposed Slab Shear Walls. Buildings 2023, 13, 749. [Google Scholar] [CrossRef]
- Chong, X.; Xie, L.; Ye, X.; Jiang, Q.; Wang, D. Experimental Study on the Seismic Performance of Superimposed RC Shear Walls with Enhanced Horizontal Joints. JEE 2019, 23, 1–17. [Google Scholar] [CrossRef]
- Hong, Z.; Xi, L. Nonlinear behavior of partially prefabricated reinforced concrete composite walls. China Civ. Eng. J. 2010, 43, 93–100. [Google Scholar] [CrossRef]
- Yu, G.; Xin, W. Application and development of a new type of wall material-Rapid wall panel. Sichuan J. Archit. 2008, 28, 196–197. [Google Scholar]
- Zhang, X.; Wang, Y.; Lu, Z.; Yuan, Y. Experimental study on seismic performance of shear wall with precast concrete hollow molds. Struct Concr. 2021, 22, 1445–1461. [Google Scholar] [CrossRef]
- Chu, M.; Xiong, C.; Liu, J.; Sun, Z. Experimental study on shear behavior of two-way hollow core precast panel shear wall with vertical connection. Struct. Des. Tall Spec. Build. 2021, 30, e1814. [Google Scholar] [CrossRef]
- Li, Y.; Li, Z.; Tang, Z.; Xu, L.; Wang, W.; Yang, X.; Chen, Y. Cyclic behavior of hollow-core precast shear walls subjected to different axial loads. Eng. Struct. 2023, 276, 115343. [Google Scholar] [CrossRef]
- Wang, W.; Wang, X. Experimental and numerical investigations on concentrated-hollow RC shear walls. Eng. Struct. 2021, 242, 112570. [Google Scholar] [CrossRef]
- Ravasini, S.; Belletti, B.; Brunesi, E.; Nascimbene, R.; Parisi, F. Nonlinear Dynamic Response of a Precast Concrete Building to Sudden Column Removal. Appl. Sci. 2021, 11, 599. [Google Scholar] [CrossRef]
- Khaled, A.; Soudki, J.S.; West, S.H.; Rizkalla, B.B. Horizontal Connections for Precast Concrete Shear Wall Panels Under Cyclic Shear Loading. PCI J. 1996, 41, 64–80. [Google Scholar] [CrossRef]
- Xi, Z.; Jian, M.; Peng, H. Shear behavior on prefabricated shear wall alveolar type connection. J. Build. Struct. 2017, 38, 93–100. [Google Scholar] [CrossRef]
- GB/T 50081-2019; Standard Test Method for Physical and Mechanical Properties of Concrete. China Architecture & Building Press: Beijing, China, 2019.
- JGJ/T 101-2015; Specification for Seismic Test of Buildings. China Architecture & Building Press: Beijing, China, 2015.
- Randle, N. Design recommendations for interface shear transfer in fib Model Code 2010. Struct. Concr. 2013, 14, 230–241. [Google Scholar] [CrossRef]
- Pramodh, R.; Shripriyadharshini, V.; Vidjeapriya, R. Shear behavior of horizontal joints between precast panels. Asian J. Civ. Eng. 2018, 19, 651–662. [Google Scholar] [CrossRef]
- GB/T 51231-2016; Technical Standard for Assembled Buildings with Concrete Structure. Architecture & Building Press: Beijing, China, 2016.
- International Federation for Structure Concrete. fib Model Code for Concrete Structures 2010; Ernst & Sohn: Berlin, Germany, 2013; pp. I–XXXIII. [Google Scholar] [CrossRef]
- Mattock, A.H.; Hawkins, N.M. Shear Transfer in Reinforced Concrete—Recent Research. J. Prestress. Concr. Inst. 1972, 17, 55–75. [Google Scholar] [CrossRef]
- Yong, Z.; Yu, W.; Xiao, W. Experimental study on shear performance of steel sleeve grouting joint. J. Build. Struct. 2021, 42, 221–230. [Google Scholar] [CrossRef]
- Yong, Z.; Ren, Z. Experimental Investigation on Interface of High Strength Concretes Cast at Different Times under Direct Shear; College of Civil Engineering, Tongji University: Shanghai, China, 2017; Volume 45, pp. 962–969. [Google Scholar]
- Zhao, F.; Xiong, F.; Cai, G.; Yan, H.; Liu, Y.; Si Larbi, A. Performance and numerical modelling of full-scale demountable bolted PC wall panels subjected to cyclic loading. J. Build. Eng. 2023, 63, 105556. [Google Scholar] [CrossRef]
- Chen, W.; Wu, Q.; Wu, D.; Dang, L.; Jiang, F. Numerical Theoretical Study on Mechanical Properties of New Reinforced Tenon Precast Shear Walls. Adv. Civ. Eng. 2020, 2020, 3784271. [Google Scholar] [CrossRef]
- Li, J.; Wang, Y.; Lu, Z.; Li, J. Experimental Study and Numerical Simulation of a Laminated Reinforced Concrete Shear Wall with a Vertical Seam. Appl. Sci. 2017, 7, 629. [Google Scholar] [CrossRef]
- Sun, J.; Qiu, H.; Lu, Y. Experimental study and associated numerical simulation of horizontally connected precast shear wall assembly. Struct. Design Tall Spec. Build. 2016, 25, 659–678. [Google Scholar] [CrossRef]
- Xu, W.; Yang, X.; Wang, F.; Chi, B. Experimental and Numerical Study on the Seismic Performance of Prefabricated Reinforced Masonry Shear Walls. Appl. Sci. 2018, 8, 1856. [Google Scholar] [CrossRef]
- Halahla, A.M.; Rahman, M.K.; Al-Gadhib, A.H.; Al-Osta, M.A.; Baluch, M.H. Experimental investigations and FE simulation of exterior BCJs retrofitted with CFRP fabric. Earthq. Struct. 2019, 17, 337–354. [Google Scholar] [CrossRef]
- ABAQUS, 6.13.1; Dassault Systemes Simulia: Providence, RI, USA, 2013.
- Naser, M.Z.; Hawileh, R.A.; Abdalla, J. Modeling Strategies of Finite Element Simulation of Reinforced Concrete Beams Strengthened with FRP: A Review. J. Compos. Sci. 2021, 5, 19. [Google Scholar] [CrossRef]
- GB/T 50010-2010; Code for Design of Concrete Structures. China Architecture & Building Press: Beijing, China, 2010.
- Lubliner, J.; Oliver, J.; Oller, S.; Oñate, E. A Plastic-Damage Model for Concrete. Int. J. Solids Struct. 1989, 25, 299–326. [Google Scholar] [CrossRef]
- Lee, J.; Fenves, G.L. Plastic-damage model for cyclic loading of concrete structures. J. Eng. Mech. 1998, 124, 892–900. [Google Scholar] [CrossRef]
- Ming, X.; Yuan, H.; Rui, Z. Seismic analysis of precast concrete shear wall with horizontal seam. Earthq. Eng. Eng. Dyn. 2014, 34, 95–104. [Google Scholar] [CrossRef]
- GB/T 50011-2010; Code for Seismic Design of Buildings. China Architecture & Building Press: Beijing, China, 2010.
- Xiang, Z.; Yuan, L.; Guo, Z.; Min, Y.; Tan, W. Analysis of seismic performance simulation of precast shear wall based on multi-layer shell elements. Eng. J. Wuhan Univ. 2022, 55, 45–53. [Google Scholar] [CrossRef]
- Wei, H.; Bin, L.; Yan, S.; Yun, Z.; Yong, J. Study on restoring force model of new precast seismic walls. Earthq. Eng. Eng. Dyn. 2017, 37, 123–134. [Google Scholar] [CrossRef]












| Material | |||||
|---|---|---|---|---|---|
| kg/m3 | MPa | / | MPa | MPa | |
| Concrete | 2400 | 31,843 | 0.2 | 28.04 | - |
| Reinforcement | 7850 | 2.1 × 105 | 0.3 | - | 450 |
| Wall Panel | Deviation | ||
|---|---|---|---|
| kN/m | kN/m | / | |
| Top of 6F | 13.51 | 10.29 | 23.9% |
| Bottom of 6F | 30.61 | 38.34 | 20.2% |
| Top of 5F | 48.67 | 50.17 | 3.0% |
| Bottom of 5F | 65.77 | 76.12 | 13.6% |
| Top of 4F | 83.83 | 87.73 | 4.5% |
| Bottom of 4F | 100.93 | 113.96 | 11.4% |
| Top of 3F | 118.99 | 125.52 | 5.2% |
| Bottom of 3F | 136.09 | 151.78 | 10.3% |
| Top of 2F | 154.15 | 163.33 | 5.6% |
| Bottom of 2F | 171.25 | 190.32 | 10.0% |
| Top of 1F | 189.31 | 201.57 | 6.1% |
| Bottom of 1F | 206.41 | 222.37 | 7.2% |
Disclaimer/Publisher’s Note: The statements, opinions and data contained in all publications are solely those of the individual author(s) and contributor(s) and not of MDPI and/or the editor(s). MDPI and/or the editor(s) disclaim responsibility for any injury to people or property resulting from any ideas, methods, instructions or products referred to in the content. |
© 2023 by the authors. Licensee MDPI, Basel, Switzerland. This article is an open access article distributed under the terms and conditions of the Creative Commons Attribution (CC BY) license (https://creativecommons.org/licenses/by/4.0/).
Share and Cite
Xiao, Y.; Luo, X.; Xing, M.; Pan, Z.; Cheng, J.; Liu, J. Simplified Analytical Methods for Prefabricated Concrete Wall Panel Building System with Alveolar-Type Joints. Buildings 2023, 13, 1177. https://doi.org/10.3390/buildings13051177
Xiao Y, Luo X, Xing M, Pan Z, Cheng J, Liu J. Simplified Analytical Methods for Prefabricated Concrete Wall Panel Building System with Alveolar-Type Joints. Buildings. 2023; 13(5):1177. https://doi.org/10.3390/buildings13051177
Chicago/Turabian StyleXiao, Yang, Xiaoyong Luo, Minliang Xing, Zhen Pan, Junfeng Cheng, and Jinhong Liu. 2023. "Simplified Analytical Methods for Prefabricated Concrete Wall Panel Building System with Alveolar-Type Joints" Buildings 13, no. 5: 1177. https://doi.org/10.3390/buildings13051177
APA StyleXiao, Y., Luo, X., Xing, M., Pan, Z., Cheng, J., & Liu, J. (2023). Simplified Analytical Methods for Prefabricated Concrete Wall Panel Building System with Alveolar-Type Joints. Buildings, 13(5), 1177. https://doi.org/10.3390/buildings13051177

