Sustainable Vernacular Architecture: The Renovation of a Traditional House on Stara Planina Mountain in Serbia
Abstract
1. Introduction
- Create a study that scientifically proves the justification of using domestic and natural materials in accordance with modern architectural theory;
- Fill the gap in the methods of reconstruction of rural architecture on Stara planina in Serbia, according to the principles of sustainable construction;
- Create recommendations that can be applied in the process of renovating traditional houses according to the principles of sustainability.
2. The Case of a Traditional House on Stara Planina
3. Materials and Methods
3.1. Materials: Hemp Wool
3.2. Materials: Sheep’s Wool
3.3. Materials: EPS
3.4. Methods
4. Results
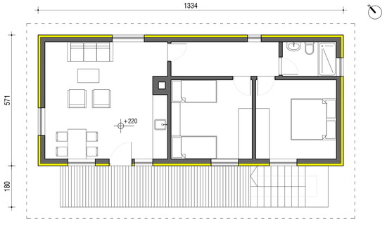
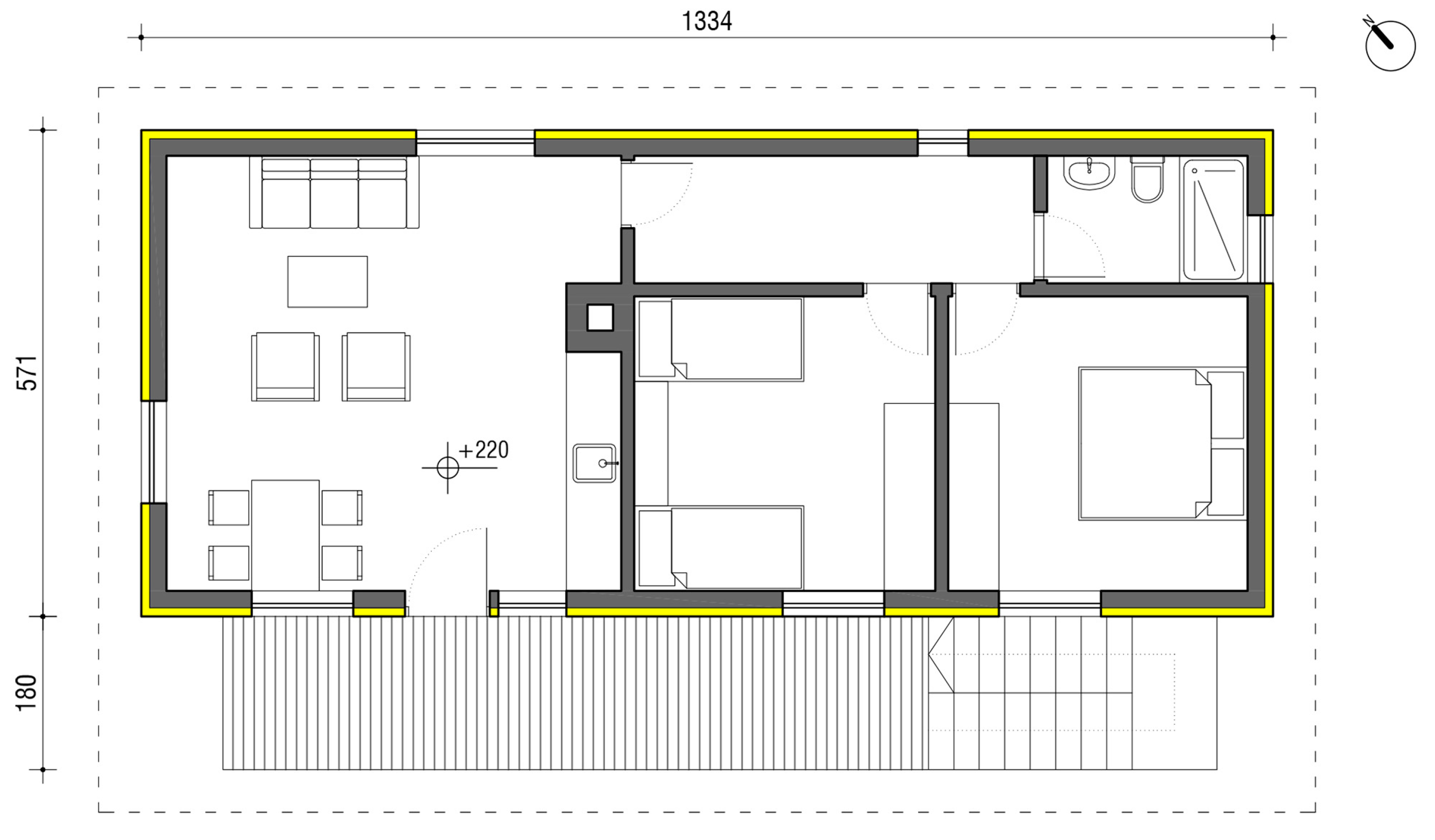
4.1. Architectural Design
4.2. Energy Simulations
4.3. LCA Simulation
5. Discussion
5.1. Architectural Design
5.2. Energy Simulations
5.3. LCA Simulations
- Use of local stone slabs in part of the roof covering (2.5 cm planks are first placed on the wooden structure, then 5 cm laths and 3 cm mud over them).
- Timber-framed walls (2.5 cm boards, 15 cm wooden construction with mud filling, 2.5 cm boards) insulated from the outside using hemp or sheep’s wool 10 cm.
- Protect the insulation from the outside with reeds 1 cm, mud 2 cm and lime.
- Treat the walls from the inside with mud or cover them with plasterboard.
- Use the roof space for ventilation, not for living.
- Keep the traditional geometry of the hip roof.
6. Conclusions
Author Contributions
Funding
Data Availability Statement
Conflicts of Interest
References
- Vijulie, I.; Lequeux-Dincă, A.-I.; Preda, M.; Mareci, A.; Matei, E.; Cuculici, R.; Taloș, A.-M. Certeze Village: The Dilemma of Traditional vs. Post-Modern Architecture in Țara Oașului, Romania. Sustainability 2021, 13, 11180. [Google Scholar] [CrossRef]
- Prostorni Plan Područja Parka Prirode i Turističke Regije Stara Planina. Available online: https://www.pravno-informacioni-sistem.rs/SlGlasnikPortal/eli/rep/sgrs/vlada/uredba/2008/115/1 (accessed on 22 March 2023).
- Švajlenka, J.; Kozlovská, M. Factors Influencing the Sustainability of Wood-Based Constructions’ Use from the Perspective of Users. Sustainability 2021, 13, 12950. [Google Scholar] [CrossRef]
- Huberman, N.; Pearlmutter, D. A life-cycle energy analysis of building materials in the Negev desert. Energy Build. 2008, 40, 837–848. [Google Scholar] [CrossRef]
- Gabay, H.; Meir, I.A.; Schwartz, M.; Werzberger, E. Cost-benefit analysis of green buildings: An Israeli office buildings case study. Energy Build. 2014, 76, 558–564. [Google Scholar] [CrossRef]
- Xu, X.; You, J.; Wang, Y.; Luo, Y. Analysis and assessment of life-cycle carbon emissions of space frame structures. J. Clean. Prod. 2023, 385, 135521. [Google Scholar] [CrossRef]
- Wang, S.; Su, D.; Wu, Y. Environmental and social life cycle assessments of an industrial LED lighting product. Environ. Impact Assess. Rev. 2022, 95, 106804. [Google Scholar] [CrossRef]
- Maoduš, N.; Agarski, B.; Mišulić, T.K.; Budak, I.; Radeka, M. Life cycle and energy performance assessment of three wall types in south-eastern Europe region. Energy Build. 2016, 133, 605–614. [Google Scholar] [CrossRef]
- Vandervaeren, C.; Galle, W.; Stephan, A.; De Temmerman, N. More than the sum of its parts: Considering interdependencies in the life cycle material flow and environmental assessment of demountable buildings. Resour. Conserv. Recycl. 2021, 177, 106001. [Google Scholar] [CrossRef]
- Rodrigues, C.; König, J.; Freire, F. Prospective life cycle assessment of a novel building system with improved foam glass incorporating high recycled content. Sustain. Prod. Consum. 2023, 36, 161–170. [Google Scholar] [CrossRef]
- Mir, N.; Khan, S.A.; Kul, A.; Sahin, O.; Lachemi, M.; Sahmaran, M.; Koç, M. Life cycle assessment of binary recycled ceramic tile and recycled brick waste-based geopolymers. Clean. Mater. 2022, 5, 100116. [Google Scholar] [CrossRef]
- Bugenings, L.A.; Kamari, A. Bioclimatic Architecture Strategies in Denmark: A Review of Current and Future Directions. Buildings 2022, 12, 224. [Google Scholar] [CrossRef]
- Urey, Z.C.U. Creation of a New Vernacular Architecture and the Attainment of Sustainability: The Case of Akyaka Town Development. Sustainability 2023, 15, 2643. [Google Scholar] [CrossRef]
- Tang, Y.; Gao, F.; Wang, C.; Huang, M.M.; Wu, M.; Li, H.; Li, Z. Vertical Greenery System (VGS) Renovation for Sustainable Arcade-Housing: Building Energy Efficiency Analysis Based on Digital Twin. Sustainability 2023, 15, 2310. [Google Scholar] [CrossRef]
- Zambrano, R.V.H.; Milanes, C.B.; Montero, O.P.; Mestanza-Ramón, C.; Bolivar, L.O.N.; Loor, D.C.; De Válgaz, R.G.G.F.; Cuker, B. A Sustainable Proposal for a Cultural Heritage Declaration in Ecuador: Vernacular Housing of Portoviejo. Sustainability 2023, 15, 1115. [Google Scholar] [CrossRef]
- Galmarini, B.; Costa, P.; Chiesi, L. Natural Building Materials and Social Representations in Informal Settlements: How Perceptions of Bamboo Interfere with Sustainable, Affordable, and Quality Housing. Sustainability 2022, 14, 12252. [Google Scholar] [CrossRef]
- Okafor, M.U.; Awuzie, B.O.; Otasowie, K.; Marcel-Okafor, U.; Aigbavboa, C. Evaluation of Indoor Thermal Comfort Conditions of Residential Traditional and Modern Buildings in a Warm-Humid Climate. Sustainability 2022, 14, 12138. [Google Scholar] [CrossRef]
- Qureshi, R.A.; Shah, S.J.; Akhtar, M.; Abbass, W.; Mohamed, A. Investigating Sustainability of the Traditional Courtyard Houses Using Deep Beauty Framework. Sustainability 2022, 14, 6894. [Google Scholar] [CrossRef]
- Imran, M.; Zahid, A.; Mouneer, S.; Özçatalbaş, O.; Haq, S.U.; Shahbaz, P.; Muzammil, M.; Murtaza, M.R. Relationship between Household Dynamics, Biomass Consumption, and Carbon Emissions in Pakistan. Sustainability 2022, 14, 6762. [Google Scholar] [CrossRef]
- Li, Z.; Diao, J.; Lu, S.; Tao, C.; Krauth, J. Exploring a Sustainable Approach to Vernacular Dwelling Spaces with a Multiple Evidence Base Method: A Case Study of the Bai People’s Courtyard Houses in China. Sustainability 2022, 14, 3856. [Google Scholar] [CrossRef]
- Karahan, E.E.; Göçer, Ö.; Göçer, K.; Boyacıoğlu, D. An Investigation of Occupant Energy-Saving Behavior in Vernacular Houses of Behramkale (Assos). Sustainability 2021, 13, 13476. [Google Scholar] [CrossRef]
- Jin, Y.; Zhang, N. Comprehensive Assessment of Thermal Comfort and Indoor Environment of Traditional Historic Stilt House, a Case of Dong Minority Dwelling, China. Sustainability 2021, 13, 9966. [Google Scholar] [CrossRef]
- Li, E.; Zhu, J. Parametric analysis of the mechanism of creating indoor thermal environment in traditional houses in Lhasa. Build. Environ. 2021, 207, 108510. [Google Scholar] [CrossRef]
- Zhao, M.; Mehra, S.-R.; Künzel, H.M. Energy-saving potential of deeply retrofitting building enclosures of traditional courtyard houses—A case study in the Chinese Hot-Summer-Cold-Winter zone. Build. Environ. 2022, 217, 109106. [Google Scholar] [CrossRef]
- Kamari, A.; Jensen, S.R.; Corrao, R.; Kirkegaard, P.H. A holistic multi-methodology for sustainable renovation. Int. J. Strat. Prop. Manag. 2018, 23, 50–64. [Google Scholar] [CrossRef]
- Bourdin, A.; Wan, T.; Delbos, P. Tourism and Rural Heritage: A Win-Win Relation? The Conditions of Heritage Making in Touristic Rural Regions. Built Heritage 2019, 3, 24–36. [Google Scholar] [CrossRef]
- Srijuntrapun, P.; Fisher, D.; Rennie, H.G. Assessing the sustainability of tourism-related livelihoods in an urban World Heritage Site. J. Heritage Tour. 2017, 13, 395–410. [Google Scholar] [CrossRef]
- Deng, X.; Ye, R.; Liu, X.; Han, G. Architectural Planning and Design Based on the Protection, Development of Rural Folk Custom Ecotourism. Open House Int. 2018, 43, 88–92. [Google Scholar] [CrossRef]
- TRNSYS. Transient System Simulation Tool. Available online: http://www.trnsys.com (accessed on 1 May 2021).
- SolidWorks. 2014. Available online: https://help.solidworks.com/2014/english/WhatsNew/c_welcome_solidworks_2014.htm?id=eeffdae5e6424ed988db0ffe6dac3e9e (accessed on 10 April 2023).
- GaBi Environmental Database. Available online: https://www.solidworks.com/solutions/what-life-cycle-assessment-lca (accessed on 10 April 2023).
- Republički Hidrometeoroški Zavod. Available online: https://www.hidmet.gov.rs (accessed on 4 March 2023).
- Kojić, B. Seoska Arhitektura i Rurizam; Građevinska knjiga: Beograd, Serbia, 1958. [Google Scholar]
- Kojić, B. Stara Gradska i Seoska Arhitektura u Srbiji; Prosveta: Beograd, Serbia, 1940. [Google Scholar]
- Deroko, A. Folklorna Arhitektura u Jugoslaviji; Naučna knjiga: Beograd, Serbia, 1964. [Google Scholar]
- Momcilovic-Petronijevic, A.; Cvetkovic, I.; Stosic, D. Protection of building heritage: Case study of Greek buildings in Dimitrovgrad. Facta Univ. Series Arch. Civ. Eng. 2022, 20, 75–90. [Google Scholar] [CrossRef]
- Curcic, A.; Momcilovic-Petronijevic, A.; Toplicic-Curcic, G.; Kekovic, A. An approach to building heritage and its preservation in Serbia and surrounding areas. Facta Univ. Series Arch. Civ. Eng. 2020, 18, 15–31. [Google Scholar] [CrossRef]
- Marić, I. Tradicionalno Graditeljstvo Pomoravlja i Savremena Arhitektura; IAUS: Beograd, Serbia, 2006. [Google Scholar]
- Ljubenov, G. Tradicionalno Arhitektonsko Nasleđe u Regionu Stare Planine: Arhitektura Koja Nestaje; Orion Art: Beograd, Serbia, 2020. [Google Scholar]
- Milosavljević, D. Poslednji Čuvari Zlatiborske Baštine; Službeni glasnik: Beograd, Serbia, 2018. [Google Scholar]
- Dénes, O.; Florea, I.; Manea, D.L. Utilization of Sheep Wool as a Building Material. Procedia Manuf. 2019, 32, 236–241. [Google Scholar] [CrossRef]
- Bosia, D.; Savio, L.; Thiebat, F.; Patrucco, A.; Fantucci, S.; Piccablotto, G.; Marino, D. Sheep Wool for Sustainable Architecture. Energy Procedia 2015, 78, 315–320. [Google Scholar] [CrossRef]
- Corscadden, K.; Biggs, J.; Stiles, D. Sheep’s wool insulation: A sustainable alternative use for a renewable resource? Resour. Conserv. Recycl. 2014, 86, 9–15. [Google Scholar] [CrossRef]
- Pennacchio, R.; Savio, L.; Bosia, D.; Thiebat, F.; Piccablotto, G.; Patrucco, A.; Fantucci, S. Fitness: Sheep-wool and Hemp Sustainable Insulation Panels. Energy Procedia 2017, 111, 287–297. [Google Scholar] [CrossRef]
- Parlato, M.C.; Porto, S.M.; Valenti, F. Assessment of sheep wool waste as new resource for green building elements. Build. Environ. 2022, 225, 109596. [Google Scholar] [CrossRef]
- Luo, X.; Oyedele, L.O. Assessment and optimisation of life cycle environment, economy and energy for building retrofitting. Energy Sustain. Dev. 2021, 65, 77–100. [Google Scholar] [CrossRef]
- Tiza, T.M.; Singh, S.K.; Kumar, L.; Shettar, M.P.; Singh, S.P. Assessing the potentials of Bamboo and sheep wool fiber as sustainable construction materials: A review. Mater. Today Proc. 2021, 47, 4484–4489. [Google Scholar] [CrossRef]
- Ebrahim, Z.; Mastali, M.; Maguire, M. Toward sustainable lightweight durable bricks using alkali-activated hemp-based materials. Constr. Build. Mater. 2023, 369, 130609. [Google Scholar] [CrossRef]
- Bošković, I.; Radivojević, A. Life cycle greenhouse gas emissions of hemp-lime concrete wall constructions in Serbia: The impact of carbon sequestration, transport, waste production and end of life biogenic carbon emission. J. Build. Eng. 2023, 66, 105908. [Google Scholar] [CrossRef]
- Ip, K.; Miller, A. Life cycle greenhouse gas emissions of hemp–lime wall constructions in the UK. Resour. Conserv. Recycl. 2012, 69, 1–9. [Google Scholar] [CrossRef]
- La Rosa, A.; Cozzo, G.; Latteri, A.; Recca, A.; Björklund, A.; Parrinello, E.; Cicala, G. Life cycle assessment of a novel hybrid glass-hemp/thermoset composite. J. Clean. Prod. 2013, 44, 69–76. [Google Scholar] [CrossRef]
- Pretot, S.; Collet, F.; Garnier, C. Life cycle assessment of a hemp concrete wall: Impact of thickness and coating. Build. Environ. 2014, 72, 223–231. [Google Scholar] [CrossRef]
- Scrucca, F.; Ingrao, C.; Maalouf, C.; Moussa, T.; Polidori, G.; Messineo, A.; Arcidiacono, C.; Asdrubali, F. Energy and carbon footprint assessment of production of hemp hurds for application in buildings. Environ. Impact Assess. Rev. 2020, 84, 106417. [Google Scholar] [CrossRef]
- Mouton, L.; Allacker, K.; Röck, M. Bio-based building material solutions for environmental benefits over conventional construction products—Life cycle assessment of regenerative design strategies (1/2). Energy Build. 2023, 282, 112767. [Google Scholar] [CrossRef]
- Florentin, Y.; Pearlmutter, D.; Givoni, B.; Gal, E. A life-cycle energy and carbon analysis of hemp-lime bio-composite building materials. Energy Build. 2017, 156, 293–305. [Google Scholar] [CrossRef]
- Barbhuiya, S.; Das, B.B. A comprehensive review on the use of hemp in concrete. Constr. Build. Mater. 2022, 341, 127857. [Google Scholar] [CrossRef]
- Lekavicius, V.; Shipkovs, P.; Ivanovs, S.; Rucins, A. Thermo-Insulation Properties Of Hemp-Based Products. Latv. J. Phys. Tech. Sci. 2015, 52, 38–51. [Google Scholar] [CrossRef]
- Fibra Di Legno o Fibra Di Canapa, è Questo Il Dilemma. Available online: https://espertocasaclima.com/2021/06/21/fibra-di-legno-fibra-di-canapa-il-dilemma/ (accessed on 22 March 2023).
- RosEcoMat Kenaf Light. Available online: https://market.favorithome.org/toploizolaciya-ot-konop-kenaf-layt?fbclid=IwAR3xPPtaIGpB9RHvcpdA9O0OjsCS0TWTh-vGu5TgrKbyq6wLQQZE_FQJM4I (accessed on 10 April 2023).
- Parlato, M.C.; Porto, S.M. Organized Framework of Main Possible Applications of Sheep Wool Fibers in Building Components. Sustainability 2020, 12, 761. [Google Scholar] [CrossRef]
- La Laine de Mouton. Available online: https://www.batirama.com/article/14435-la-laine-de-mouton-n-a-pas-dit-son-dernier-mot.html (accessed on 28 March 2023).
- LanaTerm. Available online: https://lanaterm.com/en/contact-en.html (accessed on 10 April 2023).
- Production of Polymers. Available online: https://eippcb.jrc.ec.europa.eu/reference/production-polymers (accessed on 21 March 2023).
- Gnip, I.; Vėjelis, S.; Vaitkus, S. Thermal conductivity of expanded polystyrene (EPS) at 10°C and its conversion to temperatures within interval from 0 to 50°C. Energy Build. 2012, 52, 107–111. [Google Scholar] [CrossRef]
- The Difference Between STYROFOAMTM and EPS. Available online: https://insulationcorp.com/the-difference-between-styrofoam-and-eps/ (accessed on 10 April 2023).
- Stiropor—Cena, Vrste i Karakteristike. Available online: https://izolacija.rs/stiropor-cena/ (accessed on 10 April 2023).
- Kamari, A.; Kotula, B.M.; Schultz, C.P.L. A BIM-based LCA tool for sustainable building design during the early design stage. Smart Sustain. Built Environ. 2022, 11, 217–244. [Google Scholar] [CrossRef]
- Graphisoft Archicad 25. Available online: https://graphisoft.com/solutions/archicad/archicad-25 (accessed on 10 April 2023).
- Google SketchUp 21. Available online: https://www.sketchup.com/plans-and-pricing/sketchup-free (accessed on 10 April 2023).
- TRNSYS3D—A Plugin for SketchUp. Available online: http://www.trnsys.com/features/suite-of-tools.php.html (accessed on 10 April 2023).
- Klein, S.A.; Beckman, W.A.; Mitchell, J.W.; Duffie, J.A.; Duffie, N.A.; Freeman, T.L.; Mitchell, J.C.; Braun, J.E.; Evans, B.L.; Kummer, J.P. TRNSYS 16. Available online: https://web.mit.edu/parmstr/Public/Documentation/01-GettingStarted.pdf (accessed on 29 March 2023).
- Meteotest. Meteonorm. Available online: https://meteonorm.com/en/ (accessed on 12 August 2020).
- ISO 14040; Environmental Management–Life Cycle 596 Assessment–Principles and Framework. ISO: Geneva, Switzerland, 2006. Available online: https://www.iso.org/standard/37456.html (accessed on 29 March 2023).
- Füchsl, S.; Rheude, F.; Röder, H. Life cycle assessment (LCA) of thermal insulation materials: A critical review. Clean. Mater. 2022, 5, 100119. [Google Scholar] [CrossRef]
- Colli, C.; Bataille, A.; Antczak, E. Investigating eco-efficiency procedure to compare refurbishment scenarios with different insulating materials. Procedia CIRP 2020, 90, 322–327. [Google Scholar] [CrossRef]
- ISO 14044; Management Environnemental—Analyse du Cycle de Vie—Exigences Et Lignes Directrices. ISO: Geneva, Switzerland, 2006. Available online: https://www.iso.org/fr/standard/38498.html (accessed on 21 March 2023).
- Ingrao, C.; Giudice, A.L.; Bacenetti, J.; Tricase, C.; Dotelli, G.; Fiala, M.; Siracusa, V.; Mbohwa, C. Energy and environmental assessment of industrial hemp for building applications: A review. Renew. Sustain. Energy Rev. 2015, 51, 29–42. [Google Scholar] [CrossRef]
- Todde, G.; Carboni, G.; Marras, S.; Caria, M.; Sirca, C. Industrial hemp (Cannabis sativa L.) for phytoremediation: Energy and environmental life cycle assessment of using contaminated biomass as an energy resource. Sustain. Energy Technol. Assessments 2022, 52, 102081. [Google Scholar] [CrossRef]
- Life Cycle Assessment (LCA) of Havelock Wool Batt and Loose-Fill Insulation. Available online: https://transparencycatalog.com/assets/uploads/files/Havelock_LCA_Final_Private.docx.pdf (accessed on 28 March 2023).
- Hemp Wool Insulation Panel. Available online: https://pcr-epd.s3.us-east-2.amazonaws.com/649.EPD_for_Natur_Chanv_Hemp_English_version.pdf (accessed on 28 March 2023).
- Rajković, I.; Bojović, M.; Tomanović, D.; Akšamija, L.C. Sustainable Development of Vernacular Residential Architecture: A Case Study of the Karuč Settlement in the Skadar Lake Region of Montenegro. Sustainability 2022, 14, 9956. [Google Scholar] [CrossRef]
- Rudofsky, B. Architecture Without Architects: A Short Introduction to Non-Pedigreed Architecture; University of New Mexico Press: Albuquerque, NM, USA, 1987. [Google Scholar]
- Lefebvre, H. Writing on Cities; Blackwell Publishing: Oxford, UK, 2000. [Google Scholar]
- Zach, J.; Korjenic, A.; Petránek, V.; Hroudová, J.; Bednar, T. Performance evaluation and research of alternative thermal insulations based on sheep wool. Energy Build. 2012, 49, 246–253. [Google Scholar] [CrossRef]
- Korjenic, A.; Petránek, V.; Zach, J.; Hroudová, J. Development and performance evaluation of natural thermal-insulation materials composed of renewable resources. Energy Build. 2011, 43, 2518–2523. [Google Scholar] [CrossRef]
- Bisegna, F.; Mattoni, B.; Gori, P.; Asdrubali, F.; Guattari, C.; Evangelisti, L.; Sambuco, S.; Bianchi, F. Influence of Insulating Materials on Green Building Rating System Results. Energies 2016, 9, 712. [Google Scholar] [CrossRef]
- Braulio-Gonzalo, M.; Bovea, M.D. Environmental and cost performance of building’s envelope insulation materials to reduce energy demand: Thickness optimisation. Energy Build. 2017, 150, 527–545. [Google Scholar] [CrossRef]
- Firfiris, V.; Martzopoulou, A.; Kotsopoulos, T. Passive cooling systems in livestock buildings towards energy saving: A critical review. Energy Build. 2019, 202, 109368. [Google Scholar] [CrossRef]
- Fedorik, F.; Zach, J.; Lehto, M.; Kymäläinen, H.-R.; Kuisma, R.; Jallinoja, M.; Illikainen, K.; Alitalo, S. Hygrothermal properties of advanced bio-based insulation materials. Energy Build. 2021, 253, 111528. [Google Scholar] [CrossRef]
- Savic, A.; Antonijevic, D.; Jelic, I.; Zakic, D. Thermomechanical behavior of bio-fiber composite thermal insulation panels. Energy Build. 2020, 229, 110511. [Google Scholar] [CrossRef]
- Stazi, F.; Mastrucci, A.; Munafò, P. Life cycle assessment approach for the optimization of sustainable building envelopes: An application on solar wall systems. Build. Environ. 2012, 58, 278–288. [Google Scholar] [CrossRef]
- Cao, Y.; Xu, C.; Kamaruzzaman, S.N.; Aziz, N.M. A Systematic Review of Green Building Development in China: Advantages, Challenges and Future Directions. Sustainability 2022, 14, 12293. [Google Scholar] [CrossRef]











| Scenario 1 (Current State) | Scenario 2 (Sheep’s Wool) | Scenario 3 (Hemp Wool) | Scenario 4 (EPS) |
|---|---|---|---|
| Finish lime coat | Finish lime coat | Finish coat | |
| Mud mortar 2 cm | Mud mortar 2 cm | Base coat | |
| Reed board 1cm | Reed board 1 cm | Reinforcing mesh | |
| Sheep wool insulation panel 10 cm | Hemp wool insulation panel 10 cm | Adhesive and EPS board 10 cm | |
| Wooden board 2.5 cm | Wooden board 2.5 cm | Wooden board 2.5 cm | Wooden board 2.5 cm |
| Wooden construction with filling of mud and straw 15 cm | Wooden construction with filling of mud and straw 15 cm | Wooden construction with filling of mud and straw 15 cm | Wooden construction with filling of mud and straw 15 cm |
| Wooden board 2.5 cm | Wooden board 2.5 cm | Wooden board 2.5 cm | Wooden board 2.5 cm |
| Vapor barrier | Vapor barrier | Vapor barrier | |
| Plasterboard sheets 2.5 cm | Plasterboard sheets 2.5 cm | Plasterboard sheets 2.5 cm | |
| Base coat | Base coat | Base coat | |
| Finish lime coat | Finish lime coat | Finish lime coat | |
| 20 cm | 36 cm | 36 cm | 36 cm |
| Thermal Characteristics | Sheep’s Wool | Hemp Wool | EPS |
|---|---|---|---|
| Thermal conductivity λ (W/mK) | 0.035–0.045 | 0.035–0.043 | 0.034–0.038 |
| Flammability class | B 2 normally combustible material | B 2 normally combustible material | B 1 heavy combustible material |
| Water vapor resistance factor µ | 1 | 7.4–11 | 30–70 |
| Density (kg/m3) | 22 | 20–68 | 16–28 |
| R thermal resistance of the material (m2 K/W) | 285.7–222.2 | 263.2–232.56 | 294.12–263.12 |
| Material | Manufacturing | Transportation | End of Life | Total | |
|---|---|---|---|---|---|
| Carbon Footprint (kg CO2e) | 6392.0 | 1579.2 | 10.716 | 1240.8 | 9598.716 |
| Total Energy Consumed (MJ) | 148,520 | 30,080 | 157.732 | 902.4 | 179,660.13 |
| Air Acidification (kg SO2e) | 28.388 | 10.34 | 0.04888 | 0.6392 | 39.41608 |
| Water Eutrophication (kg PO4e) | 4.888 | 0.376 | 0.01128 | 1.5416 | 6.815 |
| Material | Manufacturing | Transportation | End of Life | Total | |
|---|---|---|---|---|---|
| Carbon Footprint (kg CO2e) | 14.140244 | 38.066286 | 33.899128 | 31.3894688 | 117.495127 |
| Total Energy Consumed (MJ) | 29.872436 | 48.0581008 | 68.453764 | 3.3992772 | 149.783578 |
| Air Acidification (kg SO2e) | 0.163877 | 0.078642231 | 0.16013124 | 0.00804402 | 0.41069449 |
| Water Eutrophication (kg PO4e) | 1.966524 | 0.11377746 | 0.01919702 | 0.49818608 | 2.59768456 |
| Material and Manufacturing | Transportation | End of Life | Total | |
|---|---|---|---|---|
| Carbon Footprint (kg CO2e) | 541.824184 | 74.5780816 | 8.59090056 | 624.9931662 |
| Total Energy Consumed (MJ) | 636.591912 | 150.5982808 | 6.71614768 | 793.9063405 |
| Air Acidification (kg SO2e) | 2.82243016 | 0.352288728 | 0.377010744 | 3.551729632 |
| Water Eutrophication (kg PO4e) | 0.574786872 | 0.042233444 | 0.016728564 | 0.63374888 |
| Sheep’s Wool | Hemp Wool | EPS | |
|---|---|---|---|
| Carbon Footprint (kg CO2e) | 624.9931662 | 117.4951268 | 9598.716 |
| Total Energy Consumed (MJ) | 793.9063405 | 149.783578 | 179,660.1 |
| Air Acidification (kg SO2e) | 3.551729632 | 0.410694491 | 39.41608 |
| Water Eutrophication (kg PO4e) | 0.63374888 | 2.59768456 | 6.815 |
Disclaimer/Publisher’s Note: The statements, opinions and data contained in all publications are solely those of the individual author(s) and contributor(s) and not of MDPI and/or the editor(s). MDPI and/or the editor(s) disclaim responsibility for any injury to people or property resulting from any ideas, methods, instructions or products referred to in the content. |
© 2023 by the authors. Licensee MDPI, Basel, Switzerland. This article is an open access article distributed under the terms and conditions of the Creative Commons Attribution (CC BY) license (https://creativecommons.org/licenses/by/4.0/).
Share and Cite
Stanimirovic, M.; Vasov, M.; Mancic, M.; Rancev, B.; Medenica, M. Sustainable Vernacular Architecture: The Renovation of a Traditional House on Stara Planina Mountain in Serbia. Buildings 2023, 13, 1093. https://doi.org/10.3390/buildings13041093
Stanimirovic M, Vasov M, Mancic M, Rancev B, Medenica M. Sustainable Vernacular Architecture: The Renovation of a Traditional House on Stara Planina Mountain in Serbia. Buildings. 2023; 13(4):1093. https://doi.org/10.3390/buildings13041093
Chicago/Turabian StyleStanimirovic, Mirko, Miomir Vasov, Marko Mancic, Boris Rancev, and Milena Medenica. 2023. "Sustainable Vernacular Architecture: The Renovation of a Traditional House on Stara Planina Mountain in Serbia" Buildings 13, no. 4: 1093. https://doi.org/10.3390/buildings13041093
APA StyleStanimirovic, M., Vasov, M., Mancic, M., Rancev, B., & Medenica, M. (2023). Sustainable Vernacular Architecture: The Renovation of a Traditional House on Stara Planina Mountain in Serbia. Buildings, 13(4), 1093. https://doi.org/10.3390/buildings13041093

