Abstract
This study aims to investigate the structural behavior and load-carrying capacity of prefabricated shoring systems. The structural behavior and performance of shoring systems are influenced by the buckling of vertical members, where the compressive force acts as the main load. The buckling strength of a vertical member is sensitive to not only the material and geometrical properties of members but also the connection details between members, presence or absence of braces, and stiffness ratio between members. Therefore, in this study, the structural behavioral characteristics of the individual post member and the entire system are investigated by considering the structural details through eigenvalue and nonlinear finite element analyses. On the basis of the analytical studies, it was confirmed that the boundary condition of the vertical member, rotational and horizontal stiffnesses, and eccentricity condition of the end, which are directly affected by the compressive force acting on the prefabricated shoring system, have a direct effect on the elastic buckling strength. In addition, it was determined that factors such as whether the braces were installed, rotational stiffness of the vertical–horizontal member connection, and the number of installation stages affected the overall strength of the structure. According to the structural analysis results, the assembled structure was reduced by 92.9% and 82.2% compared to the elastic buckling strength of a single member as the height increased to two and three stories. In addition, when the bracing member was not installed, 12.1% and 23.6% strength reduction was confirmed as the elastic buckling strength increased by two and three stories compared to the case where the bracing member was installed. Consequently, the necessity of a whole structural performance evaluation technique was confirmed for a more practical structural performance evaluation.
1. Introduction
Various temporary structures are used to improve construction efficiency and safety at construction sites. When concrete is poured, it is temporarily supported by shoring. If the soundness of the shoring is not secured, it cannot support the weight during casting, which may result in a collapse. The structural integrity of a shoring system is influenced by the following factors [1,2]:
- Errors in the design prior to the installation of the temporary structure may cause structural defects.
- Accidents may occur because of the use of non-safety-certified products or reusable equipment with significantly reduced performance.
- In the installation stage of a temporary structure, errors due to improper assembly and excessive loading may cause a collapse of the structure.
The load-carrying capacity of the shoring system can be determined by the performance of the vertical member that directly receives a vertical load. The performance of a vertical member subjected to vertical compressive forces may vary depending on the material and geometrical properties of the member, as well as the assembly details of the prefabricated shoring system. In other words, to confirm the structural performance of the prefabricated shoring system, an evaluation should be conducted considering the form used at the construction site. Korea has strict standards for certification of the production and use of temporary structures. However, according to the evaluation standards of Korea, the performance of the prefabricated shoring system is certified using the load evaluation results of the individual members. Therefore, this results in a blind spot that may not be able to validate the actual structural performance when each member is assembled and used in the field.
Experimental and analytical studies have been conducted on the structural performances of shoring and scaffolding. Several experimental studies [3,4] and analyses [5] have been conducted on vertical members, which are the key members of temporary structures.
Some studies have analyzed the structural behavior characteristics of scaffolds, which are representative temporary structures, through experiments. Lee et al. [6,7] analyzed the effect of support conditions on the buckling strength of pipe support as a single member. The buckling strength of pipe supports, which are mainly subjected to compressive forces, can be qualitatively determined through Euler’s elastic buckling theory. Therefore, structural analyses and experiments were conducted on the effect of the boundary conditions at both ends of the pipe support on the buckling strength, and the deviation of the results was analyzed through sampling experiments. Paik et al. [8] described the importance of evaluating the buckling performance of steel pipe scaffolding and connecting hardware. Chae et al. [9] analyzed the irregularity of a slab acting on a hypothetical structure. In this study, an analysis of accident cases of the shoring system was performed; on this basis, the influence of factors to be reviewed when designing a shoring system for atypical buildings was reviewed. It was analyzed that the load effect increases as the slab slope of the shoring system increases, which has a great effect on the safety of the vertical member. In addition, it was analyzed that the role of bracing materials is important for structural safety. However, in this study, the load condition was conservatively considered, and the irregularity of the structure was simply considered as the slope of the slab. Therefore, it was identified that an additional behavior evaluation was required considering the shape and load conditions of various structures. Liu et al. [10] presented experimental and analytical studies on the safety of unbraced structural steel tubes and coupler scaffolds. To obtain the strength and failure mode of these structures, static experiments were performed by constructing specimens with various geometrical characteristics. In addition, parametric analysis was performed through nonlinear finite element analysis. The general failure mode of the structure was total buckling about the weak axis, and the strength was found to be sensitive to the rotational stiffness of the coupler and the story height. Peng et al. [11] performed experiments and structural analyses considering various load and connection conditions for scaffolding. In this study, the effect of eccentricity on the scaffold’s buckling performance was analyzed through structural analysis and actual experiments. Under the theoretical assumption that the structural strength of system scaffolding is predominantly affected by the buckling of vertical members that are directly subjected to compressive forces, the main factors influencing the buckling strength of vertical members were implemented in a numerical model.
Lee et al. [12] investigated the maximum load capacity of the assembled system scaffolding with and without bracing. Accordingly, it was analyzed that the installation of the bracing member is essential to increase the load capacity of the scaffolding system, and that the ultimate strength should be determined by considering the number of assembly stories of the scaffolding system. Park et al. [13] conducted a safety evaluation of shores by assuming damage scenarios. In this study, damage scenarios were constructed by simulating structural defects based on actual accident cases, and structural stability analysis was conducted. The stability of the structure was analyzed by calculating and comparing critical load factors for each damage scenario. The presence or absence of braces for each position of the structure was set, and the performance evaluation was analyzed accordingly. Park et al. [14] calculated the design allowable strength of the vertical member of the temporary structure to which the allowable strength and design criteria were applied and compared it with the experimental results. The importance of certification and management was mentioned through the performance evaluation of vertical members, which had the greatest influence on the structural behavior of temporary structures.
Analysis studies were conducted considering the structural behavior characteristics of temporary structures, including the details of connections between members, the number of assembly stories, and the stiffness of members [15,16,17,18,19,20,21,22,23]. In addition, studies were conducted to develop structural safety, design, and manufacturing methods of temporary structures [24,25,26,27,28,29,30,31,32,33,34,35].
However, analytical studies considering the material and geometric nonlinearity of members and connectivity between members are limited. As basic research for the rational performance evaluation and establishment of certification procedures, it is necessary to analyze the structural behavior characteristics of prefabricated shoring systems subjected to vertical forces. Accordingly, some major countries have presented design [36,37] and test standards [38,39,40] for the global structural behavior of shoring. In addition, further research on additional reinforcement measures to prevent prefabricated shoring system collapse is required.
In this study, structural analysis and tests were conducted to secure the global structural performance and safety of the assembled temporary structure system. The structural performance of the assembly was verified experimentally, and the performance of the individual members was analyzed. Thus, it was determined that the number of stories of the prefabricated shoring system, presence or absence of bracing members, and rotational stiffness of the connecting part had a significant influence on the structural performance. Therefore, the need for structural performance evaluation of the entire assembly was derived by overcoming the weaknesses of the current performance evaluation of individual members and presenting reasonable standards.
2. Member-Based Performance Evaluation Method for System Support Components in Korea
In this section, Korea’s certified test procedures and methods for safety certification(Table 1, Table 2 and Table 3) [36] and performance evaluation of prefabricated shoring systems are investigated. The experimental methods for the safety certification of individual and assembled shoring structures were compared and analyzed. The materials and members of Korea’s prefabricated shoring system are presented below in accordance with “The performance standards and test methods of pipe supports and shoring members” presented in the safety certification notice for safety devices in Korea.
Table 1.
Test performance standards for the main posts of the prefabricated shoring system in Korea [36].
Table 2.
Test performance standard for the horizontal members of the prefabricated shoring system in Korea [36].
Table 3.
Test performance standard for the bracing members of the prefabricated shoring system in Korea [36].
2.1. Safety Certification Standard for the Main Post of the Prefabricated Shoring System in Korea
As shown in Figure 1, the performance of the vertical members of a prefabricated shoring system was evaluated through a compressive load test. The maximum load that the member can receive is evaluated through the knife-edge test. However, if the test load (compressive force) is measured as 180 kN or more, this value is used as the test load (performance result) of the member.
Figure 1.
Compression load test of a vertical member [36].
2.2. Safety Certification Standard for the Horizontal Member of the Prefabricated Shoring System in Korea
The horizontal member was subjected to bending and shear load tests of the connecting part with vertical member. The bending load test measures the maximum load that the specimen can sustain by applying a load to the central part of the two parallel horizontal members at the top, where four horizontal members (a total of eight) are connected to each of the upper and lower joints of the four vertical members; it was evaluated using half of the load in the test results. The loading speed was controlled at ≤8 mm/min. The joint shear load test combines two vertical members with a horizontal member, applies an equal load to the two vertical members in a state where the joints of the four horizontal members to be tested are coupled to the joint of the vertical member, measures the maximum value of the load supported by the specimen, and evaluates one-fourth of this load.
2.3. Safety Certification Standard for the Bracing Member of the Prefabricated Shoring System in Korea
The bracing member of the prefabricated shoring system was subjected to compressive and tensile load tests. The compressive load test measures the maximum load that the test object can withstand by installing an experimental bracing member through the connecting hardware and applying a compressive load to the test object. The tensile load test measures the maximum load that the specimen can withstand by installing the corresponding experimental bracing member through the connecting hardware and applying a tensile load to the specimen.
Currently, the performance evaluation for the safety certification of shoring is conducted through a load test on a member unit for convenience. That is, the characteristics of an assembly unit, including the number of stories, presence or absence of members, and connection details between members, are not reflected. In the existing shore-member evaluation method, only the load capacity and displacement due to the vertical load of the simply supported compression member are checked. Therefore, this can lead to a highly inaccurate evaluation of the buckling performance of the main post of the assembled shoring system.
As mentioned above, the safety certification standard of the main members constituting the shoring system was analyzed. However, to evaluate the structural behavior of an assembled temporary structure, several parameters such as member performance, joint conditions, load conditions, and the number of stories must be considered. In this study, it is argued that, for the structural performance evaluation of the shoring system, not only the material performance of the members but also the behavior evaluation of the entire structure in which each member is combined must be performed. Therefore, the performance evaluation of the vertical member, which is the main component of the shoring system, and the structural behavior evaluation of the assembly were analyzed through experiments and structural analysis.
3. Full-Scale Test of Prefabricated Shoring Systems
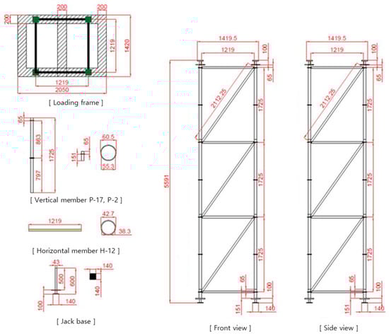
As shown in Figure 2 and Figure 3, compressive loads were applied to four specimens (Cases 1, 2, 3, and 4) in which braces were installed, and the number of stories was applied differently. The difference in the load capacity of the assembly based on the presence or absence of braces and number of stories was analyzed.
Figure 2.
Test model design (Case 2, three-story assembly with braces).
Figure 3.
Prefabricated shoring system installation for Cases 1–4.
3.1. Overview of Prefabricated Shoring System Tests
Figure 2 presents a design of a three-story shoring system with braces. Accordingly, the experimental case was selected by adjusting the number of assembly stories and the presence or absence of braces. In addition, a loading frame was fabricated between the actuator and the specimens to ensure that a uniform vertical load could be applied to the top four posts of the shoring system. Therefore, the boundary condition between the four vertical members at the top of the shoring system and the loading frame was tested as a fixed boundary condition in which lateral displacement was constrained. The boundary condition between the shoring system and the deck was also tested with a fixed boundary condition.
The experiment was conducted by dividing the assembly into four cases. Case 1 was a three-story assembly without braces, Case 2 was a three-story assembly with braces, Case 3 was a two-story assembly without braces, and Case 4 was a two-story assembly with braces. The assembly consists of vertical members, horizontal members, bracing members, and jack bases; the material of each structural member is listed in Table 4 and Table 5. The test load applied in the compression test of the assembly was 200 tons, and the compression load was applied at 8 mm/min. Accordingly, the maximum values of the generated displacement and load were measured.
Table 4.
Geometric dimensions of experimental members.
Table 5.
Materials data of experimental members.
3.2. Ultimate Load and Deformation of Prefabricated Shoring System
Figure 4 shows the deformation of each specimen when the ultimate load is reached after a vertical load is applied to the system support assembly. Looking at the deformation shape of Case 1, the entire vertical members composed of three stories acted as effective buckling length. As for the direction of buckling, it was confirmed that the maximum buckling occurred in the middle of the two stories of the vertical member in the x-axis direction. In Case 2, the entire buckling of the assembly did not occur due to the action of the bracing member when the vertical load was applied. However, as shown in Figure 4b, local buckling occurred in the vertical member of the one story. In Case 3, as the vertical load was applied, the entire vertical member acted as one effective buckling length like in Case 1. However, unlike Case 1, the buckling of one vertical member dominated the deformation of the entire assembly. In Case 4, as shown in Figure 4d, due to the action of the bracing member, buckling occurred not only in the entire vertical member composed of two stories but also in each vertical member. However, the deformation of the entire assembly did not occur. Therefore, it was analyzed that the bracing member increases the buckling load by reducing the effective buckling length of the vertical member and preventing the entire deformation in assembling the shoring system.
Figure 4.
Failure shape of prefabricated shoring system installation for Cases 1–4.
The displacement that occurs when a vertical load is applied to the prefabricated shoring system for each case was analyzed, and the results are shown as a load–displacement curve in Figure 5. In addition, the ultimate load and vertical displacement of the prefabricated shoring system for each case were analyzed, and the results are listed in Table 6. The shoring performance was found to have a similar tendency for each story until the ultimate load was reached, regardless of the presence or absence of braces. In addition, as the number of stories increased, the ultimate load decreased, and the deviation in the ultimate load was found to be extensive, depending on the presence or absence of braces. In Case 2, when the vertical load was applied, the vertical–vertical member connecting pin was removed at approximately 390 kN; consequently, it was determined that the load capacity decreased, as shown in Figure 5.
Figure 5.
Load–displacement curves of prefabricated shoring systems.
Table 6.
Ultimate loads of prefabricated shoring systems and vertical displacements at the maximum compressive loads.
First, the effect of the number of stories was analyzed. When the bracing member was not installed, the three-story assembly (Case 1) had approximately 58.83% of the ultimate load of the two-story assembly (Case 3). When the bracing member was installed, the three-story assembly (Case 2) was found have approximately 85.06% of the ultimate load of the two-story assembly (Case 4). As the number of stories in the prefabricated shoring system increased, the load capacity of the assembly decreased significantly. In addition, the difference in the load capacity was 26.23%, depending on whether or not the bracing was installed.
Next, the effect of bracing installation was analyzed. In the case of the three-story assembly, the assembly without braces (Case 1) showed a reduction in the ultimate load of approximately 38.44% compared with the assembly with braces (Case 2). In the case of the two-story assembly, an ultimate load reduction of approximately 55.58% was analyzed for the assembly without braces (Case 3) compared with the assembly with braces (Case 4). Depending on the presence or absence of the bracing member of the prefabricated shoring system, a difference in the load capacity of up to two or more times occurred. As shown in Figure 5, the structural analysis and experimental results obtained in this study show that the strength change pattern and ultimate strength almost matched. Therefore, the structural analysis research technique conducted in this study was directly verified, and the difference in structural performance according to various assembly details was identified by a valid method. This led to the same logical conclusions as in previous studies [41,42,43] on the experimental and certification criteria of hypothetical structures.
When analyzing the deformation shape of Case 1, the entire vertical member composed of three stories acted as one effective buckling length. Regarding the buckling direction, it was confirmed that the maximum buckling occurred in the middle part of the two-story vertical member. In Case 2, global buckling of the assembly did not occur because of the influence of the bracing member when a vertical load was applied. However, local buckling occurred in the first-story vertical members. In Case 3, as the vertical load was applied, the entire vertical member acted as one effective buckling length, as in Case 1. However, unlike Case 1, the buckling of one vertical member dominated the deformation of the entire assembly. In Case 4, buckling occurred in each vertical member for each section owing to the influence of the bracing member, and deformation of the entire assembly did not occur. Therefore, it was clearly determined that the bracing member of the prefabricated shoring system increased the buckling load by reducing the effective buckling length of the vertical member and reduced total deformation.
The experimental results were compared with the analytical results obtained using nonlinear finite element analysis; the comparison is presented in Section 5.4.
4. Behavioral Characteristics of the Post Member of Prefabricated Shoring System
4.1. Mechanical Behavior Characteristics of the Prefabricated Shoring System Member
Because the load transmitted from the upper part is primarily received by the vertical member of the prefabricated shoring system, the global buckling strength, owing to the compressive force, dominates the design strength of the structure for the vertical member made of steel pipes. If the cross-section of the vertical member to be examined for compressive strength is designed as a compact section and the length of the member is sufficiently long for elastic buckling to dominate the strength of the member, the compressive strength determined by the buckling strength of this member can be calculated using Euler’s elastic buckling theory, as shown in Equation (1).
where is Euler’s buckling load, is the effective buckling length factor, is the elastic modulus of vertical member, is the moment of inertia of the vertical member, and is the unbraced length of vertical member.
As shown in Equation (1), the buckling of a compression member is determined by the effective buckling length factor determined by the boundary condition of the member, as well as the material and geometric factors of the member itself. The compressive strength was analytically evaluated using the vertical member specifications of the prefabricated shoring system, as listed in Table 7 and Table 8. An analysis was conducted while changing the connection conditions of both the ends of the members to analyze the influencing factors and effects on the compressive strength of the members. Table 9 shows the range of parameters considered in the analysis of factors affecting the buckling strength of a single member. All structural analyses in this study were conducted using the ABAQUS program, which is widely used for numerical analysis.
Table 7.
Vertical member specifications of the prefabricated shoring system.
Table 8.
Material data of vertical member for structural analysis.
Table 9.
Influencing factors and range of consideration for the buckling strength of vertical members of the prefabricated shoring system.
4.2. Evaluation of Elastic Buckling Strength of Vertical Members through Boundary Conditions
To implement the compressive strength test through the knife-edge test, both ends of the member were simulated by providing hinge constraints free of rotation. The nodes of the cross-section at both the ends defined the center point of the circular cross-section as the reference point. The boundary condition for the cross-section was obtained by using this point as the control reference point of the cross-section and defining the constraint condition. The hinge and roller boundary conditions were assigned to this reference point, and the buckling strength of the member was evaluated analytically by applying a concentrated load to the reference point to which the roller boundary condition was assigned, as shown in Figure 6.
Figure 6.
Elastic buckling mode through eigenvalue analysis. (a) 1st mode; (b) 2nd mode; (c) 3rd mode; (d) 4th mode.
As shown in Figure 7, the buckling strength increased as the number of restraint degrees of freedom increased under the boundary conditions at both ends. Among the boundary conditions, the boundary condition that induced the shortest effective buckling length was the fixed–fixed end condition, which implies that the rotational deformation at both ends is completely restrained. However, they are not typically designed at this level. That is, the buckling strength of the vertical members in the assembled structure cannot exceed the value evaluated under the fixed–fixed end constraint. In addition, the free–fixed end boundary condition showed the smallest buckling strength among the analyzed boundary condition models. This is because the displacement in the orthogonal direction of the length of the member at the free end was not controlled, and only half of the actual buckling-shaped section was derived as a deformed shape in the unbraced section. Accordingly, a buckling strength of approximately 25% of the buckling strength (based on the first mode) under the hinge–hinge end boundary condition was obtained.
Figure 7.
Comparison of buckling strength for each end boundary condition.
4.3. Elastic Buckling Characteristics According to Translational–Rotational Stiffness at Both Ends of a Vertical Member
Considering the general connection details, the joint linking the vertical, horizontal, and bracing members had a certain degree of rotational stiffness. Resistance to rotation exists at both ends of the vertical member owing to the bending stiffness of the horizontal and brace members. Consequently, it has a direct effect on the effective buckling length of vertical members in single-member units. In this section, the changes in the elastic buckling strength and buckling mode according to the rotational stiffness at the ends of the vertical members are analyzed. The buckling behavior characteristics according to the rotational stiffness were analyzed by additionally applying a rotational spring model under the hinge–roller boundary condition for a vertical member 1.715 m in length. The range of translational stiffness was 0.0–200.0 kN/m, and the range of rotational stiffness was 0.0–4000 kNm/rad. Elastic buckling analysis was performed by applying a linear stiffness model.
As shown in Figure 8 and Figure 9, when a rotating spring was applied to one or both ends, as the rotational stiffness increased, the elastic buckling strength reached the elastic buckling strength of the hinge–fixed or fixed–fixed end boundary condition. These characteristics are structural behaviors that are difficult to determine in the performance evaluation of a single member through a knife-edge test or flat plate test, according to current safety certification standards. Structural performance evaluation reflecting the connection characteristics between members is possible only when a test is performed on a system structure wherein all factors affecting the structural characteristics are assembled. A similar characteristic is shown in the study of the effect analysis of the stiffness in the translational direction at the end of the member.
Figure 8.
Buckling shape according to the rotational stiffness of both ends of the vertical member.
Figure 9.
Buckling strength curve according to rotational stiffness.
Figure 10 and Figure 11 shows the characteristics of the elastic buckling behavior change according to the change in stiffness in the translational direction relative to the orthogonal direction at the top of the vertical member.
Figure 10.
Buckling shapes according to the stiffness of one end of the vertical member in the translational direction.
Figure 11.
Buckling strength curve according to the translational stiffness.
Similar to the effect of the preceding rotational stiffness, the translational stiffness in the orthogonal direction of the vertical member, to which the compressive force is loaded, increases. In addition, when the translational stiffness was relatively low, horizontal deformation occurred at the end of the load action. In this case, the buckling shape of the vertical member exhibits a shape similar to that in the case of hinge–free or fixed–free end, and the buckling strength is greatly reduced. In other words, if the stiffness of the brace and horizontal member is insufficient or the connection details are inadequate, the horizontal displacement is not properly controlled at the end of the vertical member under compressive force, which can significantly reduce the buckling strength. Similar to the influence of rotational rigidity reviewed above, this characteristic is challenging to consider artificially in the current single-member experiment.
4.4. Influence of Eccentricity
In this study, the effect of eccentricity on the elastic buckling strength of vertical materials was also analyzed. A geometric nonlinear structural analysis was performed to analyze the effect of the eccentric moments amplifying the bending deformation of the member. The load–displacement curve at the loading point of the vertical member was obtained, and the elastic buckling strength was analyzed.
As shown in Figure 12, as the eccentricity increases, the stiffness and elastic buckling strength of the vertical member significantly decrease. The eccentricity acting on the member has a highly sensitive effect on the buckling strength of the member. This is because, as previously mentioned, the eccentricity acting on the member causes a bending moment along with the vertical compressive force. This bending moment induces amplification of the bending deformation, which causes buckling of the member. In other words, to evaluate the performance while considering the influence of eccentricity, a system structure performance evaluation in the assembled state must be performed.
Figure 12.
Load–displacement curve at loading point according to eccentricity.
5. Analytical Investigation of Structural Behavioral Characteristics of Prefabricated Shoring Systems through Structural Analysis
In this section, the global behavior characteristics of prefabricated shoring systems are analyzed through a structural analysis. In the previous section, it was determined that the boundary condition at the end has a direct effect on the overall buckling strength and deformation characteristics of a single member subjected to compressive force. The end boundary conditions were determined by the stiffness in the translational and rotational directions according to the horizontal and bracing members and connection details. It was demonstrated, via the structural analysis of a single member, that, when eccentricity acts on a vertical member, the buckling strength is significantly reduced by amplifying the bending deformation.
5.1. Analysis Model Overview
In this study, four prefabricated shoring system cases were used as the structural analysis models. According to the presence or absence of braces, the three-story and two-story structural analysis models were divided into Case 1, Case 2, Case 3, and Case 4, and a parameter analysis study was conducted. In addition, the effects of the rotational stiffness of the bracing members and connection parts of the vertical–horizontal members on the buckling strength and buckling mode were analyzed.
5.2. Elastic Buckling Strength
As shown in Figure 13, the elastic buckling mode and elastic buckling strength of each model were evaluated using the eigenvalue analysis. The elastic buckling mode and elastic buckling strength exhibited a clear difference depending on whether the bracing member was installed in the prefabricated shoring system. When braces were not installed, the two- and three-story models showed respective elastic buckling strengths of 12.1% and 23.6% of the elastic buckling strength of the braced model. This can be attributed to the occurrence of lateral displacement (sidesway) owing to the non-installation of the bracing member and global buckling of the vertical member. Therefore, the global bending deformation of vertical members cannot be controlled when bracing members are not installed or improperly designed. Accordingly, in the model where the bracing member is installed, an inflection point of the buckling shape of the vertical member is formed near the vertical–horizontal member connection part of each story. However, in the case of non-bracing models, buckling characteristics show that the vertical member has a single buckling shape.
Figure 13.
Elastic buckling modes (first buckling mode; rotational stiffness not considered).
A vertical load was applied to each main post to evaluate the elastic buckling load of the assembly. Consequently, the elastic buckling load of the assembly was calculated to be one-fourth of the total applied load. Correspondingly, the elastic buckling strengths of the main posts of the assemblies and single members were analyzed.
The elastic buckling strength of the prefabricated shoring system was significantly affected by the number of assembly stories and bracing members. The elastic buckling strengths of the two- and three-story structural analysis models with braces were evaluated as 133.84 kN and 119.25 kN, respectively. It was found that a higher number of stories resulted in lower elastic buckling strength. In Figure 14, the elastic buckling strength of a single member is indicated. The elastic buckling strengths of the two-story and three-story installation models with braces were confirmed to be 92.9% and 82.2%, respectively, compared with those of single members. The effect of increasing the length of the vertical member as the number of stories increased, as well as the fact that the complete hinge connection could not be realized even when the horizontal and bracing members were assembled, had a complex effect. Therefore, the buckling strength of the assembly was confirmed to be lower than that of a single member. It is proven that the existing performance evaluation method for a single member does not reflect the behavior and strength characteristics of actual temporary structures.
Figure 14.
Comparison of elastic buckling strengths (first buckling mode; rotational stiffness not considered).
5.3. Ultimate Analysis of the Prefabricated Shoring System Considering Various Geometric Factors
In this section, the effect of the primary geometrical factors constituting the prefabricated shoring system on the buckling strength is analyzed. The geometrical influencing factors considered in this study are the rotational stiffness of the vertical–horizontal connection and cross-sectional dimension of the bracing member. The rotational stiffness of the joint between the vertical and horizontal members directly affects the effective buckling length of the vertical member within the frame section. The cross-sectional dimensions of the bracing member determine the degree of in-plane shape deformation of the frame.
5.3.1. Effect of Rotational Stiffness between Vertical–Horizontal Members
The rotational stiffness is considered according to the connection characteristics of the vertical–horizontal member connection of the prefabricated shoring system. In this study, the change in elastic buckling strength according to the change in rotational stiffness was analyzed on the basis of the rotational stiffness (16.0 kNm/rad) of the prefabricated shoring system.
As shown in Figure 15, it was confirmed that the rotational stiffness of the vertical–horizontal member connection has a direct effect on the elastic buckling strength of the structure. Table 10 shows the elastic buckling strength when rotational stiffness (16.0 kNm/rad) is applied. The rotational stiffness of the assembly was defined as the rotational stiffness as defined in the study by Bong et al. [44].
Figure 15.
Variation of elastic buckling strength according to the rotational stiffness of the connection.
Table 10.
Elastic buckling strength when applying rotational stiffness (16.0 kNm/rad).
As a result of evaluating the elastic buckling strength through structural analysis, all the analysis models examined showed a significant increase in the elastic buckling strength. It was found that the effect of the rotational stiffness of the connection part was greater in the structural model wherein the effective buckling length of the vertical member was longer, because the bracing member was not installed. All the analysis models showed that the effect of rotational stiffness decreases when the rotational stiffness exceeds a certain level. The rotational stiffness of the connection part and bending stiffness of the vertical member are affected by the series connection. Therefore, the buckling strength of the entire structure converges to a certain value according to the increase in the rotational stiffness of the connection part.
5.3.2. Effect of Bending Stiffness between Horizontal–Vertical Members
As mentioned previously, the buckling strength of a vertical member is determined by its effective buckling length. The effective buckling length is determined by the equivalent translational and rotational stiffnesses at the support point of a member or at the connection with another member. Generally, the effective buckling length and buckling strength of the vertical members constituting a frame structure are significantly affected by the bending stiffness of the horizontal members. Therefore, in this section, the rotational stiffness (16.0 kN·m/rad, 80.0 kN·m/rad) of the connection between the vertical–horizontal members is considered.
As shown in Figure 16, as the relative bending stiffness between the vertical and horizontal members increased, the buckling strength of the vertical members increased. In the analysis results, considering the rotational stiffness of the connecting part to be 80.0 kNm/rad, when the thickness of the horizontal member was half (outer diameter 42.7 mm, thickness 1.1 mm), the buckling strength was 6.2% lower than that of the basic analysis model analysis. In addition, when the outer diameter was half (outer diameter 21.35 mm, thickness 2.2 mm), the buckling strength was 17.3% lower than that of the basic analysis model. Therefore, the bending stiffness of the horizontal member plays a role as a factor that significantly influences the buckling strength of the entire structure. As mentioned above, it is difficult to conduct real experiments that reflect the effects of horizontal members with existing single-member certification standards.
Figure 16.
Elastic buckling strength according to bending stiffness (three-story, braced model).
5.4. Structural Analysis of Ultimate Behavior and Ultimate Load of the Prefabricated Shoring System
The load capacity (ultimate load) of the experimental model was evaluated through structural analysis. For this evaluation, a nonlinear inelastic structural analysis was applied to track the global deformation of the structure and local deformation of the major members according to the increase in the external force. For this analysis, the vertical, horizontal, and bracing members were modeled by applying 3D nonlinear beam elements. In addition, the nonlinear inelastic material properties of each member were reflected in the analysis by applying a bilinear inelastic material model. The connection details between the vertical and horizontal members were reviewed by dividing them into pin connections and connections considering the rotational stiffness. For the rotational stiffness, a total of four connections were considered by providing stiffness conditions of 0, 16, 40, and 80 kNm/rad.
As shown in Figure 17, as the vertical force increases beyond a certain level, a clear bending deformation occurs in the vertical member. Additionally, as the vertical load increased continuously, the deformation of the vertical member was amplified, resulting in buckling deformation. In Figure 17b,d, the sidesway of the structure does not occur owing to the influence of the bracing members. Therefore, the buckling shape of the vertical member appeared as a general buckling shape, where the inflection point of the buckling deformation was formed near the connection point with the horizontal member. However, as shown in Figure 17a,c, when the bracing member is not installed, a buckling shape of a single curve appears in the entire section of the vertical member without an inflection point in the vertical member. In addition, as shown in Figure 17a,c, the effective buckling length increased as the number of stories increased in structures without braces. Accordingly, the buckling strength and ultimate load capacity also decreased rapidly as the number of stories increased.
Figure 17.
Deformation of the specimen through nonlinear inelastic structural analysis.
In all of the analysis models reviewed, the structural extreme state occurs wherein a rapid horizontal displacement takes place in the vertical member as the external force reaches a certain level. This is analyzed as the structural behavior, as the vertical compressive force induces buckling in the vertical members. As shown in Figure 18, the initial stiffness and load capacity of the structure exhibited a large difference depending on the rotational stiffness between the vertical and horizontal members. In the case of structures with a relatively small load capacity owing to the unbraced setup, it was found that the load capacity varied greatly depending on the rotational stiffness of the connection between the vertical and horizontal members. In the case of the three-story model without braces, when considering a rotational stiffness of 16 kNm/rad, the load capacity increased by 8.3% compared with the structural analysis model assuming a pin connection. In the case of the three-story model with braces installed, considering the rotational stiffness of 16 k Nm/rad, it showed an increase of 7.44% compared with the analysis model assuming the pin connection condition. Therefore, it was found that the rotational stiffness of the vertical–horizontal connection has a direct effect on the ultimate behavior and load capacity of the structure.
Figure 18.
Load–displacement curve of the vertical member in buckling.
In addition, for the two-story assembly, the rotational stiffness of the connection had a significant effect on the ultimate behavior and load capacity. In the case of the two-story model with braces installed, when a rotational stiffness of 16 kNm/rad was applied, the load capacity increased by 6.01% compared with the pin connection condition. However, in the two-story model without braces, the rotational stiffness of the vertical–horizontal connection did not have a significant effect on the load capacity change of the structure. This was directly related to the global buckling shape of the vertical members of the structure in this study. As mentioned above, the vertical members of the two-story assembly model without braces exhibited a buckling shape of a single curve in the entire section. Therefore, the horizontal member installed between the first and second stories is connected to the point where the curvature is close to zero in the overall buckling-shaped curve of the vertical member. In other words, when the horizontal member acts as resistance against the rotational deformation caused by the buckling deformation of the vertical member, a change in the effective buckling length of the vertical member is induced. However, because the horizontal member of the two-story structure did not play this role, it did not influence the rotational stiffness of the vertical–horizontal member connection. Therefore, in the structural analysis model of this study, it was confirmed that the load-carrying capacity was affected by the presence or absence of braces, number of stories, and rotational stiffness of the connection between the vertical and horizontal members.
As shown in Figure 19, in the nonlinear inelastic analysis and experimental results performed in this study, it was found that the ultimate strength and strength changes according to each variable were almost identical. The analytical research method used in this study was directly verified through comparison with the experimental results. As a result, the difference in the structural performance according to the assembly details used in various studies and analyses was identified by a valid method.
Figure 19.
Nonlinear inelastic structural analysis and experimental results.
5.5. Summary
In this section, the global structural behavior characteristics of the prefabricated shoring system are analyzed.
- The factors that influence the effective buckling length, depending on the characteristics of the structural members that are mainly subjected to compressive forces, influence the global structural performance.
- The material and geometric factors (elastic modulus, yield, ultimate stress, initial imperfection, and eccentricity), vertical–horizontal member connection condition, and the presence or absence of braces were found to have a dominant effect on the vertical member.
- The bracing member controls the twisting and sidesway of the frame structure; the effective buckling length is controlled by forming an inflection point near the vertical–horizontal member connection for the buckling shape of the vertical member of the prefabricated shoring system.
- Generally, as the number of stories increases, the length of the vertical member increases. Therefore, the effective buckling length increases, and the load capacity decreases.
- Rotational stiffness of the vertical–horizontal member connection affects the effective buckling length reduction by applying a certain amount of rotational restraint force at the vertical–horizontal member connection.
6. Conclusions
In this study, the factors influencing the structural performance of assembled temporary structures, such as prefabricated shoring systems, were analyzed through structural analysis and experiments.
- Considering the structure, load, and boundary conditions of the prefabricated shoring system, a temporary structure can be understood as a frame structure that supports vertical forces. Therefore, the buckling behavior and strength of the vertical members subjected to the compressive force, acting in the longitudinal direction of the members, determines the structural performance. In addition, depending on the assembly details, the structural behavior and load capacity of the prefabricated shoring system changed significantly.
- From the actual experiment and structural analysis, it was determined that the number of assembly stages, presence or absence of bracing members, and stiffness ratio between members had a significant effect on the prefabricated shoring system. Considering the influence of the height of the assembly, the three-story assembly showed an 84.7% reduction in ultimate strength compared to the two-story assembly. Considering with or without braces, the two-story assembly without braces showed a drop in load capacity of 57.4%, and the three-story assembly without braces showed a drop in load capacity of 43.3%. In addition, considering the rotational stiffness of the vertical and horizontal member connections, a maximum difference of 15% in load capacity was found in the three-story assembly without braces.
- The single-member test (knife edge, plate loading test, etc.) for the current prefabricated shoring systems is a test method that assumes that the boundary condition of both ends of the vertical member is hinge–hinge or fixed–fixed end condition. In other words, it is an experimental method that does not consider all the assembly stories, the presence or absence of braces, and the rotational stiffness of the connection part that determines the load-bearing capacity of actual prefabricated shoring systems.
- Therefore, it is difficult to rationally evaluate the actual ultimate behavior and load capacity of the assembled structure from the load capacity evaluation test results of the main member through a single-member test. For a more rational load-carrying capacity evaluation of prefabricated shoring systems, direct structural behavior evaluation in an assembled state should be performed.
- Among several conditions that significantly affected the behavioral characteristics and load capacity of the prefabricated shoring system, the impact of the bracing member was found to be the greatest. Therefore, at the construction site, it is necessary to strictly manage the omission of brace members during construction.
- In addition, the load-carrying capacity of the prefabricated shoring systems could be enhanced through structural details such as the member stiffness ratio and rotational stiffness between the main post and horizontal members. On the basis of these structural behavioral characteristics, safe structural design can be accomplished when the structural safety related to the collapse is improved.
- This study aimed to analyze the structural behavior characteristics of the shoring system assembled through actual experiments and structural analysis. However, to analyze the effect of the connection conditions between members, it is necessary to derive the bending stiffness and rotation stiffness of the member connection part through experiments. In addition, since the change in behavior characteristics according to the height of the structure was analyzed to be large, it is necessary to evaluate the performance of large temporary structures in future studies. Moreover, it is necessary to evaluate the increase in the number of horizontal assembly stories to clearly identify the characteristics of the shoring system installed in actual construction sites.
Author Contributions
Conceptualization, J.-H.W., S.-C.J. and S.K.; methodology, J.-H.W. and S.K.; software, S.K.; validation, J.-H.W., S.-C.J. and S.K.; formal analysis, H.K. and Y.L.; investigation, H.K., Y.L. and S.K.; resources, J.-H.W. and S.K.; data curation, H.K. and J.-H.W.; writing—original draft preparation, H.K. and S.K.; writing—review and editing, S.K.; visualization, H.K., Y.L., J.-H.W. and S.K.; supervision, J.-H.W., S.-C.J. and S.K.; project administration, S.K.; funding acquisition, S.K. All authors have read and agreed to the published version of the manuscript.
Funding
This study was funded by the Occupational Safety and Health Research Institute (No. 2018-894).
Data Availability Statement
The data of the study are contained within the article.
Acknowledgments
This study was supported by the Occupational Safety and Health Research Institute.
Conflicts of Interest
The authors declare no conflict of interest.
References
- Industrial Accident Statistics. Korea Occupational Safety and Health Agency. Available online: https://www.kosha.or.kr/kosha/data/industrialAccidentStatus.do (accessed on 2 January 2023). (In Korean).
- Construction Safety Management Integrated Information. Ministry of Land, Infrastructure and Transport. Available online: https://www.csi.go.kr/index.do (accessed on 20 December 2022). (In Korean)
- Chandrangsu, T.; Rasmussen, K.J. Review of Past Research on Scaffold Systems; Report No.: R905; University of Sydney: Sydney, Australia, 2009. [Google Scholar]
- Kim, J.R.; Lee, E.T.; Lee, S.Y.; Baek, K.Y. A Study on the Structural Property of Structural Steel Tubes Under Axial Compression. J. Korean Soc. Steel Constr. 2008, 20, 437–444. [Google Scholar]
- Baek, K.Y. A study on the compression strength of structural steel tube applied in spatial structure. J. Korean Assoc. Spat. Struct. 2008, 8, 83–93. [Google Scholar]
- Lee, J.S.; Choi, J.W. A Feasibility Study of Safety Certification for Finished Product of Fabricated Temporary. Korea Saf. Manag. Sci. 2013, 35, 39–48. [Google Scholar]
- Lee, J.S.; Lee, Y.S.; Oh, T.K. Effect of Boundary Condition on Buckling Characteristics of Pipe Supports. J. Korean Soc. Saf. 2015, 30, 41–47. [Google Scholar] [CrossRef]
- Paik, S.W.; Song, I.Y. A Study on the Buckling Characteristics of Steel Pipe Scaffold. J. Korean Soc. Saf. 2010, 25, 57–61. [Google Scholar]
- Chae, S.M.; Lee, C.H.; Chung, K.R. Study on Design Factors of System Support for Irregular Shaped Structures. J. Korean Assoc. Spat. Struct. 2018, 18, 85–92. [Google Scholar] [CrossRef]
- Liu, H.; Zhao, Q.; Wang, X.; Zhou, T.; Wang, D.; Liu, J.; Chen, Z. Experimental and analytical studies on the stability of structural steel tube and coupler scaffolds without X-bracing. Eng. Struct. 2010, 32, 1003–1015. [Google Scholar] [CrossRef]
- Peng, J.-L.; Chen, K.-H.; Chan, S.-L.; Chen, W.T. Experimental and analytical studies on steel scaffolds under eccentric loads. J. Constr. Steel Res. 2009, 65, 422–435. [Google Scholar] [CrossRef]
- Lee, H.D.; Won, J.-H.; Jang, N.-G.; Mha, H.-S.; Jeong, S.-C.; Kim, S. Experimental Study on Load Carrying Capacity Enhancement of System Supports Considering Full Installation of Bracing Members. Int. J. Steel Struct. 2020, 20, 2051–2067. [Google Scholar] [CrossRef]
- Park, S.I.; An, H.; Lee, J.-H. Analysis of Stability for System Supports Based on Damage Scenarios. Korea Inst. Struct. Maint. Insp. 2020, 24, 63. [Google Scholar] [CrossRef]
- Park, J.-S.; Ko, S.S.; Won, J.-H. Analysis of Allowable Strength of Reused Vertical Members of System Scaffolds and System Supports. J. Korean Soc. Saf. 2021, 31, 29–36. [Google Scholar] [CrossRef]
- Pieńko, M.; Błazik-Borowa, E. Numerical analysis of load-bearing capacity of modular scaffolding nodes. Eng. Struct. 2013, 48, 1–9. [Google Scholar] [CrossRef]
- Son, K.S.; Park, J.J. Structural analysis of steel pipe scaffolding based on the tightening strength of clamps. J. Asian Archit. Build. Eng. 2010, 9, 479–485. [Google Scholar] [CrossRef]
- Laleicke, P.F.; Cimino-Hurt, A.; Gardner, D.; Sinha, A. Comparative carbon footprint analysis of bamboo and steel scaffolding. J. Green Build. 2015, 10, 114–126. [Google Scholar] [CrossRef]
- Talim, M. Analysis of The Effect of Bending Strength on Scaffolding System with Direct Analysis Method. J. Mekintek J. Mek. Energi, Ind. Dan Teknol. 2021, 12, 65–68. [Google Scholar] [CrossRef]
- Su, L.; Fu, L. Analysis on the Stability of double-fastener type Tubular Scaffold. IOP Conf. Series Earth Environ. Sci. 2019, 330, 022083. [Google Scholar] [CrossRef]
- Son, K.-S.; Jong, J.H. An Experimental Study on the Behavior of Scaffolding System without a Part of Column. J. Korean Soc. Saf. 2013, 28, 66–71. [Google Scholar] [CrossRef]
- Cai, X.F.; Zhuang, J.P.; Tuo, M.B. Nonlinear Finite Element Analysis on Integral Forced Performance for Steel Tubular High Scaffold with Couplers. Adv. Mater. Res. 2011, 243–249, 1321–1325. [Google Scholar] [CrossRef]
- Bai, P.; Lu, W. The experimental research of plug-pin steel modular scaffold frame. In Proceedings of the 2010 International Conference on Mechanic Automation and Control Engineering, Wuhan, China, 26–28 June 2010; pp. 1170–1173. [Google Scholar] [CrossRef]
- Chandrangsu, T.; Rasmussen, K.J. Investigation of geometric imperfections and joint stiffness of support scaffold systems. J. Constr. Steel Res. 2011, 67, 576–584. [Google Scholar] [CrossRef]
- Wang, C.; Zhang, H.; Rasmussen, K.J.; Reynolds, J.; Yan, S. System reliability-based limit state design of support scaffolding systems. Eng. Struct. 2020, 216, 110677. [Google Scholar] [CrossRef]
- Peng, J.-L.; Ho, C.-M.; Chan, S.-L.; Chen, W.-F. Stability study on structural systems assembled by system scaffolds. J. Constr. Steel Res. 2017, 137, 135–151. [Google Scholar] [CrossRef]
- Dogan, E.; Yurdusev, M.A.; Yildizel, S.A.; Calis, G. Investigation of scaffolding accident in a construction site: A case study analysis. Eng. Fail. Anal. 2021, 120, 105108. [Google Scholar] [CrossRef]
- Soeiro, M.A.R.; Holanda, A.S.d.; Parente, E. Nonlinear analysis of steel scaffolds for shoring of concrete structures. REM-Int. Eng. J. 2017, 70, 19–26. [Google Scholar] [CrossRef]
- Cimellaro, G.P.; Domaneschi, M. Stability analysis of different types of steel scaffolds. Eng. Struct. 2017, 152, 535–548. [Google Scholar] [CrossRef]
- Rubio-Romero, J.C.; Gámez, M.C.R.; Carrillo-Castrillo, J.A. Analysis of the safety conditions of scaffolding on construction sites. Saf. Sci. 2013, 55, 160–164. [Google Scholar] [CrossRef]
- Błazik-Borowa, E.; Pieńko, M.; Robak, A.; Borowa, A.; Jamińska-Gadomska, P. Analysis of ledger-stand joints in the aluminum modular scaffold. Arch. Civ. Eng. 2017, 63, 17–31. [Google Scholar] [CrossRef]
- Park, J.; Lee, H.; Shin, W.; Kwon, Y.; Park, S.; Yang, S.; Jung, K. Structural Capacity Evaluation of System Scaffolding using X-Type Advanced Guardrail. J. Korean Soc. Saf. 2020, 35, 49–58. [Google Scholar] [CrossRef]
- Mehri, H.; Crocetti, R. Scaffolding bracing of composite bridges during construction. J. Bridge Eng. 2016, 21, 04015060. [Google Scholar] [CrossRef]
- Lee, K.-G.; Kim, W.-G.; Eum, S.-H.; Kang, C.-M.; Kang, J.-K.; Oh, C.-S.; Seo, J.-S.; Kim, K.-J.; Park, J.-I.; Jang, M.-Y. Research & Development on the Scaffolding for Cylindrical Desulfurizers Facility Maintenance. J. Korea Saf. Manag. Sci. 2020, 22, 1–8. [Google Scholar] [CrossRef]
- Robak, A.; Pieńko, M.; Błazik-Borowa, E.; Bęc, J.; Szer, I. Analysis of exploitation damages of the frame scaffolding. Proc. MATEC WebConf. 2019, 284, 08008. [Google Scholar] [CrossRef]
- Pieńko, M.; Robak, A.; Błazik-Borowa, E.; Szer, J. Safety conditions analysis of scaffolding on construction sites. Int. J. Civ. Env. Eng. 2018, 12, 72–77. [Google Scholar] [CrossRef]
- KICT. Design Standards for Scaffolding and Safety Facilities; Report No.: KDS 21 60 00; Ministry of Land, Infrastructure and Transport: Sejong, Korea, 2020.
- BS EN 12811-1:2003; Temporary Works Equipment-Part 1: Scaffolds-Performance Requirements and General Design. British Standard: Chiswick, London, 2003.
- ANSI/SSFI SC100-5/05; Standards for Testing and Rating Scaffold Assemblies and Components. American National Standard: Washington, DC, USA, 2002.
- BS EN 12811-3:2003; Temporary Works Equipment-Part 3: Load Testing. British Standard: Chiswick, London, 2003.
- System Frame Compression Test (Test Report); BSL Scaffolding USA: Houston, TX, USA, 2010.
- Won, B.H.; Yoon, K.W.; Jeon., S.S. Survey and Improvement Scheme for Safety Certification System of Temporary Equipment and Materials. Korea Acad. -Ind. Coop. Soc. 2016, 17, 97–102. [Google Scholar] [CrossRef]
- Kim, H.S.; Lim, J.H.; Won, J.H.; Kwon, J.H.; Kim, S.J. Suggestion of safety certification standards and performance evaluation methods for fabricated mobile scaffold in South Korea. Int. J. Environ. Res. Public Health 2022, 19, 133. [Google Scholar] [CrossRef] [PubMed]
- Kim, H.S.; Lim, J.H.; Lee, J.H.; Kang, Y.J.; Kim, S.J. Experimental Investigations on Ultimate Behavior of Fabricated Mobile Scaffolds. Metals 2021, 11, 851. [Google Scholar] [CrossRef]
- Bong, J.K.; Lee, H.D.; Kim, S.; Mha, H.-S.; Yim, D.-K.; Won, J.-H. Probabilistic Characteristics of Moment Capacity and Rotational Stiffness of Wedge Joints Used in Support Systems Reflecting Reused Members. Appl. Sci. 2019, 9, 4056. [Google Scholar] [CrossRef]
Disclaimer/Publisher’s Note: The statements, opinions and data contained in all publications are solely those of the individual author(s) and contributor(s) and not of MDPI and/or the editor(s). MDPI and/or the editor(s) disclaim responsibility for any injury to people or property resulting from any ideas, methods, instructions or products referred to in the content. |
© 2023 by the authors. Licensee MDPI, Basel, Switzerland. This article is an open access article distributed under the terms and conditions of the Creative Commons Attribution (CC BY) license (https://creativecommons.org/licenses/by/4.0/).


















