Quantifying Energy Reduction and Thermal Comfort for a Residential Building Ventilated with a Window-Windcatcher: A Case Study
Abstract
1. Introduction
2. Materials and Methods
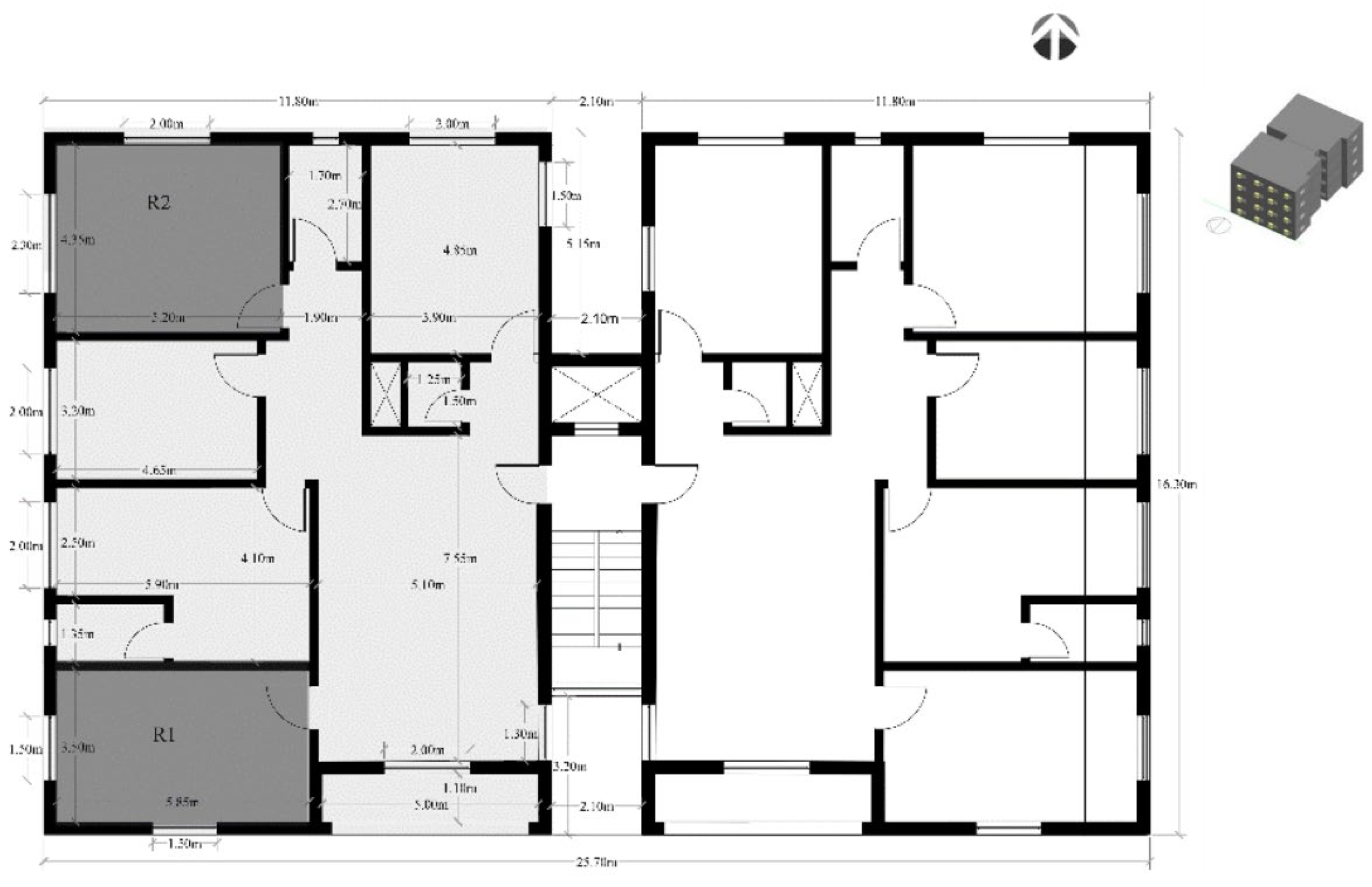
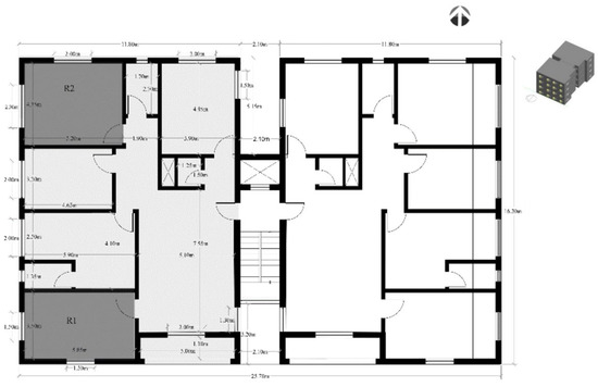
2.1. Case Study Description
2.2. Model Validation
3. Results
3.1. The Energy Performance of Each Unit of the Building
3.2. The Energy Performance of the Entire Building
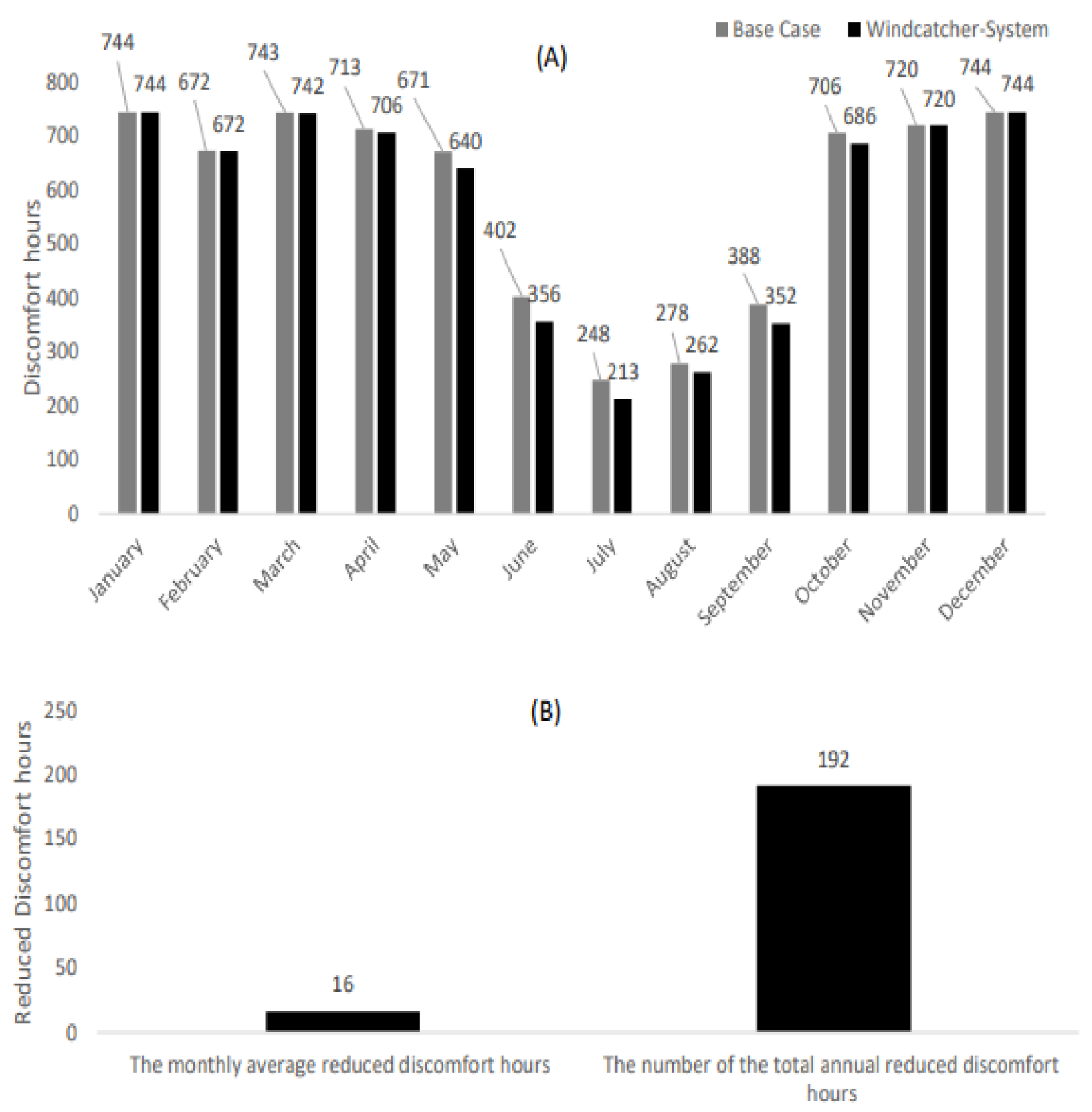
3.3. Thermal Comfort
4. Discussion
5. Conclusions
Author Contributions
Funding
Institutional Review Board Statement
Informed Consent Statement
Data Availability Statement
Conflicts of Interest
Nomenclature
| The monthly cooling energy consumption for the unit [kWh/month] | |
| The average monthly cooling energy consumption for the unit [kWh/month] | |
| The annual total cooling energy consumption for the unit [kWh/year] | |
| The energy reduction due to the window-windcatcher compared to the base case for the unit [kWh/month] | |
| The monthly cooling energy consumption for the entire building [kWh/month] | |
| The average monthly cooling energy consumption for the entire building [kWh/month] | |
| The monthly energy reduction due to the window-windcatcher compared to the base case for the entire building [kWh/month] | |
| The annual total cooling energy consumption for the unit [kWh/year] | |
| The standard deviation of the monthly cooling energy consumption from the average monthly cooling energy consumption for the unit [kWh/month] | |
| The standard deviation of the monthly cooling energy consumption from the average monthly cooling energy consumption for the entire building [kWh/month] |
References
- Lim, T.; Yim, W.S.; Kim, D.D. Evaluation of Daylight and Cooling Performance of Shading Devices in Residential Buildings in South Korea. Energies 2020, 13, 4749. [Google Scholar] [CrossRef]
- El-Darwish, I.; Gomaa, M. Retrofitting strategy for building envelopes to achieve energy efficiency. Alex. Eng. J. 2017, 56, 579–589. [Google Scholar] [CrossRef]
- Balaban, O.; Puppim de Oliveira, J.A. Sustainable buildings for healthier cities: Assessing the co-benefits of green buildings in Japan. J. Clean. Prod. 2017, 163, S68–S78. [Google Scholar] [CrossRef]
- Cruz, C.O.; Gaspar, P.; de Brito, J. On the concept of sustainable sustainability: An application to the Portuguese construction sector. J. Build. Eng. 2019, 25, 100836. [Google Scholar] [CrossRef]
- Granadeiro, V.; Duarte, J.P.; Correia, J.R.; Leal, V.M. Building envelope shape design in early stages of the design process: Integrating architectural design systems and energy simulation. Autom. Constr. 2013, 32, 196–209. [Google Scholar] [CrossRef]
- Méndez Echenagucia, T.; Capozzoli, A.; Cascone, Y.; Sassone, M. The early design stage of a building envelope: Multi-objective search through heating, cooling, and lighting energy performance analysis. Appl. Energy 2015, 154, 577–591. [Google Scholar] [CrossRef]
- Werner, S. European space cooling demands. Energy 2016, 110, 148–156. [Google Scholar] [CrossRef]
- Davies, M.; Oreszczyn, T. The unintended consequences of decarbonizing the built environment: A UK case study. Energy Build. 2012, 46, 80–85. [Google Scholar] [CrossRef]
- Dowd, R.M.; Mourshed, M. Low carbon Buildings: Sensitivity of Thermal Properties of Opaque Envelope Construction and Glazing. Energy Procedia 2015, 75, 1284–1289. [Google Scholar] [CrossRef]
- Košir, M.; Gostiša, T.; Kristl, Ž. Influence of architectural building envelope characteristics on energy performance in Central European climatic conditions. J. Build. Eng. 2018, 15, 278–288. [Google Scholar] [CrossRef]
- Gui, X.-C.; Ma, Y.T.; Chen, S.Q.; Ge, J. The methodology of standard building selection for residential buildings in hot summer and cold winter zone of China based on architectural typology. J. Build. Eng. 2018, 18, 352–359. [Google Scholar] [CrossRef]
- Su, B. The impact of passive design factors on house energy efficiency. Archit. Sci. Rev. 2011, 54, 270–276. [Google Scholar] [CrossRef]
- Wei, Y.; Ding, W. Building façade opening evaluation using integrated energy simulation and automatic generation programs. Archit. Sci. Rev. 2015, 58, 205–220. [Google Scholar]
- De Dear, R.J.; Leow, K.G.; Foo, S.C. Thermal comfort in the humid tropics: Field experiments in air conditioned and naturally ventilated buildings in Singapore. Int. J. Biometeorol. 1991, 34, 259–265. [Google Scholar] [CrossRef]
- Mohamad, A.; Becerik-Gerber, B.; Hoque, S.; O’Neill, Z.; Pedrielli, G.; Wen, J.; Wu, T. Ten questions concerning occupant health in buildings during normal operations and extreme events including the COVID-19 pandemic. Build. Environ. 2021, 188, 107480. [Google Scholar] [CrossRef]
- Gonçalo, M.; Ferreira, C.R.; Pitarma, R. Indoor Air Quality Assessment Using a CO2 Monitoring System Based on Internet of Things. J. Med. Syst. 2019, 43, 67. [Google Scholar] [CrossRef]
- Kaminska, A. Impact of Building Orientation on Daylight Availability and Energy Savings Potential in an Academic Classroom. Energies 2020, 13, 4916. [Google Scholar] [CrossRef]
- Jomehzadeh, F.; Nejat, P.; Calautit, J.K.; Yusof, M.B.M.; Zaki, S.A.; Hughes, B.R.; Yazid, M.N.A.W.M. A review on windcatcher for passive cooling and natural ventilation in buildings, Part 1: Indoor air quality and thermal comfort assessment. Renew. Sustain. Energy Rev. 2017, 70, 736–756. [Google Scholar] [CrossRef]
- Chen, W.-H.; You, F. Sustainable building climate control with renewable energy sources using nonlinear model predictive control. Renew. Sustain. Energy Rev. 2022, 168, 112830. [Google Scholar] [CrossRef]
- Rao, N.D.; Wilson, C. Advancing energy and well-being research. Nat. Sustain. 2022, 5, 98–103. [Google Scholar] [CrossRef]
- Chenari, B.; Carrilho, J.D.; da Silva, M.G. Towards sustainable, energy-efficient and healthy ventilation strategies in buildings: A review. Renew. Sustain. Energy Rev. 2016, 59, 1426–1447. [Google Scholar] [CrossRef]
- Ma’bdeh, S.N.; Al-Zghoul, A.; Alradaideh, T.; Bataineh, A.; Ahmad, S. Simulation study for natural ventilation retrofitting techniques in educational classrooms—A case study. Heliyon 2020, 6, e05171. [Google Scholar] [CrossRef]
- Qabbal, L.; Younsi, Z.; Naji, H. An indoor air quality and thermal comfort appraisal in a retrofitted university building via low-cost smart sensor. Indoor Built Environ. 2022, 31, 586–606. [Google Scholar] [CrossRef]
- Zhang, H.; Yang, D.; Tam, V.W.; Tao, Y.; Zhang, G.; Setunge, S.; Shi, L. A critical review of combined natural ventilation techniques in sustainable buildings. Renew. Sustain. Energy Rev. 2021, 141, 110795. [Google Scholar] [CrossRef]
- Ahmed, T.; Kumar, P.; Mottet, L. Natural ventilation in warm climates: The challenges of thermal comfort, heatwave resilience and indoor air quality. Renew. Sustain. Energy Rev. 2021, 138, 110669. [Google Scholar] [CrossRef]
- Al-Hemiddi, N.A.; Megren Al-Saud, K.A. The effect of a ventilated interior courtyard on the thermal performance of a house in a hot–arid region. Renew. Energy 2001, 24, 581–595. [Google Scholar] [CrossRef]
- Reyes, V.A.; Moya, S.L.; Morales, J.M.; Sierra-Espinosa, F.Z. A study of air flow and heat transfer in building-wind tower passive cooling systems applied to arid and semi-arid regions of Mexico. Energy Build. 2013, 66, 211–221. [Google Scholar] [CrossRef]
- Fawwaz Alrebei, O.; Obeidat, L.M.; Ma’bdeh, S.N.; Kaouri, K.; Al-Radaideh, T.; Amhamed, A.I. Window-Windcatcher for Enhanced Thermal Comfort, Natural Ventilation and Reduced COVID-19 Transmission. Buildings 2022, 12, 791. [Google Scholar] [CrossRef]
- De la Torre, S.; Yousif, C. Evaluation of chimney stack effect in a new brewery using DesignBuilder-EnergyPlus software. Energy Procedia 2014, 62, 230–235. [Google Scholar] [CrossRef][Green Version]
- Taleb, H.M.; Sharples, S. Developing sustainable residential buildings in Saudi Arabia: A case study. Appl. Energy 2011, 88, 383–391. [Google Scholar] [CrossRef]
- Baharvand, M.; Hamdan, A.; Abdul, M. DesignBuilder verification and validation for indoor natural ventilation. J. Basic Appl. Sci. Res. JBASR 2013, 3, 8. [Google Scholar]
- Bangalee, M.Z.I.; Miau, J.J.; Lin, S.Y. Computational techniques and a numerical study of a buoyancy-driven ventilation system. Int. J. Heat Mass Transf. 2013, 65, 572–583. [Google Scholar] [CrossRef]
- Mabdeh, S.; Ahmad, S.; Alradaideh, T.; Bataineh, A. Low-cost ventilation strategies to improve the indoor environmental quality by enhancing the natural ventilation in multistory residential buildings. Period. Eng. Nat. Sci. PEN 2020, 8, 2045–2067. [Google Scholar]
- Fawwaz, A.O.; Obeidat, B.; Abdallah, I.A.; Darwish, E.F.; Amhamed, A. Airflow dynamics in an emergency department: A CFD simulation study to analyse COVID-19 dispersion. Alex. Eng. J. 2022, 61, 3435–3445. [Google Scholar] [CrossRef]
- Bushra, O.; Alrebei, O.F.; Abdallah, I.A.; Darwish, E.F.; Amhamed, A. CFD Analyses: The Effect of Pressure Suction and Airflow Velocity on Coronavirus Dispersal. Appl. Sci. 2021, 11, 7450. [Google Scholar]
- Erdem, C.; Sher, F.; Sadiq, H.; Cuce, P.M.; Guclu, T.; Besir, A.B. Sustainable ventilation strategies in buildings: CFD research. Sustain. Energy Technol. Assess. 2019, 36, 100540. [Google Scholar]
- Giannissi, S.G.; Hoyes, J.R.; Chernyavskiy, B.; Hooker, P.; Hall, J.; Venetsanos, A.G.; Molkov, V. CFD benchmark on hydrogen release and dispersion in a ventilated enclosure: Passive ventilation and the role of an external wind. Int. J. Hydrogen Energy 2015, 40, 6465–6477. [Google Scholar] [CrossRef]
- Guo, W.; Liang, S.; He, Y.; Li, W.; Xiong, B.; Wen, H. Combining EnergyPlus and CFD to predict and optimize the passive ventilation mode of medium-sized gymnasium in subtropical regions. Build. Environ. 2022, 207, 108420. [Google Scholar] [CrossRef]
- Calautit, J.K.; O’Connor, D.; Tien, P.W.; Wei, S.; Pantua, C.A.J.; Hughes, B. Development of a natural ventilation windcatcher with passive heat recovery wheel for mild-cold climates: CFD and experimental analysis. Renew. Energy 2020, 160, 465–482. [Google Scholar] [CrossRef]
- O’Connor, D.; Calautit, J.K.S.; Hughes, B.R. A review of heat recovery technology for passive ventilation applications. Renew. Sustain. Energy Rev. 2016, 54, 1481–1493. [Google Scholar] [CrossRef]
- Lechowska, A.; Szczepanik-Ścisło, N.; Schnotale, J.; Stelmach, M.; Pyszczek, T. CFD modelling of transient thermal performance of solar chimney used for passive ventilation in a building. In IOP Conference Series: Materials Science and Engineering; IOP Publishing: Bristol, UK, 2018; Volume 415, p. 012049. [Google Scholar]
- Flaga-Maryanczyk, A.; Schnotale, J.; Radon, L.; Was, K. Experimental measurements and CFD simulation of a ground source heat exchanger operating at a cold climate for a passive house ventilation system. Energy Build. 2014, 68, 562–570. [Google Scholar] [CrossRef]
- Luo, Z.; Li, Y. Passive urban ventilation by combined buoyancy-driven slope flow and wall flow: Parametric CFD studies on idealized city models. Atmos. Environ. 2011, 45, 5946–5956. [Google Scholar] [CrossRef]











| Element | Material | Thickness (cm) | U Value (W/m2 K) |
|---|---|---|---|
| External walls | Stone | 5 | 0.79 |
| Concrete | 10 | ||
| Insulation | 3 | ||
| Concrete Block | 10 | ||
| Plaster | 2 | ||
| Internal partitions | Plaster | 2 | 1.90 |
| Concrete Block | 10 | ||
| Plaster | 2 | ||
| Internal Floor | Ceiling Tiles | 0.3 | 1.20 |
| Mortar | 3 | ||
| Sand | 7 | ||
| Water insulation | 0.5 | ||
| Reinforced Concrete | 25 | ||
| Plaster | 2 | ||
| Roof | Gravel | 3 | 1.30 |
| Inclined Concrete | 5 | ||
| Water insulation | 0.5 | ||
| Reinforced Concrete | 20 | ||
| Plaster | 2 | ||
| Windows | Aluminum Frame with a single glazing system | 0.6 | 5.70 |
| Parameter | Value | Type of Value |
|---|---|---|
| Family Size | 6 members | Constant |
| Metabolic rate | 0.8 met | Average |
| Summer clothing | 0.5 clo | Constant |
| Infiltration Rate | 0.26 ach | Constant |
| Occupants | 80 W/person | Constant based on operation schedule |
| Lighting | 5 W/m2 | Constant based on operation schedule |
| Appliances | 10 W/m2 | Constant based on operation schedule |
| Winter Clothing | 1.0 clo | Constant |
Disclaimer/Publisher’s Note: The statements, opinions and data contained in all publications are solely those of the individual author(s) and contributor(s) and not of MDPI and/or the editor(s). MDPI and/or the editor(s) disclaim responsibility for any injury to people or property resulting from any ideas, methods, instructions or products referred to in the content. |
© 2022 by the authors. Licensee MDPI, Basel, Switzerland. This article is an open access article distributed under the terms and conditions of the Creative Commons Attribution (CC BY) license (https://creativecommons.org/licenses/by/4.0/).
Share and Cite
Nouh Ma’bdeh, S.; Fawwaz Alrebei, O.; Obeidat, L.M.; Al-Radaideh, T.; Kaouri, K.; Amhamed, A.I. Quantifying Energy Reduction and Thermal Comfort for a Residential Building Ventilated with a Window-Windcatcher: A Case Study. Buildings 2023, 13, 86. https://doi.org/10.3390/buildings13010086
Nouh Ma’bdeh S, Fawwaz Alrebei O, Obeidat LM, Al-Radaideh T, Kaouri K, Amhamed AI. Quantifying Energy Reduction and Thermal Comfort for a Residential Building Ventilated with a Window-Windcatcher: A Case Study. Buildings. 2023; 13(1):86. https://doi.org/10.3390/buildings13010086
Chicago/Turabian StyleNouh Ma’bdeh, Shouib, Odi Fawwaz Alrebei, Laith M. Obeidat, Tamer Al-Radaideh, Katerina Kaouri, and Abdulkarem I. Amhamed. 2023. "Quantifying Energy Reduction and Thermal Comfort for a Residential Building Ventilated with a Window-Windcatcher: A Case Study" Buildings 13, no. 1: 86. https://doi.org/10.3390/buildings13010086
APA StyleNouh Ma’bdeh, S., Fawwaz Alrebei, O., Obeidat, L. M., Al-Radaideh, T., Kaouri, K., & Amhamed, A. I. (2023). Quantifying Energy Reduction and Thermal Comfort for a Residential Building Ventilated with a Window-Windcatcher: A Case Study. Buildings, 13(1), 86. https://doi.org/10.3390/buildings13010086

