Next Article in Journal
Inquiry on Perceptions and Practices of Built Environment Professionals Regarding Regenerative and Circular Approaches
Previous Article in Journal
Viscoelastic Solutions and Investigation for Creep Behavior of Composite Pipes under Sustained Compression
 
 
Font Type:
Arial Georgia Verdana
Font Size:
Aa Aa Aa
Line Spacing:
Column Width:
Background:
Article

Cyclic Evaluation of Exterior Beam-to-Column Connections for Intelligent Accelerated Construction of Industrial Facilities

1
Guangzhou Engineering Contractor Group Co., Ltd., Guangzhou 510310, China
2
State Key Laboratory of Subtropical Building Science, South China University of Technology, Guangzhou 501641, China
*
Author to whom correspondence should be addressed.
Buildings 2023, 13(1), 62; https://doi.org/10.3390/buildings13010062
Submission received: 27 November 2022 / Revised: 18 December 2022 / Accepted: 23 December 2022 / Published: 27 December 2022
(This article belongs to the Section Construction Management, and Computers & Digitization)

Abstract

The rapid development towards automated construction has been witnessed in recent years mainly due to the growing shortage of skilled labor. Against that backdrop, an accelerated method, with the aid of robotic cranes, is emerging in China to speed up the construction of industrial facilities such as warehouse structures. This method requires that the steel bars in the precast beams do not extend beyond the beam ends to facilitate the temporary fixation of the robotic crane at the top of cast-in-place columns. This, nonetheless, brings a series of new problems, one of which is how to choose a suitable anchoring type for the beam bottom bars. To address this issue, three large-scale exterior beam-to-column connections were fabricated and tested under lateral load reversals. Two anchorage forms, namely, mechanical splices and grouted sleeves, were adopted and compared with the monolithically cast specimen. The test results showed that the specimen using the grouted sleeves had similar seismic performance to that of the cast-in-place specimen, whereas the specimen using the mechanical splices presented significant post-peak deterioration under positive beam bending moments. This happened because the congestion of steel bars within the joint core made it difficult to fully tighten the beam bottom bars into the threaded couplers; consequently, a “slop” was formed which could substantially impair the cyclic behavior of the specimen. As such, it is suggested that grouted sleeves should be more applicable and reliable for the new construction method. This counter-intuitive finding also indicates that, for intelligent construction, no detail should be taken for granted, but rather needs due consideration.

1. Introduction

In stark contrast to the low productivity of the construction sector relative to other sectors, the strong demand for new constructions is one of the major challenges that all civil engineering departments, firms and engineers have to face. Furthermore, the increasing scarcity of natural resources, low level of automation in design and construction, and lack of labor force are putting the sector in an unsustainable predicament [1,2,3,4].
Under such circumstances, the industry must undergo fundamental changes. One solution is to espouse the importance of the adoption of prefabrication in construction so as to achieve sustainable development. The advantages of prefabrications have long been recognized [5,6,7,8,9,10]: high cost-efficiency, powerful mass production, and replaceability in case of severe damage. Since prefabricated structures are produced under factory-controlled conditions, they benefit from better and standardized material quality, precise geometry, and lower cost compared to cast-in-place structures. Additionally, precasting reduces weather-related holdups and is cleaner because it eliminates the need for on-site casting and curing. The use of prefabricated elements also reduces health and safety risks by reducing on-site workmanship. Moreover, shrinkage and creep of prefabricated components occur mainly during factory production. In general, by reducing waste emissions, prefabricated buildings offer greater energy efficiency and sustainability compared to traditional monolithic systems.
Of a precast structural system, the beam-to-column connections are the most vulnerable part, susceptible to extensive damage under seismic events [11]. For this reason, considerable research studies have been conducted to better understand the complex behavior of these connections in precast concrete structures [12]. In recent years, the precast industry has also attempted to develop imaginative new connections that would perform well during an earthquake [13].
For example, French et al. [14] have conducted extensive cyclic tests on various precast connections. They found that, although the plastic hinge was forced to develop within the connection region, the specimens still exhibited ductility and energy dissipation characteristics similar to those of ordinary monolithically cast elements. Through experimentation, Soubra et al. [15] highlighted the superiority of using fiber-reinforced concrete in critical regions of precast frames; they demonstrated that the alternative measure can dramatically improve the specimens’ cyclic behavior—displacement ductilities even up to 6.0 were achieved. Choi et al. [16] developed a new wet precast connection which uses steel plates to realize joint continuity and consequently obtains improved seismic performance. Lago et al. [17] demonstrated the viability of an innovative dry-assembled precast structural system with special mechanical connection devices. Senturk et al. [18] developed a novel monolithic-like precast connection using bolted plates. The new connection system is easy to assemble and exhibits considerably higher (up to 34%) ductility and ultimate deformability compared with the monolithic connections. Correal et al. [19] found that the precast connections in one-story industrial facilities designed as per modern ACI codes have good seismic resistance and can resist a lateral drift ratio of at least 3.5%. Recently, some innovative hybrid precast connections have also been developed and their adequate seismic performance has been well illustrated [20,21,22,23,24].
According to [25], the degree of automation in precast constructions is more advanced than any other part of the construction sector. Indeed, the integration of automation and robotics into precast constructions holds promise for sustainable performance in terms of increased construction efficiency, waste reduction, improved workplace safety and enhanced intelligent living environments [26].
Against this background, an accelerated construction method using robotic cranes developed for industrial facilities, such as warehouse structures, is emerging in China. As shown in Figure 1, the structure demonstrated is “semi-precast” in that the columns are cast in situ while the beams are prefabricated in plant. Most notably, the lifting of the precast beams can be greatly accelerated with the help of a robotic crane shown in the figure. The robotic crane can move as needed over the cast-in-place columns. It is temporarily fixed to the top of four erected columns during operation. After being lifted the precast beams are placed on the erection corbels (Figure 1).
This construction method substantially increases the hoisting speed, which is especially suitable for large industrial buildings. However, it requires that the longitudinal steel bars of the precast beams do not extend out of the beam ends, so as to facilitate the temporary connection between the crane’s crawling feet and the top surface of the erected columns.
After the crane has walked away, headed reinforcement is used within the joint core to anchor the bottom rebars of the precast beams as well as their top rebars in place, as illustrated in Figure 2a. Then the joint, the upper column, and the remaining part of the beams are cast at the job site, as shown in Figure 2b.
For the beam bottom bars, they can be connected to the headed reinforcement by different splicing methods. Despite different types of proposed new precast connection [16,17,18,19,20,21,22,23,24], the most practical methods are to use mechanical couplers or grouted sleeves. However, which connection approach is better is a question. Mechanical couplers are commonly used to connect reinforcing bars, but it is not clear whether they can work in areas densely reinforced with rebars (such as within beam–column joints). Grouted sleeves are the primary forms of rebar connection in precast structures, yet there are often concerns about their construction quality.
To seek out the most suitable way of connecting the headed reinforcement with the beam bottom bars, three large-scale exterior beam–column connections were fabricated and tested under cyclic loading. Two specimens using different bar splicing methods (i.e., mechanical couplers or grouted sleeves) were compared with the control cast-in-place specimen. Test results enabled thorough examination of the seismic performance of the exterior connections in terms of stiffness, strength, and energy dissipation. The potential defects of the mechanical splicing method were pointed out, thus providing design insights and ensuring safety of the semi-precast constructions.

2. Test Program

2.1. Specimen Design

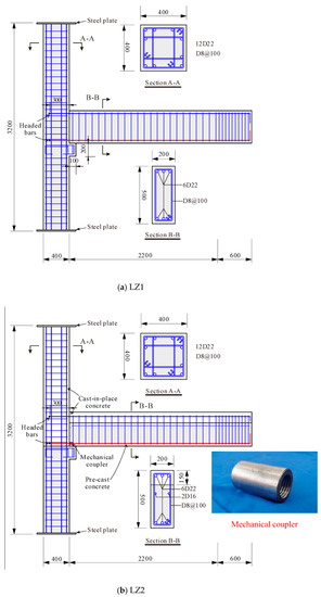
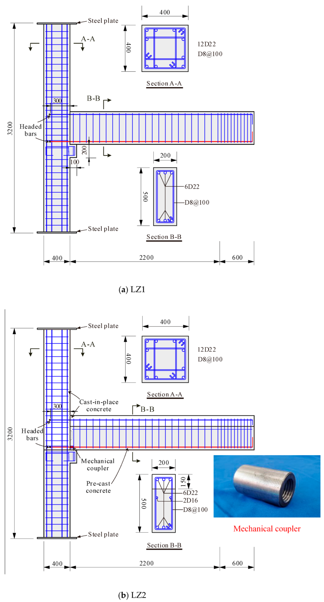
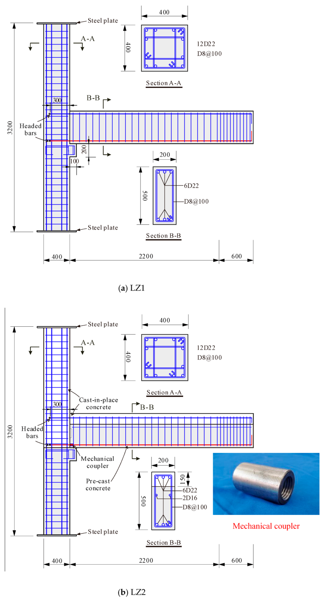
Three large-scale T-shaped exterior beam-to-column connections were constructed in this study. One of them was a cast-in-place specimen (designated as LZ1), whereas the other two were semi-precast units, constructed in the way just depicted in Figure 2. The two semi-precast specimens adopted mechanical couplers or grouted sleeves to connect beam bottom bars and headed reinforcement in the joint region; they are designated as LZ2 and LZ3, respectively. All the specimens shared the same geometry and dimensions, as detailed in Figure 3. The beam of each specimen was 2800 mm long (measured from the beam tip to the beam–joint interface) with a cross-section of 200 mm × 500 mm. The upper and lower columns were of the identical length, each measuring 1350 mm. They also had the same cross-sections, being 400 mm square. An erection corbel was set on the top of the lower column for easing the seating of the precast beam. The corbel’s height was 200 mm; it extended 100 mm out of the inner edge of the lower column.
The three specimens were reinforced in exactly the same manner. Three D22 longitudinal bars were placed at the top and bottom of the beam, along with D8 stirrups set at 100 mm c/c spacing (this spacing was reduced to 50 mm near to the beam loading point). The stirrups were closed with 135° bends and 10 bar-diameter extensions to comply with the current concrete design code [27]. The longitudinal reinforcement of the column comprised twelve D22 bars symmetrically distributed around the perimeter of the column section. To meet the minimum requirement for transverse reinforcement in joint and adjacent column regions, D8 hoops at a spacing of 100 mm were placed throughout the column (Figure 3), which provided four legs acting in either direction.
LZ1, a monolithic specimen constructed without cold joints, was used as a control specimen (Figure 3a). For LZ2 and LZ3, three mechanical couplers and half-grouted sleeves were, respectively, used to splice the headed bars and the beam bottom bars (Figure 3b,c). The embedded length of the headed bars for LZ1 through LZ3 was 300 mm (=13.6db, where db is the bar diameter), and the area ratio of the rounded head to the bar, Ah/Ab, was 4.8. These values of the embedded length and the Ah/Ab ratio satisfied the recommendations of Wallace et al. [28] (the suggested values were 12db and 4.0, respectively). As such, the pull-out failure of the headed bars was not anticipated. In addition, the anchorage of the headed bars left a 100 mm back cover behind the outer edge of the heads, being sufficient to prevent the breakout failure of column concrete cover when the headed bars were in compression [28,29].
All the three specimens were designed based on the strong column–weak beam principle [30]; the column to beam moment strength ratio was 2.75 (the required ratio per ACI 318-19 [31] is 1.4). Consequently, flexural hinging was expected to occur in the beam adjacent to the column face. This situation enabled comparison of the efficacy of the two different reinforcement splicing methods.

2.2. Material Properties and Specimen Fabrication

C45 grade concrete (with the nominal cubic strength equal to 45 MPa) was used for the specimens. Specifically, the actual cubic compressive strength of the concrete used for the precast part of the specimens was measured as 44.1 MPa at the test period, while the corresponding value for the cast-in-situ parts was 49.9 MPa. High-strength cementitious grouting material (101.2 MPa) was used to fill the half-grouted sleeves.
The measured tensile strengths of the steel bars used in this study are listed in Table 1. The tensile capacity of the couplers and sleeves specified by manufacturers was in excess of 1.5~2.0 times the yield strength of the D22 steel bars. Therefore, those connectors should not experience failure during the tests.
Each specimen was equipped with two 20 mm thick steel plates, fixed at the column ends by welding them to the longitudinal bars. LZ1 was cast monolithically in one go, while LZ2 and LZ3 were manufactured according to the process shown in Figure 2.

2.3. Test Setup, Instrumentation, and Loading Protocol

Figure 4 shows the test setup used in this study. Each specimen was loaded in this statically determinate test rig with the column in a lying position; that is, each specimen was rotated 90 degrees to accommodate the setup. The column was pin-supported at both ends, while a MTS actuator was installed at the top of the (vertical) beam to apply (cyclic) lateral loading. The pin-to-pin distance of the column was 3700 mm.
A series of linear variable displacement transducers (LVDTs) and strain gauges were arranged within and around the joint core to measure the beam and column rotations (including the curvatures at the beam–joint interface; see the inset of Figure 4), joint shear deformation, and strains in the reinforcement.
Prior to applying the lateral load, a manually controlled axial load of 0.3Agfc′ (=1609 kN) was applied to the column. Then, the specimens were tested under a displacement-controlled cyclic load history based on the loading protocol defined in ACI 374.1-05 [32], which consisted of three cycles of push and pull for each drift amplitude (± %): 0.1, 0.25, 0.50, 0.75, 1.0, 1.5, 2.0, 2.5, 3.0, 3.5, and 4.0. The cycles were controlled quasi-statically (0.3 to 1.5 mm/s). Testing continued until the lateral load decreased by more than 15% of the maximum measured force. A data acquisition system was used to store all the data.

3. Test Results

3.1. General Observations

As expected, all three specimens developed beam hinging failure and behaved in a ductile manner, with the exception of LZ2 when it was subjected to beam upward loading (a positive beam moment was generated under this condition and then the beam bottom bars and the connectors were in tension).
Figure 5 shows the progression of cracks observed in each specimen at different drift ratios, where the drift ratio was defined as the deflection at the beam loading point, Δ, divided by the distance from the point to the center line of the column, Lc (=2800 mm; c.f. Figure 4). Based on inspections during the course of testing, the damage progression of the test specimens can be summarized as follows:
For LZ1, evenly distributed hairline flexural cracks initiated in the beam by a drift ratio of 0.25%. No significant cracking at the beam–joint interface was observed. As the specimen was loaded cyclically, cracks on one side of the beam (top or bottom) opened while those on the other side closed, and then vice versa. When the drift ratio attained 0.75%, a small diagonal crack emanating from the top surface of the corbel was captured. Flexural cracks also occurred at the junction between the beam top and the joint. With further loading, no distress was found within the joint region, but the damage to the specimen was concentrated gradually at the beam hinging area, especially at the bottom of the beam out of the corbel. Finally, the concrete in this region was severely crushed (Figure 6a), signifying a complete failure of LZ1.
In the case of LZ2 using mechanical couplers, the incipient cracking was similar to that of LZ1 prior to the drift ratio of 0.75%. However, small flexural cracks appeared at the junction between the precast part and the cast-in-place part of the beam. Afterwards, the upper and lower cracks at the beam–joint interface were coalesced and widened. However, the joint core remained intact throughout the testing. Beyond a drift ratio of 1.0%, an abrupt loss in strength was witnessed when upward (positive) loading was applied to the beam. Yet the specimen was still able to sustain successive cycling and the resistance was kept and even increased under beam downward loading. This continued until a positive drift ratio of 2.5% was arrived at. At this point, the beam had softened completely, as evidenced by a drop in strength of 90% in the positive loading direction. The cause of such a failure was speculated to be related to the pull-out failure of the beam bottom bars or the joint headed bars under beam upward loading, which will be discussed later.
As to LZ3 with grouted sleeves, its damage progression resembled that of LZ1. Flexural cracks developed during positive and negative drift excursions. There was no sign of damage within the joint core. The specimen ended up failing due to the major crushing of the concrete in the plastic hinge region of the beam.
Figure 6 presents the photographs of the specimens after the completion of testing. For LZ1 and LZ3, the failure pattern near the beam–joint interface clearly confirmed the description by Englekirk [13]: “The Achilles heel of a properly conceived concrete ductile frame beam has always been the toe (no pun intended) of the frame beam.”
Unlike LZ1 and LZ3, no concrete crushing was observed in LZ2 (Figure 6b). Nevertheless, in LZ2 a very wide vertical crack exhibited at the junction between the beam and the joint. Moreover, the lower part of the crack close to the corbel was obviously wider than the upper part. This phenomenon was probably induced by the significant slippage of the reinforcing bars here under the action of beam positive bending. Presumably, the reinforcing bars had been pulled out of the mechanical couplers. Later explorations will corroborate this conjecture.
Note that the presence of the corbel arrested the damage in the beam end compression zone under negative bending. This was why the beam crushed region was either shifted outside the corbel (LZ1) or more severe on the top of the beam end (LZ3).

3.2. Global Load–Displacement Response

Table 2 lists the main results of the current tests (including the characteristic loads and displacements). The global load–displacement (VbΔ) relationships measured at the beam tip are shown in Figure 7; Vb here denotes the lateral load acting on the beam.
For LZ1, the hysteresis loops were overall symmetric. No significant pinching was found, and the specimen represented typical flexural failure mode. A drift ratio of 4.0% was achieved for LZ1, then the load declined under negative loading, which was associated with the beam concrete crushing as described previously.
For LZ3, its hysteresis loops matched qualitatively well with those of LZ1. However, the displacement at the peak load, Δp, of LZ3 was less than that of LZ1 and when the specimen was loaded toward +4.0% drift ratio, the resistance abruptly dropped off, due primarily to the concrete crushing at the beam end.
LZ2, however, presented a completely different hysteretic behavior. When the positive drift reached 27.7 mm (1.0% drift ratio), the load-bearing capacity of the specimen declined dramatically and unexpectedly, and only 12% of the capacity remained at 2.5% drift ratio. The specimen still reserved a considerable strength in the negative loading direction though, which made the positive and negative responses totally asymmetric, and a strong pinching was also clearly observed.
Figure 8 compares the skeleton curves of the specimens. Clearly, the skeleton curve of LZ3 was similar to that of LZ1, because of their similar flexural failure mode. This was also indicative of the comparable load–displacement capacity of the cast-in-situ specimen and the semi-precast specimen using grouted sleeves. In addition, according to [18], a beam–column connection can be considered to have good seismic performance if it can sustain at least a 3.5% drift ratio with a maximum 25% load-bearing capacity loss. Apparently, both LZ1 and LZ3 met this performance criterion.
The skeleton curve of LZ2 shows an obvious post-peak strength decay in the positive loading direction. As stated, this was thought to be induced by the pull-out failure of the joint bottom headed bars or the beam bottom bars. However, in the negative loading direction, the skeleton curve of LZ2 almost coincided with that of LZ1. This suggests that the mechanical couplers could still effectively transfer forces under compression.

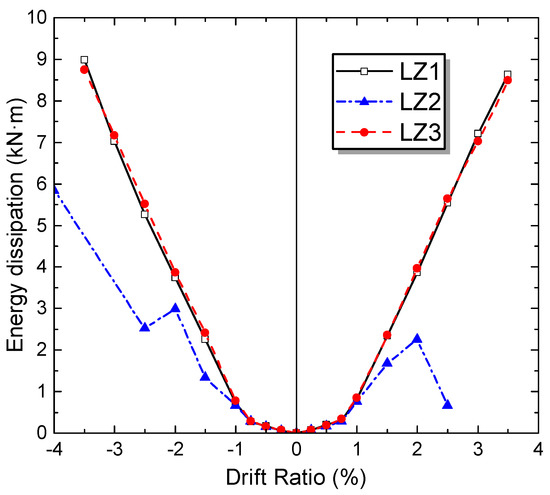
3.3. Energy Dissipation and Secant Stiffness Degradation

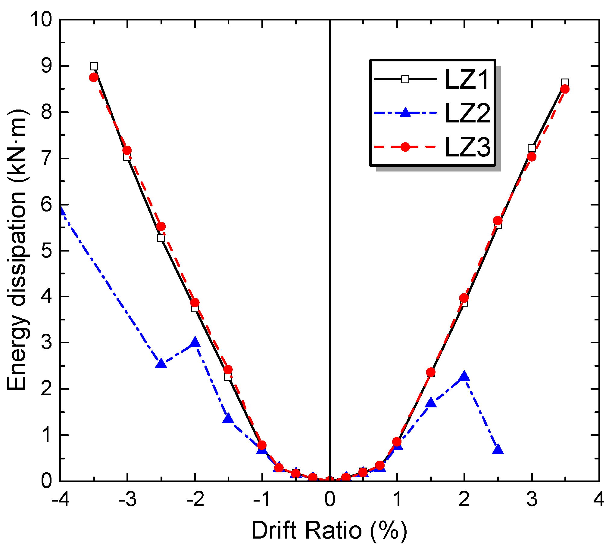
Figure 9 compares the energy dissipation of the specimens at different drift ratios. As can be seen, LZ3′s energy absorbing capacity agreed well with that of LZ1. This again demonstrated the viability of using grouted sleeves as a bar splicing solution. LZ2′s energy absorbing capacity correlated tightly with those of LZ1 and LZ3 before the drift ratio of 1.0%, but beyond that the former showed a decreased capacity to dissipate energy, especially in the positive direction. This can be ascribed to the pull-out failure as aforementioned.
Figure 10 shows comparisons of the secant stiffness degradation between the specimens. Obviously, had the pull-out failure not occurred in LZ2, the stiffness degradation of the three specimens could have been very similar.

3.4. Strain Response

Figure 11 shows the strain profiles along the beam bottom bars near the beam–joint interface under positive loading for the three specimens. These strains were important because they could provide useful information about bar slippage [33]. If the adjacent strains of a bar recorded between two successive drifts remain the same or decrease, it signals the occurrence of pull-out of the bar [34].
As can be seen, the strains of LZ1 and LZ3 could increase steadily along the embedded length, whereas the strains at B1~B4 of LZ2 decreased after a drift ratio of 1.5%. This implied that slip had taken place in the key regions of LZ2. This also explained why LZ2 exhibited poor seismic performance under positive loading.

3.5. Drift Contributions

The LVDT instrumentation, as illustrated in Figure 12, was set to record the major contributions from different assembly components to the beam overall lateral drifts. The five drift contributions were: (1) the column elastic flexural deformation; (2) the joint shear deformation; (3) the beam flexural deformation outside the beam hinge; (4) the beam flexural deformation within the beam hinge; and (5) the beam–joint (B-J) interface rotation.
As can be seen, the drift contributions from the different assembly components of LZ1 and LZ3 were overall similar. The contributions from the column and joint deformations were minor and not relevant, which was consistent with the experimental observation that the column and joint were in an intact state. The primary deformation contributions came from the beam bending deformation and the rotations at the B-J interface. Note that the rotation at the B-J interface included the slip of reinforcement and the opening of flexural cracks at the interface.
Remarkably, even at a drift ratio of only 1.5%, the B-J interface rotation contribution recorded 69% for LZ2, which was almost twice that of LZ1 and LZ3. This further confirmed a significant B-J interface slip had occurred in LZ2.

4. Post-Test Check and Discussion

4.1. A Close-Up View of LZ-2

The failure of LZ-2 was unexpected. As an afterthought, it should be attributed to the use of the mechanical couplers in LZ-2. In an attempt to elucidate the genesis of the failure of LZ-2, the specimen was broken apart after testing to check the embedded reinforcing bars and the threaded couplers. Figure 13 shows a close-up view of the disassembled LZ-2. Apparently, the lengths of the bottom headed bars anchored into the couplers were different, which eventually induced the bar pull-out failure, an exact cause of the significant degradation of the seismic performance of LZ2 under positive loading. This unfavorable pull-out failure was probably due to the steel congestion in the joint core, which prevented the tightening of the headed bars, resulting in a “slop” between the couplers and the headed bars.

4.2. Tensile Behavior of Different Bar Connectors

To further examine the tensile performance of different bar connectors, a test rig was designed to carry out tensile experiments on the threaded couplers and grouted sleeves after the cyclic tests, as shown in Figure 14. Two D22 steel deformed bars (the same as the beam bottom bars) were screwed into the coupler or sleeve, with their upper and lower ends clamped. Two LVDTs were arranged on the left and right sides of the connector to measure the vertical elongation of the whole assembly. The elongation was then divided by the gauge length to obtain the tensile strain of each specimen.
Figure 15 shows the tensile stress–strain curves obtained for different bar splicing methods, along with that of the bare steel bars. In this figure, “MC1” represents that two steel bars joined in the coupler were torqued such that the bars were bearing against each other (i.e., a snug-tight condition), “MC2” means that one bar was fully tightened whereas another was only screwed in 2/3 of the length it should be, “MC3” represents that one bar was fully fastened whereas another was secured in 1/2 of the length it should be. The three cases were set up to investigate the influence of the tightness of the steel bars in the mechanical coupler on the overall tensile stress–strain behavior.
From the results of Figure 15, it can be seen that the tensile stress–strain curve of the grouted sleeve was almost coincident with that of the bare steel bars. This explained why the seismic performance of LZ-3 was close to that of LZ-1.
On the other hand, with the reduction of the length of steel bars in the coupler, the resulting tensile performance appeared drastically degraded. In the cases of “MC2” and “MC3”, the maximum tensile loads were not even half of the yield strength of the steel bar. This fully demonstrated the high sensitivity of the couplers to the degree of bar tightness. Therefore, the mechanical couplers should be used cautiously in areas with dense reinforcement. In comparison, with regard to the new semi-precast construction method discussed here, using half-grouted sleeves is more recommended for connecting beam bottom bars and joint headed reinforcement.
It is noteworthy that in French et al.’s study [14], it was also found that, in a precast connection specimen using ordinary threaded couplers, large slippages were captured between the reinforcement and the couplers. This phenomenon was confirmed in the current study. To eliminate such kinds of slip, taper-threaded splices were recommended by French et al. [14]. Specifically, threads were mechanically cut on the rebar to eliminate “slop” between the bar and the splice. As a result, the bar slippage was eliminated, and the threaded rebar connections with taper-threaded splices exhibited favorable seismic performance. This solution appeared to be more reliable than using ordinary rebar couplers, holding promise for use in regions of moderate to high seismicity [14].

5. Conclusions

In a new construction method for semi-precast industrial facilities, the steel bars in precast beams are required not to protrude from the beam ends to facilitate the temporary fixation of robotic cranes. This leaves engineers with the problem of choosing the form of connection between beam bottom bars and headed reinforcement in joints. To address this question, three large-scale exterior beam–column connections were fabricated and tested. A detailed account of the cyclic behaviors of the specimens is presented in this paper. From the obtained results the following conclusions can be drawn:
(1) The precast connection using half-grouted sleeves showed ductile seismic performance, being almost as good as its cast-in-place counterpart. A drift ratio of 3.5% could be attained, and the specimen exhibited beam hinging failure without significant beam bar slip. Therefore, the use of the combination of headed bars and half-grouted sleeves is recommended by the writers to facilitate the mechanical anchorage of the bottom steel reinforcement in the precast beam;
(2) The failure of the precast connection using mechanical couplers was not expected. A wide beam–joint interface crack was observed. Furthermore, the specimen showed sudden load shedding in the positive loading direction (i.e., when the beam upward loading was applied), resulting in substantial reductions in the post-peak strength and energy dissipation capacities. Despite being easy to install, the use of the ordinary threaded couplers cannot emulate the cyclic behavior of the cast-in-place connections. Consequently, the use of these couplers should be restricted for the new construction method, and this is especially true in high-intensity seismic regions;
(3) As revealed by this study, as loads were cycled, the reinforcement was worked back and forth in the ordinary couplers such that the bars were no longer in bearing, thus inducing tensile slippage of the reinforcement relative to the coupler. When the steel bars are not fully tightened, the tensile strength of the coupler connection may be reduced by half. According to previous studies, the threaded rebar connection with taper-threaded splices is easy to manufacture and may be a better alternative to ordinary couplers. In the future, it is necessary to conduct more in-depth research on characterizing the tensile performance of ordinary threaded couplers under large inelastic cyclic deformations.

Author Contributions

Conceptualization, M.J., W.C. and X.Z.; data curation, S.Z. and X.Z.; formal analysis, M.J., S.Z. and X.Z.; funding acquisition, W.C. and X.Z.; investigation, M.J., W.C., S.Z. and X.Z.; methodology, M.J., S.Z. and X.Z.; project administration, W.C. and X.Z.; resources, M.J. and X.Z.; software, S.Z. and X.Z.; supervision, M.J. and X.Z.; validation, S.Z. and X.Z.; visualization, S.Z. and X.Z.; writing—original draft, X.Z.; writing—review & editing, M.J. All authors have read and agreed to the published version of the manuscript.

Funding

This research was funded by Guangdong Provincial Key Laboratory of Modern Civil Engineering Technology (grant number 2021B1212040003) and Science and Technology Program of Guangzhou Municipal Construction Group Co., Ltd. (grant number [2019]-KJ006 and [2021]-KJ035).

Data Availability Statement

Data sharing is not applicable to this article.

Conflicts of Interest

The authors declare no conflict of interest.

References

  1. Buyle, M.; Braet, J.; Audenaert, A. Life cycle assessment in the construction sector: A review. Renew. Sustain. Energy Rev. 2013, 26, 379–388. [Google Scholar] [CrossRef]
  2. Huang, L.; Krigsvoll, G.; Johansen, F.; Liu, Y.; Zhang, X. Carbon emission of global construction sector. Renew. Sustain. Energy Rev. 2018, 81, 1906–1916. [Google Scholar] [CrossRef]
  3. Norouzi, M.; Chàfer, M.; Cabeza, L.F.; Jiménez, L.; Boer, D. Circular economy in the building and construction sector: A scientific evolution analysis. J. Build. Eng. 2021, 44, 102704. [Google Scholar] [CrossRef]
  4. Lima, L.; Trindade, E.; Alencar, L.; Alencar, M.; Silva, L. Sustainability in the construction industry: A systematic review of the literature. J. Clean. Prod. 2021, 289, 125730. [Google Scholar] [CrossRef]
  5. Park, R. A perspective on the seismic design of precast concrete structures in New Zealand. PCI J. 1995, 40, 40–60. [Google Scholar] [CrossRef]
  6. Elliott, K.S. Precast Concrete Structures; CRC Press: Boca Raton, FL, USA, 2016. [Google Scholar]
  7. Wu, P.; Low, S.P. Lean management and low carbon emissions in precast concrete factories in Singapore. J. Archit. Eng.-ASCE 2012, 18, 176–186. [Google Scholar] [CrossRef]
  8. Belleri, A.; Brunesi, E.; Nascimbene, R.; Pagani, M.; Riva, P. Seismic performance of precast industrial facilities following major earthquakes in the Italian territory. J. Perform. Constr. Fac.-ASCE 2015, 29, 04014135. [Google Scholar] [CrossRef]
  9. Belleri, A.; Torquati, M.; Marini, A.; Riva, P. Horizontal cladding panels: In-plane seismic performance in precast concrete buildings. Bull. Earthq. Eng. 2016, 14, 1103–1129. [Google Scholar] [CrossRef]
  10. Cao, X.Y.; Shen, D.J.; Feng, D.C.; Wang, C.L.; Qu, Z.; Wu, G. Seismic retrofitting of existing frame buildings through externally attached sub-structures: State of the art review and future perspectives. J. Build. Eng. 2022, 57, 104904. [Google Scholar] [CrossRef]
  11. Breccolotti, M.; Gentile, S.; Tommasini, M.; Materazzi, A.L.; Bonfigli, M.F.; Pasqualini, B.; Colone, V.; Gianesini, M. Beam-column joints in continuous RC frames: Comparison between cast-in-situ and precast solutions. Eng. Struct. 2016, 127, 129–144. [Google Scholar] [CrossRef]
  12. Englekirk, R.E. Seismic Design of Reinforced and Precast Concrete Buildings; Wiley: New York, NY, USA, 2003. [Google Scholar]
  13. Englekirk, R.E. Development and testing of a ductile connector for assembling precast concrete beams and columns. PCI J. 1995, 40, 36–51. [Google Scholar] [CrossRef]
  14. French, C.W.; Hafner, M.; Jayashankar, V. Connections between precast elements—Failure within connection region. J. Struct. Eng.-ASCE 1989, 115, 3171–3192. [Google Scholar] [CrossRef]
  15. Soubra, K.S.; Wight, J.K.; Naaman, A.E. Cyclic response of fibrous cast-in-place connections in precast beam-column subassemblages. ACI Struct. J. 1993, 90, 316–323. [Google Scholar]
  16. Choi, H.K.; Choi, Y.C.; Choi, C.S. Development and testing of precast concrete beam-to-column connections. Eng. Struct. 2013, 56, 1820–1835. [Google Scholar] [CrossRef]
  17. Dal Lago, B.; Negro, P.; Dal Lago, A. Seismic design and performance of dry-assembled precast structures with adaptable joints. Soil. Dyn. Earthq. Eng. 2018, 106, 182–195. [Google Scholar] [CrossRef]
  18. Senturk, M.; Pul, S.; Ilki, A.; Hajirasouliha, I. Development of a monolithic-like precast beam-column moment connection: Experimental and analytical investigation. Eng. Struct. 2020, 205, 110057. [Google Scholar] [CrossRef]
  19. Correal, J.F.; Bernal, S.A.; Hassan, W.M. Seismic performance of full-scale moment connections of one-story precast industrial facilities. ACI Struct. J. 2021, 118, 179–192. [Google Scholar]
  20. Nzabonimpa, J.D.; Hong, W.K.; Kim, J. Nonlinear finite element model for the novel mechanical beam-column joints of precast concrete-based frames. Comput. Struct. 2017, 189, 31–48. [Google Scholar] [CrossRef]
  21. Ghayeb, H.H.; Razak, H.A.; Sulong, N.R. Seismic performance of innovative hybrid precast reinforced concrete beam-to-column connections. Eng. Struct. 2020, 202, 109886. [Google Scholar] [CrossRef]
  22. Li, Z.H.; Qi, Y.H.; Teng, J. Experimental investigation of prefabricated beam-to-column steel joints for precast concrete structures under cyclic loading. Eng. Struct. 2020, 209, 110217. [Google Scholar] [CrossRef]
  23. Liu, J.; Xue, Y.T.; Wang, C.K.; Nie, J.G.; Wu, Z.H. Experimental investigation on seismic performance of mechanical joints with bolted flange plate for precast concrete column. Eng. Struct. 2020, 216, 110729. [Google Scholar] [CrossRef]
  24. Ye, M.; Jiang, J.; Chen, H.M.; Zhou, H.Y.; Song, D.D. Seismic behavior of an innovative hybrid beam-column connection for precast concrete structures. Eng. Struct. 2021, 227, 111436. [Google Scholar] [CrossRef]
  25. Master Computers 4.0: Production Control Systems in the Technological Transition. Available online: https://www.bft-international.com/en/artikel/bft_Master_computers_4.0_production_control_systems_in_the_technological_2650315.html (accessed on 5 November 2022).
  26. Reichenbach, S.; Kromoser, B. State of practice of automation in precast concrete production. J. Build. Eng. 2021, 43, 102527. [Google Scholar] [CrossRef]
  27. GB50010-2010; Code for Design of Concrete Structures. China Architecture and Building Press: Beijing, China, 2010.
  28. Wallace, J.W.; McConnell, S.W.; Gupta, P.; Cote, P.A. Use of headed reinforcement in beam-column joints subjected to earthquake loads. ACI Struct. J. 1998, 95, 590–606. [Google Scholar]
  29. Lee, H.J.; Yu, S.Y. Cyclic response of exterior beam-column joints with different anchorage methods. ACI Struct. J. 2009, 106, 329–339. [Google Scholar]
  30. GB50011-2016; Code for Seismic Design of Buildings. China Architecture and Building Press: Beijing, China, 2016.
  31. ACI Committee 318. Building Code Requirements for Structural Concrete (ACI 318-19); American Concrete Institute: Farmington Hills, MI, USA, 2019. [Google Scholar]
  32. ACI Committee 374. Acceptance Criteria for Moment Frames Based on Structural Testing and Commentary (ACI 374.1-05) (Reapproved 2019); American Concrete Institute: Farmington Hills, MI, USA, 2005. [Google Scholar]
  33. Naito, C.J.; Moehle, J.P.; Mosalam, K.M. Evaluation of bridge beam-column joints under simulated seismic loading. ACI Struct. J. 2002, 99, 62–71. [Google Scholar]
  34. Ehsani, M.R.; Wight, J.K. Exterior reinforced concrete beam-to-column connections subjected to earthquake-type loading. ACI Struct. J. 1985, 82, 492–499. [Google Scholar]
Figure 1. An example project using a four-leged robotic crane.
Figure 1. An example project using a four-leged robotic crane.
Buildings 13 00062 g001
Figure 2. Schematic diagram of the construction process of semi-precast exterior connections.
Figure 2. Schematic diagram of the construction process of semi-precast exterior connections.
Buildings 13 00062 g002
Figure 3. Dimensions and reinforcement details of the three specimens.
Figure 3. Dimensions and reinforcement details of the three specimens.
Buildings 13 00062 g003aBuildings 13 00062 g003b
Figure 4. Test setup and instrumentation (unit: mm).
Figure 4. Test setup and instrumentation (unit: mm).
Buildings 13 00062 g004
Figure 5. Comparison of cracking patterns before significant concrete crushing.
Figure 5. Comparison of cracking patterns before significant concrete crushing.
Buildings 13 00062 g005
Figure 6. Photographs after the tests.
Figure 6. Photographs after the tests.
Buildings 13 00062 g006
Figure 7. Beam tip load–displacement relationships.
Figure 7. Beam tip load–displacement relationships.
Buildings 13 00062 g007
Figure 8. Skeleton curves of hysteresis loops.
Figure 8. Skeleton curves of hysteresis loops.
Buildings 13 00062 g008
Figure 9. Energy dissipation evolutions.
Figure 9. Energy dissipation evolutions.
Buildings 13 00062 g009
Figure 10. Secant stiffness degradation.
Figure 10. Secant stiffness degradation.
Buildings 13 00062 g010
Figure 11. Strain profiles along beam bottom bars.
Figure 11. Strain profiles along beam bottom bars.
Buildings 13 00062 g011aBuildings 13 00062 g011b
Figure 12. Components of contribution to beam lateral displacement.
Figure 12. Components of contribution to beam lateral displacement.
Buildings 13 00062 g012
Figure 13. Headed bars and mechanical couplers in LZ-2.
Figure 13. Headed bars and mechanical couplers in LZ-2.
Buildings 13 00062 g013
Figure 14. Tensile test setup for different bar connectors.
Figure 14. Tensile test setup for different bar connectors.
Buildings 13 00062 g014
Figure 15. Tensile behavior of different bar splicing methods.
Figure 15. Tensile behavior of different bar splicing methods.
Buildings 13 00062 g015
Table 1. Strengths of steel reinforcement.
Table 1. Strengths of steel reinforcement.
Bar TypeYield StrengthUltimate Strength
D8426648
D22390578
Table 2. Main test results.
Table 2. Main test results.
SpecimenVy 1Δy 1Vp 1Δp 1
(+)(−)(+)(−)(+)(−)(+)(−)
LZ187.286.623.225.098.4101.198.098.3
LZ285.688.223.025.594.7104.827.7113.1
LZ387.191.223.323.4101.6104.053.483.9
1Vy’ represents the yield load obtained by the Park method; ‘Δy’ denotes the displacement at Vy; ‘Vp’ represents the peak load; ‘Δp’ denotes the displacement at Vp.
Disclaimer/Publisher’s Note: The statements, opinions and data contained in all publications are solely those of the individual author(s) and contributor(s) and not of MDPI and/or the editor(s). MDPI and/or the editor(s) disclaim responsibility for any injury to people or property resulting from any ideas, methods, instructions or products referred to in the content.

Share and Cite

MDPI and ACS Style

Ji, M.; Chen, W.; Zeng, S.; Zhao, X. Cyclic Evaluation of Exterior Beam-to-Column Connections for Intelligent Accelerated Construction of Industrial Facilities. Buildings 2023, 13, 62. https://doi.org/10.3390/buildings13010062

AMA Style

Ji M, Chen W, Zeng S, Zhao X. Cyclic Evaluation of Exterior Beam-to-Column Connections for Intelligent Accelerated Construction of Industrial Facilities. Buildings. 2023; 13(1):62. https://doi.org/10.3390/buildings13010062

Chicago/Turabian Style

Ji, Mingming, Wei Chen, Shi Zeng, and Xinyu Zhao. 2023. "Cyclic Evaluation of Exterior Beam-to-Column Connections for Intelligent Accelerated Construction of Industrial Facilities" Buildings 13, no. 1: 62. https://doi.org/10.3390/buildings13010062

APA Style

Ji, M., Chen, W., Zeng, S., & Zhao, X. (2023). Cyclic Evaluation of Exterior Beam-to-Column Connections for Intelligent Accelerated Construction of Industrial Facilities. Buildings, 13(1), 62. https://doi.org/10.3390/buildings13010062

Note that from the first issue of 2016, this journal uses article numbers instead of page numbers. See further details here.

Article Metrics

Back to TopTop