Abstract
In high-rise modular housing complex projects, tower crane layout planning is the key to ensuring the efficient lifting of components during construction. To improve the lifting efficiency of the cranes and control costs, the layout plan should minimize the distance the tower cranes must move the prefabricated units. The distance between the trailer holding the components, the tower crane, and the structure under construction should be kept to a minimum. However, most current studies consider the relative positions of the tower crane and the trailer without fully considering the movement efficiency of the trailer, and when multiple trailers and multiple tower cranes are involved, the optimization scheme is more complicated. In this study, a mathematical model based on mixed integer linear programming (MILP) is built to determine the type and location of tower cranes as well as the location of trailers to solve the problem of situating multiple tower cranes in a high-rise modular housing complex project. Finally, the validity and practicality of the model are demonstrated with case studies.
1. Introduction
Currently, assembled housing is used in large numbers in high-rise, high-density cities [,]. The construction of high-rise modular housing includes the prefabrication of components in factories and the assembly of components at construction sites [,]. As large-scale lifting equipment to assist in the assembly of the components at construction sites [,], tower cranes should be positioned based on exact calculations of the height and operating radius of the cranes as well as on lifting capacity [], installation, and disassembly methods. The lifting efficiency of the tower crane largely determines the speed of construction, thus affecting the construction period and overall cost of the project []. Therefore, it is crucial to choose the type and location of the tower crane carefully [].
In modular projects, tower cranes are usually used for lifting the prefabricated components from a trailer onto the structure under construction, and the weight and volume of individual components cannot be changed and adjusted. Therefore, the lifting capacity and operating radius of tower cranes need to be carefully matched to the proposed project []. To reduce the cost of the cranes, their carrying capacity as well as the distances they must move when lifting components onto the structure should be minimized as much as possible [].
Due to the high cost of land and the limited space for construction in urban areas, there is often no spare space to stack a large number of prefabricated components when constructing modular housing projects [,]. Instead, the components are transported to the construction site on trailers and lifted directly from the trailer to the building by the tower crane []. In this case, the positions of the trailers vary, while the lifting capacity of the tower crane is estimated based on a combination of the distance from the crane to the trailer and the distance from the crane to the structure [,]. Therefore, when selecting the location and type of crane, the impact of the changing locations of the trailers must be taken into account; otherwise, there is a risk that the lifting capacity of the tower crane will be overestimated, i.e., the weight of the components will be greater than the maximum lifting capacity of the crane, thus leading to safety hazards.
However, in tower crane layout planning (TCLP) for high-rise modular building projects, although the method of lifting materials directly from the trailer to the structure is considered [], it does not take into account multiple trailer parking locations, a major variable in the layout planning for the tower crane. For the above reasons, this study takes dynamic trailer location, tower crane type, lifting capacity of the relevant jib length, and distance between the tower cranes as the constraints for location selection and optimization. Additionally, we introduce four 0–1 variables to determine the type and location of the tower crane and the location of the trailer and describe the demand information for the components at the demand point and the supply information for the components at the supply point, with the overall goal of minimizing the cost of the tower crane. Then, a mixed integer linear programming (MILP) mathematical model for crane location optimization and trailer location selection in a high-rise modular housing complex project is developed using these conditions and solved using branch-and-bound techniques based on available engineering information. We then select the optimal crane configuration and location and most appropriate trailer parking location to ensure the lowest crane cost. To achieve these objectives, this study analyzes the important factors that should be considered in the planning of tower crane locations in high-rise modular housing projects after an extensive review of the relevant literature. Finally, the validity of the optimization model is verified with examples.
2. Related Research Studies
2.1. Layout Planning of Tower Cranes in Traditional Buildings
In traditional construction, tower cranes are mainly used to lift construction materials such as steel bars, formwork, and concrete. The location of the tower crane is usually determined first according to the location of the building, and then various material yards and material-processing sheds are arranged around the tower crane. The location optimization of the tower crane is mainly based on its running time/cost. As early as 1983, Ramos developed a mathematical model to reduce the total cost of transporting the crane and thus determine the best location for the crane on the construction site []. With the continuous development of computer technology, Zhang et al. developed an optimization model for a single tower crane using computer technology based on the shortest crane transport time []. Subsequently, to improve the optimization results of single tower crane operation, Huang et al. used the stacking location of materials as a variable as well and proposed a mixed integer linear model based on Zhang’s model, which can be used to determine both the location of a single tower crane as well as the stacking location of materials []. Ji et al. optimized the stacking location of multiple tower cranes and materials simultaneously based on Huang and considered the collaboration capability of tower cranes within the overlapping range of tower cranes []. With the continuous development of Building Information Modeling (BIM) technology in the construction industry, many construction-related planning tasks are gradually shifting to BIM platforms, including the planning of tower cranes. Wang et al. developed an optimization model based on BIM + Firefly Algorithm (FA), which can automatically generate the layout of tower cranes and the location planning of materials []. Marzouk et al. further proposed a model framework involving the type, number, and location selection of tower cranes based on the previous work [] and then performed a four-dimensional simulation based on an agent to prevent collisions during tower crane operation []. Han et al. proposed a 3D-based tower crane evaluation system, which designed, validated, and simulated a mobile tower crane. The 3D visualization of operations not only supports efficient tower crane operations but also allows for integrated consideration in tower crane planning based on safety and efficiency aspects []. Ji et al. proposed an architecture that integrates a 4D model with rule checking for reviewing tower crane work plans and developed a tower-crane-specific rule template based on current tower crane design standards. The automatic layout of tower cranes was implemented in a rule-checking platform using 4D models as input data, and additional tower crane alternatives could also be viewed []. Recently, Riga K et al. presented another mathematical model that considers the location of tower cranes and storage areas in relation to cost optimization [].
Although there are many similarities between the tower crane layout planning of traditional buildings and the tower crane layout planning of modular buildings, the tower crane layout planning of traditional buildings cannot be directly applied to modular buildings because in the tower crane lifting process of traditional buildings, we can reduce the demand for tower crane lifting capacity by adjusting the weight of materials, thus weakening the influence of tower crane lifting capacity on tower crane layout planning. However, the weight and volume of the components in modular projects cannot be changed, so the lifting capacity of the tower crane must be considered as a key factor. In addition, although the material yards in traditional buildings can be considered as variables, the types of materials in each yard are unique, and the location of the yard is fixed. While the focus of this paper is to optimize the distance from the trailer to the demand point and the distance from the trailer to the tower crane, the trailer’s location is variable, and the types of components carried by the trailer are not unique.
2.2. Tower Crane Layout Planning in Modular Buildings
The lifting in modular buildings is more complicated compared to the lifting in traditional buildings. In addition to lifting heavy and bulky components, the lifting work also requires component rotation as well as positioning and even assistance in assembling. To improve the efficiency of tower cranes in modular projects, much research has also been conducted by previous authors. Lei et al. established the lifting paths of component units through an automated system and then performed lifting path checks of mobile tower cranes to prevent collisions []. Han et al. proposed a visualized 3D simulation model for collision prevention checks in crane operations []. In all these studies, the authors considered the tower crane boom length as an important factor in preventing tower crane collisions and assumed that the trailer location was within the boom length of the tower crane. Dutta et al. performed discrete and continuous collision detection and path planning at the construction site based on the CALP (Computer-Aided Lift Planning) system. This system is based on Building Information Modeling (BIM) and uses Single-level Depth Map (SLDM) representation to reduce the huge BIM model dataset []. Regarding the planning layout of tower cranes, Olearczyk et al. proposed a method for the tower crane selection process and considered relevant factors such as tower crane loads and capacity checks in the paper []. Zhang et al. developed a virtual reality (VR) tool for selecting the optimal tower crane layout for high-rise buildings; the tool includes three functional components, a real-time feasibility check, multi-criteria evaluation, and simulated lifting, which allows project managers to visualize the whole process of tower crane lifting in the VR world []. More recently, Zhang et al. proposed a new decision framework for tower crane layout planning for high-rise modular buildings. The framework is divided into two parts, including feasibility assessment and performance analysis using fuzzy integration techniques []. Lu et al. developed an integrated CSLP (construction site layout plan) model to optimize the facility layout problem at prefabricated construction sites, combining the lifting efficiency of prefabricated components with previous CSLP considering safety risks and transportation costs []. Hussein et al. analyzed the literature on tower crane hoisting in modular structures by reviewing previous studies, in which he pointed out that the number of papers related to tower crane hoisting in modular construction is increasing every year and that most of the research is focused on automation. In particular, unlike mobile tower cranes, attached tower cranes need to be operated until the end of the project after the installation is completed on-site, thus again emphasizing the importance of tower crane specification and location selection [].
Furthermore, in addition to the abovementioned studies conducted for the lifting simulation of tower cranes and the optimization of the tower crane arrangement based on setting up a member yard at the construction site, Smith et al. [] and Thomas [] et al. also proposed lifting the members directly from the trailer to the member demand point, and Thomas proposed three lifting options for modular buildings of steel structures in their paper, namely, using the yard for transit, disassembling the steel structure for assembly, and lifting directly from the yard, and then demonstrated the advantages of lifting the members directly from the trailer by comparison []. However, they do not provide the specific method used for trailer location selection in the paper. Hyun et al. proposed a genetic-algorithm-based optimization model for optimizing tower crane and trailer locations [], but Hyun et al. only considered a single tower crane and a single trailer location.
In this study, multiple cranes are considered as variables for multiple trailer docking points simultaneously. In this case, the maximum distance used to estimate the tower crane capacity can vary depending on the trailer parking location and the tower crane location. Then, we use the optimization process to reduce the distance of the trailer from the demand point and the distance of the trailer from the tower crane, i.e., to reduce the movement distance of the tower crane, which minimizes the cost of the tower crane.
2.3. Relevant Algorithms in Tower Crane Layout Planning
The site-selection problem in tower crane layout planning can be summarized as the Quadratic Assignment Problem (QAP) in operations research [], while the tower crane lifting problem involved in tower crane layout planning belongs to the Traveling Salesman Problem (TSP) in operations research. The main role of QAP in the tower crane location problem is to ensure the transportation of materials to meet the requirements of construction, while TSP is to improve the lifting efficiency as much as possible based on QAP and to establish the component transportation network (supply point–tower crane–demand point) in the construction site at the minimum cost.
In general, there are three types of methods for solving combinatorial problems: exact algorithms, approximate algorithms, and heuristic algorithms. The exact algorithms include branch-and-bound and dynamic programming methods. Approximate algorithms include greedy algorithms, local search algorithms, relaxation algorithms, sequence algorithms, etc. Heuristic algorithms include simulated annealing algorithms, evolutionary algorithms (genetic algorithms, differential evolutionary algorithms, etc.), ant colony optimization algorithms, particle swarm algorithms, etc.
The genetic algorithm (GA) is a popular heuristic algorithm that applies probabilistic search logic that works well in various objective functions and even nonlinear solution spaces. Genetic algorithms have also been applied in the configuration of building facilities and in optimizing the layout of facilities []. However, in genetic algorithms, the optimization problem is solved by applying the evolutionary principle, which requires repetitive operations and tends to converge in advance. The ant colony optimization (ACO) algorithm also applies to the tower crane location optimization problem. However, the limitations of the ACO algorithm are the large number of parameter values, the over-sensitive response to parameters, and the increased deviation of the resultant values []. Particle Swarm Optimization (PSO) is a wide-area optimization method that iteratively computes and simultaneously improves the candidate solutions to finally optimize the objective function, but it is difficult to obtain search results that consider both the optimal distance and constraints of the tower crane []. In addition, new optimization research methods such as Collision Body Optimization (CBO) and Vibration Particle Systems (VPS) are also powerful, but these methods have a problem in that it is difficult to express the lifting conditions and trailer position of the tower crane in a relatively simple and easy way []. Others have tried to improve the algorithm themselves. Wang et al. developed an integrated method that combines BIM and the Firefly Algorithm (FA) to automatically generate an optimal tower layout scheme. The method first uses BIM to provide input to the mathematical model and then uses FA to determine the optimal location and supply points of the tower crane []. Inspired by sine and cosine mathematical functions, Kaveh et al. investigated an improved sine cosine algorithm (USCA), which is based on the operator of harmonious search to simultaneously improve the search and handle variable constraints and then use the improved algorithm to optimize the location for the optimal tower crane layout []. Briskorn et al. proposed an optimization method covering polygons on uniform and non-uniform radius planes and then used a construction site as an application scenario with a finite set of candidates as the optimal location of the tower crane []. Dasovi et al. proposed an active building for optimal positioning of work facilities and tower cranes at repetitive operations construction sites using an information model approach. Additionally, the transformation method of passive BIM to active BIM is described in the paper [].
In addition to the above algorithm, the QAP formulation can be transformed into a mixed integer linear programming formulation []. Usually, the linearization of QAP into MILP requires introducing a large number of variables and constraints to describe the problem []. In this study, however, it is necessary to consider multiple variables, such as the trailer location, supply point location, and crane-placeable location simultaneously in tower crane location selection, as well as constraints such as the supply of components, the number of supply points, the number of tower cranes, and the lifting capacity of tower cranes. Additionally, all the relational expressions in the constraints and optimization objectives of MILP are linear [], and the relevant variables contain both 0–1 variables and continuous type variables. So for this study [], we choose to build a mixed integer linear programming model to solve the problem and apply the branch-and-bound (BAB) technique to find the globally optimal solution.
3. Information and Mathematical Models
The model in this paper is divided into two parts: the information model and the mathematical model. The information model includes establishing the BIM model of the construction site and the discretization of the construction site with (x, y, z) coordinates. A unit of 1 m is chosen as the reference of (x, y, z) coordinates in this paper, and the boundary of the edge of the building, which is less than 1 m, is not counted in the site. The information related to the crane location (Variable 1), trailer location (Variable 2), and component installation location (Variable 3) can be identified after the site location is turned into data by coordinates. The construction of the mathematical model is described in detail in Section 3.1, Section 3.2, Section 3.3, Section 3.4, Section 3.5, Section 3.6, Section 3.7, Section 3.8, Section 3.9, Section 3.10, Section 3.11.
3.1. Problem Statement and Hypothesis
The purpose of this paper is to give guidance in the selection and placement of tower cranes for a high-rise modular housing complex project during pre-construction. The objective is to determine the type of tower crane, its location, and the parking location of the trailer to transport each component so that the total cost of the tower crane is minimized.
Tower cranes can generally be divided by type into mobile and fixed tower cranes. Mobile tower cranes mainly rely on tracks or tires to move around the project cluster to achieve the work task, which is obviously unsuitable for crowded construction sites. Stationary tower cranes, on the other hand, do not move, use the rotation of the tower boom and trolley luffing to complete the work, and do not occupy a large area. Fixed tower cranes can be divided into two types: attached and internal climbing. The attached tower crane is mainly used in high-rise buildings because it can be raised according to the building and does not use too many tower standard joints and attachment rods as well as corresponding anchorages. The internal climbing tower crane is mostly used in super high-rise buildings, using the internal climbing device inside the core to raise the tower, which is not in line with the main body of this study. Therefore, this study selects the attached tower crane as the focus. The tower crane type refers to the different jib lengths and lifting capacities. A sketch of the attached tower crane structure is shown in Figure 1.
Figure 1.
Structure diagram of attached tower crane (part).
To build the mathematical model, we used some information from the actual project, among which the available crane locations and crane configurations are limited and determined in advance; the height of the tower cranes is considered to meet the height requirements of the building as the number of tower sections increases; the trailer capacity is considered to meet the demand of the construction site because the trailers can continuously transport the components from the component factory to the construction site; the demand information of the components (location, component type, weight, and quantity), as well as the location of the demand points, are specific to the project itself. The operating cost of the tower crane is determined by the type of tower crane and the operating time of the tower crane. In addition to the above conditions, this paper also needs to set some assumptions:
- For each lifting task, the tower crane operates at the same rate under full-load and no-load conditions;
- The maximum lifting height of the tower crane meets the requirements of the building height;
- There is no collision between tower cranes in operation;
- The effect of component installation time on tower crane running time is excluded;
- Multiple components can be provided for a particular trailer dock.
One workflow of the tower crane is to start from the supply point, lift the components to the demand point, and then return from the demand point to the supply point to facilitate the next operation in this cycle. That is, the tower crane runs the same two distances in a lifting task, the difference is that during the first half, the tower crane is running with a heavy load and during the second half the crane is running with no load. However, the specific running rate is not only limited by the running rate of the tower crane itself but also related to the proficiency of the tower crane operator. In the model, the operator’s proficiency is adjusted by a factor, so the model defaults to the same operating rate for the tower at full and empty load, i.e., the tower spends twice as much time per hoisting task as it does one-way.
Because the model in this study is based on the jib length, lifting capacity, working rate, and the corresponding cost of the tower crane to make the selection, it does not take the height of the tower crane as the evaluation criterion, and because the selected tower crane is attached, as long as the maximum lifting height meets the requirements, the tower height can be increased by increasing the standard section of the tower. At this time, if the lifting boom length and lifting capacity also meet the requirements. the tower crane can meet the requirements. However, without Assumption 2, the maximum lifting height of some tower cranes will not meet the height requirements of the building, which may lead to the wrong answer for the model selection. Therefore Assumption 2 is necessary.
The constraint of minimum safe distance between tower cranes is set in this model, but it is not a conflict-free area between tower cranes, and there will be certain delays between tower cranes due to avoidance or coordination work, and these delays are affected by many factors and cannot be accurately evaluated in this study. So, this study assumes that there will be no collision between tower cranes; thus it is not affected by the delay time.
Unlike cast-in-place projects, tower cranes in modular projects also need to assist in the assembly of components. The difference in the difficulty of assembly between the components and the different proficiency of the staff in assembly will lead to different delay times for the tower crane to assist in assembly, which will only affect the progress of the project and will not affect the time for the tower crane to lift the components, so the impact of the assembly time of the components on the running time of the tower crane is not considered in the model.
Because the trailer consignment has the characteristic of walking and stopping, the components do not stay after lifting, and as long as the location is optimal, the next vehicle consigning the components can stop at the location where the previous vehicle stopped, which will not cause vehicle congestion, so the model considers that the trailer parking can be used many times, i.e., multiple components can be provided.
3.2. Symbol Definition
The following parameters and symbols are involved in the mathematical model established in this paper, and their specific meanings are shown below:
i: Available trailer parking spots;
I: Total number of available trailer parking spots;
j: Demand points for components;
J: Total number of component demand points;
k: Available tower crane locations;
K: Total number of available tower crane positions;
l: Component type;
L: Total number of component types;
Kc: Tower crane type;
: Speed of the radial movement of the hook along the boom;
: The tangential motion speed of the boom;
RK: Tower crane jib length.
3.3. Horizontal Motion Model of Tower Crane
The motion of the tower crane can be divided into horizontal and vertical. In the horizontal motion of the tower crane, the running trajectory can be decomposed into two parts: the tangential motion of the boom and the radial motion of the hook along the boom, as shown in Figure 2.
Figure 2.
Horizontal motion of a tower crane.
In the figure, are the coordinates of the tower crane at position k, are the coordinates of the trailer at position i, and are the coordinates of the demand point at position j.
Zhang et al. originally developed an equation to represent these motions for estimating the running time of a tower crane in 1999 []. In this study, we decided to refer to this equation to represent the distance traveled by the tower crane to determine the running time of the tower crane, and a new equation, Equation (4), was added to assist in the calculation of Equation (6).
Equations (1)–(3) show the tower crane, trailer location, and the horizontal distance between the three components’ demand position:
where the angle of the radial movement of the boom can be used to express the distance between the three; Equation (4) is:
Defining as the time of radial movement of the hook along the boom and as the speed of radial movement of the hook along the boom, then is expressed in Equation (5) as:
Defining as the time of the tangential motion of the boom and as the velocity of the tangential motion of the boom, is expressed in Equation (6) as:
Regardless of the horizontal motion of the tower crane or the vertical motion mentioned below, the specific operation of the tower crane is controlled by a human, and the coherence of the tangential motion and radial motion in the horizontal motion of the tower crane will be influenced by the operator’s operation level, so a coefficient α is introduced to measure the degree of coherence of the tangential motion and radial motion, and its value ranges from 0.0 to 1.0 motion, and the more discrete the radial motion, the longer the horizontal running time . is finally expressed in Equation (7) as:
3.4. Model of Vertical Motion of Tower Crane
The vertical movement of the tower crane can be simplified to the vertical movement of the hook; that is, the hook lifts the member from the trailer parking point (the height at which the member is on the trailer) to plus h, and then descends to . Note that a loss height h is introduced here because in the lifting process, the members of the assembled building have strict installation sequence requirements to avoid the lifting of the next piece of the member in the process of lifting the previous piece installed. The height difference is defined as h (h is taken as 1.5 m in this paper), as shown in Figure 3.
Figure 3.
Vertical movement of the hook.
Defining as the vertical motion time of the tower crane and as the velocity of the hook in the vertical direction, is expressed by Equation (8) as:
Additionally, considering the operation level of the tower crane operator, there is a certain degree of coherence between the horizontal and vertical movements of the tower crane, and the coefficient β is introduced to measure the degree of coherence between the horizontal and vertical movements of the tower crane, and its value range is also 0.0~1.0. When β is larger, the lower the operation level of the operator, the more discrete the horizontal and vertical movements of the tower crane, and the longer the single running time of the tower crane. is expressed in Equation (9) as:
3.5. Decision Variables
For better optimization and solution of the model, multiple binary decision variables are introduced, where:
The binary variable indicates whether the candidate position of a particular tower crane at the construction site is selected or not, and the value of is one when the tower crane is placed at position k, and zero otherwise. This is expressed in Equation (10) as
The binary variable denotes the type Kc of the tower crane at k. The value of is one when the type Kc of the tower crane at k is selected; otherwise, it is zero. It is expressed in Equation (11) as:
The binary variable represents the relationship between the member and the trailer parking point. The value of is one when member l is consigned to the trailer parking point i and zero otherwise. It is expressed in Equation (12) as:
The binary variable indicates whether there is a demand for component l at point j. When the demand exists, the value of is one; otherwise, it is zero. This is expressed in Equation (13) as:
3.6. Demand Identification and Supply of Components
The introduction of the parameter indicates the number of components of type l demanded at point j (it can also be interpreted as the number of times j needs to be lifted); in most cases, a j point is at most one, and the number of components demanded is one. This is because this model is more customized to the site, and the general volume of the components is larger than the reference unit of the coordinates. To prevent some smaller components needing to be lifted more than once, as well as to further improve the applicability of this model, Formula (14) is proposed, at which time the relationship between and is expressed in Equation (14) as:
The auxiliary variable , which represents the single supply of components, is introduced to simulate the motion flow of the tower crane, indicating that the value of is one when the tower crane is located at k, and type kc delivers the component l located at the trailer parking point i to the demand point j. The relationship between demand and supply at this point is expressed by Equation (15) as:
3.7. Constraints on Trailer Stopping Points
The difference between a trailer transporting components to the construction site and a conventional yard is the stop-and-go characteristic, and because of the sequential characteristic of component installation and the existence of component installation time, it is considered that a certain trailer stopping point can supply multiple components without conflict (i.e., Assumption 5). To ensure that the required components are delivered by trailers to the trailer parking point, the binary parameters and need to satisfy Equation (16):
Then, the relationship between and at this point again needs to satisfy Equation (17) expressed as:
Of course, we can also have a separate constraint on a trailer stop to limit the types of components supplied by a certain supply point, i.e., Equation (18). The constant is a custom constant (how much is defined according to the actual engineering information for human control).
3.8. Constraints on Tower Crane Position
Constrained by the candidate locations of the tower cranes and the total number of tower cranes, Equation (19) restricts the lifting of the members to occur only on one of the tower crane candidate locations:
In the example of this paper, the number of tower cranes is fixed, and Equation (20) requires that the total number of selected tower cranes is equal to a constant . However, Equation (20) can also be an inequality constraint to accommodate situations where the number of tower cranes is uncertain. This is because, for generally assembled residential cluster projects, a single tower crane is sufficient to cover a single building. For some large residential projects where multiple tower cranes are required to cooperate, it is sufficient to change Equation (20) into an inequality, where indicates the maximum number of tower cranes.
In this study, although Assumption 3 exists, it is still necessary to ensure the minimum safety distance (msd) between tower cranes. In general, msd is taken as 2 m, which can also be adjusted according to the actual demand and site conditions but cannot be smaller than the minimum safety distance required by the codes around the world. The distance between arbitrary tower cranes is expressed by Equation (21) as:
Then, the safety distance between the tower cranes is expressed by Equation (22) as:
3.9. Constraints on the Type of Tower Crane
The model and configuration specifications of the tower crane are predetermined by the person in charge of the project. For each tower crane k, Equation (23) constrains all component lifting movements made at k to use the same type of tower crane kc,
3.10. Capacity Constraints on the Selected Tower Crane Configuration
The lifting capacity of a tower crane is limited, and its performance varies with distance and structure. The specific relationships are described in the project examples. The weight of the rigging and pulleys has been considered in the calculation of the tower crane lifting capacity. To ensure that the lifting capacity of the selected tower crane meets the lifting requirements, the parameter is introduced, which indicates the maximum lifting capacity of the kc model at k at the relevant boom length, when it transports the component l at the supply point i to the demand point j. The value of parameter depends on the distance between i and j at time and the size of as well as the load of the relevant boom length of the tower crane. indicates the weight of Type l member (single member) at j. Equation (24) ensures that the lifting capacity of the tower crane meets the lifting requirements.
3.11. Objective Function
The objective function defined in Equation (25) represents the total operating cost (TC) of lifting the components from the supply point to the demand point using a tower crane in a feasible configuration (i.e., ).
expresses the total time of one tower crane operation (i.e., lifting of the component from the supply point to the demand point), and due to Assumption 1, the time for the tower crane to return to the supply point to facilitate the next lifting operation is also . is the operating cost of the tower crane kc, determined by the type of tower crane.
4. Case Study
4.1. Project Overview
The project is located in Wuhan City, Hubei Province. The project covers an area of about 114,000 square meters, with a total construction area of about 524,000 square meters, (including 264,000 square meters of general commercial housing, 95,000 square meters of price-restricted resettlement housing, 13,100 square meters of public rental housing, 18,000 square meters of commercial buildings, and about 0.87 million square meters of supporting buildings and kindergartens). The project has 15 high-rise buildings (including 1 college student rental apartment and 3 returned houses), 3 super high-rise residential buildings, 1 sales office, and 1 supporting kindergarten.
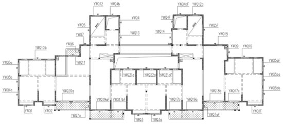
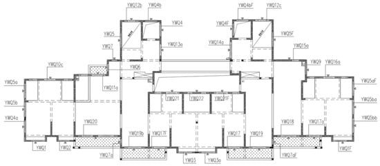
The overall building volume of the project is too large for all of them to be substituted in the study. Therefore, in this paper, three high-rise modular residential buildings in Area 2, #6, #7, and #8, are selected as examples to substitute, as shown in Figure 4.
Figure 4.
High-rise modular housing in Area 2.
The building height of #6 and #7 is 34 stories, and the total height of the building is 95.54 m. The building height of #8 is 22 stories, and the total height of the building is 63.75 m. The width of the building is 46.8 m, and the depth is 18.2 m. The horizontal spacing between #8, #6, and #7 is about 17 m, the vertical spacing is about 18 m and 13 m, and the vertical spacing between #6 and #7 is about 48.5 m. The main prefabricated components are prefabricated facades, prefabricated windows, and prefabricated staircases, with a total of 60 types of components. (The information on demand points below is mainly based on building #8, and the information on supply points and tower cranes will be given).
4.2. Data Information
Figure 5.
Plan of vertical prefabricated components of buildings #6 and #7.
Figure 6.
Plan of vertical prefabricated components of building #8.
Building #8 is an assembly floor from the 5th floor onwards. The number of requirements for each type of component and the weight of each component in building #8 are shown in Table 1.
Table 1.
Information table of prefabricated components demand for building #8 (13 floors, for example).
The tower cranes in this project are mainly used for vertical and horizontal transportation of various PC components. After technical and economic selection, a total of 17 tower cranes are required. Among them, 3 cranes are required for buildings #6, #7, and #8. The project provides four kinds of optional tower cranes: JP6513, ZTT6513, TC6513, and TC7030 (see Table 2).
Table 2.
Optional tower crane types.
There is no restriction on the number of tower cranes of a certain type that can be used. The jib length of each type of tower crane is fixed in this study, and since it is assumed that the lifting height of the tower crane satisfies the building’s needs. The cost of the tower crane is only related to the model of the crane and its operating time. Based on the determined jib length in advance, information on the lifting capacity of the tower crane at the relevant distance (see Table 3) and the tower crane operating rate (see Table 4) can be obtained from the tower crane information provided by the tower crane rental company.
Table 3.
Lifting capacity of optional tower cranes.
Table 4.
Operating rates of optional tower cranes.
A total of 13 candidate tower crane locations were identified in the project example, of which 5 candidate locations were identified for buildings #6 and #7, and 3 candidate locations were identified for building #8. The candidate locations of the tower cranes were input into the computer as model data in the form of coordinate points, and the specific coordinates of the candidate locations of the tower cranes are shown in Table 5.
Table 5.
Coordinates of the candidate location of the tower crane.
According to the project plan, there are 3 roads designed for the 3 high-rise assembly buildings #6, #7, and #8, 2 of which are used as the entrance and 1 as the exit for the trailers. All the trailer stops are along the left side of the road so that the road will not be blocked due to the trailer stops. Trailer stops are spaced to ensure sufficient space for trailers to enter and exit. To ensure enough parking points for trailers, 21 available trailer parking points were set up in the project, and the coordinates of the trailer parking points are shown in Table 6.
Table 6.
Coordinates of trailer parking points.
4.3. Optimization Results
As the project is completed, in this project, the construction unit chose to arrange the component yard at the construction site, and the arrangement is shown in Figure 7a.
Figure 7.
(a) Tower crane arrangement before optimization; (b) optimized tower crane arrangement diagram.
To meet the requirements of the three buildings, a total of three yards were arranged to stack the components, one yard for each building. Among them, the yard of building #6 is located at the top left of the building, the yard of building #7 is located in an unusable plot, and the components need to be dismantled immediately after the completion of lifting. The yard of building #8 is located at the left side of the building. To meet the construction demand, the tower crane of building #6 is located at K5, and the selected model is TC7030; the tower crane of building #7 is located at K11, and the selected model is ZTT6513; the tower crane of building #8 is located at K2, and the selected model is TC6513.
Based on the known data information, the solution is programmed based on Python to produce the solution results. The optimized tower crane arrangement is shown in Figure 7b.
The optimized crane locations, crane types, docking point locations for each type of component, and crane run times and final costs are depicted in Table 7.
Table 7.
Optimization result information.
Compared with the results before optimization, the tower crane of building #6 is adjusted from K6 to K5 with the same tower crane model, the tower crane location and tower crane model of building #7 are unchanged, and the tower crane location of building #8 is unchanged, but the tower crane model is adjusted to JP6513. Lifting components from trailers reduces crane work time by 8.68% and total cost by 12.47% compared to lifting from the yard and reduces the yard footprint. In some central cities where land is expensive, the cost of yard space is not negligible, and some building sites simply do not have extra space for a component yard. In addition, the overlapping area between the tower cranes in building #8 has been reduced by 28.1% due to the shortening of the tower crane jib length, and the overlapping area between the tower cranes in building #8 and building #7 has completely disappeared, which means the operation of the tower crane in building #8 will not be affected by the tower crane in building #7.
5. Discussion
For conventional buildings, the layout planning of tower cranes has been well studied, and new research is growing every year, while relatively little research has been conducted on TCLP compared to TCLP for high-rise modular buildings, especially when trailer supply components are incorporated into TCLP. Previous authors have only solved the calculation of single tower cranes and individual component supply points using genetic algorithms. Therefore, this study focuses on the selection of trailer locations, considers multiple trailer locations as variables to consider the location of the tower crane, builds a mixed integer linear programming model, and substitutes it into the project example to prove the validity of the model.
From the results of the above example, it can be observed that in the tower crane layout planning for the high-rise modular housing complex project, building a mixed integer linear programming model and solving it with Python is possible and can determine the type of tower crane, the tower crane location, and the trailer parking location based on the lowest cost objective. Based on the results of the model, we can also obtain some suggestions for this example, such as the tower crane TC7030 for building #6 in the example. In fact, the jib length of the ZTT6513 model fully meets the needs of construction, but the lifting capacity cannot meet the needs of the relevant location of the component YWQ16, and the lifting capacity of the TC7030 model is too powerful, which will also cause waste of tower crane resources at this time. Thus, we suggest that the construction unit communicates with the tower crane leasing party to provide a more suitable tower crane. In addition, even for a simple site shape and building design, the crane layout diagrams for the two cases of setting up a yard and lifting from a trailer are different. For example, for building #8, to have the tower crane cover the component yard, a TC6513 crane with a 40 m jib has to be used, but if the crane is lifted from a trailer parked on the road, a JP6513 crane with a 30 m jib is perfectly adequate.
For modular building projects with complex sites and building shapes, even though it becomes more difficult to choose the location of the cranes and trailers, it only increases the time for the computer to calculate the results and does not affect the validity of the model. However, at the same time, we also note that there are more limitations due to the presence of linear features of the algorithm. In the follow-up research plan, we are considering: feature screening in different dimensions, optimization algorithms for multiple objectives, and exploration of the applicability of machine learning in large sample low latency scenarios. In addition, we can also set other constraints in the model or add multiple objectives when we only need to change the model slightly by adding weights between multiple objectives. It is worth noting that the premise of using trailers as the variable does not take into account the delay in the supply of components from the factory or other possible delays in the supply of components, which will result in the loss of costs for the tower crane if the components are delayed and the corresponding tower crane has no components to hoist. At this point, if these lost costs are added, the comparison between lifting from the yard and lifting directly from the trailers will need to be re-examined, and a more suitable solution will be chosen for projects where there is sufficient space to stack the components.
6. Conclusions
High-rise modular houses are usually located in cities with dense or small construction sites. Construction sites often do not have enough space to store a large number of prefabricated components, and even if a demountable component yard is established at some spare sites, it will waste resources, increase the cost of storing the components on-site, and cause the double-handling of components. In addition, due to site constraints, even if a component yard is set up, it is often not in the best location, resulting in the layout of the tower crane also being affected, which further increases the workload and cost of the tower crane. Lifting the components directly from trailers to the construction site will not only save the area of the construction site but also greatly reduce the workload of the tower crane, thus reducing the cost. Based on this, this study builds a mixed integer linear programming model for pre-construction tower crane planning in high-rise residential construction, reflecting the type of tower crane, tower crane location, and trailer location with minimum cost.
In the TCLP of a high-rise modular housing complex project, the main factors affecting tower crane cost are the type of the tower crane and the running time of the tower crane. The type of tower crane mainly meets the lifting capacity of the members at the relevant jib length, and the running time of the tower crane depends on its distance from the members and the distance from the member demand point. Therefore, with the member demand point unchanged, this study constructs an optimization model for minimizing the running distance of the tower crane by taking both the location of the crane and the trailer as variables, which can give suggestions for crane location and, type and the stopping position of each trailer at the site. Then, the conclusions drawn from this study model were compared with the original proposal of a completed project, and it was found that lifting the components directly from trailers would reduce the working time of the tower crane by 8.68% and the cost by 12.47% compared with setting up a component yard on site, thus verifying the validity of the model.
This study presents a new approach to TCLP for high-rise modular housing complex projects with some academic value. The problem of optimizing multiple tower cranes and multiple docking points simultaneously is solved with the trailer docking point as the variable. In addition to the variables listed above, we can also take more variables into account when deriving optimization results and transform the single-objective problem into a multi-objective one, such as weighting the running time of the tower crane, the capacity of the tower crane, etc.
This study also has some limitations. The trailer delivery of components has very strict time requirements, is affected when the delivery of components happens to be delayed, the wrong components are sent from the factory, or there is a public channel to deliver the components, etc. These situations will lead to no component lifting at the site, thus to wasted resources and delays in construction. In addition, when planning the layout of tower cranes, the land cost in urban areas and the grid towers around the construction sites can also influence the optimal results of tower cranes. In future studies, we could consider the production shipment of the component plant, traffic conditions, limitations of the construction site for the tower crane, etc., as factors affecting tower crane layout planning.
Author Contributions
Conceptualization, C.Z. and F.D.; methodology, F.D.; software, Z.X.; validation, F.D.; formal analysis, W.L.; investigation, F.D.; resources, C.Z.; data curation, F.D.; writing—original draft preparation, F.D.; writing—review and editing, C.Z.; visualization, W.L.; supervision, C.Z.; project administration, C.Z. All authors have read and agreed to the published version of the manuscript.
Funding
This research was funded by the 5G-based tower intelligent remote control technology research project funded by CSCEC Science and Technology Department (CSCEC-2020-Z-25).
Data Availability Statement
Data supporting the results of this study are available from the corresponding author upon reasonable request.
Conflicts of Interest
The authors declare no conflict of interest.
References
- Lawson, R.M.; Ogden, R.G. Application of modular construction in high-rise buildings. J. Archit. Eng. 2012, 18, 148–154. [Google Scholar] [CrossRef]
- Shan, S.; Looi, D.; Cai, Y.; Ma, P.; Chen, M.T.; Su, R.; Pan, W. Engineering modular integrated construction for high-rise building: A case study in Hong Kong. Proc. Inst. Civ. Eng.-Civ. Eng. 2019, 172, 51–57. [Google Scholar] [CrossRef]
- Zhang, Z.; Pan, W. Multi-criteria decision analysis for tower crane layout planning in high-rise modular integrated construction. Autom. Constr. 2021, 127, 103709. [Google Scholar] [CrossRef]
- Masood, R.; Lim, J.B.; González, V.A. Performance of the supply chains for New Zealand prefabricated house-building. Sustain. Cities Soc. 2021, 64, 102537. [Google Scholar] [CrossRef]
- Kaveh, A.; Vazirinia, Y. Optimization of tower crane location and material quantity between supply and demand points: A comparative study. Period. Polytech. Civ. Eng. 2018, 62, 732–745. [Google Scholar] [CrossRef]
- Olearczyk, J.; Al-Hussein, M.; Bouferguène, A. Evolution of the crane selection and on-site utilization process for modular construction multilifts. Autom. Constr. 2014, 43, 59–72. [Google Scholar] [CrossRef]
- Moussavi Nadoushani, Z.S.; Hammad, A.W.; Akbarnezhad, A. Location optimization of tower crane and allocation of material supply points in a construction site considering operating and rental costs. J. Constr. Eng. Manag. 2017, 143, 04016089. [Google Scholar] [CrossRef]
- Lu, Y.; Zhu, Y. Integrating hoisting efficiency into construction site layout plan model for prefabricated construction. J. Constr. Eng. Manag. 2021, 147, 04021130. [Google Scholar] [CrossRef]
- Hyun, H.; Park, M.; Lee, D.; Lee, J. Tower crane location optimization for heavy unit lifting in high-rise modular construction. Buildings 2021, 11, 121. [Google Scholar] [CrossRef]
- Ji, Y.; Leite, F. Optimized planning approach for multiple tower cranes and material supply points using mixed-integer programming. J. Constr. Eng. Manag. 2020, 146, 04020007. [Google Scholar] [CrossRef]
- Jaillon, L.; Poon, C.S. The evolution of prefabricated residential building systems in Hong Kong: A review of the public and the private sector. Autom. Constr. 2009, 18, 239–248. [Google Scholar] [CrossRef]
- Smith, R.E. Prefab Architecture: A Guide to Modular Design and Construction; John Wiley & Sons: Hoboken, NJ, USA, 2011; pp. 3–20. [Google Scholar]
- Riga, K.; Jahr, K.; Thielen, C.; Borrmann, A. Mixed integer programming for dynamic tower crane and storage area optimization on construction sites. Autom. Constr. 2020, 120, 103259. [Google Scholar] [CrossRef]
- Thomas, H.R.; Ellis, R.D., Jr. Construction site management and labor productivity improvement: How to improve the bottom line and shorten the project schedule. Am. Soc. Civ. Eng. 2017. [Google Scholar] [CrossRef]
- Rodriguez-Ramos, W.E.; Francis, R.L. Single crane location optimization. J. Constr. Eng. Manag. 1983, 109, 387–397. [Google Scholar] [CrossRef]
- Zhang, P.; Harris, F.C.; Olomolaiye, P.O.; Holt, G.D. Location optimization for a group of tower cranes. J. Constr. Eng. Manag. 1999, 125, 115–122. [Google Scholar] [CrossRef]
- Huang, C.; Wong, C.K.; Tam, C.M. Optimization of tower crane and material supply locations in a high-rise building site by mixed-integer linear programming. Autom. Constr. 2011, 20, 571–580. [Google Scholar] [CrossRef]
- Wang, J.; Zhang, X.; Shou, W.; Wang, X.; Xu, B.; Kim, M.J.; Wu, P. A BIM-based approach for automated tower crane layout planning. Autom. Constr. 2015, 59, 168–178. [Google Scholar] [CrossRef]
- Marzouk, M.; Abubakr, A. Decision support for tower crane selection with building information models and genetic algorithms. Autom. Constr. 2016, 61, 1–15. [Google Scholar] [CrossRef]
- Younes, A.; Marzouk, M. Tower cranes layout planning using agent-based simulation considering activity conflicts. Autom. Constr. 2018, 93, 348–360. [Google Scholar] [CrossRef]
- Han, S.; Bouferguene, A.; Al-Hussein, M.; Hermann, U. 3D-based crane evaluation system for mobile crane operation selection on modular-based heavy construction sites. J. Constr. Eng. Manag. 2017, 143, 04017060. [Google Scholar] [CrossRef]
- Ji, Y.; Leite, F. Automated tower crane planning: Leveraging 4-dimensional BIM and rule-based checking. Autom. Constr. 2018, 93, 78–90. [Google Scholar] [CrossRef]
- Lei, Z.; Taghaddos, H.; Olearczyk, J.; Al-Hussein, M.; Hermann, U. Automated method for checking crane paths for heavy lifts in industrial projects. J. Constr. Eng. Manag. 2013, 139, 04013011. [Google Scholar] [CrossRef]
- Han, S.H.; Hasan, S.; Bouferguène, A.; Al-Hussein, M.; Kosa, J. Utilization of 3D visualization of mobile crane operations for modular construction on-site assembly. J. Manag. Eng. 2015, 31, 04014080. [Google Scholar] [CrossRef]
- Dutta, S.; Cai, Y.; Huang, L.; Zheng, J. Automatic replanning of lifting paths for robotized tower cranes in dynamic BIM environments. Autom. Constr. 2020, 110, 102998. [Google Scholar] [CrossRef]
- Zhang, Z.; Pan, W. Virtual reality supported interactive tower crane layout planning for high-rise modular integrated construction. Autom. Constr. 2021, 130, 103854. [Google Scholar] [CrossRef]
- Hussein, M.; Zayed, T. Crane operations and planning in modular integrated construction: Mixed review of literature. Autom. Constr. 2021, 122, 103466. [Google Scholar] [CrossRef]
- Thomas, H.R.; Riley, D.R.; Sanvido, V.E. Loss of labor productivity due to delivery methods and weather. J. Constr. Eng. Manag. 1999, 125, 39–46. [Google Scholar] [CrossRef]
- Loiola, E.M.; Boaventura-Netto, P.O.; Hahn, P.; Querido, Y. A survey for the quadratic assignment problem. Eur. J. Oper. Res. 2007, 176, 657–690. [Google Scholar] [CrossRef]
- Chau, K.W. A two-stage dynamic model on allocation of construction facilities with genetic algorithm. Autom. Constr. 2004, 13, 481–490. [Google Scholar] [CrossRef]
- Trevino, C.; Abdel-Raheem, M. Single tower crane allocation using ant colony optimization. In Proceedings of the ASCE International Workshop on Computing in Civil Engineering 2017, Seattle, WA, USA, 25–27 June 2017; pp. 132–140. [Google Scholar] [CrossRef]
- Easa, S.M.; Hossain, K.M. New mathematical optimization model for construction site layout. J. Constr. Eng. Manag. 2008, 134, 653–662. [Google Scholar] [CrossRef]
- Kaveh, A.; Ghazaan, M.I. A new meta-heuristic algorithm: Vibrating particles system. Sci. Iranica. Trans. A Civ. Eng. 2017, 24, 551. [Google Scholar] [CrossRef]
- Kaveh, A.; Vazirinia, Y. An upgraded sine cosine algorithm for tower crane selection and layout problem. Period. Polytech. Civ. Eng. 2020, 64, 325–343. [Google Scholar] [CrossRef]
- Briskorn, D.; Dienstknecht, M. Covering polygons with discs: The problem of crane selection and location on construction sites. Omega 2020, 97, 102114. [Google Scholar] [CrossRef]
- Dasović, B.; Galić, M.; Klanšek, U. Active BIM approach to optimize work facilities and tower crane locations on construction sites with repetitive operations. Buildings 2019, 9, 21. [Google Scholar] [CrossRef]
- Huang, C.; Wong, C.K. Optimization of crane setup location and servicing schedule for urgent material requests with non-homogeneous and non-fixed material supply. Autom. Constr. 2018, 89, 183–198. [Google Scholar] [CrossRef]
Disclaimer/Publisher’s Note: The statements, opinions and data contained in all publications are solely those of the individual author(s) and contributor(s) and not of MDPI and/or the editor(s). MDPI and/or the editor(s) disclaim responsibility for any injury to people or property resulting from any ideas, methods, instructions or products referred to in the content. |
© 2023 by the authors. Licensee MDPI, Basel, Switzerland. This article is an open access article distributed under the terms and conditions of the Creative Commons Attribution (CC BY) license (https://creativecommons.org/licenses/by/4.0/).