Experimental Study and Numerical Simulation Analysis on Vertical Vibration Performances of 12 m Span Wood Truss Joist Floors
Abstract
:1. Introduction
2. Overview of the Wood Floor and Test Methods
2.1. Floor Configurations
2.2. Test and Analysis Methods
2.2.1. Test Methods
- Static load deflection test
- 2.
- Modal test
- 3.
- Pedestrian load test
2.2.2. Analysis Methods
- Finite element method
- 2.
- Theoretical method
3. Results and Discussion
3.1. Influence of Strongbacks and Partition Wall on the Vertical Deflection of the Floor
3.2. Influence of Strongbacks and Partition Walls on Modal Performances of Floors
3.3. Influence of Strongbacks and Partition Wall on Pedestrian Load Response of Floor
3.4. A Comparison of the Numerical Simulation and Theoretical Results
3.4.1. Simulation of 1 kN Static Load
3.4.2. Modal Test Simulation
4. Conclusions
Author Contributions
Funding
Institutional Review Board Statement
Informed Consent Statement
Data Availability Statement
Acknowledgments
Conflicts of Interest
References
- Zhang, X.D.; Gao, J.; Yan, W.M. Effects of Environmental Vibration on Human Health. J. Environ. Health 2008, 25, 74–76. [Google Scholar]
- Hu, L.J. Design guide for wood-framed floor systems. Can. For. Serv. 2007, 32, 1–60. [Google Scholar]
- Khokhar, A.; Chui, Y.; Smith, I. Influence of stiffness of between-joists bracing on vibrational serviceability of wood floors. In Proceedings of the World Conference on Timber Engineering, Auckland, New Zealand, 15–19 July 2012. [Google Scholar]
- Jarnerö, K.; Brandt, A.; Olsson, A. Vibration properties of a timber floor assessed in laboratory and during construction. Eng. Struct. 2015, 82, 44–54. [Google Scholar] [CrossRef]
- Weckendorf, J.; Ussher, E.; Smith, I. Dynamic response of CLT plate systems in the context of timber and hybrid construction. Compos. Struct. 2016, 157, 412–423. [Google Scholar] [CrossRef]
- Ding, Y.W.; Fu, H.Y.; Wang, Z.; Wang, Y.L.; Xie, W.B.; Zhao, T.C.; Si, S.G. Vibration test and comfort analysis of wooden building floor structure under environmental and impact excitations. Build. Struct. 2020, 50, 100–106. [Google Scholar]
- Wang, B. Structural Behavior of Two-Way Wood Truss Floors. Master’s Thesis, Harbin Institute of Technology, Harbin, China, July 2012. [Google Scholar]
- Zhou, H.B.; Jiang, Z.H.; Fei, B.H.; Ren, H.Q. Design methods to control vibration of solid lumber joist floors. J. Chongqing Jianzhu Univ. 2008, 30, 49–52. [Google Scholar]
- Zhou, H.B.; Jiang, Z.H.; Fei, B.H.; Ren, H.Q.; Hu, L.J. Study on vibration performance of engineered wood truss joist floors. J. Chongqing Jianzhu Univ. 2008, 30, 109–113. [Google Scholar]
- Xue, S. Study on the Vibration Performance of the Composite Floor Combined with Wooden Truss Joist. Master’s Thesis, Chinese Academy of Forestry, Beijing, China, June 2019. [Google Scholar]
- Rijal, R.; Samali, B.; Shrestha, R.; Crews, K. Experimental and analytical study on dynamic performance of timber floor modules (timber beams). Constr. Build. Mater. 2016, 122, 391–399. [Google Scholar] [CrossRef]
- Onysko, D.; Hu, L.; Jones, E.; Lenardo, B.D. Serviceability design of residential wood-frame floors in Canada. Wood Des. Focus 2000, 11, 3–8. [Google Scholar]
- Foy, C.; Monnier, J.; Auchet, S.; Dauchez, N. Vibro-acoustic characterization of wood floors and influence of the constructive principle. In Proceedings of the INTER-NOISE and NOISE-CON Congress and Conference Proceedings, Madrid, Spain, 16–19 June 2019; Volume 259, pp. 3064–3073. [Google Scholar]
- Fuentes, S.; Fournely, E.; Bouchaïr, A. Experimental study of the in-plan stiffness of timber floor diaphragms. Eur. J. Environ. Civ. Eng. 2014, 18, 1106–1117. [Google Scholar] [CrossRef]
- Xue, S.; Zhang, Z.Z.; Zhang, Z.Z.; Zhou, H.B.; Shen, Y.L. Effects of strongbacks and strappings on vibrations of timber truss joist floors. Shock Vib. 2021, 2021, 6630719. [Google Scholar] [CrossRef]
- Persson, P.; Frier, C.; Pedersen, L.; Andersen, L.; Manuel, L. Influence of uncertain parameters on modal properties of wood floors. In Advances in Engineering Materials, Structures and Systems: Innovations, Mechanics and Applications; CRC Press: Boca Raton, FL, USA, 2019; pp. 127–132. [Google Scholar] [CrossRef]
- Yujian, D.; Lilin, C. Acceleration response analysis of a steel-wood composite floor system under human-induced vibration. J. Sci. Res. Rep. 2021, 27, 60–71. [Google Scholar] [CrossRef]
- Zhang, S.G.; Yang, N. Comparison of loading methods of floor vibration due to individual walking. J. Beijing Jiaotong Univ. 2013, 37, 152–156+161. [Google Scholar]
- Sepideh, A. In-Plane Stiffness of Cross-Laminated Timber Floors; The University of British Columbia: Vancouver, BC, Canada, 2012; pp. 43–68. [Google Scholar]
- LukaszScislo. Non-invasive measurements of ultra-lightweight composite materials using laser doppler vibrometry system. In Proceedings of the 26th International Congress on Sound and Vibration, Montreal, QC, Canada, 7–11 July 2019. [Google Scholar]
- Di Lorenzo, E.; Mastrodicasa, D.; Wittevrongel, L.; Lava, P.; Peeters, B. Full-Field Modal Analysis by Using Digital Image Correlation Technique. In Rotating Machinery, Optical Methods & Scanning LDV Methods; Springer: Berlin/Heidelberg, Germany, 2020; Volume 6, pp. 119–130. [Google Scholar]
- ISO 18324; Timber Structures-Test Methods-Floor Vibration Performance. ISO: Geneva, Switzerland, 2016.
- Xiong, H.B.; Kang, J.H.; He, M.J. Light Wood Frame Construction, 1st ed.; Tongji Press: Shanghai, China, 2018; pp. 260–261. [Google Scholar]
- GB 50005-2017; Standards for Design of Timber Structures. China Architecture & Building Press: Beijing, China, 2017.
- ISO 10137; Bases for Design of Structures—Serviceability of Buildings and Walkways against Vibrations. ISO: Geneva, Switzerland, 2007.
- Shen, Y.L.; Zhou, H.B.; Xue, S.; Zhang, J.C. A comparison on numerical simulation models for vibrational performances of the wood truss joist floor system. Shock Vib. 2021, 2021, 5560554. [Google Scholar] [CrossRef]























| Floor | Details |
|---|---|
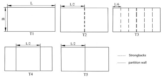
| T1 | No strongbacks and partition wall |
| T2 | Double strongback rows at mid-span |
| T3 | Double strongback rows at mid-span and one strongback row each at one-sixth span and one-third span |
| T4 | One partition wall each at one-fourth span |
| T5 | One partition wall at mid-span |
| Properties | SPF | OSB |
|---|---|---|
| 38 mm × 89 mm | 15 mm Thickness | |
| ρ (kg/m3) | 497 | 650 |
| ν | 0.49 | 0.45 |
| EL (MPa) | 8700 | 4280 |
| ER (MPa) | 900 | 2080 |
| ET (MPa) | 700 | 20.8 |
| GLR (MPa) | 500 | 1000 |
| GLT (MPa) | 500 | 50 |
| GRT (MPa) | 30 | 50 |
| Floor | f1 (Hz) | ζ1 (%) | f2 (Hz) | ζ2 (%) | f3 (Hz) | ζ3 (%) |
|---|---|---|---|---|---|---|
| T1 | 6.8 | 1.3 | 8.1 | 0.8 | 9.1 | 1.3 |
| T2 | 7.1 | 1.4 | 9.9 | 1.4 | 14.1 | 1.9 |
| T3 | 7.3 | 0.9 | 11.1 | 2.0 | 16.4 | 1.4 |
| T4 | 12.5 | 3.5 | 15.1 | 2.4 | 16.8 | 1.9 |
| T5 | 12.2 | 3.4 | 16.8 | 3.5 | 19.4 | 1.7 |
| Floor | H Line | S Line | X Line |
|---|---|---|---|
| T1 | 0.176 | 0.255 | 0.197 |
| T2 | 0.111 | 0.131 | 0.123 |
| T3 | 0.127 | 0.170 | 0.157 |
| T4 | 0.051 | 0.070 | 0.050 |
| T5 | 0.045 | 0.064 | 0.051 |
| Predicted Values (mm) | Experimental Value (mm) | |
|---|---|---|
| Theoretical Predicted Value | Simulation Value | |
| 1.59 | 1.79 | 1.376 |
| Predictive Value (Hz) | Experimental Value (Hz) | |
|---|---|---|
| Theoretical Predictive Value | Simulation Value | |
| 6.47 | 5.88 | 6.8 |
Publisher’s Note: MDPI stays neutral with regard to jurisdictional claims in published maps and institutional affiliations. |
© 2022 by the authors. Licensee MDPI, Basel, Switzerland. This article is an open access article distributed under the terms and conditions of the Creative Commons Attribution (CC BY) license (https://creativecommons.org/licenses/by/4.0/).
Share and Cite
Zhang, Z.; Wang, S.; Deng, H.; Zhou, H. Experimental Study and Numerical Simulation Analysis on Vertical Vibration Performances of 12 m Span Wood Truss Joist Floors. Buildings 2022, 12, 1455. https://doi.org/10.3390/buildings12091455
Zhang Z, Wang S, Deng H, Zhou H. Experimental Study and Numerical Simulation Analysis on Vertical Vibration Performances of 12 m Span Wood Truss Joist Floors. Buildings. 2022; 12(9):1455. https://doi.org/10.3390/buildings12091455
Chicago/Turabian StyleZhang, Zhanyi, Shuangyong Wang, Hao Deng, and Haibin Zhou. 2022. "Experimental Study and Numerical Simulation Analysis on Vertical Vibration Performances of 12 m Span Wood Truss Joist Floors" Buildings 12, no. 9: 1455. https://doi.org/10.3390/buildings12091455
APA StyleZhang, Z., Wang, S., Deng, H., & Zhou, H. (2022). Experimental Study and Numerical Simulation Analysis on Vertical Vibration Performances of 12 m Span Wood Truss Joist Floors. Buildings, 12(9), 1455. https://doi.org/10.3390/buildings12091455

