Research-Integrated Pedagogy with Climate-Responsive Strategies: Vernacular Building Renovation Design
Abstract
:1. Introduction
1.1. Urban and Building Renovation in China
1.2. Parallel Research and Teaching Program on Architectural Design
1.3. Research-Integrated Design Program
1.4. Neighborhood and Community Space
1.5. Climate-Responsive Design
2. Methodology
2.1. Structure of the Program
- (1)
- Neighborhood and building quality investigation;
- (2)
- Study of local climate-responsive strategies via theoretical and field studies;
- (3)
- Field measurements and evaluation of the thermal environment;
- (4)
- Study of sustainable building design guidelines and technologies;
- (5)
- Building performance simulations and evaluations;
- (6)
- Completion of a renovation design project.
2.2. Urban Perspective: Field Survey on the Dense Neighborhood
2.3. Building Perspective: Investigation of the Vernacular Urban House
2.4. Natural Perceptive: Local Climate Studies
2.5. Sustainable Architectural Design Guidelines
2.6. Building Performance Simulation Tools
2.7. Methodologies Summarization
3. Results
3.1. Urban Perspective: Neighborhood and Community
3.1.1. Urban Morphology of the Neighborhood
3.1.2. Public and Private Interaction
3.2. Building Perspective: Space and Construction
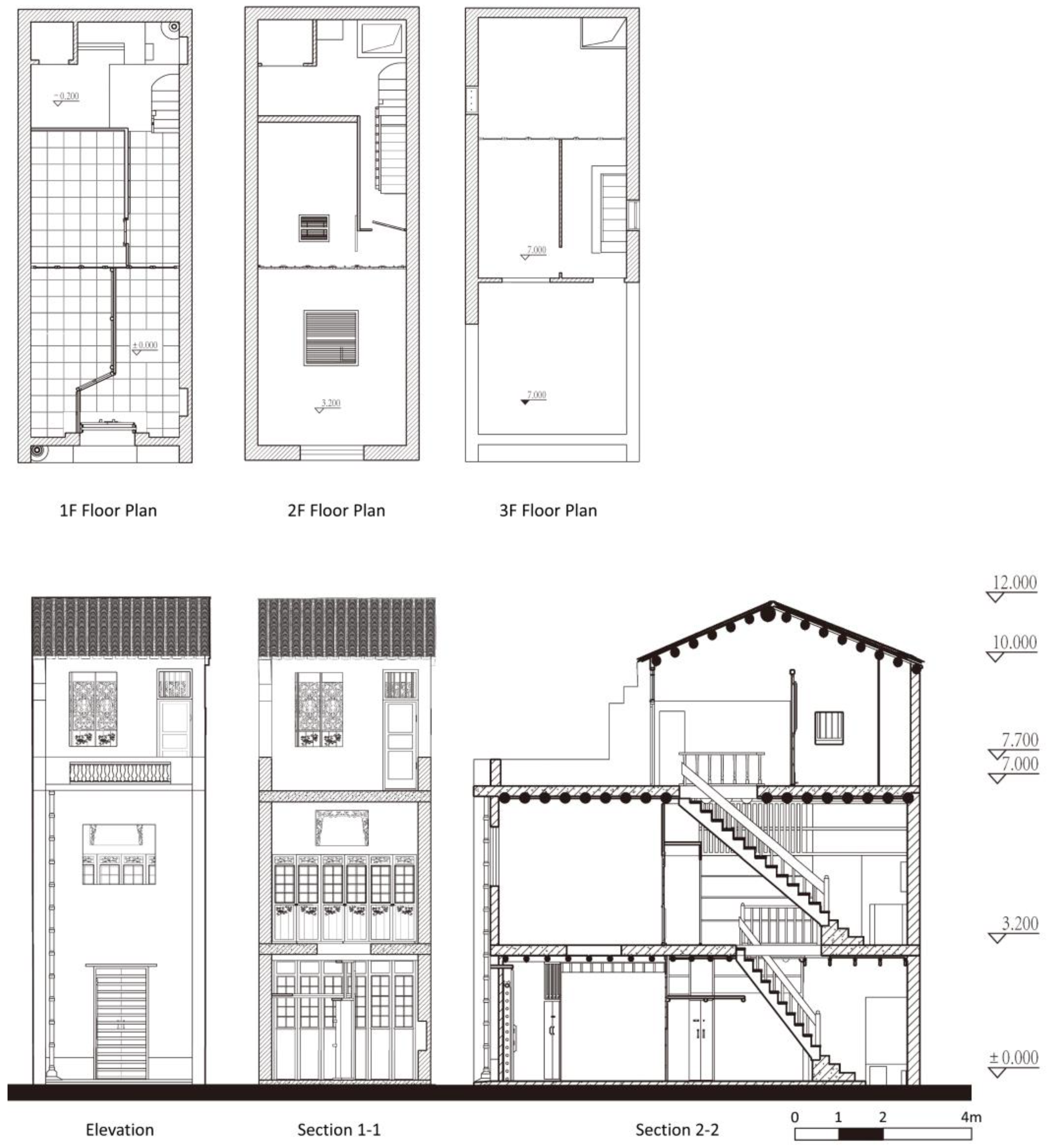
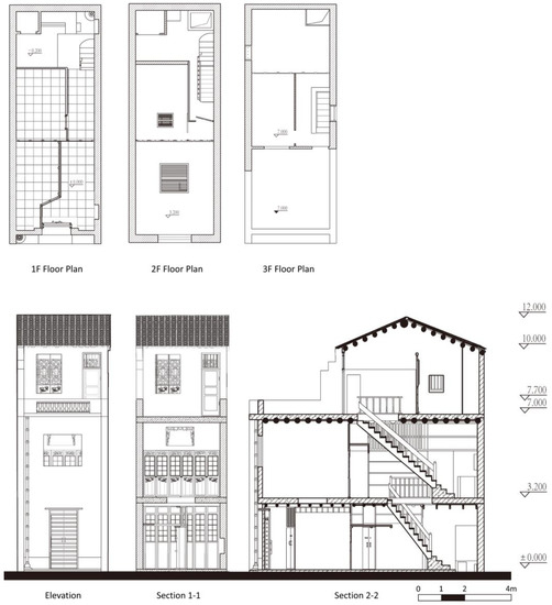
3.2.1. Transition of the Building Layout and Space
3.2.2. Construction Adapting to Local Climate
3.3. Natural Perspective: Thermal Environment Evaluation
3.3.1. Thermal Images of the Street Canyon
3.3.2. Evaluation of the Indoor Thermal Environment
3.4. Renovation Design Strategies
3.4.1. Design Workflow
- How to improve the space, based on the understanding of climate-responsive design?
- How to provide a much more active relationship with the street, thereby improving the communication between public and private?
- How to maintain the memory and the history of the building?
- How to improve the thermal environment of the building?
- How to integrate sustainable building technologies under the guidelines of ASAH?
3.4.2. ASAH Guidelines
3.4.3. Building Performance Simulations
- (1)
- Weather data
- (2)
- Daylighting simulations
- (3)
- Natural ventilation simulations
3.4.4. Sustainable Technologies
- (1)
- Photovoltaic (PV) panels
- (2)
- Green wall
- (3)
- Shading devices
- (4)
- Water treatment
- (5)
- Reuse of construction and materials
4. Discussion
4.1. Setting of the Research and Teaching Topic
4.2. Integration of Multidisciplinary Methodologies in the Design Studio
4.3. Relationship between the Parallel Research Project and Main Design Studios
4.4. Limitations
5. Conclusions
- (1)
- Observation of urban morphology revealed the high-density character of the study neighborhood, whose FAR was approximately 2.8 and density was approximately 74%; and the aspect ratio of the street was found to be approximately 1.9–5.2.
- (2)
- Thermal measurements in the study street showed that the peak surface temperature difference between the shaded and unshaded areas was as high as 5.1 °C in summer. Compared to the outdoor area, the average Ta in the street was reduced by approximately 3.4 °C in the transitional season and in summer. The dense low-rise neighborhood provided a cooler space than the outdoor environment. Results showed the potential for cooling energy reduction and thermal comfort improvement in the traditional urban morphology.
- (3)
- Surveyed from a social perspective, the semi-open space that allowed interaction between public and private space was recognized. Factors in the street also enrich the definition of new pattern languages in the east Asian background.
- (4)
- On the building level, the field investigation of the construction of the vernacular house revealed some climate-responsive wisdom for thermal comfort, natural ventilation, daylighting improvement, and resilience to the rainy weather.
- (5)
- Thermal measurements in the study house showed that the average Ta of the second and first floors was reduced by 1.2 and 2.9 °C in the transitional season, and by 1.3 and 3.4 °C in summer, respectively. Field measurements proved the effectiveness of the climate-responsive characters of the vernacular house and provided an intuitive understanding for the students, leading to the renovation design included in the education program.
- (6)
- Guidelines of ASAH, sustainable technologies, and building performance simulation methods were introduced and applied in the renovation concept design process. The strategy of construction and material reuse was also perceived.
- (1)
- The research-integrated program was achieved by the students and tutors. The process of the program was divided into two parts, namely, the research and design periods. The first semester’s works on urban and building research solidly supported the architectural design in the second semester.
- (2)
- A multidisciplinary approach was conducted systematically. Both social and physical perspectives were integrated into this program. The observation of urban morphology with the methods of pattern language and community interaction provided the students with a simple and comprehensible vision at the beginning of the project. The measurements, technologies analysis, and simulation methods were introduced gradually and deepened the understanding of climate-responsive strategies within the process.
- (3)
- The method of climate-responsive design was effectively studied with a systematic process including field survey, physical indices measurements, building history and construction analysis, ASAH guidelines, and simulation and evaluation tools.
- (4)
- This parallel training project acted as an important supplement to the regular teaching schedule. The practice and training in this project brought novel views responding to the theoretical teaching in the main courses, improving the holistic architectural design pedagogy.
Author Contributions
Funding
Institutional Review Board Statement
Informed Consent Statement
Data Availability Statement
Acknowledgments
Conflicts of Interest
References
- Duan, L.; Liu, Z.; Yu, W.; Chen, W.; Jin, D.; Sun, S.; Dai, R. Trend of urbanization rate in china various regions. IOP Conf. Ser. Earth Environ. Sci. 2021, 772, 012008. [Google Scholar] [CrossRef]
- Available online: http://english.scio.gov.cn/chinavoices/2020-07/20/content_76290732.htm (accessed on 20 April 2022).
- Yang, F.; Jiang, Z. Urban building energy modelling and urban design for sustainable neighbourhood development-A China perspective. IOP Conf. Ser. Earth Environ. Sci. 2019, 329, 012016. [Google Scholar] [CrossRef]
- Yuan, X.; Ma, R.; Zuo, J.; Mu, R. Towards a sustainable society: The status and future of energy performance contracting in China. J. Clean. Prod. 2016, 112, 1608–1618. [Google Scholar] [CrossRef]
- Salama, A.M. Delivering theory courses in architecture: Inquiry based, active, and experiential learning integrated. Archnet-IJAR: Int. J. Archit. Res. 2010, 4, 278–295. [Google Scholar]
- Liu, Z.; Deng, Z.; He, G.; Wang, H.; Zhang, X.; Lin, J.; Qi, Y.; Liang, X. Challenges and opportunities for carbon neutrality in China. Nat. Rev. Earth Environ. 2022, 3, 141–155. [Google Scholar] [CrossRef]
- Cong, G. Cultivation and training of design analytical thinking: A case of architecture course teaching. J. Archit. Educ. Inst. High. Learn. 2022, 31, 134–141. (In Chinese) [Google Scholar] [CrossRef]
- Dan, Y. Research on the cultivation of practical ability of undergraduates in architecture specialty: Based on text analysis of 5 universities in Guangdong province. J. Archit. Educ. Inst. High. Learn. 2020, 29, 14–21. (In Chinese) [Google Scholar] [CrossRef]
- De Gaulmyn, C.; Dupre, K. Teaching sustainable design in architecture education: Critical review of easy approach for sustainable and environmental design(EASED). Front. Archit. Res. 2019, 8, 238–260. [Google Scholar] [CrossRef]
- Kosanović, S.; Klein, T.; Konstantinou, T.; Radivojević, A.; Hildebrand, L. (Eds.) Sustainable and resilient building design: Approaches, methods and tools. In Reviews of Sustainability and Resilience of the Built Environment for Education, Research and Design; TU Delft Open: Delft, The Netherlands, 2018; Volume 5. [Google Scholar] [CrossRef]
- Reinhart, C.; Geisinger, F.; Dogan, T.; Saratsis, E. Lessons learnt from a simulation-based approach to teaching building science to designers. In Proceedings of the 10th international building performance simulation association conference and exhibition 2015, Hyderabad, India, 7–9 December 2015; pp. 1126–1133. [Google Scholar]
- Albert, C.; Brillinger, M.; Guerrero, P.; Gottwald, S.; Henze, J.; Schmidt, S.; Ott, E.; Schröter, B. Planning nature-based solutions: Principles, steps, and insights. Ambio 2021, 50, 1446–1461. [Google Scholar] [CrossRef]
- Jiajie, Y.; Lei, X.; Yinan, Z.; Guangsi, L. The practice of positive design in community construction: The case of community construction in DGZ South Street, Guangzhou. J. Archit. Educ. Inst. High. Learn. 2022, 31, 35–43. (In Chinese) [Google Scholar] [CrossRef]
- Ying, S.; Xiaoyun, W.; Zhiying, L.; Ye, L. Course teaching of basic design of architecture based on built heritage protection dimension. J. Archit. Educ. Inst. High. Learn. 2021, 30, 101–108. (In Chinese) [Google Scholar] [CrossRef]
- Shaopeng, Z.; Jing, W.; Tianxiang, L. Deepened learning environment design of building construction with integration of teaching, learning and doing. J. Archit. Educ. Inst. High. Learn. 2020, 29, 67–74. (In Chinese) [Google Scholar] [CrossRef]
- Chao, M.; Guilin, J.; Xiaoyu, S. Experimental on spatial cognition teaching for architectural students under VR technology. J. Archit. Educ. Inst. High. Learn. 2020, 29, 144–152. (In Chinese) [Google Scholar] [CrossRef]
- Hensel, M.; Santucci, D.; Sunguroğlu Hensel, D.; Auer, T. The lampedusa studio: A multimethod pedagogy for tackling compound sustainability problems in architecture, landscape architecture, and urban design. Sustainability 2020, 12, 4369. [Google Scholar] [CrossRef]
- Mingzhi, L.; Xiaoying, Z. Inheritance, integration and innovation: An analysis on international urban design workshop of Tokyo Tech. J. Archit. Educ. Inst. High. Learn. 2020, 29, 139–151. (In Chinese) [Google Scholar] [CrossRef]
- Zheng, Z.; Xueying, L.; Qinfeng, P.; Chen, W. On integration of innovation, entrepreneurship and creation education and professional education in colleges and universities. J. Archit. Educ. Inst. High. Learn. 2020, 29, 164–169. (In Chinese) [Google Scholar] [CrossRef]
- Zhang, F.; Yang, J. The ecological civilization education construction in art education under the background of “Internet +”. Alex. Eng. J. 2022, 61, 8955–8962. [Google Scholar] [CrossRef]
- Dorst, K. The core of ‘design thinking’ and its application. Des. Stud. 2011, 32, 521–532. [Google Scholar] [CrossRef]
- Devisch, O.; Hannes, E.; Trinh, T.A.; Leus, M.; Berben, J.; Hiến, Đ.T. Research-by-design framework for integrating education and research in an intercultural parallel design studio. Front. Archit. Res. 2019, 8, 406–414. [Google Scholar] [CrossRef]
- Soliman, A.M. Appropriate teaching and learning strategies for the architectural design process in pedagogic design studios. Front. Archit. Res. 2017, 6, 204–217. [Google Scholar] [CrossRef]
- Grover, R.; Emmitt, S.; Copping, A. Critical learning for sustainable architecture: Opportunities for design studio pedagogy. Sustain. Cities Soc. 2020, 53, 101876. [Google Scholar] [CrossRef]
- Lucchi, E.; Delera, A.C. Enhancing the historic public social housing through a user-centered design-driven approach. Buildings 2020, 10, 159. [Google Scholar] [CrossRef]
- Grover, R.; Emmitt, S.; Copping, A. The typological learning framework: The application of structured precedent design knowledge in the architectural design studio. Int. J. Technol. Des. Educ. 2018, 28, 1019–1038. [Google Scholar] [CrossRef]
- Lenzholzer, S.; Brown, R.D. Climate-responsive landscape architecture design education. J. Clean. Prod. 2013, 61, 89–99. [Google Scholar] [CrossRef]
- Combrinck, C. Socially responsive research-based design in an architecture studio. Front. Archit. Res. 2018, 7, 211–234. [Google Scholar] [CrossRef]
- Eilouti, B. Concept evolution in architectural design: An octonary framework. Front. Archit. Res. 2018, 7, 180–196. [Google Scholar] [CrossRef]
- Brambilla, A.; Salvalai, G.; Tonelli, C.; Imperadori, M. Comfort analysis applied to the international standard “Active House”: The case of RhOME, the winning prototype of Solar Decathlon 2014. J. Build. Eng. 2017, 12, 210–218. [Google Scholar] [CrossRef]
- Sedrez, M.; Xie, J.; Cheshmehzangi, A. Integrating water sensitive design in the architectural design studio in china: Challenges and outcomes. Sustainability 2021, 13, 4853. [Google Scholar] [CrossRef]
- Alexander, C.; Ishikawa, S.; Silverstein, M. A Pattern Language: Towns, Buildings, Construction; Oxford University Press: Oxford, UK, 1977. [Google Scholar]
- Available online: https://patterns.architexturez.net/ (accessed on 20 April 2022).
- Mehaffy, M.W.; Kryasheva, Y.; Rudd, A.; Salingaros, N.A.; Gren, A. A New Pattern Language for Growing Regions: Places, Networks, Processes: A Collection of 80 New Patterns for a New Generation of Urban Challenges; Mijnbestseller.nl: Rotterdam, The Netherlands, 2020. [Google Scholar]
- Smith, T.; Nelischer, M.; Perkins, N. Quality of an urban community: A framework for understanding the relationship between quality and physical form. Landsc. Urban Plan. 1997, 39, 229–241. [Google Scholar] [CrossRef]
- Iwańczak, B.; Lewicka, M. Affective map of Warsaw: Testing Alexander’s pattern language theory in an urban landscape. Landsc. Urban Plan. 2020, 204, 103910. [Google Scholar] [CrossRef]
- Pakzad, E.; Salari, N. Measuring sustainability of urban blocks: The case of Dowlatabad, Kermanshah city. Cities 2018, 75, 90–100. [Google Scholar] [CrossRef]
- Sarkar, A.; Bardhan, R. Socio-physical liveability through socio-spatiality in low-income resettlement archetypes—A case of slum rehabilitation housing in Mumbai, India. Cities 2020, 105, 102840. [Google Scholar] [CrossRef] [PubMed]
- Paköz, M.Z.; Işık, M. Rethinking urban density, vitality and healthy environment in the post-pandemic city: The case of Istanbul. Cities 2022, 124, 103598. [Google Scholar] [CrossRef] [PubMed]
- Huang, J.; Cui, Y.; Chang, H.; Obracht-Prondzyńska, H.; Kamrowska-Zaluska, D.; Li, L. A city is not a tree: A multi-city study on street network and urban life. Landsc. Urban Plan. 2022, 226, 104469. [Google Scholar] [CrossRef]
- Hyde, R. Climate Responsive Architecture; Spon, E.F., Ed.; Chapman Hall: London, UK, 1996. [Google Scholar]
- Yang, W.; Xu, J.; Lu, Z.; Yan, J.; Li, F. A systematic review of indoor thermal environment of the vernacular dwelling climate responsiveness. J. Build. Eng. 2022, 53, 104514. [Google Scholar] [CrossRef]
- Mao, P.; Li, J.; Tan, Y.; Qi, J.; Xiong, L. Regional suitability of climate-responsive technologies for buildings based on expert knowledge: A China study. J. Clean. Prod. 2018, 204, 158–168. [Google Scholar] [CrossRef]
- Ministry of Housing and Urban-Rural Construction of the People’s Republic of China. Thermal Design Code for Civil Building (GBT50176-2016); China Architecture Building Press: Beijing, China, 2016.
- Hoang, N.H.; Ishigaki, T.; Watari, T.; Yamada, M.; Kawamoto, K. Current state of building demolition and potential for selective dismantling in Vietnam. Waste Manag. 2022, 149, 218–227. [Google Scholar] [CrossRef]
- Cascone, S.; Sciuto, G. Recovery and reuse of abandoned buildings for student housing: A case study in Catania, Italy. Front. Archit. Res. 2018, 7, 510–520. [Google Scholar] [CrossRef]
- Li, Z.; Zou, Y.; Tian, M.; Ying, Y. Research on optimization of climate responsive indoor space design in residential buildings. Buildings 2022, 12, 59. [Google Scholar] [CrossRef]
- Li, Z.; Genovese, P.V.; Zhao, Y. Study on multi-objective optimization-based climate responsive design of residential building. Algorithms 2020, 13, 238. [Google Scholar] [CrossRef]
- Available online: https://www.ladybug.tools/honeybee.html (accessed on 20 April 2022).
- Available online: https://www.rhino3d.com/ (accessed on 20 April 2022).
- Nguyen, A.-T.; Tran, Q.-B.; Tran, D.-Q.; Reiter, S. An investigation on climate responsive design strategies of vernacular housing in Vietnam. Build. Environ. 2011, 46, 2088–2106. [Google Scholar] [CrossRef]
- Bodach, S.; Lang, W.; Hamhaber, J. Climate responsive building design strategies of vernacular architecture in Nepal. Energy Build. 2014, 81, 227–242. [Google Scholar] [CrossRef]
- Cisek, E.; Jaglarz, A. Architectural education in the current of deep ecology and sustainability. Buildings 2021, 11, 358. [Google Scholar] [CrossRef]
- Park, E.J.; Lee, S. Creative thinking in the architecture design studio: Bibliometric analysis and literature review. Buildings 2022, 12, 828. [Google Scholar] [CrossRef]
- Kashef, M. Urban livability across disciplinary and professional boundaries. Front. Archit. Res. 2016, 5, 239–253. [Google Scholar] [CrossRef]
- Zhang, Z.; Wang, X.; Zhu, G.; Zhang, W.; Chen, L.; Fang, K.; Xie, Y.; Shen, M.; Furuya, N. A micro-scale study on the spontaneous spatial improvement of in-between spaces in Chinese traditional districts considering the relationship between modifications and encroachment. J. Asian Archit. Build. Eng. 2022, in press. [CrossRef]
- Available online: https://www.activehouse.info/ (accessed on 20 April 2022).
- Yung, E.H.K.; Langston, C.; Chan, E.H.W. Adaptive reuse of traditional Chinese shophouses in government-led urban renewal projects in Hong Kong. Cities 2014, 39, 87–98. [Google Scholar] [CrossRef]
- Han, W.; Beisi, J. A morphological study of traditional shophouse in china and southeast asia. Procedia-Soc. Behav. Sci. 2015, 179, 237–249. [Google Scholar] [CrossRef]
- Yin, S.; Wang, F.; Xiao, Y.; Xue, S. Comparing cooling efficiency of shading strategies for pedestrian thermal comfort in street canyons of traditional shophouse neighbourhoods in Guangzhou, China. Urban Clim. 2022, 43, 101165. [Google Scholar] [CrossRef]
- Xiong, L. Design analysis and generation of traditional dwellings—The Chinese Bamboo House. In Proceedings of the 2011 International Conference on Multimedia Technology, Hangzhou, China, 26–28 July 2011; pp. 5353–5356. [Google Scholar] [CrossRef]
- Can, I. In-Between Space and Social Interaction: A Case Study of Three Neighbourhoods in Izmir; University of Nottingham: Nottingham, UK, 2012. [Google Scholar]
- He, B.-J.; Ding, L.; Prasad, D. Relationships among local-scale urban morphology, urban ventilation, urban heat island and outdoor thermal comfort under sea breeze influence. Sustain. Cities Soc. 2020, 60, 102289. [Google Scholar] [CrossRef]
- Photograph by Fu Bingchang. Image Courtesy of C.H. Foo, Y.W. Foo and Special Collections, University of Bristol Library. Available online: https://www.hpcbristol.net/visual/ub01-20 (accessed on 20 April 2022).
- Zhang, Z.; Zhang, Y.; Jin, L. Thermal comfort in interior and semi-open spaces of rural folk houses in hot-humid areas. Build. Environ. 2018, 128, 336–347. [Google Scholar] [CrossRef]
- Lin, H.; Xiao, Y.; Musso, F.; Lu, Y. Green façade effects on thermal environment in transitional space: Field measurement studies and computational fluid dynamics simulations. Sustainability 2019, 11, 5691. [Google Scholar] [CrossRef]
- Chen, G.; He, M.; Li, N.; He, H.; Cai, Y.; Zheng, S. A method for selecting the typical days with full urban heat island development in hot and humid area, case study in guangzhou, china. Sustainability 2020, 13, 320. [Google Scholar] [CrossRef]
- Feifer, L.; Imperadori, M.; Salvalai, G.; Brambilla, A.; Brunone, F. Active House: Smart Nearly Zero Energy Buildings; Springer International Publishing: Cham, Switzerland, 2018. [Google Scholar] [CrossRef]
- The Architectural Society of China. Assessment Standard for Active House (T/ASC 14-2020); China Architecture Building Press: Beijing, China, 2020. [Google Scholar]
- Lin, H.; Ni, H.; Xiao, Y.; Zhu, X. Couple simulations with CFD and ladybug + honeybee tools for green façade optimizing the thermal comfort in a transitional space in hot-humid climate. J. Asian Archit. Build. Eng. 2022, in press. [Google Scholar] [CrossRef]
- Available online: https://www.openstudio.net/node/2296 (accessed on 20 April 2022).
- Available online: https://energyplus.net/ (accessed on 20 April 2022).
- Available online: https://energyplus.net/weather (accessed on 20 April 2022).
- Antoniou, N.; Montazeri, H.; Neophytou, M.; Blocken, B. CFD simulation of urban microclimate: Validation using high-resolution field measurements. Sci. Total Environ. 2019, 695, 133743. [Google Scholar] [CrossRef]
- Hassan, A.M.; ELMokadem, A.A.; Megahed, N.A.; Abo Eleinen, O.M. Urban morphology as a passive strategy in promoting outdoor air quality. J. Build. Eng. 2020, 29, 101204. [Google Scholar] [CrossRef]
- Zhai, Z.J.; Xue, Y.; Chen, Q. Inverse design methods for indoor ventilation systems using CFD-based multi-objective genetic algorithm. Build. Simul. 2014, 7, 661–669. [Google Scholar] [CrossRef]
- Shih, T.-H.; Liou, W.W.; Shabbir, A.; Yang, Z.; Zhu, J. A New K-ϵ Eddy Viscosity Model for High Reynolds Number Turbulent Flows. Comput. Fluids 1995, 24, 227–238. [Google Scholar] [CrossRef]
- Richards, P.J.; Hoxey, R.P. Appropriate Boundary Conditions for Computational Wind Engineering Models Using the K-ϵ Turbulence Model. J. Wind. Eng. Ind. Aerodyn. 1993, 46–47, 145–153. [Google Scholar] [CrossRef]
- Tominaga, Y.; Mochida, A.; Yoshie, R.; Kataoka, H.; Nozu, T.; Yoshikawa, M.; Shirasawa, T. AIJ guidelines for practical applications of CFD to pedestrian wind environment around buildings. J. Wind. Eng. Ind. Aerodyn. 2008, 96, 1749–1761. [Google Scholar] [CrossRef]




























| Year | Basic Training Capacity | Design Studio Themes | Pedagogy Methodologies |
|---|---|---|---|
| 1st year | Space and form |
| freehand sketch, handicraft modeling, architectural drawing, etc. |
| 2nd year | Environment and behavior |
| environment and behavior observation, photography, mapping, CAD, etc. |
| 3rd year | Social and humanity |
| social investigation, building codes, case study, structure, material and construction, 3D model, etc. |
| 4th year | Urban and technology |
| specific building structure, building technology, construction drawing, etc. |
| 5th year | Practice | Optional special themes for the tutors and students (urban design, typological building, heritage building, etc.) | real project participation |
| Program Object | Intention or Role | Program Structure | Main Methodologies | Student Level & University | Duration | Reference |
|---|---|---|---|---|---|---|
|
|
|
|
| 1 semester | [25] |
|
|
|
|
| 5 weeks | [26] |
|
|
|
|
| 1 semester | [17] |
|
|
|
|
| 13 weeks | [7] |
|
|
|
|
| 1 semester | [28] |
|
|
|
|
| 1 semester | [29] |
|
|
|
|
| 1 year | [30] |
|
|
|
|
| 1 semester | [22] |
|
|
| Part A
|
| 3 months | [27] |
Part B
|
| 1 semester | ||||
|
|
|
|
| 1 year | [31] |
| Instruments and Probes | Accuracy | Range | Frequency |
|---|---|---|---|
| (1) HOBO data loggers (U23 Pro v2) | Ta: ±0.21 °C RH: ±2.5% | Ta: 0–50 °C RH: 10–90% | 5 min |
| (2) HD32.3 with probes: | |||
| 2a. TP3276.2 Globe thermometer probe (Ø = 50 mm) | Tg: 1/3 DIN | Tg: −10–100 °C | 5 min |
| 2b. AP3203 Omnidirectional hot wire probe | Va: ±0.05 m s−1 (0–1 m s−1), ±0.15 m s−1 (1–5 m s−1) | Va: 0–5 m/s | 5 min |
| (3) Flir E4 Thermal Imager | ±2% | −20–250 °C | - |
| Hierarchy | Number of Clauses | |||
|---|---|---|---|---|
| Activeness | Comfort | Energy | Environment | |
| Prerequisite Items | 3 | 6 | 5 | 3 |
| Scoring Items | 2 | 3 | 2 | 2 |
| Optional Items | 6 | 7 | 2 | 4 |
| Total | 11 | 16 | 9 | 9 |
| Ta (°C) | January | March–May | July–September | ||||||
|---|---|---|---|---|---|---|---|---|---|
| Ave. | Max. | Min. | Ave. | Max. | Min. | Ave. | Max. | Min. | |
| Outdoor | N/A | N/A | N/A | 28.3 | 39.0 | 17.0 | 33.9 | 44.0 | 29.0 |
| Street | N/A | N/A | N/A | 24.9 | 33.1 | 15.5 | 30.4 | 36.4 | 25.8 |
| 3F | 18.3 | 22.0 | 12.8 | 26.2 | 33.0 | 17.3 | 31.4 | 36.3 | 28.4 |
| 2F | 17.3 | 21.5 | 13.1 | 25.0 | 30.1 | 17.9 | 30.1 | 32.9 | 28.3 |
| 1F | 16.0 | 22.5 | 13.1 | 23.3 | 27.2 | 17.4 | 28.0 | 28.8 | 27.0 |
| RH (%) | |||||||||
| Outdoor | N/A | N/A | N/A | 60.1 | 83.0 | 31.0 | 61.5 | 80.0 | 34.0 |
| Street | N/A | N/A | N/A | 72.2 | 95.5 | 40.2 | 76.1 | 98.0 | 50.1 |
| 3F | 54.6 | 74.8 | 35.4 | 68.0 | 81.6 | 49.6 | 71.1 | 86.4 | 50.5 |
| 2F | 56.2 | 71.4 | 39.9 | 74.3 | 87.0 | 55.3 | 78.2 | 90.3 | 61.9 |
| 1F | 67.7 | 80.2 | 46.0 | 83.8 | 91.4 | 63.5 | 93.7 | 96.0 | 89.2 |
| Tg (°C) | |||||||||
| 3F | N/A | N/A | N/A | 25.5 | 32.6 | 17.1 | 31.3 | 37.4 | 28.2 |
| 2F | N/A | N/A | N/A | 24.5 | 29.9 | 16.9 | 31.3 | 35.0 | 28.3 |
| 1F | N/A | N/A | N/A | 22.7 | 26.2 | 17.0 | 28.9 | 30.3 | 27.5 |
| Semester | Relative Main Courses and Design Studios | Parallel Research Program |
|---|---|---|
| Autumn Semester (Sep–Jan) |
|
|
| Spring Semester (Feb–July) |
|
|
Publisher’s Note: MDPI stays neutral with regard to jurisdictional claims in published maps and institutional affiliations. |
© 2022 by the authors. Licensee MDPI, Basel, Switzerland. This article is an open access article distributed under the terms and conditions of the Creative Commons Attribution (CC BY) license (https://creativecommons.org/licenses/by/4.0/).
Share and Cite
Lin, H.; Yin, S.; Xie, C.; Lin, Y. Research-Integrated Pedagogy with Climate-Responsive Strategies: Vernacular Building Renovation Design. Buildings 2022, 12, 1294. https://doi.org/10.3390/buildings12091294
Lin H, Yin S, Xie C, Lin Y. Research-Integrated Pedagogy with Climate-Responsive Strategies: Vernacular Building Renovation Design. Buildings. 2022; 12(9):1294. https://doi.org/10.3390/buildings12091294
Chicago/Turabian StyleLin, Hankun, Shi Yin, Chao Xie, and Yaoguang Lin. 2022. "Research-Integrated Pedagogy with Climate-Responsive Strategies: Vernacular Building Renovation Design" Buildings 12, no. 9: 1294. https://doi.org/10.3390/buildings12091294
APA StyleLin, H., Yin, S., Xie, C., & Lin, Y. (2022). Research-Integrated Pedagogy with Climate-Responsive Strategies: Vernacular Building Renovation Design. Buildings, 12(9), 1294. https://doi.org/10.3390/buildings12091294

