Energy-Efficient Solutions Depending on Building Forms Design with Tilted South and North Facades
Abstract
:1. Introduction
2. Methodology
3. Measurements, Simulations and Results
3.1. Solar Angles and Inclined Walls
3.2. Generation of Forms
3.3. Shading and Isolation Performance of Inclined Facades
3.4. Results of Energy Consumption and Discussions
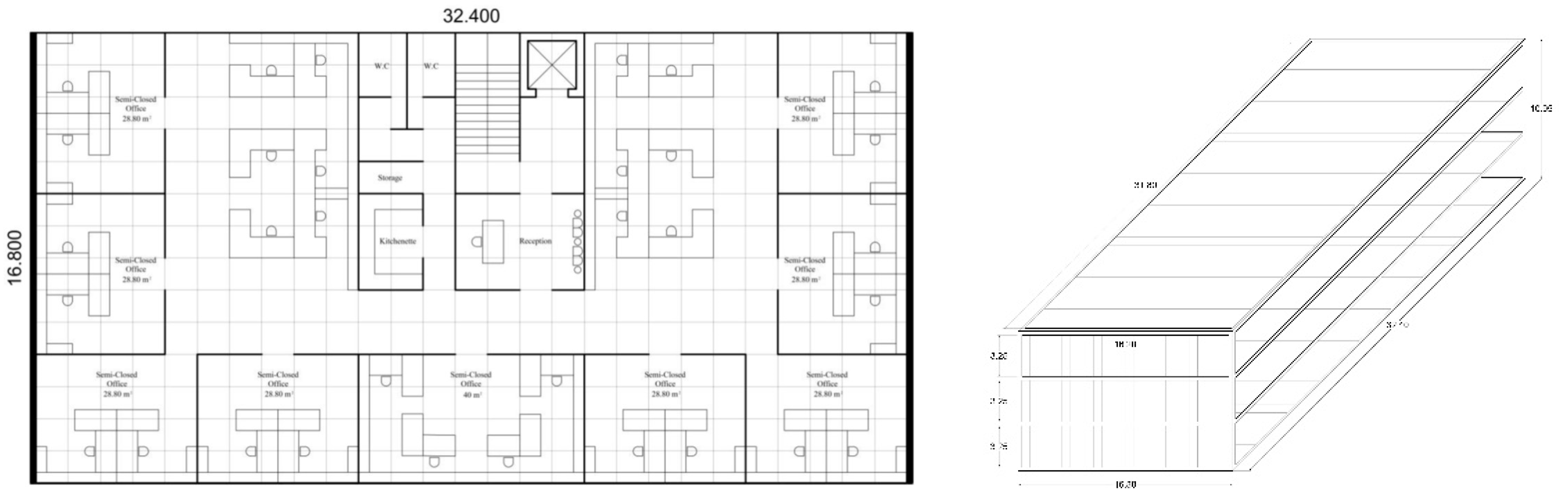
3.4.1. Step One: Developing the Basic Form Design Unit
3.4.2. Energy Consumption
3.5. Step Two: Generation of Optimum Building Forms
4. Conclusions
Funding
Acknowledgments
Conflicts of Interest
References
- Ramesh, T.; Prakash, R.; Shukla, K.K. Life cycle energy analysis of buildings: An overview. Energy Build. 2010, 42, 1592–1600. [Google Scholar] [CrossRef]
- Ramesh, T.; Prakash, R.; Shukla, K.K. Life cycle energy analysis of a residential building with different envelopes and climates in Indian context. Appl. Energy 2012, 89, 193–202. [Google Scholar] [CrossRef]
- Hemsath, T.L.; Alagheband Bandhosseini, K. Sensitivity analysis evaluating basic building geometry’s effect on energy use. Renew. Energy 2015, 76, 526–538. [Google Scholar] [CrossRef]
- Freewan, A.A.Y. Impact of external shading devices on thermal and daylighting performance of offices in hot climate regions. Sol. Energy 2014, 102, 14–30. [Google Scholar] [CrossRef]
- Bellia, L.; de Falco, F.; Minichiello, F. Effects of solar shading devices on energy requirements of standalone office buildings for Italian climates. Appl. Therm. Eng. 2013, 54, 190–201. [Google Scholar] [CrossRef]
- Samuel, D.G.L.; Nagendra, S.M.S.; Maiya, M.P. Passive alternatives to mechanical air conditioning of building: A review. Build. Environ. 2013, 66, 54–64. [Google Scholar] [CrossRef]
- Saelens, D.; Parys, W.; Roofthooft, J.; De La Torre, A.T. Reprint of “Assessment of approaches for modeling louver shading devices in building energy simulation programs”. Energy Build. 2014, 68, 799–810. [Google Scholar] [CrossRef]
- Kim, G.; Lim, H.S.; Lim, T.S.; Schaefer, L.; Kim, J.T. Comparative advantage of an exterior shading device in thermal performance for residential buildings. Energy Build. 2012, 46, 105–111. [Google Scholar] [CrossRef]
- Premrov, M.; Žigart, M.; Leskovar, V.Ž. Influence of the building shape on the energy performance of timber-glass buildings located in warm climatic regions. Energy 2018, 149, 496–504. [Google Scholar] [CrossRef]
- Touloupaki, E.; Theodosiou, T. Optimization of Building form to Minimize Energy Consumption through Parametric Modelling. Procedia Environ. Sci. 2017, 38, 509–514. [Google Scholar] [CrossRef]
- Caruso, G.; Fantozzi, F.; Leccese, F. Optimal theoretical building form to minimize direct solar irradiation. Sol. Energy 2013, 97, 128–137. [Google Scholar] [CrossRef]
- Napier, J. Climate Based Façade Design for Business Buildings with Examples from Central London. Buildings 2015, 5, 16–38. [Google Scholar] [CrossRef]
- Wei, L.; Tian, W.; Zuo, J.; Yang, Z.-Y.; Liu, Y.; Yang, S. Effects of Building Form on Energy Use for Buildings in Cold Climate Regions. Procedia Eng. 2016, 146, 182–189. [Google Scholar] [CrossRef]
- Rashdi, W.S.S.W.M.; Embi, M.R. Analysing Optimum Building form in Relation to Lower Cooling Load. Procedia-Soc. Behav. Sci. 2016, 222, 782–790. [Google Scholar] [CrossRef] [Green Version]
- Keshavarzian, E.; Jin, R.; Dong, K.; Kwok, K.C. Effect of building cross-section shape on air pollutant dispersion around buildings. Build. Environ. 2021, 197, 107861. [Google Scholar] [CrossRef]
- Gamero-Salinas, J.; Kishnani, N.; Monge-Barrio, A.; López-Fidalgo, J.; Sánchez-Ostiz, A. Evaluation of thermal comfort and building form attributes in different semi-outdoor environments in a high-density tropical setting. Build. Environ. 2021, 205, 108255. [Google Scholar] [CrossRef]
- Abramczyk, J. Parametric building forms rationalizing the incident direct solar irradiation. Build. Environ. 2022, 215, 108963. [Google Scholar] [CrossRef]
- Feng, J.; Luo, X.; Gao, M.; Abbas, A.; Xu, Y.-P.; Pouramini, S. Minimization of energy consumption by building shape optimization using an improved Manta-Ray Foraging Optimization algorithm. Energy Rep. 2021, 7, 1068–1078. [Google Scholar] [CrossRef]
- Taleb, S.; Yeretzian, A.; Jabr, R.A.; Hajj, H. Optimization of building form to reduce incident solar radiation. J. Build. Eng. 2020, 28, 101025. [Google Scholar] [CrossRef]
- Monteiro, H.; Freire, F.; Soares, N. Life cycle assessment of a south European house addressing building design options for orientation, window sizing and building shape. J. Build. Eng. 2021, 39, 102276. [Google Scholar] [CrossRef]
- Yeretzian, A.; Partamian, H.; Dabaghi, M.; Jabr, R. Integrating building shape optimization into the architectural design process. Archit. Sci. Rev. 2020, 63, 63–73. [Google Scholar] [CrossRef]
- Zerefos, S.C.; Tessas, C.A.; Kotsiopoulos, A.M.; Founda, D.; Kokkini, A. The role of building form in energy consumption: The case of a prismatic building in Athens. Energy Build. 2012, 48, 97–102. [Google Scholar] [CrossRef]
- Azari, R.; Garshasbi, S.; Amini, P.; Rashed-Ali, H.; Mohammadi, Y. Multi-objective optimization of building envelope design for life cycle environmental performance. Energy Build. 2016, 126, 524–534. [Google Scholar] [CrossRef]
- Yasa, E. The Evaluation of the Effects of Different Building Forms and Settlement Areas on the Thermal Comfort of Buildings. Procedia Eng. 2017, 205, 3267–3276. [Google Scholar] [CrossRef]
- Moreno, B.; Hernández, J.A. Analytical solutions to evaluate solar radiation overheating in simplified glazed rooms. Build. Environ. 2018, 140, 162–172. [Google Scholar] [CrossRef]
- Blanco, J.M.; Buruaga, A.; Rojí, E.; Cuadrado, J.; Pelaz, B. Energy assessment and optimization of perforated metal sheet double skin façades through Design Builder; A case study in Spain. Energy Build. 2016, 111, 326–336. [Google Scholar] [CrossRef]
- Elshafei, G.; Negm, A.; Bady, M.; Suzuki, M.; Ibrahim, M.G. Numerical and experimental investigations of the impacts of window parameters on indoor natural ventilation in a residential building. Energy Build. 2017, 141, 321–332. [Google Scholar] [CrossRef]
- Campano, M.Á.; Pinto, A.; Acosta, I.; Sendra, J.J. Validation of a Dynamic Simulation of a Classroom HVAC System by Comparison with a Real Model. In Sustainable Development and Renovation in Architecture, Urbanism and Engineering; Springer: Berlin, Germany, 2017; pp. 381–392. [Google Scholar]
- WORLDWEATHERONLINE. World Weather Online|World Weather|Weather Forecast. 2016. Available online: http://www.worldweatheronline.com/ (accessed on 1 March 2022).










| Outward South Facade (Summer Forms) | ||||
|---|---|---|---|---|
| Cooling Load Kwh | Heating Load Kwh | Total Energy Consumption | Reduction Percentage % | |
| Base Case | 43,606.91 | 2210.63 | 45,817.54 | --- |
| 5 | 40,153.54 | 2491.69 | 42,645.23 | −6.92% |
| 10 | 37,513.58 | 2821.03 | 40,334.61 | −11.97% |
| 15 | 35,461.90 | 3213.93 | 38,675.83 | −15.59% |
| 20 | 33,771.05 | 3674.55 | 37,445.60 | −18.27% |
| 25 | 32,422 | 4202 | 36,624 | −20.07% |
| 30 | 31,392 | 4806 | 36,199 | −20.99% |
| 35 | 30,837 | 5413 | 36,251 | −20.88% |
| 40 | 30,715 | 6058 | 36,774 | −19.74% |
| 45 | 30,983 | 6659 | 37,642 | −17.84% |
| Inward South Facade (Winter Forms) | ||||
|---|---|---|---|---|
| Cooling Load Kwh | Heating Load Kwh | Total Energy Consumption | Increase Percentage % | |
| Base Case | 43,606.91 | 2210.63 | 45,817.54 | --- |
| 5 | 47,559.61 | 1988.05 | 49,547.66 | 8.14% |
| 10 | 52,146.25 | 1803.60 | 53,949.85 | 17.75% |
| 15 | 57,192.49 | 1673.32 | 58,865.81 | 28.48% |
| 20 | 62,591.65 | 1582.18 | 64,173.83 | 40.06% |
| 25 | 69,743.51 | 1480.95 | 71,224.46 | 55.45% |
| 30 | 74,773.28 | 1431.20 | 76,204.48 | 66.32% |
| 35 | 83,248.56 | 1354.81 | 84,603.37 | 84.65% |
| 40 | 89,444.95 | 1324.81 | 90,769.76 | 98.11% |
| 45 | 99,849.24 | 1275.67 | 10,1124.91 | 120.71% |
| Outward North Facade—Summer Solution | ||||
|---|---|---|---|---|
| Cooling Load Kwh | Heating Load Kwh | Total Energy Consumption | Reduction Percentage % | |
| Base Case | 43,606.9 | 2210.63 | 45,817.5 | --- |
| 5 | 43,560.8 | 2343.26 | 45,904.1 | 0.19% |
| 10 | 43,300.3 | 2488.92 | 45,789.2 | −0.06% |
| 15 | 43,197.3 | 2431.69 | 45,629 | −0.41% |
| 20 | 42,959.6 | 2512.83 | 45,472.4 | −0.75% |
| 25 | 42,510.2 | 2544.9 | 45,055.1 | −1.66% |
| 30 | 42,113.8 | 2652.28 | 44,766.1 | −2.29% |
| 35 | 41,817.6 | 2711.06 | 44,528.6 | −2.81% |
| 40 | 41,441.4 | 2783.47 | 44,224.9 | −3.48% |
| 45 | 41,162.7 | 2872.63 | 44,035.4 | −3.89% |
| Inward North Facade—Winter Solution | ||||
|---|---|---|---|---|
| Cooling Load Kwh | Heating Load Kwh | Total Energy Consumption | Increase Percentage % | |
| Base Case | 43,606.9 | 2210.63 | 45,817.5 | --- |
| 5 | 43,238.3 | 1911.75 | 45,150.1 | −1.46% |
| 10 | 43,541.7 | 1719.76 | 45,261.5 | −1.21% |
| 15 | 44,376.4 | 1651.33 | 46,027.7 | 0.46% |
| 20 | 46,502.5 | 1488.58 | 47,991.1 | 4.74% |
| 25 | 48,962.8 | 1350.99 | 50,313.8 | 9.81% |
| 30 | 52,390.6 | 1149.81 | 53,540.4 | 16.86% |
| 35 | 56,907.5 | 1033.25 | 57,940.8 | 26.46% |
| 40 | 62,630.3 | 900.823 | 63,531.1 | 38.66% |
| 45 | 69,769.7 | 696.843 | 70,466.5 | 53.80% |
Publisher’s Note: MDPI stays neutral with regard to jurisdictional claims in published maps and institutional affiliations. |
© 2022 by the author. Licensee MDPI, Basel, Switzerland. This article is an open access article distributed under the terms and conditions of the Creative Commons Attribution (CC BY) license (https://creativecommons.org/licenses/by/4.0/).
Share and Cite
Freewan, A.A.Y. Energy-Efficient Solutions Depending on Building Forms Design with Tilted South and North Facades. Buildings 2022, 12, 753. https://doi.org/10.3390/buildings12060753
Freewan AAY. Energy-Efficient Solutions Depending on Building Forms Design with Tilted South and North Facades. Buildings. 2022; 12(6):753. https://doi.org/10.3390/buildings12060753
Chicago/Turabian StyleFreewan, Ahmed A. Y. 2022. "Energy-Efficient Solutions Depending on Building Forms Design with Tilted South and North Facades" Buildings 12, no. 6: 753. https://doi.org/10.3390/buildings12060753
APA StyleFreewan, A. A. Y. (2022). Energy-Efficient Solutions Depending on Building Forms Design with Tilted South and North Facades. Buildings, 12(6), 753. https://doi.org/10.3390/buildings12060753
