Simplified Seismic Assessment of Unreinforced Masonry Residential Buildings in the Balkans: The Case of Serbia
Abstract
:1. Background
2. An Overview of the Seismic Design Codes
3. An Overview of Seismic Design Provisions for Masonry Buildings
4. Seismic Design of Simple Masonry Buildings According to Eurocode 8, Part 1
5. Building Damage in the 2010 Kraljevo, Serbia Earthquake
6. Seismic Assessment a Typical URM Building Damaged in the 2010 Kraljevo Earthquake
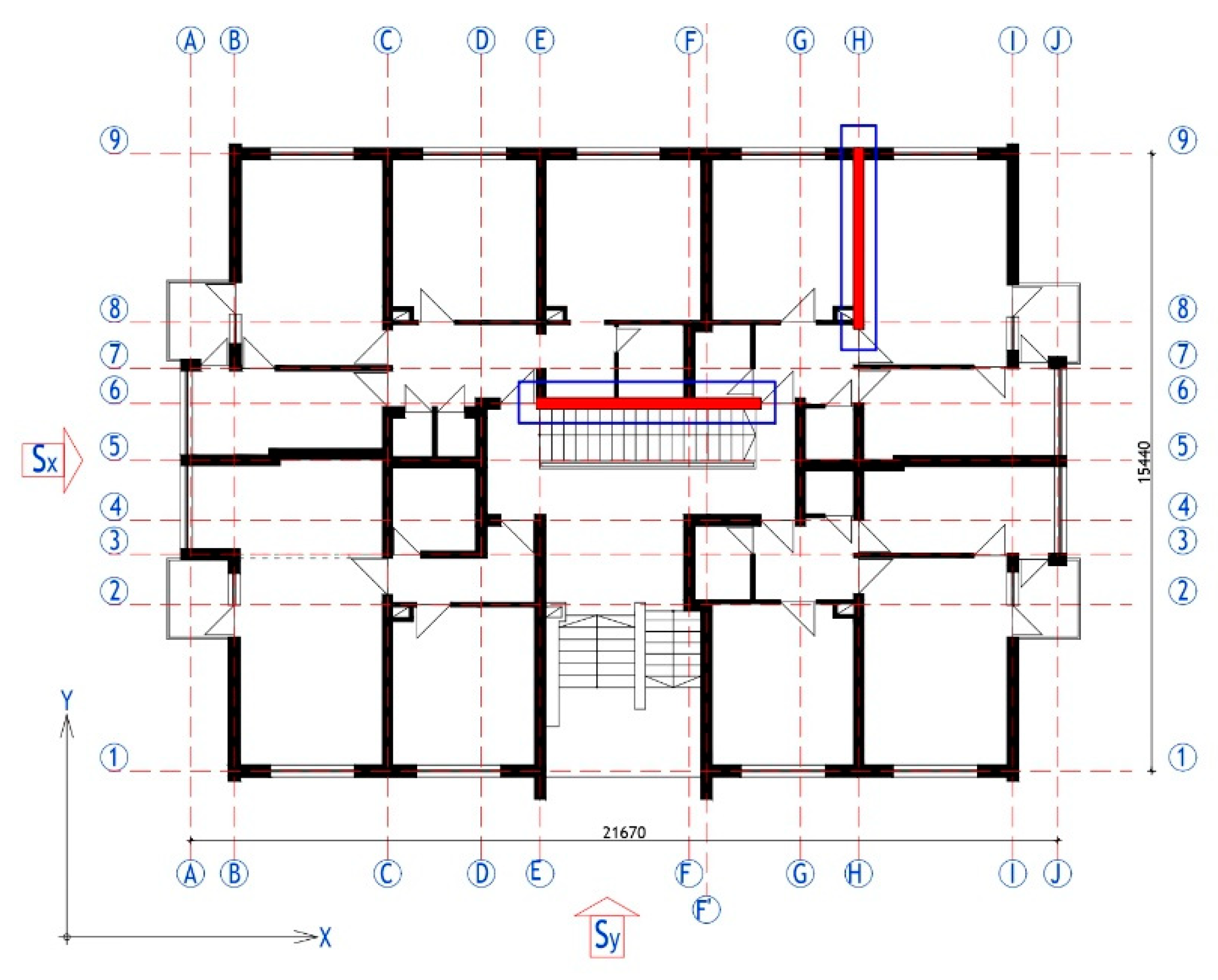
6.1. Building Description
6.2. Numerical Model
6.3. Seismic Analysis According to PTN-S and Eurocode 8
6.4. Seismic Safety Verification According to the Rules for Simple Buildings (Eurocode 8, Part 1)
6.5. Verification of Lateral Load Resistance for Individual Walls
7. Conclusions
- Normalised WI/n values for seven buildings that experienced very heavy structural damage (grade K5) were in a broad range, from 1.0 to 3.0%, but the average value was 1.9%. The majority of the buildings (16 out of 23) experienced heavy damage (grade K4) in the earthquake. A large scatter was observed (WI values ranged from 1.0 to 5.0%), but 90% values were less than 2.9%. It appears that there is no significant difference in WI values for buildings with damage grades K4 and K5. This could be explained by similar characteristics of these damage grades; hence, it would be reasonable to treat them as a single damage grade, as proposed by other researchers [41].
- Based on the results of the study on 23 buildings, it can be concluded that more than 90% of buildings had WI/n value of 2.9% or less. This value is comparable to the minimum WI/n value of 2.5% prescribed by Eurocode 8 for simple buildings, at sites characterised by the same seismic hazard level (agxS < 0.2 g). Note that the Eurocode 8 WI limit is intended for two-storey buildings. The corresponding limit for three-storey buildings is not available because construction of these buildings is not permitted at sites characterised by high seismic hazard.
- According to Eurocode 8 provisions, the required WI value for a specific building depends on the seismic hazard level, number of storeys, and the masonry construction technology (unreinforced, confined, etc.). The WI value also depends on the mechanical properties of masonry, but the fixed minimum value was considered in the current code. In order to facilitate the application of WI for seismic assessment of existing simple masonry buildings, a complete set of recommended WI values is needed for a range of seismic hazard parameters, building heights, combined with different masonry technologies and corresponding mechanical properties of masonry materials.
- 4.
- The total horizontal seismic force calculated based on the 1981 Yugoslav seismic code (PTN-S) is significantly smaller than the corresponding force calculated based on the Eurocode 8, Part 1: the difference for the Kraljevo site (seismic intensity zone VIII according to the PTN-S code) is by more than 100%, even after the partial safety factors were applied for both codes.
- 5.
- The difference in dynamic characteristics of the structure obtained from the two codes, such as mass and fundamental period, are insignificant. For example, modal mass obtained according to the PTN-S code is by only 4% higher than the corresponding mass obtained from Eurocode 8. The difference in modal mass values are due to different load factors for variable loading according to PTN-S (0.5) and Eurocode 8 (0.15).
- 6.
- The design did not meet the minimum WI requirements for simple masonry buildings based on Eurocode 8, Part 1, for walls in longitudinal direction. This finding is in line with the observed damage in this building after the 2010 Kraljevo earthquake.
- 7.
- The shear resistance check was performed according to the two codes for two selected walls—one in the longitudinal direction and the other in the transverse direction. The results showed that, in spite of the different magnitudes of internal forces, the conclusions were the same: the longitudinal wall under consideration was deficient in terms of its shear resistance, while the shear resistance of transverse wall was adequate.
Author Contributions
Funding
Data Availability Statement
Acknowledgments
Conflicts of Interest
References
- Brzev, S.; Blagojević, P.; Cvetković, R. Wall index requirements for seismic design and assessment of masonry buildings. In Proceedings of the 1st Croatian Conference on Earthquake Engineering, Zagreb, Croatia, 22–24 March 2021. [Google Scholar]
- World Bank. Europe and Central Asia (ECA) Risk Profiles: Serbia; World Bank Group: Bretton Woods, NH, USA, 2017; Available online: https://www.gfdrr.org/en/publication/disaster-risk-profile-serbia (accessed on 10 July 2021).
- Statistical Office of the Republic of Serbia (SORS). Number and the Floor Space of Housing Units and Dwellings According to the Occupancy Status, by Settlements. In The Census of Population, Households and Dwellings; Statistical Office of the Republic of Serbia: Belgrade, Serbia, 2011. Available online: https://www.stat.gov.rs/sr-latn/oblasti/popis/popis-2011/popisni-podaci-eksel-tabele/ (accessed on 10 July 2021).
- Novikova, A.; Csoknyai, T.; Jovanović-Popović, M.; Stanković, B.; Živković, B.; Ignjatović, D.; Sretenović, A.; Szalay, Z. The Typology of the Residential Building Stock in Serbia and Modelling Its Low-Carbon Transformation; Support for Low-Emission Development in South Eastern Europe (SLED); Regional Environmental Center of Central and Eastern Europe: Szentendre, Hungary, 2015. [Google Scholar]
- Tomaževič, M.; Lutman, M. Heritage Masonry Buildings in Urban Settlements and the Requirements of Eurocodes: Experience of Slovenia. Int. J. Archit. Herit. 2007, 1, 108–130. [Google Scholar] [CrossRef]
- Tomaževič, M. Heritage Masonry Buildings and Reduction of Seismic Risk: The Case of Slovenia. In Materials, Technologies and Practice in Historic Heritage Structures; Dan, M.B., Přikryl, R., Török, Á., Eds.; Springer: Dordrecht, The Netherlands, 2010. [Google Scholar] [CrossRef]
- Atalić, J.; Šavor Novak, M.; Uroš, M. Seismic risk for Croatia: Overview of research activities and present assessments with guidelines for the future. Građevinar 2019, 71, 923–947. [Google Scholar]
- Šavor Novak, M.; Uroš, M.; Atalić, J.; Herak, M.; Demšić, M.; Baniček, M.; Lazarević, D.; Bijelić, N.; Crnogorac, M.; Todorić, M. Zagreb earthquake of 22 March 2020–preliminary report on seismologic aspects and damage to buildings. Građevinar 2020, 72, 843–867. [Google Scholar] [CrossRef]
- Pavić, G.; Hadzima-Nyarko, M.; Bulajić, B.; Jurković, Ž. Development of Seismic Vulnerability and Exposure Models—A Case Study of Croatia. Sustainability 2020, 12, 973. [Google Scholar] [CrossRef] [Green Version]
- Ademović, N.; Hadzima-Nyarko, M. Seismic Vulnerability, Damage and Strengthening of Masonry Structures in the Balkans with a Focus on Bosnia and Herzegovina. In Proceedings of the 16th European Conference on Earthquake Engineering, Thessaloniki, Greece, 18–21 June 2018. [Google Scholar]
- Ademović, N.; Kalman Šipoš, T.; Hadzima-Nyarko, M. Rapid assessment of earthquake risk for Bosnia and Herzegovina. Bull. Earthq. Eng. 2020, 18, 1835–1863. [Google Scholar] [CrossRef]
- Milutinović, Z.; Šalić, R. An Overview on Earthquake Hazard and Seismic Risk Management Policies of Macedonia. In Proceedings of the International Conference on Earthquake Engineering and Seismology (IZIIS-50), Skopje, Northern Macedonia, 12–16 May 2015. [Google Scholar]
- Tomanović, D.; Marković, L.; Gadžić, N.; Rajković, I.; Aleksić, J.; Tomanović, T. Seismic Evaluation and Methods of Rehabilitation of Old Masonry Buildings in the Bay of Kotor (Montenegro). Appl. Sci. 2021, 11, 3544. [Google Scholar] [CrossRef]
- Manić, M.; Bulajić, B. Ponašanje zidanih zgrada u kraljevačkom zemljotresu od 03. novembra 2010. godine–iskustva i pouke (Behaviour of masonry buildings during the November 03, 2010 Kraljevo earthquake). Izgradnja 2013, 67, 235–246. (In Serbian) [Google Scholar]
- PTP-12. Privremeni Tehnički Propisi za Građenje u Seizmičkim Područjima (Provisional Technical Regulations for Construction in Seismic Regions); Official Gazette of SFRY No. 39/64; Yugoslav Institute for Standardization: Belgrade, Yugoslavia, 1964. (In Serbian) [Google Scholar]
- PTN-S. Pravilnik o Tehničkim Normativima za Izgradnju Objekata Visokogradnje u Seizmičkim Područjima (Technical Regulations for the Design and Construction of Buildings in Seismic Regions); Official Gazette of SFRY No. 31/81 (Amendments 49/82, 29/83, 21/88, 52/90); Yugoslav Institute for Standardization: Belgrade, Yugoslavia, 1981; (In Serbian; Partial English Version). Available online: https://iisee.kenken.go.jp/worldlist/64_Serbia/64_Serbia_Code.pdf (accessed on 10 July 2021).
- Fajfar, P. Analysis in seismic provisions for buildings: Past, present and future. The fifth Prof. Nicholas Ambraseys lecture. Bull. Earthq. Eng. 2018, 16, 2567–2608. [Google Scholar] [CrossRef] [Green Version]
- Jurukovski, D.; Gavrilović, P. Chapter 39 Former Yugoslavia. In International Handbook of Earthquake Engineering; Paz, M., Ed.; Springer: Dordrecht, The Netherlands, 1994. [Google Scholar]
- PGK. Pravilnik za Građevinske Konstrukcije (Building Regulations); Official Gazette of Republic of Serbia No. 89/2019, 52/2020, 122/2020; Institute for Standardization of Serbia: Belgrade, Serbia, 2019. (In Serbian) [Google Scholar]
- CEN. Eurocode 8-Design of Structures for Earthquake Resistance-Part 1: General Rules, Seismic Actions and Rules for Buildings, EN 1998-1:2005; European Committee for Standardization: Bruxelles, Belgium, 2005. [Google Scholar]
- SRPS EN 1998-1/NA:2018. Evrokod 8-Projektovanje Seizmički Otpornih Konstrukcija Deo 1: Opsta Pravila, Seizmicka Dejstva i Pravila za Zgrade (Eurocode 8-Design of Structures for Earthquake Resistance-Part 1: General Rules, Seismic Actions and Rules for Buildings); Institute for Standardization of Serbia: Belgrade, Serbia, 2018. (In Serbian) [Google Scholar]
- Seismological Survey of Serbia (SSS). Seismic Hazard Maps for Serbia; Seismological Survey of Serbia: Belgrade, Serbia, 2018. Available online: http://www.seismo.gov.rs/Seizmicnost/Karte_hazarda_e.htm (accessed on 10 July 2021).
- PTP-Z. Privremeni Tehnički Propisi za Zidove od Opeke (PTP7) (Temporary Technical Regulations for Brick Walls); Official Gazette of Federal People Republic of Yugoslavia No. 32/47; Yugoslav Institute for Standardization: Belgrade, Yugoslavia, 1949. (In Serbian) [Google Scholar]
- PTN-Z. Pravilnik o Tehničkim Normativima za Zidane Zidove (Technical Norms Regulation for Masonry Walls); Official Gazette of SFRY No. 87/91; Yugoslav Institute for Standardization: Belgrade, Yugoslavia, 1991. (In Serbian) [Google Scholar]
- Muravljov, M.; Stevanović, B. Zidane i Drvene Konstrukcije Zgrada (Masonry and Timber Buildings); Faculty of Civil Engineering, University of Belgrade: Belgrade, Serbia, 2003. (In Serbian) [Google Scholar]
- CEN. Eurocode 6-Design of Masonry Structures. Part 1-1: General Rules for Reinforced and Unreinforced Masonry Structures. EN 1996-1-1:2004; European Committee for Standardization: Bruxelles, Belgium, 2004. [Google Scholar]
- SRPS EN 1996-1-1:2016. Evrokod 6-Projektovanje Zidanih Konstrukcija Deo 1-1: Opsta Pravila za Armirane i Nearmirane Zidane Konstrukcije (Eurocode 6-Design of Masonry Structures. Part 1-1: General Rules for Reinforced and Unreinforced Masonry Structures); Serbian Institute for Standardization: Belgrade, Serbia, 2016. (In Serbian) [Google Scholar]
- Miranda, E.; Brzev, S.; Bijelic, N.; Arbanas, Ž.; Bartolac, M.; Jagodnik, V.; Lazarević, D.; Mihalić Arbanas, S.; Zlatović, S.; Acosta, A.; et al. Petrinja, Croatia December 29, 2020, Mw 6.4 Earthquake, PRJ-2959; Structural Extreme Events Reconnaissance (StEER) and Earthquake Engineering Research Institute: Oakland, CA, USA, 2021. [Google Scholar]
- Brzev, S.; Mitra, K. Earthquake-Resistant Confined Masonry Construction, 3rd ed.; National Information Center of Earthquake Engineering: IIT Kanpur, India, 2018. [Google Scholar]
- Astroza, M.; Moroni, O.; Brzev, S.; Tanner, J. Seismic Performance of Engineered Masonry Buildings in the 2010 Maule Earthquake. Special Issue on the 2010 Chile Earthquake. Earthq. Spectra 2012, 28, S385–S406. [Google Scholar] [CrossRef]
- Moroni, M.O.; Astroza, M.; Acevedo, C. Performance and Seismic Vulnerability of Masonry Housing Types Used in Chile. J. Perform. Constr. Facil. 2004, 18, 173–179. [Google Scholar] [CrossRef] [Green Version]
- Cai, G.; Su, Q.; Tsavdaridis, K.D.; Degée, H. Simplified Density Indexes of Walls and Tie-Columns for Confined Masonry Buildings in Seismic Zones. J. Earthq. Eng. 2018, 24, 447–469. [Google Scholar] [CrossRef]
- Seismological Survey of Serbia. Izveštaj o Rezultatima i Aktivnostima Republičkog Seizmološkog Zavoda Posle Zemljotresa kod Kraljeva 03.11.2010 u 01:56 (Report on the Results and Activites of the Seismological Survey of Serbia after the Earthquake in Kraljevo 03.11.2010 at 01:56); Seismological Survey of Serbia: Belgrade, Serbia, 2010. (In Serbian) [Google Scholar]
- Marinković, D.; Stojadinović, Z.; Kovačević, M.; Stojadinović, B. 2010 Kraljevo Earthquake Recovery Process Metrics Derived from Recorded Reconstruction Data. In Proceedings of the 16th European Conference on Earthquake Engineering, Thessaloniki, Greece, 18–21 June 2018. [Google Scholar]
- Ostojić, D.; Stevanović, B.; Muravljov, M.; Glišović, I. Sanacija i ojačanje zidanih objekata oštećenih zemljotresom u Kraljevu (Rehabilitation and strengthening of masonry structures damaged in the Kraljevo earthquake). In Proceedings of the 4th International Conference: Civil Engineering–Science and Practice, Žabljak, Montenegro, 20–24 February 2012. (In Serbian). [Google Scholar]
- Ostojić, D.; Muravljov, M.; Stevanović, B. Primeri sanacije višespratnih stambenih zidanih zgrada oštećenih zemljotresom u Kraljevu (Examples of housing rehabilitation multistory masonry buildings damaged in the earthquake in Kraljevo). Izgradnja 2011, 5–6, 315–325. (In Serbian) [Google Scholar]
- Nikić, M. Sanacija stambene zgrade u Kraljevu oštećene u zemljotresu 2010. godine (Seismic rehabilitation of a residential building in Kraljevo damaged in the 2010 Kraljevo earthquake). In Proceedings of the 3rd International Conference on Earthquake Engineering and Engineering Seismology, Divčibare, Serbia, 22–24 May 2012. (In Serbian). [Google Scholar]
- Manić, M.; Bulajić, B. Zašto procena šteta na građevinskim objektima u kraljevačkom regionu nije izvršena ni godinu dana nakon zemljotresa od 03.11.2010. godine? (Why damage estimation on civil engineering structures in Kraljevo region has not been completed even a year after the November 3, 2010 earthquake?). Izgradnja 2012, 66, 269–308. (In Serbian) [Google Scholar]
- City of Kraljevo. Akcioni Plan za Urgentno Saniranje Posledice Zemljotresa u Kraljevu 2010–2012 (Action Plan for Urgent Recovery of the Consequences from the Kraljevo 2010. Earthquake); City of Kraljevo: Kraljevo, Serbia, 2010. (In Serbian) [Google Scholar]
- Serbian Chamber of Engineers. Zapisnik Drugostepene Komisija za Utvrdjivanje Stepena (Kategorije) Ostecenja Objekata (Record of the Second-Instance Commission for Determining the Degree (Category) of Damage to Buildings); Serbian Chamber of Engineers: Belgrade, Serbia, 2010. (In Serbian) [Google Scholar]
- Stojadinović, Z.; Kovačević, M.; Marinković, D.; Stojadinović, B. Data-Driven Housing Damage and Repair Cost Prediction Framework Based on the 2010 Kraljevo Earthquake Data. In Proceedings of the 16th World Conference on Earthquake Engineering, Santiago, Chile, 9–13 January 2017. [Google Scholar]
- Grünthal, G. European Macroseismic Scale 1998 (EMS-98); Centre Europèen de Géodynamique et de Séismologie: Walferdange, Luxembourg, 1998. [Google Scholar]












| Design Code | PTN-S [16] | EN 1998-1:2005 [20] |
|---|---|---|
| Expected seismic performance | Life safety: structural damage acceptable at the design earthquake level, but collapse should be avoided. | 1. Ultimate limit state: the structure as a whole must have adequate resistance and stability. 2. Damage limitation state: an adequate degree of reliability against unacceptable damage to be ensured by satisfying the deformation limits. |
| Total horizontal seismic base shear force | 1 | 2 (original) (buildings taller than two storeys) |
| Distribution of seismic forces up the building height | 3 | 4 |
| Seismic weight | G = self-weight of structural elements and permanent load (Gk) + 50% variable load (Qk) at all levels (Cl. 19) | W = self-weight of structural elements & other permanent loads (Gk) + loads due to variable actions (Qk) multiplied by the combination coefficient for variable action (Cl.3.2.4) |
| Rigid diaphragm assumption | Yes | Yes |
| Combination of the effects of horizontal components of the seismic action | Does not consider simultaneous action of seismic loading in two orthogonal directions. | Considers simultaneous action of seismic loading in two orthogonal directions, e.g., 100% action effects in X-direction and 30% action effects in Y-direction: (Cl.4.3.3.5.1) |
| Seismic Intensity (MCS) | PTP-12 [15] (1964–1980) | PTN-S [16] (1981–2019) | EN 1998-1:2005 [20] 1 (2020–Present) | |||
|---|---|---|---|---|---|---|
| OM | CM | OM | CM | OM | CM | |
| VII | 5 | 6 | 3 | 5 | 3 | 4 |
| VIII | 4 | 6 | 2 | 4 | 2 | 3 |
| IX | 3 | 5 | n/a | 3 | n/a | 2 |
| Provision | PTP-12 [15] (1964–1980) | PTN-S [16] (1981–2019) | PTN-Z [24] (1991–2019) | EN 1998–1:2005 [20] (2020–Present) |
|---|---|---|---|---|
| Design method | Allowable Stress Design | Allowable Stress Design; Ultimate Limit States Design (strength only) | Allowable Stress Design; Ultimate Limit States Design (strength only) | Ultimate Limit States Design (strength plus serviceability) |
| Materials | Cement:lime: sand mortar mandatory, except single-storey buildings in seismic intensity zones VII and VIII | Cement:lime: sand mortar mandatory; grade M25-M50 (2.5–5.0 MPa) | Cement:lime:sand mortar grade M2 (2.0 MPa) or cement mortar grade M10 (10.0 MPa) | Min. mortar compressive strength 5.0 MPa |
| Masonry units with horizontal holes not permitted | Solid clay bricks, modular clay blocks permitted | Detailed classification of masonry units | ||
| Min. strength for solid clay bricks MO100-MO150 (10–15 MPa); modular clay blocks MO150 (15 MPa) | Min. strength for solid clay bricks and modular clay blocks 10.0 MPa | Min. unit compressive strength 5.0 MPa | ||
| Wall thickness | 25–38 cm | Min. 19 cm | Min. 24 cm (exterior walls) and 19 cm (interior walls) | Min. 24 cm (effective thickness tef,min) |
| Minimum effective slenderness ratio (hef/tef)max | Not prescribed | Not prescribed | 10–20 (depending on the strength of masonry units and mortar) | 12.0 |
| Number of Storeys | Acceleration at Site agS | |||||||
|---|---|---|---|---|---|---|---|---|
| WI | WI/n | WI | WI/n | WI | WI/n | WI | WI/n | |
| 1 | 2.0% | 2.00% | 2.0% | 2.00% | 3.5% | 3.50% | n/a | - |
| 2 | 2.0% | 1.00% | 2.5% | 1.25% | 5.0% | 2.50% | n/a | - |
| 3 | 3.0% | 1.00% | 5.0% | 1.67% | n/a | - | n/a | - |
| 4 | 5.0% | 1.25% | n/a | - | n/a | - | n/a | - |
| 2010 Kraljevo Earthquake—Official Damage Classification 1 | Simplified Classification 2 | European Macroseismic Scale (EMS-98) 3 |
|---|---|---|
| K1: slight non-structural damage, including roofing, plaster cracking, damaged chimneys. | DS1: slight damage | Grade 1: negligible to slight damage (no structural damage, slight non-structural damage). Hairline cracks in very few walls, fall of small pieces of plaster only. |
| K2: more widespread non-structural damage, collapse of chimneys, extensive plaster cracking; slight structural damage of loadbearing walls and extensive cracking of partition walls. | Grade 2: moderate damage (slight structural damage, moderate non-structural damage). Cracks in many walls; fall of fairly large pieces of plaster; partial collapse of chimneys. | |
| K3: moderate structural damage of roof structure, gable walls, widening of cracks in loadbearing walls. | DS2: moderate damage | Grade 3: substantial to heavy damage (moderate structural damage, moderate non-structural damage). Large and extensive cracks in most walls; roof tiles detach; chimneys fracture at the roofline; failure of individual non-structural elements (partitions, gable walls). |
| K4: heavy structural damage or partial collapse of roof structure, severe damage/collapse of partition walls. | DS3: heavy damage | |
| K5: very heavy damage and displacement of loadbearing structure (walls) which can be repaired. | Grade 4: very heavy damage (heavy structural damage, very heavy non-structural damage). Serious failure of walls; partial structural failure of roofs and floors. | |
| K6: severe damage or collapse of loadbearing structure, e.g., damage of all structural walls at specific levels and their partial collapse. | DS4: collapse | Grade 5: destruction (very heavy structural damage)—total or near total collapse. |
| Total Seismic Force (kN) | Total Seismic Weight (kN) | ||
|---|---|---|---|
| Design Code | Longitudinal (X) Direction | Transverse (Y) Direction | |
| PTN-S | 948.6 | 948.6 | 11,912.0 |
| EC 8-T1 (Type 1 spectra) | 2301.7 | 2127.2 | 11,416.4 |
| PTN-S/EC8-T1 | 0.41 | 0.45 | 1.04 |
| EC8-T2 (Type 2 spectra) | 2851.4 | 2781.8 | 11,416.4 |
| PTN-S/EC8-T2 | 0.33 | 0.34 | 1.04 |
| Longitudinal (X) Direction | Transverse (Y) Direction | |||||
|---|---|---|---|---|---|---|
| Design Code | Shear Force Ed (kN) | Shear Capacity Vrd (kN) | Ed/Vrd | Shear Force Ed (kN) | Shear Capacity Vrd (kN) | Ed/Vrd |
| PTN-S | 181 | 177 | 1.02 | 68 | 177 | 0.38 |
| EC8 (Type 1 spectra) | 431 | 295 | 1.46 | 149 | 295 | 0.50 |
| EC8 (Type 2 spectra) | 534 | 295 | 1.81 | 195 | 295 | 0.66 |
Publisher’s Note: MDPI stays neutral with regard to jurisdictional claims in published maps and institutional affiliations. |
© 2021 by the authors. Licensee MDPI, Basel, Switzerland. This article is an open access article distributed under the terms and conditions of the Creative Commons Attribution (CC BY) license (https://creativecommons.org/licenses/by/4.0/).
Share and Cite
Blagojević, P.; Brzev, S.; Cvetković, R. Simplified Seismic Assessment of Unreinforced Masonry Residential Buildings in the Balkans: The Case of Serbia. Buildings 2021, 11, 392. https://doi.org/10.3390/buildings11090392
Blagojević P, Brzev S, Cvetković R. Simplified Seismic Assessment of Unreinforced Masonry Residential Buildings in the Balkans: The Case of Serbia. Buildings. 2021; 11(9):392. https://doi.org/10.3390/buildings11090392
Chicago/Turabian StyleBlagojević, Predrag, Svetlana Brzev, and Radovan Cvetković. 2021. "Simplified Seismic Assessment of Unreinforced Masonry Residential Buildings in the Balkans: The Case of Serbia" Buildings 11, no. 9: 392. https://doi.org/10.3390/buildings11090392
APA StyleBlagojević, P., Brzev, S., & Cvetković, R. (2021). Simplified Seismic Assessment of Unreinforced Masonry Residential Buildings in the Balkans: The Case of Serbia. Buildings, 11(9), 392. https://doi.org/10.3390/buildings11090392

