Next Article in Journal
Effects of Coarse Aggregate Maximum Size on Synthetic/Steel Fiber Reinforced Concrete Performance with Different Fiber Parameters
Next Article in Special Issue
Crisis and Transition: Forms of Collective Housing in Brussels
Previous Article in Journal
Condition Assessment Framework for Facility Management Based on Fuzzy Sets Theory
Previous Article in Special Issue
Urban Quality Assessment of Public Housing Estates in Murcia, Spain (Vistabella 1940–1950s, La Paz 1960s, La Fama 1970s). Threats or Opportunities for the Medium-Sized Contemporary City?
 
 
Font Type:
Arial Georgia Verdana
Font Size:
Aa Aa Aa
Line Spacing:
Column Width:
Background:
Essay

Review of Design of Collective Housing in the 21st Century

by
David Hernández Falagán
Escuela Técnica Superior de Arquitectura de Barcelona, Universitat Politècnica de Catalunya, 08028 Barcelona, Spain
Buildings 2021, 11(4), 157; https://doi.org/10.3390/buildings11040157
Submission received: 10 February 2021 / Revised: 3 April 2021 / Accepted: 9 April 2021 / Published: 11 April 2021
(This article belongs to the Special Issue The Architecture of Collective Housing)

Abstract

This essay proposes a review of current trends in the design of collective housing projects. The method for the review is based on the observation of certain conditions of contemporary society that show an immediate influence on new habitat patterns. The concepts of uncertainty, scarcity and contingency are the catalysts for the observation, and conditions that provoke new diffuse scenarios for residential buildings. The concept of diffuse dwelling is identified here as the conjunction of three factors: non-permanent coexistence models, residential adaptation of the built environment, and non-hierarchical typological patterns. The review proposes a qualitative analysis questionnaire for the recognition of significant projects of this new residential paradigm. By tracing the EU Mies Award Archive, various examples have been identified that allow us to recognize common characteristics. The result of the analysis reveals how these parameters define a new paradigm in the design of collective housing based on collectivity, constructive resilience, and a new value of domesticity.

1. Introduction

Part of the responsibility for analyzing contemporary housing is related to our ability to foresee how the collective habitat will evolve in the future. It is important to identify how we can incorporate quality conditions and balances in the hierarchies of use to the new residential figurations that we can recognize in current experiences. The following pages propose the interpretation of a series of generic and abstract conditions of the contemporary world under which the collective habitat is outlined in the present/immediate future. A reading of such conditions is proposed in relation to housing solutions, technical opportunities and typological trends that are already visible in the built housing experiences and that outline a horizon of innovation strategies in residential architecture.
In its most elemental form, the state of the art related to housing studies shows trends that are easy to identify in relation to specific key issues. On the one hand, there is abundant research that relates housing and sustainability (both social and ecological) [1,2,3]. In this regard, both the contextual conditions and the specificity of the constructive means are analyzed in contemporary academic circles, linking the qualitative circumstances of sustainable ecosystems with the qualities of the habitat [4,5]. It is worth mentioning that the theoretical bases (economy, challenges, resources, actions) established by Gro Harlem Brundtland in his 1987 report for the United Nations are still used as the etymological basis of the concept of sustainability [6]. As will be mentioned later, sustainability has a fundamental influence on the emergence of trends in favor of flexibility and user participation in the definition of homes, as in the case of the “Open Building” movement [7,8].
On the other hand, the analysis effort aimed at understanding the mechanisms of affordable housing production is also important. There are abundant studies dedicated to analyzing housing policies, tenure models, solutions to the housing emergency, etc. [9,10,11,12,13,14]. This demonstrates the social impact of housing and the need for a transdisciplinary perspective [15,16]. Research on this aspect has a specific influence on the analysis of coexistence conditions and the alternatives offered by the co-living and co-housing models [17,18,19,20].
Finally, we cannot forget the importance of design studies focused on residential models. From this perspective we can identify the areas of spatial and constructive innovation that have reconfigured the panorama of contemporary collective housing. Studies on compact habitat, flexibility, or new typological models deserve special attention [21,22,23,24,25], but also academic works that evaluate the capacity of new technologies to intervene in design and production processes [26,27,28,29,30,31]. From this perspective, this article emphasizes typological studies and trends towards distributed dwellings heirs of the mat-building model defined by Alison Smithson [32,33].
All this knowledge defines the foundations on which reflections proposed below are based. The transdisciplinary approach of the state of the art (ecological, sociological, technological) allows to trace arisen relationships in the ecosystem that configures and characterizes the conditions of the current collective habitat. Although the research pursues a deep and holistic approach toward this set of contemporary conditions, a concrete observation will be shown that demonstrates the relevance of this theoretical framework and the incidence of some of the conditions. Therefore, this article will show the preliminar results of the research.
To test the actual impact of this feature in current habitat in Europe, the EU Mies Award Archive on collective housing program has been analyzed according to a qualitative survey. Specifically, we will refer to three characteristics: scarcity, uncertainty, and contingency conditions. The purpose of these lines is to prove that those features are already visible and have a significative importance in current trends of design of collective housing. Ultimately, the hypothesis of this study is that the evolution of contemporary collective housing, both in typological and sociological terms, and partially in technological terms, is conditioned by the influence of scarcity, uncertainty, and contingency.

1.1. Scarcity

Talking about scarcity is recognizing an insufficiency. When we consider that what we have is scarce, it can be due to two factors: either we have few resources, or we have too many needs. It is easy to understand from a mathematical perspective: in a hypothetical division of resources, a poor result can be motivated by an insufficient numerator or an excessive denominator. Raised to the global sphere, and considering data provided by both state entities and other international institutions, we can affirm that in today’s world both circumstances coexist. On the one hand, we are depleting planet’s resources, which is manifested in the status of indicators such as the so-called planetary boundaries. By analyzing these parameters, the Stockholm Resilience Centre has been proposing since 2009 a research support platform that makes visible scientific evidence such as the loss of integrity of the biosphere, changes in biogeochemical flows, the loss of natural soil... in short, global warming and climate change [34].
On the other hand, contemporary society has promoted a life model of excesses caused by mass consumption (accessible in an unbalanced way depending on the part of the world in which one lives) as a guarantor of a fictitious welfare state. Capitalism and the consumer society are hopelessly behind this problem. Another international non-profit organization, the Global Footprint Network, has translated this situation into metric data and analysis tools that allow us to compare different nations based on the number of planets we would need if all the inhabitants of the Earth consumed resources in the same way that is done in each one of them. The two factors that cause scarcity are evident: the limitation of resources and the excessive use that is made of them in many parts of the planet [35].
British urban geographer David Harvey has defined this as the “Environmental Question” [36]. With this concept, Harvey refers to the different layers that surround the matter, and that he summarizes in four scales: social, political, economic, and ecological. According to his work, the relationships of mutual dependence that exist among all scales cause the environmental question to be linked both to the economic and political system and to the model of society that provokes the consumption of ecological resources. They are what we can identify as the different dimensions of scarcity that the contemporary world experiences. Scarcity on an economic scale, with increasingly frequent crises and more pronounced imbalances; scarcity on a political scale, with the lack of participation caused by neoliberal governance; scarcity on a social scale, due to apathy in the facing of social injustice; and scarcity on an ecological scale, reflected in global warming and climate change.
The habitat context is affected by scarcity in multiple ways. In particular, the very lack of affordable housing to shelter the entire population of many cities and states is a particularly worrying situation. This is a shortage of accommodation that in turn causes precariousness at many settlements, regardless country’s economic development degree. There is a residential crisis that has become a housing emergency due to the inability to access housing by important layers of the population. This phenomenon, that has been addressed by Raquel Rolnik in her theory of “the war of places”, shows the needs of humanity fight against the economic powers that exercise their hegemony in the housing market [37]. Therefore, access to housing—and the architectural strategies to facilitate it—constitute one of the fundamental challenges caused by this first factor.

1.2. Uncertainty

A second characteristic, evident to analysts in contemporary society, is what we call uncertainty. We could define it as the inability to know the real state of a situation. In the scientific field, it is well known the Heisenberg’s uncertainty principle which, although applied to the knowledge of waves in the field of quantum physics, comes to assume that the knowledge of a phenomenon will always be inaccurate because the observation itself generates changes in it. Translated to the reflection on 21st century society, probably the person who has best developed this observation is the Polish–British sociologist Zygmunt Bauman, a post-Marxist analyst of modernity, who has described it as liquid [38]. With this adjective he refers to the kind of entity whose evolutionary nature limits the knowledge that can be obtained from it because by the time we have finished analyzing it, it has already changed. The processes of the contemporary world, globalization, commercial imperialism, neoliberal monopoly, information and communication technologies, social networks: the very speed with which the world evolves, and its layers that become unbalanced—and rebalanced—make it a liquid world, which we approach from uncertainty. The speed of change is such that it even favors the emergence of theories such as accelerationism, or the thought that an exacerbated acceleration of capitalism could lead to radical social change and a post-capitalist social future [39].
Uncertainty is an epistemological concept, insofar as it affects the knowledge that we can have of a situation. Additionally, uncertainty affects the very operational means of analysis and action. If, at the beginning of modernity, architectural creation came to be considered as the “putting in order” of a context [40], today the discipline of architecture itself could be questioned. Complexity of project management, number of agents involved, changing conditions of commissions, etc., are factors that affect the indeterminacy of tools applied from the design perspective. As a result, now architecture incorporates metadisciplinary strategies in which action tends to be participatory, and in which professional apriorisms are avoided.
Again, if we look at the habitat context, uncertainty manifests itself in multiple circumstances, among which we could highlight the speed with which changes in social models develop. If housing in a specific context has been historically and culturally associated with a certain model of coexistence, a productive-reproductive model, or a package of housing functions, housing of 21st century is characterized by uncertainty in relation to functional needs, groups of coexistence, or domestic relations of cohabitation. The need arises to review the concepts of flexibility, adaptability, multi-functionality, versatility, etc. not so much because of the capacity to perform an elastic use of housing, but because of the need to adapt to change—of inhabitants, of the residential model, of the conception of the habitat and domesticity [41].

1.3. Contingency

The third characteristic that we highlight to analyze contemporary housing is the concept of contingency: anything could be something other than what it is (anything can happen, or not happen). We could consider this circumstance partially heir to the previous one—if we live in a context of uncertainty, it will not be surprising to anyone that what had one identity can become a different one. Even if we explore the scientific context again, we will discover paradoxes, such as the Schrödinger’s Cat experiment, which allow us to affirm that there are physical properties capable of superimposing—in the theoretical model of his experiment, a cat can be alive and dead at the same time (paradoxical, contradictory and, of course, contingent circumstance).
In general, architecture—and the theory of architecture—has been built in history based on certainties, pragmatic objectives, and intentional productions [42]. But design ceased decades ago to be an instrumental discipline limited exclusively to problem solving. As explained when describing the concept of uncertainty, the very objectives that architectural discipline faces today belong to another range of action, if we understand that spatial production work implies the participation of many more actors (user communities, political estates, layers of participants in construction, etc.) [43]. In Lefebvre’s terms, the production of space is social and, therefore, inherently political [44]. Therefore, the production of space, especially habitat, requires the recognition of the contingency of circumstances and turns the action of architecture into the negotiation between possible states of transition. From this premise, it is convenient to remember Cedric Price’s teaching when he reminds us that the best solution to a spatial problem does not necessarily have to be the construction of a new building [45].
It is easy to interpret contingency in a residential context if we are aware of the reversibility of scales of the built environment. The use we make of a part of the home is reversible, and therefore contingent—what today is a bedroom could be a workspace tomorrow, or vice versa. The same could be said of the whole of a building that can have a modifiable use—many of us live in buildings that were designed for other uses, such as warehouses, workshops, or workspaces. Additionally, from an urban scale, the planned dominant use of an area can also be contingent. Throughout history we have seen cities whose districts have moved from specialized to polyfunctional zones, and vice versa, generic spaces reconverted into areas occupied by a dominant activity. For this reason, architectural activity itself is contingent—what in the past was fundamentally identified with new buildings construction, today can be recognized in restoration activities, architectural or urban rehabilitation and refurbishment, re-habitation, urban recycling, etc.

2. Materials and Methods

The main objective of this article is to offer a reasoned interpretation of current trends in contemporary habitat design and production. As in other areas of knowledge, evolution and changes occur so quickly that it causes adaptation crises at all scales. As Alvin Toffler quotes, illiterates in the 21st century will not be those who cannot read and write, but rather those who do not know how to learn, unlearn, and relearn [46]. Collective housing and social habitat are one of those human aspects affected by this acceleration, which alters processes as elementary as access to housing, models of coexistence or patterns of occupation of space and territory.
With the aim of updating the arguments used in the design of collective housing (and mentioned in the introduction), this article proposes a theoretical model for the interpretation and analysis of some observable trends in current examples. While hygiene, minimal housing, urban models or new technologies were part of the engine for discussion in recent past [47], scarcity, uncertainty or contingency conditions of current society are tools that allow us to argue current trends.
As will be seen below, the conception of home as a diffuse element (lacking in clarity or conciseness) is closely related to these characteristics. Diffuse is not a new adjective in the field of design. Decades ago, it was used by urban planners and theorists such as Francesco Indovina and Bernardo Secchi to describe the concept of a diffuse city, a theoretical model of urban disperse spontaneous organization, quite popular in the 1990s [48]. Then, it was re-incorporated by Ezio Manzini in contrast to the concept of expert design. For Manzini, diffuse design is one in which inexperienced people make use of their natural ability to design [49]. In the same way, we can speak here of diffuse housing as one that can incorporate natural capacities of people into its design, but also the conditions provided by the built environment in which it is inscribed. Circumstances such as participation or the existing environmental contexts blur the reality of design. This is especially relevant in the field of architecture, where inhabitants and built infrastructures play a fundamental role in the definition of housing.
With the intention of showing those already visible characteristics of diffuse housing, this paper is articulated as follows:
-
In the first place, a theoretical framework is proposed that relates contemporary conditions with alternative models of collective housing.
-
Next, typological characteristics of these models are identified, discovering their relationship with previous experimental proposals (such as aforementioned cases of co-housing, open-building, or mat-building).
-
Once the characteristics have been described, an analysis questionnaire will be proposed for the location of projects that respond to such features.
-
Finally, the application of this analysis to an archive of contemporary projects will make it possible to specify some shared conditions of these new housing models.

2.1. Theoretical Framework: Combinations for a Diffuse Dwelling

The three conditions that we have identified in the introduction could be catalysts in themselves of strategic responses to the requirements derived from each of them. We could assimilate a minimal housing model as a response to scarcity, a flexible housing model as a response to uncertainty, or an evolutionary housing model as a response to contingency. However, the reflection will be much richer (and prudent, given that what we want is to detect trends likely to be consolidated in the future) if we are able to incorporate the complexity that the different variables contribute to the reflection on housing. The entanglements between the conditions generate intersection spaces that can be represented as shown in Figure 1.
For this reason, in the next pages there are identified spaces of intersection—and friction—that arise between the different contemporary conditions, and that are displayed here as a three-dimensional system on which to identify the incidence in the habitat conditioned by such characteristics. A central space emerges from the intersection between those conditions, which we could recognize as the theoretical model of diffuse housing. From the observation of the partial intersections, we can interpret trends in contemporary housing that are already detectable. Characteristics of such trends, which have been identified in a large set of examples during the investigation, are described below.

2.1.1. Tactical Housing

If we look at the possible interaction between characteristics of uncertainty and scarcity, we can easily empathize with the human condition related to such circumstances. From a human-centered design perspective, the creative response to these conditions is clearly identified with emergency or resistance situations. In them, it is important to consider not only the available infrastructures—which we have already identified as scarce-, but also the mobility and participatory capacity of people involved. Housing emergency requires collective and holistic approaches to offer architectural responses that can be considered temporarily valid [50].
Therefore, tactical housing situations are proposed, in which two kinds of solutions are offered. On the one hand, to groups that require a certain mobility or that are in transitory situations of nomadism (displacements or expulsions, using Saskia Sassen’s term [51], whatever the scale is). On the other hand, a desire for cohabitation emerges that arises as collective resistance to the demands of housing system and market. They are tactical scenarios due to their high capacity for transformation, both infrastructure and the human group that inhabits them and participates in their configuration and production [52]. Additionally, they are solutions proposed not so much from emergency but from the need for domestic alternatives to face scarcity and uncertainty (and the unaffordable nature of housing) caused by the market itself [53]. Consequently, the nomadic nature, the willingness for participation and the reaction to the emergency could be some characteristics that define new tendencies towards tactical housing.
As a specific state of the art for this kind of interventions, we cannot forget that there is already a whole international tradition of co-housing and co-living proposals. In both cases, alternative forms of coexistence are fostered in which the goal is to promote community against the individualized habitat. In co-housing models, almost always close to cooperative organizations (historically highly successful in places as diverse as Uruguay, Austria, or Switzerland), communities exist before architecture and they are the ones who activate the proposals [54,55,56]. In the case of co-living, external agents promote spaces in which individual spaces coexist with common facilities for the collective of neighbors that inhabit them [57].
The challenge for design is the definition of a new cohousing model, and a suitable type of intervention to achieve this goal can be tactical housing. We call tactical design the one proposed as a reversible spatial action that allows its validation to be tested by analyzing the results obtained during a short period of time. In case of obtaining satisfactory results, tactical design can become a strategic program, adapting it to durability conditions that allow it to be consolidated over time. We would include under the concept of tactical housing those interventions developed to achieve a sufficient supply of accommodation capable of attending both housing emergency and alternatives for coexistence that arise outside the traditional housing market, inaccessible to many. They are usually temporary, reversible, emergency, participatory, collective, or co-inhabited interventions in which an immediate response to imminent needs is pursued—due to emergency or insurgency. Additionally, they are interventions that can become permanent strategies once their effectiveness has been proven. The clearest example of tactical design could be tactical urbanism, a completely new approach to urban design practices that have already proven its value in the public scale [58,59].

2.1.2. Augmented Building

If we focus the attention on the interference between conditions of scarcity and contingency, we can approach the concept of augmented building. The own infrastructure built for the function of living experiences the condition of contingency if we question the need to be built explicitly to develop that function. In other words, built environment must be considered as a possible scenario for habitat development. The lack of land, the lack of economic resources for the construction of housing or, simply, the ideological position of not allocating resources to the production of new buildings (in short, due to scarcity and the demand for sustainable alternatives) can catalyze the observation of the built environment in search of opportunities for residential activity.
In this case, the characteristics of a future housing development depend on the built environment in which the proposal must be developed. An adequate diagnosis and analysis of the built context will enable the development of appropriate strategies to the environment. These strategies will surely have to contemplate at least this double condition: the ability to evolve over time, since the built environment is a living ecosystem in constant mutation; and the ability to act from austerity of means and protection of that context [60].
The strategic model behind this kind of intervention could be an approach to the concept of augmented building (using the metaphor of augmented reality, it would locate possibilities of existing architecture beyond the immediate status). The objective is to provide reality of the building with added characteristics without losing the qualitative condition of the initial built environment. In order to carry out any action to increase the built condition, it is important to recognize the physical systems that conform architecture and relationships among them. To understand these relationships, we can look at two classical theoretical models. In the first place, N. John Habraken in his theory of supports fundamentally recognizes two physical systems: base building or support, which contains the fixed elements, and filling or infill that contains the (almost) mobile elements. He also considers other secondary layers, included in the previous ones, such as furniture within the infill, or urban fabric and street as part of the support [61]. Second, we can look at the layer durability scheme proposed by Stuard Brand with his Six Ess theory. From the general to the particular, these six layers would be site, structure, skin, services, space plan and stuff [62]. In both cases, the goal is to identify systems of elements that belong to the same degree of intervention and durability. Applying this look to the built architecture can allow us to assess the permanence capacity of existing systems and can facilitate us to propose projects that improve the quality of houses, focusing the action on some layers and preserving the rest.
Furthermore, the understanding of augmented building is not intended to be a mere act of conservation and improvement of the built architecture of existing collective housing buildings, but rather recognizes the contingency of the built environment to assess the relevance of other types of construction for its conversion into residential spaces. This supposes an approach to the model of resource consumption (concern shared by scarcity and contingency) close to theories such as the 3 Rs: refuse, reuse, recycle—often extended with the concepts of reduce, repurpose, etc. [63]. Augmented buildings refuse to build new architectures in the first place. If necessary, they reuse them and ultimately recycle others.

2.1.3. Distributed Dwelling

Finally, if we look at the confluence between the conditions of uncertainty and contingency, we stand before the need to build a habitat without having the capacity to define the reality of its use and without knowing how that reality will evolve. We focus the problem on the typological model with the intention of locating patterns that allow questioning housing as a distributed (non-centralized) typology.
We can identify conditions of this typology if we look at the characteristics that outline the current moment of uncertainty. It must be able to adapt to different configurations, and, therefore, avoid as much as possible any hierarchy in use that distribution may cause (spaces are never neutral, but they can be balanced to limit the possible hierarchies of use, which end up becoming in gender or age patterns) [64,65]. It must be able to be used in different ways, since functionality of each piece can be contingent (what today is a bedroom, tomorrow may be a workspace). Additionally, if we look at the most pragmatic sphere of use, it must be able to respond to the needs for individuality required by the contemporary social condition (a group of people may require a model of coexistence in which they can isolate their independent tasks in their own spaces, both productive and reproductive).
The metaphor we can use to refer to the typological pattern that results from these conditions would be, using systems theory as a reference, the model of a distributed system versus a centralized system [66]. A centralized system always depends on a central and hierarchical node that becomes the distribution core of the system. A distributed system uses the node network as distribution infrastructure. If we recognize housing typologies as systems of functions and uses, the centralized model—the one usually recognized in collective housing programs—clearly determines some central functions of living. In fact, it has been common to differentiate the fundamental qualities of these traditional spaces in various ways: living spaces versus service spaces, day spaces versus night spaces, etc. They are areas whose qualification is associated with a domesticity loaded with symbolic values and roles of use typical of a cultural heritage that we can consider outdated today. On the contrary, a house organized according to a distributed system gives all spaces a condition of homogeneity that does not predetermine their occupation, functionality, or use, but rather shows the contemporary atomization of the productive and reproductive functions. If in this case we must consider some kind of division, it would surely be closer to identifying individualized (or private) spaces versus collective spaces. A paradigmatic example of this model could be the Moriyama House residence, by Ryue Nishizawa (2005), where a general owner rents small rooms to other users in the space that would correspond to a single residential plot [67].

2.2. Qualitative Questionnaire

In order to transform this theoretical framework into a possible tool for the analysis of current collective housing, a questionnaire has been proposed that synthesizes the characteristics of each trend. The questionnaire was elaborated by developing the following steps:
-
In the first place, a series of criteria derived from the theoretical framework were selected. These criteria constitute the hypothesis for the identification of the diffuse housing categories. Each category has been summarized in 3 identification criteria.
-
Definitions for each criterion have been established below, as can be read in the corresponding descriptions in Table 1.
-
Finally, in order to check if a project meets the criteria, questions have been drawn up on their fundamental aspects, in accordance with the previous definition. If a project answers affirmatively to one of the questions, it means that it meets that criterion.
Table 1 shows the developed questions to be applied in collective housing projects. According to the answers (and the mentioned criteria) cases for further study can be selected.
The proposition of this questionnaire allows us to update the theoretical framework through the theoretical hypothesis that is reproduced in Figure 2:
This figure allows us to identify 2 fundamental aspects:
-
In the first place, a series of characteristics of each new trend are recognized, repeated in many of the projects that we will see below. This way, tactical housing is characterized by its usefulness as a response to different types of emergency, its participatory nature, and the temporality of its use. Augmented building is characterized by austerity of resources, use of the built environment as raw material, and the evolutionary capacity of architecture. Finally, distributed dwelling shows the trend towards individuality of use, adaptability of the programs, and absence of gender hierarchies.
-
Secondly, these same characteristics show clear typological or functional relationships with alternative proposals for collective housing that emerged in the 20th century. Tactical housing is influenced by co-housing, augmented building is related to open-building, and distributed dwelling has great similarities with mat-building models.
From the analysis of following examples, we will be able to verify if these three groups of conditions are related to each other and what type of characteristics they offer to contemporary domestic landscape.

2.3. EU Mies Award Archive Analysis

To make the research effective, EU Mies Award Archive has been used as a qualitative repository of collective housing projects where to apply the questionnaire and look for the impact of previously described features. According to the Mies van der Rohe Foundation (institution in charge of the Award) the goal of the prize is “the promotion and understanding of the significance of quality and the reflection of complexity of architecture in technological, constructional, social, economic, cultural and aesthetic terms” [68]. This makes the archive a useful tool for the analysis of architectural trends based on innovative paradigms.
Award’s calls are held every two years in the context of the European Union. Participating projects can apply in various categories, including “collective housing”. Award’s archive (also available in digital format: https://eumiesaward.com/archive (9 February 2021)) allows the consultation of all its editions since 1988 depending on the result obtained by a project in the call. For this analysis exercise, all the projects nominated in the last 5 editions (2013, 2015, 2017, 2019 and 2022) under the tag of “collective housing” have been consulted. This allows us to observe a panorama of quality architecture in the field of collective housing during the last 10 years. In total, 201 projects have been located, 61 of which show characteristics that put them in relation to the hypothesis of this study. Table 2 shows this selection of projects.

3. Results

The application of the questionnaire to the localized projects shows the outstanding values of the examples. At the same time, it allows to classify them in the categories described. Table 3 shows these results (• = yes / - = no), where we can look at the following aspects:
-
All the projects have responded affirmatively to two criteria belonging to at least one category.
-
Many of the projects even answer affirmatively to criteria from two different categories (which means that the categories have important relationships between them)
-
Depending on the number of criteria met (and the number of questions answered affirmatively), the projects can be considered as representative case studies of each category.

3.1. Tactical Housing Findings

The spectrum of possibilities for tactical action in the habitat is very varied and offer very different conditions depending on the context and the need to be solved. Examples range from the most imminent emergency to the most permanent affordable alternative habitat proposal.
The most represented architectural model in the results of this section is the different practices of co-housing. Different projects located in several countries propose alternative models of tenure and coexistence. This is the case of Marmalade Lane in Cambridge (United Kingdom), La Borda in Barcelona (Spain) (Figure 3), Vindmøllebakken in Stavanger (Norway), R50 and Spreefeld in Berlin (Germany), or Nordbahnhofgelände (Co-H) in Vienna (Austria). All these projects have in common an origin as previous communities, associated in different cooperative models for the achievement of affordable housing. Other detected common characteristics would be: participatory activities in different moments of the design and production process; customization capacity of the housing units; incorporation of common facilities and spaces in the building; design of a management and governance system for the building. All projects respond to a need for affordable housing in the different contexts, at the same time that they propose temporary and reversible occupations of the different spaces.
Some proposals that explore technological or typological aspects with the aim of providing temporary accommodation for different reasons also have a significant presence. From a constructive point of view, there are interesting projects such as Housing Rack in Berlin (Germany), which proposes an industrialized construction of habitable modules designed to house other possible uses in the future; or the Mühlgrund Project in Vienna (Austria), designed as a hub for modular buildings suitable for age-appropriate accommodation. From the typological perspective, we could highlight projects such as the dwellings in the 22 @ district of Barcelona (Spain), which incorporate pieces of temporary accommodation for people who require a space to live in for emergency reasons; or the Frankie and Johnny modules in Berlin (Germany), built from shipping containers for temporary accommodation of students.
As a whole, the importance of tactical proposals is visible in the new imaginary of residential architecture. Architectures that arise from the need for residential alternatives and that are solved with strategies that facilitate their transformation.

3.2. Augmented Building Findings

Residential use of the augmented building concept is oriented in two directions. On certain occasions, structural systems are preserved to reformulate the interior, while on other occasions, interior is preserved to remake container layers. Examples of the first case could be deFlat Kleiburg in Amsterdam (The Netherlands), Serpentine in Helsinki (Finland) or São João de Deus in Porto (Portugal). All three propose refurbishment of existing housing projects with different strategies for updating and preserving the residential use. Other examples looking for structural preservation include the transformation of other uses into housing. This is the case of Fabra and Coats in Barcelona (Spain), The Silo in Copenhagen (Denmark) or Gasholders in London (United Kingdom), the three of them former industrial installations. Sometimes, the examples show a specific attempt for heritage preservation. This can be seen at Almada Street in Porto (Portugal), Town House in Linz (Austria) or Burés House in Barcelona (Spain).
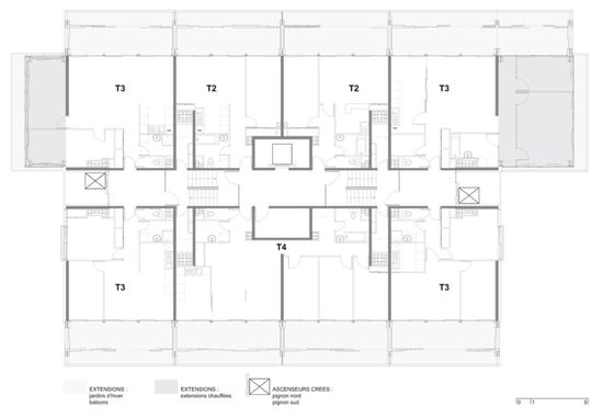
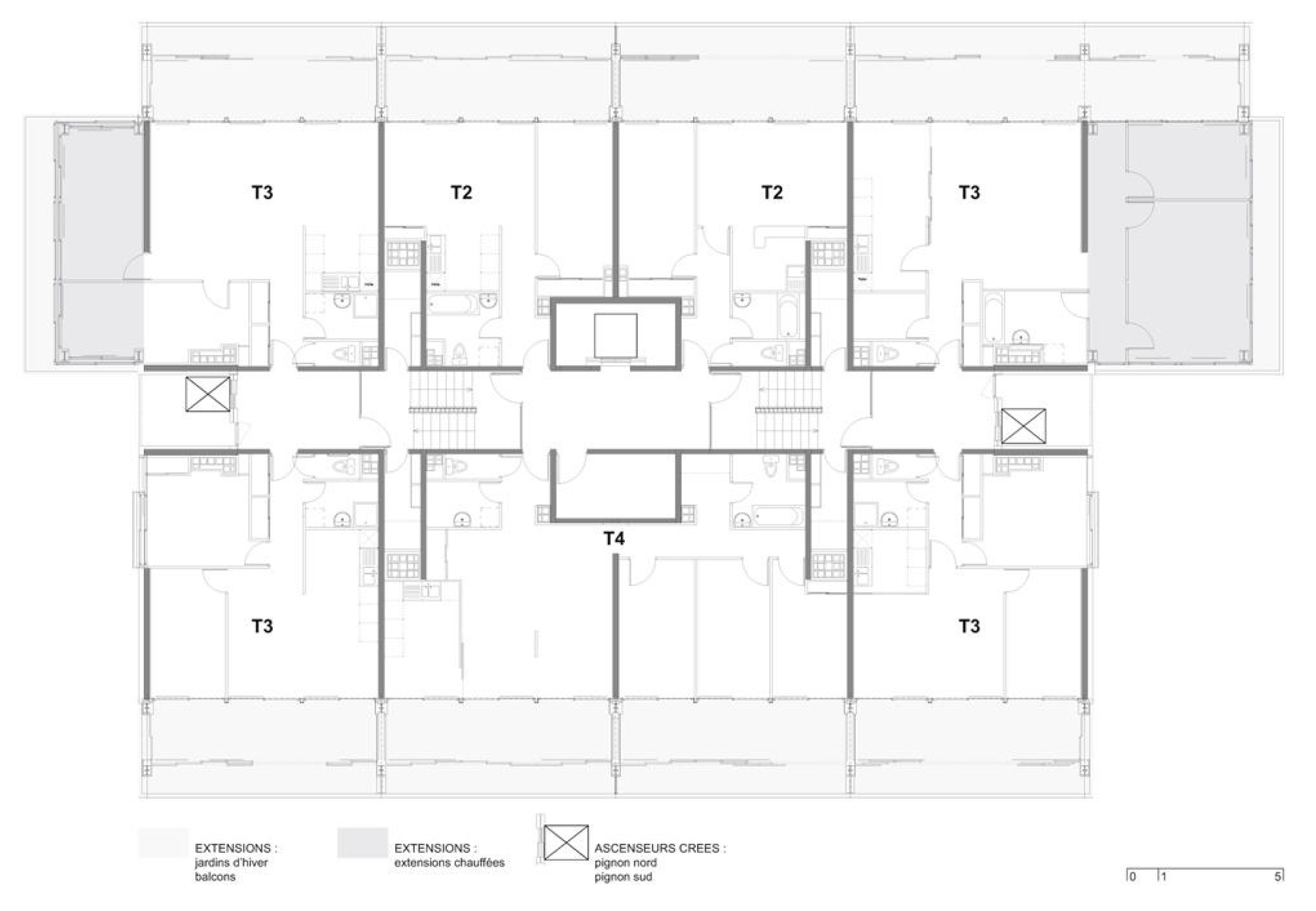
On the other hand, remaking external layers is often the argument for interventions. This happens paradigmatically in Lacaton and Vassal projects as the transformation of 530 logements in Bordeaux or Tour Bois le Prêtre in Paris (both in France). These projects are based on conservation of the existing building and incorporation of a new volume on the facade that provides a longitudinal balcony and winter garden—making use of + Plus space strategy inaugurated in Tour Bois le Prêtre [69] (Figure 4). Lacaton and Vassal strategies are paradigmatic of augmented building (that is why they call it +Plus space) due to their ability to preserve the built environment—and especially the social environment in which they operate. They show the capacity of architecture to evolve through austere actions but with great social and architectural impact.
We can find other examples where both conditions (interior and exterior) are affected. Cosmopolitan in Brussels (Belgium), Unique3 Cube in Saarbrücken (Germany) or Prefab House in Rimavska Sobota (Slovakia) show how obsolete office buildings can be reformulated and transformed into residential places.
All cases demonstrate how there is a prior recognition of the built environment and an austere strategic definition of the actions to be undertaken, which represent an evolution of what already exists. If the logic of the Open-Building model relied on the differentiation of times and agencies in each construction system [70], the logic of augmented building incorporates the reading of the built environment as the first layer on which to develop design strategies. All projects show the ability to consider the built ecosystem as an opportunity for generating a new project—and also the ability to face the scarcity of resources, turning austerity into creative conditions for the involvement of inhabitants.

3.3. Distributed Dwelling Findings

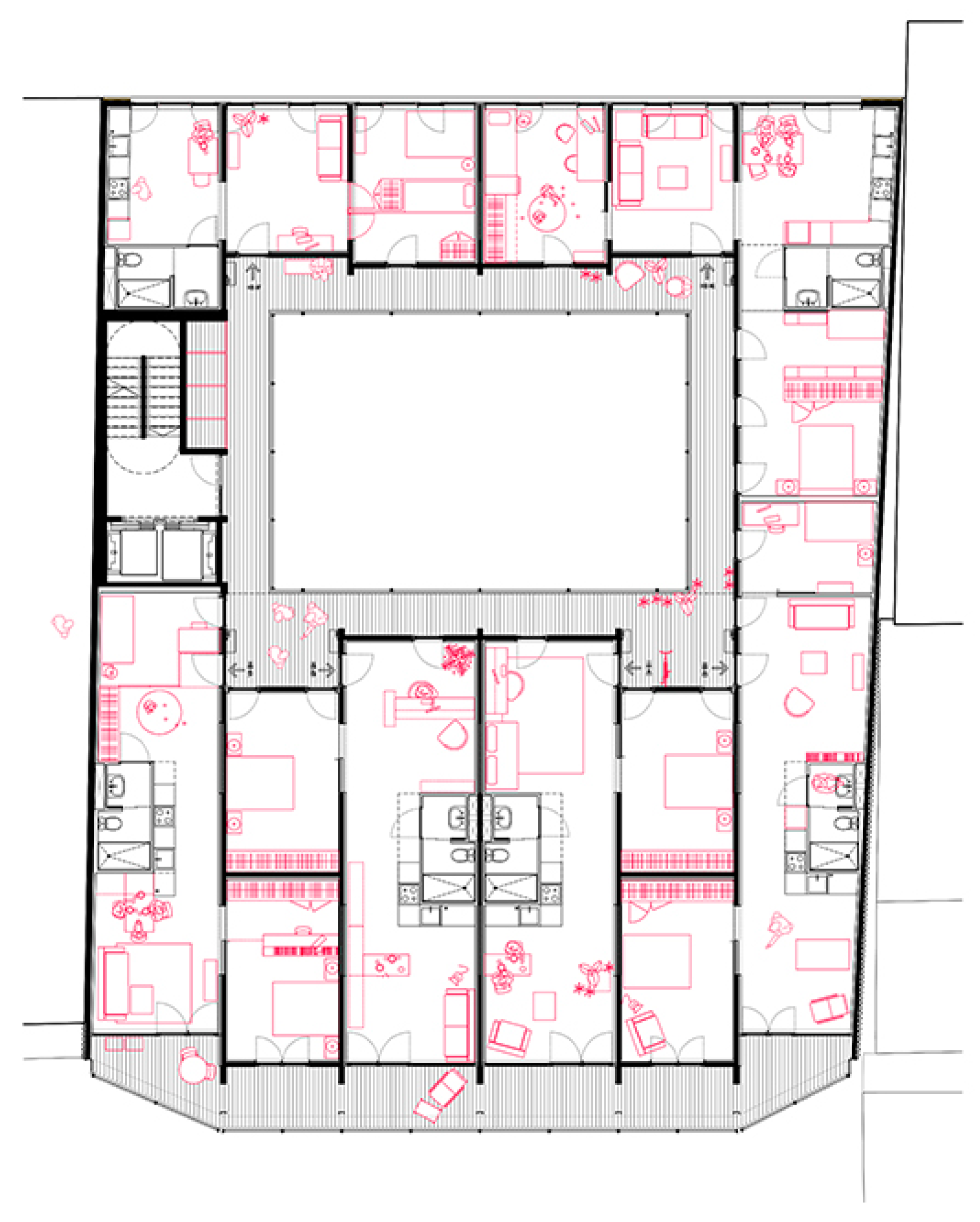
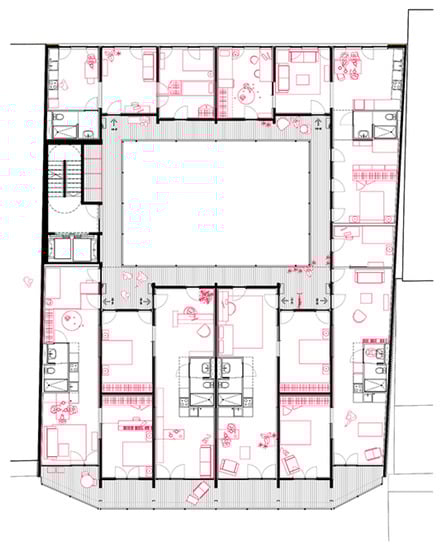
There have been detected many housing proposals defined by a distributed organization of rooms. We can describe different strategies to achieve it. On one hand, we find a series of projects that propose isotropic geometric structures on which housing units are developed, colonizing space in a modular way. This is the case of Eckertstraße 1 in Berlin (Germany), Maximilianstraße in St. Pölten (Austria), Nursing School in Dikemark (Norway) or St. Gallenkirch (Austria) (Figure 5). In all of them, the spaces are distributed in a balanced way regardless of use.
Other cases propose the distribution of dwellings through access to successive spaces of equivalent dimensions. This way, centralized distribution is broken, and de-hierarchical appropriation of rooms is facilitated. Paradigmatic examples of this could be 110 Rooms in Barcelona (Spain), Unité(s)+ modular dwellings in Dijon (France) or Prule apartment building in Ljubljana (Slovenia). Additionally, even more alternative layouts, such as those proposed by FALA studio in Six Houses and Rua do Paraíso in Porto (Portugal), worth to be mentioned. The spatial grammar of their projects gives the command of the occupation to inhabitants, proposing infrastructures suitable to be adapted.
In all those projects, a distribution mat for the arrangement of spatial pieces in an isotropic matrix mode has been detected, clearly recalling the logic of mat-buildings. De-hierarchical relationships of the pieces, different possibilities of appropriation, or reversibility in the configuration of housing units are clearly visible characteristics in these projects.

4. Conclusions Towards Diffuse Housing

The results show that questions formulated about contemporary collective housing projects have affirmative answers in different areas. The uniqueness of most of the identified examples lies in their ability to respond affirmatively to questions from all three areas (tactical housing, augmented building and distributed dwelling), demonstrating implicit relationships between different categories of analysis. This shows that the influence of conditions proposed in the research (scarcity, uncertainty, contingency) is already visible in current collective housing projects, as it was defended in the starting hypothesis. Thirty percent of all analyzed projects (61 out of 201) showed typical characteristics of diffuse housing. On the other hand, two projects (DeFlat Kleiburg and Transformation of 530 dwellings) were awarded with Mies van der Rohe Prize. This means that, out of 5 analyzed calls of Mies van der Rohe Awards, 2 (2017 and 2019) were won by collective housing projects that fit the characteristics of diffuse housing. This demonstrates the timeliness of these proposals and the institutionally recognized value of their innovation.
We can point out some aspects of what we could describe as an important trend in the state of the art of current collective housing design. There, we can identify residential architecture models that will probably continue and evolve in coming years. However, genealogies of alternative proposals that emerged in the 20th century are recognized and can be identified as catalysts of innovative characteristics that we have detected here. Such genealogies would include co-housing proposals (seed of tactical housing), open-building experiments (reference for augmented building), and mat-building typologies (influence in the case of the distributed dwelling).
First of all, it would be appropriate to speak of a new concept of collectivity. The trend towards tactical housing requires in many aspects a new social construction of residential coexistence, based on solidarity, participation, and temporality. A new community is reflected not only in cohabitation management models, but also in access to housing opportunities and in the types of housing that are generated [71]. Most of analyzed projects share these features.
Second, there is an attitude of resilience of the built environment as a habitat that faces the complexity of the socio-economic context surrounding it. Resilience can be especially detected in the idea of augmented building-where architecture can evolve to adapt to new needs—but is also visible in the distributed condition of typologies and in the collective and tactical management of cohabiting.
Third, we must mention the emergence of a new domesticity, based on the atomization of inhabitants individuality, discontinuous construction of habitat and a typological distribution closer to an archipelago model than to a concentrated centrality. The hierarchical relationships between parties are diluted, making inherited domesticity of nuclear family model and heteropatriarchal distribution of functions obsolete. At the same time, examples show the expansion of the private sphere through complementary collective areas.
In Figure 6 it can be observed the conceptual path of the research until reaching these three defining aspects of Diffuse Housing: collectivity, resilience and new domesticity.
The three conditions—collectivity, resilience and new domesticity—are related to the original hypothesis. From the beginning we have recognized the concept of diffuse housing due to the involvement in the design process of inhabitants and existing built environment. The three characteristics clearly illustrate this phenomenon—collectivity, due to the inclusion of all agents in the process; resilience, due to the determining role of existing architecture; new domesticity, due to the indeterminate nature of resulting models of coexistence.

Future Research

The initial development of the research has allowed the construction of a theoretical model that could be applied in different contexts—it would be especially useful in geographical areas where collective housing stands out as the main residential model. Both the theoretical diagram and the qualitative questionnaire can be used as guidelines for the analysis of the influence on habitat of contemporary conditioning factors. On one hand, the diagram articulates and makes visible the relationships between socioeconomic conditions of contemporary world and their repercussions in habitat context. On the other hand, trends observed from the application of the qualitative questionnaire allow evaluating the influence and particular impact of each of these conditions.
These preliminary results of the research invite to deepen the analysis of trends in three main directions:
-
In the first place, it would be convenient to define and analyze in depth those indicators that have been explored in this first observation. It would be important to indicate variations and limitations of its definition when applied to heterogeneous contexts.
-
Secondly, it would be appropriate to carry out comparative work based on results obtained in different contexts. An adequate mapping of the indicators could allow detecting areas of special relevance.
-
Finally, results of comparative works and mapping could be especially interesting for implementation and updating of local housing policies, as well as dissemination of good residential practices both within academic and non-academic contexts.
A flowchart of full research, including future tasks, is illustrated in Figure 7.
The diagram shows three main phases of work: a first stage of knowledge and construction of the theoretical framework; a second stage of construction of the model for analysis and diagnosis of case studies; and a third stage of reflection and application of the results in legislative implementation and architectural practice.
A quantitative analysis of housing production in a specific context carried out by using these tools could allow evaluation of the specific impact of each contemporary condition, which could become an indicator of habitat evolution trends. The first approach to this research shows the presence of new typological, technological, and sociological models of housing. The quantitative exploration of the analysis model could show the degree of transformation (regulation, design, policies) required in a particular site.
To sum up, diffuse housing is analyzed here as a liquid concept, motivated by a certain perverse heritage of modernity, but an opportunity for innovation in new domestic landscapes.

Funding

This research received no external funding.

Institutional Review Board Statement

Not applicable.

Informed Consent Statement

Not applicable.

Data Availability Statement

Data presented in this study have been created by the author and are openly available within the article.

Conflicts of Interest

The author declares no conflict of interest.

References

  1. Ahmad, A.L.; Zainol, H.; Rashid, K.; Arip, M.S.M.; Azman, M.A.A. Assessing Housing Design Sustainability Using Urban Fabric Indicators: A Case Study of Middle Range High Rise Housing Development at Bandar Perda. Int. J. Acad. Res. Bus. Soc. Sci. 2019, 9, 336–345. [Google Scholar]
  2. Nikezić, A.; Ristić Trajković, J.; Milovanović, A. Future Housing Identities: Designing in Line with the Contemporary Sustainable Urban Lifestyle. Buildings 2021, 11, 18. [Google Scholar] [CrossRef]
  3. Rodríguez Vidal, I.; Otaegi, J.; Oregi, X. Thermal Comfort in NZEB Collective Housing in Northern Spain. Sustainability 2020, 12, 9630. [Google Scholar] [CrossRef]
  4. Lin, Y.P.; Lin, W.C.; Wang, Y.C.; Lien, W.Y.; Huang, T.; Hsu, C.C.; Schmeller, D.S.; Crossman, N.D. Systematically designating conservation areas for protecting habitat quality and multiple ecosystem services. Environ. Model. Softw. 2017, 90, 126–146. [Google Scholar] [CrossRef]
  5. Saldaña-Márquez, H.; Gómez-Soberón, J.M.; Arredondo-Rea, S.P.; Gámez-García, D.C.; Corral-Higuera, R. Sustainable social housing: The comparison of the Mexican funding program for housing solutions and building sustainability rating systems. Build. Environ. 2018, 133, 103–122. [Google Scholar] [CrossRef]
  6. Brundtland, G.H. Our Common Future; United Nations World Commission on Environment and Development: New York, NY, USA, 1987. [Google Scholar]
  7. Kendall, S. Open Building: An Approach to Sustainable Architecture. J. Urban Technol. 1999, 6, 1–16. [Google Scholar] [CrossRef]
  8. Ledent, G.; Salembier, C.; Vanneste, D. Sustainable Dwelling Between Spatial Polyvalence and Residents’ Empowerment; Presses Universitaires de Louvain: Louvain-la-Neuve, Belgium, 2019. [Google Scholar]
  9. Adabre, M.A.; Chan, A.P. Critical success factors (CSFs) for sustainable affordable housing. Build. Environ. 2019, 156, 203–214. [Google Scholar] [CrossRef]
  10. Metcalf, G. Sand castles before the tide? Affordable housing in expensive cities. J. Econ. Perspect. 2018, 32, 59–80. [Google Scholar] [CrossRef]
  11. Gan, X.; Zuo, J.; Wu, P.; Wang, J.; Chang, R.; Wen, T. How affordable housing becomes more sustainable? A stakeholder study. J. Clean. Prod. 2017, 162, 427–437. [Google Scholar] [CrossRef]
  12. Chan, A.P.; Adabre, M.A. Bridging the gap between sustainable housing and affordable housing: The required critical success criteria (CSC). Build. Environ. 2019, 151, 112–125. [Google Scholar] [CrossRef]
  13. Czischke, D.; van Bortel, G. An exploration of concepts and polices on ‘affordable housing’ in England, Italy, Poland and The Netherlands. J. Hous. Built Environ. 2018, 1–21. [Google Scholar] [CrossRef]
  14. Montaner, J.M. Remaking Slums: International Examples of Upgrading Neighbourhoods. Buildings 2020, 10, 216. [Google Scholar] [CrossRef]
  15. McRobert, A. Designing Affordability: Interdisciplinarity in Design Research as Methodology for Tackling Housing Affordability. In Proceedings of the 1st Annual Design Research Conference, Sydney, Australia, 27–28 September 2018. [Google Scholar]
  16. Koh, S. Why housing studies still lacks social theory and what to do about it. Hous. Theory Soc. 2018, 35, 231–234. [Google Scholar]
  17. Bec, A.F. What is co-housing? Developing a conceptual framework from the studies of Danish intergenerational co-housing. Hous. Theory Soc. 2020, 37, 40–64. [Google Scholar] [CrossRef]
  18. Scheler, D.; Thörn, H. Governing ‘sustainable urban development’ through self-build groups and co-housing: The cases of Hamburg and Gothenburg. Int. J. Urban Reg. Res. 2018, 42, 914–933. [Google Scholar] [CrossRef]
  19. Czichke, D. Collaborative housing and housing providers: Towards an analytical framework of multi-stakeholder collaboration in housing co-production. Int. J. Hous. Policy 2018, 18, 55–81. [Google Scholar] [CrossRef]
  20. Hagert, P.; Larsen, H.G.; Thörn, H.; Wasshede, C. (Eds.) Contemporary Co-Housing in Europe: Towards Sustainable Cities? Routledge: London, UK, 2019. [Google Scholar]
  21. De Paris, S.R.; Lopes, C.N.L. Housing flexibility problem: Review of recent limitations and solutions. Front. Archit. Res. 2018, 7, 80–91. [Google Scholar] [CrossRef]
  22. Estaji, H. A review of flexibility and adaptability in housing design. Int. J. Contemp. Archit. N. ARCH 2017, 4, 37–49. [Google Scholar]
  23. Magdziak, M. Flexibility and adaptability of the living space to the changing needs of residents. In Proceedings of the IOP Conference Series: Materials Science and Engineering; IOP Publishing: Bristol, UK, 2019; Volume 471, p. 072011. [Google Scholar]
  24. Shearer, H.; Burton, P. Towards a typology of tiny houses. Hous. Theory Soc. 2019, 36, 298–318. [Google Scholar] [CrossRef]
  25. De Jorge Huertas, V. Rethinking Collective Housing: A Case Study of Spatial Flexibility and Adaptability in Arturo Soria (Madrid, 1975). Arts 2020, 9, 74. [Google Scholar] [CrossRef]
  26. Bianconi, F.; Filippucci, M.; Buffi, A. Automated design and modeling for mass-customized housing. A web-based design space catalog for timber structures. Autom. Constr. 2019, 103, 13–25. [Google Scholar] [CrossRef]
  27. Paulichen, L.; Leite, R.M.; Pina, S.A.M.G. Resilience in architecture: Housing as a process. Strateg. Des. Res. J. 2019, 12, 383–401. [Google Scholar] [CrossRef]
  28. Bardhan, R.; Debnath, R.; Malik, J.; Sarkar, A. Low-income housing layouts under socio-architectural complexities: A parametric study for sustainable slum rehabilitation. Sustain. Cities Soc. 2018, 41, 126–138. [Google Scholar] [CrossRef]
  29. Derazgisou, S.; Bausys, R.; Fayaz, R. Computational optimization of housing complexes forms to enhance energy efficiency. J. Civ. Eng. Manag. 2018, 24, 193–205. [Google Scholar] [CrossRef]
  30. Oliveira, R.A.; Silva, F.N.; Sobrinho, C.P.; Azevedo, A.C.; Delgado, J.M.P.Q.; Guimarães, A.S. Structural performance of unreinforced masonry elements made with concrete and horizontally perforated ceramic blocks—Laboratory tests. Constr. Build. Mater. 2018, 182, 20–34. [Google Scholar] [CrossRef]
  31. Juan, Y.K.; Hsing, N.P. BIM-based approach to simulate building adaptive performance and life cycle costs for an open building design. Appl. Sci. 2017, 7, 837. [Google Scholar] [CrossRef]
  32. Smithson, A. How to recognize and read mat-building: Mainstream architecture as it has developed towards the mat-building. Archit. Des. 1974, 44, 573. [Google Scholar]
  33. De Jorge-Huertas, V. Mat-hybrid housing: Two case studies in Terni and London. Front. Arch. Res. 2018, 7, 276–291. [Google Scholar] [CrossRef]
  34. Rockström, J.; Steffen, W.L.; Noone, K.; Persson, Å.; Chapin III, F.S. Planetary Boundaries: Exploring the Safe Operating Space for Humanity. Ecol. Soc. 2009, 14, 32. [Google Scholar] [CrossRef]
  35. Wackernagel, M.; Kitzes, J.; Moran, D.; Goldfinger, S.; Thomas, M. The Ecological Footprint of cities and regions: Comparing resource availability with resource demand. Environ. Urban. 2006, 18, 103–112. [Google Scholar] [CrossRef]
  36. Harvey, D. Marx, Capital, and the Madness of Economic Reason; Profile Books: London, UK, 2017. [Google Scholar]
  37. Rolnik, R. Guerra dos Lugares: A Colonização da Terra e da Moradia na era das Finanças; Boitempo Editorial: São Paulo, Brasil, 2017. [Google Scholar]
  38. Bauman, Z. Liquid Modernity; John Wiley & Sons: London, UK, 2013. [Google Scholar]
  39. Mackay, R.; Avanessian, A. (Eds.) #Accelerate the Accelerationist Reader; Urbanomic: London, UK, 2014. [Google Scholar]
  40. Corbusier, L. Precisions on the Present State of Architecture and City Planning; MIT Press: Cambridge, MA, USA, 1991. [Google Scholar]
  41. Schneider, T.; Till, J. Flexible Housing; Architectural Press: London, UK, 2007. [Google Scholar]
  42. Till, J. Architecture and contingency. Field 2008, 1, 120–135. [Google Scholar]
  43. Awan, N.; Schneider, T.; Till, J. Spatial Agency. In Other Ways of Doing Architecture; Roudledge: London, UK, 2011. [Google Scholar]
  44. Lefebvre, H. The Production of Space; Blackwell: Oxford, UK, 1991. [Google Scholar]
  45. Obrist, H.-U. Cedric Price; Walther Konig: Cologne, Germany, 2009. [Google Scholar]
  46. Toffer, A. Future Shock; Bantam: New York City, NY, USA, 1970. [Google Scholar]
  47. Leupen, B.; Mooij, H. Housing Design. A Manual; NAi: Rotterdam, The Netherlands, 2011. [Google Scholar]
  48. Vanneste, G. Territory between Product and Project: Rethinking the Limits. In The Horizontal Metropolis between Urbanism and Urbanization; Viganò, P., Cavalieri, C., Barcelloni Corte, M., Eds.; Springer: Cham, Switzerland, 2018; pp. 341–349. [Google Scholar]
  49. Manzini, E. Design, When Everybody Designs: An Introduction to Design for Social Innovation; MIT Press: Cambridge, MA, USA, 2015. [Google Scholar]
  50. Herscher, A.; Hirsch, N.; Miessen, M. Architecture and Refugee; Sternberg Press: Berlin, Germany, 2017. [Google Scholar]
  51. Sassen, S. Expulsions; Harvard University Press: Cambridge, MA, USA, 2014. [Google Scholar]
  52. Falagán, D.H.; Montaner, J.M. Housing in Barcelona. Footprint 2019, 13, 153–160. [Google Scholar]
  53. Falagán, D.H. Innovation in Affordable Housing. Barcelona 2015–2018; Ajuntament de Barcelona: Barcelona, Spain, 2019. [Google Scholar]
  54. Richer, M. Una fórmula innovadora de acceso a la vivienda: Las cooperativas de vivienda en Uruguay. Cayapa. Revista Venezolana Economía Social 2010, 20, 9–22. [Google Scholar]
  55. Lang, R.; Stoeger, H. The role of the local institutional context in understanding collaborative housing models: Empirical evidence from Austria. Int. J. Hous. Policy 2018, 18, 35–54. [Google Scholar] [CrossRef]
  56. Balmer, I.; Gerber, J.D. Why are housing cooperatives successful? Insights from Swiss affordable housing policy. Hous. Stud. 2018, 33, 361–385. [Google Scholar] [CrossRef]
  57. McCamant, K.; Durrett, C. Creating Cohousing: Building Sustainable Communities; New Society: Gabriola, BC, Canada, 2011. [Google Scholar]
  58. Webb, D. Tactical urbanism: Delineating a critical praxis. Plan. Theory Pr. 2018, 19, 58–73. [Google Scholar] [CrossRef]
  59. Yassin, H.H. Livable city: An approach to pedestrianization through tactical urbanism. Alex. Eng. J. 2019, 58, 251–259. [Google Scholar] [CrossRef]
  60. Aureli, P.V. Less is Enough: On Architecture and Asceticism; Strelka Press: Moscow, Russia, 2013. [Google Scholar]
  61. Habraken, N.J. Supports. An Alternative to Mass Housing; The Architectural Press: London, UK, 1972. [Google Scholar]
  62. Brand, S. How Buildings Learn: What Happens after They’re Built; Penguin: London, UK, 1995. [Google Scholar]
  63. Makower, J.; Elkington, J.; Hailes, J. The Green Consumer Supermarket Guide; Penguin Books: London, UK, 1991. [Google Scholar]
  64. Falagán, D.H. Flexibilidad e igualdad de género en la vivienda. Qüestions d’habitatge 2019, 22, 11–53. [Google Scholar]
  65. Muxí Martínez, Z. Recomanacions per a un Habitatge no Jeràrquic ni Androcèntric; Institut Català de les Dones: Barcelona, Spain, 2009. [Google Scholar]
  66. Burns, B. Designing Distributed Systems: Patterns and Paradigms for Scalable, Reliable Services; O’Reilly Media: Newton, MA, USA, 2018. [Google Scholar]
  67. Lee, N.T. Dwellscape: The Contemporary Dwelling Interior as a Continuous Domestic Landscape: A comparative analysis of Moriyama House & House Vandenhaute-Kiebooms. In The Production of Knowledge in Architecture by PhD Research in the Nordic Countries; Nordic Academic Press of Architectural Research: Tampere, Finland, 2018; pp. 289–311. [Google Scholar]
  68. Romero, M.; Blasi, I. European Union Prize for Contemporary Architecture Mies van der Rohe Award 1988–2015; Fundació Mies van der Rohe: Barcelona, Spain, 2016. [Google Scholar]
  69. Lacaton, A.; Vassal, J.-P.; Druot, F. PLUS-Large Housing Projects-Exceptional Territories; Gustavo Gili: Barcelona, Spain, 2007. [Google Scholar]
  70. Kendall, S.H.; Teicher, J. Residential Open Building; Routledge: London, UK, 2010. [Google Scholar]
  71. Morrow, O.; Parker, B. Care, commoning and collectivity: From grand domestic revolution to urban transformation. Urban Geogr. 2020, 41, 607–624. [Google Scholar] [CrossRef]
Figure 1. Theoretical framework. Author’s own construction, 2020.
Figure 1. Theoretical framework. Author’s own construction, 2020.
Buildings 11 00157 g001
Figure 2. Theoretical hypothesis. Author’s own construction, 2020.
Figure 2. Theoretical hypothesis. Author’s own construction, 2020.
Buildings 11 00157 g002
Figure 3. La Borda Cooperative Housing, 4th floor. EU Mies Award Archive. https://eumiesaward.com/work/4554 (accessed on 8 February 2021).
Figure 3. La Borda Cooperative Housing, 4th floor. EU Mies Award Archive. https://eumiesaward.com/work/4554 (accessed on 8 February 2021).
Buildings 11 00157 g003
Figure 4. Transformation of Tour Bois-le-Prêtre Housing Block. EU Mies Award Archive. https://eumiesaward.com/work/1594 (accessed on 8 February 2021).
Figure 4. Transformation of Tour Bois-le-Prêtre Housing Block. EU Mies Award Archive. https://eumiesaward.com/work/1594 (accessed on 8 February 2021).
Buildings 11 00157 g004
Figure 5. Residential building St. Gallenkirch, 3rd floor. EU Mies Award Archive. https://eumiesaward.com/work/3523 (accessed on 8 February 2021).
Figure 5. Residential building St. Gallenkirch, 3rd floor. EU Mies Award Archive. https://eumiesaward.com/work/3523 (accessed on 8 February 2021).
Buildings 11 00157 g005
Figure 6. Theoretical outcome. Author’s own construction, 2020.
Figure 6. Theoretical outcome. Author’s own construction, 2020.
Buildings 11 00157 g006
Figure 7. Research flowchart. Author’s own construction, 2020.
Figure 7. Research flowchart. Author’s own construction, 2020.
Buildings 11 00157 g007
Table 1. Qualitative questionnaire for diffuse dwelling projects detection.
Table 1. Qualitative questionnaire for diffuse dwelling projects detection.
CategoryCriteriaDescriptionAffirmative Answers
Tactical HousingParticipatory processThe project incorporates future inhabitants into the design process
  • Have the inhabitants been involved in the design?
  • Does the community of inhabitants exist before the building?
  • Have the inhabitants been involved in the construction?
Solution for emergencyThe project presents an alternative for access to housing motivated by an emerging need or by a personal position against market models
  • Is the project proposed as an emergency shelter?
  • Do the inhabitants act as a promoter cooperative?
  • Is the project proposed as a solution to a temporary need?
Temporal accommodationThe project is occupied on a temporary basis. The inhabitants change over time
  • Do the inhabitants occupy the building for a specified period?
  • Is the building a temporary construction?
  • Does the building technology facilitate its disassembly?
Augmented BuildingCapacity for functional evolutionThe project transforms an existing use or foresees changes of use in the future
  • Was the building constructed for non-residential use?
  • Does the building foresee a possible non-residential later use?
  • Does the building support different functionalities?
Low budget transformationThe project proposes or allows the transformation of the construction using limited resources
  • Was the building intended to be transformed?
  • Does the building incorporate mechanisms or technologies for its transformation or expansion?
  • Does the structural layout of the building facilitate its transformation?
Use of existing infrastructureThe project occupies an existing building or infrastructure, which is recycled into the new architecture
  • Does the project reuse an existing building?
  • Does the project recycle existing infrastructure or buildings?
  • Does the project incorporate elements belonging to previous constructions?
Distributed DwellingCapacity for internal adaptationThe project can adapt to different occupation models and different coexistence groups
  • Does the project allow a free occupation of the spaces?
  • Is the predetermined use of spaces avoided?
  • Is it verified that different appropriations of the spaces are valid?
Non-hierarchical typologyThe project proposes a distribution of spaces that does not condition occupation
  • Are the dimensions of the rooms equivalent?
  • Are domestic workspaces visible and centralized?
  • Are all bathrooms accessible to all residents?
Individualized homogeneous spacesThe project proposes a homogeneous and equitable arrangement of the spaces that make up the house
  • Does the project present an isotropic distribution of the spaces?
  • Do all the spaces have the same qualitative conditions?
  • Do all rooms allow the same functions?
Table 2. Selected examples.
Table 2. Selected examples.
ProjectLocation (City)Location (Country)Year CompletedAuthors
The SketchblockAmsterdamThe Netherlands2018ANA architecten
Gleis 21ViennaAustria2019einszueins architektur
Castilho 203LisbonPortugal2020ARX Portugal Arquitectos
Almada streetPortoPortugal2018figueiredo+pena arquitectos
Six HousesPortoPortugal2019FALA
Marmalade Lane CambridgeUnited Kingdom2018Mole Architects
Casa BurésBarcelonaSpain2019TDB Arquitectura
La BordaBarcelonaSpain2018Lacol
Santa ClaraGironaSpain2020Lagula
Town houseLinzAustria2020mia2 ARCHITEKTUR
Eckertstraße 1BerlinGermany2019orange architekten et al.
Uhlhorn Church HannoverGermany2019[pfitzner moorkens] architekten; et al.
Serpentine House HelsinkiFinland2020Kati Salonen Mona Schalin et al.
Housing Rack BerlinGermany2019FAR frohn and rojas
Kuģu streetRigaLatvia2019Sarma and Norde Architects
Ribeira 11LisbonPortugal2019Ricardo Carvalho
VindmøllebakkenStavangerNorway2020Helen & Hard
Vallirana 47BarcelonaSpain2019vora
The CosmopolitanBrusselsBelgium2019BOGDAN & VAN BROECK
Unité(s)+DijonFrance2019Sophie Delhay Architecte
Viva housing GothenbourgSweden2019Malmström Edström
Zellige/G2NantesFrance2020tectōne architectes urbanistes et al.
DelehuseneFrederiksbergDenmark2019ONV arkitekter; We Do Democracy
São João de Deus PortoPortugal2020Brandão Costa Arquitectos, lda
Fabra & Coats BarcelonaSpain2019Roldán+Berengué, arqts.
530 dwellings BordeauxFrance2017Lacaton & Vassal et al.
Life Reusing Sant Ferran Spain2017Institut Balear de l’Habitatge (IBAVI)
Flower marketBerlinGermany2018ifau; HEIDE and VON BECKERATH
Unique3 CubeSaarbrückenGermany2017Hauser Architektur
Barão de Santos LisbonPortugal2018Barbas Lopes Arquitectos
Gasholders LondonLondonUnited Kingdom2018Wilkinson Eyre Architects
The SiloCopenhagenDenmark2017COBE
Rua do ParaísoPorto Portugal 2017FALA
3 BuildingsAntwerp Belgium 2018Bovenbouw Architectuur et al.
Chadwick HallLondon United Kingdom2017Henley Halebrown
MaximilianstraßeSt. Pölten Austria 2017ARTEC Architekten et al.
Building at 22@BarcelonaSpain2018COLL-LECLERC Arquitectos
The Nursing SchoolDikemark Norway 2017Jarmund/Vigsnæs AS
Gertrudes 121 Riga Latvia 201712 LĪNIJAS
DeFlat KleiburgAmsterdam The Netherlands2016XVW architectuur; NL Architects
Moholt 50I50 Trondheim Norway 2016Masu planning; MDH Arkitekter SA
Elderly HousingBarcelonaSpain2016peris+toral.arquitectes; Bonell i Gil
Neppert Gardens Mulhouse France 2015Lacaton and Vassal architectes
BellevilleParisFrance2016SEPTEMBRE
PruleLjubljana Slovenia 2015Bevk Perovic arhitekti
110 RoomsBarcelonaSpain2016Maio
St. GallenkirchSt. Gallenkirch Austria 2016Dorner\Matt
R50 CohousingBerlin Germany 2013ifau; Jesko Fezer et al.
PaN Vienna Austria 2013Werner Neuwirth et al.
Frankie and Johnny Berlin Germany 2014Holzer Kobler Architekturen
Prefab HouseRimavskaSlovakia 2014GutGut
Doxiadis Athens Greece 2014Divercity Architects
River SpreeBerlin Germany 2013Die Zusammenarbeiter et al.
Co-Housing ViennaVienna Austria 2013einszueins architektur
Oase 22Vienna Austria 2013studio uek
Ting1Örnsköldsvik Sweden 2013Wingårdh Arkitektkontor AB
Two Floor Addition Papagou Greece 2013Marda Nelly—architecture
Bois-le-Prêtre Paris France 2013Lacaton and Vassal et al.
MühlgrundVienna Austria 2011Atelier Czech et al.
GyldenrisparkenCopenhagen Denmark 2012WVW et al.
Sharing BlocksGandia Spain2011Guallart Architects
Table 3. Analysis applied to case studies.
Table 3. Analysis applied to case studies.
Conditions for Tactical HousingConditions for Augmented BuildingConditions for Distributed Dwelling
Participatory ProcessSolution for Emergency Temporal AccommodationCapacity for Functional EvolutionLow Budget TransformationUse of Existing InfrastructureCapacity for Internal AdaptationNon-hierarchical TypologyIndividualized Homogeneous Spaces
The Sketchblock-----
Gleis 21----
Castilho 203-------
Almada Street-----
Six Houses-----
Marmalade Lane-----
Burés House-------
La Borda-----
Santa Clara------
Town House-----
Eckertstraße 1-----
G.Uhlhorn Church-----
Serpentine------
Housing Rack-----
Kuģu Street-------
Ribeira 11-----
Vindmøllebakken---
Vallirana 47-------
The Cosmopolitan------
Unité(s)+-----
Viva Housing------
Zellige------
Delehusene------
São João de Deus------
Fabra & Coats-----
530 Dwellings----
Life Reusing----
Flower Market------
Unique3 Cube------
Santos Palace-------
Gasholders-------
The Silo-----
Rua do Paraíso----
3 Buildings-------
Chadwick Hall------
Maximilianstraße----
Dwelling at 22@------
Nursing School----
Gertrudes 121-------
DeFlat Kleiburg----
Moholt 50150------
Elderly Housing-----
Neppert Gardens------
Belleville-----
Prule-----
110 Rooms------
St. Gallenkirch------
R50-----
PaN-------
Frankie&Johnny------
Prefab House----
Doxiadis-------
River Spree------
Co-H Vienna-----
Oase 22------
Ting 1------
2 Floor Addition-------
Bois-le-Prêtre-----
Mühlgrund------
Gyldenrisparken-------
Sharing Blocks------
Publisher’s Note: MDPI stays neutral with regard to jurisdictional claims in published maps and institutional affiliations.

Share and Cite

MDPI and ACS Style

Hernández Falagán, D. Review of Design of Collective Housing in the 21st Century. Buildings 2021, 11, 157. https://doi.org/10.3390/buildings11040157

AMA Style

Hernández Falagán D. Review of Design of Collective Housing in the 21st Century. Buildings. 2021; 11(4):157. https://doi.org/10.3390/buildings11040157

Chicago/Turabian Style

Hernández Falagán, David. 2021. "Review of Design of Collective Housing in the 21st Century" Buildings 11, no. 4: 157. https://doi.org/10.3390/buildings11040157

APA Style

Hernández Falagán, D. (2021). Review of Design of Collective Housing in the 21st Century. Buildings, 11(4), 157. https://doi.org/10.3390/buildings11040157

Note that from the first issue of 2016, this journal uses article numbers instead of page numbers. See further details here.

Article Metrics

Back to TopTop